Расчет посадок

  • Вид работы:
    Контрольная работа
  • Предмет:
    Другое
  • Язык:
    Русский
    ,
    Формат файла:
    MS Word
    1,01 Мб
  • Опубликовано:
    2015-09-06
Вы можете узнать стоимость помощи в написании студенческой работы.
Помощь в написании работы, которую точно примут!

Расчет посадок

БЕЛОРУССКИЙ ГОСУДАРСТВЕННЫЙ ИНСТИТУТ ПОВЫШЕНИЯ КВАЛИФИКАЦИИ И ПЕРЕПОДГОТОВКИ КАДРОВ ПО СТАНДАРТИЗАЦИИ.

МЕТРОЛОГИИ И УПРАВЕНИЮ КАЧЕСТВОМ

КОНТРОЛЬНАЯ РАБОТА

«Расчет посадок»


слушателя Дьяковой Татьяны Анатольевны

1. Расчет посадок гладких цилиндрических соЕДИНЕНИЙ

.1 Задание

Для гладких цилиндрических сопряжений Ø16 P7/h6 и Ø180 K8/h6 провести расчет одной посадки с зазором (натягом) и одной переходной посадки. Построить схемы расположения полей допусков; определить идеальные размеры сопрягаемых деталей; рассчитать зазоры (натяги) табличные и вероятные; допуск посадки. Для переходных посадок определить вероятность получения зазоров (натягов).

.2 Расчет посадки с натягом Ø16 P7/h6

Предельные отклонения и размеры для отверстия Ø16 P7:

По ГОСТ 25346-89 определяем величину допуска IT7 = 18 мкм;

По ГОСТ 25346-89 определяем значение основного отклонения:

Верхнее: ES=-18+7=-11

Нижнее отклонение EI = ES + IT = -11 + (-18) = -29 мкм.

Предельные размеры отверстия:

Dmax = Dн + ES = 16,000 +(-0,011) = 15,989 мм;

Dmin = Dн + EI = 16,000 + (-0,029) = 15,971мм.

Рассчитываем предельные размеры вала Ø16 h6:

По ГОСТ 25346-89 определяем величину допуска IТ6 = 11 мкм;

По ГОСТ 25346-89 определяем значение основного отклоненияs = 0 мкм;

Нижнее отклонение: ei = es - IT = 0 - 11 = -11 мкм.

Предельные размеры вала:

dmin = dн + ei = 16,000 - 0,011 = 15,989 мм;

dmax = dн + es = 16,000 - 0 = 16,000 мм.

Результаты расчетов представлены в виде таблицы 1.1.

Таблица 1.1 - Предельные отклонения и размеры сопряжения

Диаметр, мм

IT, мкм

ES(es), мкм

EI(ei), мкм

Dmin(dmin), мм

Dmax(dmax),мм

Ø16 Р7

18

-11

-29

15,971

15,989

Ø16 н6

11

0

-11

15,989

16,000


Определяем предельные натяги:

Nmax = Dmax - dmin = 16,000 - 15,971= 0,029мм = 29 мкм;

Nmin = Dmin - dmax = 15,989- 15,989= 0,000 мм = 0 мкм;

Nср = (Nmax + Nmin)/2 = (29 + 0)/2 = 14,5 мкм.

Допуск посадки:

TS = IT(D) + IT(d) = 18 + 11 = 29 мкм.

Строим схему расположения полей допусков сопрягаемых деталей (рисунок 1.1).

Рисунок 1.1 - Схема расположения полей допусков посадки Ø16 Р7/h6

Принимаем нормальный закон распределения случайных погрешностей и рассчитываем предельные значения вероятностных зазоров:

sN = = 3,516 м

км.

Nmax вер = Nср + 3sN = 14,5 + 3·3,516 = 25,048 мкм;

Nmin вер = Nср - 3sN = 14,5 - 3·3,516 = 3,952 мкм.

посадка зазор допуск

График распределения вероятностных натягов показан на рисунке 1.2.

Рисунок 1.2 - Распределение вероятных натягов в посадке Ø16 P7/h6

1.3 Расчет посадки переходной Ø180 К8/h6

Предельные отклонения и размеры для отверстия Ø180 К8 по (ГОСТ25346-89) :

IT8 = 63 мкм = 20 мкм

EI = -43 мкм.

Dmin = Dн + EI = 180,000 - 0,043 = 179,957 мм;

Dmax = Dн + ES = 180,000 + 0,020 = 180,020 мм.

Предельные размеры вала Ø 180 h6 по (ГОСТ25346-89) :Т6 = 25 мкм i = -25 мкм

es = 0

dmax = dн + es = 180,000 +0 = 180,000 мм.

Результаты представлены в виде таблицы 1.2.

Таблица 1.2 - Предельные отклонения и размеры сопряжения

Диаметр, мм

IT, мкм

ES(es), мкм

EI(ei), мкм

Dmin(dmin), мм

Dmax(dmax),мм

Ø180 K8

63

+20

-43

179,957

180,020

Ø 180 h6

25

0

-25

179,975

180,000

ср = (Dmax + Dmin)/2 = (180,020 + 179,957)/2 = 179,9885 мм;ср = (dmax + dmin)/2 = (180,000 + 179,975)/2 = 179,9875 мм.= Dmax - dmin = 180,020 - 179,975 = 0,045 мм = 45 мкм;= dmax - Dmin = 180,000 - 179,957 = 0,043 мм = 43мкм.

TS, N = IT(D) + IT(d) =63 + 25 = 88 мкм.

Строим схему расположения полей допусков сопрягаемых деталей (рисунок 1.3).

Рисунок 1.3 - Схема расположения полей допусков посадки Ø180 K8/h6

Принимаем нормальный закон распределения случайных погрешностей и рассчитываем предельные значения вероятностных зазоров (натягов). В рассматриваемом сопряжении Dср > dср, поэтому более вероятно возникновение зазоров.

sS,N = = 0,0114мм.

M S,N = (Smax - Nmax)/2 = (45 - 43)/2 = 1 мкм.

Smax вер = Mср + 3sS,N = 1,0 + 3·11,4 = 35,2 мкм;вер = Mср - 3sS,N = 1,0- 3·11,4 = -33,2 мкм; вер = 28 мкм.

Считаем, что размеры отверстия и вала распределены по нормальному закону. В этом случае можно считать, что распределение натягов и зазоров также будет подчиняться нормальному закону, а вероятности их получения определяются с помощью функции Лапласа Ф(z) ,где z = M S,N /s.

Так как MS,N = 0,001 мм; sS,N = 0,0114 мм,

то z = 0,001/0,0114=0,09

По найденому значению z по таблице определяем функцию Ф(z)

Ф(z) = 0,359

Определяем вероятность получения натягов и зазоров в посадке,

Если МS(N)˃0, то

РN=0,5- Ф(z) = 0,5 - 0,359 = 0,141

РS=0,5+ Ф(z) = 0,5 + 0,359 = 0,859

Таким образом, вероятность получения зазоров в сопряжении Ø180 K8/h6 составляет P(S) = 14,1%; вероятность получения натягов P(N) = 85,9%.

График распределения вероятностных натягов (зазоров) показан на рисунке 1.4.

Рисунок 1.4 - Распределение вероятностных натягов (зазоров) в посадке Ø180 K8/h6

2. Выбор, ОБОСНОВАНИЕ и расчет посадок подшипника качения

2.1 Задание

Для подшипникового узла (подшипник качения 6-316, режим работы - нормальный) выбрать и обосновать посадку по наружному (местное нагружение) и внутреннему (циркуляционное нагружение) диаметрам. Построить схемы расположения полей допусков сопрягаемых деталей, рассчитать предельные размеры сопрягаемых деталей; зазоры (натяги); выполнить эскизы сопрягаемых с подшипником деталей.

.2 Расчет посадок подшипника качения 6-316

Данный подшипник относится к шариковым радиальным однорядным открытым, серия диаметров средняя, серии ширин - нормальная. Основные размеры подшипника:

·  номинальный диаметр отверстия внутреннего кольца подшипника d = 80 мм;

·        номинальный диаметр наружной цилиндрической поверхности наружного кольца D = 170 мм;

·        номинальная ширина подшипника B = 39 мм;

·        номинальная высота монтажной фаски r = 3,5 мм.

Из заданного режима нагружения колец следует, что передача крутящего момента осуществляется зубчатыми колёсами, в зубчатом зацеплении действует радиальная нагрузка, постоянная по направлению и по значению; вал вращается, а корпус неподвижен. Режим работы подшипникового узла - нормальный.

Рисунок 2.1 - Схема нагружения подшипника

ГОСТ 3325 для такого случая рекомендует поля допусков цапфы вала, сопрягаемой с кольцом подшипника качения k6 или js6. Выбираем поле k6, которое обеспечивает посадку с натягом. Так же на основании рекомендаций стандарта выбираем поле допуска отверстия корпуса Н7. Предельные отклонения средних диаметров колец подшипника качения определяем по ГОСТ 520, предельные отклонения вала Ø80k6 и отверстия корпуса Ø80Н7 - по ГОСТ 25347-82 . Расчеты сводим в таблицы 2.1 и 2.2.

Таблица 2.1 - Предельные размеры колец подшипников качения

Размер, мм

ES (es), мкм

EI (ei), мкм

Dп max (dп max), мм

Dп min (dп min), мм

dп = 80

0

- 12

80,000

79,988

Dп = 170

0

- 18

169,982


Таблица 2.2 -Предельные размеры цапфы вала и отверстия корпуса

Размер, мм

ES (es), мкм

EI (ei), мкм

Dп max (dп max), мм

Dп min (dп min), мм

d = 80

+21

+ 2

80,021

80,002

D = 170

+40

0

170,040

170,000


Строим схемы расположения полей допусков сопрягаемых деталей подшипникового узла и рассчитываем зазоры (натяги).

По dп:

Nmax = dmax - dп min = 80,021 - 79,988 = 0,033 мм = 33 мкм;

Nmin = dmin - dп max = 80,002 - 80,000 = 0,002 мм = 2 мкм;

Ncp = (Nmax + Nmin)/2 = (33 + 2)/2 = 17,5 мкм.

Рисунок 2.2 - Схема расположения полей допусков сопряжения Ø80 L6/k6

По Dm:

Smax = Dmax - Dп min = 170,040 - 169,982= 0,058 мм = 58 мкм;

Smin = Dmin - Dп max = 170,000 - 170,000 = 0;

Scp = (Smax + Smin)/2 = (58 + 0)/2 = 29 мкм;

TS = ITDm + ITD = 40 + 18= 58 мкм.

Рисунок 2.3 - Схема расположения полей допусков сопряжения Ø170Н7/l6

Производим проверку наличия в подшипнике качения радиального зазора, который уменьшается по причине натяга при посадке подшипника на вал. В расчетах принимаем среднее значение натяга и среднее значение зазора в подшипнике как наиболее вероятные.

Ncp = 17,5 мкм;   

Nэфф = 0,85·17,5 = 14,9 мкм = 0,0149 мм;

d0 = dп +(Dп - dп)/4 = 80,000 + (170,000 - 80,000)/4 = 102,5 мм;

Δd1 = Nэфф·dm / d0 = 0,0149·80,0/102,5 = 0,0116 мм = 11,6 мкм.

По ГОСТ 24810 определяем предельные значения теоретических зазоров в подшипнике 6-316 до сборки:

Gr min = 8 мкм; Gr mах = 28 мкм.

Средний зазор в подшипнике 316 определяется как полусумма предельных теоретических зазоров

Gr cp = ( Gr min + Gr mах)/2 = (8 + 28)/2 = 18 мкм.

Тогда Gпос = Gr cp - Δd1 = 18 - 11,6 =6,4 мкм.

Расчёт показывает, что при использовании посадки Ø80L6/k6 по внутреннему диаметру зазор в подшипнике качения после посадки будет положительным.

На чертежах общего вида выбранные посадки подшипника качения обозначаются:

·    на вал - Ø80L6/k6, где L6 - поле допуска внутреннего кольца подшипника нормального класса точности; k6 - поле допуска вала.

·        в корпус - Ø170Н7/l6, где Н7 - поле допуска отверстия корпуса; l6 - поле допуска наружного кольца подшипника нормального класса точности.

Шероховатость посадочных поверхностей, сопрягаемых с кольцами подшипника деталейПо ГОСТ 3325 выбираем требования к шероховатости

·    посадочной поверхности вала под кольцо подшипника 0,63;

·        посадочной поверхности корпуса под кольцо подшипника 1,25;

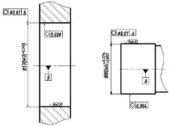
Рисунок 2.4 - Эскиз сопрягаемых деталей подшипникового соединения

3. ВЫБОР, ОБОСНОВАНИЕ И Расчет шпоночных посадок

3.1 Задание

Для шпоночного соединения (диаметр вала 40 мм, длина шпонки 32 мм, вид соединения - свободное) выбрать размеры, обосновать вид сопряжения, построить схемы расположения полей допусков, рассчитать предельные размеры сопрягаемых элементов, зазоры (натяги). Выполнить эскизы сечения.

.2 Выбор, обоснование и расчет посадок шпоночного соединения

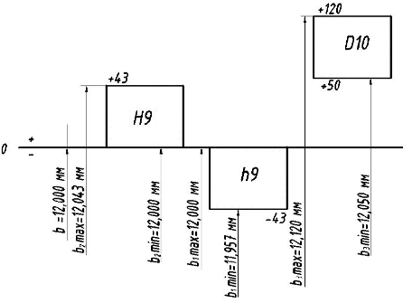
По ГОСТ 23360 выбираем размеры шпонки: , ; . Условное обозначение шпонки: 12х8х32 ГОСТ 23360-78. Для вала при свободном соединении выбираем поля допусков: ширина шпонки ; ширина паза на валу ; ширина паза во втулке .

: es = 0,0 мм; ei = -0,043 мм.

: es = +0,043 мм; ei =0,0.

: es = +0,120 мм; ei = +0,050 мм.

Рисунок 3.1 - Схема расположения полей допусков шпоночного соединения

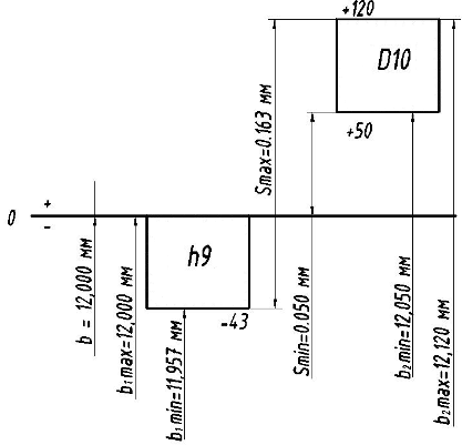
Рассчитаем табличные зазоры по размеру :

соединение шпонки  с пазом вала

.

Рисунок 3.2 - Схема расположения полей допусков соединения «шпонка - вал»

- соединение шпонки  с пазом втулки


Рисунок 3.3 - Схема расположения полей допусков соединения «шпонка - паз втулки»

Рассчитаем табличные зазоры по размеру :

глубина паза вала

;

- высота шпонки

;

глубина паза втулки

;

Smax = t1 max + t2 max - hmin = 5,20+3,50 - 8,0 = 0,70 мм

Smin = t1 min + t2 min - hmax = 5,0 + 3,3 - 8,090 = 0,21 мм

Рассчитаем табличные зазоры по размеру :

длина шпонки

;

- длина паза вала

;

Тогда

Рисунок 3.4 - Схема расположения полей допусков соединения по длине шпоночного паза

Числовые значения допусков расположения определяем из соотношения:

;

.

Полученные значения округляем до стандартных по ГОСТ 24643 ; .

Шероховатость боковых поверхностей шпоночного паза - Ra3.2; для паза - Ra6,3. Контроль ширину пазов вала и втулки осуществляется специальными предельными калибрами; глубину паза во втулке - пробками со ступенчатой шпонкой; глубину паза на валу - кольцевыми калибрами с проходной/непроходной ступенью.

Рисунок 3.5 Эскиз сечений шпоночного соединения

БИБЛИОГРАФИЯ

Соломахо В.Л. и др. Справочник конструктора-приборостроителя. - В 2-х томах. - Т. 1. - Минск: Высш. школа, 1988.; Т.2. - Минск: Высш. школа, 1990

ГОСТ 25346-89 «Единая система допусков и посадок. Общие положения, ряды допусков и основных отклонений».

ГОСТ 3325-85 «Подшипники качения. Поля допусков и технические условия к посадочным поверхностям валов и корпусов. Посадки».

ГОСТ 520-89 «Подшипники качения. Общие технические условия».

ГОСТ 2789-73 «Шероховатость поверхности. Параметры, характеристики и обозначения».

ГОСТ 24643-81 «Допуски формы расположения поверхностей. Числовые значения».

Похожие работы на - Расчет посадок

 

Не нашли материал для своей работы?
Поможем написать уникальную работу
Без плагиата!
Без нейросетей!