Анализ и совершенствование системы управления запасами

  • Вид работы:
    Дипломная (ВКР)
  • Предмет:
    Менеджмент
  • Язык:
    Русский
    ,
    Формат файла:
    MS Word
    1,6 Мб
  • Опубликовано:
    2017-02-28
Вы можете узнать стоимость помощи в написании студенческой работы.
Помощь в написании работы, которую точно примут!

Анализ и совершенствование системы управления запасами

МИНИСТЕРСТВО ОБРАЗОВАНИЯ И НАУКИ РОССИЙСКОЙ ФЕДЕРАЦИИ

ГОСУДАРСТВЕННОГО АВТОНОМНОГО ОБРАЗОВАТЕЛЬНОГО УЧРЕЖДЕНИЯ ВЫСШЕГО ОБРАЗОВАНИЯ


     Отделение «Экономическое»

    Кафедра производственного менеджмента

Направление 38.03.02 «Менеджмент»

Допустить к защите

Заведующий кафедрой ПМ

___________//

«____» ___________ 2016 г.


ВЫПУСКНАЯ КВАЛИФИКАЦИОННАЯ (БАКАЛАВРСКАЯ) РАБОТА

на тему: Анализ и совершенствование системы управления запасами в

ООО «»




Выпускник                       __________ /Н.С. Миронова /

(подпись)                  (Ф.И.О.)


Руководитель

выпускной

квалификационной

(бакалаврской) работы __________ //

(подпись)                (Ф.И.О., уч. степень, звание, должность)




, 2016 г.

МИНИСТЕРСТВО ОБРАЗОВАНИЯ И НАУКИ РОССИЙСКОЙ ФЕДЕРАЦИИ

ГОСУДАРСТВЕННОГО АВТОНОМНОГО ОБРАЗОВАТЕЛЬНОГО УЧРЕЖДЕНИЯ ВЫСШЕГО ОБРАЗОВАНИЯ

Отделение  «Экономическое»___________________________________________

Кафедра «Производственный менеджмент»_______________________________

Направление 38.03.02 «Менеджмент»____________________________________

Профиль «Производственный менеджмент»_______________________________

 


УТВЕРЖДАЮ

Заведующий кафедрой ПМ

_________//


 «__» __________ 2016 г.


ЗАДАНИЕ

на выполнение выпускной квалификационной (бакалаврской) работы

1. Выпускник Миронова Нина Сергеевна                                                                  .

2. Руководитель.

3. Квалификация  бакалавр_____________________________________________

4. Тема выпускной квалификационной (бакалаврской) работы  Анализ и совершенствование системы управления запасами в ООО «»____

утверждена приказом по институту от «_29_»_____12____2015 г. №_10/896__

5. Исходные данные Собраны на предприятии ООО «» в период прохождения преддипломной практики (нормативная и отчётная документация), а также в результате анализа учебной и научной литературы и периодической печати по направлению.                                                                                                           

6. Содержание работы 1. Теоретические основы системы управления запасами. 2. Анализ финансового состояния и оценка эффективности управления запасами в ООО «». 3. Разработка мероприятий по повышению эффективности деятельности ООО «».

7. Перечень отчётных материалов Расчётно-пояснительная записка на 78страницах формата А4, презентация на 19 страницах формата А4, альбом иллюстрационных форм на 17 страницах формата А4

 


Дата выдачи задания


Дата представления дипломного проекта к защите

 «20» апреля 2016 г.

«15» июня 2016 г.


Выпускник     _____________________ /Миронова Н.С. /

Руководитель _____________________ /

КАЛЕНДАРНЫЙ ПЛАН

выполнения выпускной квалификационной (бакалаврской) работы

п/п

Наименование раздела (этапа) выпускной квалификационной (бакалаврской) работы

Плановый срок выполнения раздела

Фактический срок выполнения раздела

Ф.И.О. руководителя, подпись

1

Теоретические основы системы управления запасами

20.04.2016 –

01.05.2016

20.04.2016 –

01.05.2016


2

Анализ финансового состояния и оценка эффективности управления запасами в ООО «»

02.05.2016 –

10.05.2016

02.05.2016 –

10.05.2016


3

Разработка мероприятий по повышению эффективности деятельности ООО «»

11.05.2016 –

21.05.2016

11.05.2016 –

21.05.2016


4

Введение

22.05.2016 –

25.05.2016

22.05.2016 –

25.05.2016


5

Заключение

26.05.2016 –

29.05.2016

26.05.2016 –

29.05.2016


6

Список использованных источников литературы

30.05.2016 –

02.06.2016

30.05.2016 –

02.06.2016


7

Оформление расчётно-пояснительной записки

03.06.2016 –

10.06.2016

03.06.2016 –

10.06.2016


8

Оформление презентации и иллюстрационного альбома

11.06.2016 –

15.06.2016

11.06.2016 –

15.06.2016


9

Подготовка к защите

16.06.2016 –

27.06.2016

16.06.2016 –

27.06.2016


10

Защита выпускной квалификационной (бакалаврской) работы

28.06.2016

28.06.2016



Руководитель выпускной квалификационной

(бакалаврской) работы





(подпись)





(И.О. Фамилия)

 


Задание принял к исполнению



               (подпись)


Н.С. Миронова

(И.О. Фамилия)

 


МИНИСТЕРСТВО ОБРАЗОВАНИЯ И НАУКИ РОССИЙСКОЙ ФЕДЕРАЦИИ

ГОСУДАРСТВЕННОГО АВТОНОМНОГО ОБРАЗОВАТЕЛЬНОГО УЧРЕЖДЕНИЯ ВЫСШЕГО ОБРАЗОВАНИЯ


АННОТАЦИЯ ВЫПУСКНОЙ КВАЛИФИКАЦИОННОЙ (БАКАЛАВРСКОЙ) РАБОТЫ

Выпускник Миронова Нина Сергеевна.

Отделение                     Экономическое.Группа.

Направление 38.03.02 «Менеджмент»____________________________________

Профиль «Производственный менеджмент»_______________________________

Тема выпускной квалификационной (бакалаврской) работы: Анализ и совершенствование системы управления запасами в ООО «».

Руководитель.

                                                 (Ф.И.О., место работы, должность, ученое звание, степень)

ХАРАКТЕРИСТИКА ВЫПУСКНОЙ КВАЛИФИКАЦИОННОЙ (БАКАЛАВРСКОЙ) РАБОТЫ

1.Тема выпускной квалификационной (бакалаврской) работы Анализ и совершенствование системы управления запасами в ООО «»____

2. Цель работы повышение эффективности деятельности ООО «» путем оптимизации системы управления запасами.

3. Сведения об объёме, количестве иллюстраций, таблиц, использованных источников Содержание расчётно-пояснительной записки 78 страниц, рисунков 21, таблиц 22, количество используемых источников литературы 29

4. Ключевые слова запасы, ABC-XYZ анализ, уровень сервиса, прибыль, рентабельность, ликвидность, экономический эффект.

5. Использование информационных ресурсов Internet  ________Нет___________

(нет, да, число ссылок в списке литературы)

6. Использование современных пакетов компьютерных программ и технологийДа. СП «Консультант плюс», 1.

(нет, да, число ссылок в списке литературы)

7. Результаты работы Повышение эффективности деятельности ООО «». Эффект от реализации предложенных мероприятий 681 647 руб.___

8.Наличие публикаций и выступлений на конференциях по теме выпускной работы________Нет___________________________________________________

Выпускник                  _______________________

                                                                                (подпись)

Руководитель             _______________________

(подпись)                                                                                                     

«____» _________________ 2016 г.

СОДЕРЖАНИЕ

ВВЕДЕНИЕ. 4

1 Теоретические основы системы управления запасами. 6

1.1 Понятие, сущность и классификация материальных запасов. 6

1.1.2 Причины образования и функции запасов на предприятии. 9

1.1.3 Затраты на содержание запасов. 11

1.2 Методы управления системой запасов на предприятии. 13

1.2.1 АВС-XYZ анализ запасов. 13

1.2.2 Основные модели управления запасами. 16

2 Анализ финансового состояния и оценка эффективности управления запасами в ООО «»  23

2.1 Краткая характеристика ООО «». 23

2.1.1 Технико-экономический анализ ООО «»  за период с 2013 по 2015 гг. 25

2.1.2 Анализ финансовой устойчивости предприятия. 27

2.1.3 Анализ платежеспособности предприятия. 32

2.1.4 Анализ рентабельности предприятия. 34

2.1.5 Анализ реализации готовой продукции предприятия. 35

2.2 Анализ состояния системы запасов в ООО «». 36

3 Разработка мероприятий по повышению эффективности деятельности ООО «»  44

3.1 Анализ запасов в ООО «». 44

3.2 Предложение по оптимизации системы управления запасами. 50

3.3 Организация участка порошковой окраски изделий. 55

3.4 Экономическая оценка эффективности предлагаемых мероприятий. 62

ЗАКЛЮЧЕНИЕ. 67

СПИСОК ИСПОЛЬЗОВАННЫХ ИСТОЧНИКОВ И ЛИТЕРАТУРЫ.. 70

ПРИЛОЖЕНИЕ А.. 73

ПРИЛОЖЕНИЕ Б. 75

ВВЕДЕНИЕ


В настоящее время стремительно возрастает интерес, проявляемый российскими предприятиями к современным методам управления запасами.Цель оптимизации управления запасами – минимизация расходов на содержание запасов при обеспечении требуемого уровня обслуживания (удовлетворения потребностей) потребителей. Поскольку наличие неиспользуемых запасов увеличивает затраты на их содержание (прежде всего отвлекает из оборота денежные средства), то поддержание оптимального уровня запасов и рациональной динамики их пополнения является весьма важной задачей.

Актуальность данной выпускной квалификационной (бакалаврской) работы объясняется тем, что в современной экономической среде управление материальными запасами является ключевой проблемой многих предприятий и для изменения ситуации, прежде всего, требуется взглянуть на запас не как на инструмент решения проблем обеспечения производственного процесса или запросов клиентов, а как на самостоятельный объект управления.

Целью выпускной квалификационной (бакалаврской) работы являетсяповышение эффективности деятельности ООО «» путем оптимизации системы управления запасами.

Для достижения цели поставлены следующие задачи:

1. раскрыть теоретические основы системы управления запасами;

2. охарактеризовать ООО «»;

3. провести анализ финансового состояния предприятия;

4.проанализировать действующую в ООО «» систему управления запасами;

5. разработать мероприятия по оптимизации запасов на складе предприятия;

6. предложить оптимальные модели управления запасами для различных категорий товаров в ООО «»;

7. разработать мероприятия по эффективному использованию складской площади;

8. оценить предложенные мероприятия с помощью расчета соответствующих показателей эффективности.

Объектом исследования является ООО «» – компания, работающая в области производства нестандартной производственной мебели.

Предмет исследования – управление запасами материальных ресурсов в компании «».

В качестве основы для проведения анализа финансово-хозяйственной деятельности, а также последующей разработки мероприятий по улучшению выступает бухгалтерская отчетность ООО «» за период с 2013 по 2015 гг. с соответствующими к ним пояснениями, материалы, публикуемые в журналах для специалистов в области логистики и управления цепями поставок, а также учебная литература и методические пособия.

В качестве методов исследования применялись:расчетно-аналитические методы, методы структурно-динамического анализа, сравнения, балансовый метод, графический метод, методы анализа научной и информационной базы, синтеза полученных данных в теоретические выводы и практические рекомендации.

Выпускная квалификационная (бакалаврская) работа состоит из введения, трех глав, заключения, списка использованной литературы, и приложений.







1Теоретические основы системы управления запасами


1.1 Понятие, сущность и классификация материальных запасов


Обеспечение целостного и беспрерывного процесса снабжения всех этапов производственного процесса нужными запасами в необходимом количестве и надлежащего качества – одна из главных гарантий эффективного осуществления финансово-хозяйственной деятельности предприятий и успешного стратегического развития в условиях рыночной экономики[24].

Запасы – одни из наиболее дорогостоящих активов большинства компаний и составляют до 40% от общего капитала. Наличие и объем запасов оказывают существенное влияние на экономические показатели работы предприятия.

В ходе производственного процесса, на любом его этапе, ожидая использования в той или иной операции, могут накапливаться материалы, образуя собой запасы, управление каждым из которых обладает своей спецификой. Таким образом, материальные ресурсы, которые ожидают своего вступления в процесс производственного потребления, продажи или процесс конечного потребления, принято считать материальным запасом, который представляет собой часть оборотного капитала предприятия. Главная роль запасов – обеспечение устойчивой работы производственных и торговых систем.

Существенным фактором, выступающим на возникновение необходимости сокращения запасов, выступает размер затрат на их содержание. Снижение уровня запасов на 30-70% возможно при внедрении логистических методов в работе предприятия.

Чаще всего предприятия предпочитают иметь высокий уровень запасов (буфер), полагаясь на то, что такое решение позволит избежать будущих проблем в случае сбоев в работе поставщиков, ошибок в планировании и управлении, а также неточности прогнозов. Исходя из этого, можно сказать, что запасы, с одной стороны, являясь буфером, сглаживают непредвиденные негативные изменения в производстве и поставках, и в то же время, рассматривая их с другой стороны, они концентрируют в себе значительные финансовые средства, которые можно было бы использовать на развитие предприятия.

Отсутствие, как и наличие, запасов представляет собой определенные расходы, которые выражаются в виде различных потерь. Исходя из этого, предприятие может столкнуться с такими распространенными проблемами как простои производства или отсутствие товара на складе в момент предъявления спроса на него. Поэтому промышленные предприятия, избегая возникновения еще больших потерь прибыли, вынуждены создавать материальные запасы.

Запасы в самом общем виде классифицируются по трем видам:

– производственные запасы;

– незавершенное производство;

– готовая продукция[9].

В процессе преобразования материалов в готовую продукцию и последующего ее движения до конечного потребителя возникают следующие основные виды запасов, схема которых представлена на рисунке 1.1.

Рисунок 1.1– Основные виды материальных запасов

Запасы, которые предназначены для производственного потребления и обеспечения бесперебойного производственного процесса, называют производственными запасами.

К товарным запасам относятся запасы готовой продукции и, в свою очередь, этот вид запасов подразделяется на предметы потребления и запасы средств производства.

Производственные и товарные запасы подразделяются на текущие, страховые и сезонные.

Текущие запасы представляют собой основную часть производственных и товарных запасов и обеспечивают непрерывность производственного и торгового процесса между очередными поставками.

Страховые запасы предназначены для непрерывного обеспечения материалами или товарами производственного или торгового процесса в случае различных непредвиденных обстоятельств.

Сезонные запасы образуются при сезонном характере производства, потребления или транспортировки.

Одной, пожалуй, из основных причин неэффективного управления запасами является отсутствие на многих предприятиях экономически обоснованной стратегии планирования закупок, формирования текущих и страховых запасов. План закупок основывается, прежде всего, на плане продаж. Поскольку предприятия в своем большинстве используют упрощенные методы прогнозирования продаж, то неминуемо возникают ошибки в плане закупок, ведущие к избытку (или недостатку) запасов[10]. Управление материальными потоками всегда являлось существенной стороной хозяйственной деятельности предприятий. Однако лишь сравнительно недавно оно приобрело положение одной из наиболее важных функций экономической жизни. Основная причина – переход от рынка продавца к рынку покупателя, вызвавший необходимость гибкого реагирования производственных и торговых систем на быстро изменяющиеся приоритеты потребителей[14].

Система управления запасами представляет собой совокупность мероприятий по созданию и пополнению запасов, а также организацию непрерывного контроля и оперативного планирования поставок.

Цель системы создания запасов – это обеспечение максимальной реализации при минимальных затратах. Так как эти факторы противостоят друг другу (максимальная реализация требует фактически безграничных запасов), должно быть найдено какое-то оптимальное решение. В этом и состоит основная проблема создания запасов - определить их необходимый объем.

1.1.2 Причины образования и функции запасовна предприятии

Важнейший принцип при организации движения материальных потоков в производстве – обеспечение их непрерывности. Однако практически невозможно организовать полностью непрерывный производственный цикл на предприятии и внешние поставки синхронизировать с ходом производства. Таким образом, запасы возникают на разных участках движения как следствие нарушения непрерывности материальных потоков. Как у большого количества запасов, так и у малого существуют свои преимущества и недостатки. Эта дилемма отражает принципы работы компании в обслуживании потребителей. Обычно запасы большого объема хранят по следующим причинам:

1. Страховка в случае более высокого спроса, чем обычно.

2. Страховка против более длинного, чем обычно, срока поставки.

3. Использование преимущества скидки оптовому покупателю. Может иметь смысл приобретение большего объема запасов, чем требуется в настоящий момент, если возрастающим затратам на хранение противостоит уменьшение полной стоимости единицы товара.

4. Использование преимуществ сезонных или других ценовых колебаний.

5. В производстве хранение запасов сырья гарантирует, что все необходимые компоненты для конечной сборки всегда есть в наличии.

Подход к оптимизации объемов запасов высвечивает проблемы хранения или слишком малого количества запасов, или слишком большого. Следует отметить, что чем меньше запас, тем чаще происходит его оборот и тем быстрее можно получить прибыль [28].

Запасы выполняют три важнейших функции:

1. Функция накопления – это накопление ресурсов и их распределение в целях повышения надежности и синхронизации движения и преобразования материальных потоков на предприятии. Функция накопления позволяет:

– повысить устойчивость работы предприятия за счет полной или частичной ликвидации отрицательного воздействия неблагоприятных внешних и внутренних факторов: колебаний спроса, недобросовестности поставщиков, внутренних сбоев системы, задержек в пути транспорта, забастовок и др.;

– повысить уровень потребительского сервиса за счет запасов готовой продукции;

– избежать простоев за счет запасов сырья и материалов, т.е. неэффективного использования оборудования и живого труда, а также потерь, вызванных последующим недопроизводством товаров.

2. Функция защиты от изменения цен и инфляции заключается в сохранении денежных ресурсов предприятия. Размещая свободные наличные средства в банке, предприятие может сохранить их и получить крупный доход. С другой стороны, ценность запаса может расти быстрее, чем деньги, помещенные в банк. Таким образом, запасы могут рассматриваться в качестве инвестиций для использования в будущем или перепродажи (спекулятивные запасы). Принимая решение о создании подобных запасов, необходимо тщательно оценивать затраты и риски хранения.

3. Функция управления затратами тесно связана с размером партий, заказываемых для пополнения запасов, поскольку с ним связана возможность прямого влияния на уровень затрат. Суть в том, что в процессе управления запасами решаются два основных вопроса: какой должна быть величина партии поставки и когда необходимо делать заказ.

Исходя из этого, можно сделать вывод, что создание необходимых запасов имеет большое значение для производственной деятельности предприятия. Кроме того, запасы выполняют важнейшие функции, повышая гибкость и надежность управления производством.

1.1.3 Затраты на содержание запасов

В среднем затраты на запасы составляют от 12 до 40% совокупных логистических затрат. Затраты на содержание запасов можно разделить на следующие группы:

1. затраты на закупку,

2. затраты на пополнение запаса,

3. затраты на содержание запаса.

Затраты на закупку запаса – это расходы финансовых ресурсов на непосредственную закупку товарно­материальных ценностей запаса у поставщика. Данная группа составляет основную часть капитальных затрат, связанных с запасами.

Сp = C×Q,                                       (1.1)

где    Сp – затраты на закупку запаса, руб.;

С –закупочная цена единицы товара, руб.;

Q – размер заказа, ед.

Затраты на пополнение запаса представляют собой расходы материальных, финансовых, информационных, трудовых и других видов ресурсов, необходимых для обеспечения пополнения запаса. Они включают затраты, возникающие при планировании, осуществлении и контроле закупки. Чем большими по величине заказами происходит пополнение запаса в единичные отрезки времени, тем реже приходится делать заказ и тем, следовательно, меньше затраты, связанные с пополнением запаса.

 ,                                                           (1.2)

где    Срз– затраты на пополнение запаса, руб.;

S – объем потребности в запасе, ед.;

Q – размер заказа, ед.;

А – затраты на выполнение одного заказа, руб.

Затраты на содержание запаса представляют собой расходы материальных, финансовых, информационных, трудовых и других видов ресурсов, необходимых для обеспечения сохранности и поддержания качества товарно­материальных ценностей, находящихся в запасе на определенной территории или на транспортном средстве.

,                                    (1.3)

где    Сс – затраты на содержание запаса, руб.;

Zs– средний уровень запаса, ед.;

I – затраты на содержание единицы запаса, руб.

Затраты с использованием собственного склада обычно относятся к постоянным, так как они зависят от площади собственного склада, а не от объема хранимых запасов. Затраты на содержание запаса в общем случае прямо пропорционально зависят от размера заказа: чем большими партиями пополняется запас, тем дороже его содержание[10].

Общие затраты, связанные с запасами, представляют собой сумму затрат на закупку, на пополнение запаса и затрат на содержание запаса.

Рисунок 1.2 – Графическая иллюстрация формирования общих затрат, связанных с запасами

1.2 Методы управления системой запасов на предприятии


1.2.1 АВС-XYZ анализ запасов

Анализ запасов должен носить системный характер, потому как отклонение от системного подхода может привести к погрешностям в принятии управленческих решений. Изучение теоретических аспектов анализа запасов необходимо для разработки конкретной методики анализа. Выработанная методика анализа будет способствовать обеспечению управленческого персонала необходимой информацией, а также приведет к увеличению эффективности использования запасов. Эффективность управления запасами заключается в том, чтобы поддерживать их в том объеме, который полностью обеспечивает нормальную деятельность организации, при этом не замораживая в них излишний капитал [7].

Основным инструментом анализа и управления запасами широкой номенклатуры в логистике являются методы АВС и XYZ.

АВС-анализ – один из инструментов эффективного управления запасами, целью которого является использование некоторого формального алгоритма, направленного на ранжирование запасов на 3 неравных подмножества А, В, С.

Особенность запасов группы А заключается в том, что это немногочисленные, но наиболее ценные запасы, на которые приходится большая часть денежных средств. Запасы группы В по сравнению с группой А требуют к себе меньшего внимания, они занимают срединное значение в структуре. Второстепенные запасы, на долю которых приходится незначительная часть денежных средств, относятся к группе С.

Общий алгоритм проведения АВС-анализа следующий:

1. Формулирование цели анализа.

2. Идентификация объектов управления, анализируемых методом АВС.

3. Выделение признака, на основе которого будет осуществлена классификация объектов управления.

4. Оценка объектов управления по выделенному классификационному признаку.

5. Группировка объектов управления в порядке убывания значения признака.

6. Разделение совокупности объектов управления на три группы: группа А, группа В и группа С.

Пропорции деления запасов на группы зависят от конкретного случая, не имея точных значений, но все же в процессе анализа следует придерживаться стандартного разделения: группа А – 80% запасов, группа В ‒ 15% и С ‒ 5%.

Целесообразно проводить АВС-анализ совместно с XYZ-анализом. В группу Х включают запасы с хорошо прогнозируемым уровнем потребности – для них типичен устойчивый спрос с незначительными колебаниями. Запасы с колеблющимся характером потребления, возможности прогнозирования которого на среднем уровне, относятся к группе Y.  Запасы, спрогнозировать объемы потребления которых сложно, включают в группу Z – спрос на запасы этой группы может возникнуть лишь изредка.

Алгоритм анализа XYZ выглядит следующим образом:

1. Определение коэффициентов вариации по отдельным позициям ассортимента.

2. Группировка объектов управления в порядке возрастания коэффициента вариации.

3. Разделение совокупности объектов управления на три группы: группа X, группа Y, группа Z.

В классическом варианте метода XYZ показателем, описывающем потребность в запасе, является коэффициент вариации V, представляющий собой отношение значения среднеквадратичного отклонения ряда к среднеарифметическому значению:

,                                             (1.4)

где    V – коэффициент вариации,

 - среднеквадратичное отклонение,

 - среднеарифметическое значение.

,                                      (1.5)

где    – i-ое значение статистического ряда отгрузок,

n– количество значений в статистическом ряде.

При выборе стратегии по организации управления запасами рекомендуется объединить методологию АВС-анализа с методологией XYZ-анализа. Для этого строится матрица АВС ‒ XYZ.

Рисунок 1.3 – Матрица результатов АВС-XYZ анализа

Совместное использование анализа АВС-XYZ направлено на то, чтобы выделить те группы товаров, которые требуют наибольшего внимания. Всего с помощью анализа АВС-XYZ выделяется 9 групп (AX, AY, BX, BY и т.д.) Следить за всеми совсем не обязательно. Так, товары, попадающие в средние группы (например, BX, BY и т.п.), характеризуются устойчивостью и стабильностью продаж, а вот крайние группы (например AZ, BZ, CZ) требуют постоянного и тщательного контроля.

Только после проведения подобной оценки состояния запасов можно приступить к ликвидации излишних запасов[12]. В целом инструмент АВС и XYZ-классификации еще раз подчеркивает первостепенное значение качества управления запасами для обеспечения эффективной деятельности предприятия в целом.

1.2.2 Основные модели управления запасами

Эффективное управление системой запасов направлено на наиболее полное удовлетворение потребителей и максимизацию чистой прибыли. Конкурентоспособному предприятию следует поддерживать оптимальный уровень запасов, затраты на формирование и содержание которых должны находиться на минимальном уровне[21]. При описании движения запаса используют две переменные: объем запаса и время. Изменение объема запаса во времени – основная проблема обеспечения потребности в запасе данного места хранения.

Каждая из рассматриваемых ниже методик контроля направлена на минимизацию суммарных расходов на пополнение и хранение запасов при заданном уровне надежности обеспечения ими. Существенную часть этих расходов составляет стоимость оборотного капитала, вложенного в запасы, что в условиях нехватки оборотных средств делает задачу минимизации запасов особенно актуальной[6].

Модель с фиксированным (оптимальным) размером заказа предусматривает постоянный контроль уровня запасов. Заказ на пополнение запаса имеет фиксированный объем и формируется всякий раз, когда уровень запасов снижается до так называемой «точки заказа». Уровень «точки заказа» включает предполагаемый объем потребления рассматриваемого материального ресурса за время реализации заказа и страховой запас, необходимый для обеспечения требуемого уровня надежности снабжения данным ресурсом при возможных колебаниях уровня спроса и времени реализации заказа.

Все параметры модели рассчитываются таким образом, что при соблюдении исходных данных модель гарантирует бездефицитность обслуживания запасом потребности в условиях определенности (т.е. в условиях постоянного темпа потребления).

Расчетными параметрами модели с фиксированным размеромзаказа являются:

– максимальный желательный запас.В отличие от последующих двух основных параметров, не оказывает непосредственного воздействия на движение запаса в целом. Этот уровень запаса определяется для отслеживания целесообразной загрузки площадей склада исходя из критерия минимизации совокупных затрат.

– пороговый уровень запаса. Определяет такую его величину, при достижении которой производится очередной заказ. Величина порогового уровня должна быть рассчитана таким образом, чтобы заказ поступал на склад в момент снижения текущего запаса до уровня страхового запаса. При расчете порогового уровня задержка поставки не учитывается.

– страховой (гарантийный) запас. Позволяет удовлетворять потребность в запасе на время предполагаемой задержки поставки. При этом под возможной задержкой поставки подразумевается максимальная возможная задержка. Восполнение страхового запаса производится во время последующих поставок.

Следует, однако, учитывать, что модель оптимальной партии заказа предъявляет повышенные требования к системе контроля запасов (что может быть сопряжено с достаточно высокими издержками). Соответственно при прочих равных условиях данная модель предпочтительнее для товаров с высоким уровнем спроса и с высокой стоимостью, когда минимизация уровня запасов позволяет существенно снизить расходы на их хранение.

Модель оптимального заказа хорошо работает в условиях постоянного или слабо меняющегося спроса, а также постоянного или слабо меняющегося времени пополнения запасов.

Рисунок 1.4 – Иллюстрация движения запаса при фиксированном размере заказа

Модель с фиксированным интервалом между заказамипредусматривает периодический контроль и пополнение запасов через фиксированный промежуток времени. Пополнение запаса производится до фиксированного (максимального) уровня, обеспечивающего удовлетворение потребностей в данном материально-технического ресурса в течение всего интервала между заказами (вплоть до прибытия следующей партии).

Интервал между заказами либо выбирается путем минимизации суммарных расходов на пополнение и хранение запасов при заданных условиях поставок (т.е. с учетом величины минимальной партии заказа, периодичности поставок, системы скидок и т.д.), либо диктуется условиями поставок (что может быть связано, например, с особенностями производства или транспортировки поставляемых ресурсов).

Рисунок 1.5 – Иллюстрация движения запаса при фиксированном интервале времени между заказами

Легко заметить, что в условиях постоянного спроса и стабильных поставок эта модель и модель оптимальной партии заказа приводят к абсолютно одинаковым результатам. Различие проявляется при переменном спросе (когда в модели оптимального заказа интервалы между поставками меняются вслед за спросом, а размер партии остается постоянным, тогда как в модели с фиксированным интервалом между поставками меняется как раз размер партии).

Можно предположить, что в условиях неопределенности модель с фиксированным интервалом между заказами, предусматривающая лишь периодический контроль запасов, должна давать худшие результаты, чем модель оптимальной партии заказа, предполагающая постоянный, а значит, вообще говоря, более своевременный и тонкий контроль запасов. И это действительно так и проявляется в более высоком (при периодическом контроле) уровне необходимого страхового запаса.

Модель с фиксированным интервалом между заказами может оказаться полезной для материальных ресурсов со сравнительно невысоким уровнем стоимости и/или со сравнительно невысоким уровнем спроса, когда возможно незначительное (в этом случае) увеличение расходов на содержание запасов может быть компенсировано сокращением расходов на их контроль.

Кроме того, фиксированный интервал между заказами оказывается предпочтительнее в тех случаях, когда целесообразно синхронизировать поставки нескольких материальных ресурсов, закупаемых у одного и того же поставщика.

Модель с фиксированным интервалом между заказами обеспечивает пополнение запасов в минимально необходимых (при заданном интервале между заказами) объемах – а именно, так, чтобы к моменту поступления каждой очередной партии на склад складской запас опускался (при планируемых объемах потребления и сроках поставок) до уровня страхового запаса. Существуют, однако, модификации рассматриваемой модели, допускающие пополнения запасов в больших (превышающих минимально необходимые) объемах. Все такие модификации предполагают, вообще говоря, не пополнение, а лишь контроль запасов через заданный фиксированный промежуток времени и их пополнение только в случае необходимости (при снижении складского запаса до уровня «точки заказа»). Наиболее известными такими моделями с периодическим контролем уровня запасов являются (наряду с самой моделью с фиксированным интервалом между заказами) следующие.

Модель «минимум-максимум», предполагающая пополнение запаса до заданного фиксированного (максимального желательного) уровня – эта модель ориентирована на ситуацию, когда затраты на контроль запасов и издержки выполнения заказа настолько значительны, что становятся соизмеримыми с потерями от дефицита запасов.

В отличие от модели с периодическим пополнением запаса до постоянного уровня, эта модель разработана для условий, когда издержки содержания запаса превышают издержки дефицита. В такой ситуации допущение определенного уровня дефицита оправдано, а содержание большого объема запаса нежелательно.

Поэтому в модели «минимум-максимум» заказы производятся не в каждый заданный момент времени, как в модели с фиксированным интервалом времени между заказами, а только в те из заданных моментов, когда запас оказался равным или меньшим установленного минимального уровня.

Рисунок 1.6 – Иллюстрация движения запаса в модели «минимум-максимум»

 

В случае выдачи заказана поставку его размер определяется экспертно, исходя из того, чтобы поставка пополнила запас до максимального желательного уровня. Таким образом, данная модель работает с двумя уровнями запаса – минимальным и максимальным, чему и обязана своим названием. Как и предыдущая модель с установленной периодичностью пополнения запаса до постоянного уровня, модель «минимум­максимум» содержит в себе элементы основных моделей управления запасами. Аналогично модели с фиксированным интервалом времени между заказами, здесь используется постоянный интервал времени между возможными заказами. Из модели с фиксированным размером заказа заимствована идея отслеживания некоторого порогового уровня, который здесь называется минимальным. Расчетными параметрами модели «минимум­максимум» являются 1) максимальный запас, ед.; 2) минимальный запас, ед.; 3) страховой запас, ед.

Модель с фиксированным размером заказа и периодическим контролем запасов, предполагающая пополнения запаса материальных ресурсов в фиксированном объеме, превышающем (обычно кратно) его средний расход за время между проверками уровня запасов. При таком соотношении параметров модели можно рассчитывать сэкономить, с одной стороны, на страховом запасе (если вариабельность расхода высока, а издержки контроля запасов относительно малы), а с другой стороны, – на издержках выполнения заказа (если они велики).Модель с фиксированным интервалом между заказами, как и модель с фиксированным размером заказа, хорошо работает в условиях постоянного или слабо меняющегося спроса, а также постоянного или слабо меняющегося времени пополнения запасов. Важным преимуществом обеих рассмотренных моделей является то, что они позволяют организовать процесс снабжения на «беззаявочной» основе, когда потребители просто получают требуемые им материальные ресурсы в нужных количествах и в нужные моменты времени, а снабженцы фиксируют фактический расход и производят закупки, ориентируясь на текущие уровни складских остатков. Такой подход применительно к материальным ресурсам со стабиль­ными объемами потребления значительно упрощает и удешевляет процесс снабжения, позволяя при этом поддерживать складские запасы на приемлемых уровнях.

2 Анализ финансового состояния и оценка эффективностиуправления запасами в ООО «»


2.1 Краткая характеристика ООО «»


Общество с ограниченной ответственностью «» создано 28.08.2013 г. в соответствии с Гражданским Кодексом Российской Федерации и Федеральным законом от 08 февраля 1998 г. №14-ФЗ «Об обществах с ограниченной ответственностью» и иными нормативно-правовыми актами 25.12.2006 года. ООО «» является юридическим лицом, строит свою деятельность на основании настоящего Устава и действующего законодательства Российской Федерации.

Место нахождения ООО «»: Россия, 423405 Республика Татарстан, г.Набережные Челны. Местонахождение предприятия определяется местом его государственной регистрации. Директор –М.Ф.

Предметом деятельности ООО «» является производство и реализация нестандартной производственной мебели, которая соответствует требованиям эргономики. Компания оказывает услуги по проектированию, производству, доставке, монтажу и сервисному обслуживанию поставляемой продукции. Виды деятельности предприятие осуществляет в соответствии с действующим законодательством Российской Федерации.

Компания «» разрабатывает рабочие места под «ключ», включающие в себя:

– производственную мебель – верстаки, шкафы для оснастки, межоперационные столы;

–  системы хранения – стеллажи, накопители, перфорированные панели, инструментальные панели, панели средств уборки, инструментальные тележки и тумбы, гравитационные стеллажи;

– транспортировочные системы – рольганги, транспортировочные тележки.

Особая задача ООО «» – это создание качественной системы работы с покупателем от первого контакта с ним до исполнения заключенных договоров или контрактов.

Одно из условий конкурентоспособности ООО «» – эффективная, сплоченная, высокопрофессиональная команда. На предприятии трудится 15сотрудников. Основой коллектива являются опытные производственники, управленцы и высококвалифицированные сотрудники рабочих специальностей.

Рисунок 2.1 – Организационная структура ООО «»

Компания «» является поставщикомстеллажей, металлической мебели крупнейших предприятий России. Основные заказчики – юридические и физические лица. Предприятие работает с соседними регионами и городами: Ижевск, Казань, Уфа, Елабуга, Менделеевск, Альметьевск и др.

2.1.1 Технико-экономический анализ ООО «» за период с 2013 по 2015 гг.

Особенность функционирования современных предприятий независимо от форм собственности и хозяйствования – постоянно меняющаяся экономическая ситуация. Подлежащая анализу производственно-хозяйственная и финансовая деятельность предприятия находит выражение в экономической информации.

Технико-экономический анализ направлен на оценку конечных результатов деятельности предприятия за определенный период, а также на изучение факторов, их сформировавших.

Таблица 2.1­– Основные технико-экономические показатели ООО «» за 2013-2015 гг.

Показатели

2013 г., тыс.руб.

2014 г., тыс.руб.

2015 г., тыс.руб.

Изменение  2014/2013

Изменение  2015/2014

Абсол., тыс.руб.

Отно- сит., %

Абсол., тыс.руб.

Отно- сит., %

Выручка от реализации

5 233

5 160

4 994

-73

98,60

-166

96,78

Себестоимость продукции

3 579

3 681

3 526

102

102,85

-155

Валовая прибыль

1 654

1 479

1 468

-175

89,42

-11

99,26

Управленческие расходы

446

434

369

-12

97,31

-65

85,02

Прибыль (убыток) от продаж

1 208

1 045

1 099

-163

85,51

54

105,17

Прибыль (убыток) до налогообложения

1 190

1 126

1 100

-64

94,62

-26

97,69

Текущий налог на прибыль

57

11

8

-46

19,29

-3

72,72

Чистая прибыль

1 132

1 113

1 092

-19

98,32

-21

98,11

Затраты на 1 руб. проданной продукции

0,68

0,71

0,70

0,03

104,71

-0,01

98,59

Среднесписочное кол-во сотрудников

18

16

15

-2

88,88

-1

93,75

Среднегодовая выработка на 1 сотрудника

290,72

322,5

332,93

110,93

31,78

103,23

10,43

Рентабельность продукции

33,75

28,39

31,17

-5,36

84,11

2,78

109,79


Как видно из таблицы 2.1в 2015 году все экономические показатели ООО «» уменьшились по сравнению с 2013 г. Производительность труда увеличивается с каждым годом, хотя количество работников уменьшилось на 3 человека в 2015 году по сравнению с 2013 г. Это значит, что сейчас на предприятии при меньших затратах достигаются более существенные результаты, и связано это с уменьшением объема производства. Ниже представлена графическая иллюстрация динамики показателей прибыли.

Рисунок 2.2 – Динамика показателей прибыли ООО «»

за 2013-2015 гг.

Для 2015 г. характерно снижение себестоимости и рост величины продаж относительно 2014 г. Тем не менее, хотя практически все показатели сокращаются, в 2015 г. имеет положительную динамику рентабельность продукции – тенденция к увеличению данных показателей все же видна. Изменения объясняются тем, что на рынке уменьшился спрос на продукцию, поэтому компания уменьшила предложениеи находится в поиске вариантов сокращения себестоимости.

2.1.2 Анализ финансовой устойчивости предприятия

Финансовое состояние предприятия во многом зависит от того, какие средства оно имеет в своем распоряжении и куда они вложены[29].  Пассив баланса предприятия позволяет дать общую оценку источников средств предприятия и динамику их изменения (таблица 2.2).

Таблица 2.2 – Аналитическая группировка и анализ статей пассива баланса

Пассив баланса

2013 год

2014 год

2015 год

Абсолютное отклонение, тыс. руб.

тыс. руб.

%

тыс. руб.

%

тыс. руб.

%

2014/ 2013

2015/ 2014

Источники имущества, всего:

3 196

100

3 101

100

3 442

100

-95

341

1.   Собственный капитал

1 610

50

1 591

51

1 565

45

-19

-26

2.   Заемный капитал

1 586

50

1 510

49

1 877

55

-76

367


Источники имущества ООО «» увеличились к 2015 г. преимущественно за счет заемного капитала. В 2015 г. собственный капитал в структуре пассива баланса уменьшился на26% – данное изменение свидетельствует об увеличении зависимости ООО «» от привлеченных средств и характеризует отрицательные изменения финансовой устойчивости предприятия.

Динамика изменения собственного и заемного капитала ООО «» представлена на рисунке 2.3.

Рисунок 2.3 – Динамика изменения собственного и заемного капитала

Из рисунка 2.3видно, что источники имущества ООО «» увеличили свое значение на конец анализируемого периода. Собственный капитал в 2013 и 2014 гг. занимал в структуре пассива баланса наибольший удельный вес, но в 2015 г. доля заемного капитала превысила значение собственного  – данная тенденция влечет за собой рост финансового риска.

Далее проводится оценка рыночной устойчивости предприятия с помощью следующих показателей:

1. коэффициент финансовой автономии:

Кф.а. =

Собственный капитал

(2.1)

Итог баланса


2. коэффициент финансовой зависимости:

Кф.з. =

Заемный капитал

(2.2)

Итог баланса


3. коэффициент финансового риска:

Кф.р. =

Заемный капитал

(2.3)

Собственный капитал


Расчет показателей и их анализ выполняется с помощью таблицы 2.3.

Таблица 2.3 – Анализ рыночной устойчивости ООО «»

Показатель

Уровень показателя

2013 год

2014 год

2015 год

Изменение 2014 / 2013

Изменение 2015 / 2014

Коэффициент финансовой автономии

0,50

0,51

0,46

0,01

-0,05

Коэффициент финансовой зависимости

0,50

0,49

0,55

-0,01

0,06

Коэффициент финансового риска

0,98

0,95

1,20

-0,03

0,25


Коэффициент финансовой автономии имеет нормативное значение в 2013 и 2014 гг. соответственно 0,50 и 0,51 и существенно не изменялся. В целом предприятие имело стабильное финансовое состояние. В 2015 г. отмечается незначительное уменьшение показателя на 0,05 по сравнению с 2014 г. Это свидетельствует о том, что организация в большей мере стала полагаться на заемные источники финансирования.

Показатели финансовой зависимости за весь анализируемый период не превышают рекомендуемое значение. Но в 2015 г. отмечается рост коэффициента – это свидетельствует об уменьшении автономности предприятия и возрастании зависимости от заемных источников средств.

Увеличение показателя коэффициента финансового риска в динамике свидетельствует о возрастании зависимости предприятия от внешних инвесторов и кредиторов и уменьшении финансовой устойчивости. Следует отметить, что значение данного коэффициента ≤ 0,5 не достигается.

Финансовое состояние предприятия в немалой степени зависит от того, каким имуществом располагает предприятие. Сведения об имуществе, имеющемся в распоряжении предприятия, содержатся в активе баланса.

Таблица 2.4 – Аналитическая группировка и анализ статей актива баланса

Актив баланса

2013 год

2014 год

2015 год

Абсолютное отклонение, тыс. руб.

тыс. руб.

%

тыс. руб.

%

тыс. руб.

%

2014 / 2013

2015 / 2014

Источники имущества, всего:

3 196

100

3 101

100

3 442

100

-95

341

1.   Основной капитал

1 162

36,36

1 063

34,28

1 013

29,43

-99

-50

2.   Оборотный капитал

2 034

63,64

2 038

65,72

2 429

70,57

4

391

2.1.  Запасы

1 080

33,79

1 227

39,57

1 277

37,10

147

50

2.2.  НДС

48

1,50

29

0,93

25

0,73

-19

-4

2.3.  Дебиторская задолженность

572

17,90

768

24,77

1 115

32,39

196

347

2.4.  Финансовые вложения

-

-

-

-

-

-

-

-

2.5.  Денежные средства

329

10,29

12

0,39

10

0,29

-317

-2

2.6.  Прочие оборотные активы

5

0,16

2

0,06

2

0,06

-3

0


Основной капитал предприятия имеет тенденцию уменьшения, что свидетельствует о снижении осуществления предприятием инвестиционных проектов.Оборотный капитал увеличивается с каждым годом, и это говорит о существующих проблемах со складом и снижении деятельности предприятия.Также о проблемах, связанных с затовариванием склада, свидетельствует увеличение запасов предприятия.

Дебиторская задолженность увеличилась – данная тенденция свидетельствует преимущественно о продажах с отсрочкой и проблемах с оплатой.

Рисунок 2.4 – Динамика структуры актива баланса ООО «»

Изменения в структуре оборотного капитала свидетельствуют об ухудшениях в процессе производства и сбыта продукции, которые являются признаком нестабильной работы компании. На данном этапе анализа, наблюдая тенденцию увеличения оборотного капитала, причиной неэффективной политики выступает затоваривание склада.

Далее проводится анализ эффективности использования собственного и заемного капитала, который позволяет оценить текущее и перспективное финансовое состояние организации и обосновать темпы развития организации.

Финансовая устойчивость – одна из характеристик соответствия структуры источников финансирования в структуре активов. В отличие от платежеспособности, которая оценивает оборотные активы и краткосрочные обязательства предприятия, финансовая устойчивость определяется на основе соотношения разных видов источников финансирования и его соответствия составу активов[17].


Таблица 2.5 – Анализ использования собственного капитала

Показатели

2013 год

2014 год

2015 год

Изменение

2014/ 2013

2015/ 2014

Собственный капитал, тыс. руб.

1 610

1 591

1 565

-19

-26

Долгосрочные обязательства, тыс. руб.

259

270

308

11

38

Основной капитал, тыс. руб.

1 162

1 063

1 013

-99

-50

Собственный оборотный капитал, тыс. руб.

448

528

552

80

24

Коэффициент маневренности собственного капитала

1,60

1,58

1,52

-0,02

-0,06

Оборотный капитал, тыс. руб.

2 034

2 038

2 429

4

391

Доля в сумме оборотного капитала, %:






– собственного капитала

53,07

49,56

40,66

-3,51

-8,9

– заемного капитала

46,93

50,44

59,34

3,51

8,9


Собственный капитал в 2015 году уменьшился, что является негативной тенденцией в ходе деятельности предприятия. Объем долгосрочных обязательств увеличивается, но не превышает объем собственных ресурсов, поэтому риск возникновения угрозы погашения не в срок долговых обязательств можно исключить.

Увеличение оборотного капитала складывается из дополнительных материальных запасов и увеличения дебиторской задолженности. Коэффициент маневренности собственного капитала снизился, что говорит об ухудшении финансовой устойчивости предприятия.

Далее проведен анализ финансовой устойчивости организации –оценивается обеспеченностью материальных оборотных активов плановыми источниками финансирования[19].

Различают четыре типа финансовой устойчивости:

1. абсолютная финансовая устойчивость:

З < С + КТМЦ                                                                          (2.4)

где    З – запасы, тыс. руб.,

         С – собственный оборотный капитал, тыс. руб.,

         КТМЦ – кредиты под товарно–материальные ценности, тыс. руб.

2. нормальная финансовая устойчивость:

З = С + КТМЦ,                                                        (2.5)

3. предкризисное финансовое состояние:

где    Ивр – временно свободные источники средств, тыс. руб.

4. кризисное финансовое состояние:

З > С + КТМЦ + Ивр,                                         (2.7)

2013 г.: 1080 > 707 (нормальная устойчивость финансового состояния)

2014 г.: 1227 > 798 (нормальная устойчивость финансового состояния)

2015 г.: 1277 > 860 (нормальная устойчивость финансового состояния)

Таким образом, на предприятии ООО «» в 2015 году наблюдается нормальная финансовая устойчивость – предприятие использует для покрытия запасов помимо собственных оборотных средств также и долгосрочные привлеченные средства.

2.1.3 Анализ платежеспособности предприятия

Под платежеспособностью предприятия понимают его возможность наличными денежными ресурсами своевременно погашать свои платежные обязательства. Платежеспособность предприятия основывается на анализе ликвидности баланса.

Условием абсолютной ликвидности является одновременное выполнение неравенств: А1 ≥ П1, А2 ≥ П2, А3 ≥ П3, А4 ≤ П4.Для удобства проведем группировку активов и пассивов.

Таблица 2.6 – Анализ ликвидности баланса ООО «»

Актив

2013 год

2014 год

2015 год

Пассив

2013 год

2014 год

2015 год

А1

329

12

10

П1

446

447

637

А2

572

768

1115

П2

881

793

932

А3

1133

1258

1304

П3

259

270

308

А4

1162

1063

1013

П4

1610

1591

1565

Итого

3196

3101

3442

Итого

3196

3101

3442



2013 год:    329 ≥ 446 (неверно)

572 ≥ 881 (неверно)

1133 ≥ 259 (верно)

1162 ≤1610 (неверно)

2014 год:    12≥ 447 (неверно)

768≥ 793 (неверно)

1258≥ 270(верно)

1063 ≤1 591(верно)

2015 год:    10 ≥637 (неверно)

1115≥ 932(верно)

1304 ≥308(верно)

1013 ≤1 565(верно)

Проведенный анализ показал, что на конец анализируемого периода предприятие ООО «» имеет ограниченную платежеспособность, кризис отсутствует.

Для оценки текущей платежеспособности применяют показатели:

1. коэффициент абсолютной ликвидности (Ка):

Ка=

А1

(2.8)

П1 + П2

2. коэффициент быстрой ликвидности (Кб):

Кб=

А1+ А2

(2.9)

П1 + П2

3. коэффициент текущей ликвидности (Кт):

Кт=

А1+ А+ А3

(2.10)

П1 + П2


Таблица 2.7 – Анализ показателей ликвидности

Показатель

Нормативное значение

2013 год

2014 год

2015 год

Изменение

2014 г./ 2013 г.

2015 г./ 2014 г.

Ка

0,20 – 0,30

0,25

0,01

0,01

-0,24

-

Кб

0,70 – 1,00

0,68

0,63

0,72

-0,05

0,09

Кт

≥ 1,50

1,53

1,64

1,55

0,11

-0,09


Значение коэффициента абсолютной ликвидности ниже нормативных значений в 2014 и 2015 гг. Это свидетельствует об отсутствии у ООО «» возможности в полной мере погашать свои краткосрочные обязательства.

Коэффициент быстрой ликвидности ниже нормативного значения в 2013 и 2014 гг.: показатель снизился в 2014 г. на 0,05 по сравнению с 2013 г. На конец анализируемого периода он улучшил свое значение на 0,09 – данный показатель соответствует нормативу, что хорошо сказывается на платежеспособности предприятия.

Коэффициент текущей ликвидности на протяжение всего анализируемого периода соответствует нормативному значению, что показывает достаточность оборотных средств.

         2.1.4 Анализ рентабельности предприятия

Показатели рентабельности характеризуют эффективность работы предприятия в целом. Выделяют следующие показатели рентабельности:

1. Рентабельность производственной деятельности:

Ри=

П

× 100% ,

(2.11)

З


где    П – прибыль (балансовая или чистая);

         З – затраты по реализованной продукции.

2. Рентабельность продаж (оборота):

Ри=

П

× 100% ,

(2.12)

В


где    В – выручка от продажи товаров, продукции, работ, услуг.

3. Рентабельность (доходность) капитала:

Ри=

П

× 100% ,

(2.13)

К


где    К – собственный капитал.

Таблица 2.8 – Показатели рентабельности ООО «»

Показатель

2013 г.

2014 г.

2015 г.

Изменение

2014/2013

2015/2014

Рентабельность производственной деятельности

53,95

45,69

48,24

-8,26

2,55

Рентабельность продаж (оборота)

23,08

20,25

22,01

-2,83

1,76

Рентабельность собственного капитала

70,43

70,21

69,78

-0,22

-0,43


Рисунок 2.5 – Динамика показателей рентабельности ООО «»

В связи с уменьшением затрат по реализации продукции коэффициент рентабельности производственной деятельности увеличился в 2015 г.Рентабельность продажвозросла, так как в соответствующих периодах уменьшил свое значение показатель выручки. Причиной снижения коэффициента рентабельности капитала является снижение прибыли в 2015 г. по сравнению с 2014 г. и увеличение в структуре капитала заемных средств.

         2.1.5Анализ реализации готовой продукции предприятия

По мере насыщения рынка и усиления конкуренции возможный объем реализации продукции является основой разработки производственной программы. Предприятие должно производить только те товары и в таком объеме, которое он может реально реализовать.Темпы роста объема реализации продукции, повышение ее качества непосредственно влияют на величину издержек, прибыль и рентабельность предприятия. Поэтому анализ данного показателя имеет важное значение.

Таблица 2.9 – Анализ реализации продукции ООО «»

Год

Объем реализации продукции, тыс. руб.

Темпы роста, %

базисные

цепные

2013

5 233

100

100

2014

5 160

98,60

98,60

2015

4 994

95,43

96,78


Среднегодовой темп роста реализации продукции можно рассчитать по среднегеометрической взвешенной:

Тр.п.=,

(2.14)

где    Тр.п.– темп роста реализованной продукции.

         Т1, Т2, Т3 – 2013 г., 2014 г., 2015 г. соответственно.

Тр.п= = 97,99%

Для наглядности, изменение объема реализации продукции в течение анализируемого периода представлено на рисунке 2.6.

Рисунок 2.6– Динамика изменения объема реализации ООО «»

Среднегодовой темп роста реализованной продукции составил отрицательное значение –2,01%.За три года объем реализации продукции ООО «» уменьшился на 4,57%, что свидетельствует о снижении эффективности деятельности предприятия.

2.2Анализ состояния системы запасов в ООО «»


Поскольку компания «» развивается, и требования к логистике возрастают, руководству необходимо ответственно подойти к решению вопросов, связанных с систематизацией, хранением и последующей передачей готовой продукции потребителям.

ООО «» использует склад класса С. Общая площадь склада – 397 м2, используемая – 349 м2. Склад представляет собойкапитальное одноэтажное производственное помещение с высотой потолков 5,5 метров.Полы из асфальта, покрытие отсутствует. Складское помещение имеет ворота на нулевом уровне для обеспечения заезда грузового транспорта внутрь помещения. Климатический и температурный режим поддерживается системой отопления и вентиляцией. Поддерживаемая температура составляет от +8 до +14 0С.

Cклад ООО «» состоит из одного здания с полочной, консольной и стеллажной системами хранения.Компания нацелена на повышение интенсивности и эффективности работы склада за счет качественных изменений в ней.

Проблемы с развитием, которое предусматривает периодическое увеличение складских площадей, можно решить путем сокращения запасов, вследствие чего произойдет высвобождение площади. Для компании целесообразно использовать, как и ранее, арендованное складское помещение, применяя полочный и консольный тип стеллажей – это позволяет эффективно использовать полезную площадь.

Важной характеристикой, описывающей состояние системы запасов, являются остатки запасов. Анализ динамики остатков запасов может дать общее представление о загрузке складских площадей и оборачиваемости запасов. На рисунке  2.7 представлена динамика остатков запасов компании «» в 2015 г.

Рисунок 2.7– Динамика остатков запасов в 2015 г.

В целом, можно сделать заключения об изменении уровня запасов по годам, выявить сезонные тенденции, но при этом необходимо помнить, что остатки запасов появляются в результате совмещения характеристик входящего и выходящего материальных потоков, и, следовательно, не являются самостоятельной величиной. Для дальнейшего описания состояния запасов требуются иные, более детальные показатели, которые будут рассчитаны и проанализированы ниже.

Средний уровень запаса– первый производный показатель состояния запасов из рассматриваемых. Средний уровень запаса рассчитывается по единичным отчетным периодам по следующей формуле:

,                                         (2.15)

где    – средний объем запаса в i-ом периоде, единиц;

– остаток запаса на начало i-го периода, единиц;

– остаток запаса на конец i-го периода, единиц.

Скорость обращения запаса (итог сочетания входящего и выходящего материального потока) – количество оборотов (число раз полного обновления состава) среднего запаса за рассматриваемый период:

,                                                (2.16)

где     –скорость обращения, количество раз;

 – объем отгрузок (потребления, объем продаж или товарооборот) запаса в i-ом периоде, единиц;

– средний объем запаса в i-ом периоде

Время оборота –  среднее число дней (недель, декад, месяцев и др.), в течение которых средний размер запаса находится на складе:

,                                              (2.17)

где    Ti– время оборота запаса, дни;

i – индекс рассматриваемого периода времени,

j – индекс единичного периода учета,

 – средний объем запаса в i-ом периоде, единиц;

mj – объем отгрузок (потребность, объем продаж или товарооборот) в j-ом единичном периоде учета, единиц/дни.

Таблица 2.10– Показателисостояния запасов ООО «» в 2015 г.

Период

Средний объем запаса, тыс. руб.

Реализация, тыс. руб.

Скорость обращения запаса

Время оборота

I кв.

1950

1196

0,61

1,63

II кв.

1982

1157

0,58

1,71

III кв.

1984

1143

0,58

1,74

IV кв.

2180

1498

0,69

1,46


Увеличение времени и скорости обращения запаса приводятООО «» к осуществлениюменьшегообъема товарооборота при больших размерах товарных запасов, что  влечет увеличение товарных потерь и расходов по хранению товаров.

Запасоемкость (состояние запаса со стороны его потребления) –количество единиц остатка запаса, которое приходится на единицу отгрузки прошлого единичного периода учета:

,                                             (2.18)

где     – запасоемкость запаса в i-ом периоде учета,

i – индекс периода учета,

Zi+1 – остаток запаса на начало (i+1)-го периода учета (или на конец i-го единичного периода учета), единиц;

 – объем отгрузок (потребности, объем продаж или товарооборот) за i-ый единичный период учета, единиц.

Доля переходящего запаса:

Zei=Zni+SiDi,                             (2.19)

где    Zei – остаток запаса на конец i-го периода,

Zni – остаток запаса на начало i-го периода,

Si – объем пополнения запаса в i-ом периоде,

 – объем отгрузок (потребления, объем продаж или товарооборот) запаса в i-ом периоде.

,             (2.20)

где    di – доля переходящего запаса i-го периода;

Zni – остаток запаса на начало i-го периода, единиц;

Zei – остаток запаса на конец i-го периода, единиц;

Di – объем отгрузок (потребления, объем продаж или товарооборот) запаса в i-ом периоде, единиц.

Обеспеченность потребности запасом – (состояние запаса со стороны его потребления) – на сколько периодов хватит имеющихся запасов до момента их полного истощения (имеет размерность времени):

,                                                        (2.21)

где     – обеспеченность потребности запасом в i-ом периоде учета, дни;

i – индекс периода учета,

– остаток запаса на конец i-го периода учета, единиц;

mj – объем отгрузок (потребность, объем продаж или товарооборот) в j-ом единичном периоде учета, единиц/дни.

Таблица2.11–Основные показатели состояния запасов предприятия в 2015 г.

Период

Остатки, тыс. руб.

Реализация, тыс. руб.

Запасоемкость

Доля переходящего запаса

Число рабочих дней

Обеспеченность потребности запасом, дней

I кв.

1119

1196

0,97

0,48

55

53,30

II кв.

1159

1157

1,00

0,50

61

61,26

III кв.

1162

1143

1,12

0,48

66

73,74

IV кв.

1277

1498

-

0,85

65

-


Из таблицы видно, что на протяжении анализируемого периода коэффициент запасоемкости возрастает в каждом квартале. Данные изменения могут говорить о снижении спроса на продукцию. Являясь безразмерным показателем, запасоемкостьпоказывает для обслуживания скольких будущих периодов будет достаточно остатков запаса, созданных на конец рассматриваемого периода, при условии, что объем продаж в будущих периодах останется на уровне рассматриваемого периода. К концу 2015 г. возрастает величина остатков готовой продукции на складе.

В 2015 г. практически все экономические показатели ООО «» уменьшились по сравнению с 2013 г. Оборотный капитал увеличивается с каждым годом, и это говорит о существующих проблемах со складом и снижении деятельности предприятия. Также о проблемах, связанных с затовариванием склада, свидетельствует увеличение запасов предприятия.

Изменения в структуре оборотного капитала свидетельствуют об ухудшениях в процессе производства и сбыта продукции, которые являются признаком нестабильной работы компании. На данном этапе анализа, наблюдая тенденцию увеличения оборотного капитала, причиной неэффективной политики выступает затоваривание склада.

В связи с уменьшением затрат по реализации продукции коэффициент рентабельности производственной деятельности ООО «» увеличился. Рентабельность продаж возросла, так как в соответствующих периодах уменьшил свое значение показатель выручки. Причиной снижения коэффициента рентабельности капитала является снижение прибыли в 2015 г. по сравнению с 2014 г. и увеличение в структуре капитала заемных средств.

Коэффициент финансовой автономии имеет нормативное значение в 2013 и 2014 гг., а это значит, что в целом предприятие имело стабильное финансовое состояние. Но в 2015 г. изменение показателя свидетельствует о том, что организация в большей мере стала полагаться на заемные источники финансирования. Проведенный анализ платежеспособности показал, что на конец анализируемого периода предприятие ООО «» имеет ограниченную платежеспособность, кризис отсутствует.

Увеличение времени и скорости обращения запаса приводятООО «» к осуществлениюменьшего объема товарооборота при больших размерах товарных запасов, что  влечет увеличение товарных потерь и расходов по хранению товаров.

По результатам анализа деятельности ООО «» можно сделать вывод, что предприятию необходимо применить в своей работе новые инструменты менеджмента, направленные на улучшение деятельности как системы управления запасами, так и предприятия в целом. Поэтому для ООО «» необходимо предложить, в первую очередь, мероприятия по сокращению излишних запасов на складе предприятия. Для достижения данной цели предстоит провести АВС-XYZ анализ товаров, проанализировать показатели среднего запаса (используя данные 2015 г.) и сопоставить полученные результаты – после этого можно будет выявить причины существующих проблем и найти решение для них. Мероприятия по сокращению излишних запасов планируется реализовать по разработанному плану маркетинга для ускорения продаж труднореализуемых товаров. Для улучшения работы и построения системы прогнозов продаж по каждой категории товаров, выделенной в ходе АВС-XYZ анализа, предполагается применить программное решение. Также необходимо реализовать мероприятие по эффективному использованию складской площади, которая будет оптимизирована после проведения мероприятий по сокращению запасов, и оценить предложенные мероприятия с помощью расчета соответствующих показателей эффективности.

 

3 Разработка мероприятий по повышению эффективности деятельности ООО «»


3.1 Анализ запасов в ООО «»


Для конкурентоспособных предприятий склад выступает важным звеном технологического процесса. Аккумулированные на складе резервы материальных ресурсов позволяют избежать резких колебаний объемов поставок и спроса, а также дают возможность синхронизировать скорость потоков материалов в производственных системах и товаров в системах продвижения от производителей к потребителям.

В сложившихся экономических условиях в ООО «» возникает необходимость рационально размещать запасы и эффективно управлять ими.Правильная организация мест хранения обеспечивает максимально производительное размещение товаров в зависимости от специфики и возможностей бизнеса в определенное время и требует ежегодной оптимизации.Однако слишком часто этот процесс пытаются упростить и удешевить, забывая при этом, что выбор размерности складского комплекса, используемой в нем технологии, типов и характеристик оборудования для хранения и перемещения товаров и, наконец, системы управления этой технологией должен проводиться только после точного понимания характеристик запасов и потребности в объемах их хранения.

При оптимизации работы складаООО «» для выявления причин неэффективности необходимо пересмотреть перечень товаров с помощью проведения АВС-XYZанализареализованной продукции и сравнить полученные результаты со средними запасами на складе, а также рассмотреть процесс взаимодействия с поставщиками.

Далее в таблице представлены результаты ABC-XYZ анализа реализованной продукции за IV квартала 2015 г.

Таблица 3.1 – Результаты ABC-XYZ анализа реализованной продукции за IVквартала 2015 г.

№ п/п

Наименование

Объем продаж, тыс. руб.

% про-даж

Кат. ABC

К-т

вари-ации

Кат. XYZ

Кат. ABC-XYZ

I

кв.

II кв.

III кв.

IV кв.

Всего

1

Стеллаж МКФ 15505-2,5

83

84

105

120

392

7,85

A

23%

AY

2

Верстак  с драйвером (5 выдв.ящ.)

57

63

61

60

241

4,83

A

7%

X

AX

3

Стеллаж SGR 1264-2,5-DS

51

54

55

70

230

4,61

A

15%

Y

AY

4

SGR-Zn стеллаж 1263-2,0

43

39

41

66

189

3,78

A

34%

Z

AZ

5

Верстак WT100.F1/F1.000

26

37

35

51

149

2,98

A

34%

Z

AZ

6

Шкаф инструментальный TC-1095

35

35

30

33

133

2,66

A

9%

X

AX

7

Стеллаж с пласт. ящиками 1502-2/3/4

31

30

33

36

130

2,60

A

10%

X

AX

8

Верстак слесарный Р589

31

34

31

33

129

2,58

A

9%

X

AX

9

Шкаф h-900 для оснастки и инструмента

30

28

32

34

124

2,48

A

13%

Y

AY

10

Драйвер инструментальный ДИ5-50(60)

35

22

18

48

123

2,46

A

62%

Z

AZ

11

Верстак М07.0Э2С

13

17

27

64

121

2,42

A

88%

Z

AZ

12

Тележка платформенная ВС-223

27

31

30

31

119

2,38

A

16%

Y

AY

13

Комплект WS-6

28

27

31

31

117

2,34

A

9%

X

AX

14

Стеллаж усиленный СТФУ 255-2.0

28

29

30

28

115

2,30

A

9%

X

AX

15

Тележка с фанерным настилом ТПФ-3

28

30

17

33

108

2,16

A

40%

Z

AZ

16

Стеллаж складской СФМ 250

27

19

27

34

107

2,14

A

38%

Z

AZ

17

Межоперационный стол

25

23

24

32

104

2,08

A

21%

Y

AY

18

Панель инструментальная ПИК-1,9

20

24

23

36

103

2,06

A

64%

Z

AZ

19

Инструментальная тумба Г1890

15

24

27

33

99

1,98

A

36%

Z

AZ


Продолжение таблицы 3.1

№ п/п

Наименование

Объем продаж, тыс. руб.

% про-даж

Кат. ABC

К-т

вари-ации

Кат. XYZ

Кат. ABC-XYZ

20

Модуль тумб 15.05

25

24

23

25

97

1,94

A

11%

Y

AY

21

Шкаф инструментальный TC-1995

23

22

24

24

93

1,86

A

9%

X

AX

22

Настил оцинкованный в сборе Н-1.2

26

25

18

21

90

1,80

A

18%

Y

AY

23

Тележка транспортировочная Р129

22

21

20

24

87

1,74

A

10%

X

AX

24

Стеллаж SGR 15105-3,0-DS

24

15

22

24

85

1,70

A

35%

Z

AZ

25

Стеллаж гравитационный 18765-2,5

34

10

12

23

79

1,58

B

94%

Z

BZ

26

Тумба инструментальная Г534

11

25

25

12

73

1,46

B

95%

Z

BZ

27

Шкаф для оснастки Е1930

25

22

15

8

70

1,40

B

95%

Z

BZ

28

Тележка транспор-тировочная (М1000)

15

12

14

28

69

1,38

B

110%

Z

BZ

29

Панель средств уборки

23

0

17

27

67

1,34

B

135%

Z

BZ

30

Стеллаж МКФ 15915-2,5

26

9

23

64

1,28

B

108%

Z

BZ

31

SGR рама 2000х600

20

10

24

9

63

1,26

B

91%

Z

BZ

32

Рольганг (14.20)

14

16

13

17

60

1,20

B

14%

Y

BY

33

Стеллаж набивной 950

7

9

4

38

58

1,16

B

152%

Z

BZ

34

Перфорированная панель 1000х500х40

15

24

6

12

57

1,14

B

79%

Z

BZ

35

Перфорированная панель К14

8

13

13

22

56

1,12

B

71%

Z

BZ

36

Система визуализации (18.23)

12

2

8

34

56

1,12

B

99%

Z

BZ

37

Тележка инструментальная (6 ящиков)

10

10

8

26

54

1,08

B

63%

Z

BZ

38

Стенд оперативного управления

13

13

13

14

53

1,06

B

11%

Y

BY

39

Платформенная тележка 3 ФЛ 6х10

11

18

14

9

52

1,04

B

89%

Z

BZ



Продолжение таблицы 3.1

№ п/п

Наименование

Объем продаж, тыс. руб.

% про-даж

Кат. ABC

К-т

вари-ации

Кат. XYZ

Кат. ABC-XYZ

40

Рольганг (2*1.3*0.4)

7

15

24

5

51

1,02

B

147%

Z

BZ

41

Компл. силовых стяжек для жесткости

21

16

5

7

49

0,98

C

79%

Z

CZ

42

Рольганг (13.857)

9

13

11

16

49

0,98

C

126%

Z

CZ

43

Ложементы (1500)

13

11

14

10

48

0,96

C

134%

Z

CZ

44

Грузовая тележка 4WF-150PP

17

5

15

10

47

0,94

C

137%

Z

CZ

45

Стеллаж 1850*700*300 (4 полки)

15

0

12

19

46

0,92

C

177%

Z

CZ

46

Пластиковые ящики для стоек 70Н, 75Т

10

20

15

0

45

0,90

C

149%

Z

CZ

47

Тележка открытая с 3 полками и перф.

0

27

0

18

45

0,90

C

229%

Z

CZ

48

Столешница для тележек Ф3452

11

9

8

16

44

0,88

C

36%

Z

CZ

49

Ярус SGR 2100х1000

15

8

14

7

44

0,88

C

152%

Z

CZ

50

Комплект П3-52

14

8

9

12

43

0,86

C

103%

Z

CZ

51

Полка для съемного блока 08.100.SK

15

7

14

7

43

0,86

C

129%

Z

CZ

52

Перфорированная панель 1500х1000х40

17

7

4

14

42

0,84

C

136%

Z

CZ

53

SGR балка 1800 (7035) со стяжкой 600

14

7

0

18

39

0,78

C

151%

Z

CZ

54

Тележка инструментальная (3 ящика)

11

9

0

18

38

0,76

C

147%

Z

CZ

55

Оцинкованная столешница для 3-х тумб

7

21

0

9

37

0,74

C

145%

Z

CZ

56

Стойка СТФУ 250

3

13

19

0

35

0,70

C

207%

Z

CZ

57

Стенка 100/100

0

14

0

19

33

0,66

C

181%

Z

CZ


Итого

1196

1157

1143

1498

4994

-

-

-

-





Таблица 3.2–Количество видов товаров по классификации ABC-XYZ анализаза 2015 г.

Категории ABC

%

Количество видов товаров

A

80%

24

B

15%

16

C

5%

17

Категории XYZ

Вариативность

Количество видов товаров

X

10%

8

Y

25%

9

Z

>25%

40


Таблица 3.3 – Матрица ABC-XYZ анализа реализованной продукции в 2015 г.

Группа

Х

Y

Z

А

8

7

9

В

-

2

14

С

-

-

17


Проведенный анализ показал, что 80% объема реализации в размере 3 285 000 руб. составляют 24 вида товаров (категория А), из которых 8 видов относятся к группе Х, 7 видов – к группе Y и 9 видов – к группе Z. Таким образом, объем продаж по группе АХ составляет 1 045 000 руб., по группе AY–1 156 000 руб., AZ - 1 084 000 руб.

15% объема реализации в размере 982 000 руб. составляют 16 видов товаров (категория В), из которых 2 вида относятся к группе Yи 14 – к группе Z. Таким образом, объем продаж по группе BY составляет 113 000 руб.,BZ–869 000 руб.

5% объема реализации в размере 727 000 руб. составляют 17 видов товаров (категория С), которые относятся к группе Z.

         Далее проанализируем размер среднего запаса на складе в 2015 г.

Таблица 3.4 – Анализ размера среднего запаса на складе в 2015 г.

№ п/п

Наименование

Средний запас на складе, тыс. руб.

I кв.

II кв.

III кв.

IV кв.

Всего

1

Стеллаж МКФ 15505-2,5

89

75

102

122

388

2

Верстак  с драйвером (5 выдв. ящ.)

52

61

58

54

225

3

Стеллаж SGR 1264-2,5-DS

49

56

59

80

244

4

SGR-Zn стеллаж 1263-2,0

50

46

50

74

220

Продолжение таблицы 3.4

№ п/п

Наименование

Средний запас на складе, тыс. руб.

I кв.

II кв.

III кв.

IV кв.

Всего

5

Верстак WT100.F1/F1.000

25

35

33

64

157

6

Шкаф инструментальный TC-1095

46

49

45

41

181

7

Стеллаж с пласт. ящ. 1502-2/3/4

45

46

45

46

182

8

Верстак слесарный Р589

42

31

46

33

152

9

Шкаф h-900 для оснастки и инструмента

28

42

37

30

137

10

Драйвер инструментальный ДИ5-50(60)

44

40

35

46

165

11

Верстак М07.0Э2С

32

30

35

71

168

12

Тележка платформенная ВС-223

25

35

40

38

138

13

Комплект WS-6

26

35

43

42

146

14

Стеллаж усиленный СТФУ 255-2.0

25

30

43

22

120

15

Тележка с фанерным настилом ТПФ-3

36

42

30

47

155

16

Стеллаж складской СФМ 250

39

42

41

44

166

17

Межоперационный стол

51

46

43

45

185

18

Панель инструментальная ПИК-1,9

44

50

47

50

191

19

Инструментальная тумба Г1890

33

21

26

24

104

20

Модуль тумб 15.05

45

42

35

37

159

21

Шкаф инструментальный TC-1995

20

36

30

35

121

22

Настил оцинкованный в сборе Н-1.2

33

31

25

27

116

23

Тележка транспортировочная Р129

30

29

19

33

111

24

Стеллаж SGR 15105-3,0-DS

32

26

31

32

121

25

Стеллаж гравитационный 18765-2,5

42

47

50

40

179

26

Тумба инструментальная Г534

37

55

47

44

183

27

Шкаф для оснастки Е1930

45

48

37

28

158

28

Тележка транспортировочная (М1000)

30

37

46

52

165

29

Панель средств уборки

35

15

27

35

112

30

Стеллаж МКФ 15915-2,5

36

27

27

41

131

31

SGR рама 2000х600

35

29

31

33

128

32

Рольганг (14.20)

24

25

19

26

94

33

Стеллаж набивной 950

31

26

18

67

142

34

Перфорированная панель 1000х500х40

23

33

25

37

118

35

Перфорированная панель К14

19

20

22

33

94

36

Система визуализации (18.23)

22

8

12

45

87

37

Тележка инструментальная (6 ящиков)

16

15

15

35

81

38

Стенд оперативного управления

25

24

27

25

101

39

Платформенная тележка 3 ФЛ 6х10

22

29

27

28

106

40

Рольганг (2*1.3*0.4)

33

37

48

25

143

41

Комплект силовых стяжек для жесткости

30

25

21

97

42

Рольганг (13.857)

34

41

36

29

140

43

Ложементы (1500)

45

42

37

20

144

44

Грузовая тележка 4WF-150PP

30

32

26

29

117

45

Стеллаж 1850*700*300 (4 полки)

45

29

46

45

165

Продолжение таблицы 3.4

№ п/п

Наименование

Средний запас на складе, тыс. руб.

I кв.

II кв.

III кв.

IV кв.

Всего

46

Пластиковые ящики для стоек 70Н, 75Т

40

37

44

24

145

47

Тележка открытая с 3 полками и перф.

90

75

66

30

261

48

Столешница для тележек Ф3452

18

17

15

26

76

49

Ярус SGR 2100х1000

24

22

37

23

106

50

Комплект П3-52

30

26

35

31

122

51

Полка для съемного блока 08.100.SK

35

34

30

30

129

52

Перфорированная панель 1500х1000х40

28

25

18

27

98

53

SGR балка 1800 (7035) со стяжкой 600

31

25

9

28

93

54

Тележка инструментальная (3 ящика)

29

23

15

29

96

55

Оцинкованная столешница для 3-х тумб

16

29

15

24

84

56

Стойка СТФУ 250

9

19

32

3

63

57

Стенка 100/100

0

30

26

30

86


Итого

1950

1982

1984

2180

8096


Анализируя показатели объема продаж и размера среднего запаса по каждому товару в определенный отчетный период, наблюдается разница. Это говорит о том, что показатель среднего запаса на складе либо превышает величину объема продаж, либо наоборот, меньше ее. Сопоставляя данные двух анализов и опираясь на основные показатели запасов, необходимо выявить причины выявленного образования излишнихзапасов и, наоборот, их дефицит.

3.2 Предложение по оптимизации системы управления запасами


На основе результатов всех проведенных анализов, целесообразно перейти к производству товаров категории CZ только на основе заявок. Объясняется это тем, что в данную категорию входят товары спонтанного спроса, из-за которых возникают неликвидные или труднореализуемые товарные запасы, и компания несет потери.

Стоимость нереализованных товаров категории CZв 2015 г. составляет 498 030 руб. – это 39% от общих запасов. Для того, чтобы как можно скорее реализовать их, предлагается следующее маркетинговое мероприятие.

В ООО «» необходимо применить инструмент e-mailмаркетинга: достаточно воспользоваться онлайн-сервером UniSenderдля массовой рассылки электронных писем рекламного характера. Получателями сообщений станут предприятия и организации г. Набережные Челны. Преимущества данного инструмента – простота составления рекламного предложения в шаблонном редакторе, мгновенная рассылка сообщений и приемлемая стоимость. Рекомендуется проводить рассылку не более чем 2 раза в неделю. Стоимость тарифного плана – 1 122 руб. в месяц.

Таблица 3.5– Анализ использования онлайн-сервера UniSender

Показатель

Ед. измерения

Объем продаж в 2016 г.

в месяц

в квартал

в год

Количество рассылок

раз

8

24

96

Затраты на рассылку

руб.

1 122

3 366

13 464

Объем продаж товаров

руб.

40 380

121 141

484 566


На предприятии существует проблема, связанная с ожиданиями. Так как в ООО «» отсутствует участок покраски изделий, компании приходится обращаться к сторонним специализированным организациям. Здесь наблюдаются перебои в работе поставщиков – ожидание готовых окрашенных изделий ООО «» занимает продолжительное время поставки. Следствие ожидания – недостаточное количество товаров на момент, когда в ООО «» обращается покупатель, поступление и залеживание товара после потери клиента. Таким образом, основная проблема предприятия в области складских запасов – чрезмерное ожидание готовой продукции с покраски и потеря клиентоориентированности.

Далее целесообразно рассмотреть мероприятие по организации участка конечной обработки изделий (окраски), дабы избавиться от проблемы с чрезмерным ожиданием. Но так как проект по организации участка покраски требует инвестиций и времени на реализацию, в настоящем времени в компании «» следует применить систему оценки поставщиков.

В компании каждый раз фиксируется заявка, оправленная поставщику, после чего специалист по закупкам проводит мониторинг ее состояния и отмечает сбои поставки, либо ее успешное выполнение. На основе использования этих данных представляется возможность реализации конкурсной системы оценки поставщиков по определенным критериям.

Для компании преимущественно важно качество продукции и, в равной степени, стабильность и точность поставок. Исходя из этого, каждый критерий приобретает свой вес. Характеристика критериев оценки поставщиков:

– Стабильность поставок – количество заявок, которые поставщик выполняет, не изменяя дату (0,3).

– Точность поставки – количество заявок, без изменения содержимого (0,3).

– Качество поставок – доля годной продукции из всего перечня продукции (количество рекламаций) (0,4).

Таблица 3.6– Уровень сервиса на начало Iквартала 2016 г.

Поставщик

Критерий / вес критерия

Итого, %

Стабильность поставок, % / 0,3

Точность поставок, % / 0,3

Качество продукции, % / 0,4

1

84

73

96

85,5

2

95

83

97

92,2

3

79

90

95

88,7

4

99

98

100

99,1

5

80

83

94

89,4

Среднее значение

87,4

85,4

96,4

90,4


После применения критериев оценки и ранжирования поставщиков, ожидается выравнивание поставок и улучшение показателей уровня сервиса по каждому поставщику. Результаты мониторинга заявок следует индивидуально отправлять в виде отчета (без указания названий компаний-поставщиков) поставщикам, чтобы каждый из них мог проанализировать результаты своей деятельности. Конкурсная основа работы с поставщиками позволит ООО «» уменьшить количество поставок от ненадежных поставщиков, передав объем заказа от них к более надежным. Данная система имеет название – «Supplierrelationshipmanagement (SRM)»  или «Управление взаимоотношениями с поставщиками». В настоящее время для обеспечения стабильности поставок не всегда есть смысл повышать страховой запас – особенно для категории товаров АХ, так как товары данной группы хорошо продаются, лучше постараться научиться продуктивно работать с поставщиком, ведь, в конечном итоге, ни одна модель управления запасами не может гарантировать наличие запаса, достаточного для всех вариантов удовлетворения потребности.

Таблица 3.7– Уровень сервиса на конец I квартала 2016 г.

Поставщик

Критерий / вес критерия

Итого, %

Стабильность поставок, % / 0,3

Точность поставок, % / 0,3

Качество поставок, % / 0,4

1

89

85

97

91

2

97

86

98

94,1

3

76

93

92

87,5

4

100

99

100

99,7

5

92

94

98

95

Среднее значение

90,80

91,40

97,00

93,46


В итоге показатель критерия стабильности поставок в среднем улучшил свое значение на 3,4%, точности поставок – на 6%, качества поставок – на 0,6%. В среднем уровень сервиса за квартал улучшился на 3,06%.

Товары группы АХ отличает высокий товарооборот и стабильность. Необходимо обеспечить постоянное наличие товаров этой группы, но для этого не нужно создавать избыточный страховой запас. Расход товаров этой группы стабилен и хорошо прогнозируется. Для ООО «» данная группа товаров является одной из ключевых, но здесь есть определенные проблемы с поставками, для решения которых как раз таки послужит оценка уровня сервиса поставщиков. А с момента начала работы участка конечной обработки на территории ООО «», риски отсутствия товара на складе будут сведены к минимуму.

Для управления запасами предлагается приобрести программный продукт под названием «Forecast NOW!» стоимостью 47 500 руб., который помогает оптимизировать складские товарные запасы, снизить издержки на хранение, повысить оборачиваемость средств и автоматизировать работу отдела закупок.

Товары группы AY и BY при высоком товарообороте имеют недостаточную стабильность расхода, и, как следствие, для того чтобы обеспечить постоянное наличие, нужно увеличить страховой запас.

Товары группы AZ и BZ при высоком товарообороте отличаются низкой прогнозируемостью расхода. Попытка обеспечить гарантированное наличие по всем товарам данной группы только за счет избыточного страхового товарного запаса приведет к тому, что средний товарный запас компании значительно увеличится.

Для решения этих задач строятся прогнозы продаж. Опираясь на построенные ранее прогнозы, происходит расчет оптимального товарного запаса. Программа «Forecast NOW!» получает данные из истории продаж, которая может храниться в различных системах автоматизации торговли, таких как 1С.

Высокая точность расчета оптимального товарного запаса достигается благодаря используемым методам математического моделирования с применением алгоритмов обучаемых нейронных сетей.Оптимальный запас рассчитывается с учетом рисков дефицита, сроков годности, стоимости хранения, распродаж, сезонности и трендов, праздничных дней, стоимости денежных средств и других критериев.

Программа высвобождает оборотные средства за счет сокращения излишних запасов и повышает продажи благодаря уменьшению дефицитов. При этом обеспечивается поддержание обязательного ассортимента.

Закупщик, опираясь на базу знаний программы, может быстро узнать о товаре, номенклатурной группе или срезе всю необходимую информацию: динамику продаж и остатков, периоды дефицита и неслучайного отсутствия спроса, сверхнормативные запасы и вероятность неликвида. На основе полученной информации он принимает эффективные решения.

Программа решает следующие задачи:

– выявление топовых позиций по заданным критериям на основе кросс-ABC-XYZ анализа,

– нахождение проблемных товарных групп, ранжирование поставщиков с помощью анализа товарных групп и срезов;

– поиск неликвидов, выбывшего ассортимента, сверхзапасов с использованием анализа ассортимента.

Стратегические решения проясняются и подтверждаются математическим прогнозом, появляется единый инструмент принятия решений и контроля за их исполнением.

По итогам анализа запасов и перехода к производству товаров категории СZ на заявочной основе в компании «» высвободится площадь размером 62 м2. В итоге свободная площадь склада составит 110 м2.

3.3Организация участка порошковой окраски изделий


В настоящее время востребованным способом конечной обработки готовых металлических изделий любого типа во многих отраслях становится их порошковая окраска или нанесение полимерного покрытия.Окраской готовых металлических изделий компании «» занимается сторонняя специализированная организация.

Компания «», производящая металлические промышленные товары, рассматривает возможность реализации данной обработки изделий на собственной территории. Необходимая площадь для участка – 57,24 м2. Высвободив площадь на складе 62 м2 (общая свободная площадь – 110 м2), необходимо также решить проблемы, связанные с оснащением предприятия соответствующим оборудованием, инвестициями в приобретение оборудования и поискомквалифицированного работника.

Рассмотрев возможность организации участка конечной обработки металлических изделий и конструкций, был изучен производственный процесс нанесения порошковых красок, который происходит по схеме, рассмотренной ниже:

1. Подготовительный этап. В специально отведенном месте участка порошковой окраски подготавливаются поверхности изделий к нанесению на них порошковой краски, то есть осуществляется процесс обезжиривания.

2. Этап напыления. Подготовленные к порошковому окрашиванию изделия подвешиваются на каретки, установленные в продольной направляющей транспортной системе. Каретки с изделиями поочередно помещаются в рабочую зону окрасочной камеры напыления. На поверхности изделий равномерным слоем с помощью пистолета-распылителя наносится порошковая краска.Каретки с изделиями, с нанесенной на них порошковой краской, перемещают в транспортную систему, после чего они перемещаются к камере (печи) полимеризации.

3. Этап запекания. Изделия помещают в камеру полимеризации, закрывают ее двери и производят включение. После этого начинаетсяпроцесс полимеризации порошковых красок, который продолжается 1,5-2 часа, в зависимости от массы загруженных изделий и температуры полимеризации порошковой краски. Камера полимеризации работает в автоматическом режиме, и после окончания процесса полимеризации включается звуковая сигнализация.

4. Этап остывания и разгрузки. Каретки с покрытыми краской изделиями выводятся из камеры полимеризации. После полимеризации изделия выдерживаются при комнатной температуре до полного остывания.Остывшие покрытые изделия выгружают. Процесс покрытия изделий полимерными порошковыми композициями считается законченным.

После изучения особенностей производственного процесса нанесения порошковых красок были проанализированы актуальные предложения по оборудованию для организации участка покраски в ООО «». Исходя из рассмотренных вариантов и особенностей высвобожденной площади, выбор остановился на организации Г-образного участка по нанесению порошковой краски на металлические изделия и конструкции. Далее рассматривается комплектация и принципы работы Г-образного участка для нанесения порошковой окраски на металлические изделия.

Комплект оборудования для порошковой окраски состоит из окрасочной камеры полимеризации проходного типа с пультом управления, одной окрасочной камеры напыления тупикового типа с блоком фильтров и пультом управления и транспортной системы с одной верхней направляющей, поворотной кареткой и нижней транспортной тележкой.

1. Камера порошковой окраски используется для горячего отверждения нанесенной на поверхность изделия порошковой краски. Внутри камеры поддерживается температура от 180 до 200оС в течение определенного периода времени, в результате чего на поверхности формируется полимерное покрытие высокого качества.

Камера полимеризации

Рисунок 3.1 – Камера полимеризации

 

2. Камера напыления используется для обеспечения процесса нанесения порошковой композиции на окрашиваемые изделия, расположенные в рабочей зоне камеры. Нанесение краски внутри камеры осуществляется с помощью электростатического пистолета-распылителя.

Камера напыления

Рисунок 3.2 – Камера напыления

3. Комбинированная транспортная система используется для подвешивания и последующей транспортировки изделий в процессе окраски по всем этапам производства. Указанная транспортная система состоит из: рельсов, тележки, поворотной каретки, верхней направляющей.Поворотная каретка вращается на 360 градусов и перемещается по верхней направляющей. Высота рабочей зоны - 180 см.

Верхняя транспортная система

Рисунок 3.3 – Комбинированная транспортная система

 

4. Электростатический пистолет-распылитель для порошковой окраски предназначен для нанесения порошковой краски на окрашиваемое изделие. Распылитель порошковой краски подходит для средних объемов окраски. К его преимуществам можно отнести: доступную цену, возможность быстрой смены цвета, простоту в использовании, наличие основных необходимых регулировок.

Пистолет-распылитель

Рисунок 3.4– Электростатический пистолет-распылитель для порошковой окраски

 

 

 

 

 

5. Продувочный пистолет предназначен для очистки пистолета-распылителя, деталей и спецодежды от пыли и краски.

Продувочный пистолет

Рисунок 3.5– Продувочный пистолет

 

Рисунок 3.6 – Г-образный участок оборудования для порошковой окраски

 

План расположения оборудования для порошковой окраски

Рисунок 3.7– План-схема расположения оборудования Г-образного участка для порошковой окраски (1. камера напыления, 2. верхняя направляющая,

3. поворотная каретка, 4. тележка, 5. камера полимеризации, 6. рельсы)

Ниже приведен перечень инвестиций, необходимыхдля организации Г-образного участка для порошковой окраски.

Таблица 3.8 – Перечень инвестиций

№ п/п

Наименование статьи инвестиций

Цена за единицу, руб.

Кол-во, шт.

Итого

1

Камера полимеризации проходного типа (ДхШхВ): 3000х1600х1800 мм

209 000

1

209 000

2

Камера напыления однопостовая тупикового типа (ДхШхВ): 3000х1200х1800 мм

98 900

1

98 900

3

Комбинированная транспортная система

76 000

1

76 000

4

Электростатический пистолет-распылитель «Мастер»

15 900

1

15 900

5

Пистолет продувочный для смены краски

4 870

1

4 870

6

Устройство подготовки сжатого воздуха с редуктором (фильтр влаго-масло отделитель)

54 000

1

54 000

7

Пуско-наладка оборудования

49 860

1

49 860

8

Привлечение квалифицированного специалиста

27 000

1

27 000

9

Средства индивидуальной защиты

2 000

1

2 000

10

Внесение изменений в реестр ЕГРЮЛ

800

1

800

Итого инвестиций

538 330


538 330

Таблица 3.9– План производства и расчет выпуска основной продукции

№ п/п

Показатель

Ед. изм.

Затраты

день

месяц

квартал

год

1

Производительность оборудования

м2

40

800

2 640

10 560

2

Приобретение краски

кг

8

176

528

2 112

3

Приобретение краски

руб.

2 440

53 680

161 040

644 160

4

Расходы на электричество

руб.

622,5

13 695

41 085

164 340

5

Зарплата рабочего

руб.

909

20 000

60 000

240 000

6

Амортизация

руб.

248

5 460

16 381

65 525

7

Прочие расходы

руб.

363, 63

8 000

24 000

96 000

8

Себестоимость продукции

руб.

4 267

100 835

302 506

1 210 025

9

Объем продаж

руб.

7 600

152 000

501 600

2 006 400

10

Валовая прибыль

руб.

3 333

51 165

199 094

796 375


Следует обратить внимание, что оборудование конечной обработки относится к 4 амортизационной группе, срок полезного использования – 7 лет. Сумма начисленной амортизации рассчитывалась по линейному методу, как произведение первоначальной стоимости оборудования и нормы амортизации, определенной для данного имущества (14.28%).

Таблица 3.10 – Сравнение фактических и планируемых затрат на собственном участке покраски ООО «»

№ п/п

Показатели

Значение, руб.

Изменение

фактическое, 2015 г.

планируемое,  2017 г.

Абсолют.,

руб.

Темп роста, %

1

Стоимость покраски 1 м2

195

114,59

-80,41

58,76

2

Затраты на покраску

987 280

1210025

222745

122,56

3

Транспортные расходы

458 380

-

-

-

4

Себестоимость продукции

3 526 000

3290365

235635

93,31

5

Итого затрат

1 445 660

1 210 025

235635

83,70


При проведении анализа фактических значений с планируемыми следует, что данный проект может позволить снизить себестоимость изготавливаемой продукции следующим образом: ранее затраты на покраску составляли 28% себестоимости готовой продукции, соответственно 987 280 руб. в год; транспортные расходы по перемещению изделий до организации-исполнителя заказа по покраске, от которых удалось бы полностью избавится с момента реализации проекта, составляли 13% – 458 380 руб. в год. Таким образом, полная себестоимость продукции в 2015 г. составляла 3 526 000 руб. Планируемое значение себестоимости (при наличии на предприятии участка конечной обработки) составит 2 828 500 рублей: с момента организации участка конечной обработки изделий на территории предприятия из себестоимости исключаютсятранспортные затраты, а стоимость покраски 1 м2будет составлять 114 руб., тогда как ранее стоимость у сторонней организации составляла 195 руб. Таким образом, себестоимость продукции значительно снижается – на 697 500 руб.

Создание компанией «» на своей территории участка конечной обработки изделий, в первую очередь, направлено на удовлетворение потребностей предприятия и повышения клиентоориентированности. Но данное производство также может являться дополнительным источником дохода, если компания станет предоставлять услуги по покраске сторонним организациям. Средняя стоимость данного вида услуг в г. Набережные Челны – от 200 руб. В ООО «» стоимость услуги по покраске – 190 руб. за 1 м2, дешевле чем умногих специализированных предприятий города. Следует отметить, что участок конечной обработки имеет первостепенное значение для потребностей производственного процесса предприятия, а не создается для выступления на рынок с данной видом услуги, как одной из основных. Заказы планируется принимать исходя из возможностей оборудования, чтобы поддерживать его максимальную загрузку. При продаже данной услуги по условию 1м2=190 руб., в год выручка компании составит 2 006 400 руб.

3.4 Экономическая оценка эффективности предлагаемых мероприятий


Для реализации предлагаемых мероприятий, компания «» готова использовать только собственные средства, а именно – средства нераспределенной прибыли.

Таблица 3.11 – Расчет денежного потока проекта по кварталам расчетного периода

№ п/п

Показатели:

Значение показателя по кварталам расчетного периода (руб.)

Всего

0-й

1-й

2-й

3-й

4-й

1

2

3

4

5

6

7

8

1.

Доход от реализации проекта в текущих ценах

1280941


320235,25

320235,25

320235,25

320235,25

2.

Инвестиции в текущих ценах

599294

599294





3.

Коэффициент дисконтирования:


0,95

0,91

0,87

0,83

4.

Дисконтированная величина дохода от реализации проекта в ценах года принятия решения



305966,46

292333,45

279307,88

266862,70


Продолжение таблицы 3.11

№ п/п

Показатели:

Значение показателя по кварталам расчетного периода (руб.)

Всего

0-й

1-й

2-й

3-й

4-й

1

2

3

4

5

6

7

8

5.

Дисконтированная величина инвестиций в ценах года принятия решения

599294

599294





6.

Кумулятивная величина дохода



320235,25

640470,5

960705,75

1280941

7.

Кумулятивная величина инвестиций



599294

599294

599294

599294

8.

Кумулятивная дисконтированная величина дохода



305966,46

598299,91

877607,8

1144470,50

9.

Кумулятивная дисконтированная величина инвестиций



599294

599294

599294

599294

10.

Сальдо  чистого накопленного потока СЧНП (дохода) с нарастающим итогом



-279058,75

41176,5

361411,75

681647

11.

Сальдо дисконтированного накопленного потока СДНП (дохода) с нарастающим итогом



-293327,53

-994,08

278313,8

545176,50

12.

Чистый доход ЧД

681647






13.

Чистый дисконтированный доход ЧДД

545176,51






14.

Индекс доходности дисконтированных инвестиций, руб./руб.

1,25





15.

Внутренняя норма доходности (руб./год/руб.)

2,75 






16.

Срок окупаемости инвестиций (квартал)

1,91






17.

Дисконтированный срок окупаемости инвестиций (квартал)

1,98







Чистый доход: ЧД = 1280941–599294 = 681647 руб.

Чистый дисконтированный доход (экономический эффект за расчетный период): ЧДД = 1144470,5 – 599294 = 545176,50руб.

Индекс доходности:

(руб./руб.).

Внутренняя норма доходности (все значения в рублях):

1. руб./год/руб.

2. руб./год/руб.

3. руб./год/руб.

4. руб./год/руб.

5. руб./год/руб.

6. руб./год/руб.

7. руб./год/руб.

Таким образом, руб./год/руб., руб., а  руб./год/руб., руб.

Далее находится внутренняя норма доходности (ВНД):

(руб./год/руб.).

Для наглядности срок окупаемости инвестиций определен на основании построения графика финансового профиля (денежных потоков) инвестиционного проекта, изображенного на рисунке 3.8.

Рисунок 3.8 – Движение денежных потоков в течение расчетного периода

Срок окупаемости инвестиций составит:

(квартал).

Срок окупаемости с учетом дисконтирования денежных потоков составит:

(квартал).

Отношение суммы дисконтированных элементов денежного потока от операционной деятельности к абсолютной величине дисконтированной суммы элементов денежного потока от инвестиционной деятельности имеет значение 1,25 – это значит, что индекс доходности дисконтированных инвестиций больше единицы и проект является рентабельным.

Применение любых методов не обеспечит полной предсказуемости конечного результата – основной целью определения эффективности мероприятий является анализ предложенного к рассмотрению инвестиционного проекта на основе унифицированного подхода с использованием, по возможности, объективных и перепроверяемых показателей и составление относительно эффективного инвестиционного мероприятия.

Проект является эффективным и рентабельным, но необходимо отметить, что ни один из рассмотренных критериев сам по себе не является достаточным для принятия решения об осуществлении проекта. Решение об инвестировании средств должно приниматься самим инвестором, включая в расчет так же другие факторы, которые не всегда поддаются формальной оценке.

Подводя итоги, срок окупаемости предлагаемых инвестиций составит 1,87 квартала, срок окупаемости с учетом дисконтирования денежных потоков – 1,99 квартала. По итогам расчета денежного потока проекта ООО «» может получить чистый доход в размере 681 647 руб., чистый дисконтированный доход – 545176,51 руб.

В целом проведенные расчеты доказывают, что предлагаемый проект эффективен и рекомендуется для внедрения на предприятии ООО «».



 

ЗАКЛЮЧЕНИЕ


Самое сложное для любого предприятия – отказаться от излишних запасов. Здесь необходимо понять, что излишние запасы готовой продукции на складах – это ширма, мешающая видеть проблемы с неритмичностью поставок и проблемах в управлении системой запасов.

Исследование деятельности ООО «» показало, что величина запасов предприятия в денежном выражении существенна и, скорее всего, излишня. Наличие сверхнормативных запасов свидетельствует о необходимости рационализации управления запасами на предприятии. Оборотный капитал увеличивается с каждым годом, и это говорит о существующих проблемах со складом и снижении деятельности предприятия. Также о проблемах, связанных с затовариванием склада, свидетельствует увеличение запасов предприятия.

На предприятии также существует проблема, связанная с ожиданиями. Так как в ООО «» отсутствует участок покраски изделий, компании приходится обращаться к сторонним специализированным организациям.Здесь наблюдаются перебои в работе поставщиков – ожидание готовых окрашенных изделий ООО «» занимает продолжительное время поставки. Следствие ожидания – недостаточное количество товаров на момент, когда в ООО «» обращается покупатель, поступление и залеживание товара после потери клиента. Таким образом, основная проблема предприятия в области складских запасов – чрезмерное ожидание готовой продукции и потеря клиентоориентированности.

Компания «», производящая металлические промышленные товары, рассматривает возможность реализации данной обработки изделий на собственной территории. Необходимая площадь для участка – 57,24 м2. Проблемы с развитием, которое предусматривает увеличение складских площадей, можно решить путем сокращения запасов.

Конкурсная основа работы с поставщиками позволит ООО «» уменьшить количество поставок от ненадежных поставщиков, передав объем заказа от них к более надежным. В настоящее время для обеспечения стабильности поставок не всегда есть смысл повышать страховой запас – необходимо работать над управлением взаимоотношениями с поставщиками, ведь, в конечном итоге, ни одна модель управления запасами не может гарантировать наличие запаса, достаточного для всех вариантов удовлетворения потребности. В среднем на предприятии «» уровень сервиса за квартал улучшился на 3,06%. С момента начала работы участка конечной обработки на территории ООО «», риски отсутствия товаров на складе будут сведены к минимуму.

На основе результатов всех проведенных анализов, предприятиюцелесообразно перейти к производству товаров категории CZ только на основе заявок. Стоимость нереализованных товаров категории CZ в 2015 г. составляет 498 030 руб. – это 39% от общих запасов. Для того, чтобы как можно скорее реализовать их, предлагается применить инструмент e-mailмаркетинга –онлайн-серверUniSender для массовой рассылки электронных писем рекламного характера.Маркетинговое мероприятие принесет предприятию прибыль в размере 484 566 руб.

Для управления запасами предлагается приобрести программный продукт под названием «Forecast NOW!» – программа высвобождает оборотные средства за счет сокращения излишних запасов и повышает продажи благодаря уменьшению дефицитов.

Реализация перечисленных мероприятий ведет к высвобождению площади на складе – 62 м2 (общая свободная площадь – 110 м2), необходимой для организации участка конечной обработки. Проект по организации компанией «» на своей территории участка конечной обработки продукции, в первую очередь, направлено на удовлетворение потребностей предприятия и имеет значение в области качества: сокращается время ожидания готовой продукции, тем самым предприятие повышает клиентоориентированность. Также данное производство может являться дополнительным источником дохода, если компания станет предоставлять услуги по покраске сторонним организациям.

Расчет денежного потока проекта показал, что чистый доход ООО «» составит 681 647 руб., чистый дисконтированный доход – 545 176,50 руб. Срок окупаемости инвестиций составит 1,87 квартала, срок окупаемости с учетом дисконтирования денежных потоков – 1,99 квартала. Индекс доходности дисконтированных инвестиций – 1,25 руб./руб. Таким образом, предлагаемый проект эффективен и рекомендуется для внедрения на предприятии ООО «».

















 

 

 



СПИСОК ИСПОЛЬЗОВАННЫХ ИСТОЧНИКОВ И ЛИТЕРАТУРЫ


1. Федеральный закон РФ от 08.02.1998 № 14-ФЗ (ред. от 29.12.2015) «Об обществах с ограниченной ответственностью» [Электронный ресурс]. – Режим доступа: КонсультантПлюс: https://www.consultant.ru/document/cons_doc_LAW_17819

2. Положение об итоговой государственной аттестации выпускников высших учебных заведений Российской Федерации: Приказ Министерства образования Российской Федерации № 1155 от 25 марта 2003 г.

3. ГОСТ 7.1-91. Система стандартов по информации, библиотечному и издательскому делу. Библиографическое описание документа. Общие требования и правила составления. – М.: Издательство стандартов, 1991.

4. ГОСТ 7.32-2001. Система стандартов по информации, библиотечному и издательскому делу. Отчет о научно-исследовательской работе. Общие требования и правила оформления. – М.: Издательство стандартов, 2001.

5. Методические указания по выполнению выпускной квалификационной работы (бакалаврской работы) для студентов, обучающихся по направлению подготовки 38.03.02 Менеджмент. – Составители Жарина Н.А., Пуряев А.С., Садриев Р.Д. – Набережные Челны: НЧИ КФУ, 2015. 92 с.

6. Антонян Л. В. Методика выбора модели управления запасами [Текст] / Л. В. Антонян // Методы менеджмента качества. – 2014. - № 10. – С. 39-45.

7. Бердникова Л. Ф., Трушкина О. Ю. Развитие методики анализа материально-производственных запасов [Текст] // Инновационная экономика: материалы междунар. науч. конф. (г. Казань, октябрь 2014 г.).  – Казань: Бук, 2014. – С. 80-85.

8. Веретенникова О.Б., Лаенко О.А. Сущность оборотного капитала предприятия и его классификация // Вестник Омского университета. Серия: Экономика. – 2012. - № 2. – С. 178 – 183.

9. Гаджинский А.М. Логистика: Учебник для бакалавров / А. М. Гаджинский. – 21-е изд.–М.: Издательско-торговая корпорация «Дашков и Ко», 2013. – 420 с.

10. Дыбская В.В. Логистика складирования: Учебник / В.В. Дыбская. – М.: НИЦ ИНФРА-М, 2014. – 559 с.

11. Иванов И.Н. Экономический анализ деятельности предприятия: Учебник / И.Н. Иванов. – М.: НИЦ ИНФРА-М, 2013. – 348 c.

12. Ильина Т.А. Анализ АВС-XYZ как один из действенных инструментов бережливого производства на промышленных предприятиях // Российское предпринимательство. – 2013. - № 20 (242). – С. 49-55.

13. Канке А.А., Кошевая И.П. Логистика: Учебник / А.А. Канке, И.П. Кошевая. – 2-e изд., испр. и доп. – М.: ИД ФОРУМ: НИЦ Инфра-М, 2013. – 384 с.

14. Коммерческая логистика : учебное пособие для вузов / под ред. Н. А. Нагапетьянца. – Москва: Вузовский учебник Инфра-М, 2014. – 252 с.

15.     Корпоративная логистика в вопросах и ответах/ Под общей редакцией: Сергеев В.И. – М.: ИНФРА-М, 2013. – 393 с.

16.     Лукьянова З.А., Ромин С.Г. Управление запасами предприятия / З.А. Лукьянова, С.Г. Ромин // Науч. аспект. – 2013. - № 1. – С. 28-30. 

17. Мельникова Л. А., Денисенко И.С. Анализ финансовой устойчивости организации / Л. А. Мельникова, И. С. Денисенко //Современный бухучет. – 2014. - № 1. – С. 3-7. 

18. Миславская Н.А., Поленова С.Н. Бухгалтерский учет: Учебник / Н. А. Миславская, С. Н. Поленова. – М.: Издательско-торговая корпорация «Дашков и К°», 2014. - 592 с.

19. Мокеев В. В. Анализ финансовой устойчивости предприятия методом собственных состояний / В. В. Мокеев // Финансовая аналитика: проблемы и решения. – 2015. - № 31 (265). – С. 2-14.

20.     Павлович А. Эффективное управление закупками и запасами // Наука и инновации. – 2014. - № 9. – С. 12-16.

21. Проектирование логистических систем : учебник и практикум для бакалавриата и магистратуры / Ю. М. Неруш, С. А. Панов, А. Ю. Неруш. –М. : Издательство Юрайт, 2016. – 422 с. – Серия : Бакалавр и магистр. Академический курс.

22. Свидло А. И. Последовательность этапов управления затратами предприятия в нестабильных рыночных условиях / А. И. Свидло // Современные технологии управления. – 2015. - № 6 (54). – С. 55-60.

23. Солунина Т.И., Баленко О.В. Проблемы внедрения технологии бережливого производства на малых и средних предприятиях России // Вестник Самарского государственного технического университета, № 1(5).– Самара: СамГТУ, 2012.

24. Стратегический менеджмент: учебное пособие для студентов высших учебных заведений, обучающихся по направлению 080200 «Менеджмент» и специальности 080507 «Менеджмент организации»; рекомендован УМО по образованию в области менеджмента / Александрова А.В. [и др.]; под ред. Н.А. Казаковой. – М., 2012. – 320 с.

25.     Федорова Г.В. Учет и анализ банкротств.: Учебник для балавров / Г.В. Федорова. – М.: Омега-Л, 2013. – 295 c.

Червонных М. Основные определения и понятия теории управления запасами // Логистика. – 2014. - № 3. – С. 43-44.

26.     Чуева Л.Н., Чуев И.Н. Анализ финансово-хозяйственной деятельности. – М.: Дашков и Ко, 2013. – 348 с.

27.     Щепотьев А. В. Влияние чистых активов и собственных средств на финансовую устойчивость организации // Право и экономика. 2012. - № 9., С. 24-30.

28. Экономика организации (предприятия): Учебник для ср. спец. учебных заведений / Н.А. Сафронов. – 2-e изд., с изм. – М.: Магистр: НИЦ ИНФРА-М, 2014. – 256 с.

29. Экономические основы логистики: Учебник / Н.К. Моисеева; Под общ. ред. проф., д.э.н. В.И. Сергеева. – М.: НИЦ ИНФРА-М, 2014. – 528 с.

ПРИЛОЖЕНИЕ А

Баланс-1

Баланс-2


ПРИЛОЖЕНИЕ Б

2015-1

2015-2


2014-1


2014-2


Похожие работы на - Анализ и совершенствование системы управления запасами

 

Не нашли материал для своей работы?
Поможем написать уникальную работу
Без плагиата!
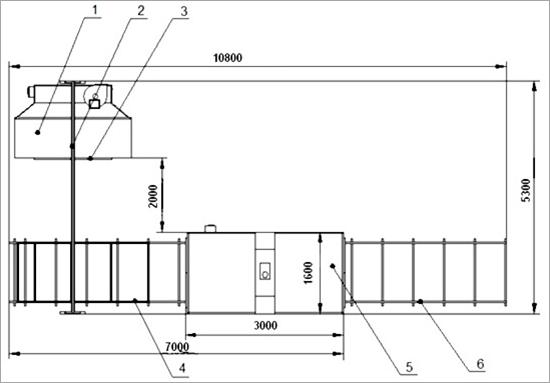
Без нейросетей!