Расчет свайного фундамента
МИНИСТЕРСТВО ОБРАЗОВАНИЯ И НАУКИ
РОССИЙСКОЙ ФЕДЕРАЦИИ
ФЕДЕРАЛЬНОЕ АГЕНТСТВО ПО ОБРАЗОВАНИЮ
МОСКОВСКИЙ ГОСУДАРСТВЕННЫЙ
СТРОИТЕЛЬНЫЙ УНИВЕРСИТЕТ
Кафедра механики грунтов, оснований и
фундаментов
Курсовой проект
Выполнила студентка Фролова Т.А.
курс 5 семестр ПГС (уск.) г. Смоленск
Преподаватель Гусева Е.С.
2015 г.
Содержание
1. Определение
размеров конструктивных элементов свайного фундамента и разработка его
конструкций для наружной стены
2. Расчет
конечной (стабилизированной) осадки свайного фундамента методом послойного
суммирования для наружной стены
. Определение
размеров конструктивных элементов свайного фундамента и разработка его
конструкций для внутренней стены
. Расчет
конечной (стабилизированной) осадки свайного фундамента методом послойного
суммирования для внутренней стены
. Подбор
сваебойного оборудования
. Проектирование
котлована
. Сравнение
вариантов и вывод
Список литературы
1. Определение размеров конструктивных элементов свайного фундамента и
разработка его конструкций для наружной стены
Расчетная
нагрузка
Расчетная нагрузка от сооружения N1 = 355,2 кН/м без учета собственного веса ростверка и стены
подвала Q и пригрузки грунтом и полом подвала
на обрезах фундамента G. Q и G определяются после назначения размеров ростверка. Полная
расчетная нагрузка вычисляется по формуле:
N1полн
= N1+1,2(Q+G), где
,2 - коэффициент перерасчета нормативных нагрузок в расчетные по I предельному состоянию.
Назначение
предварительной глубины заложения ростверка и решение надростверковой конструкции
Предварительно, из конструктивных соображений, назначаем высоту ростверка
hр = 0.5м. Тогда глубина заложения
ростверка будет равна:
dр =
2,7+0,2+0,5-0,8 = 2,6 м.
Инженерно-геологические условия и глубина промерзания при назначении dр в
данном случае не учитываются. Полученную при dр = 2,6 м отметку подошвы
ростверка и соответственно дна котлована 127,6 следует считать так же
предварительной. Она должна быть откорректирована после вычисления hр.
Надростверковая конструкция (стена подвала) может оставаться такой же, как в
варианте фундамента неглубокого заложения, поскольку каких-либо убедительных
аргументов для отказа от той конструкции нет. В соответствии с исходными
отметками стена подвала по высоте может быть образована из четырёх блоков ФБС24.4.6.
Выбор вида
свай, их длины и поперечного сечения
Опыт жилищного строительства указывает на то, что в условиях данного
примера целесообразно применять забивные сваи квадратного сечения 30х30 см.
Рисунок 1. Информация по расчетному сечению инженерно-геологического
разреза: к определению несущей способности сваи Fd, к определению давления на грунт под подошвой условного
фундамента
Для назначения длины сваи используется информация о грунтовых условиях
площадки строительства по расчетному вертикальному сечению
инженерно-геологического разреза, а также о нагрузке и глубине котлована.
Нижние концы свай погружают в грунт с достаточно хорошей несущей способностью
на глубину 1,5….2 м. Учитывая указанное, выбираем сваю С40.30, длиной 4 м и
сечением 30х30 см. Так как свая работает на центральное сжатие ее заделка в
ростверк достаточна на 10 см. Следовательно, рабочая длина сваи составляет 3,9
м (длина острия 0,25 м в длину сваи не входит). Нижний конец сваи при такой ее
длине будет погружен в песок мелкий, на глубину0,1м. до отметки 123,7.
Определение
несущей способности сваи по грунту Fd и расчетной нагрузки Рсв на одну сваю
Fd - определяется по формуле:
Fd = γc(γCRRA+u∑γcffihi , где
γc = 1 - коэффициент условий работы
сваи в грунте
R =
2319 кПа (на глубине 7,3м) - расчетное сопротивление грунта под нижним концом
сваи;
А = 0,32 = 0,09м2 - площадь поперечного сечения сваи;
u =
1,2м - наружный периметр поперечного сечения сваи;
γCR = γcf = 1 - коэффициенты условий работы
грунта соответственно под нижним концом и на боковой поверхности сваи;
hi -
толщина i-го слоя грунта основания,
соприкасающегося с боковой поверхностью сваи;
fi -
расчетное сопротивление i-го
слоя грунта основания, на боковой поверхности сваи.
Fd =
1·(1·2319·0,09 + 1,2·(1·45·1,1 + 1·9,2·2,7 + 1·46·0,1) = 303,4 кН.
Расчетная допустимая нагрузка на сваю определяется по формуле:
Рсв = Fd/γк, где:
γк = 1,4 (если Fd определяется расчетом) - коэффициент
надежности.
Рсв = 303,4/1,4 = 216,71 кН.
Определение
необходимого числа свай п в свайном фундаменте, размещение их в плане,
определение ширины bp и высоты hp ростверка.
Необходимое число свай n на
один погонный метр длины ленточного фундамента определяем по формуле:
d2 -
осредненная грузовая площадь вокруг сваи, с которой передается нагрузка от
собственного веса ростверка, надростверковой конструкции и грунтовой пригрузки
на ростверке.
d =
0,3м - сторона сваи;
h = 3,2 м -
высота ростверка и надростверковой конструкции, нагрузка от которых не вошла в
расчет при определении 
;
γср = 20 кН/м3 - средний удельный вес грунта и бетона над подошвой
ростверка.
Определение
расстояния а между осями свай:
Сваи в составе фундамента должны размещаться на расстоянии, равном (3… 6)
d между их осями. Очевидно, что наиболее экономичным был бы ростверк с
однорядным расположением свай при расстоянии а между их осями, равном 3d=0,9 м.
Но, так как полученное значение а=0,48 м < 0,9 м, приходится принимать
двухрядное расположение свай, с тем, чтобы расстояние между соседними сваями
одного и другого рядов составляло 3d=0,9 м, а по длине ростверка -0,48 м. При
этом расстояние СР между рядами свай определяется из треугольника abc
СР= √(0,92+0,482)=1,02
Расстояние от внешней грани вертикально нагруженной сваи до края
ростверка принимается равным 0,3d + 5 см при двух рядном (d - в см), но
не менее 10 см. Исходя из этого, получаем ширину ростверка
,3d + 5см = 0,3·30 + 5 =
14см.=1,02+2·0,15+2·0,14=1,60 м.
Высота ростверка ленточного фундамента должна определяться из условия
продавливания его сваей. Но т.к. свая полностью расположена под стеной подвала,
то продавливание ростверка сваей исключается. Поэтому из конструктивных
соображений и практики строительства оставляем hр = 0,5м.
Полученные размеры ростверка составляют: ширина 1,6 м, высота 0,5м.
Расчет
одиночной сваи в составе фундамента по первой группе предельных состояний (по
несущей способности грунта основания сваи)
Расчет предусматривает проверку выполнения условия I предельного
состояния:
F -
расчетная нагрузка передаваемая на сваи т.е. фактическая нагрузка:

-
расчетная несущая способность грунта основания одиночной сваи (несущая
способность сваи по грунту);

-
расчетная нагрузка, допускаемая на сваю.

-
коэффициент надежности.
Вычисление
фактической нагрузки F, передаваемой на сваю.
Вес
ростверка QP = 1,6·1·0,5·24=19,2 кН;
Вес
надростверковой конструкции Qнк (одного пог. м стены подвала) из 5 блоков
ФБС24.4.6: Qнк = (0,4·0,6·1·4) ·22 = 26,4 кН;
Общий
вес Q ростверка и надростверковой конструкции:
=
QP + Qнк = 19,2 + 26,4 = 45,6 кН
При
вычислении QP и Qнк приняты удельные веса:



где

- средний
удельный вес засыпки пазухи.
Пригрузка
внутреннего обреза ростверка бетонным полом подвала GП:П = 0,1·0,2·1·22 = 0,44
кН.
Общий
вес G пригрузки ростверка грунтом и полом подвала:
=
Gгр + GП = 3,79+0,44 = 4,22кН.
Расчетная
допускаемая нагрузка на сваю

Условие
F ≤ Pсв выполняется
Принятые
размеры свайного фундамента будут считаться окончательными при удовлетворении
условия расчета по второму предельному состоянию - по деформациям.
Расчет
основания по деформациям включает определение средних максимальных осадок s
наружной и внутренней стен методом послойного суммирования и эквивалентного
слоя, относительной разности осадок между ними Δs и сравнение их с предельными значениями, su и Δsu., т.е. s ≤
su и Δs ≤ Δsu.
Расчеты
осадок этими методами основаны на теории линейного деформирования грунта,
область применимости которой ограничивается расчетным сопротивлением грунта R,
определяемым по формуле (7) СНиП [6]. Для того, чтобы проверить правильность
использования упомянутых методов расчета осадок в условиях данного курсового
проекта, необходимо определить среднее давление рII под подошвой
условного фундамента и убедиться в том, что оно не превышает расчетного
сопротивления R грунта, на который опирается условный фундамент, т.е.
соблюдается условие:
рII≤R.
Определение
среднего вертикального давления р под подошвой условного фундамента и проверка
выполнения условия р <R
Для вычисления р необходимо определить площадь подошвы условного
ленточного фундамента Аусл и нагрузки, передающиеся на эту площадь от
собственного веса всех элементов, входящих в объем условного фундамента, а
также и от сооружения.
а) Площадь условного ленточного фундамента:

-
среднее значение угла внутреннего трения грунтов, залегающих в пределах рабочей
длины сваи 
.

= 1,02
б)
Объемы условного фундамента, всех входящих в него конструктивных элементов и
грунта:
условного
фундамента:
ростверка:

-
части стены подвала, расположенной ниже верха условного фундамента (ниже
отметки DL): 
части
пола подвала (справа от стены подвала): 
части
подвала, примыкающего к стене и ограниченного справа стороной условного
фундамента: 
грунта:

Объем
свай не вычитается из объема 
. При
подсчете веса грунта в условном фундаменте 
. не
учитывается увеличение его удельного веса за счет уплотнения при забивке свай.
Принимается,
что

в)
Нагрузки от собственного веса всех составных частей условного фундамента и от
сооружения:
ростверка
и всей надростверковой конструкции, то есть всей стены подвала, включая ее
часть, расположенную выше отметки DL:
=
QP + Qнк = 45,6 кН;
части
пола подвала 
;
свай
(1 свая с рабочей длиной lсв = 3,9 м, из которых 0,1 м - в водонасыщенном
грунте): 
грунта
в объеме условного фундамента: 
Среднее
давление р под подошвой условного фундамента:
Вычисление
расчетного сопротивления R по формуле (7) СНиП [6] для песка мелкого (IV
слой), залегающей под подошвой условного фундамента.
где
γс1 и γс2 -
коэффициенты условий работы грунтового основания и здания во взаимодействии с
основанием;

-
зависит от вида и разновидности грунта, лежащего под подошвой фундамента. Для
песка мелкой крупности, средней плотности 
;

= 1,0 -
для гибкой конструктивной схемы здания;- коэффициент, принимаемый равным 1, так
как прочностные характеристики грунта 
и 
определены
по результатам непосредственных испытаний грунтов;

-
коэффициенты, принимаемые по табл. 4 СНиП [6] в зависимости от расчетного
значения угла внутреннего трения грунта 
,
находящегося непосредственно под проектируемым фундаментом, т.е. "рабочего
слоя". При 

, 
, 
;

-
коэффициент, принимается равным единице при ширине фундамента 
<10 м;


приведенная
глубина заложения подошвы фундамента в подвале;

-
расчетное значение удельного веса материала конструкции пола подвала,

м3 -
удельный вес грунта, залегающего ниже подошвы фундамента,

, -
расчетное значение удельного сцепления грунта, залегающего непосредственно под
подошвой фундамента;

-
глубина подвала - расстояние от уровня планировки до пола подвала.
Условие
р ≤ R выполняется: 291,82 < 1216,15. Расчет осадки методами,
основанными на теории линейного деформирования грунта, правомерен, поэтому
далее производится расчет осадки методом послойного суммирования.
2. Расчет конечной (стабилизированной) осадки свайного фундамента методом
послойного суммирования для наружной стены
Запроектированный ленточный свайный фундамент под наружную стену
многоэтажного кирпичного здания имеет ширину условного фундамента bусл = 1,94
м. Вертикальное сжимающее напряжение под подошвой условного фундамента р =
291,82 кПа, что меньше расчетного сопротивления ([6], формула (7)) песка мелкой
крупности, средней плотности R = 1216,51 кПа, который залегает под его
подошвой. Выполнение условия р ≤ R позволяет в расчетах напряженно-деформированного
состояния грунтов основания пользоваться линейной моделью грунтов и, в
частности, считать осадку методом послойного суммирования.
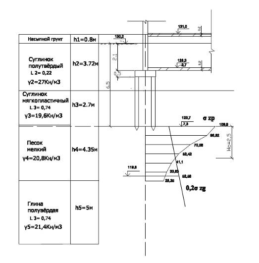
Инженерно-геологические условия на расчетной вертикали разреза, в которых
запроектирован фундамент, его конструктивная схема, эпюры природного σzg
и дополнительного
давления σzp показаны на рисунке 2.
Вычисление
ординат эпюры природного давления 
· на границе II и III слоев

кПа.
·
на границе III и IV слоев

кПа.

кПа.
Рисунок 2. Расчетная схема для определения осадки свайного фундамента
наружной стены методом послойного суммирования
На подошве условного фундамента

кПа
·
в IV слое на отм. 120.0

кПа
·
в IV слое на отм. 119.8

кПа
Ординаты
вспомогательной эпюры 0,2 σzg, необходимые
для нахождения нижней границы сжимаемой толщи на ее пересечении с эпюрой σzp, достаточно вычислить только на глубинах ниже подошвы
условного фундамента.
На
отм. 123.7 - 181.8·0,2 = 36.36 кПа;
На
отм. 120,0 - 258,76 ·0,2 = 51,75 кПа;
На
отм. 119,8 - 262,92 ·0,2 = 52,58 кПа.
Вычисление
ординат эпюры дополнительного давления σzp,i
Сначала вычисляется верхняя ордината эпюры σzp,о непосредственно под подошвой
фундамента при z = 0:

кПа
Затем
вычисляются другие ординаты по формуле 
для
различных глубин 
откладываемых
от подошвы фундамента. Коэффициенты 
берутся
в зависимости от отношения длины фундамента стены l к ширине фундамента b, то есть

(принимается
по последней колонке таблицы 11 Приложения, где 
-
фундамент ленточный и отношения ξ=2z/b (первая колонка)). Вычисления удобно вести в табличной форме. Для
отыскания нижней границы В.С. сжимаемой толщи Hc в этой же таблице приводятся
значения 0,2
При этом
толщины элементарных слоев hi в эпюре σzp соответственно получаются 0,72 м, что соответствует рекомендациям
принимать величину hi ≤ 0,4b = 0,4·1,94=0,78 м.
|
|
|
|
 , кПа 0,2 ,
кПаСлои основания
|
|
|
|
|
0 0,8 1,6 2,4
|
0 0,77 1,55 2,32
|
1,000 0,881 0,642 0,477
|
109,9 96,82 70,56 52,42
|
0,72 0,72 0,72 0,72
|
36,36
|
Песок мелкой крупностью
Е=20102 кПа
|
|
3,2 4,0 4,8 5,6 6,0 6,4
|
3,1 3,88 4,65 5,43 5,23 6,2
|
0,374 0,306 0,258 0,223
0,208 0,196
|
41,10 33,63 28,35 24,51
22,86
|
0,72 0,72 0,72 0,72 0,72
|
51,75 52,58
|
|
Значения модулей деформации Е грунтов, входящих в сжимаемую толщу Нс,
вычислены в первой части курсового проекта.
Вычисление
осадки.
Для вычисления осадки необходимо значения модулей деформации Е грунтов,
входящих в толщу Нс, в данном случае в неё входит один слой грунт, модуль
деформации которого Е=20102 кПа:

.
Полученная
осадка оказалась значительно меньше Su=10см - предельной величины осадки для
многоэтажных бескаркасных зданий с несущими стенами из крупных панелей.
3.
Определение размеров конструктивных элементов свайного фундамента и разработка
его конструкций для внутренней стены
Расчетная
нагрузка
Расчетная нагрузка от сооружения N1 = 493,2 кН/м без учета собственного веса ростверка и стены
подвала Q и пригрузки грунтом и полом подвала
на обрезах фундамента G. Q и G определяются после назначения размеров ростверка. Полная
расчетная нагрузка вычисляется по формуле:
N1полн
= N1+1,2(Q+G), где
,2 - коэффициент перерасчета нормативных нагрузок в расчетные по I предельному состоянию.
Назначение
предварительной глубины заложения ростверка и решение надростверковой
конструкции
Предварительно, из конструктивных соображений, назначаем высоту ростверка
hр 0.5м. Тогда глубина заложения
ростверка будет равна: dр =
2,7+0,2+0,5-0,8 = 2,6 м.
Так же как и стена подвала под наружную стены отметками стена подвала под
внутреннюю по высоте может быть образована из четырёх блоков ФБС24.4.6.
Рисунок 3. Информация по расчетному сечению инженерно-геологического
разреза: к определению несущей способности сваи Fd, к определению давления на грунт под подошвой условного
фундамента
Выбор вида
свай, их длины и поперечного сечения
Учитывая расчет свайного фундамента под наружную стену, выбирается свая
С40.35, длиной 4 м и сечением 35х35 см. Следовательно, рабочая длина сваи
составляет 3,9 м (длина острия 0,25 м в длину сваи не входит). Нижний конец
сваи при такой ее длине будет погружен в мелкой крупности, насыщенный водой на
глубину 0,1 м до отметки 123,7.
Определение
несущей способности сваи по грунту Fd и расчетной нагрузки Рсв на одну сваю
Fd - определяется по формуле
Fd = γc(γCRRA+u∑γcffihi) , где
γc = 1 - коэффициент условий работы
сваи в грунте
R =
2319 кПа- расчетное сопротивление грунта под нижним концом сваи;
А = 0,352 = 0,123м2 - площадь поперечного сечения сваи;
u =
1,4 м - наружный периметр поперечного сечения сваи;
γCR = γcf = 1 - коэффициенты условий работы
грунта соответственно под нижним концом и на боковой поверхности сваи;
hi -
толщина i-го слоя грунта основания,
соприкасающегося с боковой поверхностью сваи;
fi -
расчетное сопротивление i-го
слоя грунта основания, на боковой поверхности сваи.
Fd =
1·(1·2319·0,123 + 1,4(1·45·1,1 + 1·9,2·12,7+ 1·46·0,1) = 395,6 кН.
Расчетная допустимая нагрузка на сваю определяется по формуле:
Рсв = Fd/γк,
где: γк = 1,4 (если Fd
определяется расчетом) - коэффициент надежности.
Рсв =395,6/1,4 = 282,68 кН.
Определение
необходимого числа свай п в свайном фундаменте, размещение их в плане,
определение ширины bp и высоты hp ростверка.
Необходимое число свай n на
один погонный метр длины ленточного фундамента определяем по формуле:
d2 -
осредненная грузовая площадь вокруг сваи, с которой передается нагрузка от
собственного веса ростверка, надростверковой конструкции и грунтовой пригрузки
на ростверке.
d = 0,35м
- сторона сваи;
h = 3,2 м -
высота ростверка и надростверковой конструкции, нагрузка от которых не вошла в
расчет при определении 
;
γср = 20 кН/м3 - средний удельный вес грунта и бетона над подошвой
ростверка.
Определение
расстояния а между осями свай:
Сваи в составе фундамента должны размещаться на расстоянии, равном (3… 6)
d между их осями. Очевидно, что наиболее экономичным был бы ростверк с
однорядным расположением свай при расстоянии а между их осями, равном 3d=0,9 м.
Но, так как полученное значение а=0,45 м < 0,9 м, приходится принимать
двухрядное расположение свай, с тем, чтобы расстояние между соседними сваями
одного и другого рядов составляло 3d=0,9 м, а по длине ростверка 0,45 м. При
этом расстояние СР между рядами свай определяется из треугольника abc
Расстояние от внешней грани вертикально нагруженной сваи до края
ростверка принимается равным 0,2d + 5 см при двух рядном (d - в см), но
не менее 10 см. Исходя из этого, получаем ширину ростверка
,2d + 5см = 0,2·35 + 5 =
12см.=1,01+2·0,15+2*0,12=1,55 м.
Ширина стены подвала составляет 40 см поэтому окончательно принимается
ширина ростверка1,6м, высота 0,5 м.
Высота ростверка ленточного фундамента должна определяться из условия
продавливания его сваей. Но т.к. свая полностью расположена под стеной подвала,
то продавливание ростверка сваей исключается. Поэтому из конструктивных
соображений и практики строительства оставляем hр = 0,5м.
Полученные размеры ростверка составляют: ширина 1,6 м, высота 0,5 м.
Расчет
одиночной сваи в составе фундамента по первой группе предельных состояний (по
несущей способности грунта основания сваи)
Расчет предусматривает проверку выполнения условия I предельного
состояния:
F -
расчетная нагрузка передаваемая на сваи т.е. фактическая нагрузка:

-
расчетная несущая способность грунта основания одиночной сваи (несущая
способность сваи по грунту);

- расчетная
нагрузка, допускаемая на сваю.

-
коэффициент надежности.
Вычисление
фактической нагрузки F, передаваемой на сваю.
Вес
ростверка QP = 1,6·1·0,5·24 = 19,2кН;
Вес
надростверковой конструкции Qнк (одного пог. м стены подвала) из 5 блоков
ФБС24.4.6: Qнк = (0,4·0,6·1·4) ·22 = 26,4 кН;
Общий
вес Q ростверка и надростверковой конструкции:
=
QP + Qнк = 19,2 + 26,4 = 45,6 кН;
При
вычислении QP и Qнк приняты удельные веса:

Пригрузка
внутреннего обреза ростверка бетонным полом подвала GП:П = 0,1·0,2·1·22 = 0,44
кН.
Общий
вес G пригрузки ростверка грунтом и полом подвала:= GП = 0,44 = 0,44 кН.
Расчетная
допускаемая нагрузка на сваю

Условие
F < Pсв выполняется.
Принятые
размеры свайного фундамента будут считаться окончательными при удовлетворении
условия расчета по второму предельному состоянию - по деформациям.
Определение
среднего вертикального давления р под подошвой условного фундамента и проверка
выполнения условия р <R
Для вычисления р необходимо определить площадь подошвы условного
ленточного фундамента Аусл и нагрузки, передающиеся на эту площадь от
собственного веса всех элементов, входящих в объем условного фундамента, а
также и от сооружения.
а) Площадь условного ленточного фундамента:

-
среднее значение угла внутреннего трения грунтов, залегающих в пределах рабочей
длины сваи 
.

= 1,01
б)
Объемы условного фундамента, всех входящих в него конструктивных элементов и
грунта:
условного
фундамента:
ростверка:

части
стены подвала, расположенной ниже верха условного фундамента (ниже отметки пола
подвала): 
части
пола подвала (справа и слева от стены подвала): 
грунта:

Объем
свай не вычитается из объема 
. При
подсчете веса грунта в условном фундаменте 
. не
учитывается увеличение его удельного веса за счет уплотнения при забивке свай.
Принимается,
чт

в)
Нагрузки от собственного веса всех составных частей условного фундамента и от
сооружения:
ростверка
и всей надростверковой конструкции, то есть всей стены подвала, включая ее
часть, расположенную выше отметки DL:
Q
= QP + Qнк = 45,6 кН;
части
пола подвала 
;
свай
(1,03 сваи с рабочей длиной lсв = 3,9 м, из которых 0,1 м - в водонасыщенном
грунте):

грунта
в объеме условного фундамента: 
Среднее
давление р под подошвой условного фундамента:
Вычисление
расчетного сопротивления R по формуле (7) СНиП [6] для песка мелкой крупности,
(IV слой), залегающего под подошвой условного
фундамента.
где

;

= 1,0
;=1


, 
, 
;

=1


;

м3,

.
Условие
р ≤ R выполняется: 315,74 < 967,66. Расчет осадки методами,
основанными на теории линейного деформирования грунта, правомерен, поэтому
далее производится расчет осадки методом послойного суммирования.
. Расчет конечной
(стабилизированной) осадки свайного фундамента методом послойного суммирования
для внутренней стены
Запроектированный ленточный свайный фундамент под наружную стену
многоэтажного здания имеет ширину условного фундамента bусл = 1,98 м.
Вертикальное сжимающее напряжение под подошвой условного фундамента р = 315,74
кПа, что меньше расчетного сопротивления песка мелкой крупности R = 967,66 кПа,
который залегает под его подошвой. Выполнение условия р ≤ R позволяет в
расчетах напряженно-деформированного состояния грунтов основания пользоваться
линейной моделью грунтов и, в частности, считать осадку методом послойного
суммирования.
Инженерно-геологические условия на расчетной вертикали разреза, в которых
запроектирован фундамент, его конструктивная схема, эпюры природного σzg
и дополнительного
давления σzp
Вычисление
ординат эпюры природного давления 
· на границе II и III слоев

кПа
·
на границе III и IV слоев

кПа.
·
на границе III и IV слоев с учетом давления толщи воды 
.

кПа.
На
подошве условного фундамента

кПа.
·
в IV слое на отм. 120.0

кПа;
·
в IV слое на отм. 119.8

кПа
Ординаты
вспомогательной эпюры 0,2 σzg, необходимые
для нахождения нижней границы сжимаемой толщи на ее пересечении с эпюрой σzp, достаточно вычислить только на глубинах ниже подошвы
условного фундамента.
На
отм. 123.7 - 127,52·0,2 = 25,50 кПа;
На
отм. 120,0 - 206,6 ·0,2 = 41,32 кПа;
На
отм. 119,8 - 210,72 ·0,2 = 42,14 кПа.
Вычисление
ординат эпюры дополнительного давления σzp,i
Сначала вычисляется верхняя ордината эпюры σzp,о непосредственно под подошвой
фундамента при z = 0:

кПа
|
Затем вычисляются другие
ординаты по формуле  для
различных глубин  откладываемых
от подошвы фундамента. Коэффициенты  берутся
в зависимости от отношения длины фундамента стены l к ширине фундамента b, то
есть  (принимается
по последней колонке таблицы 11 Приложения, где  -
фундамент ленточный и отношения ξ=2z/b (первая колонка)). Вычисления удобно вести в табличной форме.
Для отыскания нижней границы В.С. сжимаемой толщи Hc в этой же таблице
приводятся значения 0,2 При
этом толщины элементарных слоев hi в эпюре σzp соответственно получаются 0,72 , 0,4b =
0,4·1,98=0,79м.
|
|
|
 , кПа 0,2 ,
кПаСлои основания
|
|
|
|
|
0 0,8 1,6 2,4
|
0 0,79 1,58 2,38
|
1,000 0,881 0,642 0,477
|
186,14 163,99 119,50 88,79
|
0,72 0,72 0,72 0,72
|
25,50
|
Песок мелкой крупностью
Е=20102 кПа
|
|
3,2 4,0 4,8 5,6 6,0 6,4
|
3,17 3,96 4,75 5,54 5,94
6,34
|
0,374 0,306 0,258 0,223
0,208 0,196
|
69,62 56,96 48,02 41,51
36,48
|
0,72 0,72 0,72 0,72 0,72
|
41,32 42,14
|
|

Рисунок 4. Расчетная схема для определения осадки свайного фундамента
методом послойного суммирования
Вычисление
осадки. Для вычисления осадки необходимо значения модулей деформации Е грунтов,
входящих в толщу Нс, в данном случае в неё входит один слой грунт, модуль
деформации которого Е=20102 кПа:

.
Полученная
осадка оказалась значительно меньше Su=10см - предельной величины осадки для
многоэтажных бескаркасных зданий с несущими стенами из крупных панелей.
. Подбор
сваебойного оборудования
Под внутреннюю стену разработана конструкция ленточного свайного
фундамента с использованием свай С40.35 длиной 4 м, сечением 0,3х0,3 м. Несущая
способность сваи по грунту составляет Fd = 745,6 кH. Расчетная нагрузка Рсв =
745,6/1,4 = 532,5 кН.
В настоящее время наиболее совершенными конструкциями молотов считаются
дизель - молоты штанговые и трубчатые. По технико-экономическим показателям
трубчатые имеют некоторые преимущества перед штанговыми. Поэтому выбирается
трубчатый дизель-молот.
Для предварительного подбора молота определяется минимальная энергия
удара молота Э исходя из расчетной нагрузки допускаемой на сваю Рсв = 532,5 кН,
по формуле:
Э = 1,75·a·Рсв,
где а - коэффициент, равный 25Дж/кН.
Э = 1,75·25·532,5 = 23297Дж = 23,3 кДж
Затем по таблице технических характеристик трубчатых дизель-молотов
подбирается молот такой марки, энергия удара которого (Эт) близка к полученному
значению Э, но была больше его, т.е. Эт>Э, такому условию удовлетворяет -
молот марки С-996, энергия удара которого Эт = 27 кДж > 23,3кДж.
Далее производится проверка пригодности молота С-996 по условию:
(Gм+Gс)/Эр ≥ Кm
где Gм - полный вес молота (36,5кН)с - вес сваи с наголовником и
подбабком (принимается вес наголовника 100кгс=1кН, подбабок не используется),
вес железобетонной сваи 0,352·4·24 =11,76кН; Gс=11,76+1=12,76 кН
Эр - расчетная энергия удара, определяемая для трубчатых дизель-молотов
по формуле: Эр = 0,9G·Н (G - вес ударной части молота -12,5кН);
Н - фактическая высота падения молота, принимая на стадии окончания
забивки - 2,8м). Эр = 0,9·12,5·2,8 = 31,5 кДж.
Кm = 6 кДж - коэффициент применимости молота [5] табл.8.33.
(36,5+12,76)/31,5 = 1,56<6. Условие выполнено. Молот пригоден.
Определение расчетного отказа.
Расчетный (проектный) отказ sp определяется по формуле:
где

-
коэффициент, принимаемый для железобетонных свай, забиваемых с наголовником,
равным 1500кН/м2;
А
- площадь поперечного сечения сваи 0,35·0,35=0,1225м2;

-
коэффициент восстановления удара при забивке железобетонных свай с применением
наголовника и деревянного вкладыша в нем 
;= 745,6
кH - несущая способность сваи по грунту, определенная по формуле (8) СНиП [9].
Эр
= 31,5 кДж; Gм =36,5 кН; Gс = 12,76 кН.
что
окончательно подтверждает правильность выбора молота. Если расчетный отказ
будет меньше 0,002 м, то нужно применять молот с большей энергией удара.
Заключение.
Если при забивке сваи С40.35 молотом С-996 замеренный фактический отказ sa ,
будет равен или меньше расчетного отказа sd, то это будет означать, что несущая
способность сваи Fd = 745,6 кН, исходя из которой был определен расчетный
отказ, обеспечивается, и проект свайного фундамента не нуждается в
корректировке. Такой вывод можно делать лишь в том случае, когда динамические
испытания проведены в необходимом количестве и результаты их обработаны с
учетом требований соответствующих ГОСТ и СНиП [9] раздел 5.
6.
Проектирование котлована
Проектируем котлован с учетом расстояния 1 метр от крайней выступающей
части фундамента и крутизной откосов для суглинка полутвёрдого 1:0.5 при
глубине заложения до 3 метров. Водопонижение устраивать не требуется, так как
уровень грунтовых вод находится на отметке на 1,8 метра ниже дна котлована.
. Сравнение
вариантов и вывод
При сравнении вариантов объем железобетонных конструкций меньше при
устройстве фундамента мелкого заложения, чем при устройстве свайных
фундаментов. Поэтому рекомендуется принять вариант фундамент мелкого заложения
для строительства семиэтажного здания в городе Екатеринбург.
свайный фундамент
котлован
Список
литературы
1. Ухов С.Б., Семёнов В.В., Знаменский В.В., Тер-Мартиросян
З.Г., Чернышев С.Н. Механика грунтов, основания и фундаменты. М., Издательство
«Высшая школа» 2002 г.
. Ухов С.Б., Семёнов В.В., Знаменский В.В., Тер-Мартиросян З.Г.,
Чернышев С.Н. Механика грунтов, основания и фундаменты. М., Издательство АВС,
1994 г.
. Веселов В.А. Проектирование оснований и фундаментов. Основы
теории и примеры расчёта. М., Стройиздат, 1990 г.
. Проектирование фундаментов зданий и подземных сооружений.
Учебное пособие под редакцией Далматова Б.И. Издательство АВС. Москва -
Санкт-Петербург. 1999 г.
. Основания, фундаменты и подземные сооружения. Справочник
проектировщика. М., Стройиздат, 1985 г.
. СНиП 2.02.01-83*. Основания зданий и сооружений. М.,
Госстрой России, 1995 г.
. СП 50-101-2004. Проектирование и устройство оснований и
фундаментов зданий и сооружений. М., ГУП ЦПП, 2004 г.
. Пособие по проектированию оснований зданий и сооружений.
М., Стройиздат, 1986 г.
. СНиП 2.02.03-85. Свайные фундаменты. М., Стройиздат, 1985
г.
. СП 50-102-2003. Проектирование и устройство свайных
фундаментов. М., ГУП ЦПП, 2004 г.