Расчет свайного фундамента
Федеральное
агентство по образованию
Государственное
образовательное учреждение высшего профессионального образования
Ульяновский
государственный технический университет
Курсовой
проект
по
предмету: "Основания и фундаменты"
Разработал: студент
группы ПГСз-31
Атясова А.Е.
Руководитель
проекта: преподаватель
Пьянков С. А.
Ульяновск
2012
Содержание
. Оценка
инженерно-геологических условий строительной площадки
.1 Описание слоев
.2 Физико-механические свойства
грунтов
1.3 Заключение
по строительной площадке
. Расчет фундамента мелкого
заложения
2.1 Выбор
глубины заложения фундамента
2.2 Определение
площади подошвы фундамента
2.3 Определение
расчетного сопротивления грунта основания
2.4 Проверочный
расчет
2.5 Определение
осадки фундамента мелкого заложения
. Расчет свайного фундамента
3.1 Определение
вида свай
3.2
Определение несущей способности свай
3.3
Определение количества свай
3.4 Конструкция
свайного ростверка
.5 Проверка свайного фундамента по
фактической нагрузке
.6 Расчет свайного фундамента и его
основания по деформациям
3.7 Определение
осадки свайного фундамента
. Расчет свайного фундамента
(буронабивные сваи)
.1 Определение вида свай
.2 Определение несущей способности
свай
.3 Определение количества свай
.4 Конструкция свайного ростверка
.5 Проверка свайного фундамента по
фактической нагрузке
.6 Расчет свайного фундамента и его
основания по деформациям
4.7 Определение
осадки свайного фундамента
. Технико-экономическое
сравнение
. Расчет заданных вариантов
фундаментов
6.1 Первый
вариант
6.2 Второй
вариант
6.3 Третий
вариант
6.4 Четвертый
вариант
.5
Пятый вариант
1. Оценка инженерно-геологических условий
1.1 Описание слоев
Географическое положение площадки г. Ульяновск.
Строительная площадка состоит из трех видов
грунтов:
слой - насыпной грунт - супесь со строительным
мусором. Мощность слоя от 5,4 м до 0,85 м;
слой - супесь легкая,пылеватая с растительными
остатками. Мощность слоя 5,0 - 1,80 м.
слой - суглинок тяжелый с включением гравия и
гальки.
Мощность слоя бурением не установлена.
Положение уровня грунтовых вод 4,0 м от уровня
поверхности земли.
.2 Физико-механические свойства грунтов
. Удельный вес грунта в сухом состоянииγd,
кН/м3.
,
где γII-
удельный вес грунта, кН/м3,
W- влажность природная,
принимаемая в долях единицы.
Суглинок: γd
= 18,2 / (1 + 0,31) = 13,89 кН/м3
Супесь: γd
= 19,2 / (1 + 0,22) = 15,74 кН/м3
. Коэффициент пористости e.
,
где γs
- удельный вес частиц грунта,кН/м3.
Суглинок: e = (26,7 - 13,89) / 13,89 = 0,92;
Супесь: e = (26,5 - 15,74) / 15,74 = 0,68.
. Степень влажности Sr.
где γw
- удельный вес воды, γw=
10кН/м3
Суглинок: Sr=
(0,31∙26,7) / (0,92 ∙10) = 0,90;
Супесь: Sr=
(0,22∙26,5) / (0,68 ∙10) = 0,86.
. Удельный вес грунта с учетом взвешивающего
действия воды γsb,кН/м3.
,
Суглинок: γsb=
(26,7 - 10) / (1 + 0,92) = 8,70 кН/м3;
Супесь: γsb=
(26,5 - 10) / (1 + 0,68) = 9,82 кН/м3.
. Число пластичности Ip,
%.
где WT-
влажность на границе текучести, %;
WР -
влажность на границе раскатывания, %.
Суглинок: Ip
= 39 -26 = 13;
Супесь:Ip
= 24 -18 = 6.
. Показатель текучести IL
Суглинок: IL=
(31 - 26) / (39 - 26) = 0,38;
Супесь:IL=
(22 - 18) / (24 - 18) = 0,67;
. Расчетное сопротивление R0,
кПа.
Определяем расчётное сопротивлениекПагрунтов по
приложению 3 СНиП 2.02.01-83:
Суглинок:R0
= 178,37 кПа
Супесь: R0
= 188,00 кПа
.3 Заключение по строительной площадке
Площадка пригодна для строительства. В качестве
основания можно использовать супесь легкую, пылеватую и суглинок тяжелый с
включениями гравия и гальки.
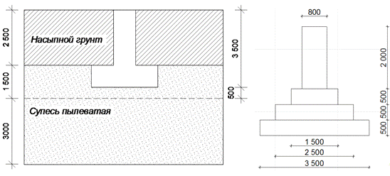
2. Расчет фундамента мелкого заложения
.1 Определение глубины заложения фундамента
а) Влияние климата:
d1
- учет глубины промерзания грунта, вычисляется с использованием формулы вСНиП
2.02.01-83.
d1
= df= kh·dfn
где dfn
- нормативная глубина промерзания, для Ульяновскаdfn
= 1,6 м
kh
- коэффициент, учитывающий влияние теплового режима сооружения; принимается по
табл.1 (kh=
0,5 при t = 15°)
d1
= df = 0,5·1,6 = 0,8 м
б) Инженерно-геологические особенности:
d2
- учет геологии и гидрогеологии.
Используем табл.2 СНиП 2.02.01-83. Глубина
заложения фундамента зависит от глубины расположения уровня подземных вод dω.
При dω
= 4,0 м >df
+ 2 = 0,8+2=2,8м, следовательно, d2должна
составлять не менееdf.
в) Конструктивные особенности:
Глубина заложения фундамента должна быть ниже
отметки пола подвала или уровня подземных коммуникаций на 0,3-0,5м. Подвал
находятся на отметке -3,000 м.
d3
= 3,0+0,5 = 3,5 м
Из величин d1,
d2,
d3
выбираем максимальную: d
= d3
= 3,5 м
.2 Определение площади подошвы фундамента
где N0II
- вертикальная нагрузка,
R0
- расчётное сопротивление грунта для предварительного назначения размеров,
γСР
- средний удельный вес фундамента и грунта на его уступах,
d - глубина
заложения фундамента.
А= 1260 / (188 - 19 ∙ 3,5) = 10,37 м2
центрально нагруженные фундаменты (М=0, F=0);
b=l=
=
=3,22
≈ 3,5 м
2.3 Определение расчетного сопротивления грунта
основания
где γс1
и γс2
- коэффициенты условий работы, принимаемые по табл.5.2
СП 50-101-2004:
γс1=
1,0 и γс2
= 1,0;
k - коэффициент,
принимаемый равным 1;
Мγ,Мq,
Мс- коэффициенты, принимаемые по табл. 5.3:
Мγ
= 0,72, Мq
=3,87, Мс = 6,45;
kz
- коэффициент, принимаемый равным 1, так как ширина подошвы фундамента b
= 3,5 м < 10 м ;
b - ширина подошвы
фундамента;
γII
- осреднённое расчётное значение удельного веса грунтов, залегающих ниже
подошвы фундамента:γsb=9,82кН/м3-для
супеси;
γII=
(19,2∙0,5+9,82∙1,25) / 1,75 = 12,5 кН/м3
γ'II-
то же, залегающих выше подошвы:
γ'II=
(19,2∙1,0 + 16,0∙2,5) / 3,5 = 16,91кН/м3
сII
- расчётное значение удельного сцепления грунта, залегающего непосредственно
под подошвой фундамента: сII
= 18 кПа;
db
- глубина подвала: db=
2,0 м;
d1-глубина
заложения наружных и внутренних фундаментов от пола подвала;
d1 =
;
d1
= 0,3+25∙0,2/16,91 = 0,6м .
R=(1,0∙1,0/1)∙(0,72∙3,5∙1∙12,5+3,87∙0,6∙16,91+(3,87-1)∙2∙16,91+6,45∙18)
=283,93кПа
Исходя из значения полученного расчетного
сопротивления, назначаем размеры подошвы фундамента.
А0= 1260 / (283,93- 19 ∙ 3,5) =
5,79 м2
Принимаем b=
l =2,2 , b/l=
1.(размеры округляем до десятых)
.4 Проверочный расчет
Проверка по давлению: P
≤
R
,
(при наличии подвала Gгр
пренебрегаем)
Gф=
(V1
+ V2)
∙γб=
=( 3∙0,8∙0,8+ 2,2∙2,2∙0,5)
∙ 25 = 108,5кН
P=282,75кН/м2≤R=283,93
кН/м2,
(283,93-282,75)/283,93 ∙100%=0,42% -
недогрузка приемлема.
.5 Определение осадки фундамента мелкого
заложения методом послойного суммирования
Осадка основания S
определяется методом послойного суммирования по формуле:
, где
β - коэффициент, равный
0,8, учитывающий боковое расширение грунта;
σzpi
- среднее значение дополнительного вертикального нормального напряжения в i-ом
слое грунта, равное полусумме указанных напряжений на верхней zi-1
и нижней zi
границах слоя по вертикали, проходящей через центр подошвы фундамента.
hi
и Ei - соответственно
толщина и модуль деформации i-того
слоя грунта;
n - число слоёв, на
которые разбита сжимаемая толща основания;
Разбиваем сжимаемую толщу основания на части по
0,4∙b = 0.48 м.
P - расчётное
давление по подошве фундамента от нагрузок, учитываемых при расчёте по
деформациям, P = 282,75кПа;
σzg0
- природное напряжение на уровне подошвы фундамента: σzg0
= γ’∙d,
где γ’ - удельный
вес грунта выше подошвы фундамента (γ’ = 19,2 кН/м3),d-
глубина заложения фундамента от уровня планировки до поверхности природного
рельефа (d = 3,5 м).
σzg0
= 19,2 ∙ 1+16∙2,5 = 59,2 кН/м3
Затем определяем дополнительное вертикальное
заложение от внешней нагрузки на уровне подошвы:σzp
= α ∙
P,
α -
коэффициент, принимаемый по табл. 5.6 СП 50-101-2004 в зависимости от формы
подошвы фундамента, соотношения сторон
η=l/b=1
и относительной глубины, равной:ζ = 2z/b
.
Нормы рекомендуют для обычных грунтов принимать
сжимаемую толщину hc
до глубины, на которой напряжение σzp
не превышает 20% природного напряжения σzp
≤
0,2 σzg
Вертикальное напряжение от собственного веса
грунта z от подошвы
фундамента определяется по формуле 5.21 СП 50-101-2004 :
,
hi
и γi
- толщина и удельный вес i-того
слоя грунта.Для грунтов, лежащих ниже уровня воды, используется γsb=9,82
кН/м3-для супеси;8,7-для суглинка
Точка 0: z
= 0
h = 0
η=1, ζ = 2∙0 / 2,2=0 →
α=1
σzp
= 1∙ 282,75= 282,75кН/м3
σzg
= 19,2 ∙ 1+16∙2,5 = 59,2кН/м3
σzp
≤
0,2 σzg
,75>11,84 - условие не выполнено.
Точка 1: z
= 0,5
h = 0,5
η=1, ζ = 2∙0,5 / 2,2= 0,45
α=0,940
σzp
= 0,940 ∙282,75= 265,79кН/м3
σzg
= 59,2+ 0,5 ∙ 19,2 = 68,8 кН/м3
σzγ
=59,2∙ 0,940 = 55,65кН/м3
,79>13,76- условие не выполнено.
Точка 2: z
= 0,98
h = 0,48
η=1, ζ = 2∙0,98 / 2,2=0,89
α= 0,756
σzp
= 0,756 ∙282,75= 213,76кН/м3
σzg
= 68,8 + 0,48 ∙ 9,82 = 73,51 кН/м3
σzγ
=59,2 ∙ 0,756= 44,76кН/м3
,76>14,7 - условие не выполнено.
Точка 3: z
= 1,46
h = 0,48
η=1, ζ = 2∙1,46 / 2,2= 1,33
α= 0,555
σzp
= 0,555 ∙282,75= 156,93кН/м3
σzg
= 73,51 + 0,48 ∙ 9,82 = 78,22кН/м3
σzγ
=59,2 ∙ 0,555= 32,86кН/м3
,93>15,64 - условие не выполнено.
Точка 4: z
= 1,94
h = 0,48
η=1, ζ = 2∙1,94 / 2,2= 1,76
α= 0,404
σzp
= 0,404 ∙282,75= 114,23кН/м3
σzg
= 78,22+ 0,48 ∙ 9.82 = 82,93кН/м3
σzγ
=59,2 ∙ 0,404= 23,92кН/м3
,23>16,57 - условие не выполнено.
Точка 5: z
= 2,42
h = 0,48
η=1, ζ = 2∙2,42 / 2,2=
2,2
α=0,297
σzp
= 0,297 ∙282,75= 83,98 кН/м3
σzg
= 82,93 + 0,48 ∙ 9,82 = 87,64 кН/м3
σzγ
=59,2 ∙ 0,297= 17,58кН/м3
,98>17,53 - условие не выполнено.
Точка 6: z
= 2,9
h = 0,48
η=1, ζ = 2∙2,9 / 2,2=2,64
α=0,223
σzp
= 0,223 ∙282,75= 63,05 кН/м3
σzg
= 87,64 + 0,48 ∙ 9,82 = 92,35 кН/м3
σzγ
=59,2 ∙ 0,223 = 13,2кН/м3
,05>18,47 - условие не выполнено.
Точка 7: z
= 3,38
h = 0,48
η=1, ζ = 2∙3,38 / 2,2=3,07
α=0,173
σzp
= 0,173 ∙282,75= 48,92кН/м3
σzg
= 92,35 + 0,48 ∙ 9,82 = 97,06 кН/м3
σzγ
=59,2 ∙ 0,173 = 10,24кН/м3
,92>19,41 - условие не выполнено.
Точка 8: z
= 3,5
h = 0,12
η=1, ζ = 2∙3,5 / 2,2=3,18
α=0,162
σzp
= 0,162 ∙282,75= 45,81 кН/м3
σzg
= 97,06 + 0,12 ∙ 9,82 = 98,24 кН/м3
σzγ=59,2
∙ 0,162 = 9,59кН/м3
,81>19,65 - условие не выполнено.
Точка 9: z
= 3,98
h = 0,48
η=1, ζ = 2∙3,98/ 2,2=3,62
α=0,13
σzp
= 0,13 ∙282,75= 36,76 кН/м3
σzg
= 98,24 + 0,48 ∙ 8,7 = 102,42 кН/м3
σzγ
=59,2 ∙ 0,13 = 7,7кН/м3
,76>20,48 - условие не выполнено.
Точка 10: z
= 4,46
h = 0,48
η=1, ζ = 2∙4,46 / 2,2=4,05
α=0,106
σzp
= 0,106 ∙282,75= 29,97 кН/м3
σzg
= 102,42 + 0,48 ∙ 8,7 = 106,6 кН/м3
σzγ
=59,2 ∙ 0,106 = 6,45кН/м3
,97≥21,32 - условие не выполнено
Точка 11: z
= 4,94
h = 0,48
η=1, ζ = 2∙4,94 / 2,2=4,49
α=0,088
σzp
= 0,088 ∙282,75= 24,88 кН/м3
σzg
= 106,6 + 0,48 ∙ 8,7 = 110,78 кН/м3
σzγ
=59,2 ∙ 0,088 = 5,21кН/м3
,88≥22,16 - условие не выполнено
Точка 12: z
= 5,42
h = 0,48
η=1, ζ = 2∙5,42 / 2,2=4,93
α=0,074
σzp
= 0,074 ∙282,75= 20,92 кН/м3
σzg
= 110,78 + 0,48 ∙ 8,7 = 114,96 кН/м3
σzγ
=59,2 ∙ 0,074 = 4,38кН/м3
,92≤22,99 - условие выполнено
Осадка фундамента:
Согласно приложениюЕ СП 50-101-2004 максимальная
осадка для данного типа здания равна 10 см, 3,3см <10 см, условие выполнено.
3. Расчёт свайного фундамента
.1 Определение вида свай
Назначаю сваи С60-30-8 длиной 6 м, сечением 300×300
мм,
изготовленные из бетона и арматуры В15 4Ø12.
.2 Определение несущей способности свай
Несущую способность висячей забивной сваи
определяем по формуле (7.8) СП 50-102-2003
, где:
γс
- коэффициент условий работы сваи в грунте, принимаемый равным 1;
R - расчётное
сопротивление грунта под нижним концом сваи, кПа;
А - площадь опирания на грунт сваи, м2,
принимаемая по площади поперечного сечения сваи брутто;А = 0,30 ×
0,30 = 0,09 (м2).
u - наружный
периметр поперечного сечения сваи, м;u
= 4 × 0,30 = 1,2м.
fi
- расчётное сопротивление i-того
слоя грунта основания на боковой поверхности сваи, кПа;
hi
- толщина i-того слоя грунта,
соприкасающегося с боковой поверхностью сваи, hi
= 2м (толщину грунта, прорезаемую сваей, разбиваем на слои толщиной по 2 м);
γсR,
γсf
- коэффициенты условий работы грунта соответственно под нижним концом и на
боковой поверхности сваи, учитывающие влияние способа погружения сваи на
расчётные сопротивления грунта. Для свай, погруженных забивкой механическими
паровоздушными или дизельными молотами коэффициенты равны 1.
Глубина погружения: 3,5+6 = 9,5 м
Для такой глубины погружения принимаем расчётное
сопротивление грунта под нижним концом сваи равным R
= 2586,667кПа (по табл. 7.1 СП 50-102-2003). По таблице 7.3 определяем
расчётное сопротивление боковой поверхности сваи fi
и среднюю глубину расположения слоя zi:
hi
, м
zi
, м
fi
, кПа
z1
= 4,5
f1 =
30,2
,5
z2
= 6,25
f2 =
33,45
,5
z3
= 7,75
f3 =
34,95
,0
z4=
9
f4=35,8
кН
Несущая способность по материалу
- коэффициент, учитывающий продольный изгиб
сваи, равный 1,0;
Rb
- расчётное сопротивление бетона сжатию, Rb=8,6МПа;
Аb
- площадь бетона Аb=А-
Аs=
0,09 - 0,00045 = 0,0896м2;
Rsc
- расчётное сопротивление арматуры сжатию, Rsc=225МПа;
Аs
- площадь арматуры Аs=4∙3,14/4∙0,0122
= 0,00045 м2;
Из двух расчетов несущей способности выбираем
меньший
=336,7кН.
( k=1,4-коэффициент
надежности, принимаемый в соответствии с п. 7.1.11 СП 50-102-2003)
.3 Определение количества свай
Сваи по несущей способности грунтов основания
следует рассчитывать, исходя из условия:
, где:
N - расчётная
нагрузка, передаваемая на сваю (продольное усилие, возникающее в ней от
расчётных нагрузок, действующих на фундамент при наиболее невыгодном их
сочетании);
Fd
- расчётная несущая способность грунта основания одиночной сваи;
γk
- коэффициент надёжности, принимаемый 1,4 (несущая способность сваи определена
расчётом),
Найдём фактическую нагрузку на сваю:
Определим количество свай в ростверке по
формуле:
, где:
γk
- коэффициент надёжности, равный 1,4;
N0I
- расчётная нагрузка, передаваемая на фундамент:
N0I
= N0II
× 1,2 = 1260 × 1,2 = 1512 кН;
d - глубина
заложения подошвы ростверка: d
= 3,5 м;
A1
- площадь ростверка под 1 сваю, принимаемая равной 0,9 - 1,2 м2
γср-
средний удельный вес ростверка и грунта на его уступах:γср
= 20 кН/м3;
Принимаем количество свай в ростверке, равным5
шт.
3.4 Конструкция свайного ростверка
Для центрально нагруженного фундамента сваи
должны располагаться равномерно.
Минимальное расстояние между осями висячих свай
должно быть a≥3d,
где
d - диаметр круглого
или сторона квадратного сечения сваи.
а= 3∙0,3= 0,9 м;
Максимальное расстояние а=6d=6∙0,3=1,8
м
Ориентировочно расстояние от края ростверка до
внешней стороны вертикально нагруженной сваи при свободной заделке ее в
ростверк принимается при двух- и трехрядном размещении свай:
,3d+5
см=0,3∙30+5=14 см (принимаем 15 см)
Принимаем ростверк размерами 2,1 х 2,1 м и толщиной
0,5 м.
3.5 Проверка свайного фундамента по фактической
нагрузке
Найдём вес ростверка:
Объём ростверка равен:
Vр =
0,5∙2,1∙2,1 + 3,0∙1,0∙1,0 = 5,205(м3);
Gр
= Vр
× γ = 5,205 ×
25 = 130,13кН.
При наличии подвала весом грунта пренебрежем
Рассчитаем фактическую нагрузку, приходящуюся на
одну сваю:

Условие выполнено (недогрузка 2,46 %,что
допустимо).
.6 Расчет свайного фундамента и его основания по
деформациям
Расчет ведется для условного фундамента. Границы
условного фундамента определяются следующим образом:
Сверху - плоскостью планировки грунта АВ;
Снизу - плоскостью, проходящей через нижний
конец сваи;
С боков - вертикальными плоскостями, отстоящими
от наружных граней крайних рядов свай на расстоянии a
,
где h-длина
сваи h=6м
Вычислим осреднённый угол внутреннего трения
основания, прорезаемого сваей:
Найдём ширину условного фундамента:
bу
=1,8+0,564∙2=2,928 м.
lу=2,928
м.
Площадь подошвы условного фундамента:
Ау = bу
× lу
= 2,9282 = 8,573 м2
Производим проверку по давлению
Среднее давление Р по подошве условного
фундамента от центральной нагрузки не должно превышать расчетное сопротивление R
Определим вес грунта в объёме ABCD
(NgII):
Среднее давление под подошвой условного
фундамента:
Рассчитаем R.
Приведённая глубина заложения подошвы условного
фундамента:
d1 =
;
d1
= 6,3+25∙0,2/12,46 = 6,7м .
dв
= 2 м; γc1
= 1,2; γc2
= 1,0;
Для φII
= 18˚:
Mγ
= 0,43; Mq
= 2,73; Mс
= 5,31; сII
= 20;
P = 276,91 кН/м2<R
= 465,81кН/м2
Условие выполнено.
3.7 Определение осадки свайного фундамента
Осадка основания S
с использованием расчётной схемы в виде линейно-деформируемого полупространства
определяется методом послойного суммирования по формуле:
, где
β - безразмерный
коэффициент, равный 0,8;
σzpi
- среднее значение дополнительного вертикального нормального напряжения в i-ом
слое грунта, равное полусумме указанных напряжений на верхней zi-1
и нижней zi
границах слоя по вертикали, проходящей через центр подошвы фундамента.
hi
и Ei - соответственно
толщина и модуль деформации i-того
слоя грунта;
n - число слоёв, на
которые разбита сжимаемая толща основания;
Разбиваем сжимаемую толщу основания на части по
0,4∙b =0,4∙2,928=1.2
м.
P - расчётное
давление по подошве фундамента от нагрузок, учитываемых при расчёте по
деформациям, P = 276,91 кПа;
σzg0
- природное напряжение на уровне подошвы фундамента:
σzg0
= γ ∙dn
где γ - удельный
вес грунта в пределах глубины заложения фундамента от природного рельефа (γ
= 12,46
кН/м3), dn
= глубина заложения фундамента от уровня планировки до поверхности природного
рельефа (dn
= 9,5 м).
σzg0
= 12,46 ∙ 9,5 = 118,37 кН/м3
Затем определяем дополнительное вертикальное
заложение от внешней нагрузки на уровне подошвы:
σzp
= α ∙
P, где
α -
коэффициент, принимаемый по табл.5.6 СП 50-101-2004 в зависимости от формы
подошвы фундамента, соотношения сторонη=l/b
= 2,928/2,928=1,0и относительной глубины, равной: ζ
= 2z/b
.
Нормы рекомендуют для обычных грунтов принимать
сжимаемую толщину hc
до глубины, на которой напряжение σzp
не превышает 20% природного напряжения
σzp
≤
0,2 σzg
Вертикальное напряжение от собственного веса
грунта z от подошвы
фундамента определяется по формуле 5.21 СП 50-101-2004 :
, где
γ’ - удельный вес
грунта, расположенного выше подошвы фундамента;
hi
и γi
- толщина и удельный вес i-того
слоя грунта.
Точка 0: z
= 0
h = 0
η=1,0,
ζ = 2∙0 / 2,928=0
α=1
σzp
= 1∙276,91= 276,91кН/м3
σzg
= 12,46 ∙ 9,5= 118,37 кН/м3
σzγ
=118,37 ∙ 1 = 118,37кН/м3
σzp
≤
0,2 σzg
,91>23,67 - условие не выполнено.
Точка 1: z
= 1,2
h = 1,2
η=1,0,
ζ = 2∙1,2 / 2,928=0,82
α=0,790
σzp
= 0,79∙276,91= 218,76кН/м3
σzg
= 118,37+1,2∙8,7= 128,81 кН/м3
σzγ
=118,37 ∙ 0,79 = 93,51кН/м3
,76>25,76 - условие не выполнено.
Точка 2: z
= 2,4
h = 1,2
η=1,0,
ζ = 2∙2,4 / 2,928=1,64
α=0,438
σzp
= 0,438∙276,91= 121,29кН/м3
σzg
= 128,81+1,2∙8,7= 139,25 кН/м3
σzγ
=118,37 ∙ 0,438 = 51,85кН/м3
,29>27,85 - условие не выполнено.
Точка 3: z
= 3,6
h = 1,2
η=1,0,
ζ = 2∙3,6 / 2,928=2,46
α=0,249
σzp
= 0,249∙276,91= 68,95кН/м3
σzg
= 139,25+1,2∙8,7= 149,69 кН/м3
σzγ
=118,37 ∙ 0,249 = 29,47кН/м3
,95>29,94 - условие не выполнено.
Точка 4: z
= 4,8
h = 1,2
η=1,0,
ζ = 2∙4,8 / 2,928=3,28
α=0,154
σzp
= 0,154∙276,91= 42,64кН/м3
σzg
= 149,69+1,2∙8,7= 160,13 кН/м3
σzγ
=118,37 ∙ 0,154 = 18,23кН/м3
,64>32,03 - условие не выполнено.
Точка 5: z
= 6,0
h = 1,2
η=1,0,
ζ = 2∙6,0 / 2,928=4,1
α=0,104
σzp
= 0,104∙276,91= 28,8кН/м3
σzg
= 160,13+1,2∙8,7= 170,57 кН/м3
σzγ
=118,37 ∙ 0,104 = 12,31кН/м3
,8≤34,11- условие выполнено.
Осадка фундамента:
Согласно прил.Е СП 50-101-2004 максимальная
осадка для данного типа зданий равна 10 см, 3,69см <10 см, условие
выполнено.
4. Расчёт свайного фундамента
.1 Определение вида свай
Назначаю сваи БНС (буронабивные) длиной 6 м,
сечением 800× 800 мм,
изготовленные из бетона и арматуры В15 6Ø18-
АIII.
.2 Определение несущей способности свай
Несущую способность висячей набивной сваи
определяем по формуле (7.8) СП 50-102-2003
, где:
γс
- коэффициент условий работы сваи в грунте, принимаемый равным 1;
R - расчётное
сопротивление грунта под нижним концом сваи, кПа;
А - площадь опирания на грунт сваи, м2,
принимаемая по площади поперечного сечения сваи брутто;А = 0,80
× 0,80= 0,64 (м2).
u - наружный
периметр поперечного сечения сваи, м;u
= 4×0,8
= 3,2 м.
fi
- расчётное сопротивление i-того
слоя грунта основания на боковой поверхности сваи, кПа;
hi
- толщина i-того слоя грунта,
соприкасающегося с боковой поверхностью сваи, (толщину грунта, прорезаемую
сваей, разбиваем на слои не более 2 м);
γсR,
γсf
- коэффициенты условий работы грунта соответственно под нижним концом и на
боковой поверхности сваи, учитывающие влияние способа погружения сваи на
расчётные сопротивления грунта. Для буронабивных свай, устраиваемые при
отсутствии воды в скважине с помощью вибросердечника в суглинках γсf=0,8.
γсR=1
Глубина погружения: 3,5+6 = 9,5 м
Принимаем расчётное сопротивление грунта под
нижним концом сваи равным R
= 796,667кПа (по табл. 7.2.7 СП 50-102-2003 ).
По таблице 7.2.7 определяем расчётное
сопротивление боковой поверхности сваи fi
и среднюю глубину расположения слоя zi:
|
hi , м
|
zi , м
|
fi , кПа
|
|
2
|
z1
= 4,5
|
f1 =
30,2
|
|
1,5
|
z2
= 6,25
|
f2 =
33,45
|
|
1,5
|
z3
= 7,75
|
f3 =
34,95
|
|
1,0
|
z4=
9
|
f4=35,8
|
кН
Несущая способность по материалу
коэффициент, учитывающий продольный изгиб сваи,
равный 1,0(для свай до 8 м);
Rb
- расчётное сопротивление бетона сжатию, Rb=8,6МПа;
Аb
- площадь бетона Аb=А-
Аs=
0,64 - 0,00153 = 0,638м2;
Rsc
- расчётное сопротивление арматуры сжатию, Rsc=225МПа;
Аs
- площадь арматуры Аs=6∙3,14/4∙0,0182
= 0,00153 м2;
Из двух расчетов несущей способности выбираем
меньший
=727,71кН.
( k=1,4-коэффициент
надежности, принимаемый в соответствии с п. 7.1.11 СП 50-102-2003)
.3 Определение количества свай
,
где: N
- расчётная нагрузка, передаваемая на сваю ;
Определим количество свай в ростверке по
формуле:
, где:
γk
- коэффициент надёжности, равный 1,4;
N0I
- расчётная нагрузка, передаваемая на фундамент:
N0I
= N0II
× 1,2 = 1260 × 1,2 = 1512 кН;
d - глубина
заложения подошвы ростверка: d
= 3,5 м;
A1
- площадь ростверка под 1 сваю, принимаемая равной 0,9 - 1,2 м2
γср-
средний удельный вес ростверка и грунта на его уступах:γср
= 20 кН/м3;
Принимаем количество свай в ростверке, равным 3
шт.
.4 Конструкция свайного ростверка
Минимальное расстояние между осями висячих
свай:а= 3∙0,8= 2,4 м;
Максимальное расстояние: а=6d=6∙0,8=4,8
м
Расстояние от края ростверка:0,3d+5
см=0,3∙80+5=29 см (принимаем 30 см)
Принимаем ростверк размерами 4,0 х 4,0 м и
толщиной 0,5 м.
4.5 Проверка свайного фундамента по фактической
нагрузке
Vр =
1,0∙2,0∙1,0+ 0,5∙3,0∙3,0+0,5∙2,0∙2,0+0,5∙4,0∙4,0
= 16,5 (м3);
Gр
= Vр
× γ = 16,5×
25 = 412,5кН.
При наличии подвала весом грунта пренебрежем
Фактическую нагрузка, приходящаяся на одну сваю:
Nф
= 641,5 кН <N = 727,71
кН,
условие выполнено (недогрузка 11,85 %)
.6 Расчет свайного фундамента и его основания по
деформациям
Расчет ведется для условного фундамента.
,
где h-длина
сваи h=6м
Осреднённый угол внутреннего трения основания,
прорезаемого сваей:
Найдём ширину и длину условного фундамента:
bу
=3,4+0,564∙2=4,528 м.
lу=4,528
м.
Площадь подошвы условного фундамента:
Ау = bу
× lу
= 4,5282 = 20,503 м2
Производим проверку по давлению
Среднее давление Р по подошве условного
фундамента от центральной нагрузки не должно превышать расчетное сопротивление R
Определим вес грунта в объёме ABCD
(NgII):
Среднее давление под подошвой условного
фундамента:
Рассчитаем R.
Приведённая глубина заложения подошвы условного
фундамента:
d1 =
;
d1
= 6,3+25∙0,2/12,46 = 6,7м .
dв
= 2 м; γc1
= 1,2; γc2
= 1,0;
Для φII
= 18˚:
Mγ
= 0,43; Mq
= 2,73; Mс
= 5,31; сII
= 20;
P = 196,96 кН/м2<R
= 464,91 кН/м2
Условие выполнено.
4.7 Определение осадки свайного фундамента
Осадка основания:
, где
β - безразмерный
коэффициент, равный 0,8;
σzpi
- среднее значение дополнительного вертикального нормального напряжения в i-ом
слое грунта;
hi
и Ei - соответственно
толщина и модуль деформации i-того
слоя грунта;
n - число слоёв, на
которые разбита сжимаемая толща основания;
Части по 0,4∙b
=0,4∙2,728=1,1 м.
P - расчётное
давление по подошве фундамента от нагрузокP
= 196,96 кПаб
σzg0
- природное напряжение на уровне подошвы фундамента:
строительный фундамент свайный
ростверк
σzg0
= γ ∙dn
где γ - удельный
вес грунта в пределах глубины заложения фундамента от природного рельефа (γ
= 12,46 кН/м3),
dn = глубина
заложения фундамента от уровня планировки до поверхности природного рельефа (dn
= 9,5 м).
σzg0
= 12,46 ∙ 9,5 = 118,37 кН/м3
σzp
= α ∙
P, где
α -
коэффициент, принимаемый в зависимости от η=l/b
= 4,528/4,528=1,0и относительной глубины, равной: ζ
= 2z/b
.
Проверяем выполнение условия σzp
≤
0,2 σzg
, где
γ’ - удельный вес
грунта, расположенного выше подошвы фундамента;
hi
и γi
- толщина и удельный вес i-того
слоя грунта.
Точка 0: z
= 0
h = 0
η=1,0, ζ = 2∙0 / 4,528=0
α=1
σzp
= 1∙196,96= 196,96кН/м3
σzg
= 12,46 ∙ 9,5= 118,37 кН/м3
σzγ
=118,37 ∙ 1 = 118,37кН/м3
σzp
≤
0,2 σzg
,96>23,67 - условие не выполнено.
Точка 1: z
= 1,1
h = 1,1
η=1,0, ζ = 2∙1,1
/ 4,528=0,486
α=0,926
σzp
= 0,926∙196,96= 182,38кН/м3
σzg
= 118,37+1,1∙8,7= 127,94 кН/м3
σzγ
=118,37 ∙ 0,926 = 109,61кН/м3
,38>25,59 - условие не выполнено.
Точка 2: z
= 2,2
h = 1,1
η=1,0, ζ = 2∙2,2
/ 4,528=0,972
α=0,717
σzp
= 0,717∙196,96= 141,22кН/м3
σzg
= 127,94+1,1∙8,7= 137,51 кН/м3
σzγ
=118,37 ∙ 0,717 = 84,87кН/м3
,22>27,5 - условие не выполнено.
Точка 3: z
= 3,3
h = 1,1
η=1,0, ζ = 2∙3,3
/ 4,528=1,46
α=0,504
σzp
= 0,504∙196,96= 99,27кН/м3
σzg
= 137,51+1,1∙8,7= 147,08 кН/м3
σzγ
=118,37 ∙ 0,504 = 59,66кН/м3
,27>29,42 - условие не выполнено.
Точка 4: z
= 4,4
h = 1,1
η=1,0, ζ = 2∙4,4
/ 4,528=1,94
α=0,353
σzp
= 0,353∙196,96= 69,53кН/м3
σzg
= 147,08+1,1∙8,7= 156,65 кН/м3
σzγ
=118,37 ∙ 0,353 = 41,78кН/м3
,53>31,33 - условие не выполнено.
Точка 5: z
= 5,5
h = 1,1
η=1,0, ζ = 2∙5,5
/ 4,528=2,43
α=0,253
σzp
= 0,253∙196,96= 49,83кН/м3
σzg
= 156,65+1,1∙8,7= 166,22 кН/м3
σzγ
=118,37 ∙ 0,253 = 29,95кН/м3
,83>33,24- условиене выполнено.
Точка 6: z
= 6,6
h = 1,1
η=1,0, ζ = 2∙6,6 / 4,528=2,92
α=0,189
σzp
= 0,189∙196,96= 37,23кН/м3
σzg
= 166,22+1,1∙8,7= 175,79 кН/м3
σzγ
=118,37 ∙ 0,189 = 22,37кН/м3
,23>35,16- условиене выполнено
Точка 7: z
= 7,7
h = 1,1
η=1,0, ζ = 2∙7,7 / 4,528=3,4
α=0,146
σzp
= 0,146∙196,96= 28,76кН/м3
σzg
= 175,79+1,1∙8,7= 185,36 кН/м3
σzγ
=118,37 ∙ 0,146 = 17,28кН/м3
,76<37,07- условие выполнено
Осадка фундамента:
Согласно приложениюЕ СП 50-101-2004 максимальная
осадка для данного типа зданий равна 10 см, 2,7см <10 см, условие выполнено.
5. Технико-экономическое сравнение
Фундамент мелкого заложения:
) Земляные работы
Разработка грунта:
Котлован размером 3,0×3,0
глубиной 3,5 м. V=31,5 м3
Стоимость работ: при глубине более 2 м на каждые
0,5 м стоимость земляных работ повышается на 10%. 3,60+0,36+0,36+0,36=4,68 руб.
при ширине котлована более 1 м, 4,68+7% =
4,68+0,2772 =4,96 руб/м3
Итого: 31,5∙4,96 = 156,24 руб.
) Крепление котлована досками:
S=3∙3,5∙4=
42,0 м2
Стоимость работ: 0,98руб/м2
Итого: 42,0∙0,98 = 41,16 руб.
) Устройство монолитного фундамента: V=3,92
м3
Стоимость работ: 31,10 руб/м3
Итого: 3,92∙31,10 = 121,91 руб.
) Бетонный подстилающий слой:
V=2∙2∙0,1
= 0,4 м3
Стоимость работ: 34,73 руб/м3
Итого: 0,4∙34,73 = 13,89 руб.
Свайный фундамент:
) Земляные работы
Разработка грунта:
Котлован 3,1×3,1 м
глубиной 3,5 м. V=33,64 м3
Стоимость работ: 3,60+0,36+0,36+0,36=4,68 руб.
при ширине котлована более 1 м, 4,68+7% =
4,68+0,2772 =4,96 руб/м3
Итого: 33,64∙4,96 = 166,85 руб.
)Крепление котлована досками:
=3,1∙3,5∙4 = 43,4 м2
Стоимость работ: 0,98 руб/м2
Итого: 43,4∙0,98 = 42,53 руб.
)Устройство свайного фундамента:
Vсвай=5∙0,3∙0,3∙6
= 2,7 м3
Стоимость работ: 88,4 руб/м3
,7∙88,4 = 238,68руб
Vростверка
=5,205 м3
Стоимость работ: 31,1 руб/м3
,205∙31,1 = 161,88руб
Итого: 238,68 + 161,88 = 400,76 руб.
) Бетонный подстилающий слой:
V=2,1∙2,1∙0,1
= 0,441 м3
Стоимость работ: 34,73 руб/м3
Итого: 0,441∙34,73 = 15,32 руб.
Свайный фундамент буронабивной:
) Земляные работы
Разработка грунта:
Стоимость работ: 3,60+0,36+0,36+0,36=4,68 руб.
при ширине котлована более 1 м, 4,68+7% =
4,68+0,2772 =4,96 руб/м3
Итого: 126∙4,96 = 624,96 руб.
) Крепление котлована досками:
=6∙3,5∙4 = 84м2
Стоимость работ: 0,98 руб/м2
Итого: 84∙0,98 = 82,32руб.
)Устройство свайного фундамента:
Vсвай=3∙0,8∙0,8∙6
=11,52м3
Стоимость работ: 185,0руб/м3
,52∙185,0 = 2131,2руб
Vростверка
=16,5м3
Стоимость работ: 31,1руб/м3
,5∙31,1 =513,15руб
Итого: 2131,2 + 513,15 = 2644,35руб.
)Бетонный подстилающий слой:
V=4∙4∙0,1
= 1,6 м3
Стоимость работ: 34,73 руб/м3
Итого: 1,6∙34,73 = 55,57 руб.
|
Наименование
работ
|
Фундамент
мелкого заложения
|
Свайный
фундамент
|
Свайный
фундамент буронабивной
|
|
Разработка
грунта
|
156,24
|
166,85
|
624,96
|
|
Крепление
котлована досками
|
41,16
|
42,53
|
82,32
|
|
Устройство
монолитного фундамента
|
121,91
|
-
|
-
|
|
Устройство
свайного фундамента
|
-
|
400,76
|
2644,35
|
|
Бетонный
подстилающий слой
|
13,89
|
15,32
|
55,57
|
|
Итого:
|
333,2
|
625,46
|
3407,2
|
Учитывая приведенные расценки на устройство
фундаментов, наиболее выгодным по экономическим соображениям является фундамент
мелкого заложения.
6. Расчет заданных вариантов фундаментов
.1 Первый вариант
N0II
= 270 кН, М0II
= 0 кН∙м, F0II
= 0
l =1,0b
= 2,2 м (ленточный фундамент)
,
где γс1
и γс2
- коэффициенты условий работы γс1
= 1,0 и γс2
= 1,0;
k - коэффициент,
принимаемый равным 1;
Мγ,
Мq,
Мс- коэффициенты, принимаемые по табл. 5.3 СП 50-101-2004:
Мγ
= 0,72, Мq
= 3,87, Мс = 6,45;
kz
- коэффициент, принимаемый равным 1, так как ширина подошвы фундамента b
= 2,2 м <10 м ;
b - ширина подошвы
фундамента;
γII
- осреднённое расчётное значение удельного веса грунтов, залегающих ниже
подошвы фундамента:γII=
(19,2∙0,5+9,82∙0,6) / 1,1 = 14,08 кН/м3
γ'II
- то же, залегающих выше подошвы:γ'II=
16,91 кН/м3
сII
- расчётное значение удельного сцепления грунта, залегающего непосредственно
под подошвой фундамента: сII
= 18 кПа;
db
- глубина подвала: db
= 2,0 м;
d1
-глубина заложения наружных и внутренних фундаментов от пола подвала: d1=0,6
м
Принимаем размеры подошвы фундамента в
соответствии с типовыми:
l×b
= 1,0х1,6 м.
Тогда окончательно,
Определяем давление на грунт:
Gф=
(V1
+ V2)
∙γб=
=( 3,2∙0,6∙1+ 1,6∙0,3∙1)
∙ 25 = 60кН
Gгр=
(V-Vф)
∙ γзас=
=(1,6∙3,5∙1-2,4)÷2)∙18=
28,8 кН
P<R
,25 кПа <268,65 кПа (недогрузка15,8%)
Условие выполняется.
.2 Второй вариант
N0II
= 200 кН, М0II
= 0 кН∙м, F0II
= 0
l =1,0b
= 1,65 м (ленточный фундамент)
,
где γс1
и γс2
- коэффициенты условий работы γс1
= 1,0 и γс2
= 1,0;
k - коэффициент,
принимаемый равным 1;
Мγ,
Мq,
Мс- коэффициенты, принимаемые по табл. 5.3 СП 50-101-2004:
Мγ
= 0,72, Мq
= 3,87, Мс = 6,45;
kz
- коэффициент, принимаемый равным 1, так как ширина подошвы фундамента b
= 1,65 м <10 м ;
b - ширина подошвы
фундамента;
γII
- осреднённое расчётное значение удельного веса грунтов, залегающих ниже
подошвы фундамента:γII=
(19,2∙0,5+9,82∙0,33) / 0,83 = 15,47 кН/м3
γ'II
- то же, залегающих выше подошвы:γ'II=
16,91 кН/м3
сII
- расчётное значение удельного сцепления грунта, залегающего непосредственно
под подошвой фундамента: сII
= 18 кПа;
db
- глубина подвала: db
= 2,0 м;
d1
-глубина заложения наружных и внутренних фундаментов от пола подвала: d1=0,6
м
Принимаем размер подошвы фундамента: l×b
= 1,0 х 1,0 м.
Тогда окончательно
Определяем давление на грунт:
Gф=
(V1
+ V2)
∙γб=
=( 3,2∙0,5∙1+ 1,0∙0,3∙1,0)
∙ 25 = 47,5 кН
Gгр=
(V-Vф)
∙ γзас=
=(1∙3,5∙1-1,9)÷2∙18=14,4
кН
P<R
,9 кПа <263,57 кПа (недогрузка 0,05 %)
Условие выполняется.
.3 Третий вариант
N0II
= 170 кН, М0II
= 0 кН∙м, F0II
= 0
l =1,0b
= 1,4 м (ленточный фундамент)
,
где γс1
и γс2
- коэффициенты условий работы γс1
= 1,0 и γс2
= 1,0;
k - коэффициент,
принимаемый равным 1;
Мγ,
Мq,
Мс- коэффициенты, принимаемые по табл. 5.3 СП 50-101-2004:
Мγ
= 0,72, Мq
= 3,87, Мс = 6,45;
kz
- коэффициент, принимаемый равным 1, так как ширина подошвы фундамента b
= 1,4 м <10 м ;
b - ширина подошвы
фундамента;
γII
- осреднённое расчётное значение удельного веса грунтов, залегающих ниже
подошвы фундамента:
γII=
(19,2∙0,5+9,82∙0,2) / 0,7 = 16,52 кН/м3
γ'II
- то же, залегающих выше подошвы:γ'II=
16,91 кН/м3
сII
- расчётное значение удельного сцепления грунта, залегающего непосредственно
под подошвой фундамента: сII
= 18 кПа;
db
- глубина подвала: db
= 2,0 м;
d1
-глубина заложения наружных и внутренних фундаментов от пола подвала: d1=0,6
м
Принимаем размер подошвы фундамента в
соответствии с типовыми:
l×b
= 1,0 х 1,0 м.
Тогда окончательно
Определяем давление на грунт:
Gф=
(V1
+ V2)
∙γб=
=( 3,2∙1∙0,5+ 1,0∙0,3∙1)
∙ 25 = 47,5 кН
Gгр=
(V-Vф)
∙ γзас=
=(1∙3,5∙1-1,9)÷2∙18=14,4
кН
P<R
,9 кПа <264,32 кПа (недогрузка 11,7 %)
Условие выполняется.
.4 Четвертый вариант
N0II
= 950 кН, М0II
= 270 кН∙м, F0II
= 22 кН
а =4,0 b
= 2,0 м
,
где γс1
и γс2
- коэффициенты условий работы γс1
= 1,0 и γс2
= 1,0;
k - коэффициент,
принимаемый равным 1;
Мγ,
Мq,
Мс- коэффициенты, принимаемые по табл. 5.3 СП 50-101-2004:
Мγ
= 0,72, Мq
= 3,87, Мс = 6,45;
kz
- коэффициент, принимаемый равным 1, так как ширина подошвы фундамента b
= 2 м <10 м ;
b - ширина подошвы
фундамента;
γII
- осреднённое расчётное значение удельного веса грунтов, залегающих ниже
подошвы фундамента:
γII=
(19,2∙0,5+9,82∙0,5) / 1 = 14,51 кН/м3
γ'II
-
то же, залегающих выше подошвы:γ'II=
16,91 кН/м3
сII
- расчётное значение удельного сцепления грунта, залегающего непосредственно
под подошвой фундамента: сII
= 18 кПа;
db
- глубина подвала: db
= 0 м;
d1
-глубина заложения фундаментов: d1=3,5
м
Принимаем размер подошвы фундамента: а×b
= 2,8 х 1,7 м.
Тогда окончательно
Определяем давление на грунт:
Gф=
(V1
+ V2)
∙γб=(2,5∙1∙0,6+1,8∙0,5∙1,1+2,8∙0,5∙1,7)
∙ 25 = 103,0 кН
Gгр=
(V - Vф)∙γзас.=
(2,8∙1,7∙3,5-4,12)∙18= 225,72 кН
P<R
,64 кПа <362,91 кПа
Расчет на внецентренное сжатие:
NII=950+103+225,72=1278,72
кН
= 22∙3,5=77
кН∙м
MII=270+77=347кН∙м
Pmin=
113,21 кН > 0; Pmax=424,07кН
Pmax<
1,2∙R 424,07> 1,2∙362,91
= 435,49 кН ( 2,62%, условие выполнено )
Данный фундамент удовлетворяет требованиям по
давлению.
.5 Пятый вариант
N0II
= 700 кН, М0II
= 260 кН∙м, F0II
= 20 кН
а =3,0 b
= 2,0 м
,
где γс1
и γс2
- коэффициенты условий работы γс1
= 1,0 и γс2
= 1,0;
k - коэффициент,
принимаемый равным 1;
Мγ,
Мq,
Мс- коэффициенты, принимаемые по табл. 5.3 СП 50-101-2004:
Мγ
= 0,72, Мq
= 3,87, Мс = 6,45;
kz
- коэффициент, принимаемый равным 1, так как ширина подошвы фундамента b
= 2 м <10 м ;
b - ширина подошвы
фундамента;
γII
- осреднённое расчётное значение удельного веса грунтов, залегающих ниже
подошвы фундамента:
γII=
(19,2∙0,5+9,82∙0,5) / 1 = 14,51 кН/м3
γ'II
-
то же, залегающих выше подошвы:γ'II=
16,91 кН/м3
сII
- расчётное значение удельного сцепления грунта, залегающего непосредственно
под подошвой фундамента: сII
= 18 кПа;
db
- глубина подвала: db
= 0 м;
d1
-глубина заложения фундаментов: d1=3,5
м
Принимаем размер подошвы фундамента: а×b
= 2,6х 1,6 м.
Тогда окончательно
Определяем давление на грунт:
Gф=
(V1
+ V2)
∙γб
=(2,5∙0,6∙0,5+1,8∙0,5∙1,1+0,5∙2,6∙1,6)
∙ 25 = 114,25кН
Gгр=
(V - Vф)∙γзас.=(3,5∙1,6∙2,6-
4,57)∙18= 179,82 кН
P<R
,96 кПа <361,86 кПа
Условие выполняется.
Расчет на внецентренное сжатие:
NII=700+114,25+179,82=994,07кН
= 20∙3,5=70
кН∙м
MII=260+70=330кН∙м
Pmin=
56,98 кН > 0; Pmax=
420,94 кН
Pmax<
1,2∙R 420,94 > 1,2∙361,86
= 434,23 кН (3,06% , условие выполняется)
Данный фундамент удовлетворяет условиям по
давлению.
Список использованной литературы
. Пьянков С. А. , Азизов З.
К. Основания и фундаменты: учебное пособие.- Ульяновск: УлГТУ, 2008;
. Сорочан Е. А. , Трофименков
Ю. Г. Основания, фундаменты и подземные сооружения. - М.: Стройиздат, 1985;
. СНиП 2.02.01-83 Основания
зданий и сооружений;
. СНиП 2.02.03-85 Свайные
фундаменты;
. СП 50-102-2003
Проектирование и устройство свайных фундаментов;
. СП 50-101-2004
Проектирование и устройство оснований и фундаментов зданий и сооружений;