Приводная станция
МИНЕСТЕРСТВО
ОБРАЗОВАНИЯ И НАУКИ РОССИЙСКОЙ ФЕДЕРАЦИИ
ФЕДЕРАЛЬНОЕ
ГОСУДАРСТВЕННОЕ ОБРАЗОВАТЕЛЬНОЕ
УЧРЕЖДЕНИЕВЫСШЕГО
ПРОФЕССИОНАЛЬНОГО ОБРАЗОВАНИЯ
«САНКТ-ПЕТЕРБУРГСКИЙ
ГОСУДАРСТВЕННЫЙ
ТЕХНОЛОГИЧЕСКИЙ
УНИВЕРСИТЕТ РАСТИТЕЛЬНЫХ ПОЛИМЕРОВ»
Кафедра
основ конструирования машин
Курсовая
работа по теме:
Приводная
станция
Санкт-Петербург
г
1. Описание привода и редуктора
Привод - это устройство для передачи энергии от
двигателя к рабочей машине.
Привод установлен на общей сварной раме и
включает в себя:
электродвигатель АИР 132МS6;
редуктор типовой цилиндрический;
цепную передачу с промежуточным валом;
Редуктор - агрегат, содержащий одну или
несколько механических передач, заключенных в герметичный корпус.
Редуктор предназначен для уменьшения частоты
вращения и увеличения вращающего момента (Т) приводного вала.
Открытая цепная передача - тихоходная передача;
в приводе стоит между редуктором и рабочей машиной.
Исходные данные
Синхронная частота вращения вала
электродвигателя 1000 мин-1;
Редуктор типовой цилиндрический одноступенчатый;
Другие виды передач: цепная передача с
промежуточным валом;
Муфты стандартные;
Основные параметры:
|
Наименование
|
Вариант
4
|
|
Требуемая
мощность на валу рабочей машины, Pрм, кВт
|
4,5
|
|
Частота
вращения вала рабочей машины, nрм, мин-1
|
56
|
|
Допускаемое
отклонение частоты вращения вала машины [Δn], %
|
5
|
Режим работы трехсменный;
Условия эксплуатации: нагрузка-постоянная,
равномерная.
Срок службы привода при трехсменной работе- 8
лет.
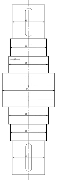
Кинематический расчет привода
Составление кинематической схемы привода
Кинематическая схема привода представлена на
рис. 1.
Рис. 1 - Кинематическая схема привода
2. Определение расчетной мощности
электродвигателя и выбор его по каталогу
Мощность, которую получает рабочая
машинаPр.м.(требуемая мощность),всегда меньше мощности
, отдаваемой
электродвигателем (затраченная мощность), так как при передаче к рабочей машине
она теряется во всех узлах трения привода. Это - закон для всех приводов. Общие
потери мощности учитываются коэффициентом полезного действия (КПД) привода.
, кВт,
где ηо-
коэффициент полезного действия привода,
;
КПД цилиндра одноступенчатого
редуктора,
;
- КПД открытой цепной передачи,
;
;
0,95×0,95×0,99=0,8935
кВт
ЭлектродвигательАИР132S6УЗГОСТР.51689-2000
Размеры электродвигателей серии АИР
и RA исполнения IM 1081
Рис. 2
∂. ном. = 5,5кВТ;n∂=960мин-1;
d1=38мм;l1=80мм; l30=460мм; b1=10мм; h1=8мм; d30=288мм; l10=140мм; l31=89мм;
d10=12мм; b10=216мм; h=132мм; h10=13мм; h31=325мм.[1] с. 26, табл.3 и с. 28,
табл. 5.
3. Определение общего передаточного
числа привода и разбивка его на составляющие
Общее передаточное число Uо привода
определяется по формуле:
о=
- асинхронная (рабочая) частота
вращения вала двигателя, мин-1;
- частота вращения вала рабочей
машины, мин-1;
Расчетное передаточное число
редуктора:р.р.
, где Uо.п.
- передаточное число открытой цепной передачи;
ПринимаемUо.п.=2,7[1]с.25, табл.2.
Тогда
Необходимый вращающий момент на
тихоходном валу редуктора:
Т2=
= (Н.∙м)
Выбираем типовой одноступенчатый
цилиндрический редуктор ЦУ-160 с передаточным числом Uр.=6,3 и Тт=1000 Н∙м.
Допускаемая радиальная нагрузка на входном валу - 1000 Н; на выходном валу -
4000 Н.
Редуктор ЦУ - 160-6,3-21-КУЗ(см.
приложение 2)
=2,7
Передаточное число открытой цепной
передачи оказалось в пределах рекомендуемых величин [1]с. 25, табл.2.
Рис. 3
Размеры,
мм
|
|
L
|
L1
|
L2
|
L3
|
L4
|
L5
|
B
|
B1
|
B2
|
H
|
H1
|
H2
|
d
|
dвых
|
|
ЦУ
- 160
|
475
|
412
|
355
|
136
|
218
|
218
|
185
|
175
|
125
|
335
|
170
|
28
|
30
|
36
|
Размеры конического конца входного и выходного
вала с наружной резьбой.
Рис. 4
|
Типоразмер
редуктора
|
Вал
|
d,
мм
|
d1,
мм
|
I,
мм
|
I1,
мм
|
t,
мм
|
b,
мм
|
|
ЦУ-160
|
Входной
|
45
|
М30×2,0
|
110
|
82
|
14
|
5,5
|
|
ЦУ-160
|
Выходной
|
55
|
М36×3,0
|
1707
|
60
|
85
|
22
|
Фактическая расчетная мощность электродвигателя
кВт
привод муфта вал
мощность
4. Определение мощностей, частот
вращения и вращающих моментов на валах привода
Определение мощности на валах.
на валу рабочей машины:
кВт
− на выходном валу редуктора:
кВт
− на входном валу редуктора:
кВт
− на валу электродвигателя:
кВт
на промежуточном валу:
кВт
Определение частоты вращения валов.
− на валу электродвигателя:
− на входном валу редуктора: 
− на валу рабочей машины:
на промежуточном валу:
Отклонение от заданной частоты
вращения вала рабочей машины.
,
Определение вращающих моментов на
валах.
− на валу двигателя:
Н×м
− на входном валу редуктора:
Н×м
− на выходном валу редуктора:
Н×м
− на валу машины:
Н×м
на промежуточном валу:
Н×м
5. Расчет цепной передачи
Исходные данные для расчета:
Передаточное число u =2,7;
Частота вращения шестерни
n1=152,38мин-1;
Частота вращения колеса
n2=56,44мин-1;
Вращающий момент на шестерне
Т1=299,57Н×м;
Срок службы привода при трехсменной
работе - 8 лет.
Передача нереверсивная, нагрузка
постоянная, производство мелкосерийное.
Минимальное число зубьев ведущей
звездочки.
z1min=29-2×U=29-2×2,7=23,6
Принимаем z1=25
Определение числа зубьев ведомой
звездочки.
z2=U×z2=23×2,7=67,5
Принимаем z2=67
Определение коэффициента эксплуатации.
При умеренных ударных нагрузках
принимаем КД=1,5; коэффициент влияния межосевого расстояния КА=1,0 при
a=(30-50)p; при горизонтальном расположении передачи КН=1,0; при нерегулируемом
натяжении цепи КРЕГ=1,25; при периодической смазке КСМ=1,3; при трехсменной
работе КРЕЖ=1,45 [2]с. 25 табл. 9.
С учетом принятых значений
коэффициентов получаем
КЭ =КД×КА×КН×КРЕГ×КСМ×КРЕЖ=1,5×1,0×1,0×1,25×1,3×1,45=3,54
Определение шага цепи.
Среднее допускаемое давление в
шарнирах приn1=152,38 мин-1;
МПа
Тогда шаг цепи
≥
мм
Принимаем цепь ПР-38,1-127 ГОСТ
13568-97 с шагом Р=38,1 мм и разрушающей нагрузкой Fp=127 кН [2] с.8 табл.1.
Диаметры делительной окружности
звездочек.
Ведущей звездочки:

мм;
Ведомой звездочки:
мм;
Средняя скорость цепи.
м/с;
Окружная сила, передаваемая цепью.
Н;
Давление в шарнирах цепи.
МПа,
где А=394 мм2 - площадь опорной
поверхности шарнира [2] с.24 табл.7.
Допускаемое давление в шарнирах цепи
с шагом 38,1 мм [Р0]=29 МПа [2] с.24 табл.8. Поэтому условие Р0≤[Р0]
выполняется.
Предварительное значение межосевого
расстояния.
а=(30-50)×Р=(30-50)×38,1=(1143÷1905)
мм
Принимаема=1500 мм.
Необходимое число звеньев цепи.
Lp=
Полученное значение округляем до
целого четного числа Lp=126.
Уточненное значение межосевого
расстояния.
Для необходимого провисания цепи
необходимо уменьшить межосевое расстояние на (0,002 - 0,004)α. Уменьшаем α на величину
0,003×α=3,02
мм
с последующим округлением до целого числа. Получаем α=1499 мм.
Проверка цепи по числу ударов о
зубья звездочек.
с-1 <[U]=20 c-1
Здесь [U]=20 c-1[2] с.26 табл.11.
Проверка цепи на прочность.
Коэффициент запаса прочности
где Fц - натяжение цепи от
центробежных сил,
,
m - масса одного метра цепи,m=5,5 кг [2] с.8
табл.1.- натяжение цепи от силы тяжести. Для горизонтально расположенной
передачи F0=Kf×m×g×α=6×5,5×9,81×1,499=485H;
[S] - допускаемый коэффициент запаса прочности,
[S]=8,9 [2] c.27 табл.12.
Условие прочности соблюдается
Определение размеров звездочек.
Диаметр окружности выступов ведущей
звездочки
где k - коэффициент высоты зуба. При
d1=22,23 мм
[2] c. 8 табл1; k=0,575 [2] c.16 табл.5.
мм.
Диаметр окружности впадин ведущей
звездочки
мм.
Диаметр окружности выступов ведомой
звездочки
мм.
Диаметр окружности впадин ведомой
звездочки
мм.
6. Предварительный расчет и
конструирование промежуточного вала
Ведущий вал - вал шестерня.
Из условия на кручение:
где
;
где
;
;
мм,
где d1 - диаметр выходного конца;
;=50
мм=d1+10=50+10=60 мм
Рис.
5
По диаметру
подбираем
манжету:
Рис. 6
Манжета 2.1. 60
85-1
ГОСТ 8752-79;
Манжета типа 2, выбранная нами, предотвращает
вытекание жидкости и защищает от проникновения пыли.
где
большой
диаметр манжеты;
ширина манжеты.
Из условия подбора подшипников
должен
быть кратен 5:
мм,
где
- диаметр
под подшипник.=d3+5=65+5=70 мм,=50 мм.
Выбор
подшипников промежуточного вала.
Подшипник
- сборочный узел, являющийся частью опоры или упора и поддерживающий вал, ось
или иную подвижную конструкцию с заданной жёсткостью. Фиксирует положение в
пространстве, обеспечивает вращение, качение или линейное перемещение с
наименьшим сопротивлением, воспринимает и передаёт нагрузку от подвижного узла
на другие части конструкции.
Подшипник
подбираем по
=65.
-
международное обозначение подшипника.
Направление
воспринимаемых нагрузок - радиальное. Допускают значительные перекосы
внутреннего кольца (вала) относительно наружного кольца (корпуса).
Подшипник
соответствует стандарту ГОСТ 28428.
|
Характеристики
подшипника 1313
|
|
Параметр
|
Обозначение
|
Значение
|
Единицы
|
|
Внутренний
диаметр подшипника
|
d
|
65
|
мм
|
|
Наружный
диаметр подшипника
|
D
|
140
|
мм
|
|
Ширина
подшипника
|
В
|
33
|
мм
|
|
Радиус
монтажной фаски подшипника
|
r
|
3,5
|
мм
|
|
Статическая
грузоподъемность
|
C0
|
31000
|
Н
|
|
Динамическая
грузоподъемность
|
C
|
62000
|
Н
|
|
Масса
подшипника
|
2,45
|
кг
|
Рис. 7
Крышку подшипника выбирают, опираясь на внешний
диаметр: D=140:
УМ 140 ГОСТ 13218.1к=140, мм; В=52, мм; В1=58,
мм
Интересующие размеры, см. [5]
Рис. 8
7. Выбор стандартной муфты. Проверка
элементов муфты
Основной характеристикой нагруженности муфты
является номинальный вращающий момент (Tн), установленный стандартом. Муфты
выбирают по большему диаметру концов соединяемых валов и по расчетному
вращающему моменту.
Расчетный вращающий момент, действующий на
муфту:
, Н×м
Муфта упругая втулочно-пальцевая.
Муфты получили широкое
распространение в приводах машин с малыми и средними вращающими моментами,
благодаря относительной простоте конструкции и удобству замены резиновых
упругих элементов. Однако они имеют небольшую компенсирующую способность, и их
применение целесообразно при установке соединяемых изделий на рамах большой
жесткости (сварных рамах). Сборку соединяемых изделий необходимо проводить с
высокой точностью.
Муфта между валом электродвигателя и
входным валом редуктора.
, Н×м
к=2,0-коэффициент динамической
нагрузки, для данного случая.
Н×м
Зная ТР= 100,26Н×ми
d=38мм,d1=45мм подбираем муфту.(из ГОСТ 21424-93)
Муфта упругая втулочно-пальцевая
250-38-2-45-4 У3 ГОСТ 21424-93
Резиновые упругие элементы муфты
проверяют на смятие. При этом полагают, что все пальцы нагружены одинаково, а
напряжения смятия распределены равномерно по длине втулки.
,
см]=2
, допускаемое напряжение смятия.
см=
Пальцы муфты проверяют на изгиб
где с - зазор между полумуфтами, мм;
и]=(0,4-0,5)
Т -
допускаемые напряжения изгиба,
Материал пальцев - сталь 45 ГОСТ
1050-88,
Т=360, 
Радиальную силу Fм, действующую на
вал, вследствие несоосности соединяемых валов, определяют по эмпирической
формуле:
, Н
, Н
Где Тi- вращающий момент на
соединяемом валу привода, Н∙м.
Интересующие размеры и параметры,
муфты упругой втулочно-пальцевой 250-38-2-45-4 У3 ГОСТ 21424-93 находим из ГОСТ
21424-93.
Рис. 9
|
Номинальный
вращающий момент Тн, Н∙м
|
Частота
вращения n, мин -1, не более
|
Размеры,
мм
|
|
|
d;d1
|
D
|
на
длинные концы валов
|
на
короткие концы валов
|
С
|
D1
|
B
|
b
|
dп
|
lвт
|
d0
|
dр
|
Кол-во
паль- цев,z
|
|
|
|
|
L
|
lц
h14
|
lк
h14
|
L
|
lц
h14
|
lк
h14
|
|
|
|
|
|
|
|
|
|
|
250
|
3780
|
48;
45
|
140
|
165
|
80
|
65
|
121
|
58
|
38
|
5
|
105
|
18
|
14
|
28
|
28
|
М10
|
6
|
Муфта
между выходным валом редуктора и валом открытой передачи.=55, мми d3=50, мм
ТР=к
ТI
ТН, Н×м
ТР=2,0
299,57=599,14
н]=1600Н×м
Муфта
1 - 1600- 50 - 1 - 55 - 2 У2 ГОСТ 50895-96
Проверка
на смятие и изгиб.
,
см=2000
ТР/0,9
(d0)2
b
см],Н/мм2,
Где Tp- расчетный вращающий момент, Н∙м;d0
- делительный диаметр зубчатого соединения, d0=m
,
мм; m-модуль зубьев, мм; z-число зубьев полумуфты, b- длина зуба, мм;
см]
- допускаемое напряжение смятия,
см]=(12-15)
=2,5×38=95, мм;
, Н;
Н
Где Тi - вращающий момент на соединяемом валу
привода, Н×м.
|
Номинальный
вращающий момент Тн, Н∙м
|
Частота
вращения n, мин -1 , не более
|
Размеры,
мм
|
Зубья
|
|
|
d;
d1
|
D
|
|
|
|
|
|
|
B
|
C1
|
C
|
b
|
модуль,
m, мм
|
z
|
|
|
|
|
D1
|
D2
|
L
|
A
|
Lц
h14
|
Lк
h14
|
|
|
|
|
|
|
|
1600
|
4800
|
50;
55
|
170
|
125
|
80
|
174
|
75
|
82
|
65
|
34
|
22
|
5
|
15
|
2,5
|
38
|
Рис. 10
Список литературы
1. «Кинематические
расчеты приводов машин»: методические указания для самостоятельной подготовки
студентов к выполнению курсового проекта/ сост. А.Л.Кириленко, А.Б. Коновалов,
М.В. Аввакумов.-Изд.2-е, испр.- СПБГТУРП. СПБ., 2011.
2. «Расчет
цепных передач»: методические указания / сост. М.В. Аввакумов, А.Б. Коновалов;
СПбГТУРП.-Спб.,2013.
. «Конструирование
узлов и деталей машин»: Учеб. Пособие для студ. техн. спец. вузов /
П.Ф.Дунаев.- 8-е изд., перераб. и доп. - М.: Издательский центр «Академия»,
2003.
. М.В.
Аввакумов, В.О. Варганов, В.А. Романов «ПРИКЛАДНАЯ МЕХАНИКА» Методические
указания для выполнения курсовой работы, 2014г.