Назначение и расчет посадок на двухступенчатом цилиндрическом редукторе
Министерство
образования и науки Российской Федерации
ФГБОУ
ВПО
ВОРОНЕЖСКИЙ
ГОСУДАРСТВЕННЫЙ ТЕХНИЧЕСКИЙ УНИВЕРСИТЕТ
Институт
машиностроения и аэрокосмической техники
Кафедра:
Автоматизированного оборудования машиностроительного производства
КУРСОВАЯ
РАБОТА
по
дисциплине: Метрология, сертификация и стандартизация
тема:
Назначение и расчет посадок на двухступенчатом цилиндрическом редукторе
Воронеж
2015
Введение
Основные требования к современному производству
- дать как можно больше продукции лучшего качества и с наименьшей стоимостью.
Важнейшим показателем качества деталей является
точность изготовления их геометрических параметров. Полученные при обработке
размер, форма и взаимное расположение элементарных поверхностей определяют
фактические зазоры и натяги в сопряжениях деталей, а, следовательно,
работоспособность и технико-экономическую эффективность изделий.
Точность и ее контроль являются одним из
важнейших показателем качества и служат исходной предпосылкой организации
взаимозаменяемого производства.
Взаимозаменяемость - основной принцип
конструирования, изготовления, контроля эксплуатации машин. Освоение курса по
взаимозаменяемости, стандартизации и техническим измерениям является частью
профессиональной подготовки инженеров.
Знания, полученные студентами при изучении
данного курса, закрепляются, получают новое и более полное развитие при
выполнении курсовых работ. Закрепление теоретических положений курса,
излагаемых на лекциях, развитие навыков использования справочного материала и умение
проводить инженерные расчёты при решении типовых конструкторских и
технологических задач, является основной целью настоящего курсового проекта.
1. Назначение и принцип работы
механизма
То, что редуктор называют цилиндрическим,
абсолютно никоим образом не связано с тем, какую форму он имеет. Это самый
обычный редуктор, ничего не имеющий с формой цилиндра. То, что его так
называют, происходит от способа передачи - конически-цилиндрического. Она
представляет собой несколько колес зубчатого типа, которые выполнены в форме
конуса или цилиндра. Редуктор цилиндрический представляет собой довольно
сложный конструктивно устроенный механизм, без применения которого не
функционирует машиностроительная отрасль.
Редуктор цилиндрический двухступенчатый
используется для изменения крутящих моментов и передачи вращения от вала
двигателя к валу рабочей машины. Редуктор цилиндрический двухступенчатый
обеспечивает постоянную угловую скорость.
2. Назначение посадок
.1 Посадки с натягом
.1.1 Назначение посадки на зубчатое
колесо поз. 11 с валом поз. 3
Номинальный диаметр соединения вал - зубчатое
колесо 28мм, выполнено по посадке с натягом, в системе отверстия
.
(
- отклонение поле
допуска ступицы зубчатого колеса,
- отклонение поле
допуска вала).
Рис.1 Схема полей допусков соединения вал поз. 3
- зубчатое колесо поз.11.
2.1.2 Назначение посадки на втулку
поз. 28 с валом поз. 3
Номинальный диаметр соединения вал - втулка 28
мм, выполнено по посадке с натягом
.
(
- отклонение поле допуска втулки,
- отклонение поле
допуска вала).
Рис.2 Схема полей допусков соединения вал поз. 3
- втулка поз.28 .
2.2 Посадки с зазором
.2.1 Назначение посадки на глухую
крышку подшипника поз. 21 с корпусом поз. 4
Номинальный диаметр соединения корпус - крышка
62 мм, выполнено по посадке с гарантированным зазором
.
(
- отклонение поле
допуска корпуса,
- отклонение поле допуска крышки).
Рис.3 Схема полей допусков соединения корпус
поз. 4 - крышка поз. 21.
2.2.2 Назначение посадки на сквозную
крышку подшипника поз. 16 с корпусом поз. 4
Номинальный диаметр соединения корпус - крышка
52 мм, выполнено по посадке с гарантированным зазором F9/f9.
(
- отклонение поле допуска корпуса,
- отклонение поле
допуска крышки).
Рис.4 Схема полей допусков соединения корпус
поз. 4 - крышка поз. 16.
2.3 Соединения с подшипниками
качения
.3.1 Посадка подшипника поз.
2(№30205)
Посадка внутреннего кольца на вал
Номинальный диаметр соединения внутреннего
кольца подшипника с валом 25 мм, выполнено по переходной посадке
.
(
- отклонение поле
допуска внутреннего кольца,
- отклонение поле допуска вала).
Посадка наружного кольца в корпус
Номинальный диаметр соединения корпуса редуктора
с наружным кольцом подшипника 52 мм, выполнено по переходной посадке
.
(
- отклонение поле
допуска корпуса,
- отклонение поле допуска наружного кольца).
Рис.5 Схема полей допусков соединения
внутреннего кольца подшипника поз. 2 с валом поз. 3 и наружного кольца
подшипника поз. 2 с корпусом поз. 4.
.3.2 Посадка подшипника поз.
10(№30206)
Посадка внутреннего кольца на вал
Номинальный диаметр соединения внутреннего
кольца подшипника с валом 30 мм, выполнено по переходной посадке
.
(
- отклонение поле
допуска внутреннего кольца,
- отклонение поле допуска вала).
Посадка наружного кольца в корпус
Номинальный диаметр соединения корпуса редуктора
с наружным кольцом подшипника 62 мм, выполнено по переходной посадке
.
(
- отклонение поле
допуска корпуса редуктора,
- отклонение поле допуска наружного кольца).
Рис.6 Схема полей допусков соединения
внутреннего кольца подшипника поз. 10 с валом поз. 9 и наружного кольца
подшипника поз. 10 с корпусом поз. 4.
.4 Резьбовые соединения
.4.1 Соединение крышки поз. 12 с
основанием корпуса редуктора с помощью болта поз. 14
Метрическая резьба с наружным диаметром 7 мм,
шагом 1 мм и короткой длиной свинчивания 2,4 мм, выполнена по посадке с зазором
в системе отверстия
.
(
- допуск на все
диаметры гайки,
- допуск на
средний диаметр болта,
- допуск на
наружный диаметр болта).
Рис.7 Схема полей допусков соединения крышки
поз. 13 с основанием корпуса поз. 4 с помощью болта поз. 12.
.4.2 Соединение крышки корпуса поз.
4 редуктора с основанием с помощью болта поз. 33
-7,2
Метрическая резьба с наружным диаметром 12 мм,
шагом 2 мм и нормальной длиной свинчивания 7,2мм, выполнена по посадке с
зазором в системе отверстия
.
(
- допуск на все
диаметры гайки,
- допуск на все
диаметры болта).
Рис.8 Схема полей допусков соединения крышки
корпуса поз. 22 с основанием корпуса поз. 4 с помощью болта поз. 33.
.5 Шпоночные соединения
2.5.1 Соединение шпонки поз. 20 с
валом поз. 5
По ширине:
;
Номинальная ширина соединения шпонка - паз 8 мм,
выполнено по скользящей посадке
.
(
- отклонение поле
допуска паза,
- отклонение поле допуска шпонки).
Рис.9 Схема полей допусков соединения шпонка
поз. 20 - паз по ширине.
по высоте:
;
Номинальная высота соединения шпонка - паз 7 мм,
выполнено по переходной посадке в системе вала
.
(
- отклонение поле
допуска паза,
- отклонение поле допуска шпонки)
Рис.10 Схема полей допусков соединения шпонка
поз. 20 - паз по высоте.
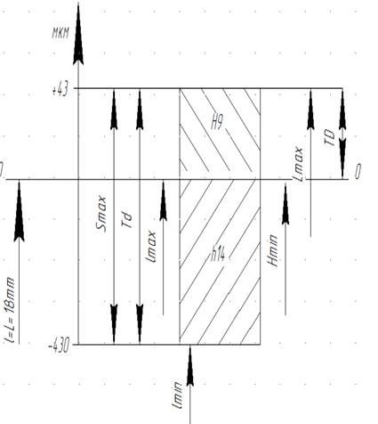
по длине:
;
Номинальная длина соединения шпонка - паз 18 мм,
выполнено по скользящей посадке
.
(
- отклонение поле
допуска паза,
- отклонение поле допуска шпонки).
Рис.11 Схема полей допусков соединения шпонка
поз. 20 - паз по длине.
.5.2 Соединение шпонки поз. 25 с
валом поз. 9
По ширине:
;
Номинальная ширина соединения шпонка - паз 10
мм, выполнено по скользящей посадке
.
(
- отклонение поле
допуска паза,
- отклонение поле допуска шпонки).
Рис.12 Схема полей допусков соединения шпонка
поз. 25 - паз по ширине.
по высоте:
;
Номинальная высота соединения шпонка - паз 8 мм,
выполнено по переходной посадке в системе вала
.
(
- отклонение поле
допуска паза,
- отклонение поле допуска шпонки).
Рис.13 Схема полей допусков соединения шпонка
поз. 25 - паз по высоте.
по длине:
;
Номинальная длина соединения шпонка - паз 24 мм,
выполнено по скользящей посадке
.
(
- отклонение поле
допуска паза,
- отклонение поле допуска шпонки).
Рис.14 Схема полей допусков соединения шпонка
поз. 25 - паз по длине.
3. Расчет посадок с натягом
.1 Силовой расчет посадки с натягом
для зубчатого колеса поз. 11 на вал поз. 3
Рассчитаем посадку с натягом для
зубчатого колеса поз. 15 на вал поз. 5 по [3, стр. 222 - 224].
Nрасч =

, (1)
где:
-
крутящий момент по валу; l = 50 мм -
длина зацепления зубчатого колеса; D
= 28 мм - посадочный диаметр зубчатого колеса;
=1,5D +10 мм - диаметр зубчатого колеса; (2) f = 0,14 - коэффициент сцепления; С1, С2
- коэффициенты, зависящие от размеров, формы и материалов
сопрягаемых деталей; Е1, Е2 - модули упругости:
;
;
Найдем
значение коэффициента С1:
C1
=
+m, (3)
где: m - коэффициент Пуассона.
Найдем
значение коэффициента С2:
C2 =
- m,
(4)
где: d1 = 0 -
диаметр отверстия в вале.
С2 = 1 - 0,3
= 0,7.
Рассчитаем крутящийся
момент на валу:
(5)
(6)
где: n - частота
вращения вала, об/мин;
Определим минимальный
расчётный натяг:
Учтем поправку на смятие неровностей
контактных поверхностей:
, (7)
где:
- высота неровностей поверхностей
отверстия и вала;
k -
коэффициент высоты смятия.
k = 0,3;
Полный минимальный натяг вычисляется
с учётом поправки:
(8)
Максимально допустимый натяг:
Nmах расч = Pдоп D
, (9)
где:
- контактное усилие.
Максимальное допустимое контактное
усилие на поверхности зубчатого колеса:
Pдоп вт = 0,58sТ
, (10)
-
предел текучести материала зубчатого колеса.
Максимальное допустимое контактное
усилие на поверхности вала:
Pдоп в = 0,58sТ
, (11)
Выбираем меньшее контактное усилие:
(12)
Полный максимальный натяг
вычисляется с учётом поправки:
По наибольшему функциональному
натягу выбираем посадку по [2, табл. 7-11, стр. 47-79]:
.
.2 Расчет параметров посадки с
натягом
Определим основные параметры посадки с натягом
по [2, табл. 7-11, стр. 47-79]:
=
=28
мм;
ES = +21 мкм;
EI = 0 мкм;
es = +61 мкм;
ei = +48мкм;
TD = ES - EI =21- 0 = 21 мкм;
(13)= es - ei = 61 - 48 = 13 мкм;
(14)= TD + Td =21 + 13 = 34 мкм;
(15)
; (16)
; (17)
; (18)
; (19)
; (20)
. (21)
Рис.15 Схема полей допусков соединения вал поз.
3- зубчатое колесо поз. 11.
3.3 Расчет параметров посадки с
натягом на втулку поз. 28 с валом поз. 3
Определим основные параметры посадки с натягом
по [2, табл. 11-13, стр. 79-97]:
=
=28
ìì;
ES = -7 мкм;
EI = -28 мкм;
es = +61 мкм;
ei = +48 мкм;
TD = ES - EI = -7 + 28 = 21 мкм;=
es - ei = 61 - 48 = 13 мкм;=
TD + Td =21 + 13 = 34 мкм;
;
;
;
;
;
.
Рис.16 Схема полей допусков соединения вал поз.
3 - втулка поз. 28.
4. Расчет параметров посадки с
зазором
.1 Расчет параметров посадки с
зазором на крышку подшипника поз. 21 с корпусом поз. 4
Определим основные параметры посадки с зазором
по [2, табл. 9-14, стр. 66-106]:
=
=62
ìì;
ES =+90 мкм;
EI = +60 мкм;
es = -60 мкм;
ei = -90 мкм;
TD = ES - EI = 90 - 60 = 30 мкм;=
es - ei = -60 + 90 = 30 мкм;=
TD + Td = 30 + 30 = 60 мкм;
;
;
;
;
; (22)
. (23)
Рис.17 Схема полей допусков соединения корпус
поз. 4 - крышка поз. 21.
.2 Расчет параметров посадки с
зазором на крышку подшипника 16 с корпусом 4
Определим основные параметры посадки с зазором
по [2, табл. 9-14, стр. 66-106]:
=
=52
ìì;
ES =+104 мкм;
EI = +30 мкм;
es = -30 мкм;
ei = -104 мкм;
TD = ES - EI = 104 - 30 = 74 мкм;=
es - ei = -30 + 104 = 74 мкм;=
TD + Td = 74 + 74 = 148 мкм;
;
;
;
;
;
.
Рис.18 Схема полей допусков соединения корпус
поз. 4 - крышка поз. 16.
5. Расчет посадок для колец
подшипников качения
.1 Расчет подшипника поз. 10(№30206)
Рассчитаем и выберем посадку для колебательно
нагруженного шарикового радиально-упорного однорядного подшипника 30206 класс
точности 5.
Радиальная нагрузка подшипника
Перегрузка 300%
Находим интенсивность радиальной нагрузки по
формуле:
(24)
где:
-
динамический коэффициент посадки, зависящий от характера нагрузки (
);
- коэффициент,
учитывающий степень ослабления посадочного натяга при полом вале или
тонкостенном корпусе (при сплошном вале
);
- коэффициент,
учитывающий неравномерность распределения радиальной нагрузки
между
рядами роликов в двухрядных конических роликоподшипниках или между сдвоенными
шарикоподшипниками при наличии осевой нагрузки
на
опору.
(Для радиальных и радиально-упорных подшипников
с одним наружным или внутренним кольцом
).
, (25)
где: В - ширина подшипника.
B=17.25 мм;
r
-
координата монтажной фаски внутреннего или наружного кольца подшипника. r
= 1,5 мм.
Интенсивность радиальной нагрузки:
По [2, табл. 6, стр. 287,288.] определяем поле
допуска вала и отверстия:
Поле допуска вала:
Поле допуска отверстия:
Посадка на внутреннее кольцо
подшипника:
Посадка на наружное кольцо
подшипника:
Рис.19 Схема полей допусков соединения
внутреннего кольца подшипника поз. 10 с валом поз. 9 и наружного кольца
подшипник поз. 10 с корпусом поз. 4.
.2Расчет подшипника поз. 2(№30205)
Рассчитаем и выберем посадку для колебательно
нагруженного шарикового радиально-упорного однорядного подшипника 30205 класс
точности 5.
Радиальная нагрузка подшипника
Перегрузка 300%
Находим интенсивность радиальной нагрузки по
формуле:
где:
-
динамический коэффициент посадки, зависящий от характера нагрузки (
);
- коэффициент,
учитывающий степень ослабления посадочного натяга при полом вале или
тонкостенном корпусе (при сплошном вале
);
- коэффициент,
учитывающий неравномерность распределения радиальной нагрузки
между
рядами роликов в двухрядных конических роликоподшипниках или между сдвоенными
шарикоподшипниками при наличии осевой нагрузки
на
опору. (Для радиальных и радиально-упорных подшипников с одним наружным или
внутренним кольцом
).
,
где: B
- ширина подшипника. B=16.25
мм;
r
-
координата монтажной фаски внутреннего или наружного кольца подшипника. r
= 1,5 мм.
Интенсивность радиальной нагрузки:
По [табл. 6, стр. 287,288.] определяем поле
допуска вала и отверстия:
Поле допуска вала:
Поле допуска отверстия:
Посадка на внутреннее кольцо
подшипника:
Посадка на наружное кольцо
подшипника:
Рис.20 Схема полей допусков соединения
внутреннего кольца подшипника поз. 2 с валом поз. 3 и наружного кольца
подшипника поз. 2 с корпусом поз. 4.
6. Расчет резьбового соединения
6.1 Определим основные параметры
резьбы
Наружный диаметр резьбы: d=D=7
мм
Шаг резьбы: P=1
мм
Средний диаметр резьбы: d2=D2=5,350
мм
Внутренний диаметр резьбы: d1=D1=4,917
мм
Длина свинчивания: S=2,4
мм
Определим посадку для данного
резьбового соединения:
Определим поля допусков наружной
резьбы [табл. 7, стр. 371]:
;
;
.
Определим поля допусков внутренней
резьбы [табл. 9, стр. 375]:
;
;
.
Вычислим предельные размеры
диаметров:
; (26)
; (27)
(28)
; (29)
;
;
; (30)
; (31)
; (32)
; (33)
Вычислим допуски:
; (34)
; (35)
;
; (36)
; (37)
Вычислим зазоры:
; (38)
(39)
Рис.21 Схема полей допусков соединения крышки
поз. 13 с основанием корпуса поз. 4 с помощью болта поз. 12.
6.2 Определим основные параметры
резьбы
Наружный диаметр резьбы: d=D=12
мм
Шаг резьбы: P=2
мм
Средний диаметр резьбы: d2=D2=11,350
мм
Внутренний диаметр резьбы: d1=D1=10,917
мм
Длина свинчивания: L=7,2
мм
Определим посадку для данного
резьбового соединения:
Определим поля допусков наружной
резьбы [табл. 7, стр. 371]:
;
;
.
Определим поля допусков внутренней
резьбы [табл. 9, стр. 375]:
;
;
.
Вычислим предельные размеры
диаметров:
;
;
;
;
;
;
;
;
;
Вычислим допуски:
;
;
;
;
;
Вычислим зазоры:
;
Рис.22 Схема полей допусков соединения крышки
корпуса поз. 21 с основанием корпуса поз. 4 с помощью болта поз. 33.
7. Расчет шпоночного соединения
7.1 Соединение шпонки поз. 20
с валом поз. 5
Определим размеры шпоночного соединения по
таблице [2, табл. 2, стр. 304]:
Диаметр вала: 28 мм
Длина шпонки: 18 мм
Сечение: b
x h
= 8 x 7 мм
Фаска: s
= 0.3 мм
Глубина паза
на валу:
во втулке:
Радиус:
Определим допуски элементов шпоночного
соединения по таблице [2, табл. 7, стр. 313]:
Поле допуска шпонки по размерам:
ширина (b):
h9
высота (h):
h11
длина (l):
h14
Поле допуска паза по размеру :
(b):
H9
(h):
(l):
H9
Предельные отклонения глубины паза:
на валу:
во втулке:
Рассчитаем параметры шпоночного
соединения:
По ширине:
;
=
=8мм;
ES =+36 мкм;
EI = 0 мкм;
es = 0 мкм;
ei = -36 мкм;
TD = ES - EI = 36 - 0 = 36 мкм;=
es - ei = 0 + 36 = 36 мкм;=
TD + Td = 36 + 36 = 72 мкм;
; (40)
; (41)
; (42)
; (43)
; (44)
. (45)
Рис.23 Схема полей допусков соединения шпонка
поз. 20 - паз по ширине.
по высоте:
;
=
=7
мм;
ES =+18 мкм;
EI = -18 мкм;
es = 0 мкм;
ei = -90 мкм;
TD = ES - EI = 18 + 18= 36 мкм;=
es - ei = 0 + 90 = 90 мкм;=
TD + Td = 36 + 90 = 126 мкм;
; (46)
; (47)
; (48)
; (49)
; (50)
. (51)
Рис.24 Схема полей допусков соединения шпонка
поз. 20 - паз по высоте.
по длине:
;
=
=18
мм;
ES =+43 мкм;
EI = 0 мкм;
es = 0 мкм;
ei = -430 мкм;
= ES - EI = 43 - 0 = 43 мкм;=
es - ei = 0 + 430 = 430 мкм;=
TD + Td = 43 + 430 = 463 мкм;
; (52)
; (53)
; (54)
; (55)
; (56)
. (57)
Рис.25 Схема полей допусков соединения шпонка
поз. 20 - паз по длине.
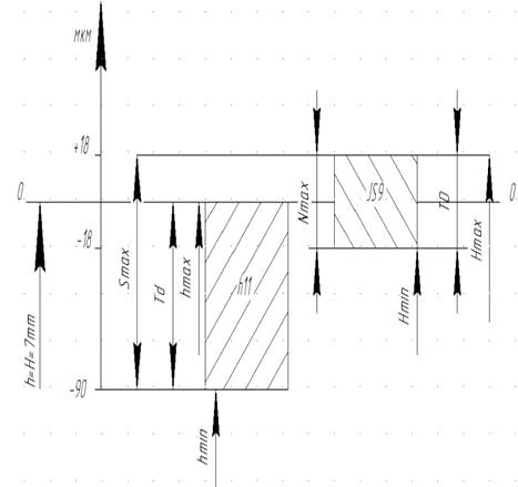
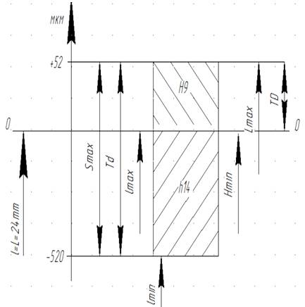
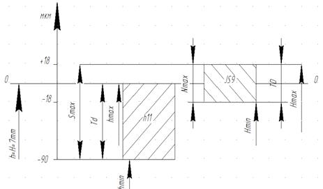
7.2 Соединение шпонки поз. 25 с
валом поз. 9
Определим размеры шпоночного соединения по
таблице [2, табл. 2, стр. 304]:
Диаметр вала: 34 мм
Длина шпонки: 24 мм
Сечение: b
x h
= 10
x 8 мм
Фаска: s
= 0.3 мм
Глубина паза
на валу:
во втулке:
Радиус:
Определим допуски элементов шпоночного
соединения по таблице [2, табл. 7, стр. 313]:
Поле допуска шпонки по размерам:
ширина (b):
h9
высота (h):
h11
длина (l):
h14
Поле допуска паза по размеру :
(b):
H9
(h):
(l):
H9
Предельные отклонения глубины паза:
на валу:
во втулке:
Рассчитаем параметры шпоночного
соединения:
По ширине:
;
=
=10
мм;
ES =+43 мкм;
EI = 0 мкм;
es = 0 мкм;
ei = -43 мкм;
TD = ES - EI = 43 - 0 = 43 мкм;=
es - ei = 0 + 43 = 43 мкм;=
TD + Td = 43 + 43 = 86 мкм;
;
;
;
;
;
.
Рис.26 Схема полей допусков соединения шпонка
поз. 25 - паз по ширине.
по высоте:
;
=
=8
мм;
ES =+18 мкм;
EI = -18 мкм;
es = 0 мкм;
ei = -90 мкм;
TD = ES - EI = 18 + 18= 36 мкм;=
es - ei = 0 + 90 = 90 мкм;=
TD + Td = 36+ 90 = 126 мкм;
;
;
;
;
;
.
Рис.27 Схема полей допусков соединения шпонка
поз. 25 - паз по высоте.
по длине:
;
=
=24
мм;
ES =+52 мкм;
EI = 0 мкм;
es = 0 мкм;
ei = -520 мкм;
= ES - EI = 52 - 0 = 52 мкм;=
es - ei = 0 + 520 = 520 мкм;=
TD + Td = 52 + 520 = 572 мкм;
;
;
;
;
;
.
Рис.28 Схема полей допусков соединения шпонка
поз. 25 - паз по длине.
8. Расчёт зубчатой передачи
Степень точности зубчатых колёс: 9 - 8 - 7
Степень кинематической точности - 9
Степень точности по плавности хода - 8
Степень точности по контакту зубьев - 7
Вид допуска на боковой зазор - с
Модуль зубчатого колеса - m
= 2мм
Рассчитаем делительный диаметр:1
(58)
=123мм - межосевое
расстояние;
u = 4 - коэффициент
использования материала;
Ширина венца:
(59)
где:
0,4
- коэффициент
расположения;
0,4
123
мм =49 мм
1. Нормы кинематической
точности
По [2, табл. 6, стр. 432] определим
допуски на
и
;
= 112 мкм - допуск на колебание
измерительного межосевого расстояния за оборот колеса;
= 80 мкм - допуск на радиальное
биение зубчатого венца.
2. Нормы точности по плавности
хода
Показатели точности по [2, табл. 10, стр. 439]:
= 21 мкм - предельные отклонение
шага зацепления;
= 22 мкм - предельные отклонение
шага;
= 40 мкм - допуск на местную
кинематическую погрешность зубчатого колеса;
= 18 мкм - допуск на погрешность
профиля зуба;
= 32 мкм - допуск на колебание
измерительного межосевого расстояния на одном зубе.
3. Нормы точности по контакту
зубьев
Предельные отклонения показателей точности по
[2, табл. 14, стр. 448]:
- предельные
отклонения осевых шагов по нормали;
- допуск на
направление зуба;
- допуск
параллельности осей;
- допуск на
перекос осей.
4. Боковой зазор
Для передач с нерегулируемым расположением осей
предельные отклонения межосевого расстояния по [2, табл. 17, стр. 451] будут
следующими:
- гарантированный
боковой зазор;
- предельные
отклонения межосевого расстояния;
- наименьшее
дополнительное смещение исходного контура;
- допуск на
смещение исходного контура;
- отклонение
наименьшей толщины зуба;
- допуск на
толщину зуба.
9. Расчет размерной цепи
Рис.29 Размерная цепь
- увеличивающий
размер;
- уменьшающие
размеры;
- замыкающее
звено;
Допуск замыкающего звена:
; (60)
Среднее число единиц допуска:
(61)
Найдем количество единиц допуска:
Определим интервалы номинальных размеров по [2,
табл. 3, стр. 29];
(62)
где:
(63)
Выберем квалитет по [2, табл. 2, стр.28];
Выбираем IT9,
при котором a = 40;
Определим допуски для звеньев размерной цепи:
(64)
Отсюда следует, что все звенья выполняем по 9-му
квалитету точности.
Заключение
редуктор посадка шпоночный резьбовой
В результате выполнения курсовой работы были
приобретены и закреплены навыки проведения расчёта и назначения посадок с
натягом, посадок с зазором, расчета и выбора посадки для колец подшипников
качения, определения для шпоночного соединения размеров и допусков элементов
соединения, определения номинальных и предельных размеров по всем диаметрам
резьбы для заданного резьбового соединения, определения числовых значений контролируемых
показателей норм точности и величину бокового зазора, необходимого для
нормальной работы заданной зубчатой передачи, расчета размерной цепи при
заданном значении замыкающего звена. Все расчеты осуществлялись с
использованием государственных стандартов, учебной и справочной литературы, все
выполненные чертежи начерчены с помощью программного обеспечения САПР
"Компас-3D". Выполненная
курсовая работа будет использоваться в дальнейших курсовых работах и дипломном
проекте. Приобретённый навык является основой для дальнейшей инженерной
деятельности.
Список использованной литературы
1. Пачевский
В. М., Осинцев А. Н., Краснова М. Н. Методические указания к выполнению
курсовой работы по дисциплине "Метрология, стандартизация и
сертификация" для студентов направления подготовки бакалавров 151900
"Конструкторско-технологическое обеспечение машиностроительных
производств" (профили "Металлообрабатывающие станки и
комплексы", "Конструкторско-технологическое обеспечение кузнечно-штамповочного
производства") всех форм обучения / ФГБОУ ВПО "Воронежский
государственный технический университет"; Воронеж, 2012. 32 с.
2. Белкин
И. М. Допуски и посадки (Основные нормы взаимозаменяемости): Учеб. пособие для
студентов машиностроительных специальностей высших технических заведений. - М.:
Машиностроение, 1992, 528с.: ил.
. Якушев
А. И. и др. Взаимозаменяемость, стандартизация и технические измерения: Учебник
для вузов. 6-е изд., перераб. и дополн. - М.: Машиностроение, 1986, 352с.: ил.
. Шейнблит
А.Е. Курсовое проектирование деталей машин: Учеб. пособие для техникумов.-М.:
Высш. Шк., 1991.-432с.: ил.