Расчет вала при совместном действии изгиба и кручения
Курсовая работа
По сопротивлению материалов
Расчет вала при совместном действии
изгиба и кручения
Рекомендуемая литература:
1. Распопина В.Б., Фильчагина Э.И.
Сопротивление материалов. Расчёт вала при совместном действии изгиба и кручения
Учебное пособие - Иркутск: Изд-во ИрГТУ. - 2005, 99 с.
Таблица 1
|
           
|
|
|
|
|
|
|
|
|
|
|
|
|
|
мм
|
кВт
|
об/мин
|
градусы
|
|
100
|
60
|
40
|
260
|
280
|
290
|
400
|
48
|
33
|
340
|
180
|
120
|
270
|
Таблица 2
|
    
|
|
|
|
|
|
|
МПа
|
1.6
|
0.6
|
|
350
|
700
|
350
|
200
|
|
|
Таблица 3
|
Шероховатость
|
Вид поверхностного упрочнения
|
Наличие выточки на середине участка
|
|
Ra
|
-
|
r
|
|
|
0.63
|
|
2
|
3
|
Рисунок - 1 Схема вала
СОДЕРЖАНИЕ
ВВЕДЕНИЕ
. Проектный
расчет вала
. Проверочный
расчет вала на выносливость
ЗАКЛЮЧЕНИЕ
СПИСОК
ИСПОЛЬЗОВАННЫХ ИСТОЧНИКОВ
ВВЕДЕНИЕ
С сочетанием изгиба и кручения брусьев круглого поперечного сечения
особенно часто приходится встречаться при расчёте валов.
Если внешние силы, действующие на вал не лежат в одной плоскости,
например в валах редукторов, то каждую из них раскладывают на ее составляющие
по двум направлениям: вертикальному и горизонтальному. Затем строят эпюры
изгибающих моментов в вертикальной и горизонтальных плоскостях. Для построения
эпюры полных изгибающих моментов по вышеприведенной формуле находят моменты на
границах силовых участков и, по ним собственно, строят эпюру. Плоскости
действия этих моментов в разных сечениях вала различны, но ординаты эпюры
условно для всех сечений совмещают с плоскостью чертежа.
Эпюра крутящих моментов строится так же, как и при чистом кручении.
Опасное сечение вала устанавливается с помощью эпюр полных изгибающих
моментов М и крутящих моментов Мк по одной из теорий прочности. Если
в сечении вала постоянного диаметра с наибольшим изгибающим моментом М
действует наибольший крутящий момент Мк , то это сечение является
опасным.
Условие задачи:
Вал получает от двигателя через зубчатое колесо II мощность N2, передаваемую далее колесам I и III рабочими механизмами. Частота вращения вала
. Диаметры колес D1, D2,
D3. Окружные усилия на венцах колес F1, F2, F3
c вертикальной осью составляют углы, соответственно α1, α2, α3. При расчете принять, что нормальные напряжения
изгиба изменяются по симметричному циклу, касательные - по ассиметричному.
Требуется:
Проектный расчет вала (исходные данные в таблице 1)
1. Определить вращающие моменты и окружные усилия на каждом зубчатом
колесе.
2. Построить эпюру крутящих моментов.
. Построить эпюру изгибающих моментов в горизонтальной и
вертикальной плоскостях.
. Построить эпюру суммарных изгибающих моментов.
. Определить величину расчетного (эквивалентного) момента по
сечениям, используя 3 и 4 теорию прочности.
. Определить диаметры вала по участкам.
Проверочный расчет вала на выносливость (исходные данные в таблице 2, 3)
1. Вычертить схему конструкции вала.
2. Установить сечения в вале, подлежащие проверке на выносливость.
. Вычислить общий (суммарный) коэффициент снижения предела
выносливости в выбранных сечениях.
. Определить коэффициент безопасности при изгибе и кручении, и
общий коэффициент по пределу выносливости и по запасу статической прочности.
. Дать анализ результатов расчета.
Проверочный расчёт вала на жёсткость (исходные данные в таблицах 1, 2, 3 и
на рисунке 2).
1. Определить прогибы вала под зубчатыми колёсами.
2. Определить углы поворота сечений вала в опорах.
. Определить углы закручивания вала на участке между сечениями,
где находятся зубчатые колёса.
. Выполнить анализ полученных результатов. В основе анализа лежит
оценка выполнения условий жёсткости.
1.
Проектный расчет вала
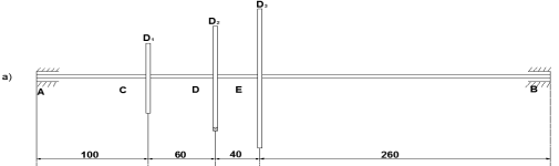
1. Вычерчивается исходная расчётная схема вала .
2. Определяются значения вращающих моментов и сил, обуславливающих
давление со стороны каждого колеса вала.
а) Определяется мощность, передаваемая ведущим колесом 2:
При этом потери передачи не учитываются.
б) Находим угловую скорость вращения вала
в)
Вычисляются величины крутящих моментов
Рисунок 2 - Полная расчётная схема вала
в) Создаются модели силового воздействия сопряженных зубчатых колес на
зубчатые колеса, насаженные на рассматриваемый вал с последующим
преобразованием этого воздействия во внешние силовые факторы, обуславливающие
кручение и изгиб в двух плоскостях вала. Под сопряженными понимаются зубчатые
колеса, непосредственно взаимодействующие с зубчатыми колесами, насаженными на
рассматриваемый вал. Для этого случая эти модели показаны на рисунках 3 и 4.
Сечение С Сечение Е

Рисунок 3 - Ведомые пары
Сечение D
Рисунок 4 - Ведущая пара
На рисунке 4 показана ведущая пара.
г) Вычисляются величины окружных усилий.
д)
Определяются вертикальные и горизонтальные составляющие сил, вызывающих изгиб
вала.
Вертикальные
составляющие:
Горизонтальные
составляющие:
.
Составляется расчётная схема, где вал рассматривается как элемент, работающий
только на кручение (рисунок 2, б).
.
Строится эпюра крутящего момента (рисунок 2, в).
.
Вычерчивается расчётная схема вала в виде балки, лежащей на шарнирных опорах, с
усилиями, действующими в вертикальной плоскости (рисунок 2, г).
.
Строится эпюра изгибающего момента для вертикальной плоскости.
а)
Определяются опорные реакции
.
вал опора крутящий изгибающий
Проверка:
б)
Вычисляется изгибающий момент
в
характерных сечениях вала
,
в)
Строится эпюра
(рисунок 2, д).
.
Вычерчивается расчётная схема вала в виде балки, лежащей на шарнирных опорах, с
усилиями, действующими в горизонтальной плоскости (рисунок 2, е)
.
Строится эпюра изгибающего момента для горизонтальной плоскости
а)
Определяются опорные реакции
.
Проверка:
б)
Вычисляется изгибающий момент
в
характерных сечениях вала
в)
Строится эпюра
(рисунок 2, ж)
.
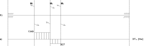
Строится эпюра суммарного изгибающего момента
.
а)
Вычисляется значение суммарного изгибающего момента
в характерных сечениях вала.
б)
Строится эпюра
(рисунок 2, з).
.
По характеру эпюр крутящего и суммарного изгибающего моментов определяются
опасные сечения - наибольшие значения моментов в пределах одного участка
(рисунок 2, в, з)
.
Для опасных сечений на основе третей или четвёртой теорий прочности вычисляются
значения расчётных (эквивалентных) моментов согласно формуле
В частности, согласно энергетической (четвертой) теории прочности:
На
участке AC 
На
участке CD 
На
участке DE 
На
участке EB 
.
Определяются величины диаметров по участкам с помощью формулы
, с последующим их округлением до стандартного
ближайшего значения.
На
участке AC
На
участке CD
На
участке DE
На
участке EB
.
Вычерчивается эскиз вала
Эскиз
вала представлен в (рисунок 2, и).
Радиусы
галтелей вычисляются согласно (таблица 4)
=5 мм,
=2 мм.
Радиус
и глубина выточки:
Таблица 1.4
2
Проверочный расчет вала на выносливость
Для вала, эскиз которого изображен в рисунке 1, и, диаметр заготовки
должен быть не более 80 мм. Материал сталь 45:
Проверку
вала на выносливость и статическую прочность выполняем на участке «ЕК» где
имеется выточка r=2, t=3.
Участок DE
В рассматриваемом участке «DE»
Имеет место концентратор напряжения - канавка.
1. Определяются эффективные коэффициенты концентрации напряжений (таблица
2.5). В данном случае интерес представляют значения коэффициента, относящиеся к
кольцевой канавке. r=2, t=3, r/d=0.05
t/r=1.5. Чтобы определить численные значения коэффициентов,
следует интерполировать табличные значения:
2. Определяются коэффициенты, учитывающие масштабный фактор (Таблица
2.6).
,
3. Определяются
коэффициенты влияния качества поверхности (таблица 2.7). В данном случае, как и
в предыдущем, имеет место шлифования поверхности вала
Тогда:
. Определяется
коэффициент поверхностного упрочнения
(таблица
2.8)
5. Вычисляются суммарные коэффициенты снижения предела выносливости
согласно соотношениям
6. Вычисляются максимальные напряжения в рассматриваемом сечении.
,
.
Значения
моментов определяются согласно (рисунок 2 в, з). Величины моментов
сопротивления. Диаметр 45мм:
,
. Вычисляются
величины амплитуд циклов
,
и значения средних напряжений циклов
,
.
,
=0,
. Вычисляются
коэффициенты запаса прочности при изгибе
и
кручении
.
,
.
9. Вычисляется общий коэффициент запаса прочности по отношению к пределу
выносливости S для выбранного сечения на основании
соотношения.
.
10. Определяются
величины коэффициентов запаса прочности по отношению к пределу текучести для
кручения
и изгиба
,
. Определяется
общий коэффициент запаса текучести
Таблица 2.5
Таблица 2.6
Таблица 2.7
Таблица 2.8
ЗАКЛЮЧЕНИЕ
В
сечении DE(Канавка), необходимо увеличить диаметры вала т.к.
<[S].
Т.к.
значение
в сечении DE больше единицы, следовательно
в сечении вала возникают некоторые пластические деформации.
СПИСОК
ИСПОЛЬЗОВАННЫХ ИСТОЧНИКОВ
1. Распопина
В.Б., Фильчагина Э.И. Сопротивление материалов. Расчёт вала при совместном
действии изгиба и кручения Учебное пособие - Иркутск: Изд-во ИрГТУ. - 2014, 99
с.
. Дарков
А.В., Шпиро Г.С. Сопротивление материалов: Учеб. для техн. вузов - 5-е издание,
перераб. и доп. - М.: Высш. шк., 2009. - 624 с.: ил.
. Сложное
сопротивление
. Сборник
задач по сопротивлению материалов под редакцией В.К. Качурина, Главная редакция
физико-математической литературы изд-ва «Наука»,
М., 1972, 432 СТР.