Проектирование ОРУ подстанции 'Летняя'-110 кВ
Содержание
Введение
. Выбор основного
электрооборудования
.1 Силовой трансформатор
.2 Выключатель и разъединитель
.3 Трансформатор тока
.4 Трансформатор напряжения
.5 ОПН
.6 Система шин
. Компоновка ПС
Заключение
Список литературы
Приложение
Исходные данные
. Для ОРУ-110 использовать типовую схему
6 «заход-выход» в соответствии с /Рис 1/.
Рис. 1 Заданная схема ПС.
. Заданный график нагрузки для ПС в
соответствии с / Рис.2 /.
Рис.2 График нагрузки
. Суточный график нагрузки потребителя 3
категории.
. Ток короткого замыкания на шинах
ОРУ-110 кВIкз(3ф)= 10 кА.
. Максимальная активность мощность
потребителя - 200 МВт, cos
ᵩ=0,9
. Постоянная времени затухания
апериодической составляющей тока КЗ Т=0,1 с.
Введение
В результате постоянного роста и развития
населенных пунктов, возникает потребность в производстве и распределении
большего количества электроэнергии. Соответственно, возникает необходимость в
строительстве новых подстанций.
Проектирование ПС представляет собой сложные
процесс обработки данных и принятие решений по выбору электрооборудования и его
размещению, с учетом всех правил и стандартов.
Данный курсовой проект предполагает возможность
создания реальной подстанции, основываясь на расчетах и принятых в ходе работы
решениях.
Электрическая схема подстанции «Летняя»-110кВ
Схема «Заход-выход» ПС «Летняя» выполнена в
соответствии со стандартами ФСК и представлена в Приложении 1 (лист 2).
Целью данной курсовой работы является
проектирование ОРУ подстанции «Летняя»-110 кВ .
Задачи курсового проекта:
изучить нормативно-правовую базу проектирования
подстанций, определяемую нормативно-правовыми актами РФ;
выбрать основное электрооборудование с учетом
исходных данных и проделанных расчетов;
определить оптимальную компоновку ПС с учетом
требований ПУЭ и норм технологического проектирования ПС высокого напряжения
выполнить чертеж одной из ячеек ОРУ в разрезе;
.
Выбор основного оборудования
.1 Силовой трансформатор
Uном = 110/10кВ;
Iкз = 10кА;
Рmax
= 200МВт;
cosφ=0,9;
nтр=1;
Условия выбора силового трансформатора:
Uн1, Uн2;
Схемы соединения обмоток;
Мощность трансформатора;
Учет графика нагрузки;
Конструкция;
Стойкость к токам КЗ.
Далее приведены расчеты для выбора
трансформатора.
Расчет полной мощности:
S
=
=
=222,2 МВА
Расчет номинального (рабочего тока):
На основании расчетов выбирается
двух-обмоточный трансформатор ТДЦ 250000/110-У1.
На рисунке Рис 1.1. и в табл. 1.1.
приведены габритные размеры данного трансформатора.
Рис.1.1 Описание внешнего вида
трансформатора ТДЦ 250000/110
Табл.1.1 Габаритные размеры
трансформатора ТДЦ 250000/110
|
Тип
Тр-ра
|
Размер,
мм
|
|
AB
|
BC
|
ad
|
bc
|
a
|
a1
|
c
|
l
|
L
|
B
|
H
|
|
ТДЦ-250000/110
|
2242
|
2242
|
1810
|
1810
|
905
|
960
|
800
|
5085
|
8916
|
5088
|
8466
|
ТДЦ 250000/110-У1- силовой
трехфазный двухобмоточный масляный трансформатор, изготавливаемый ПАО
«Запорожтрансформатор» для стран с умеренным климатом.
Описание трансформаторов типа ТДЦ
Силовые понижающие трехфазные двух-обмоточные масляные
трансформаторы ТДЦ-250000 на напряжение 110 кВ предназначены для передачи и
преобразования электрической энергии переменного тока. Остов трансформатора
состоит из трех-стержневой шихтованной магнитной системы с разветвленными
ярмами. Стяжка стержней и вертикальных ярм производится бандажами из
стеклоленты, горизонтальных ярм - металлическими полу-бандажами. Все
полу-бандажи изолированы от ярмовых балок. На верхних ярмовых балках по осям
стержней и вертикальных ярм расположены восемь кронштейнов, необходимых для
подъема активной части. Для снижения добавочных потерь и температуры перегрева
в элементах металлоконструкции трансформатора на нижних ярмовых балках остова,
прессующих кольцах и стенках бака предусмотрена установка магнитных шунтов
специальной конструкции. Обмотки ВН и НН концентрически расположены на трех
стержнях остова. Обмотка ВН непрерывного типа имеет вывод в середине, т.е.
состоит из двух параллельных ветвей, расположенных одна над другой, Каждая
ветвь обмотки содержит две параллели. Обмотка НН - спиральная, четырехходовая,
намотана в два слоя, которые соединены последовательно. Осевая прессовка
обмоток производится с помощью прессующих колец и винтов. Главная изоляция
обмоток маслобарьерного типа. Трансформатор имеет масляное охлаждение с дутьем
и принудительной циркуляцией воздуха и масла (вид охлаждения ДЦ). Для
охлаждения используются четыре охлаждающих устройства с маслоохладителями.
Окружающая среда
Окружающая среда невзрывоопасная, не содержащая
пыли в концентрациях, снижающих параметры изделий в недопустимых пределах. Не
предназначены для работы в условиях тряски, вибрации, ударов, в химически
активной среде. Высота установки ТДЦ над уровнем моря не более 1000 м.
Климатические условия
Масляные трансформаторы ТДЦ предназначены для наружной
или внутренней установки умеренного (от + 40оС до - 45оС) климата.
Условные обозначения
Т - трансформатор трехфазный,
ДЦ (OFAF) - принудительная циркуляция воздуха и масла с ненаправленным потоком
масла; 250000- номинальная мощность в ВА; 110 - класс напряжения обмотки ВН,
кВ. У1 - климатическое исполнение и категория размещения по ГОСТ 15150.
Табл. 1.2 Технические
характеристики трансформатора
|
Тип
|
Номинальная
мощность, ВА
|
Номинальные
напряжения обмоток, кВ
|
Схема
и группа соединения обмоток
|
Масса,
т
|
|
|
ВН
|
НН
|
|
полная
|
масла
|
транспортная
|
|
ТДЦ-250000/110-У1
|
250000
|
242
|
15,75;
13,8
|
Ун/Д-11
|
205
|
28,5
|
183
|
.2 Выключатель и Разъединитель
Условия выбора выключателя:
Uн;
Iн;
Конструкция (тип);
Термическое действие I2*t;
Допустимое апериодическое действие;
Управление цепи.
Параметры, требующие проверки для подтверждения
корректности выбора разъединителя:
Uн;
Iн;
Iэл.дин.ст.;
I2*t;
Конструкция;
Вторичные цепи.
Расчет параметров выключателя:
Iкз = 10кА;
Uн = 110кВ;
T=0,1 сек;
Расчет периодической составляющей:
Iпо=Iкз=10кА;
Ударный коэффициент:
Куд=1,61;
Расчет ударного тока:
Iуд=(√2)*Iпо*Куд=1,41*10*1,608=22,7
кА; iп(t)=Iпо;
Ia(t)=Iпо*e(-0,01/0,1)=9,04;
Расчет тока термической и электродинамической
стойкости:
Вк=Iтерм2*t-тепловой
импульс;
Вк=Iпо*2*(T+Tоткл);
Tоткл. принимается
равным 4 сек;
Вк=10*2*(0,1+4)=82 кА2*сек, ( из
расчетных данных);
Iтерм=
=
=4,5 кА, t=3
выбирается с соответствии со
временем термической стойкости необходимого выключателя.
Iдин=1.8*(√2)*Iтерм*t=
1,8*1,4*4,5*3=34,6кА;
Исходя из
каталожных данных, представленных в таблице 2.1, выбирается выключатель
элегазовый типа: ВГБУ-110У1 и разъединитель типа: РГ-110/2000- УХЛ1.
Табл. 2.1 Каталожные данные
|
№
|
Условия
выбора
|
Расчетные
данные
|
Каталожные
данные
|
|
|
|
ВГБУ-110У1
|
РГ-110/2000
УХЛ1
|
|
1
|
кВ110
126кВ
|
110кВ
|
|
|
|
2
|
А13122000
|
2000
|
|
|
|
3
|
кА1050
|
31,5
|
|
|
|
4
|
I2*t>Вк кА2*сек
|
82
|
40*3=1200
|
40*3=1200
|
|
5
|
Iдин.н>Iдин кА
|
34,6
|
125
|
80
|
|
6
|
кА
22,712580
|
|
|
|
|
7
|
Привод
|
|
Моторный
|
ПРГ-6
|
Элегазовые баковые выключатели серии ВГБ
разработаны на базе хорошо известного принципа гашения дуги. При срабатывании
выключателя элегаз сжимается и выбрасывается через контакты выключателя,
осуществляя гашение дуги.
Выключатели предназначены для эксплуатации на
открытом воздухе в районах с умеренным и холодным климатом (исполнение У1 и
УХЛ1) и соответствуют международным и российским стандартам. Достоинства:
заземленный резервуар (повышенная безопасность);
повышенная сейсмостойкость (низкий центр
тяжести);
минимальная необходимость в обслуживании;
повышенная надежность, безопасность и простота
конструкции;
встроенные трансформаторы тока;
минимальное время монтажа;
вводы с оболочкой из кремний-органической
резины.
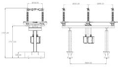
Рис.2.1 Габариты выключателя ВГБУ-110У1.
РГ-110/2000- УХЛ1;
Разъединители наружной установки серии РГ
производства ЗАО «Электротехническоеоборудование».
Назначение: Разъединители предназначены для
включения и отключения обесточенных участков электрических цепей, находящихся
под напряжением, для создания видимого разрыва цепи.
Конструкция: Присоединительные размеры новых
разъединителей выбраны с учетом возможности установки их на существующие
опорные конструции разъединителей серии РДЗ. Разъединители представляют собой
двухколонковые аппараты с поворотом контактных ножей в горизонтальной
плоскости. Разъединители состоят из главной токоведущей системы,
опорно-поворотной изоляции, несущей рамы и заземлителей.
Контактные ножи разъединителей выполнены из
медных шин или труб, к которым закреплены ламели из бронзового сплава. Выводные
контакты выполнены с переходными контактными роликами и герметично закрыты, это
обеспечивает стабильное контактное нажатие в течении всего срока службы и
небольшие усилия оперирования на рукоятке ручного привода. Контактирующие
поверхности разъемного и выводного контактов покрыты серебром. Разъединители
комплектуются высокопрочными фарфоровыми или полимерными изоляторами.
Управление главными контактными ножами разъединителей и заземлителями может
осуществляться как электродвигательными приводами ПД-14 УХЛ1, так и ручными
приводами ПРГ-6 УХЛ1. Разъединители и их основные составные части защищены
свидетельствами РФ на полезные модели. Преимущества: Разъединители серии РГ по
сравнению с выпускаемыми ранее разъединителями имеют следующие преимущества:
. На главных ножах применены (взамен гибких
связей) скользящие поворотные контакты с вращением на закрытых шарикоподшипниках
с заложенной в них смазкой на весь срок службы и с герметичным уплотнением
подшипников и контактов.
. В разъемных контактах наличие пластинчатого
серебра толщиной 0,8 мм, гарантирующее стабильное переходное сопротивление в
течении всего срока службы (30 лет) и механическую износостойкость 10 000
циклов Включение - Отключение;
. Основной контакт главных ножей выполнен в виде
"кулак - пальцы" с напайкой пластинчатого серебра, что исключает
выход из контакта под действием эксплуатационных нагрузок и не требует
дополнительных регулировок в эксплуатации.
. Заземлители выполнены рубяще - поступательного
действия (без пружин компенсации веса), конструкция которых обеспечивает
надежную фиксацию во включенном положении от сил отброса при токах короткого замыкания.
. Все стальные части разъединителей имеют
стойкие антикоррозионные покрытия горячим и термодиффузионным цинком.
Контактная система изготовлена из меди с покрытием гальваническим оловом или
серебром.
. Увеличена жесткость рамы разъединителя.
. Минимальные усилия при управлении главными
ножами и заземлителями за счет применения во всех узлах трения вращения
закрытых шарикоподшипников или шарнирных вилок не требующих смазки на весь срок
службы.
. Обеспечена полная защита основного контакта от
обледенения.
. Разъединители работоспособны при гололеде до
20 мм, тогда как ранее выпускаемые разъединители допускали оперирование при
толщине корки до 10 мм.
. Экранная арматура и противогололедные кожухи
выполнены из алюминиевых сплавов, что исключает необходимость обслуживания
(покраску) при эксплуатации.
. Изоляция разъединителей РГ выдерживает более
высокие испытательные напряжения грозового импульса относительно земли и между
полюсами, поэтому он может эксплуатироваться и в высокогорных районах.
. Предусмотрена возможность бесступенчатой
регулировки наклона поворотных оснований с изоляторами для установки захода
контактных ножей в разъемных контактах.
. Имеется механическая блокировка. Условия
эксплуатации: - температура окружающей среды: от -60 до +45°С; - толщина корки
льда при гололеде: 20 мм; - скорость ветра при гололеде: не более 15 м/с.
Условное обозначение: На напряжение 110кВ: РГ - 110/2000 УХЛХ1 Р -
разъединитель; Г - горизонтально - поворотный тип; 110 - номинальное
напряжение, кВ; 2000 - номинальный ток, А; УХЛ - климатическое исполнение по
ГОСТ 15150 - 69; Х1 - категория размещения по ГОСТ 15150 - 69 .
Рис. 2.2 Габариты разъединителя РГ-110/2000-
УХЛ1.
1.3 Трансформатор тока
Условия выбора трансформатора тока:
Uн;
Iн;
Iкз;
I2*t;
Конструкция;
Схема (количество обмоток).
Расчет параметров:
Iр max=Iр*1,4=1312*1,4=1836,8
А
Исходя из каталожных данных, выбирается
трансформатор тока марки «ТРГ-110».
Табл. 3.1 Каталожные данные
ТРГ-110.
|
№
|
Условия
выбора
|
Расчетные
данные
|
Каталожные
данные
|
|
1
|
кВ110110
|
|
|
|
2
|
А1836,82000
|
|
|
|
3
|
кА2сек4,523
|
|
|
Трансформаторы тока серии ТРГ
предназначены для передачи сигнала измерительной информации измерительным
приборам и устройствам защиты и управления в установках переменного тока
частоты 50 Гц с номинальным напряжением 110 и 220 кВ.
Трансформаторы предназначены
для эксплуатации в открытых и в закрытых распределительных устройствах в
районах с умеренным, тропическим (до плюс 55°С) или холодным климатом (до минус
60°С), невзрывоопасной окружающей средой, не содержащей агрессивных газов и
паров в концентрациях, разрушающих металлы и изоляцию. Содержание
коррозионно-активных агентов по ГОСТ 15150 (для атмосферы типа II).
Изоляционной средой
трансформаторов тока серии ТРГ является шести-фтористая сера SF6 (элегаз), или
смеси SF6 и CF4 (тетрафторметан-14). Контроль газовой среды осуществляется с
помощью сигнализатора плотности.
В специальном исполнении
трансформатора предусмотрено пломбирование выводов вторичных обмотки для
измерения.
Трансформаторы тока выпускаются
по ГОСТ 7746-2001 и техническим условиям, согласованными с РАО ЕЭС России.
Основные особенности и
преимущества
· Трансформатор тока
взрыво- и пожаробезопасен, так как в качестве главной изоляции применен
инертный негорючий газ, или смесь газов. Каждый трансформатор тока оснащен
эффективно действующим взрывозащитным устройством (мембраной), исключающим
повреждение трансформатора тока даже при коротком внутреннем замыкании.
Взрывобезопасность трансформатора подтверждена испытанием, проведенным по
методикам МЭК в аккредитованном испытательном центре.
· Во всех
уплотнительных соединениях применены сдвоенные уплотнения из специального
полимерного материала, который в отличие от резины нечувствителен к воздействию
низких температур и практически не подвержен старению. Повышенная надежность
узла уплотнения вторичных цепей (эпоксидныйклемник), в котором используется
многоуровневое лабиринтное уплотнение. Многократные испытания в камерах холода
и накопленный опыт эксплуатации подтвердил абсолютную герметичность изделия, в
том числе и при температурах окружающего воздуха до минус - 55°С. Алюминиевые
газоплотные корпуса изготавливаемые методом высококачественной сварки на
специализированном оборонном предприятии с использованием самых современных
методов обеспечения и контроля герметичности. Все это обеспечивает низкий
нормируемый уровень утечек изолирующего газа в год менее 0,5% от общей массы.
· Высокий класс
точности обмотки для измерения (вплоть до класса коммерческого учета
электроэнергии 0,2S).
· Возможность
изготовления трансформатора тока с 5-ю вторичными обмотками.
· Возможно
изготовление трансформаторов со специальной комплектацией вторичными обмотками
(например, с двумя обмотками для измерения).
· Возможность
изменения коэффициента трансформации. В эксплуатации коэффициент трансформации
можно изменять в соотношении 1:2:4. Изменение коэффициента трансформации
заключается в перестановке перемычек на головной части трансформатора без
нарушения герметичности газовой полости трансформатора. При этом узел
переключений перемычек надежно защищен от внешних воздействий окружающей среды.
· Наличие в обмотке
для измерения отпайки от половины числа витков позволяет использовать обмотку
для измерения с пониженным вдвое коэффициентом трансформации.
· Отсутствие
внутренней твердой изоляции исключает возникновение частичных разрядов,
позволяет не проводить периодические проверки и испытания изоляции, а также
снижает до минимума вероятность внутреннего пробоя изоляции.
· Усиленное крепление
стойки с активной частью гарантирует сохранность изделия даже в жестких
условиях транспортирования и при любых динамических нагрузках при эксплуатации.
· Возможность
пломбирования выводов вторичной обмотки для коммерческого учета электроэнергии,
что позволяет предотвратить несанкционированный доступ к этим выводам.
· Трансформатор тока
практически необслуживаемый. Применение элегазовой изоляции с низким уровнем
утечек, а также надежных, с большим сроком службы комплектующих практически
исключают объем регламентных работ и обеспечивают работу без обслуживания в
течение 20 лет при среднем сроке службы - 40 лет.
· По специальному
заказу возможна поставка трансформатора тока с покрытием горячим цинком
заводской опорной металлоконструкцией.
· По специальному
заказу возможна поставка заводской металлоконструкции покрытой горячим цинком
для установки выключателя ВГТ-110 совместно с тремя трансформаторами тока
ТРГ-110.
· Возможно
изготовление трансформаторов тока без возможности переключения коэффициентов
трансформации с помощью изменения количества витков первичной обмотки.
Переключение может быть предусмотрено на вторичной стороне, при общем
количестве выводов не более 13 шт.
КОНСТРУКЦИЯ Трансформатор тока
серии ТРГ представляет собой конструкцию, в верхней части которой расположен
металлический корпус, закрепленный на опорном изоляторе. Изолятор в свою
очередь закреплен на основании, в котором находится коробка выводов вторичных
обмоток. В металлическом корпусе закреплена первичная обмотка и ее выводы,
внутри корпуса размещаются вторичные обмотки. Внутренняя полость корпуса и
изолятора заполнена изолирующим газом.
Конструкция первичной обмотки
позволяет получить различные коэффициенты трансформации при изменении
количества витков путем последовательно-параллельного соединения секций
первичной обмотки. Возможно изготовление без переключения с одним коэффициентом
трансформации.
Вторичные обмотки помещены в
электростатические экраны, с целью выравнивания внутреннего электрического
поля. Магнитопровод вторичной обмотки для измерения изготовлен из
нанокристаллического сплава, магнитопровод вторичной обмотки для защиты
изготовлен из холоднокатаной анизотропной электротехнической стали.
Контроль давления газа производится
с помощью сигнализатора плотности, имеющего температурную компенсацию.
Сигнализатор плотности оснащен двумя парами контактов, что позволяет получать
сигнал при двух значениях плотности (давления) газа и дистанционно осуществлять
контроль давления газа.
При необходимости, имеется
возможность пломбирования выводов вторичной обмотки для учета электроэнергии.
Пломбирование осуществляется любым удобным способом. Для этого в конструкции
трансформатора предусмотрены специальные места.
В верхней части трансформатора
тока расположено защитное устройство, которое соединяет внутренний газовый
объем с атмосферой при значительном превышении внутреннего давления (например,
при избыточном заполнении газом или внутреннем дуговом перекрытии), что делает
аппарат взрывобезопасным.
На рис. 3.1 представлены
габариты трансформатора тока ТРГ-110.
Рис. 3.1 Габариты ТРГ-110.
1.4 Трансформатор напряжения
Условия выбора трансформатора напряжения:
Uн;
Класс точности ;
общая мощность ;
Конструкция.
Вторичная нагрузка ТН.
Табл. 4.1 Потребляемая мощность необходимого ТН
|
Прибор
|
Тип
|
Sодной обмотки
|
Число
обмоток
|
Число
приборов
|
Общая
потребляемая мощность S, В∙А
|
|
Вольтметр
(сборные шины)
|
Э
- 335
|
2
|
1
|
1
|
2
|
|
Ваттметр
|
Ввод
10 кВ
|
Д
- 335
|
1,5
|
2
|
1
|
3
|
|
Счётчик
активной и реактивной энергии
|
|
ПСЧ-4АР.05.2
|
2
|
1
|
1
|
2
|
|
Счётчик
активной и реактивной энергии
|
Линии
10кВ
|
ПСЧ-4АР.05.2
|
2
|
1
|
4
|
8
|
|
Итого
|
-
|
-
|
|
-
|
13
|
Согласно расчетной мощности S=13
ВА выбирается ТН НАМИ-110.
Выбор производим:
.По напряжению установки
Uуст
≤ Uном
Uуст =
10 кВ ≤ Uном
= 10 кВ
.По конструкции и схеме соединения: принимаем
трансформатор внутренней установки со схемой включения звезда.
.По классу точности: принимаем класс точности
равный 0,5.
.По вторичной нагрузке:
S2Σ
≤ Sном
S2Σ
= 13 В · А ≤ Sном
= 3 · 50 = 150 В · А
Принимаем к установке НАМИ-110, представленный
на рис. 4.1.
Электромагнитный антирезонансный однофазный
трансформатор напряжения типа НАМИ-110 УХЛ1 предназначен для установки в
электрических сетях трехфазного переменного тока частоты 50 Гц с глухо
заземленной нейтралью с целью передачи сигнала измерительной информации
приборам измерения, устройствам автоматики, защиты, сигнализации и управления.
Трансформатор напряжения НАМИ-110 УХЛ1 имеет
одноступенчатую некаскадную конструкцию. Он состоит из активной части,
помещенной в металлический корпус. На верху корпуса расположена изоляционная
покрышка с металлическим компенсатором давления, обеспечивающим компенсацию
температурных изменений объема масла и защиту внутренней изоляции от увлажнения.
Компенсатор закрыт защитным колпаком с прорезью для визуального контроля уровня
масла. Трансформатор заполнен трансформаторным маслом марки ГК.
Табл.4.2 Технические характеристики
трансформаторов напряжения НАМИ-110.
|
Ном.напряжение
первичной обмотки, кВ
|
110
√3
|
|
Наибольшее
рабочее напряжение первичной обмотки частоты 50 Гц, кВ
|
126
√3
|
|
Ном.напряжение
основной вторичной обмотки No1, кВ
|
0,1
√3
|
|
Ном.напряжение
дополнительной вторичной обмотки No2, кВ
|
0,1
|
|
Ном.напряжение
основной вторичной обмотки No3, кВ
|
0,1
√3
|
|
Номинальная
мощность, ВА, основной вторичной обмот-ки No1 в классах точности
|
III
вар.
|
I
вар.
|
|
0,2
|
200
|
120
|
|
0,5
|
400
|
250
|
|
1,0
|
600
|
400
|
|
3,0
|
1200
|
1200
|
|
Номинальная
мощность, ВА, дополнительной вторичной обмотки No2 в классе точности 3,0
|
1200
|
|
Номинальная
мощность, ВА, основной вторичной обмот-ки No3 в классах точности
|
III
вар.
|
I
вар.
|
200
|
120
|
|
0,5
|
400
|
250
|
|
1,0
|
600
|
400
|
|
3,0
|
1200
|
1200
|
|
Предельная
мощность первичной обмотки, ВА
|
2000
|
|
Предельная
мощность основной вторичной обмотки No1, ВА
|
1200
|
|
Предельная
мощность дополнительной вторичной обмотки No2, ВА
|
1200
|
|
Предельная
мощность основной вторичной обмотки No3, ВА
|
1200
|
|
Группа
соединения обмоток
|
1/1/1/1-
0 - 0 - 0
|
|
Климатическое
исполнение и категория размещения по ГОСТ 15150
|
УХЛ1
|
|
Номинальное
значение климатических факторов для исполненения “УХЛ” категории размещения
“1” :
|
Рис. 4.1 Габариты НАМИ-110.
1.5 ОПН
Условия выбора ОПН:
Uн;
Iраб;
Пропускная способность;
Конструкция.
УСЛОВНОЕ ОБОЗНАЧЕНИЕ
ОПН-(1)-(2)/(3)/(4)/(5) (6) УХЛ1
. П, ф - полимерный или фарфоровый
изоляционный корпус
. 110 - класс напряжения сети, кВ
. Uнр - наибольшее длительно допустимое
рабочее напряжение, кВдейств.
. 10, 20 - номинальный разрядный ток, кА
. 550, 850, 1200 - ток пропускной
способности, А
. II, II*, III, IV - степень загрязнения
по ГОСТ 9920 (I степень загрязнения не указывается
ОПН-П-110/78/10/500 ( II,III.IV)
Табл.5.1 Условия выбора ОПН-П-110/78/10/500.
|
№
|
Условия
выбора
|
Расчетные
данные
|
Каталожные
данные
|
|
1
|
кВ110 110
|
|
|
|
2
|
А
(максимальный рабочий ток, рассчитанный в пункте 1.3)1836,8 2000
|
|
|
Ограничители перенапряжений нелинейные типа
ОПН-110, ОПНп-110 предназначены для защиты трансформаторов, электрооборудования
распределительных устройств и аппаратов от грозовых и коммутационных
перенапряжений в сетях напряжением 110 кВ переменного тока частоты 50 Гц с
заземленной нейтралью.
ОПН-110 состоит из варисторов собранных в
колонку, заключенную в полимерный изоляционный корпус. Основой корпуса является
стеклопластиковый цилиндр, создающий необходимую механическую прочность
ОПН-п-110, на который нанесено защитное ребристое покрытие из
кремнийорганической резины. Цилиндр герметизируется специальным вязкоэластичным
кремнийорганическим компаундом и закрывается фланцами из электротехнического,
стойкого к эрозии алюминия, выполняющими роль контактных выводов аппарата
(подвесного или опорного исполнения).
Используемые в ОПН-110 металлооксидные варисторы
обеспечивают высокую энергопоглощающую способность и низкое остающееся
напряжение. Многократные длительные коммутационные и мощные грозовые импульсы
поглощаются без каких-либо заметных изменений рабочих характеристик
ограничителя перенапряжений.
В зависимости от требований заказчика
конструкция ОПНп может быть опорного или подвесного исполнения, иметь
изолированный от фланца заземляющий вывод или клемму заземления на фланце.
Конструкция ОПНп обеспечивает взрывобезопасность, позволяет эксплуатировать в
сейсмоактивных районах и в местах с повышенной загрязненностью.
Табл. 5.2 Данные ОПН-П-110/78/10/500.
|
Тип
ОПН на класс напряжения 110 кВ
|
Наибольшее
длительно допустимое рабочее напряжение Uнро (Uc),кВ
|
Номинальный
разрядный ток, кА
|
Номинальное
напряжение ОПН Uнопн (Ur), кВ
|
Класс
разряда линии
|
Пропускная
способность ОПН (2000 мкс), А
|
Удельная
энергоемкость ОПН (два импульса), кДж/кВ(Uнро)
|
Максимальные
остающиеся напряжения, кВ
|
|
|
|
|
|
|
|
при
коммутационном импульсе тока 30/60 мкс с амплитудой:
|
при
грозовом импульсе тока 8/20 мкс с амплитудой:
|
|
|
|
|
|
|
|
500
А
|
1000А
|
5
кА
|
10кА
|
|
ОПНп-110/78/10/500
|
78
|
10
|
97,5
|
2
|
500
|
5,0
|
191,9
|
197,6
|
236,1
|
250,3
|
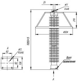
Рис. 5.1 Габариты ОПН-П-110/78/10/500
.6 Система шин, токопроводы
Условия выбора системы шин, токопровода:
Сечение и материал;
Iном;
Конструкция.
Провода выбраны типа : АС-70/11, с диаметром
16,8мм и весом 554 кг на 1 километр.
Элементы конструкции
Сердечник из стальных оцинкованных проволок;
Алюминиевая проволока.
Число проволок АС 70/11: 7; Число повивов АС
70/11: 1;
Проволоки провода АС скручены правильной
скруткой, при этом следующий повив всегда скручен в противоположную сторону.
Наружный повив всегда имеет правое направление скрутки.
Область применения
Провод неизолированный АС 70/11 применяется для
передачи электроэнергии в воздушных электрических сетях (ЛЭП).
Провод АС предназначается для эксплуатации в
условно-чистой (тип I) или промышленной (тип II) атмосфере воздуха при условии
содержания в атмосфере сернистого газа не более 150 мг/м2 сут (1.5 мг/м3) и
хлоридов менее 0,3 мг/м3 х сут.
Провод марки АС предназначен для эксплуатации в
макроклиматических районах с умеренным и холодным климатом (УХЛ), кроме районов
с влажным и сухим тропическим климатом (ТВ и ТС).
Длительно-допустимая температура провода АС
70/11 при эксплуатации не должна быть выше +90°С.
Срок службы АС 70/11 - 45 лет.
В соответствии с ПУЭ, выбираются изоляторы типа
ПС6-Б в количестве 9шт.
Для проектирования данной ПС выбирается жесткая
ошиновка типа ШОП. Шинные опоры наружной установки типа ШОП-110-И для гибкой
связи между алюминиевыми круглыми шинами жесткой ошиновки в открытых
распределительных устройствах (ОРУ) напряжением 110кВ переменного тока частотой
до 60 Гц.
Шинные опоры изготавливаются в климатическом
исполнении УХЛ, категории размещения 1 по ГОСТ 15543.1-89 и ГОСТ 15150-69, при
этом:
высота над уровнем моря не более 1000 м;
толщина корки льда не более 20 мм;
скорость ветра при гололеде до 15 м/с;
скорость ветра при отсутствии гололеда до 40
м/с;
верхнее значение температуры окружающего воздуха
плюс 40°С;
нижнее значение температуры окружающего воздуха
минус 60°С.
Окружающая среда невзрывоопасная, содержание
коррозионно-активных агентов должно соответствовать атмосфере I и II по ГОСТ
15150-69.
Расшифровка условного обозначения шинной опоры:
ШОП - Х1 - Х2X3 - Х4 УХЛ 1,
ШОП -товарный знак шинных опор, Х1 -номинальное
напряжение в кВ, Х2 - индекс обозначающий типоисполнение шинной опоры (И-
гибкая связь между шинами жесткой ошиновки), X3- условный диаметр алюминиевой
шины, Х4- степень загрязнения по ГОСТ9920, X3- условный диаметр круглых шин,
Х4- степень загрязнения по ГОСТ9920, УХЛ - климатическое исполнение по ГОСТ
15150, 1- категория размещения по ГОСТ15150
Пример условного обозначения типоисполнения
опоры на напряжение 110кВ с изоляцией степени загрязнения 4 для гибкой связи
круглых алюминиевых труб условным диаметром 100, при ее заказе и в документации
другого изделия:
ШОП-110-И100-4 УХЛ1 .
Табл. 6.1 габариты ШОП.
|
Марка
шинной опоры жесткой ошиновки
|
Диаметр
трубы жесткой ошиновки, мм, S
|
Условный
диаметр круглой шины, L
|
Строительная
высота, мм,
H
|
Масса,
кг
|
|
ШОП-110-И60-4
УХЛ1
|
60/54
|
60
|
1200
|
28,0
|
Табл. 6.2 Основные технические характеристики
|
Технические
характеристики
|
значение
|
|
Номинальное
напряжение, кВ
|
110
|
|
Наибольшее
рабочее напряжение, кВ
|
126
|
|
Испытательное
напряжение полного грозового импульса, кВ
|
450
|
|
50%-ное
разрядное напряжение промышленной частоты в загрязненном и увлажненном
состоянии, кВ - при удельной поверхностной проводимости слоя загрязнения,
мкСм
|
110
10
|
|
Минимальная
разрушающая сила на изгиб, кН, не менее
|
10
|
|
Минимальный
разрушающий крутящий момент, не менее, кН*м
|
1
|
|
Длина
пути утечки не менее, см
|
280
|
|
Наибольший
пик номинального кратковременно выдерживаемого тока( ток электродинамической
стойкости), кА
|
40
|
|
Допустимое
натяжение шин в горизонтальной плоскости шинных опор в месте крепления шин, Н
|
1480
|
|
Установочный
размер нижнего фланца, мм
|
Диам.
178* 4отв.диам.18
|
Шинные опоры изготавливаются на базе специальных
изоляторов, Разработанных для применения в шинных опорах. Специальные
требования к изоляционной конструкции, предназначенной для поддержания шин
жесткой ошиновки учтены в шинных опорах ШОП. Завод не рекомендует применение
стандартных изоляторов в качестве изолирующего тела шинных опор. Шинные опоры
ШОП предназначены для изоляции и крепления токоведущих частей в электрических
аппаратах и распределительных устройствах (РУ) электрических станций и
подстанций переменного тока напряжением 6-220 кВ частотой 50 Гц. Изоляторы
изготавливаются в соответствии с ГОСТ Р 52082-2003 "Изоляторы полимерные
опорные наружной установки на напряжение 6-220кВ. Общие технические условия".
Технические условия на шинные опоры ТУ 3494-005-59116459-0 "Шинные опоры
жесткой ошиновки на напряжение 10-220кВ " разработанными и выпущенными
ОАО"ФСК ЕЭС" с регистрацией в Госстандарте. Монолитный стержень в
изоляционном теле шинных опор исключает возникновение внутренних разрядов и
пробоя в отличие от труб заполненных пеной , а также утечки тока по внутренней
полости и по стенкам трубы в следствие выпадения конденсата, в отличии от полых
2. Компоновка и устройство ПС
Компоновка ОРУ выполняется с учетом стандартов,
правил и требований, приведенных в ПУЭ.
Порталы для крепления изоляторов и проводов
выполняются железобетонными или металлическими.
Железобетонные фундаменты под трансформаторы и
выключатели выполняются сборными или монолитными. Стойки выполняются
железобетонными.
Под трансформаторами выполняется приямок
(маслоприемник), заполненный гравием, для аварийного слива масла с объемом,
равным количеству масла в трансформаторе, с отводом масла в подземный
маслосборник.
Для крепления гибкой ошиновки используют
подвесные изоляторы, а для крепления жесткой ошиновки на комплектных ПС -
опорные изоляторы.
Для защиты от перенапряжений на ПС
устанавливаются разрядники или ограничители перенапряжения.
ПС ограждается ограждением высотой 1,8-2,5м.,
сетчатое с железобетонными стойками, которое исключает накопление снега вдоль
забора.
Заключение
В данном проекте было разработано ОРУ 110 кВ ПС
«Летняя», которое удовлетворяет всем стандартам и правилам проектирования ПС.
Все расчеты и принятые решения были обоснованы и применены в практическом
описании проектируемой ПС и ее частей.
подстанция трансформатор ток
напряжение
Список литературы
Книги, справочники, пособия:
1. Схемы принципиальные
электрические распределительных устройств 6-750 кВ. Северо-Западное отделение
Энергосеть проекта-Л.: 1993г.
2. Электрическая часть
электростанций и подстанций Б.Н. Неклепаев, И.П. Крючков М.: Энергоатомиздат,
1989г.
3. Федоров А.А.,
Старкова Л.Е. Учебное пособие для курсового и дипломного проектирования по
электроснабжению промышленных предприятий: Уч. пособие для вузов. - М.:
Энергоатомиздат, 1987,-368с.
4. Электрическая
часть электростанций и подстанций: Справочные материалы для курсового и
дипломного проектирования. Учеб. пособие для энергоэнергетических
специальностей вузов / Под ред. Б.Н. Неклепаева - 3-е изд., перераб. и доп. -
М.: Энергия, 1978, - 456с.