Проектирование жилого дома

  • Вид работы:
    Курсовая работа (т)
  • Предмет:
    Строительство
  • Язык:
    Русский
    ,
    Формат файла:
    MS Word
    266,18 Кб
  • Опубликовано:
    2015-03-12
Вы можете узнать стоимость помощи в написании студенческой работы.
Помощь в написании работы, которую точно примут!

Проектирование жилого дома

Оглавление

Введение

. Общая часть

.1 Описание генплана

.2 Объемно-планировочное решение

. Архитектурно-конструктивное решение

.1 Фундаменты

.2 Стены

.3 Перекрытия и покрытие

.4 Перегородки

.5 Окна и двери

.6 Лестницы

.7 Полы

. Отделочные работы

.1 Внутренняя отделка

.2 Наружная отделка

. Инженерное оборудование         

.1 Внутреннее электрооборудование

.2 Отопление и вентиляция

.3 Канализация

.4 Водоснабжение

.5 Внутренние слаботочные сети

.Технико-экономические показатели по зданию

Список литературы

Заключение

Введение

Основным назначением архитектуры всегда являлось создание необходимой для существования человека жизненной среды, характер и комфортабельность, которой определялись уровнем развития общества, его культурой, достижениями науки и техники. Эта жизненная среда, называемая архитектурой, воплощается в зданиях, имеющих внутреннее пространство, комплексах зданий и сооружений, организующих наружное пространство - улицы, площади, города.

В современном понимании архитектура - это искусство проектировать и строить здания, сооружения и их комплексы. Она организует все жизненные процессы. По своему эмоциональному воздействию архитектура - одно из самых значительных и древних искусств. Сила ее художественных образов постоянно влияет на человека, ведь вся его жизнь проходит в окружении архитектуры. Вместе с тем, создание производственной архитектуры требует значительных затрат общественного труда и времени. Поэтому в круг требований, предъявляемых к архитектуре наряду с функциональной целесообразностью, удобством и красотой входят требования технической целесообразности и экономичности. Кроме рациональной планировки помещений, соответствующим тем или иным функциональным процессам удобство всех зданий обеспечивается правильным распределением, лестниц, лифтов, размещением оборудования и инженерных устройств (санитарные приборы, отопление, вентиляция). Таким образом, форма здания во многом определяется функциональной закономерностью, но вместе с тем она строится по законам красоты.

Сокращение затрат в архитектуре и строительстве осуществляется рациональными объемно - планировочными решениями зданий, правильным выбором строительных и отделочных материалов, облегчением конструкции, усовершенствованием методов строительства. Главным экономическим резервом в градостроительстве является повышение эффективности использования земли.

1. Общая часть

.1 Описание генплана

Для жилого дома отведен участок прямоугольной формы, площадью 2700 м2. Проектируемое здание расположено с учетом направления господствующих ветров и естественного освещения.

В состав генплана входят следующие здания и сооружения:

-проектируемое здание;

гараж;

баня;

кладовая

На участке имеются, лиственные деревья, набивные дорожки.

Главный вход в здание ни чем не загораживается, сообщение между главным зданием и другими осуществляется по набивным дорожкам.

При решении проекта организации рельефа обеспечены допустимые по нормам продольные и поперечные уклоны, необходимые для размещения застройки и движения транспорта.


Все здания и сооружения рассчитаны на подключение к внешним инженерным сетям коммуникаций.

1.2 Объемно-планировочное решение

Здание жилого дома имеет простую конфигурацию, с размерами в осях 1-5 15,500 м, в осях А - Д 11,400м.

Крыша проектируемого здания многоуровневая. Высота по первому коньку 8,200 м, по второму - 7,200 м.Все помещения в здании обеспечены нормальной инсталляцией. В жилом здании размещаются:

На цокольном этаже - мастерская, гараж, кладовая, комната отдыха, котельная, холл, сауна, бассейн;

На первом этаже - столовая, кухня, прихожая, холл, кабинет, гостинная;

На втором этаже - ванная, 4 спальни, холл.

2. Архитектурно-конструктивное решение

.1 Фундаменты

В проекте приняты фундаменты сборные железобетонные. Под фундамент выполняется песчаная подготовка толщиной 100 мм. На песчаной подготовке устраиваются фундаменты, под несущие стены выполняется фундаментная подушка шириной 1200мм, под самонесущие и внутренние - фундаментная подушка шириной 1000мм.В целях защиты стен от увлажнения грунтовой влаги устраивают горизонтальную и вертикальную гидроизоляцию. Горизонтальная гидроизоляция выполняется путем обработки сухой смесью «Полимикс». Вертикальная гидроизоляция выполняется путем укладки рулонного полимерного материала.

.2 Стены

Наружные стены представляют собой конструкцию из пенобетонных блоков толщиной 400мм, слоем теплоизоляции из пенополистерола и наружного защитно-декоративного слоя толщиной 110мм.

Стены образованы пенобетонными блоками ГОСТ 30247 0-94. марки 700 на цементно-песчаном растворе М75.

По контуру оконных и дверных проемов должен предусматриваться слой негорючей теплоизоляции 100-120 мм из минераловатной плиты.

Необходимость устройства в стене специального слоя пароизоляции определяется расчетом. При необходимости пароизоляция устраивается, между несущим и теплоизоляционным слоями стены.

Толщина внутренних стен 380 мм. Марка пеноблоков М700, раствором М75. Стены выполнены с перевязкой швов и отштукатурены цементно-известковым раствором.

Над оконными и дверными наружными проемами укладываются брусковые перемычки под настилами перекрытий - брусковые усиленного сечения.

.3 Перекрытия и покрытия

Конструкция междуэтажного перекрытия состоит из железобетонных плит. Опирание на стены не менее 0,10м, уложены на стены сплошными концами, торцы плит заделываются бетонными вкладышами. Швы между плитами заделываются цементно-песчаным раствором марки 100.

.4 Перегородки

Межкомнатные перегородки - гипсокартонные, запроектированы в соответствии с указаниями СП 55-101-2000.

Конструкция перегородок состоит из металлического каркаса, обшитого гипсокартонными листами.

Каркас состоит из верхних и нижних направляющих и стоек. Крепление направляющих металлических профилей и деревянных брусков выполняется к полу и потолку. Стойки, примыкающие к стенам, следует крепить с помощью дюбелей, располагаемых с шагом не более 1000 мм, но не менее 3-х креплений на один профиль (брусок).

Стоечные профили каркаса устанавливаются между верхней и нижней направляющими с шагом 600 мм.

В стенках стоечных профилей предусмотрено устройство отверстий для пропуска инженерных коммуникаций.

Соединение профилей шарнирное: стоечный профиль плотно входит в натравляющий профиль и закрепляются методом «просечки с отгибом».

Данные решения по креплению профилей обеспечивают независимую работу каркаса перегородок и несущих конструкций здания.

Для повышения звукоизоляционных характеристик пространство между стоечными профилями перегородки заполняется изоляционным материалом. Вертикальные стыки ГКЛ располагаются только на стоечных профилях.

Стыки гипсокартонных листов с утоненными кромками зашпаклевываются при помощи шпаклевочной смеси «Фюгенфюллер» и армируются лентой. Окончательная отделка производится «Финиш-пастой».


.5 Окна и двери

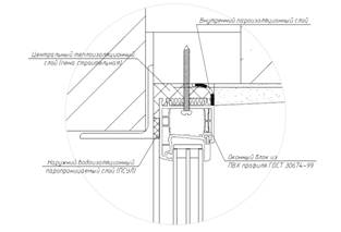
В проэкте применены оконные блоки из ПВХ профилей ГОСТ 30674-99 с двухкамерными стеклопакетами из листового стекла с межстекольным расстоянием 12 мм, класс изделий по показателю приведенного сопротивления теплопередаче Г1.

Конструкция узлов примыкания оконных блоков к проемам соотвецтвует ГОСТ 30971 - 2002 включает в себя три изоляционных слоя, имеющих различное функциональное назначение.

Наружный слой изолирует монтажный узел от природных факторов: дождя, ветра, мороза, солнечных лучей и звука. Для изоляции по наружному слою применены паропроницаемые само расширяющиеся уплотнительные ленты. Установление между оконной коробкой и стеновым проемом с внешней стороны монтажного узла, эти простые ленты, работая по принципу «сжатой пружины», независимо от температурных или усадчатых изменений размера монтажного зазора препятствуют продвижению воздуха, а вместе с ним и проникновению во внутрь стыка влаги и температуры. Вместе с тем ленты паропроницаемые, что обеспечивает свободный выход наружу влаги, выпадающей внутри стыка в слое образования конденсата. Кроме того ленты защищают утеплительный материал центрального слоя от разрушающего действия солнечных лучей прямого контакта с дожевой влагой.

Центральный слой монтажного узла изолирует от действия высоких и низких температур, а также от проникновения звука во внутрь помещения. Материалом для центрального слоя являются полиуретановые пенные утеплители (оконные монтажные пены).

Внутренний слой препятствует проникновению влаги изнутри помещения в центральный слой стыка и выходу конденсата из стены во внутрь помещения , что предотвращает образование плесени и грибка на внутренних поверхностях стыков и на откосах. Для устройства внутреннего слоя применены пароизоляционные ленты.


Внутренний слой шва должен обладать наиболее высоким пароизоляционными свойствами, для предотвращения диффузии водяного пара изнутри помещения в центральный слой шва. Наружный слой наоборот, должен обладать высокой паропроницаемостью для вывода влаги из шва наружу. Центральный слой всегда должен иметь промежуточные значения показателей пароизоляции, в противном случае неизбежно нарушение условий диффузионного перенося влаги и ее накопление в теле слоя.

Двери наружные марки ДН по ГОСТ 24698-81, внутренние глухие ДГ и остекленные ДО по ГОСТ 6529-88. Спецификация

Групповая спецификация элементов заполнения проемов

Поз.

Обозначение

Наименование

Количество

 



Оконные блоки


 

ОК1

        ГОСТ 30674 99

   ОП ОСП 15-18

   7

 

ОК2




 

ОК3




 

ОК4




 

ОК5




 

ОК6




 

ОК7




 

ОК8


    ОП ОСП 9-18

    6

 

ОК9




 

ОК10




 

ОК11




 

ОК12




 

ОК13




 

Дверные блоки

Д1

ГОСТ 6929-88

ДГ 16-9

13

Д2

ГОСТ 24698

ДС 19-9

1


.6 Лестницы

В курсовом проекте приняты деревянные одномаршевые лестницы со средними забежными ступенями и поворотом на 180 градусов ГОСТ 23120 - 78.

.7 Полы

Название помещения

Отделка пола

Гостиная Кабинет Столовая Холл Прихожая Комната отдыха

Ламинат Подоложка (гофрированый картон или вспененный полиэтилен) Полиэтиленовая пленка 1 слой Стяжка из цементоно-песчанного раствора марки 150 Пеноплекс Ж/б плита перекрытия

Кухня Бассейн Котельная Мастерская

Плитка керамическая ГОСТ 6787 - 90 Стяжка цементно-песчаного раствора марки 150 с армированной сеткой. Пеноплекс Гидроизоляция Бикрост СПП Бетонная подготовка ПГС утрамбованный Поваренная соль


3. Отделочные работы

.1 Внутренняя отделка

Спецификация внутренней отделки помещений приведена на первом листе графической части.

.2 Наружная отделка

Штукатурка фасадов выполняется известково-цементным раствором, приготавливаемого на месте из извести, песка, цемента, воды и добавок, в том числе обязательно пластифицирующих добавок.

В качестве вяжущего вещества применяется портландцемент по ГОСТ 10178 - 85 марок 300;400 и известь строительная по ГОСТ 9179 - 77 в виде известкового теста. Технические требования по ГОСТ 28013 - 98.

Подоконники должны иметь надежные сливы из оцинкованной стали, которые обеспечивают отвод атмосферной влаги и исключают возможность ее сбегания непосредственно по стене.

Для цветовой отделки применены известково-цементные краски, которые отличаются высокой атмосферостойкостью и представляет собой смесь белого портландцемента и извести со щелочестойкими пигментами и добавками хлористого кальция.

Могут быть применены также и другие долговечные и атмосферостойкие краски, в том числе полимерциментные краски на основе поливинилацетантной дисперсии, алкидные, перхлорвиниловые и хлоркаучуковые эмали.

Краску наносят без какой-либо дополнительной обработки выполненной штукатурки с расходом ее около 0,9 кг/м2 .

Отделка цоколя выполнена из материалов повышенной прочности и природного камня.

Продолжительность эксплуатации наружной штукатурки из сложного раствора до капитального ремонта устанавливают в соответствии с ВСН 58 - 88 составляет 30 лет.

4. Инженерное оборудование

.1 Внутреннее электрооборудование

Проект разработан на напряжение 220 В. с глухозаземленной нейтрально трансформатора.

По степени обеспечения надежности электроснабжения токоприемники проектируемого здания относятся ко 3 категории.

Проект предусматривает рабочее освещение во всех помещениях здания. Групповые осветительные сети выполняются скрыто: по потолкам - в пустотах плит перекрытия, по стенам в стыках и швах строительных конструкций.

Металлические нетоковедущие части электрического оборудования подлежа; заземлению путем присоединения их к нулевому проводу.


В проекте отвод бытовых и сточных вод выполнен самотеком в канализационную сеть по самостоятельным выпускам. Внутренняя фановая канализация используется для обеспечения водоотвода внутри помещения (от мест использования - ванная, кухня, душевая и т.п. - до точки выхода из помещения.

.3 Отопление и вентиляция

Курсовой проект отопления и вентиляции разработан в соответствии с действующими нормативными документами СНиП 2.04.05-86, ВСН 51-86, ВСН 50-86.

Расчеты проведены для температуры наружного воздуха города Архангельска - 23' С. Теплоснабжение здания проектируется от своей топочной с параметрами теплоносителя. 90 - 70 С.

.4 Водоснабжение

В проекте проектируемое жилое здание оборудуется объединенными системами хозяйственно- питьевого водоснабжения.

Холодное водоснабжение предусматривается от наружных сетей водопровода по двум вводам 100 мм, прокладываются на 0.5 м ниже глубины промерзания грунта.

Магистральные трубопроводы холодного водоснабжения прокладываются в подпольных каналах.

.5 Внутренние слаботочные сети

В курсовом проекте телефонизация здания осуществляется посредством кабельного ввода марки ТГ111 10x2x04..

Система радиофикации.

Для присоединения внутренней радиопроводки к внешней сети радиотрансляции на кровле здания устанавливается радиостойка с абонентским трансформатором марки ТАМУ - ЮТ. Для протяжки проводов до начала отделочных работ необходимо сделать отверстия диаметром 25 мм.

5. Технико-экономические показатели по зданию

здание жилой стена отделка

Строительный объем Yc 855,8м3

Общая площадь So 363,5м2

Полезная площадь Sn 363,5м2

Площадь застройки Ss 168,7м2

Жилая площадь 363,5м2

Коэффициент K1= Sn : Ss 2,15

Коэффициент K2= Yc : So 2,3

Заключение

В современном понимании архитектура - это искусство проектировать и строить здания, сооружения и их комплексы. Она организует все жизненные процессы. По своему эмоциональному воздействию архитектура - одно из самых значительных и древних искусств. Сила ее художественных образов постоянно влияет на человека, ведь вся его жизнь проходит в окружении архитектуры. Вместе с тем, создание производственной архитектуры требует значительных затрат общественного труда и времени. Поэтому в круг требований, предъявляемых к архитектуре наряду с функциональной целесообразностью, удобством и красотой входят требования технической целесообразности и экономичности. Кроме рациональной планировки помещений, соответствующим тем или иным функциональным процессам удобство всех зданий обеспечивается правильным распределением, лестниц, лифтов, размещением оборудования и инженерных устройств (санитарные приборы, отопление, вентиляция). Таким образом, форма здания во многом определяется функциональной закономерностью, но вместе с тем она строится по законам красоты.

Список литературы

Сетков В.И., Сербин Е.П. «Строительные конструкции», 2009.

Маклакова Т.Г.» Архитектура гражданских и промышленных зданий», - М.: Стройиздат, 2012.

Похожие работы на - Проектирование жилого дома

 

Не нашли материал для своей работы?
Поможем написать уникальную работу
Без плагиата!
Без нейросетей!