Проектирование мостового двухбалочного крана
Реферат
Кран мостовой, механизм подъема груза, механизм передвижения крана.
В курсовой работе представлена конструкция мостового крана, для
производства погрузо-разгрузочных, монтажных и других работ в цехах ремонтных и
производственных предприятий.
Цель работы - проектирование мостового крана.
В процессе работы проведен анализ существующих конструкций, механизмов и
приборов безопасности были произведены основные расчеты мостового крана.
Проведен расчет и разработаны чертежи мостового крана. Основные конструктивные
и технико-экономические показатели: грузоподъемность - 20т, пролет - 20 м,
скорость подъема груза - 0,13 м/сек, скорость передвижения тележки - 0,6 м/сек,
режим работы крана - 3К.
Разработаны мероприятия по охране труда.
Введение
Подъемно-транспортные машины важнейшим оборудованием для механизации
работ во всех отраслях народного хозяйства - в промышленности, строительстве,
на транспорте, в сельскохозяйственном производстве. Применяются для перемещения
людей в вертикальном, горизонтальном, и наклоном направлениях.
Современные поточные технологические и автоматизированные линии,
межцеховой и внутрицеховой транспорт, погрузочно-разгрузочные операции на
складах и перевалочных пунктах органически связаны с применением разнообразных
типов подъемно транспортных машин и механизмов, обеспечивающих непрерывность и
ритмичность производственных процессов. Поэтому применение данного оборудования
во многом определяет эффективность современного производства, а уровень
механизации технического производства степень совершенства и производительность
предприятия. При современной интенсивности производства нельзя обеспечить его
устойчивый ритм без согласованной и безотказной работы средств
транспортирования сырья, полуфабрикатов и готовой продукции на всех стадиях обработки
и складирования. Одним из разновидностей подъемно транспортных машин является
краны мостового типа.
Современные подъемно транспортные машины характеризуется широким
диапазоном грузоподъемности, габаритов обслуживаемых площадей, высокой
производительностью. Количественных ограничений по базовым параметрам для
современных подъемно транспортных машин не существует. Их создают для любых
условий возможного применения. Имеются только экономические ограничения.
Сложные тяжелые машины стоят дорого и применять их целесообразно лишь в
том случае, если можно загрузить настолько, чтобы они окупались за реальный
срок эксплуатации до морального и физического износа. Базовыми направлениями
развития подъемно транспортного оборудования являются совершенствование приводов
машин и механизмов, направленное на расширение диапазона регулирования
скоростей, повышение их КПД и надежности, разработка новых конструктивных
решений, в частности, c использованием встроенных планетарных устройств с
термически обработанными долговечными зубчатыми колесами.
Целью курсового проекта является проектирование мостового двухбалочного
крана.
1. Обзор литературных и патентных источников
Мостовым краном - называется грузоподъемная машина, передвигающаяся по
рельсам на некотором расстоянии от земли (пола) и обеспечивающая перемещение
груза в трех взаимно перпендикулярных направлениях. Мостовые краны являются
одним из наиболее распространенных средств механизации различных производств,
погрузочно-разгрузочных и складских работ. Перемещаясь по путям, расположенным
над землей, они не занимают полезной площади цеха или склада, обеспечивая в то
же время обслуживание практически любой их точки.
Мостовые краны применяют в цехах ремонтных предприятий и производственных
цехах предприятий. Конструкции специальных мостовых кранов весьма разнообразны.
Эти краны могут быть поступательно перемещающимися по крановым рельсам или
вращающимися вокруг вертикальной оси. К вращающимся кранам относятся хордовые,
радиальные и поворотные. Поступательно перемещающимися мостовые краны имеют
однобалочные и двухблочные мосты с нормальной длиной пролета или увеличенной до
40-60 м. Грузоподъемность этих машин составляет 400-500 т. и более.
Мостовой кран состоит из узлов - блоков, представляющих собой отдельные
сборочные единицы, обеспечивающие возможность сборки всех механизмов крана.
Мост крана представляет собой жесткую металлическую раму, состоящую из двух
пролетных и двух концевых балок коробчатого сечения. Вдоль пролетных балок
расположены площадки обслуживания.
Кран перемещается вдоль цеха или рабочей площадки по подкрановым путям,
проложенным на подкрановых балках или колоннах. Механизм передвижения крана
изготовляется двух типов - с центральным приводом и с раздельным приводом.
Механизм передвижения с центральным приводом состоит из двух приводных или двух
холостых колес, которые при помощи букс прикреплены к концевым балкам моста.
Электродвигатель расположен в середине пролета моста и соединен с редуктором
при помощи зубчатых муфт и приводных валов. Механизм передвижения крана с
раздельным приводом отличается от механизма передвижения с центральным приводом
тем, что около каждого приводного колеса с установленным редуктором монтируется
электродвигатель, который при помощи зубчатых муфт и приводного вала соединяется
с входным валом редуктора
Подъем и перемещение грузов в поперечном направлении осуществляются
подвижной тележкой, установленной на мосту крана. Тележка состоит из сварной
рамы с механизмами подъема груза и передвижения. Механизмы подъема различных
видов кранов принципиально одинаковы и состоят из электродвигателя, тормоза,
редуктора, барабана и полиспаста. Электродвигатель соединен с редуктором при
помощи зубчатых муфт и приводных валов.
В зависимости от назначения крана механизм подъема оснащается различными
грузозахватными органами - крюком, грейфером, магнитом и т.п. В отличие от
крюкового крана на тележке грейферного кроме механизма передвижения установлены
два одинаковых механизма: один для подъема грейфера, - другой для его замыкания
(рисунок 1).
Рисунок 1 - Кран мостовой грейферный
В магнитном кране в отличие от крюкового для захвата груза применяется
электромагнит. При этом тележка крана дополнительно снабжена барабаном для
намотки гибкого кабеля, по которому электрический ток подается к магниту. Если
кран оборудован подъемным электромагнитом, грейфером, траверсой и т. п., то
масса этих грузозахватных органов входит в грузоподъемность крана (рисунок 2)
.
Рисунок 2 - Кран мостовой специальный магнитный (КМЭСМ)
Управление механизмами крана осуществляется из кабины, подвешенной к
мосту крана на стороне, противоположной расположению главных троллеев. Для
обслуживания главных троллеев краны снабжены люльками-кабинами.
Мостовой кран оснащен следующими устройствами и приборами безопасности:
концевыми выключателями для автоматической остановки механизмов передвижения
крана, ходовой тележки и подъема грузозахватных органов; блокировкой для
автоматического снятия напряжения с крана при выходе на его галерею;
блокировками дверей входа на галерею и дверей входа в кабину управления и
посадочной площадки в целях исключения передвижения крана с открытой кабиной;
контактными замками с ключом, без которого не может быть подано напряжение на кран;
сигнальным прибором.
Для подачи электроэнергии к механизмам крана используются троллейный (с
жесткими и гибкими проводами) токоподвод. К механизмам тележек электроэнергия
может подаваться как по троллеям, так и по гибкому кабелю.
Троллеи для питания крана располагают вдоль подкрановых путей, а для
питания тележки - вдоль моста. В качестве жестких троллейных проводов
используют стальной прокат (уголковый, рельсовый). Гибкие троллейные провода
изготавливают из круглой стальной или биметаллической проволоки. Расстояние от
троллейных проводов до уровня пола должно быть не менее 3,5 м, а в проезжей
части не менее 6.
Управление механизмами кранов осуществляется из подвешиваемых к ним кабин
или с пола, с пультов.
Аппараты управления - контроллеры - обеспечивают пуск, реверсирование,
регулирование скорости, торможение и остановку двигателя.
Контроллеры бывают с механическим и магнитным приводом. Первые имеют
наиболее простую конструкцию и по исполнению контактной части могут быть
кулачковые и барабанные. Контроллеры с механическим приводом непосредственно
воздействуют на силовую цепь двигателя.
Магнитные контроллеры состоят из магнитной станции (контакторов и реле) и
командоконтроллера. Крановщик воздействует на командоконтроллер, включенный во
вспомогательную цепь, питающую обмотки контакторов и реле. Которые переключают
силовые цепи двигателей.
Контроллеры и командоконтроллеры устанавливают в кабинах управления таким
образом, чтобы обеспечить максимальное удобство управления краном: их маховики
и рукояти располагают на одном уровне и как можно ближе друг к другу.
Рисунок 3 - Мостовой кран: 1,4 - поперечные (конечные) балки; 2 -
мостовая продольная балка; 3 - грузовая тележка; 5 - крюковая подвеска; 6 -
кабина.
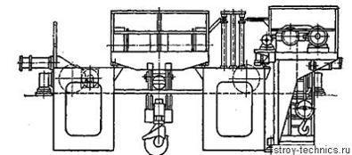
Мостовые краны по типу мостов подразделяются на двухбалочные и
однобалочные. Двухбалочный кран (рисунок 4) включает две основные части: мост и
тележку. Металлическая конструкция моста содержит две пролетные и две концевые
балки и перекрывает рабочий пролет производственного помещения или склада.
Рисунок 4 - Мостовой кран общего назначения двухбалочный
С помощью механизмов кран перемещается вдоль подкранового пути. Опорная
тележка такого крана (рисунок 5) состоит из рамы, одного или двух механизмов
подъема груза и механизма передвижения для перемещения ее по рельсам вдоль
моста. Однобалочный мостовой кран (рисунок 6) имеет консольную тележку, которая
перемещается по одной пролетной балке. Иногда кран снабжается двумя тележками:
опорной - с механизмом главного подъема и консольной - с механизмом
вспомогательного подъема (рисунок 7). Это способствует повышению маневренности
и лучшему использованию крана.
Рисунок 5 - Опорные тележки с одним (а) и с двумя (б) механизмами подъема
Рисунок 6 - Однобалочный кран
Рисунок 7 - Кран с опорной и консольной тележками
На (рисунке 8) показан однобалочный кран грузоподъемностью 50/10 т с консольной
тележкой с приводными колесами. Механизмы главного и вспомогательного подъема
смонтированы на концевых балках моста. Установка на тележке только верхних
блоков позволяет уменьшить высоту крана, а консольное расположение блоков -
обслуживать дополнительную площадь с торцовой стороны здания.
Рисунок 8- Однобалочный кран со стационарными механизмами подъема
Мостовые краны общего назначения используют также в сборочных цехах (в
качестве монтажных), в машинных залах, в котельных и дымососных отделениях
электростанций. При работе на открытом воздухе (склады, контейнерные площадки и
т. д.) Они перемещаются по путям, уложенным на специальных эстакадах (рисунке
9).
Рисунок 9 - Установка крана на эстакаде
На одних и тех же подкрановых путях могут работать несколько кранов. При
этом грузы, масса которых превышает грузоподъемность крана, поднимаются двумя
кранами с использованием траверсы (рисунок 10).
Рисунок 10 - Установка двух кранов грузоподъемностью по 100 т
В настоящее время грузоподъемность самых крупных уникальных моделей
мостовых кранов достигает 800 т. Однако наибольшее распространение имеют краны
грузоподъемностью до 50 т и меньшее - грузоподъемностью до 320 т. Наряду с
электрическим приводом в кранах применяется и гидравлический привод. На
(рисунке 11) показана схема такого крана грузоподъемностью 30 т фирмы Crane and
Hoist (Англия).
Рисунок 11 - Кран с гидравлическим приводом
ООО Производственная фирма «АСК» получила патент № 2249558 на изобретение
«Концевая балка мостового грузоподъемного крана», зарегистрированный в
Государственном реестре изобретений Российской Федерации 10 апреля 2005 года.
Формула изобретения:
. Концевая балка мостового грузоподъемного крана, содержащая
металлическую конструкцию, на которой установлены ходовые колеса со
смонтированными в подшипниковых узлах валами, по меньшей мере один из которых
кинематически связан с приводным механизмом, балка выполнена составной из трех
частей, включающих средний модуль и два прикрепленных к нему посредством
разъемного соединения торцевых модуля, каждый из которых выполнен в виде
корпуса, в котором установлено ходовое колесо, содержащего, по меньшей мере,
верхнюю, заднюю и боковые стенки, причем средний модуль имеет опорный элемент в
виде жестко прикрепленной к его торцевой поверхности вертикальной опорной
пластины, конгруэнтной задней стенке корпуса соответствующего торцевого модуля,
отличающаяся тем, что средний модуль содержит дополнительный опорный элемент в
виде жестко прикрепленной к его торцевой поверхности горизонтальной опорной
пластины, конгруэнтной верхней стенке корпуса торцевого модуля, при этом
крепление упомянутой горизонтальной опорной пластины к торцевой поверхности
среднего модуля усилено ребрами жесткости, приваренными к ее верхней
поверхности и верхней поверхности среднего модуля.
. Концевая балка мостового грузоподъемного крана по п.1, отличающаяся
тем, что корпус каждого торцевого модуля прикреплен к опорным элементам
среднего модуля балки посредством болтового соединения, при этом задняя и
верхняя стенки корпуса торцевого модуля балки имеют отверстия, соосные с
отверстиями, выполненными в вертикальной и горизонтальной опорных пластинах
среднего модуля балки.
. Концевая балка мостового грузоподъемного крана по п.1 или 2,
отличающаяся тем, что вал ходового колеса опирается на подшипники,
смонтированные в сквозном отверстии ходового колеса.
. Концевая балка мостового грузоподъемного крана по п.1 или 2,
отличающаяся тем, что вал ходового колеса опирается на подшипники,
смонтированные в стаканах, прикрепленных к боковым стенкам корпуса торцевого
модуля балки.
. Концевая балка мостового грузоподъемного крана по пп.1-4, отличающаяся
тем, что средний модуль имеет коробчатое сечение.
ООО Производственная фирма «АСК» получила патент № 2230019 на изобретение
«Грузовая тележка мостового крана», зарегистрированный в Государственном
реестре изобретений Российской Федерации 10 апреля 2003 года.
Формула изобретения:
. Грузовая тележка мостового крана, содержащая раму из продольных и
поперечных балок, опирающуюся на ходовые колеса, попарно смонтированные на
валах, размещенных в подшипниковых узлах поперечных балок; грузозахватный
орган; механизм подъема груза; мотор-редуктор, кинематически связанный с валами
ходовых колес, отличающаяся тем, что поперечные балки выполнены из замкнутых
пустотелых профилей, внутри которых установлены проходящие насквозь валы
ходовых колес; подшипниковые узлы выполнены в виде букс, установленных в торцах
поперечных балок, при этом поперечные балки связаны между собой по центру одной
продольной балкой, а в качестве механизма подъема груза использована грузовая
электрическая таль.
. Грузовая тележка по п.1, отличающаяся тем, что поперечные балки
выполнены из замкнутых пустотелых профилей круглого сечения.
. Грузовая тележка по п.1, отличающаяся тем, что поперечные балки
выполнены из замкнутых пустотелых профилей прямоугольного сечения.
. Грузовая тележка по любому из пп.1-4, отличающаяся тем, что продольная
балка выполнена из профиля открытого сечения.
. Грузовая тележка по любому из пп.1-5, отличающаяся тем, что продольная
балка выполнена из профиля замкнутого сечения.
. Грузовая тележка по любому из пп.1-6, отличающаяся тем, что в качестве
механизма подъема груза использована подвесная грузовая электрическая таль.
. Грузовая тележка по любому из пп.1-6, отличающаяся тем, что в качестве
механизма подъема груза использована опорная грузовая электрическая таль.
. Грузовая тележка по любому из пп.1-8, отличающаяся тем, что
дополнительно содержит настил рамы.
. Грузовая тележка по любому пп.1-9, отличающаяся тем, что дополнительно
содержит ограждение рамы.
2. Предварительные расчеты механизмов
Целью предварительного расчета механизмов крана является расчет основных
кинематических параметров для выбора тягового органа, габаритов и форм барабана,
электродвигателя, редуктора и тормоза.
.1 Расчет механизма подъема груза
Механизм подъёма груза предназначен для перемещения груза в вертикальном
направлении. Он выбирается в зависимости от грузоподъёмности.
Привод механизма подъёма и опускания груза включает в себя лебёдку
механизма подъёма. Крутящий момент, создаваемый электродвигателем передаётся на
редуктор через муфту. Редуктор предназначен для уменьшения числа оборотов и
увеличения крутящего момента на барабане.
Барабан предназначен для преобразования вращательного движения привода в
поступательное движение каната.
Усилие в канате набегающем на барабан, H:
Fб=Q
g
/z
un
h0=20000
9,81/4
2
0,99=24772,7 Н
где:
Q-номинальная грузоподъемность крана, кг;
z - число
полиспастов в системе;
un -
кратность полиспаста;
h0 - общий
КПД полиспаста и обводных блоков;
Поскольку
обводные блоки отсутствуют, то
h0=hп=(1 - nблUп)/un(1 - hбл)=(1-0,982)/2
(1-0,98)=0,99
Расчетное
разрывное усилие в канате при максимальной нагрузке на канат Fк=Fб=49545
Н и k=5,5
F³Fк
k=24772,7
5,5=136249,9 Н
где:
Fк - наибольшее натяжение в канате (без учета
динамических нагрузок), Н;
k - коэффициент
запаса прочности (для тяжёлого режима работы k=7,1).
Принимаем
канат по ГОСТ 2688 - 80 двойной свивки типа ЛК-Р конструкции 6х19(1+6+6/6)+1
о.с диаметром 15 мм имеющий при маркировочной группе проволок 1960 Мпа
разрывное усилие F=137000 Н.
Канат
- 15 - Г - 1 - Н - 1960 ГОСТ 2688-80 [2]
Требуемый
диаметр барабана по средней линии навитого стального каната, мм
D³d
e=22,4
15=336
где:
d - диаметр каната
е
- коэффициент зависящий от типа машины, привода механизма и режима работы
машины механизма.
Принимаем
диаметр барабана D=360 мм.
Длина
каната навиваемого на барабан с одного полиспаста при z1=2 и z2=3, м:
Lк=H
Uп
z+p
D(z1+z2)=9
4
2+3,14
0,36(2+3)=77,4
м
где:
Н - высота поднимаемого груза;
Uп - кратность
полиспаста;
D - диаметр барабана
по средней линии навитого каната;
z1 - число запасных ( неиспользуемых ) витков на
барабане до места крепления: (z1=1,5…2)
z2 - число витков каната, находящихся под зажимным
устройством на барабане: z2=3…4.
Рабочая
длина барабана, м:
Lб=Lk
t/p
m(m
d+D)
j=77,4
0,018/(3,14
1(1
0,018+0,36))=1,2
м;
где:
Lк - длина
каната, навиваемого на барабан;
t - шаг витка; t=dk+(2…3)мм
m - число слоев
навивки;
d - диаметр
каната;
j - коэффициент не
плотности навивки; для гладких барабанов;
Толщина
стенки литого чугунного барабана должна быть, м:
dmin=0,02
Dб+(0,006…0,01)=0,02
0,36+0,006…0,01=0,0132…0,0172
Принимаем
d=15 мм.
Приняв
в качестве материала барабана чугун марки СЧ 15 (dв=650 Мпа, [dсж]=130 Мпа) найдем напряжения сжатия стенки барабана:
dсж=Fб/t[dсж] = 24772,7/(15
10-3
15
10-3
)= 110,1 Мпа<130 Мпа
где:
Fб - усилие в канате, Н;
[dсж] -
допускаемое напряжение сжатия для материала барабана;
Статическая
мощность двигателя при h = 0,85, кВт:
Pc=Q
g
vг/103
h=20000
9,81
0,13/1000
0,85=36,93 кВт
где:
Q - номинальная грузоподъемность, кг;
vг - скорость подъема груза, м/с;
h - КПД механизма
Номинальная
мощность двигателя принимается равной или несколько меньше статической
мощности. Из таблицы III.3.5 выбираем крановый электродвигатель серии MTF
-512-6 имеющим номинальную мощность при ПВ=25% Рном=37,0 кВт и частоту вращения
n=720 мин-1. Момент инерции ротора Ip=1,425
кг
м2 максимальный пусковой момент двигателя Тmax=1150
H
м. [1]
Частота
вращения барабана (мин-1):
nб=60vг
Uп/p
Dрасч=60
0,2
4/(3,14
0,36)=33,97 об/мин
где:
Uп - кратность полиспаста;
Dрасч -
расчетный диаметр барабана, м.
Общее
передаточное число привода механизма:
U=n/nб=720/33,97=21,2.
Расчетная
мощность редуктора на быстроходном валу, кВт:
Рр=kр
Р = 1
37,0=37,0
кВт
где:
kр -
коэффициент, учитывающий условия работы редуктора;
Р
- наибольшая мощность передаваемая редуктором при нормально протекающем
процессе работы механизма.
По
передаточному числу и мощности выбираем редуктор цилиндрический,
двухступенчатый, горизонтальный, крановый типоразмера 2Ц2 - 450Н-80-11У1 с
передаточным числом Uр =25,34 и мощностью на быстроходном валу при тяжёлом
режиме работы Рр = 42,0 кВт [1]
Момент
статического сопротивления на валу двигателя в период пуска с учетом того, что
на барабан навиваются две ветви каната при hб=0,94 и hпр=0,9 (ориентировочно), Н
м:
Номинальный
момент передаваемый муфтой принимается равным моменту статических сопротивлений
Тмном=Тс=416,1 Н
м.
Номинальный
момент на валу двигателя Н
м:
Тном=9550Р/n=9550
37,0/720=490,8 Н
м
Расчетный
момент для выбора соединительной муфты, Н
м:
Тм=Тмном
k1
k2=416,1
1,3
1,2=649,12 Н
м
Выбираем
зубчатую муфту с тормозным шкивом диаметром Dт=250 мм, и
наибольшим передаваемым крутящим моментом 800 Н
м. [1]
.2
Расчет механизма передвижения грузовой тележки
Найдем
рекомендуемый диаметр ходовых колес Dк=360 мм.
Грузовая
тележка с двумя приводными колесами.
Коэффициент
качения ходовых колес по рельсам m=0,0006 м. Коэффициент
трения в подшипниках качения ходовых колес f=0,02.
Диаметр
вала цапфы ходового колеса, мм:
Dк=0,2
360=72 мм
Примем
также kр=2,5
Общее
сопротивление передвижению крана, Н:
Fпер=Fтр=kp(m+Q)g(fdk+2m)/Dk=2,5
(3000+20000)
9,81(0,02
0,072+2
0,0006)
/0,36=4136,6 Н.
где
m=0.15Q=0,15
20,0=3,0т=3000
кг-масса тележки с грузозахватными приспособлениями.
Статическая
мощность привода при h = 0,85, кВт:
Pc=Fпер
vпер/103
h=4136,6
0,6/(1000
0,85)=2,43
кВт.
где:
Fпер -
общее сопротивление передвижению тележки, Н;
vпер - скорость передвижения грузовой тележки, м/с;
h - КПД механизма
Выбираем
крановый электродвигатель MTF - 012-6 имеющим ПВ=25% номинальную мощность Р=2,7 кВт
и частоту вращения n=840 мин-1. Момент инерции ротора Ip=0,029
кг
м2, максимальный момент
.
Номинальный
момент на валу двигателя Н
м:
Тном=9550
Р/n=9550
2,7/840=30,7
Н
м
Частота
вращения вращения ходового колеса (мин-1):
nб=60
vпер/(p
Dк)=60
0,6/(3,14
0,36)=26,53 об/мин.
где:
vпер -
скорость передвижения тележки м/с;
Dк - расчетный
диаметр колеса, м.
Требуемое
передаточное число привода:
U=n/nк=840/26,53=31,7.
Поскольку
в приводе механизма перемещения крана должно быть установлено два одинаковых
редуктора. Выбираем редуктор типа ВК -500 передаточное число up=32,42 и Pр=4,1 кВт.
Номинальный
момент передаваемый муфтой двигателя, Н
м:
Т
=Тс=Fпер
Dк/(2
uр
h)=4136,6
0,36/(2
32,42
0,85)=27,0 Н
м.
Расчетный
момент для выбора соединительной муфты, Н
м:
Тм=Тмном
k 1
k2=27,0
1,2
1,2=38,9
Н
м.
Выбираем
втулочно-пальцевую муфту c крутящим моментом 60 Н
м с
диаметром D=90 мм.
3.
Проверочные расчеты механизмов крана
.1
Механизм подъема груза
В
механизм подъема проверяется по времени пуска и остановки двигателя, а также
проверяется выбранный двигатель на перегрев.
Момент
инерции муфты Iм=0,125 кг
м2.
Момент инерции ротора и муфты
I=Iр+Iм=1,425+0,125=1,55
кг
м2
Средний
пусковой момент двигателя при , Н
м:
Тпуск=Тср.п=(ymax+ymin)
Tном/2=(2,34+1,1)
490,8/2=844,2 Н
м
где:
ymax=Tмах/Тном=1150/490,8=2,34;
ymin- минимальная кратность пускового момента
электродвигателя: ymin=1,1…1,4
Тмах-
максимальный пусковой момент двигателя, Н
м;
Тном-
номинальный момент двигателя, Н
м;
Время
пуска при подъеме груза:
tп=(d
I
n/9,55(Тср.п-Тс))+9,55
Q
v2/n
((Тср.п-Тс)
h)=(1,2
1.55
915/ /9,55(844,2-416,1))+9,55
20000
9,81
0,132/915(844,2-416,1)
0,85=0,6с.
где:
Тср.п - средний пусковой момент двигателя, Н
м
Тс
- момент статического сопротивления соответственно на валу двигателя при пуске.
Фактическая
частота вращения барабана по формуле, мин-1:
nбф=n/uр=915/25,34=36,11об/мин
Фактическая
скорость подъема груза, м/с:
vгф=p
Dрасч
nбф/60uп=3,14
0,36
36,11/60
4=0,17м/с
где:
uп -
кратность полиспаста
Dрасч- расчетный диаметр барабана
Ускорение
при пуске, м/с2:
а=vгф/tп=0,17/0,6=0,28 < 0,5 [1]
Рисунок
12 - Усредненный график загрузки механизма подъема:
Из
графика усредненной загрузки механизма определим моменты, развиваемые
двигателем, и время его пуска при подъеме и опускании груза в различные периоды
работы механизма. Согласно графику, за время цикла (подъем и опускание груза)
механизм будет работать с номинальным грузом.
Q=20000 кг - 1
раз.
,5Q=10000
кг - 5 раз.
,1Q=2000
кг - 4 раза.
Таблица
№1 - Моменты, развиваемые двигателем, и время его пуска.
|
Наименование показателя
|
Обоз.
|
Единица
|
Результаты расчета при массе поднимаемого груза, кг
|
10000
|
2000
|
|
Натяжение каната у барабана при подъеме груза
|
Fб
|
Н
|
24772,7
|
12386
|
2477
|
|
Момент при подъеме груза
|
Тс
|
Н м416,1208,141,6
|
|
|
|
|
Время пуска при подъеме
|
tп
|
С
|
0,6
|
0,4
|
0,35
|
|
Натяжение каната у барабана при опускании груза
|
Fбоп
|
Н
|
24279,8
|
12139,9
|
2427
|
|
Момент при опускании груза
|
Tсоп
|
Н м293,2146,629,3
|
|
|
|
|
Время пуска при опускании
|
tоп
|
с
|
0,13
|
0,16
|
0,18
|
В таблице избыточный момент при опускании груза - сумма среднего
пускового момента двигателя и момента статических сопротивлений механизма при
опускании груза.
Средняя высота подъема груза составляет 0,5…0,8 номинальной высоты Н=9м.
Примем
Нср=0,8
Н=0,8
9=7,2м.
Момент
при опускании максимального груза Н
м,
Тс
=F

Dб
/U=
0,6
0,85/25,34=55,8
Н
м
Время
установившегося движения, с:
ty=Нср/vг=7,2/0,17=42,4 c.
Сумма
времени пуска при подъеме и опускании груза за цикл работы механизма, с:
åtп=0,6+5
0,4+4
0,35+0,13+5
0,16+4
0,18=5,65
с.
Общее
время включений двигателя за цикл с:
åt=2
(1+5+4)
ty+åtп=2
10
42,4+5,65=853,7
с.
Среднеквадратичный
момент Н
м:
Тср=
=
где:
åtп - общее время пуска механизма в разные периоды работы
с различной нагрузкой, с;
åТ2сty - сумма произведений квадрата моментов статических сопротивлений
движению при данной нагрузке на время установившегося движения при этой
нагрузке.
åt - общее время включения электродвигателя за цикл, с.
Среднеквадратическая
мощность двигателя, кВт;
Рср=Тср
n/9550=185,95
915/9550=17,82 кВт
где:
Тср - среднеквадратичный момент преодолеваемый электродвигателем.
Во
избежание перегрева электродвигателя необходимо, чтобы развиваемая двигателем
среднеквадратичная мощность удовлетворяла условию
Рср
£ Рном 17,82 < 37,0 - условие соблюдается
Момент
статического сопротивления на валу двигателя при торможении механизма, Н
м:
Тс=Fб
z
Dбг
hб
hт /2uт =24772,7
2
0,36
0,98
0,85/(2
25,34)=
=293,2
Н
м
где:
hт - КПД
привода от вала барабана до тормозного вала;
uт - общее передаточное число между тормозным валом и
валом барабана.
Необходимый
по нормам госпромнадзора момент, развиваемый тормозом при kт=1,5
Тт=1,5
293,2=439,7 Н
м.
Выбираем
тормоз ТКГ - 300 с тормозным моментом 500 Н
м,
диаметром тормозного шкива Dт=250 мм. [1]
У
механизма подъема груза фактическое время торможения при опускании, с:
tп=(d
I
n/9,55(Тт+Тс))+9,55
Q
v2/n((Тт+Тс)
h=(1,2
1,55
915/9,55*
*(439,7+293,2))+(9,55
20000
0,162
0,85/915(439,7+293,2)= 0,26 с.
Для
тяжёлого режима работы находим путь торможения механизма подъема груза, м:
S=vгф/1,7=0,16/1,7=0,094
м
Время
торможения, в предположении, что скорости подъема и опускания груза одинаковы,
с:
tтmax=S/0,5
vгф=0,094/0,5
0,16=1,176
Замедление
при торможении, м/с2:
ат=vгф/tт=0,16/1,176=0,136 <0,2 [1]
.2
Механизм передвижения грузовой тележки
Момент
инерции муфты, кг
м2:
Iм=0,1
m
D2=0,1
2
0,09=0,018 м.
Фактическая
скорость передвижения тележки, м/с:
vперф=vпер
u/up=0,6
31,7/32,42=0,49 - отличается от стандартного ряда на
допустимую величину.
Примем
коэффициент сцепления ходовых колес с рельсами j=0,12
коэффициент
запаса сцепления kj=1,1.
Вычисляем
максимально допустимое ускорение грузовой тележки при пуске в предположении,
что ветровая нагрузка Fp=0, м/с2
amax=[(zпр((j/kj)+(f
dk/Dk))/z)-(2m+f
dk)kp/Dk)
g=(2((0,12/1,1)+(0,02
0,072/0,36))/4-(2
0,0006+0,02
0,072)
2,5/0,36)
9,81=0,46 м/с2
где:
zпр- число
приводных колес;
z - общее число
ходовых колес;
j - коэффициент
сцепления ходовых колес с рельсами: при работе на открытом воздухе j=0,12
f - коэффициент
трения (приведенной к цапфе вала) в подшипниках опор вала ходового колеса
m - коэффициент
трения качения ходовых колес по рельсам м;
dk -
диаметр цапфы вала ходового колеса, м:
kp -
коэффициент, учитывающий дополнительное сопротивления от трения реборд ходовых
колес
Средний
пусковой момент двигателя, Н
м:
Тср.п=(1,5…1,6)
Tном=1,5
30,7=46,05 Н
м.
Наименьшее
допускаемое время пуска по условию сцепления, с:
tдоп=v
/amax=0,49/0,46=1,07 с.
Сопротивление
передвижению грузовой тележки без груза, Н:
F’пер=kp
m
g(f
dk+2m)/Dk=2,5
3000
9,81
(0,02
0,072+2
0,0006)/0,3==33,7Н.
Момент
статических сопротивлений при работе тележки без груза, Н
м:
Тс=F’перDк/2uрh=33,7
0,36/(2
32,42
0,85)=0,85 Н
м
Момент
инерции ротора двигателя Iр=0,02 кг
м2
и муфты быстроходного вала Iм=0,018
I=Ip+Iм=0,02+0,018=0,038
кг/м2
Фактическое
время пуска механизма передвижения тележки с грузом, с:
tп.г=(d
I
n/9,55
(Тср.п-Тс))+9,55
(Q+mт)
g
v2/n
((Тср.п-Тс)
h=
=(1,2
0,038
840/9,55
(46,05-0,85))+9,55
(20000+3000)
0,492/(840
(46,05-0,85)
0,85)=0,8 с.
Фактическое
время пуска механизма передвижения тележки без груза, с:
tп.г=(d
I
n/9,55(Тср.п-Тс))+9,55
mт
v2/n((Тср.п-Тс)
h=
=(1,2
0,038
840/9,55(49,05-0,85))+9,55
3000
0,492/(835
(49,05-0,85)
0,85)= 0,23 с.
Фактическое
ускорение грузовой тележки без груза, м/с2
аф=V
пер/tп=0,49/0,23=2,1
м/с2.
Проверяем
суммарный запас сцепления. Для этого найдем:
а)
суммарную нагрузку на привод колеса без груза, Н:
Fпр=m
zпр
g/z=3000
2
9,81/4=14715 Н.
б)
суммарную нагрузку на привод колеса с грузом, Н:
Fпр=(m+Q)
zпр
g/z=(3000+20000)
2
9,81/4=112815 Н.
Определим
фактический запас сцепления:
kj=Fпр
j/F’пер+mg((a/g)-zпр
f
dk/z
Dk)=112815
0,15/14715+20000
9,81((2,1/9,81)-2
0,02
0,072/4
0,36)=2,2>1,2.
Определение
тормозных моментов и выбор тормоза. Максимальное допустимое замедление грузовой
тележки при торможении, м/с2:
amaxт=((zпр((j/kj)-(f
dk/Dk))/z)+(2m+f
dk)/Dk)
g=((2((0,15/1,2)-(0,02
0,072/0,36))/4)+(2
0,0006+0,02
0,072)/0,36)
9,81=0,66 м/с2
Время
торможения грузовой тележки без груза, с:
tт=Vфпер/амахт=0,49/0,66=0,74 с.
Сопротивление
при торможении грузовой тележки без груза, Н:
Fтрт=mg(f
dk+2m)/Dk=3000
9,81(0,02
0,072+2
0,0006)/0,36=215,84 H.
Момент
статических сопротивлений на тормозном валу при торможении грузовой тележки, Н
м.
Тст=Fттр
Dk
h/2
up=215,84
0,36
0,85/(2
32,42)=1,02 Н
м
Момент
сил инерции при торможении грузовой тележки без груза, Н
м:
Тинт=(d
I
n/9,55
tт)+9,55
m
g
v2
h/(n
tт)=(1,2
0,038
840/9,55
0,74)+9,55
3000
0,492
0,85/840
0,74=24,8
Н
м
где:
tт- время
торможения механизма, с:
Расчетный
тормозной момент на валу тормоза, Н
м:
Трт=Тинт
- Тст=24,8 - 1,02 =23,78 Н
м .
Из
таблицы III 5.13 выбираем тормоз типа ТКГ - 160 с диаметром
тормозного шкива Dт=160 мм и
наибольшим тормозным моментом Тт=100 Н
м,
который следует отрегулировать до Тт=23,78 Н
м.
Минимальная
длина пути торможения, м:
S=V2/R=0,492/1,7=0,14 м.
Фактическая
длина пути торможения, м:
Sф=0,5
v
tт=0,5
0,49
0,74=0,18 м.
4.
Устройства безопасности
В
соответствии с требованиями нормативных документов ограничитель верхнего
положения крюковой подвески устанавливают на все механизмы подъема груза
кранов. Ограничитель автоматически отключает механизм при подходе крюковой
подвески к крайнему верхнему положению. При срабатывании ограничителя зазор
между верхом крюковой подвески и нижней частью уравнительных блоков,
установленных на грузовой тележке (барабана электротали), должен быть не менее
200 мм для кранов и 50 мм для электрических талей. В качестве ограничителя
применяют конечные выключатели двух типов: рычажные или шпиндельные.
Рычажный
конечный выключатель типа КУ состоит из корпуса, на валу 1 которого закреплены
кулачковые шайбы 2 (рисунок 13, а). При повороте вала с шайбами карболитовый
рычаг 4 с контактными мостиками 6 замыкает неподвижные контакты 7, установленные
на изолирующей подставке 9. Пружина 5 постоянно прижимает ролик 3 рычага 4 к
кулачковым шайбам. Для размыкания контактов ролик 3 крепят на рычаге 4 осью 8,
а пружину 5 ставят в положение К. Выключатель имеет две цепи управления, два
комплекта кулачковых шайб и рычагов с контактами, что обеспечивает различные
схемы их замыкания. Например, при срабатывании ограничителя и верхнем положении
конечный выключатель размыкает цепь управления приводом механизма для включения
его на подъем груза и замыкает ее только для работы в противоположном
направлении (на опускание груза).
В механизме подъема груза кранов применяют конечные выключатели КУ-703,
установленные на раме грузовой тележки под уравнительными блоками (рисунок
13,б). На валу выключателя закреплен двуплечий рычаг 10 с противовесом, к
свободному концу которого на тонком канате (цепи) 2 подвешен вспомогательный
груз 12.
Рисунок 13 - Рычажный конечный выключатель: а) принципиальная схема; б)
применение выключателя КУ-703; в качестве ограничителя верхнего; положения
крюковой подвески крана;
При подходе крюковой подвески 14 к крайнему верхнему положению она
приподнимает вспомогательный груз. Противовес поворачивает освободившийся
двуплечий рычаг и конечный выключатель размыкает необходимые контакты. Для
предотвращения раскачивания вспомогательного груза последний связан скобой 13 с
одной из ветвей грузового каната.
Кроме верхнего положения крюковой подвески на практике часто приходится
ограничивать ее нижнее положение, лимитируемое длиной грузового каната
(необходимо помнить, что на барабане лебедки всегда должны оставаться
дополнительные витки, например, при опускании груза в колодцы, приямки и пр.).
Очевидно, что рассмотренные выше конструкции конечных выключателей выполнять
это не могут. В указанных случаях применяют более сложные по конструкции
компактные шпиндельные (приводные) конечные выключатели типа ВУ с встроенным
червячным редуктором, связанным с одним из валов механизма подъема груза.
Вращающийся вал червяка 14 приводит во вращение червячное колесо 15, на валу
которого закреплена кулачковая шайба 2 с включающим 1 и отключающим 13
кулачками (рисунок 13,а). Кулачков на шайбе может быть не больше двух.
Подвижные контакты 2 укреплены на изолированном рычаге 10, поворачивающемся
относительно оси 9, и замыкают неподвижные контакты 12. Пружина 7 воздействует
на рычаг 10 и удерживает контакты в разомкнутом положении 1. При вращении шайбы
2 (направление показано стрелкой) включающий кулачок 1 воздействует на ролик 8,
который поворачивает рычаг 10 и замыкает контакты (положение 2). В этом
положении рычаг удерживает защелка 6 после поворота относительно оси 3 под
действием пружины 5. На защелке 6 закреплен ролик 4, на который воздействует
отключающий кулачок 13 при размыкании контактов. Передаточное отношение
червячной передачи 1:50 (рисунок 14,6).
Кулачки установлены на шайбе с возможностью перестановки, что позволяет
обеспечить размыкание контактов при достижении крюковой подвески крайнего
положения. Для двустороннего срабатывания ограничителя устанавливают две
кулачковые шайбы и соответствующее число кулачков и контактов. Обычно вал
червяка 14 ограничителя соединяют зубчатой (цепной) передачей 17 с валом 16
барабана механизма подъема груза (рисунок 14,в). Конечные выключатели ВУ-150А
предназначены для одностороннего ограничения верхнего положения крюковой
подвески, а ВУ-250А - для двустороннего ограничения верхнего и нижнего
положений.
В соответствии с требованиями Правил по кранам во избежание удара об
упоры или опасного сближения двух кранов, работающих на одном крановом пути,
предусмотрена установка ограничителей пути движения крана и грузовой тележки,
если скорость их движения превышает 32 м/мин (по СТ СЭВ 725-77 - 0,5 м/с) и с
поста управления нельзя надежно определить расстояние до упоров.
Рисунок 14 - Шпиндельный конечный выключатель типа ВУ: а - принципиальная
схема; б - устройство; в применение выключателя ВУ-250А в качестве ограничителя
верхнего и нижнего положений крюковой подвески крана;
При воздействии линейки на ролик рычага конечного выключателя рычаг
поворачивается по ходу механизма (из положения 1 в положение 2) и размыкает
контакты.
У кранов большой грузоподъемности с высокими скоростями рабочих движений,
имеющих большой выбег (путь движения после выключения механизма), выключающая
линейки должна иметь большую длину, что неудобно. Поэтому в этом случае
применяют конечный выключатель КУ-702, двуплечий рычаг которого не имеет
самовозврата и возвращается в исходное положение при обратном ходе механизма
принудительно при помощи отключающего упора, имеющего малые по сравнению с
линейкой размеры. В отдельных случаях применяют конечный выключатель КУ-704 с
зубчатым сектором, управляемым специальным упором (рисунок 14, б).
С целью исключения наезда крана на упоры и удара о буфер выключающую
линейку необходимо устанавливать таким образом, чтобы отключение привода
механизма происходило на расстоянии от тупикового упора не менее половины пути
торможения механизма (у козловых кранов - не менее полного пути торможения).
Пути торможения механизмов указывает завод-изготовитель крана в его паспорте.
Длина выключающих линеек, воздействующих на конечные выключатели, должна быть
такой, чтобы на длине пути торможения был обеспечен надежный контакт между
рычагом конечного выключателя и линейкой.
В случае применения двухскоростных приводов механизмов передвижения
устанавливают два конечных выключателя для одного рабочего движения крана, один
из которых переключает привод на движение с меньшей скоростью (посадочной,
установочной), а другой автоматически выключает привод при достижении крайнего
положения механизма. Расстояние между конечными выключателями должно быть не
менее соответствующего тормозного пути механизма.
Взаимное отключение механизмов передвижения мостовых и консольных кранов,
приближающихся друг к другу по одному крановому пути, должно происходить на
расстоянии не менее 0,5 м между ними. Для этого также применяют ограничители
пути движения кранов механического типа. В этом случае на поворотном рычаге
конечного выключателя 1, установленного на одном кране 4, закрепляют удлинитель
2, взаимодействующий при сближении кранов с установленной на другом кране
скобой 3 (рисунок 16).
Следует помнить, что, управляя грузоподъемными кранами со скоростью
движения менее 32 м/мин, не оборудованными ограничителями пути движения,
крановщик должен быть предельно внимателен, так как именно от его внимания
зависит безопасность крана.
С целью недопущения схода крана (грузовой тележки) с рельсового пути по
его концам устанавливают концевые упоры, воспринимающие нагрузки при остановке.

Рисунок 15 - Ограничитель пути движения грузовой тележки крана: а - с
выключающей линейкой; б - с отключающим упором;
Для смягчения возможного удара крана о концевые упоры, а также одного
крана о другой, при работе нескольких кранов на одном крановом пути применяют
упругие элементы- буфера, устанавливаемые на ходовых тележках (концевых балках)
кранов или рамах грузовых тележек. Буферы выполняют эластичными, пружинными
либо гидравлическими (рисунок 17). Типовые эластичные буферы имеют литые
амортизаторы, изготовленные из морозостойкой резины средней твердости. Также
применяют буферы с составными амортизаторами из резиновых дисков.
На кранах большой грузоподъемности при высоких скоростях рабочих движений
применяют буферы с упругими элементами в виде спиральных пружин сжатия, навитых
из круглой стальной проволоки. Так как при сжатии пружины большая часть
кинетической энергии переходит в потенциальную, такие буферы имеют резкую
отдачу. На грузовые тележки ставят буферы с одной пружиной, а на краны -
составные концентрические упругие элементы из двух пружин, обладающих при тех
же габаритах большей энергоемкостью. В силу конструктивной сложности
гидравлические буферы распространения не получили. Иногда в качестве упругих
элементов буферов применяют мягкие породы дерева. Замедление крана при
взаимодействии с концевым упором не должно превышать 4 м/с2.
Рисунок 16 - Установка ограничителей пути движения на двух работающих в
одном пролете мостовых кранах
Рисунок 17 - Буферы с амортизатором: а) - литым; б) - составным; в) и г)
- пружинным; 1- упругий элемент; 2 - корпус; 3- крепежные болты; 4- стальной
диск; 5- шток; 6 - пружина;
При необходимости в механизм поворота колонны крана встраивают
ограничители пути движения с регулируемым углом поворота, представляющие собой
конечные выключатели с воздействующими на них упорами. Учитывая возможность
упирания грузозахватного устройства крана в стеллаж при повороте колонны, рекомендуется
встраивать в механизм поворота фрикционную муфту предельного момента.
кран тележка тормоз грузовой
5. Мероприятия по технике безопасности
.1 Общие требования
Для управления грузоподъемными кранами и их обслуживания приказом
руководителя предприятия назначаются обученные и аттестованные крановщики не
моложе 18 лет, годные по состоянию здоровья, что должно быть подтверждено
результатами медицинского освидетельствования.
Крановщики мостовых и козловых кранов должны иметь квалификационную
группу по электробезопасности не ниже II.
Подготовка и аттестация крановщиков должны проводиться в
профессионально-технических училищах, а также на курсах и в технических школах
обучения рабочих указанным специальностям, создаваемых на предприятиях (в
организациях), располагающих соответствующей базой для теоретического и
производственного обучения и имеющих специальное разрешение (лицензию) органов
госпромнадзора.
Подготовка крановщиков должна осуществляться по программам, разработанным
учебным центром и согласованным с госпромнадзором. Аттестованным рабочим
выдается удостоверение установленной формы с фотокарточкой за подписью
председателя комиссии и представителя органов госпромнадзора. В удостоверении
крановщика должен быть указан тип крана, к управлению которым он допущен. Во
время работы крановщик должен иметь удостоверение при себе.
Перед допуском к самостоятельной работе крановщик должен пройти
стажировку на кране, на котором он будет работать. Продолжительность стажировки
устанавливается инженерно-техническим работником, ответственным за содержание
грузоподъемных машин в исправном состоянии, в зависимости от конструкции крана
и индивидуальных способностей крановщика и должна составлять не менее 10 дней
для крановщиков, работающих на кранах общего и специального назначения, и не
менее 1 мес для крановщиков, работающих на кранах, эксплуатирующихся в
металлургическом производстве, и на кранах-перегружателях.
На основании настоящей Типовой инструкции организация разрабатывает
производственную инструкцию для крановщиков с учетом конструкции кранов,
условий их эксплуатации и места установки. Производственная инструкция должна
содержать конкретные указания по оценке технического состояния приборов,
устройств и механизмов, непосредственно влияющих на безопасность работы крана,
а также порядок обмена сигналами между крановщиком и стропальщиками.
Крановщик, переводимый с крана одного типа на другой, например с
башенного на мостовой, перед назначением на должность должен быть обучен по
соответствующей программе и аттестован в порядке, установленном Правилами.
Обучение в этом случае может производиться по сокращенной программе,
согласованной с органами госпромнадзора.
При переводе крановщика с одного мостового или козлового крана на такой
же кран, но другой конструкции он должен быть ознакомлен с особенностями
устройства и обслуживания такого крана и пройти стажировку. После проверки
практических навыков крановщик может быть допущен к самостоятельной работе на
кране данной конструкции. Порядок стажировки и проверки практических навыков
устанавливается владельцем крана. Перевод крановщика в смене с одного крана на
другой допускается только на те краны, на которых он проходил стажировку, в
установленном на предприятии порядке.
Повторная проверка знаний крановщиков должна проводиться:
периодически (не реже одного раза в 12 мес);
при переходе на работу на другое предприятие;
по требованию инспектора госпромнадзора или инженерно-технического
работника по надзору за безопасной эксплуатацией грузоподъемных машин.
Повторная проверка знаний проводится комиссией предприятия в объеме
производственной инструкции для крановщиков. Если владелец крана не может
создать такую комиссию, то проверка знаний крановщиков может проводиться
комиссией другого предприятия по договору, что должно быть отражено в приказе
по организации надзора предприятия - владельца крана.
Участие инспектора госпромнадзора в повторной проверке знаний крановщиков
не обязательно.
Обученный крановщик, имеющий на руках удостоверение на право управления
кранами и их обслуживания, должен знать:
устройство крана, устройство и назначение механизмов и приборов
безопасности, кинематическую и электрическую схемы крана, его параметры и
технические характеристики;
производственные инструкции для крановщиков и стропальщиков;
руководство по эксплуатации крана;
при необходимости Типовую инструкцию для крановщиков-операторов по
безопасной эксплуатации грузоподъемных кранов мостового типа, оснащенных
радиоэлектронными средствами дистанционного управления;
содержание и порядок ведения вахтенного журнала;
положение (инструкцию) о порядке применения марочной системы при
эксплуатации мостовых кранов;
основные требования Правил устройства электроустановок и Правил
эксплуатации электроустановок потребителей в части, касающейся профессии
крановщика;
действующую на предприятии систему выдачи нарядов-допусков;
сроки и результаты проведенных технических освидетельствований,
технических обслуживаний и ремонтов;
сроки и результаты проведенных слесарями и электромонтерами периодических
осмотров;
проекты производства работ, технологические карты складирования грузов,
технологию погрузочно-разгрузочных работ и другие регламенты по безопасности;
безопасные способы строповки и зацепки грузов;
порядок перемещения и складирования грузов;
порядок безопасного выхода из кабины при вынужденной остановке мостового
крана не у посадочной площадки;
установленный на предприятии порядок обмена сигналами со стропальщиком
требования, предъявляемые к крановым путям;
требования, предъявляемые к канатам, съемным грузозахватным
приспособлениям и таре, и нормы их браковки;
ассортимент и назначение смазочных материалов и периодичность смазки
узлов и деталей крана;
приемы освобождения от действия электрического тока человека, попавшего
под напряжение, и способы оказания первой помощи;
местонахождение и устройство средств пожаротушения и порядок их
применения;
инженерно-технических работников, ответственных за содержание
грузоподъемных машин в исправном состоянии, лиц, ответственных за безопасное
производство работ кранами, слесарей, электромонтеров, стропальщиков и
наладчиков приборов безопасности.
Крановщик должен владеть навыками по управлению краном и его
обслуживанию.
По части содержания кранов в исправном состоянии крановщик должен
выполнять указания инженерно-технического работника, ответственного за
содержание грузоподъемных машин в исправном состоянии, а по части производства
работ - лица, ответственного за безопасное производство работ кранами.
Крановщик должен координировать работу стропальщика и следить за
действиями прикрепленного к нему стажера, не допуская при этом нарушения
производственных инструкций.
.2 Обязанности крановщика во время работы крана
При работе грузоподъемного крана крановщик должен руководствоваться
требованиями и указаниями, изложенными в руководстве по эксплуатации крана,
производственной инструкции, проектом производства работ или технологической
картой.
Во время работы крана крановщик не должен отвлекаться от своих прямых
обязанностей, а также производить чистку, смазку и ремонт механизмов.
Крановщик не должен допускать посторонних лиц на кран, а также передавать
кому бы то ни было управление краном без разрешения инженерно-технического
работника, ответственного за содержание грузоподъемных машин в исправном
состоянии.
При наличии на кране стажера ни крановщик, ни стажер не должны уходить из
кабины даже на короткое время, не предупредив об этом остающегося на кране. В
отсутствие крановщика стажеру не разрешается управлять краном.
Подниматься на кран и спускаться с него во время работы механизмов подъема
или передвижения крана или тележки не разрешается.
При внезапном прекращении электропитания или остановке крана по другим
причинам крановщик должен поставить штурвалы или рукоятки контроллеров в
нулевое положение и выключить рубильник в кабине. Если груз остался в поднятом
положении, крановщик обязан через стропальщика или других рабочих вызвать лицо,
ответственное за безопасное производство работ кранами, и в его присутствии
опустить груз путем ручного растормаживания. До прихода ответственного лица крановщик
не должен допускать нахождения или прохода людей под поднятым грузом.
Если в работе механизмов подъема или передвижения крана или тележки был
перерыв (остановка), то перед их включением крановщик должен подать
предупредительный звуковой сигнал.
Прежде чем включить в работу любой из механизмов, крановщик обязан
убедиться в том, что стажер находится в безопасном месте, а в зоне работы крана
нет посторонних людей.
Крановщик может производить совмещение движений (крановых операций)
только в соответствии с указаниями, содержащимися в руководстве по эксплуатации
крана; при этом не должно допускаться одновременное включение механизмов.
Крановщик не должен производить перевод с прямого хода на обратный до
полной остановки механизмов, за исключением тех случаев, когда необходимо
предотвратить аварию или несчастный случай.
Крановщик должен снижать скорость перед подходом крана к концевым
выключателям или отключающим их устройствам. Использование концевых
выключателей в качестве рабочих органов отключения механизмов не разрешается.
Крановщику запрещается выводить из действия приборы безопасности
(заклинивать контакторы, отключать ограничители высоты подъема, электрическую
защиту и т.п.), а также производить работу краном при их неисправности.
При любом временном уходе с крана крановщик должен отключить вводной
рубильник, вынуть ключ-марку из защитной панели мостового крана и взять его с
собой, а дверь кабины козлового крана запереть на замок.
Крановщик должен быть уведомлен записью в вахтенном журнале о допуске
персонала (рабочих) на крановые пути и проходные галереи мостовых кранов для
производства ремонтных или других работ по наряду-допуску, определяющему
условия безопасного производства работ.
При вынужденной остановке мостового крана не у посадочной площадки спуск
из кабины крановщик должен производить в порядке, установленном на предприятии
и изложенном в производственной инструкции.
Крановщику не разрешается использовать кран для перемещения грузов при
выполнении с моста крана строительных, малярных и других работ. Эти работы
должны производиться по наряду-допуску, определяющему меры безопасности, в
частности меры по предупреждению падения людей с крана, поражения электрическим
током, выхода на крановые пути, столкновения кранов. Устройство временных
подмостей, лестниц и т.п. на тележке запрещается. Работы должны вестись
непосредственно с настила тележки или с установленных на настиле стационарных
подмостей; при этом перед подъемом людей на тележку с троллеев должно быть
снято напряжение. Передвигать мост или тележку крана крановщик может только по
команде производителя работ. При передвижении крана работающие должны
размещаться в кабине или на настиле моста. Передвижение тележки и моста крана
при нахождении людей на тележке запрещается.
Перед выходом ремонтного персонала на галерею мостового крана, у которого
рельсы грузовой тележки расположены на уровне настила галереи, крановщик должен
установить тележку в непосредственной близости от выхода из кабины на настил.
При работе мостовых кранов, установленных в несколько ярусов, крановщик
должен осуществлять проезд верхнего крана над кранами, расположенными ниже,
только без груза, с крюком, поднятым в верхнее рабочее положение.
Если кран оснащен специальным грузозахватным органом (магнитом,
грейфером, захватами, клещами разных видов и т.п.), крановщик перед подъемом
груза должен убедиться в том, что груз надежно захвачен грузозахватным органом.
При необходимости перемещения груза над перекрытиями, под которыми
размещены производственные и служебные помещения, где находятся люди, крановщик
может приступить к работе только после получения письменного распоряжения
руководства предприятия и ознакомления с мероприятиями, обеспечивающими
безопасное выполнение работ. Производить работы следует под непосредственным
руководством лица, ответственного за безопасное производство работ кранами.
Совместную работу по перемещению груза двумя или несколькими кранами
крановщики должны производить лишь в отдельных случаях и осуществлять в
соответствии с проектом производства работ или технологической картой, в
которых должны быть приведены схемы строповки и перемещения груза с указанием
последовательности выполнения операций и положения кранов, а также другие
указания по безопасному перемещению груза.
При производстве работ крановщик должен руководствоваться следующими правилами:
включать механизмы крана можно только по сигналу стропальщика. Если
стропальщик подает сигнал, действуя вопреки производственной инструкции для
стропальщиков, то крановщик этот сигнал выполнять не должен.
За повреждения, причиненные действием крана вследствие выполнения
неправильно поданного сигнала, несут ответственность как крановщик, так и
стропальщик, подавший неправильный сигнал. Обмен сигналами между стропальщиком
и крановщиком должен производиться по установленному на предприятии (в организации)
порядку. Сигнал “Стоп” крановщик обязан выполнять независимо от того, кто его
подает;
перед подъемом или опусканием груза следует предупредить стропальщика и
всех находящихся на месте ведения работ о необходимости уйти из зоны
перемещения груза и зоны возможного падения груза. Перемещение груза можно
производить только при отсутствии людей в зоне работы крана. Эти требования
крановщик должен выполнять также при подъеме и перемещении грейфера или
грузоподъемного магнита. Стропальщик может находиться возле груза во время его
подъема или опускания, если груз находится на высоте не более 1000 мм от уровня
площадки;
при загрузке вагонеток, автомашин и прицепов, железнодорожных
полувагонов, платформ и других транспортных средств поднимать и опускать груз разрешается
только при отсутствии людей на транспортных средствах, в чем крановщик должен
предварительно убедиться. Разгрузка и загрузка полувагонов крюковыми кранами
должны производиться по технологии, утвержденной предприятием - владельцем
крана;
крюк подъемного механизма следует устанавливать над грузом так, чтобы при
подъеме груза исключить наклонное положение грузового каната;
при подъеме груза необходимо предварительно поднять его на высоту не
более 200-500 мм, чтобы убедиться в правильности строповки, надежности
крепления груза и исправности действия тормозов, после чего можно производить
его подъем на нужную высоту;
перемещаемые в горизонтальном направлении грузы или грузозахватные
приспособления следует предварительно приподнять на 500 мм выше встречающихся
на пути предметов;
при перемещении груза, находящегося вблизи стены, колонны, штабеля,
железнодорожного вагона, автомашины, станка или другого оборудования, следует
предварительно убедиться в отсутствии людей между перемещаемым грузом и
вагонами, стенами, колоннами и другими сооружениями. Укладку грузов в
полувагоны, на платформы и в вагонетки, а также снятие их следует производить,
не нарушая равновесие полувагонов, вагонеток и платформ;
мелкоштучные грузы следует перемещать в специально предназначенной для
этого таре. При этом должна исключаться возможность выпадания отдельных грузов.
Подъем кирпича на поддонах без ограждения разрешается производить только при
погрузке его (и разгрузке на землю) на автомашины, прицепы, в железнодорожные
полувагоны и на платформы;
перед подъемом груза из колодца, канавы, траншеи, котлована и т.п. и
перед опусканием груза следует путем опускания свободного (ненагруженного)
крюка предварительно убедиться в том, что при его низшем положении на барабане
остаются навитыми не менее полутора витков каната, не считая витков,
находящихся под зажимным устройством;
укладку и разборку груза следует производить равномерно, не нарушая
установленные для складирования грузов габариты и не загромождая проходы;
необходимо внимательно следить за канатами и в случае спадания их с
барабанов или блоков, образования петель или обнаружения повреждений следует
приостановить работу крана;
при одновременном действии нескольких кранов на одном крановом пути во
избежание их столкновения крановщики должны соблюдать меры безопасности,
изложенные в проекте производства работ или технологической карте;
при наличии у крана двух механизмов подъема одновременная их работа не
разрешается. Крюк неработающего механизма должен быть всегда поднят в верхнее
положение;
перемещение грузов грейфером или магнитом может производиться только при
выполнении требований, изложенных в руководстве по эксплуатации крана. В
частности, опасная зона работы крана должна быть обозначена, работы должны
производиться при отсутствии в зоне действия крана людей, подсобные рабочие
могут допускаться к выполнению своих обязанностей только во время перерыва в
работе крана после того, как грейфер или магнит будет опущен на землю (пол,
площадку). Перемещение сыпучих и кусковых материалов грейфером разрешается,
если размер кусков не превышает 300 мм, а насыпная масса не превышает величину,
установленную для данного грейфера; перевалка штучного груза допускается только
специальным грейфером;
перемещать грузы (например, плиты и болванки) кранами, оснащенными
магнитами, разрешается только когда исключается возможность перегруза крана;
перемещение груза, масса которого неизвестна, должно производиться только
после определения его фактической массы;
при перемещении длинномерных и крупногабаритных грузов они должны
направляться стропальщиком при помощи крюков или оттяжек;
строповка грузов должна производиться в соответствии с утвержденными
схемами строповки. Перемещение груза, на который не разработана схема
строповки, должно производиться в присутствии и под руководством лица,
ответственного за безопасное производство работ кранами. Для строповки должны
применяться стропы, соответствующие массе и характеру поднимаемого груза, с
учетом числа ветвей и угла их наклона. Стропы общего назначения нужно подбирать
так, чтобы угол между их ветвями не превышал 90°;
при работе крана с крюком, подъемным электромагнитом или грейфером
опускание груза, электромагнита или грейфера необходимо производить только
двигателем;
опускать перемещаемый груз разрешается только на предусмотренное проектом
производства работ или технологической картой место, где исключается
возможность падения, опрокидывания или сползания устанавливаемого груза.
На место установки груза должны быть предварительно уложены
соответствующей прочности подкладки. Укладку и разборку грузов следует
производить равномерно, не нарушая установленные для складирования грузов
габариты и не загромождая проходы;
кантовка грузов кранами может производиться на кантовальных площадках или
в специально отведенных местах. Выполнение такой работы разрешается по
разработанной технологии, в которой должны быть отражены последовательность
выполнения операций, способ строповки груза и указания по безопасному
выполнению работ.
.3 Обязанности крановщика в аварийных ситуациях
При возникновении на кране опасных факторов, которые могут вызвать аварию
или несчастный случай (трещины в металлоконструкциях, повреждение каната,
поломка осей колес и других элементов, неисправность механизмов, тормозов,
электрооборудования и др.), а также при появлении треска, биения, стука,
грохота в механизмах крановщик должен немедленно прекратить перемещение груза,
подать предупредительный звуковой сигнал, опустить груз на землю (пол,
площадку) и выяснить причину аварийной ситуации.
Если элементы крана оказались под напряжением, крановщик должен принять
меры личной безопасности, предусмотренные производственной инструкцией.
При возникновении на кране пожара крановщик обязан немедленно прекратить
работу, отключить рубильник питающей сети, вызвать пожарную охрану и приступить
к тушению пожара, пользуясь имеющимися на кране средствами пожаротушения.
При возникновении стихийных природных явлений (ураган, землетрясение и
т.п.) крановщик должен прекратить работу, опустить груз на землю, площадку или
перекрытие, покинуть кран и уйти в безопасное место.
При угоне крана ветром крановщик должен принять меры к его остановке в
соответствии с указаниями, изложенными в руководстве по эксплуатации крана
(применение противовключения и др.), отключить электропитание, покинуть кран и
закрепить его всеми имеющимися противоугонными средствами, в том числе с
применением специальных башмаков.
При возникновении угрозы разрушения перекрытий или стен здания, крановых
путей или подкрановых балок мостовых кранов крановщик должен немедленно
прекратить работу, остановить и обесточить кран и покинуть пределы опасной
зоны.
При возникновении других аварийных ситуаций крановщик должен выполнить
требования безопасности, изложенные в руководстве по эксплуатации крана.
Если во время работы крана произошли авария или несчастный случай,
крановщик должен немедленно поставить в известность лицо, ответственное за
безопасное производство работ кранами, и обеспечить сохранность обстановки
аварии или несчастного случая, если это не представляет опасности для жизни и
здоровья людей.
Обо всех аварийных ситуациях крановщик обязан сделать запись в вахтенном
журнале и поставить в известность инженерно-технического работника,
ответственного за содержание грузоподъемных машин в исправном состоянии.
.4 Ответственность
Крановщики мостовых и козловых кранов несут ответственность в
соответствии с действующим законодательством за допущенные ими нарушения
руководства по эксплуатации крана, производственных инструкций, требований
безопасности, изложенных в проектах производства работ, технологических картах,
нарядах-допусках и других документах, регламентирующих безопасную эксплуатацию
крана.
Выводы
В данной работе был рассчитан и спроектирован мостовой кран, были
рассчитаны параметры механизмов подъема и передвижения тележки.
Как показали проектные и расчетные данные, выбранные узлы и механизмы
отвечают правилам и нормам госпромнадзора и обеспечивают выполнение основных
положений технического задания.
Конструкция механизмов спроектированы с учетом специфики эксплуатации
механизма и требований, предъявляемых к прочности, надежности и долговечности
данных изделий.
Следовательно, можно сделать вывод: спроектированный мостовой кран
отвечает необходимым критериям работоспособности и обеспечивает выполнение требований
технического задания.
Список использованной литературы
. Справочник по расчетам механизмов подъемно - транспортных
машин. А.В. Кузьмин, Ф.Л. Марон. - М.: Высшая школа, 1983.
. Справочник по кранам: В 2 т. Брауде В.И., Гохберг М.М., и
др.; Под общей ред. М.М. Гохберга - М.: Машиностроение,1988.
. Подъёмно-транспортные машины. Атлас конструкций, под ред.
Александрова М.П. и Решетникова Д.Н. - М.: Машиностроение,1987.
. Правила устройства и безопасной эксплуатации грузоподъемных
кранов. - 2-е изд. - Минск: Центр охраны труда и пром. безопасности, 2009.