Розрахунок і вибір підігрівника низького тиску та випарникової установки
Міністерство освіти та науки
України
Донецький національний
технічний університет
Кафедра:
«Промислова теплоенергетика»
Курсова робота
по курсу “Теплотехнічні
процеси та прилади”
Виконав ст.гр.ТЕС 10 Українцев Є.С.
Донецьк, 2013
РЕФЕРАТ
Курсова робота: 26 с., 4 рис.3, 4 посил.
Об’єкти дослідження - підігрівник живільної води низького
тиску, багатоступенева випарникова установка.
Мета роботи - розрахунок і вибір підігрівника низького тиску
та випарникової установки.
Методи дослідження - теплотехнічний розрахунок підігрівника
низького тиску та випарникової установки.
Область використання - теплові та атомні електричні станціі,
ТЕЦ промислових підприємств.
ВИПАРНИКОВА УСТАНОВКА, ПІДІГРІВНИК, ПАРОТУРБІННА УСТАНОВКА,
ТЕПЛООБМІННИК, КОЕФІЦІЕНТ ТЕПЛОПЕРЕДАЧІ, ТЕМПЕРАТУРНИЙ НАПІР
ЗМІСТ
Вихідні дані
Вступ
1. Класифікація теплообмінних апаратів
1.1 Теплова схема ТЕЦ
.2 Підігрівники живільної води низького тиску
2. Розрахунок підігрівальників живільної води
3. Розрахунок та вибір оптимального варіанту
багатоступеневої системи випарникової установки
.1 Тепловой розрахунок багатоступеневої випарної
установки
Висновки
Перелік посилань
Вихідні дані
Нагрівальники 2-й та 3-й ступіней
. Витрати води через 2-ю та 3-ю ступіні, т/г 1000
. Температура живільної води на вході, ˚С 110
. Температура недогріва живільної води, ˚С 2,8
. Тиск гріючої пари, МПа 0,7
. Зовнішній діаметр трубки, м 0,016
. Внутрішній діаметр трубки, м 0,014
Нагрівальники 4-й та 5-й ступіней
. Витрати води через 4-у та 5-у ступіні, т/г 270
. Температура живільної води на вході, ˚С 85
. Температура недогріва живільної води, ˚С 1,6
. Тиск гріючої пари, МПа 0,8
. Зовнішній діаметр трубки, м 16
. Внутрішній діаметр трубки, м 14
Випарники
. Номінальна продуктивність однієї установки, кг/с 6
. Загальна продуктивність багатоступеневої установки, т/г 108
. Труби граючої секції, мм 33х2,5
. Кількість, шт. 1763
. Довжина, мм 1625
. Максимальний тиск первічної та вторічної пари, МПа 1,57
. Різниця температур насичення первічної та вторічної пари, ˚С 13-20
Вступ
Курсовий проект містить 3 основних розділа:
а) розрахунок підігрівачів живільної води низького тиску;
б) розрахунок випарювальної установки;
в) rpафічна частина.
Розрахунок теплотехнічного обладнання (підігрівачів низького
тиску та випарювальних апаратів) слід виконувати з використанням методічних
вказівок по курсу «Теплотехнологічні процеси та прилади», а також допоміжну
довідкову літературу, в яких приведені методика розрахунку та довідкові данні,
а також задачі курсового проектуваня, його тематика, склад проекту в цілому,
склад та порядок оформлення розрахунково-пояснювальної записки.
теплообмінний підігрівник випарний
1. Класифікація теплообмінних апаратів
По способу передачі тепла відрізняють слідуючі теплообмінні
апарати:
1.
Поверхневі
(рекуперативні), в яких обидва теплоносії розділені стінкою, причому тепло
передається через поверховість цієї стінки.
2.
Регенеративні,
в яких npoцec передачі тепла від горячього телоносія холодному розділяється в
часі на два періоди та проходить при попеременному нагріванні та охолоджені
насадки теnлообмінника.
3.
Змішувальні,
в котрих теплообмін відбувається безпосередньо при зіткненні теплоносіїв.
Основними типами поверхневих теплообмінників являються:
1)
трубчасті;
2)
пластинкові;
3)
спиральні;
4)
з
поверховісттю, яка утворюється стінками апарата;
5)
з
ребровою nоверховісттю теnлообмінника.
В залежності від агрегатного становища теплоносіїв розрізняють
апарати для теплообміну:
1)
між
газами (підіrрівальникі газів газами, газові теплообмінннкі та інші);
2)
між парою
та газом (парові підігpівальикі для повітря, пароперегрівачі та інші);
3)
між газом
та рідиною (холодильникі для газів);
4)
між парою
та рідиною (парові підігрівальникі, конденсатори та інші);
5)
між
рідинами (рідинні холодильники, теплообмінники та інші).
Трубчасті теплообмінники підрозділяються на сліідуючі види:
2)
«труба в
трубі»;
3)
зрощувальні.
1.1 Теплова схема ТЕЦ
Тепловою схемою називають умовне позначення устаткування
електростанції та зв’язків між елементами устаткування по пари та рідини
(конденсату). Теплова схема дає уявлення про технологічний процес перетворення
енергії і є основною розрахунковою схемою ТЕС.
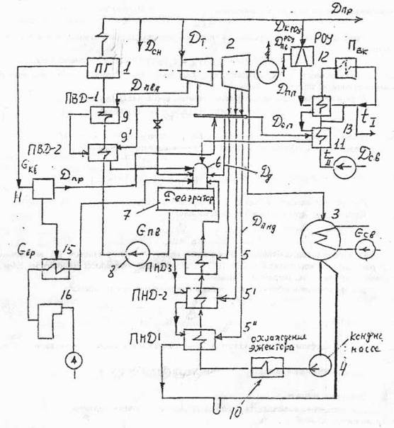
На малюнку 1 зображена теплова схема промислової ТЕЦ з
турбінами типа Т.
Рис 1 - Теплова схема промислової ТЕЦ з турбінами типа Т
Пара із котлів 1 надходить в парові турбіни 2.
З відбору турбін пара використовується для підогріва
живільної води в підігрівальниках низького тиску (ПНТ) 5, 5', 5'' в деаераторі
6 (Д) і в підігрівальниках високого тиску (ПВТ) 9, 9'. Із регульованого відбору
пар надходить на нагрів сітевої води в основному підігрівнику 11. Після турбіни
відпрацьована пара надходить в конденсатор 3, конденсується та конденсаційним
нагнітачем 4 через ПНТ подається в деаератор. Із питового бака 7 нaгнітачем 8
через ПВТ води подається в парогенератор (ПГ). Вода безперервної продувки котла
надходить в розширювач 14. Пара вторинного закіпання із розширювача
направляється в колектор відборної пари, а вода використовується для
підігpівача сирої води в теплообміннику 15. Для технологічних потреб одержують
пару від котлів через редукційно-охолоджувальну установку (РОУ) 12. Пара від
РОУ надходить в пікові підігрівальники 13, в яких сітьова вода, наприклад, для
теплофікації нarpівається до розрахункової температури 150 ˚С.
Підпиткова вода після хімічної водоочистки 16 через
підігрівальник сирої води надходить в деаератор. Крім того, на ТЕС
використовують випарники, сепаратори-пароперегрівники, водо-водяні
підігрівальники, градирні.
.2 Підігрівники живiльної води низького тиску
Підігpівники живільної води низького тиску належать до
поверхневих теплообмінних апаратів систем регенеративного підігріву живільної
води. Ці апарати зі сторони гpіючього теплоносія працюють в широкому диапвзоні
змін тиску та температур, що робить неменуче їх конструювання із значними
відмінностями.
Підігрівники призначені для випередительного підігріву
живильної, води паром з доборів парових турбін.
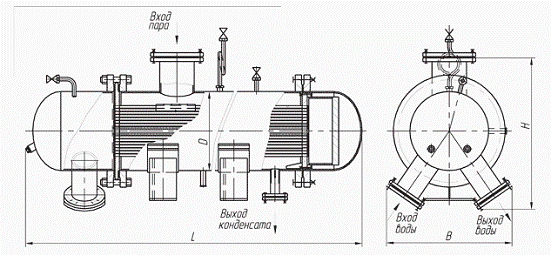
Основними вузлами апарата є корпус, верхня водяна камера і
трубна система.
Корпус зварений, виготовлений з листової сталі.
Водяна камера підігрівника виконана зі сталі тієї ж марки.
Трубна система складається з латунних трубок U-образної
форми. Кінці трубок развальцовани,у трубну дошку, що розділяє водяний і паровий
простір.
Каркас трубної системи має поперечні перімістечка, що
направляють потоки пари з корпусі й одночасно служать, проміжними суперечками
для трубок. Для запобігання трубок від дії струменя пари проти пароподвідного
патрубка установлюється відбійний щиток.
Число ходів води - від 2 до 6.
Галузевими стандартами передбачається максимальний рабочий
тиск rріючії пари в ПНТ до 0,9 МПа, а в ПВТ -6,6 МПа; живільної води ПНТ до 3,4
МПа, в ПВТ -38 МПа.
2. Розрахунок підігрівальників живільної
води
Для визначення теплового потоку, котрий необхідно передати до
теплообмінника, треба визначити температуру води на виході із теплообмінника.
де tвп - температура насичної пари на вході в
теплообмінник,
ύ - недогрів живільної води до температури насичення
гріючьої пари, ˚С
Втрати тиску в трубопроводах складають до 5% від тиску на виході із
підігрівальника або колектора відборів турбін. Тоді:
Р’n=О,95Рвти5
Р’n=О,95∙0,7=0,665
По таблиці “стан води і водяної пари” відшукуємо температуру насиченої
пари t’вп. Приймаємо температуру недогріва живільної води ύ.
Тепловий потік, який передається через поверхність теплообмінника,
визначається із формули
де Ср - теплоємність води, прийнята при середній температурі
живільної води.
Витрати гріючої пари на підігрівальник визначається з формули
де r - питома теплота пароутворювання при параметрах пари в
підігрівальнику.
Середній логарифмічний тепло перепад в підігрівальнику:
Поперед приймаємо коефіцієнт теплопередачі в підігрівальнику k1=3,0
кВт/(м2*К).
Необхідна поверхня теплообмінника визначається:
Із каталога теплообмінного обладнання вибираємо підігрівальник низького
тиску ПН-1100-23-5-1 з площиною поверхності 1177 м2.
Для визначення коефіцієнту теплоотдачі залишимо:
де α1, α2 - коефіцієнти тепловіддачі до живільної води від конденсуючої пари,нар
dвн - зовнішній та внутрішній діаметр труби, м.
Для визначення
коефіцієнту теплоотдачі необхідно:
а) число трубок
теплообмінника:
де lтр -
середня довжина трубки;
б) число трубок в
одному ході по воді:
де z - число ходів;
в) визначаємо переріз
одного хода по воді
г) швидкість води в
трубах при номінальній витраті
де ρ -
питома густина води;
д) швидкість води в
трубках при даному режимі
Для визначення
коефіцієнту теплоотдачі до живільної води використовуємо
де Nu - число
Нуссельта;
λ - коефіцієнт теплопровідності
води при середній температурі живільної води.
де Re - число Рейнольдса- число Прандтля
Ec - коефіцієнт, який ураховує вплив на теплообмін,
відношення довжини трубок до їх діаметра.
Знаходим число Рейнольда при середній температурі 134,92
де ν
- кінематична в’язкість води.
Приймаємо відношення
Для теплообмінників , які використовуються в промисловості Ес=1.
Визначаємо коефіцієнт теплоотдачі:
Число Рейнольда буде:
де
- питомий тепловий потік,
Н - відстань між перегородками,
μ - динамічна в’язкість.
Для приведеного теплообмінника:
В цілому коефіцієнт тепловіддачі
Уточнюємо недогрів живільної води на виході із теплообмінника
.
Отримане значення відрізняється від прийнятого на 2,01.
Отримане розрахункове значення необхідної поверхні теплообміну декілька
менше поверхні теплообмінника ПН-2200-32-7-III на 24 м2, що складає
2,1%. Отже приймаємо теплообмінник ПН-2200-32-7-III. В такому разі температура
живільної води на виході із теплообмінникапв’’=162,64-0,77=161,87
.2 Розрахунок підігрівальників живільної води 4 та 5 ступені
Втрати тиску в трубопроводах складають до 5% від тиску на
виході із підігрівальника або колектора відборів турбін. Тоді:
Р’n=О,95Рвти5
Р’n=О,95*0,8=0,76МПа
Приймаємо температуру недогріва живільної води ύ
tпв’’=168,3-1,6=166,7
Тепловий потік:
Витрати граючої пари на підігрівальник
Середньологарифмічна температура:
Поперед приймаємо коефіцієнт теплопередачі в підігрівальнику
k1=3,3 кВт/(м2*К).
Необхідна поверхня теплообмінника визначається:
Вибираємо підігрівальник низького тиску ПН-400-24-0,17-1 з
площиною поверхності 400 м2.
Визначемо коефіцієнт теплоотдачі. Число трубок теплообмінника
число трубок в одному ході по воді:
визначаємо переріз одного хода по воді
швидкість води в трубах при номінальній витраті
швидкість води в трубках при даному режимі
.
Знаходимо число Рейнольда

Визначаємо коефіцієнт теплоотдачі:
Недогрів живільної води на виході із теплообмінника:
Отримане значення відрізняється від прийнятого на 1,1.
Розрахункова темпеpaтypa живільної води на виході із підігрівника
(теплоо6мінника):
Тоді тепловий потік буде рівен:
Втрати гріючьої пари складають:
Температурний напір
Для полученого коефіцієнта теплопередачі та температурного напіру
поверховість нагріву складає
Получене poзрахункове значення необхідної поверховісті телоо6міну
декілька більше поверховісті теnлообмінника ПН-400-24-0,17-1на 0,67%. Отож
приймаємо данний теплообмінник. В такому разі температура живільної води на
виході із підігрівника:
Таким чином, проведений розрахунок показує достовірність данної
методики poзрахунку та вибору теплотехнічного обладнання для ТЕС.
3. Розрахунок та вибiр оптимального варiанту багатоступеневої
системи випарннкової уст4новки
На сучасній електричній станції для відновлення втрат
конденсата часто використовують випарні установки, які являють систему
поверхневих теплообміних апаратів (виnарники та конденсатори). В перших гріюча
пара віддає тепло пароутворення на випарювання очишенної води, яка утворює
вторичну пару. В других теплообмінних апаратах проходить процес конденсації
вторичної пари для більш економічного транспорту мереж основного конденсату.
При підвишенні потреб дистиляту на електростанції найбільш
доцільно використовувати багатоступеневі випарні установки. Із збільшеням числа
ступеней випарної установки кількість дистилята, які получають із однієї і тієї
кількості пари, відібраної із турбіни зростає. Тому очивидно, що при зривнянні
одноступіневої і багатостуnіневої установок, які працюють при однаковому
температурному переnаді, більш вигодно буде багатостуnінева установка.
В одноступіневій випарної установці вторична пара
використовується та конденсується в регенеративних підігрівниках живільної
води, деаераторах, або в трубчатих пучках іншого випарника низького тиску. В
багатоступеневих установках вторична пара кожної ступіні, зa виключенням
останньої, використовується як первична (гріюча) пара наступної ступіні.
Вторична пара останньої cтупіні конденсується в регеративному підігрівнику
низького тиску.
Конденсат, якій утворюється від гріючої пари в кожной
ступіні, починаючи від першої, поступає в збірний колектор і далі подається в
котельний агрегат.
Вибір числа ступіней випарної установки залежить від потреб
електростанції в конденцаті, а також від принятої схеми підготовки живільної
води, та продуктивності випарників
.1 Тепловий розрахунок багатосmyпіневої випарної установки
Попередньо приймаємо, що пара в кожній наступній ступіні
зменьшується на 0,9 від попередньої.
В V ступіні - 21,6/0,9=24 т/г.
В ІV ступіні - 21,6/0,81=26,67 т/г.
В ІІІ ступіні - 21,6/0,72=30 т/г.
В II ступіні - 21,6/0,63=34,3 т/г.
Таким чином, виходить, що продуктивність по дисцилятору II
ступіні повинна бути близько 33,3 т/г. Ураховуючи витрати дисциляту для
промивання, які складають 5% одержvємо
,3=x-x·0,05;=36,1 т/г=10,027кг/с
Щоб отримати витрати гріючої пари на I ступіні попередньо
визначаємо температурний напір I ступіні, приймаючи витрати гріючої пари II
ступіні. як вторичну пару I ступіні 34,97 т/г.
Температурний напір І ступіні визначаємо із формули
де к - коефіцієнт теnлопередачі (для першої стуnіні к=2500-3000 Вт/(м2К));
Δt - температурний напір, ˚С;- площа теnлообмінника
,м2;’’2 - ентальпія гріючої пари II ступіні, кДж/кг;2пв
- ентальпія живильної води при прийнятому тиску на І ступіні, кДж/кг;2к
- ентальпія конденсата II ступіні, кДж/кг; к - ентальпія конденсата
I ступіні, кДж/кг.
Для визначення ентальпій конденсата I та II ступеней приймаємо, що
втрати тиску між ступінями складають 5%.
Приймаємо температурний напір:
Виходячи з цього температурного напору, знаходимо втрату вторичної пари
в першої ступіні багатоступеневої випарної установки підставляючи дані про пару
із колектора.
Для 1 ступіні маємо:
Pгп=1,57МПа; tнгп=200,3˚С; i’’2п=2791кДж/кг;
Ураховуючи втрати температурного напору
при цій температурі Pвтор=1,185 МПа; i’’втор=2782кДж/кг;
Приймаємо втрати тиску між ступенями 1 та 2 - 5%, тоді : 2гп=1,185/1,05=0,96
МПа; t2нгп=178˚С; i’’гп=2783 кДж/кг.
Тоді продуктивність першої ступіні складає
Підігрів хімічно очишеной води проводимо конденсатом граючої пари.
Кількість гріючої пари складе
Для другої ступені маємо
Втрату гріючої пари II ступ.
Кількість дістилята
Тиск граючої пари з урахуванням втрат 5% 2гп=0,96 МПа; i’2к=754,8
кДж/кг; i’’2гп=2775,5кДж/кг.
Ураховуючи втрати температурного напору
при цій температурі Pвтор=0,693 МПа; i’’втор=2762,5
кДж/кг.
Тоді продуктивність другої ступіні складає
Перевіряємо можливу продуктивність пари II ст. виходячи із її
характеристики
Це цілком узгоджує отриманій продуктивності пари II ступіні.
Для третьої ступені маємо
Втрату гріючої пари III ступ.

Тиск гріючої пари з урахуванням втрат 5% 3гп=0,658 МПа; i’3к=686,3
кДж/кг; i’’3гп=2760,4 кДж/кг.
Ураховуючи втрати температурного напору
при цій температурі Pвтор=0,662 МПа; i’’втор=2745
кДж/кг.
Тоді продуктивність третьої ступіні складає
Перевіряємо можливу продуктивність пари III ст. виходячи із її
характеристики
Це цілком узгоджує отриманій продуктивності пари III ступіні.
Для четвертої ступені маємо
Втрату гріючої пари IV ступ.
Кількість дістилята
Тиск гріючої пари з урахуванням втрат 5% 4гп=0,627 МПа; i’4к=677,9
кДж/кг; i’’4гп=2758 кДж/кг.
Ураховуючи втрати температурного напору
при цій температурі Pвтор=0,439 МПа; i’’втор=2742,7
кДж/кг.
Тоді продуктивність четвертої ступіні складає
Перевіряємо можливу продуктивність пари IV ст. виходячи із її
характеристики
Це цілком узгоджує отриманій продуктивності пари IV ступіні.
Для V ступені маємо
Втрату гріючої пари V ступ.
Кількість дістилята
Тиск гріючої пари з урахуванням втрат 5% 5гп=0,418 МПа; i’5к=611,5
кДж/кг; i’’5гп=2740,5 кДж/кг.
Ураховуючи втрати температурного напору
при цій температурі Pвтор=0,284 МПа; i’’втор=2723
кДж/кг.
Тоді продуктивність V ступіні складає
Перевіряємо можливу продуктивність пари V ст. виходячи із її
характеристики
Це цілком узгоджує отриманій продуктивності пари V ступіні.
Після розрахунку даних по всім трьом ступеням проводимо розрахунок
загальної кількості дистилята:
Ця кількість розрахованого дистілята повністю забезпечує потреби
запланованої ДРЕСв 75 т/г і тому проведений розрахунок може бути завершеним.
Висновки
Виконавши цю курсову роботу я детальніше ознайомився з конструкцією та
функціональними можливостями тепломасообмінного обладнання, такого як
нагрівальник живільної води низького тиску, випарна установка.
Також маємо досвід в конструюванні та тепловому розрахункові підігрівальників
живільної води та багатоступіневих випарних установок.
Перелік посилань
1.
Методичні
вказівки до курсового проектування по курсу «Тепломасообмінні апарати ТЕС та
АЕС»/Складено О.Е. Сахно, Євтюшин О.В. Донецьк: ДонГТУ, 1997.
2.
Ривкин
С.Л., Александров А.А. Термодинамические свойства воды и водяного пара:
Справочник. - М.: Энергоатомиздат, 1984. - 80 с., ил.
3.
Теплообменная
аппаратура: Каталог-справочник. - М.: Нииинформатяж, 1969. - 156 с.
4.
Номенклатурный
каталог. Энергетическое оборудование для ТЭС и промышленной энергетики. - М.:
1984. - 256 с.