Расчет электродвигателя постоянного тока

  • Вид работы:
    Курсовая работа (т)
  • Предмет:
    Физика
  • Язык:
    Русский
    ,
    Формат файла:
    MS Word
    136,44 Кб
  • Опубликовано:
    2014-06-26
Вы можете узнать стоимость помощи в написании студенческой работы.
Помощь в написании работы, которую точно примут!

Расчет электродвигателя постоянного тока

1. Задание на расчет

Исходные данные:

мощность на валу P2 = 150 Вт;

напряжение сети U = 12 В;

частота вращения n = 4000 об/мин;

возбуждение -параллельное;

режим работы - длительный;

исполнение - закрытое;

температура окружающего воздуха - θ 0 = 25 ºС.

. Основные размеры электродвигателя

Расчетная или внутренняя электромагнитная мощность машины:

Вт,

где по кривой рис. 2.2.1 для Р2 = 150 Вт принято η = 0,65.

Ток якоря электродвигателя при параллельном возбуждении:

А

где ток возбуждения:

А

Э.Д.С. якоря электродвигателя:

 В

Машинная постоянная:

,

электродвигатель постоянный ток расчет

где принято α = (0,6÷0,70)=0,65 и по кривым рис. 2.2.2. для

 

Вδ = 0,4 Тл; AS = 100·102 А/м

Примем предварительно:

Диаметр расточки полюсов и расчетная длина пакета якоря будут:

м

м

Окончательный диаметр якоря:

м,

где принято δ = (0,2÷0,4)·10-3 = 0,3·10-3

Окружная скорость якоря:

м/сек

Полюсный шаг и расчетная полюсная дуга:

м

м,

где 2р = 2

Приближенно длина воздушного зазора:

 м

Действительная полюсная дуга: м

Частота перемагничивания стали якоря:

Гц.

. Обмотка якоря

Вылет лобовой части обмотки по оси вала:

м

Полезный поток полюса при нагрузке машины:

Вб

Число проводников обмотки якоря:


где а = 1

Число пазов якоря:


Число коллекторных пластин:


Число витков в секции обмотки якоря:


Число проводников в пазу якоря:


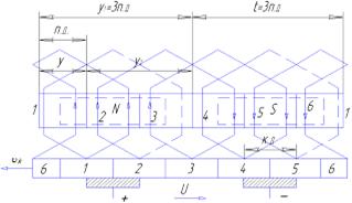
Шаги простой петлевой обмотки якоря по элементарным пазам и коллектору:

;

 


Далее вычерчиваем схему якорной обмотки, где п.д. - пазовое деление, к.д. - коллекторное:

Рис. 2.1 Схема простой петлевой якорной обмотки

Линейная нагрузка якоря:

 А/м

Результат отличается не больше 5 % от ранее выбранного 10000 А/м.

. Размеры зубцов, пазов, проводов и электрические параметры якоря

При напряжении машины 12 В для обмотки якорей электродвигателей постоянного тока малой мощности подходят провода марок ПЭЛ и ПЭТ.

Удельная тепловая загрузка наружной цилиндрической поверхности пакета якоря:

 Вт/м2

В случае закрытого исполнения машины без вентилятора:

Вт/м2 при .

Допустимая плотность тока в обмотке якоря при 2р=2 и n до 5000 об/мин:

А/м2

Момент на валу электродвигателя:

 Н·м

Предварительное сечение провода обмотки якоря:

 м2

Окончательное сечение и диаметр провода выбираем из приложения 1:

 м2

 м

 м

Окончательная плотность тока в проводнике обмотки якоря:

 А/м2

Площадь паза, занимаемая изолированными проводниками:

 м2,

где принято

Площадь паза, занимаемая пазовой изоляцией:

м2,

где толщина пазовой изоляции принята  м при напряжении 12 В,

периметр паза:

 м

Площадь паза, занимаемая клином:

м2,

где принято:

ширина клина:

м

Высота клина:

 м

Общая требуемая площадь паза:

м2

Коэффициент заполнения паза изолированным проводом,где площадь поперечного сечения провода с изоляцией:

м2

Высота сердечника якоря:

м

Диаметр вала:

 м

Ширина прорези паза:

м

Высота коронки и зубцовый шаг якоря:

м

м

Диаметр паза якоря:

 м

Ширина зубца якоря:

 м > 1 мм,

где  Тл

Зубцовые шаги по вершинам, серединам и основаниям зубцов якоря с круглым пазом:

 м

 м,

 м,

где высота паза:

 м;

размеры зубца:

 м

 м,

, м

Для трапецеидального паза:

Размеры паза:

м

 м

м

Высота паза:

м

Проверка максимальной индукции в минимальном сечении зубца

для трапецеидального паза:

 Тл

При трапецеидальном пазе ширина зубца получается большей, поэтому выбираем трапецеидальный паз и далее расчеты ведем для него.

Средняя длина проводника обмотки якоря при 2р = 2:

 м

Сопротивление обмотки якоря в нагретом состоянии при расчетной температуре θ =75 ºС.

Ом

Падение напряжения в обмотке якоря при полной нагрузке:

 В

Результат составляет примерно 7 % от номинального напряжения U=12 В.

. Коллектор, щеткодержатели и щетки

Толщина тела коллектора:

м

Предварительный диаметр коллектора:

м

Коллекторное деление:

 м

Ширина коллекторных пластин:

 м

Толщина изоляции:

т. к. U = 12 В

 м

Окончательно коллекторное деление:

м

Окончательно диаметр коллектора:

м

Окружная скорость коллектора:

 м/с

В нашем случае окружная скорость коллектора составляет 0,76 от величины окружной скорости якоря  м/с

Так как U = 12 В выбираем медно-графитные щетки марки МГ:

Допустимая плотность тока А/м2

Переходное падение напряжения на пару щеток при номинальном токе и окружной скорости 15 м/с:  В

Коэффициент трения при V = 15 м/с:

Удельное нажатие: Н/м2

Площадь сечения щетки:

 м2

Ширина щетки по дуге окружности коллектора:

м

Длина щетки по оси коллектора:

м

Высота щетки:

м

Уточненные по таблице 2.5.2. размеры: щетка прямоугольная для радиальных щеткодержателей со спиральной пружиной Ф8-А1

м

м

м

Окончательная плотность тока под щетками:

А/м2

Активная длина коллектора по оси вала:

м

Полная длина коллектора по оси вала:

м

Ширина коммутационной зоны:

м,

где  - число секционных сторон в одном слое паза;

м

м

В нашем случае условие благоприятной коммутации выполняется:


Удельная магнитная проводимость для потоков рассеяния секции обмотки:


где длина лобовой части проводника якорной обмотки для 2р = 2:

м

Среднее значение реактивной Э.Д.С. в короткозамкнутой секции якоря:

В

Э.Д.С. реакции якоря:


где средняя длина силовой линии поперечного потока реакции якоря в междуполюсном пространстве машины:

м

Среднее значение результирующей Э.Д.С. в короткозамкнутой секции якоря:

В

Условие благоприятной коммутации выполняется:

В


. Магнитная система электродвигателя

Высота сердечника якоря:

м

Проверка индукции в сердечнике якоря:

Тл

Осевая длина полюса: м

Высота сердечника полюса машин малой мощности:

м

Поперечное сечение сердечника:

м2,

где σ = (1,08÷1,12) ≈ 1,1 - коэффициент магнитного рассеяния для машин малой мощности; ВПЛ = (1÷1,5) ≈ 1,25 Тл - магнитная индукция в сердечнике полюса.

Ширина сердечника полюса:

м,

где К2 = 0,93 - коэффициент заполнения сечения полюса сталью при шихтованных полюсах.

Поперечное сечение станины:

м2

где Вс = (1÷1,4) ≈ 1,2 Тл - магнитная индукция в станине в машинах для продолжительного режима работы;

Осевая длина станины с отъемными полюсами:

м

Высота станины:

м

Средние длины путей магнитного потока в каждом участке магнитной системы:

а) длина станины:


б) длина сердечников полюсов:

м

в) длина воздушного зазора:

м

г) длина зубцов якоря:

м

д) длина сердечника якоря:

м

Коэффициент воздушного зазора:


М.д.с. для воздушного зазора:

А

Магнитная индукция и м.д.с. в зубце:

Тл

А,

где напряженность магнитного поля в зубце  - определяется по кривым приложения 4 для найденного Вз

Магнитная индукция в сердечнике якоря:

 Тл

М.д.с. для сердечника якоря:

А

где  - определяется по кривым приложения 4 для найденного Ва

Магнитная индукция в сердечнике полюса:

 Тл

М.д.с. для сердечников шихтованных полюсов:

А

где  - определяется по кривым приложения 4 для найденного Впл

Магнитная индукция в сплошной станине:

 Тл

К2 = 1,0 - для сплошной станины.

М.д.с. для станины:

А

где  - удельная м.д.с определяется по кривым приложения 5 для найденного Вс

Магнитная индукция в зазоре стыка:  Тл

М.д.с. для воздушного зазора в стыке между станиной и отъемными полюсами:

 А

где длина эквивалентного воздушного зазора в месте стыка при шлифованных поверхностях соприкосновения станины и полюса:

м

Таблица 1. Расчет кривой намагничивания машины

Величины

ЭДС холостого хода, В


0,5Е

0,8Е

Е

1,15Е

1,3Е

1,5Е

1,7Е

2 Е

Ф Вб

0,409 ·10-3

0,6548·10-3

0,817·10-3

0,92 ·10-3

1,062·10-3

1,226 ·10-3

1,39 ·10-3

1,634 ·10-3

 Тл0,20,320,40,460,520,60,680,8









Вз Тл

0.65

1,04

1,303

1.495

1.69

1,95

2.21

2,6

Вa Тл

0,278

0,445

0,557

0,641

0,724

0,836

0,947

1,114

ВПЛ Тл

0,625

1

1,25

1,4375

1,625

1,875

2,125

2,5

Вс Тл

0,558

0,893

1,116

1,29

1,458

1,7

1.924

2.232

Всδ Тл

0,407

0,650

0,813

0,935

1,057

1,22

1,382

1,626

 А328524,8656,3754,4852,89841115,21312









Hз А/м

1,4·102

3,3·102

9,5·102

72·102

300·102

-

-

 А3,357,9122,7859,95172,65719,37--









Hа А/м

1,1·102

1,45·102

2,0·102

2,7·102

 3,8·102

7,0·102

18·102

58·102

 А4,1646,66248,3289,557 10,826 12,492  14,157616,656









Hпл А/м

1,5·102

3,25·102

8·102

18·102

45·102

170·102

-

-

 А13,92822,284827,85632,034436,21341,784--









Hс А/м

3·102

4,75·102

7,5·102

9,75·102

13·102

70·102

200·102

-

 А 51,37582,2102,75118,163133,575154,05174,675-









 А3759,27485,196,2111125,8148









 А447,2715,52894,41028,561162,721341,6--









 А

170,36

272,5

340,72

391,83

442,936

511,08

-

-



 А

Общая м.д.с. возбуждения на пару полюсов для ЭДС Е:

 

Построим кривую намагничивания:

Рис.6.1 Кривая намагничивания

Поперечная м.д.с. якоря AWq определяется из переходной характеристики , построенной по данным табл. 6.1.

Рис. 6.2 Переходная характеристика

Откуда:

А

Продольная составляющая м.д.с. якоря:

А

где м

Ток одной параллельной ветви:

 А

Ток одной щетки

 A

Средняя эквивалентная индуктивность секции якоря:

 Гн

 с

 Ом

 


Продольная коммутационная м.д.с. якоря:

А

Суммарная м.д.с. реакции якоря электродвигателя:

А

Полная м.д.с. возбуждения машины при нагрузке на пару полюсов:

А

. Расчет обмотки возбуждения

Предварительно средняя длина витка катушки возбуждения при Ск =0

м

Сечение провода обмотки возбуждения:

м2

Из приложения 1 ближайшие большие сечение и диаметр провода обмотки возбуждения:

м2

м

м

Плотность тока в проводнике обмотки возбуждения:

А/м2

Число витков обмотки возбуждения, приходящихся на один полюс:


Высота полюсного наконечника:

м

Высота катушки:

м

Число проводников по высоте катушки:

,

где толщина изоляции катушки возбуждения на две стороны: м

Число проводников по ширине катушки:


Ширина катушки:

м

Средняя длина витка катушки возбуждения с учетом Ск

м

Окончательное сечение провода обмотки возбуждения:

м2

Из приложения 1 ближайшие большие сечение и диаметр провода обмотки возбуждения:

м2

м

м

Окончательная плотность тока в проводнике обмотки возбуждения:

А/м2

Сопротивление обмотки возбуждения в нагретом состоянии при расчетной температуре

 Ом

Ток возбуждения:

А

В начале расчета А.

Проверка величины э.д.с. якоря при нагрузке:

 В,

Что незначительно отличается от ранее рассчитанного Е = 10,82353 В.

. Мощность потерь и коэффициент полезного действия

Потери в меди обмотки якоря:

 Вт.

Потери в меди параллельной обмотки возбуждения:

 Вт.

Переходные потери в контактах щеток и коллекторе:

 Вт.

Потери на гистерезис и вихревые токи в стали сердечника якоря:

Вт

Потери на гистерезис и вихревые токи в стали зубцов якоря:

Вт

Полные магнитные потери на гистерезис и вихревые токи в стали якоря:

Вт.

Потери на трение щеток о коллектор:

Вт.

Общая площадь прилегания к коллектору всех щеток:

м2

Потери на трение в подшипниках:

 Вт

Масса якоря:

где  кг/м3 - средняя объемная масса якоря и коллектора

Потери на трение якоря о воздух:

 Вт

Полные механические потери в машине:

 Вт

Общие потери в машине при полной нагрузке:

Вт

где  учитывает добавочные потери в машине.

Коэффициент полезного действия при номинальной нагрузке машины:

,

где I=Ia+Iв =(16,346154+2,8846154)=19,2307694 А - потребляемый ток в номинальном режиме.

Результат отличается от ранее выбранного  более чем на ± 5%.

. Рабочие характеристики электродвигателя

Результаты расчета рабочих характеристик приведены в таблице 2.

Таблица 2. Расчет рабочих характеристик

Величины

Потребляемый двигателем ток из сети, А


0,5I

0,8I

I

1,2I

IB, A

1,4423

2,308

2,8846

3,4615

I, A

9,616

15,385

19,231

23,077

Ia = I-IB, A

2,13

3,948

16,346

6,372

∆Ua = Ia∙ra, B

0,377

0,6024

0,753

0,9036

∆Uщ, B

0,1

0,16

0,2

0,24

∆U = ∆Ua+∆Uщ, B

0,477

0,7624

0,953

1.1436

E = U - ∆U, B

5,4765

8,7624

10,953

13,1436

AW'B = IB∙2WB, A

498,565

797,704

997,13

1196,55

AWR, A

51,356

82,17

102,757

123,256

AW'p = AW'B - AWR, A

447,1865

715,5

894,373

1073,2476

Ф, Вб

0,00041

0,00066

0,00082

0,00098

, об/мин 2003320540064807





Рм.а= Ia2∙ra, Вт

6,156

9,85

12.313

14,77

Рм.в= U∙Iв, Вт

17,84

28.54

35,677

42,812

Рщ.к= ∆Uщ∙Ia, Вт

1,635

2,616

3,27

3.924

Р1=U∙I, Вт

115,39

184,61

230,772

276,92

Ва, Тл

0,406

0,65

0,813

0,974

Рса, Вт

0,231

0,37

0,463

0,556

Вз, Тл

0,65

1,04

1,303

1,56

Рс.з, Вт

0,338

0,542

0,677

0,812

Рс, Вт

0,569

0,912

1,14

1,368

Ртр.щ, Вт

1,79

2,87

3,584

4,3

Ртр.п, Вт

2,288

3,661

4,576

5,4912

Ртр.в, Вт

0,316

0,506

0,633

0,76

Рмх, Вт

4,4

7,035

8,7937

10,553

, Вт35,0356,0570,0684,072





P2 = P1 - ∑P, Вт

80,35

128,56

160,7

192,84

0,3450,5520,690,828





, H·м0,180,2860,3580,43






По данным расчета построим рабочие характеристики двигателя:

 

Рис. 9.1 Рабочие характеристики двигателя

10. Упрощенный тепловой расчет

Полные потери в активном слое якоря:

 Вт

Поверхность охлаждения активного слоя якоря:

 м2

Среднее превышение температуры якоря над окружающей средой при установившемся режиме:

 ºС

Окружная частота вращения якоря:

 м/с

Превышение температуры коллектора. Полные потери на коллекторе:

 Вт

Поверхность охлаждения коллектора:

 м2

Среднее превышение температуры коллектора над окружающей средой при установившемся режиме:

 ºС

Потери в одной катушке обмотки возбуждения:

 Вт

Поверхность охлаждения одной катушки обмотки возбуждения при станине с отъемными полюсами:


Среднее превышение температуры обмотки возбуждения над окружающей средой при установившемся режиме:

ºС,

где принято .

11. Поперечное сечение рассчитанного электродвигателя

Поперечное сечение рассчитанного двигателя показано на рис. 11.1; рассчитанные размеры приведены в таблице 3.

Рис. 11.1 Поперечное сечение электродвигателя

Таблица 3. Рассчитанные размеры электродвигателя в м.

Диаметр якоря, Da

49,74·10-3

Диаметр вала, dвл

9,95·10-3

Длина воздушного зазора, δ

0,3·10-3

Ширина сердечника полюса, bПЛ

19,21·10-3

Высота сердечника полюса, hПЛ

17,41·10-3

Высота полюсного наконечника, hПЛН

4,53·10-3

Высота катушки, hк

12,88·10-3

Ширина катушки Ск

3,72·10-3

Высота станины, hс

5,02·10-3

Размеры паза: Большая ширина паза bП1 Меньшая ширина паза bП2

 5,931·10-3 4,731·10-3

Ширина зубца якоря Zmin

1,9·10-3

Высота паза, hП

17,94·10-3

Ширина прорези паза аП

5,46·10-3

Высота коронки, h'к

Ширина клина, bКЛ

5·10-3

Высота клина, hКЛ

0,8·10-3

Толщина пазовой изоляции δИ

0,125·10-3

Толщина изоляции катушки ΔИК

1,5·10-3


Заключение

В данной курсовой работе рассчитан микродвигатель постоянного тока. В ней произведены расчеты основных размеров машины и электрических параметров, а также построены графики основных характеристик электромашины.

В результате расчета при мощности Р2 = 150 Вт получены:

Частота вращения якоря n =4006 об/мин, потребляемый токI=19,231 А, η=0,69 момент на валу M2=0,358 Нм. Температура нагрева обмоток якоря и возбуждения, а также коллектора не превышают допустимых значений.

Список литературы

1.      Ермолин Н.П. Электрические машины малой мощности. - М.: ВШ, 1967.

.        Сергеев П.С., Виноградов Н.В., Горяинов Ф.А. Проектирование электрических машин. Под общей редакцией П.С. Сергеева. - М.: Энергия, 1969.

.        Белов И.С., Расчет авиационных электрических машин постоянного тока малой мощности. - Казань: Издательство КАИ, 1963.

Похожие работы на - Расчет электродвигателя постоянного тока

 

Не нашли материал для своей работы?
Поможем написать уникальную работу
Без плагиата!
Без нейросетей!