Система регулирования печи

  • Вид работы:
    Курсовая работа (т)
  • Предмет:
    Информатика, ВТ, телекоммуникации
  • Язык:
    Русский
    ,
    Формат файла:
    MS Word
    259,09 Кб
  • Опубликовано:
    2013-12-07
Вы можете узнать стоимость помощи в написании студенческой работы.
Помощь в написании работы, которую точно примут!

Система регулирования печи

1. Опис об’єкту автоматизації з табличних параметрів

автоматизация печь микропроцессорный контроллер

Объектом автоматизации является печь для сжигания органических отходов. Как видно из рисунка 1, в топку печи через регулирующие органы подаются отходы, воздух и газ. Причем наносить управляющие воздействия можно при помощи регулирующих органов, изменяя расход газа либо воздуха. Отходы в свою очередь подаются с постоянным расходом в 600 т/ч.

Через топочную камеру проходит трубопровод, в котором течет теплоноситель (вода).


)        регистрирующего аналогового прибора КСП;

)        3-х вольтметров типа М900;

)        3-х миллиамперметров типа М906;

)        измерительных и нормирующих преобразователей;

)        регулирующего органа и исполнительного механизма типа МЭО;

)        передающего устройства БУЭР;

)        информационно-вычислительной системы (ЭВМ);

)        объекта управления (в качестве 2-х операционных усилителей;

)        блока управления электродвигателем типа БУ21;

)        задающего устройства типа ЗУ11;

)        устройства рассогласования сигналов.

)        регулирующего прибора типа MaxyCon Flexy.

Вольтметры и амперметры служат для контроля напряжения и тока в различных местах цепи АСР. Аналоговый регистратор типа КСП необходим как для контроля так и для регистрации напряжения и тока в различных местах цепи АСР; для «снятия» кривых разгона объекта управления так и переходных процессов регулирования. Устройство рассогласования сигналов служит как датчик хода исполнительного механизма.

Блок управления электродвигателем типа БУ21 служит для задания режима работы исполнительного механизма (может работать в ручном, т.е. исполнительный механизм работает от нажатия кнопок Больше / Меньше; автоматическом - работой исполнительного механизма управляет регулятор; внешнем режиме - управляющие воздействия передаются извне).

Регулирующий прибор типа MaxyCon Flexy служит для управления технологическим объектом, который по данным выхода объекта и задания вырабатывает через заданный закон регулирования управляющее воздействия для подавления возмущений. Регулятор является свободно программируемым, т.е. есть возможность реализовать различные типы регуляторов, по мимо стандартных П/ПИ/ПИД.


Для создания учебного стенда необходимо контролировать и регистрировать следующие технологические параметры: миллиамперы и вольты. Постоянный контроль над этими параметрами обеспечивает нормальное протекание технологического процесса и предотвращает возможный выход объекта в аварийное состояние. Рассмотрим более детально каждый из параметров.

Контроль миллиамперов будем осуществлять на следующих объектах, которые входят в участок замкнутой системы:

на выходе из регулирующего органа;

на входе в объект управления;

на выходе из объекта;

на выходе из нормирующего преобразователя;

Контроль вольтов будем осуществлять на следующих объектах, которые входят в участок замкнутой системы:

на выходе из регулирующего органа;

на входе в объект управления;

на выходе из объекта;

на выходе из нормирующего преобразователя;

Контроль обеспечивает нормальный процесс протекания процесса регулирования.

. Выбор и обоснование методов измерения технологических переменных

В курсовой работе используются такие датчики измерения технологических переменных, как миллиамперметры типа М906 и вольтметры типа М900.

Возникает вопрос: «Почему необходимо использовать именно эти датчики?»

Попросту в качестве контроллера используется «MaxyCon Flexy», который имеет аналоговые входы, а также по напряжению 0-10 В.

Ведь ту же самую величину можно измерить цифровыми датчиками.

Главное достоинство аналоговых датчиков - это стоимость и доступность покупки. Тем более такие средства реже выходят из строя, из за большой наработки на отказ.

4. Выбор средств измерительной техники и автоматики

Для измерения миллиампер используется миллиамперметр типа М906. Выполненный в соответствии ГОСТ 8711-60 и имеет класс точности 1,0.

В качестве П-регулятора выбран контроллер MaxyCon Flexy.

Основные функции^

·              Управление различными инженерными системами по записанной пользователем программе.

·              Возможность доустановки к базовому модулю MaxyCon Flexy дополнительных модулей  MC ADAD, MC ADxD, MC ADxx для подключения необходимого в данной инженерной системе количества входных и выходных сигналов.

·              Цветной графический OLED дисплей.

·              Наличие различных интерфейсов для подключение к системе диспетчеризации:

o     RS-485 (протоколы MODBUS-RTU или ЮНИВЕРС);

o     LonWorks;

o     ETHERNET;

·              Использование SD-card для программирования контроллера и снятия с него данных.

Таблица №1 - Технические характеристики MaxyCon Flexy


В качестве исполнительного механизма выбран МЭО -16/25-0,25.

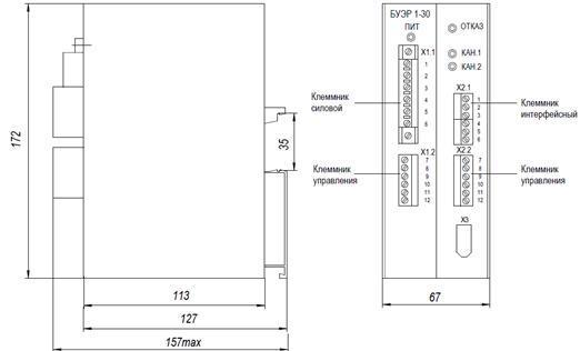
Для управления 1-фазным исполнительным механизмом выбран блок управления электродвигателем реверсивный (БУЭР) 1-30-02. Данный блок предназначен для бесконтактного управления ЭИМ с однофазным электродвигателем (по резервированному каналу RS-485). Блок выполняет самодиагностику, пуск, реверс, останов электродвигателя и диагностику ЭИМ.

Рисунок 1. - Внешний вид и габаритно-установочные размеры БУЭР

Для выполнения функций архивирования и записи текущих значений настроек, переходных процессов, текущих значений объекта и т.п. выбрана рабочая станция (ЭВМ), которая будет принимать информацию по сетевому протоколу TCP/IP.

Состав рабочей станции приведен ниже:

Таблица №2 - Состав компьютера рабочей станции

CPU AMD Sempron™ 3000+, 64bit, 1800MHz, FSB 400MHz, 0.09m, 128Kb cache, Palermo, socket 754, BOX

DIMM 1024Mb DDR PC-400 (PC3200) Samsung ORIG

HDD 80Gb Western Digital Caviar®SE WD800JD, 7200 rpm, 8Mb cache, 2disk/4head, Serial ATA I 150 Мбайт/с, SecureConnect™, FlexPower™, WhisperDrive™, Soft Seek™, Data Lifeguard™, Data Lifeguard Tools™, Shock Guard™

DVD±R/RW Asus DRW-1608P3S, Черный, Retail

Inno3D AGP8x GeForce 7300GT (128-bit, 256Mb DDR2, DVI+D-Sub TV, Fan) (GPU/Memory Clock - 400/667MHz, NVIDIA® CineFX™ 4.0 engine, NVIDIA® Intellisample™ 4.0, NVIDIA® UltraShadow™ II, NVIDIA® PureVideo™, NVIDIA® ForceWare™, NVIDIA® nView™)

Fax/modem D-Link DFM-562I 56K PCI (V92 56k Int Hardware Modem)

Корпус FOXCONN™ TLA-487, ATX Midi Tower, 350W PSU / 80mm fan (rear) / 2xUSB2.0 / 2хСОМ/ Audio+Phone / 3G Fan Duct (Intel approved) / Tool-less chassis design

Блок питания Gembird CCC-PSU10 350W (ATX / CE), шнур питания

Клавиатура Logitech Value Keyboard PS/2 OEM укр. раскладка

Мышь Logitech M-SBF90 Value Wheel Mouse (черная) 3-х кн.+scroll PS/2 OEM (953819-0000)

Коврик для мыши GEMBIRD MP-A1B1 (тканевый 220x250 mm h=4mm)

17» LG Flatron Ez T717B (Белый); Размер зерна: щелевая маска 0,20 мм, 1280x1024@66Hz, 110Hz max, Soft touch OSD, TCO-99

ASUS K8N, NVIDIA nForce3, Socket 754, audio 8ch ALC650, ATA 133, 2-x S-ATA, 8-X USB 2.0, 2хСОМ, LAN 10/100, AGP 8x, ATX

5. Описание принципиально электрической схемы соединений

Регулирующий прибор MaxyCon Flexy имеет 6 контактов и 1 выходной интерфейс RS485. Первые 2 контакта (1 и 2) подключены к блоку питания на 24 В (3 и 4 контакты), который в свою очередь подключен через свои контакты 1 и 2 к цепи электропитания на 220В. Контакты 3, 4, 5, 6 регулятора служат для управления механическим электродвигателем, причем контакты 3,5 подключены к «минусу» (4 контакту) блока питания на 24 В. Контакты 4 и 6 регулятора подключены напрямую к электродвигателю (контактами 6 и 10). Также MaxyCon Flexy имеет выходной интерфейс RS485, который непосредственно подключен к рабочей станции.

Блок управления электродвигателем имеет 2 клеммника X1.1 и X1.2. Первый клеммник имеет 5 контактов. 1 и 2 контакты подключены к цепи электропитания на 220В через автоматический выключатель SF1. Контакты 3, 4, 5 необходимы для управления электродвигателем (выходы Больше, Среднее, Меньше), которые напрямую подключены к контактам 1,2,3 электродвигателя. Второй клеммник имеет 4 контакта. Контакты 7, 8 необходимы для управления электродвигателем (выходы Меньше, Больше), которые напрямую подключены к контактам 5,9 электродвигателя. Контакты 8 и 10 не используются.

Контур цепи замкнутой системы с объектом управления и возмущения, подключен к цени электропитания на 220В через клеммник XT1 (контакты 1 и 2). Контакты 3, 6 служат для подключения миллиамперметра. Контакты 5,4 - для подключения вольтметра.

6. Описание лицевой панели управления учебного стенда

Лицевая панель управления учебным стендом разделена на 6 панелей.

На первой панели расположены КСП-4 и три миллиамперметра. Данная панель служит исключительно для регистрации и контроля миллиамперов замкнутой системы. При помощи КСП-4 можно также регистрировать и вольты.

На четвертой панели расположены выключатели приборов и три вольтметра. Данная панель также служит исключительно для контроля вольтов замкнутой системы.

На второй и пятой панелях расположен контур замкнутой системы управления. А именно на второй панели расположены объект управления с 2-мя входами и 2-мя выходами, 2 измерительных преобразователя и 2 нормирующих преобразователя. Также 2 ручки для подачи возмущения и 2 выхода с объекта управления, регулирующий орган и его выход, устройство рассогласования, которое имеет вход по вольтам и вход по амперам. На пятой панели расположен исполнительный механизм и передающие устройство, блок управления электродвигателем и задающие устройство.


Заключение

В ходе выполнения курсовой работы был разработан учебный стенд по дисциплине «АСУТП» для обучения, приобретения умений и навыков в области управлением технологическим процессом.

В содержании данной работы было выполнено описание технологического участка и сокращенная техническая характеристика оборудования, проведен выбор и обоснование технологических переменных, которые контролируются и подлежат регулированию, подбор средств измерений и автоматизации, а также была разработана принципиально электрическая схема соединений и схема лицевой панели учебного стенда с подробным описанием.

Литература

1. Техника чтения схем автоматического управления и технологического контроля/ А.С. Клюев, Б.В. Глазов, М.Б. Миндин, С.А. Клюев; Под ред. А.С. Клюева - 3-е изд. перераб. и доп. - М.: Энергоатомиздат, 1991. - 432 с.: ил.

. Проектирование систем автоматизации технологических процессов: Справочное пособие/ А.С. Клюев, Б.В. Глазов, А.Х. Дубровский, А.А. Клюев; Под ред. А.С. Клюева - 2-е изд. перераб. и доп. - М.: Энергоатомиздат, 1990. - 464 с.: ил.

3. Методические указания по применению условных обозначений приборов и средств автоматизации в схемах. Одесса 1985.

4. Методические указания по применению стандартов в курсовом и дипломном проектировании. Одесса 1987

. Беглов К.В. Методические указания по разработке курсовой работы

Похожие работы на - Система регулирования печи

 

Не нашли материал для своей работы?
Поможем написать уникальную работу
Без плагиата!
Без нейросетей!