Одноэтажное промышленное здание
БРЯНСКАЯ ГОСУДАРСТВЕНАЯ ИНЖЕНЕРНО-
ТЕХНОЛОГИЧЕСКАЯ АКАДЕМИЯ
Кафедра "Строительные
конструкции"
Пояснительная
записка
к курсовой
работе
по дисциплине
"Железобетонные и каменные конструкции"
на тему:
"Одноэтажное промышленное здание"
Автор работы
Ицков А.В.
Руководитель проекта
Мощенков В.Е.
Брянск, 2012
Содержание
Исходные данные
. Компоновка и расчет поперечной рамы
.1 Размеры мостового крана
.2 Определение габаритных размеров конструкций в плоскости
рамы
1.3 Сбор нагрузок на поперечную раму
1.4 Статический расчет поперечной рамы
1.5 Определение расчетных усилий в сечениях стоек рамы
2. Расчет прочности двухветвевой колонны
.1 Исходные данные
.2 Расчет надкрановой части колонны
2.3 Расчет подкрановой части колонны
.3.1 Расчет подкрановой части колонны в плоскости рамы
2.3.2 Расчет подкрановой части колонны из плоскости рамы
2.4 Расчет промежуточной распорки колонны
3. Расчет фундамента под двухветвевую колонну
.1 Исходные данные
.2 Определение геометрических размеров фундамента
.3 Расчет арматуры фундамента
3.4 Проверка прочности фундамента
4. Проектирование стропильной сегментной фермы
.1 Назначение геометрических размеров фермы
.2 Сбор нагрузок на ферму
4.3 Определение усилий в стержнях фермы
4.4 Расчет сечений элементов фермы
4.4.1 Верхний сжатый пояс
.4.2 Нижний растянутый пояс
4.4.3 Растянутый раскос
Список используемой литературы
1.
Компоновка и расчет поперечной рамы
1.1 Размеры мостового крана
ГрузоподъемностьQ = 20
т = 200 кН;
Пролет крана Lк = 16,5 м;
База крана B = 6,3 м;
Расстояние между осями колес K = 4,4 м;
Высота крана Hкр = 2,4 м;
Расстояние до оси головки рельса B1 = 260 мм;
Конструктивные зазоры:
по горизонтали ≥ 60 мм;
по вертикали ≥ 100 мм;
Вес тележки Gт = 8,4 т = 84 кН;
Вес крана Gк = 28 т = 280 кН;
Давление колеса на подкрановый рельс
n.max = 19,5 т = 195 кН;
Fn.min = 4,5 т = 45 кН;
Тип подкранового рельса КР 100.
1.2 Определение
габаритных размеров конструкций в плоскости рамы
В качестве основной несущей конструкции покрытия принимаем железобетонную
предварительно напряженную сегментную ферму пролетом 18м.
Устройство фонарей не предусматривается. Плиты покрытия предварительно
напряженные железобетонные ребристые размером 3×12 м.
Подкрановые балки железобетонные предварительно напряженные, при шаге
колонн 12 м высотой 1,4 м.
Наружные стены панельные навесные, опирающиеся на опорные столики колонн
на отметке 3,8 м. Стеновые панели и остекление ниже отметки 3,8 м также
навесные, опирающиеся на фундаментную балку.
Колонны проектируются сквозными ступенчатыми, отметка верха колонны 14,4
м. Привязка колонн к разбивочным осям 250 мм.
Отметка головки кранового рельса 11,75 м. Высота кранового рельса 150 мм.
Назначаем колонну КДП-49 с основными габаритными размерами:
высота колонны Нк = 15750 мм;
высота нижней части Нн = 11550 мм;
высота верхней части Нв = 4200 мм;
ширина колонны b =
500 мм;
высота сечения верхней части h1 = 600 мм;
высота сечения нижней части h2 = 1400 мм;
высота сечения ветвей нижней части h3 = 300 мм;
высота ступени подкрановой части h4 = 1200 мм.
Приняв расстояние от уровня планировки до обреза фундамента 150 мм,
определяем глубину заделки колонны в фундамент как 1200 мм, следовательно,
подземная часть колонны составляет 1350 мм, надземная - 14400 мм, высота нижней
части колонны от обреза фундамента - 10350 мм.
Стеновое ограждение принимаем из панелей размером 12000х1200 мм - с
опиранием на столики колонн, 12000х1800 мм - с опиранием на фундаментные балки.
Остекление - ленточное, высотой 2000 мм.
В качестве ригеля принимаем цельную сегментную ферму с верхним поясом
ломаного очертания и прямолинейными участками между узлами.
Высоту фермы назначаем согласно условия Нф = 1/7÷1/9 L = 2,25 м.
Ширину сечения верхнего и нижнего поясов фермы из условий удобства
изготовления принимаем одинаковой. При шаге колонн 12 м ширину поясов фермы
принимаем равной 300 мм.
1.3 Сбор
нагрузок на поперечную раму
ПОСТОЯННЫЕ НАГРУЗКИ
Таблица 1. Нагрузка от веса покрытия
Равномерно распределенная нагрузка на ригель рамы от веса покрытия:
покр. = 4,4 · 12 = 52,8 кН/м.
Примем собственный вес сегментной фермы пролетом 18 м:
ф
= 7 т = 70 кН.
Расчетная равномерно распределенная нагрузка на ригель рамы с учетом
нагрузки от собственного веса фермы:
п
= (qпокр. + γf · Gф / L) · γn = (52,8 + 1,1 · 70 / 18) · 0,95 = 54
кН/м.
Расчетная cосредоточенная
нагрузка на стойку рамы от фермы и покрытия:
R = qп · L / 2 = 54 · 18 / 2 = 488 кН.
Расчетные нагрузки от веса колонн:
от верхней части:
в
= h1 · Hв · b · ρбет · γf · γn = 0,6 · 4,2 · 0,5 · 25 · 1,1 · 0,95
= 33 кН;
- от нижней части:
н
= (10,35 · 1,4 - (1,4 · 4 + 1,8) · 0,5 · 25 · 1,1 · 0,95 = 112 кН;
- от всей колонны:
к
= 33 + 112 = 145 кН.
Расчетная нагрузка от веса стеновых панелей и остекления:
на фундаментную балку:
огр.ф. = (gст.п.·Σhст. п+gост.·Σhост.)·В·γf·γn = (2,5·1,8+0,4·2)·12·1,1·0,95 = 66,5
кН;
- на верхнюю часть колонны:
огр.в.к. = (2,5 · 1,2 · 2 + 0,4·2 · 1)·12·1,1·0,95 = 85,3 кН;
- на нижнюю часть колонны:
Fогр.н.к. = (2,5 · 1,2 · 2 + 0,4·2 ·
2)·12·1,1·0,95 = 95,3 кН;
- на всю колонну:
огр.к. = 85,3 + 95,3 = 180,6 кН.
Расчетная cосредоточенная
нагрузка на стойку рамы от веса подкрановой балки, принятого как Gп.б. = 11 т = 110 кН:
п.б. = Gп.б.· γf · γn = 110 · 1,1 · 0,95 = 115 кН.
ВРЕМЕННЫЕ НАГРУЗКИ
Снеговая нагрузка:
сн = S0 · kµ · В
· (L/2) · γf · γn = 2,4· 1 · 12 · (18/2) · 1,4 ·
0,95 = 345 кН.
Крановая нагрузка:
расчетное максимальное и минимальное давление на колесо крана:
max = Fn.max · γf · γn = 195·1,1·0,95 = 204 кН;
Fmin = Fn.min · γf · γn = 45·1,1·0,95 = 47 кН;
- расчетная поперечная тормозная сила на одно колесо:
Тmax = [(Q + Gт)/20] · 0,5 · γf · γn = [(200 + 84)/20] · 0,5 · 1,1 ·
0,95 = 7,4 кН.
Рис.1. Линия влияния давления на колонну.
вертикальная крановая нагрузка на колонны от двух сближенных
кранов с коэффициентом сочетания γi = 0,85:
max = Fmax · γi · Σy = 204·0,85·(0,683 + 1 + 0,841 +
0,475) = 520 кН;
Dmin = Fmax · γi · Σy = 47·0,85·(0,683 + 1 + 0,841 +
0,475) = 120 кН;
- горизонтальная крановая нагрузка на колонны от двух кранов при
поперечном торможении:
Т = Тmax · γi · Σy = 7,4·0,85·(0,683 + 1 + 0,841 +
0,475) = 19 кН.
Ветровая нагрузка.
По прил. 4 СНиП 2.01.07-85 из условий f / L = 2
м / 18 м = 0,1 и H / L = 14,4 м / 18 м = 0,8 назначаем:
аэродинамические коэффициенты с = 0,8 и с′ = 0,5;
коэффициенты, учитывающие изменение ветрового давления по высоте для
местности типа Б к5м = 0,5; к10м = 0,65; к20м
= 0,85.
Нормативные значения средней составляющей ветровой нагрузки:
m = w0 · к · с;
- для высоты 5 м:
m5м = 0,38 · 0,5 · 0,8 = 0,152 кН/м2;
- для высоты 10 м:
m10м = 0,38 · 0,65 · 0,8 = 0,198 кН/м2;
- для высоты 20 м:
m20м = 0,38 · 0,85 · 0,8 = 0,258 кН/м2;
- для высоты Н = Н0 + 0,15 м = 14,55 м:
m14,55м = wm10м + [(wm20м - wm10м)/10] · (H0 - 10) =
= 0,198 + [(0,258 - 0/198)/10] · (14,55 - 10) = 0,225 кН/м2;
для высоты Нк = Н + Hф = 14,55 + 2 = 16,55 м:
m16,55м = wm10м + [(wm20м - wm10м)/10] · (Hк - 10) =
= 0,198 + [(0,258 - 0/198)/10] · (16,55 - 10) = 0,237 кН/м2.
Для упрощения расчетов переменную по высоте ветровую нагрузку заменяем
эквивалентной равномерно распределенной нагрузкой:
экв = 2Mp / Н2;
где Мр - изгибающий момент в консольной стойке высотой Н от
фактической эпюры ветрового давления, приходящейся на колонну:
Мр = wm5м· 52 / 2 + (wm5м + wm10м) / 2 · (10 - 5) · ((10 - 5) /2 + 5)
+ (wm10м +
+ wm14,55м) / 2 · (14,55 - 10) · ((14,55 - 10)
/2 + 10) = 20,3 кН;
qэкв = 2 · 20,3 / 14,552
= 0,192 кН/м2;
q′экв
= qэкв · (с′ / с) = 0,192 · (0,5 /
0,8) = 0,12 кН/м2.
Расчетные равномерно распределенные ветровые нагрузки на колонны:
в
= qэкв · В · γf · γn = 0,192 · 12 · 1,4 · 0,95 = 3,1
кН/м;
qв′ = q′экв · В · γf · γn = 0,12 · 12 · 1,4 · 0,95 = 1,2 кН/м.
Расчетные сосредоточенные ветровые нагрузки выше отметки 14,55 м:
= (wm14,55м + wm16,55м) / 2 · (16,55 - 14,55) · В · γf · γn · (c + c′)
=
= (0,225 + 0,237) / 2 · (16,55 - 14,55) · 12 · 1,4 · 0,95 ·
(0,8 + 0,5) = 9,6 кН
W′
= (с′ / с) · W = (0,5 / 0,8) · 9,6 = 6 кН.
1.4 Статический
расчет поперечной рамы
Одноэтажная однопролетная рама при шарнирном сопряжении стоек с ригелями
представляет собой единожды статически неопределимую систему.
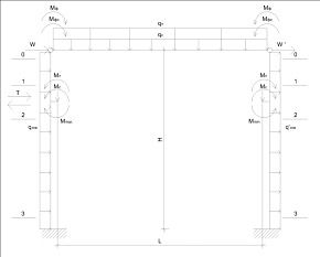
Рис.2. Расчетная схема рамы.
Продольные силы в раме действуют с эксцентриситетами:
еп.б. = 0,75 + 0,25 - 0,5 · h2 = 1 - 0,5 · 1,4 = 0,3 м;
еф = 0,5 · h1 - 0,5 · (h1 - 0,25) = 0,125 м;
е0 = 0,5 · h2 - 0,5 · h1 - еф = 0,7 - 0,3 - 0,125 = 0,275 м;
ев = 0,5 · (h2 - h1) = 0,5 · (1,4 - 0,6) = 0,4 м;
еогр. = 0,5 · h2 - 0,5 · 0,3 = 0,85 м.
Статический расчет рамы выполняется с помощью программы FRAME, основой алгоритма которой служит
метод конечных элементов. Для расчета необходимо предварительно собрать данные.
Рис.3. Эксцентриситеты продольных сил в колонне.
Данные для статического расчета рамы в программе FRAME.
. Высота верхней части колонны от ступени до ригеля: Нв = 4,2 м.
. Высота нижней части от обреза фундамента до подкрановой балки: Нн = 10,35 м.
. Общая высота колонны от заделки до ригеля: Н = 14,55 м.
. Пролет: L = 18 м.
. Соотношение моментов инерции элементов рамы ( из практики расчетов
промышленных зданий принимаем среднее значение от Iн / Iв = 0,5 ÷ 10): n1 = 7.
. Произведение отношений моментов инерции и расчетных длин частей
колонны:
2
= Iн / Iв · Нв / Нн =
2,84.
7. Высота подкрановой балки:
а = Нп.б. = 1,4 м.
8. Разность высот верхней части колонны и подкрановой балки:
с = Нв - а = 2,8 м.
9. Коэффициент пространственной работы каркаса:
αпр = n1 (1/ n + а22/2Σаi2)/Σy,
где n = 7 - число рам в температурном
блоке;
n1 = 4 - число колес кранов на 1 нитке
подкрановых балок;
аi - расстояние рамами, симметрично
расположенными относительно центра блока;
а2 = 48 м - расстояние между вторыми от краев блока рамами;
Σy = 3 - сумма ординат линии влияния
кранов;
αпр = 7 [1/ 7 + 482/2(242
+ 482 + 722)]/3 = 0,38.
10. Расчетная равномерно распределенная нагрузка на ригель рамы:
п
= 54 кН/м.
11. Момент от постоянных нагрузок, приложенный на уровне подкрановых
площадок колонн:
Мп = FR · е0 + Fв · ев + Fогр.в.к. · еогр. + Fп.б. · еп.б. = -257,4 кН·м.
12. Сосредоточенный момент от покрытия в сопряжении ригеля с колонной6
Мфп = FR · еф = 61 кН·м.
13. Расчетная равномерно распределенная снеговая нагрузка на ригель рамы:
с
= Fсн / 9 м = 38,3 кН/м.
14. Сосредоточенный момент в верхнем узле рамы от снеговой нагрузки:
Мфс = Fсн · еф = 43,1 кН·м.
15. Изгибающий момент от снеговой нагрузки в ступени колонны:
Мс = Fсн · е0 = -95 кН·м.
16. Максимальный изгибающий момент в стойках рамы от крановой нагрузки:
Мmax = Dmax · еп.б. = 156 кН·м.
17. Минимальный изгибающий момент в стойках рамы от крановой нагрузки:
Мmin = Dmin · еп.б. = -36 кН·м.
18. Горизонтальная сила от крановой нагрузки на колонну: Т = 19 кН.
. Ветровая нагрузка с наветренной стороны: qв = 3,1 кН/м.
. Ветровая нагрузка с подветренной стороны: qв′ = 1,9 кН/м.
. Сосредоточенная сила от ветровой нагрузки с наветренной стороны: W = 9,6 кН.
. Сосредоточенная сила от ветровой нагрузки с подветренной стороны: W′ = 6 кН.
Расчёт рамы со ступенчатыми стойками и с
шарнирным сопряжением ригеля со стойками.
Усилия в сечениях левой стойки рамы.
1.5 Определение
расчетных усилий в сечениях стоек рамы
На основании полученных данных составляются расчетные комбинации усилий
при самом невыгодном нагружении для каждого из сечений стойки.
При расчете прочности рассматриваются три сечения колонны: сечение 1-1 на
уровне верха консоли колонны; сечение 2-2 на уровне низа консоли колонны;
сечение 3-3 - в заделке. В каждом сечении колонны определяем три комбинации
усилий: Mmax и соответствующие N, Q; Mmin и
соответствующие N, Q; Nmax и соответствующие M и Q.
Сечение 1-1:
max: 1 + 2* + 8*; Mmax = 236,6 кН·м; N =
-916,8 кН; Q = -2,1 кН.
Mmin: 1 + 3* + 5* + 7*; Mmin = -13,4 кН·м; N =
-606,3 кН; Q = 27,4 кН.
Nmax: 1 + 2; Nmax = -951,3 кН; М = 185,1 кН·м; Q = 15 кН.
Сечение 2-2:
max: 1 + 3* + 5* + 8*; Mmax = -4,8 кН·м; N =
-1189,3 кН; Q = -5,6 кН.
Mmin: 1 + 2* + 7*; Mmin = -209,7 кН·м; N = -1031,8 кН; Q =
30,9 кН.
Nmax: 1 + 2* + 3*; Nmax = -1499,8 кН; М = -120,5 кН·м; Q = 4,9 кН.
Сечение 3-3:
max: 1 + 3* + 5* + 7*; Mmax = -61 кН·м; N =
-1396,6 кН; Q = -1,5 кН.
Mmin: 1 + 2; Mmin = -104,1 кН·м; N = -1273,6 кН; Q = 15
кН.
Nmax: 1 + 2* + 3*; Nmax = -1707,1 кН; М = -99,8 кН·м; Q = 4,9 кН.
.
Расчет прочности двухветвевой колонны
2.1 Исходные
данные
Бетон тяжелый класса В15, подверженный тепловой обработке при атмосферном
давлении:
расчетное сопротивление сжатию Rb = 8,5 мПа;
расчетное сопротивление растяжению Rbt = 0,75 мПа;
начальный модуль упругости Eb = 20,5·10³ мПа;
Арматура класса А-III, d > 10 мм:
расчетное сопротивление растяжению (сжатию) Rs = Rsc = 365 мПа;
модуль упругости Es=2·105 мПа.
При расчете сечений расчетное сопротивление Rb вводится с коэффициентом γb2 = 0,9, если в комбинации включены только постоянная и
снеговая нагрузки, и с коэффициентом γb2 = 1,1, если кроме них включены еще временные
нагрузки.
2.2 Расчет
надкрановой части колонны
Рассмотрим сечение 1-1 на уровне верха ступени колонны.
Размеры сечения:
= 500 мм; h = 600 мм; а = a′ = 40 мм.
Расчетная длина в плоскости рамы:
0
= 2·Hв = 2·4,2 = 8,4 м.
Расчетная длина из плоскости рамы:
0′
= 1,5·Hв = 1,5·4,2 = 6,3 м.
Полезная высота сечения:
0
= h - a = 600 - 40 = 560 мм.
Усилия от продолжительного действия нагрузки:
l = 606,3 кН;
Мl = 141,74 кН·м.
Расчет сечения 1-1 в плоскости рамы производим на первую комбинацию
усилий, т. к. в этом случае эксцентриситет имеет наибольшее значение:
Радиус инерции сечения:
Расчетная гибкость ветви:
поэтому будем учитывать влияние гибкости на увеличение эксцентриситета е0,
т. е. прогиб элемента влияет на его прочность.
Условная критическая сила:
где I - момент инерции бетонного сечения,
φl - коэффициент, учитывающий влияние длительного
действия нагрузки на прогиб элемента в предельном состоянии, равный:
1,
M1l - моменты внешних сил относительно оси, параллельной
линии, ограничивающей сжатую зону и проходящей через центр наиболее растянутого
или наименее сжатого (при целиком сжатом сечении) стержня арматуры,
соответственно от действия полной нагрузки и от действия постоянных и
длительных нагрузок:
т. к. δе
= 0,43 > δe,min = 0,267, принимаем δe = 0,43; φ = 1;
при коэффициенте армирования μ = 0,004 (первое приближение):
s = μ·b·h0· (0,5h - a)2
= 0,004·0,5·0,56(0,5·0,6 - 0,04)2 = 7,5712·10-5 м4;
Коэффициент η:
Уточненное значение е:
Высота сжатой зоны:
Относительная высота сжатой зоны:
Граничное значение относительной высоты сжатой зоны бетона:
;
где ω = 0,85 - 0,008·γb2·Rb = 0,85 - 0,008·1,1·8,5 = 0,7752; σs1 = Rs = 365 мПа.
Тогда:
Имеем случай ξ = 0,35 < ξR = 0,611.
Тогда армирование верхней части колонны симметричное:
По сортаменту принимаем рабочую арматуру: 3 Ø 18 A-III с As расч. = 7,63 см².
Соответственно назначаем конструктивную арматуру Ø 10 A-I.
Расчет сечения из плоскости рамы не требуется, т. к. расчетная гибкость
участка из плоскости рамы меньше его расчетной гибкости в плоскости рамы:
2.3 Расчет
подкрановой части колонны
Рассмотрим сечение 3-3 на уровне заделки колонны в фундамент.
Высота сечения нижней части колонны: hн = 1400 мм.
Размеры сечения ветвей: b =
500 мм; h = 300 мм; а = a′ = 40 мм;
Полезная высота сечения ветви:
0
= 300 - 40 = 260 мм.
Расстояние между осями ветвей: с =
1100 мм.
Высота сечения распорки: hр = 400 мм.
Расстояние между осями распорок при количестве панелей n = 5:
= Hн / n =
10350 / 5 = 2070 мм.
Расчетная длина в плоскости рамы:
0
= 1,5·Hн = 1,5·10,35 = 15,525 м.
Расчетная длина из плоскости рамы:
0′
= 0,8·Hн = 0,8·10,35 = 8,28 м.
Усилия от продолжительного действия нагрузки:
l = 928,6 кН;
Мl = 61 кН·м;
Ql = 13,02 кН.
2.3.1 Расчет
подкрановой части колонны в плоскости рамы
Расчет сечения 3-3 в плоскости рамы производим на вторую комбинацию
усилий, т. к. в этом случае эксцентриситет имеет наибольшее значение:
Приведенный радиус инерции сечения двухветвевой колонны в плоскости
изгиба:
Приведенная гибкость сечения:
т.е. необходимо учесть влияние гибкости элемента на его прочность.
Момент инерции сечения:
Момент внешних сил относительно оси, параллельной линии, ограничивающей
сжатую зону и проходящей через центр наиболее растянутого или наименее сжатого
(при целиком сжатом сечении) стержня арматуры, от продолжительного действия
нагрузки:
Момент от действия полной нагрузки:
При коэффициенте армирования μ = 0,0075 (первое приближение):
s =2·μ·b·h0·(с/2)2 =
2·0,0075·0,5·0,3·(1,1/2)2 = 0,681·10-3 м4;
Условная критическая сила:
Коэффициент:
Определяем усилия в ветвях колонны:
Усилие во внутренней ветви:
Усилие в наружной ветви:
Момент в ветвях:
Рассчитаем армирование внутренней ветви подкрановой части колонны.
Эксцентриситет продольной силы относительно центра тяжести приведенного сечения
внутренней ветви:

Принимаем еа = 1,05 см.
Коэффициент:
Граничное значение относительной высоты сжатой зоны бетона:
;
где ω = 0,85 - 0,008·γb2·Rb = 0,85 - 0,008·0,9·8,5 = 0,7888; σs1 = Rs = 365 мПа.
Тогда:
Имеем случай αn = 0,745 > ξR = 0,627.
Относительная высота сжатой зоны:
где
Т. к. ξ = 1,15 > ξR =0,627, то армирование обеих ветвей
колонны принимаем симметрично одинаковым:
Аs = -4,62 см < 0, значит, площадь
поперечного сечения арматуры в обеих ветвях подкрановой части колонны назначаем
конструктивно из выражения:
As = Аs′ =
0,002 · b · h0 = 0,002 · 50 · 26 = 2,6 см2.
По сортаменту принимаем рабочую арматуру: 3 Ø 12 A-III с As расч. = 3,39 см2.
Фактический процент армирования:
2.3.2 Расчет
подкрановой части колонны из плоскости рамы
Радиус инерции сечения:
Полезная ширина сечения подкрановой части:
0
= 500 - 40 = 460 мм.
Расчетная гибкость ветви:
следовательно, расчет из плоскости рамы необходим.
Т. к. λ′ = 57,38 > 14, то учитываем влияние гибкости на
прочность.
Находим значение случайного эксцентриситета:
Принимаем еа = 1,73 см.
Момент от продолжительного действия нагрузки:
Момент от действия полной нагрузки:
Момент инерции сечения:
= 2(h·b3/12) = 2(0,3·0,53/12) = 6,25·10-3м4.
Т. к. при расчете в плоскости рамы назначена рабочая арматура 3 Ø 12 A-III в 4 ряда (в
двух ветвях), то из плоскости рамы это будет 4 Ø 12 A-III с As расч. = 4,52 см2 в 3 ряда,
значит:
s = 2·μ·b·h·(b/2-a)2 = 2·As·(b/2-a)2 =2·4,52·(50/2-4)2
= 3987 см4 = 0,3987·10-4 м4;
Условная критическая сила:
Коэффициент:
Уточненное значение е:
Коэффициенты:
Площадь поперечного сечения арматуры:
Аs = As′ =
3,43 cм2 < As расч. = 4,52 см2 →
принятого количества рабочей арматуры Ø 12 A-III достаточно для
армирования подкрановой части колонны.
Соответственно назначаем конструктивную арматуру Ø 6 A-I.
2.4 Расчет
промежуточной распорки колонны
Сечение распорки прямоугольное с размерами:
= 50 см; h = 40 см; h0 = 36 см.
Изгибающий момент в распорке:
Площадь поперечного сечения арматуры:
По сортаменту принимаем продольную арматуру с d > 10 мм (по условию в исходных данных): 3 Ø 12 A-III с As расч. = 3,39 см2.
Поперечная сила в распорке:
Определяем:
Т. к. Q = 72,9 кH > Qds = 28,24 кH, то
поперечную арматуру принимаем конструктивно из условия соответствия рабочей
арматуре: хомуты Ø 6 A-I с шагом S = 160 мм.
.
Расчет фундамента под двухветвевую колонну
3.1 Исходные
данные
Условное расчетное сопротивление грунта: R0 = 200 кПа.
Бетон тяжелый класса В12,5: Rbt = 0,66 мПа.
Арматура из горячекатаной стали класса А-II: Rs =
280 мПа.
Вес единицы объема материала фундамента и грунта на его обрезах: γ = 20 кН/м3.
Расчет выполним на наиболее опасную комбинацию расчетных усилий (вторую)
в сечении 3-3. Нормативные значения усилий определяем делением расчетных усилий
на усредненный коэффициент надежности по нагрузке γn=1,15, т.е.:
n = 104,1 / 1,15 = 90,52 кН·м;
Nn = 1273,6 / 1,15 = 1107,48 кН;
Qn = 15 / 1,15 = 13,04 кН.
3.2 Определение
геометрических размеров фундамента
Глубина стакана фундамента назначается согласно данным:
Нan ≥ 0,5 + 0,33hf,
где hf = 1,1 м - половина высоты сечения
стаканной части фундамента;
Нan > 1,5 · bcol,
где bcol = 0,5 м - ширина сечения колонны;
Нan ≥ λan · ds,
где λan = 0,33 для бетона класса В12,5;
ds = 12 мм = 0,012 м - диаметр рабочей арматуры нижней части колонны;
Нan ≥ 0,5 + 0,33 · 1,1 = 0,863 м,
Нan > 1,5 · 0,5 = 0,75 м,
Нan ≥ 0,33 · 0,012 = 0,396 м.
Таким образом, принимаем глубину стакана фундамента:
Нan = 0,9 м = 900 мм.
Расстояние от дна стакана до подошвы фундамента принимаем 250 мм.
Полная высота фундамента принимается кратной 300 мм:
Нф = 900 + 250 = 1150 мм → Нф = 1200 мм.
Глубина заложения фундамента при расстоянии от планировочной отметки до
верха фундамента 150 мм:
Н1 = d =
1200 + 150 = 1350 мм.
Принимаем трехступенчатый фундамент с одинаковой высотой ступеней:
Нст = Нф / 3 = 1200 / 3 = 400 мм.
Предварительная площадь подошвы фундамента:
Из соотношения сторон b / a = 0,8 получаем:
b =
0,8 · а = 0,8 · 2,9 = 2,32 м.
Исходя из кратности размеров 300 мм, принимаем:
× b = 3,0 м × 2,4 м.
Т. к. заглубление фундамента Н1 = d = 1,35 м < d0 = 2 м и ширина подошвы фундамента b = 2,4 м > b0 = 1м, то необходимо уточнить расчетное сопротивление
грунта основания:
где k = 0,125 для пылевато-песчаных
грунтов;
Производим пересчет размеров подошвы фундамента с уточненным значением
расчетного сопротивления грунта основания:
b =
0,8 · а = 0,8 · 3,09 = 2,47 м.
Принимаем:
× b =
3,3 м × 2,7 м.
Площадь подошвы фундамента:
А = 3,3 · 2,7 = 8,91 м2.
Момент сопротивления:
Рабочую высоту фундамента определяем из условия прочности на
продавливание по формуле:
где h = 1,4 м - высота сечения колонны;
bcol = 0,5 м - ширина сечения колонны;
Rbt = γbt · Rbt = 0,9 · 660 = 594 кПа;
Полная высота фундамента:
Н = h0 + 0,05 м = 0,84 + 0,05 = 0,89 м < Нф =
1,2 м,
следовательно, принятая высота фундамента достаточна.
Изгибающий момент в уровне подошвы фундамента:
nf = Mn + Qn · Hф = 90,52 + 13,04 · 1,2 = 106,17 кН·м.
Нормативная нагрузка от веса фундамента и грунта на его обрезах:
n = a · b · H1 · γ · γn = 3,3 · 2,7 · 1,35 · 20 ·
0,95 = 228,54 кH.
Эксцентриситет:
0
= 0,08 < a / 6 = 3,3 / 6 = 0,55 м.
Определяем краевое давление на основание.
n,max = 171,76 кПа < 1,2 · R = 1,2 · 179,23 = 215,08 кПа;
.3 Расчет
арматуры фундамента
Определяем напряжение в грунте под подошвой фундамента в направлении
длинной стороны без учета веса фундамента и грунта на его уступах от расчетных
нагрузок:
где Mf = M + Q · Hф = 104,1 + 15 · 1,2 = 122,1 кН·м.
Расчетные изгибающие моменты:
в сечении I-I:
где ai = a1 =2,2 м;
Тогда:
Рис.4. Конструкция внецентренно нагруженного фундамента.
В сечении II-II:
МII-II = MI-I = 67,43 кН·м.
В сечении III-III:
Требуемое сечение арматуры:
По сортаменту принимаем продольную арматуру:
10 Ø 10 A-II с As расч. = 7,85 см2 и шагом 300 мм.
Процент армирования:
Арматура, укладываемая параллельно меньшей стороне фундамента,
определяется по изгибающему моменту в сечении IV-IV:
По сортаменту принимаем поперечную арматуру:
18 Ø 10 A-II с As расч. = 14,13 см2 и шагом 200
мм.
Процент армирования:
мостовой кран стропильный стержень
3.4 Проверка
прочности фундамента
Прочность материала фундамента по наклонному сечению на действие
поперечной силы обеспечивается условием:
где Q - поперечная сила в вершине
наклонного сечения от действия опорной реакции и нагрузки, расположенной на
участке от опоры до вершины наклонного сечения, в нашем случае Q = N = 1273,6 кН;
Qb = Mb / c - поперечное усилие, воспринимаемое бетоном сжатой зоны над
вершиной наклонного сечения;
Qsw - сумма осевых усилий в хомутах, пересекаемых наклонным
сечением, в нашем случае не учитывается;
Qs, inc - сумма проекций на нормаль к оси элемента осевых усилий в отгибах,
пересекаемых наклонным сечением, в нашем случае не учитывается.
b = φb2 · 1,5 · Rbt · b · h02 = 2 · 1,5 · 660 · 2,7 · 1,152 = 7070,09
кН·м.
Расстояние от вершины наклонного сечения до опоры:
с = 2h0 = 2 · 1,15 = 2,3 м.
Qb = 7070,09 / 2,3 = 3073,95 кН.
Qmin = φb3 · 1,5 · Rbt · b · h0 = 0,6 · 1,5 · 660 · 2,7 · 1,15 = 1844,37 кН.
Qb = 3073,95 кН > Qmin = 1844,37 кН;
Q =
1273,6 кН < Qb =
3073,95 кН;
условия выполняются, т. е. запроектированный фундамент обладает большим
запасом прочности в бетоне сжатой зоны над наклонной трещиной, поэтому проверку
прочности фундамента по раскрытию трещин выполнять не станем.
.
Проектирование стропильной сегментной фермы
Ферма проектируется предварительно напряженной на пролет 18 м, цельной
при шаге ферм 12 м.
Напрягаемая арматура нижнего пояса из стержней класса А-IV с натяжением на упоры: Rs = 510 мПа; Es = 1,9·105 мПа.
Сжатый пояс и элементы решетки фермы армируются арматурой класса А-III: Rs = Rsc = 365 мПа (d > 10 мм); Es = 2·105 мПа; хомуты класса А-I: Rs =
170 мПа.
Бетон тяжелый марки В40: Rb = 22 мПа; Rbt =
1,4 мПа; Rbt,n = 2,1 мПа; γb2 = 0,9; Eb = 32,5·103 мПа. Прочность бетона к моменту обжатия Rbp = 28 мПа.
4.1 Назначение
геометрических размеров фермы
Ширину панелей фермы принимаем 3 м с таким расчетом, чтобы ребра плит
покрытия шириной 3 м опирались в узлы верхнего пояса, что обеспечивает передачу
нагрузки и исключает влияние местного прогиба.
Расчетный пролет фермы:
0
= 18 - 2 · 0,15 = 17,7 м.
Элементы фермы выполняются прямоугольного сечения.
Поскольку решетка фермы и пояса бетонируются одновременно, то ширина
поясов, стоек и раскосов принимается одинаковой для всей фермы при шаге 12 м: b = 300 мм.
Конструктивная высота сечения нижнего пояса:
= 1,2 · b = 1,2 · 300 =
360 мм.
Конструктивная высота сечения верхнего пояса:
= 0,8 · b = 0,8 · 300 =
240 мм.
За расчетную высоту фермы принимаем максимальное расстояние между осями
поясов:
0
= 2,25 - 0,18 - 0,12 = 1,95 м.
Конструктивная высота сечения элементов решетки:
= 0,5 · b = 0,5 · 300 =
150 мм.
Рис.5. Геометрическая схема фермы.
.2 Сбор нагрузок на ферму
Загружение фермы постоянной и снеговой нагрузкой рассматривается в двух
вариантах:
) снеговая нагрузка с полным нормативным значением, действующая
кратковременно по всему пролету фермы;
) снеговая нагрузка с пониженным нормативным значением, действующая
длительно по всему пролету фермы.
С целью упрощения расчета все нагрузки на ферму, в том числе собственный
вес 70 кН, прикладываются в виде сосредоточенных сил в местах опирания
продольных ребер панелей покрытия, т. е. в узлах верхнего пояса.
Таблица 3. Нагрузка на покрытие
Находим узловые расчетные нагрузки по верхнему поясу фермы.
а) При действии постоянной и временной длительной нагрузок:
1
= (qп · l1 + qдл · lп1) · В · γn;
где l1 = (3198 + 3010) / 2 = 3104 мм;
lп1 = (2850 + 3000) / 2 = 2925 мм;
G1 = (4,718 · 3,104 + 0,806 · 2,925) ·
12 · 0,95 = 193,83 кН;
G2 = (4,718 · 3,01 + 0,806 · 3) · 12 ·
0,95 = 189,46 кН.
Учитывая незначительную разницу величин G1 и G2, для подсчета усилий в элементах
фермы можно принять среднее значение G:
Опорные реакции:
A = GB = 5G/2 = 5· 191,21 / 2 = 478,025 кН.
б) При действии кратковременной снеговой нагрузки:
Р1 = qкр · lп1 · В · γn = 2,688 · 2,925 · 12 · 0,95 = 89,63 кН;
Р2 = 2,688 · 3 · 12 · 0,95 = 91,93 кН.
Учитывая незначительную разницу величин Р1 и Р2,
для подсчета усилий в элементах фермы можно принять среднее значение Р:
Опорные реакции:
РA = РB = 5Р/2 = 5· 91,01 / 2 = 227,525 кН.
Рассчитываем суммарную узловую нагрузку:
= G + P = 191,21 + 91,01 = 282,22 кН.
Суммарная опорная реакция:
= 478,025 + 227,525 = 705,55 кН.
4.3 Определение
усилий в стержнях фермы
В раскосных фермах, представляющие собой статически определимые системы,
в элементах решётки действуют лишь продольные усилия N, которые определяются известными методами теоретической и
строительной механики: графоаналитическим методом (построение диаграммы
Максвелла-Кремоны), методом вырезания узлов, способом моментной точки.
Указанные методы могут быть реализованы на ЭВМ.
Произведем статический расчет фермы.
Методы оптимизации расчета:
так как ферма симметрична, достаточно рассчитать 50 % стержней;
назначаются пояса постоянного сечения;
применяется унификация стержней - ограничение количества типоразмеров
арматуры до минимума;
производится проверка только самых нагруженных стержней у середины фермы,
т. к. остальные будут удовлетворять условиям автоматически.
Рис.6. Расчетная схема фермы
Моменты M = 0
Поперечные силы Q = 0
Продольные силы
Стержни В1; В1': N = -548.563
Стержни H1; H1': N = -180.789
Стержни 1-2;1'-2': N = 212.675
Стержни В2; В2': N = -682.763
Стержни 2-3;2'-3': N = -99.5
Стержни В3; В3': N = -682.763
Стержни 3-4;3'-4: N = 12.7532
Стержень Н4: N = 0.000
Рис.6. Эпюры усилий в стержнях фермы от суммарной нагрузки.
4.4 Расчет
сечений элементов фермы
.4.1 Верхний
сжатый пояс
Расчет верхнего пояса ведем по наибольшему усилию (стержень В3):
= 682,763 кН.
Ориентировочная требуемая площадь сечения верхнего сжатого пояса:
Фактическая площадь сечения верхнего пояса
А = b × h = 30 × 24 = 720 см2 > 259 см2.
Случайный начальный эксцентриситет:
eа ≥ l / 600 = 3000 / 600 = 5 мм,
где l = 3000 мм - расстояние между узлами
фермы;
а ≥ h / 30 = 240 / 30 = 8 мм;
eа
≥ 10 мм.
Принимаем е0 = еа = 10 мм.
Т. к. еа = 10 мм < h / 8 = 240 /8 = 30 мм, принимаем расчетную длину стержня:
0
= 0,9 · l = 0,9 · 3000 = 2700 мм.
Гибкость сечения пояса:
λ = l0 / h =
2700 / 240 = 11,25 > 4,
т. е. необходимо учесть влияние гибкости на увеличение эксцентриситета.
Момент инерции сечения верхнего пояса:
Момент внешних сил относительно оси, параллельной линии, ограничивающей
сжатую зону и проходящей через центр наиболее растянутого или наименее сжатого
(при целиком сжатом сечении) стержня арматуры, от продолжительного действия
нагрузки:
Момент от действия полной нагрузки:
Предварительно задаемся коэффициентом армирования (первое приближение):
Is = μ · b · h0 · (0,5h - a)2 = 0,03 · 0,3 · 0,2 ·
(0,5 · 24 - 0,04)2 = 0,1152·10-4м4.
Условная критическая сила:
Коэффициент:
Уточняем расстояние е:
Граничное значение относительной высоты сжатой зоны бетона:
где ω = 0,85 - 0,008 · γb2 · Rb = 0,85 - 0,008 · 0,9 · 22 = 0,6916;
σs1 = Rs = 365 мПа.
Тогда:
Коэффициент:

Имеем случай ξ = 0,761 > ξR = 0,517, армирование принимаем
симметричное:
Аs = -8,51 см < 0, значит, площадь
поперечного сечения арматуры в обеих ветвях подкрановой части колонны назначаем
конструктивно из соображения:
s = Аs′
= 0,015 · b · h0 = 0,015 · 30 · 20 = 9 см2.
Коэффициент армирования:
что мало отличается от принятого первоначально значения µ = 0,03.
Т. к. Аs + Аs’ = 18 cм2,
то по сортаменту принимаем рабочую арматуру:
Ø 25 A-III с As расч. = 19,63 см2.
Назначаем поперечную арматуру: хомуты Ø 10 A-I с шагом S = 250 мм.
Расчет сечения верхнего пояса из плоскости фермы не производится, так как
все узлы пояса раскреплены плитами покрытия.
4.4.2 Нижний
растянутый пояс
Расчет прочности выполняем для панели Н1, расчетное усилие N = 180,789 кН.
Кроме расчета на прочность напрягаемый нижний пояс нужно рассчитать на
раскрытие трещин.
Определяем требуемую площадь сечения рабочей напрягаемой арматуры:
Принимаем 4 Ø 12 А-IV, АS расч. = 4,52 см2.
Вычисляем процент армирования:
Т. к. µ% < 1%, то увеличить его можно за счет изменения геометрических
размеров сечения нижнего пояса путем уменьшения его высоты.
Принимаем сечение нижнего пояса b x h = 300 х150 мм.
Получаем процент армирования:
Выполняем расчет нижнего пояса фермы по образованию трещин с целью
выявления необходимости его расчета на раскрытие трещин.
Расчет ведется от нормальных нагрузок - максимальное нормативное усилие в
элементе Н1:
н
= N / γcp = 180,789 / 1,2 = 150,66 кН.
Должно выполняться условие: Nн < Ncrc.
Находим первые потери, происходящие:
σ1 = 0,1σsp - 20 = 0,1 · 560 - 20 = 36 мПа;
б) от температурного перепада при Δt = 650C
в) от деформации анкеров при натяжении арматуры до бетонирования на
жесткие упоры стенда:
Усилия обжатия бетона при учете потерь σ1, σ2 и коэффициенте точности натяжения γsp = 1 cоставят:
0
= γsp · As расч. (σsp
- σ1
- σ2) = 1· 4,52 · ( 560 - 36 - 81,25) =
200,123 кН.
Напряжение обжатия бетона:
σbp = P0 / A red;
где A red = А + As расч.·
α - приведенная
площадь сечения;
при α = Еs / Eb = 1,9 · 105
/ 0,325 · 105 = 5,85:
red = 30 · 15 + 4,52.· 5,85 = 476,442 cм2;
σbp = 200,123 / 476,442· 10-4
= 4,2 мПа.
Далее находим потери от деформации бетона при быстронатекающей ползучести
при σbp / Rbp = 4,2 / 28 = 0,15 < 0,8:
σ6 = 40 · 0,85 ·
σbp / Rbp = 40 · 0,85 · 0,15 = 5,1 мПа.
Первые потери составят:
σlos1 = σ1 + σ2 + σ6 = 36 + 81,25 + 5,1 = 122,35 мПа.
Затем находим вторые потери:
а) от усадки бетона В40: σ8 = 40мПа;
б) от ползучести бетона при σbp / Rbp = 4,2 / 28 = 0,15 < 0,75:
σ9 = 150 · 0,85 ·
σbp / Rbp = 150 · 0,85 · 0,15 = 19,125 мПа.
Вторые потери составят:
σlos2 = σ8 + σ9 = 40 + 19,125 = 59,125 мПа.
Суммарные потери:
σlos
= σlos1 + σlos2 = 122,35 + 59,125 = 181,48 мПа.
Находим усилие, воспринимаемое сечением, нормальным к продольной оси
элемента, при образовании трещин:
σsp = σsp -
σlos = 560 - 181,48 = 378,52 мПа;
Nн = 150,66 кН < Ncrc = 259,63 кН - условие выполняется,
следовательно, расчет нижнего пояса на раскрытие трещин выполнять не
будем.
4.4.3 Растянутый
раскос
Расчет выполняем для стержня 1-2, расчетное усилие N = 212,675 кН.
Принятое конструктивно сечение А = b x h = 30 x 15 =
450 см2.
Арматура класса А-III, Rs = 365 мПа.
Определяем требуемую площадь сечения рабочей напрягаемой арматуры:
Принимаем 4 Ø 14 А-III, АS расч. = 6,16 см2.
Вычисляем процент армирования:
Для растянутого раскоса ширина длительного и кратковременного раскрытия
трещин проверяется так же, как и для нижнего пояса фермы.
Расчет ведется от нормальных нагрузок - максимальное нормативное усилие в
элементе 1-1:
н
= N / γcp = 212,675 / 1,2 = 177,23 кН.
Должно выполняться условие: Nн < Ncrc.
Находим первые потери, происходящие:
а) от релаксации напряжений в арматуре при принятом предварительном
напряжении σsp = 400 мПа:
σ1 = 0,1σsp - 20 = 0,1 · 400 - 20 = 20 мПа;
б) от температурного перепада при Δt = 650C
в) деформации анкеров при натяжении арматуры до бетонирования на жесткие
упоры стенда:
Усилия обжатия бетона при учете потерь σ1, σ2 и коэффициенте точности натяжения γsp = 1 cоставят:
0
= γsp · As расч. (σsp
- σ1
- σ2) = 1· 6,16 · ( 400 - 20 - 81,25) =
184,03 кН.
Приведенная площадь сечения при α = Еs / Eb = 2 · 105 / 0,325 · 105 = 6,15:
red = А + As
расч.· α = 450 + 6,16.·
6,15 = 487,88 cм2;
Напряжение обжатия бетона:
σbp = P0 / A red = 184,03 / 487,88 · 10-4 = 3,77 мПа.
Далее находим потери от деформации бетона при быстронатекающей ползучести
при σbp / Rbp = 3,77 / 28 = 0,13 < 0,8:
σ6 = 40 · 0,85 ·
σbp / Rbp = 40 · 0,85 · 0,13 = 4,42 мПа.
Первые потери составят:
σlos1 = σ1 + σ2 + σ6 = 20 + 81,25 + 4,42 = 105,67 мПа.
Затем находим вторые потери:
а) от усадки бетона В40: σ8 = 40мПа;
б) от ползучести бетона при σbp / Rbp = 4,2 / 28 = 0,13 < 0,75:
σ9 = 150 · 0,85 ·
σbp / Rbp = 150 · 0,85 · 0,13 = 16,58 мПа.
Вторые потери составят:
σlos2 = σ8 + σ9 = 40 + 16,58 = 56,58 мПа.
Суммарные потери:
σlos
= σlos1 + σlos2 = 105,67 + 56,58 = 162,25 мПа.
Находим усилие, воспринимаемое сечением, нормальным к продольной оси
элемента, при образовании трещин:
σsp = σsp - σlos = 400 - 162,25 = 237,75 мПа;
Nн = 177,23 кН < Ncrc = 242,22 кН - условие выполняется,
следовательно, растянутого раскоса на раскрытие трещин выполнять не
будем.
В остальных элементах фермы - стойке 2-3 и раскосе 3-4 - усилия невелики,
поэтому их рассчитывать не станем.
Исходя из принятых геометрических размеров поперечного сечения элементов
решетки b x h = 300 x 150
мм и коэффициента армирования µ = 0,01, вычисляем площадь сечения арматуры:
Аs = 0,01· 30 · 15 = 4,5 см2.
Рабочую арматуру назначаем конструктивно: 2 Ø 18 А-III, АS расч. = 5,09 см2.
Список используемой литературы
. СНиП 2.03.01-84* "Бетонные и железобетонные
конструкции". М., 1985.
. СНиП 2.01.07-85 "Нагрузки и воздействия".
М., 1986.
. Байков В. Н., Сигалов Э. Е. Железобетонные конструкции:
Общий курс. М.: Стройиздат, 1991. 767 с.
. Мандриков А. П. Примеры расчета железобетонных
конструкций. - М.: Стройиздат, 1989. - 506 с.
. Климушин П. И. Проектирование элементов
железобетонного каркаса одноэтажного промыщленного здания. Методические указания.
Саратов, 2004, - 40 с.
. Ерёмин А. П., Казимова О. В. Железобетонные и
каменные конструкции. Методические указания. Саратов, 2006, - 23 с.
. СНиП 2.02.01-83*. "Основания зданий и
сооружений". М., 1985.