Организация производства и рабочих мест в мясо-рыбном цехе ресторана высшего класса 'Ностальгия' на 170 мест в гостинице 'Измайлово'
Организация
производства и рабочих мест в мясо-рыбном цехе ресторана высшего класса
«Ностальгия» на 170 мест в гостинице «Измайлово»
Содержание
Введение
. Технико-экономическое обоснование
.1 Обоснование выбора предприятия
. Производственная программа цеха
.1 Определение количества посетителей
.2 Расчет блюд, реализуемых за день
.3 Составление плана-меню на расчетный день
.4 Составление графика реализации блюд и напитков
.5 Расчет количества мясных и рыбных продуктов
.6 Сводная ведомость сырья (кг) по меню (брутто)
.7 Расчет работников цеха
. Потребность в оборудовании для заготовочного цеха
.1 Расчет потребности в мясорубках
.2 Расчет универсального привода
.3 Расчет котлетоформующей машины
.4 Расчет холодильного оборудования
. Организация работы заготовочного цеха
. Расчет площади цеха
.1 Объемно-планировочное решение цеха
. Санитарные требования к транспортированию, хранению и
кулинарной обработке продуктов
Список использованной литературы
Введение
Научно-технический прогресс в общественном питании - сложный динамически
развивающийся процесс. Он связан с формированием новых знаний и идей,
технологическим освоением научных технологий и результатов научных
исследований. Институт питания Академии Наук Российской Федерации ведет
разработки новых видов сырья, полуфабрикатов, добавок, продуктов питания,
занимается выбором новых форм организации производства с целью обеспечения
высокотехнологичных, современных производств.
Кулинария доступна человечеству с незапамятных времен, а развитие
профессиональной кулинарии связано с появлением предприятий внедомашнего
питания (корчмы, трактиры и т.п.). Именно в трактирах и ресторанах получила
развитие профессиональная кулинария, в основе которой лежала народная кухня.
В дальнейшем большое влияние на ускорение производства продуктов питания
оказало возникновение промышленного производства сахара, развитие промышленного
животноводства, растениеводства и т.п. Однако до тех пор, пока переработка
выращенной сельскохозяйственной продукции было кустарным, оставалось кустарным
и производство продуктов питания.
В первые десятилетия прошлого века пекарни, бойни, кондитерское
производство концентрировалось в крупных городах: Петербурге, Москве, Харькове,
Одессе. В период Октябрьского переворота крупные предприятия были национализированы,
а после гражданской войны восстанавливались и реконструировались. В крупных
городах была проведена специализация фабрик, что позволило механизировать
многие операции на основных процессах.
В период Великой Отечественной войны значительная часть предприятий была
разрушена, и после войны восстановление шло параллельно с их реконструкцией.
Одновременно на заводах стала шире внедряться организация питания рабочих.
Общественное питание оказалось востребованным. Было организовано много
новых, оснащенных передовой техникой, столовых, буфетов.
В современном обществе новые виды пищевого сырья потребовали введения
новых методов его обработки, новых кулинарных рецептов на основе научного
подхода к технологии приготовления блюд. В результате на крупных предприятиях
общественного питания стали шире применяться быстрозамороженные и
консервированное сырье, обработанное на современных машинах со сложным
механическим, тепловым и холодильным оборудованием.
Кроме того, перед общественным питанием в России стоит задача повышения
качества, расширение ассортимента приготовляемых блюд, увеличение выработки
полуфабрикатов высокой степени готовности, разработка и внедрение ресурсно- и
энергосберегающих технологий, улучшение санитарно-гигиенических условий
производства, техники безопасности, последовательное сокращение применения
ручного и тяжелого физического труда, как на основных, так и на вспомогательных
операциях. Обращается внимание на организацию гибких, достаточно быстро
перестраиваемых операций, создание и внедрение совершенно новых блюд,
отвечающих требованиям сбалансированного питания.
Эти задачи в равной мере стоят перед столовыми, кафе, ресторанами. В
частности, предприятия питания должны осуществить техническое перевооружение на
основе оснащения цехов новейшим оборудованием, обеспечивающими комплексную
переработку продукции и сырья, увеличения ассортимента выпускаемых блюд,
включение в ассортимент таких продуктов как морепродукты, обогащая блюда
важными, но обедненными микроэлементами.
1.
Технико-экономическое обоснование
.1
Обоснование выбора предприятия
Заданием на проектирование предусмотрена разработка ресторана высшего
класса «Ностальгия» на 170 посадочных мест, расположенного в здании гостиницы
«Измайлово». В ресторане выпускается и реализуется большой ассортимент горячих
блюд из мяса, рыбы, морепродуктов, грибов, мяса птицы, а также различных
холодных и горячих блюд.
Предприятие подключено к централизованным сетям водоснабжения,
электросети, теплоснабжения, канализации.
При использовании помещения учтены мероприятия по безопасности и
экономичности, учитывается весь комплекс природоохранных мероприятий.
Цель работы ресторана - организация питания жителей и гостей города.
Режим работы: с 11.00 до 23.00 ч.
Помещения и витрины ресторана красиво оформлены, выдержаны в едином
стиле, использованы элементы декора, оптического эффекта. Основными видами
мебели являются красивые искусно оформленные деревянные столы, удобные
ресторанные кресла. Посуда используется из высококачественного фарфора, стекла,
нержавеющей стали, мельхиора.
Мясо-рыбный цех является высокомеханизированным самостоятельным
производством по выработке полуфабрикатов высокой степени готовности из
какого-либо сырья (мясо, рыба, птица, овощи).
2.
Производственная программа цеха
Производственная программа цеха характеризуется объемом перерабатываемого
сырья и объемом выпускаемых полуфабрикатов. Для ресторана производственной
программой является расчетное меню для реализации блюд в зале данного
предприятия и снабжения буфетов, магазинов кулинарии и отпуска обедов на дом.
.1
Определение количества посетителей
Планируемое количество посетителей определяется [6] следующим образом.
Количество посетителей Nп за
каждый час работы рассчитываем по формуле
,
где
Р - количество посадочных мест;
С
- средний процент загрузки зала;
R -
оборачиваемость одного места за час.
Например,
Итак,
по расчету получилось, что необходимо обслужить 203 человека за один час работы
с 9 до 10 часов.
Таблица
1 - Расчет количества посетителей со свободным выбором ассортимента
|
Часы работы предприятия
|
Оборачиваемость одного
места
|
Средний процент загрузки
|
Количество посетителей, Nч
|
|
8-9
|
2
|
40
|
136
|
|
9-10
|
2
|
60
|
204
|
|
10-11
|
1,5
|
30
|
77
|
|
11-12
|
1,5
|
40
|
102
|
|
12-13
|
1,5
|
100
|
255
|
|
13-14
|
1,5
|
90
|
230
|
|
14-15
|
1,5
|
80
|
204
|
|
15-16
|
1,5
|
50
|
128
|
|
16-17
|
1,5
|
30
|
77
|
|
17-18
|
Перерыв
|
|
|
|
18-19
|
0,6
|
70
|
71
|
|
19-20
|
0,6
|
100
|
102
|
|
20-21
|
0,6
|
80
|
82
|
|
21-22
|
0,6
|
70
|
71
|
|
22-23
|
0,6
|
60
|
61
|
|
Итого количество посетителей
за день, Nд
|
1800
|
2.2 Расчет
блюд, реализуемых за день
Исходя из имеющихся данных о количестве посетителей по часам, а также
специальных коэффициентов, определяем количество блюд Пn, реализуемых в течение дня, по формуле
Пд = Nд *m,
Где Nд - количество посетителей за день;
m -
коэффициент потребления блюд, m =
3,5
Пд =3,5 * 1800 = 6300 блюд
Разбивка блюд по ассортименту:
Количество холодных закусок -30 % от общего количества блюд.
Пх.б. = Nд * mх.б.,
Пх.б. = 6300 * 0,30 = 1890 блюд
Количество горячих закусок - 5%
Пх.б. = Nд * mх.б.,
Пх.б. = 6300 * 0,05 = 315 блюд
Количество первых блюд - 25 %
ПI.б. = Nд * mI.б.,
ПI.б. = 6300 * 0,25 = 1575 блюд
Количество вторых горячих блюд - 30 %
ПII.б. = Nд * mII.б.,
ПII.б. = 6300 * 0,3 = 1890 блюда
Количество сладких блюд -10 % от общего количества блюд.
Пх.б. = Nд * mх.б.,
Пх.б. = 6300 * 0,10 = 630 блюд
Где mх.б, mI.б., mII.б.
- коэффициенты потребления соответственно холодных, первых, вторых и сладких
блюд.
Оформляем данные в таблицу 2.
Таблица 2 - Потребное количество блюд
|
Наименование блюд
|
Количество потребления
|
Коэффициент потребления
|
Количество блюд
|
|
Холодные закуски
|
6300
|
0,30
|
1890
|
|
Горячие закуски
|
|
0,05
|
315
|
|
Первые горячие блюда
|
|
0,25
|
1575
|
|
Вторые горячие блюда
|
|
0,30
|
1890
|
|
Сладкие блюда
|
|
0,10
|
630
|
|
ИТОГО
|
|
|
6300
|
2.3
Составление плана-меню на расчетный день
меню блюдо мясной сырье
При составлении плана-меню [10] необходимо учитывать порядок написания
блюд в меню, ассортиментный минимум, количество посетителей за день, наличие
оборудования, квалификацию поваров.
Таблица 3 - Примерный план - меню на расчетный день
|
№ рецепта
|
Наименование блюд
|
Кол-во блюд
|
Выход в г.
|
|
Холодные блюда и закуски
|
|
|
|
64
|
Салат витаминный
|
390
|
100
|
|
73
|
Салат мясной
|
470
|
100
|
|
122
|
Ассорти рыбное
|
470
|
185
|
|
127
|
Ассорти мясное
|
470
|
175
|
|
124
|
Форшмак картофельный с
сельдью
|
165
|
150
|
|
106
|
Баклажаны, тушеные с
помидорами
|
150
|
150
|
|
1-е горячие блюда
|
|
|
|
135
|
Солянка сборная
|
500
|
500
|
|
219
|
Суп-лапша грибная
|
500
|
500
|
|
162
|
Уха рыбацкая
|
275
|
250
|
|
173
|
Суп-харчо
|
300
|
500
|
|
2-е горячие блюда
|
|
|
|
363
|
Рыба, запеченная в соусе с
грибами
|
345
|
100/170
|
|
658
|
Котлета натуральная из филе
птицы, фаршированная печенью
|
300
|
100/150
|
|
640
|
Котлета по-киевски
|
300
|
100/150
|
|
408
|
Лангет
|
300
|
100/250
|
|
422
|
Печень по строгановски
|
300
|
100/215
|
|
447
|
Рагу из свинины
|
345
|
324
|
2.4
Составление графика реализации блюд и напитков
На основании таблицы загрузки зала и плана-меню количество блюд того или
иного наименования за каждый час работы предприятия определится по формуле
Пч = Пд * Кч,
Где Пч - количество блюд, изготавливаемых за час работы предприятия;
Пд - количество блюд, реализуемых за день;
Кч - коэффициент пересчета блюд за час (см. табл. 1), как отношение
количества посетителей за час к количеству посетителей за день,
Кч
=
.
Расчетные
данные сводим в таблицу.
Таблица 4 - Сводные данные количества блюд за каждый час работы ресторана
|
Наименование блюда
|
Коэффициент пересчета блюд
(Кч)
|
Кол-во блюд за день
|
|
0,075
|
0,11
|
0,042
|
0,056
|
0,14
|
0,13
|
0,11
|
0,07
|
0,042
|
|
0,039
|
0,056
|
0,045
|
0,039
|
0,034
|
|
|
Часы работы ресторана
|
|
|
8 - 9
|
9 - 10
|
10 - 11
|
11 - 12
|
12-13
|
13-14
|
14-15
|
15-16
|
16-17
|
17-18
|
18-19
|
19-20
|
20-21
|
21-22
|
22-23
|
|
|
Салат витаминный
|
30
|
44
|
16
|
22
|
55
|
51
|
43
|
27
|
16
|
|
16
|
22
|
18
|
16
|
14
|
390
|
|
Салат мясной
|
36
|
54
|
20
|
27
|
66
|
61
|
52
|
33
|
20
|
|
18
|
27
|
21
|
18
|
17
|
470
|
|
Ассорти рыбное
|
35
|
54
|
20
|
27
|
66
|
61
|
52
|
33
|
20
|
|
18
|
27
|
21
|
18
|
17
|
470
|
|
Ассорти мясное
|
35
|
54
|
20
|
27
|
66
|
61
|
52
|
33
|
|
|
18
|
27
|
21
|
18
|
17
|
470
|
|
Форшмак картофельный с
сельдью
|
13
|
18
|
7
|
10
|
23
|
22
|
18
|
12
|
7
|
|
6
|
10
|
7
|
6
|
165
|
|
Баклажаны, тушеные с
помидорами
|
11
|
17
|
6
|
8
|
21
|
20
|
17
|
11
|
6
|
|
6
|
8
|
7
|
6
|
6
|
150
|
|
Солянка сборная
|
38
|
55
|
22
|
28
|
70
|
68
|
55
|
35
|
22
|
|
20
|
28
|
22
|
20
|
17
|
500
|
|
Суп-лапша грибная
|
38
|
55
|
22
|
28
|
70
|
68
|
55
|
35
|
22
|
|
20
|
28
|
22
|
20
|
17
|
500
|
|
Уха рыбацкая
|
22
|
30
|
12
|
15
|
39
|
36
|
30
|
19
|
12
|
|
11
|
15
|
13
|
11
|
10
|
275
|
|
Суп-харчо
|
23
|
33
|
13
|
17
|
42
|
39
|
33
|
21
|
13
|
|
12
|
17
|
14
|
12
|
10
|
300
|
|
Рыба, запеченная в соусе с
грибами
|
27
|
38
|
16
|
19
|
48
|
46
|
38
|
24
|
16
|
|
13
|
19
|
16
|
13
|
12
|
345
|
|
Котлета натуральная из филе
птицы, фаршированная печенью
|
23
|
33
|
13
|
17
|
42
|
39
|
33
|
21
|
13
|
|
12
|
17
|
14
|
12
|
10
|
300
|
|
Котлета по-киевски
|
23
|
33
|
13
|
17
|
42
|
39
|
33
|
21
|
13
|
|
12
|
17
|
14
|
12
|
10
|
300
|
|
Лангет
|
23
|
33
|
13
|
17
|
42
|
39
|
33
|
21
|
13
|
|
12
|
17
|
14
|
12
|
10
|
300
|
|
Печень по строгановски
|
23
|
33
|
13
|
17
|
42
|
39
|
33
|
21
|
13
|
|
12
|
17
|
14
|
12
|
10
|
300
|
|
Рагу из свинины
|
27
|
38
|
16
|
19
|
48
|
46
|
38
|
24
|
16
|
|
13
|
19
|
16
|
13
|
12
|
345
|
|
|
|
|
|
|
|
|
|
|
|
|
|
|
|
|
|
|
2.5 Расчет
количества мясных и рыбных продуктов
Расчет количества сырья ведем в соответствии со сборниками рецептур [9,
10].
Блюдо - «Салат витаминный» не содержит в своем составе мясных и рыбных
компонентов, поэтому расчет не ведется.
Таблица 5 - Блюдо - «Салат мясной», масса одного блюда 150 г., 470 блюд.
|
Наименование ингредиента
|
Расход сырья по
рецептурному справочнику, г
|
Расход сырья на общее
кол-во блюд, кг
|
|
Брутто
|
Нетто
|
Брутто
|
Нетто
|
|
Говядина
|
65
|
48
|
30,08
|
22,56
|
Таблица 6 - Блюдо «Ассорти рыбное», масса одного блюда 185 г, 470 блюд.
|
Наименование продукта
|
Расход сырья по
рецептурному справочнику на одно блюдо, г
|
Общий расход сырья, кг
|
|
Брутто
|
Нетто
|
Брутто
|
Нетто
|
|
Севрюга
|
64
|
41
|
30,08
|
19,27
|
Таблица 7 - Желе мясное или рыбное - 470 порций по 7 г
|
Наименование продукта
|
Расход сырья по
рецептурному справочнику, г
|
Расход сырья, кг
|
|
Брутто
|
Нетто
|
Брутто
|
Нетто
|
|
Кости, рыбные отходы
|
1000
|
1000
|
3,29
|
3,29
|
Таблица 8 - Блюдо «Ассорти мясное» - 470 блюд по 175 г.
|
Наименование продукта
|
Расход сырья по
рецептурному справочнику на одно блюдо, г
|
Общий расход сырья, кг
|
|
Брутто
|
Нетто
|
Брутто
|
Нетто
|
|
Говядина или телятина
|
54
|
40
|
25,38
|
18,8
|
|
Язык говяжий
|
42
|
42
|
19,74
|
19,74
|
|
Курица
|
54
|
37
|
25,38
|
17,39
|
Таблица 9 - Блюдо «Солянка сборная мясная» - 500 блюд по 500 г.
|
Наименование ингредиента
|
Расход сырья по
рецептурному справочнику, г
|
Расход сырья на одно блюдо,
г
|
Расход сырья на общее
кол-во блюд, г
|
|
Брутто
|
Нетто
|
Брутто
|
Нетто
|
Брутто
|
Нетто
|
|
Телятина
|
95
|
63
|
47,5
|
31,5
|
23,75
|
15,75
|
|
Говядина
|
110
|
81
|
55
|
10,5
|
27,5
|
5,25
|
|
Почки говяжьи
|
121
|
104
|
60,5
|
52
|
30,25
|
26,0
|
|
Выход
|
-
|
1000
|
|
|
|
|
Таблица 10 - Блюдо «Уха рыбацкая» - 275 блюд, по 500 г.
|
Наименование ингредиента
|
Расход сырья по
рецептурному справочнику, г
|
Расход сырья на одно блюдо,
г
|
Расход сырья на общее
кол-во блюд, г
|
|
Брутто
|
Нетто
|
Брутто
|
Нетто
|
Брутто
|
Нетто
|
|
Рыба-мелочь
|
200
|
-
|
100
|
-
|
27,5
|
-
|
|
Судак
|
342
|
188
|
171
|
94
|
47,025
|
25,85
|
|
Налим
|
426
|
183
|
213
|
91,5
|
58,575
|
25,16
|
|
Выход
|
-
|
1000
|
|
|
|
|
Таблица 11 - Блюдо «Суп-харчо» -300 блюд по 500 г*
|
Наименование продукта
|
Расход сырья по
рецептурному справочнику, г
|
Расход сырья на одно блюдо,
г
|
Общий расход сырья, кг
|
|
Брутто
|
Нетто
|
Брутто
|
Нетто
|
Брутто
|
Нетто
|
|
Вареная грудинка (75 г на
порцию)
|
|
150
|
|
75
|
|
22,5
|
|
Выход
|
-
|
1000
|
|
500
|
|
|
Масса брутто грудинки: потери при холодной обработке - 36 % и при
тепловой обработке - 40%. Общая сумма потерь - 76 % или
,5 * 0,76 = 17,1 кг
Общее количество грудинки для приготовления блюда «Суп-харчо» составит:
,5 + 17,1 = 39,6 кг
Таблица 12 - Блюдо «Рыба, запеченная в соусе с грибами» -345 по 100/170 г
|
Наименование продукта
|
Расход сырья по
рецептурному справочнику, г
|
Расход сырья на одно блюдо,
г
|
Общий расход сырья, кг
|
|
Брутто
|
Нетто
|
Брутто
|
Нетто
|
Брутто
|
Нетто
|
|
Судак
|
227
|
116
|
227
|
31,78
|
16,24
|
|
Выход
|
-
|
170
|
-
|
170
|
-
|
31,22
|
Таблица 13 - Блюдо - «Котлеты натуральные из филе птицы, фаршированные
печенью» - 300 блюд, по 140/240/100 г
|
Наименование ингредиента
|
Расход сырья по
рецептурному справочнику, г
|
Расход сырья на одно блюдо,
г
|
Расход сырья на общее
кол-во блюд, кг
|
|
Брутто
|
Нетто
|
Брутто
|
Нетто
|
Брутто
|
Нетто
|
|
Курица
|
381
|
137
|
381
|
137
|
114,3
|
41,100
|
|
Фарш:
|
|
|
|
|
|
|
|
Обработанные субпродукты
(печень)*
|
-
|
31/25
|
-
|
31/25
|
-
|
9,3
|
* Масса субпродуктов после тепловой обработки
Масса брутто печени: потери при холодной обработке - 17% и при тепловой
обработке - 28%. Общая сумма потерь - 45 % или 9,3 * 0,45 = 4,19 кг.
Общее количество печени для приготовления блюда «Котлеты натуральные из
филе птицы, фаршированные печенью» составит:
,3 + 4,19 = 13,49 кг
Таблица 14 - Соус паровой для котлет
|
№ пп
|
Наименование продуктов
|
Масса брутто на 1000 г
соуса парового, г
|
Масса брутто на 100 г соуса
парового, кг
|
Брутто на 300 блюд, кг
|
|
7
|
Кости
|
550
|
5,5
|
1,65
|
Таблица 15 - Блюдо «Котлеты по киевски» - 300 блюд по 128/150/10 г
|
Наименование
|
Брутто
|
Нетто
|
Брутто на 300 блюд, кг
|
Нетто на 300 блюд, кг
|
|
Курица*
|
231
|
83
|
69,3
|
24,9
|
|
Выход
|
-
|
288
|
|
|
* Мякоть без кожи
Таблица 16 - Блюдо «Лангет» - 300 блюд по 100/250 г.
|
Наименование продукта
|
Расход сырья по
рецептурному справочнику, г
|
Общий расход сырья, кг
|
|
Брутто
|
Нетто
|
Брутто
|
Нетто
|
|
Говядина (вырезка)
|
216
|
159
|
64,8
|
47,7
|
|
Выход
|
-
|
250
|
|
|
Таблица 17 - Блюдо «Печень по строгановски» -300 блюд по 365 г.
|
Наименование продукта
|
Расход сырья по
рецептурному справочнику, г
|
Общий расход сырья, кг
|
|
Брутто
|
Нетто
|
Брутто
|
Нетто
|
|
Печень говяжья
|
177
|
147
|
53,1
|
44,1
|
|
Выход
|
-
|
365
|
|
|
Таблица 18 - Блюдо «Рагу из свинины» -345 блюд по 324 г
|
Наименование продукта
|
Расход сырья по
рецептурному справочнику, г
|
Общий расход сырья, кг
|
|
Брутто
|
Нетто
|
Брутто
|
Нетто
|
|
Свинина (грудинка)
|
110
|
104
|
37,95
|
35,88
|
|
Выход
|
-
|
324
|
|
|
2.6 Сводная
ведомость сырья (кг) по меню (брутто)
Таблица 19 - Сводная ведомость
|
Наименование продуктов,
входящих в блюда
|
Наименование блюда и
количество сырья брутто в кг
|
Общее кол-во, кг
|
|
Холодные блюда и закуски
|
Первые блюда
|
Вторые горячие блюда
|
|
|
Салат мясной
|
Ассорти рыбное
|
Ассорти мясное
|
Солянка сборная мясная
|
Уха рыбацкая
|
Суп-харчо
|
Рыба, запеченная в соусе с грибами
|
Котлеты натуральные из филе
птицы, фаршированные печенью
|
Котлеты по киевски
|
Лангет
|
Печень по строгановски
|
Рагу из свинины
|
|
|
1
|
2
|
3
|
4
|
5
|
6
|
7
|
8
|
9
|
10
|
11
|
12
|
13
|
14
|
|
Рыбные продукты, всего
|
|
|
|
|
|
|
|
|
|
|
|
|
198,26
|
|
Судак
|
|
|
|
|
47,03
|
|
31,78
|
|
|
|
|
|
78,81
|
|
Севрюга
|
|
30,08
|
|
|
|
|
|
|
|
|
|
|
30,08
|
|
Налим
|
|
|
|
|
58,58
|
|
|
|
|
|
|
|
58,58
|
|
Рыба-мелочь
|
|
|
|
|
27,5
|
|
|
|
|
|
|
|
27,50
|
|
Пищевые рыбные отходы
|
|
3,29
|
|
|
|
|
|
|
|
|
|
|
3,29
|
|
Мясные продукты
|
|
|
|
|
|
|
|
|
|
|
|
|
576,27
|
|
Свинина (грудинка)
|
|
|
|
|
|
39,6
|
|
|
|
|
|
37,95
|
77,55
|
|
Говядина или телятина
|
30,08
|
|
25,38
|
51,25
|
|
|
|
|
|
64,8
|
|
|
171,51
|
|
Язык говяжий
|
|
|
19,74
|
|
|
|
|
|
|
|
|
|
19,74
|
|
Курица
|
|
|
25,38
|
|
|
|
|
114,3
|
69,3
|
|
|
|
208,98
|
|
Печень говяжья
|
|
|
|
|
|
|
|
13,49
|
|
|
53,1
|
|
66,59
|
|
Почки
|
|
|
|
30,25
|
|
|
|
|
|
|
|
|
30,25
|
|
Кости пищевые
|
|
|
|
|
|
|
|
1,65
|
|
|
|
|
1,65
|
Таблица 20 - Общее количество мясного и рыбного сырья, поступившего в цех
|
Наименование продукта,
вклю-ченного в блюда
|
Общее количество сырья до
тепловой обработки, кг
|
Процент потерь при холодной
обработке [9]
|
Общее количество сырья
поступившего в цех, кг
|
|
1
|
|
|
|
|
Рыбные продукты, всего
|
198,26
|
|
256,45
|
|
Судак
|
78,81
|
33
|
104,82
|
|
Севрюга
|
30,08
|
33
|
40,0
|
|
Налим
|
58,58
|
38
|
80,84
|
|
Рыба-мелочь
|
27,50
|
-
|
27,50
|
|
Пищевые рыбные отходы
|
3,29
|
|
3,29
|
|
Мясные продукты
|
576,27
|
|
757,0
|
|
Свинина (грудинка)
|
77,55
|
16,6
|
90,42
|
|
Говядина или телятина
|
171,51
|
26,4
|
216,7
|
|
Язык говяжий
|
19,74
|
-
|
19,74
|
|
Курица
|
208,98
|
53
|
319,73
|
|
Печень говяжья
|
66,59
|
17
|
77,91
|
|
Почки
|
30,25
|
2
|
30,85
|
|
Кости пищевые
|
1,65
|
-
|
1,65
|
2.7 Расчет
работников цеха
Расчет потребности работников цеха [6] производится на основании
производственной программы цеха и норм времени для обработки сырья каждого
вида, изготавливаемых в цехе и включенных в план-меню.
Численность производственных работников заготовочного цеха закусочной
может быть определена по укрупненным показателям
,
где
- численность работников на единицу перерабатываемой
продукции.
=
суточный расход сырья, полуфабрикатов, (т, тыс. шт);
Численность
производственных работников заготовочного мясо-рыбного цеха составит:
при
обработке рыбного сырья - 256,45 кг
0,4 чел
при
обработке мясных продуктов и мяса птицы -757,0 кг
чел
Численность
мойщиков кухонной посуды и цехового инвентаря рассчитывается от общего объема
мясного и рыбного сырья.
Общий
объем сырья
,757
+ 0,25645 = 1,013 т
чел
Всего:
0,43 + 0,98 + 1,32 = 2,73 ел
С
учетом выходных и праздничных дней, отпусков, дней болезни:
общ
= Nрасч* Квых;
Где
Nобщ - общее число работников в цехе;
Nрасч -
расчетное количество работников;
Квых
- коэффициент, учитывающий выходные (52 дня) и праздничные дни (13 дней),
невыходы на работу по разным причинам - 28 дней, К= 365/272 = 1,342.
Nобщ = 2,73 ·
1,342 = 3,66 человека.
Таким
образом, в заготовочном мясо-рыбном цехе обеспечить выполнение программы смогут
4 человека.
Таблица
21 - График выхода на работу в __________ месяце.
|
№ пп
|
Ф.И.О.
|
Дни месяца
|
|
|
1
|
2
|
3
|
4
|
5
|
6
|
7
|
8
|
9
|
10
|
11
|
12
|
13
|
14
|
|
1
|
Ткаченко И.М.
|
х
|
х
|
|
х
|
х
|
|
х
|
х
|
|
х
|
х
|
|
х
|
х
|
|
2
|
Юрова Б.Н.
|
|
х
|
х
|
|
х
|
х
|
|
х
|
х
|
|
х
|
х
|
|
х
|
|
3
|
Карпова Р.Н.
|
х
|
|
х
|
х
|
|
х
|
х
|
|
х
|
х
|
|
х
|
х
|
|
|
4
|
Вебер О.П.
|
х
|
х
|
|
х
|
х
|
|
х
|
х
|
|
х
|
х
|
|
х
|
х
|
|
5
|
Немова В.И.
|
|
х
|
х
|
|
х
|
х
|
|
х
|
х
|
|
х
|
х
|
|
х
|
Ткаченко И.М.
|
|
х
|
х
|
|
х
|
х
|
|
х
|
х
|
|
х
|
|
2
|
Юрова Б.Н.
|
х
|
|
х
|
х
|
|
х
|
х
|
|
х
|
х
|
|
|
3
|
Карпова Р.Н.
|
х
|
х
|
|
х
|
х
|
|
х
|
х
|
|
х
|
х
|
|
4
|
Вебер О.П.
|
|
х
|
х
|
|
х
|
х
|
|
х
|
х
|
|
х
|
|
5
|
Немова В.И.
|
х
|
|
х
|
х
|
|
х
|
х
|
|
х
|
х
|
|
|
|
|
|
|
|
|
|
|
|
|
|
|
|
|
|
|
|
|
|
|
|
|
|
|
|
3.
Потребность в оборудовании для заготовочного цеха
.1 Расчет
потребности в мясорубках
Требуемую производительность мясорубки [6] рассчитаем, исходя из расчета
мясного сырья на данное количество посетителей в соответствии со сводной
ведомостью:
Всего
мясного сырья.
кг
-
условное время работы мясорубки, ч.
= Т·ηу;
Т
- продолжительность работы смены, Т = 12 ч.
Ηу - условный коэффициент использования машины, ηу = 0,5.
Тогда,
= 12 · 0,5 = 6 ч.
Выбираем
[4] мясорубку настольного типа МИМ-82.
Производительность
мясорубки МИМ-82 Q = 250 кг/ч.
Фактическая
продолжительность работы мясорубки
= 4,15 ч
Коэффициент
использования мясорубки
= 0,35
Так
как фактический коэффициент использования машины (0,35) меньше условного (0,5),
следовательно, достаточно одной мясорубки.
Таблица
22 - Расчет числа мясорубок
|
Операция
|
Масса, кг
|
Мясо-рубка
|
Произво- дитель-ность, кг/ч
|
Продолжительность работы, ч
|
К-т исполь-зования
|
Число машин
|
|
|
|
|
обору-дования
|
цеха
|
|
|
|
Измель-чение
|
1037.3
|
МИМ-82
|
250
|
4,15
|
12
|
0,35
|
1
|
Таблица 23 - Техническая характеристика мясорубки МИМ-82
|
Наименование
|
Значения показателя
|
|
Производительность, кг/ч
|
250
|
|
Частота вращения шнека,
об/мин
|
250
|
|
Мощность электродвигателя,
кВт
|
1,1
|
|
Напряжение, В
|
220/380
|
|
Габаритные размеры, мм
|
510х340х480
|
|
Масса, кг
|
56
|
3.2 Расчет
универсального привода
Для рыхления мяса, смешивания фарша и т.п., необходимо в мясо-рыбном цехе
установить универсальный привод со сменными механизмами.
Выбираем универсальный привод ПУ-0,6 со сменными механизмами.
Производительность мясорыхлителя МРМ-15 к приводу ПУ-0,6 Q = 15 порций в мин или 90 кг/ч. [4]
Время работы мясорыхлителя:
-
условное время работы мясорыхлителя, ч.
= Т·ηу;
Т
- продолжительность работы смены, Т = 12 ч.
ηу - условный коэффициент использования машины, ηу = 0,5.
Тогда,
= 12 · 0,5 = 6 ч.
Фактическая
продолжительность работы фаршемешалки из расчета мяса для приготовления лангета
- 64,8 кг.
= 0,72 ч
Коэффициент
использования мясорыхлителя
= 0,06
Так
как фактический коэффициент использования машины (0,06) меньше, чем условного
(0,5), достаточно одного мясорыхлителя.
меню блюдо мясной сырье
Таблица
24 - Техническая характеристика мясорыхлителя МРМ-15
|
НаименованиеЗначения
показателя
|
|
|
Производительность, кг/ч
|
90
|
|
Количество ножевых валов,
шт
|
2
|
|
Мощность электродвигателя,
кВт
|
0,27
|
|
Напряжение, В
|
220
|
|
Габаритные размеры, мм
|
560х260х390
|
|
Масса, кг
|
35
|
3.3 Расчет
котлетоформующей машины
Требуемую производительность котлетоформующей машины [4] рассчитаем,
исходя из расчета мясного сырья по сырьевой ведомости.
-
условное время работы мясорубки, ч.
= Т·ηу;
Т
- продолжительность работы смены, Т = 12 ч.
Ηу - условный коэффициент использования машины, ηу = 0,5.
Тогда,
= 12 · 0,5 = 6 ч.
Выбираем
машину МФК-2240.
Производительность
машины Q = 2240 шт/ч или 224 кг/ч.
Фактическая
продолжительность работы котлетоформующей машины
= 2,5 ч
Коэффициент
использования машины
= 0,2
Так
как фактический коэффициент использования машины очень низкий, оставляем одну
котлетоформующую машину.
Таблица
25 - Техническая характеристика МФК-2240
|
Наименование
|
Значения показателя
|
|
Производительность, шт/ч
|
2240
|
|
Масса котлет, г
|
45-95
|
|
Вместимость бункера для
сухарей, кг
|
0,7
|
|
Мощность электродвигателя,
кВт
|
0,4
|
|
Напряжение, В
|
220/380
|
|
Габаритные размеры, мм
|
610х392х630
|
|
Масса, кг
|
73
|
3.4 Расчет
холодильного оборудования
Полезный объем холодильного шкафа для мясного сырья и полуфабрикатов
[4,6] :
;
G - масса
мясного сырья, поступившего в цех, составляет G = 757 кг.
-
объемная плотность продукта, кг/м3, 850 кг/м3
-
коэффициент, учитывающий массу тары, примем
= 0,8.
1,11 м3
Для
рыбы
G - масса
рыбного сырья по физиологической норме для расчетного количества посетителей,
кг, G = 256,45 кг.
-
объемная плотность продукта, кг/м3, 450 кг/м3
-
коэффициент, учитывающий массу тары, примем
= 0,8.
0,72 м3
В
цехе для мясных продуктов достаточно установить 1 холодильный шкаф ШХ-1,2 с
полезным объемом 1,2 м3 и два шкафа ШХ-0,6 с полезным объемом 0,60 м3, для
рыбного сырья и полуфабрикатов устанавливаем холодильный шкаф ШХ-0,6 с полезным
объемом 0,60 м3
Таблица
26 - Техническая характеристика холодильных шкафов
|
Показатели
|
Типы шкафов
|
|
ШХ-0,6
|
ШХ-1,2
|
|
Полезный объем, м3
|
0,6
|
1,2
|
|
Максимальная загрузка
продуктами, кг
|
125
|
250
|
|
Стандартная
хладопроизводительность холодильной машины, ккал/ч
|
450
|
700
|
|
Размеры, мм
|
|
|
|
Длина
|
1200
|
2000
|
|
Ширина
|
800
|
800
|
|
Высота
|
1900
|
1900
|
|
Масса, кг
|
250
|
400
|
4 Организация
работы заготовочного цеха [8,10]
Технология приготовления блюд включает две основные стадии - первичную
(холодную) обработку сырья, задачей которой является получение высокого качества
полуфабрикатов, и последующую тепловую обработку, которой подвергается
большинство полуфабрикатов для доведения пищевых продуктов до готовности.
Мясо-рыбный цех. На таких предприятиях как ресторан вместимостью залов до
170 мест, работающих на сырье, проектируется мясо-рыбный цех. Цех располагается
в здании в зоне доступного сообщения со складом и горячим цехом. Рабочие места
в цехе объединяются в линии обработки мяса, птицы и субпродуктов и рыбы и
оснащены оборудованием, обеспечивающим полную обработку сырья - механическим и
вспомогательным оборудованием, холодильными шкафами. Обработка мяса, птицы и
рыбы имеет четкое разграничение технологического оборудования, инвентаря и
инструмента (для мяса и рыбы). Оборудование и инвентарь маркированы в соответствии
с принадлежностью к той или иной линии обрабатываемого сырья. Первичная
обработка сырья проводится на специальных производственных столах с
использованием соответствующих разделочных досок и ножей.
В заготовочном мясо-рыбном цехе производят механическую обработку мяса,
рыбы, птицы и выработку полуфабрикатов для снабжения ими горячего цеха
закусочной. В ресторане организовано собственное производство полуфабрикатов. С
этой целью на участке обработки мяса установлены ванны, производственные столы,
стул разрубочный, универсальный привод со сменными механизмами (мясорубкой,
косторезкой, рыхлителем, фаршемешалкой, размолочным механизмом). Используют
также производственные столы для нарезки порционных и мелкокусочных
полуфабрикатов.
Рабочие места в мясном цехе организуют для двух технологических линий:
обработки мяса крупного рогатого скота, поступающего в цех четвертинами
или полутушами; свинины, поступающей полутушами или тушами; туш баранины и
телятины;
обработки птицы, дичи и субпродуктов.
Мясо доставляют в цех на тележках. Возможно кратковременное хранение туш
в холодильной камере. Оттаивание и промывание мяса производят, опустив их в
ванну с помощью щеток-душей. Предварительно с поверхности туши удаляют клеймо и
делают зачистку.
Мясо нельзя оттаивать мелкими кусками, в воде или около плиты, так как
при этом ухудшается его качество за счет значительных потерь мясного сока,
быстрого размораживания на поверхности мяса микрофлоры.
Разруб туши на части производят на разрубочном стуле мясницким топором
или ленточной циркулярной пилой. Разрубочный стул высотой 800 мм может быть из
твердых пород дерева круглым диаметром 450-500 мм или квадратным из деревянных
брусков на клею, обтянутом обручами, с размерами в верхней части от 450х450 до
500х500 мм. Использование электропил значительно облегчает процесс разруба туш.
Обвалку мяса и разборку его на части производят с помощью обвалочных ножей.
Нарезку, отбивание и панировку порционных полуфабрикатов выполняют на
производственных столах с разделочными досками (лучше из высокопрочного
полиэтилена), противнями и лотками. Перед столом на стене вывешивают
технологические карты, нормы отходов мяса и выхода полуфабрикатов.
Подготовленные полуфабрикаты транспортируют в горячий цех или холодильную
камеру, используя передвижные стеллажи с противнями или лотками.
Для приготовления полуфабрикатов из рубленого мяса устанавливают лотки с
котлетной массой и панировкой, емкости для замачивания хлеба, мясорубку и
фаршемешалку к универсальному приводу.
Фарш готовят в количествах, которые сразу же могут быть подвергнуты
тепловой обработке. Остаток фарша допускается хранить в холодильной камере или
в холодильном шкафу не более 6 ч. при температуре 2 … 6°С.
Субпродукты (печень, почки, мозги, сердце и др.) в большей степени
обсеменены микроорганизмами, чем мясо, и менее стойки при хранении и
транспортировки. Замороженные субпродукты размораживают в мясном цехе на
стеллажах при комнатной температуре или в воде. Перед тепловой обработкой
мозги, вымя, почки, рубцы вымачивают в холодной воде. Размороженные субпродукты
тщательно моют в холодной воде и зачищают от остатков крови, слизи, шерсти.
После промывания и зачистки, подготовленные субпродукты немедленно направляют
на тепловую обработку.
Линия обработки птицы. Птица поступает охлажденной или замороженной в
потрошеном, полу- и непотрошеном виде (дичь), кроме водоплавающей птицы,
которую в непотрошеном виде принимать запрещено. Процесс обработки птицы
состоит из оттаивания, опаливания, отрубания шейки, ножек, потрошения,
промывания и заправки (в кармашек или шпагатом).
Мороженую птицу размораживают при комнатной температуре на столах,
уложенную в один ряд без соприкосновения. При наличии остатков пуха и волосков
тушку опаливают. Ощипывание, опаливание и потрошение птицы производят в
отдельном помещении. У непотрошеной птицы удаляют внутренности.
Линия обработки рыбы. В рыбных цехах выполняют следующие операции:
оттаивание (дефростацию) мороженой рыбы или вымачивание соленой, очистку от
чешуи, потрошение, промывание, изготовление натуральных или фаршевых
полуфабрикатов.
К рыбным продуктам относятся рыба живая, рыба охлажденная, мороженые
рыбные продукты, филе мороженое, соленые рыбные продукты и рыбные деликатесы.
Пищевая ценность рыбы определяется ее химическим составом и соотношением
съедобных и несъедобных частей. Рыба содержит белки, жиры, углеводы,
минеральные вещества, воду, витамины и ферменты.
Охлажденную рыбу хранят в таре со льдом. При приемке охлажденной рыбы
необходимо проверить, сохранился ли лед между слоями рыбы и не застоялась ли
талая вода. Качество охлажденной рыбы проверяют и смотрят, взяв тушку за
середину - не сгибается ли от собственной тяжести, что говорит об ослаблении ее
консистенции; осматривают глаза и жабры; проверяют чистоту и прозрачность
слизи, изменение в мясе при надавливании и запах.
Рыбу размораживают на воздухе или в холодной воде с температурой не выше
+12 0С из расчета 2 л на 1 кг рыбы. Для сокращения потерь минеральных веществ в
воду рекомендуется добавлять соль из расчета 7-10 г на 1 л. Не рекомендуется
размораживать в воде рыбное филе, рыбу осетровых пород. Оттаивают замороженное
филе на воздухе при комнатной температуре, так как при оттаивании оно теряет
много питательных веществ.
Для обработки рыбы используют такой инвентарь как разделочная доска,
ножницы, нож, рыбочистка. При больших объемах обработки рыбы используются
механические рыбочистки.
По окончании работы весь инвентарь тщательно обрабатывают, промывают и
просушивают. Хранят в сухом месте. Оборудование отключают, обесточивают линии и
также проводят очистку, мойку поверхностей, протирку насухо.
Таблица 27 - Потребность в оборудовании и средствах механизации для
мясо-рыбного (заготовочного) цеха.
|
№ позиций
|
Наименование
|
Кол-во
|
|
Мясной цех
|
|
|
1
|
Стол для опаливания птицы
|
1
|
|
2
|
Производственный стол
|
7
|
|
3
|
Ванна для мойки
|
3
|
|
4
|
Холодильный шкаф ШХ-1,2
|
1
|
|
5
|
Машина для формовки и
панировки котлет МФК-2240
|
1
|
|
6
|
Мясорубка МИМ-82
|
1
|
|
7
|
Тележка-стеллаж
|
2
|
|
8
|
Мясорыхлитель
|
1
|
|
9
|
Универсальный привод УП-0,6
|
1
|
|
10
|
Стул для рубки мяса
|
1
|
|
11
|
Холодильная камера КХН-6М
|
1
|
|
Рыбный цех
|
|
|
12
|
Холодильный шкаф ШХ-0,6
|
2
|
|
13
|
Тележка-стеллаж
|
2
|
|
14
|
Ванна для мойки
|
3
|
|
15
|
Производственный стол для
очистки рыбы
|
2
|
|
16
|
Мясорубка
|
1
|
|
17
|
Производственный стол
|
1
|
5. Расчет
площади цеха
Таблица 28 - Расчет площади цеха [4, 5, 7]
|
№ пп
|
Наименование
|
Кол-во
|
Габаритные размеры, мм
|
Площадь, .м2
|
|
|
|
|
1 ед.
|
общ
|
|
1
|
Стол для опаливания птицы
|
1
|
840х840х860
|
0,7056
|
0,7056
|
|
2
|
Производственный стол
|
7
|
1500х840х860
|
1,26
|
8,82
|
|
3
|
Ванна для мойки
|
3
|
800х800х700
|
0,64
|
1,28
|
|
4
|
Холодильный шкаф ШХ-1,2
|
2
|
1200х800х1900
|
0,96
|
1,92
|
|
5
|
Машина для формовки и
котлет МФК-2240
|
1
|
610х392х630
|
0,2379
|
0,2379
|
|
6
|
Мясорубка МИМ-82
|
1
|
510х340х480
|
0,1734
|
0,1734
|
|
7
|
Тележка-стеллаж
|
2
|
700х840х860
|
0,588
|
1,176
|
|
8
|
Мясорыхлитель
|
1
|
560х260х390
|
0,1456
|
0,1456
|
|
9
|
Универсальный привод УП-0,6
|
1
|
530х280х310
|
0,1484
|
0,1484
|
|
10
|
Холодильная камера КХН-6М
|
1
|
2250х1930х2060
|
5,0625
|
5,0625
|
|
11
|
Стул для рубки мяса
|
1
|
450х450х700
|
0,2025
|
0,2025
|
|
Рыбный цех
|
|
|
|
|
|
12
|
Холодильный шкаф ШХ-0,6
|
2
|
1200х800х1900
|
1,92
|
|
13
|
Тележка-стеллаж
|
2
|
700х840х860
|
0,588
|
1,176
|
|
14
|
Ванна для мойки
|
3
|
800х800х700
|
0,64
|
1,92
|
|
15
|
Производственный стол для
очистки рыбы
|
2
|
1500х840х700
|
1,26
|
2,52
|
|
16
|
Мясорубка
|
1
|
560х260х390
|
0,1456
|
0,1456
|
|
17
|
Производственный стол
|
2
|
1500х840х860
|
1,26
|
2,52
|
|
Общая площадь
|
|
|
|
30,07
|
Принимая по рекомендации [6] коэффициент использования площади цеха К -
0,35, определим площадь цеха:
86 м2
5.1
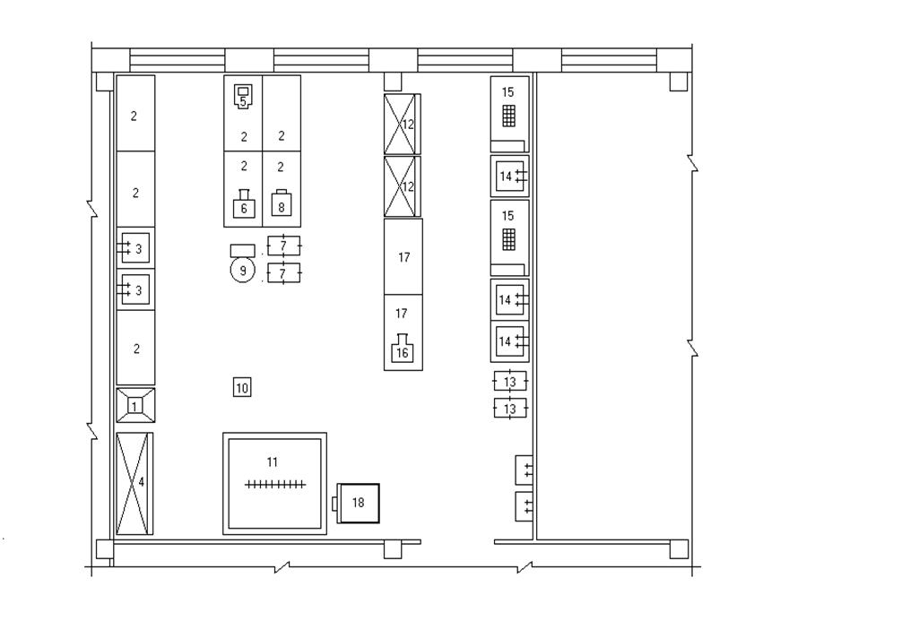
Объемно-планировочное решение цеха
Площадь помещения цеха рассчитывают по площади, занимаемой оборудованием
[6], и по нормативным данным.
В результате расстановки оборудования определяют графическим путем
компоновочную площадь.
Правильная расстановка оборудования предъявляет основное требование к
рабочему месту - такое его расположение, которое сводило бы к минимуму переходы
повара от одного вида оборудования к другому и, не нарушая принципа
прямоточности, то есть исключать непроизводительные перемещения повара в
противоположном направлении.
Повара в процессе работы должны передвигаться только вдоль линии
оборудования с поворотом не более чем на 900.
План мясорыбного цеха представлен в приложении А.
6. Санитарные
требования к транспортированию, хранению и кулинарной обработке продуктов
Поступающее в организацию сырье перевозится специальным, чистым
транспортом на которое, после тщательной проверки, выдается санитарный паспорт
[8, 10]. Для соблюдения чистоты кузов обит легко поддающимся санитарной
обработке материалом и оборудован стеллажами, а лица, выполняющие погрузочные
работы, имеют личную медицинскую книжку. Данный транспорт для других целей не
используется. При перевозке продовольственное сырье и готовая продукция не
контактируются друг с другом.
Скоропортящиеся продукты перевозят специальным охлаждаемым
(изотермическим) транспортом.
На все поступающее сырье и пищевые продукты имеется сопроводительная
документация, удостоверяющая их качество и безопасность, продукты приобретаются
свежие, качественные. Без клейма и ветеринарного свидетельства мясо и
субпродукты, рыбу, раков и сельскохозяйственную птицу предприятия общественного
питания не принимают.
Запрещено совместное хранение сырых продуктов или полуфабрикатов и
готовых изделий; продуктов, пригодных для питания людей без каких-либо
ограничений или условно пригодных и безусловно непригодных для питания; остро
пахнущих продуктов (сельдь, сыры, специи и др.) и легко воспринимающими запах
(сахар, мука, крупа, чай, масло сливочное и топленое, яйца и др.); пищевых
продуктов и хозяйственных материалов и непищевых товаров и т.д.
Для хранения скоропортящихся продуктов в организации установлены холодильные
установки. При отсутствии источника холода работа предприятия общественного
питания запрещается. Холодильные камеры следует оборудовать легко моющимися
стеллажами, при необходимости подвесными балками с крючьями.
При проведении санитарно-гигиенического контроля за хранением пищевых
продуктов на предприятиях общественного питания необходимо обращать внимание на
сроки реализации особо скоропортящихся продуктов и температурные условия их
содержания, согласно санитарным правилам «Условия, сроки хранения особо
скоропортящихся продуктов».
Транспортировка мяса и рыбы почти не отличается от транспортировки других
пищевых продуктов, полуфабрикатов и сырья. Не допускается принимать мясо и рыбу
без ветеринарного свидетельства, с истекшими сроками хранения и признаками
недоброкачественности.
Охлажденные туши, полутуши, четвертины подвешивают без соприкосновения их
друг с другом, мороженое мясо хранят на стеллажах; субпродукты, птицу,
мороженую рыбу (филе рыбное) - в таре поставщика на стеллажах при обеспечении вентиляции.
Для хранения мороженой птицы используют стеллажи, охлажденной - ящики.
Без упаковки рыбу взвешивают в таре или на чистой клеенке, бумаге.
Продукты, имеющие специфический запах, например, сельдь, хранят отдельно от
продуктов, воспринимающих запахи (масло сливочное, соль, сыр, сахар и т.п.).
Рыбу хранят на стеллажах или подтоварниках в таре поставщика. Для хранения
охлажденной рыбы частиковых пород используют корзины или ящики, куда добавляют
дробленый лед. Осетровая рыба хранится подвешенной на луженых крючьях.
Маркировочные ярлыки сохраняют до полного использования рыбы и рыбных
изделий.
Срок хранения охлажденного мяса - до 3 суток, мороженого - 4 сут.
Полуфабрикаты из мяса хранятся 1-2 сут. Охлажденные субпродукты - 1 сут,
мороженые - 4 сут. Птицу и кроликов в охлажденном состоянии можно хранить до 2
сут, в мороженом - 3 сут.
Рыба хранится: парная - 2 сут, мороженая - 4 сут.
За соблюдением правил проверки качества принимаемых на предприятие
продуктов, правильное их хранение и соблюдение сроков реализации несет
ответственность администрации предприятия (заведующий складом, базой или
кладовщик). При компьютерном учете поступающих продуктов необходимо вводить в
базу данных сведения о качестве продуктов, дате их изготовления и сроках
реализации.
Список
использованной литературы
1. Богушева
Технология приготовления пищи: Учебно-методическое пособие. - М.: ИКЦ «МарТ»;
Ростов н/Д: Издательский центр «МарТ», 2005. - 320 с.
2. Ботов
М.И. Тепловое и механическое оборудование предприятий торговли и общественного
питания: учебник для нач. проф. Образования /М.И. Ботов, В.Д. Елхина, О.М.
Голованов.- 2-е изд., испр.- М..: Издательский центр «Академия», 2006.- 464 с.
. Гайворонский
К.Я., Щеглов Н.Г. Технологическое оборудование предприятий общественного
питания и торговли: учебник - М.: ИД «ФОРУМ»: ИНФРА-М, 2008.- 480 с.
. Золин
В.П. Технологическое оборудование предприятий общественного питания: учеб. для
нач. проф./В.П. Золин.- 6-е изд. Стер.- М.: Издательский центр «Академия»,
2007.-248 с.
. Кирпичников
В.П., Леенсок Г.Х. Справочник механика: (Общественное питание).- М.:-Экономика,
1990.- 382 с.
6. Никуленкова
Т.Т., Ястина Г.М. Проектирование предприятий общественного питания. - М.:
КолосС, 2006. - 247 с.:- (Учебники и учеб. пособия для студентов высш. учеб.заведений).
. Оборудование
предприятий общественного питания. В 3-х т. Т.1: Механическое оборудование:
Учеб. для студентов вузов, обуч. По спец. 1011 «Технол. и орг. обществ.
питания» /В.Д. Елхина, А.А. Журин, Л.П. Проничкина, М.К. Богачев.- 2-е изд.,
перераб.- М.: Экономика, 1987.-447 с.
8. Санитарно-эпидемиологические
требования к организациям общественного питания, изготовлению и
оборотоспособности в них продовольственного сырья и пищевых продуктов: СанПин
2.3.6.959-00. - М.: «Интерсэн», 2000.-64 с.
9. Сборник
рецептур блюд и кулинарных изделий: Для предприятий обществ.
питания/Авт.-сост.: А.И. Здобнов, В.А. Цыганенко, М.И. Пересичный.- М.: «Гамма
Пресс 2000», К.: «А.С.К.», 2002. - 656 с.:ил.
10. Сборник
рецептур и кулинарных изделий для предприятий общественного питания.
/Составитель Л.Е. Голунова. СПб.: ПРОФИ-ИНФОРМ, 2004.- С.688.
11. Тимофеев
В.М., Воронин В.В. Справочник: Торговый инвентарь и посуда.- М., 1988
12. Усов
В.В. Организация производства и обслуживания на предприятиях общественного
питания: Учеб. для нач. проф. образования: Учеб. пособие для сред. Проф.
образования/ В.В. усов.- 2-е изд. Стер.- М.: Издательский центр «Академия»,
2004.- 416 с.
. Харченко
Н.Э. Технология приготовления пищи: Учеб. пособие для нач. проф. Образования /
Н.Э. Харченко, Л.Г. Чеснокова.- М.: Издательский центр «Академия», 2004.- С. 15
- 18.
Приложение А
(обязательное)