Расчет и конструирование фундаментов промышленного здания

  • Вид работы:
    Курсовая работа (т)
  • Предмет:
    Строительство
  • Язык:
    Русский
    ,
    Формат файла:
    MS Word
    1,46 Мб
  • Опубликовано:
    2012-12-05
Вы можете узнать стоимость помощи в написании студенческой работы.
Помощь в написании работы, которую точно примут!

Расчет и конструирование фундаментов промышленного здания

Содержание

 

1. Исходные данные

2. Сводная таблица физико-механических свойств грунтов

3. Анализ инженерно геологических условий строительной площадки

4. Определение расчетных нагрузок и расчетных характеристик грунтов

5. Проектирование фундаментов на естественном основании

5.1 Определение предварительных размеров подошвы фундамента

5.2 Определение расчетного сопротивления грунта основания по прочностным характеристикам грунта основания.

5.3 Графический метод определения размеров подошвы фундамента

6. Проверка давлений под подошвой фундамента

7. Расчёт осадки фундамента

8. Проектирование свайного фундамента. Расчет свайного фундамента по I группе предельных состояний

8.1 Определение расчетного сопротивления сваи

8.2 Определение необходимого кол-ва свай

8.3 Определение фактического давления на каждую сваю

8.4 Проверка давления в основании свайного фундамента как условно массивного. Расчет свайного фундамента по II группе предельных состояний

8.5 Расчет свайного фундамента по деформациям

9. Технико-экономические показатели

10. Указания по производству работ и технике безопасности

11. Литература

1. Исходные данные

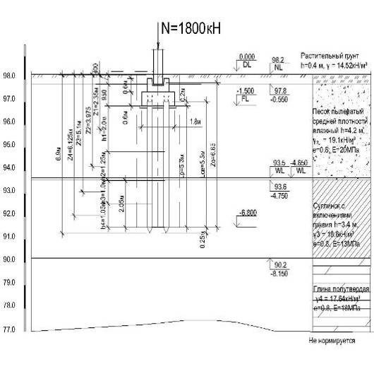
Согласно шифру, к разработке принят 1-ый вариант, с геологическими условиями по разрезу №5 (см. т.1.1).

. Номер схемы здания - 1.

. Номер оси стены или колонны - "2-А", "2-Б"

. Нормативная нагрузка от колонны N - 1550 кН, 1800 кН

. Нормативный момент для колонны - 60 кН*м.

. Коэффициент, равный сумме абсолютных значений среднемесячных отрицательных температур за зиму M=34.

. Среднесуточная температура воздуха в помещении примыкающем к фундаментам Tср=15 Cº.

. Сечение колонн - 400х400мм, 500х500мм

Таблица 1.1

Геологический разрез №5.

Номер слоя

Глубина подошвы слоя от поверхности, м

Мощность слоя, м

Абсолютная отметка подошвы слоя, м

Абсолютная отметка WL, м, горизонт подземных вод

Наименование грунта

Удельный вес грунта γ, кН/м2

Удельный вес частиц грунта γs, кН/м2

Влажность w

Модуль деформации E, МПа

Граница текучести wL

Граница раскатывания wp

Нормативный угол внутреннего трения φ, град

Нормативное удельное сцепление с, кПа

 98.2 Разрез №5

1

0.4

0.4

97.8

 93.5

Растительный грунт

14.9








2

4.6

4.2

93.6


Песок пылеватый

19.6

26.8

0.18

20

-

-

32

4

3

8.0

3.4

90.2


Суглинок с включениями гравия

19.1

26.6

0.33

13

0.41

0.27

20

20

4

Не установлена


Глина ленточная

18.1

27.1

0.25

18

0.46

0.27

18

46



2. Сводная таблица физико-механических свойств грунтов


Таблица 2.1

Показатели

Обозначения

Номер геологических слоев

Формула для расчета



2

3

4


Удельный вес твердых частиц грунта

gs, кН/м3

26.8

26.6

27.1

Из издания

Удельный вес грунта (нормативное значение)

g, кН/м3

19.6

19.1

18.1

То же

Влажность грунта

W, доли единицы

0.18

0.33

0.25

-”-

Удельный вес скелета грунта

gd, кН/м3

16.6

14.36

14.48

Коэффициент пористости

е

0.6

0.8

0.8

Удельный вес грунта во взвешенном состоянии (gw=10 кН/м3)

gsb, кН/м3

10.5

9.2

9.5

Степень влажности

Sr, доли единицы

0.8

1.09

0.84

Граница раскатывания

Wр, доли единицы

-

0.27

0.27

Из издания

Граница текучести

WL, доли единицы

-

0.41

0.46

То же

Число пластичности

Iр, доли единицы

-

0.14

0.19

Ip=WL-Wp

Показатель текучести

IL, доли единицы

-

0.42

0.1

Нормативные значения:






Модуль деформации

Е, МПа

20

13

18

Из задания

Угол внутреннего трения

j, град/С, МПа

32

20

18

То же

Сцепление

С, кПа R0, кПа

4 150

20 258

46 290

"" По таблице 4.2 м. у.

Наименование грунтов, песчаных по е, Sr, глинистых по Iр, IL (приложение, т.5.1, т.5.2, т 5.3, т.5.4 м. у.):

Слой 2 - песок пылеватый, средней плотности, влажный Слой 3 - суглинок тугопластичный Слой 4 - глина полутвердая

фундамент свайный усадка грунт

3. Анализ инженерно геологических условий строительной площадки


На основании данных о грунтах находим расчетные сопротивления слоев.

Согласно таблице 4.2 методического пособия, по интерполяции, определим расчетные сопротивления слоев грунта основания.

Для слоя 1 - не нормируется,

для слоя 2 - Ro=150 кПа,

для слоя 3 - Ro=258 кПа.

для слоя 4 - Ro=290 кПа.

На геологическом разрезе строим эпюру расчетных давлений.

Рис 3.1

4. Определение расчетных нагрузок и расчетных характеристик грунтов


В курсовой работе при расчёте свайных фундаментов по первой

группе предельных состояний применять коэффициент перегрузки для нагрузок n=1.2, в остальных случаях n=1.

Согласно СНиП* все расчеты оснований должны выполняться с использованием расчетных значений характеристик грунтов X, определяемых но формуле

 (4.1)

где γg - коэффициент надежности по грунту.

Для большинства характеристик допускается принимать γg=1, за исключением параметров с и φ, а так же удельного веса грунта у для которых коэффициент надежности по грунту определяется по формуле

 (4.2)

Показатель надежности ρ берется с таким знаком, чтобы при расчете основания и фундамента была обеспечена большая надежность (расчет "в запас") При вычислении значений с и φ всегда, а расчетных значений γ в большинстве случаев (в том числе и в расчетах данной курсовой работы), показатель надежности принимается со знаком "минус". Значение его определяются по формулам

Для γ:  (4.3)

Для с и φ: ρ = tα-V, (4.4)

где V - коэффициент вариации (относительная изменчивость характеристики); n - число частных определений (количество опытных данных); tα - коэффициент, определяемый в зависимости от величины доверительной вероятности α и числа степеней свободы; которые (n - 1) для γ и (n - 2) для с, φ.

Для условий, принятых в курсовой работе, исходя из того, что число частных определений характеристик коэффициент n = 12, а коэффициент вариации на основе статистической обработки результатов опытов получен: V = 0,080, следует:

а) для расчета по I предельному состоянию (α = 0,95)

при определении γ:

tα = 1,80; ;


при определении с и φ: tα = 1,81; ρ = 1,81·0,08 = 0,145;


б) для расчета по II предельному состоянию (α = 0,85)

при определении

γ: tα = 1,095; ;


при определении с и φ: tα =1,10; ρ = 1,10·0,08 = 0,088;


Таким образом, для определения расчетных значении характеристик, для каждого грунта и для конкретного варианта грунтовых условий необходимо нормативные значения характеристик φ, с и γ разделить на соответствующий коэффициент надежности по грунту. Расчетные значения характеристик по первому предельному состоянию маркируются индексом "I", а по второму - индексом "II".

сI=с/γgI; сII=с/γgII; φI = φ/ γgI; φII=φ/γgII; γI=γ/γgI; γII=γ/γgII.

Расчетные характеристики грунтов по двум грунтам предельных приведены в т.4.1.

Таблица 4.1

Номер слоя

сI

сII

φI

φII

γI

γII

1





14.32

14.52

2

3.41

3.64

27.35

29.19

18.84

19.1

3

17.09

18.24

17.09

18.24

18.36

18.6

4

39.3

41.97

15.38

16.42

17.4



5. Проектирование фундаментов на естественном основании


5.1 Определение предварительных размеров подошвы фундамента


Нормативную глубину промерзания грунта, если она менее 2,5 м, определяется по формуле

dfn = d0, (5.1)

где Мt - коэф-т, численно равный сумме абсолютных значений среднемесячных температур за зиму в данном районе Мt=340 глубина промерзания в см, зависящая от вида грунта, для песков пылеватых d0=28см

fn = 28=163 (см),

Рассчётная глубина сезонного промерзания грунта определяется по формуле

 

df= dfn *Kh, (5.2)

где - Kh коэф-т, учитывающий влияние теплового режима здания на глубину промерзания грунта у фундаментов стен и колонн, принимаемый по т.4.5 методических указаний, Kh=0.6

 

df= 1.63*0.6=1.0 (м),

принимаем глубину заложения фундамента в 1.5 м от поверхности земли.

Проектируем фундамент стаканного типа под колонну по оси 2А, сечением 400х400мм, по оси 2Б, сечением 500х500мм, производственного, пятиэтажного здания, с полным ж/б каркаса. Приняв глубину заложения фундамента в 1.5 м от поверхности земли, основанием для фундамента будут служить песок пылеватый средней плотности, влажный, h=4.2 м, γ₂ = 19.1кН/м³, е=0.6, Е=20МПа, R0=150 кПа.

Предварительную площадь подошвы фундамента под колонну по оси 2А определяем по формуле

, (5.3)

где N0II - расчетная нагрузка, приложенная к обрезу фундамента N0II=1550 кН

R0 - расчетное сопротивление грунта основания, R0=150 кПа

γср - средний удельный вес грунта и материала фундамента (железобетон), принимаемый равным 20 кН/м3

d1 - глубина заложения фундамента от планировочной отметки, d1=1.65м


Принимаем квадратный фундамент, так как проектируем фундамент под квадратную колонну 400х400мм

Для квадратного фундамента ширина фундамента определяется по формуле

 

b = , b = = 3.64 (м) (5.4)

Предварительную площадь подошвы фундамента под колонну по оси 2Б


Принимаем квадратный фундамент, так как проектируем фундамент под квадратную колонну 500х500мм

 

b = = 3.9 (м)

5.2 Определение расчетного сопротивления грунта основания по прочностным характеристикам грунта основания.


Расчетное сопротивление грунта основания определяют по формуле

 (5.5)

где γc1, γc2 - коэф-ты условий работы, принимаемые по т.4.6 методических указаний, γc1=1.25, γc2=1.0

k - коэф-т надежности по грунту, k=1.0

Мy, Мq, Мc - коэф-ты, зависящие от угла внутреннего трения φII, принимаемые по т.4.7 методических указаний,

для угла внутреннего трения φII =29.2 определяем коэф-ты интерполяцией Мy = 1.065, Мq=5.26, Мc=7.675

kz - коэф-т, при b<10м kz=1.0

b - предварительная ширина подошвы фундамента, b=3.64м

γII - осредненное расчетное значение удельного веса грунтов, залегающих ниже подошвы фундамента на глубину 0.5b, γII=19.1 кН/м3

γ'II - то же, залегающих выше подошвы в пределах глубины d1=1.65 м

γ'II определяется по формуле

 

γ'II = (5.6)

γ'II =

СII - расчетное значение удельного сцепления грунта, залегающего непосредственно под подошвой фундамента, СII=3.64 кПа

d1 - глубина заложения фундаментов бесподвальных сооружений от уровня планировки

 

R=


После определения расчетного сопротивления грунта R уточняем размеры подошв фундаментов. Фундамент по оси А2.

b = = 2.3 (м)

При внецентренной нагрузке (действие момента) площадь подошвы фундамента увеличивается на 10-20%. Принимаем ширину фундамента b=2.4 м, l=2.4 м, площадь подошвы А=5.76 м2

Фундамент по оси Б2.

b = = 2.5 (м)

Принимаем ширину фундамента b=2.6 м, l=2.6 м, площадь подошвы А=6.76 м2

 

.3 Графический метод определения размеров подошвы фундамента


Для фундамента по оси 2А и 2Б задаемся разными площадями подошвы фундамента А1=2м2, А2=6м2, А3=9м2.

Определяем среднее давление под подошвой фундамента для каждого случая по формуле

 (5.7)

По оси 2А. По оси 2Б.

 

 

 

Определяем значения R под подошвой фундамента для каждого случая по формуле 5.5

 

RI=

RII=

RIII=


Наносим полученные значения Р, R и А на график, точка пересечения графиков Р и R дает требуемое значение площади подошвы фундамента.

Определение площади подошвы фундамента графическим способом по оси 2А

Рис 5.1

Определение площади подошвы фундамента графическим способом по оси 2А

Рис 5.2

6. Проверка давлений под подошвой фундамента


Для фундамента по оси 2Б, как для центрально нагруженного фундамента должно удовлетворяться условие: PII R, где PII - среднее давление по подошве фундамента, кПа

 

PII=NII/A (6.1)

NII=NOII+Nфо+ NгрII (6.2)

где N0II - расчетная нагрузка, приложенная к обрезу фундамента N0II=1550кН

Nфо - расчетная нагрузка от веса фундамента, кН

NгрII - расчетная нагрузка от веса грунта над уступами, кН

 

NфII= Nфо+ NгрII=bld1γср (6.3)

PII=NII/bl+d1γср (6.4)

PII=1800/2.6х2.6+1.65х20=299.3 (кПа)

.3≤322.6

Условие выполняется, разница между давлениями не превышает 15%

Для фундамента по 2А, как для внецентренно нагруженного фундамента должно удовлетворяться условия:

 

Pср ≤ Rmax ≤ 1.2Rmin > 0

Краевые давления по подошве фундамента для внецентренно нагруженного фундамента находятся по формуле

 

Pmax, min= NOII/A+yсрхd1±MII/W (6.5)

Pmax, min= 1550/2.4х2.4+20х1.65±60/2.3, Pmax= 328.2 (кПа), P min=276.0 (кПа)=2.42х2.4/6=2.3

328.2 + 276.0/2≤ 322.6

.2 ≤ 1.2х322.6

.2 ≤ 387.1

.0 > 0

Условия выполняются

7. Расчёт осадки фундамента


Метод послойного суммирования рекомендуется СНиПом для расчета осадок фундаментов. Величину осадки фундамента определяется по формуле:

 (7.1)

где b - безразмерный коэффициент, равный 0,8; szpi - среднее вертикальное (дополнительное) напряжение в i - м слое грунта; hi и Ei - соответственно толщина и модуль деформации i - го слоя грунта, значение Еi n - число слоев, на которое разбита сжимаемая толща основания.

Эпюра распределения вертикальных напряжений от собственного веса грунта строится в пределах глубины 4-6b ниже подошвы фундамента. Вертикальное напряжение от собственного веса грунта на границе слоя, расположенного на глубине z, определяется по формуле

 

szg=  (7.2)

Удельный вес грунтов, залегающих ниже уровня подземных вод, определяется с учетом взвешивающего действия воды. Водоупорами следует считать глины и суглинки твердой и полутвердой консистенции при IL<0.5

По данным геологического разреза уровень грунтовых вод находится на отм.93.5 м, а водоупор в виде суглинков тугопластичных с IL=0.42 начинается на отм.93.6, следовательно удельным весом грунтов с учетом взвешивающего действия воды пренебрегаем.

Таблица 7.1

Номер расчётного слоя

Толщина расчетного слоя h, м

Zi

Толщина слоя hi, м

Расчётный удельный вес грунта γ, кН/м3

Природное давление σzg на глубине zi, кПа

Коэффициент ξ=2zi/b

Коэффициент α, по т.4.9 м. у.

Дополнительное давление σzp на глубине zi, кПа

Среднее дополнительное давление в слое σzgср, кПа

Модуль деформации грунта Ei, кПа

Осадка слоя Si

 

Осадка фундамента по оси "А"

Определение szg0 и szp0 на уровне подошвы фундамента

1

d1


0.4

14.52

5.8







 

2



1.25

19.1

23.89







 





szg0=5.8+23.89=29.8



szp0=302.1-29.8=272.3




 

Определение szg и szp под подошвой фундамента

 

2

0.8

0.8

4.2

19.1

15.3

0.7

0.840

228.7

162.74

20000

S=0.8 (162.74х4.2/20000+33.92х3.4/13000) =0.028=2.8

 


1.6

1.6


19.1

30.6

1.3

0.566

154.1




 


2.4

2.4


19.1

45.8

2.0

0.336

91.5




 


2.95

2.95


19.1

56.4

2.5

0.243

66.2




 





szg на подошве второго слоя 56.4+29.8=86.2







 

3

0.25

3.2

3.4

18.6

4.65

2.7

0.215

58.5

33.92

13000


 


0.8

4.0


18.6

14.9

3.3

0.153

41.7




 


1.6

4.8


18.6

29.8

4.0

0.108

29.4




 


2.4

5.6


18.6

44.6

4.7

0.081

22.1




 


3.4

6.35


18.6

63.3

5.2

0.066

17.9




 





szg на подошве третьего слоя 56.4+29.8+63.3=149.5







 

4

0.85

6.4


17.64

15.0

5.3

0.064

17.4




 


1.65

7.2


17.64

29.1

6.0

0.051

13.9




 


2.45

8.0


17.64

43.2

6.7

0.041

11.2




 





szg на уровне 10.6м от поверхности земли в четвертом слое 56.4+29.8+63.3+43.2=192.7







 

Осадка фундамента по оси "Б"

 

Определение szg0 и szp0 на уровне подошвы фундамента

 

1

d1


0.4.

14.52

5.8







 

2



1.25

19.1

23.89







 





szg0=5.8+23.89=29.8



szp0=299.3-29.8=269.5




 

2

0.8


4.2

19.1

15.3

0.6

0.880

237.2

170.1

20000

S=0.8 (170.1х4.2/20000+35.1х3.4/13000) =0.036=3.6

 


1.6



19.1

30.6

1.2

0.606

163.3




 


2.4



19.1

45.8

1.8

0.393

105.9




 


2.95



19.1

56.4

2.3

0.276

74.4




 





szg на подошве второго слоя 56.4+29.8=86.2







 

3

0.25


3.4

18.6

4.65

2.5

0.229

67.7

35.1

13000


 


0.8



18.6

14.9

3.1

0.170

45.8




 


1.6



18.6

29.8

3.7

0.124

33.4




 


2.4



18.6

44.6

4.3

0.095

25.6




 


3.4



18.6

63.3

4.9

0.074

19.9




 





szg на подошве третьего слоя 56.4+29.8+63.3=149.5







 

Эпюра распределения вертикальных напряжений от собственного веса грунта и дополнительных вертикальных напряжений под подошвой фундамента по оси 2А

Рис 7.1

Эпюра распределения вертикальных напряжений от собственного веса грунта и дополнительных вертикальных напряжений под подошвой фундамента по оси 2Б

Рис 7.2

8. Проектирование свайного фундамента. Расчет свайного фундамента по I группе предельных состояний


8.1 Определение расчетного сопротивления сваи


Расчетное сопротивление (несущую способность) висячей сваи по грунту определяют по формуле

 (8.1)

где gс - коэффициент условий работы сваи, для забивных свай gс=1

gк - коэф-т надежности по грунту, для забивных свай =1.4

R - расчетное сопротивление грунта под нижним концом сваи, т.4.10 методических указаний, R=2200кПа

В проекте принимаем сваю С55.25 - длина призматической части 5500мм, сечение 250х250мм

А - площадь поперечного сечения сваи, м2, А=0.0625м2

u - наружный периметр сваи, u=1.0м

fi - расчетное сопротивление i - го слоя грунта основания по боковой поверхности сваи

hi - толщина i - го слоя грунта, соприкасающегося с боковой поверхностью, м, hi < 2метра

gcR, gcf - коэффициенты условий работы под нижним концом и по боковой поверхности сваи, зависящие от способа погружения свай (для свай, погружаемых забивкой gcR = gc f =1)

Значения fi и R находятся по таблице 4.10 методических указаний в зависимости от глубины zi расположения середины соответствующего слоя грунта (для fi) или от глубины z0 погружения нижнего конца сваи (для R), и от характеристики грунтов. Глубина z отсчитывается от природной поверхности. Слои грунта прорезаемые сваей делят на полоски hi, толщиной не более 2 м, и определяют расстояния zi от поверхности природного рельефа до середины каждого слоя.

z1 =2.35м, песок пылеватый → f1=22.2 кПа

z2 =3.98м, песок пылеватый → f2=27 кПа

z3 =5.1м, суглинок тугопластичный → f3=29.2 кПа

z4 =6.1м, суглинок тугопластичный → f4=31.1 кПа


Схема к определению расчетного сопротивления сваи по грунту для фундамента по оси 2А

Рис 8.1

Схема к определению расчетного сопротивления сваи по грунту для фундамента по оси 2Б

Рис 8.2

8.2 Определение необходимого кол-ва свай


Количество свай в кусте определяют по формуле

 (8.2)

где

 - сумма внешних расчетных вертикальных нагрузок, приведенных к подошве плиты ростверка

 (8.3)

 

n - коэф-т, учитывающий работу свай при наличии момента внешних сил в уровне подошвы ростверка, n=1.1

Определим количество свай для ростверка по оси "2-А".

Определяем сумма внешних расчетных вертикальных нагрузок, приведенных к подошве плиты ростверка

n=1626/514.8х1.1=3.2

принимаем 4 сваи в кусте.

Определим количество свай для ростверка по оси "2-Б.

Определяем сумма внешних расчетных вертикальных нагрузок, приведенных к подошве плиты ростверка

n=1909.4/514.8х1.1=4

принимаем 4 сваи в кусте.

8.3 Определение фактического давления на каждую сваю


Для внецентренно нагруженного свайного фундамента фактическое давление на каждую сваю определяется по формуле

 (8.4)

где y - расстояние от центра тяжести ростверка до оси сваи, в которой определяется давление

yi - расстояние от каждой сваи в ростверке, до центра тяжести ростверка


Должны выполняться следующие условия:

 ;  

Условия выполняются

8.4 Проверка давления в основании свайного фундамента как условно массивного. Расчет свайного фундамента по II группе предельных состояний


При расчете осадок свайный фундамент принимают условно как массивный с подошвой, расположенной на уровне конца свай. Перед определением осадки проверяют прочность основания фундамента в уровне острия сваи по ф.5.5 при d1=z0, b=by.

Положение граней 1,2,3,4 условного массивного фундамента определяют используя средневзвешенное значение расчетного угла внутреннего трения φср

 (8.5)

 (8.6)

 (8.7)


Определяем ширину by условно массивного фундамента по оси 2А и 2Б

 (8.8)


Определяем длину и площадь подошвы условно массивного фундамента , . Принимаем размеры условно массивного фундамента 2.36х2.36м, и находим объем условно свайного фундамента

 

V=2.36х2.36х6.9=38.4 (м3)

Находим объем ростверка и подколонника

 

V=1.5х1.5х0.6+0.9х0.9х0.6=1.35+0.486=1.84 (м3)

Находим объем свай

 

V=4х0.252х5.75=1.44 (м3)

Находим объем грунта

 

Vгр= V - Vсв - Vр=38.4-1.44-1.84=35.12 (м3)

Далее определяем средневзвешенное значение удельного веса грунта в свайном условно-массивном фундаменте по формуле

 (8.9)


Определяем вес грунта в объеме условно-массивного фундамента

 

Gгр=Vгр γII=35.12х18.7=656.74 (кН)

Определяем вес ростверка и свай

 

Gр+св = Vр+св γIIж/б= (1.84+1.44) х25=66.24 (кН)

Расчетом проверяют условие

 (8.10)

где  - сумма расчетных нагрузок (по деформациям) в плоскости подошвы свайного фундамента, определяются по формуле

 (8.11)

 

Ay - площадь подошвы условного массивного фундамента, Ay=6.9 м2

R - прочность основания фундамента в уровне острия сваи по ф.5.5 при d1=z0, b=by

Определяем  для фундамента по оси 2А


Определяем  для фундамента по оси 2Б


Определяем расчетное сопротивление грунта основания условного фундамента в уровне острия свай, основанием будут служить суглинки тугопластичные со следующими расчетными характеристиками

γII=18.6Н/м3

d1=z0=6.65 м

b=by=2.63 м

φ=18.3º

Мy=0.43, Мq=2.73, Мc=5.3.

γ'II=18.7 кН/м3

R=


Проверяем условие для фундамента по оси 2А

,

Условие выполняется

Проверяем условие для фундамента по оси 2Б


Условие выполняется

8.5 Расчет свайного фундамента по деформациям


Метод послойного суммирования рекомендуется СНиПом для расчета осадок фундаментов.

Номер расчётного слоя

Толщина расчетного слоя h, м

Zi

Толщина слоя hi, м

Расчётный удельный вес грунта γ, кН/м3

Природное давление σzg на глубине zi, кПа

Коэффициент ξ=2zi/b

Коэффициент α, по т.4.9 м. у.

Дополнительное давление σzp на глубине zi, кПа

Среднее дополнительное давление в слое σzgср, кПа

Модуль деформации грунта Ei, кПа

Осадка слоя Si

 

Осадка фундамента по оси "А"

Определение szg0 под подошвой ростверка

1

d1


0.4

14.52







 

2



0.95

19.1

18.1







 





szg0=5.8+18.1=23.9







 

Определение szg от подошвы ростверка до подошвы условного массивного фундамента и szp0 на подошве массивного фундамента и szp

 

2

3.25


4.2

19.1

62.1





20000

S=

 





szg на подошве второго слоя 23.9+62.2=86.2







 

3

2.05

0.8

3.4

18.6

38.2

0.68

0.840

172.37

161.97



 





szg на уровне условного массивного фундамента 86.2+38.2=124.2


s zp0 на уровне условного массивного фундамента 329.4-124.2=205.2




 


1.35

1.35


18.6

25.1

1.4

0.528

108.35




 





szg на подошве третьего слоя 86.2+38.2+25.1=149.5







 

4

0.8

2.15

Не нормируется

17.64

14.1

1.8

0.393

80.64


13000


 


1.6

2.95


17.64

28.2

2.5

0.243

49.86




 


2.4

3.75


17.64

42.3

3.2

0.160

32.83




 

Осадка фундамента по оси "Б"

 

Определение szg0 под подошвой ростверка

 

1

d1


0.4.

14.52

5.8







 

2



0.95

19.1

18.1







 





szg0=5.8+18.1=23.9







 

Определение szg от подошвы ростверка до подошвы условного массивного фундамента и szp0 на подошве массивного фундамента и szp

 

2

3.25


4.2

19.1

62.1





20000

S

 





szg на подошве второго слоя 23.9+62.2=86.2







 

3

2.05

0.8

3.4

18.6

38.2

0.68

0.840

202.9

190.63



 





szg на уровне условного массивного фундамента 86.2+38.2=124.2

3.1

s zp0 на уровне условного массивного фундамента 365.7-124.2=241.5




 


1.35

1.35


18.6

25.1

1.4

0.528

127.5




 





szg на подошве третьего слоя 56.4+29.8+63.3=149.5







 

4

0.8

2.15

Не нормируется

17.64

14.1

1.8

0.393

94.9


13000


 


1.6

2.95


17.64

28.2

2.5

0.243

58.7




 


2.4

3.75


17.64

42.3

3.2

0.160

38.6




 


Эпюра распределения вертикальных напряжений от собственного веса грунта и дополнительных вертикальных напряжений под подошвой условного массивного фундамента по оси 2А

Рис 8.3

Эпюра распределения вертикальных напряжений от собственного веса грунта и дополнительных вертикальных напряжений под подошвой условного массивного фундамента по оси 2Б

Рис 8.4

 


9. Технико-экономические показатели


Таблица №9.1 Вариант с фундаментом мелкого заглубления.

Наименование работ

Ед. изм.

Стоимость на ед. изм. у. е.

Объём работ

Стоимость на весь объём

Разработка грунта под фундамент

м3

3.9

7840.8

30579.12

Устройство приёмного колодца

шт.

133

6

798

Устройство ж. б. фундамента

м3

44.90

907.2

40733.3

Всего:

72110.4


Таблица №9.2 Вариант со свайным фундаментом.

Наименование работ

Ед. изм.

Стоимость на ед. изм. у. е.

Объём работ

Стоимость на весь объём

Разработка грунта под фундамент

м3

3.9

7840.8

30579.12

Устройство приёмного колодца

шт.

133

6

798

Забивка железобетонных свай до 12м

м3

88.4

227.7

20128.7

Устройство ростверков

м3

44.90

527.7

23693.73

Всего:

75199.6


Вариант с фундаментом мелкого заложения наиболее выгодный.

10. Указания по производству работ и технике безопасности


Площадка на которой возводится здание имеет ровную поверхность с планировочной отметкой 98.35. Глубина заложения фундамента на естественном основании принимается равной 1.5 м. Уровень подземных вод находится на абсолютной отметке 93.500.

Котлован спроектирован с естественными откосами без закрепления. Горизонтальная привязка котлована к месту выполнена с разбивкой осей здания. Дно котлована сделать с уклоном 1% от центра к краям, для отвода воды (осадков). В углах котлована, в самых низких точках у въездов в котлован расположить колодцы для сбора воды. Разработку котлована предлагается вести с поверхности земли и изнутри котлована экскаватором с обратной лопатой.

В первом случае фундаменты приняты монолитные, ж/б, стаканного типа, под ж/б колонны, во втором случае свайные с монолитным ростверком стаканного типа.

Под монолитные фундаменты выполнить подготовку из бетона класса В 7,5 толщиной 100 мм по выровненному основанию. Под фундаментные балки выполнить песчаную подготовку толщиной 100 мм.

Набетонки под фундаментные балки выполнить совместно с фундаментами, эти набетонки из бетона класса В15. Фундаментные балки укладывать на слой цементного раствора марки 100 толщиной 20 мм. Зазоры между торцами фундаментных балок и фундаментами заделать бетоном кл. В15.

Обратную засыпку пазух фундаментов, основания под фундаменты оборудования и полы выполнять естественным грунтом с послойным уплотнением каждого слоя.

Все фундаменты и фундаментные блоки обмазать горячей битумной мастикой за 2 раза по слою грунтовки.

Основанием фундаментов является глины в первом случае песок пылеватый средней плотности, влажный h=4.2 м, γ₂ = 19.1кН/м³, е=0.6, Е=20МПа, во втором случае глина полутвердая γ4 = 17.64кН/м³, е=0.8, Е=18МПа.

Низ подошвы фундаментов в первом случае - на отм. - 1.800, при свайном фундаменте низ сваи на отм. - 6.800.

За отм.0.000 принята отметка чистого пола первого этажа, что соответствует абсолютной отм.98.35.

11. Литература


1.       Кубецкий В.Л. "Рабочая программа и задание на курсовой проект с методическими указаниями для студентов IV курса", РГОТУПС, Москва, 2003.

2.       СНиП 2.02.01-83 (2000) - "Основания зданий и сооружений".

.        СНиП 2.02.03-85 (1995, с попр. 2003) - "Свайные фундаменты".

.        Далматов Б.И. "Механика грунтов, основания и фундаменты. Учебник для вузов". Москва, 1981.

.        Ухов С.Б. "Механика грунтов, основания и фундаменты", Москва 2002

.        СП 50-101-2004 "Проектирование и устройство оснований и фундаментов зданий и сооружений", Москва 2004.

Похожие работы на - Расчет и конструирование фундаментов промышленного здания

 

Не нашли материал для своей работы?
Поможем написать уникальную работу
Без плагиата!
Без нейросетей!