Фильтр заливной и сапун ТМ178GS100. Предназначен для очистки масла при заливке в систему. ([2], стр.321,
табл. 8.25)
|
Фильтр заливной,
совмещённый с сапуном ТМ178GS100
|
|
Номинальная тонкость
фильтрации, мкм воздуха масла
|
10 80
|
|
Масса, кг
|
0,3
|
Определение объема гидробака
Минимальный объем рабочей жидкости в гидробаке определяется по формуле
.
На практике объем гидробака выбирается равным объему жидкости
перекачиваемой насосом за время от 60 до 180 с ([9], стр.15)
.
Для
наилучшего теплового режима и удобства компоновки насосной установки объём бака
принимаем Wгб = 1250
дм3 по ГОСТ 12448-80 ([2], стр.8).
Тепловой
расчет насосной установки
В
предварительном расчете потери мощности, переходящие в тепло можно определить
по формуле
, кВт.
кВт
.
Предполагаем,
что теряемая мощность превращается в тепло
∆N=11696-3848=7848
Вт
Определим
температуру масла в гидробаке
,
где
tв = 20 °С
- температура окружающей среды;
а
= 0,065 - коэффициент пропорциональности ([8], стр.17);
Кпр
= 12 Вт/м2·°С - коэффициент теплопередачи от масла к окружающему
воздуху (при спокойном воздухе и незначительной скорости рабочей жидкости в
баке);
Wм - объём масла в баке.
.
.
Так
как тепловой режим гидропривода не удовлетворяет необходимым требованиям, т.е.
температура рабочей жидкости в течение работы поднимается выше допустимой, то
появляется необходимость в использовании теплообменника.
Расчет
теплообменника
Рассчитываем
тепловой поток рассеиваемый баком
;
,
где
- допустимый перегрев масла;
.
Определяем
тепловой поток рассеиваемый теплообменником
.
В
соответствии с полученным значением Етепл выбираем теплообменник
водяной типа EMMEGI MGW 170-710-2([Т2], стр. 30,
табл. 15.2):
расход
рабочей жидкости: 260…450 л/мин;
потери
давления при мах. расходе: 0,07 МПа;
давление
охлаждающей воды: 1,2 МПа;
максимальное
давление рабочей жидкости: 1,2 МПа;
рассеиваемая
мощность теплообменника: 30,9…73,6 кВт.
Гидравлический
расчет привода. Расчет и выбор трубопроводов
Типоразмер
любого трубопровода характеризуется условным проходом dy,
примерно равным внутреннему диаметру трубы d.
Учитывая
рекомендацию СЭВ ВС 3644-72, регламентирующую скорость uд потоков
рабочей жидкости в трубопроводах, принимаем
для
всасывающих трубопроводов υдоп
≤ 1,5 м/c;
для
напорных трубопроводов
при
Р=6,3 МПа , υд.нап=3,2
м/с,
при
Р=25 МПа , υд.нап=4,563
м/с,
для
сливных трубопроводов υдоп = 2 м/c
Для
всасывающего трубопровода 1
;
По
ГОСТ 16516-80 ([9], стр.3, табл.3) принимаем dвс1 = 63 мм.
В
связи с тем что диаметр отверстия во всасывающей линии насоса dвс1
= 75 мм, то в дальнейших расчетах
мы также принимаем dвс1 = 75
мм;
Минимально
допустимая толщина стенки d всасывающего трубопровода
,
где
- давление во всасывающей линии трубопровода;
К
= 3 - коэффициент запаса прочности ([3], стр.597);
= 190
МПа - допустимое напряжение материала на разрыв (для Ст45);
По
ГОСТ 8734-75 ([10], стр.584) принимаем для всасывающего трубопровода трубу
стальную бесшовную холоднодеформированную с толщиной стенки dвс1 = 0,5
мм и наружным диаметром dвс1.нар =
76 мм.
Таким
образом, истинная средняя скорость во всасывающем трубопроводе составит
;
.
Для
всасывающего трубопровода 2
;
По
ГОСТ 16516-80 ([9], стр.3, табл.3) принимаем dвс2 = 40 мм.
Минимально
допустимая толщина стенки d всасывающего трубопровода
,
где
- давление во всасывающей линии трубопровода;
К
= 3 - коэффициент запаса прочности ([3], стр.597);
= 190
МПа - допустимое напряжение материала на разрыв (для Ст45);
По
ГОСТ 8734-75 ([10], стр.584) принимаем для всасывающего трубопровода трубу
стальную бесшовную холоднодеформированную с толщиной стенки dвс1 = 0,5
мм и наружным диаметром dвс1.нар =
41 мм.
Таким
образом, истинная средняя скорость во всасывающем трубопроводе составит
;
.
Для
напорного трубопровода 3 идущего от насоса до гидравлической плиты
;
.
По
ГОСТ 16516-80 принимаем dнап. = 40
мм.
Минимально
допустимая толщина стенки d напорного трубопровода
;
.
По
ГОСТ 8734-75 принимаем для напорного трубопровода трубу стальную бесшовную
холоднодеформированную с толщиной стенки dнап.=9 мм и наружным диаметром dнап.нар =58 мм. Таким образом, истинная средняя скорость в
напорном трубопроводе составит
;
.
Для
напорного трубопровода 4 идущего от насоса до гидравлической плиты
;
.
По
ГОСТ 16516-80 принимаем dнап. = 32
мм.
Минимально
допустимая толщина стенки d напорного трубопровода
;
.
По
ГОСТ 8734-75 принимаем для напорного трубопровода трубу стальную бесшовную
холоднодеформированную с толщиной стенки dнап.=2 мм и наружным диаметром dнап.нар =36 мм.
Таким
образом, истинная средняя скорость в напорном трубопроводе составит
;
.
Для
напорного трубопровода 5,6,11 идущего от плиты до распределителя Р1, и от
распределителя на цилиндр
;
.
По
ГОСТ 16516-80 принимаем dнап. = 50
мм.
Минимально
допустимая толщина стенки d напорного трубопровода
;
.
По
ГОСТ 8734-75 принимаем для напорного трубопровода трубу стальную бесшовную
холоднодеформированную с толщиной стенки dнап.=12 мм и наружным диаметром dнап.нар =74 мм.
Таким
образом, истинная средняя скорость в напорном трубопроводе составит
;
Для
напорного трубопровода 7,8 идущего от плиты до распределителя Р1, и от
распределителя на цилиндр
;
По
ГОСТ 16516-80 принимаем dнап. = 63
мм.
Минимально
допустимая толщина стенки d напорного трубопровода
;
.
По
ГОСТ 8734-75 принимаем для напорного трубопровода трубу стальную бесшовную
холоднодеформированную с толщиной стенки dнап.=3,5 мм и наружным диаметром dнап.нар =70 мм.
Таким
образом, истинная средняя скорость в напорном трубопроводе составит
;
Для
сливного трубопровода 9,10,12,13 идущего от распределителя Р1 до
теплообменника, потом сливного фильтра и соответственно в бак
;
По
ГОСТ 16516-80 принимаем dсл. = 80
мм.
Минимально
допустимая толщина стенки d напорного трубопровода
;
.
По
ГОСТ 8734-75 принимаем для сливного трубопровода трубу стальную бесшовную
холоднодеформированную с толщиной стенки dнап.=0,5 мм и наружным диаметром dсл.нар =81 мм.
Таким
образом, истинная средняя скорость в напорном трубопроводе составит
;
Разработка
монтажной схемы трубопроводов
Всасывающий
трубопровод:
Участок
1 - К насосу L= 755 мм (вход в ТП с острыми кромками + угольник)
d=75 мм,
=1,06 м/с, Q=0,00468 м3/с
Участок
2 - К насосу L=385 мм (вход в ТП с острыми кромками + угольник)
d=40 мм,
=1,377 м/с, Q=0,00173 м3/с
Напорный
трубопровод:
Участок
3 - От насоса к плите L=180 мм
d=40 мм,
=3,726 м/с, Q=0,00468 м3/с
Участок
4 - От насоса к плите L=830 мм (1 угольник + 2 поворота + 1 тройник)
d=32 мм,
=2,15м/с, Q=0,00173 м3/с
Участок
5 - От плиты к распределителю Р1 L=1580 мм
d=50 мм,
=3,266 м/с, Q=0,00641 м3/с
Участок
6 - От плиты к распределителю Р1 L=1580 мм
d=50 мм,
=3,266 м/с, Q=0,00641 м3/с
Участок
7 - От плиты к распределителю Р1 L=2800 мм (2 поворота+1 угольник)
d=63 мм,
=2,057 м/с, Q=0,00641 м3/с
Участок
8 - От плиты на гидроцилиндр ГЦ L=3340 мм (3 поворота)
d=63 мм,
=2,057 м/с, Q=0,00641 м3/с
Участок
11 - От распределителя Р1 к гидроцилиндру ГЦ L=2380 мм (1
поворот)
d=50 мм,
=3,266 м/с, Q=0,00641 м3/с
Сливной
трубопровод:
Участок
9 - От распределителя Р1 до теплообменника АТ L=1810 мм (1
поворот+1уголок)
d=80 мм,
=1,276 м/с, Q=0,00641 м3/с
Участок
10 - От теплообменника АТ до фильтра Ф1 L=1030 мм
(1поворот)
d=80 мм,
=1,276 м/с, Q=0,00641 м3/с
Участок
12 - От плиты в бак L=710 мм (выход из ТП )
d=80 мм,
=1,276 м/с, Q=0,00641 м3/с
Участок
13 - От фильтра Ф на слив L=245 мм ( угольник, выход из ТП)
d=80 мм,
=1,276 м/с, Q=0,00641 м3/с
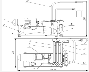
Рисунок
3.4 - Монтажная схема трубопроводов
Проверочный
расчет гидропривода. Определение номинального расхода рабочей жидкости
Проверочный
расчет необходим для уточнения основных параметров и характеристик объемного
гидропривода.
Определим
номинальный расход рабочей жидкости, по формуле
;
.
Перепад
давления на гидродвигателях при максимальной расчётной нагрузке
Для
гидроцилиндра Ц1:

.
Для
гидроцилиндра Ц2.

.
Определение
потерь давления в гидролиниях
При
постоянных значениях вязкости и скорости потока рабочей жидкости потери
давления зависят от внутреннего диаметра трубопровода, его длины, числа и
конструкции применяемых соединений.
Потери
давления на трение по длине трубопровода определяются на каждом i-м выделенном
(при проектировании монтажной схемы) участке трубопровода.
Потери
давления на трение по длине трубопровода зависят от режима течения жидкости,
определяемого числом Рейнольдса
,
где
- истинная средняя скорость на i-м участке
трубопровода, м/с;
-
принятый условный диаметр i-го участка трубопровода, м;
-
кинематический коэффициент вязкости жидкости, м2/с.
Потери
давления на трение по длине трубопровода определяются по формуле
где
- коэффициент гидравлического трения на i-м участке
трубопровода;
- длина
i-го участка трубопровода, м;
-
плотность рабочей жидкости, кг/м3.
Коэффициент
гидравлического трения
определяется в зависимости от режима течения жидкости
следующим образом:
при
ламинарном режиме течения рабочей жидкости
<
2320;
;
при
турбулентном течении рабочей жидкости 2320 <
< 105;
;
Потери
на трение по длине трубопровода рассчитываются для каждого гидродвигателя,
результаты расчета сводятся в таблицу 14.
Таблица
14 - Потери давления в трубопроводах
Определение
потерь давления на местных сопротивлениях
Потери
давления на местных сопротивлениях определяются по формуле
где
- коэффициент i-го местного сопротивления, зависит от
типа, геометрических размеров и режима движения жидкости.
Значения
коэффициентов местных сопротивлений ζ , наиболее часто встречающихся в гидросистемах, приведены в ([11], с.
88-99).
Потери
на местных сопротивлениях также рассчитываются для каждого гидродвигателя,
результаты расчета сводятся в таблицу 15.
Таблица
15 - Потери давления на местных сопротивлениях
Определим потери давления на гидроаппаратах.
Клапан предохранительный DРКП = 0,2 МПа - КП;
Распределители DРР2
= 0,24 МПа, DРР5
= 1,1 МПа;
Клапан обратный DРКО
= 0,35 МПа - КО;
Фильтр DРФ =
0,05 МПа - Ф1;
Теплообменник DРАТ
= 0,07 МПа - АТ;
Клапан редукционный DРКР = 0,25 МПа - КР;
Регулятор расхода DРРР
= 0,25 МПа - РР;
Потери давления на гидроаппаратах при движении жидкости в напорном
трубопроводе гидроцилиндра Ц1
Потери давления на гидроаппаратах при движении жидкости в сливном
трубопроводе гидроцилиндра Ц1
.
Общие
потери на аппаратах в линии гидроцилиндра
;
.
Потери
давления на гидроаппаратах при движении жидкости в напорном трубопроводе
гидроцилиндра Ц2
Потери
давления на гидроаппаратах при движении жидкости в сливном трубопроводе
гидроцилиндра
.
Общие
потери на аппаратах в линии гидроцилиндра
;
.
Определение
суммарных гидравлических потерь
Суммарные
гидравлические потери состоят из потерь давления по длине трубопроводов, на
местных сопротивлениях и в гидроаппаратах.
Гидравлические потери на цилиндровой линии Ц1
.
Гидравлические
потери на цилиндровой линии Ц2
.
Определим
потребное давление насоса с учетом потерь
;
;
>
.
Так
как потребное давление насоса Рн не превышает максимального давления,
то данный насос удовлетворяет всем требованиям.
Определение максимальных усилий и скорости рабочих органов
Параметры выбранного насоса считаются приемлемыми, если они обеспечивают
достижение заданных усилий и скоростей гидродвигателей при расчетных значениях
потерь в гидросистеме.
Потери давления в напорной линии гидроцилиндра Ц1
Потери давления в напорной линии гидроцилиндра Ц2
Потери
давления в сливной линии гидроцилиндра Ц1.
Потери
давления в сливной линии гидроцилиндра Ц2.
Фактическое
значение максимальных усилий рабочего органа гидроцилиндра Ц1 (с поршневой
рабочей полостью).
Фактическая
максимальная скорость движения рабочего органа гидроцилиндра Ц1.
;
Фактическое
значение максимального усилия на рабочем органе гидроцилиндра Ц2 (с поршневой
рабочей полостью).
Фактическая
максимальная скорость движения рабочего органа гидроцилиндра Ц2.
Определение
мощности и к.п.д. гидропривода
Полезную
мощность привода определяем по фактическим максимальным нагрузкам и скоростям
гидродвигателей.
.
.
Затрачиваемая
мощность привода насоса определяем по фактическим параметрам насоса.
.
Общий
к.п.д. привода.
.
Меры
по снижению шумности
Гидравлические
приводы отличаются чрезвычайно высокой плотностью энергии и силы относительно
объема и веса конструктивных элементов. Если в малом пространстве происходит
интенсивный обмен мощностью. Одновременно с этим возникает высокий уровень
шума. Существующие предписания устанавливают, что средний уровень шума на
рабочем месте не должен превышать 80…90 дБ. При этом исходят из того
обстоятельства, что при постоянном воздействии шума превышающее значение 90 дБ
неизбежны повреждения слуха.
Изготовитель
оборудования вынужден рассматривать не только вопросы происхождения шума, но и
меры их уменьшения. Так, для гидростанций основным источником шума является
насосно-моторная группа, следовательно, в первую очередь надо принимать меры по
снижению шумности данного узла установки. Также источниками шумов могут
являться трубопроводы. Поэтому выделяют следующие механизмы возникновения:
а)
кавитационные шумы
Меры
по снижению шумности
избежание
поворотов потока и изменение сечений трубопровода;
установление
скорости потока рабочей жидкости в допустимых пределах;
выбор
максимальных радиусов поворота труб и шлангов;
б)
передача корпусного шума по трубам
Меры
по снижению шумности:
замена
труб шлангами;
изменение
компоновки трубопроводов.
Меры,
принимаемые в данном проекте:
для
уменьшения непосредственно излучаемого шума насос размещён непосредственно в
баке;
резиновые
прокладки между стаканом, сливным фильтром, теплообменником и крышкой бака
гасят вибрационные шумы;
соблюдены
условия по установлению скорости потока рабочей жидкости в допустимых пределах,
а также по избежанию лишних поворотов потока и изменению сечений трубопроводов.
Техника
безопасности
Для
защиты гидропривода от перегрузок и контроля давления в напорных линиях
установлены предохранительные клапана и манометры. В линиях, ведущих к
манометрам, запрещается производить отбор жидкости.
Для
защиты персонала от вращающихся деталей предусмотрен защитный кожух
Пневмогидроаккумулятор
следует заряжать азотом или другим инертным газом. При испытании и эксплуатации
пневмогидроаккумулятора необходимо руководствоваться «Правилами устройства и
безопасной эксплуатации сосудов, находящихся под давлением». Для постоянных
рабочих мест в производственных помещениях в соответствии с ГОСТ 12.1.003-83
уровень шума не должен превышать 85 дБ.
Перед
началом испытаний системы следует установить органы управления в исходные
позиции; максимально ослабить регулирующие пружины предохранительных клапанов;
проверить наличие и надежность закрепления предусмотренных заграждений, а также
наличие заземления электрооборудования.
Литература
. Навроцкий
К. П. Теория и проектирование гидро- и пневмоприводов. М-Машиностроение,
1991-384 с.
. Свешников
В.К Станочные гидроприводы. Справочник. М- Машиностроение, 2004-512 с.
.
Гидравлическое оборудование для гибких производственных систем, модулей и др.
машин и механизмов. \Под общей редакцией Оксененко А. Я. - N.. Машиностроение,
1988-310 с.
. Свешников
В.К, Усов А. А. Станочные гидроприводы. Справочник. М-Машиностроение, 1988-410
с.
. Санюкевич
Ф.М. «Детали машин. Курсовое проектирование» 2004-485с.
. Скойбеда
А.Т., Курмаз Л.В. атлас «Детали машин» 2001-292с.
. Каталог
изделий MP Filtri.
8.
Методические указания к выполнению курсовых работ по дисциплине «Гидравлика,
гидроприводы, гидро- и пневмоавтоматика» для студентов специальности «Технология
машиностроения», в 2-х частях. 4.2 - Гомель. ГГТУ им. П. О. Сухого, 1995-30 с.
.
Методические указания к выполнению курсовых робот по дисциплине «Гидравлика
гидроприводы, гидро- и пневмоавтоматика» для студентов специальности
«Технология машиностроения»: в 2-х частях 4.1. - Гомель. ГГТУ им. П. О Сухого,
1995-30с.
. Анурьев В.
И. Справочник конструктора - машиностроителя, в 3-х т. Т.3- М., Машиностроение
1979-557 с.
11. Вильнер
Я. М., Ковалев Я. Т., Некрасов Б. Б. Справочное пособие по гидравлике, гидромашинам
и гидроприводам, Минск-. «Вышэйшая школа», 1976-416 с.