Расчет и конструирование панели перекрытия круглыми пустотами и фундамента под колонну среднего ряда

  • Вид работы:
    Курсовая работа (т)
  • Предмет:
    Строительство
  • Язык:
    Русский
    ,
    Формат файла:
    MS Word
    163,06 Кб
  • Опубликовано:
    2012-09-13
Вы можете узнать стоимость помощи в написании студенческой работы.
Помощь в написании работы, которую точно примут!

Расчет и конструирование панели перекрытия круглыми пустотами и фундамента под колонну среднего ряда

Задание на расчетно-практическую работу по строительным конструкциям

Произвести расчет и конструирование следующих конструкций гражданского здания:

1.  Панели перекрытия круглыми пустотами

2.       Фундамента под колонну среднего ряда

Выполнить рабочие чертежи 2-х конструкций (формат А2)

Данные для расчета

Наименование здания -баня

Размеры в осях крайних колонн - 18 * 36 м

Количество этажей - 2

Высота этажа - 4,2

Район строительства - 3

Утеплитель -минвата

Толщина утеплителя -220 мм

Глубина заложения фундамента d - 1,60 (м)

Конструкция пола - керамический

Ширина плиты - 1,2 (м)

Состав пола:

Керамические плиты, d=10мм, r=24 кН/м3

Цементно-песчаная стяжка, d=20мм, r=18 кН/м3

Гидроизоляция из 2-х слоев рубероида по норме qn =0,1 кН/м2

Конструкция кровли (малоуклонная):

-ый слой - гравий втопленный в битум d=15мм, r=20 кН

-ой слой - 4 слоя рубероида на битумной мастике qn =0,15 кН/м2

-ий слой - цементно-песчаная стяжка, d=30мм, r=19 кН/м2

-ый слой - утеплитель - минвата 220мм

-ый слой - пароизоляция qn =0,05 кН/м2

Вид нагрузки

Подсчет нагрузки

Нормативная нагрузка, qn кН/м2

Коэффициент надежности по нагрузке gf

Расчетная нагрузка, q кН/м2

1. Постоянная: 1.1 2слоя линокрома по 4кг/м2 1.2 цем-но песчаная стяжка-25мм g=20Кн/; 1.3.; 1.4 утеплитель минвата; 1.5 пароизол; 1.6 пустотная ж/б плита

 2*0,04 0,025*20   0,20*2 по нормам по норме

 0,8 0,50   0,4 0,05 3,0

 1,2 1,3   1,2 1,2 1,1

 0,096 0,65   0,48 0,06 3,3

Итого:

-

∑gⁿ=4,47

-

∑g=4,85

2. Временная 2.1. длительная 2.2. кратковременная.

СНиП 2.01.07-85* 1,8*0,5*0,7 (1,8-0,9)*0,7

 0,63 0,63

 0,7 0,7

 0,9 0,9

Итого:

-

∑pⁿ=1,26

-

∑p=1,8

Всего:

-

∑∑gⁿ=5,73

-

∑∑g=6,65


Таблица 1.2 Сбор нагрузок на 1м2 плиты перекрытия

Вид нагрузки

Подсчет нагрузки

Нормативная нагрузка, qn кН/м2

Коэффициент надежности по нагрузке gf

Расчетная нагрузка, q кН/м2

1. Постоянная: 1.1. ж/б плита 1.2 гидроизоляция  1.3.цементно-песчаная  стяжка  1.4. керамические плиты 1.5. перегородки

 по норме по норме 0,02*18  0,01*24

 3 0,1 0,36 1,5 0,24 0,75

 1,1 1,2 1,3 1,1 1,2 1,1

 3,3 0,12 0,468 3,52 0,288 0,825

Итого:


∑gⁿ=4,45


∑g=5,001

СНиП 2.01.07-87* Табл.3 2 - 0,7

 0,7 1,3

 1,2 1,2

 0,84 1,56

Итого:

-

∑pⁿ=2,0

-

∑p=2,4

Всего:

-

∑∑pⁿ=6,45

-

∑∑p=7,4


Таблица 1.3. Сбор нагрузок на колонну среднего ряда 1 этажа

Вид нагрузки

Определение нагрузки

Нормативная, кн/м3

gfср

Расчетная

1. Покрытия 1.1.полная нормативная 1.2.расчетная длительная  1.3. расчетная кратковременная

 5,73*1 *36 (4,85+0,9)*36  0,9*36*1

 206,28  

 207

 32,4

2. Перекрытие 2.1.полная нормативная 2.2. расчетная длительная  2.3.расчетная кратковременная 3.Колонны 3.1.нормативная 3.2.расчетная 4.Ригели 4.1нормативная 4.2расчетная

 6,45*36*1 (5,001+0,84)*36*1  1,56*36*1  0,3*0,3*4,2*25*1 18,9*1,1  0,3*0,45*6*25*2  40,5*1,1

 232,2     18,9   40,5

  210,27    20,79   44,55

  56,16

Всего


497,88

482,61

88,56


gf*=7.44/6,13=1,21

gf**=7,392/6,446=1,15

Расчет плиты перекрытия с круглыми пустотами

Для изготовления плиты приняты следующие материалы:

Бетон класса прочности В20 с коэффициентом условия работы бетона gb=0,9;

Напрягаемая арматура класса АIV;

Поперечная арматура класса ВрI;

Конструктивная арматура класса ВрI и АIII;

Строповочные петли из арматуры класса АI;

Способ натяжения арматуры - электротермический;

Номинальная ширина плиты 1,2 м.

Статический расчет плиты

Плита рассчитывается как свободно опертая однопролетная балка, загруженная равномерно - распределенной нагрузкой.

Схема опирания плиты


Расчетный пролет плиты

=5660-115=5565мм

где, Lоп - длина опирания плиты (Lоп=115 мм)

Lk - конструктивная длина плиты (Lк=5680мм)

Расчетная погонная нагрузка.

q\=q*BH=7,04*1,2=8,44 кН/м2,

где q - расчетная нагрузка на1м2 плиты покрытия или перекрытия (таб. 1.1 или 1.2 - наибольшее значение)

BH - номинальная ширина плиты.

Расчетная схема.

Определение максимального изгибающего момента и поперечной силы на опоре

Максимальный изгибающий момент

                     (2.1)


Поперечная сила

                       (2.2)


Расчет прочности плиты по нормальным напряжениям

Прочностные характеристики материалов

Бетон В20:

R'b=Rb*gb=1,15*0,9=1,035 кН/см2


Арматура АIV; Rs=51кН/см2

АI; Rs=22,5кН/см2

Геометрические характеристики сечения

Определение количества пустот в поперечном сечении плиты

nпустот=(bк-30)/(d+tр)=1190-30/159+25=6,0

принято 6 пустот.

где bк - конструктивная ширина плиты,

d - диаметр пустот (d=159мм),

tр=25мм - толщина стенки между пустотами.

Толщина крайнего ребра

 

tкр=((bк-30)-dпус*n=((1190-30)- 159*6=206 мм ,


где nпус - количество пустот


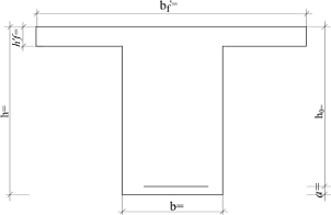
Расчетное сечение плиты - тавровое.

Ширина полки тавра bf\=bK-2*15=116 см

Ширина ребра тавра b=bf\-(d*nпус)=21 см

Высота полки тавра hf\=(h-d)/2=3 см

Величина защитного слоя aз=3 см

Рабочая высота сечения h0=h-a=19 см

h=22 см

Случай расчета таврового сечения.

Устанавливаем расчетный случай (определяем граничный момент)

баня фундамент кровля колонна

            (2.3)

М=64,00кНм<65,64кНм

Следовательно, применяется первый случай расчета таврового сечения.

Табличные коэффициенты

А0=М/(Rb* b,f *h02)

А0=64,00*102/1,035*116*192=0,14

x=0,07, λ=0,96

x=0,07≤ ξR =0,415;

Коэффициент γs6 определяется по формуле

γs6=λ-(λ-1)*(2ξ/ξr-1)λ

где λ=1,2- для арматуры класса АIV

ξR =0,415

γs6=1,2-(1,2-1)*(2*0,07/0,415-1)=1,26>1,2 принято γs6=1,2

Площадь напрягаемой арматуры определяется по формуле:

= M/(Rs* γs6 *h0* λ) (2.6)

= 64,00*102/(51*1,26 *19*0,965)=5,43 см2

Увеличиваем площадь арматуры на 30%, т.к. в дальнейшем расчеты по трещиностойкости и деформации не производим.

Аsp=1,3*5,43=7,05 см2

Принята арматура 5ø14АIV; Asp=7,68 см2

Расчет прочности плиты по наклонному сечению

Проверяем достаточность принятых размеров сечения и класса бетона:

 (2.7)

Размеры сечения достаточны

Проверяем условие прочности наклонного сечения:

                   (2.8)

следовательно, прочность наклонного сечения недостаточна, необходим расчет поперечной арматуры.

Принимаем поперечные стержни и задаемся количеством каркасов.

Ø4 ВрI; Rsw=29.5кН/см2

количество каркасов n=3

Asw=0,50 см2

Усилия на единицу длины :

qsw=Q2max/4*gb2Rbt*b*ho2                    (2.9)= 23.482 /8*0,084*21*192=0,10 кН/см

Шаг поперечной арматуры

а) требуемый шаг

Sтр=Rsw*Asw/qsw                                   (2.10)

Sтр=29.5*0,50/0,10=147.5 см

б) максимальный шаг

Smax=1,5 *R'bt*b* ho2/ Q                        (2.11)

Smax=1,5*0,084*21*192/23.48=40.68 cм

в) конструктивный шаг

При h£450;Sкон£h/2=22/2=11 см Sкон1/4=100мм

Принимаем шаг стержней на расстоянии ¼ L от опоры S=10 см.

В средней части поперечную арматуру не устанавливаем, т.к. h<30 см.

Принимаем поперечную арматуру Æ4 ВрI с шагом S=100мм

Расчет строповочной петли

Вес плиты

Gпл=1,2*5,68*3=20.44 кН

где q - собственный вес 1м2 плиты без конструкции пола.

Нагрузка на одну петлю

N=Gпл*kg/n                           (2.13)

N=20,44*1,5/3=10,22

где kg=1,5 - коэффициент динамичности (СНиП2);

n - количество петель (условно принимаем 3 петли).

N=10,22кН

Площадь арматуры

= N/(Rsw*gs1*gs2)                           (2.14)=10,22/22,5*0,8*0,6= 0,94 см2

где gs1=0,8; gs2=0,6 (по СНиП 2.03.01-89*) -коэффициенты условия работы

Принимаем строповочную петлю диаметром Æ 12 AI с As= 1,131 см2.

Расчет фундамента под колонну среднего ряда

Исходные данные для расчета

Бетон класса В15;

Коэффициент условия работы бетона gb2=1;

Арматура подошвы фундамента класса АII;

Нагрузка расчетная полная: N=571.16 кН; (см. таб. 1.3),

Нагрузка нормативная полная: Nn=497.88 кН; (см. таб. 1.3);

Глубина заложения фундамента d=1,6 м.

Расчетные характеристики материалов

Расчетное сопротивление бетона Rbt=8,4 МПа=840 кН/м2;

Расчетное сопротивление арматуры класса AII:

Rs=280 МПа=28 кН/см2.

Расчетное сопротивление грунта (по зданию) R0=240 кН/м2.

Предварительно определяем площадь подошвы фундамента

;                    (4.1)

Афтр=497.88/(240-20*1,6)=2,40 м2

=20кН/м3 - осредненная плотность грунта и бетона

Принимаем квадратную форму подошвы фундамента аф=bф, тогда

=1,54 м

Предварительно принимаем аф=bф=1,6 м

Расчетное сопротивление грунта

 (4.2)

R=240[1+0,05(1,6-1)/1]*[1,6+2/2*2]=222,48м2


Окончательно определяем площадь подошвы фундамента

;                         (4.3)

Афтр=497,88/(222,48-20*1,6)=2,61 м2

Принимаем квадратную форму подошвы фундамента аф=bф, тогда

=1,62м

Окончательно принимаем аф=bф=1,7 м

Аф= аф2=2,89 м2

Проверка условия Рср<R

Рср=Nn/Аф+rср*d1=497,88/2,89+20 *1,6=204,27 кН/м2

rср=204,27 кН/м2<R=222,48кН/м2

размеры подошвы подобраны

Определение высоты фундамента

Рабочая высота сечения

                 (4.7)

Ргр=N/Аф=571,16/2,89=197,63 кН/м2

Высота фундамента

=0,74+0,07=0,81м

где аз=70 мм - величина защитного слоя

Высота фундамента из конструктивных соображений

h= hcт +250=650+250 = 900 мм.

где hcт1,5 h=1,5*300=450 мм,       принимаем hcт=650 мм

Из условия глубины заложения фундамента:

h4=d-x

h4=1,6-0,25=1,35 м

Принято h=1,35 м

Конструирование фундамента

Высота ступеней принята 300 мм


Количество ступеней - 1

Ширина обреза - 900 мм

Расчет деталей арматуры подошвы фундамента

Сечение I-I

Момент сечения 1-1

М1-1=0,125*197.63(1.7-0,3)2*1.7=82.31кНм

Площадь арматуры в сечении 1-1

А1-1=М1-1/(0,9*Rs*h01)                                    (4.6)

А1-1=8231/3603,6=2,55 см2

Сечение II-II

Момент сечения 2-2

М2-2=0,5*Ргр*LII*bф                               (4.7)

М2-2=0,5*197.63*0,42*1.7=26.87 кНм

Площадь арматуры в сечении 2-2

А2-2=М2-2/(0,9*Rs*hoII)                                    (4.6)

А2-2=26.87*100/0,9*28*23=4,6 см

Из трех значений площадей арматуры принимаем наибольшее:

As max=4,6 см2.

Принимаем шаг стержней 200мм и определяем количество стержней

ncт=(nшцел)+1=8+1=9 шт

где nшцел=аф-100мм/S=1700-100/200=8шагов

Принято 9 стержней диаметром 9 мм, с As=5,72 см2, исходя из минимального диаметра армирования.

Литература

1.   СНиП 2.01.07-85* Нагрузки и воздействия / Госстрой СССР. - М.: ЦИТП Госстроя СССР 1987 г. (с изменениями 29 мая 2003 г.).

2.       СНиП 2.03.01-84* Бетонные и железобетонные конструкции / Госстрой СССР - М.: ЦИТП Госстроя СССР, 1989 г.

.        СНиП 2.02.01-83 Основание зданий и сооружений / Госстрой СССР.-М.: Стройиздат, 1985 г.

.        СНиП II-3-79** Строительная теплотехника / Госстрой СССР. - М.: ЦИТП Госстроя СССР, 1986 г.

.        Доркин В.В., Добромыслов А.Н. Сборник задач по строительным конструкциям: Учебник для техникумов. - М.: Стройиздат, 1986г.

.        Цай Т.Н., Бородич М.К., Мандриков А.П. т.1 Строительные конструкции - М.: Стройиздат, 1984г.

.        Цай Т.Н. т.2 Строительные конструкции - М.: Стройиздат, 1985г.

Похожие работы на - Расчет и конструирование панели перекрытия круглыми пустотами и фундамента под колонну среднего ряда

 

Не нашли материал для своей работы?
Поможем написать уникальную работу
Без плагиата!
Без нейросетей!