Проектирование поперечной рамы каркаса промышленного здания с мостовыми кранами
Министерство образования и науки
Российской Федерации
Федеральное государственное бюджетное
образовательное учреждение высшего профессионального образования
«Воронежский государственный
архитектурно-строительный университет»
Строительный факультет
Кафедра металлических конструкций и
сварки в строительстве
Курсовой проект
стальной
каркас промышленного здания
Выполнил:
Белых А.А., гр.145б
Приняла: доц.
Беляева С.Ю.
Оглавление
Введение
Выбор
мостового крана
Компоновка
поперечной рамы
Назначение
вертикальных размеров
Назначение
горизонтальных размеров
Сбор
нагрузок на поперечную раму
Постоянные
нагрузки
Снеговая
нагрузка
Ветровая
нагрузка
Крановая
нагрузка
Статический
расчёт рамы
Расчет
внецентренно-сжатой колонны
Расчетные
сочетания усилий
Расчетные
длины колонны
Расчет
верхней части колонны
Расчет
нижней части колонны
Расчёт
решётки нижней части колонны
Расчёт
узла сопряжения верхней и нижней частей колонны
Расчет
базы колонны
Расчет
анкерных болтов
Расчёт
фермы покрытия
Сбор
нагрузок на ферму
Подбор
сечения растянутых стержней фермы
Подбор
сечения сжатых стержней фермы
Проверка
сечений стержней фермы
Расчет
узлов фермы
Расчет
промежуточных узлов фермы
Расчет
опорного узла фермы
Расчет
узла сопряжения верхнего пояса фермы с колонной
Библиографический
список
Введение
Металлические конструкции применяются сегодня во всех видах зданий и
инженерных сооружений, особенно если необходимы значительные пролеты, высота и
нагрузки. Потребность в металлических конструкциях чрезвычайно велика и
непрерывно увеличивается. Базой для удовлетворения этой потребности являются
большой объем производимой в стране стали, заводы металлических конструкций и
специализированные монтажные организации, оснащенные современной техникой,
специализированные проектные организации и научно-исследовательские институты .
В виде цельнометаллических или смешанных каркасов, в которых по
железобетонным колоннам устанавливаются металлические конструкции покрытия
здания и подкрановые пути выполняют конструкции одноэтажных промышленных зданий.
Цельнометаллические каркасы в основном применяются в зданиях с большими
пролетами, высотой и оборудованных мостовыми кранами большой грузоподъемности.
Каркасы промышленных зданий являются наиболее сложными и металлоемкими
конструктивными комплексами.
Цель курсового проекта - на примере проектирования поперечной рамы
каркаса промышленного здания с мостовыми кранами закрепить знания по
компоновке, способом формирования пространственного каркаса здания, сбору
нагрузок и определению расчетных усилий в элементах каркаса; сформировать
навыки расчеты центрально- и внецентренно-сжатых стержневых конструкций,
конструированию их узлов и элементов.
Выбор мостового крана
=30т
Крановая нагрузка 6К - нормальный рабочий режим работы (Н)
Краны типа Н имеют исполнение типа Б - управление из кабины
Основные параметры и размеры кранов типа Н указаны в Табл.2 ГОСТ 25711-83
По параметру Q=30т ведется
подбор крана.
Выбираем кран НБ-2-32/5-22,5-12,5/20-0,16/0,2-0,63-1,25-У1
Грузоподъёмность крана:Q=32/5т
Размеры:
Пролёт: Lк=22500мм
Нкр=2750мм
B1=300мм
Ширина крана:B2=6300мм
База крана: К=5100мм
Нагрузка на колесо:Fк=260кН
Вес тележки:Gт=87кН
Вес крана с тележкой:Gк=350кН
Тип кранового рельса: КР-70
Высота кранового рельса:hкр.=120мм
Высота подкрановой балки:hп.б.=750мм
Компоновка поперечной рамы
Назначение
вертикальных размеров
Определение расстояния от головки крана рельса до низа несущей
конструкций покрытия:
Н2= Нкр+ 100мм + f ,
Н2= 2750 + 100 + 200 = 3050мм.
Нкр - по ГОСТ25711-83,
мм - допуск на изготовление крана,
f =
200-400мм - прогиб конструкций покрытия и связей.
Окончательно, Н2назначаем кратно 200мм с целью унификации, Н2
= 3200мм.
Полезная высота цеха:
Н0= Н2 + Нг.р.,
Н0= 3,2 + 9,4 = 12,6м,
Нг.р. - отметка головки подкранового рельса по заданию.
С целью унификации, кратности габаритов ограждений конструкции, Н0принимаем
кратным 600мм, Н0=12,6м.
Уточняем отметку головки кранового рельса:
Нг.р.(уточ.)=Н0 -Н2 ≥ Нг.р.(зад.),
,6 - 3,2 = 9,4 =9,4 - условие выполнено.
Определим высоту верхней части колонны:
Нв= Н2+ hкр. +hп.б.,
Нв=3,2+0,12+0,75=4,00м.
Определим высоту нижней части колонны:
Нн= Н0- Нв+hзаглуб.,
заглуб. = 600мм при Q=32/2т.
Нн=12,6-4,00+0,6=9,2м,
Определим общую высоту колонны:
Н= Нн+ Нв ,
Н=9,2+4,00=13,2м.
Высота фермы на опоре (сечение из парных уголков) при пролёте здания L=24м:
hф=2,25м.
Назначение горизонтальных размеров
Привязка наружной грани колонны к опорной оси: a=250мм - при режиме работы крана - 6к и грузоподъёмностью Q=32/2т, а для унифицированных ферм aф=200мм.
hв - высота сечения верхней части
колонны:
в=
а + аф ,
в=250+200=450мм,
По условию жёсткости рамы:
Определим
расстояние от продольной оси до оси подкрановой ветви е1:
е1=B1+(hb - a)+k,
е1=300+(450-250)+75=575мм,
k ≥ 75мм - для режима крана 6к. Окончательно, е1=750мм.
hн - высота сечения нижней части колонны:
н= а +е1 ,
н=250+750=1000мм,
По
условии жёсткости рамы:
Расчётный
пролёт мостового крана Lкдолжен
получиться как в ГОСТ25711-83:
к=L-2×е1
к=24000-2×750=22500мм.
По
ГОСТ25711-83, Lкпри
наличии прохода - Lк=22,5м.
Сбор нагрузок на поперечную раму
Постоянные
нагрузки
1) Постоянная нагрузка - собственный вес металлических конструкций и вес
покрытия.
Сбор нагрузок на 1м покрытия:
|
Вид нагрузки
|
qн , кН/м2
|
γf
|
qр , кН/м2
|
|
1.Защитный слой из битумной мастики с топливным гравием, γ=21кН/м3, t=10мм
|
0,21
|
1,3
|
0,273
|
|
2.Трёхслойный гидроизоляционный ковёр
|
0,12
|
1,2
|
0,144
|
|
3.Асфальтовая стяжка, γ=18кН/м3, t=20мм
|
0,36
|
1,3
|
0,468
|
|
4.Утиплитель из минераловатных плит, γ=3кН/м3, t=120мм
|
0,36
|
1,2
|
0,432
|
|
5.Пароизоляция, один слой рубероида
|
0,04
|
1,2
|
0,048
|
|
6.Стальной профилированный настилt=0,6мм
|
0,09
|
1,05
|
0,0945
|
|
7.Собственный вес стропильной ферм, γ=0,3кН/м2
|
0,3
|
1,05
|
0,315
|
|
8.Вес связей шатра, γ=0,07кН/м2
|
0,07
|
1,05
|
0,0735
|
|
Всего
|
1,55
|
|
1,85
|
Линейная расчётная нагрузка на ригель рамы: qпост=qр×b×γn/cosα ,
b -
шаг рам,
γn- коэффициент надёжности по надёжности для нормального
уровня ответственности, γn=1,0.
qпост=1,85×6×1,0=11,1кН/м2
Fn - опорные реакции ригеля от постоянной нагрузки
n =
n =
=133,2кН
Снеговая нагрузка
Расчётная снеговая нагрузка на 1м2 в горизонтальной проекции
кровли: S=Sg×μ,
S=1,8×1=1,8кН/м2,
μ - переход от веса снега на земле к весу
снега на кровли, μ=1,0,
Sg - расчётное значение нагрузки на 1м2 горизонтальной
поверхности, в зависимости от снегового района, Sg=1,8кН/м2 - для IIIснегового района.
Линейная расчётная снеговая нагрузка: qs=S×b,
qs=1,8×6=10,8кН/м.
Fs - опорные реакции ригеля от постоянной нагрузки Fs =
Fn =
=129,6кН
Ветровая нагрузка
Ветровая нагрузка равномерно распределена до отметки 5м, а затем
увеличивается по мере увлечение высоты здания. Значение ветрового давления на
отметке z от поверхности земли: w=wo×k×ce×γf , где
wo- нормативное значение ветрового давления, зависящее от ветрового района.
Для IIветрового района wo=0,3кПа,
k -
коэффициент, учитывающий изменение ветра по высоте, зависящий от типа
местности, по СНиП"Нагрузки и воздействия" kэкв =0,61
се - аэродинамический коэффициент, зависящий от конфигурации
здания.се=+0,8 - для активного направления движения ветра и се=-0,6
- для пассивного направления движения ветра,
γf - коэффициента надёжности по ветровой нагрузки, γf =1,4
Таким образом, расчётная ветровая активная распределённая нагрузка:
wа=0,3×0,61×0,8×1,4×6=1,23кН/м.
Расчётная ветровая пассивная распределённая нагрузка:
wп=0,3×0,61×0,6×1,4×6=0,93кН/м.
Расчётное значение сосредоточенной нагрузки от ветра на покрытие:
а =wo
×сe×
f×b×hф ,
а=0,3×
0,8×1,4×6×2,25=2,835кН.
п =wo
сe×
f×b×hф ,
п=0,3×0,625×0,6×1,4×6×2,25=2,126кН.
Крановая нагрузка
Крановая нагрузка. Состоит из трёх составляющих: вертикального давления,
которое носит динамический характер; горизонтальную составляющую вдоль
кранового пути, которое передаётся на связи, ниже уровня подкрановой балки
(между колоннами). Вертикальное давление определяется от двух сближённых кранов
при наиболее невыгодном их положении на подкрановых балках, при этом, тележка
приближена с грузом максимальной грузоподъёмности на крюке. Расчётное давление
на колонну определяют по минимальному влиянию опорных реакций подкрановых
балок.
max=γf×ψ×ΣFi×yi+Gп.б.×γfм.к.+gн×γf н×bт×b,
γf =1,1 - коэффициент надёжности по
крановой нагрузки,
ψ -коэффициент сочетаний, учитывающий
разность совпадения нормативных значений нагрузок у двух сближенных кранов, ψ =0,85 - для режима работы крана 6к
Fi = - нормативное давление, передаваемое каждым колесом, по ГОСТ25711-83,
yi - ординаты линий влияний
ΣFimax×yi=507кН
Gп.б.
- вес подкрановой
балки,
п.б.=
,п.б.=
=18кН
- полезная нормативная нагрузка на тормозной площадке, gн=1,5кН/м2,
γf н =1,3 - при gн<2,
bt- ширина тормозной площадки, bt ≈hн =1,00м,
b -
шаг крана, b=6м.
Dmax=1,1×0,85× 507+18×1,05+1,5×1,3×1×6=504,65кН
Минимальное давление, передаваемое на другой ряд колонн:
min=γf×ψ×ΣFkmin×yi+Gп.б.×γfм.к.+gн×γf н×bт×b,кmin=
-Fкmax ,
кmin=
- 507=72кН,
ΣFimin×yi=140,4кН
- вес крана с тележкой по ГОСТ25711-83,
Q -
грузоподъёмность крана,
n0 - количество колёс с одной стороны
крана, n0 =2шт.
Dmin=1,1×0,85×140,4+18×1,05+1,5×1,3×1×6=161,88кН,
Поскольку вертикальное давление приложены по оси подкрановой ветви, т.е.
с эксцентриситетом по отношению к центру тяжести нижний части колонны. В раме
возникают сосредоточенные моменты:
max =Dmax×eк ,
max =504,65×0,5=252,325кНм,
min =Dmin×eк ,
min =161,88×0,5=80,94кНм,
к=(0,45¸0,55)×hн , eк=0,5×1,0=0,5м.
Нормативная горизонтальная сила, передаваемая отдельным колесом:
,
10,015кН,
Расчётная горизонтальная сила, передаваемая на раму:
Т=γf×ψ×Σ
×yi,
Т=1,1×0,85×20,88=19,53кН,
λ=
=
=0,31
α=
=
=0,24
m=
5, m=
25
Статический расчёт рамы
Выполним расчёт при помощи программы Rama.exe.
Исходные данные: L=24;
Н=14,85; λ=0,31; α =0,24;m=5; n=25; g=11,1; ek =0,56 ; Mmax=
252,325; Mmin= 80,94; T=19,53; qw=1,23; wa=2,835.
Расчет внецентренно-сжатой колонны
Расчетные
сочетания усилий
Расчётное сочетание усилий для верхней части колонны из сечений: 1-1 и
2-2:
M=-229,2кНм N=-262,07кН;
Расчётное сочетание усилий для нижней части колонны из сечений: 3-3 и
4-4:
M-
=-179,8кНм; N=-644,51кН
M+=291,85кНм; N=-716,261кН
Расчетные
длины колонны
- Расчётная длина колонны в плоскости рамы определяем отдельно для нижней
и верхней части колонны:
=
,
=3×4000 =12000мм,
=
,
=2,4×9200=22080мм,
Для колонны с нижнем защемлением концом, и верхнем закреплённым только от
поворота, при соотношениях:
0,4352≤ 0,6 , при отношении β=
,
Nв=Nпост+Nснег;Nв=139,86+135,79=275,65кН,
Nн=Nв+Dmax ;Nн=139,86+504,65=644,51кН,
β=
2,34<3 - условие не выполнено,
отсюда:
определяем
и
по Прил.6 СНипII-23-81
принимаем в зависимости от отношения
и
Для
условия, при котором верхний конец колонны закреплен от поворота и возможно его
свободное перемещение по горизонтали
подбираем
по Табл.68 СНипII-23-81 по интреполяции.
=2,4
Принимаем
и
0,2 >
0,1 - условия выполнено.
Расчётная
длина колонны из плоскости рамы определяем отдельно для нижней и верхней части
колонны:
=
,
=9200мм
=
,
=4000-750=3250мм
Расчет верхней части колонны
рама ферма нагрузка колонна
Принимаем сечения в виде составного сварного двутавра высотой hв
Определим ядровый момент:
Mядр=N×(
)
ρ=
= 0,37
hв=0,37× 45=16,65см.
Принимаем
0,7. Эксцентриситет e=
=
87,46см.
Mядр=262,07×(
)=29154,16кНсм.
Рис.6.Компановка верхней части колонны.
Определим момент сопротивления сечения:
yопределим
по Табл.51 СНиПII-23-81*, Ry = 240МПа=24
, γс = 1,0.
при
4<t<20 для стали С255
Требуем
момент инерции:
Jx=
=
=
28520,37см4;
Jx=Jw+
.
Принимаем
tw=8мм, tf = 25мм, т.к. hв =45<50см, то hw =hв -2tf.
hw
=45-2
2,5=40см.
w=
=
=4266,67см4.
Требуемый
момент инерции полок:
= Jx-Jw ,
=28520,37-4266,67=23925,64см4,
≈2А
→ Аf =
.
Требуемая
площадь пояса: Аf =
25,88см2.
Назначим
ширину полки из геометрических условий: bf ≥
=
=16,25см2
.
Принимаем
bfпо ГОСТ82-70: bf
=17см.
Уточним
толщину полки tf ≥
=
1,52см.
Окончательно,
tf =2,5см, bf
=17см, hw =hв-2tf = 40см, tw=0,8см
Определим
геометрические характеристики подобранного сечения.
)
Момент инерции:
Jx=
+2×bf×tf×
,
Jx=
+2× 17× 2,5×(20+1,25)2=42649,48см,
Jy=2
=
=2047,08см4.
)
Площадь сечения:
А=tw×hw +2×tf×bf =0,8× 40+2× 2,5× 17=117см2.
)
Радиус инерции:
ix=
=19,19см,iy=
=4,18см.
)
Момент сопротивления сечения:
Wx=
=
1895,53см3
)
Радиус ядра сечения:
ρx=
=
=16,2см.
)
Гибкость стержня:
λx
=
=
=62,86;
λy =
=
=77,75
)
Условная гибкость (в плоскости рамы):
=
=62,86×
2,1
=2,06× 104МПа=2×104
.
Проверка
местной устойчивости полки выполненается по Табл.29
СНиПII-23-81.
(0,36+×
)×
,
- свес
пояса.
=8,3см.
(0,36+0,1×2,1)× 29,93=3,32≤ 17,06-
условие выполнено.
Местная
устойчивость стенки при внецентренном сжатии зависит от характера распределения
напряжений в ней.
Определяем
коэффициент α
=
.
σ =
10,748+2,24=12,99кН/см2
=
10,748-2,24=8,508кН/см2
α =
= 0,35
Т.к.
α≤0,5, то по Табл.27 СНиПII-23-81
Т.к.

-
условие выполняется
Общая
устойчивость в плоскости поперечной рамы:
,
-коэффициент
изгиба при внецентренном сжатии (по табл.74
СНиПII-23-81*)
в зависимости от условной гибкости в плоскости рамы
и относительного приведённого эксцентриситета mef,
ef =ηm
η - коэффициент влияния формы сечения, определяемый по табл.73 СНиПII-23-81*;
m- относительный
эксцентриситет,
=
=
=5,4;
Из
условия 5<5,4<20 и
mef
=1,36× 5,4=7,34→
=0,16 ;
→13,99
24 - условие выполнено.
Проверка
устойчивости из плоскости действия момента:
,
-
коэффициент продольного изгиба при центральном сжатии, определяется по табл.72
СНиПII-23-81,
0,712.
с
- коэффициент учитывающий изгибно-крутильную форму потери устойчивости, т.е.
влияние момента в плоскости рамы на устойчивость колонны из плоскости рамы в
зависимости от относительного эксцентриситета
mx =
,
- момент
в средней третьи расчётной длины.
)
,
кНсм
,6кНсм>11460кНсм
mx =
=4,452< 5 →вычисляем с(п.5.31СНиП II-23-81)
по формуле:
с=
;
α=0,65+0,05×mx=0,65+0,05× 4,452=0,873;
β=1,0;
с=
0,205;
кН/см2
кН/см2<
24кН/см2 - условие выполнено.
Расчет нижней части колонны
Нижняя часть колонны состоит из двух ветвей ,объединённые решёткой. Ветви
выполняют из прокатного двутаврового типа.
Решётчатая колонна работает как ферма, причём Ми Nраспределена между ветвями, вызывая в них центральное сжатие.
Усилие в ветвях:
подкрановая:
=
,
=
= 502,055кН,
наружная:
=
,
=
= 649,98кН,
Из полученных усилий для дальнейшего расчёта ветви принимаем
максимальным:
=649,98кН.
Определяем требуемую площадь ветви из условия устойчивости:
→
≥
,
- коэффициент продольного изгиба, задаёмся
0,8. Для обеспечение жёсткости нижней
части колонны из плоскости рамы, ширина сечения:
b=hI
=
920=30,66см=30см
≥
= 35,225см2.
Согласно сортаменту СТО прокатных двутавров, принимаем: I №30.
A=46,5см4;
Wx=472см3; Jx=7080см4;Jy=337см4
ix=12,3см; iy=2,69см.
Уточняем расстояние между центрами
тяжести ветвей:
=
,
y=100-
=93,25см.
Уточняем усилие в ветви:
=
,
=
=671,1кН.
Проверка устойчивости ветви из плоскости рамы:
Коэффициент
зависит от
= 74,8 →
=0,721, тогда:
- условие выполнено.
Проверка устойчивости ветви в плоскости поперечной рамы:
-
расстояние между узлами крепления решетки
)
по принципу равноустойчивости:
λв1=λy=
→
≈ λy
,
- дли панели решётки.
)Угол
наклона раскоса к ветви, желательно иметь в пределах: 40-50о , при α=45о→
=2y .
)Высота
траверсы hтраверсы=0,8hн=0,8× 100=80см.
Определим
количество панелей решётки:
=
,
= λy
=74,8× 2,69=201,222см, исходя из условия 1.
λy -
гибкость ветви из плоскости рамы,
-радиус
инерции ветви, согласно сортаменту.
n=
=4,16; из конструктивных соображений принимаем
количество панелей n=4.
Уточняем
длину панели решётки:
Принцип
равноустойчивости:
λв1=λy=
≤ 80кН
=78 ≤
80кН - условие выполнено.
Условие
устойчивости: по табл.72 СНиПII-23-81, зная λy=74,8находим
0,7506.
- условие
выполнено.
Расчёт решётки нижней части колонны
Решётка выполнена из одиночных уголков, сечением не менее 50x5. Решётка воспринимает поперечную
силу. Находим максимальное значение Qв сечении 4-4, принимая по 2 группе сочетания нагрузок: Q=-31,46кН
Определим поперечную силу по табл.3.9. методического указания:
для стали С255 - Q=0,3×2×AI =0,3×2× 46,5=27,9кН.
Для дальнейших расчётов принимаем максимальное значение: Q=31,46кН.
Определим усилие в раскосе: Nр=
.
α=420 → sinα=0,663
Nр=
= 23,52кН.
Требуемая площадь поперечного сечения в раскосе:
≥
,
задаёмся устойчивостью раскоса λ=100 → по табл.72 СНиП II-23-81,
= 0,542.
≥
= 2,41см2.Радиус инерции iтр =
=
1,4см.
Длина панели: lр= 140см.
Согласно сортаменту равнополочных уголков, принимаем уголок L75x6.
А=12,3см2;iy0 = 1,46см.
Проверка устойчивости ветви из плоскости рамы:
,
=0,75 - для равнополочных уголка.
Определяем максимальную гибкость уголка:
λmax=
=
=95,9.
Определяем
по табл.72 СНиПII-23-81 ,
=0,571.
24× 0,75=18
условие выполнено
Проверка устойчивости нижней части колонны как единого стержня в
плоскости рамы:
,
Определим модуль инерции единого стержня:
Jx=2Aв
+2J1;
J1=JyI=337см4;
Jx=2
46,5× 2173,89+674=202845,828см4.
Определим момент сопротивления сечения: Wx=
=
= 2175,29см3;
Определим относительный эксцентриситет нагрузки, действующий на единый
стержень: mx=
+
=
+
=1,86см.
Определим гибкость в зависимости от конструкции решётки, т.к. колонна в
плоскости рамы не имеет сплошного сечения, т.е. жёсткость повышена.
λef =
,
λx =
=
=47,28;x=
=46,7см ,
=10
= 10
= 15,03 ;
Аd= 2AL =2× 12,3=24,6см2;= 2AI=93см2;
λef =
=47,88
Определяем условную приведенную гибкость:
=
=47,88
=1,64.
Согласно табл.75СНиПII-23-81,
при
=1,64и mx = 1,86см :
=0,320.
24
- условие выполнено.
Проверка нижней части колонны как единого стержня из плоскости не
требуется, т.к. она обеспечивается устойчивостью отдельной ветви.
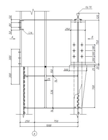
Расчёт узла сопряжения верхней и нижней частей колонны
Определим толщину траверсы из условия прочности на смятие
= 38кН/см2
для стали С 255 и t<10мм
= 1,025
=
=37,073кН/см2
=250мм
=250+2×25=300мм=30см
отсюда
>
=0,456см
Принимаем
=0,6см
Выполняем
проверку
=28,036кН/см2<
=37,073кН/см2 - условие выполняется.
Траверса
работает как балка двутаврового сечения загруженная усилиями M, N(2-2)
и Dmax
Пролёт
балки - расстояние между центрами тяжести ветвей в нижней части колонны.
- Определим
опорные реакции:
и
N - расчетные сочетания в сечении 2-2 дающие наибольшую
сжимающую силу
Сечение
2-2
(1,3)
M= -106,43кНм N = -275,65кН
=1
Определяем
высоту траверсы из следующих условий:
)
Минимальная высота траверсы
)
Из условия размещения швов, которыми траверса приваривается к подкрановой ветви
Ш1
Перед
расчетом задаемся: сварка полуавтоматическая, проволока СВ-08А
По
Табл. 56 СНиП II-23-81 определяем
для
проволоки СВ-08А
по Табл.
51 СНиП II-23-81 для листового проката стали С255
По
Табл. 34 СНиП II-23-81
для полуавтоматической
сварки проволокой
Расчёт
ведём по
при
и
по Табл.
38 СНиП II-23-81
)
Длина шва, которым приваривают траверсу к наружной ветви Ш2
)
Длина шва, которым приваривают вертикальное ребро к траверсе
)
Из условия прочности стенки траверсы на срез
по Табл.
1 СНиП II-23-81
по Табл.
51 СНиП II-23-81 для листового проката стали С255
)
Из условия прочности на срез стенки подкрановой ветви
Принимаем
Проверка
прочности траверсы на изгиб по нормальным напряжениям, не учитывая
горизонтальные рёбра.
условие
выполняется.
Расчет базы колонны
Расчет опорной части выполняется на комбинацию усилий дающих максимальную
продольную силу в ней.
Сечение
4-4 (1,4,6,12,20)
Задаёмся
для
крепления траверсы
По
ГОСТ 82-70 принимаем
,
Определение давления под опорной плитой
)
Участок консольный 1
)
Участок 2 плита опёрта по 3м сторонам
- участок
работает как консоль
)
Участок 3 плита опёрта по четырем сторонам
по Табл.
3.10 М.У.
По
Гост 82-70 принимаем
Плиту
надо фрезеровать с целью выравнивания
Высота траверсы
Расчет анкерных болтов
Необходимо
найти такое сочетание Mи N, при котором в анкерных болтах возникнет растяжение
и
в сечении 4-4
Усилие в анкерных болтах
Болты
испытывают сжатие, следовательно их можно принять конструктивно
. Отверстия под болты
Расчёт фермы покрытия
Сбор нагрузок
на ферму
Постоянная нагрузка
Снеговая нагрузка
Узловые моменты. В сечении 1-1 необходимо найти
расчетное сочетание с максимальным моментом.
( 1,4,8,14,20)
Представляем момент в виде пары сил
Расчетные
длины элементов фермы определяются в плоскости и из плоскости фермы
|
В и Н пояс
|
Опорный раскос
|
Промежуточный раскос и стойка
|
|
В плоскости
|
 
|
|
|
|
Из плоскости
|
 
|
|
|
-
расстояние между точками, которые не перемещаются вдоль здания в уровне
верхнего или нижнего пояса фермы. Зависит от принятой системы связей.
В
плоскости:
Верхний
пояс
Нижний
пояс
Опорный
раскос
Промежуточный
раскос
Стойки
Из
плоскости
Верхний
пояс
Нижний
пояс
Опорный
раскос
Промежуточный
раскос
Стойки
При
назначении сечения стержней фермы из равнополочных или неравнополочных уголков
руководствуемся принципом равноустойчивости
Толщина
узловой фасонки принимается одинаковой во всех узлах фермы и зависит от
наибольшего усилия в элементах решетки. (По приопорному раскосу).
Расчетные
усилия в стержнях фермы:
|
Элемент
|
Усилие, кН
|
|
1Н
|
+306,600
|
|
2Н
|
+657,000
|
|
3Н
|
+657,000
|
|
4Н
|
+306,600
|
|
5В
|
+101,875
|
|
6В
|
-525,600
|
|
7В
|
-525,600
|
|
8В
|
-700,800
|
|
9В
|
-700,800
|
|
10В
|
-525,600
|
|
11В
|
-525,600
|
|
12В
|
+30,755
|
|
13Р
|
+273,750
|
|
14С
|
-65,700
|
|
15Р
|
-166,151
|
|
16Р
|
+62,051
|
|
17С
|
-65,700
|
|
18Р
|
+54,75
|
|
19Р
|
-164,149
|
|
20С
|
-65,700
|
|
21Р
|
+273,75
|
|
22ОР
|
-383,25
|
|
23ОР
|
-383,25
|
-Толщина фасонок для всей фермы по наибольшему
усилию в стержне по Табл 3.8 М.У.
Подбор
сечения растянутых стержней фермы
1Н +306,6кН
Н +556,92кН
В +101,875кН
Р +273,75кН
Р +62,051кН
) Из условия прочности определяем требуемую площадь поперечного сечения
одного уголка
Для фасонного проката
стали
С255
по Табл.
6 СНиП II-23-81 для растянутых элементов в сварных соединениях.
Н
) По сортаменту выбираем уголок


-
принимаем из сортамента в зависимости от толщины фасонок
3) Выполняем проверку прочности
Условие выполняется.
) Проверка гибкости
Условие
выполняется
Н


Условие
выполняется
Для
нижнего пояса в целях унификации принимаем
В


Условие
выполняется
Р


Условие
выполняется
В
целях унификации для всех растянутых раскосов принимаем
16Р=13Р
Подбор сечения сжатых стержней фермы
В -525,6кН
В -525,6кН
В -700,8кН
С -65,7кН
С -65,7кН
ОР -383,25кН
Р -166,151кН
1)Из
условия устойчивости определяем
уголка.
Предварительно задаёмся: гибкость для поясов
и
коэффициент условия работы
,
гибкость для элементов решет
и
коэффициент условия работы
.
- так же и для опорного раскоса.
Для
фасонного проката стали С255
-
принимаем из сортамента в зависимости от толщины фасонок
В
)
По сортаменту уголков принимаем нужный профиль:


) Определяем фактическую гибкость:
-
коэффициент продольного изгиба Табл.72 СНиП II-23-81
4) Проверка устойчивости элемента
t=10
)
Проверка гибкости
В
=6В - Ð140х90х10
В
По
сортаменту уголков принимаем нужный профиль:


Определяем фактическую гибкость:

-
коэффициент продольного изгиба Табл.72 СНиП II-23-81
Проверка устойчивости элемента
t=10
Проверка
гибкости
В
целях унификации для верхнего пояса принимаем
ГОСТ 8510-86
ОР
Для
опорного раскоса


Определяем фактическую гибкость:
-
коэффициент продольного изгиба Табл.72 СНиП II-23-81
Проверка устойчивости элемента
t<10
Проверка
гибкости
Для опорных раскосов принимаем
ГОСТ 8509-93
14С=17С
Для
стоек


Определяем фактическую гибкость:
-
коэффициент продольного изгиба Табл.72 СНиП II-23-81
Проверка устойчивости элемента
t<10
Проверка
гибкости
Для стоек принимаем
ГОСТ 8509-93
15Р
Для
промежуточных элементов решетки


Определяем фактическую гибкость:
-
коэффициент продольного изгиба Табл.72 СНиП II-23-81
Проверка устойчивости элемента
t<10
Проверка
гибкости
Для сжатых раскосов принимаем
ГОСТ 8509-93
Проверка сечений стержней фермы
|
Номер элемента
|
Расчетное усилие, N, кН
|
Сечение
|
Площадь, А, см2
|
Радиус инерции, см
|
Расчетная длина, см
|
   Проверка сечения
|
|
|
|
|
|
|
|
|
    
|
|
|
|
|
|
|
|
|
|
|
1Н
|
+306,6
|
12,32,774,21600600216,6064000,95
|
|
|
|
|
|
|
|
|
|
|
|
|
2Н
|
+556,92
|
|
|
|
|
|
|
|
|
|
|
|
|
5В +101,87
25,35,137,7630060077,32128,240,7120,9519,67<
|
23,75
|
|
|
|
|
|
|
|
|
|
|
|
|
|
6В
|
-525,6
|
|
|
|
|
|
|
|
|
|
|
|
|
|
7В
|
-525,6
|
|
|
|
|
|
|
|
|
|
|
|
|
|
8В
|
-700,8
|
|
|
|
|
|
|
|
|
|
|
|
|
13Р +273,75
6,131,942,96300375154,644000,819,33<
15Р -166,15
10,62,784,03300375107,91131,220,4820,816,26<
22ОР -383,25
19,73,875,4837537596,89136,270,5620,9517,31<
14С -65,7
4,881,532,45180225117,65132,420,4240,815,87<
Расчет узлов фермы
Расчет промежуточных узлов фермы
Расчет промежуточных узлов сводится к определению требуемой длины швов,
которыми элементы решетки крепятся к узловой фасонке.
Усилие в элементах решетки передается на обушок и перо уголка
неравномерно:
на обушок
на перо
Требуемая
длина шва считается:
)
По металлу шва:
)
По металлу границы сплавления:
Перед
расчетом задаемся: сварка полуавтоматическая, проволока СВ-08А
По
Табл. 56 СНиП II-23-81 определяем
для
проволоки СВ-08А
по Табл.
51 СНиП II-23-81 для листового проката стали С255
По
Табл. 34 СНиП II-23-81
Расчёт
ведём по металлу шва
Для обушка:
при
и
по Табл.
38 СНиП II-23-81
Для пера:
ОР22
13Р

14С

15Р

16Р

17С=14С
Результаты расчета в сводной форме
|
Номер элемента
|
Сечение
|
N,кН
|
Шов по обушку
|
Шов по перу
|
|
|
|
N, кН
|
kf, мм
|
l, см
|
N, кН
|
kf, мм
|
l, см
|
|
ОР22
|
383,25268,275619,68114,97569
|
|
|
|
|
|
|
|
|
13Р
|
273,75191,625617,8482,12567,78
|
|
|
|
|
|
|
|
|
14С
|
65,745,9546,70319,7143,44
|
|
|
|
|
|
|
|
|
15Р
|
166,151116,31414,4649,84546,769
|
|
|
|
|
|
|
|
|
16Р
|
62,05143,43546,3818,64543,3
|
|
|
|
|
|
|
|
|
17С
|
65,745,9946,70319,7143,44
|
|
|
|
|
|
|
|
|
1Н
|
306,6214,62615,9491,9867,4
|
|
|
|
|
|
|
|
|
5В
|
101,87571,3148,4430,5644,19
|
|
|
|
|
|
|
|
|
8В
|
700,8490,561021,49210,24109,78
|
|
|
|
|
|
|
|
|
2Н
|
556,92389,851017,28167,08107,92
|
|
|
|
|
|
|
|
Расчет опорного узла фермы
Опорную реакцию фермы в узле воспринимает опорный столик, который
крепится к колонне. Рамный распор и горизонтальное усилие от изгибающего
момента воспринимает фланец узла и болты.

Опорный
момент в сечении 1-1 отрицательный.
,
следовательно горизонтальная сила прижимает фланец нижнего пояса к полке.
По
центру тяжести нижнего пояса действует распор рамы и сосредоточенная сила от
ветровой нагрузки на шатер.
-
максимальный момент в сечении 1-1 колонны из Табл. РСУ
-
поперечная сила в сечении 1-1
(1,4,8,14,20)
=18,76кН
Опорная
реакция фермы
Расчет
опорного столика
- полка
двутавра верхней ветви.
Длина
опорного столика определяется из требуемой длины швов, которыми они
привариваются к полке колонны.
Возможный
перекос фланца, а следовательно неравномерную передачу опорной реакции
учитываем увеличением ее в полтора раза.
-Определим
толщину фланца из условия его работы на смятие
По ГОСТ 82- 70 tфл =8мм
По скольку Н прижимает болты к колонне - их
диаметр назначаем конструктивно 20мм. Чтобы фланец не зависал на болтах, а
передавал реакцию на столик диаметр отверстия принимаем 24мм.
Болты по высоте фланца распределяем равномерно
соблюдая следующие условия: между центрами болтов min2,5dоmax8dо, от центра отверстия до
края min 2dо.
Расчет шва, которым опорная фасонка приваривается
к фланцу.
Шов
находится под давлением опорной реакции, горизонтальной силы Н, которая
приложена с эксцентриситетом по отношению к середине шва.
Свободная
длина фланца
Расчет узла сопряжения верхнего пояса фермы с колонной

Так как изгибающий момент отрицательный, Усилие Н пытается оторвать
фланец от колонны и болт работает на растяжение. Требуемая площадь одного
болта:
- Табл.
58 СНиП II-23-81
По
Табл. 62 СНиП II-23-81 выбираем болт
Опорный
фланец работает на изгиб как однопролётная балка защемлённая в точках по осям
болтов.
Максимальный момент
Во
фланце развиваются пластические деформации, что учитывается в расчете введением
пластического момента сопротивления.
Из
условия прочности
Отсюда
толщина фланца:
-
коэффициент учитывающий вероятность повышения
- высота
фланца, определяемая условиями конструирования болтового соединения, а так же
требуемой длинной шва крепления фасонки к фланцу.
Библиографический список
1. СНиП
II - 23 - 81*.Стальныеконструции
/ Госстрой Росси.- М:ГУП ЦПК,2003. - 90с.
. Стальной
каркас промышленного здания: учеб.- метод.пособие / А.В.Панин, Н.А. Лисицын;
Воронеж. гос. арх.-строит. ун-т. - Воронеж, 2008.-56с.
. СНиП
2.01.04-85*. Нагрузки ивоздействия/ Госстрой Росси.- М:ФГУП
ЦПК,2005. - 44с
. ГОСТ
82-70.Прокат стальной горячекатаный широкополосный универсальный. Сортамент.-
М:Изд-во стандартов 2003.
. ГОСТ
26020-83.двутавры стальные горячекатаные с параллельными гранями полок.
Сортамент.- М:Изд-во стандартов 1983.
. ГОСТ
21.502-2007.Система проектной документации для строительсва. -
М:Стандартформ,2008
. Металлические
конструкции: Учебник для студ.высш. учеб. Заведений / Ю.И. Кудишин, Е.И. Беленя
и др.; под редакцией Ю.И. Кудишина.- 8-е изд.,перераб. и доп.-М:Издательский
центр «Академия»,2006.-688 с.