Привод пластинчатого конвейера

  • Вид работы:
    Курсовая работа (т)
  • Предмет:
    Другое
  • Язык:
    Русский
    ,
    Формат файла:
    MS Word
    712,28 Кб
  • Опубликовано:
    2015-01-03
Вы можете узнать стоимость помощи в написании студенческой работы.
Помощь в написании работы, которую точно примут!

Привод пластинчатого конвейера

Введение


В машиностроении широко используются различные конструкции приводов. Привод - электросиловое устройство, приводящее в движение машину или механизм. Привод состоит из источника энергии, передаточного механизма и аппаратуры управления. Источником энергии служит двигатель (тепловой, электрический, пневматический, гидравлический и т.д.) или устройство отдающее заранее накопленную энергию (пружинный, инерционный, гиревой механизм и др.). Обычно важной частью привода является редуктор. Назначение редуктора - понижение угловой скорости и, соответственно, повышение вращающего момента ведомого вала по сравнению с ведущим. Редуктор - это механизм, состоящий из зубчатых или червячных передач, выполненный в виде отдельного агрегата и служащий для передачи вращения от вала двигателя к валу рабочей машины. Кинематическая схема привода может включать, помимо редуктора, открытые зубчатые передачи, цепные или ременные передачи. Перечисленные механизмы являются наиболее распространенной тематикой курсового проектирования.

Целью данного проекта является расчет привода пластинчатого конвейера, состоящего из электродвигателя, цилиндрического редуктора и цепной передачи. Расчет и конструирование редуктора предполагает определение геометрических и конструктивных размеров отдельных деталей, разработку их конструкций. На основании опыта создания подобных устройств и действующих стандартов приведены рекомендации по определению передаточных чисел каждой передачи, подбору материалов для зубчатых колес и валов, проверке деталей на прочность, разработке эскизной компоновки редуктора, конструированию корпуса, зубчатых колес, валов, крышек подшипников, выбору подшипников и шпонок.

1. Схема привода


В механический привод (рисунок 1) входят электродвигатель и редуктор. Электродвигатель соединяется с редуктором через муфту. Редуктор - двухступенчатый соосный, зубчатые передачи - цилиндрические прямозубые. Выходной вал редуктора соединен с валом пластинчатого конвейера через цепную передачу.

Рисунок 1 - Схема привода

2. Исходные данные


Окружное усилие на тяговой звездочке Ft = 30 кН.

Окружная скорость тяговой звездочки V = 0,25 м/с

Шаг тяговой цепи t = 100 мм.

Число зубьев тяговой звездочки z = 16 шт.

Срок службы L = 5 лет

Суточный коэффициент Ксут = 0,29

Годовой коэффициент Кгод = 0,6

Рисунок 2 - График нагрузки

3. Кинематический расчет привода


Мощность на приводном валу конвейера определим по формуле:

вых = Ft∙V = 30*0,25 = 7,5 кВт.

Подберем требуемый электродвигатель, для чего определим его потребную мощность.

Pпотр =

Где ηобщ - коэффициент полезного действия привода (КПД).

КПД привода в данном случае можно определить по формуле [1,стр.5]:

ηобщ = η3подш ∙ ηмуфт ∙ η2цил ∙ ηцеп

где

ηподш = 0,99 - КПД пары подшипников;

ηцил = 0,97 - КПД цилиндрической зубчатой передачи;

ηмуф = 0,98 - КПД муфты;

ηцеп = 0,95 - КПД цепной передачи;

ηобщ = 0,993*0,98*0,972*0,95 = 0,85

Тогда потребная мощность составит

Pпотр = 7,5 / 0,85 = 8,8 кВт.

Определим частоту вращения тяговой звездочки по формуле [1,стр.6]:

вых = 6∙104

где D - диаметр тяговой звездочки:

Dзв = = 100 / sin(180/16) = 512,6 мм.

Тогда nвых = 60000*0,25 / (3,14*512,6) = 9,32 об/мин

Предварительно зададимся передаточными отношениями.

Передаточное отношение цепной передачи предварительно принимаем:

Uцеп = 4

Передаточное отношение редуктора предварительно принимаем:

Uред = 20.

Тогда передаточное отношение тихоходной цилиндрической передачи определим по формуле:

Т = 0,9 = 0,9*= 3,94

Принимаем стандартное значение UТ = 4,0.

Тогда UБ = Uред / UТ = 20 / 4,0 = 5,0

Уточним передаточное отношение редуктора Uред = 5,0*4,0 = 20

Общее передаточное отношение привода:

общ = Uред×Uцеп = 20*4 = 80

Определим требуемое число оборотов двигателя:

nэ.тр. = nвых×Uобщ = 9,32*80 = 745,6 об/мин.

По таблицам, исходя из рассчитанных значений требуемой мощности и числа оборотов подберем электродвигатель. Выбираем электродвигатель серии АИР 160М8 (ТУ 16-525.564-84). Это асинхронный короткозамкнутый двигатель, закрытый, обдуваемый с параметрами: мощность Pдв=11 кВт, частота вращения nдв=727 об/мин.

Фактическое передаточное отношение:

ф = nдв / nвых = 727 / 9,32 = 78

Уточним передаточное отношение цепной передачи:

Uцеп = Uф / Uред = 78 / 20 = 3,9

Определим действительные числа оборотов валов привода.

введем нумерацию валов привода:

вал 1 - входной вал редуктора;

вал 2 - промежуточный вал редуктора;

вал 3 - выходной вал редуктора;

вал 4 - приводной вал конвейера.

Тогда получим:

n1 = nдв = 727 об/мин

n2 = n1 / UБ = 727 / 5 = 145,4 об/мин

n3 = n2 / UТ = 145,4 / 4 = 36,35 об/мин

n4 = n3 / Uцеп = 36,35 / 3,9 = 9,3 об/мин

Определим крутящие моменты на валах привода:

Крутящий момент на двигателе:

дв = 9550 = 9550*8,8/727 = 115,6 Нм.

Крутящий момент на входном валу редуктора:

1 = Tдв*ηмуф*ηподш = 115,6*0,98*0,99 = 112,2 Нм.

Крутящий момент на промежуточном валу редуктора:

2 = T1*UБ*ηцил*ηподш = 112,2*5*0,97*0,99 = 538,7 Нм.

Крутящий момент на выходном валу редуктора:

3 = T2* UT*ηцил*ηподш = 538,7*4*0,97*0,99 = 2069,25 Нм.

Крутящий момент на приводном валу конвейера:

4 = T3* Uцеп*ηцеп = 2069,25*3,9*0,95 = 7666,6 Нм.

 

4. Расчет передач редуктора

 

.1 Расчет тихоходной зубчатой передачи


Выбираем материал колеса и шестерни сталь 40Х с улучшением.

Твердость шестерни 280 НВ, твердость колеса 270 HB [1,стр.11].

Определим допускаемые контактные напряжения для шестерни и для колеса по общей зависимости [1,стр.12]:

[σ]H = σHlimZNZRZV/SH

где  σHlim - предел контактной выносливости [1,стр.12];

для шестерни σHlim1 = 2HB1 + 70 = 2*280 + 70 = 630 МПа.

для колеса σHlim2 = 2HB2 + 70 = 2*270 + 70 = 610 МПа.

Число циклов, соответствующих перегибу кривой усталости [1,стр.13]:

для шестерни NHG1 = 30(HB1)2,4 = 30*2802,4 = 2,24·107.

для колеса NHG2 = 30(HB2)2,4 = 30*2702,4 = 2,05·107.

Действительные числа циклов перемены напряжений [1,стр.13]:

Для колеса:

N2=60·n2·Lh

Где  n2 = 36,35 об/мин - частота вращения колеса.

Lh - время работы передачи:

Lh = L∙365Kгод∙24Kсут = 5*365*0,6*24*0,29 = 7621,2 ч.

Тогда

N2 = 60*36,35*7621,2 = 1,66·107.

Для шестерни:

1 = N2·U = 1,66*108*4 = 6,64·107.

Определим эквивалентное число циклов для шестерни и колеса по формуле:

 = μHN

где коэффициент μH определяется согласно циклограмме нагружения:

μH = ( )3∙= 1,03*0,2+0,753*0,6+0,33*0,2 = 0,459

Тогда

NHE1 = 0,459*6,64×107 = 3,05×107

NHE2 = 0,459*1,66×107 = 0,76×107

Коэффициент долговечности ZN определим по формуле [1,стр.13]:

для шестерни: ZN1 =  =  = 0,985

для колеса: ZN2 =  =  = 1,051

Коэффициент шероховатости ZR принимаем: ZR=1 (для шлифованных зубьев)

Коэффициент ZV учитывает влияние окружной скорости:

для передач работающих при малых окружных скоростях (v < 5м/с) ZV = 1

Минимальные значения коэффициента запаса прочности SH = 1,1 для зубчатых колес с улучшением [1,стр.13].

Тогда определим:

для шестерни: [σ1]H = 630*0,985*1*1/1,1 = 564,1 МПа.

для колеса: [σ2]H = 610*1,051*1*1/1,1 = 582,8 МПа.

Для дальнейших расчетов будем пользоваться величиной:

[σ]H = [σ1]H = 564,1 МПа.

Определим допускаемые напряжения изгиба для шестерни и колеса по общей зависимости [1,стр.14]:

[σ]F = σFlimYNYRYA/SF

где σFlim - предел выносливости на изгиб [1,стр.14]:

для шестерни σFlim1 = 1,75HB1 = 1,75*280 = 490 МПа.

для колеса σFlim2 = 1,75HB2 = 1,75*270 = 472,5 МПа.

Число циклов, соответствующих перегибу кривой усталости принимаем:

NFlim = 4 ·106.

Определим эквивалентное число циклов для шестерни и колеса по формуле:

 = μFN

где коэффициент μF определяется согласно циклограмме нагружения [1,стр.15]:

μF = ( )6∙= 1,06*0,2+0,756*0,6+0,36*0,2 = 0,307

Тогда

NFE1 = 0,307*6,64·107 = 2,038·107

NFE2 = 0,307*1,66·107 = 0,51·107

Так как NFE1 > NFlim и NFE2 > NFlim, то YN = 1

Коэффициент шероховатости YR для шлифованных зубьев согласно [1,стр.15] принимаем:

YR = 1

Коэффициент YA учитывает влияние одностороннего приложения нагрузки, для колес с улучшением и одностороннем приложении нагрузки согласно [1,стр.15] принимаем: YA = 1.

Значение коэффициента запаса прочности SF для улучшенных колес согласно [1,стр.15] принимаем: SF = 1,7

Тогда определим:

для шестерни: [σ1]F = 490*1*1*1/1,7 = 288,24 МПа.

для колеса: [σ2]F = 472,5*1*1*1/1,7 = 277,94 МПа.

Проведем расчет межосевого расстояния.

Принимаем коэффициент ширины Ψa=0,315 (при несимметричном расположении колес относительно опор [1,стр.17]).

Межосевое расстояние определим по формуле [1,стр.17]:

где Ka = 450 - коэффициент межосевого расстояния для прямозубых колес.

U = 4 - передаточное отношение передачи.

T1 = 538,7 (Н·м) - крутящий момент на ведущей шестерне.

KHβ = 1 - коэффициент концентрации нагрузки для прирабатываемых колес (при HB < 350)

Тогда

aw ≥ 450*(4+1)*= 248,3 мм

Принимаем aw = 250 мм.

Предварительный делительный диаметр колеса определим по формуле:

2’ = 2·aw·U / (U+1) = 2*250*4 / (4+1) = 400 мм.

Ширина b2 = Ψa · aw = 0,315·250 = 78,8 мм.

Принимаем b2 = 80 мм.

Определим величину модуля передачи по формуле [1,стр.20]:


Где Km = 6,8 - коэффициент модуля передачи (для прямозубых колес [1,стр.20]).

m ≥ = 2,96

Принимаем стандартный модуль m = 3,0 мм.

Суммарное число зубьев определим по формуле [1,стр.21]:

Σ = 2·aw / m = 2·250 / 3,0 = 167.

Число зубьев шестерни:

1 = zΣ / (U+1) = 167 / (4+1) = 33,4.

Принимаем z1 = 33.

Число зубьев колеса:

2 = zΣ - z1 = 167 - 33 = 134.

Фактическое передаточное число

ф = z2/z1 = 134/33 = 4,06.

Определяем размеры колес:

Делительные диаметры:

шестерни: d1 = z1·m = 33·3,0 = 99 мм.

колеса: d2 = 2aw - d1 = 2·250 - 99 = 401 мм.

Диаметры окружностей вершин:

шестерни: da1 = d1+2m = 99 + 2·3,0 = 105 мм.

колеса: da2 = d2+2m = 401 + 2·3,0 = 407 мм.

Диаметры окружностей впадин:

шестерни: df1 = d1 - 2,5m = 99 - 2,5·3,0 = 91,5 мм.

колеса: df2 = d2 - 2,5m = 401 - 2,5·3,0 = 393,5 мм.

Ширину шестерни принимаем b1 = 85 мм.

Силы в зацеплении определим по формулам [1,стр.23]:

Окружная:          Ft = 2·T2 / d2 = 2·2069,25·103 / 401 = 8620,9 Н.

Радиальная: Fr = Ft tgα = 8620,9·tg 20º = 3138 Н.

Окружная скорость в зацеплении:

 = π·d2·n2 / 6·104 = 3,14·401·36,35/6·104 = 0,8 м/с.

С учетом этого выбираем степень точности передачи - 9.

Для выбранной степени точности коэффициент KFα = 1,0

Коэффициент KFV = 1,4 (для HB<350)

Коэффициенты форма зуба принимаем согласно [1; табл.2.10]

YF1 = 3,77         (для z1 = 33)

YF2 = 3,59         (для z2 = 134)

Расчетное напряжение изгиба в зубьях колеса определим по формуле:

σF2 = KFα KFV YF2 Ft / (b2m) = 1,0*1,4*3,59*8620,9 / (80*3,0) = 180,5 МПа.

Расчетное напряжение изгиба в зубьях шестерни

σF1 = σF2YF1 / YF2 = 180,5*3,77 / 3,59 = 189,6 МПа.

Так как σF1 < [σ]F1 и σF2 < [σ]F2 то условие прочности на изгиб выполняется.

Произведем проверку зубьев по контактным напряжениям.

Определим действующее контактное напряжение по формуле [1,стр.23]:


Где KHα = 1,0 - коэффициент распределения нагрузки между зубьями

(для прямозубых колес).

KHV = 1,1 - коэффициент динамической нагрузки (для HB < 350).

Тогда получим:

σH = 436= 530,1 МПа.

Так как σН < [σ]Н = 564,1 (МПа) то условие прочности по контактным напряжениям выполняется.

 

.2 Расчет быстроходной зубчатой передачи


Выбираем материал колеса и шестерни сталь 40Х с улучшением.

Твердость шестерни 260 НВ, твердость колеса 250 HB [1,стр.11].

Определим допускаемые контактные напряжения для шестерни и для колеса по общей зависимости [1,стр.12]:

[σ]H = σHlimZNZRZV/SH

где σHlim - предел контактной выносливости [1,стр.12];

для шестерни σHlim1 = 2HB1 + 70 = 2*260 + 70 = 590 МПа.

для колеса σHlim2 = 2HB2 + 70 = 2*250 + 70 = 570 МПа.

Число циклов, соответствующих перегибу кривой усталости [1,стр.13]:

для шестерни NHG1 = 30(HB1)2,4 = 30*2602,4 = 1,88·107.

для колеса NHG2 = 30(HB2)2,4 = 30*2502,4 = 1,71·107.

Действительные числа циклов перемены напряжений [1,стр.13]:

Для колеса:

N2=60·n2·Lh

где n2 = 145,4 об/мин - частота вращения колеса.

Тогда

N2 = 60*145,4*7621,2 = 6,65·107.

Для шестерни:

1 = N2·U = 6,65*108*5 = 33,25·107.

Определим эквивалентное число циклов для шестерни и колеса по формуле [1,стр.15]:

 = μHN

1 = 0,459*33,25×107 = 15,26×107

NHE2 = 0,459*6,65×107 = 3,05×107

Коэффициент долговечности ZN определим по формуле [1,стр.13]:

для шестерни: ZN1 =  =  = 0,901

для колеса: ZN2 =  =  = 0,971

Коэффициент шероховатости ZR принимаем: ZR=1 (для шлифованных зубьев)

Коэффициент ZV учитывает влияние окружной скорости:

для передач работающих при малых окружных скоростях (v < 5м/с) ZV = 1

Минимальные значения коэффициента запаса прочности SH = 1,1 для зубчатых колес с улучшением [1,стр.13].

Тогда определим:

для шестерни: [σ1]H = 590*0,901*1*1/1,1 = 483,3 МПа.

для колеса: [σ2]H = 570*0,971*1*1/1,1 = 503,2 МПа.

Для дальнейших расчетов будем пользоваться величиной:

[σ]H = [σ1]H = 483,3 МПа.

Определим допускаемые напряжения изгиба для шестерни и колеса по общей зависимости [1,стр.14]:

[σ]F = σFlimYNYRYA/SF

где σFlim - предел выносливости на изгиб [1,стр.14]:

для шестерни σFlim1 = 1,75HB1 = 1,75*260 = 455 МПа.

для колеса σFlim2 = 1,75HB2 = 1,75*250 = 437,5 МПа.

Число циклов, соответствующих перегибу кривой усталости принимаем:

NFlim = 4 ·106.

Определим эквивалентное число циклов для шестерни и колеса по формуле:

 = μFN

1 = 0,307*33,25·107 = 10,208·107

NFE2 = 0,307*6,65·107 = 2,042·107

Так как NFE1 > NFlim и NFE2 > NFlim, то YN = 1

Коэффициент шероховатости YR для шлифованных зубьев согласно [1,стр.15] принимаем:

YR = 1

Коэффициент YA учитывает влияние одностороннего приложения нагрузки, для колес с улучшением и одностороннем приложении нагрузки согласно [1,стр.15] принимаем: YA = 1.

Значение коэффициента запаса прочности SF для улучшенных колес согласно [1,стр.15] принимаем: SF = 1,7

Тогда определим:

для шестерни: [σ1]F = 455*1*1*1/1,7 = 267,65 МПа.

для колеса: [σ2]F = 437,5*1*1*1/1,7 = 257,35 МПа.

Ранее принятое межосевое расстояние aw = 250 мм.

Ширину колеса принимаем конструктивно b2 = 35 мм.

Определим величину модуля передачи по формуле [1,стр.20]:


где Km = 6,8 - коэффициент модуля передачи (для прямозубых колес [1,стр.20]).

m ≥ = 1,95

Принимаем стандартный модуль m = 2,0 мм.

Суммарное число зубьев определим по формуле [1,стр.21]:

Σ = 2·aw / m = 2·250 / 2,0 = 250.

Число зубьев шестерни:

1 = zΣ / (U+1) = 250 / (5+1) = 41,67.

Принимаем z1 = 42.

Число зубьев колеса:

2 = zΣ - z1 = 250 - 42 = 208.

Фактическое передаточное число

ф = z2/z1 = 208/42 = 4,95.

Определяем размеры колес:

Делительные диаметры:

шестерни: d1 = z1·m = 42·2,0 = 84 мм.

колеса: d2 = 2aw - d1 = 2·250 - 84 = 416 мм.

Диаметры окружностей вершин:

шестерни: da1 = d1+2m = 84 + 2·2,0 = 88 мм.

колеса: da2 = d2+2m = 416 + 2·2,0 = 420 мм.

Диаметры окружностей впадин:

шестерни: df1 = d1 - 2,5m = 84 - 2,5·2,0 = 79 мм.

колеса: df2 = d2 - 2,5m = 416 - 2,5·2,0 = 411 мм.

Ширину шестерни принимаем b1 = 40 мм.

Силы в зацеплении определим по формулам [1,стр.23]:

Окружная:          Ft = 2·T2 / d2 = 2·538,7·103 / 416 = 2163,5 Н.

Радиальная: Fr = Ft tgα = 2163,5·tg 20º = 787,5 Н.

Окружная скорость в зацеплении:

 = π·d2·n2 / 6·104 = 3,14·416·145,4/6·104 = 3,2 м/с.

С учетом этого выбираем степень точности передачи - 9.

Для выбранной степени точности коэффициент KFα = 1,0

Коэффициент KFV = 1,4 (для HB<350)

Коэффициенты форма зуба принимаем согласно [1; табл.2.10]

YF1 = 3,7 (для z1 = 42)

YF2 = 3,59         (для z2 = 208)

Расчетное напряжение изгиба в зубьях колеса определим по формуле [1,стр.24]:

σF2 = KFα KFV YF2 Ft / (b2m) = 1,0*1,4*3,59*2163,5 / (35*2,0) = 155,3 МПа.

Расчетное напряжение изгиба в зубьях шестерни

σF1 = σF2YF1 / YF2 = 155,3*3,7 / 3,59 = 160,1 МПа.

Так как σF1 < [σ]F1 и σF2 < [σ]F2 то условие прочности на изгиб выполняется.

Произведем проверку зубьев по контактным напряжениям.

Определим действующее контактное напряжение по формуле:


Где KHα = 1,0 - коэффициент распределения нагрузки между зубьями

(для прямозубых колес).

KHV = 1,1 - коэффициент динамической нагрузки (для HB < 350).

Тогда получим:

σH = 436= 431,8 МПа.

Так как σН < [σ]Н = 483,3 (МПа) то условие прочности по контактным напряжениям выполняется.

 

5. Предварительный расчет валов

вал деталь редуктор шпоночный

Предварительно определим диаметр выходного конца ведущего вала по формуле

dв1 = (7…8)· = (7…8) · = 33,8…38,6 мм.

Принимаем dв1 = 36 мм.

Диаметр шейки вала под уплотнение примем dуп1 = 40 мм.

Диаметры подшипниковых шеек примем dп1 = 45 мм.

Диаметр вала принимаем d1 = 50 мм.

Шестерню выполняем заодно с валом.

Предварительно определим диаметр промежуточного вала по формуле:

в2 = (6…7)· = (6…7) · = 49…57 мм.

Диаметры подшипниковых шеек примем dп2 = 55 мм.

Диаметр вала принимаем d2 = 60 мм.

Диаметр посадки ведомого колеса и ведущей шестерни тихоходной передачи принимаем конструктивно dк2 = 60 мм.

Диаметр ступицы ведомого колеса быстроходной передачи:

ст2 = (1,2…1,6)·dк2 = (1,2…1,6)*60 = 72…96 мм.

Принимаем dст2 = 96 мм.

Длина ступицы ведомого колеса быстроходной передачи:

ст2 = (1,0…1,5)·dк2 = (1,0…1,5)*60 = 60…90 мм.

Принимаем Lст2 = 60 мм.

Предварительно определим диаметр выходного конца тихоходного вала по формуле:

в3 = (5…6)· = (5…6) ·  = 63,7…76,4 мм.

Принимаем dв3 = 70 мм.

Диаметр шейки вала под уплотнение примем dуп3 = 75 мм.

Диаметры подшипниковых шеек примем dп3 = 80 мм.

Диаметр посадки ведомого колеса принимаем конструктивно dк3 = 95 мм.

Диаметр ступицы ведомого колеса тихоходной передачи:

ст3 = (1,2…1,5)·dк3 = (1,2…1,6)*95 = 114…152 мм.

Принимаем dст3 = 148 мм.

Длина ступицы ведомого колеса быстроходной передачи:

ст3 = (1,0…1,5)·dк3 = (1,0…1,5)*95 = 95…142,5 мм.

Принимаем Lст3 = 100 мм.

6. Конструктивные размеры корпуса редуктора


Минимальный зазор от деталей вращения до стенок корпуса определим по формуле:

a = + 3

где L - наибольшее расстояние между внешними поверхностями деталей передач:

 = aw + daБ2/2 + daТ2/2

где daБ2 - наибольший диаметр ведомого колеса быстроходной передачи:

daБ2 = 420 мм.

daТ2 - наибольший диаметр ведомого колеса тихоходной передачи:

daТ2 = 407 мм.

Тогда

L= 250 + 420/2 + 407/2 = 663,5 мм.

a = + 3 ≈ 12 мм.

Расстояние между подшипниковыми опорами быстроходного вала предварительно примем

L1 = (2…3)b2Б = (2…3)*30 = 60…90 мм.

Принимаем L1 = 80 мм.

Расстояние между подшипниковыми опорами промежуточного вала предварительно принимаем:

L2 = b2Б + 5×a + b2Т + 4×B

где b2Т = 80 мм - ширина колеса тихоходной передачи,

B - ширина подшипников качения, предварительно задаемся B = 25мм.

Тогда L2 = 30+5*12+80+4*25 = 270 мм.

Расстояние между подшипниковыми опорами тихоходного вала предварительно принимаем

L3 = (1,5…2)*b2Т = (1,5…2)*80 = 120...160 мм.

Принимаем L3 = 160мм.

Определим толщину стенок корпуса и крышки:

δ = 1,8 = 1,8 = 12,1 мм.

Принимаем δ = 12 мм.

Определим толщины фланцев корпуса и крышки:

для корпуса: sf1 = 1,2·δ = 1,2*12 = 14 мм.

для крышки:sf2 = δ = 12 мм.

Определим толщину нижнего пояса корпуса при наличии бобышек:

0 = 1,5·δ = 1,5*12 = 18 мм.

Определим диаметр болтов, соединяющих крышку с корпусом:

 ³ 1,25 = 1,25 = 15,9 мм.

Принимаем болты с резьбой М16.

диаметр фундаментных болтов:

 1,25d = 1,25*16 = 20 мм.

Принимаем фундаментные болты с резьбой M20.

Принимаем диаметр болтов крышек подшипников принимаем конструктивно: d0 = 10 мм.

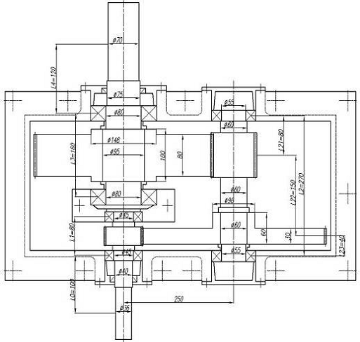
Предварительная компоновка редуктора показана на рисунке 3.

Рисунок 3 - Предварительная компоновка редуктора

7. Прочностной расчет валов

 

.1 Расчет быстроходного вала


На вал действуют силы от зубчатой прямозубой передачи и консольная сила, возникающая от несоосности концов валов соединяемых муфтой.

Крутящий момент на валу T = 112,2 Нм.

Силы, действующие в зубчатых зацеплениях:

Окружная:          Ft = 2163,5 Н.

Радиальная: Fr = 787,5 Н.

Консольная сила, действующая на выходной конец вала возникающая от несоосности концов валов соединяемых муфтой составит:

FK = (50…125) = (50…125)  = 530…1320 Н.

Принимаем FK = 800

Размеры согласно компоновочной схеме:

L11 = 40 мм; L12 = 40 мм. L0 = 100 мм.

Определим реакции в опорах из уравнений статики.

Рассмотрим действие сил в плоскости Y0Z.

SMx(D) = 0(L0+L11+L12)-RBy(L11+L12)+FrL12 = 0

Отсюда RBy = (FrL12+ FK(L0+L11+L12))/(L11+L12)= (787,5*40+800*(100+40+40))/(40+40) = 2193,8 Н.

SMx(B) = 0

RDy(L11+L12)-FrL11+FKL0 = 0

Отсюда

RDy = -(FrL11-FKL0)/(L11+L12) = -(787,5*40-800*100)/(40+40) = 606,3 Н.

Построим эпюру изгибающих и крутящих моментов в рассматриваемой плоскости.

 = -FKL0 = -800*0,1 = -80.

MC = -FK(L0+L11)+RByL11 = -800(0,1+0,04)+2193,8*0,04 = -24,2 Н*м.

MD = 0.

Рассмотрим действие сил в плоскости X0Z.

SMy(D) = 0

RBx(L11+L12)+FtL12 = 0

Отсюда RBx = FtL12/(L11+L12) = 2163,5*0,04/(0,04+0,04) = 1081,8 Н.

SMx(B) = 0(L11+L12)-FtL11 = 0

Отсюда RDx = FtL11/(L11+L12) = 2163,5*0,04/(0,04+0,04) = 1081,8 Н.

Построим эпюру изгибающих и крутящих моментов в рассматриваемой плоскости.

 = MB = 0.

MC = RBxL11 = 1081,8*0,04 = 43,3 Н*м.

MD = 0.

Суммарные реакции в опорах составят:

 = = = 2446 Н.

RD = = = 1240,1 Н.

Рисунок 4 - Эпюры изгибающих и крутящего моментов, действующих на вал

Согласно построенным эпюрам определим эквивалентные моменты для опасного сечения в точке B (шейка подшипника качения).

экв = + T = + 112,2 = 192,2 Н*м.

Предварительно принимаем материал вала - Сталь 40Х. Рассчитываем допускаемый диаметр вала, исходя из допускаемого напряжения на кручение ([τ] = 115 МПа) для материала вала по формуле:

d ≥  =  = 0,026 м = 26 мм.

Принятые ранее диаметры ведущего вала более допускаемых расчетных диаметров, следовательно, условие прочности выполняется.

 

.2 Расчет промежуточного вала


На вал действуют силы от быстроходной передачи:

Fr1 = 787,5Н.

Ft1 = 2163,5 Н.

и силы от тихоходной передачи:

Fr2 = 3138 Н.

Ft2 = 8620,9 Н.

Определим реакции в опорах для плоскости Y0Z из уравнений статики.

ΣM(B) = 0.- Fr2(L22+L23) - Fr1·L23 = 0.

Тогда= (Fr2(L22+L23) + Fr1·L23) / L2= (3138*(0,15+0,04)+787,5*0,04) / 0,27 = 2324,9 Н.

ΣM(A) = 0.·L21 + Fr1(L21+L22) - RByL2 = 0.= (Fr2·L21 + Fr1(L21+L22)) / L2

RBy = (3138*0,08 + 787,5*(0,08+0,15))/0,27 = 1600,6 Н.

Построим эпюру изгибающего момента действующего в плоскости Y0Z.

MC= -RAyL21 = -2324,9*0,08 = -186 Нм.= -RAy(L21+L22)+Fr2·L22 = -2324,9*(0,08+0,15)+3138*0,15 = -64 Нм= 0 Нм.

Определим реакции в опорах для плоскости X0Y из уравнений статики.

ΣM(B) = 0.

RAxL2 + Ft2(L22+L23) - Ft1·L23 = 0.= (Ft2(L22+L23) - Ft1·L23) / L2= (8620,9*(0,15+0,04) - 2163,5*0,04) / 0,27 = 5746 Н.

ΣM(A) = 0.

Ft2·L21 + Ft1(L21+L22) - RBxL2 = 0.= -(Ft2·L21 - Ft1(L21+L22)) / L2 = -(8620,9*0,08-2163,5*(0,08+0,15))/0,27 = -711,4 Н.

Построим эпюру изгибающего момента действующего в плоскости X0Y.

 = RAxL21 = 5746*0,08 = 459,7 Нм.

MD = RAx(L21+L22) - Ft2·L22 = 5746*(0,08+0,15) - 8620,9*0,15 = 28,4 Нм.

MB = 0 Нм.

Рисунок 5 - эпюры изгибающих и крутящего моментов промежуточного вала

Суммарные реакции в опорах составят:

RA =  = = 6198,5 Н.

RB =  = = 1751,6 Н.

Согласно построенным эпюрам определим эквивалентные моменты для опасного сечения в точке С (в котором действует наибольший изгиб. момент).

Mэкв = + T2 = + 538,7 = 1035 Нм.

Рассчитываем допускаемый диаметр вала, исходя из допускаемого напряжения на кручение для промежуточного вала [τ] = 115 МПа (материал вала Сталь 40Х по ГОСТ 1050):


Тогда для сечения в точке “С” имеем:

dC = = = 0,045 м = 45 мм.

Принятый ранее диаметр вала больше допускаемого расчетного, следовательно, условие прочности выполняется.

7.3 Расчет тихоходного вала


На вал действуют силы от зубчатой прямозубой передачи и консольная сила от цепной передачи.

Крутящий момент на валу T = 2069,25 Нм.

Силы, действующие в зубчатом зацеплении:

Окружная:          Ft = 8620,9 Н.

Радиальная: Fr = 3138 Н.

Консольная сила, действующая на выходной конец вала от цепной передачи согласно ГОСТ Р 50891-96 составит:

FK = 250 = 250  = 10393,8 Н.

Размеры согласно компоновочной схеме:

L13 = 80 мм; L14 = 80 мм. L4 = 100 мм.

Определим реакции в опорах из уравнений статики.

Рассмотрим действие сил в плоскости Y0Z.

SMx(D) = 0(L4+L13+L14)-RBy(L13+L14)+FrL14 = 0

Отсюда RBy = (FrL14+ FK(L4+L13+L14))/(L13+L14)= (3138*80+10393,8*(100+80+80))/(80+80) = 18458,9 Н.

SMx(B) = 0

RDy(L13+L14)-FrL13+FKL4 = 0

Отсюда

RDy = -(FrL13-FKL4)/(L13+L14) = -(3138*80-10393,8*100)/(80+80) = 4927,1 Н.

Построим эпюру изгибающих и крутящих моментов в рассматриваемой плоскости.

 = -FKL4 = -10393,8*0,1 = -1039,4.

MC = -FK(L4+L13)+RByL13 = -10393,8(0,1+0,08)+18458,9*0,08 = -394,2 Н*м.

MD = 0.

Рассмотрим действие сил в плоскости X0Z.

SMy(D) = 0

RBx(L13+L14)+FtL14 = 0

Отсюда RBx = FtL14/(L13+L14) = 8620,9*0,08/(0,08+0,08) = 4310,5 Н.

SMx(B) = 0(L13+L14)-FtL13 = 0

Отсюда RDx = FtL13/(L13+L14) = 8620,9*0,08/(0,08+0,08) = 4310,5 Н.

Построим эпюру изгибающих и крутящих моментов в рассматриваемой плоскости.

 = MB = 0.

MC = RBxL13 = 4310,5*0,08 = 344,8 Н*м.

MD = 0.

Рисунок 6 - Эпюры изгибающих и крутящего моментов, действующих на вал

Суммарные реакции в опорах составят:

 = = = 18955,5 Н.

RD = = = 6546,5 Н.

Согласно построенным эпюрам определим эквивалентные моменты для опасного сечения в точке B (шейка подшипника качения).

экв = + T = + 2069,25 = 3108,6 Н*м.

Предварительно принимаем материал вала - Сталь 45. Рассчитываем допускаемый диаметр вала, исходя из допускаемого напряжения на кручение ([τ] = 100 МПа) для материала вала по формуле:

d ≥  =  = 0,068 м = 68 мм.

Принятые ранее диаметры ведущего вала более допускаемых расчетных диаметров, следовательно, условие прочности выполняется.

8. Подбор и расчет подшипников на долговечность

 

.1 Подбор и расчет подшипников быстроходного вала


Произведем расчет подшипника для опоры в точке “B”, как наиболее нагруженной (радиальная нагрузка в опоре R=2446 Н). Учитывая условия работы вала редуктора (отсутствие осевой силы) для опор предварительно выбираем подшипник шариковый однорядный по ГОСТ 8338-75 №209 (d=45мм, D=85мм, B=19мм, C=33,2кH).

Определим эквивалентную нагрузку по формуле:

э = μE∙R∙V∙Kσ∙KT

Где Kσ = 1,3 - коэффициент безопасности (режим работы с умеренными толчками);

KT = 1,0 - температурный коэффициент (работа подшипника при t <).

V = 1,0 коэффициент вращения (при вращении внутреннего кольца).

μE - коэффициент учитывающий график нагрузки:

μE = = = 0,771

Тогда

PЭ = 0,771*2446*1,0*1,3*1,0 = 2451,6 Н.

Число оборотов вала n = 727 об/мин.

Долговечность работы подшипника определим по формуле:

L = a23×()3 = 0,75*()3 = 22701,3 ч.

где a23 = 0,75 - коэффициент, учитывающий качество металла колец (для шарикоподшипников).

Расчетная долговечность подшипника больше срока службы редуктора Lh=7621,2 ч следовательно выбранный подшипник удовлетворяет условиям эксплуатации.

 

.2 Подбор и расчет подшипников промежуточного вала


Произведем расчет подшипника для опоры в точке “B”, как наиболее нагруженной (радиальная нагрузка в опоре R=6198,5 Н). Учитывая условия работы вала редуктора (отсутствие осевой силы) для опор предварительно выбираем подшипник шариковый однорядный по ГОСТ 8338-75 №211 (d=55мм, D=100мм, B=21мм, C=43,6 кH).

Определим эквивалентную нагрузку по формуле:

э = μE∙R∙V∙Kσ∙KT = 0,771*6198,5*1,0*1,3*1,0 = 6212,8 Н.

Число оборотов вала n = 145,4 об/мин.

Долговечность работы подшипника определим по формуле:

L = a23×()3 = 0,75*()3 = 29712,8 ч.

Расчетная долговечность подшипника больше срока службы редуктора Lh=7621,2 ч следовательно выбранный подшипник удовлетворяет условиям эксплуатации.

8.3 Подбор и расчет подшипников быстроходного вала


Произведем расчет подшипника для опоры в точке “B”, как наиболее нагруженной (радиальная нагрузка в опоре R=18955,5 Н). Учитывая условия работы вала редуктора (отсутствие осевой силы) для опор предварительно выбираем подшипник шариковый однорядный по ГОСТ 8338-75 №216 (d=80мм, D=140мм, B=26мм, C=70,2 кH).

Определим эквивалентную нагрузку по формуле:

э = μE∙R∙V∙Kσ∙KT = 0,771*18955,5*1,0*1,3*1,0 = 18999,1 Н.

Число оборотов вала n = 36,35 об/мин.

Долговечность работы подшипника определим по формуле:

L = a23×()3 = 0,75*()3 = 17346,7 ч.

Расчетная долговечность подшипника больше срока службы редуктора Lh=7621,2 ч следовательно выбранный подшипник удовлетворяет условиям эксплуатации.

9. Проверка прочности шпоночных соединений


Звездочку цепной передачи, зубчатые колеса и муфту насаживают на валы редуктора и предохраняют от проворачивания шпонками. Размеры сечения шпонки выбирают в зависимости от диаметра вала в месте установки шпонки. Применяем шпонки призматические со скругленными торцами (рисунок 7). Их размеры зависят от диаметров валов. Материал шпонок - сталь 40 нормализованная.

Рисунок 7 - Шпоночное соединение

Все длины шпонок мы выбираем из стандартного ряда длин.

Проверку прочности соединения проведем из условия прочности на смятие

σ =  ≤ [σсм],

где [σсм] - допускаемое напряжение смятия,

[σсм] = 210 МПа для материала шпонок - стали 40.

T - крутящий момент на рассматриваемом валу, Н·мм.

Расчет шпонки быстроходного вала.

Размеры шпоночного соединения согласно ГОСТ 23360-78:

диаметр вала в месте установки шпонки (концевой участок) d = 36 мм;

размеры шпонки: длина l = 50 мм; ширина b =12 мм; высота h =8 мм;

глубина паза вала t1 = 5 мм

Крутящий момент на валу T = 112,2 Н×м.

σ = = 52,4 МПа.

Расчетное напряжение меньше допускаемого. Условие прочности выполняется.

Расчет шпонки промежуточного вала.

Крутящий момент на валу Т=538,7 Н∙м

Расчет шпонки ведомого колеса на промежуточном валу:

Размеры шпоночного соединения согласно ГОСТ 23360-78:

диаметр вала в месте установки шпонки d = 60 мм;

размеры шпонки: длина l = 50 мм; ширина b = 18 мм; высота h = 11 мм;

глубина паза вала t1 = 7 мм

σ = = 140,3 МПа.

Расчетное напряжение меньше допускаемого. Условие прочности выполняется.

Расчет шпонок тихоходного вала.

Размеры шпоночного соединения согласно ГОСТ 23360-78:

диаметр вала в месте установки шпонки (концевой участок) d = 70 мм;

размеры шпонки: длина l = 80 мм; ширина b =20 мм; высота h =12 мм;

глубина паза вала t1 = 7,5 мм

Крутящий момент на валу T = 2069,25 Н×м.

σ = = 202,9 МПа.

Расчетное напряжение меньше допускаемого. Условие прочности выполняется.

Расчет шпонки ведомого колеса тихоходной передачи:

Размеры шпоночного соединения согласно ГОСТ 23360-78:

диаметр вала в месте установки шпонки d = 95 мм;

размеры шпонки: длина l = 80 мм; ширина b = 25 мм; высота h = 14 мм;

глубина паза вала t1 = 9 мм

σ = = 146 МПа.

Расчетное напряжение меньше допускаемого. Условие прочности выполняется.

10. Подбор муфты


Подберем муфту для соединения вала электродвигателя с ведущим валом редуктора.

Пусковой вращающий момент составит:

ТП = 1,4·Тдв = 1,4*115,6 = 161,84 Н×м.

Вращающий момент [T], выдерживаемый муфтой должен быть больше пускового ТП.

Выбираем втулочно-пальцевую упругую муфту ГОСТ 21424-93

Допускаемый вращающий момент для выбранной муфты 250 Н×м.

[T] = 250 > TП = 162,8 Н×м

Условие выполняется.

Максимальная допускаемая радиальная несоосность валов для выбранной муфты согласно ГОСТ 21424-93 - 0,3 мм.

11. Посадка деталей редуктора

Посадки выбираем из рекомендаций [1; табл. 24,8]:

посадка зубчатых колес на вал - ;

- посадка подшипников на шейки валов - ;

посадка подшипников в отверстия корпуса - ;

посадки крышек подшипников в отверстия корпуса - ;

посадки штифтов в отверстия корпуса - ;

посадки шпонок в паз вала (по ширине) - ;

посадка шпонки в паз колеса (по ширине) - .

12. Выбор сорта масла


Смазывание зацепления и подшипников производится разбрызгиванием жидкого масла. По [1,табл.11.1] выбираем вязкость масла. Так как величина контактных напряжений не более 600 МПа и окружная скорость в зацеплении не более 5м/с, то рекомендуемая кинематическая вязкость масла должна быть 28….32 . Такой вязкостью обладает масло индустриальное И-Г-А-32 ТУ 38 10141-378. Смазывание подшипников осуществляется посредством разбрызгивания того же масла.

13. Сборка редуктора


Перед сборкой внутреннюю полость корпуса редуктора тщательно очищают и покрывают маслостойкой краской.

Сборку производят в соответствии со сборочным чертежом редуктора. Начинают сборку с того, что на валы надевают зубчатые колеса и подшипники, предварительно нагретые в масле до 80-100°С. Собранные валы укладывают на соответствующую корпусную деталь и закрывают крышкой корпуса. Для центровки крышку устанавливают с помощью двух штифтов и затягивают болты. Закладывают в сквозные крышки резиновые манжеты и устанавливают крышки на корпус. Затем ввертывают пробку маслоспускного отверстия с прокладкой и маслоуказатель.

Заливают в корпус редуктора масло и закрывают смотровое отверстие крышкой с прокладкой из технического картона; закрепляют крышку болтами. Собранный редуктор обкатывают и подвергают испытанию на стенде.

 

Заключение

 

В объеме курсового проекта проведен расчет привода, состоящего из электродвигателя, зубчатого соосного двухступенчатого редуктора и цепной передачи. На основании предварительных расчетов выбран необходимый по мощности электродвигатель АИР 160M8 ТУ 16-525564-84 (11 кВт, 727 об/мин) и выполнены чертежи на редуктор и детали редуктора. Передаточное отношение редуктора 20, передаточное отношение цепной передачи 3,9. Крутящий момент на выходном валу редуктора 2069,25 Н∙м, частота вращения выходного вала 36,35 об/мин. Крутящий момент на приводной звездочке 7666,6 Н×м, частота вращения приводной звездочки 9,3 об/мин.

Список литературы


1. Дунаев П.Ф., Леликов О.П. Конструирование узлов и деталей машин: Учебное пособие для машиностроит. спец. вузов. Изд. 8-е, перераб. и доп. М.: Издательский центр “Академия”, 2003. 496 с.

. Курсовое проектирование деталей машин: Учеб. пособие для техникумов / С.А. Чернавский, Г.М. Ицкович, К.Н. Боков и др. - М.: Машиностроение, 1980. - 351 с., ил.

. Анурьев В.И. Справочник конструктора-машиностроителя в 3-х т, т.2: изд. 8-е перераб. и доп. Под ред. ИН Жестковой. - М.: Машиностроение, 2001. - 912с.: ил.

Похожие работы на - Привод пластинчатого конвейера

 

Не нашли материал для своей работы?
Поможем написать уникальную работу
Без плагиата!
Без нейросетей!