|
Сталь
|
Сварочные
материалы
|
Напряженное
состояние
|
|
Тип электрода
|
Марка проволоки
|
Срез по металлу
шва, Rwf
|
Срез по металлу
границы сплавления, Rwz
|
|
С345
|
Э50, Э50А
|
Св - 10 ГА
|
215
|
205
|
|
С375
|
|
|
|
215
|
2.
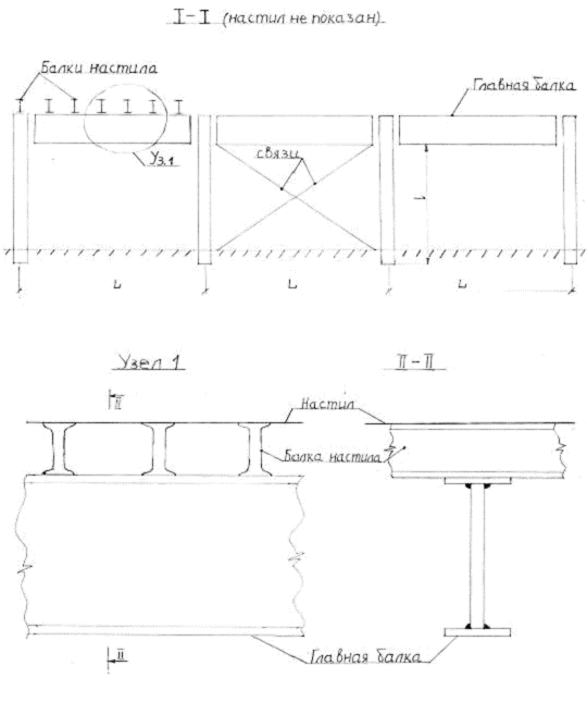
Компоновка конструктивной схемы
В курсовом проекте необходимо скомпоновать конструктивную
схему рабочей площадки и дать её описание в расчётно-пояснительной записке.
Рекомендуется применить шарнирное опирание колонн (стоек) на фундаменты в обоих
направлениях и шарнирное сопряжение колонн с балками, при этом пространственная
неизменяемость каркаса обеспечивается устройством продольных и поперечных
связей между колоннами. Колонны выполняются из прокатных широкополочных
двутавров колонного типа.
Размер ячейки балочной клетки, то есть шаг колонн в
продольном и поперечном направлениях, указывается в исходных данных к курсовому
проекту. Главные балки рекомендуется располагать вдоль длинной стороны ячейки и
опирать её на полки колонн сбоку. Главные балки выполняются из составных
сварных двутавров.
Шаг балок настила устанавливается таким образом, чтобы он
целое число раз укладывался в пролете вспомогательной балки. Это учтено в
исходных данных к курсовому проекту. Рекомендуется поэтажное опирание балок
настила на главные балки. Сам настил выполняется из листовой стали. Балки
настила выполняются из прокатных двутавров, к верхним поясам которых
приваривается настил.
Заглубление низа базы колонны относительно уровня пола может
приниматься в пределах 0,3…0,4 м.
Общую длину рабочей площади принимать равной трем продольным
шагам колонн, а общую ширину - трем поперечным шагам колонн. Примерная схема
рабочей площадки с необходимыми размерами и характерными узлами сопряжения
конструктивных элементов представлены на рис.1, 2 и 6. Окончательные размеры на
схеме проставляются после завершения расчётов.
2.1 Расчёт
балки настила
Балочная клетка представляет собой систему пересекающихся
несущих балок, предназначенных для опирания настила перекрытий (рис.1).
Рис.1. Балочная клетка
Балки настила обычно проектируют прокатными. Расчётная схема
балки настила - однопролётная шарнирно опёртая балка, пролёт которой равен
поперечному шагу колонн рабочей площадки B, нагруженная равномерно
распределённой нагрузкой q1 (рис.2).
Рис.2. Расчетная схема балки настила
Равномерно распределённая нагрузка на балку:
нормативная, кН/м:
qn1 = qn × а=14.5*0.8=11.5;
расчётная:
q1 = qn1 × γf =11.5*1.25=14.5, (2.1)
где qn - нормативная нагрузка на рабочую
площадку, кН/м2;
γf - осреднённый коэффициент
надёжности по нагрузке;
а - расстояние между балками настила, м.
Максимальный расчётный изгибающий момент, кН×м:
Мmax = (q1 × В2) / 8= (14.5*62)
/8=65.25кНм; (2.2)
Максимальная поперечная сила, кН:
Qmax = (q1 × В) / 2= (14,5*6) /2=43,5кНм; (2.3)
По расчётному моменту определяют значение требуемого момента
сопротивления сечения двутавровой прокатной балки:
Wx,cal = (Мmax × γn) / (Ry × γc) = (65,25*1) / (335*1)
=0,2кн/см2, (2.4)
где Ry - расчётное сопротивление
фасонной стали, кН/см2;
Для расчетов в курсовом проекте коэффициент надёжности по
назначению и коэффициент условия работы принимаем равными 1:
γn = 1 и γc = 1
После определения требуемого момента сопротивления Wx,cal (относительно оси
наибольшей жёсткости х-х) по сортаменту принимаем номер двутавра и выписываем
геометрические характеристики его сечения, соблюдая при этом
условие - фактическое Wx ≥ Wx,cal.
Проверка жёсткости балки сводится к определению её
относительного прогиба от действия нормативных нагрузок, которые не должны
превышать допускаемого значения:
а) выполняем проверку жёсткости балки по формуле:
= (5 × qn1 ×В3) / (384 ×Е ×Ix) ≤ fu = (5*11,5*63)
/384*206000*1840) =0,00000516444≤3см, (2.5)
где f - фактический прогиб балки, см;
qn1 - нормативное значение
погонной нагрузки на балку, кН/см;
В - пролет балки, см;
Е = 2,06 ×10 4 (кН/см2) = 20,6 ×106 (Н/см2) - модуль упругости стали;
Ix - момент инерции сечения
балки, см4;
fu = В /200 - предельный прогиб
балки настила, см.
Если условие f > fu, не обеспечивается, то
необходимо принять больший номер двутавра и повторить проверку жёсткости.
б) касательные напряжения в изгибаемых элементах проверяют в
местах наибольшей поперечной силы по формуле:
τmax = (Qmax × Sx) / (Ix × tw) ≤ Rs × γc = (43,5*104) / (1840*5,2)
=0,47≤195*1, (2.6)
где τmax - максимальное касательное
напряжение, кН/см2;
Sx - статический момент
половины сечения балки относительно нейтральной оси, см3;
tw - толщина стенки балки,
см;
Rs - расчетное сопротивление
фасонной стали сдвигу, кН/ см2;
Ix - момент инерции поперечного
сечения балки, см4.
Проверка прочности по касательным напряжениям проводится в
учебных целях, так как она обеспечивается по условиям проката двутавровых
балок.
в) проверка общей устойчивости балки настила не требуется,
так как к ее сжатому поясу прикреплен стальной настил.
г) местная устойчивость стенки и полок прокатных балок
обеспечена по условиям их прокатки.
2.2 Расчёт
главной составной балки
Составные балки применяют в тех случаях когда прокатные не
удовлетворяют условиям прочности, жёсткости, общей устойчивости, то есть при
больших пролётах и изгибающих моментах.
Расчетная схема главной составной балки рабочей площадки -
однопролетная балка пролетом L с шарнирным опиранием, нагруженная расчетной
равномерно распределенной нагрузкой q, к которой приводятся
сосредоточенные силы в местах опирания балок настила (рис.2).
Расчётная погонная нагрузка на главную балку, кН/м:
q = qn × γf × В=14,5*1,25*6=108,75,где qn - в исходных данных.
Максимальный расчётный изгибающий момент, кН/м:
Мmax = (q × L2) / 8= (108,75*162)
/8=3480кН/м;
Максимальная поперечная сила, кН:
Qmax = (q × L) / 2= (108,75*16) /2=870кН/м, (2.7)
где L - пролёт главной балки, м.
2.2.1
Назначение размеров составной балки
Проектирование составных балок выполняют в два этапа. На первом
компонуют и подбирают сечение, на втором - проверяют прочность и
устойчивость балки.
Компоновку составного сечения начинают с установления высоты
балки.
Из условия экономичности, характеризующейся наименьшим
расходом стали, вначале вычисляют оптимальную высоту балки:
hopt = 3√
(1,5 × λw × Wcal) = 3√
(1,5*6,77*10,4=1,6, (2.8)
где гибкость стенки λw = hef / tw при отсутствии подвижной
нагрузки на поясе балки принимают для балок со стенкой, укреплённой поперечными
рёбрами жёсткости
λw = 5 √ (Е / Ry),
где Е = 2,06× 105 МПа - модуль упругости
стали;
Ry - расчётное
сопротивление для листовой стали толщиной до 20 мм.
Требуемый момент сопротивления определяют по формуле:
Wcal = Мmax / Ry × γс =3480/335*1=10,4.
Минимальную высоту балки, обеспечивающую предельный прогиб,
определяют по формуле:
hmin = (5× Ry × L) / (24× Е× γf × fu) = (5*335*16) /
(24*206000*1,25*0,003) =14,7, (2.9)
где fu - предельный прогиб главной балки
(исходные данные);
γf - осредненный коэффициент
надежности по нагрузке;
Ry - расчетное сопротивление
листовой стали толщиной более 20 мм.
Назначаемая окончательно высота составной балки должна быть
близкой к hopt (обычно на 5 - 10 % меньше полученного по
формуле hopt, но не меньше hmin)
Балки в целях унификации конструкций рационально принимать
высотой, кратной 100мм. После установления высоты балки определяют толщину
стенки tw из следующих условий:
а) обеспечения прочности стенки на срез на опоре (при
опирании балки на опорное ребро):
tw = (к× Qmax) / (h ×Rs × γc) = (1,5*870) /
(1,6*180*1) =4,5, (2.10)
где к - коэффициент, принимаемый при опирании балки с
помощью опорного ребра, приваренного к торцу балки равным к = 1,5;
h - высота составной балки назначенная;
Q - максимальная поперечная сила;
б) обеспечение местной устойчивости стенки без дополнительного
укрепления её продольным ребром:
tw ≥ h / λw =4,5≥0,2;
Рекомендуемые толщины стенки балки:
(8…12мм) - кратно 1мм;
при большей толщине кратно 2мм.
Стенки толщиной (14…24 мм) проектируют в балках высотой 2…5
метров при значениях h / tw = 160…230.
Окончательно толщина стенки назначается, если соблюдается
условие (Ry в МПа):
tw = (hef / 5,5) √ (Ry / Е) = (155,6/5,5) √
(335/206000) =8; (2.11)
В сварных балках пояса обычно принимают из одиночных листов
универсальной стали, в связи с чем толщина tf и ширина bf поясных листов должны
соответствовать сортаменту на эту сталь (приложение А).
При назначении размеров пояса толщина поясных листов tf предварительно
назначается в пределах 18 - 32мм (в соответствии с сортаментом на
широкополосную сталь - приложение А).
Из условия свариваемости поясов со стенкой необходимо
соблюдать требование:
tw < tf ≤ 3 tw =8≤22≤24,где tw - толщина стенки.
Вычислим высоту стенки:
hef = h - 2× tf =155,6.
Требуемую ширину поясного листа bf определяют из расчёта
геометрических характеристик сечения. Для этого вычисляют:
) Требуемый момент инерции всего сечения балки, см4:
I = Wcal × (h / 2) =10,4* (1,6/2) =832см4;
2) Момент инерции стенки, см4:
Iw = (tw × hef3) /12= (0,8*155,63)
/12=25115,25см4;
3) Требуемый момент инерции поясов, см4:
If = I - Iw =25115,25-832=24283,25;
4) Требуемая площадь одного пояса, см2:
Af = 2 If / (h - tf) 2=2*24283,25/
(160-2,2) 2=1,95см2;
5) Требуемая ширина пояса, см:
bf = Af / tf =1,95/2,2=0,89см;
Ширину пояса bf рекомендуется выдерживать
в пределах (1/3 - 1/5) h из условия обеспечения общей устойчивости балки.
По конструктивным соображениям ширину пояса принимают:
bf ≥ 180 мм или h / 10;
Требование по обеспечению местной устойчивости балки:
bеf / tf ≤ 0,5 √ (Е / Ry) =0,5 √206000/315=12,8
где bеf - свободный свес поясного
листа (bеf ≈ bf / 2);
Ry - расчетное сопротивление
листовой стали в соответствии с принятой толщиной tf.
Если размеры пояса не отвечают указанным требованиям, то
изменяют толщину поясного листа в ту или иную сторону и определяют новую ширину
пояса. По полученным данным компонуют сечение составной балки, вычисляют для
него геометрические характеристики:
I - требуемый момент инерции:
I = Iw + If = (tw × hef3) / 12 + 2×bf × tf [0,5 (h - tf)] 2 =832; (2.12)
W - требуемый момент сопротивления:
W = 2× I / h = I / (h/2) =2*832/160=10,4;
В учебных целях производят проверку прочности по нормальным
напряжениям:
σ = Мmax / W ≤ Ry × γc =3480/10,4=334,5≤335
*1 (2.13)
Перенапряжение не допускается, а недонапряжение для
удовлетворительно подобранного сечения балки должно составлять не более 5%.
2.2.2
Изменение сечения составной балки по длине
Сечение составной балки, подобранное по максимальному моменту
в середине пролёта, можно уменьшить на приопорных участках. Учитывая увеличение
трудоёмкости изготовления, рекомендуется уменьшать сечения поясов в балках
пролётом 10 - 12 метров и более (рис.4).
Рис.4. Изменение сечения балки за счет уменьшения ширины
пояса
При равномерной нагрузке наиболее выгодное место изменения
сечения поясов в однопролётной балке находится на расстоянии примерно 1/6
пролёта балки от опоры. Сечения поясов изменяют различными способами. Наиболее
простым способом является изменение ширины пояса, так как при этом не
изменяется высота балки. Уменьшенная ширина поясов должна отвечать условиям:
bf 1 ≥ 180мм; bf 1 ≥ h /10;
bf 1 ≥ 0,5× bf.
Расчёт изменения ширины пояса главной балки производят в
следующем порядке:
. Расстояние до места изменения сечения, см:
Х = L / 6=16*6=2,7см;
. Расчётный изгибающий момент в месте изменения сечения, кН×см:
Мх = (q×х× (L - х)) / 2= (108,75*2,7*
(16-2,7)) /2=1952,6кН*см;
. Поперечную силу в месте изменения сечения, кН:
Qх = q × (L/2 - х) =108,75* (16/2-2,7) =576,375кН;
. Требуемый момент сопротивления на опоре, см3:
Wcall = Mx
/ Ry× γc =1952,6/315=6,2см3;
. Требуемый момент инерции сечения на опоре, см4:
I call = Wcall
× (h /2)
=6,2* (160/2) =496см4;
. Требуемый момент инерции поясов, см4:
I1f = I1cal - Iw =496-27=469см4,где
Iw - момент инерции стенки, см4
. Требуемая площадь пояса, см2:
А1f = (2× I1f) / (h - tf) 2=36780см2;
. Требуемая уменьшенная ширина пояса, см:
b1f = А1f / tf =18см;
Полученное сечение называют опорным. Уменьшенная ширина пояса
согласуется с сортаментом на широкополосную сталь. Значение b1f должно соответствовать
вышеприведённым конструктивным условиям.
Затем, после назначения b1f, определяют
действительные геометрические характеристики уменьшенного опорного сечения:
I1 = (tW ×h3ef) /12+2 b1f
× tf × ( (h - tf) /2) 2 =0.2 см4; (2.14)
W1 = 2×I1/h =6.2 см3;
S = Sw + Sf = (tW× 23ef) /8 + b1f
× tf × (h - tf) /2=2578.9;
а) В учебных целях проверяют сечение на опоре на прочность по
касательным напряжениям:
τ = (Qmax
× S) (I1
× tW)
≤ RS × γc;
б) Проверку общей устойчивости составной балки не производят
в связи с тем, что на её сжатый пояс через 0,6…1,2 метра (значения а)
опираются балки настила, надёжно приваренные к ней.
в) Проверку прогиба также не выполняют, так как принимаемая
высота сечения составной балки всегда больше минимальной и регламентированный
прогиб будет обеспечен.
2.2.3
Проверка местных и приведённых напряжений
а) В местах опирания балок настила (прокатных) на главную
балку определяют местные напряжения:
σloc =Fe
/ tW × lb
≤ Ry × γc =255,2<315, (2.15)
где Fe = q×a - расчётное значение (сосредоточенной силы),
прикладываемой к составной балке;
а - расстояние между балками;
lb =bp+2 tf - условная длина
распределения нагрузки;
bp - ширина полки балки
настила;
tf - толщина полки составной
балки;
б) Расчёт по приведённым напряжениям. Проверка выполняется в
месте фактического изменения сечения составной балки на уровне поясных швов.
Проверку приведённых напряжений выполняют с учётом
совместного действия нормальных и касательных напряжений по формуле:
σef = 
σх2 - σх× σу - σу2 +3× τху2 ≤ 1,15 Ry × γc, (2.16)
где σх = МХ ×hef / (W1×h) - нормальные напряжения в стенке;
МХ - изгибающий момент в месте изменения сечения, кНсм;
σу - напряжения, перпендикулярные оси балки. Для
рассматриваемых балок
σу = σloc.
τху = Qx / (/ tW ×hef) - среднее касательное напряжение;
Qx - поперечная сила в месте изменения
сечения, кН.
Если балки настила опираются на главную балку в стороне от места
фактического изменения сечения пояса, то местное напряжение принимают равным
нулю - σloc =
0.
2.2.4
Проверка местной устойчивости стенки
Потерей местной устойчивости стенки или пояса называют
местное выпучивание отдельных элементов конструкций под действием сжимающих нормальных
или касательных напряжений.
Местная устойчивость сжатого пояса обычно обеспечивается при
подборе сечения составной балки.
Стенка балки подвергается воздействию нормальных и
касательных напряжений. Для повышения устойчивости стенки её укрепляют специальными
рёбрами жёсткости, которые располагают с двух сторон стенки нормально к
поверхности выпучивания листа. Увеличение толщины стенки экономически не
выгодно, поскольку оно ведёт к перерасходу материала. Рёбра жёсткости разбивают
стенку на ряд отсеков (панелей), которые теряют устойчивость независимо один от
другого. Согласно СНиП II-23-81* стенки балок следует укреплять
поперечными ребрами жесткости, если значения условий гибкости стенки:
λw = (hef /
tw) √ (Ry / E) ≥ 3,2 (2.17)
Расстояние между поперечными ребрами жесткости - а1
(рис.5), должно отвечать следующему условию:
a1 ≤ 2 hef при - λw ≥ 3,2
a1 ≤ 2,5hef при - λw ≤ 3,2.
Рис.5. Ребра жесткости
Рёбра жёсткости принимаются парными, симметричными по обе
стороны стенки. Ширину выступающей части ребра bh для парных симметричных
поперечных ребер жесткости определяют по формуле:
bh = hef / 30 + 40 мм=0,09мм;
(2.18)
Толщину ребра ts вычисляют по формуле:
ts = 2 bh ×√ (Ry / E) =7мм. (2.19)
Размеры рёбер жёсткости согласовываются с сортаментом на
полосовую сталь
По условиям транспортировки балки пролетом более 9 метров
разбиваются на отправочные марки, которые в последующем стыкуются на монтаже.
Поэтому при расстановке поперечных рёбер жесткости необходимо следить, чтобы
ближайшее от монтажного стыка ребро находилось на расстоянии не менее 500
миллиметров.
Ребра устанавливают на равном расстоянии друг от друга, но
из-за выполнения выше названного условия приопорные отсеки часто назначают
длиной меньшей, чем 2hef.
Наметив расстановку рёбер жёсткости проверяют местную
устойчивость стенки по формуле:
√ [ (σ / σcr + σloc / σloc,cr) 2 + (τ / τcr) 2] ≤ γc, (2.20)
где σ и τ - нормальные и касательные напряжения определяют по разъяснениям к
формуле (2.16);
Значения критических напряжений σcr и σloc,cr определяют:
а) При а1/hef ≤ 0,8 по формуле:
σcr = (Ccr×Rу) / (-λ2w) =461, (2.21)
где Ccr - коэффициент, принимаемый в зависимости
от значения σ, учитывающего степень
упругого защемления стенки в поясах (таблица 2.1).
σ = β× (bf
/ hef) × (tf
/ tw) 3 =1,9,
где β= 0,8 - коэффициент для
всех балок, кроме подкрановых;
bf и tf - соответственно ширина и
толщина сжатого пояса балки.
σloc,cr = (C1 ×Rу) / (-λ2w) =329, (2.22)
где С1 - коэффициент, принимаемый по таблице 2.2 в
зависимости от отношения а1/hef и значений σ;
λ2w = (a1 /tw) ×
Rу / E =122;
б) при a1/hef > 0,8 и отношении σloc / σ больше значений, указанных в таблице 2.3.
σcr = (С2 · Ry) / - λw2 =461,9, (2.23)
где С2 принимают по таблице 2.4.;
σloc,cr - принимают по формуле (2.22);
в) при a1/hef > 0,8 и отношении σloc /σ не более значений, указанных в таблице 2.3;
σcr - принимать по формуле (2.21);
σloc,cr - по формуле (2.22), но с постановкой (a1/2) вместо a1 в формулу для - λa и в таблице 2.2.
Критическое касательное напряжение определяют по формуле:
τcr = 10,3× (1 + (0,76/μ2)) × (Rs / - λw2) =6, (2.24)
где μ - отношение большей стороны (а или hef) к меньшей d,
(практически отношение a1/hef)
Таблица 2.1.
Значения Сcr, при σ равном
|
σ
|
≤ 0,8
|
1,0
|
2,0
|
4,0
|
6,0
|
10,0
|
30
|
|
Сcr
|
30,0
|
31,5
|
33,3
|
34,6
|
34,8
|
35,1
|
35,5
|
Таблица 2.2.
Значения С1 для сварных балок при a1/hef, равном
|
σ
|
|
|
≤ 0,5
|
0,6
|
0,8
|
1,0
|
1,2
|
1,4
|
1,6
|
1,8
|
2,0
|
|
1
|
11,5
|
12,4
|
14,8
|
18,0
|
22,1
|
27,1
|
32,6
|
38,9
|
45,6
|
|
2
|
12,0
|
13,0
|
16,1
|
20,4
|
25,7
|
32,1
|
39,2
|
46,5
|
55,7
|
|
4
|
12,3
|
13,3
|
16,6
|
21,6
|
28,1
|
36,3
|
45,2
|
54,9
|
65,1
|
|
6
|
12,4
|
13,5
|
16,8
|
22,1
|
29,1
|
38,3
|
48,7
|
59,4
|
70,4
|
|
10
|
12,4
|
13,6
|
16,9
|
22,5
|
30,0
|
39,7
|
51,0
|
63,3
|
76,5
|
|
30
|
12,5
|
13,7
|
17,0
|
22,9
|
31,0
|
41,6
|
53,8
|
68,2
|
83,6
|
Таблица 2.3.
Предельные значения σloc / σ, при a1/hef, равном
|
σ
|
|
|
0,8
|
0,9
|
1,0
|
1,2
|
1,4
|
1,6
|
1,8
|
2,0
|
|
1
|
0
|
0,146
|
0,183
|
0,267
|
0,356
|
0,445
|
0,540
|
0,618
|
|
2
|
0
|
0,109
|
0,169
|
0,277
|
0,406
|
0,543
|
0,652
|
0,799
|
|
4
|
0
|
0,072
|
0,129
|
0,281
|
0,479
|
0,711
|
0,930
|
1,132
|
|
6
|
0
|
0,066
|
0,127
|
0,288
|
0,536
|
0,874
|
1, 192
|
1,468
|
|
10
|
0
|
0,059
|
0,122
|
0,296
|
0,574
|
1,002
|
1,539
|
2,154
|
|
30
|
0
|
0,047
|
0,112
|
0,300
|
0,633
|
1,283
|
2,249
|
3,939
|
Таблица 2.4.
Значения С2, при a1/hef, равном
|
a1/hef
|
≤ 0,8
|
0,9
|
1,0
|
1,2
|
1,4
|
1,6
|
1,8
|
2,0
|
|
С2
|
По табл. 2.3.,
т.е. С2 = Сcr
|
37,0
|
39,2
|
45,2
|
52,8
|
62,0
|
72,6
|
84,7
|
2.2.5 Расчёт
поясных швов
При изгибе составных балок между поясом и стенкой возникают
сдвигающие силы, стремящиеся сместить один элемент относительно другого. Чтобы
все составляющие балку элементы работали монолитно, сдвигающие силы должны
восприниматься связями, соединяющими пояса со стенкой. В качестве связей
применяют поясные швы.
Сдвигающее усилие Т, приходящееся на 1см длины балки,
составит:
Т = (Qmax × Sf) / I1 =6696, (2.25)
где Qmax - расчётная поперечная сила, равная
опорной реакции балки;
Sf - статический момент
пояса;
I1 - момент инерции сечения
на опоре;
Sf и I1 принимают по формулам
(2.14).
Сдвигающая сила Т воспринимается двумя швами с катетом
kf, соблюдая при этом два
условия:
при расчёте по металлу шва Т ≤ 2×βf ×kf ×Rwf ×γwf ×γc;
при расчёте по металлу границы сплавления Т ≤ 2×βz ×kf ×Rwz ×γwz ×γc,
где βf и βz - коэффициенты глубины проплавления угловых
швов, принимаемые по таблице 2.5 в зависимости от вида сварки и положения шва
для сталей с пределом текучести до 580 МПа;
kf - катет шва;
Rwf и Rwz - расчётные
сопротивления углового шва срезу по металлу и по металлу границы сплавления
принимают из таблицы 1.4;
γwf и γwz - коэффициенты условий работы шва, равные 1 для
сварных конструкций, работающих при температуре не ниже ( - 400С);
Таблица 2.5 Коэффициенты глубины проплавления угловых швов
Вид сварки при 
Положение шваКоэф
фициент
|
βЗначение
β при
катетах швов, мм
|
|
|
|
|
|
|
3…8
|
9…12
|
14…16
|
18 и более
|
|
Автоматическая d = 3…5
|
Нижнее
|
βf
|
1,1
|
0,9
|
0,9
|
0,7
|
|
|
βz
|
1,15
|
1,05
|
1,05
|
1,0
|
|
Ручная;
полуавтоматическая проволокой сплошного сечения при d≤1,4
|
В лодочку,
нижнее, горизонтальное, вертикальное, потолочное
|
βf
|
0,7
|
0,7
|
0,7
|
0,7
|
|
|
βz
|
1,0
|
1,0
|
1,0
|
1,0
|
Определяют необходимый катет сварного поясного шва:
kf ≥ (Q×Sf) / (2×βf ×I × Rwf
×γwf ×γc); (2.26)
kf ≥ (Q×Sf) / (2×βz ×I ×Rwz ×γwz ×γc);
При расчёте для катета шва принимается большее из полученных
двух значений kf. Полученный катет углового поясного шва
сохраняется по всей длине балки. Минимальные значения катетов поясных швов
зависят от толщины наиболее толстого из свариваемых элементов (таблица 2.6).
Таблица 2.6 Минимальные размеры катетов угловых швов в
стальных конструкциях
|
Вид соединения
|
Вид сварки
|
Предел текучести
стали σу,
МПа
|
Минимальные
катеты швов kf, мм, при толщине более толстого из свариваемых элементов t, мм.
|
|
|
|
4 - 5
|
6 - 10
|
11 - 15
|
17 - 22
|
23 - 32
|
33 - 40
|
41 - 80
|
|
Тавровое с
двусторонними угловыми швами; нахлёсточное и угловое
|
ручная
|
До 430
|
4
|
5
|
6
|
7
|
8
|
9
|
10
|
|
|
Свыше 430 до580
|
5
|
6
|
7
|
8
|
9
|
10
|
12
|
|
Автомати ческая
и полуавто матичес кая
|
До 430
|
3
|
4
|
5
|
6
|
7
|
8
|
9
|
|
|
Свыше 430 до580
|
4
|
5
|
6
|
7
|
8
|
9
|
10
|
2.2.6
Расчёт опорного конца балки
Балка опирается на колонну фрезерованным торцом сплошного
опорного ребра, приваренного к балке. Установленные по торцам балок опорные
рёбра выпускают ниже кромки нижнего пояса на расстояние ar = 15…20 мм и не более
чем на 1,5 толщины ребра (рис.6). Вся опорная реакция передаётся с балки на
опорный столик колонны через это ребро. Опорные рёбра приваривают к стенке
двумя сварными угловыми швами (рис.6).
Рис.6. Крепление опорного ребра
Торец опорного ребра строгают для плотного касания этого
ребра с опорной поверхностью колонны. Площадь сечения опорного ребра определяют
из условия его работы на смятие по формуле:
Ar = F / Rp× γc =870/460*1=1,89, (2.27)
где F - расчётная опорная реакция, F = Qmax;
Rp - расчётное
сопротивление стали смятию торцевой поверхности;
Толщину опорного ребра определяют по формуле:
tsr = Ar b1f =1,89/0,18=10,5, (2.28)
где br = b1f - ширина опорного ребра.
Значение tsr должно соответствовать
сортаменту на полосовую или широкополосную сталь.
Сварные швы, прикрепляющие опорное ребро к стенке балки (два
угловых шва), проверяют на действие опорной реакции. Расчёт сводится к
определению требуемого катета углового шва:
kf = (1/ βf) × 
F
/ 2× 85× Rwf =0,2, (2.29)
где βf = 0,7 так как при ручной сварке расчёт по
металлу шва является решающим.
Болты, прикрепляющие составную балку к колонне, устанавливают
конструктивно.
3. Расчёт
центрально-сжатой колонны
Центрально сжатые колонны применяют для поддержания
междуэтажных перекрытий и покрытий зданий, в рабочих площадках и т.п.
Производят расчёт наиболее загруженной колонны в средней части рабочей
площадки.
Расчётная схема колонны - шарнирно-опёртый по концам стержень
(рис.7).
Рис.7. Шарнирное опирание колонны
Геометрическая длина колонны l (см. исходные данные)
принимается от подошвы базы колонны, заглубленной на 0,3…0,4 метра, до точки
опирания опорного конца главной балки на столик колонны (рис.1 и 6). При
шарнирном опирании колонны в двух направлениях поправочный коэффициент
приведения длины μx = μу = 1.
Определяют расчётную длину сжатого элемента:
lef = μ×l=1,4,где l - геометрическая длина
элемента;
Расчётное значение нормальной сжимающей силы, кН:
N = q ×L + Nкол =108,75+16+0,3=125,05
(3.1)
где - q - нагрузка от балочной клетки, кН/м, формула 2.7.
L - шаг колонн вдоль балочной клетки, м;
Nкол - собственный вес колонны,
ориентировочно принимаемый равным
Nкол = l, (кН).
Подбор сечения колонны начинают с предварительного назначения
гибкости колонны в пределах λу = 90…100. По назначенной
гибкости находят значение коэффициента продольного изгиба φ (приложение Г) в зависимости от расчётного сопротивления Rу.
Требуемую площадь поперечного сечения стержня колонны
определяют:
Аcal = N/ (Rу × φ× γc) =125,05/
(315*485*1) =131,4, (3.2)
где значение расчётного сопротивления Rу принимают для фасонной
стали толщиной до 20 мм.
По принятой гибкости находят требуемый радиус инерции
сечения:
iy, cal = lef / λу =30,4/4,03=7,54. (3.3)
Прокатные колонны подбирают по сортаменту, используя
полученные значения требуемых площади и радиуса инерции сечения. Из приложения
В выписываются фактические геометрические характеристики сечения двутаврового
профиля колонного типа (К).
Для проверки устойчивости колонны определяют её фактическую
гибкость:
λу = lef / iу =30,4/7,54=4,03. (3.4)
Далее по фактической гибкости определяют коэффициент φу и проверяют устойчивость:
σ = N/ (φу×А) ≤ Rу × γc, (3.5)
где А и iу - фактические площадь и радиус инерции
подобранного сечения колонны (приложение В).
В случае перенапряжения или значительного недонапряжения
конструкции подбирается другой профиль и повторяется проверка устойчивости
колонны. Необходимо проверить превышение гибкости колонны допустимой величины
λ пр:
λу ≤ λ пр = 180 - 60×α=104, (3.6)
α = N/ (A× φmin× Rу × γc) =210МфцыуЦфФ0020,если α ˂ 0,5, то принимается α = 0,5;
Rу - для фасонной стали с
соответствующей толщиной полки.
4. Общие
требования к текстовой и расчетно-графической части
Титульный лист курсовой работы заполняется согласно Приложению Д.
Рекомендуется общий курсовой работы до 30 страниц текста компьютерного набора с
таблицами, графиками в текстовой части. Чертежи и карты, а при необходимости
подробные табличные данные приводятся в приложениях. Формат страницы А4, поля:
слева - 30 мм, справа - 1,5 вверху и снизу - 20 мм. Текст в формате WinWord, шрифт - Times New Roman, кегль - 14 пт, межстрочный интервал -
1,5, абзац 1,0. Графики, чертежи и карты предоставляются оформленными по
требованиям ГОСТ с соответствующими подписями и печатями. Графики и чертежи
желательно выполнить компьютерными средствами, например, с помощью программ Avtocad, Microsoft Excel, Adobe Acrobat и
др., формулы с помощью редактора формул.
При выполнении расчетно-графических работ вручную, формулы
выписывать аккуратно, чтобы была читаемость, а графики и чертежи и подписи к
ним с соблюдением требований ГОСТ и картографического черчения.
Библиографический
список
1.
СНиП I I
- 23 - 81*. Стальные конструкции. Нормы проектирования / Госстрой
СССР - М.; ЦИПТ Госстроя СССР, 2002.
.
Инженерные конструкции. Под. ред. проф. Бергена Р.И. - М.: Высшая школа, 1989,
407 с.
.
Примеры расчёта металлических конструкций. Мандриков А.П. - М.: Стройиздат,
1991, 427с.
.
Металлические конструкции. Справочник проектировщика. Под. ред. акад.
Мельникова Н.П. - М.: Стройиздат, 1980, 775с.
.
Инженерные конструкции. Дукарский Ю.М., Расс Ф.В., Семёнов В.Б. - М.: КолосС,
2008.
Приложение А
Выборка из сортамента
1. Сталь широкополосная (универсальная), ГОСТ
82-70*.
Ширина листов, мм: 200, 210, 220, 240, 250, 260, 280, 300,
320, 340, 360, 380, 400, 420, 450, 480, 500, 530, 560, 600, 630, 650, 670, 700,
750, 800, 850, 900, 950, 1000, 1050.
Толщина листов, мм: 6, 7, 8, 9,10, 11, 12, 14,16, 18, 20, 22,
25, 28, 30, 32, 36, 40.
2. Сталь толстолистовая по ГОСТ 19903-74*
Ширина листов, мм: 1000, 1250, 1400, 1500, 1600… и далее
через 100 мм до 3600 мм.
Толщина листов, мм: 6, 7, 8, 9, 10, 11, 12, 14, 16, 18, 20,
22, 24, 26, 28, 30.
3. Сталь полосовая по ГОСТ 103-76*
Ширина листов, мм: 60, 63, 65, 70, 80, 85, 90, 95, 100, 105,
110, 120, 125, 130, 140, 150, 160, 170, 180, 190, 200.
Толщина листов, мм: 6, 7, 8, 9, 10, 11, 12, 14, 16, 18, 20.
Приложение Б
Балки двутавровые (выборка из ГОСТ 8239 - 89)
|
Обозначения: h - высота балки; b - ширина полки; t - средняя толщина полки; s - толщина стенки; R - радиус внутреннего закругления; I - момент инерции; W - момент сопротивления; i - радиус инерции; S - статический момент полусечения.
|
|
|
№ бал ки
|
Размеры, мм
|
Ли ней ная
плотнос ть, кг/м
|
Пло щадь сече
ния, А, см2
|
Справочные
данные для осей: Х - Х У - У
|
|
|
|
|
Iх, см4
|
Wх, см3
|
i х, см
|
Sх, см3
|
Iу, см4
|
Wу, см3
|
i у,
см
|
|
h
|
b
|
s
|
t
|
R
|
r
|
|
|
|
|
|
|
|
|
|
|
10
|
100
|
55
|
4,5
|
7,2
|
7
|
2,5
|
9.48
|
12
|
198
|
39,7
|
4,06
|
23,0
|
17,9
|
6,49
|
1,22
|
|
12
|
120
|
64
|
4,8
|
7,3
|
7,5
|
3
|
11,5
|
14,7
|
350
|
58,4
|
4,88
|
33,7
|
27,9
|
8,72
|
1,38
|
|
14
|
140
|
73
|
4,9
|
7,5
|
8
|
3
|
13,7
|
17,4
|
572
|
61,7
|
5,73
|
46,8
|
41,9
|
11,5
|
1,55
|
|
16
|
160
|
81
|
5,0
|
7,8
|
6,5
|
3,5
|
15,9
|
20,2
|
873
|
109
|
6,57
|
62,3
|
58,6
|
14,5
|
1,70
|
|
18
|
180
|
90
|
5,1
|
8,1
|
9,0
|
3,5
|
18,4
|
23,4
|
1290
|
143
|
7,42
|
81,4
|
82,6
|
18,4
|
1,88
|
|
20
|
200
|
100
|
5,2
|
8,4
|
9,5
|
4
|
21
|
26,8
|
1840
|
184
|
8,28
|
104
|
115
|
23,1
|
2,07
|
|
22
|
220
|
110
|
5,4
|
8,7
|
10
|
4
|
24
|
30,6
|
2550
|
232
|
9,13
|
131
|
157
|
28,6
|
2,27
|
|
24
|
240
|
115
|
5,6
|
9,5
|
10,5
|
4
|
27
|
34,8
|
3460
|
289
|
9,97
|
163
|
198
|
34,5
|
2,37
|
|
27
|
270
|
125
|
6,0
|
9,8
|
11
|
4,5
|
31,5
|
40,2
|
5010
|
371
|
11,2
|
210
|
260
|
41,5
|
2,54
|
|
30
|
300
|
135
|
6,5
|
10,2
|
12
|
5
|
36,5
|
46,5
|
7080
|
472
|
12,3
|
268
|
337
|
49,9
|
2,69
|
|
33
|
330
|
140
|
7,0
|
11,2
|
13
|
5
|
42,2
|
53,8
|
9840
|
597
|
13,5
|
339
|
419
|
59,9
|
2,79
|
|
36
|
360
|
145
|
7,5
|
12,3
|
14
|
6
|
48,6
|
61,9
|
13380
|
743
|
14,7
|
423
|
516
|
71,1
|
2,89
|
|
40
|
400
|
155
|
8,3
|
13,0
|
15
|
6
|
57
|
72,6
|
19062
|
953
|
16,2
|
545
|
667
|
86,1
|
3,03
|
|
45
|
450
|
160
|
9,0
|
14,2
|
16
|
7
|
66,5
|
84,7
|
27696
|
1231
|
18,1
|
708
|
808
|
101
|
3,09
|
|
50
|
500
|
170
|
10
|
15,2
|
17
|
7
|
78,5
|
100
|
39727
|
1589
|
19,9
|
919
|
1043
|
123
|
3,23
|
|
55
|
550
|
180
|
11
|
16,5
|
18
|
7
|
92,6
|
118
|
55962
|
2035
|
21,8
|
1181
|
1356
|
151
|
3,39
|
|
60
|
600
|
190
|
12
|
17,8
|
20
|
8
|
108
|
138
|
78806
|
2560
|
23,6
|
1491
|
1725
|
182
|
3,54
|
Приложение В
Двутавры стальные горячекатаные с параллельными гранями полок
по ГОСТ 26020-83. Колонный профиль.
|
№ про филя
|
Ли ней ная плот
ность (кг/м)
|
Размеры, мм
|
Пло щадь сече
ния, А, см2
|
Справочные
данные для осей Х - ХУ - У
|
|
|
h
|
b
|
s
|
t
|
R
|
|
Iх, см4
|
Wх, см3
|
Sх, см3
|
i х, см
|
Iу, см4
|
Wу, см3
|
i у,
см
|
|
20К1 20К2
|
41,5 46,9
|
195 198
|
200
200
|
6,5 7
|
10 11,5
|
13 13
|
52,82 59,70
|
3820 4422
|
392 447
|
216 247
|
8,50 8,61
|
1334 1534
|
133 153
|
5,03 5,07
|
|
23К1 23К2
|
52,2 59,5
|
227 230
|
7 8
|
10,5 12
|
14 14
|
66,51 75,77
|
6589 7601
|
580 661
|
318 365
|
9,95 10,02
|
2421 2766
|
202 231
|
6,03 6,04
|
|
26к1 26К2 26К3
|
65,2 73,2 83,1
|
255 258 262
|
260
260 260
|
8 9
10
|
12 13,5 15,5
|
16 16 16
|
83,08 93, 19
105,90
|
10300 11700
13560
|
809 907 1035
|
445 501 576
|
11,14 11,21
11,32
|
3517 3957 4544
|
271 304 349
|
6,51 6,52 6,55
|
|
30К1 30К2 30К3
|
84,8 96,3 108,9
|
296 300 304
|
300
300 300
|
9 10
11,5
|
13,5 15,5 17,5
|
18 18 18
|
108,00 122,70
138,72
|
18110 20930
23910
|
1223 1395 1573
|
672 771 874
|
12,95 13,06
13,12
|
6079 6980 7881
|
405 465 525
|
7,50 7,54 7,54
|
|
35К1 35К2 35К3
|
109,7 125,5
144,5
|
343 348 353
|
350
350 350
|
10 11 13
|
15,0 17,5 20,0
|
20 20 20
|
139,70 160,40
184,10
|
31610 37090
42970
|
1843 2132 2435
|
1010 1173 1351
|
15,04 15,21
15,28
|
10720 12510
14300
|
613 715 817
|
8,76 8,83 8,81
|
|
40К1 40К2 40К3
40К4 40К5
|
138,0 165,6
202,3 242,2 291,2
|
393 400 409 419
431
|
400
400 400 400 400
|
11 13 16 19 23
|
16,5 20,0 24,5
29,5 35,5
|
22 22 22 22 22
|
175,80 210,96
257,80 308,60 371,00
|
52400 64140
80040 98340 121570
|
2664 3207 3914
4694 5642
|
1457 1767 2180
2642 3217
|
17,26 17,44
17,62 17,85 18,10
|
17610 21350
26150 31500 37910
|
880 1067 1307
1575 1896
|
10,00 10,06
10,07 10,10 10,11
|
Приложение Г
Коэффициенты φ продольного изгиба
центрально-сжатых стальных элементов
|
Гибкость
элемента, λу
|
Значения φ при Rу, МПа
|
|
200
|
240
|
280
|
320
|
360
|
400
|
|
60
|
0,827
|
0,805
|
0,785
|
0,766
|
0,749
|
0,721
|
|
70
|
0,782
|
0,754
|
0,724
|
0,687
|
0,654
|
0,623
|
|
80
|
0,734
|
0,686
|
0,641
|
0,602
|
0,566
|
0,532
|
|
90
|
0,665
|
0,612
|
0,565
|
0,522
|
0,483
|
0,447
|
|
100
|
0,599
|
0,542
|
0,493
|
0,448
|
0,408
|
0,369
|
|
110
|
0,537
|
0,478
|
0,427
|
0,381
|
0,338
|
0,306
|
Ry = 20 кН/см2
|
Гиб кость,λу
|
0
|
1
|
2
|
3
|
4
|
5
|
6
|
7
|
8
|
9
|
|
30
|
939
|
936
|
932
|
929
|
926
|
923
|
919
|
916
|
913
|
909
|
|
40
|
906
|
903
|
899
|
896
|
893
|
889
|
885
|
881
|
877
|
873
|
|
50
|
869
|
865
|
861
|
856
|
852
|
848
|
844
|
840
|
835
|
831
|
|
60
|
827
|
823
|
818
|
814
|
809
|
805
|
800
|
796
|
791
|
787
|
|
70
|
782
|
777
|
772
|
768
|
763
|
758
|
753
|
748
|
744
|
739
|
|
80
|
734
|
727
|
720
|
713
|
706
|
700
|
693
|
686
|
679
|
672
|
|
90
|
665
|
658
|
652
|
645
|
639
|
632
|
625
|
619
|
612
|
606
|
|
100
|
599
|
593
|
587
|
580
|
574
|
568
|
526
|
556
|
459
|
543
|
|
110
|
537
|
531
|
525
|
520
|
514
|
508
|
502
|
496
|
491
|
485
|
|
120
|
479
|
474
|
468
|
463
|
457
|
452
|
477
|
441
|
436
|
430
|
|
130
|
425
|
420
|
415
|
410
|
405
|
401
|
396
|
391
|
386
|
381
|
|
140
|
376
|
371
|
366
|
362
|
327
|
352
|
347
|
342
|
338
|
333
|
|
150
|
328
|
324
|
320
|
317
|
313
|
309
|
305
|
301
|
298
|
294
|
Ry = 24 кН/см2
|
Гибкость, λу0 123456789
|
|
|
|
|
|
|
|
|
|
|
|
30
|
931
|
928
|
924
|
920
|
916
|
913
|
909
|
905
|
901
|
898
|
|
40
|
894
|
890
|
886
|
882
|
878
|
874
|
870
|
865
|
861
|
857
|
|
50
|
852
|
847
|
843
|
838
|
833
|
829
|
824
|
819
|
814
|
810
|
|
60
|
805
|
800
|
796
|
790
|
785
|
780
|
774
|
769
|
764
|
759
|
|
70
|
754
|
747
|
740
|
734
|
727
|
720
|
713
|
706
|
700
|
693
|
|
80
|
686
|
679
|
671
|
664
|
656
|
649
|
642
|
634
|
627
|
619
|
|
90
|
612
|
605
|
598
|
591
|
577
|
570
|
563
|
556
|
549
|
|
100
|
542
|
536
|
529
|
523
|
516
|
510
|
504
|
497
|
491
|
484
|
|
110
|
478
|
472
|
466
|
460
|
454
|
449
|
443
|
437
|
431
|
425
|
|
120
|
419
|
414
|
408
|
403
|
397
|
392
|
386
|
381
|
375
|
370
|
|
130
|
364
|
359
|
354
|
349
|
344
|
340
|
335
|
330
|
325
|
320
|
|
140
|
315
|
311
|
307
|
303
|
299
|
296
|
292
|
288
|
284
|
280
|
|
150
|
276
|
273
|
270
|
266
|
263
|
260
|
257
|
254
|
250
|
247
|
Ry = 28 кН / см2
|
Гиб кость, λу
|
0
|
1
|
2
|
3
|
4
|
5
|
6
|
7
|
8
|
9
|
|
30
|
924
|
920
|
916
|
911
|
907
|
903
|
899
|
895
|
891
|
887
|
|
40
|
883
|
787
|
873
|
869
|
864
|
860
|
856
|
850
|
845
|
840
|
|
50
|
836
|
831
|
826
|
821
|
816
|
811
|
805
|
800
|
795
|
790
|
|
60
|
785
|
779
|
773
|
767
|
762
|
755
|
748
|
743
|
736
|
730
|
|
70
|
724
|
716
|
707
|
699
|
691
|
683
|
674
|
666
|
658
|
649
|
|
80
|
641
|
633
|
626
|
618
|
611
|
603
|
595
|
588
|
580
|
573
|
|
90
|
565
|
558
|
551
|
543
|
536
|
529
|
522
|
518
|
507
|
500
|
|
100
|
493
|
486
|
480
|
473
|
467
|
460
|
453
|
447
|
440
|
434
|
|
110
|
427
|
421
|
415
|
409
|
403
|
437
|
390
|
384
|
378
|
379
|
|
120
|
366
|
361
|
355
|
350
|
345
|
340
|
334
|
329
|
324
|
318
|
|
130
|
313
|
309
|
305
|
301
|
297
|
293
|
288
|
284
|
280
|
276
|
Ry = 32 кН/см2
|
Гибкость, λу0 123456789
|
|
|
|
|
|
|
|
|
|
|
|
30
|
917
|
912
|
908
|
903
|
899
|
894
|
890
|
886
|
881
|
878
|
|
40
|
873
|
868
|
863
|
858
|
853
|
848
|
842
|
837
|
832
|
827
|
|
50
|
822
|
816
|
811
|
805
|
800
|
794
|
788
|
783
|
777
|
772
|
|
60
|
766
|
758
|
750
|
742
|
734
|
727
|
729
|
711
|
703
|
695
|
|
70
|
687
|
679
|
670
|
662
|
653
|
645
|
636
|
628
|
619
|
611
|
|
80
|
602
|
594
|
586
|
578
|
570
|
562
|
554
|
546
|
538
|
530
|
|
90
|
522
|
514
|
507
|
499
|
492
|
485
|
478
|
470
|
463
|
455
|
|
100
|
448
|
441
|
435
|
428
|
421
|
415
|
408
|
401
|
394
|
388
|
|
110
|
381
|
375
|
369
|
363
|
357
|
351
|
345
|
339
|
333
|
327
|
|
120
|
321
|
317
|
312
|
308
|
303
|
299
|
294
|
290
|
285
|
281
|
|
130
|
276
|
272
|
269
|
265
|
262
|
258
|
254
|
251
|
247
|
244
|
|
140
|
240
|
237
|
237
|
231
|
228
|
226
|
223
|
220
|
217
|
214
|
|
150
|
211
|
209
|
207
|
204
|
202
|
199
|
197
|
194
|
192
|
189
|
Гибкость, λу0 123456789
|
|
|
|
|
|
|
|
|
|
|
|
30
|
911
|
906
|
901
|
897
|
892
|
887
|
882
|
877
|
873
|
868
|
|
40
|
863
|
858
|
852
|
847
|
841
|
836
|
831
|
825
|
820
|
814
|
|
50
|
809
|
803
|
798
|
791
|
785
|
779
|
773
|
767
|
761
|
755
|
|
60
|
749
|
740
|
730
|
721
|
711
|
702
|
692
|
683
|
673
|
664
|
|
70
|
654
|
645
|
636
|
628
|
619
|
610
|
601
|
592
|
584
|
575
|
|
80
|
566
|
558
|
549
|
541
|
533
|
525
|
516
|
508
|
500
|
549
|
|
90
|
483
|
476
|
468
|
461
|
453
|
446
|
438
|
431
|
423
|
416
|
|
100
|
408
|
401
|
394
|
387
|
380
|
373
|
366
|
359
|
352
|
345
|
|
110
|
338
|
333
|
328
|
323
|
318
|
313
|
307
|
302
|
297
|
292
|
|
120
|
287
|
283
|
279
|
275
|
271
|
276
|
263
|
259
|
255
|
251
|
|
130
|
247
|
244
|
241
|
237
|
234
|
231
|
228
|
225
|
221
|
218
|
|
140
|
215
|
212
|
210
|
207
|
205
|
202
|
199
|
197
|
194
|
192
|
|
150
|
189
|
187
|
185
|
182
|
180
|
178
|
176
|
174
|
171
|
169
|
Ry = 40 кН/см2
|
Гибкость, λу0 123456789
|
|
|
|
|
|
|
|
|
|
|
|
30
|
905
|
900
|
895
|
890
|
885
|
880
|
874
|
869
|
864
|
859
|
|
40
|
854
|
848
|
842
|
837
|
831
|
825
|
819
|
813
|
808
|
802
|
|
50
|
796
|
789
|
781
|
774
|
766
|
759
|
751
|
744
|
736
|
729
|
|
60
|
721
|
711
|
701
|
692
|
682
|
672
|
662
|
652
|
643
|
633
|
|
70
|
623
|
614
|
605
|
596
|
687
|
578
|
568
|
559
|
550
|
541
|
|
80
|
532
|
524
|
515
|
507
|
498
|
490
|
481
|
473
|
464
|
456
|
|
90
|
447
|
439
|
431
|
424
|
416
|
408
|
400
|
392
|
385
|
377
|
|
100
|
369
|
363
|
356
|
350
|
344
|
338
|
331
|
325
|
319
|
312
|
|
110
|
306
|
301
|
297
|
292
|
288
|
283
|
278
|
274
|
269
|
265
|
|
120
|
260
|
256
|
253
|
249
|
245
|
241
|
238
|
234
|
230
|
227
|
|
130
|
223
|
220
|
217
|
215
|
212
|
209
|
206
|
203
|
201
|
198
|
|
140
|
195
|
193
|
190
|
188
|
185
|
183
|
181
|
178
|
176
|
173
|
|
150
|
171
|
169
|
167
|
165
|
163
|
162
|
160
|
158
|
156
|
154
|
Примечание: Значения коэффициентов φ в таблицах увеличены в 1000 раз.
Похожие работы на - Разработка стальных конструкций рабочей площадки
|