Проектування каналізаційної насосної станції
Проектування каналізаційної
насосної станції
Вихідні дані
1. Добова подача насосної станції в часи максимального
водовідведення Qмакс.доб = 40087м3/доб.
2. Загальний коефіцієнт нерівномірності Кч =
1,5
. Число мешканців у населеному місці N = 60550 жит.
4. Довжина напірних водоводів lвод.= 1500 м
. Відмітки:
.1 лотка підвідного колектора Zлот = 48.560м
.2 поверхні землі в місці розташування насосної станції, Zнс
= 53.150м;
.3. приймальної камери очисних спорудZос = 60.000
м
5.4 Заглиблення підвідного коллектора4,59 м
. Диаметр підвідного колектора 1000 мм
. Рівень грунтових вод 49.000м
Рис. 1. Висотна схема каналізаційної насосної станції
1. Визначення розрахункових витрат
Розрахункова витрата насосної станції має бути рівна або дещо
перевершувати максимальний секундний приплив стоків. За графіком водовідведення
максимальний і мінімальний годинні припливи стічних вод відповідно дорівнюють
до 6,25 % і 1,6 % від Qдоб при загальному коефіцієнті нерівномірності
припливу СВ Кзаг = 1,5.
Щоб підібрати обладнання необхідно визначити розрахункові
витрати й повний напір насосів за різними режимами роботи.
Середня витрата:
ср. = Qдоб./24 = 40087/24 = 1670,3м3/ч =
464 л/с
б) Максимальна витрата:
мах = (40087:100)·6,25= 2505,44 м3/ч:3,6 = 696 л/с;
або Qмах= Qср.Кзаг=1670,3·1,5
= 2505,44 м3/ч :3,6 = 696 л/с
в)Мінімальна витрата:
мin = 40087∙1,6/100 = 641,4м3/ч:3,6 =
178,2л/с
Результати розрахунків зводимо в таблицю 1.
Таблиця 1. Визначення розрахункових витрат
|
Режим роботи (витрати в % від Qмакс. доб.)
|
Витрати
|
Q2вод м6/с2
|
Sвод с2/м5
|
hвод= 1,1·SQ2 м
|
Нг+(hвс+hн), м
|
Нполн = Нг +∑hw +hиз м
|
|
Qнс л/с
|
Qвод м3/с
|
|
|
|
|
|
|
Мінімальні витрати % від Qмакс. доб.
|
178
|
0,089
|
0,0079
|
101,67
|
0,9
|
14,94
|
16,34
|
|
Середні витрати 4,17% від Qмаксдоб
|
464
|
0,232
|
0,0538
|
|
6,02
|
|
21,46
|
|
Максимальні витрати Qмах.= Kзаг·Qсер
|
696
|
0,348
|
0,12
|
|
12,31
|
|
27,12
|
2. Визначення діаметру водовода и повного напору
Насосна станція подає воду в місто по двох паралельних
водоводах, тому що за вимогами СНиП 2.04.03-85 ми повинні забезпечити
безперебійну роботу насосної станції.
Для визначення діаметра водовода й втрат напору в ньому,
можна користуватися таблицями А.Ф.Шевелева, в яких наведено втрати напору 1000і
на довжину 1км. Діаметри водоводів також можна визначити за формулами
гідравліки.
По числу жителів і максимальній добовій подачі відносимо НС
до другої категорії надійності дії, тому згідно п.5.8. СНиП 2.04.03-85
приймаємо два водоводи.
Виходячи з економічних швидкостей (п.7.9. СНиП2.04.02.84) призначаємо
діаметр напірних водоводів за формулою:
вод = √ ((4·Qвод)/( р·Vэк)),
м
де Qвод= Qmax/2
= 696:2=348л/с = 0,348 м3/с ; эк - економічні швидкості при d <
600 мм дорівнюють 1,2 - 1,8 м/с;вод = √ ((4·Qвод)/(
р·Vэк)) = √(4∙0,348/3,14∙1,5) = 0,544 м
Приймаємо діаметр
труб 500мм, матеріал - чавунні труби.
При цьому V= 1,71
м/с;
i = 8,21м;
Ат = 0,06778 с2/м6;
Де Ат - питомий опір труб на 1м довжини у с2/м6,
приймаємо за табл. 2.1. додатку ;
i - втрати напору на 1км довжини водовода.
Втрати напору у водоводі визначають за формулами:
hвод = 1,1 ∙(1000і∙ lвод )
= 1,10∙ (8,21 х 1,5) = 13,54м;вод = 1,1 · SQ2 = 1.1
· 101,67∙ ( 0,348)2 = 13,54 м;вод = Aт·
lвод = 0,06778 ∙ 1500 = 101,67 с2/м5;
Визначення повного напору насоса
Повний напір насоса при максимальній
подачі дорівнює
Н = Нг + ∑hw;
де Hг - геометричний напір, Hг = Zос
- Zрез, Zрез = Zлот - 1,0м ;
∑hw = hвод +( hвс + hн)
+ hзл;
(hвс + hн) - сума втрат напору в
комунікаціях насосної станції;
hзл - витрати на злив (0,5 - 1,0 м);
г = Zос - Zрез = 60,0 - 47,56 = 12,44 м;
Zрез = Zлот - 1,0 = 48,56- 1,0 = 47,56
м .
Сума втрат (hвс + hн) у всмоктувальній
і напірних сполучних лініях попередньо приймаємо рівними 2,5м (ці втрати у
подальшому розрахунку уточнюються).
Н = Нг + ∑hw = 12,44+ 13,54 + 2,5
+ 0,5 = 28,98 ≈ 29.0 м;
По максимальній секундній витраті 696л/с і повному напору
29,0м по каталогу насосів і зведеному графіку полів Q-H (рис.2.15 МВ)
підбираємо 3 робочих горизонтальних насоса марки СМ250-200-400/4Б. Подача
одного насоса дорівнює 232л/с. Згідно п.5.4. СНиП 2.04.03 - 85 на НС ІІ
категорії при числі робочих агрегатів до 3-х варто приймати 2 резервних
агрегатів.
Разом до установки прийнято 5 насосних агрегатів марки
СМ250-200-400/4Б. Робочі характеристики насоса приведені на рисунку 2.
Рис.2. Характеристики насоса СМ250-200-400/4Б
. Розміщення основного обладнання в машинному залу
У машинному залу розміщуються 5 технологічних насосів
СМ250-200-400б/4Б (3робочих і 2-х резервних), 2 насоси ВК2/26 (1 - робочий, 1 -
резервний зберігається на складі) для подання води на ущільнення сальників
основних технологічних насосів, 2 погружних дренажних насоса марки ГНОМ 10-10
(1 - робочий і 1 - резервний), які встановлюють у дренажному приямку.
Насоси СМ250-200-400б/4Б монтуються з електродвигуном на
загальній плиті, що входить в об'єм постачання заводу виробнику і
встановлюються під затокою відносно рівня води в приймальному резервуарі, при
якому включається перший насос в роботу. Компонування насосів прийнято згідно з
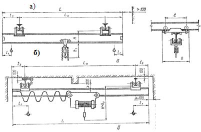
типовим проектом, однорядне, перпендикулярно подовжній розділовій стіні.
Проектуємо два діаметрально протилежні виходи напірного
трубопроводу з насосної станції, d = 500 мм із сталевих труб. На напірному
трубопроводі кожного насоса встановлюється зворотний клапан між засувкою і
насосом. До кожного насоса передбачена окрема всмоктувальна труба. Засувки на
загальному напірному трубопроводі встановлені електрифіковані, на
всмоктувальних і напірних трубопроводах від кожного насоса теж.
. Гідравлічний розрахунок всмоктувальних і напірних
трубопроводів
Для визначення внутрішньостанційних опорів викреслюємо
аксонометричну схему (рис.2.3.) всмоктуючих і сполучних напірних трубопроводів.
На схемі вказуємо діаметри, арматуру, фасонні частини і визначаємо самий невигідний
для розрахунку втрат напору шлях руху води.
Обчислення внутрішньостанційних опорів у всмоктувальних і
напірних сполучних лініях зводимо в таблицю 2.
Гідравлічний розрахунок внутрішньостанційних опорів в
комунікаціях розпочинаємо з визначення діаметрів труб.
Діаметри всмоктуючих і напірних труб визначаємо по формулах:
вс = √ ((4∙Qвc) / (р∙Vэк))
=√(4∙0,232/3,14∙1,0) = 0,54м;
де Vек -
допустимі швидкості у всмоктуючих трубопроводах (при d = 300 - 800 мм швидкість
0,8 - 1,5 м/с; у напірних трубопроводах - 1,0 - 3 м/с).
Приймаємо d.вс=
500 мм; при цьому згідно табл. Шевелева Vек=1,1м/с;
н = √ ((4∙Qн)/(3,14∙2,0))
=√(4 ∙ 0,232 / 3,14∙2,0) = 0,39м.
Приймаємо труби,
диаметром dн = 400 мм, при цьому згідно табл. Шевелева швидкість
дорівнює Vэк. нап = 1,71м/с;
Внутрішньостанційні трубопроводи приймаємо із сталевих труб,
що сполучаються на зварюванні, а в місцях установки арматури - на фланцях.
Рис. 3. Аксонометрична схема внутрішньостанційних комунікацій
для визначення опорів у всмоктувальних та напірних трубопроводах в середині
насосної станції з п’ятьма горизонтальними насосними агрегатами типу
СМ250-200-400
Номери опорів на схемі відповідні номерам опорів у таблиці 2.
Примітка: Аксонометрична схема внутрішньостанційних
комунікацій вертикальних насосів типу СДВ і таблиця з обчислень опорів наведена
у додатку (див. рис. 8 і табл. 6.)
Втрати напору у всмоктувальних і напірних трубопроводах
визначаємо за формулами:
вс= Sвс ∙Q2 = 3,72∙(0,348)2=
0,45мн= Sн ∙Q2 = 15,45∙(0,348)2=
1,87м
Отримане розрахунком значення суми внутрішньостанційних втрат
напору у всмоктувальних та напірних сполучних лініях
∑hнс = (hвс + hн)
має бути не більше за суму цих величин, прийняту попередньо
при підборі насосів, а саме
∑ (hвс + hн) = 2,32м < менше
2,5 м,
де Sвс Sн - відповідні питомі опори
всмоктувальних і напірних сполучних лінях, визначаються як:
вс = ∑Ат·L+ ∑Ac ·ж, c2/м5,c=
0,0827/d4 ,
де Ат = f(d), c2/м6 - питомий опір
трубопроводу, який визначено по діаметру і матеріалу труб (таблиця 1); -
коефіцієнт, що залежить від діаметру за даним місцевим опором (таблиця 1.);-
довжина прямих ділянок труб в метрах (приймаєтся 3-5м);
ж - коефіцієнт цього місцевого опору;
Величини коефіцієнтів Ат, Ас і ж приводяться в таблицях
додатку 13 .
Розрахунок можна вести в табличній формі, табл.2.
Таблица 2. Визначення опорів у всмоктувальних та сполучних
напірних внутрішньостанційних трубопроводах
|
№ опорів
|
Найменування опір
|
Схема
|
Кількість n
|
Діаметр, d, мм
|
Ас, або Ат
|
ж або l
|
S=Ас·ж· n S= Ат·l
|
|
1. Всмоктувальна лінія
|
|
1
|
Вхід в трубу
|
1
|
500
|
1,32
|
0.2
|
0,264
|
|
|
2
|
Коліно
|
1
|
500
|
1,32
|
0.6
|
0,792
|
|
|
3
|
Засувка
|
1
|
500
|
1,32
|
0.2
|
0,264
|
|
|
4
|
Перехід звужений
|
1
|
250
|
21,1
|
0.1
|
2,11
|
|
|
5
|
Пряма ділянка
|
---
|
1
|
500
|
0,05784
|
5.0м
|
0,290
|
|
∑Sвс= 3,72с2/м5
|
|
2.Напірна лінія
|
|
6
|
Перехід розш.
|
1
|
400
|
3,23
|
0.25
|
0,808
|
|
|
7
|
Зворотній клапан
|
1
|
400
|
3,23
|
1.7
|
5,49
|
|
|
8
|
Засувка
|
1
|
400
|
3,23
|
0.2
|
0,646
|
|
|
9
|
Коліно
|
1
|
400
|
3,23
|
0.6
|
1,94
|
|
|
10
|
Засувка
|
5
|
500
|
1,32
|
0.2
|
1,32
|
|
|
11
|
Трійник з поворотом
|
1
|
500
|
1,32
|
1.5
|
1,98
|
|
|
12
|
Трійник транзитний
|
4
|
500
|
1,32
|
0.1
|
0,528
|
|
|
13
|
Пряма ділянка
|
---
|
1
|
500
|
0,05784
|
20м
|
1,1568
|
|
14
|
Коліно
|
2
|
500
|
1,32
|
0.6
|
1,584
|
|
|
∑Sн= 15,45с2/м5
|
|
|
|
|
|
|
|
|
|
. Побудова графіка спільної роботи насосів і водоводів
Характеристику трубопроводу будуємо методом підбора,
задаючись витратою Q1, Q2,… Qn і визначаючи
відповідний напір за рівнянням
Н = Нг + ∑hw
де Нг - геометричний напір насосів, дорівнює 12,44м; ∑hw
- загальні втрати напору у системі ∑hw = hвод
+hвс +hн +hзлив ;
S - загальній опір системи (водоводи, всмоктувальні та
сполучні напірні лінії в середині насосної станції), с2/м5.
Розрахунки доцільніше вести в табличній формі (див табл.2.3).
= Sвод + Sвс + Sн
=101,67+3,72+ 15,45 = 120,84с2/м5,
де Sвод = Ат·lвод = 101,67с2/м5,
Sвс = 3,72с2/м5 ; Sн =15,45 с2/
м5
Таблиця 3. Для побудови графіка спільної роботи насосів та
водоводів
|
№
|
Витрата
|
Q2вод , (м6/с2)
|
S, (с2/м5)
|
∑hw= 1,1·SQ2, (м)
|
Нг, м
|
Нпол=Нг +∑hw , (м)
|
|
Qвод, л/с
|
Q, м3/с
|
|
|
|
|
|
|
1
|
100
|
0,1
|
0,01
|
120,84
|
1,33
|
12,44
|
14,3
|
|
2
|
200
|
0,2
|
0,04
|
|
5,3
|
|
18,2
|
|
3
|
342
|
0,342
|
0,117
|
|
15,6
|
|
28,5
|
|
4
|
400
|
0,4
|
0,16
|
|
21,3
|
|
34,2
|
|
5
|
500
|
0,5
|
0,25
|
|
33,2
|
|
46,1
|
Аналіз графіка спільної роботи насосів і водоводів (рис.2.4.)
показує, що мінімальний режим водовідведення, при витраті води Q = 178л/с і
тиску Н=16,4м недоцільно забезпечувати підібраними насосами СМ250-200-400/4б,
оскільки подачу насоса Qмін = 178л/с він забезпечує при тиску Н =
37,5м, а в мережі необхідний при цьому тиск всього 16,4м, тобто різницю напору
(Н-Нмін)=37,5-16,4 =21,1м в години мінімального водоспоживання
необхідно глушити засувкою, це допускається, але в невеликих межах, коли Н/Нмін
буде не більш 1,2, а в нас відношення дорівнює 37,5/16,4 = 2,28 .
Для забезпечення економічної роботи насосної станції
необхідно для мінімального режиму водоспоживання підібрати інший насос з меншою
продуктивністю (або один з прийнятих насосів обладнати електродвигуном з
частотним приводом для можливості регулювання витрати насоса зміною частоти
обертання валу насоса). У кожному конкретному випадку вибирають варіант на
основу техніко-економічних розрахунків.
6. Визначення відмітки осі насоса - ▼ВН
Згідно СНиП на каналізаційних насосних станціях насоси слід
встановлювати під затокою.
Тому для нормальної роботи насоса його корпус розташовують на
0,3-0,5 м нижче рівня води в приймальному резервуарі, при якому включається
перший насос в роботу - Zвкл (див. мал. 2.5.)
вкл = Zmax - 0,2(n-1) = 48,56 - 0.2 (3 - 1) = 48,16м,max
= Zлот = 48,56м,
де: n - кількість насосів;
Відмітку осі насоса визначаємо за формулою:
ВН = Zвкл - 0,5 - h до осіагр = 48,16 -
0,5- 0,56 = 47,100м
де hдоосіагр - габарит насоса від верху корпусу до
осі насоса приймається по монтажному кресленню каталогу насосів
(табл.2.16.Додатку).
Відмітка підлоги машинного зала визначена за формулою:
м.з. = ВН - hагрдо низу - hф = 47,100- 0,7 =
46,400м.
ф - висота фундаменту для малих насосів не менше 0,25 м, для
середніх- (0,4-0,7м).
Глибина приймального резервуару для насосів типу СМ дорівнюєрез
= 1,5- 2,0 м. Приймаємо hрез =2,0м.
Тоді глибина машинного залу дорівнюєм.з. = 53,30 -
46,4 = 6,9м;
Геометричну висоту всмоктування визначаємо за формулою
Нs= 10-∆h- hвс - hн.п.ж
= 10-8,5-0,45-0,24= 0,81м;
Тоді відмітка осі насоса становить ВН = РВmin + Нs
= 46.56 + 0.81 = 47.37м, а розрахункова відмітка осі насоса дорівнює 47.100м,
тобто насос в змозі працювати, якщо у приймальному резервуару мінімальний
рівень води і насос працюватиме з позитивною висотою всмоктування.
Рис. 4. Графік паралельної работи 3-х насосів
СМ250-200-400/4б і двох водоводів
. Визначення потужності і підбір електродвигунів і
трансформаторів
Потужність електродвигунів визначаємо за формулою (13):
дв. = Кз · Nвал ;вал = Q1
· H1/(102 · з1) , кВт;
где Q1, H1, з1 -- параметри,
які приймаємо за графіком спільної роботи, при роботі 1-го насоса на два
водоводи (див.рис.2.4).
Кз -- коефіцієнт запасу, який дорівнює:
при: N до 100 кВт Кз = 1,2
> 100 кВт Кз = 1,1 вал = Q1
· H1/(102 · з1) = 272∙23/102∙0,64 = 96кВт ;
дв. = 96 ∙1,2 = 115 кВт,
Приймаємо (з табл.2.15.) електродвигун марки 4А315S4У3,
потужністю 160 кВт, потужність якого повинна дорівнювати, або перевищувати
розраховану.
Потужність трансформаторів визначаємо за формулою:
Р = (Кс · ∑Nуст)/( здв
· cos ц) + 10 = 0,85·3·160/0,85·0,93+10 = 526кВА,
де: Nуст - підсумкова потужність електродвигунів
без резервних;
Кс -- коефіцієнт попиту по потужності;
при двох електродвигунах - Кс = 0,9;
при трьох електродвигунах - Кс = 0,85;
при чотирьох - Кс = 0,8;
при п’яти - Кс = 0,7;
кВ·А додаємо на потреби насосної станції та допоміжне
обладнання (дренажні насоси, технічної води або ін.). Значення здв і
cos ц - беруться з технічних характеристик електродвигунів: попередньо можна
прийняти здв = 0,93; cos ц = 0,85.
Рис. 5. Схема для визначення відмітки осі насосу в залежності
від рівня води в приймальному резервуарі І, ІІ, ІІІ- рівень включення першого,
другого та третього насосу; І', ІІ', ІІІ'-
рівень вимкнення насосів.
До установки приймаємо 2 трансформатори, які знижують напругу
з 6кВ до 0,380кВ потужністю Р = 400кВ·А кожний.
При роботі одного трансформатора на все навантаження, на
випадок аварії, перевантаження трансформатора складе:
Кпер = 526/400=1,31 < 1,4 , що в межах норми.
Сучасні трансформатори випускають потужністю
-250кВ·А; 400-630; 750-1000; 1350-1800 кВ·А
. Визначення місткості приймального резервуару
Робоча місткість приймального резервуару - це об'єм, що
знаходиться між максимальним і мінімальним рівнями води в резервуарі. Для
прямокутної в плані підземної частини будівлі
р = Вр · Lр · hр,
де Вр і Lр - відповідно внутрішні
розміри ширини і довжини приймального резервуару, hр = Z max
- Zmin - робоча глибина приймального резервуару.
Для круглої в плані підземної частини станції можна приблизно
визначити так:
р = р·D2/8 ·hр , м3,
де D - внутрішній діаметр підземної частини будівлі насосної
станції, для насосів типу СМ (D = 12м при чотирьох насосних агрегатах типу СМ і
14м - більше 4-х насосних агрегатів СМ; для вертикальних насосів типу СДВ
діаметр підземної частини будівлі D =24м; hр - робоча глибина приймального
резервуару (прийнята для горизонтальних насосів hр = 1,5- 2,0м; для
вертикальних hр = 2,0-2,5м).
р = р·D2/8 ·hр = 3,14 х 142
х 2 = 153,0 м3
Мінімальна місткість повинна бути менше робочої , но не менше
п'яти- семі мінутної подачи одного насоса
min= 5·Q1/60,
1- подача одного насоса при його роботі на два водоводиmin
= 1080∙5/60 =90 м3,min < Wр.
. Складання специфікації
Специфікація складається для попереднього замовлення
виготовленого на заводах обладнання, для зручності читання креслень при
будівництві станції, монтажі обладнання і його експлуатації.
Специфікація складається на основне та допоміжне обладнання,
трубопровідну арматуру і вантажопідйомне обладнання.
В специфікації спочатку перераховуємо основні насоси, далі
допоміжне обладнання (це дренажні та технічні насоси), підйомне-транспортне
обладнання та запірна трубопровідна арматура (починаючи з найбільшого
діаметру). Можна додати контрольно-вимірювальні прилади.
Розміри зазначені у міліметрах. Висота строки приймається
8-10мм.
Трубопровідну арматуру підбираємо по табл.2.2- 2.4.
|
Позиція
|
Позначення
|
Найменування
|
Кількість
|
Маса д. кг.
|
Примітка
|
|
|
|
|
|
|
|
20мм
|
60мм
|
60мм
|
10мм
|
20мм
|
Рис. 6. Форма таблиці для складання специфікації
Таблиця 4. Специфікація
|
№
|
Позначка
|
Найменування
|
Кіл-ть
|
Маса од. кг.
|
Прим.
|
|
1
|
Завод «Уралгідромаш»
|
Насос від центр. СМ250-200-400/4б с дв.4А315S6У3
|
5
|
2069
|
3роб.+2рез
|
|
|
N=160 кВт
|
|
|
|
|
2
|
«Сігнал» м. Ріга
|
Насос консольний відцентровий К30/20
|
|
|
1роб+1рез
|
|
3
|
Московський
|
Дренажний насос
|
2
|
22
|
1роб+1рез
|
|
механічний з-д
|
ГНОМ10-10
|
|
|
|
|
4
|
Луцьккомунмаш
|
Решітка-дробарка РД-600
|
3
|
1800
|
2роб+1рез
|
|
5
|
Красногвардейський крановий завод ДОСТ7413-80Е
|
Кран підвесний ручний в/п 2т
|
1
|
469
|
|
|
6
|
-«-
|
Теж, в/п 3,2т
|
1
|
460
|
|
|
7
|
ДОСТ1106-80*
|
Таль ручна в/п 1т
|
1
|
39
|
|
|
8
|
ДОСТ22584-80*
|
Таль электрична
|
1
|
357
|
|
|
|
канатна в/п 2т
|
|
|
|
|
9
|
30ч914нж1
|
Засувка паралельна Д=500 Ру=0,6МПа
|
5
|
495
|
на всмок. лін.
|
|
10
|
30ч915бр
|
Засувка, Ду=500мм Ру=1,6МПа
|
6
|
899
|
на водов.
|
|
11
|
30ч906бр
|
Засувка, Ду=400мм Ру=1,0МПа
|
5
|
899
|
на напірн. лінії
|
|
12
|
КЗ44067
|
Клапан зворотний безударний фланцевий Ду=400
|
5
|
128
|
на напірн. лінії
|
|
13
|
Севастопольский электрорем. завод
|
Затвор щитовой 1000х1000
|
3
|
|
на каналі
|
|
10
|
ТК і деталі Т2092
|
Бак розриву струї сталевий зварний
|
1
|
104
|
|
На автоматизованих насосних станціях незалежно від діаметру,
трубопровідну арматуру слід проектувати з електроприводом. На всмоктувальній
лінії установлюють засувки для тиску Ру = 0,25 МПа, або Ру = 0,6 МПа, а на
напірних лініях - Ру = 0,6-2,5МПа. Тиск напірних трубопроводах визначають за
максимально можливого напору насосів (робота на закриту засувку). Трубопровідну
арматуру виготовляють для таких умовних тисків Ру: 0,25МПа; 0,4; 0,6; 1,0; 1,6;
2,5; 4,0; 6,4; 10,0; 16,0 МПа. Трубопровідну арматуру підбірають за діаметром
та тиском. Розташування за кожним з насосів зворотного клапана значно спрощуэ
автоматизацію увимкнення та вимкнення насосів. Звичайно, рекомендують
використовувати «безударні» клапани. Ці клапани мають меншу масу більш плавну
«безударну» посадку диску на сідло при закритті клапана. Технічні
характеристики клапанів подано в таблиці 4.
водовод всмоктувальний електродвигун гідравлічний
Список літератури
1. Карелин В.Н., Минаев А.В. Насосы и насосные станции.-М.:
Стройиздат,1986.-320с.
2. Залуцкий Э.В., Петрухно Л.И. Насосные станции.
Курсовое проектирование. - К: Выща школа,1987.-167с.
. Лобачев П.В. Насосы и насосные станции. -
М.:Стройиздат, 1990. - 320с.
. Водоснабжение. Наружные сети и сооружения. Нормы
проектирования: СНиП 2.04.02-84 Гос. Ком. СССР по делам строительства. М: ЦИТП
Госстроя СССР, 1985.
. Шевелев Ф.А., Шевелев А.Ф. Таблицы для
гидравлического расчета водопроводных труб. - М.: Стройиздат, 1984.
6. Николова Р.А. и др. Каталог насосного
оборудования. МУ . ОГАСА, 1999.- 109с.
7. Каталог насосов С.М. Рыбницкий насосный завод
Номенклатура выпускаемой продукции
8. Справочник по гидравлическим расчетам, под редакцией П.Г.
Киселева изд. 4-е, переработ. и доп. М., «Энергия», 1972.-312с.
Додатки
Таблиця 1. Розрахункові дані питомих опорів для сталевих,
чавунних та азбестоцементних труб та коефіцієнтів Ас Ас = 0,827/d4
|
Діаметр, мм
|
Труби сталеві Ат(с2/м6)
|
Чавунні труби Ат(с2/м6)
|
Азбестові цементні труби Ат(с2/м6)
|
Ас
|
|
50
|
3686
|
11540
|
6851
|
13232
|
|
100
|
172,9
|
311,7
|
187,7
|
827
|
|
150
|
30,65
|
37,11
|
31,55
|
163
|
|
200
|
6,96
|
8,09
|
6,9
|
51,5
|
|
250
|
2,19
|
2,53
|
2,227
|
21,1
|
|
300
|
0,847
|
0,949
|
0,914
|
10,2
|
|
350
|
0,373
|
0,4365
|
0,434
|
5,49
|
|
400
|
0,186
|
0,219
|
0,217
|
3,23
|
|
450
|
0,0993
|
0,1186
|
-
|
2,02
|
|
500
|
0,05784
|
0,06778
|
0,0714
|
1,32
|
|
600
|
0,02262
|
0,02596
|
0,212
|
0,637
|
|
800
|
0,0055
|
0,0057
|
0,0048
|
0,202
|
|
1000
|
0,0017
|
0,00175
|
0,0015
|
0,0827
|
|
1200
|
0,00065
|
0,00066
|
-
|
0,0399
|
|
1400
|
0,000292
|
-
|
-
|
0,0215
|
|
1600
|
0,000144
|
-
|
-
|
-
|
Таблиця 2. Технічні характеристики засувок з електроприводом
|
Розміри, мм
|
Ру, МПа
|
Позначення засувки, тип шпинделя
|
Потужність, кВт
|
Вага один., кг
|
|
Dу
|
L
|
Н
|
l
|
А
|
L1
|
|
|
|
|
|
100
|
230
|
685
|
405
|
262
|
-
|
1,0
|
паралельна, 30ч906бр, з висунутим шпинделем
|
0,18
|
75
|
|
150
|
280
|
805
|
405
|
337
|
-
|
|
|
0,18
|
112
|
|
200
|
330
|
1050
|
468
|
400
|
-
|
|
|
0,6
|
183
|
|
250
|
450
|
1185
|
468
|
460
|
-
|
|
|
0,6
|
242
|
|
300
|
500
|
1340
|
468
|
508
|
-
|
|
|
1,3
|
310
|
|
400
|
600
|
1690
|
468
|
620
|
-
|
|
|
1,3
|
500
|
|
450
|
600
|
1600
|
|
|
|
1,0
|
паралельна, 30ч915бр, шпиндель не висунутий
|
1,4
|
750
|
|
500
|
700
|
|
|
|
-
|
|
|
1,5
|
899
|
|
600
|
800
|
1750
|
603
|
895
|
620
|
|
|
1,6
|
1233
|
|
800
|
1000
|
2215
|
770
|
1185
|
710
|
|
|
2,2
|
2880
|
|
1200
|
1400
|
3295
|
820
|
1595
|
970
|
|
|
4,5
|
7810
|
|
200
|
230
|
|
|
|
-
|
0,6 0,25
|
клинова, шпиндель висунутий 30ч914нж1
|
|
186
|
|
400
|
310
|
1750
|
495
|
|
-
|
|
|
1,3
|
300
|
|
500
|
350
|
2265
|
602
|
|
-
|
|
|
2,2
|
495
|
|
600
|
390
|
2410
|
602
|
|
-
|
|
|
2,2
|
625
|
|
800
|
470
|
3290
|
604
|
|
-
|
|
|
3,0
|
1049
|
|
1000
|
550
|
2540
|
605
|
1352
|
-
|
0,25
|
клинова, 30ч925бр шпиндель не висунутий
|
3,0
|
2245
|
|
1200
|
700
|
2930
|
820
|
1685
|
-
|
|
|
5,2
|
4668
|
|
1400
|
900
|
3290
|
820
|
1810
|
-
|
|
|
7,5
|
5126
|
|
1600
|
1000
|
3490
|
820
|
1930
|
|
|
7,5
|
6225
|
|
1000
|
1200
|
2600
|
820
|
1390
|
|
1,0
|
клинова, 30ч930брМ шпиндель не висунутий
|
5,2
|
3523
|
|
1200
|
1400
|
2900
|
820
|
1596
|
|
|
|
5,2
|
7327
|
|
1400
|
1900
|
3600
|
820
|
1850
|
|
|
|
5,2
|
9109
|
|
1600
|
2200
|
3600
|
820
|
1850
|
|
|
|
5,2
|
9934
|
|
200
|
400
|
1225
|
495
|
|
-
|
2,5
|
клинова, шпиндель висунутий 30ч964нж
|
1,3
|
264
|
|
300
|
500
|
1590
|
565
|
|
-
|
|
|
2,1
|
560
|
|
400
|
700
|
1750
|
650
|
|
-
|
|
|
3,5
|
680
|
|
1000
|
1900
|
3835
|
820
|
|
1035
|
|
|
7,5
|
5060
|
|
500
|
700
|
1955
|
820
|
835
|
|
2,5
|
клинова, 30ч930брМ шпиндель не висунутий
|
7,5
|
1383
|
|
600
|
800
|
1955
|
820
|
835
|
575
|
|
|
7,5
|
1433
|
|
800
|
1000
|
2770
|
820
|
1190
|
860
|
|
|
7,5
|
3671
|
Таблиця 3. Технічні характеристики дискових поворотних
затворів
|
Розміри, мм
|
Потужність електродвигуна
|
Ру,МПА
|
Позначення умовне
|
Вага од.,кг
|
|
Dу
|
D
|
L
|
Н
|
|
|
|
|
|
100
|
|
52
|
|
-
|
1,0
|
МТР
|
7,5
|
|
150
|
|
62
|
|
-
|
|
|
13,5
|
|
200
|
|
90
|
|
-
|
|
|
29
|
|
300
|
400
|
220
|
500
|
0,18
|
1,0
|
ИА99044
|
180
|
|
400
|
565
|
240
|
515
|
0,6
|
|
|
228,5
|
|
600
|
780
|
300
|
815
|
1,3
|
|
|
445,5
|
|
800
|
1010
|
400
|
833
|
2,0
|
|
|
943
|
|
1000
|
1220
|
450
|
1023
|
3,0
|
|
|
1338
|
|
1200
|
1455
|
450
|
800
|
3,0
|
1,0
|
МА99016.03
|
2235
|
|
1400
|
1675
|
500
|
905
|
5,2
|
|
|
3793
|
|
1600
|
1915
|
675
|
950
|
7,5
|
|
|
4987
|
Примітка: Усі затвори -фланцеві, ИА та МА - затвори з
електроприводом, МТР- з ручним приводом.
Таблиця 4. Технічні характеристики зворотних без ударних
клапанів
|
Dу,мм
|
Довжина, мм
|
Тип клапана
|
Ру, МПа
|
Позначення умовне
|
Вага од.,кг
|
|
50
|
60
|
без ударний, фланцевий
|
1,6
|
КА44075
|
9,1
|
|
80
|
70
|
|
|
|
15,7
|
|
100
|
80
|
|
|
|
17,7
|
|
150
|
100
|
|
|
|
31,2
|
|
200
|
110
|
|
|
Л44075
|
41,4
|
|
250
|
120
|
|
|
|
52,5
|
|
300
|
130
|
|
1,0
|
КЗ44067
|
45
|
|
400
|
170
|
|
|
|
128
|
|
500
|
200
|
|
|
|
183
|
|
600
|
240
|
|
|
|
237
|
|
800
|
350
|
фланцевий з противагою
|
1,6
|
ПФ44003
|
808
|
|
1000
|
400
|
|
|
|
1176
|
|
300
|
450
|
з кінцями під приварку
|
4,0
|
ИА44078
|
78
|
|
400
|
500
|
|
|
|
130
|
|
600
|
650
|
|
|
|
360
|
Таблиця 5. Середньодобове водоспоживання у % по годинах доби
в залежності від годинного коефіцієнта нерівномірності водоспоживання
|
Години доби
|
% водоспоживання в залежності від коефіцієнта
нерівномірності водоспоживання
|
|
1,8
|
1,7
|
1,6
|
1,5
|
1,4
|
1,31
|
1,3
|
1,25
|
1,2
|
|
0-1
|
1,25
|
1,25
|
1,55
|
1,6
|
1,65
|
1,84
|
1,9
|
2,0
|
2,25
|
|
1-2
|
1,25
|
1,25
|
1,55
|
1,6
|
1,65
|
1,84
|
1,9
|
2,0
|
2,25
|
|
2-3
|
1,25
|
1,25
|
1,55
|
1,6
|
1,65
|
1,84
|
1,9
|
2,0
|
2,25
|
|
3-4
|
1,25
|
1,25
|
1,55
|
1,6
|
1,65
|
1,84
|
1,9
|
2,0
|
2,25
|
|
4-5
|
1,25
|
1,25
|
1,55
|
1,6
|
1,65
|
1,84
|
1,9
|
2,0
|
2,25
|
|
5-6
|
3,3
|
3,5
|
4,35
|
4,15
|
4,2
|
4,85
|
4,9
|
5,05
|
4,9
|
|
6-7
|
5,0
|
5,2
|
5,95
|
5,75
|
5,8
|
5,00
|
5,1
|
5,15
|
4,9
|
|
7-8
|
7,2
|
7,0
|
5,8
|
6,0
|
5,8
|
5,00
|
5,1
|
5,15
|
5,0
|
|
8-9
|
7,5
|
7,1
|
6,7
|
6,25
|
5,85
|
5,46
|
5,5
|
5,2
|
5,0
|
|
9-10
|
7,5
|
7,1
|
6,7
|
6,25
|
5,85
|
5,46
|
5,45
|
5,2
|
5,0
|
|
10-11
|
7,5
|
7,1
|
6,7
|
6,25
|
5,85
|
5,46
|
5,45
|
5,2
|
5,0
|
6,4
|
6,4
|
4,8
|
5,0
|
5,05
|
5,25
|
5,2
|
5,1
|
4,9
|
|
12-13
|
3,7
|
3,8
|
3,95
|
4,15
|
4,2
|
5,0
|
4,85
|
5,0
|
4,7
|
|
13-14
|
3,7
|
3,8
|
3,55
|
5,75
|
5,8
|
5,25
|
5,2
|
5,1
|
5,0
|
|
14-15
|
4,0
|
4,2
|
6,05
|
6,25
|
5,8
|
5,46
|
5,45
|
5,2
|
5,0
|
|
15-16
|
5,7
|
5,8
|
6,05
|
6,25
|
5,8
|
5,46
|
5,45
|
5,2
|
5,0
|
|
16-17
|
6,3
|
6,4
|
5,6
|
5,8
|
5,8
|
5,46
|
5,45
|
5,2
|
5,0
|
|
17-18
|
6,3
|
6,4
|
5,6
|
5,7
|
5,75
|
4,85
|
5,15
|
5,15
|
5,0
|
|
18-19
|
6,3
|
6,4
|
4,3
|
4,4
|
5,2
|
4,85
|
5,0
|
5,1
|
5,0
|
|
19-20
|
5,25
|
5,3
|
4,35
|
4,15
|
4,75
|
4,85
|
5,0
|
5,1
|
5,0
|
|
20-21
|
3,4
|
3,4
|
4,35
|
4,15
|
4,1
|
4,85
|
5,0
|
5,1
|
5,0
|
|
21-22
|
2,2
|
2,2
|
2,35
|
2,45
|
2,85
|
3,45
|
3,5
|
3,8
|
4,7
|
|
22-23
|
1,25
|
1,25
|
1,55
|
1,6
|
1,65
|
3,12
|
1,9
|
2,0
|
2,4
|
|
23-24
|
1,25
|
1,25
|
1,56
|
1,6
|
1,65
|
1,72
|
1,9
|
2,0
|
2,25
|
|
разом
|
100%
|
100%
|
100%
|
100%
|
100%
|
100%
|
100%
|
100%
|
100%
|
Рис. 8. Розрахункова аксонометрична схема всмоктувальних та
напірних трубопроводів насосної станції з пятьма вертикальними насосами типу
СДВ2700/26,5 (номер опорів на аксонометричній схемі відповідний номеру опорів у
таблиці 6.)
Таблиця 6. Визначення опорів у всмоктувальних та сполучних
напірних лініях
|
№
|
Найменування опору
|
Схема
|
Кіл-ть n
|
Діаметр, d, мм
|
Ас, або Ат
|
ж або l
|
S=Ас·ж· n S= Ат·l
|
|
|
1. Всасывающая линия
|
|
|
1
|
Вхід в трубу
|
1
|
800
|
0,202
|
0.2
|
0,0404
|
|
|
|
2
|
Коліно
|
1
|
500
|
1,32
|
0.6
|
0,792
|
|
|
|
3
|
Засувка
|
1
|
800
|
0,202
|
0.2
|
0,0404
|
|
|
|
4
|
Перехід звужений
|
1
|
700
|
0,344
|
0.1
|
0,034
|
|
|
|
5
|
Пряма ділянка
|
---
|
1
|
800
|
0,0055 Ат
|
2.0
|
0,011
|
|
|
|
|
|
|
|
∑Sвс=
|
0,92с2/м5
|
|
|
2. Напорная линия
|
|
|
6
|
Перехід розш.
|
1
|
600
|
0,637
|
0.25
|
0,159
|
|
|
7
|
Зворотній клапан
|
1
|
600
|
0,637
|
1.7
|
1,08
|
|
|
8
|
Засувка
|
1
|
600
|
0,637
|
0.2
|
0,127
|
|
|
9
|
Коліно
|
1
|
600
|
0,637
|
0.6
|
0,382
|
|
|
10
|
Засувка
|
4
|
800
|
0,202
|
0.2
|
0,162
|
|
|
11
|
Трійник з поворотом
|
1
|
800
|
0,202
|
1.5
|
0,303
|
|
|
12
|
Трійник транзитний
|
3
|
800
|
0,202
|
0.1
|
0,061
|
|
|
13
|
Пряма ділянка
|
---
|
1
|
800
|
0,0055 Ат
|
20
|
0,11
|
|
14
|
Коліно
|
2
|
800
|
0,202
|
0.6
|
0,242
|
|
|
|
|
|
|
|
∑Sн=
|
2,63с2/м5
|
|
|
|
|
|
|
|
|
|
|
|
Рис. 9. Зведений графік полів Q-H само всмоктувальних насосів
типу ВК, ВКС і ЦВ
Рис. 10. Визначення розмірів фасонних частин
Фасонні частини Д < 500мм виготовляються монтажниками на
місті.
Рис. 11. Установлення консольного насоса типу СМ
Таблиця 7. Приведена висота атмосферного тиску в залежності
від розташування насосу над рівнем моря
|
Висота над рівнем моря в метрах
|
-600
|
0
|
100
|
200
|
300
|
400
|
500
|
600
|
700
|
800
|
900
|
1000
|
1500
|
2000
|
|
Атмосферний тиск, hа, м. вод. стовпа
|
11,3
|
10,3
|
10,2
|
10,1
|
10
|
9,8
|
9,7
|
9,6
|
9,5
|
9,4
|
9,3
|
9,2
|
8,6
|
8,4
|
Таблиця 8. Тиск насиченої пари води, hн.п., в
залежності від її температури
|
Температура води 0С
|
5
|
10
|
20
|
30
|
40
|
50
|
60
|
70
|
80
|
90
|
100
|
|
Тиск насиченої пари рідини, hн.п., метрів водяного
стовпа
|
0,09
|
0,12
|
0,24
|
0,43
|
0,75
|
1,25
|
2,02
|
3,17
|
4,82
|
7,14
|
10,33
|
Таблиця 9. Технічні характеристики вихрових само
всмоктувальних насосів ВКС та ЦМК
|
Марка
|
Подача, л/с
|
Напір, м
|
Потужність, кВт
|
Маса, кг
|
Габарити в плані, мм
|
Допустима вакууметрична висота всмоктування Ндопвак
|
|
ВКС 2/26
|
0,75-2,2
|
60-20
|
5,5
|
130
|
947х320
|
4
|
|
ВКС 4/24
|
1,58-4,3
|
70-20
|
7,5
|
166
|
1005х360
|
4
|
|
ВКС 5/24
|
2,38-5,4
|
70-20
|
10
|
180
|
1047х320
|
4
|
|
ВКС 10/45
|
5,0-11,1
|
30
|
315
|
1197х430
|
3
|
|
ЦМК16/27
|
4,4
|
27
|
4
|
136
|
2000х200
|
-
|
Таблиця 10. Технічні характеристики ручних кранів (кран-балки
рис. 12.)
|
Довжина крану L, м
|
Вантажопідйомність,т
|
Прогін, Lп, м
|
Розміри,мм
|
Номер двотавра підкранового шляху
|
|
|
|
h
|
Н
|
l2
|
С
|
В
|
Маса крана, кг
|
|
|
3,6
|
0,5
|
3
|
370
|
220
|
300
|
1000
|
1300
|
274
|
18
|
|
1
|
|
370
|
220
|
|
1000
|
|
274
|
18
|
|
2
|
|
610
|
280
|
|
1000
|
|
460
|
24
|
|
3,2
|
|
610
|
280
|
|
1000
|
|
469
|
24
|
|
5
|
|
755
|
340
|
|
1500
|
2000
|
633
|
30
|
|
6,6
|
0,5
|
6
|
370
|
220
|
300
|
|
1800
|
372
|
18
|
|
1
|
|
370
|
220
|
|
|
|
372
|
18
|
|
2
|
|
610
|
340
|
|
|
|
663
|
30
|
|
3,2
|
|
610
|
340
|
|
|
|
679
|
30
|
|
5
|
|
755
|
400
|
|
1800
|
2300
|
889
|
36
|
|
10,2
|
0,5
|
9
|
370
|
280
|
600
|
|
2100
|
562
|
24
|
|
1
|
|
370
|
280
|
|
|
|
562
|
24
|
|
2
|
|
610
|
400
|
|
|
|
940
|
36
|
|
3,2
|
|
610
|
400
|
|
|
|
961
|
36
|
|
5
|
|
755
|
490
|
|
2100
|
2600
|
1271
|
45
|
Рис. 12. Кран-балки підвісні: а - ручні, вантажопідйомністю
0,5-5,0т з висотою підйому 3-12м; б- електричні вантажопідйомністю 1-5т з
висотою підйому 6-18 м
Рис. 13. Кран мостовий електричний вантажопідйомністю 5-30т
Таблиця 11. Технічні характеристики підвісних кранів з
електроприводом (рис. 12.б)
|
Довжина крану L, м
|
Вантажопідйомність, т
|
Прогін, Lп, м
|
Розміри,мм
|
Номер двотавра
|
Маса крана, кг
|
|
|
|
Н+h
|
l1
|
l2
|
С
|
В
|
|
|
|
3,6
|
1
|
3
|
1120
|
660
|
300
|
1000
|
1350
|
18
|
590
|
|
2
|
|
1350
|
710
|
|
1000
|
1350
|
24
|
785
|
|
3,2
|
|
1635
|
750
|
|
1000
|
1365
|
30
|
1060
|
|
5
|
|
1910
|
900
|
|
1500
|
2095
|
30
|
1470
|
|
5,1
|
1
|
4,5
|
1125
|
660
|
300
|
1000
|
1350
|
18
|
695
|
|
2
|
|
1360
|
710
|
|
1000
|
1350
|
24
|
895
|
|
3,2
|
|
1645
|
750
|
|
1000
|
1365
|
30
|
1180
|
|
5
|
|
2010
|
900
|
|
1500
|
2095
|
30
|
1745
|
|
8,4
|
1
|
6,0
|
1125
|
660
|
1200
|
1500
|
1850
|
24
|
890
|
|
2
|
|
1360
|
710
|
|
1500
|
1850
|
30
|
1135
|
|
3,2
|
|
1705
|
750
|
|
1500
|
1865
|
36
|
1500
|
|
5
|
|
2010
|
900
|
|
1800
|
2395
|
36
|
2070
|
|
11,4
|
1
|
9,0
|
1245
|
660
|
1200
|
1800
|
2150
|
30
|
1070
|
|
2
|
|
1545
|
710
|
|
1800
|
2150
|
30
|
1465
|
|
3,2
|
|
1955
|
750
|
|
1800
|
2165
|
36
|
1995
|
|
5
|
|
2170
|
900
|
|
2100
|
2695
|
36
|
2530
|
Таблиця 12. Технічні характеристики мостових кранів з
електроприводом (рис. 13.)
|
Вантажопідйомність, т
|
Прогін, Lп, м
|
Розміри,мм
|
Маса крана, кг
|
|
|
Н
|
h1
|
l1
|
l2
|
В
|
С
|
|
|
5
|
11-32
|
1650
|
50
|
1100
|
300
|
5000 6500
|
3500 5000
|
13,6-33,3
|
|
17-10
|
10,5-34,5
|
1900
|
500
|
1200
|
1100
|
5508 5802
|
4400 5000
|
17-34,9
|
|
15/3
|
11-26
|
2300
|
600 100
|
2000 1000
|
1880 1120
|
5600
|
4400
|
20,5-34,4
|
|
20/5
|
10,5-25,5
|
2400
|
600 50
|
2250 1250
|
1950 1300
|
5600
|
4400
|
23-40,5
|
|
30/5
|
10,5-31,5
|
2750
|
400 300
|
2560 1600
|
1910 950
|
6300
|
5100
|
33,5-66
|
Примітка: в знаменнику вказані параметри допоміжнього крюка
Таблиця 13. Середні значення коефіцієнтів місцевих опорів - ж
|
Найменування опорів
|
Схема
|
Значення ж
|
|
Вхід у трубу без розширення
|
ж =0,5
|
|
|
Перехід звужуваючий
|
(D-d)=100мм ж =0,2 (D-d)=150мм ж
=0,24
|
|
|
Раптове розширення потоку
|
ж =1,0
|
|
|
Перехід розширений (дифузор)
|
ж=[(D/d)2 - 1]2, де ж= 0,1 при
(D-d)=50 ж = 0,2 при (D-d)=100 ж = 0,4 при (D-d)=200
|
|
|
Трійник прямий з поворотом або хрестовина
|
ж= 1 - 2
|
|
|
Трійник прямий транзитний або хрестовина
|
ж=0,1 - 0,15
|
|
|
Коліно 900
|
ж=0,6
|
|
|
Засувка відкрита
|
ж=0,2
|
|
|
Зворотний клапан
|
ж=1,5-2,5
|
|
|
Витратомір
|
|
ж = 1
|
|
а)діафрагма
|
|
ж = 4
|
|
б)сопло Вентурі
|
|
ж = 1 - 2,75
|
|
в)труба Вентурі
|
|
ж = 0,7 - 1,9
|
Рис. 14.Монтажне креслення вертикальних насосів СДВ з
електродвигунами для перекачування стічної рідини: 1-корпус насоса; 2 - вал; 3
- електродвигун; 4- всмоктувальний патрубок; 5 - напірний патрубок;
Таблиця 14. Розміри вертикальних насосів типу СДВ з
електродвигунами
А
|
L
|
B
|
C
|
D
|
D
|
Маса насосу, кг
|
Марка електродвигуна
|
Потужність, кВт
|
Частота обертан. об/хв
|
Напруга В
|
|
СДВ2700/26,5
|
2280
|
3620
|
2105
|
1100
|
700
|
500
|
3900
|
ВАН118/23-8
|
400
|
750
|
6000
|
|
СДВ4000/28
|
2075
|
4570
|
1870
|
1500
|
800
|
600
|
8000
|
ВАН143/36-16 ВАН143/46-16
|
500 630
|
375
|
6000
|
|
СДВ7200/29
|
2525
|
5700
|
1950
|
1900
|
1200
|
800
|
8750
|
СДВ2-143/34-12 ВАН143/51-12 СДВ2-143/51-12
ВДС215/41-12
|
800 1000 1250 1600
|
500
|
6000-10000
|
|
СДВ9000/45
|
2500
|
4760
|
3010
|
2200
|
1200
|
1000
|
10300
|
ВАН173/46-12
|
1600
|
500
|
6000
|
Рис. 15. Зведений графік полів Q-H горизонтальних насосів
типу СМ
Рис. 16. Монтажне креслення горизонтального насосу типу
СМ250-200-400
Таблиця 15. Габаритні розміри насосів типу СМ
|
Маркування електронасосного агрегату
|
Типорозмір двигателя
|
L
|
L1
|
L2
|
L3
|
L4
|
L5
|
L6
|
L7
|
L10
|
L9
|
|
1
|
2
|
3
|
4
|
5
|
6
|
7
|
8
|
9
|
10
|
11
|
12
|
|
СМ 100-60-200/2
|
4А200М2
|
1433
|
195
|
80
|
465
|
1…8
|
70
|
125
|
142
|
1000
|
1238
|
|
СМ 100-65-200/2Е
|
В 200М2
|
1553
|
|
|
|
|
|
|
|
|
|
|
СМ 100-65-200а/2
|
4А180М2
|
1425
|
|
|
|
|
|
|
|
900
|
1220
|
|
СМ 100-65-200а/2-Е
|
В 180М2
|
1518
|
|
|
|
|
|
|
|
|
|
|
СМ 100-65-200б/2
|
4А180S2
|
1395
|
|
|
|
|
|
|
|
|
|
|
СМ 100-65-200б/2-Е
|
В 180S2
|
1473
|
|
|
|
|
|
|
|
|
|
|
СМ 100-65-200/4
|
4А112М4
|
1110
|
195
|
80
|
465
|
1…8
|
70
|
125
|
142
|
700
|
972
|
|
СМ 100-65-200/4-Е
|
В 11244
|
1238
|
|
|
|
|
|
|
|
|
|
|
СМ 100-65-200а/4
|
4А100/4
|
1053
|
|
|
|
|
|
|
|
|
|
|
СМ 100-65-200а/4-Е
|
В 100/4
|
11 8
|
|
|
|
|
|
|
|
|
944
|
|
СМ 100-65-200б/4
|
4А100S4
|
1023
|
|
|
|
|
|
|
|
|
|
|
СМ 100-65-200б/4-Е
|
В 100S4
|
1173
|
|
|
|
|
|
|
|
|
|
|
СМ 100-65-250/4
|
4А 132S4
|
1155
|
195
|
90
|
465
|
1…8
|
70
|
125
|
142
|
00
|
100
|
|
СМ 100-65-250/4-Е
|
2В132S4
|
1170
|
|
|
|
|
|
|
|
|
|
|
СМ 100-65-250а/4
|
4А112S4
|
1125
|
|
|
|
|
|
|
|
700
|
|
|
СМ 100-65-250а/4-Е
|
2В112М4
|
1165
|
|
|
|
|
|
|
|
|
|
|
СМ 100-65-250б/4
|
4А112М4
|
1125
|
|
|
|
|
|
|
|
|
|
|
СМ 100-65-250б/4-Е
|
2В112М4
|
1165
|
|
|
|
|
|
|
|
|
|
|
СМ 125-80-315/4
|
4А180S4
|
1425
|
|
105
|
220
|
1…8
|
70
|
125
|
|
800
|
1230 1212
|
|
СМ 125-80-315/4-Е
|
В180S4
|
1515
|
|
|
|
|
|
|
|
|
|
|
СМ 125-80-315а/4
|
4А160М4
|
1430
|
|
|
|
|
|
|
|
|
|
|
СМ 125-80-315а/4-Е
|
В1 SМ4
|
1505
|
|
|
|
|
|
|
|
|
|
|
СМ 125-80-315б/4
|
4А160S4
|
1300
|
|
|
|
|
|
|
|
|
|
|
СМ 125-80-315б/4-Е
|
В160S4
|
1440
|
|
|
|
|
|
|
|
|
|
|
СМ 250-200-400/6
|
4А280S6
|
2530
|
380
|
178
|
958
|
6…1
|
70
|
125
|
180
|
800
|
2315 2275
|
|
|
СМ 250-200-400/6-Е
|
В280S6
|
2500
|
|
|
|
|
|
|
|
|
|
|
|
СМ 250-200-400а/6
|
4А250М6
|
2315
|
|
|
|
|
|
|
|
|
|
|
|
СМ 250-200-400а/6-Е
|
В250М6
|
2450
|
|
|
|
|
|
|
|
|
|
|
|
СМ 250-200-400б/6
|
4А250S6
|
2275
|
|
|
|
|
|
|
|
|
|
|
|
СМ 250-200-400б/6-Е
|
В250S6
|
2400
|
|
|
|
|
|
|
|
|
|
|
|
|
|
|
|
|
|
|
|
|
|
|
|
|
|
|
|
|
|
|
|
|
|
В
|
В1
|
В2
|
В3
|
В4
|
Н
|
Н1
|
h
|
Маса, (кг)
|
|
13
|
14
|
15
|
16
|
17
|
18
|
19
|
20
|
21
|
|
720
|
620
|
560
|
-
|
-
|
1150
|
580
|
15
|
2065
|
|
|
|
|
|
|
|
|
2235
|
|
|
|
|
|
|
|
|
1815
|
|
|
|
|
|
|
|
|
2040
|
|
|
|
|
|
|
|
|
1770
|
|
|
|
|
|
|
|
|
1985
|
|
450
|
265
|
305
|
380
|
|
647
|
225
|
14
|
420
|
|
475
|
|
|
|
|
732
|
|
|
520
|
|
410
|
|
|
|
|
598
|
|
|
345
|
|
460
|
|
|
|
|
708
|
|
|
455
|
|
410
|
|
|
|
|
598
|
|
|
325
|
|
460
|
|
|
|
|
708
|
|
|
390
|
|
310
|
305
|
200
|
|
|
513
|
|
|
200
|
|
|
|
|
|
|
225
|
|
245
|
|
|
|
|
|
|
|
|
165
|
|
|
|
|
|
|
|
|
220
|
|
|
|
|
|
|
|
|
180
|
|
|
|
|
|
|
|
|
220
|
|
380
|
|
|
|
|
|
270
|
|
235
|
|
|
|
|
|
|
|
|
292
|
|
|
|
|
|
|
|
|
260
|
|
|
|
|
|
|
|
|
215
|
|
|
|
|
|
|
|
|
260
|
|
400
|
370
|
220
|
|
|
668
|
315
|
14
|
405
|
|
|
|
|
|
|
|
|
480
|
|
|
|
|
|
|
|
|
395
|
|
|
|
|
|
|
|
|
470
|
|
|
|
|
|
|
|
|
370
|
|
|
|
|
|
|
|
|
440
|
Таблиця 16. Загальні показники насосних агрегатів типу СМ
|
Маркування агрегату
|
Комплектуючий електродвигун
|
Параметри
|
Габаритні разміри
|
заміна насоса
|
|
Найменування
|
Потужність, кВт
|
Напір, Н, м
|
Подача,Q м3/ч
|
|
|
|
СМ 100-65-200/2
|
4А200М2У3
|
37
|
50
|
100
|
1678х310х535
|
СД 100/40
|
|
СМ 100-65-200а/2
|
4А180М2У3
|
30
|
40
|
90
|
1620х310х470
|
СД 50/56,СД 32/40
|
|
СМ 100-65-200б/2
|
4А180 2У3
|
22
|
32
|
70
|
1575х310х470
|
СД 160/45
|
|
СМ 100-65-200/4
|
4А112М4У3
|
5,5
|
14-12-10,5
|
35-62,5-75
|
1305х310х513
|
СД 50/10
|
|
СМ 100-65-200а/4
|
4А100/4У3
|
11,5-8,2-8
|
33-56-67
|
1248х310х513
|
СД 25/14
|
|
СМ 100-65-200б/4
|
4А100S4У3
|
3
|
8,4-6,3-5,4
|
30-50-60
|
1218х310х513
|
СД 16/10
|
|
СМ 100-65-250/4
|
4АМ132S4У3
|
7,5
|
24-20-18
|
10-50-60
|
1350х350х560
|
СД 80/18
|
|
СМ 100-65-250а/4
|
4АМ112М4У3
|
5,5
|
20,2-18,6,6-14
|
8-47-56
|
1320х350х560
|
СД 16/25
|
|
СМ 100-65-250б/4
|
4АМ112М4У3
|
5,5
|
16,5-13,5-11,5
|
6-44-54
|
1320х350х560
|
СД 16/10
|
|
СМ 125-80-315/4
|
4АМ180S4У3
|
22
|
34-32-29
|
10-80-116
|
1650х400х668
|
СД 80/32
|
|
СМ 125-80-315а/4
|
4А180М4У3
|
18,5
|
28-26-24
|
36-72,5-102
|
1650х400х668
|
|
|
СМ 125-80-315б/4
|
4А180S4У3
|
15
|
21-20-18,5
|
32-65-85
|
1610х400х668
|
|
|
СМ 200-150-500/4
|
4А315М4У3
|
200
|
85-80-78
|
130-400-450
|
3025х650х1165
|
СД 450/95-2
|
|
СМ 200-150-500а/4
|
4А315М4У3
|
160
|
75-64-62
|
120-380-430
|
2965х650х1165
|
|
|
СМ 200-150-500б/4
|
4А290S4У3
|
110
|
60-50-48
|
110-360-410
|
2880х650х1165
|
|
|
СМ 250-200-400/4
|
4А355S4У3
|
250
|
55-50-40
|
640-800-1000
|
3140х720х1155
|
СД 450/56
|
|
|
СМ 250-200-400а/4
|
4А315МУ3
|
200
|
47-43-33
|
626-680-870
|
3055х720х1155
|
СД 800/32
|
|
|
СМ 250-200-400б/4
|
4А315S4У3
|
160
|
32-35-22
|
600-665-850
|
2895х720х1155
|
|
|
|
СМ 250-200-400/6
|
4А280S6У3
|
75
|
26,5-23-18
|
215-640-680
|
2910х720х1155
|
СД 450/22,5
|
|
|
СМ 250-200-400а/6
|
4А250М6У3
|
55
|
23,2-19,5-16
|
190-500-680
|
2695х720х1155
|
|
|
|
СМ 250-200-400б/6
|
4А250S6У3
|
45
|
20-16,5-13,5
|
150-160-560
|
2655х720х1155
|
|
|
|
СМ 150-125-315/4
|
4А200/4У3
|
55
|
34,5-32-29,5
|
110-200-260
|
2180х517х775
|
СД 250/22,5
|
|
|
СМ 150-125-315а/4
|
4А200М4У3
|
37
|
22,5-26,5-24,5
|
95-175-230
|
2140х517х775
|
|
|
|
СМ 150-125-315б/4
|
4А180М4У3
|
30
|
22,5-20,5-19
|
80-145-195
|
2055х517х775
|
|
|
|
СМ 150-125-315/4
|
4А255М4У3
|
55
|
34,5-32-31,8
|
40-200-250
|
2167х517х818
|
СДС 80/32
|
|
|
СМ150-125-315а/4
|
4А200/4У3
|
45
|
27,5-26,5-26
|
35-185-230
|
2157х517х818
|
|
|
|
СМ 150-125-315б/4
|
4А200М4У3
|
37
|
21,5-20-19,5
|
25-170-210
|
2117х517х818
|
|
|
|
СД 160/10
|
4А160S6У3
|
11
|
12-10-9
|
76-160-195
|
1415х600х640
|
|
|
|
СД 160/10
|
В 160S6У3
|
11
|
1-10-9
|
76-160-195
|
1480х600х640
|
|
|
|
СД 160/10а
|
4А160S6У3
|
11
|
10,6-8,3-7,6
|
68-145-175
|
1415х600х640
|
|
|
|
СД 160/10а
|
В 160S6У3
|
11
|
10,6-8,3-7,6
|
68-145-175
|
1480х600х640
|
|
|
|
СД 160/10б
|
4А132М6У3
|
7,5
|
8,6-7,2-6,7
|
62-135-160
|
1320х600х640
|
|
|
|
СД 160/10б
|
ВАО-52-6У3
|
7,5
|
8,6-7,2-6,7
|
62-135-160
|
1455х600х640
|
|
|
|
|
|
|
|
|
|
|
|
|
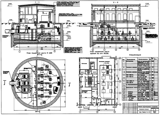
Рис. 17. Загальний вид креслення насосної станції: а) з
горизонтальними насосами типу СМ
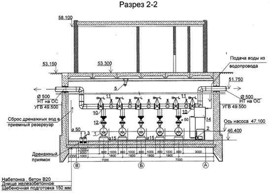
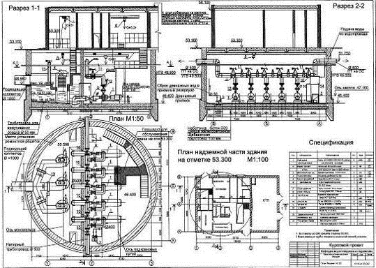
Рис. 18. Розріз 2-2 насосної станції з насосами типу СМ
Рис. 19. Розріз 1-1 з горизонтальними насосами типу СМ
Рис. 20. Компоновка горизонтальних насосів типу
СМ250-200-400/4б в машинному залі
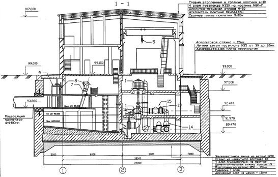
Рис. 21. креслення з вертикальними насосами
Рис. 22. Розріз 1-1 з вертикальними насосами типу СДВ