Проект фундамента промышленного здания

  • Вид работы:
    Курсовая работа (т)
  • Предмет:
    Строительство
  • Язык:
    Русский
    ,
    Формат файла:
    MS Word
    516,82 Кб
  • Опубликовано:
    2014-10-20
Вы можете узнать стоимость помощи в написании студенческой работы.
Помощь в написании работы, которую точно примут!

Проект фундамента промышленного здания

Введение

фундамент свая грунт основание

Курсовой проект - это самостоятельная расчетно-проектировочная работа в которой студент:

Закрепляет теоретические знания по дисциплине «Геотехника-2»;

Приобретает практические навыки проектирования (расчета и конструирования) оснований и фундаментов промышленных и гражданских зданий;

Приобретает умение пользоваться учебной (учебники, учебные пособия, методические указания), справочной и нормативной (СНиПы, ГОСТы и др.) литературой.

Курсовой проект содержит:

Исходные данные для проектирования;

Анализ инженерно-геологических условий площадки строительства;

Проектирование фундамента мелкого заложения;

Проектирование свайного фундамента;

Технико-экономическое сравнение вариантов фундаментов.

В пояснительной записке курсового проекта приводятся расчеты, расчетные схемы фундаментов и конструктивные чертежи 2-хвариантов фундамента.


Исходные данные для проектирования фундамента

Вариант здания: многоэтажное производственное

Тип фундамента: отдельный под колонну.

Нагрузки, действующие на обрезе фундамента: N=1450 кН, М=50 кНм;

Конструктивная схема фундамента (Рис. 1.1).

Рисунок 1.3


Анализ инженерно-геологических условий площади строительства

Сводная таблица физико-механических свойств (характеристик) грунтов (Табл. 2.1).

Таблица 2.1

Показатели

Обозначения

Номер геол. слоев

Формула для расчета



1-й

2-й

3-й


Уд. вес тв. частиц грунта

, кН/м3

-

26,5

26,8

Из задания

Уд. вес грунта

, кН/м3

12,6

19,9

19,8

Из задания

Влажность грунта

, доли ед.

-

0,25

0,22

Из задания

Уд. вес скелета грунта

, кН/м3

-

15,92

16,23

Коэффициенты пористости

-

0,66

0,65

Уд. вес во взвеш. состоянии

, кН/м3

-

9,94

10,18

Степень влажности

, доли ед.

-

0,63

0,56

Граница раскатывания

 , доли ед.

-

-

0,19

Из задания

Граница текучести

, доли ед.

-

-

0,27

Из задания

Число пластичности

, доли ед.

-

-

0,08

Показатель текучести

, доли ед.

-

-

0,375

Модуль деформации

E, МПа

-

21

24

Из задания

Угол внут. трения

, град

-

36

25

Из задания

Сцепление

С, кПа

-

5

32

Из задания



Определение полного наименования грунтов основания (по слоям) и расчетного сопротивления () по табл. СНиП.

-ый слой:                                         Растительный;

-ой слой: песок                               0,5 < Sr = 0,63 ≤ 0,8;

0,6 ≤ е = 0,66 < 0,75;

На основании таблицы 2.2 и таблицы 2.3 полное наименование 2-го слоя: песок мелкий, влажный, средней плотности.

-ий слой: суглинок                          0,25 < IL = 0,375≤ 0,5;

На основании таблицы 2.4 полное наименование 3-го слоя: суглинок тугопластичный.

Подразделение песчаных грунтов по плотности сложения

Таблица 2.2

Песок

Грунт


плотный

Средней плотности

Рыхлый


По коэффициенту пористости

Гравелистый, крупный и средней крупности

е < 0,55

0,55 ≤ е < 0,7

е >0,7

Мелкий

е < 0,6

0,6 ≤ е < 0,75

е >0,75

Пылеватый

е < 0,6

0,6 ≤ е < 0,8

е >0,8



Подразделение песчаных грунтов по степени влажности, Sr

Таблица 2.3

Грунт

Степень влажности

Маловлажный

0 < Sr ≤ 0,5

Влажный

0,5 < Sr ≤ 0,8

Насыщенный водой

0,8 < Sr ≤ 1


Подразделение пылевато-глинистых грунтов по показателю текучести, IL

Таблица 2.4

Грунт

Показатель текучести

Супесь:


твердая

IL < 0

пластичная

0 < IL ≤ 1

текучая

IL > 1

Суглинок и глина:


твердые

IL > 0

полутвердые

0 < IL ≤ 0,25

тугопластичные

0,25 < IL ≤ 0,5

мягкопластичные

0,5 < IL ≤ 0,75

текучепластичные

0,75 < IL ≤ 1

текучие

IL > 1


На основании таблицы 2.6 условное расчетное сопротивление 2-го слоя МПа.

На основании таблицы 2.5 условное расчетное сопротивление 3-го слоя  (используя интерполяцию).

Условные расчетные сопротивления пылевато-глинистых грунтов

Таблица 2.5

Пылевато-глинистые грунты

Коэффициент пористости, е



IL = 0

IL = 1

Супеси

0,5 0,7

0,3 0,25

0,3 0,2

Суглинки

0,5 0,7 1

0,3 0,25 0,2

0,25 0,18 0,1

Глины

0,5 0,6 0,8 1,1

0,6 0,5 0,3 0,25

0,4 0,3 0,2 0,1


Условные расчетные сопротивления песчаных грунтов

Таблица 2.6

Песчаные грунты


плотные

средней плотности

Крупные (независимо от влажности)

0,6

0,5

Средней крупности (независимо от влажности)

0,5

0,4

Мелкие: маловлажные влажные и насыщенные водой

 0,4 0,3

 0,3 0,2

Пылеватые: маловлажные влажные насыщенные водой

 0,3 0,2 0,15

 0,25 0,15 0,1


Построение инженерно-геологического разреза площадки строительства с эпюрой .

Рисунок 2.3


Проектирование фундамента мелкого заложения на естественном основании

Определение глубины заложения фундамента

Глубина заложения фундаментов должна определяться с учетом:

назначения и конструктивных особенностей проектируемого сооружения (например, наличие подвалов, подземных коммуникаций и т.д.);

величины и характера нагрузок, воздействующих на основание;

глубины заложения фундаментов примыкающих зданий и сооружений;

инженерно-геологических условий площадки строительства (физико-механических свойств грунтов, характера напластований);

гидрогеологических условий площадки и возможных их изменений в процессе строительства и эксплуатации сооружения;

глубины сезонного промерзания грунтов.

Нормативная глубина промерзания грунта, если она менее 2,5 м, определяется по формуле

,

где d0 - глубина промерзания грунта, в см, зависящая от вида грунта применяется равной:

для суглинков и глин - 23 см;

супесь, пески мелкие пылеватые - 28 см;

пески гравелистые, крупные средние - 30 см;- коэффициент, численно равный сумме абсолютных значений среднемесячных отрицательных температур за зиму в данном районе (=28).


Расчетная глубина промерзания грунта:


где  - коэффициент, учитывающий влияние теплового режима здания на промерзание грунта у наружных стен (принимается по СНиПу в зависимости от конструкции пола первого этажа и расчетной температуры воздуха в помещениях =0,6);

- нормативная глубина промерзания грунта, в см.

.


Нормативная глубина заложения принимается: d0=88,896 см.

Конструктивная глубина заложения принимается: d0=2 м.

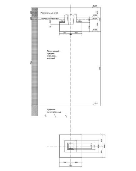
Расчетная схема фундамента

Рисунок 3.1



Определение площади подошвы фундамента

Площадь подошвы нагруженного фундамента определяется по формуле:

,

где  - расчетная нагрузка, приложенная к обрезу фундамента, (по заданию = 1450 кН);

 - расчетное сопротивление грунта основания, (=200 кПа);

 - средний удельный вес грунта и материала фундамента, кН/м3 принимаемый равный 20 кН/м3, а при наличии подвала над уступами - 16 (=20 кН/м3);- глубина заложения фундамента от планировочной отметки, м (=2 м).

Фактическая площадь:


Определение расчетного сопротивления грунта основания под подошвой фундамента (R) по формуле СНиП.

Расчетное сопротивление грунта основания, кПа, определяют по формуле:

,

где и  - коэффициенты условий работы (= 1);

К- коэффициент надежности по грунту; (К=1);

 - коэффициенты, зависящие от угла внутреннего трения (см. табл. 3.2 );

 = 1 при b<10 м;- ширина подошвы фундамента, (=1,9 м);

 - осредненное расчетное значение удельного веса грунтов, (см. табл. 2 =19,9 кН/м3);

 - то же, залегающих выше подошвы в пределах глубины d (см. табл. 2 =19,9 кН/м3);

 - расчетное значение удельного сцепления грунта, залегающего непосредственно под подошвой фундамента, (= 5 кПа);- глубина заложения фундаментов бесподвальных сооружений от уровня планировки (=2 м).

Коэффициенты, зависящие от угла внутреннего трения ( см. табл. 2)

Таблица 3.2

, град

, град

1

2

3

4

5

6

7

8

0

0

1,00

3,14

24

0,72

3,87

6,45

2

0,003

1,12

3,32

26

0,84

4,37

6,90

4

0,006

1,25

3,51

28

0,98

4,93

7,40

6

0,10

1,39

3,71

30

1,15

5,59

7,95

8

0,14

1,55

3,93

32

1,34

6,34

8,55

10

0,18

1,73

4,17

34

1,55

7,22

9,22

12

0,23

1,94

4,42

36

1,81

8,24

9,97

14

0,29

2,17

4,69

38

2,11

9,44

10,80

16

0,36

2,43

4,99

40

2,46

11,73



После определения расчетного сопротивления грунта R уточняют размеры подошвы фундамента, подставляя в формулу определения фактической площади вместо R0 значение R, и затем проверяют давление под подошвой фундамента:

.

Конструктивная площадь, принимается по конструктивным соображениям, которая должна быть больше :


Полученное значение A для фундаментов при внецентренной нагрузке должно быть увеличено на 10-20% на восприятие момента сил.

Определяем размеры подошвы фундамента для квадратного фундамента, принимается кратным 100 мм:

.

Определение давлений под подошвой фундамента:  при центральном и внецентренном нагружениях

;

где  - среднее давление по подошве фундамента, кПа;

 - расчетная нагрузка, приложенная к обрезу фундамента, (по заданию = 1450 кН);

А - конструктивная площадь подошвы нагруженного фундамента (=3,61 м2);

 - средний удельный вес бетона (=22 кН/м3);- глубина заложения фундамента от планировочной отметки (=2 м).


Краевое давление определяется по формуле:

,

где  - расчетная нагрузка, приложенная к обрезу фундамента, (по заданию = 1450 кН);

А - конструктивная площадь подошвы нагруженного фундамента (=3,61 м2);

 - средний удельный вес грунта (=22 кН/м3);- глубина заложения фундамента от планировочной отметки (=2 м);

 - момент от сочетания расчетных нагрузок (= 50 кН*м);

 - момент сопротивления, определяемый по формуле:

;

Максимальное краевое давление:


Минимальное краевое давление:


При рациональном проектировании фундамента разница между давлениями под подошвой фундамента P и расчетным сопротивлением грунта R не должна превышать 10-15%. В случае большой разницы необходимо подобрать другие типовые элементы конструкций фундаментов с последующим расчетом напряжений под подошвой фундаментов. При недонапряжении ленточных фундаментов с уже подобранными размерами.

Проверка условий под подошвой фундамента:

При расчете внецентренно нагруженного фундамента методом последовательного приближения добивается удовлетворения следующих условий:

для среднего давления по подошве ;

для максимального краевого давления ;

для минимального краевого давления исходя из условия: не допускать отрыва подошвы фундамента от грунта

Для центрально нагруженного фундамента должно удовлетворяться условие

,

где  - среднее давление по подошве фундамента, кПа;

для среднего давления по подошве:

 - условие выполняется.

для максимального краевого давления:

 - условие выполнятся;

для минимального краевого давления исходя из условия:

 - условие выполняется.

После выполнения всех условий для центрально и внецентренно нагруженных фундаментов производится их конструирование.

При конструировании фундамента под колонну необходимо учитывать, что высота должна быть кратной 100 мм. Высота ступеней назначается в зависимости, от полной высоты плитной части фундамента. При назначении ширины ступени следует стремиться к тому, чтобы отношение выноса ступени к ее высоте было бы не больше двух

Конструкция фундамента мелкого заложения.

Рисунок 3.2


Расчёт осадки методом эквивалентного слоя (метод профессора Цитовича Н. А.):


где  - мощность эквивалентного слоя:


 - коэффициент относительной сжимаемости, для песка:

,

 - коэффициент эквивалентного слоя (определяется по таблице 3.2 = 0,94);

 - среднее давление по подошве фундамента (=445,66 кПа);


Значение коэффициента эквивалентного слоя  для жестких фундаментов

Таблица 3.2

Соотношение сторон

, при значении


0,1

0,2

0,25

0,3

0,35

0,4


гравий и галька

пески

суглинки пластичные

глины сильно пластичные


глины и суглинки твердые

супеси

глины пластичные


1

0,89

0,94

0,99

1,08

1,04

1,58

1,5

1,09

1,15

1,21

1,32

1,52

1,94

2

1,23

1,23

1,37

1,49

1,72

2,20

3

1,46

1,46

1,62

1,76

2,01

2,59

4

1,63

1,63

1,81

1,97

2,26

2,90

5

1,74

1,74

1,94

2,11

2,42

3,10

≥ 10

2,15

2,15

2,38

2,6

2,98

3,82


Проектирование свайного фундамента

Проектирование свайных фундаментов производится в соответствии с требованиями СНиП 2.02.03-85.

Свайный фундамент состоит из свай и ростверка. Свайные фундаменты применяются при слабых грунтах или вследствие технико-экономических преимуществ (быстрота производства работ, экономичность и др.). Для промышленного и гражданского строительства выбираются, в основном, свайные фундаменты с низким ростверком.

Расчет свайных фундаментов производится по двум группам предельных состояний. По первой группе - расчет несущей способности свай и ростверков. По второй группе - расчет по деформациям свайных фундаментов.

Выбор конструкции сваи: типа, длины и поперечного сечения свай;

Тип свай, их длина, размер поперечного сечения назначаются исходя из конкретных инженерно-геологических условий строительной площадки. В практике жилищного и промышленного строительства наиболее часто применяют сваи сечением 25х25 и 30х30 см. При назначении длины свай следует иметь ввиду, что почти всегда экономически целесообразен фундамент с большим количеством коротких свай.

Длина сваи определяется глубиной залегания несущего слоя грунта и отметки заложения подошвы ростверка. Нижний конец сваи рекомендуется заглублять в несущей слой грунта на 2 м. Минимальные размеры заделки нижних концов свай приведены в СНиПе на свайные фундаменты.

Определение глубины заложения и размеров ростверка;

При наличии глубины заложения подошвы свайного ростверка необходимо учитывать вид и состояние грунтов строительной площадки, положения уровня грунтовых вод, конструктивные особенности сооружения (например наличие подвала и т. д.).

Глубина заложения свайного ростверка в непучинистых грунтах назначается не зависимо от глубины промерзания (не менее 0,5 от поверхности планировки), в пучинистых грунтах ниже расчетной глубины промерзания не менее чем на 0,25 м.

В промышленных и гражданских зданиях обрез ростверка принимается на 15-20 см ниже уровня отметки пола. Толщина ростверка должна быть не менее 40 см. Окончательная его толщина определяется проверочным расчетом на изгиб или на продавливание головами свай. Величина заделки головы железобетонной сваи в ростверке составляет:

при отсутствии горизонтальных нагрузок на фундамент - не менее 5-10 см. При этом заделка выпусков арматуры не обязательна;

при наличии горизонтальных нагрузок на фундамент - не менее поперечного сечения свай или на 5-10 см с обязательным выпуском в ростверк арматуры периодического профиля на длину 25 ее диаметров.

Расчетная схема

Рисунок 4.2


Определение несущей способности свай по грунту и допустимую расчетную нагрузку на сваю;

Несущую способность свай по грунту определяем по формуле:

где  - коэффициент условий работы сваи; ;

,  - коэффициенты условий работы под нижнем концом и по боковой поверхности сваи, зависящее от способа погружения свай (для свай погруженных забивкой );- расчетное сопротивление грунта под нижним концом сваи, (=2,57 МПа);

А - площадь поперечного сечения сваи, (= 0,09 м2) ;- наружный периметр сваи (= 1,2 м);

 - расчетное сопротивление i-го слоя грунта основания по боковой поверхности сваи, кПа (таблица 4.1);

 - толщина i-го слоя грунта, соприкасающегося с боковой поверхностью сваи, м.

Значение расчетных сопротивлений

Таблица 4.1

Глубина погружения сваи, м

R под нижним концом забивных свай и свай оболочек, не заполняемых бетоном, Мпа


Песчаных грунтов средней плотности


гравелистых

крупных

-

средней плотности

мелких

пылеватых

-


Пылевато-глинистых грунтов при показатели текучести I1


0

0,1

0,2

0,3

0,4

0,5

0,6

3

7,5

6,6 4

3

3,1 2

2 1,2

1,1

0,6

4

8,3

6,8 5,1

3,8

3,2 2,5

2,1 1,6

1,25

0,7

5

8,8

7 6,2

4

3,4 2,8

2,2 2

1,3

0,8

7

9,7

7,3 6,9

4,3

3,7 3,3

2,4 2,2

1,4

0,85

10

10,5

7,7 7,3

5

4 3,5

2,6 2,4

1,5

0,9

15

11,7

8,2 7,5

5,6

4,4 4

2,9

1,65

1

20

12,6

8,5

6,2

4,8 4,5

3,2

1,8

1,1

Значение расчетных сопротивлений f

Таблица 4.2

Средняя глубина расположения слоя, м

Значение f по боковой поверхности свай и свай-оболочек, МПа


Песчаных грунтов средней плотности


Крупных и средней крупности

мелких

пылеватых

-

-

-

-

-

-


Пылевато-глинистых грунтов при показателе текучести I1


0,2

0,3

0,4

0,5

0,6

0,7

0,8

0,9

1

1

0,035

0,023

0,015

0,012

0,008

0,004

0,004

0,003

0,002

2

0,042

0,03

0,021

0,017

0,012

0,007

0,005

0,003

0,004

3

0,048

0,035

0,025

0,02

0,014

0,008

0,007

0,006

0,005

4

0,053

0,038

0,027

0,022

0,016

0,009

0,008

0,007

0,005

5

0,056

0,04

0,029

0,024

0,017

0,01

0,008

0,007

0,006

6

0,058

0,042

0,031

0,025

0,018

0,01

0,008

0,007

0,006

8

0,062

0,044

0,033

0,026

0,019

0,01

0,008

0,007

0,006

10

0,065

0,046

0,034

0,027

0,019

0,01

0,008

0,007

0,006

15

0,072

0,051

0,038

0,028

0,02

0,011

0,008

0,007

0,006

20

0,079

0,056

0,041

0,03

0,02

0,012

0,008

0,007

0,006


Определяем несущую способность свай по грунту:

А = 0,3*0,3 = 0,09 м2;= 0,3*4 = 1,2 м

 = 622,812 кН.

Определение количества свай в свайном фундаменте (СФ).

Похожие работы на - Проект фундамента промышленного здания

 

Не нашли материал для своей работы?
Поможем написать уникальную работу
Без плагиата!
Без нейросетей!