Проектирование и расчет несущих конструкций железобетонного каркаса одноэтажного промышленного здания

  • Вид работы:
    Курсовая работа (т)
  • Предмет:
    Строительство
  • Язык:
    Русский
    ,
    Формат файла:
    MS Word
    1,74 Mb
  • Опубликовано:
    2011-01-19
Вы можете узнать стоимость помощи в написании студенческой работы.
Помощь в написании работы, которую точно примут!

Проектирование и расчет несущих конструкций железобетонного каркаса одноэтажного промышленного здания

Старооскольский технологический институт

Федерального государственного образовательного учреждения Высшего профессионального образования

"Национальный исследовательский технологический университет МИСиС"

Кафедра промышленного и гражданского строительства




Пояснительная записка

к курсовому проекту по железобетонным и каменным конструкциям

на тему:

"Проектирование и расчет несущих конструкций железобетонного каркаса одноэтажного промышленного здания"

Выполнил: студент

группы ПГС-05-2з

Рогоза С.И.

Проверил:

Медведев Е.Н.





2010 г.

Задание

К курсовому проекту №1

По дисциплине "Железобетонные и каменные конструкции"

Разработать проект каркаса одноэтажного промышленного здания в сборном железобетоне. В основу компоновки объемно - планировочного и конструктивного решения принять знания и умения, приобретенные в разработанном ранее курсовом проекте "Промышленные здания" по дисциплине "Архитектура ПГ3".

Исходные данные

1. Длина блока 60(м),

2. Ширина блока 36(м),

3. Шаг колонн 6(м),

4. Пролет (L1, L2) 18(м),

5. Количество пролетов 2

6. Высота до низа несущих конструкций 8.4(м),

7. Грузоподъемность крана 20 (т),

8. Район строительства г. Киев,

9. Типовые конструкции

- колонны, крановые сплошного прямоугольного сечения (колонна для расчета крайняя);

- отдельно стоящие фундаменты стаканного типа;

- конструкции покрытия – КЖС.

Состав проекта

I. Состав пояснительной записки:

1. Компоновочная и расчетная схема каркаса здания, сбор по загружениям.

2. Определение усилий в крайней колонне от загружений.

3. Комбинация усилий в сечениях крайней колонны.

4. Расчет и конструирование колонны.

5. Расчет и конструирование отдельно стоящего фундамента.

6. Расчет и конструирование плиты.

II.   Графическая часть проекта.

Проект оформляется на 1.5-2 листах формата А1 в составе:

- компоновочная схема здания;

- армирование колонны;

- армирование отдельно стоящего фундамента;

- армирование конструкций покрытия.

Введение

Целью данного курсового проекта является расчет железобетонных элементов сборного каркасного одноэтажного промышленного здания. Здание имеет следующие объемно планировочные характеристики: два пролета по 18 м (общая ширина здания 36 м), длина – 60м. В здании применены железобетонные колонны заводского изготовления. Колонны имеют сплошное прямоугольное поперечное сечение. Шаг колонн в здании – 6м. На колонны опирается подкрановые балки длиной 6 м. В каждом пролете действует кран, грузоподъемностью Q=20 т. Все краны среднего режима работы. Колонны опираются на фундаменты стаканного типа. Нагрузка от покрытия на колонны посредством КЖС пролетом 18 м, уложенных с шагом 6 м. В качестве наружных ограждающих конструкций применяются железобетонные панели размером 1,2х6 м. Для расчета элементов каркаса колонн, КЖС – все размеры принимаются в соответствии с каталогом железобетонных конструкций для одноэтажных промышленных зданий. В пояснительной записке приводится лишь расчет и подбор арматуры. Фундамент рассчитывается с учетом требований унификации.

Здание рассчитывается для строительства в районе города Киев.

1. Подбор конструкций

Колонны


Подкрановая балка – 3,5т


Стеновая панель – 2,1т


Характеристики крана:


Грузоподъемность Q=20т; Пролет Lк-16.5 м;

Ширина В=6300мм; База К=4400мм;

Высота Н=2400мм; Зазор В1=260мм;

Давление колеса Рn, max=195кН;

Масса тележки Gт=8.5 т;

Масса крана с тележкой Gк=28,5т.

2. Компоновка поперечной рамы здания

Fгр – грузовая площадь поперечника.


3. Cбор нагрузок

Постоянная нагрузка

Нагрузки от покрытия собираем с грузовых площадей равных: 9x6 м для колонн по рядам А и В, и 18х6 для колонн по ряду Б.

Нагрузки от массы подкрановых балок, крановых путей, стеновых панелей, от ветра собираем с полосы 6м, равной по ширине раме-блоку.

Элементы конструкции

Нормативная нагрузка кН/м2

Коэф. Надежности γf

Расчетная нагрузка кН/м2

Защитный слой из гравия на мастике, δ=20мм

0,4

1,3

0,52

Водоизоляционный ковер (три слоя рубероида на мастике)

0,15

1,3

0,18

Цементно-песчаная стяжка δ=20мм

0,4

1,3

0,52

Минераловатный плитный утеплитель (γ=3,7 кН/м3; δ=100мм)

0,37

1,3

0,48

Пароизоляция – два слоя пергамина на мастике

0,1

1,3

0,12

КЖС

1,82

1,1

2.00

Итого

3,24

-

3.82



Снеговая нагрузка

Расчетная снеговая нагрузка по (СНиП 2.01.07-85* "Нагрузки и воздействия" таб.4)

для г. Киев.


где γf – коэффициент надежности по нагрузке 1,8;


Определим продольную силу Ns в крайней

колонне:

 ;

Момент , возникающий от действия снеговой

нагрузки равен

где

Ветровая нагрузка


В зависимости от района (по СНиП 2.01.07-85* прил.5 карта 3 и табл.5) выбираем район и нормативное значение ветрового давления w0 Киев – II район – w0=0.3 (кПа),

Аэродинамические коэффициенты для вертикальных стен:

- с наветренной стороны;  - c заветренной стороны;

где Ш – шаг колонн 6м;

γf – коэффициент надежности по нагрузке 1,2;

к=1 – коэффициент изменения ветрового давления по высоте.

С наветренной стороны:


С заветренной стороны:


Суммарная сосредоточенная сила W в уровне верха колонны от ветровой нагрузки на стеновую панель:

,

гдеhпар=0,6м – высота парапета.

Крановые нагрузки


Продольные сосредоточенные нагрузки от действия мостовых кранов:

,

где - коэффициент сочетания для групп режимов работы кранов 1к-6к

γf – коэффициент надежности по нагрузке 1,2;

- максимальное давление колеса на подкрановую балку


- максимально возможная сумма ординат линии влияния опорные реакции подкрановых балок.



Момент от внецентренного приложения:


При торможении тележки возникает горизонтальная поперечная сила :

Расчетная тормозная сила:

;

4. Расчет и конструирование средней колонны

Данные для расчета.


Бетон класса B22,5 с характеристиками Rb=13.5 МПа, продольная рабочая арматура класса А-III Rs=Rsc=365 МПа, Es=20x104 МПа, Eв=260x103 МПа.

Для расчета колонны используем следующее наиболее неблагоприятное сечение (расчетные сочетания усилий):

Надкрановая часть: N= 110.5 (т); М=4.6 (т·м); Q= 2,4 (т);

Подкрановая часть: N= 185.0 (т); М=15.2 (т·м); Q= 2,9 (т);

Расчет надкрановой части колонны.

Сечение колонны bxh=40x60см. Защитный слой а=4см.

Полезная высота сечения h0=60-4=56см.

Расчетная длина надкрановой части колонны l0=2H2=2x3.9=7,8 м,

При учете крановой нагрузки (т. 32 СНиП II-21-75)

Гибкость надкрановой части колонны:

, где .

Значит, появляется необходимость учета влияния прогиба элемента на величину эксцентриситета продольной силы: .

Случайные эксцентриситет:  Наибольшее значение случайного эксцентриситета . Расчетный эксцентриситет


Находим условную критическую силу

, где ;

; ;

так как следовательно принимаем значение

Кдл=1 – коэффициент учитывающий длительное влияние действия нагрузки на пргиб элемента в предельном состоянии. Придельный момент инерции сечения арматуры относительно центра тяжести бетонного сечения:

, где

 

;


Коэффициент

: ;

Расстояние

;

Граничное значение относительной высоты сжатой зоны бетона:

, где

;

;

Площадь арматуры в сжатой зоне


Сечение арматуры назначаем по конструктивным соображениям:


Принимаем 3 Ø16 А-III, Аs=6.03см2

При принятом сечении значение:


По таблице 2.11 (Мандриков)

Определим сечение растянутой арматуры


Сечение арматуры назначаем по конструктивным соображениям:  Принимаем 3 Ø16 А-III, Аs=6.03см2

Принятый коэффициент армирования предварительно

μ=0,005,


не значительно отличается от первоначально принятого μ=0,005, по этому корректировку расчета можно не производить. На широких гранях предусматриваем по 1 Ø16 А-III с тем, чтобы расстояние между продольными стержнями не превышало 400мм.

Расчет подкрановой части колонны.


Размеры сечение подкрановой части колонны bxh=40x60см.

Защитный слой а=4см. Полезная высота сечения h0=60-4=56см.

Расчетная длина подкрановой части колонны l0=1,5H2=1,5x5,55=8,325(м). При учете крановой нагрузки (т. 32 СНиП II-21-75). Гибкость подкрановой части колонны:

, где .

Значит, появляется необходимость учета влияния прогиба элемента на величину эксцентриситета продольной силы: .

Случайные эксцентриситет:  Наибольшее значение случайного эксцентриситета . Расчетный эксцентриситет


Находим условную критическую силу

, где ;

;

;

так как следовательно принимаем значение

Кдл=1 – коэффициент учитывающий длительное влияние действия нагрузки на пргиб элемента в предельном состоянии. Придельный момент инерции сечения арматуры относительно центра тяжести бетонного сечения:

, где

;


Коэффициент

: ;

Расстояние

;

Граничное значение относительной высоты сжатой зоны бетона:

, где

;

;

Площадь арматуры в сжатой зоне


Сечение арматуры назначаем по конструктивным соображениям:


Принимаем 3 Ø16 А-III, Аs=6.03см2

При принятом сечении значение:


По таблице 2.11 (Мандриков)

Определим сечение растянутой арматуры

Сечение арматуры назначаем по конструктивным соображениям:  Принимаем 3 Ø16 А-III, Аs=6.03см2

Принятый коэффициент армирования предварительно μ=0,005,

не значительно отличается от первоначально принятого μ=0,005, по этому корректировку расчета можно не производить. На широких гранях предусматриваем по 1 Ø16 А-III с тем, чтобы расстояние между продольными стержнями не превышало 400мм.

Расчет крановой консоли


d=750мм; b=600мм; h3=900мм; h4=600мм; а=40мм; h0=1460мм; h=1500мм; l=900мм

На крановую консоль ряда действует сосредоточенная сила от

веса подкрановой балки и вертикального давления кранов.

;

1) Используемый бетон класса В22,5 Rb=13.5 (МПа), Rbt=0,975 (МПа),

так как  , значит консоль короткая.

,

т.е. прочность бетонного сечения консоли достаточно и поперечное армирование ее выполняется по конструктивным требованиям (согласно Пособию по проектированию бетонных и железобетонных конструкций из тяжелых и легких бетонов без предварительного напряжения арматуры).

Поперечное армирование принимаем в виде горизонтальных хомутов из стержней Ø6 А-III с шагом 150 (мм) по высоте колонны.

2) Конструкция короткой консоли должна отвечать условию, обеспечивающему прочность бетона на наклонной сжатой полосе между грузом и опорой.

, где - расчетный размер бетонной полосы

; ;

 - коэффициент, учитывающий влияние поперечной арматуры.

,

где  - сечение двух горизонтальных хомутов.

;


Условие выполняется, прочность бетона на наклонной сжатой полосе обеспечена.

3) Расчет продольной арматуры:

Изгибающий момент:


По таблице 2.11 (Мандриков)

;

Требуемая площадь сечения продольной арматуры консоли:


Принимаем 2 Ø18 A-III As=5.09(cм2).

4) Определение сечения отогнутых стержней:


Принимаем 4 Ø20 A-III As=12,56(cм2).

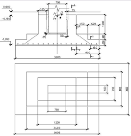
5. Конструирование и расчет фундамента

Глубину заложения фундамента принимаем 1.95 м. Обрез фундамента на отметке -0,150м. Расчетное сопротивление грунта основания R=215 кПа, средний удельный вес материала и грунта на нем γm=20 кН/м3. Бетон фундамента класса В12,5 с расчетными характеристиками Rb=7.5 МПа; Rbt=0.66 МПа; Арматура класса А-III.

На фундамент в уровне его обреза передаются от колонны следующие усилия

N= 185.0 (т); М=15.2 (т·м); Q= 2,9 (т);


Предварительные размеры подошвы фундамента.

Назначая отношение сторон 5 и предварительно установим размер меньшей стороны как для центрально нагруженного фундамента:

;

Примем , тогда ;

Учитывая наличие момента и распора, увеличиваем размеры сторон примерно на 10-15%;

Принимаем (кратно 300).

Площадь подошвы ;

Момент сопротивления подошвы в плоскости изгиба

;

Определение конфигурации фундамента.

Размеры подколонника в плане:

,

где  и  - толщина стенок стакана и зазор между гранью колонны и стеной стакана в направлении сторон l и b.

Рабочая высота плитной части из условия продавливания от граней подоконника.


Принимая bc=bcf=1.2м и hc=hcf=1.2м


Так как консольный вынос ступени получается больше оптимального, равного 3h01:

0,5(l-lcf)=0.5(3.6-1.2)=1.2>3h01=3x0.25=0.75(м), где h01=h1-a=300-50=250мм=0,25м,

поэтому принимаем плитную часть из двух ступеней высотой h1=h2=300мм. Размеры в плане второй ступени b1xl1=1.8x2.4м. Консольные выносы ступеней:

; ; ;

Глубина стакана под колонну hd=900мм


Проверка высоты нижней ступени.

Проверка на продавливание выполняется из условия: , где Р=РmaxAf0 – продольная сила; bm=b1+h01=1.8+0.25=2.05 – размер средней линии грани пирамиды продавливания. При b-b1=3,0-1.8=1,2м>2h01=2x0.25=0.5м.

Площадь

=0,928(м2);


- продавливание нижней ступени не произойдет.

Проверка по поперечной силе для наклонного сечения, начинающаяся от грани второй ступени.  - перерезывающая сила. Минимальное поперечное усилие, воспринимаемое одним бетоном:

;

прочность нижней ступени по поперечной силе достаточны.

Проверку второй ступени на продавливание можно не производить, так как принятая высота плитной части значительно превышает требуемую из расчета на продавливание.

Подбор арматуры подошвы.

Площадь сечения рабочей арматуры подошвы: , Мi-i и h01 – момент и рабочая высота в i-том сечении. Подбор арматуры в направлении длинной стороны подошвы.

Сечение I-I (h01=250мм):

;


Сечение II-II (h02=550мм):

;


Сечение III-III (h03=1750мм):

;

.

Приму 15 Ø 18 А-III (Аs=3810мм2>As,II=3542мм2) в направлении длинной стороны с шагом 200 мм.

Подбор арматуры в направлении короткой стороны.

Расчет ведется по среднему давлению по подошве .

Рабочая высота

Сечение I’-I’ по грани второй ступени

;


Сечение II’-II’ по грани подколонника

;


Сечение III’-III’ по грани колонны  

;

.

Принимаю вдоль короткой стороны фундамента 18 Ø 14 А-III (Аs=2770мм2>As,II=2245мм2) с шагом 200 мм.

Расчет продольной арматуры подколонника.

Расчет продольной арматуры подколонника. Толщину защитного слоя бетона принимаем не менее 50 мм, берем расстояние от наружной грани стакана до центра тяжести сечения арматуры a=a’=50мм.


;

- момент на уровне низа подколонника.


Расчетный эксцентриситет относительно арматуры подколонника:


Требуемая площадь сечения симметричной арматуры:

;

;

;


то есть по расчету продольная арматура не требуется, но по конструктивным требованиям при As<0 ее количество должно быть не менее 0.05% площади поперечного сечения подколонника.


Принимаем по 5Ø14 А-III (Аs= А’s=769мм2) у граней подколонника, перпендикулярных плоскости изгиба. У смежных граней параллельных плоскости изгиба, с шагом не более 400 мм, т.е. по 3Ø14 A-III (Аs= 462 мм2).

Подбор поперечной арматуры подколонника.

При выполнении условия ,  - поперечная арматура подколонника ставится конструктивно. Примем поперечную арматуру подколонника в виде горизонтальных сеток С-2 из стержней Ø 8 A-III с шагом 150 мм. Количество сеток 8 шт.


Расчет на смятие для стакана.

Расчет выполняется из условия, где  - так как нагрузка почти равномерно распределенная;

 - площадь смятия;

 - расчетная площадь смятия;


Расчетное сопротивление смятию бетона:

, где

 для бетона класса ниже В25.


Значит смятие бетона под колонной на дне стакана не произойдет, следовательно сетка под днищем стакана не требуется.


6. Конструирование и расчет КЖС-18

Бетон класса B30 с характеристиками Rb=17 МПа, Rbt=1.2 МПа, арматура класса А-IV, Rs=510 МПа, Rsc=400 МПа, Es=1.9x105 МПа, Eв=260x103 МПа.

Сбор нагрузок

Элементы конструкции

Нормативная нагрузка кН/м2

Коэф. Надежности γf

Расчетная нагрузка кН/м2

Защитный слой из гравия на мастике, δ=20мм

0,4

1,3

0,52

Водоизоляционный ковер (три слоя рубероида на мастике)

0,15

1,3

0,18

Цементно-песчаная стяжка δ=20мм

0,4

1,3

0,52

Минераловатный плитный утеплитель (γ=3,7 кН/м3; δ=100мм)

0,37

1,3

0,48

Пароизоляция – два слоя пергамина на мастике

0,1

1,3

0,12

КЖС

1,82

1,1

2.00

Итого

3,24

-

3.82

Снеговая

1

1.8

1.8

ВСЕГО

4.24


5.62


Размеры поперечного сечения панели-оболочки принимаем согласно рекомендациям: толщину оболочки 30 мм, толщину стены диафрагмы 40-50 мми нижнего утолщения 100х100 мм, высоту опорной части панели 150 мм.

С учетом коэффициента надежности принимаем нагрузку:

- нормативная (при γf=1) – 4.24 кН/м2;

- расчетная (при γf>1) – 5.62 кН/м2;

Расчетный изгибающий момент в середине пролета панели:

Расчетная поперечная сила:


Расчетные усилия от нормативных нагрузок:


Расчет толщины оболочки

Проверяем толщину оболочки в середине пролета:

- коэффициент условий работ тонкой оболочки – 0.75


Принимаем 3 см

Расчет арматуры в торце плиты

Определяем расчетное усилие Nt в торцевой арматуре:


Принимаем большее из двух значений.

g – расчетная нагрузка от веса панели на 1 м2; bs – расстояние между осями рабочей арматуры диафрагм; 2000 – сопротивление отрыву при съема панели с формы.


Принимаем Nt=76 кН

Площадь сечения торцевой арматуры As,t класса A-III c Rs=360 МПа (при d>10 мм):


Принимаем 2Ø12 A-III; As=2.26 см2.

Расчет диафрагм на действие поперечной силы.

Значение Q=150 кН. С учетом влияния изгибающего момента рассмотрим сечение, расположенное на расстоянии 1 м от оси опоры. В этом сечении ho=26.7 см; z0=24.4 см; tgφ=0.19; толщина диафрагм b’=10 см; Rbt=1.2 МПа.

Усилие в сечении:


Определяем часть поперечной силы, воспринимаемой диафрагмами:

,

где φ – угол наклона оси оболочки; при этом должно соблюдаться условие:


Условие


Условие соблюдается.

Следовательно, поперечная арматура по расчету не требуется, устанавливаем ее по конструктивным соображениям: Ø6 A-III с шагом 150 мм.

В вертикальных ребрах жесткости диафрагм через 1.5-1.6 м ставим подвески из арматур Ø10 A-III.

Расчет анкеров.

Площадь рабочей поверхности анкера рабочей арматуры каждой диафрагмы определяется из условий:

,

где М1 – изгибающий момент на всю ширину панели в сечении, расположенном на расстоянии 1.5 м от рабочей поверхности анкера; z1 – расстояние по вертикали от оси рабочей арматуры диафрагмы до оси оболочки в этом же сечении.


Площадь поверхности анкера по формуле:


Принимаем анкер с упорной плитой шириной 180 мм и высотой 140 м.


Расчет панели по деформациям (прогибам)

Определяем прогиб панели в середине пролета с учетом длительного действия нагрузки при коэффициенте надежности γf=1 по формуле:

,

где q1 – кратковременно действующая часть нагрузки; φb2 – коэффициент, учитывающий влияние длительной ползучести бетона; q2 – длительно действующая часть нагрузки; q3 – эквивалентная по моменту в середине пролета равномерно распределенная нагрузка от сил предварительного натяжения.

,

где Р0 – равнодействующая усилий в напрягаемой арматуре до обжатия бетона;

σlos = σ6+ σ8+ σ9 – потери напряжений в арматуре.

σ’los – потери напряжений до уровня сжатой зоны бетона.


Расчет панели по образованию трещин

Рассмотрим сечение в середине пролета панели. Момент сопротивления для растянутой грани сечения:


Расстояние zy от центра тяжести сечения до верхней ядровой точки с учетом коэффициента 0.8 определяем по формуле:


Изгибающий момент в середине пролета при образовании трещин:


Wpl - момент сопротивления для растянутой грани сечения с учетом неупругих деформаций бетона;

Р02 – равнодействующая усилий в напрягаемой арматуре с учетом всех потерь:


Это соответствует равномерно распределенной нагрузке при образовании трещин.


Таким образом, трещиностойкость панели при γf=1 обеспечена, трещины появляются при нагрузках с коэффициентом надежности γf>1, при которых расчетный изгибающий момент:


Прочность сопряжения оболочки с диафрагмой


Прочность проверяем расчетом на изгиб в сечениях 1-1 и 2-2 при действии на оболочку расчетных изгибающих нагрузок. При принимаем момент М1 ( в сечении 1-1) и М2 (в сечении 2-2) одинаковым, который определяем по формуле:

,

где l0 – размер оболочки между вутами;

av – ширина вута от внутренней грани диафрагмы;

q1 – расчетная изгибающая нагрузка при наиболее неблагоприятной схеме загружения.


Момент М1 воспринимается поперечной арматурой сетки оболочки, где на 1 м предусмотрено 5Ø5 Вр-I, As=0.98 см2.

Эта арматура может воспринять момент

,

где ,

h0 =7-1.5=5.5 см (в сечении 1-1)

Условие прочности соблюдается.

Дополнительное армирование сопряжения оболочки с диафрагмой по расчету не требуется.

Момент М2 воспринимается арматурой подвесок, располагаемых в ребрах жесткости диафрагм.

При Ø10 A-III, As=0.78 см2 и b<12bр=12х4=48 см (bр=4 см – толщина стенки диафрагмы), h0=0.5х1.2 см=6 см;


Момент, воспринимаемый сечением:


Условие удовлетворяется.

Список используемой литературы

1. Железобетонные конструкции промышленных зданий: А.И. Заикин – М.: ABC 202. – 272c.

2. Мандриков А.П. "примеры расчета железобетонных конструкций" М. Стройиздат. 1991г, 430с.

3. СНиП II-03-01* Нормы проектирования. Бетонные и железобетонные конструкции М.: Стройиздат, 1989г.

4. СНиП 2.01.07-85 Нагрузки и воздействия М., 1985.

5. Байков В. Н., Сигалов Э. Е. "Железобетонные конструкции", учебник, М., Стройиздат, 1991.

6. Методические указания по расчету поперечников, расчетам плит перекрытия, балок. СТИ МИСиС, 1998, 1999г.

7. Шерешевский И. А. Конструирование промышленных зданий и сооружений, М., Стройиздат, 1979г.

8. Трепененков Р.Н. Альбом чертежей конструкций и деталей промышленных зданий, М., Стройиздат, 1980 г.

9. К.И. Вилков Одноэтажная рама промздания в сборном железобетоне, НАСА, Нижний Новгород, 1990 г.

10.   Пособие по проектированию бетонных и железобетонных конструкций из тяжелых и легких бетонов без предварительного напряжения арматуры (к СНиП 2.03.01-84).

11.   Пособие по проектированию фундаментов на естественном основании под колонны зданий и сооружений (к СНиП 2.03.01-84 и СНиП 2.02.01-83).

Похожие работы на - Проектирование и расчет несущих конструкций железобетонного каркаса одноэтажного промышленного здания

 

Не нашли материал для своей работы?
Поможем написать уникальную работу
Без плагиата!
Без нейросетей!