Монтаж полносборного здания

  • Вид работы:
    Курсовая работа (т)
  • Предмет:
    Строительство
  • Язык:
    Русский
    ,
    Формат файла:
    MS Word
    1,17 Мб
  • Опубликовано:
    2014-06-24
Вы можете узнать стоимость помощи в написании студенческой работы.
Помощь в написании работы, которую точно примут!

Монтаж полносборного здания

Министерство образования и науки Российской Федерации

Тамбовский государственный технический университет

Кафедра: «ГСиАД»








Пояснительная записка к курсовому проекту

по предмету «Технология возведения зданий» на тему:

«Монтаж полносборного здания»

Выполнил: студент гр. ССТ-41

Простосердов В.О.

Проверил: преподаватель

Любимова Т.И.





Тамбов 2013

Задание

к курсовому проекту «Монтаж полносборного задания»

по дисциплине «Технология возведения зданий»

студента группы ССТ-41 Простосердова В.О.

СОСТАВ РАБОТЫ:

Введение.

.        Определение объемов работ

.        Выбор метода возведения надземной части здания

.        Определение трудоемкости работ и стоимости трудозатрат

.        Разработка технологической схемы производства работ

.        Расчет требуемых параметров монтажных кранов

.        Выбор наиболее экономичного варианта крана

.        Разработка технологической карты

.        Разработка элементов стройгенплана объекта

Литература

Конструктивная схема №1

Номер варианта 2

Схема здания



Введение

В данном КП разрабатывается проект производства работ по возведению надземной части здания.

В качестве объекта проектирования представлено 10 этажное, без каркасное жилое здание.

Исходными данными для проектирования являются: конструктивная схема объекта, архитектурно-планировочное решение этажей, характеристики несущих и ограждающих конструкций.

Размеры здания в плане: - длина 39 м

ширина 25,8 м

высота этажа 2,8 м

КП состоит из пояснительной записки выполненной на листах формата А4 и графической части, состоящей из одного листа формата А1.

Здание разбито на 1 захватку, и на 10 ярусов, один этаж - один ярус.

1. Определение объемов работ

Таблица 1. Спецификация сборных элементов

Наименование элемента

Размеры, мм

Количество, шт.

Масса, Т

Объем, м3

Площадь, м2


Длина, l

Ширина, b

Высота, h

На одну захватку

На все здание

Одного эл-та

Всего

Одного эл-та

Всего


1

2

3

4

5

6

7

8

9

10

11

Наружные стеновые панели

Н-1 Н-2 Н-3 Н-4 Н-6 Н-7 Н-8 Н-9 Н-12

5790 2890 3490 4065 2865 2390 3380 6410 585

260 260 360 360 360 260 260 260 360

2880 2880 2880 2880 2880 2880 2880 2880 2880

4 4 2 2 3 4 8 4 8

40 40 20 20 30 40 80 40 80

4,61 2,39 5,94 6,55 4,82 3,80 2,62 5,44 1,19

184,4 95,6 118,8 131 144,6 152 209,6 217,6 95,5

4,336 2,164 3,618 4,215 2,970 4,130 2,531 4,8 0,590

173,44 86,56 72,36 84,3 89,1 165,2 202,48 192 47,2

16,675 8,323 10,051 11,707 8,251 6,883 9,734 18,461 1,685

Внутренние стеновые панели

В-1 В-2 В-3 В-6 В-7 В-8

5820 4600 3580 2890 3490 5880

180 180 180 140 140 140

2640 2640 2640 2640 2640 2640

13 12 7 3 2 2

130 120 70 30 20 20

8,01 4,56 3,02 2,68 2,53 6,90

1041,3 547,2 211,4 80,4 50,6 138

2,766 2,186 1,701 1,068 1,290 2,173

359,58 262,32 119,07 32,04 25,8 43,46

15,365 12,144 9,451 7,630 9,214 15,523

Плиты перекрытия

П-1 П -2 П-3 П-4 П -5 П -6 П -7 П -8 П -9 П -10 П -11

3580 2980 3580 2980 2980 3580 3280 1780 1780 1780 1780

5380 4780 5980 5980 2380 5380 1060 4340 2980 3580 6140

140 140 140 140 140 140 125 140 200 200 200

5 8 3 8 4 2 8 1 1 2 4

55 88 33 88 44 22 88 11 11 22 44

6,67 5,00 6,92 5,80 2,50 6,67 1,12 4,28 2,35 2,90 4,87

366,85 440 228,36 510,4 110 146,74 98,56 47,08 25,85 63,8 214,28

2,696 1,994 2,997 4,495 0,993 2,696 0,435 1,082 1,061 1,274 2,186

163,23 175,48 98,9 395,56 43,7 65,32 38,3 11,9 11,67 28,03 96,2

19,260 14,244 21,408 17,820 7,092 19,260 3,477 7,725 5,304 6,372 10,929

Лестничные площадки и марши

ЛП-1 ЛП-2

2180 2300

1200 1200

1860 1780

1 1

10 10

2 1,98

20 19,8

0,81 0,85

8,1 8,5

- -

Лифтовая шахта

ЛШ-1 ЛШ-2

1930 1930

2920 1820

2780 2780

1 1

10 10

6,15 4,99

61,5 49,9

15,667 9,765

156,67 97,65

19,06 19,06


Таблица 2. Ведомость объемов работ

N п/п

Наименование работ и процессов

Ед. изм.

Количество элементов

Расчет объемов работ




На этаж

На все здание


1

2

3

4

5

1           2        3   4   5   6  7            8  9   10  11    12     13

Установка панели наружных стен: Н-1 Н-2 Н-3 Н-4 Н-6 Н-7 Н-8 Н-9 Н-12 Установка панелей внутренних стен: В-1 В-2 В-3 В-6 В-7 В-8 Электросварка монт-х стыков наруж. и внутр. панелей Антикоррозийн. покрытие сварн. соед. наруж. и внутр. панелей Изоляция и герметизация стыков наруж. и внутр. панелей Заливка швов наруж. и внутр. стен. Панелей Монтаж плит перекрытия: П-1 П-2 П-3 П-4 П-5 П-6 П-7 П-8 П-9 П-10 П-11 Электросварка плит перекрытия Антикоррозийн. покрытие сварных соед. плит перекрытия Заливка швов плит перекрытия Устан-ка леснич. маршей и площадок ЛП-1 ЛП-2 Электросварка лестнич. маршей и площадок Антикоррозийн. покрытие сварн. соед. лестн. маршей и площадок Заливка швов лестн. маршей и площадок

  ШТ.         ШТ.        М   М   М   М  Шт            М  М   М  Шт.    М  М   М

  4 4 2 2 3 4 8 4 8 13 12 7 3 2 2   165,5   320   254,6   573,4  5 8 3 8 4 2 8 1 1 2 4  27  180   324,4  1 1   0,8  0,8   11,84

  40 40 20 20 30 40 80 40 80 130 120 70 30 20 20   1655   3200   2546   5734  55 88 33 88 44 22 88 11 11 22 44  270  1800   3244  10 10   8  8   118,4

  40 40 20 20 30 40 80 40 80 130 120 70 30 20 20   ∑NплLсв.шв=1655   3200   2546   L.шв=∑Pn/2=5734  55 88 33 88 44 22 88 11 11 22 44  ∑NплLсв.шв=270  1800   L.шв=∑Pn/2=3244  10 10   ∑NплLсв.шв=8  8   L.шв=∑Pn/2=118,4


2. Выбор метода возведения надземной части здания

Монтаж строительных конструкций - это комплексный процесс механизированной сборки здания или сооружения из готовых элементов. До начала монтажных работ должны быть выполнены все работы подземной части зданий.

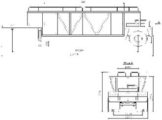
Метод монтажа: по технике исполнения - метод наращивания - это широко распространенный метод, состоящий в последовательном наращивании элементов здания по вертикали и горизонтали снизу вверх. По точности - свободный; в зависимости от направления по горизонтали - продольный; в зависимости от организации подачи элементов под монтаж: с предварительной раскладкой элементов в зоне действия монтажного крана <#"804305.files/image002.jpg">







Рис 1. Схема для определения параметров башенных кранов: 1- колонна; 2 - стропильная балка; 3 - плита покрытия; 4 - балконная плита; 5 - стеновые панели

Выбор крана при возведении монолитных, сборных и сборно-монолитных зданий в курсовом проекте осуществляют следующим образом:

Определяем необходимые технические параметры кранов: грузоподъемность, вылет стрелы, высота подъема крюка;

·        вылет стрелы крана L, м определяется по формуле

L = a + b,

L = 7,5 + 24,8 = 32,3 м,

где a - расстояние от оси вращения крана до ближайшей стены здания, обеспечивающей габарит для нижней части крана при его вращении, м; b -ширина здания, м.

При возведении здания в щитовой опалубке значение d принимается равным ширине здания (при расположении кранов с одной стороны здания).

·        максимальная высота подъема крюка башенного крана определяется по формуле

Nкр = hо + hзап + hэл + hстр,

Nкр = 45+ 0.5 + 2.8 + 5,5 = 53.8 м

где Nкр - расстояние от уровня стоянки крана (верх головки рельса кранового пути) до геометрического центра звена крюка, м; hо - уровень верхнего монтажного горизонта, м; hзап - запас высоты при подъеме груза над самым высоким препятствием, принимается равным 0,5м; hэл - наибольшая из высот поднимаемых грузов (бадьи с бетонной смесью, опалубочной панели или блока, арматурного каркаса, сборного монтажного элемента), м; hстр - расчетная высота стропа.

При определении максимальной высоты подъема крюка крана для зданий, возводимых в разборно-переставной опалубке, извлекаемой вверх, за уровень верхнего монтажного горизонта принимаем отметку верха монолитной конструкции стены последнего этажа здания.

·        требуемая грузоподъемность крана (т) равна сумме массы поднимаемого груза и массы грузозахватного устройства:

Pкр=qгр+q,

Pкр= 8,01 + 0,25 = 8.26 Т

где qгр - масса наиболее тяжелого поднимаемого груза, т; q - масса такелажного оборудования т.

Технико-экономические параметры башенного крана

Марка крана

Вылет стрелы min/max, м

Грузоподъемность при вылете стрелы min/max, т

Высота подъема крюка на вылете min/max, м

Ширина кранового пути, м

Тип стрелы

Башенный передвижной кран

КБ 674 КБМ 401

4/35 8/36

25/10 40/15

46/46 75/43

7,5 9,5

Балочная Подъёмная

. Выбор наиболее экономичного варианта крана

Выбор наиболее экономически выгодного варианта производят на основании подсчета стоимости аренды кранов, подобранных в предыдущих расчетах:

Ац маш.-ч * Тч + ΣЕ,

Где Ац - стоимость аренды крана, р; С маш.-ч - стоимость машино-часа эксплуатации крана, р; Тч - время работы крана на объекте, ч; ΣЕ - сумма единовременных затрат, р.

Тч = ΣQ/Пр,

ΣQ - Общая масса элементов, подлежащих монтажу, т;

Пр - средняя производительность крана, т/ч;

ΣЕ = Е12*Х+Е3п,

Е1 - стоимость перебазировки крана, р;

Е2 - стоимость замены основной стрелы крана, установки дополнительного гуська или балочной стрелы, р;

Х - количество замен и установок;

Е3 - стоимость устройства 1 пог. м подкранового пути, р;

Дп - протяженность подкранового пути;

КБ - 674 : Ац =7,2*1000/6,4 + 3290+25,34*39=6586,52 р;

КБМ - 401 : Ац =7,2*1000/3,35 + 5005+25,34*39=7098,25 р;

Из сравниваемых более экономически выгодным является вариант с применением крана КБ - 674

6. Разработка технологической карты

На основе результатов выполненного ранее выбора метода возведения надземной части здания, строительных кранов и грузозахватных приспособлений, машин и механизмов для выполнения монтажных работ осуществляют разработку технологической карты.

Разработка технологической карты должна вестись с учетом:

·        степени первоначального выполнения подготовительных работ

·        достижения непрерывности и поточности строительных работ с равномерным использованием ресурсов и производительных мощностей

·        максимальной механизации работ с использованием машин в две и более смен

·        применения типовых приспособлений и инвентаря

·        соблюдения правил техники безопасности.

Технологическая карта состоит из 8 разделов.

Область применения:

Предусматриваются следующие виды работ:

)        монтаж наружных стен

)        монтаж внутренних стен

)        монтаж плит перекрытия

)        монтаж лифтовых шахт

)        монтаж лестничных площадок и маршей

)        сварка стыков элементов

)        замоноличивание стыков и швов конструкций

. Организация и технология выполнения работ

До начала монтажа наружных стеновых панелей должны быть выполнены организационно-подготовительные мероприятия в соответствии со СНиП 3.01.01-85 "Организация строительного производства".

Кроме того, должны быть выполнены следующие работы:

)        закончены все монтажные и сопутствующие работы на предыдущем этаже и оформлен акт приемки выполненных работ;

)        замоноличены швы в панелях перекрытия;

)        определен монтажный горизонт;

)        вынесены разбивочные оси и установочные риски;

)        смонтирован блок шахты лифта;

)        доставлены на площадку и подготовлены к работе механизмы, инвентарь и приспособления;

)        рабочие и ИТР ознакомлены с технологией работ и обучены безопасным методам труда.

Транспортирование наружных стеновых панелей осуществляют полуприцепами-панелевозами в вертикальном или слегка наклонном положении (под углом не более 12° к вертикали).

Для перевозки стеновых панелей принимаем полуприцеп-панелевоз УПП 1207 с тягачом МАЗ 504 А (длина 12 м, грузоподъемность 12 т).


Под тросы, крепящие панели, следует подкладывать мягкие прокладки во избежание повреждений кромок и поверхностей.

Стеновые панели монтирует звено из двух монтажников и такелажника, который подготовляет и стропит панели. Рекомендуется применять четырехветвевые универсальные (балансирные) стропы. Панель со смещенным центром тяжести поднимают так, чтобы чалочная ветвь была направлена уравнительным канатом в сторону смещения центра тяжести панели. Подвеска при подъеме поворачивается на крюке крана, устанавливая обойму с блоками по грузовой оси, а усилие от смещенного центра тяжести панели передается через уравнительный канат на противоположную сторону блока обоймы с одной чалочной ветви стропа на другую, предотвращая их перемещение. Это обеспечивает подъем панели в ее установочном (монтажном) положении.

Стеновые панели (см. схему ниже, поз. б) с четырьмя подъемными петлями, расположенными в вертикальной плоскости, стропят попарно, т. е. крюками каждого чалочного двухветвевого стропа зацепляют за две находящиеся рядом петли, причем ветвь 3 с уравнительным канатом 4 за подъемную петлю, расположенную ближе к центру панели. При подъеме сила тяжести стеновой панели распределяется равномерно на каждую чалочную ветвь за счет перемещения стропов по блокам обоймы.

Подаваемую краном панель останавливают над местом установки на расстоянии 30 см от перекрытия, после этого монтажникам разрешается направлять панель, слегка отталкивая ее от себя. Звеньевой контролирует правильность опускания панели на место: боковой грани - по риске, фиксирующей положение вертикального шва, наружной грани - по линии обреза стены (у панелей наружных стен) и по рискам, определяющим плоскость стены. Второй монтажник придерживает панель за другую боковую грань и контролирует правильность посадки по монтажному зазору с ранее установленной. панелью и по ближайшей риске плоскости стены.


Подъем уравновешивающим (балансирным) стропом панелей. а - стеновой со смещенным центром тяжести, б - то же, двухмодульной, в - перекрытия; 1 - подвеска, 2 - блоки, 3 - ветви с уравнительными канатами, 4 - уравнительный канат.

Опущенная панель должна стоять вертикально или с небольшим наклоном в ту сторону, в которой расположены марки.

Оставляя ветви стропов натянутыми, выверяют положение панели. Сначала доводят до проектного положения низ панели. Для этого шаблоном проверяют расстояние от основания панели до риски и при необходимости перемещают панель монтажным ломом. Выверенную в плане панель временно прикрепляют подкосами к плитам перекрытия. Тип подкоса зависит от вида и расположения строповочного устройства и конструкции панели. Если в верхней грани панели есть выступающие монтажные петли, то целесообразно закреплять и выверять панель с помощью бесструбцинного цельносварного подкоса с захватными головками по концам. Если в панели вместо монтажных петель установлены болты (штыри) или монтажные петли, утопленные в углублении верхней грани панели, то для ее временного крепления используют струбцинные подкосы.

Если в конструкции панели для ее закрепления предусмотрено устройство закладных деталей (петель, коробок и т. п.), которые, как правило, располагаются на высоте 170... 180 см от уровня перекрытия, то панель крепят и выверяют укороченным бесструбцинным подкосом. В этом случае монтажники находятся непосредственно на перекрытии и работают без стремянок и монтажных столиков (см. схему ниже, поз. а... в).

Установка наружной стеновой панели а - выверка в плане, б - временное крепление, в - выверка по вертикали, г - подштопка раствора и расстроповка; 1 - установочные риски, 2 - лом, 3 - шаблон для выверки панели по рискам, 4 - подкос, 5 - рейка-отвес, 6 - тяга дистанционной отцепки крюка, 7 - кельма.

Наиболее эффективный и удобный в работе - бесструбцинный укороченный подкос (см. схему ниже, поз.а, б). Применение его позволяет вдвое снизить затраты труда на установку панели наружной стены по сравнению с затратами при работе со струбцинным подкосом. Подкос крепят к перекрытию за монтажные петли самих плит или за устройства, предварительно установленные в технологические отверстия плит перекрытий. Панели крепят укороченными подкосами в такой последовательности:

Монтажники, каждый самостоятельно, заводят крюк нижней части подкоса 2 за монтажную петлю панели перекрытия и закрепляют его натяжной гайкой. Наклоняют подкос к устанавливаемой панели, раздвигают его части так, чтобы крюк верхней части подкоса касался монтажной петли устанавливаемой панели, скрепляют части подкоса штырем, после чего заводят крюк верхней части подкоса за монтажную петлю устанавливаемой панели. Надвигают предохранительную втулку 3 и закрепляют натяжной гайкой 4. Подав сигнал машинисту крана, ослабляют ветви стропа и проверяют точность установки панели.

Для выверки вертикальности панелей навешивают рейку-отвес, а граней, примыкающих к ранее установленным панелям, - измеряют монтажный зазор. Панели доводят в плоскость стены в такой последовательности: навешивают рейку-отвес, прижимая упоры к внутренней лицевой грани панели в двух точках около боковых граней, и определяют отклонения панели от вертикали. Если отклонения окажутся различными, это указывает на искривление панели в вертикальной плоскости. В плоскость стены панель доводят, вращая натяжные гайки подкоса и подтягивая панель на себя или, наоборот, отклоняя ее от себя. Это выполняют, постепенно подводя панель к вертикали, чтобы обеспечить равномерное уплотнение раствора в горизонтальном шве. Если панель перевести через вертикаль, а затем вернуть обратно, то между панелью и раствором постели образуется щель. Изнутри зазор можно зачеканить раствором, уплотняя его подштопкой, тогда как щель с внешней стороны недопустима.

Бесструбцинные подкосы для временного закрепления панелей а - подкос с крюками, б - подкос с универсальными захватами, используемыми для крепления подкоса; 1 - петля панели, 2 -крюк, 3 - предохранительная втулка, 4 - натяжная гайка, 5 - штанга, 6 - винт, 7 - наружная стеновая панель. 8 - панель перекрытия, 9 - универсальный захват, 10 - панель внутренней стены.

Убедившись в точности установки панели, первый монтажник с помощью тяги дистанционной отцепки поочередно выводит крюки стропа из монтажных петель панели, а второй монтажник уплотняет подштопкой и подрезает кельмой раствор в горизонтальном шве панели.

Рассмотрим, как стропят элементы грузозахватными устройствами с дистанционной отцепкой крюков. Для того чтобы вывести крюк 2 (см. схему ниже) из монтажной петли, машинист крана ослабляет стропы 5, а монтажник крюком тяги 1 поворачивает крюк 2 и выводит его зев из монтажной петли. Коромысло 3 запорного устройства при этом поворачивается и освобождает зев крюка. При грузозахватных устройствах с обычными крюками монтажники снимают стропы, находясь на монтажных столиках.

Крюк стропа с дистанционной отцепкой а - начало операции, б - окончание; 1 - тяга, 2 - крюк, 3 - коромысло, 4 - палец, 5 - строп.

Аналогично наружным панелям, под каждую внутренюю панель укладывают 2 марки-прокладки, наносят слой раствора на 3...5 мм выше уровня марок. Панель опускают, при натянутых стропах с помощью шаблона проверяют правильность установки ее основания, отклонения устраняют ломиком. Устанавливают и закрепляют подкосы со струбцинами. Вместо одного подкоса может быть треугольная опора в торце панели или в дверном проеме. Вертикальность панели выверяют с помощью рейки-отвеса и стяжной муфты подкоса. С панели снимают стропы, зачеканивают и уплотняют раствор под панелью со всех сторон. Часто устанавливают угловую связь между примыкающими стеновыми панелями - наружной и внутренней в виде тяги со струбциной (струбцина закрепляется на внутренней панели, а на наружной - крюк за монтажную петлю <#"804305.files/image008.gif">

Многопустотные плиты перекрытий и плиты покрытий укладывают в штабеля высотой не более 2,5 м плашмя до 8…10 рядов в зависимости от прочности основания склада; прокладки и подкладки располагают перпендикулярно пустотам на расстоянии 25…40 см от краев плиты. При укладке изделий в штабеля необходимо следить за правильным размещением прокладок и самих изделий

Разгрузка и складирование многопустотных плит перекрытий.

Укладка первого ряда штабеля. 1- рабочий, выполняющий такелажные работы, старший в звене; 2 -укладываемая плита; 3 -четырехветвевой строп; 4 -рабочий, выполняющий такелажные работы; 5- деревянные подкладки

Складирование плит перекрытий в нижний ряд:

.Рабочий, выполняющий такелажные работы, старший в звене и рабочий, выполняющий такелажные работы поднимаются на помост и рулеткой измеряют длину первой плиты. Результат замера рабочий, выполняющий такелажные работы, старший в звене заносят в тетрадь.

. Рабочий, выполняющий такелажные работы, старший в звене спускается с помоста, а рабочий, выполняющий такелажные работы стропует и подает плиту в зону монтажа.

. Рабочий, выполняющий такелажные работы, старший в звене спускается с помоста и укладывает две подкладки 5сечением 100Х100 мм и длиной 2000 мм на основание. Чтобы определить расстояние между подкладками из длины плиты вычитают 600 мм.

. Рабочий, выполняющий такелажные работы, старший в звене и рабочий, выполняющий такелажные работы принимают плиту 2на высоте 300 мм от основания и ориентируют ее на подкладки. При этом обеспечивают расстояние от торца плиты до внешней стороны подкладки 300 мм. Фиксируют это расстояние рейками длиной 300 мм, прикладываемыми к плите со стороны торцов.

. Рабочий, выполняющий такелажные работы, старший в звене и рабочий, выполняющий такелажные работы укладывают плиту на подкладки, расстроповывают ее.

Укладка плит перекрытий в верхний ряд штабеля 1- рабочий, выполняющий такелажные работы, старший в звене; 2- укладываемая плита; 3- четырехветвевой строп; 4- рабочий, выполняющий такелажные работы; 5- деревянные подкладки; 6 -деревянные прокладки

. Рабочий, выполняющий такелажные работы поднимается на помост и стропует плиту

. Рабочий, выполняющий такелажные работы, старший в звене готовит место укладки плиты

. Рабочий, выполняющий такелажные работы, старший в звене и рабочий, выполняющий такелажные работы принимают и укладывают плиту на подготовленное место

Схема складирования плит перекрытия

Операции при монтаже плит перекрытий выполняют в такой технологической последовательности:

·        подготовительный этап - проверка пригодности плиты и монтажных петель по внешнему виду, проверка размеров панели и расположения закладных деталей в соответствии с рабочими чертежами, очистка закладных деталей и нанесение разметочных рисок, разбивка установочных рисок и установка маяков на монтажном горизонте, подготовка и раскладка на монтажном горизонте приспособлений и инструмента;

·        основной этап - строповка плиты перекрытия, устройство растворной постели, прием, ориентирование и установка плиты в проектное положение, расстроповка плиты перекрытия, сварка стыков, замоноличивание швов плит.

Панели перекрытий укладывают после установки и постоянного закрепления всех стеновых элементов на захватке и загрузки на монтируемый этаж необходимых деталей и конструкций для достроечных работ. К месту укладки панели подают в горизонтальном положении. Если панели перекрытий на строительную площадку привозят в вертикальном или наклонном положении, то для их перевода в горизонтальное положение применяют грузозахватные приспособления с автоматическим кантователем или стационарные рамные кантователи.

В месте укладки панели перекрытия очищают опорную поверхность стен и перегородок, укладывают раствор по всему контуру опорных поверхностей и расстилают его ровным слоем. Находясь на соседней, ранее уложенной панели, монтажники принимают подаваемую краном панель, ориентируя ее над местом укладки. Панель плавно укладывается на постель из раствора.

Строповка панели перекрытия: 1 - универсальная траверса; 2 - чалочная ветвь с уравнительным канатом; 3 - инвентарные петли-захваты; 4 - петля; 5 - коромысло-захват

При натянутых стропах панель рихтуют, проверяют уровнем горизонтальность поверхности и положение панели по высоте. Для обеспечения проектного размера опорной площади панелей рекомендуется перед укладкой каждой панели перекрытия подгибать монтажные петли наружных и внутренних стеновых панелей. Это позволит каждую панель перекрытия по всему контуру укладывать на проектную ширину опоры.  Панели перекрытий, имеющие с одной стороны вместо подъемных петель конусообразные технологические отверстия, стропят за предварительно установленные в эти отверстия инвентарные петли-захваты. Инвентарная петля-захват предназначена для временного закрепления монтажных приспособлений в местах, где отсутствуют подъемные петли (на некоторых панелях внутренних стен и плитах перекрытий). Она представляет собой струбцину, к которой приварена специальная петля. Установку инвентарного захвата на панели производят при помощи зажимного винта.

После окончательной выверки и при отсутствии отклонений уложенной панели осуществляют ее расстроповку. Инвентарные петли-захваты вынимают из конусообразных отверстий после отцепки крюков.

Монтаж лестничных маршей и площадок

Монтаж лестничных маршей и площадок разрешается производить только после приемки опорных элементов, включающей геодезическую проверку соответствия их планового и высотного положения с составлением геодезической исполнительной схемы. С целью обеспечения устойчивости лестничной клетки и связи ее с диском перекрытия монтаж лестничных маршей разрешается производить только после полного заполнения смежных пролетов плитами перекрытия. Перед подъемом каждого лестничного марша необходимо проверить соответствие его проектной марке, очистить опорные поверхности ригелей, диафрагм жесткости и лестничных маршей от мусора, грязи, снега и наледи. Лестничные марши подают к месту установки в проектном положении и укладывают на слой цементного раствора толщиной до 30 мм. Марка раствора должна быть указана в проекте. Подвижность раствора должна составлять 5 - 7 мм.

Складирование лестничных маршей

Складирование лестничных площадок

Схема строповки лестничного марша. 1 - траверса четырехветвевая универсальная; 2 - захват вилочный; 3 - лестничный марш

Захват для монтажа лестничных площадок

Захват вилочный для лестничных маршей

Перед подъемом каждой санитарно-технической кабины необходимо проверить соответствие ее проектной марке, отсутствие на опорных поверхностях кабины и перекрытия мусора, грязи, снега, наледи, наличие на опорных поверхностях перекрытия ориентирных рисок, вынесенных от разбивочных осей и определяющих проектное положение двух взаимно перпендикулярных стен кабины (передней и одной из боковых),

Санитарно-технические кабины надлежит устанавливать на прокладки. Выверку низа кабин следует производить по ориентирным рискам, вынесенным на перекрытие от разбивочных осей. Относительно вертикальной плоскости кабины следует устанавливать, выверяя грани двух взаимно перпендикулярных стен кабины.

Схема складирования сантехкабин

Съема строповки сантехкабин

Схема контроля монтажа сантехкабин

Схемы строповки блока шахты лифта. 1 - траверса для монтажа шахты лифта; 2 - траверса универсальная четырехветвевая; 3 - монтируемый блок шахты лифта; 4 - монтажный настил.

Схема устройств монтажных настилов в лифтовых шахтах 1 - инвентарный деревянный щит; 2 - балочка деревянная; 3 - металлические опорные столики; 4 - металлический хомут; 5 - деревянный клин.

Схема установки ограждения дверного проема. 1 - стойка; 2 - кронштейн; 3 - связь; 4 - бортовое ограждение; 5 - табличка.

Геодезический контроль при монтаже шахты лифта

Ответственность за правильность укладки сборных элементов на транспортные средства при отпуске с завода несет предприятие-изготовитель, за сохранность в пути следования - транспортная организация, за правильность выгрузки и складирования - строительная организация.

Хранение конструкций на приобъектном складе осуществляется с соблюдением следующих требований:

площадка должна быть тщательно выровнена с удобными подъездными путями

раскладывать и размещать сборные элементы штабелями необходимо в зоне действия крана с учетом последовательности монтажа

хранить сборные элементы следует в условиях исключающих возможность их деформаций и загрязнения

проходы между штабелями следует устраивать в продольном направлении через каждые два смежных штабеля, в поперечном не реже чем через 25 м.; ширина прохода не менее 0,6 м., а зазоры между смежными штабелями не менее 0,2 м.

элементы конструкций следует размещать так, чтобы их заводская маркировка была видна со стороны прохода, а монтажные петли изделий должны располагаться сверху.

Транспортирование лестничных маршей и площадок осуществляют бортовыми автомобилями в соответствии с транспортно-монтажными картами с выгрузкой на приобъектный склад. Транспортировать и хранить марши и площадки следует в штабелях в горизонтальном положении на подкладках и прокладках, при этом лестничные марши следует располагать ступенями вверх. Подкладки и прокладки между рядами маршей и площадок должны быть толщиной не менее 30 мм и установлены в местах расположения строповочных отверстий или монтажных петель. Высота штабеля при хранении маршей и площадок не должна превышать 2,5 м

Размеры и количество захваток, схемы сооружения конструктивных элементов и частей здания, схемы расстановки машин и оборудования, строповки и временного крепления элементов, схемы складирования материалов (см. граф. часть)

. Требования к качеству и приемке работ

Производство и приемку работ по монтажу наружных и внутренних стеновых панелей и плит перекрытия следует выполнять согласно требованиям СНиП 3.03.01-87. Контроль качества монтажа включает:

)        входной контроль качества конструкций и используемых материалов;

)        операционный контроль качества, выполняемых работ;

)        приемочный контроль выполненных работ.

Входной контроль конструкций на строительной площадке производят инженерно-технические работники монтирующей организации.

Таблица 6. Требования к качеству и приемке работ:

№ п/п

Наименование операций подлежащих контролю

Состав

Способ

Время

Привлекаем. службы

1

2

3

4

5

6

1

Качество наружных и внутр. стен. пан.


Визуально

Сплошной до установки панелей

Мастер, производитель

2

Подготовительные работы

Правильность складирования, наличие паспортов соответствия размеров

Визуально, стальной метр

До начала работ по монтажу


3

Точность геометрических размеров


До установки панелей, наружных-5шт, внутренних-5шт, измерит. рулетка.

Сплошной по мере получения

Мастер

4

Подготовка и устройство основания


Выборочно до и после 3 мес. устр. основан.

Во время монтажа

Мастер, производитель

Точность монтажа


Визуально до монтажа верхнего этажа 3 наруж. стен. пан. 3-внутрен. 5-панелей прекрыт. Шаблон, рейка нивелир, отвес.

Во время монтажа

Мастер, производитель

6

Правильность установки плит перекрытия

Разность в отм. по поверхности плит перекрытия пола в пределах выверяемого участка

Нивелир

После установки элемента монтируемого участка

геодезист

7

Сварка закладных деталей

Разница в отметках лицевых поверхн. двух смежных плит перекрытия. Шов между боковыми гранями, наличие раковин, непроваров

Нивелир   Метр  Визуально

После установ. эл-та  После завершения сварки

Лабораторный контроль кач-ва

. Калькуляция затрат труда машинного времени и заработной платы

В разделе составляется таблица 6 на основе ведомости объемов работ и ведомости нормативных затрат труда на те процессы, которые входят в состав технологической карты.

График производства работ.

Составляется с использованием данных калькуляции затрат труда (см. граф. часть)

Материально технические ресурсы.

В разделе приводятся данные потребности в инструменте, инвентаре и приспособлениях, а также в материалах, полуфабрикатах и изделиях для выполнения работ.

Потребность в инструменте, инвентаре и приспособлениях:

1

2

3

4

Ножницы для резки проволоки Зубило Напильник плоский Лом строительный Кувалда Кувалда кузнечная остроносая Шнур разметочный в корпусе Отвес Струбцина Предохранительный пояс Деревянные подкладки Кассета Инвентарная лестница Передвижная площадка Ограждение Трубчатое и тросовое ограждение Мачта поэтажная Светильник Лом монтажный Трансформатор сварочный Набор инструментов электросварщика

А-400 1 ЛО-24 О-400  ГОСТ 8486-86*Е 839.01 ЦНИИОМТП 3294.11.000ЦНИИОП  3294.21ЦНИИОМТП  3294.44 ЦНИИОМТП  185-3.00 ЦНИИОМТП  3294.55 ЦНИИОМТП 3294.51 ЦНИИОМТП 3295.05 ЦНИИОМТП  СТЭ-24, СТЭ-32

1  2  1   2  1  2  1  2  8  2

диаметр до 8 мм  20×60       Масса 1 кг  Масса 3кг      


Ведомость потребности в материалах и полуфабрикатах и конструкциях

Наименование материала полуфабриката

Марка

Ед. измерения

Кол-во

Раствор цементный

М100

м3

115,06

Электроды

Э-42

кг

1428

Пакля смоляная

-

кг

2850

Установка плит перекрытия

 

Раствор цементный

М100

м3

44,5

Электроды

Э-42

кг

19

Установка лестничных маршей и площадок

 

Раствор цементный

М100

м3

2,05

Электроды

Э-42

кг

38

. Техника безопасности

Монтаж строительных конструкций относится к работам с повышенной опасностью.

Рабочие, выполняющие монтажные работы, должны пройти медицинский осмотр, специальную подготовку, сдать экзамен и получить удостоверение на право производства работ. Верхолазные работы (на высоте более 5 м от поверхности грунта или рабочего настила) могут выполнять лица не моложе 18 лет, имеющие не ниже третьего тарифного разряда, со стажем работы не менее одного года.

Грузоподъемные машины и такелажные приспособления до начала работы и в процессе эксплуатации должны проходить техническое освидетельствование в соответствии с требованиями Госгортехнадзора. Осмотр грузоподъемных машин и механизмов производят ежемесячно. Траверсы осматривают не реже одного раза в 6 мес, клещи - через 1 мес, стропы - каждые 10 дней. Наружный осмотр стальных канатов следует производить ежедневно, руководствуясь нормами выбраковки изношенных канатов. Такелажные приспособления при освидетельствовании испытывают нагрузкой, на 25% превышающей расчетную грузоподъемность. Дату испытаний и грузоподъемность указывают на бирках, прикрепляемых к захватным приспособлениям.

Краны следует устанавливать в соответствии с проектом производства работ, при этом необходимо обеспечить безопасные расстояния кранов от линий электропередач, откосов котлованов, габаритов зданий и сооружений.

Леса и подмости должны иметь ограждения на уровне рабочего места не менее 1 м. На монтажных работах используют типовые инвентарные леса и подмости. Леса и подъемные люльки должны иметь паспорта предприятия-изготовителя.

Монтаж конструкций производят в соответствии с проектом производства работ. В нем должны быть предусмотрены основные мероприятия по технике безопасности. Строповку конструкций производят стропами или специальными грузозахватными приспособлениями по схемам, предусмотренным технологической картой, с использованием полуавтоматических устройств для расстроповки с земли. При свободном монтаже поднятые элементы надо удерживать от раскачивания оттяжками. Конструкции, не обладающие достаточной жесткостью, необходимо усиливать согласно проекту. Расстроповку монтируемых элементов производят только после надежного закрепления. До окончательного закрепления должна быть обеспечена их устойчивость с помощью временных связей, расчалок, кондукторов и т. п.

В соответствии с требованиями СНиП III-А.11-70 запрещено совмещать монтажные работы на одной захватке по вертикали с другими работами в нижних этажах при высоте здания менее пяти этажей. Совмещать эти работы можно только в исключительных случаях.

Монтажники должны находиться вне контура устанавливаемых конструкций со стороны противоположной их подаче. Сборочные операции на высоте осуществляют со специальных подмостей или люлек. Монтажники-верхолазы должны иметь специальную одежду, нескользящую обувь и предохранительные пояса. Для перехода от одной конструкции к другой должны быть предусмотрены лестницы, переходные мостики и трапы.

Площадка, где производят монтаж, является опасной зоной, и находиться на ней запрещено. Границу опасной зоны определяют окружностью, очерченной радиусом, равным вылету крюка стрелы крана, плюс 7 - 10 от контура поднимаемого груза (на расстояние 7 м может отлететь груз при подъеме его на высоту до 20 м и на 10 м при подъеме на высоту до 100 м).

Руководить подъемом конструкций должен только один человек - бригадир монтажной бригады или звеньевой. Команду «Стоп» может подать каждый рабочий, заметивший опасность.

Монтажные работы проводить запрещено при ветре силой 6 баллов (10 - 12 м/с) и более на высоте, в открытых местах, при гололедице, сильном снегопаде и дожде. При использовании башенных кранов последние должны быть тщательно закреплены.

. Технико-экономические показатели

1. Общая площадь и объем здания.

. Нормативные затраты труда рабочих (чел-ч) по итогу калькуляции.

. Нормативные затраты машинного времени (Маш-ч) по итогу калькуляции.

. Трудовые затраты на единицу площади (чел. - дни/м.кв.) и объема (чел. - дн/м. куб.).

. Выработка на одного рабочего в смену в натуральных единицах по основному виду работ (м. куб/ чел. - дн., м.кв./ чел. - дн).

. Продолжительность работ по графику.



12. Разработка элементов строительного генплана

Работы по составлению строй. генплана выполняются на графическом листе и включают проработку следующих обязательных для курсового проекта элементов:

проектирование мест установки строительных и грузоподъемных машин на объекте с указанием траекторий перемещения, путей и зон действий (рабочие и опасные зоны);

проектирование площадей и мест расположения открытых складов строительных конструкций, материалов и приспособлений;

проектирование площадей и мест размещения площадок укрупнительной сборки, приемки бетонной смеси;

проектирование схем устройства на объекте временных и постоянных дорог, разъездов для автотранспорта с указанием их ширины и радиуса закругления.

Фрагмент стройгенплана выполняется на листе графической части в масштабе 1:200 или 1:500.

На фрагменте стройгенплана условно не показывают сети электроснабжения, санитарно-технические сети, временные сооружения и другие составляющие стройгенпланов, являющиеся предметом изучения курса организации строительства.

Условные обозначения стройгенплана выполняются в соответствии с требованиями СНиП.

Для башенных кранов граница опасной зоны работы крана определяется по формуле

=  + 0,5  +

= 36+2.91+7=45.91м

где  - дополнительное расстояние для безопасной работы - возможное рассеивание груза в случае падения из-за

раскачивания его на крюке под динамическим воздействием движения крана и силы давления ветра. Зависит от высоты возможного падения груза и принимается по табл.



Приложения

жилой архитектурный здание надземный

Приложение 1

Стыки однослойных и трехслойных панелей наружных стен следует осуществлять с обязательной установкой теплоизоляционных вкладышей из эффективных материалов и заливкой полости стыков бетоном или раствором с противоморозными добавками.

Соединение панелей осуществляется путем сварки закладных деталей, расположенных вне зоны замоноличиваемой полости стыка, а также установки соединительных скоб в петлевые выпуски панелей (рис. 3) или в штампованные закладные детали (рис. 4) с последующим их бетонированием. Все металлические соединения защищаются слоем цементного раствора.

Стык наружных панели и внутренней. 1.Соединительные скобы из арматуры 2.Ц/п раствор 3.Обработка антикоразионным покрытием. 4. Герметизация швов

Соединение наружних стеновых панелей.

Опирание плит покрытия на наружные стеновые панели.


Приложение 2

Ведомости затрат труда, машинного времени и стоимости трудозатрат.

№ п/п

Наименование процесса

Ед. изм.

Объем работ

Норма времени

Трудоемкость

Состав звена

Кол.звеньев





рабочих чел-ч.

машин. маш-ч

Чел.ч

Маш.ч

рабочих чел-ч. машин. маш-ч.

рабочих машин.

1

2

3

4

6

7

8

9

10

11

1

Установка панелей наруж. и внут. стен 6 15 20

шт.

68

  1 1,1 1,2

  0,25 0,28 0,3

77.1

18.8

Монтажник констр.5,4,3, 2р-1 Машинист6р - 1

1

2

Электросварка монтаж. Стыков нвруж. и внут. стен

10м

16,55

3,2

-

53

-

Электросварщик 5р-1

2

3

Антикорозийное покрытие свар.соед нар. и внут. стен

10 соед

32

1,1

-

35,2

-

Монт.констр4,2р-1

1

4

Изоляция и гермет. стыков нар. стен. панелей

10 м. шва

25,46

0,78

-

19,9

-

Монтаж. конст4,3р-1

1

5

Заливка нар. и внут.стен. панелей

100м

4,55

12

-

68,8

-

Монтаж. конст4,3р-1

2

6

Монтаж плит перкр. 5 10 15 20

шт

78

 0,56 0,72 0,88 1,1

 0,14 0,18 0,22 0,28

37.5

9,92

Монтажник констр.4,3, 2р-1 Машинист6р - 1

1

7

Электросварка плит перекрыт

10 м. шва

9,36

3,2

-

8,64

-

Электросварщик 5р-1

1

8

Антикорозийное покрытие свар.соед.плит перекр.

10 соед.

10,92

1,1

-

19,8

-

Монт.констр4,2р-1

1

9

Заливка швов плит перекрыт

100м

2

4

-

13

-

Монт.констр4,3р-1

1

10

Установка лестниц и площ.

Шт.

0,1

1,7

0,42

3,4

0,84

Монтажник констр.4,3, 2р-1 Машинист6р - 1

1

11

Электросварка лестн.маршей и площ.

10м

288

3,2

-

0,26

-

Электросварщик 5р-1

1

12

Антикороз.покр.свар.соед. леснич.маршей и площадок

10 соед

17,28

1,1

-

0,88

-

Монт.констр4,2р-1

1

13

Заливка швов лестн.маршей и площ.

100 м.

21,6

4

-

0,47

-

Монт.констр4,3р-1

1



Список литературы

1.      Бетонные и железобетонные работы. Справочник строителя / Под редакцией В.Д. Топчия. - М.: Стройиздат, преиздат 2011. - 317 с.

2.      Стаценко А.С монтаж стальных ж/б конструкций 2008.-67 с.

.        ЕНиР. Сборник Е4. Монтаж сборных и устройство железобетонных конструкций. Выпуск 1. - М.: Стройиздат, 2006. - 64 с.

.        ЕНиР. Сборник Е22. Сварочные работы. Выпуск 1. - М.: Прей-скурантиздат, 2008. - 56 с.

.        Ищенко И.И. Монтаж стальных и железобетонных конструкций. М., 1990. - 287 с.

.        Каграманов Р.А., Мачабели Ш.П. Монтаж конструкций многоэтажных гражданских и промышленных зданий. - М.: Стройиздат, 2007. - 414 с. (Справочник строителя).

.        Снежко А.П., Батура Г.М. Технология строительного производства. Курсовое и дипломное проектирование: Учебное пособие. - Киев: Выща шк., 2008. - 20 с.

.        СНиП 3-4-80. Строительные нормы и правила. Техника безопасности в строительстве/ Госстрой СССР. - М.: Стройиздат, 2009. - 255 с.

.        Справочник монтажника крупнопанельных зданий/ Л. И. Юдин, И.И. Селиванов, СБ. Шапиро и др. - Киев: Будивельник, 2010. - 174 с.

.        Строительные краны: Справочник/ Под редакцией В. П. Станевского. - Киев: Будивельник, 2012. - 240 с.

Похожие работы на - Монтаж полносборного здания

 

Не нашли материал для своей работы?
Поможем написать уникальную работу
Без плагиата!
Без нейросетей!