Монтаж промышленного здания
СОДЕРЖАНИЕ
Характеристика здания
Обоснование методов монтажа полносборного здания
Определение трудоемкости работ
Грузозахватные устройства и приспособления для монтажа и
временного крепления конструкции
Технологическая карта на монтаж здания
.1 Область применения
.2 Организация и технология строительного процесса
.2.1 Транспортирование и складирование сборных конструкций
.2.2 Техника безопасности
.2.3 Операционный контроль качества работ
.3 График производства работ
.4 Ведомость машин, механизмов, инвентаря и приспособлений
.5 Технико-экономические показатели
Список литературы
1 ХАРАКТЕРИСТИКА ЗДАНИЯ
Блок здание имеет пять этажей. Высота первого этажа - 4,8м, последующих -
6м. Каркас здания - сборный железобетонный, с жестким сопряжением в узлах;
перекрытие - сборные железобетонные панели; наружные стены - сборные
керамзитобетонные панели. Конструктивная схема - рамно-связевый каркас.
Жесткость здания в продольном направлении обеспечивается жестким защемлением
колонн в фундамент, диском плит покрытия. В поперечном направлении рамами из
колонн и ригелей.
2
ОБОСНОВАНИЕ МЕТОДОВ МОНТАЖА ПОЛНОСБОРНОГО ЗДАНИЯ
монтаж строительный
здание
При возведении данного многоэтажного промышленного здания применяется
комплексный метод монтажа, располагая башенный кран с одной стороны здания.
Комплексный монтаж предусматривает установку и окончательное закрепление всех
конструктивных элементов одной ячейки здания. Этот метод наиболее эффективен и
при нем сокращаются сроки строительства.
В первую очередь монтируются колонны и подкрановые балки, затем
монтируются, плиты покрытия и стеновые панели.
Монтаж осуществляют поярусно, по вертикали ярусы обычно соответствуют
этажности колонн. Высота первого яруса - один этаж (4,8 м.), высота второго и
третьего ярусов - два этажа (12 м.).
Блок здания разбивается на две захватки.
Первая захватка: 36х60 м. Монтаж колонн с применением групповых
кондукторов, монтаж ригелей, лестничных маршей и плит перекрытия. Вторая
захватка: 36х60 м. Монтаж колонн с применением групповых кондукторов, монтаж ригелей,
лестничных маршей и плит перекрытия.
Монтаж элементов ведется в соответствии с монтажно-маркировочными
схемами.
Таблица 1 - Спецификация монтажных элементов и потребных ресурсов
|
Наименование сборных
элементов конструкций
|
Марка элементов по заданию
|
Марка элемента по серии
|
Эскиз с указанием точек
опирания и строповки
|
Геометричес кие размеры, мм
|
Объем элемента, м3
|
Масса элемента, т
|
Количество потребных
элементов
|
|
Колонна крайняя
|
К1
|
К26а
|
|
H=5000 h1=4200 А=350
В=400
|
0,92
|
1,8
|
60шт.
|
|
Колонна средняя
|
К2
|
К25а
|
|
H=5000 h1=4200 А=350
В=400
|
0,86
|
2,1
|
44 шт.
|
|
Колонна крайняя
|
К3
|
К28а
|
|
H=13650 h1=5850 h2=6000 А=400 В=400
|
2,45
|
6,2
|
120шт.
|
|
Колонна средняя
|
К4
|
К27а
|
|
H=13650 h1=5850 h2=6000 А=400 В=400
|
2,31
|
5,8
|
88шт.
|
|
Ригель крайнего пролета
|
Р1
|
Б32
|
L=11480 Н=800
В=600
|
3,66
|
9,15
|
60 шт.
|
|
|
Ригель среднего пролета
|
Р2
|
Б32
|
L=11480 Н=800
В=600
|
3,66
|
9,15
|
270шт.
|
|
|
Панели перекрытия и
покрытия
|
П1
|
П1
|
L=5550 Н=220 В=1600
|
0,89
|
2,2
|
2304 шт.
|
|
|
Панели перекрытия и
покрытия
|
П2
|
П2
|
L=5050 Н=220 В=700
|
0,81
|
2
|
1056шт.
|
|
|
Панели перекрытия и
покрытия
|
П3
|
П3
|
L=5050 Н=220 В=1000
|
0,93
|
2,1
|
120шт.
|
|
|
Стеновые панели 1,2*6м.
|
ПС1
|
ПС600.12.30
|
|
L=6000 Н=300 В=1200
|
2,16
|
2,3
|
360шт.
|
|
Стеновые панели 1,8*6м.
|
ПС2
|
ПС600.18.30
|
|
L=6000 Н=300 В=1800
|
3,23
|
3,5
|
360шт.
|
|
Стеновые панели 1,2*12м.
|
ПС3
|
ПС1200.12.30
|
|
L=12000 Н=300 В=1200
|
4,31
|
4,6
|
54шт.
|
|
Стеновые панели 1,2*12м.
|
ПС4
|
ПС1200.18.30
|
|
L=12000 Н=300 В=1200
|
6,47
|
6,9
|
54шт.
|
|
Лестничная площадка
|
ЛП1
|
|
L=6000 Н=220 В=1500
|
1,5
|
6,1
|
40шт.
|
|
|
Лестничная площадка
|
ЛП2
|
|
L=6000 Н=220 В=1500
|
1,5
|
6,1
|
40шт.
|
|
|
Лестница
|
Л1
|
|
|
L=4900 Н=300 В=2000
|
0,85
|
9,3
|
120шт.
|
Таблица 2 - Ведомость потребности в материалах и полуфабрикатах
|
Наименование монт. элемента
|
Ед. изм
|
Объем работ
|
НПРМ сборник 07
|
Наименование материалов и
полуфабрикатов
|
Ед. изм
|
Норма на ед.изм
|
Потребное количество
|
|
Колонны
|
100шт.
|
60шт.
|
Е7-8,7
|
Бетон В22,5
|
м3
|
6,42
|
3,852
|
|
|
|
|
Пиломатериалы хвойных
пород. Доски обрезные длиной 2-3,75 м, шириной 75-150 мм, толщиной 44 мм и
более II сорта
|
м3
|
0,3
|
0,18
|
|
|
44шт
|
Е7-8,7
|
Бетон В22,5
|
м3
|
6,42
|
2,82
|
|
|
|
|
Пиломатериалы хвойных
пород. Доски обрезные длиной 2-3,75 м, шириной 75-150 мм, толщиной 44 мм и
более II сорта
|
м3
|
0,3
|
0,132
|
|
|
120шт
|
Е7-8,9
|
Бетон В22,5
|
м3
|
6,42
|
7,7
|
|
|
|
|
Пиломатериалы хвойных
пород. Доски обрезные длиной 2-3,75 м, шириной 75-150 мм, толщиной 44 мм и
более II сорта
|
м3
|
0,868
|
1,04
|
|
|
|
|
Электроды Э-42, АНО-6 диам.
6 мм,ГОСТ 9466-75
|
т
|
0,02
|
0,024
|
|
|
|
|
Изделия монтажные (по
проекту)
|
т
|
0,24
|
0,288
|
|
|
|
|
Сетка из проволоки
холоднотянутой
|
т
|
0,21
|
0,252
|
|
|
|
|
Сталь арматурная
горячекатаная гладкая кл. А-I диам. 16-18 мм, ГОСТ 5781-82
|
т
|
0,64
|
0,77
|
|
|
|
|
Бетон мелкозернистый класса
В15, ГОСТ 7473-85
|
м3
|
1,01
|
1,2
|
|
|
|
|
Раствор цементный , ГОСТ
28013-89
|
м3
|
0,34
|
0,5
|
|
|
|
|
Опалубка металлическая
инвентарная
|
т
|
0,013
|
0,016
|
|
|
|
|
Краски, ГОСТ 8292-85
|
т
|
0,01
|
0,12
|
|
|
88шт.
|
Е7-8,9
|
Бетон В22,5
|
м3
|
6,42
|
5,6
|
|
|
|
|
Пиломатериалы хвойных
пород. Доски обрезные длиной 2-3,75 м, шириной 75-150 мм, толщиной 44 мм и
более II сорта
|
м3
|
0,868
|
0,76
|
|
|
|
|
Электроды Э-42, АНО-6 диам.
6 мм, ГОСТ 9466-75
|
т
|
0,02
|
0,0176
|
|
|
|
|
Изделия монтажные (по
проекту)
|
т
|
0,24
|
0,211
|
|
|
|
|
Сетка из проволоки
холоднотянутой
|
т
|
0,21
|
0,18
|
|
|
|
|
Сталь арматурная
горячекатаная гладкая кл. А-I диам. 16-18 мм, ГОСТ 5781-82
|
т
|
0,64
|
0,56
|
|
|
|
|
Бетон мелкозернистый класса
В15, ГОСТ 7473-85
|
м3
|
1,01
|
0,888
|
|
|
|
|
Раствор цементный , ГОСТ
28013-89
|
м3
|
0,34
|
0,299
|
|
|
|
|
Опалубка металлическая инвентарная
|
т
|
0,013
|
0,0114
|
|
|
|
|
Краски, ГОСТ 8292-85
|
т
|
0,01
|
0,0088
|
|
Ригели
|
100шт
|
330шт
|
Е7-3,3
|
Электроды Э-42, АНО-6
диам.6 мм, ГОСТ 9466-75
|
т
|
0,080
|
0,264
|
|
|
|
|
Бетон мелкозернистый (класс
по проекту),ГОСТ 7473-85
|
м3
|
2,62
|
8,64
|
|
|
|
|
Пиломатериалы, ГОСТ
24454-80
|
м3
|
0,251
|
0,83
|
|
|
|
|
Гвозди строительные, ГОСТ
4028-63
|
кг
|
0,6
|
1,98
|
|
|
|
|
Краски, ГОСТ 8292-85
|
кг
|
0,5
|
1,65
|
|
ЛП1
|
100шт
|
40шт
|
Е7-21,10
|
Раствор цементный (марка по
проекту), ГОСТ 28013-89
|
м3
|
0,55
|
0,22
|
|
|
|
|
Изделия монтажные (по
проекту)
|
т
|
0,2
|
0,08
|
|
|
|
|
Бетон мелкозернистый (класс
по проекту) ГОСТ 7473-85
|
м3
|
0,47
|
0,188
|
|
|
|
|
Электроды диаметром 6 мм
Э42
|
т
|
0,05
|
0,02
|
|
|
|
|
Сетка арматурная
|
т
|
0,08
|
0,032
|
|
|
|
|
Пиломатериалы хвойных
пород. Доски обрезные длиной 4-6,5 м, шириной 75-150 мм, толщиной 32-40 мм IV
сорта
|
м3
|
0,162
|
0,065
|
|
|
|
|
Гвозди строительные
|
т
|
0,0002
|
0,00008
|
|
|
|
|
Рогожа
|
м2
|
2,25
|
0,9
|
|
|
|
|
Краска
|
т
|
0,008
|
0,0032
|
|
|
|
|
Смазка солидол жировой «Ж»
|
т
|
0,007
|
0,00028
|
|
ЛП2
|
100шт
|
40шт
|
Е7-21,10
|
Раствор цементный (марка по
проекту), ГОСТ 28013-89
|
м3
|
0,55
|
0,22
|
|
|
|
|
Изделия монтажные (по
проекту)
|
т
|
0,2
|
0,08
|
|
|
|
|
Бетон мелкозернистый (класс
по проекту) ГОСТ 7473-85
|
м3
|
0,47
|
0,188
|
|
|
|
|
Электроды диаметром 6 мм
Э42
|
0,05
|
0,02
|
|
|
|
|
Сетка арматурная
|
т
|
0,08
|
0,032
|
|
|
|
|
Пиломатериалы хвойных
пород. Доски обрезные длиной 4-6,5 м, шириной 75-150 мм, толщиной 32-40 мм IV
сорта
|
м3
|
0,162
|
0,065
|
|
|
|
|
Гвозди строительные
|
т
|
0,0002
|
0,00008
|
|
|
|
|
Рогожа
|
м2
|
2,25
|
0,9
|
|
|
|
|
Краска
|
т
|
0,008
|
0,0032
|
|
|
|
|
Смазка солидол жировой «Ж»
|
т
|
0,007
|
0,00028
|
|
Л1
|
100шт
|
120шт.
|
Е7-21,11
|
Раствор цементный (марка по
проекту), ГОСТ 28013-89
|
м3
|
0,60
|
0,72
|
|
|
|
|
Изделия монтажные (по
проекту)
|
т
|
0,2
|
0,24
|
|
|
|
|
Бетон мелкозернистый (класс
по проекту) ГОСТ 7473-85
|
м3
|
0,52
|
0,624
|
|
|
|
|
Электроды Э-42, АНО-6 диам.
6 мм, ГОСТ 9466-75
|
кг
|
8,0
|
9,6
|
|
|
|
|
Краски, ГОСТ 8292-85
|
кг
|
3,2
|
3,84
|
Таблица3- Ведомость объемов работ
|
Наименование конструктивных
элементов, процессов
|
Ед. изм.
|
Количество
|
|
|
На этаж
|
На весь блок
|
|
Монтаж колонн
|
шт
|
104
|
312
|
|
Антикоррозийное покрытие
|
10 стыков
|
10,4
|
31,2
|
|
Сварка закладных деталей
|
м
|
59,09
|
177,2
|
|
Заделка стыков колонн
|
шт
|
104
|
312
|
|
Монтаж ригелей
|
шт
|
66
|
330
|
|
Антикоррозийное покрытие
|
10 стыков
|
7
|
36
|
|
Сварка закладных деталей
|
м
|
44
|
132
|
|
Заделка стыков ригелей
|
шт
|
68
|
340
|
|
Монтаж плит лестничных
площадок
|
шт
|
16
|
80
|
|
Антикоррозийное покрытие
|
10 стыков
|
3,2
|
12,12
|
|
Сварка закладных деталей
|
м
|
1,6
|
6,06
|
|
Заделка стыков
|
шт
|
16
|
80
|
|
Монтаж лестничных маршей
|
шт
|
24
|
120
|
|
Антикоррозийное покрытие
|
10 стыков
|
4,8
|
24
|
|
Сварка закладных деталей
|
м
|
4,5
|
26
|
|
Заделка стыков
|
шт
|
24
|
128
|
|
Монтаж плит перекрытия
|
шт
|
580
|
3480
|
|
Заливка швов плит перекрытия
|
100 м
|
26,09
|
156,54
|
1 3 ОПРЕДЕЛЕНИЕ
ТРУДОЕМКОСТИ РАБОТ
Таблица 4- Ведомость нормативных затрат труда, времени работы машин,
стоимости трудозатрат монтажа здания
|
Наименование процессов
|
Ед. изм.
|
Кол.-во
|
ЕниР
|
Норма времени в маш.-ч
|
Затраты времени машин
|
Состав звена по ЕниР
|
Норма времени в чел.-ч. по
ЕниР
|
Затраты труда
|
|
|
|
|
|
В маш.-ч.
|
В маш.-см.
|
Профессия, разряд
|
Кол.-во
|
|
В чел.-ч.
|
В чел.-см.
|
|
Монтаж колонн
|
шт
|
312
|
Е4-1-4
|
0,57
|
177,84
|
22,23
|
Монтажник конструкций: 5
разр. 4 разр. 3 разр. 2 разр. Машинист крана: 6 разр.
|
1 1 2 1 1
|
5,7
|
1778,4
|
222,3
|
|
Сварка закладных деталей
|
м
|
177,2
|
Е22-1-1
|
-
|
-
|
-
|
Электросварщики ручной
сварки: 5 разр.
|
1
|
0,3
|
53,16
|
6,64
|
|
Антикоррозийное покрытие
|
10 стыков
|
31,2
|
Е4-1-22
|
-
|
-
|
-
|
Монтажник конструкций: 4
разр. 2 разр.
|
1 1
|
1,1
|
34,32
|
4,29
|
|
Заделка стыков колонн
|
шт
|
312
|
Е4-1-25
|
-
|
-
|
-
|
Плотник: 4 разр 3 разр
Монтажник конструкций: 4 разр. 3 разр.
|
1 1 1 1
|
1,2
|
374,4
|
46,8
|
|
Монтаж ригелей
|
шт
|
330
|
Е4-1-6
|
0,56
|
184,8
|
23,1
|
Монтажник конструкций: 5
разр. 4 разр. 3 разр. 2 разр. Машинист крана :6 разр.
|
1 1 2 1 1
|
2,8
|
924
|
115,5
|
|
Сварка закладных деталей
|
м
|
132
|
Е22-1-1
|
-
|
-
|
-
|
Электросварщики ручной
сварки: 5 разр.
|
1
|
0,30
|
39,6
|
4,95
|
|
Антикоррозийное покрытие
|
10 стыков
|
36
|
Е4-1-22
|
-
|
-
|
-
|
Монтажник конструкций: 4
разр. 2 разр.
|
2 1
|
1,1
|
39,6
|
4,95
|
|
Заделка стыков ригелей
|
шт
|
340
|
Е4-1-25
|
-
|
-
|
-
|
Плотник: 4 разр 3 разр
Монтажник конструкций: 4 разр. 3 разр.
|
1 1 1 1
|
1,2
|
408
|
51
|
|
Монтаж плит лестничных
площадок
|
шт
|
80
|
Е4-1-10
|
0,70
|
56,0
|
7
|
Монтажник конструкций: 4
разр. 3 разр. 2 разр. Машинист крана: 6 разр.
|
2 1 1 1
|
2,80
|
224
|
28,0
|
|
Сварка закладных деталей
|
м
|
6,06
|
Е22-1-1
|
-
|
-
|
-
|
Электросварщики ручной
сварки: 5 разр.
|
1
|
0,30
|
1,8
|
0,22
|
|
Антикоррозийное покрытие
|
10 стыков
|
12,12
|
Е4-1-22
|
-
|
-
|
-
|
Монтажник конструкций: 4
разр. 2 разр.
|
2 1
|
1,1
|
13,33
|
1,66
|
|
Заделка стыков
|
шт
|
80
|
Е4-1-25
|
-
|
-
|
-
|
Плотник: 4 разр 3 разр
Монтажник конструкций: 4 разр. 3 разр.
|
1 1 1 1
|
1,2
|
96
|
12
|
|
Монтаж лестничных маршей
|
шт
|
120
|
Е4-1-10
|
0,42
|
50,4
|
6,3
|
Монтажник конструкций: 4
разр. 3 разр. 2 разр. Машинист крана: 6 разр.
|
2 1 1 1
|
1,7
|
204
|
25,5
|
|
Сварка закладных деталей
|
м
|
26
|
Е22-1-1
|
-
|
-
|
-
|
Электросварщики ручной
сварки: 5 разр.
|
1
|
0,3
|
7,8
|
0,97
|
|
Антикоррозийное покрытие
|
10 стыков
|
24
|
Е4-1-22
|
-
|
-
|
-
|
Монтажник конструкций: 4
разр. 2 разр.
|
2 1
|
1,1
|
26,4
|
3,3
|
|
Заделка стыков
|
шт
|
128
|
Е4-1-25
|
-
|
-
|
-
|
Плотник: 4 разр 3 разр
Монтажник конструкций: 4 разр. 3 разр.
|
1 1 1 1
|
1,2
|
153,6
|
19,2
|
|
Монтаж плит перекрытия
|
шт
|
3480
|
Е4-1-7
|
0,11
|
382,8
|
47,85
|
Монтажник конструкций: 4
разр. 3 разр. 2 разр. Машинист крана: 6 разр.
|
1 2 1 1
|
0,44
|
1531,2
|
191,4
|
|
Заливка швов плит
перекрытия
|
100 м
|
Е4-1-26
|
-
|
-
|
-
|
Монтажник конструкций: 4
разр. 3 разр.
|
1 1
|
4,00
|
626
|
78,25
|
|
Итого:
|
|
|
|
|
851,84
|
106,48
|
|
|
|
6535,61
|
816,93
|
Монтаж конструкций: 4661,6 ч.-час
Антикоррозийное покрытие: 113,62час
Сварка: 102,36 ч.-час. Заделка стыков и швов: 1771,62 ч.-час
4 ГРУЗОЗАХВАТНЫЕ УСТРОЙСТВА И ПРИСПОСОБЛЕНИЯ ДЛЯ МОНТАЖА И ВРЕМЕННОГО
КРЕПЛЕНИЯ КОНСТРУКЦИИ
Основными техническими средствами для монтажа строительных конструкций
являются: монтажные краны, грузозахватные устройства, приспособления,
обеспечивающие монтажный процесс. Подбор грузозахватных устройств ( стропов,
траверс и т.п.) производят для каждого конструктивного элемента здания (
колонна, ригель, плита и т.п.). Количество грузозахватных устройств
проектируется минимально необходимым.
Таблица5
Монтажные приспособления и грузозахватные устройства
|
№ п/п
|
Наименование сборных
элементов
|
Наименование приспособлений
и устройств
|
Характеристики
|
Высота грузозахватного
устройства, м
|
Потребное количество
|
|
|
|
г/п, т
|
масса, кг
|
|
|
|
1.
|
2.
|
3.
|
5.
|
6.
|
7.
|
8.
|
|
1
|
Колонны
|
Одиночный кондуктор
|
-
|
500
|
7,14
|
3
|
|
|
Расчалки для временного
крепления колонн 4346
|
-
|
14
|
7,25
|
30
|
|
|
Рамочный захват
|
10
|
73
|
-
|
1
|
|
2
|
Ригели
|
Четырёхветвевой строп 910М
|
10
|
133
|
6
|
2
|
|
|
Инвентарные подмости
|
-
|
-
|
-
|
4
|
|
|
Струбцина универсальная
3241
|
-
|
15
|
-
|
-
|
|
3
|
Плиты перекрытия и покрытия
|
Четырёхветвевой строп
|
10
|
133
|
6
|
2
|
|
|
Лестница с площадкой
|
0,4
|
200
|
10
|
1
|
|
4
|
Лестничные марши
|
Четырёхветвевой строп
|
10
|
133
|
6
|
2
|
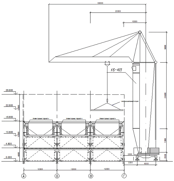
4.1 Выбор
монтажного крана
Требуется подобрать кран для монтажа сборных железобетонных конструкций
5-ти этажного каркасного здания высотой 28,8 метров с размерами в осях 36х120
м. по условиям строительной площадки кран может работать с одной стороны здания
( продольной).
Грузоподъемность крана определяем по формуле:
Qк=qэ+qt=6,2+0,13=6,33,
Qк=36+0,3+1+4,5=41,8м.
где qэ - масса наиболее тяжелого элемента;
qt -
масса четырехветвевого стропа марки М910 грузоподъемностью до 10 т.
Максимальная высота подъема крюка башенного крана определяется по
формуле:
Нк= ho + hз + hэ + hст, где
Hк.-
расстояние от уровня стоянки крана до геометрического центра звена крюка, м;
h0 -
уровень верхнего монтажного горизонта, м;
hзап.
- запас высоты при подъеме груза над самым высоким препятствием, принимается
равным 0,5
hэл. -
наибольшая из высот поднимаемых грузов, м;
hстр -
расчетная высота стропа, м;
Hкр.=
0+ 28,8+ 0,5 + 3=32,5 м;
Минимальное требуемое расстояние от уровня стоянки крана до верха стрелы:
Нс= Нк+hn=32,5+2=34,5м
где: hn -высота полиспаста в стянутом
состоянии.
Вылет стрелы крана определяется по формуле:
L = В+f+ 1+ Rз.т, где
В - ширина здания в осях, м;
f -
расстояние от ближайшего к зданию подкранового рельса до ближайшей выступающей
части здания( равное толщине стеновой панели), м;
Rз.т -
задний габарит крана грузоподъемность до 15 т.;
L =
36+0,3+1+4,5=41,8 ;
Требуемая грузоподъемность крана:
Ркр. = gгр. +gт. , где
gгр. -
масса поднимаемого груза, т;
gт. -
масса такелажного приспособления, т;
Ркр. = 7,9 + 0,08 = 8 т;
По данным расчета принимаем:
Башенный кран марки КБ - 308, со следующими техническими
характеристиками:
- грузоподъемность: максимальная - 8 т;
- вылет максимальный (при Qmax) - 43 м;
- высота подъема крюка - 42 м;
- ширина подкранового пути - 4,5 м;
Башенный кран марки КБ - 306, со следующими техническими
характеристиками:
- грузоподъемность: максимальная - 8 т;
- вылет максимальный (при Qmax) - 53 м;
- высота подъема крюка - 45 м;
- ширина подкранового пути - 4,5 м;
4.2 Сравнение
кранов по экономическим показателям
Таблица 6 -
Сравнение кранов по экономическим показателям
|
Марка крана
|
Cмаш-ч.,р.
|
Пр,т/ч
|
E1,р.
|
E3,р.
|
Дп, м
|
|
КБ-308
|
3,63
|
2,75
|
4020
|
13,93
|
37,5
|
|
КБ-405
|
3,93
|
2,75
|
2810
|
22,00
|
37,5
|
Таблица 7 - Ведомость монтажных характеристик элементов конструкций
|
№ п/п
|
Наименование сборных
элементов конструкций, подаваемых грузов
|
Масса, т
|
Монтажная масса, Qм
т
|
Высота подъема крюка, м
|
Монтажная высота Нк
|
Вылет крюка, Lк
|
|
|
Одного элемента
конструкций, Qэ
|
Стропующего устройства, Qгр
|
|
Высота опоры, ho
|
Запас по высоте, hз
|
Высота элемента, hэ
|
Высота строповки, hстр
|
|
|
|
1
|
Монтаж колонн
|
6,2
|
0.09
|
6,3
|
24,4
|
0.7
|
12
|
4,0
|
28,8
|
25
|
|
2
|
Монтаж ригелей
|
9,15
|
|
9,2
|
|
|
6
|
|
28,9
|
|
|
3
|
Монтаж плит перекрытия
|
2,2
|
|
2,3
|
|
|
6
|
|
28,10
|
|
|
Монтаж стеновых панелей
|
6,9
|
|
7,0
|
|
|
6
|
|
28,8
|
|
Ац= Cмаш-ч*1000/ Пр+ E1+ E3* Дп,
где Cмаш-ч - стоимость машино-часа
эксплуатации крана, р.
Пр - средняя часовая производительность крана, т/ч
E1 -
стоимость перебазировки крана, р.
E3 -
стоимость устройства 1 пог. Метра подкранового пути, р.
Дп -протяженность подкрановых путей, м
Ац - стоимость аренды крана,р.
Кран КБ-308
Ац= 3,63*1000/ 2,75+ 4020+ 13,93* 37,5=5862,37р.
Кран КБ-306
Ац=3,93*1000/ 2,75+ 2810+ 22,0* 37,5=5064р.
По результатам сравнение выбираем кран КБ-405.
5
ТЕХНОЛОГИЧЕСКАЯ КАРТА НА МОНТАЖ ЗДАНИЯ
.1 Область
применения
Технологическая карта разработана на монтаж типовых сборных
железобетонных несущих конструкций трехпролетного (3 ×
12м) одноэтажного
производственного здания с шагом колонн 6 м, подкрановыми жёлезобетонными
балками длиной 12 м.
Монтаж сборных железобетонных конструкций следует осуществлять в
соответствии со СНиП 3.09.01-85 "Производство сборных железобетонных
конструкций и изделий", СТ СЭВ 4534-84 "Защита от коррозии в
строительстве. Конструкции бетонные и железобетонные. Требования к первичной
защите" и СНиП III-4-80* «Техника
безопасности в строительстве».
.2
Организация и технология строительного процесса
Технологическая карта разрабатывается на процесс комплексного монтажа
несущих элементов многоэтажного промышленного здания. В состав процессов
технологической карты входят:
· установка одиночных и групповых кондукторов
· монтаж колонн
· монтаж ригелей
· укладка плит перекрытий
· электросварка монтажных стыков сборных конструкций
· антикоррозийное покрытие стыков
· замоноличивание швов и стыков сборных конструкций
До начала монтажа каркаса должны быть выполнены все подготовительные
работы:
разбиты и приняты оси здания и реперы;
возведены все необходимые временные сооружения в соответствии со
стройгенпланом;
закончено устройство временных дорог, подъездных путей и складских
площадок, рассчитанных на запас конструкций, предусмотренных ППР, с учетом
календарного графика монтажа;
проложены подземные коммуникации;
возведены монолитные фундаменты под колонны;
осмотрены, налажены и приняты монтажные механизмы, приспособления и
оборудование;
оформлены все необходимые документы на скрытые работы;
выполнена планировка грунта, организован водоотвод, в зонах монтажа
уложены сборные железобетонные плиты.
Должны завезены и уложены в соответствии с технологическими схемами
сборные железобетонные конструкции. Поставка железобетонных элементов
осуществляется централизованно трайлерами, панелевозами и фермовозами в
соответствии с графиком поставки, разработанным ППР. Перевозку и раскладку
железобетонных конструкций в зоне монтажа следует выполнять в соответствии с
требованиями ГОСТов или технических условий на эти конструкции и в порядке
очередности монтажа.
Поступающие на строительную площадку сборные элементы подлежат тщательной
проверке:
все детали должны быть маркированы на заводах-изготовителях несмываемой
краской. Изделия с неправильно нанесенной маркировкой (например, невидимой в
проектном положении), должны либо браковаться, либо приниматься, как изделия
наименьших ступеней несущей способности, выпускаемых промышленностью.
Необходимо проверять геометрические формы, прямолинейность ребер и граней,
правильность расположения закладных деталей, монтажных петель, выпусков
арматуры;
детали с трещинами, деформациями и др. дефектами подлежат возвращению на
завод, либо складированию в определенном месте под указателем "брак";
управлению комплектации при оформлении заказа на сборные железобетонные
изделия следует заказывать все комплектующие детали.
Для прохода крана и доставки автотранспортом сборных железобетонных
конструкций к месту монтажа в пролете выделяют монтажную зону, которая должна
быть размечена хорошо видимыми знаками.
Разгрузку и раскладку конструкций у мест их монтажа производят отдельным
потоком основным монтажным краном в третью смену.
Перед подъемом и перемещением сборных элементов в зону монтажа
необходимо:
очистить элемент, от грязи, снега, наледи, а металлические детали - от
ржавчины;
нанести основные риски и проверить, наличие меток мест опирания
элементов;
проверить правильность и надежность строповки.
Подъем, перемещение и опускание элементов следует осуществлять плавно,
без рывков, раскачивания и вращения. Сборные элементы необходимо устанавливать
сразу в проектное положение с соответствующей выверкой и устройством проектных
закреплений в узлах.
Несущие сборные железобетонные конструкции надземной части монтируют
раздельным способом:
первое - монтаж колонн и установка металлических связей с выверкой и
окончательной заделкой бетоном стыков в стаканах фундаментов;
второе - установка подкрановых балок с выверкой и окончательным их
закреплением и установка стропильных форм с укладкой плит покрытия.
.2.1Транспортирование
и складирование сборных конструкций
Ответственность за правильность укладки сборных элементов на траспортные
средства при отпуске с завода несет предприятие - изготовитель, за сохранность
в пути - транспортная организация, за правильность выгрузки изделий и их
складирование на приобъектном складе - строительная организация.
При транспортировании конструкций к строящемуся объекту необходимо
соблюдать следующие требования : способы транспортирования элементов должны
исключать возможность их повреждения, для чего балки следует перевозить в
положении на ребро, панели стен и перегородок - в вертикальном» положении,
прочие элементы - в горизонтальном положении; прочность бетона, сборных
железобетонных конструкций должна быть не ниже требуемой при монтаже и не менее
70% проектной; при погрузке элементов на транспортные средства должны
учитываться установленные габариты приближения подвижного состава к строениям и
сооружениям. Большая часть сборных железобетонных конструкций перевозится
автомобильным транспортом.
При укладке сборных элементов на транспортные средства небходимо, чтобы
элементы находились в положении, близком к проектному, за исключением колонн,
которые следует перевозить в горизонтальном положении, причем элементы должны
опираться на деревянные инвентарные подкладки и прокладки, указываемые в
чертежах.
При хранении конструкций на приобъектном складе необходимо:
раскладывать сборные элементы и размещать штабеля в зоне действия
монтажного крана с учетом последовательности монтажа;
конструкции, имеющие большую массу (или парусность), располагать вблизи
монтажного крана;
хранить сборные элементы в условиях, исключающих их деформирование и
загрязнение;
на территории склада установить указатели проездов и проходов.
На складе более тяжелые конструкции располагают ближе к монтажному крану,
а более легкие - дальше. С целью сокращения площади склада конструкции обычно
хранят в штабелях. Проходы между штабелями необходимо устраивать в продольном
направлении через каждые два смежных штабеля, в поперечном - не реже чем через
25 м. Ширина поперечных проходов должна быть не менее 0,7 м, а разрывы между
штабелями - не менее 0,2 м. Складирование элементов необходимо организовать
так, чтобы иметь доступ к любой конструкции для возможности определения ее
маркировки и подготовки к монтажу.
Панели перекрытия, колонны, ригели, надколонные и пролетные плиты должны
находиться в штабелях в горизонтальном положений. Оптимальные размеры штабелей:
для колонн - 4 ряда, для ригелей и прогонов - 3 ряда, для плит покрытий и
перекрытий - до 10... 12 рядов, но максимальная высота штабеля не должна
превышать 2,5 м. На складе стеновые панели устанавливают вертикально или
наклонно в металлических пирамидах или кассетах, крупноразмерные перегородки
также складируют в деревянных кассетах, в положении, близком к вертикальному.
Железобетонные элементы каркаса промышленных зданий укладывают у мест
установки: легкие колонны - вершинами к фундаменту, тяжелые - нижним концом к
фундаменту, подкрановые балки - параллельно ряду колонн на расстоянии от них
40...50 см. Расположение сборных элементов на складе должно быть таким, чтобы
при их подъеме для установки в проектное положение вылет стрелы крана не
изменялся, т. е. стрела крана при монтаже не поднималась и не опускалась.
5.2.2 Техника
безопасности
При производстве работ по монтажу сборных железобетонных конструкций
промышленных зданий должны соблюдаться требования СНиП III-4-80* "Техника
безопасности в строительстве", государственных стандартов ССБТ, проекта
производства работ, настоящей технологической карты, инструкций, утвержденных
главным инженером строительной организации с учетом местных условий.
Рабочие всех специальностей, занятые на работах по монтажу сборных
железобетонных конструкций должны быть аттестованы по правилам безопасности (иметь
удостоверение), а также пройти инструктаж в соответствии с требованиями ГОСТ
12.0.004-90 ССБТ "Организация обучения работающих безопасности труда.
Общие положения.
Приказом по строительно-монтажному управлению должны быть назначены лица,
ответственные за безопасное производство работ и лица, ответственные за
безопасное производство работ с применением крана РДК и стропальщики (для
работы посменно).
К монтажу и сварочным работам на высоте допускаются монтажники и
сварщики, имеющие справку о медицинском освидетельствовании, которое они
проходят два раза в год.
Все рабочие, участвующие в монтажных работах, должны носить каски,
предохраняющие от травм при падении предметов с верхних монтажных горизонтов;
при работе на высоте необходимо надевать предохранительные пояса, которыми
прикрепляются к прочно установленным элементам конструкций. При переходе от
узла к узлу монтируемой конструкции рабочие укрепляют карабин
предохранительного пояса к натянутому страховочному стальному канату.
В зоне работы монтажного крана показывается граница возможного падения
груза.
Рабочие места при производстве работ в вечернее и ночное время должны
быть достаточно освещены.
Монтажный кран устанавливается на надежное и тщательно выверенное
основание и имеет тормозные устройства.
Правильная установка крана оформляется актом.
Кран оборудуется устройством по ограничению грузоподъемности, его
стальные канаты следует периодически проверять. Во избежание перегрузки
монтажных кранов необходимо знать массу поднимаемых элементов, которую указывают
в марке, имеющейся на элементах сборных конструкций. В соответствии с
действующими нормами стропы, захваты и другие такелажные приспособления следует
периодически испытывать и при необходимости выбраковывать. Перед началом работы
и в процессе монтажа такелажные устройства испытывают двойной нагрузкой. При
подъеме грузы берут на оттяжку, что исключает их раскачивание.
К обслуживанию крана допускаются обученные и аттестованные в соответствии
с Правилами Госгортехнадзора стропальщики. Фамилии стропальщиков должны быть
записаны в крановый журнал.
Особые меры предосторожности следует принимать при ветреной погоде. При
ветре более 6 баллов прекращают монтажные работы, связанные с применением
кранов.
Большое внимание при монтаже должно быть уделено электросварочным
работам, так как при выполнении их помимо опасности поражения током существует
и пожарная опасность.Для выполнения монтажных работ необходимо установить
порядок обмена сигналами между стропальщиком и машинистом крана.
Сигнал "Стоп" может быть подан любым работником, заметившим
явную опасность.
Расстроповку конструкции необходимо производить только после их
крепления, предусмотренного настоящей технологической картой.
При производстве монтажных и сварочных работ на плитах покрытия, рабочие
должны быть закреплены карабином предохранительного пояса в местах,
определенных в проекте производства работ и указанных руководителем работ.
В процессе монтажа монтажники должны находиться на ранее установленных и
надежно закрепленных плитах покрытия или средствах под ЗАПРЕЩАЕТСЯ:
Производить монтажные работы без наличия проекта производства работ.
Выполнять монтажные работы на высоте в открытых местах при скорости ветра
15 м/с и более, при гололедице, грозе и тумане, исключающей видимость в
пределах фронта работ.
Выполнять монтажные работы без спецодежды, спецобуви и средств
индивидуальной защиты.
Применять грузозахватные приспособления, не предусмотренные проектом
производства работ.
Пребывание людей на элементах конструкций во время их подъема или
перемещения.
Во время перерывов в работе оставлять поднятые элементы конструкций на
весу.
Нахождение людей под монтируемыми элементами конструкций до установки их
в проектное положение и закрепления.
Передвижение монтажников по конструкциям, не имеющим ограждений или тросса
для закрепления карабина пояса.
Подъем сборных железобетонных конструкций, не имеющих монтажных петель,
меток, обеспечивающих их правильную строповку и монтаж.
Нахождение лиц, не участвующих в процессе монтажа в монтажной зоне.
Движение транспорта в местах установки расчалок (места установки расчалок
должны быть ограждены).
Территория строительства должна быть обеспечена первичными средствами
пожаротушения.
Запрещается загромождать проходы к пожарному инвентарю и оборудованию;
средствам оповещения.
Курить на строительной площадке необходимо в специально отведенных
местах, соответственно оборудованных.
На строительной площадке должен, быть установлен стенд со схемами
строповки, спецификацией основных монтируемых элементов, предупреждающие и
запрещающие знаки, плакаты по технике безопасности.
Рабочие должны пользоваться спецодеждой и обувью (монтажники: костюм
мужской ГОСТ 12.4.109-82, сапоги ГОСТ 12265-78*,рукавицы брезентовые ГОСТ
12.4.010-75*, электросварщики: костюм для сварщика ТУ 17-08-69-77; ТУ 17-08-123-80,сапоги
ГОСТ 12265-78*,рукавицы брезентовые ГОСТ 12.4.010-75*); средствами
индивидуальной защиты ( Пояс предохранительный для монтажников строительных
конструкций, каска защитная, защитный головкой убор, Щиток сварщика,
монтируемый на защитном головном уборе); зимой дополнительно: куртка мужская
рабочая на утепляющей подкладке ГОСТ 17222-71, брюки мужские рабочие на
утепляющей подкладке ГОСТ 18235-72, сапоги ГОСТ 18724-88, рукавицы ватные ГОСТ
12.4.010-75*, ТУ 78-359-75.
.2.3
Операционный контроль качества работ
Качество работ при монтаже сборных железобетонных конструкций зависит от
следующих основных факторов:
качества применяемых материалов, конструкций и изделий;
качества проектной и проектно-технологической документации;
состояния инструментов и приспособлений, с помощью которых производится
работа;
квалификации исполнителей и ИТР, ответственных за производство работ;
правильности к своевременности выполнения требований проекта, стандартов,
строительных норм и правил, технических условий и других нормативных
документов;
качества выполнения предыдущих операций или процессов.
В процессе производства работ по монтажу сборных железо бетонных
конструкций проводятся следующие виды контролей качества:
входной контроль;
операционный контроль;
приемочный контроль;
Основные условия проведения операционного контроля следующие:
. Операционный контроль проводится инженерно-техническим составом
участка и работниками строительной лаборатории.
2. Результаты проведения операционного контроля заносятся в
"Журнал работ" с указанием даты проверки, места проверки,
обнаруженных дефектов, сроков их устранения, фамилии и должности проверяющего.
. Все выявленные в процессе проведения операционного контроля
дефекты должны быть устранены до начала последующей операции с занесением
данных об их устранении в "Журнал работ".
. Операционный контроль проводится постоянно в процессе всего
периода производства работ.
5. При проведении операционного контроля проверке подлежит качество
выполнения следующих основных операций:
соответствие смонтированных конструкций проектному положению и
требованиям СНиП 3.03.01-87, в том числе:
точность монтажа стаканов под колонны;
точность монтажа колонн крайних и средних рядов;
качество замоноличивания колонн в стаканах фундаментов;
правильность установки металлических связей;
точность монтажа подкрановых балок;
точность монтажа стропильных ферм;
точность монтажа плит покрытия;
соответствие проекту зазоров между отдельными элементами и конструкциями;
правильность опирания несущих конструкций;
качество сварных соединений
. Замоноличивание стыков колонн со стаканами фундаментов должно
производиться в соответствии с СНиП 3.03.01-87.
. При выполнении работ по замоноличиванию стыков проверяется качество
очистки стыкуемых поверхностей, их увлажнение или сушка (в зависимости от
погодных условий), правильность режима выдерживания бетона.
. Прочность бетона в стыках во время распалубки должна соответствовать
указанной в проекте, а при отсутствии такого указания - должна быть не менее
50% проектной прочности на сжатие.
. Фактическую прочность уложенного в стык бетона следует контролировать
испытанием серии образцов, изготовленных на месте замоноличивания. Для проверки
прочности следует изготовлять не менее трех образцов на группу стыков,
бетонируемых в течение данной смены. Испытания образцов необходимо производить
по ГОСТ 10180-90 и ГОСТ 5802-86.
. Методы предварительного обогрева стыкуемых поверхностей, и прогрева
замоноличенных стыков и швов, продолжительность и температурно-влажностный
режим выдерживания бетона, способы утепления, сроки и порядок распалубливания и
загружения конструкций с учетом особенностей выполнения работ в зимних
условиях, а также в жаркую и сухую погоду, должны быть указаны в ППР.
. Сварочные работы по соединению монтируемых элементов, должны
производиться в соответствии с ГОСТ 5264-80*.
. Сварные соединения должны отвечать требованиям ГОСТ 10922-90, ГОСТ
23858-79*, а также разработанной «Технологической инструкции контроля качества
сварных соединений монтажных и закладных деталей элементов железобетонных
конструкций».
. Ежедневно перед началом сварочных работ в тех же условиях должна
производиться контрольная сварка с целью установления характера плавления
электродного стержня и покрытия, легкости отделения шлака и качества
формирования сварного шва (жидкотекучесть и разбрызгивание расплавленного
металла).
. В ходе проведения операционного контроля при производстве сварочных
работ должны фиксироваться как наружные, так и внутренние дефекты сварных
соединений.
. Наружные дефекты определяются с помощью измерительной линейки, набора
шаблонов, а также визуально (с помощью лупы 5-кратного увеличения).
К ним относятся:
соответствие размеров швов проектным:
трещины всех видов и. размеров (не допускаются и должны быть устранены с
последующей заваркой);
поверхность шва (равномерно-чешуйчатая, без прожогов, наплывов, сужений и
перерывов);
подрезы (допускаются глубиной до 5% толщины свариваемого металла, но не
более 1 мм);
непровары, цепочки и скопления пор соседние по длине (допускаются, если
расстояние между близлежащими концами дефектов - не менее 200 мм).
. Визуальному осмотру и измерениям подвергаются все сварные соединения.
. Внутренние дефекты, к которым относятся поры, шлаковые включения и
трещины, определяются на изготовленных в тех же условиях или вырезанных из
готовых конструкций контрольных образцах - свидетелях разрушающими методами.
Количество контрольных образцов в соответствии с ГОСТ 10922-90 должно
составлять не менее 3% от всего количества сварных соединений.
5.3 График
производства работ
Линейный календарный график (календарный план) производства работ по
возведению здания составляют по форме, установленной «Инструкцией о порядке
составления и утверждения проектов организации строительства и проектов
производства работ», утвержденной Госстроем СССР.
В календарном плане предусматривается производство работ по возведению
здания в течение круглого года и устанавливается такая последовательность
общестроительных и специальных работ, при которой объект может быть введен в
эксплуатацию в установленные сроки. При этом предусматривается различные виды
работ выполнять поточным методом с делением на захватки. В календарном плане
возведения объекта по каждому комплексу (виду) работ приводятся данные об
объеме работ, затратах труда в человеко-днях, численном и квалификационном
составе бригады, потребности машин, количестве смен, а также о сроках начала и
окончания работ.
При составлении календарного плана строительства здания сравнивают методы
выполнения работ и выбирать тот метод, который при данных конкретных условиях
наиболее экономичен, требует меньше трудовых затрат, характеризуется более
низкой стоимостью единицы работы и более коротким сроком ее выполнения.
Выбирают такие методы выполнения работ, которые позволяют осуществить
комплексную или частичную их механизацию.
5.4 ВЕДОМОСТЬ
МАШИН, МЕХАНИЗМОВ, ИНВЕНТАРЯ И ПРИСПОСОБЛЕНИЙ
|
Наименование
|
Марка, ГОСТ
|
Характеристика
|
Кол-во
|
|
Башенный кран
|
КБ-405
|
Q=8 т.
|
1
|
|
Автобетоносмеситель
|
5513
|
Объем перевозимой смеси 3м3
|
1
|
|
Автомобиль - полуприцеп
|
5320
|
Масса полуприцепа с грузом
- 17,45т. Скорость движения 75 - км/ч. Дорожный просвет - 295мм.
|
2
|
|
Одиночный кондуктор
|
5583
|
-
|
10
|
|
Расчалки для временного
крепления колонн 4346
|
5583
|
Q=14 т.
|
40
|
-
|
Q=7,3Т.
|
1
|
|
Четырёхветвевой строп 910М
|
-
|
Q=10 т.
|
2
|
|
Инвентарные подмости
|
-
|
-
|
4
|
|
Монтажная площадка
|
-
|
-
|
1
|
|
Понижающий трансформатор
|
-
|
-
|
1
|
|
Сварочный аппарат
|
-
|
-
|
1
|
|
Инструменты и
приспособления для бетонных и монтажных работ.
|
-
|
-
|
1 кп.
|
5.5
ТЕХНИКО-ЭКОНОМИЧЕСКИЕ ПОКАЗАТЕЛИ
|
№ п/п
|
Наименование показателя
|
Ед. изм.
|
количество
|
|
1
|
Продолжительность
строительства
|
Дни
|
68
|
|
2
|
Затраты труда на 1 м3
|
Чел. - смена
|
0,01
|
|
3
|
Выработка на 1 рабочего в
смену
|
м3
|
3
|
СПИСОК ЛИТЕРАТУРЫ
1 ЕНиР.
Сборник Е4. выпуск 1, монтаж сборных и устройство монолитных ж/б конструкций.
М. 1987г. Госстрой СССР.
ЕНиР. Сборник
Е5. Монтаж металлических конструкций. Вып.1 Здания и промышленные сооружения.
М. 1987г. Госстрой СССР.
3 ЕНиР.
Сборник Е22. Сварочные работы. Вып.1 Конструкции зданий и промышленных
сооружений. М. 1987г. Госстрой СССР.
4 Нормативные
показатели расхода материалов. Сборник 07. Монтаж бетонных и железобетонных
конструкций / Госстрой России.- М., 2001.
Технология
возведения зданий' м сооружений: Учебник для вузов /В.И. Теличенко, А.А.
Лапидус, О. М. Терентьев и др.; - М.: Высшая школа, 2001,- 320 с.
Технология
возведения полносборных зданий: Учебник для вузов / Под общей ред. А. А.
Афанасьева.- М.: Изд-во АСВ, 2000. - 361 с.
ПРИЛОЖЕНИЕ 1
Монтаж ригелей М 1:500
ПРИЛОЖЕНИЕ 2
Строповка