Компоновка балочной клетки
Содержание
1. Компоновка балочной клетки
2. Сбор нагрузок
3. Расчет балки настила
4. Расчет главной балки
5. Узлы главной балки
6. Расчёт колонны сплошного сечения
7. Расчёт колон сквозного сечения
8. Расчёт базы колонны
9. Расчёт оголовка колонны
1. Компоновка
балочной клетки
При проектировании конструкций балочного перекрытия выбираем
систему несущих балок. Принимаем обычный вариант балочной клетки.
В балочной клетке такого типа нагрузка передается на балки
настила, которые, в свою очередь, передают ее на главные балки, опирающиеся на
колонны. Оголовки колонн воспринимают нагрузки и через стволы передают ее на
базу. База переедет нагрузку на фундамент.
балочная клетка компоновка колонна
2. Сбор
нагрузок
Таблица 1
Сбор нагрузок
Расчетная схема балки
- расчетная погонная нагрузкан - нормативная
постоянная нагрузка от пола
при а = 6 м и Рн = 25.5 кН/м2 tнаст.
= 10 см.
. Определение нормативной погонной нагрузки на балку
настила.
н = (SgH + PH)
*a*gn
gn = 0,95 - коэффициент надежности по назначению.
а = 1.21 м - шаг балок настила
н = (4,03 + 25,5) *1.21*0,95 = 33,94 кН/м
. Определение расчетной погонной нагрузки на балку настила.
= (SgH*gf1 + PH*gf2) *a*gn
gf1 = 1,1; gf2 = 1,2 - коэффициенты
надежности по нагрузке
= (4,17 + 26,4) *1,21*0,95 = 35,14 кН/м
. Определение максимального расчетного изгибающего момента и
поперечной силы.

3. Расчет
балки настила
Предварительный подбор сечения балки
По сортаменту принимаем:№ 35Б2 Wx = 774,8 cм3x
= 13560 cm4x = 434 cm3w = 7 mm =0,7
cm
Проверка подобранного сечения.
1 гр. ПС
Проверка максимальных нормальных напряжений:
Проверка максимальных касательных напряжений
Проверка общей устойчивости не требуется, т.к. верхний сжатый пояс
балки раскреплён непрерывным настилом.
Проверка местной устойчивости элементов балки не требуется, т.к.
она обеспечивается сортаментом.
2 гр. ПС
4. Расчет
главной балки
l = 6 м - пролет главных балок
В = 12.1 м - шаг главных балокн = 4,03 кН/м2
- постоянная нормативная нагрузка
Рн = 25,5 кН/м2 - временная нормативная
нагрузка
gf1 = 1,1; gf2 = 1,2 - коэффициенты
надежности по нагрузке
- предельный относительный прогиб
материал балки - сталь 255
1. Составление расчетной схемы.
Нагрузку на главную балку считаем равномерно распределенной.
Определение погонной нагрузки
нормативной - qн
Г.Б. * gn
gn = 0,95 -
коэффициент надежности по назначению
н =
(4,03+25,5) *6*0,95 + 5*0.95 = 154 кн/м
расчетной - q
*gf *gn
gf = 1,05 -
коэффициент надежности по нагрузке
= (4,17+30,6) *6*0,95 + 5*1,05*0,95 = 203 кН/м
Определение максимальных усилий в балке
максимальный расчетный изгибающий момент
максимальный нормативный изгибающий момент
максимальная поперечная сила
Подбор и компоновка сечения главной балки
Материал балки работает в упругой зоне
y =
24 кН/см2 - расчетное сопротивление по пределу текучести
gс = 1,0 -
коэффициент условий работы
Определение высоты балки
Оптимальная высота балки - это такая высота балки, при которой
масса балки минимальна.
= 1,15 - для сварных балок
w =
3 + 7 (L (м) /10), (мм) = 3 + 7 (12,1/10) = 11,47 мм
выбираем tw = 12 мм
Минимальная высота балки - это такая высота, при которой прогиб
балки максимально-возможный, т.е. равный допустимому
Принимаем высоту балки h = 132 см.
=
15479 см3
Проверим толщину стенки из условия прочности ее на срез.
- в балке оптимального сечения
s =
0,58Ry - расчетное сопротивление срезу
Принимаем по сортаменту tw = 10 мм, которая
удовлетворяет условию прочности на срез.
f
< 3*10 = 30 мм принимаем tf = 3,0 см. (по сортаменту)w
= h - 2*tf = 132 - 2*3 = 126 мм.
принимаем hw, ф = 126 мм (по сортаменту)ф =
hw, ф + 2* tf = 126 + 2*3 =132 см.f = hф
- tf = 232 - 3= 129 см.
Компоновка поясов балки
x =
I2f + Iw, где
х -
момент инерции сечения балки2f - момент инерции поясовw -
момент инерции стенки
2f =
1021614 - 166698 = 854916 cm4
согласовываем с сортаментом и выбираем bf = 34 см.
Конструктивные требования
) bf = (1/3 - 1/5) h - условие общей устойчивости h =
132 см
см > 55 см > 26,4 см
)
- технологическое требование
) bf ³
180 мм - монтажное требованиеf = 340 мм > 180 мм
Фактические
геометрические характеристики
Изменение сечения балки по длине
= 1/6 L = 1/6*12,1 = 2,0 м
Определение М1 и Q1 в местах изменения
сечения
,
Определение W’х, тр - требуемого момента сопротивления
уменьшенного сечения
,
- размер полок назначаем конструктивно
Конструктивные
требования
’f = 180 мм > 180 мм
принимаем b’f = 18 см
Фактические
геометрические характеристики
Условная гибкость стенки:
,26 > 3,5 - необходима постановка поперечных ребер жесткости.
Принимаем шаг ребер жесткости равный кратным шагу балок настила
1,21 м
Принимаем bp = 50 мм
Принимаем tp = 6 мм
Проверка подобранных сечений главной балки
1 гр. ПС
Проверка прочности
Проверка максимальных нормальных напряжений (в середине балки по
длине, в основном сечении)

Проверка максимальных касательных напряжений (на опорах в
уменьшенном сечении)
Проверка приведенных напряжений
sloc = 0,
следовательно sef определяется в месте изменения сечения
балки
, где
s1 -
нормальное напряжение в стенке на уровне поясного шва.
t1 -
касательное напряжение в стенке на уровне поясного шва.
Проверка общей устойчивости балки
Если соблюдается условие
, то общая устойчивость балки обеспечена.
f/tf
= 34/3,0 = 11
,7<19 - общая устойчивость главной балки обеспечена
Проверка местной устойчивости элементов главной балки
Проверка местной устойчивости полки
ef
- ширина свеса полки
, но не более
,68 < 14,8 - местная устойчивость полки обеспечена
Проверка местной устойчивости стенки
Þ необходима проверка местной устойчивости стенки на совместное
действие s и t напряжений.
- условие местной устойчивости стенки
ссr = 33, 19
Местная устойчивость стенки обеспечена
Жёсткость главной балки обеспечена, т.к. высота сечения была
принята больше чем hmin определённая по условию жёскости.
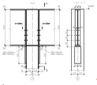
5. Узлы
главной балки
Узел 1: опорный узел главной балки
1. Расчет опорного ребра на смятие
bоп. р. = bf’=18 см - ширина опорного
ребра= 1228 кН
Условие прочности на смятие опорного ребра:
p = Ru
= 336 МПа = 33,6 кН/см2
По сортаменту принимаю tоп. р. = 22 мм
2. Расчет сварных швов
, где
wf
- расчетное сопротивление угловых швов срезу (условному) по металлу шва
gwf -
коэффициент условий работы шва
gс -
коэффициент условий работы конструкции
Slw -
расчетная длина шва
bf -
коэффициент, принимаемый при сварке элементов из стали с пределом текучести до
580 МПа по табл.34 СНиПа II-23-81*
Принимаю полуавтоматическую сварку, сварочный материал Св-08А, Rwf
= 180 МПа.
wf*bf = 180*0,7 = 126 МПа
Расчет угловых швов веду по металлу шва.
Принимаю lw = 85kfbflw =
85*1,0*0,7 = 59,5 см
Принимаю kf = 1,0 см
= 18*1,0*1,0*2*85*1,0*0,7 = 2142 ≥ 1228
Узел 2: Монтажный узел
Расчёт высокопрочных болтов в полках
Принимаем:б
= 20 мм - диаметр ВП болтов.
Марка стали: 40Х
"селект"
Способ обработки
поверхности - газопламенный двух поверхностей без консервации
Определяем
несущую способность соединения, стянутого одним ВП болтом:
bh = 0,7Rbun = 0,7*110 = 77 kH/cm2
m = 0,42
gn = 1,02
Аbn =
2,45 см2
gb = 1,0, (при n ³
10)
Определим
количество болтов в полустыке:
Принимаю 20
болтов.
Расчёт
высокопрочных болтов в стенке
max = 132 - 2*tнакл - 2*20 = 84,8 ммнакл =
1,2* tf = 1,2*3,0 = 3,6 см.
а = 60 мм. в = 50
мм. с = 40 мм,
Принимаю k=8 -
количество болтов в 1-ом вертикальном ряду при 2-х рядном расположении болтов в
полустыке.
Узел 3: узел
сопряжения главной балки и балки настила
1. Назначаю диаметр болтов 20 мм, класс
прочности 5.8
2. Определяю несущую способность одного
болта:
по срезу:
по смятию:
3. Определяю количество болтов в полустыке:
Принимаю 2 болта.
6. Расчёт
колонны сплошного сечения
1. Составление расчетной схемы
Расчетную схему колонны принимаем в варианте с шарнирным
опиранием узлов вверху и с защемлением внизу.
Н - отметка пола 1-го этажа 10,45м., hг. б. - высота
главной балки 1,32м.з - глубина заделки колонны, hз =
принимаю 0,25 м.,- геометрическая длинна колонны
Определение расчетных длин:
х = µ (Н + hз + hг. б.) =
0,7 (10,45+0,25 - 1,32) =6,57му = µ (Н + hз) = 0,7
(10,45+0,25) = 7,49м
. Определение нагрузки, действующей на колонну
= F + Gk = 2*Rг. б. + mk*lk*γf* γn = 2*Qmax + mk*lk*γf* γn
N = 2*1228 + 0,7*10,9*1,05*0,95 = 2456 + 78 = 2464 кН
. Предварительный подбор и компоновка сечения
Условие устойчивости:
, gс = 1,0 λ = 70
j = 0,754 - коэффициент продольного изгиба
В оптимальном сечении:
А2f » 0,8Атр
= 108,8 см2, Аw » 0,2Атр = 27,2 см2
гибкость колонны относительно оси Х-Х
гибкость колонны относительно оси Y-Yx = axh; iy = ayb
ax, ay - коэффициент пропорциональности между радиусами инерции и
соответствующими геометрическими размерами.
Для сварного двутавра:
ax, = 0,42;
ay =0,24
Для равноустойчивой колонны: lх = lу = 70 (при j = 0,754 и Ry
= 240 МПа)
Принимаю h = b = 45 см.
, принимаю 14 мм
, принимаю 10 мм
Конструктивные требования:
1) tf = 10 ¸ 40 мм: 10 мм < 14 мм
< 40 мм
2) tw = 6 ¸ 16 мм: 6 мм < 10 мм
< 16 мм
3)
Определение геометрических характеристик:

4. Проверка подобранного сечения
Проверка устойчивости относительно оси Y-Y

jy ® f (ly) jy = 0,778
y = 24
кН/см2 для стали С 255
Проверка местной устойчивости полки

,71 < 17,26 Þ
местная устойчивость полки обеспечена.
Проверка местной устойчивости стенки
lw £ [lw]

,2 £ 58,32 Þ местная устойчивость стенки обеспечена.
7. Расчёт
колон сквозного сечения
Пункты 1, 2 аналогичны расчету колонн сплошного сечения
. Подбор и компоновка сечения:
k = 1,0
Принимаю 2 Ι № 40 SА = 2*72,6 = 145,2 см2, ix
= 16,2 см
"b" - определяем из условия равноустойчивости
lх = 1,2lу
aх = 0,39 aу = 0,50
см, принимаю b = 44 см
Компоновка планок
пл = (6 ¸ 16) мм, принимаю tпл = 12 ммпл = (0,6 ¸ 0,8) b, принимаю dпл = 30см1-1
= 3,03 см£ 40 i1-1
= 40*3,03 = 121,2 cм
принимаю l = 120
смb = l - dпл = 120 - 30 = 90 см
Проверка
подобранного сечения
1. Проверка устойчивости относительно
материальной оси Х:

jx = 0,828
2. Проверка устойчивости относительно
свободной оси Y:
lef -
приведенная гибкость относительно оси Y.
Погонная жесткость планки:
Погонная жесткость ветви:
Отношение погонных жестокостей планки и ветви:
3. Проверка устойчивости отдельной ветви:
Работа планок на условную поперечную силу. Qfic
fic
=0,2 А (см2) = 0,2*145,2 = 29,04 кН
Условная прочность по металлу шва.
w = dпл
= 30см; kf = tпл = 12см; βf = 0,7
Аwf = lw* kf* βf = 30*1,2*0,7 = 25,2 см2
≤ Rwf*γwf*γc, 7,06 ≤ 18
Планка проверку прошла
8. Расчёт
базы колонны
Определим площадь опорной плиты:
Aпл. тр. =
=2933 см2;
Принимаем плиту размером 660х560 мм, А=3696 см2.
Находим напряжение под плитой базы:
бф=2933/3696=0.8 кН/см2 < Rпр ×g =0.7×1.2 =0.84
Конструируем базу колонны с траверсами толщиной 12 мм, привариваем
их л полкам колонны и к плите угловыми швами.
Вычисляем изгибающие моменты на разных участках для определения
толщины плиты:
Участок 1, опертый на четыре канта:
Отношение сторон b/a=422/219 =1.9a = 0.098;
Мпл.1 =a×q×a2 = 0.098×0.72×21,92 = 33,8 кН×см;
Участок 2, консольный; b/a > 2, тогда
Мпл.2 =q×l2 /2 = 0.72×10,52 /2= 39,69 кН×см;
Участок 3 не проверяем, т.к. консольный свес в нем меньше.
Определим толщины плиты:
пл >
=
=3,18 см.
Принимаем плиту толщиной tпл=4 см.
Таким образом, с запасом прочности усилие в колонне полностью
передается на траверсы, не учитывая прикрепление торца колонны к плите.
Прикрепление траверсы к колонне выполняется полуавоматической
сваркой в углекислом газе сварочной проволокой Св08Г2С;
принимаем высоту траверс hтр =300 мм.
Расчетные характеристики сварного соединения:
wf
=16.4 кН/см2; bz=1; gwz =1;
bf ×Rwf =0.7×21.5 =15.05 кН/см2 < bz ×Rwz
=16.4 кН/см2;
Расчет ведем по металлу шва; принимаем катет шва kf =12
мм
бш =
=
=8,02 кН/см2 <15.05 кН/см2;
Проверяем допустимую длину шва:
f
=66-2 =64 < 85 bf ×kf = 0.7 ×1.2 ×85 = 71
см;
Крепление траверсы к плите выполняется угловыми швами сf
=10 мм.
Проверяем прочность шва:
бш =
=
=7.2 кН/см2 <15.05 кН/см2;
Диаметр анкерных болтов принимаем равным d=24 мм.
9. Расчёт
оголовка колонны
Опирание главных балок на колонну сбоку
оп. ст. = tоп. л. + (15 ¸ 20 мм) = 22+18 = 40 мм
Принимаю 40 мм
оп. ст. = b - 2*2,0 = 30 - 2*2,0 = 26 см
∑lw = 2*lw, фланг. + lw лоб
lw лоб = bоп. ст. - 1см = 26 - 1 = 25смw,
фланг. = (∑lw - lw лоб) *1/2 = (133 - 25)
*1/2 = 54 см
принимаем lw, фланг. = 59смоп. ст = lw,
фланг. + 1 = 59 + 1 = 60см
Принимаем hоп. ст = 60 см