Конструкции цепного экскаватора

  • Вид работы:
    Дипломная (ВКР)
  • Предмет:
    Транспорт, грузоперевозки
  • Язык:
    Русский
    ,
    Формат файла:
    MS Word
    1,45 Мб
  • Опубликовано:
    2014-11-14
Вы можете узнать стоимость помощи в написании студенческой работы.
Помощь в написании работы, которую точно примут!

Конструкции цепного экскаватора

Введение

цепной экскаватор гидравлический машина

Настоящая работа содержит ознакомительную информацию о цепных экскаваторах их классификации и возможных конструктивных комбинаций рабочего оборудования. Так же произведен обзор зарубежных и отечественных аналогов цепных экскаваторов на базовой машине, гусеничный трактор. Выбраны самые современные и новейшие аналоги цепных экскаваторов.

Данная работа призвана произвести патенто аналитический обзор для выявления наиболее удобных и конструктивно выгодных конструкций для увеличения производительности цепных экскаваторов за счет снижения энергоемкасти процесса резания, уменьшения габаритор гидравлической системы управления рабочими органами, увеличения точности работы рабочего органа.

1. Общие сведения

.1 Назначение цепных экскаваторов

Экскаватором называют землеройную машину, выполняющую операции по отделению грунта от массива и перемещению его в отвал или транспортные средства в пределах зоны досягаемости рабочего оборудования. Экскаваторы оборудуют одним или несколькими ковшами. В первом случае их называют одноковшовыми, во втором - многоковшовыми.

Цепной экскаватор, многоковшовый экскаватор, рабочий орган которого представляет собой черпаковую раму (жёсткую или шарнирную) с бесконечной цепью и ковшами (черпаками).

Цепной экскаватор (а. bucketchain excavator; н. Eimerkettenbagger; ф. excavateur а chaine; и. excavadora de cadena, excavadora de rosario) - самоходная горная машина непрерывного действия с исполнительным органом в виде бесконечной цепи с закреплёнными на ней ковшами. Выполняется на железнодорожном (рис. 1), гусеничном или реже шагающем ходу с поворотной или неповоротной платформой. Предназначен для ведения вскрышных или добычных работ верхним и нижним черпанием в породах или углях невысокой крепости при температуре до - 35°С, разработки выемок (каналов) с удалением породы в отвал или погрузки горной массы в транспортное средство непрерывного или цикличного действия. Прототип цепного экскаватора - паровая плавучая землечерпалка, применённая в 1812 русским инженером А. Бетанкуром в Кронштадте. Сухопутный цепной экскаватор был создан в Европе в 1860 и работал на строительстве железных дорог в Арденнах. При проходке Суэцкого канала (1863-68) использовалось 7 цепных экскаваторов, которые переместили 6 млн. м3 грунта. В России производство цепного экскаватора было начато Путиловским заводом в 1901. [2].

1.2 Классификация цепных экскаваторов


Полноповоротные. Рабочее оборудование, приводы, кабина машиниста и двигатель устанавливаются на поворотной платформе, которая в свою очередь устанавливается на шасси посредством опорно-поворотного устройства (ОПУ), и может поворачиваться относительно него в любую сторону на любой угол. Части гидросистемы шасси и поворотной платформы полноповоротных экскаваторов соединены с применением коллектора, что позволяет производить неограниченное количество полных оборотов в одну сторону.

Неполноповоротные. Рабочее оборудование закрепляется на шасси с помощью поворотной колонки. На многих машинах подобного типа поворотная колонка монтируется на поперечных направляющих, что позволяет перемещать её вместе с рабочим оборудованием вправо-влево с последующей жёсткой фиксацией для более удобного положения рабочего оборудования. Поворот рабочего оборудования осуществляется на угол 45-90 градусов от начального положения. Двигатель, механизмы, кабина машиниста размещены на неповоротном шасси. В настоящее время неполноповоротными выполняются экскаваторы, навешиваемые на тракторы.

В качестве базового шасси используется трактор, чаще всего колёсный. Неполноповоротное экскаваторное оборудование устанавливается сзади (реже сбоку) трактора, на специальной раме. Наиболее распространёнными являются экскаваторы, навешиваемые на тракторы класса 1,4. Характерный объём ковша - 0,2-0,5 мі. Применяются для выполнения небольших землеройных или погрузочных работ, чаще всего при ремонте инженерных сетей. Конструкция рабочего оборудования позволяет оперативно переставлять ковш для работы прямой или обратной лопатой. Ковш может заменяться грейфером, грузовыми вилами или крюком. Для привода используется двигатель базового трактора. Привод рабочего оборудования гидравлический. Благодаря относительно высокой скорости хода могут оперативно прибывать к месту выполнения работ, расположенных на расстоянии 20-30 км от места базирования. Трактор с навешенным экскаваторным оборудованием может использоваться также для выполнения транспортных и бульдозерных работ.

В качестве базового шасси используется грузовой автомобиль, чаще всего повышенной проходимости. Обладают высокой скоростью перемещения. Применяются в случаях, когда требуется высокая мобильность: в военном деле (инженерные войска, дорожные войска), при выполнении спасательных операций, при строительстве дорог, очистке каналов. Рабочее оборудование - преимущественно - обратная лопата. Выпускаются экскаваторы с телескопической стрелой и поворотным ковшом, позволяющим оперативно переходить от прямой лопаты к обратной. Для привода может использоваться как двигатель базового автомобиля, так и отдельный двигатель, установленный на поворотной платформе.

Пневмоколёсные экскаваторы имеют собственное специальное шасси, опирающееся на колёса с пневматическими шинами. Выполняются чаще всего полноповоротными. Для повышения устойчивости и предотвращения сползания при загрузке ковша имеют выносные опоры. Имеют скорость хода до 30 км/ч. Могут буксироваться грузовыми автомобилями со скоростью до 40 км/ч. Проходимость по слабым грунтам ограниченная. Выпускаются в широком диапазоне размерных групп - от микроэкскаваторов с объёмом ковша 0,04 мі до тяжёлых колёсных экскаваторов - с объёмом ковша до 1,5 мі. В связи со спецификой выполняемых работ: разработка котлованов, траншей, планировочные работы - рабочее оборудование - преимущественно обратная лопата. Могут использоваться с грейфером, челюстным захватом, гидравлическим молотом для рыхления грунта. Получили широкое распространение при выполнении различных видов строительных и ремонтных работ.

Привод колёс шасси может осуществляться как от двигателя рабочего оборудования через механические или гидравлические передачи (гидромоторы), так и от отдельного двигателя.

Гусеничные экскаваторы имеют собственное специальное шасси с гусеничным движителем. Выполняются полноповоротными. Обладают высокой проходимостью и малым удельным давлением на грунт при большой массе. Могут работать на слабых и переувлажнённых грунтах, в том числе на торфоразработках. Имеют скорость хода 2-15 км/ч. К месту работ перевозятся тягачами на специальных прицепах.

Рабочий диапазон объёмов ковша весьма широк: от миниэкскаваторов с объёмом ковша 0,04 мі до карьерных с объёмом ковша 10 мі. Имеются также особо тяжёлые карьерные гусеничные экскаваторы с объёмом ковша 26 мі производства фирмы DEMAG (Германия).

Рабочее оборудование: прямая лопата, обратная лопата, драглайн. Может использоваться с грейфером, челюстным захватом, гидравлическим молотом для рыхления грунта. Получили широкое распространение в строительстве и при добыче полезных ископаемых. Ряд моделей гусеничных и пневмоколёсных экскаваторов имеют унифицированную поворотную платформу и рабочее оборудование.

Поворотная платформа с оборудованием шагающего экскаватора установлена на опорной плите. С поворотной платформой связаны лапы, которые при работе экскаватора подняты (не касаются грунта). При передвижении экскаватора лапы опираются на грунт. При этом опорная плита отрывается от грунта. Экскаватор передвигается на один шаг вперед (для некоторых моделей возможно движение назад). После этого лапы поднимаются и возвращаются в исходное положение. На шагающем ходу выпускают крупные карьерные экскаваторы с объёмом ковша 15 мі-40 мі и вылетом стрелы до 65 м-150 м. Рабочее оборудование - драглайн. Шагающими экскаваторами выполняются вскрышные работы (расчистка залежей полезных ископаемых от пустой породы), а также добыча полезных ископаемых и перемещение их в отвал (высотой до 40м). Погрузка полезных ископаемых шагающими экскаваторами в транспортные средства осуществляться не может.

В качестве шасси экскаватора так же используется железнодорожная платформа. Применяются для ремонтных работ на железной дороге. Имеют объём ковша до 4 мі. Поворотная платформа и оборудование часто унифицировано с гусеничными экскаваторами.

Рабочее оборудование (драглайн или грейферное) установлено на понтоне. Применяются для погрузочно-разгрузочных работ, добычи песка, гравия из водоемов, дноочистительных и дноуглубительных работ. От плавучих кранов, оборудованных грейферами, плавучие экскаваторы отличаются меньшей высотой и упрощённой конструкцией стрелы.

С групповым механическим канатным приводом. Тяговое усилие к рабочим органам передаётся посредством канатов (или цепей), движимых лебёдками. Привод лебёдок осуществляется от двигателя экскаватора посредством механических передач (зубчатых, цепных, фрикционных, червячных).

Универсальный экскаватор с механическим приводом оборудуется трехбарабанной лебёдкой. Стреловой барабан лебёдки используется для привода (подъёма и опускания) стрелы. Подъёмный барабан используется для подъёма ковша (или возврата рукояти при работе обратной лопатой). Тяговый барабан используется для подтягивания ковша к экскаватору (при работе драглайном, обратной лопатой). При работе прямой лопатой тяговый барабан связан с механизмом напора рукояти.

Механический канатный привод широко применялся на экскаваторах в прошлом. В современных моделях его применение сокращается по следующим причинам:

• экскаваторы с механическим канатным приводом имеют сложную конструкцию и содержат большое число быстроизнашивающихся изделий (накладки фрикционов, ленты тормозов, канаты).

• канатный привод обеспечивает ограниченное число независимых перемещений элементов рабочего оборудования;

• канатный привод технически сложно сделать автоматизированным;

• канатный привод не обеспечивает полной фиксации элементов рабочего оборудования в заданном положении.

На современных моделях канатный механический привод применяется только для драглайна или грейфера.

Тяговое усилие к рабочим органам передаётся посредством канатов (или цепей), движимых лебёдками. Привод каждой лебёдки и вспомогательных механизмов осуществляется индивидуальным электрическим двигателем. Такой привод применяется на тяжёлых карьерных (в том числе и шагающих) и промышленных экскаваторах.

В экскаваторах с гидравлическим приводом (гидравлические экскаваторы) усилие на элементах рабочего оборудования создается гидроцилиндрами и гидродвигателями. Двигатель экскаватора приводит во вращение гидравлический насос, создающий давление рабочей жидкости в напорной магистрали гидросистемы. Через систему гидрораспределителей полости гидроцилиндров (гидродвигателей) соединяются с рабочей или сливной магистралями гидросистемы, что обеспечивает перемещение рабочего оборудования. В нейтральном положении (при запертых полостях гидроцилиндров) положение рабочего оборудования фиксируется. Для транспортировки экскаватора с помощью буксира предусмотрена возможность перевода гидроцилиндра стрелы и гидромотора механизма поворота в нейтральный транспортный ("плавающий") режим.

В настоящее время гидравлические экскаваторы имеют преимущественное распространение.

Прямая лопата - основное рабочее оборудование для разработки (копания) грунта выше уровня стоянки экскаватора. Ковш прямой лопаты закреплен на рукояти. Рукоять в свою очередь шарнирно закреплена на стреле. Стрела шарнирно закреплена на поворотной платформе машины. У гидравлических экскаваторов ковш на рукояти закреплён подвижно - разгрузка ковша обеспечивается его опрокидыванием с помощью гидроцилиндра. У механических экскаваторов положение ковша относительно рукояти в процессе работы не меняется - разгрузка ковша выполняется при открывании его днища. Копают грунт в направлении от экскаватора. Прямая лопата обеспечивает наибольшее усилие копания и наибольшую производительность (за счёт минимального количества операций в одном цикле копания). Применяется для добычи полезных ископаемых и погрузочных работ.

Обратная лопата - основное рабочее оборудование для разработки (копания) грунта ниже уровня стоянки экскаватора. Применяется при копании котлованов, траншей, при планировании откосов и отсыпке насыпей. Может применяться для погрузочных работ. При работе обратной лопатой грунт копают в направлении к экскаватору. Гидравлические экскаваторы с обратной лопатой могут разрабатывать грунт и выше уровня своей стоянки, правда с меньшей эффективностью чем прямая лопата.

Экскаваторы с ротатором ковша. Ряд моделей экскаваторов, например UDS-114 (производства Чехословакии), оснащается устройством переворота ковша (ротатором), позволяющим оперативно переходить из режима прямой лопаты в режим обратной лопаты.

Разновидность обратной лопаты, предназначенной для планирования откосов в дорожном, мелиоративном и ландшафтном строительстве. Планировщик откосов обеспечивает перемещение режущей кромки ковша относительно грунта по прямой, направленной под заданным углом к горизонту. Для этого на гидравлический экскаватор устанавливается система автоматизированная управления (гидравлическая или электронная), обеспечивающая согласованное движение стрелы, рукояти и ковша. В качестве планировщика откосов нашли применение экскаваторы с телескопической стрелой.

Драглайн - рабочее оборудование с ковшом, гибко подвешенным на канатах. Применяется для разработки грунта ниже уровня стоянки экскаватора. Грунт копают в направлении к экскаватору. Применяется при разработке котлованов, отсыпки насыпей, добычи полезных ископаемых, дноуглубительных работ на водоёмах.

Цепные траншейные экскаваторы выпускаются на базе пневмоколесных и гусеничных тракторов и оснащаются одноцепным (ЭТЦ-1609) и двухцепным (ЭТЦ-252М) скребковыми рабочими органами для разработки не мерзлых грунтов.

.3 Устройство и принцип действия цепного траншейного экскаватора

Рисунок. 1. - Схема действия цепного траншейного экскаватора.

Агрегат траншейный АТ-00.00.000 и АТМ предназначен для прорезки щелей с шириной 140, 280, 400 мм в грунтах с крепостью f<3ед. по шкале твердости проф. Протодъяконова; для разрыхления мерзлых и твердых грунтов при проведении различных земляных работ; прорезки траншей для укладки линий связи и электросиловых кабелей, трубопроводов и прочих коммуникаций; работ по резке известняков и песчаников; при подготовке строительных площадок.

Агрегат траншейный АТ 00.00.000 с шириной прорезаемой щели H=140мм;

Агрегат траншейный АТ 00.00.000-01 с шириной прорезаемой щели H=280мм;

Агрегат траншейный АТМ с шириной прорезаемой щели H=280 мм;

Агрегат траншейный АТМ с шириной прорезаемой щели H=400 мм; [2].

2. Обзор зарубежных и отечественных аналогов

.1 ФГУП "Дмитровский экскаваторный завод"

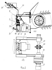
Экскаватор ЭТЦ-1609 (рис. 2) на базе колесного трактора МТЗ-82.1 предназначен для рытья траншей прямоугольного профиля глубиной до 1,6 м и шириной 0,2-0,4 м в однородных без каменистых включений грунтах I-III категорий под укладку кабелей различного назначения и трубопроводов малых диаметров. Наиболее эффективно экскаватор используется при выполнении рассредоточенных земляных работ небольшого объема на предварительно спланированных площадках. Экскаватор оснащен поворотным гидроуправляемым бульдозерным отвалом 11 для несложных планировочных работ и засыпки траншей после укладки в них коммуникаций. На экскаватор может быть навешено сменное буровое оборудование (вместо основного рабочего) для нарезания щелей шириной 0,14 м и глубиной до 1,3 м в мерзлых грунтах.

В комплект навесного экскаваторного оборудования входят: цепной рабочий орган с зачистными башмаком и отвальным винтовым конвейером, механизм подъема-опускания рабочего органа и гидромеханический ходоуменьшитель. Однорядная втулочно-роликовая цепь 6 рабочего органа установлена на ведущей 12 и ведомой 14 звездочках и несет на себе сменные резцы 17-19 для послойного срезания грунта и сменные скребки 16 для подъема грунта из траншеи. Резцы и скребки располагаются на цепи по определенной схеме, способствующей равномерному распределению нагрузки на цепь при копании и повышению долговечности цепи. Производя смену резцов и скребков, получают траншеи различной ширины (0,2; 0,27 и 0,4 м). Цепь обегает наклонную раму 4, шарнирно прикрепляемую сзади к базовому трактору, и опирается на ролики 13. Ведущая звездочка 12 цепи, закрепленная на приводном валу 2, получает вращение от вала отбора мощности базового трактора 10 через трехступенчатый редуктор 8 с переменным передаточным числом, обеспечивающим четыре рабочие скорости (0,8-2,1 м/с) и реверсивный ход цепи. В редукторе привода цепи установлена предохранительная фрикционная муфта предельного момента. Натяжение цепи регулируется перемещением натяжной звездочки 14 относительно рамы винтовым натяжным устройством 15. Скребки выносят из траншеи грунт в направлении ведущей звездочки, образуя первоначальный отвал в виде пирамиды. Эвакуацию грунта в боковые отвалы производят два шнека 7 винтового конвейера, установленного на раме рабочего органа. Шнеки имеют общий вал и приводятся во вращение скребковой цепью. Положение конвейера относительно рамы меняется в зависимости от глубины копания. К дополнительной раме 3 рабочего органа за скребковой цепью крепится сменный консольный зачистной башмак 5 для зачистки и сглаживания дна траншеи.

Рисунок 2. Траншейный экскаватор ЭТЦ-1609: а - общий вид; б - схема рабочего органа; в - рабочие цепи: l - универсальная (для талых и мерзлых грунтов); ll - для талых грунтов

Заглубление рабочего органа в грунт с принудительным напором по всему диапазону глубины копания, а также его подъем при переводе в транспортное положение осуществляются гидравлическим подъемным механизмом 1, гидроцилиндр которого связан с рабочим органом рычажной системой. Для получения пониженных рабочих скоростей движения машины при копании траншей и их бесступенчатого регулирования в широком диапазоне 20-800 м/ч в трансмиссию базового трактора включен гидромеханический ходоуменьшитель 9 в виде многоступенчатого цилиндрического редуктора с приводом от аксиально-поршневого гидромотора. При транспортных переездах машины ходоуменьшитель отключается. Гидромотор ходоуменьшителя, гидроцилиндры механизма подъема рабочего органа и управления отвалом бульдозера обслуживаются гидронасосами с приводом от дизеля через редуктор, а управление ими ведется из кабины машиниста с помощью двух золотниковых распределителей.

.2 ФГУП "Дмитровский экскаваторный завод"

Рисунок 3. Экскаватор траншейный цепной этц-201г (гидравлический)

ЭТЦ-201Г на базе трактора "Беларус" МТЗ-1221 и имеет следующие преимущества перед экскаватором с механическим приводом:

увеличение производительности на 30-50% в зависимости от грунта,

повышается эксплуатационная надёжность и долговечность,

предохранение от превышающих моментов осуществляется гидравлически, что позволяет отказаться от предохранительных муфт и значительно снижает нагрузку на вал отбора мощности, мотор и редуктор,

бесступенчатая плавная регулировка скоростей вращения режущей цепи,

возможность включения реверсивного вращения, что немаловажно при попадании в режущую цепь посторонних предметов,

уменьшаются затраты на обслуживание.

Таблица 1. технические характеристики ЭТЦ-201Г

Технические характеристики

Привод копающей цепи

гидростатический: насос НПА-112 (регулируемый); V=112 см3/об; гидромотор МПА-112, V=112 см3/об

Скорость цепи м/с

Размеры траншей:

 

Глубина (наибольшая) ,м

2,0

Ширина, м

0,25 , 0,4;

Диапазон скоростей гидрохода

10-800

Механизм подъёма рабочего органа

гидравлический

Базовый трактор:

МТЗ-1221 "Беларус"

Мощность двигателя кВт (л.с.)

95,6 (130)

Параметры бульдозерного оборудования:

 

ширина отвала, мм

2500

высота отвала, мм

625

угол поворота отвал, град

45

Габаритные размеры в транспортном положении, мм:

 

длина

8150

ширина

2500

высота

3180

Масса экскаватора, кг

8600


.3 ООО "ДорЭлекроМарш"

Экскаватор ЭЦУ-150 с летним рабочим органом.

Предназначен для прокладки газо- и водопроводов, сетей канализации, связи и электропередачи и позволяет производить быструю смену режущего органа для получения траншей разной ширины, используется на разных категориях грунта.

Передняя навеска: Бульдозер-погрузчик, поворотный бульдозерный или жёсткий бульдозерный отвал.

Рисунок 4. Экскаватор цепной универсальный ЭЦУ 150

Таблица 2. Основные характеристики.

Базовый трактор

"Беларус 92П", Беларус 80.1" и его модификации

Редуктор

2-х скоростной; реверс

Привод рабочего органа

от заднего ВОМ

Глубина копания, мм

1600, 1900 (геометрическая)

Тип рабочего органа

цепной скребковый

Ширина копания, мм

210; 270; 410


Таблица 3. Габаритные размеры

длина

7150, в транспортном положении……5650

ширина

2100

высота

2765, в транспортном положении……2900

Вес, кг

5170



3. Патенто аналитический обзор

Из уровня техники известны различные конструкции цепных экскаваторов и гидравлических систем управления рабочим оборудованием.

Так, например, известно рабочее оборудование (патент на полезную модель RU 117465).

Полезная модель поясняется чертежами, где на рис.5 показан предлагаемый экскаватор с рабочим органом; на рис. 6 - то же, вид сверху, рис.7 - гидроцилиндр прижима.

Рисунок 5. Предлагаемый экскаватор с рабочим органом.

Рисунок 6. Предлагаемый экскаватор с рабочим органом вид сверзу.

Рисунок 7. Гидроцилиндр прижима.

Привод рабочего органа 6 осуществляется от двигателя трактора 1.

Кроме того, для исключения зазоров, вызывающих вибрации в процессе работы рабочего органа 6, экскаватор снабжен гидроцилиндром 19, предназначенным для прижима корпуса 18 привода поперечного перемещения рабочего органа 6 к раме 2. На корпус 18 крепится болтами гидроцилиндр 19, шток 20 которого проходит между нижними направляющими 5, на резьбовом конце штока 20 установлена задняя пята 21.

После перемещения рабочего органа 6 в поперечном направлении гидроцилиндром 7, например, из положения I в положение II (рис.6) при подаче гидравлической жидкости от гидронасоса в гидромотор ходоуменьшителя (не показаны) (при рабочем движении) одновременно жидкость поступает в подпоршневую полость гидроцилиндра 19. При ходе штока 20 происходит прижатие направляющих 5 к корпусу 18. Таким образом, происходит фиксация рабочего органа 6 с ликвидацией зазоров в направляющих 5. При выключении ходоуменьшителя жидкость прекращает поступать в гидроцилиндр 19 и пружина 22 (рис. 7) освобождает направляющие 5 от фиксации, рабочий орган 6 может быть вновь перемещен в другое положение.

Предлагаемый экскаватор может осуществлять копание траншей любого назначения вблизи фундаментов зданий, а также вблизи других объектов. [5]

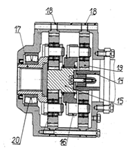
Также из уровня техники известна конструкция объемного гидропривода цепного рабочего органа цепного траншейного экскаватора (патент на полезную модель RU 91076).

Полезная модель поясняется чертежами, где на рис.8 изображена связь элементов гидросистемы; на рис. 9 (а, б) - привод рабочего органа; на рис.10 - продольное сечение планетарного редуктора.

Рисунок 8. Связь элементов гидросистемы.

Рисунок 8. (а, б) - привод рабочего органа

Рисунок 9. Продольное сечение планетарного редуктора.

Объемный гидропривод цепи рабочего органа цепного траншейного экскаватора содержит последовательно соединенные между собой посредством рукавов 1 высокого давления (РВД) гидробак 2, фильтр 3, регулируемый гидронасос 4, выполненный реверсивным аксиально-поршневым, гидромотор 5 и соединенные с гидробаком 2 охладители 6 гидросистемы, расположенные впереди водяных радиаторов (не показаны) экскаватора с целью обдува вентилятором двигателя.

На корпусе заднего моста 7 экскаватора с помощью шпилек 8 и стяжек 9 установлен сварной корпус 10, внутри которого расположен повышающий редуктор 11, который в свою очередь установлен на валу 12 отбора мощности экскаватора и кинематически связан с гидронасосом 4 с целью увеличения оборотов гидронасоса 4 и получения его максимальной производительности. Кроме того, на торце корпуса установлен планетарный двухступенчатый редуктор 13, кинематически связанный с гидромотором 5, служащий для увеличения его крутящего момента и содержащий две солнечные шестерни 14 и 15, первая из которых установлена на валу гидромотора 5, двух водил 16 и 17, двух одинаковых коронных шестерен 18 и шести сателлитов 19, вращающихся на роликоподшипниках 20, установленных на осях водил 16 и 17. В корпусе 10 также установлен ведущий вал 21 рабочего органа с закрепленной на нем звездочкой 22 привода цепи.

Объемный гидропривод работает следующим образом: двигатель экскаватора через вал 12 отбора мощности и повышающий редуктор 11 приводит во вращение гидронасос 4, который всасывает рабочую жидкость из гидробака 2 через фильтр 3 и рукав 1 высокого давления, а затем подает ее в гидромотор 5 и приводит во вращение вал гидромотора 5 и установленную на нем солнечную шестерню 14 редуктора 13, которая передает вращение через сателлиты 19 на водило 16, соединенное шлицами с солнечной шестерней 15. Вращение от солнечной шестерни 15 передается через второй ряд сателлитов 19 водилу 17 и валу 21 рабочего органа, при этом коронные шестерни 18 остаются неподвижными.

Передаточное отношение редуктора 11 привода гидронасоса (i=0,5) и передаточное отношение планетарного редуктора 13 (i=24,4) подобраны оптимально для получения максимальной производительности гидронасоса 4 и максимального крутящего момента на ведущем валу 21 цепи экскаватора. Таким образом, при минимальных габаритах гидронасоса 4 и гидромотора 5 достигается крутящий момент на ведущей звездочке 800 кгм, равный моменту серийно выпускаемых экскаваторов с механическим приводом.

Регулировка производительности гидронасоса 4 осуществляется рычагом 23, который соединен посредством тяги 24 с рукояткой 25. При движении рукоятки 25 вперед из нейтрального положения обороты гидронасоса 4 и ведущего вала 21 увеличиваются пропорционально перемещению рукоятки 25, при движении рукоятки 25 назад через нейтраль вал 21 начинает вращаться в обратную сторону.

Для предохранения гидравлической системы от перегрузок при попадании в цепь посторонних предметов в гидросистеме предусмотрены два предохранительных клапана 26, настройка которых производится на момент меньший, чем может передать без буксования вал 12 отбора мощности экскаватора. Регулировка предохранительных клапанов обеспечивает долговечную работу привода вала 12 отбора мощности экскаватора.

Благодаря такому выполнению полезной модели достигается:

упрощение и минимизация размеров гидросистемы;

снижение затрат на изготовление гидросистемы;

повышение надежности за счет отсутствия в приводе дросселирующих гидрораспределителей и уменьшение количества разъемных соединений;

высокий КПД;

бесступенчатое регулирование скорости, обеспечение реверса цепи рабочего органа и момента на ведущей звездочке 22;

низкие затраты на монтаж и обслуживание. [5].

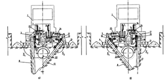
Также из уровня техники известны конструкции выполнения траншейного экскаватора для вскрытия и подкопа трубопроводов (Патент на полезную модель ru №53317).

Задача полезной модели состоит в повышении производительности комплекса машин для капитального ремонта трубопроводов путем сокращения технологических операций и землеройной техники.

На рис.10 изображена предлагаемая машина при работе, вид сзади. На рис. 11 и рис.12 изображены варианты положения рабочих органов при работе машины. [5].

Рисунок 10. Рабочее оборудование обратной лопаты.

Рисунок 11. изображены варианты положения рабочих органов при работе машины

Рисунок 12. Изображены варианты положения рабочих органов при работе машины.

Машина для вскрытия трубопроводов (рис. 10) содержит базовое шасси 1, в качестве которого может быть применена стандартная тракторная база, левое и правое рабочее оборудование, а также устройство для контроля положения левого и правого рабочих органов.

Левое рабочее оборудование содержит левую раму 2, левый рабочий орган 3, левый эвакуатор грунта 4. Левая рама 2 представляет собой телескопическую балку, которая может изменять свою длину посредством гидроцилиндра 5, а также перемещаться вверх и вниз по направляющим 6, закрепленным на базовой машине, при помощи гидроцилиндра 7. На ней установлен левый рабочий орган 3, который содержит цепную секцию 8, силовой привод ее для подъема и опускания, а также удержания в рабочих и транспортном положениях, выполненный в виде гидроцилиндра 9 и привод левого рабочего органа, представляющий собой гидродвигатель 10. Левый эвакуатор грунта 4 представляет собой шнековый отвальный конвейер, имеющий привод от гидромотора.

Правое рабочее оборудование включает в себя правую раму 11, правый рабочий орган 12, правый эвакуатор грунта 13. Правая рама выполнена в виде телескопической балки с возможностью изменения длины при помощи гидроцилиндра 14. Также она может перемещаться вверх и вниз по направляющим 15, закрепленным на базовой машине, посредством гидроцилиндра 16. На ней установлен правый рабочий орган, который включает в себя цепную секцию 17, силовой привод для ее подъема и опускания, а также удержания в рабочих и транспортном положениях, выполненный в виде гидроцилиндра 18 и привод правого рабочего органа представляющий собой гидродвигатель 19. Правый эвакуатор грунта 13 представляет собой шнековый отвальный конвейер, имеющий привод от гидромотора.

Устройство для контроля положения левого и правого рабочих органов включает в себя копирное устройство 20, гидроцилиндр 21. Копирное устройство 20 выполнено в виде опоры на трубопровод 22 с возможностью поворотов в горизонтальной и вертикальной плоскостях. В зависимости от диаметра трубопровода копирное устройство может быть сменным и в зависимости от характера производимых работ может состоять из двух секторов.

Левый рабочий орган 3 и правый рабочий орган 12 (рис. 11, рис. 12) при помощи поворотных механизмов 23 и 24 могут изменять угол наклона рабочих органов 1 и 2 относительно поверхности земли.

Работает машина для вскрытия трубопроводов следующим образом (рис.10) Машина перед началом работы становится в предварительно разработанный машиной послойной разработки приямок. Вручную отрывают котлован размером 4Ч3 м для определения точного местоположения тела трубы. Рабочий орган посредством гидроцилиндров 7, 16 опускают на необходимую глубину. В зависимости от диаметра трубопровода при помощи гидроцилиндров 5, 14 выбирают необходимое положение левого 3 и правого 12 рабочих органов, причем оно может быть различным относительно поверхности земли. При помощи гидроцилиндров 9, 18 цепные секции 8 и 17 опускают в котлован по обе стороны трубопровода 22 и фиксируют в рабочем положении. После этого при помощи гидроцилиндров 23 и 24 левый 3 и правый 12 рабочие органы заводят с боков трубопровода и устанавливают каждый под своим углом и в этом положении фиксируют. Копирное устройство 20 при помощи гидроцилиндра 21 приводится в контакт с трубопроводом. Таким образом рабочий орган приводится в рабочее положение. При работе машины цепными секциями 8 и 17 разрабатывается и выбрасывается грунт с боков и из-под трубопровода 22 на дневную поверхность, откуда транспортируется посредством отвальных шнеков 4, 13. По мере продвижения машины, оставшийся на трубопроводе 22 грунт сбрасывается с верхней части наружной поверхности трубопровода 22 при помощи копирного устройства 20, а с нижней части наружной поверхности трубопровода 22 обрушается под действием собственного веса и удаляется цепными секциями 8 и 17.

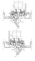
Также из уровня техники известны конструкции выполнения гидропривода многоковшового экскаватора (патент на полезную модель RU 51640).

Полезная модель поясняется чертежом, на рис.13 которого схематично изображен траншейный цепной экскаватор (вид сбоку); на рис.14 - скребок.

Рисунок 13. Схема траншейный цепной экскаватор (вид сбоку)

Рисунок 14. Скребок

Изображенный на рис.13 экскаватор состоит из транспортного средства 1, в качестве которого использован колесный трактор МТЗ-1221, имеющий увеличенную по сравнению с трактором МТЗ-82 мощность.

Необходимую скорость рабочего перемещения транспортного средства экскаватора обеспечивает гидроходоуменьшитель 2.

За кабиной трактора с задней его стороны установлен рабочий орган в виде транспортера, включающий приводной механизм 3, вокруг ведущей оси которого под действием пары гидроцилиндров 4 может поворачиваться вниз (в рабочее положение) и вверх (в транспортное положение) рама 5. Последняя снабжена ведущим 3 и ведомым 6 колесами и опорными роликами 7, на которые опирается цепная лента 8 с закрепленными на ней скребками 9.

Каждый скребок 9 (рис. 14) выполнен с углом резания =6ч10°, a ширина цепной ленты достигает в среднем 420 мм.

Наибольшая высота скребка составляет 95±1 мм, а его ширина 185±2 мм.

В сливной магистрали гидросистемы экскаватора установлен радиатор охлаждения рабочей жидкости, устраняющий ее перегрев. Применение предложенной конструкции обеспечивает, повышение производительности и ресурса работы экскаватора. [5].

Также из уровня техники известно конструктивное выполнение экскаватора в целом и его составных частей, как средство производства. (патент на полезную модель ru 42236).

Полезная модель поясняется чертежом рис.15, на котором изображен экскаватор траншейный цепной.

Рисунок 15. Экскаватор траншейный цепной.

Конструкция экскаватора изображена на рис.15, рама 6 опирается на две гусеничные тележки 5 через специальные рычаги, в результате, тележки имеют возможность поворачиваться вокруг своих продольных осей.

На раме 6 установлены: силовой агрегат 7, рабочий орган 2 с приводом 3, транспортер 4. С правой стороны экскаватора, на специальном кронштейне расположена кабина 1, выполненная в виде отдельного блока и установлена на амортизаторах.

В заявленном конструктивном решении недостатки устраняются путем:

введения дополнительного поперечного транспортера 4, расположенного между кабиной 1 и силовым агрегатом 7. Транспортер выполнен в виде рамы с двумя барабанами, один приводится в движение гидромотором и приводит в движение транспортерную ленту.

введения системы стабилизации рабочего органа, которая представляет собой электронный блок с двумя датчиками высоты, гидравлические распределители и гидроцилиндры.

исполнения рамы 6, шарнирно соединенной рычагами с гусеничными тележками 5, имеющими возможность поворачиваться вокруг осей вращения.

выполнения кабины, как существенный признак полезной модели, в виде отдельного блока, расположенного сбоку машины и установки ее на амортизаторы. Кабина 1 остеклена со всех сторон, что позволяет следить за копанием траншеи и наблюдать за движением машины вперед. Специальные амортизаторы кабины гасят вибрацию, создавая более комфортные условия оператору.

Экскаватор работает следующим образом: включается привод цепи рабочего органа, и рабочий орган плавно опускается на грунт с постепенным заглублением, включается привод транспортера. После достижения необходимой глубины копания, экскаватор начинает движение, в результате грунт выносится цепью рабочего органа на транспортер, который выбрасывает его вправо или влево, в зависимости от условий работы. При движении экскаватора по неровной поверхности включается система стабилизации рабочего органа, который всегда поддерживается в вертикальном положении.

В результате работы, экскаватор копает траншею нужной глубины и ширины.

4. Предлагаемые технические решения

В рассмотренных конструкций большое внимание уделяется увеличению производительности, снижению энергоемкости процесса резания грунта, уменьшение размеров гидропривода, универсальности рабочего оборудования для снижения простоев техники и снижению стоимости рабочего цикла цепного экскаватора.

Из всех конструкций наиболее выгодным и конструктивно удобным является: конструкция предлагаемая в полезной модели. Заявленные решения снижают затраты на изготовление и эксплуатацию за счет повышенной надежности и ремонтопригодности, а также повышает конкурентоспособность машины.

Экскаватор, содержащий раму, кабину, гусеничные тележки, силовой агрегат, рабочий орган, отличающийся тем, что он дополнительно содержит поперечный транспортер, снабжен системой стабилизации рабочего органа, выполненной в виде электронного блока, управляющего электрогидрораспределителями, и гидроцилиндров, рама шарнирно соединена рычагами с гусеничными тележками, имеющими возможность поворачиваться вокруг осей вращения, кабина выполнена в виде отдельного блока, расположенного сбоку машины и устанавливается на амортизатора (патент на полезную модель RU 42236).

Выводы

Данные идеи можно применять к базовым машинам на гусеничном ходу для увеличения производительности цепного экскаватора за счет изменения угла резания. Это позволит разрабатывать грунты с I по III категории под оптимальным углом, что позволит снизить энергоемкость процесса разрушения грунта. А так же заявленные решения снижают затраты на изготовление и эксплуатацию за счет повышенной надежности и ремонтопригодности.

Список используемых источников

1.      Строительная энциклопедия. Точка доступа: bibliotekar.ru

.        Горная энциклопедия. Точка доступа: http://www.mining-enc.ru/c/cepnoj-ekskavator

3.      Официальный сайт компании ФГУП "Дмитровский экскаваторный завод". Точка доступа: www.dmitrex.ru/ <http://www.dmitrex.ru/>

.        Официальный сайт компании Дорэлектромаш. Точка доступа: www.beldem.ru

.        Федеральный институт промышленной собственности. Точка доступа: www1.fips.ru

Похожие работы на - Конструкции цепного экскаватора

 

Не нашли материал для своей работы?
Поможем написать уникальную работу
Без плагиата!
Без нейросетей!