Технология переработки мяса и мясных продуктов
Министерство
сельского хозяйства Российской Федерации
Федеральное
государственное учреждение
высшего
профессионального образования
Пермская
государственная сельскохозяйственная академия
имени
академика Д.Н. Прянишникова
Учебно-методическое
пособие
Технология
переработки мяса и мясных продуктов
Пермь 2007
Учебно-методическое пособие для студентов специальности 110305
"Технология производства и переработки сельскохозяйственной
продукции" разработано в соответствии с программой дисциплины
"Технология переработки, хранения и стандартизации продукции
животноводства" старшим преподавателем кафедры "Технологическое
оборудование в животноводстве" Н.В. Трутневым.
Пособие может быть использовано студентами инженерного и факультета
технического сервиса при выполнении курсовых и дипломных проектов.
предприятие мясо продукция оборудование
Содержание
Введение
1. Основные
сведения о курсовом проектировании
2. Классификация предприятий по переработке мяса и мясопродуктов
3. Генеральный
план проектируемого предприятия
3.1
Технико-экономические показатели генерального плана
.2 Здания и сооружения, размещаемые на
генеральном плане предприятий мясной промышленности
.3 Основные размеры зданий и сооружений
4. Методика технологического проектирования
4.1 Технологическая
схема производства
.2 Расчет
исходных данных
.2.1 Обоснование ассортимента
вырабатываемой продукции
.2.2 Расчет
сырья и готовой продукции
.2.3 Расчет
вспомогательных материалов и тары
.3 Расчет
технологического оборудования
.4. Расчет
рабочей силы
.5 Расчет
площадей
.6 Расчет расхода вода, пара, холода,
воздуха, электроэнергии и газа на технологические цели
5. Принципы
расстановки оборудования
6. Технологические расчеты
7. Расчет
технологического оборудования и машин
7.1 Расчет
оборудования для убоя скота и разделки туш
.2 Расчет
оборудования для съемки и обработки шкур
.3 Расчет
оборудования для съема щетины и волоса
.4 Общие
методы расчета резательных машин
.5 Расчет
смесителей
.6 Расчет
подачи и мощности шприцев
8. Расчет экономической эффективности
8.1 Расчет экономической эффективности
реконструкции предприятий
.2 Расчет экономической эффективности
конструирования и модернизации машин и оборудования
.3 Расчет экономической эффективности
внедрения нового оборудования
Дополнительная литература
Приложения
Введение
Мясная промышленность является одной из крупнейших отраслей пищевой
промышленности, она призвана обеспечивать поселение пищевыми продуктами,
являющимися основным источником белков. Предприятия мясной промышленности
постоянно оснащаются современным оборудованием, поточными механизированными
линиями, осваивают производство новых видов продукции.
Методы проектирования мясоперерабатывающих предприятий имеют свои
специфические особенности, свойственные сырью, технологическому процессу его обработки
и ассортименту выпускаемой продукции.
При проектировании необходимо:
учитывать максимальное использование сырья для выпуска широкого
ассортимента разнообразной продукции;
предусмотреть возможности специализация и концентрации производства, его
перспективного развития;
принять такой технологический процесс, который обеспечит высокое качество
продукции при низкой себестоимости ее производства;
учитывать соответствие запроектированного технологического оборудования,
выбранных объемно-планировочных решений производственных помещений, компоновки
генерального плана, организации производства принятому производственному
процессу и прогнозировать улучшение условий труда, техники безопасности и
санитарно-гигиенического уровня предприятия;
предусмотреть максимальную механизацию и автоматизацию управления
производственным процессом;
использовать современные достижения пауки и техники.
Мясная промышленность тесно связана с важнейшей отраслью сельского
хозяйства - животноводством. Уровень развития животноводства влияет на темпы и
уровень материальных затрат при производстве мясной продукции, поэтому
необходимо обеспечить без потерь прием и переработку скота, правильное
размещение убойных пунктов, хладобоен и перерабатывающих предприятий.
В мелких населенных пунктах, где потребность в мясе обеспечивается за
счет выращивания и откорма окота в частном секторе, следует строить убойные
пункты и небольшие колбасные цеха, рассчитанные на удовлетворение местных
потребностей и насыщение рынка.
1. Основные
сведения о курсовом проектировании
Курсовое проектирование является частью учебного процесса.
Цель курсового проектирования - закрепление знаний, полученных студентом
за время изучения теоретического материала, применение этих знаний при решении
конкретной технической задачи и приобретение начальных навыков проектирования.
Разрабатывая курсовой проект, студент впервые решает основные вопросы
технологии, устанавливает взаимосвязь отдельных операций в общем
технологическом процессе производства, применяет на практике принципы расчета
основного технологического оборудования, разрабатывает или совершенствует
конструкции машины, рассчитывает ее основные конструктивно-технологические
параметры, определяет потребность в рабочей силе, последовательно излагает
принятые в проекте решения, и на основе расчетов проектирует (в зависимости от
темы задания) цех (отделение), производство, поточную технологическую линию или
отдельную машину.
Курсовой проект должен показать способность студента к самостоятельному
решению технических вопросов и принятию правильных объемно-планировочных
решений.
Курсовой проект по специализации является первой самостоятельной работой
студента по проектированию и служит подготовкой для последующего выполнения
дипломного проекта.
Курсовой проект по специализации выполняют на основании изучения
дисциплин: "Детали машин", "Механизация погрузочно-разгрузочных,
транспортных и складских работ", "Технология машиностроения",
"Теплотехника и применение тепла", "Процессы и аппараты",
"Технология отрасли", "Технологическое оборудование
отрасли".
Темы курсовых проектов должны отражать специфику проектируемого
производства, быть строго индивидуальными, но одинаковой степени сложности.
Темой курсового проекта может быть проект одного - двух цехов (отделений)
мясожирового производства, холодильника и колбасного производства
мясокомбинатов различной мощности с разработкой или совершенствованием
конструкции машины. Кроме того, темой курсового проекта может быть только
разработка или совершенствование конструкции машины (технологического
оборудования), ее узлов и деталей.
Для студентов, принимающих участие в научно-исследовательской работе по
тематике кафедры, кафедра может утвердить в качестве курсового проекта работу
научно-исследовательского характера по теме "Проведение экспериментальных
исследовании по совершенствованию конструктивно-технологических параметров
машин и оборудования по переработке мяса и мясопродуктов".
Основанием для выполнения курсовых проектов является задание, которое
выдают студенту на кафедре. В нем указывают тему проекта, основные исходные
данные к объем графической части.
Курсовой проект состоит из расчетно-пояснительной записки и графического
материала.
Расчетно-пояснительная записка:
оформляется в соответствии со стандартом предприятия;
должна иметь объем 38 или более листов формата А4 (210 х 297 мм) и
оформлена согласно требованиям, установленными ГОСТ 2105-79 "Общие
требования к текстовым документам".
Записка состоит из расчетной и описательной частей с таблицами, схемами,
рисунками и графиками. Основные разделы расчетно-пояснительной записки и их
объем приведены ниже:
|
Раздел
|
Количество страниц
|
|
Титульный лист
|
1
|
|
Задание на проект
|
1
|
|
Ведомость курсового проекта
|
1
|
|
Реферат
|
1
|
|
Содержание
|
1-2
|
|
Введение
|
2-3
|
|
1. Обзор литературы, статей
|
4-5
|
|
2. Описание технологической
схемы производства (Описать технологию, ГОСТы на сырье, упаковку, готовый
продукт, методы контроля качества).
|
7-8
|
|
3.Технологический расчет
(указать схему направления сырья на переработку, составить продуктовый
расчет, подобрать оборудование и персонал для производства продукции,
рассчитать технологическую карту, составить график загрузки оборудования)
|
12-16
|
|
4. Расчет экономической
эффективности (на основе технологической карты)
|
2-3
|
|
5. Охрана труда и природы
|
2
|
|
Заключение
|
1
|
|
Список использованной
литературы
|
1-2
|
|
Приложения
|
1-3
|
|
Спецификации
|
|
Обязательное требование для курсовых проектов - составление ведомости
курсового проекта, где указывается перечень материалов, вошедших в курсовой
проект. Ведомость составляют по форме, представленной в стандарте предприятия и
в соответствие с ГОСТом (приложение 1).
Реферат - краткое изложение цели работы и существа основных разработок, а
также полученных результатов. В реферате указывается объем курсового проекта:
количество листов пояснительной записки и количество таблиц и иллюстраций в
ней; объем графической части проекта, не вошедшей в пояснительную записку. При
составлении реферата его необходимо сделать максимально информативным.
В содержании указывается номер и наименование каждой части пояснительной записки,
номер страницы начала данной части.
При оформлении содержания наименование разделов и подразделов должны
полностью соответствовать тем, что помещены в пояснительной записке.
Во введении расчетно-пояснительной записки необходимо изложить основные задачи,
стоящие перед мясной промышленностью, обосновать цели и задачи курсового
проекта, актуальность его разработки и новизну предложенных решений.
Обзор литературы по изучаемому вопросу рекомендуется начинать с
использования предметных и библиографических указателей по различным отраслям
знаний и отдельным темам. На начальном этапе работы студент может пользоваться
рекомендациями, содержащимися в специальных методических пособиях. Просмотр
специальных журналов и сборников начинается с реферативных журналов по данной
отрасли знаний. Полезными могут оказаться и библиографические сноски, ссылки и
указатели в учебниках и монографиях, относящихся к разрабатываемой теме. Очень
важно использовать специальные исследования (монографии), статьи в сборниках
трудов институтов.
Обзор литературы заканчивается выводами о возможности и целесообразности
использования того или иного метода, той или иной конструкции машины, аппарата.
Описание технологической схемы производства (линии или участка) начинают
с указания его технологического назначения. Далее объект классифицируют по
технологическому, конструктивному или какому-либо другому признаку. Указывают
индивидуальные особенности, преимущества и недостатки. Здесь же помещают
технологическую схему с соответствующими пояснениями.
Далее указывают методы контроля качества для сырья, вспомогательных
материалов и готового продукта.
Затем описывают технологический процесс с указанием позиций узлов и
деталей с номерами чертежей по ведомости проекта. Дают также подробный перечень
операций по обслуживанию объекта в процессе работы с детальным описанием.
В технологическом расчете необходимо указать схему направления сырья на
переработку, составить продуктовый расчет, подобрать оборудование и персонал
для производства продукции, рассчитать технологическую карту, составить график
загрузки оборудования.
В конце описания приводят полную техническую характеристику объекта:
производительность, габаритные размеры, мощность, массу.
Важными освещаемыми моментами являются санитарное и техническое обслуживание
и техника безопасности.
Расчет экономической эффективности проекта содержит технико-экономические
расчеты и выводы об экономической эффективности на основании составления
технологической карты.
Раздел "Охрана труда и природы" объединяет следующие вопросы:
анализ опасностей и вредных факторов, возникающих в процессе эксплуатация
технологического оборудования, и обоснование выбора предлагаемых мероприятий по
охране труда, природы и технике безопасности.
В заключении расчетно-пояснительной записки отмечают основные результаты
работы, выделяют главные особенности спроектированного объекта, машины или
оборудования. Особое внимание обращают на оригинальные конструктивные решения,
предложенные автором. Отмечают также за счет каких конструкторских, технологических
решений достигнут рост производительности или уменьшение отходов, увеличение
производительности труда, снижение энергоемкости, улучшение качества
выпускаемой продукции и т.д. В конце отмечают ожидаемый экономический эффект,
установленный в результате сравнительного анализа показателей разработанного
объекта и аналога.
Завершают пояснительную записку списком использованной литературы,
приведенным в алфавитном порядке. При ссылке в тексте на литературный источник
указывают в квадратных скобках его порядковый номер по списку литературы.
Приложениями в расчетно-пояснительной записке являются вспомогательные
материалы, необходимые для ее полноты. Ими могут быть конструкторские документы
(спецификации, схемы, чертежи и др.) технологическая карта и т.д. Приложения
помещают после списка литературы, располагая их в порядке ссылок на них в
тексте.
Графическую часть проекта выполняют на 3-4 листах формата А1 (594 х 841
мм) в соответствии о ГОСТ 2301-68. Она может включать в себя:
генеральный план предприятия;
план и разрез цеха (отделения);
аппаратно-технологическую схему лилии или участка производства.
график загрузки оборудования.
2.
Классификация предприятий по переработке мяса и мясопродуктов
Существуют следующие типы предприятий мясной промышленности:
бойни - простейшие предприятия по первичной переработке скота и птицы;
хладобойни - предприятия, где есть бойня и холодильник;
мясокомбинат - предприятие по комплексной переработке окота и всех
продуктов убоя. Если при мясокомбинате имеется птицецех, то такое предприятие
называется мясоптицекомбинатом, если есть консервный цех, то - мясоконсервным
комбинатом;
птицекомбинаты - предприятия по убою и комплексной переработке птицы и
всех продуктов убоя;
специализированные предприятия по переработке продуктов убоя -
мясоперерабатывающие, желатиновые и клеевые заводы, заводы по производству
органопрепаратов, утилизационные заводы по выработке животных кормов,
технического жира, удобрений.
Основным предприятием мясной промышленности является мясокомбинат. Он
состоит из таких основных производств, как мясожировое, холодильник и
мясоперерабатывающее.
По количеству вырабатываемой продукции (мощности) мясокомбинаты можно
подразделить на малые (мощностью до 50 т мяса в смену), средние (50-100 т мяса
в смену) и крупные (свыше 100 т мяса в смену).
Независимо от типа любое предприятие мясной промышленности состоят из
основных и вспомогательных производств.
К основным производствам относятся база предубойного содержания скота и
птицы, бойня, мясожировое производство, холодильник, мясоперерабатывающее
производство, консервное производство и другие.
База предубойного содержания скота и птицы осуществляет прием и
предубойное содержание скота и птица.
В состав базы входят:
- автомобильная и железнодорожная платформы, оборудованные
загонами с навесами и устройствами для проведения термометрии скота и
ветеринарного осмотра;
- пункт санитарной обработки автомашин, инвентаря и
оборудования. В целях защиты окружающей среды при пункте должны быть очистные
устройства навозо-, бензо-, маслоуловители, песколовка, грязеотстойник и
дезинфектор смывных вод перед спуском их в общую канализационную сеть. Пункт
состоит из отделений мойки и дезинфекции, приготовления моющих и
дезинфицирующих растворов, склада для хранения материалов и инвентаря, бытовых
помещений для обслуживания персонала;
- карантинный изолятор, санитарная бойня. Они предназначены для
приема, содержания и переработки подозрительного на заболевание и больного
скота, состоят из загонов для скота, помещения для убоя окота и разделки туш,
обработки субпродуктов, кишок, дезинфекция шкур, отделений стерилизации
мясопродуктов, камер; для охлаждения и хранения мяса;
- склады для кормов, помещения для приготовления кормов и
кормления;
Мясожировое производство объединяет следующие цехи: убоя окота и разделки
туш, переработки пищевой крови, субпродуктовый, кишечный, жировой, кордовых и
технических продуктов, шкуроконсервировочный.
Холодильник - это помещение для охлаждения и хранения в охлажденном виде
мяса, субпродуктов, кишок, пищевых жиров; замораживания и хранения в
замороженном виде мяса, субпродуктов, эндокринного и ферментного сырья, мясных
и субпродуктовых блоков.
Мясоперерабатывающее производство объединяет производства колбасных
изделий, свинокопченостей, полуфабрикатов, мясных блоков и быстрозамороженных
готовых мясных блюд.
Колбасный завод, желатиновый завод, клеевой завод - предприятия,
вырабатывающие соответствующий ассортимент продуктов.
Консервное производство оснащено жестяно-баночным цехом, а при большой
мощности производства и литографическим отделением.
В зависимости от специализации предприятия, его мощности и ассортимента
часть цехов может отсутствовать. Основные производства целесообразно объединять
в одном здании, называемом главным производственным корпусом мясокомбината, или
в нескольких зданиях, связанных между собой крытыми переходами.
Вспомогательные производства осуществляют процессы материального и
технического обслуживания основного производства и включают в себя подсобные
цехи, теплоэнергетическое хозяйство, санитарно-технические сооружения,
административно-бытовой корпус, инженерные коммуникации, транспортные средства.
Подсобные цехи (ремонтно-механические и столярно-тарные мастерские,
прачечная, зарядная для аккумуляторов, складские помещения и другие)
предназначены для выполнения текущего планово-предупредительного ремонта
оборудования. Там также ремонтируют и изготавливают инвентарь и некоторые
запасные части к технологическому оборудованию, тару и пр.
Теплоэнергетическое хозяйство состоит из котельной или системы
теплоснабжения, складов для топлива, аммиака и масел, компрессорного цеха,
трансформаторной подстанции.
К санитарно-техническим сооружениям относятся здания для водоснабжения (в
том числе для повторного и оборотного водоснабжения) и канализации, сооружения
для очистки сточных жидкостей (песколовки, жироловки, грязеотстойники и пр.).
В административно-бытовой корпус входят помещения для администрации и
общественных организаций предприятия, бытовые помещения для рабочих, медпункт,
столовая, центральная лаборатория, библиотека, конструкторское бюро и помещения
для охраны.
К инженерным коммуникациям относятся трубопроводы для воды, пара, холода,
линии электроэнергии, связи.
Транспортные пути состоят из автомобильных и железных дорог с
соответствующими платформами.
Новые предприятия проектируют в составе промышленных узлов и комплексов,
что позволяет предусматривать рациональные формы межхозяйственного
кооперирования.
В современных условиях мини-цехи находят свои ниши на рынке
производителей. Для обеспечения конкурентоспособности они чаще всего
специализируются на производстве одного-двух видов продукции или переработке
одного вида скота.
3.
Генеральный план проектируемого предприятия
Генеральным планом предприятия называют план строительной площадки с
размещением на нем всех зданий и сооружений, рельсовых и безрельсовых дорог,
подземных и наземных коммуникаций и сетей, организованных в единое целое для
эффективного функционирования проектируемого предприятия.
При проектировании генерального плана необходимо учитывать направление
господствующих ветров и положение стран света (роза ветров). Роза ветров
показывает степень средней повторяемости ветров в определенном направлении за
рассматриваемый период времени. Направление ветров в метеорологии различают по
румбам: "С, ССВ, СВ,СВВ и В и т.д.", т.е. ветры, дующие с севера,
севера-северо-востока, северо-востока, северо-востока-востока, востока и т.д.
При проектировании генерального плана розу ветров строят обычно, с четырьмя
румбами: С, В, Ю, 3.
Метод построения розы ветров следующий. На основании данных о
господствующих ветрах за большой промежуток времени. 10-15 лет, взятых из
ближайшей метеостанции, составляют табл. 3.1.
Количество дней каждой колонки складывают и находят количество дней в
которые дул ветер данного направления за рассматриваемый период.
Таблица 3.1. - Направление господствующих ветров
|
Год
|
Количество дней, в течение
которых преобладали ветры румбов
|
|
С
|
ВС
|
В
|
ЮВ
|
Ю
|
ЮЗ
|
З
|
СЗ
|
|
Итого дней, %
|
5
|
7
|
6
|
18
|
28
|
22
|
8
|
6
|
Рисунок. 3.1. - Роза ветров
генерального плана
Затем итоговое число каждой колонки выражают в процентах от всего
количества ветреных дней за рассматриваемый период.
После этого строят розу ветров, откладывая в определенном масштабе
найденную величину в процентах по направлению к центру. Большому значению
вектора в розе ветров соответствует господствующее направление ветра (рис.
3.1.) Розу ветров располагают на генеральном плане в левом верхнем углу листа.
При проектировании генерального плана следует учитывать противопожарные,
производственные (технологическая поточность) и санитарно-гигиенические
требования. Их рациональное сочетание позволяет выбрать наиболее экономичное и
эффективное решение.
Противопожарные требования к генеральному плану определяются степенью
пожарной опасности технологических процессов и степенью огнестойкости зданий и
его отдельных элементов.
Здания необходимо располагать с учетом розы ветров, чтобы предупредить
возможность переноса огня господствующими ветрами. Ширина проезда для
автомобилей должна быть не менее 6 м, что обеспечивает подъезд с двух сторон
вдоль всей длины здания. При проектировании дорог учитывают возможность
использования их в противопожарных целях:
расстояние от края проезжей части или свободно спланированной территории
до стены здания должно быть не менее 25 м;
ко всем водоемам, предназначенным для запасов воды на случай пожара,
должны быть устроены сквозные проезды или тупиковые дороги с петлевыми
объездами или площадками с размерами не менее 12 х 12 м для разворота
автомобилей;
разрывы между зданиями устанавливают в соответствии с существующими
"Противопожарными требованиями";
минимальное расстояние между производственными зданиями должно быть не
менее наибольшей высоты противостоящих зданий (в студенческом проектировании
этот разрыв не должен быть меньше 15-20 м).
Санитарно-гигиенические требования к генеральному плану сводятся к
следующему.
Ориентировка зданий относительно розы ветров должна обеспечивать наиболее
благоприятные условия естественной освещенности, естественной проветриваемости
помещений и распространения выводимых из зданий тепло- и газовыделений. Здания,
однородные по санитарно-гигиеническим условиям производства, можно объединить.
Здания с замкнутым двором строить не рекомендуется. Расстояние между отдельными
зданиями должно бить не менее наибольшей высоты до карниза противостоящих
зданий, а между крыльями - не менее полусуммы высот противостоящих зданий (не
менее 14 м). Здания, предназначенные для технологических процессов, проходящих
с выделением тепла, газа, пыли или запаха, необходимо располагать с
подветренной стороны по отношению к остальным производственным, обслуживающим и
подсобным зданиям, а также жилим массивам.
Между производственными зданиями и соседними предприятиями, а также
культурно-битовыми зданиями жилого массива должна быть установлена
санитарно-защитная зона:
для мясокомбинатов со скотобазой в 1000 гол. скота и пунктов очистки,
промывки, дезинфекции вагонов для перевозки скота шириной 500 м;
со скотобазой до 1000 гол. скота и боен для мелких животных - шириной 300
м;
со скотобазой не более трехсуточного запаса сырья - шириной 100 м.
Санитарно-защитные зоны устраивают также на территории мясокомбинатов для
ограждения сооружений по водоснабжению, устройств, по очистке сточных вод от
зданий, в которых вырабатывают пищевые и лечебные продукты.
Санитарно-защитные зоны используют под зеленые насаждения, полосы которых
(1-3) имеют ширину 3-5 м в зависимости от класса санитарно-защитной зоны. В ней
располагают лишь здания, предназначенные для обслуживания предприятия: пожарное
депо, охрану, гаражи и т.д.
Основное производственное здание располагают так, чтобы обеспечить
поточность производства и рациональность людских и грузовых потоков, а также
удобную связь основных производственных помещений с вспомогательными. Оно
должно примыкать к железнодорожным и автомобильным путям сообщения. Необходимо
иметь двор, удобный для маневрирования автомобилей.
Основное производственное здание ориентируют по розе ветров с тем, чтобы
ветер не заносил вредных отходов (дым) на производство и чтобы оно не было бы
источником загрязнения других предприятий и окружающих населенных пунктов.
Административно-бытовой корпус должен быть обращен к направлению потоков
людей, идущих на предприятие. Вход в корпус делают с улицы. Таким образом,
исключается пересечение потоков людей с грузовыми потоками.
Здания для приема и содержания скота и птицы (скотобаза) должны
непосредственно примыкать к транспортным путям подачи скота (железнодорожным и
автомобильным) и зданию предубойного содержания скота. Эти здания располагают
изолированно и с подветренной стороны от основного производственного здания.
Помещение для карантина и изоляции больных или подозрительных на
заболевание животных должны находиться с подветренной стороны по отношению к
основным зданиям комплекса. Скотобазу ограждают от остальной территории забором
и зеленой зоной. Здание карантина, изолятора и санитарной бойни располагают на
обособленном участке, огражденном, забором высотой 2 м и зоной зеленых
насаждений.
Котельную, склады для топлива и аммиака, площадки для шлака и золы
следует располагать с подветренной стороны для господствующих ветров по
отношению к основному производственному зданию.
Расположение санитарно-технических сооружений (здания и сооружения для
водоснабжения, канализации, очистки сточных вод) определяется условиями
конкретной планировки заводских строений, источниками водоснабжения,
количеством потребляемой в производстве воды, пожарными требованиями.
От принятых источников водоснабжения зависят водопроводные сооружения: от
городских сетей - противопожарный резервуар, от артезианских скважин (одна
рабочая, другая резервная) - водонапорная башня, насосная и противопожарный
резервуар.
Расстояние от водопроводных сооружений до скотобазы и цеха предубойного
содержания скота принимается не менее 50 м. Резервуары для воды можно размещать
в охранной зоне водозаборных сооружений, которая должна быть не менее 15 м.а
территории мясокомбината для очистки сточных вод должна быть предусмотрена
песколовка и жироловка. Расстояние от жироловки до производственных корпусов не
нормируют и защитную зону около нее не устанавливают.
Расстояние от самостоятельных очистных сооружений до пищевых цехов не
менее 50 м, прочих производственно-административных и бытовых помещений не
менее 25 м.
Железнодорожные пути на территории мясокомбината проектируют, соблюдая
следующие условия:
максимальный уклон путей должен быть не более 0,015, в особо трудных
случаях - 0,03;
радиус закругления на внутризаводских путях принимают для нормальной
колеи (1524 мм) 200 м, в трудных условиях - 140 м, при подаче вагонов заводским
локомотивом - 150 м;
расстояние между осями железнодорожных параллельных путей - 4,8 м
пути прокладывают на расстояния 3 м от выступающих частей здания, край
любой платформы должен отстоять от оси пути на 1,95 м.
При проектировании автомобильных дорог учитывают следующие условия:
ширина одностороннего проезда - 3,5 м и двустороннего - 6 м, в три полосы
- 9 м;
ширина цеховых и противопожарных дорог при движении автомобиле в одну
полосу 3 м, в две полосы - 5,5 м; электрокар - в одну полосу 1,5 м, в две
полосы - 2,5 м;
размеры разворотных площадок для автомобилей должны быть не менее 12х12
м.
Радиусы поворотов автомобильных дорог внутри территории предприятия
принимают не менее 6 м, а в местах сопряжения с городским и магистральными
проездами - не менее 10 м.
Для сокращения протяженности инженерных сетей и уменьшения территории,
необходимой для их укладки, целесообразно сети питьевого, производственного и
противопожарного водоснабжения, горячей и холодной воды (промышленной,
фекальной), канализации, пара, газа, электрические и другие располагать по
совмещенным трассам с соответствующей их изоляцией.
В целях сокращения сетей целесообразно блокировать отдельные сооружения,
например, насосные станции с электроподстанциями, установками для стабилизации
воды, резервуарами.
При решении генерального плана мясокомбината в отношении взаимосвязи
основных производственных зданий между собой, с вспомогательными и подсобными
зданиями учитывают общие санитарные нормы проектирования, а также специфические
санитарно-гигиенические условия производства, которые заключаются в следующем:
необходимо отделять помещения, предназначенные для производства пищевой и
лечебной продукции, от помещений с технической продукцией;
цехи по производству конфискатов и отходов производства, шкур, волоса
необходимо размещать изолированно от пищевых цехов, но в то же время они должны
иметь с этими цехами удобную связь.
В основе компоновки помещений и зданий мясокомбината лежит единый
производственный поток. Расположение каждой технологической схемы и системы
технологических схем в любом помещении должно обеспечивать нормальные
санитарно-гигиенические условия производства.
При размещении цехов учитывают технологическую поточность. На
мясокомбинате основным процессом производства является убой скота и разделка
туш. Поэтому в одном мясожировом корпусе размещают цех убоя скота и разделки
туш и связанные с ним цехи по переработке жиров, кишок, субпродуктов, крови для
пищевых целей и консервирования шкур. Вблизи мясожирового корпуса располагают
часто примыкающий к нему корпус кормовых и технических продуктов, в котором
перерабатывают отходы и конфискаты, кровь (на технические цели), копыта, рога,
волос и пушнину. Иногда цех кормовых и технических продуктов размещают в
мясожировом корпусе, но строго изолируют от цехов пищевых продуктов. Здание для
предубойного содержания скота строятся вплотную с мясожировым корпусом или
может быть связано с ним мостиком. Производство органопрепаратов компонуют в
мясожировом корпусе или размещают в отдельном здании. К мясожировому корпусу
примыкает холодильник. В нем располагают камеры для охлаждения, замораживания и
хранения мяса и мясопродуктов. К холодильному корпусу присоединяют
мясоперерабатывающие цехи: колбасный, котлетный, полуфабрикатов и кулинарных
изделий, связанные с применением искусственного холода и кондиционирования
воздуха, компонуют в отдельную охлаждаемую секцию с соответствующей изоляцией
строительных конструкций.
Теплые помещения этих производств непосредственно примыкают к
охлаждаемому корпусу. В охлаждаемой части можно размещать остывочные для туш и
субпродуктов.
Консервное производство компонуют вместе с холодильно-колбасным корпусом
и размешают в самостоятельном здании.
.1
Технико-экономические показатели генерального плана
Основными технико-экономическими показателями генерального плана являются
коэффициенты: застройки, озеленения использования территории.
Коэффициент застройки КЗ.П. - это отношение застроенной зданиями и
сооружениями площади (FЗ) к площади всей территории предприятия (F0)
(3.1)
К застроенной площади, кроме площади, занятой под здания и сооружения,
относятся подземные склады, подземные и наземные резервуары, открытые площадки
для хранения топлива, резервная площадь для последующей реконструкции
производственного корпуса.
Коэффициент застройки для предприятий перерабатывающей промышленности
колеблется в пределах 0,25-0,45 в зависимости от типа, мощности и места
строительства. Увеличение его связано с сокращением затрат на строительство и
эксплуатацию сетей инженерных коммуникаций, транспортных путей и на
благоустройство территории.
Коэффициент использования территории КИ.Т. - отношение площади зданий и
сооружений, дорог, тротуаров (без площади озеленения) подземных и наружных
коммуникаций (FС ) к площади всей территории(F0):
(3.2)
Оптимальная величина 0,6-0,75.
Коэффициент озеленения КОЗ - отношение площади зеленых насаждений (FH) к
площади всей территории (F0).
(3.3)
Оптимальная величина 0,3-0,4.
Озеленение территории предприятия не только улучшает
санитарно-гигиенические условия производства, но и показывает определенную
эстетическую характеристику предприятия.
При проектировании генеральных планов учитывают возможное увеличение
мощности предприятия. Это влечет за собой расширение территории по сравнению с
указанной в задании на проектирование.
В целях повышения экологичности генеральных планов необходимо увеличивать
плотность застройки, внимательно подходить к выбору ширины разрывов, дорог,
площадок, площади озеленения, размещению дорог.
В зависимости от типа предприятия генеральный план вычерчивают в масштабе
1:500, в некоторых случаях 1:1000, 1:2000.
В начале составляют безмасштабную эскизную зарисовку генерального плана
со всеми зданиями и сооружениями, анализируя рациональное размещение зданий,
разрывов между ними и учитывая ориентировочный коэффициент застройки.
На листе чертежной бумаги, обычно в середине листа, показывают очертания
производственного корпуса со всеми дорогами и площадками для приема и отгрузки
продукции. При этом в торцовой части главного корпуса предусматривают резервную
площадь до 20% его длины для "возможной в дальнейшем реконструкции
предприятия. Далее на генеральном плане показывают все здания и сооружения,
входящие в состав предприятия, транспортные средства, озеленение и
благоустройство территории, указывают ее размеры в метрах, основные технико-экономические
показатели, условные обозначения и розу ветров.
3.2 Здания и
сооружения, размещаемые на генеральном плане предприятий мясной промышленности
Перечень основных зданий и сооружений, размещаемых на генеральных планах
мясокомбината, мясоперерабатывающего завода, мясе перерабатывающего комплекса,
мясоперерабатывающего предприятия малой мощности и птицекомбинатах,
представленный ниже, дан на основе норм проектирования, разработанных
Гипромясом.
Мясокомбинаты включают в себя:
административно-бытовой корпус, главное производственное здание
(мясожировой корпус, холодильник мясоперерабатывающий корпус, цех предубойного
содержания скота), машинное отделение холодильной установки (компрессорная и
аппаратная), конденсаторное отделение, градирня, весовые, блок подсобных цехов,
навесы и площадки для материалов, автомобильная и железнодорожная платформы,
скотобаза (загон для скота, санитарный блок, площадка для навоза, каныжная),
пункт санитарной обработки машин, сооружения локальной очистки производственных
и дождевых сточных вод, котельная, сооружения водоснабжения, склад аммиака и
масел, гараж.
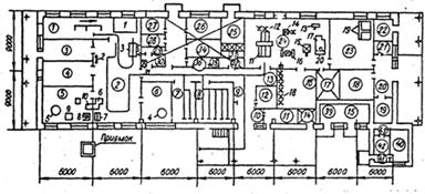
На рисунке 3.2 дан генплан мясокомбината производительностью 100 т мяса в
смену.
- главное производственное здание (А - мясожировой корпус; Б- холодильник
с машинным отделением холодильной установки и трансформаторная подстанция; В -
мясоперерабатывающий корпус), 2 - административно-бытовой корпус, 3 - галереи,
4 - весовая, 5 - корпус предубойного содержания скота; 6 - блок подсобных
цехов; 7 - площадка для материалов; 8 - котельная с тепловым пунктом; 9 -
конденсаторное отделение; 10 - градирня; П - склад аммиака и масел; 12 -
санитарный блок; 13 - дезинфектор; 14 -железно-дорожная платформа; 15 -
автомобильная платформа; 16 -вагон для скота, весовая для скота; 17 - пункт
мойки и дезинфекции машин; 18 - нефтеуловитель и грязеуловитель; 19 - площадка
для навоза; 20 - водопроводная станция; 21 - пожарные резервуары для воды
емкостью 2000 м3; 22 - канализационная насосная станция; 23 -
пес-коловка-жироловка, каныжная; а - здания и сооружения; б - закрытые
площадки; в - газон; г - высокорастущие деревья; д - кустарник; е -
железнодорожный подъездной путь.
Рисунок 3.2. - Генеральный план мясокомбината производительностью 100 т
мяса в смену:
Мясоперерабатывающие заводы включают в себя административно-бытовой
корпус, главное производственное здание (мясоперерабатывающий корпус,
холодильник), машинное отделение холодильной установки (компрессорная и
аппаратная), конденсаторное отделение, градирня, весовые, блок подсобных цехов,
навесы и площадки для материалов, помещения локальной очистки производственных
и дождевых сточных отельная, сооружения водоснабжения, склад аммиака и масел,
гараж.
На рисунке 3.3 дан генплан мясоперерабатывающего завода
производительностью 40 т мяса в смену.
Мясоперерабатывающий комплекс малой мощности включает в себя следующие
зоны:
предзаводскую (административно-бытовой корпус);
производственную (производственный корпус и машинное холодильника);
предубойного содержания скота (автомобильная платформа с весами для
скота, площадка для его разгрузки, корпус предубойного содержания, крытые
загоны, площадка для навоза, жижесборник, площадка для мойки машин);
вспомогательные здания и сооружения (котельная, блок очистных сооружений,
хозяйственный склад, трансформаторная подстанция и канализационная
насосная, водопроводные сооружения, насосная станция второго подъема, два
резервуара для воды).
- главное производственное здание (А - мясоперерабатывающий корпус, Б -
холодильник, В - компрессорная и трансформаторная подстанция, Г - блок
подсобных цехов); 2 - административно-бытовой корпус; 3 - градирня; 4 -
переходная галерея; 5 - весовая; 6 - котельная; 7 - центральный тепловой пункт,
8 - склад аммиака и масел, 9 - водопроводная насосная станция, 10, 11 -
резервуары вместимостью 500 м3, 12 - песколовка-жироловка, 13 -
канализационная насосная станция.
Рисунок 3.3. - Генеральный план мясоперерабатывающего завода
производительностью 40 т мяса в смену
На рисунке 3.4 представлен генплан мясоперерабатывающего комплекса в
комплектно-блочном исполнении производительностью 2 т мяса и 1 т колбасных
изделий в смену. Аналогичный генплан, но с цехом свинокопченостей представлен
на рисунке 3.5.
Мясоперерабатывающее предприятие малой мощности - это цех убоя с
колбасным цехом, проходная, очистные сооружения, дезинфекционный барьер, три
площадки - для отдыха, мусоросборника, хранения опилок.
1 - производственный корпус; 2 - корпус предубойного содержания скота; 3
- административно-бытовой корпус; 4 - весы; 5 - крытые загоны для скота; 6 -
помещение для врача; 7 - машинное отделение холодильника; 8 - площадка для
навоза; 9 -блок очистных сооружений; 10 - два резервуара для воды; 11 -
насосная станция второго подъема; 12 - канализационная насосная; 13
жижесборник; 14 - котельная; 15 - трансформаторная подстанция; 16 - проходная;
17 - хозяйственный склад; 18 - площадка для мойки машин; 19 - транспортная
тележка; 20 - площадка для разгрузки скота
Рисунок 3.4. - Генеральный план мясоперерабатывающего комплекса в
комплектно-блочном исполнении производительностью 2 т мяса и 1 т колбасных
изделий в смену:
В состав птицекомбината входят:
административно-битовой корпус главное производственное здание (корпус
обработки птицы и пера);
холодильник;
кулинарно-колбасный цех;
машинное отделение холодильной установки (компрессорная и аппаратная);
конденсаторное отделение, градирня, весовые, блок подсобных цехов,
автомобильная платформа для разгрузки птицы, цех передержки птицы с отделениям
водоема и базами для водоплавающей птицы, санитарный блок, площадка для помета,
пункт санитарной обработки машин, сооружения локальной очистки производственных
и дождевых сточных вод, котельная, сооружения водоснабжения, склад аммиака и
масел, гараж.
Перечень зданий и сооружений уточняют при разработке генерального плана с
учетом возможного кооперирования объектов вспомогательных производств и
хозяйств, инженерных сооружений и коммуникаций/
1 - цех убоя (мощность 2 т в смену) с колбасным цехом (мощность 1 т в
смену); 1А - насосная; 1Б - приямок для каныгосборника; 2 - проходная; 3
-очистные сооружения; 4 - дезинфекционный барьер; 5 - площадка для отдыха; 6 -
площадка для мусоросборника; 7 - площадке для хранения опилок
Рисунок 3.5. - Генеральный план мясоперерабатывающего предприятия
производительностью 2 т мяса и 1 т колбасных изделий и свинокопченостей в
смену:
3.3 Основные
размеры зданий и сооружений
Для максимальной индустриализации строительства применяют унифицированные
элементы строительных конструкций следующих размеров:
для одноэтажных зданий размера в плане 60x24, 60x48, 60х144, 72x24,
72x48, 72x72, 72x144 м, сетки колонн 6x6, 6x12, 12x18 м, для зданий шириной 72
и 144 м; высота зданий (от отметки чистого пола до низа несущих конструкций
покрытия на опоре) при ширине здания 24 м - 4,8 м, во всех остальных случаях -
4,8; 5,4; 6; 7,2 м;
для многоэтажных зданий размеры в плане 48x24, 48x36; 48x48, 60x24,
60x36, 60x48 м, сетки колонн 6x6, 6x9 м; высота этажа -4,8 и 6 м (для 1-го
этажа допускается 7,2 м).
4. Методика
технологического проектирования
Технологические расчеты цехов выполняют на основании задания на
проектирование, которое может быть составлено как по количеству
перерабатываемого сырья, так и по объему выпускаемой продукции. Целью
технологических расчетов является получение исходных данных для выполнения
технического проекта.
Прежде чем приступить к расчетам, необходимо тщательно изучить технологию
производства готовой продукции. Изучить
Технологические расчеты включают в себя: расчет сырья, готовой продукции,
вспомогательных материалов и тары; расчет технологического оборудования; расчет
и расстановку рабочей силы; расчет и выбор площадей производственных и вспомогательных
помещений; расчет расхода воды, пара, электроэнергии, холода, воздуха и газа в
технологические цели.
Порядок расчета может быть несколько изменен в связи со спецификой
некоторых цехов.
Приступая к технологическим расчетам, студент должен вначале уточнить
ассортимент выпускаемой продукции. На основании этого ассортимента составляются
наиболее рациональные для данного производства технологические схемы.
.1
Технологическая схема производства
Технологическая схема производства - это последовательный перечень всех
операций и процессов обработки сырья, начиная с момента его приема и кончая
выпуском готовой продукции, с указанием применяемых режимов обработки
(длительности операции или процесса, температуры, степени измельчения и т.д.).
Прежде чем приступить к детальной проработке технологии, следует
проанализировать направление переработки сырья и целесообразность полноты
переработки некоторых видов сырья или полуфабрикатов и тем самым уточнить весь
ассортимент продукции, выпускаемой предприятием.
Технологические схемы отдельных производств также являются основой
технологических расчетов. Составлять технологическую схему производства следует
с уточнения отдельных операций и режимов для наиболее эффективного
использования оборудования, расходования сырья, вспомогательных материалов,
выпуска готовой продукции.
Кроме того, следует учитывать более рациональное использование рабочей
силы, транспортных средств, расходование воды, газа и электроэнергии.
Более целесообразным является векторное оформление технологической схемы.
Пользуясь общими схемами переработки сырья, составляют материальный
расчет сырья и готовой продукции по отдельным звеньям переработки. При этом
уточняют массу сырья, полуфабрикатов, отходов и вспомогательных материалов по
этим звеньям.
Расчеты позволяют доказать рациональность и соответствие технологической
схемы объема производства, целесообразность видов транспортировки продукции и
отходов. Продуктовые расчеты ведут с учетом физико-химических и биохимических
основ технологических процессов.
Материальный расчет - представляет собой баланс между массой поступающего
в переработку сырья и массой выпускаемой продукции. Исходными данными для
составления материального баланса являются мощность предприятия и ассортимент
вырабатываемой продукции. Материальный баланс составляют по каждому
производству в отдельности на основе технологических инструкций. В инструкциях
регламентированы требования к сырью и материалам, указаны рецептуры, нормы
расхода сырья и вспомогательных материалов, нормы выхода готовой продукции.
4.2 Расчет
исходных данных
.2.1
Обоснование ассортимента вырабатываемой продукции
Расчет сырья мясоперерабатывающих цехов начинают с выбора ассортимента
вырабатываемых изделий, который основывается на общем количестве выпускаемой
продукции, обусловленной заданием на проектирование и должен соответствовать
действующим технологический инструкциям, РТУ и МРТУ.
При этом учитываются местные условия и тип предприятия. Выбор
ассортимента колбасных изделий должен быть также увязан с выходом жалованного
мяса по сортам.
Данные по ассортименту можно занести в таблицу 4.1.
Таблица 4.1. - Ассортимент вырабатываемой продукции
|
№
|
Наименование продукта
|
Термообработка
|
Разрешающие документы
|
Сорт
|
Кол-во кг в сутки
|
код ОКП
|
|
|
основной
|
|
1
|
Колбаса (сосиски, сардельки
и пр.)…
|
|
|
|
|
|
|
2
|
Колбаса …
|
|
|
|
|
|
|
3
|
|
|
|
|
|
|
|
|
дополнительно
|
|
4
|
|
|
|
|
|
|
Записать требования стандартов к готовой продукции.
Изложить основные требования к сырью и вспомогательным материалам (мясо,
тара и упаковка, специи и пр.).
Расчеты сырья цехов мясокомбината несколько различны и могут быть условно
разделены на следующие группы:
расчет цеха убоя скота и разделки туш;
расчет цехов субпродуктового, кишечного, жирового, кормовых и технических
продуктов, шкуроконсервного, переработки крови, а также холодильника;
расчет мясоперерабатывающего, консервного цехов.
4.2.2 Расчет
сырья и готовой продукции
Расчет сырья цеха убоя скота и разделки туш заключается в определении
количества голов всех видов скота, перерабатываемого в данном цехе, на
основании заданной мощности мясокомбината в тоннах мяса на костях, норм выходов
и принятой живой массы окота.
Расчет производится в такой последовательности
Массу туши (Мт, кг) определяют по формуле:
Мт= Мж∙Z /100, (4.1)
где Мж - живая масса, кг;выход к живой массе, %
Количество голов в смену (А, гол) находят по формуле:
А=Q/ Мт, (4.2)
гдe Q - мощность мясокомбината в смену по данному виду скота, кг/смену.
Расчет сырья цехов субпродуктового, кишечного, жирового, кормовых и
технических продуктов, шкуроконсервировочного, переработки крови, волоса и
щетины, а также холодильника заключается в определении количества сырья за
смену, поступающего в данный цех.
Количество сырья с одной головы (Мг, кг) перерабатываемого скота
рассчитывают по формуле:
Мг= Мж∙Z/100.(4.3)
Количество сырья за смену (Мс, кг), поступающего в данный цех, определяют
по формуле:
Мс=А∙Мж∙Z/100.(4.4)
Полученные данные сводят в таблицу 4.2.
Выходы к живой массе даны в "Нормах технологического проектирования
мясокомбинатов и птицекомбинатов", составленных Гипромясо.
Общее количество основного сырья (А, кг)рассчитывают по формуле:
А=В∙100/Z., (4.5)
где В - количество готовых изделий, вырабатываемых за смену, кг;- выход
готовых изделий к массе сырья, %
Количество основного сырья по видам (Д, кг) (говядина жалованная,
свинина, шпик и т.д.) определяют по формуле:
Д=А∙q/100, (4.6)
где q - норма расхода сырья согласно рецептуре на 100 кг общего
количества основного сырья, кг.
Количество соли и специй (С, кг) находят по формуле:
С= А∙q/100 (4.7)
Количество говядины и свинины на костях (А, кг) для производства готовых
изделий рассчитывают по формуле (4.8):
А=Д∙100/ Z, (4.8)
Где Д- количество жалованной говядины или свинины к массе мяса на костях,
%.
Расчет сырья консервного цеха основан на задании на проектирование,
выбранном ассортименте, рецептуре консервов и вместимости банок.
Количество физических банок (А1, шт) определяют по формуле:
А1=В1/к, (4.9)
где B1- количество условных банок консервов каждого наименования в смену,
шт.;
к - коэффициент пересчета условных банок в физические.
количество основного сырья (Д, кг) по видам определяют по формуле:
Д=q1∙А, (4.10)
Количество говядины и свинины на костях рассчитывают по формуле (4.8)
При необходимости можно произвести расчет сырья при производстве
цельномышечных деликатесных продуктов.
Таблица 4.2. - Расчет сырья
|
Сырье
|
Выход
|
|
к живой массе скота,
%
|
с одной головы, кг
|
за смену, кг
|
|
|
|
|
Расчет заключается в нахождении количества готовой продукции и отходов,
получаемых в результате переработки сырья в данном цехе, и производится по
формулам (4.3), (4.4), если выход определяют к живой массе скота. Полученные
данные заносят в табл. 4.3.
Таблица 4.3. - Количество готовой продукции
|
Продукция
|
Выход
|
Направление продукции
|
|
к живой массе скота, % ;
|
на одну голову, кг
|
за одну смену, кг
|
|
|
|
|
|
|
Если выход готовой продукции (Мп, кг) определяют к массе сырья, то расчет
производят по формуле:
Мп= Мс Z/100, (4.11)
Где Мс - количество сырья в смену, кг;выход к массе сырья, %.
Полученные данные сводят в табл. 4.4.
Таблица 4.4. - Количество готовой продукции
|
Наименование и сорт
колбасных изделий
|
Выработка, кг в смену
|
Выход к массе несоленого
сырья, %
|
Общая масса основного
сырья, кг
|
говядина
|
свинина
|
другие виды сырья
|
Итого сырья без шпика и
грудинки, кг
|
|
|
|
|
В/с
|
1 сорт
|
2 сорт
|
нежирная
|
полужирная
|
жирная
|
|
|
|
|
|
|
Н
|
М
|
Н
|
М
|
Н
|
М
|
Н
|
М
|
Н
|
М
|
Н
|
М
|
Н
|
М
|
|
|
|
|
|
|
|
|
|
|
|
|
|
|
|
|
|
|
|
|
|
|
|
|
|
|
|
|
|
|
|
|
|
|
|
|
|
|
|
|
шпик
|
грудинка
|
итого основного сырья
|
вода
|
всего фарша
|
|
Н
|
М
|
Н
|
М
|
|
В
|
М
|
М
|
|
|
|
|
|
|
|
|
|
|
|
|
|
|
|
|
Примечание: Н - норма расхода сырья в соответствие с рецептурой, кг на
100 кг основного сырья; М - потребная масса сырья каждого вида, кг; В - норма
добавляемой воды, % к массе куттерируемого сырья.
4.2.3 Расчет
вспомогательных материалов и тары
Название "вспомогательные материалы" несколько условно и
включает в себя те материалы, расчет которых не вошел в расчеты сырья. К
вспомогательным материалам относятся: соль пищевая для кишок и техническая для
шкур, материалы, используемые для консервирования шкур (алюминиево-калиевые
квасцы), бирки, шпагат, веревка и т.д.
Расчет ведут по нормам расходования материала или вместимости бочки и по
количеству продукции в смену, данные заносят в таблицу 4.5:
Мв.с.= q2∙А2, (4.12)
Где Мв.с. - количество вспомогательных материалов, кг, м ;- норма расхода
на 1 шт. (гол., комплект, шкуру и т.д.), кг;
А - производительность данного цеха в смену, шт.
Количество бочек (N, шт.) определяют по формуле:
=M/V, (4.13)
Где М - количество готовой продукции, производимой в смену,
кг;вместимость одной бочки, кг;
Таблица 4.5. - Расчет потребности в оболочке и шпагате.
|
Продукт
|
Производство, кг
|
Оболочка
|
Шпагат
|
|
|
Характеристика
|
Расход на ед. продукции
|
Требуется всего
|
Расход на ед. продукции
|
Требуется всего
|
|
Колбаса …
|
|
|
|
|
|
|
|
Колбаса …
|
|
|
|
|
|
|
|
…
|
|
|
|
|
|
|
4.3 Расчет
технологического оборудования
Выбор и расчет технологического оборудования является одним из важнейших
этапов проектирования, так как от правильного выбора оборудования зависят
четкая и планомерная работа предприятия, качество выпускаемой продукции,
производительность труда, размеры прибыли.
Оборудование выбирают в соответствии с принятой технологией производства
данного продукта и таким расчетом, чтобы в цехе было установлено наименьшее
число единиц оборудования с максимально возможным коэффициентом его
использования.
Количество машин на операцию (N, шт.) определяют по формуле:
=A/(T qv∙C), (4.14)
где А - количество сырья, поступающего за смену на данную машину, кг;
Т - продолжительность смены, ч;-вместимость машины периодического
действия, кг;
С - число циклов (оборотов) за 1 час (С= 1 для машин непрерывного
действия).
С=1/t (4.15)
где t- продолжительность операции ( процесса), ч.
В отдельных случаях при незначительной продолжительности процесса:
С=60/ t (4.16)
где t - продолжительность операции, мин.
Особое место в расчете технологического оборудования занимает определение
длины подвесных путей (L, м), столов, чанов как конвейерных, так и
бесконвейерных:
=A∙Q∙l∙t/(60 ∙T)+L1 (4.17)
где Q - производительность в смену, шт.;-расстояние между двумя единицами
продукта или рабочими местами, м;- продолжительность обработки продукции, мин;-
дополнительное расстояние для организации нормальной работы на участке, м.
Выбранные и рассчитанные машины и оборудование, а также их параметры
приводят в табл. 4.6.
Техническую характеристику следует брать из каталогов и справочной
литературы.
Подбор оборудования осуществляется с одновременным расчетом
технологической карты (приложение 43).
Таблица 4.6. - Примерный перечень технологического оборудования
используемых на мясокомбинатах
|
№ п/п
|
Название машины
|
Выполняемая технологическая
операция и масса перерабатываемого сырья, кг/смену
|
Производительность машины,
кг/ч и габаритные размеры, мм
|
Марка машины
|
Кол-во
|
|
|
|
|
|
расч.
|
прин.
|
|
1.
|
Весы механические
|
|
|
|
|
|
2.
|
Стол обвалочный
|
|
|
|
|
|
3.
|
Волчок
|
|
|
|
|
|
4.
|
Фаршемешалка
|
|
|
|
|
|
5.
|
Шприц колбасный
|
|
|
|
|
|
6.
|
Загрузочное устройство
|
|
|
|
|
|
7,
|
Куттер
|
|
|
|
|
|
8.
|
Шпигорезка
|
|
|
|
|
|
9.
|
Массажер
|
|
|
|
|
|
10.
|
Инъектор
|
|
|
|
|
|
11.
|
Ледогенератор
|
|
|
|
|
|
12.
|
Ленточная пила дм разделки
мясных туш на отруба
|
|
|
|
|
|
13.
|
Термокамера
|
|
|
|
|
|
14.
|
Холодильная камера
|
|
|
|
|
|
15.
|
Комплект промышленных ножей
|
|
|
|
|
|
16.
|
Мойка со стерилизатором
|
|
|
|
|
|
17.
|
Тележки для посола
|
|
|
|
|
|
18.
|
Тележка грузовая
|
|
|
|
|
|
19.
|
Стол формовочный
|
|
|
|
|
|
20.
|
Технологический стеллаж
|
|
|
|
|
|
21.
|
Оборотная тара
|
|
|
|
|
|
22.
|
Вакуум-упаковочная машина
|
|
|
|
|
|
23.
|
…
|
|
|
|
|
|
24
|
…
|
|
|
|
|
На основе технологической карты и перечня технологического оборудования
используемых на мясокомбинатах составляют график загрузки оборудования с целью
полной загрузки людей и оборудования.
.4 Расчет
рабочей силы
Рабочую силу рассчитывают по формуле:
=A/qз, (4.18)
где n - количество рабочих, чел.;
А - количество перерабатываемого сырья, кг;з - норма выработки за смену
на одного рабочего, кг.
Если норма выработки определена на основании норм времени, то количество
рабочих по данной операции (n1, чел) определяют по формуле:
=A1·t1/Tc, (4.19)
где A1 - количество перерабатываемой продукции, кг;- норма времени на
единицу продукции, с/кг;
Тс - продолжительность смены, с.
Рабочую силу расставляют с учетом рассчитанного количества рабочих, их
квалификации и условий работы.
Количество рабочих, обслуживающих поточные линии или машины определяют по
данным, указанным в паспортах оборудования или в нормативах времени и
выработки.
Весь расчет и расстановку рабочих сводят в табл. 4.7.
Таблица 4.7. - Количество рабочих цеха
|
Операция
|
Количество сырья в смену,
кг
|
Норма выработки в смену, кг
или норма времени, с/кг (мин/кг)
|
Количество рабочих
|
|
|
|
расчетное
|
принятое
|
|
|
|
|
|
Для цеха убоя скота и разделки туш расчет рабочей силы можно сделать
раньше расчета технологического оборудования.
.5 Расчет
площадей
Площадь производственных и складских помещений должна быть такой, чтобы
на ней можно было свободно разместить необходимое для данного производственного
процесса оборудование с учетом его обслуживания. Не должно быть излишков
оборудования, удлиняющих передачу материалов от одного оборудования к другому.
Необходимо также, чтобы были выдержаны санитарные нормы и, чтобы можно было
расположить нужное количество продукции и полуфабрикатов.
Площади цехов рассчитывают по удельным нормам, составлении Гипромясом, в
зависимости от производительности.
Площади производственных и вспомогательных помещений (F, м), определяют
по формуле:
=Q·f (4.20)
где Q - производственная мощность в смену, т;- удельная норма площади, м2/т.
Полученную величину (м2) округляют до целого числа
строительных прямоугольников в соответствии о выбранной сеткой колон. В
дальнейшем при компоновке она может быть несколько изменена.
4.6 Расчет расхода вода, пара, холода, воздуха, электроэнергии и газа на
технологические цели
Для обеспечения технологического процесс предприятия в целом и каждого
цеха в отдельности необходимо иметь определенное количество холодной и горячей
воды, пара, холода, электроэнергии, а в отдельных случаях, сжатого воздуха и
газа, рассчитываемого как по нормам, так и по выбранному технологическому
оборудованию. Нормы расхода на единицу продукции даны в "Нормах
технологического проектирования мясокомбинатов и птицекомбинатов" по
каждому цеху (отделению).
Количество воды, пара, холода, электроэнергии и т.д. в смену определяют
по формуле (4.12).
Результаты расчетов сводят в таблице 4.8.
Таблица 4.8. - Расчет потребности в ресурсах для предприятия
|
Количество выпускаемой
продукции в смену, кг
|
Расход
|
|
воды, м3
|
пара, кг
|
холода, МДж
|
электроэнергии, кВт·ч
|
сжатого воздуха, м3
|
Газа м3
|
|
норма на 1 голову
|
норма в смену
|
норма на 1 голову
|
норма в смену
|
норма на 1 голову
|
норма в смену
|
норма на 1 голову
|
норма в смену
|
норма на 1 голову
|
норма в смену
|
норма на 1 голову
|
норма в смену
|
|
|
|
|
|
|
|
|
|
|
|
|
|
По установленному оборудованию расчет ведут по формуле:
М=m·A·tc/Tc (4.21)
где М - количество воды (пара и т.д.) в смену, м3 ( кг и
т.д.);- удельная норма расхода сырья в 1 ч, м3 ч/т (кг ч/т);
А - производительность оборудования, т/ч;с - продолжительность работы
оборудования в смену, ч;
Тс - продолжительность смены, ч.
5. Принципы
расстановки оборудования
Расстановка оборудования является важным этапом проектирования
предприятия и представляет собой основу организации технически процесса в
производственных цехах.
Основными принципами расстановки компоновки оборудования являются:
соблюдение поточности технологического процесса;
непосредственная передача сырья от машины к машине, недопустимость
встречных и пересекающихся передач;
группировка оборудования с учетом тепловых показателей или особенностей
строительных деталей, удобства и безопасности работы на оборудовании,
возможности его чистки, ремонта, демонтажа;
удобная подводка инженерных коммуникаций;
соблюдение правил безопасности, требований НОТ и промышленной эстетики.
В зависимости от мощности производства и размеров здания,
объемно-планировочных решений расстановка оборудования может быть различной.
Однако необходимо соблюдать ряд общих положений, с тем, чтобы
производственный поток был спроектирован с максимальной компактностью и
рациональным использованием производственных площадей.
При компоновке оборудования необходимо обеспечить кратчайшее расстояние
от начала движения сырья по технологическому процессу до конечной операции,
максимально сократив длину подвесных путей, транспортеров, трубопроводов. Для
удобства обслуживания трубопроводов и других инженерных коммуникаций их следует
располагать на высоте не более 2 и от уровня пола.
Технологическое оборудование надо размещать так, чтобы максимальное
расстояние между отдельными машинами и аппаратами, установленными фронтально
друг к другу, было менее 2,5 м.
Расстояние между выступающими частями аппаратов при одностороннем проходе
людей - 0,8 м, а при отсутствии прохода - 0,5 м. Размеры проходов у
оборудования с выдвижными частями (люки, крышки) определяют по расстоянию между
этими выдвижными частями с учетом обеспечения свободного прохода.
При транспортировке тары к месту упаковки и упакованного продукта в
камеру хранения электрокарами и электротележками для разворота транспорта
необходимо предусмотреть ширину проезда 2,5-3,0 м, для немеханизированного
транспорта (тележки, напольные рамы) -2 м. Расстояние между конвейерной линией и
стеной с учетом расстановки рабочих должно составлять 4 м, а при отсутствии
рабочих мест -1 м.
Ширина лестниц и площадок для установки и обслуживания оборудования
должна быть не менее 0,8 м, уклон лестниц не должен превышать 50°. При
определении расстояния между отдельными машинами и установками необходимо
учитывать не только максимальную компактность, но и обеспеченность удобства и
безопасности работы на них.
Взаимное размещение оборудования определяют направлением технологического
потока. Отдельные машины и аппараты желательно расположить в единую
производственную линию (по одной оси). Однако возможны варианты поворота машин
одна к другой под прямым углом, например, на участках составления фарша
колбасного производства.
Оборудование, устанавливаемое ниже уровня чистого пола (или ниже нулевой
отметки) в приямках, должно иметь ограждение (парапет по периметру приямка) и
лестницу.
Например, размещение дымогенераторов термического отделения колбасного
производства, части оборудования для производства костных жиров и т.п.
Крупногабаритное оборудование (горизонтально-вакуумные котлы в цехе кормовых и
технических продуктов, барабаны ФКМ и комбайны ФОВ из поточно-механизированных
линий в шкуроконсервировочном цехе) необходимо устанавливать перпендикулярно к
оси оконных проемов и в глубине цеха, чтобы обеспечить оптимальную освещенность
рабочих мест. При обработке кишечного сырья желательно оборудование начала
(обивочные столы) и конца (метровка, мотка и калибровка кишечного фабриката)
технологического процесса располагать ближе к оконным проемам, т.е.
предусматривать двустороннее естественное освещение.
При компоновке поточно-технологических линий: для фасовки и упаковки
продуктов, особенно при производстве мелкокусковых полуфабрикатов, обвалки и
жиловки в колбасном производстве и конвейерных линий для убоя скота и разделки
туш скота и птицы, необходимо учитывать требования НОТ. Это особенно важно для
определения рабочего места, его освещенности, положения самого рабочего места
по отношению к конвейеру или машине.
Термическое оборудование мясоперерабатывающего производства
(универсальные термоагрегаты, ванны для варки окороков, автокоптилки) и
консервного производства (автоклавы для стерилизация консервов) целесообразно
группировать и размещать по одной оси, что позволит правильно производить
транспортные операции (загрузку и выгрузку) и сохранить фронт их обслуживания.
При компоновке технологического оборудования следует уделить внимание
упрощению производственных потоков в результате правильной организации
транспортных средств между цехами и производствами, а также внутри цеха,
применять гравитационный способ подачи сырья и готовой продукции при
многоэтажном решении производственных помещений. Особенно важны вопросы
безопасности работы оборудования, его обслуживания.
При расстановке оборудования должны быть учтены возможности проведения
ветеринарно-санитарного контроля за производственными процессами, качеством
сырья и готовой продукции, а также возможности мойки и дезинфекции помещений,
оборудования, инвентаря.
Расстановку оборудования по цехам и производствам осуществляют методом
плоскостного моделирования на планах производствам цехов в масштабе 1:100.
6.
Технологические расчеты
Технологические расчеты проводят для определения расхода сырья и выхода
готовой продукции.
Они необходимы для установления размеров и производительности машины или
аппарата.
Основой технологического расчета является материальный баланс,
составляемый в соответствии с законом сохранения материи.
Масса поступавшего на переработку сырья равна массе готового продукта и
потерь:
, (6.1)
где Gi - масса поступающего i- го компонента продукта (отходов), кг;-
масса готового j-го компонента продукта (отходов), кг.
В периодических процессах материальный баланс составляют на один цикл для
непрерывных процессов в единицу времени.
В зависимости от поставленной задачи материальный баланс может быть
рассчитан для процесса в целом или отдельных его стадий, для группы машин или
одной машины.
На основании материального баланса определяют выход продукта на единицу
исходного сырья или одну из основных его составляющих в процентах.
Количество продукции, выпускаемой в единицу времени, называется
производительностью машины.
В зависимости от поставленной задачи рассчитывают действительную,
теоретическую или технологическую производительность.
Действительная производительность QД (кг/ч) - это количество продукции,
которое машина вырабатывает в единицу времени в течение смены с учетом потерь
времени на простои (замена инструмента, мойка, санитарная обработка и т.д.)
(6.2)
количество рабочих циклов;- ;продолжительность смены, ч;Ц -
продолжительность рабочего цикла, ч;П - продолжатель простоев, ч.
Теоретическая производительность QT - это количество продукта, которое
может выпустить машина при непрерывной работе:
=1/tЦ
Эффективность и рациональность эксплуатации машины (относительная
величина потерь времени работы) оценивают по коэффициенту использования ее
теоретической производительности:
(6.3)
Производительность можно повысить за счет увеличения одновременно
обрабатываемых объектов и степени совмещаемых операции (конвейерно-роторные
машины), увеличения скорости рабочих органов и улучшения геометрических
размеров обрабатываемых объектов.
Технологическая производительность - это максимально возможный выпуск
продукции в единицу времени при непрерывной обработке в машине
QТ.Х.=η·QТ (6.4)
Производительность в зависимости от размерности единиц продукции различают
массовую (в кг/с; кг/ч; т/ч), объемную (в м3/с; м3/ч),
штучную (в шт/с; шт/ч; шт/мин;. Производительность Q рассчитывают по формуле:
=V/tТ.Ц (6.5)
де V- вместимость оборудования, м3, кг, шт.;Т.Ц.-
продолжительность обработки продукта, с
Т.Ц.=LП/vср (6.6)
где LП - путь продукта в машине, u;ср - средняя скорость движение
продукта, м/с.
Коэффициент непрерывности обработки рассчитывают по формуле:
(6.7)
В машинах, работающих циклично, коэффициент находится в диапазоне 0 < η'<
1. В машинах
непрерывного действия η'=1.
Технологическую производительность повышают за счет ускорения процесса
обработки, увеличения коэффициента непрерывности (сокращения времени на
остановки, холостой ход рабочих органов), увеличения коэффициента использования
(уменьшение внецикловых потерь времени, увеличения сменности, лучшая
организация производства).
Продолжительность рабочего цикла tЦ (время между двумя последовательными
выпусками изделия зависит от класса машины: I класс однопозиционные без
перемещения изделия; П класс - многопозиционные без перемещения изделия, III -
многопозиционные с непрерывным перемещением изделия.
Продолжительность рабочего цикла tЦ в зависимости от класса машины
определяют следующим образом.
для машин I класса
при последовательном выполнении операций
(6.8)
при нормальном выполнении операций
(6.9)
при частичном совмещении операций
(6.10)
Ц - продолжительность загрузки аппарата (машины), с;
- продолжительность проведения n технологических операций,
с;
- продолжительность самой длительной операции, с;
- продолжительность совмещения соседних m операций, с;-
продолжительность выгрузки (съем детали) машины, с.
Для машин II класса
Ц=t0+tП+tК (6.11)
t0 - продолжительность остановок (выстоя) конвейера, с;П -
продолжительность перемещения изделия конвейера, с;К - кинематический цикл
привода конвейера, с.
Для машин III класса
=LП/υср (6.12)
7. Расчет
технологического оборудования и машин
7.1 Расчет
оборудования для убоя скота и разделки туш
Крупный рогатый скот и свиней обездвиживают в боксах с
электромеханическим или гидравлическим приводом.
Расчет боксов сводится к определению их габаритов в зависимости от
производительности и скорости движения ленты конвейера (3-10 м/мин).
Производительность боксов, измеряемую числом голов, проходящих в смену,
определяет с учетом времени, необходимого для обездвиживания скота, и длины
зоны конвейера, находящегося под наблюдением:
(7.1)
где Тс - длительность смены, ч;- длительность операции, мин (i - вид
операции: 1 - открывание боковой дверцы, 2 - загон животного в камеру, 3 -
закрывание боковой дверцы, 4 - электрооглушение, 5 - выгрузка, 6 - возврат пола
и передней стенки в исходное положение;- количество животных, одновременно
запускаемых в камеру.
При расчете машин для распиловки туш определяют усилие режима,
производительность и мощность двигателя.
Усилие Fн (H) определяют по формуле:
, (7.2)
где КP - сопротивление распилу, Н/м2; для влажной кости
КР=(200-300)·103, для охлажденного мяса КР=(50-80)·103, для мороженого мяса Кр
= (100-200) 103 Н/м2,
а и в - соответственно, ширина и толщина распиливаемого объекта, м;
0 - окружная скорость диска,
- скорость подачи продукции, м/с.
Мощность двигателя дисковых пил N (кВт) находят по формуле:
(7.3)
- мощность холостого хода, кВт; η - КПД передачи движения от двигателя к
валу диска;η=0,9…0,95.
.2 Расчет
оборудования для съемки и обработки шкур
На мясокомбинатах различной мощности используют машины для механического
снятия шкур. В зависимости от вида туш животных и машины подразделяют на
установки для КРС, и свиней.
Основные технологические требования при механической съемке шкур крупного
рогатого скота:
- перед съемом шкура туша должна быть зафиксирована о предварительным
натяжением 20-100% от натяжения при отделении шкуры;
при отвесной фиксации угол наклона туши к горизонту составляет 70°;
сначала снимают шкуру о лопаток, шеи, грудной клетки, боков частично со
спины со скоростью 8-10 м/мин, а затем отделяют остальную часть шкуры.
Съемку шкур с мелкого рогатого окота проводят в той же
последовательности, что и о КРС. Съемку шкур свиней проводят с использованием
электротельфера или лебедки.
Производительность установки непрерывного действия для съем шкур Q (гол/ч)
определяется по формуле:
(7.4)
где α0 - коэффициент использования максимальной производительности
установки;
- скорость движения туш по конвейеру, м/с; l - ; расстояние
между тушами, м.
Скорость движения туш для установок съема верхнего крупона и шкур υ
(м/с) определят по
формуле:
(7.5)
где
П - максимально допустимая скорость продольной съемки шкуры,
м/с
(7.6)
В - экспериментальный коэффициент, В = 2,5∙10-4;
а- коэффициент неучтенных факторов, для КРС а = (2,5…4,6)·10-3, для
мелкого рогатого окота а.= (5…15)-10-3, кроликов а.= (18…43)-10-3; РФ -
прочность поверхностной фиксации РФ = F0/L , где L- периметр отделения шкуры,
м;
α1 - угол отделения шкуры, град; α
- угол наклона конвейера
к горизонту, град.
Мощность двигателя N (кВт) к установкам для съемки шкур для установки
периодического действия определяют по формуле:
(7.7)
- максимальное усилие съемки шкуры, Н;
υ- скорость движения тягового органа,
м/с;
ηа - коэффициент запаса мощности; ηа =1,2…1,5;
η - КПД передачи от двигателя до ведущей
звездочки и барабана; η = 0,75
η1;- КПД устройства; η1
= 0,85.
Для установки непрерывного действия
(7.8)
с - среднее значение усилия съемки, Н;количество туш, одновременно
подвергаемых съемке шкуры
= Q∙t,
где t - продолжительность съемки шкуры).
Усилие съемки (F, Н) принимают для крупного рогатого скота Fmax=104, Fс=6∙103,
для мелкого рогатого скота Fmax = 1,5∙103, Fс=103, для свиней Fmax=5∙103,
Fс=3,5∙103, для кроликов Fmax = 0,8∙103, Fс=0,5∙103
Для очистки шкур после съемки от навала и. прирезей используют валосгоночные
и мездрильные машины, которые отличаются ножевыми валами (у первых - ножи
тупые, у вторых - острые).
7.3 Расчет
оборудования для съема щетины и волоса
Для механизированной съемки щетины после предварительной тепловой
обработки применяют скребмашины.
Пропускную способность Q (шт/c) машины непрерывного действия рассчитывают
по формуле:
(7.9)
где υ- скорость движения туш вдоль машины (скорость конвейера) м/с;
α0- коэффициент использования
максимальной производительности устройства; L- расстояние между тушами, в
горизонтальное продольных машинах L = 1,6 м, в вертикально-продольных L = 0,4 м
Мощность двигателя скребмашины N (кВт) определяют при максимальной их
загрузке в зависимости от усилий, окружных скоростей, параметров машины, с
учетом запаса мощности и пр.
.4 Общие
методы расчета резательных машин
Производительность резательных машин можно определить по кинематическому
уравнению процесса или по пропускной способности питающих механизмов и
устройств.
В процессе работы любой резательной машины на обрабатываем материале
образуются новые поверхности.
Производительность Q (кг/с) определяем по формуле:
(7.10)
Где F - режущая способность ножей, м2/с;
φ- коэффициент использования режущей
способности кожей;- поверхность раздела или полотна вновь образованной
поверхности при разрезании 1 кг продукта, м2/кг;
α - отношение длительности подсобных
операций к длительности измельчения, для непрерывно действующих машин α=0.
При проектировании машин размеры и число ножей, их скорость определяют по
F, которую находят из формул:
для многодисковых и многоленточных машин
=h∙υП∙Z0, (7.11)
средняя толщина разрезаемой продукции, м;- число ножей, шт;
υП - скорость подачи продукта, м/с.
Для машин с серповидными ножами
=60∙S∙ Z0∙n
площадь разреза слоя продукта, находящегося в чаше или желобе машины, м2.
Для машин с плоскими ножами, производящими поперечные разрезы продукции,
движущейся со скоростью:
Где а и в - соответственно поперечные размеры сечения продуктов,
подаваемой на резание, м;
с - расстояние между ножами по длине продукции, м.
Для волчков
(7.13)
φZ -коэффициент использования площади
решетки под отверстия, (0,2-0,5);- диаметр решетки, м;- частота вращения
ножей;- число лезвий на каждом ноже.
Мощность электродвигателя для резательной машины можно определить по
формуле:
(7.14)
Гдел.с. - лобовое сопротивление резанию, Н/м;
ηн - КПД ножа;
ηм - КПД машины;- пропускная
способность машины.
КПД ножа зависит главным образом от затрат энергии на трение продукта об
него.
.5 Расчет
смесителей
При конструировании перемешивающих устройств определят
производительность, длительность процесса перемешивания, потребляемую энергию и
мощность электродвигателей, выполняют прочностные и конструктивные расчеты
отдельных узлов и элементов.
Производительность барабанного смесителя Qc (кг/с) рассчитывают по
следующей формуле:
(7.15)
где V - объем барабана, занимаемый продуктом, м3;
ρ - плотность продукта, кг/м3;
тП - число перемещений продукта в барабане;- частота вращения барабана,З
- время загрузки барабана, с;Р - время разгрузки барабана, с.
Длительность перемешивания фарша tП (с) находят по формуле:
(7.16)
а и в - коэффициенты, зависящие от частоты вращения и формы лопастей,
формы, рода, сырья и назначения продукции (а>-0, в < 0);, определяемые
экспериментально;
с, с0 - заданная и исходная липкость фарша, Па (для докторской колбасы с0
=10400 Па, с = 13300 Па)
Мощность необходимую для привода перемешивающих устройств, определяют
следующим образом:
(7.17)
кТ - приведенный коэффициент скольжения, кт = 0,6-0,8;Ц - радиус цапфы
вала барабана, м;
в - расстояние от оси вращения до центра тяжести продукта, м;
ω- угловая скорость барабана,
рад/с;-высота подъема продукта от горизонтального положения, м;- время подъема
продукта на высоту;б, mПР - масса, соответственно, барабана и продукта.
.6 Расчет
подачи и мощности шприцев
Технологические расчеты шприцев включают в себя определение давления,
необходимого для вытеснения фарша по заданной скорости истечения;
или скорости истечения по заданному давлению вытеснения;
определение подачи шприца по заданным рабочим органам;
определение мощности двигателя к шприцу и производительности
вакуум-насоса, обслуживающего вытеснитель.
Давление, необходимое для выдачи фарша р (Н/см2) шприцами и поршневыми
вытеснителями, ориентировочно находят по формуле:
(7.18)
где β- поправочный коэффициент, зависящий от конструкции крышки и
способа отвода фарша (для плоской крышки с центральным отводом фарша р = 1, для
конической крышки с центральным отводе р = 0,85, для плоской крышки с боковым
отводом фарша р=1,2
к1 - сопротивление истечению фарша в трубе при скорости движения
последнего 1 м/с, Н/см2;
к0 - прирост давления при увеличении скорости движения фарша в е = 2,718
раза, Н/см2;, d. - диаметр цилиндра и цевки, см.I
В зависимости от вида фарша численное значение к1 и к0 равны
|
Вид фарша
|
к0
|
к1
|
|
Для колбас: копченой
|
17,20
|
3,80
|
|
вареной
|
9,76
|
3,25
|
|
чесноковой
|
4,56
|
5,31
|
|
для сосисок
|
4,55
|
3,43
|
Зная давление шприцевания, а также давление сжатого воздуха и давление в
фаршевом цилиндре гидрошприца, можно ориентировочно определить скорость
истечения фарша через цевку по формуле:
(7.19)
Действительная подача вытеснителя QB (м3/с) равна
=Z∙f∙υ (7.20)
- площадь сечения цевки или трубы;число цевок или труб, шт.
В зависимости от конструкций вытеснителей подачу QB определяют по
следующим формулам:
для двухвинтовых вытеснителей
=∙f∙υ0 (7.21)
f - площадь свободного прохода массы через вытеснитель, м2;
υ0 -истинная скорость осевого смещения
массы, м/с.
Действительная подача ширина Qд (кг/с) зависит от диаметр оболочки, ее
длины, способа надевания и других факторов
Д=3600 ∙QB ∙ρ ∙ηД (7.22)
где QB- секундная подача вытеснителя, м3/с;
ρ- плотность фарша, кг/м3;
ηД - коэффициент использования подачи
дам шприцев с непрерывной подачей фарша в цевки,
ηД = 0,4-0,7.
Мощность двигателя N (кВт) к вытеснителям определяют по формуле:
(7.23)
где Р0 - давление напора, создаваемое вытеснителем, Н/м2;
η-КПД вытеснителя, (η=0,18…0,3);
ηa- коэффициент запаса мощности, ηa
= 1,2
Расход энергии па шприцевание фарша составляет на поршневых механических
шприцах 0,45-1,3 кВт∙ч/т, на механических ротационных 1,2-1,8 кВт.ч/т, на
пневматических - 2,1-10 кВт∙ч/т.
8. Расчет
экономической эффективности
8.1 Расчет
экономической эффективности реконструкции предприятий
Расчет экономической эффективности реконструкции предприятия или цеха
должен включать характеристику организации производственного процесса, расчеты
капитальных вложений и технико-экономических показателей до и после
реконструкции.
Реконструкция предприятия должна обеспечить повышение уровня механизации
производства, совершенствовать организацию труда на рабочих местах, повысить
безопасность труда, создать комфортные условия труда и т.д.
Капитальные вложения на реконструкцию складываются из стоимости
строительных работ и стоимости оборудования. Стоимость строительных работ
включает затраты на снос или разбор перегородок, стен или зданий и затраты на
строительство. Среднюю стоимость 1 м2 площади производственного
помещения принимают, исходя, из существующих цен. Затраты на снос перегородок
принимают в размере 6-10% cстоимости производства новой площади
перепланированных или ликвидированных помещений.
Стоимость оборудования, используемого при реконструкции предприятия,
определяют по формуле:
К=ЗДМ+ЗПМ+ОС-В, (8.1)
Где ЗДМ - затраты на демонтаж устаревшего оборудования, руб.;
ЗДМ =(0,06…0,1)∙С0,
здесь С0 - стоимость демонтируемого оборудования, руб.;
ЗПМ - затраты на приобретение и монтаж нового оборудования, руб.;
ОС - остаточная стоимость заменяемого оборудования, не подлежащего
использованию или реализации, руб.:
ОС =СП∙(1-НГ∙Т) , (8.2)
здесь СП - первоначальная стоимость оборудования, руб.;
НГ - норма годовой амортизации на полное восстановление (см. приложение
10), доли единицы;
Т - длительность работы оборудования, лет;
В - выручка от продажи металлолома, руб.
Стоимость монтажа нового оборудования принимают в зависимости от
стоимости оборудование в следующих размерах:
монтаж оборудования - 6…8%
трубопроводов- 6...10%;
КИП и A - 3...5%
спецработы (фундамент под оборудование, изоляции трубопроводов и
оборудования, антикоррозийные работы) - 0,6...0,8%.
Эффективность реконструкции выражается в увеличении объема выпускаемой
продукции в смену и год, как в натуральном виде, так и в стоимостном выражении.
Товарная продукция предприятия до реконструкции и после реконструкции
показывается раздельно в таблице 16.1.
Таблица 8.1. Объем производства продукции до и после реконструкции
|
Наименование продукции
|
производство продукции
|
Товарная продукция
|
|
|
до реконструкции
|
после реконструкции
|
|
до реконструкции
|
после реконструкции
|
цена за 1т., руб
|
тыс. руб
|
цена за 1т., руб
|
тыс. руб
|
|
…
|
|
|
|
|
|
|
|
Итого
|
|
|
|
|
|
|
|
Увеличение (+)
|
|
|
|
|
|
|
Изменения в обслуживающем персонале определяют по операциям и участкам,
где внедрены новые машины или технология. Численность рабочих в основных цехах
определяется по нормам обслуживания.
По величине товарной, продукции и численности обслуживающего персонала до
и после реконструкции сравнивают на одного рабочего.
Изменение величины фонда оплаты труда рабочих (ФЗ, руб) определяют по
формуле:
ФЗ=(ЧР1-ЧР2)∙ИСР, (8.3)
где ЧР1, ЧР2 - численность обслуживающего персонала до и после реконструкции,
чел.;
ИСР - среднегодовая оплата труда рабочего до реконструкции, руб.
Себестоимость выпуска продукции после реконструкции цеха рассчитывают на
основе данных о фактических затратах на единицу продукции по статьям
калькуляции.
Затраты на сырье, электроэнергию и горюче-смазочные материалы
устанавливают по рыночным ценам.
Транспортно-заготовительные расходы определяют по средним нормам расхода
на 1 т продукции.
Годовая заработная плата с начислениями (ИЗП, руб) определяется исходя из
часовой тарифной ставки заработной платы с начислениями, умноженной на годовые
затраты труда:
ИЗП=СЧ∙ТГ, (8.4)
Где СЧ - часовая тарифная ставка, руб./ч;
ТГ - годовые затраты груда по данному технологическому процессу и
операции, ч.
Расходы на содержание и эксплуатацию оборудования включают амортизацию
оборудования и транспортных средств, затраты на эксплуатацию, текущий ремонт,
содержание и эксплуатацию внутризаводского транспорта, на возмещение и износ
малоценных и быстроизнашивающихся инструментов и приспособлений.
Амортизационные отчисления (ИА, руб.) определяются на основе норм
амортизации (см. приложение 10) по формуле:
ИА=Б∙а/100, (8.5)
Где Б - балансовая стоимость машины или оборудования, выполняющих данный
процесс, руб.;
а - норма отчислений на реновацию и капитальный ремонт, % (приложение
10).
Затраты на текущий ремонт (ИТР, руб.) определяют по формуле:
ИА=Б∙р/100
Где р - норма отчислений на текущий ремонт, % (приложение 10).
Затраты на электроэнергии (ИЭ, руб.) и горюче-смазочные материалы (ИГСМ,
руб.) определяются из расхода, электроэнергии или горючего и рыночной цены за 1
кВт. ч. или 1 кг горючего по формулам:
ИЭ=РЭ∙ЦЭ; , (8.6)
ИГСМ=РГСМ∙ЦГСМ, (8.7)
Где РЭ, РГСМ - расход электроэнергии (кВт) или горючего (кг);
ЦЭ - стоимость 1 кВт∙ч электроэнергии, руб.;
ЦГСМ - стоимость 1 кг топлива, руб.
Цеховые расходы включают затраты по обслуживанию и управлению цехами
основного производства - на содержание аппарата управления цеха и
вспомогательного персонала; амортизацию здания и сооружений, содержание зданий
и сооружений, текущий ремонт зданий и сооружений; охрану труда; износ
малоценного инвентаря, прочие расходы.
Содержание зданий включает стоимость освещения; стоимость электроэнергии
на технологические цели; стоимость отопления. Расходы по этой статье принимают
в размере 45% стоимости сооружений.
Износ малоценного инвентаря составляет 2-3% стоимости оборудования.
Общезаводские расходы принимают в размере 40-60% фонда оплаты труда основных
производственных рабочих. Прочие производственные расходы устанавливают в
размере 0,8% суммы предыдущих статей себестоимости продукции.
Внепроизводственные расходы принимают в размере 0,57% производственной
стоимости продукции.
Снижение себестоимости проекции (руб.) определяют по постоянной части
общезаводских расходов:
, (8.8)
Где 3П - постоянная часть затрат (фактические данные производства);, Q2 -
объем продукции, выпускаемой до и после реконструкции, т.
Увеличение прибыли оценивают по величине снижения себестоимости:
ΔП=П1-П2, (8.9)
Где П1, П2 - прибыль после реконструкции и до реконструкции, руб.
Рентабельность выпуска продукции определяют отношением прибыли к
себестоимости; коэффициент эффективности реконструкции - отношением прироста
прибыли к капитальным затратам на реконструкцию.
Срок окупаемости затрат на реконструкцию рассчитывают по формуле:
, (8.10)
где Ф1, Ф2 - основные производственные фонды до и после реконструкции,
руб.
Технико-экономические показатели реконструкции сводят в таблицу, которая
представляется в виде отдельного листа при защите дипломного проекта. Из
анализа данных делают выводы о значимости реконструкции.
8.2 Расчет
экономической эффективности конструирования и модернизации машин и оборудования
Расчет экономической эффективности новой конструкторской paзработки
сводится к определению ее технико-экономических показателей, которые сравнивают
с соответствующими показателями лучшей из существующих машин. К
технико-экономическим показателям новой конструкции машины относят себестоимость,
удельные капитальные вложения, уровень производительности труда, себестоимость
выпускаемой продукции, эксплуатационную надежность работы, срок окупаемости
капитальных затрат и другие.
Оптовую цену новой конструкции машины можно определить по формуле:
ЦН=(G∙С1+С0)∙1,15, (8.11)
Где G - масса новой машины, кг
С1 - себестоимость 1 кг без комплектующих покупных изделий;
С0 - общая стоимость комплектующих покупных изделий по рыночным ценам,
руб.; 1,15 - коэффициент, учитывающий среднее превышение оптовой цены над
себестоимостью.
Себестоимость 1 кг массы новой машины (руб.):
, (8.12)
Где ЦБ - рыночная цена промышленности базового технического средства
аналогичного назначения и сложности без покупных изделий, руб.;Б - масса
базового технического средства аналогичного назначения и сложности без покупных
изделий, кг.
Капитальные вложения (К0) во внедрение новой машины складываются из цены
машины, расходов на доставку и монтаж, расходов на строительные работы и
приобретение инструмента, оснастки и т.д.
Расходы на доставку принимают в размере 10-15% цены машины, на монтаж -
до 10% цены машины.
Стоимость вспомогательного оборудования принимают в размере 5-15%
стоимости оборудования.
Удельные капитальные вложения:
, (8.13)
Где ПГ - годовой, выпуск продукции на машине, т.
Производительность труда на новой машине:
, (8.14)
Где QCM - количество выработанной продукций в смену, т;
ЧР - численность рабочих, чел.
Трудоемкость единицы продукции:
=1/QT, (8.15)
Численность высвобождаемых рабочих при внедрении новой машины:
, (8.16)
гдеt1, t2 - трудоемкость изготовления единицы продукции до и после
внедрения новой машины, чел.-ч;
ПГ - годовой выпуск продукции, т; шт.; м3;
ВГ - временной фонд работы одного рабочего в году, ч.
Дополнительную прибыль от улучшения качества продукции определяют по
формуле:
, (8.17)
где Ц0 - оптовая цена: за единицу продукции i -го сорта, руб.;
Уi1, - удельный вес продукции i-го сорта на новой и действующей машине,
%.
Высвобождение производственной площади
, (8.18)
гдеПСМ1, ПСМ2 - объем выпускаемой продукции в смену на новой и старой
машинах, т;, m2 - объем продукции с 1 м2 на новой и старой машинах,
т/м2.
Удельная материалоемкость машины:
, (8.19)
Где GM - масса машины, кг.
Срок окупаемости новой машины:
, (8.20)
где Ц - стоимость годового выпуска продукта, руб.;
С - себестоимость годового выпуска продукции, руб.
На основании расчетов составляют таблицу и проводят анализ полученных
показателей, по которым устанавливают преимущества проектируемой машины.
8.3 Расчет
экономической эффективности внедрения нового оборудования
Одним из основных показателей машины является ее производительность,
которую определяют из паспортных данных каталогов (см. приложение) или
рассчитывал по формулам:
для машины непрерывного действия сменная производительность:
= QЧ ∙ tЭФ, (8.21)
для машины периодического действия сменная производительность:
= QЧ ∙ tЧ ∙ nЦ, (8.22)
где QЧ - производительность машины в час, кг/ч;ЭФ, tЧ - длительность работы
в смену и длительность цикла, ч;Ц - число циклов
ЭФ=ТСМ- tПЗР, (8.23)
где ТСМ - продолжительность смены, ч;ПЗР - продолжительность
подготовительно-заключительных работ и техобслуживания, ч.
Годовая производительность машин:
Г=QCM ∙m, (8.24)
где m - число рабочих смен в году.
Правильность выбранной системы машин можно определить лишь на основе
расчета технологической карты.
Цель составления технологической карты - по удельным показателям
себестоимости единицы продукции, затратам труда, энергии и материалам, затратам
на ремонт и техническое обслуживание, определить эффективность и
целесообразность установленного оборудования в сравнении с удельными
показателями до реконструкции предприятия.
По сопоставленным данным делают вывод о необходимости применения выбранного
оборудования. Кроме того, процесс расчета технологической карты можно выполнить
с помощью ЭВМ, это позволит составить несколько ее вариантов и выбрать наиболее
эффективный для реализации.
Экономический эффект от внедрения нового оборудования находят следующим
образом:
ЭГ=[(С1+ЕН∙К1)-( С2+Е1∙К2)]∙Пр, (8.25)
гдеС1, С2 - себестоимость единицы продукции до и после внедрения нового
оборудования;
ЕН - нормативный коэффициент эффективности капитальных затрат;
К1, К2 - удельные капитальные вложения до и после внедрения нового
оборудования;
Пр - годовой выпуск продукции иди годовой объем работ в натуральных
единицах после внедрения нового оборудования.
Включая капитальные вложения в стоимость действующих фондов, годовой
экономический эффект определяют по формуле:
ЭГ=(С1 - С2)-ЕН∙КЭ∙Пр, (8.26)
Где КЭ - дополнительные капиталовложения, отнесенные к единице годового
выпуска продукции после внедрения новой техники.
При изменении цены единицы продукции за счет повышения качества к сумме
годового экономического эффекта добавляют разницу в цене реализованной
продукции:
ЭР=(Ц2-Ц1)∙Пр, (8.27)
гдеЦ1, Ц2 - оптовая цена до и после внедрения новой техники, руб.
Если сравниваются несколько вариантов оборудования, то пользуются
следующими формулами, по которым выбирают по минимальной сумме затрат:
Кi+TOK∙Ci→min; Сi+ЕHi∙Ki→min, (8.28)
Где Ki - капиталовложения по i-му варианту;- себестоимость продукции в
год по i-му варианту.
Эксплуатационные расходы на единицу продукции складываются из следующих
составляющих: фонда оплаты труда рабочих, обслуживающих машины, и отчислений в
фонд социального страхования, затрат на топливо и электроэнергию, затрат на
охрану труда и технику безопасности; расходов на текущий ремонт;
амортизационных отчислений для зданий и оборудования, которые определяются по
формулам 16,3... 16,7.
Удельный капиталовложения (руб/т, руб/шт)
, (8.29)
гдеСФ1 - стоимость производственных фондов до и после внедрения нового
оборудования, руб;
ПР1, ПР2 - годовой выпуск продукции до и после внедрения оборудования, т
(шт., м3; и т.д.). Условно-годовая экономия:
ЭУ=(С1-С2)∙Пр, (8.30)
Срок окупаемости капитальных вложений (лет):
, (16.31)
Коэффициент эффективности капитальных вложений:
, (8.32)
Внедрение нового оборудования экономически целесообразно при выполнении
условия:
ОК≤ ОК1 или Э< Э1, (8.33)
гдеЭ1, ОК1 - значения параметров до внедрения мероприятий.
Годовой экономический эффект будет выше, если заменяемое оборудование
используют для других целей или реализуют.
Уровень механизации производства (УМП, %) находят по формуле:
, (8.34)
где ПМ - количество продукции, производимой с помощью машин и механизмов,
т (м3, шт.);
ПОБ - общее количество продукции, т (м3, шт.).
Уровень механизации труда (УМТ, %) определяет по формуле:
, (8.35)
Где ЧМ, ЧОБ - численность рабочих, занятых механизированным трудом, и
общая численность обслуживающего персонала.
Рентабельность использования фондов (капиталовложений) определяют из
уравнения:
, (8.36)
где Пр - прибыль;
ПР=СОБ-С
Где СОБ - стоимость всей товарной продукции, руб.;
С - себестоимость всей продукции, руб.;
ФОС, ФОБ - сумма новых и оборотных фондов, руб.
Рентабельность производства (PП, %) рассчитывает по формуле:
, (8.37)
Где М - материальные затраты, руб.;
- затраты и оплата труда, руб.
Результаты расчетов экономической эффективности предприятия сводят в
таблицу и анализируют.
Упрощенный расчет экономической эффективности переработки и реализации
готовой продукции можно привести в таблицах 8.2 и 8.3
Таблица 8.2. - Расчет себестоимости продукции
|
Наименование
|
количество, кг, м2, шт, ед.
|
Стоимость за единицу, руб.
|
Всего, руб.
|
|
Затраты
|
Стоимость сырья
|
|
|
|
|
Говядина
|
|
|
|
|
Свинина
|
|
|
|
|
Соль
|
|
|
|
|
Нитрит
|
|
|
|
|
Сахар
|
|
|
|
|
Пряности
|
|
|
|
|
Оболочка
|
|
|
|
|
Шпагат
|
|
|
|
|
…
|
|
|
|
|
ГСМ, электроэнергия
|
|
|
|
|
на зарплату рабочим
|
|
|
|
|
на текущий ремонт и
амортизацию оборудования
|
|
|
|
|
на аренду помещения (ТР и
ремонт)
|
|
|
|
|
…
|
|
|
|
|
Итого затрат
|
X
|
X
|
|
Таблица 8.3. - Расчет экономической эффективности готовой продукции
|
Наименование
|
Количество готовой
(побочной) продукции, кг
|
Стоимость 1кг, руб.
|
Всего, руб.
|
|
Готовая продукция
|
1.
|
|
|
|
|
2.
|
|
|
|
|
…
|
|
|
|
|
…
|
|
|
|
|
…
|
|
|
|
|
Всего: выручка
|
X
|
X
|
|
|
прибыль
|
X
|
X
|
|
|
…
|
Х
|
Х
|
|
|
Рентабельность
|
X
|
X
|
|
|
Срок окупаемости, лет
|
Х
|
Х
|
|
Дополнительная
литература
1. Архангельская
Н.М. Курсовое и дипломное проектирование предприятий мясной промышленности:
Учебн. пособие для студентов вузов. М.: Агропромиздат, 1986. - 200 с.
2. Боравский
В.А. Энциклопедия по переработке мяса в фермерских хозяйствах и на малых
предприятиях / В.А. Боравский. - М.: СОЛОН-Пресс, 2002. - 576 с.
. Бредихин
С.А. и др. Технологическое оборудование мясокомбинатов / С.А. Бредихин, О.В. Бредихина,
Ю.В. Космодемьянский, Л.Л. Никифоров. - 2 - е изд., исп. - М.: Колос, 2000. -
392 с.
. Буянов
А.С., Рейн Л.М., Слепченко Ш.И., Чурилин И.Н. Дипломное проектирование
предприятий мясной промышленности. М.: Пищевая промышленность, 1979. - 248 с.
. Генералов
Н.Ф., Колюбякина Л.А., Козлов Ю.Г., Степаненко А.И. Оборудование для первичной
переработки скота. М.: Пищевая промышленность, 1977. - 59 с.
. Генералов
Н.Ф., Колюбякина Л.А., Степапенко А.И. Оборудование обработки субпродуктов,
кишок и шкур для производства сухих животных кормов и жиров. М.: Пищевая
промышленность. 1979. - 148 с.
. Георгиевский
О.В. Единые требования по выполнению строительных чертежей. Справочное пособие.
- М.: Издательство "Архитектура - С", 2004. - 144 с.
. ГОСТ
16131 - 86 Колбасы сырокопченые.
. ГОСТ
16290 - 86 Колбасы варено-копченые.
. ГОСТ
16351 - 86 Колбасы полукопченые.
. ГОСТ
181157 - 88 Продукты убоя скота. Термины и определения.
. ГОСТ
23670 - 86 Колбасы вареные, сосиски, сардельки.
. ГОСТ
Р 51740 - 2001 Общие требования к разработке и оформлению технических условий
на пищевые продукты.
. ГОСТ
Р 52196 - 2003 Колбасы вареные, сосиски, сардельки, мясные хлеба.
. Грицай
E.B., Грицай H.П. Убой скота и разделка туш. 3-е изд. М.: Легкая и пищевая
промышленность, 1983. - 264 с.
. Драгилев
А.И. Дроздов В.С. Технологическое оборудование предприятий перерабатывающих
отраслей АПК. - М.: Колос, 2001. - 352 с.
. Иванов
К.А., Смирнов Г.А. Погрузочпо-разгрузочные работы на мясокомбинатах:
Справочник. 2-е изд. перераб. и доп. М.: Агромиздат, 1990.- 191 с.
. Ивашов
В.И. Технологическое оборудование мясной промышленности. - М.: Колос, 2001. -
552 с.
. Кавецкий
Г.Д., Васильев Б.В. Процессы и аппараты пищевой технологии. - 2-е изд.,
перераб. и доп. - М.: Колос, 2004. - 496 с.
. Консервирование
пищевых продуктов холодом (теплофизические основы) / Рогов И.А., Куцакова В.Е.,
ФилипповВ.И., Фролов С.В. - М.: КолосС, 2002. - 184 с.
. Лунин
О.Г., Вельтищев В.Н., Березовский Ю.M. и др. Курсовое и дипломное
проектирование технологического оборудования пищевых производств. М.:
Агропромиздат, 1990. - 269 с.
. Машины
и аппараты пищевых производств. В 2 кн. Кн. 1. Учеб. Пособие для вузов / С.Т.
Антипов, И.Т. Кретов, А.Н. Остриков, и др.; под ред. Акад. РАСХН В.А.
Панфилова. - М.: Высш. шк., 2001. - 703 с.
. Машины
и оборудование для перерабатывающих отраслей АПК, выпускаемые в регионах
России: Уральский, Западно-Сибирский и Восточно-Сибирский, Дальневосточный
экономические регионы: Каталог Том 3 Часть 1 / В.М. Баутин и др. - М.: ФГНУ
"Росинформагротех" , 1999. - 121 с.
. Машины
и оборудование для переработки сельскохозяйственной продукции, выпускаемые в
регионах России: Каталог (дополнение) / В.М. Баутин, В.С. Буклагин, И.Г.
Голубев и др.; ред В.М. Баутин. - М.: ФГНУ "Росинформагротех" , 2002.
- 187 с.
. Машины
и оборудование для цехов и предприятий малой мощности по переработке
сельскохозяйственного сырья: Каталог. Ч. 1. М.: Информагротех, 1992. - 287 с.
. Машины
и оборудование для цехов и предприятий малой мощности по переработке
сельскохозяйственного сырья. Каталог, часть I, 1995. - 257 с.
. Машины
и оборудование, приборы и средства автоматизации для перерабатывающих отраслей
АПК: Каталог. Т. 1, Ч. 1. М.: Мясная промышленность, 1990. - 213 с.
. Мезенова
О.Я., Ким И.Н., Бредихин С.А. Производство копченых пищевых продуктов. - М.:
Колос, 2001. - 208 с.
. Митин
В.В. Курсовое и дипломное проектирование оборудования предприятий мясной к
молочной промышленности. М.: Колос, 1992. - 272 с.
. Мясо.
Технические условия и методы анализа. М.: Издательство стандартов, 2001. - 96
с.
. Пелеев
А.И. Технологическое оборудование предприятий мясной промышленности. М.:
Пищевая промышленность, 1971. - 519 с.
. Плаксин
Ю.М., Малахов Н.Н., Ларин В.А. Процессы и аппараты пищевых производств. - 2-е
изд., перераб. и доп. - М.: КолосС, 2005. - 760 с.
. Примеры
и задачи по холодильной технологии пищевых продуктов (ч. 2, ч. 3) / В.Е.
Кунцакова, Н.А. Уварова, С.В. Мурашев, А.Л. Ишевский.- М.: КолосС, 2003. - 240
с.
. Проектирование
предприятий мясной отрасли с основами САПР/ Л.В. Антипова, Н.М. Ильина, Г.П.
Казюлин и др. - М.: КолосС, 2003. - 320
. Рогов
И.А. Общая технология мяса и мясопродуктов /И.А. Рогов, А.Г. Забашта, Г.П.
Зазулин. - М.: Колос, 2000. - 368 с.
. Стрингер
М., Денис К. Охлажденные и замороженные продукты: пер. с англ./под научн. ред.
Н.А. Уваровой. - СПб.: Профессия, 2004. - 551 с.
. Технология
полуфабрикатов из мяса птицы / Гущин В.В., Кулишев Б.В., Маковеев И.И.,
Митрофанов Н.С. - М.: Колос, 2002. - 200 с.
. Чижикова
Т.В. Машины для измельчения мяса и мясных продуктов. М.: Легкая я пищевая
промышленность, 1982. - 302 с.
Приложения
Приложение 1. Ведомость курсового проекта
Приложение 2.
Норма выхода по цеху убоя скота и разделки туш, % к живой массе
|
Вид скота
|
мощность, т в смену
|
живая масса 1 головы, кг
|
общая живая масса скота
|
Количество голов в смену
|
|
Крупный рогатый скот
|
50
|
350
|
47
|
106,38
|
304
|
|
Свиньи (со съемом шкуры)
|
30
|
100
|
62
|
48,4
|
484
|
|
Мелкий рогатый скот
|
20
|
40
|
40
|
50
|
1250
|
Приложение 3.
Выход продукции при убое животных
|
Вид сырья
|
Крупный рогатый скот
|
Мелкий рогатый скот
|
Свиньи
|
|
|
|
в шкуре
|
со съемом
|
|
|
|
|
крупона
|
шкуры
|
|
Мясная туша
|
47
|
40
|
69
|
65
|
62
|
|
Необработанные субпродукты
|
|
|
|
|
|
|
Голова
|
3,1
|
3,51
|
4,01
|
4,01
|
4,01
|
|
Уши
|
0,1
|
-
|
0,36
|
0,36
|
0,36
|
|
Язык (о калтыком)
|
0,39
|
0,31
|
0,42
|
0,42
|
0,42
|
|
Вымя
|
0.33
|
-
|
-
|
-
|
-
|
|
Межсосковая часть
|
-
|
-
|
-
|
-
|
0,42
|
|
Ливер
|
2,64
|
2,41
|
2,54
|
2,54
|
2,54
|
|
Почки
|
0,27
|
-
|
0,25
|
0,25
|
0,25
|
|
Рубец ( без содержимого)
|
1,72
|
1,99
|
-
|
-
|
-
|
|
Сычуг
|
0,32
|
-
|
-
|
-
|
-
|
|
Желудок (без содержимого)
|
-
|
-
|
0,56
|
0,56
|
0,56
|
|
Мясная обрезь и диафрагма
|
1,08
|
0,72
|
0,83
|
0,83
|
0,83
|
|
Ноги с копытами
|
1,77
|
-
|
1,49
|
1,49
|
1,49
|
|
Мясокостный хвост
|
0,16
|
0,15
|
0,09
|
0,09
|
0,09
|
|
Мясо пищевода
|
0,1
|
-
|
0,1
|
0,1
|
0,1
|
|
Итого
|
11,98
|
9,09
|
10,65
|
10.65
|
11,07
|
|
Комплект кишок (с
содержимым)
|
5,29
|
7,16
|
6.12
|
6,12
|
6,12
|
|
Мочевой пузырь (с
содержимым)
|
0,1
|
-
|
0,22
|
0,22
|
0,22
|
|
Итого
|
5,39
|
7,16
|
6,34
|
6,34
|
6,34
|
|
Сальник
|
0,69
|
0,78
|
0,42
|
0,42
|
0,42
|
|
Почечный жир
|
0,71
|
-
|
2,28
|
2,28
|
2,28
|
|
Жир с желудков
|
0,22
|
0,1
|
0,11
|
0,11
|
0,11
|
|
Жировая обрезь с туш
|
0,12
|
-
|
0,06
|
0,06
|
0,06
|
|
Жир со шкуры ( крупона)
|
-
|
-
|
-
|
0,85
|
1,27
|
|
Итого
|
1,74
|
0,88
|
2,78
|
3,72
|
4,14
|
|
Эндокринное сырье
|
0,06
|
0,1
|
0,06
|
0,06
|
0,06
|
|
Специальное сырье
|
0,087
|
-
|
0,04
|
0,04
|
0,04
|
|
Итого
|
0,15
|
0,1
|
0,1
|
0,1
|
0,1
|
|
Шкура крупон после обрядки
|
0,97
|
9
|
-
|
2,26
|
4,33
|
|
Репица
|
0,05
|
-
|
-
|
-
|
-
|
|
Волосяной хвост
|
0,06
|
-
|
-
|
-
|
-
|
|
Щетина
|
|
|
|
|
|
|
Мелкая
|
-
|
-
|
0,08
|
0,08
|
-
|
|
Хребтовая и боковая
|
-
|
-
|
0,16
|
0,16
|
0,16
|
|
Итого
|
0,08
|
9
|
0,24
|
2,5
|
4,49
|
|
Кровь пищевая
|
1,56
|
-
|
1,39
|
1,39
|
1,39
|
|
Кровь непищевая
(техническая)
|
1,64
|
2,88
|
1,39
|
1,39
|
1,39
|
|
Итого
|
3,2
|
2,88
|
2,78
|
2,78
|
2,78
|
|
Желчный пузырь
|
0,04
|
0,03
|
0,01
|
0,01
|
0,01
|
|
Мочевой пузырь
|
-
|
0,11
|
-
|
-
|
-
|
|
Половые органы
|
0,4
|
1
|
0,5
|
0,5
|
0,5
|
|
Выпоротки
|
0,01
|
-
|
-
|
-
|
-
|
|
Рога
|
0,24
|
0,35
|
-
|
-
|
-
|
|
Обрезь жировая непищевая
|
0,2
|
0,4
|
0,6
|
0,6
|
0,6
|
|
Конфискаты
|
0,3
|
0,2
|
0,22
|
0,22
|
0,22
|
|
Пищевод
|
-
|
0,14
|
-
|
-
|
-
|
|
Вымя
|
-
|
0,2
|
-
|
-
|
-
|
|
Легкие
|
-
|
0,76
|
-
|
-
|
-
|
|
Книжка
|
1,02
|
0,25
|
-
|
-
|
-
|
|
Селезенка
|
0,17
|
0,2
|
0,14
|
0,14
|
0,14
|
|
Сычуг
|
-
|
0,31
|
-
|
-
|
-
|
|
Обрезки с рубца
|
0,1
|
-
|
-
|
-
|
-
|
|
Прирези со шкур
|
0,12
|
1
|
-
|
-
|
-
|
|
Ножки
|
-
|
1,62
|
-
|
-
|
-
|
|
Копытца
|
-
|
0,14
|
0,14
|
0,14
|
|
Итого
|
2,61
|
6,77
|
1,61
|
1,61
|
1,61
|
|
Каныга
|
14,5
|
14
|
-
|
-
|
-
|
|
Содержимое желудка
|
-
|
-
|
0,8
|
0,8
|
0,8
|
|
Потери
|
7,36
|
10,12
|
5,61
|
6,5
|
6,67
|
|
Всего
|
100
|
100
|
100
|
100
|
100
|
Приложение 4.
Норма выхода по субпродуктовому цеху, % к живой массе
|
Вид сырья и продукции*
|
Категория сырья
|
Крупный рогатый скот
|
Мелкий рогатый скот
|
Свиньи
|
|
Головное мясо
|
II
|
0,92
|
-
|
0,83
|
|
Губы
|
II
|
0,16
|
-
|
0,5
|
|
Мозги
|
I
|
0,1
|
0,12
|
0,05
|
|
Челюсти
|
-
|
0,48
|
-
|
-
|
|
Черепные кости
|
-
|
1,27
|
-
|
-
|
|
черепные кости и челюсти
|
-
|
-
|
-
|
1,41
|
|
Непищевая обрезь
|
-
|
0,17
|
-
|
0,11
|
|
Железы
|
-
|
0,0006
|
-
|
-
|
|
Жир с головы
|
-
|
-
|
-
|
1,1
|
|
Голова ( без рогов, языка,
калтыка, мозгов)
|
-
|
-
|
3,39
|
-
|
|
итого
|
|
3,10
|
3,51
|
4.01
|
|
Язык
|
I
|
0,23
|
0,19
|
0,2
|
|
Калтык
|
II
|
0,16
|
0,12
|
0,22
|
|
Итого
|
|
0,33
|
0,31
|
0,42
|
|
Легкие
|
п
|
0,62
|
-
|
0,32
|
|
Сердце
|
I
|
0,39
|
0,4
|
0,26
|
|
Печень
|
|
|
|
|
|
пищевая (75 %)
|
I
|
0,95
|
1
|
1,21
|
|
непищевая (25 %)
|
|
0,32
|
0,33
|
0,4
|
|
Трахея
|
-
|
0,14
|
0,2
|
0,07
|
|
жир с ливера
|
-
|
0,11
|
0,03
|
0,04
|
|
Обрезь непищевая
|
-
|
0,11
|
0,45
|
0,24
|
|
Итого
|
|
2,64
|
2,41
|
2,54
|
|
Почки обработанные
|
I
|
0,24
|
-
|
0,23
|
|
жировая обрезь с почек
|
-
|
0,03
|
-
|
0,02
|
|
итого
|
|
0,27
|
-
|
0,25
|
|
Пящевод
|
|
|
|
|
|
Мясо
|
|
0,07
|
-
|
0,05
|
|
оболочка
|
-
|
0,03
|
-
|
0.04
|
|
Итого
|
|
од
|
-
|
од
|
|
Уши
|
II
|
од
|
-
|
0,36
|
|
Волос ушной
|
_
|
0,001
|
-
|
-
|
|
Итого
|
|
0,101
|
_
|
0,36
|
|
Рубец очищенный
|
II
|
1,32
|
1,24
|
-
|
|
Отходы
|
-
|
0,4
|
0,75
|
-
|
|
Итого
|
|
1,72
|
1,99
|
-
|
|
Сычуг обработанный и свиной
желудок
|
II
|
0,21
|
-
|
0,4
|
|
Слизистая оболочка (пленка)
|
-
|
0,11
|
-
|
0,16
|
|
итого
|
|
0,32
|
-
|
0,56
|
|
Вымя и межсосковая часть
(промытые)
|
I
|
0,33
|
|
0,42
|
|
Обрезь мясная (промытая)
|
I
|
1,08
|
0,72
|
0,33
|
|
Мясокостный хвост
(промытый)
|
|
0,16
|
0,15
|
0,09
|
|
Итого
|
|
1,57
|
0,87
|
0,92 (1,34)
|
|
Сухожилия сырые
|
-
|
0,16
|
-
|
-
|
|
Цевка сырая
|
-
|
0,39
|
-
|
-
|
|
Копыта сырые
|
-
|
0,15
|
-
|
-
|
|
Обрезь с ног
|
-
|
0,2
|
-
|
-
|
|
Пуговый сустав
|
-
|
0,87
|
-
|
-
|
|
Ноги очищенные и промытые
|
п
|
-
|
-
|
1,21
|
|
Потери
|
-
|
-
|
-
|
0,28
|
|
Итого
|
|
1,77
|
-
|
1,49
|
|
Всего
|
|
11,98
|
9,09
|
10,65/11,07
|
Приложение 5.
Норма выхода по цеху кормовых и технических продуктов, % к живой массе
|
Сырье
|
Цех-поставщик
|
Крупный рогатый скот
|
Мелкий рогатки: скот
|
Свиньи
|
|
Жирсодержащее
|
Убоя скота и разделки туш
|
1,64
|
2,19
|
0,82
|
|
Субпродуктозый
|
0,88
|
4,79
|
0,39
|
|
Кишечный
|
0,09
|
0,9
|
0,95
|
|
Жировой
|
0,53
|
0,20
|
0,84
|
|
Итого
|
3.14
|
8,16
|
3
|
|
Нежиросодержащее
|
Убоя скота и разделке туш
|
0,72
|
4,03
|
0,65
|
|
Рога и роговой стержень
|
То же
|
0,24
|
0,35
|
-
|
|
Печень непищевая
|
Субпродуктовый
|
0,32
|
0,33
|
0,4
|
|
Копыта
|
|
0,15
|
0,2
|
0,14
|
|
Шлям
|
Кишечный
|
0,75
|
0,9
|
0,88
|
|
Итого
|
2,18
|
5,81
|
2,07
|
|
Всего
|
5,32
|
13,97
|
5,07
|
|
Кровь техническая
|
Убоя скота и разделки туш
|
1,64
|
2,88
|
1,39
|
|
Всего
|
0,95
|
16,85
|
6,46
|
Примечание. 1. На переработку поступают также кость паренка, фибрин,
форменные элементы крови и технические зачистки из мясоперерабатывающего
(консервного) цеха. 2. Сырье каждой группы от всех видов скота перерабатывают
вместе.
Приложение 6.
Норма выхода по цеху кормовых и технических продуктов
|
Сырье
|
Соотношение
|
Готовая продукция,
выработанная в горизонтальных вакуумных котлах
|
Норма выхода, % к массе
сырья с добавлением кости
|
|
сырья
|
кости
|
|
|
|
Жиросодержащее
|
30
|
Жир технический
|
8
|
|
|
|
Мясокостная мука
|
28
|
|
|
|
Потери
|
74
|
|
|
|
Итого
|
100
|
|
Нежиросодержащее
|
90
|
10
|
Мясная мука
|
20
|
|
|
|
Потери.
|
80
|
|
|
|
Итого
|
100
|
|
Шлям
|
95
|
5
|
Мука
|
18
|
|
|
|
Потери
|
82
|
|
|
|
Итого
|
100
|
|
Кость сырая
|
-
|
100
|
Жир технический
|
8
|
|
|
|
Костная пука
|
43
|
|
|
|
Погори
|
49
|
|
|
|
Итого
|
100
|
Приложение 7.
Норма выхода при переработке технической крови
|
Вид сырья к продукции
|
Крупный рогатый скот
|
Мелкий рогатый скот
|
Свиньи
|
|
Сырье
|
|
|
|
|
Фибрин, % к массе цельной
крови
|
12
|
12
|
12
|
|
Сырой коагулят, % к массе
цельной крови
|
80
|
80
|
80
|
|
Коагулированный фибрин, % к
массе сырого фибрина
|
90
|
90
|
90
|
|
Продукция
|
|
|
|
|
Кровяная мука
|
|
|
|
|
из цельной крови, % к кассе
крови
|
17
|
16,5
|
17,5
|
|
из сырого фибрина, % х
массе фибрина
|
20
|
19,5
|
20,5
|
|
из сырого коагулята, % к
кассе коагулята
|
21
|
21
|
21,5
|
|
коагулированного фибрина, %
х массе фибрина
|
20
|
25
|
27
|
|
Консервированная кормовая
кровь, % к массе цельной крови
|
67
|
66
|
70
|
Приложение 8.
Норма выхода при переработке на кормовую муку
|
% к живой массе
|
% к массе сырья
|
|
сырье
|
Крупный рогатый скот
|
мелкий рогатый скот
|
свиньи
|
Сырье
|
сухая продукция
|
|
|
|
|
Крупный рогатый скот
|
мелкий рогатый скот
|
свиньи
|
Крупный рогатый скот
|
мелкий рогатый скот
|
свиньи
|
|
Рога
|
0,24
|
0,35
|
-
|
76
|
40
|
-
|
74
|
74
|
-
|
|
Копыта
|
0,15
|
0,2
|
0,14
|
100
|
100
|
100
|
67
|
67
|
80
|
Примечание. Для производства мясокостной муки используют копыта свиней,
рога, копыта крупного и мелкого рогатого скота, непригодные для выработки
изделии из рога и кости.
Приложение 9.
Норма потерь, % к массе
|
Продукция
|
При охлаждении в течении
|
При хранении охлажденной
продукции в течении 3 суток
|
При замораживании не более
40 часов
|
|
20-21 ч
|
12-16 ч
|
|
Однофазном
|
двухфазном
|
|
Сухая зачистка
|
промывка
|
промывка
|
|
|
|
|
Говядина в полутушах и
четвертинах
|
1,19
|
1,69
|
1,43
|
0,59
|
1,64
|
0,73
|
|
Баранина в тушах
|
1,26
|
1,76
|
1,53
|
0,68
|
1,78
|
0,91
|
|
Свинина в тушах и полутушах
|
|
|
|
|
|
|
|
в шкуре
|
0,99
|
1,38
|
1,19
|
0,44
|
1,49
|
0,74
|
|
без крупона
|
0,9
|
1,26
|
1,09
|
0, 14
|
1,36
|
0,67
|
|
• без шкуры
|
0,88
|
1,25
|
1,07
|
0,44
|
1,11
|
0,61
|
|
Субпродукты
|
-
|
1,63
|
-
|
0,77
|
-
|
-
|
Приложение
10. Норма расхода мяса на кости на 1 т, т
|
Продукция
|
Общая
|
В том числе говядины
|
Продукция
|
Общая
|
В том числе говядины
|
|
Колбасы вареные
|
1,11
|
0,61
|
Пельмени.
|
0,567
|
-
|
|
Сосиски
|
1,1
|
0,6
|
Котлеты (на 1000 шт
|
0,04
|
-
|
|
Сардельки
|
1,05
|
0,6
|
Суповой набор
|
0,7
|
-
|
|
Колбасы
|
|
|
Рагу
|
0,6
|
-
|
|
полукопченые
|
1,61
|
0,9
|
Фрикадельки Останкинские
|
1,041
|
-
|
|
варено-копченые
|
1,95
|
1,15
|
киевские
|
0,803
|
-
|
|
сырокопченые
|
2,1
|
1,2
|
Фарш мясной из говядины
|
1,36
|
1,35
|
|
Свинокопчености
|
1,48
|
-
|
из свинины
|
1,2
|
-
|
|
Полуфабрикаты
|
|
|
|
|
|
|
Мелкокусковые и порционные
(мякотные) (на 1000 порций)
|
0,154
|
-
|
|
|
|
|
крупнокусковые
|
|
|
|
|
|
|
из говядины
|
1,36
|
1,36
|
|
|
|
|
из свинины
|
1,2
|
|
|
|
|
Приложение
11. Норма выхода при обвалке, % к массе мяса на костях
|
Кость
|
Говядина
|
Свинина
|
|
Поделочная
|
2,6
|
4
|
|
Кулаки
|
6,2
|
-
|
|
Кости для производства
|
|
|
|
клея
|
8,5
|
4,9
|
|
желатина
|
5,7
|
2,8
|
|
Итого
|
23
|
11,7
|
Примечание. Нормы выхода кости для разделки туш указаны только для
колбасных изделий (без учета выпуска копченостей и полуфабрикатов). 2. При
опиловке говяжьей кости потеря составляют: поделочной - 1,5 %, цевки.- 1,
реберной части со спинными позвонками - 1 %.
Приложение
12. Норма расхода жалованного мяса и прочего сырья для выработки колбас, кг на
100 кг готовой продукции
|
Вид сырья
|
Вареные колбасы
|
Сосиски и сардельки
|
Полукопченые колбасы
|
Сырокопченые колбасы
|
|
Говядина жилованная
|
|
|
|
|
|
высший сорт
|
13,5
|
|
|
41
|
|
1-й сорт
|
15,8
|
34,3
|
12,2
|
|
|
2-й сорт
|
12,4
|
20,8
|
49,4
|
|
|
Итого
|
41,7
|
55,1
|
61,6
|
41
|
|
Свинина жилованная
|
|
|
|
|
|
нежирная
|
12,4
|
|
|
|
|
полужирная
|
22,5
|
24
|
33,1
|
|
|
жирная
|
|
|
|
81,9
|
|
Итого
|
34,9
|
24
|
33,1
|
81,9
|
|
Всего жилованного мяса
|
76,6
|
79,1
|
94,7
|
122,9
|
|
Шпик
|
12,2
|
|
|
|
|
Грудинка
|
|
|
30,3
|
|
|
Жир-сырец говяжий, свиной
|
|
8,6
|
|
|
|
Молоко сухое
|
0,335
|
|
|
|
|
Яйца или меланж
|
0,308
|
|
|
|
Приложение
13. Норма выхода жилованного мяса по сортам, % к общей массе жилованного мяса
|
Сорт мяса
|
Говядина
|
Свинина
|
Конина
|
|
|
Ш категории
|
II и IV категорий
|
|
|
Высший ( нежирная)
|
20
|
25
|
40
|
20
|
|
1-й (полужирная)
|
45
|
35
|
40
|
25
|
|
2-й (жирная)
|
35
|
40
|
20
|
55
|
Приложение
14. Удельные нормы расхода теплоэнергоресурсов на технологические цели
|
Операция
|
Укрупненная норма расхода
по цехам мясожирового производства мясокомбинатов различной мощности, т мяса
в смену
|
|
Воды м3
|
Пара, кг
|
Электроэнергии, квт∙ч
|
|
30
|
50
|
100
|
30
|
50
|
100
|
30
|
50
|
100
|
|
Убой скота, разделка туш,
обработка субпродуктов на 1 гол.
|
|
|
|
|
|
|
|
|
|
|
крупный рогатый скот
|
0,34
|
0,39
|
0,315
|
4,6
|
4
|
3,8
|
0,5
|
0,4
|
0,35
|
|
свиньи
|
0,3
|
0,28
|
0,27
|
7
|
5
|
0,2
|
0,18
|
0,16
|
|
со шпаркой
|
0,3
|
0,28
|
0,27
|
7
|
6
|
5
|
0,2
|
0,18
|
0,16
|
|
со съемкой крупона
|
|
|
|
|
|
|
0,22
|
0,2
|
0,18
|
|
Мелкий рогатый скот
|
0,065
|
0,06
|
0,057
|
0,6
|
0,5
|
0,4
|
0,04
|
0,035
|
0,03
|
|
обработка кишок на 1
комплект
|
|
|
|
|
|
|
|
|
|
|
говяжьих
|
0,2
|
0,16
|
0,14
|
0,8
|
0,5
|
0,4
|
0,06
|
0,045
|
0,05
|
|
свиных
|
0,15
|
0,09
|
0,07
|
0,4
|
0,3
|
0,22
|
0,035
|
0,03
|
0,04
|
|
бараньих
|
0,035
|
0,025
|
0,02
|
0,1
|
0,07
|
0,03
|
0,004
|
0,005
|
0,006
|
|
Обработка жирсырья на 1
тонну жирсырья
|
|
|
|
|
|
|
|
|
|
|
говяжьего
|
6
|
5,2
|
4,7
|
180
|
150
|
140
|
25
|
18
|
15
|
|
свиного со съемкой крупона
|
5,8
|
5,7
|
5
|
250
|
200
|
190
|
23
|
16
|
14,5
|
|
со шпаркой
|
6,5
|
6
|
5,7
|
250
|
200
|
190
|
23
|
16
|
14,5
|
|
бараньего
|
|
|
|
240
|
190
|
180
|
30
|
20
|
17
|
|
Обработка кости в (в
автоклаве) на 1 т кости
|
0,9
|
0,8
|
0,7
|
450
|
425
|
400
|
12
|
7,8
|
6
|
|
обработка шкур крупного
рогатого скота
|
0,11
|
0,1
|
0,09
|
0,7
|
0,06
|
0,5
|
0,39
|
0,27
|
0,25
|
|
свиней
|
0,02
|
0,015
|
0,01
|
0,35
|
0,3
|
0,26
|
0,2
|
0,15
|
0,1
|
|
мелкого рогатого скота
|
0,01
|
0,008
|
0,007
|
|
|
|
|
|
|
Приложение
15. Расход теплоэнергоресурсов на мясоперерабатывающем производстве
|
Продукция
|
Норма расхода на единицу
готовой продукции
|
|
Воды, м3
|
Пара, мДж
|
Холода, Дж
|
Газа, м3
|
Сжатого воздуха
|
Электроэнергии, кВт∙ч
|
|
Вареные колбасы, т
|
16
|
4,6
|
436
|
17
|
89
|
65
|
|
Сосиски, т
|
16
|
4,6
|
435
|
17
|
89
|
149
|
|
Сардельки, т
|
16
|
4,6
|
436
|
17
|
89
|
65
|
|
Фаршированные колбасы
|
17
|
4,6
|
436
|
20
|
-
|
13
|
|
Полукопченые колбасы, т
|
16
|
4,6
|
435
|
17
|
110
|
94
|
|
Варено-копченые колбасы, т
|
16
|
4,6
|
436
|
17
|
100
|
116
|
|
Сырокопченые, т
|
16
|
4,6
|
436
|
17
|
110
|
116
|
|
Свинокопчености, т
|
16
|
4,6
|
436
|
17
|
65
|
47
|
|
Пельмени, т
|
9
|
1,46
|
934
|
|
|
40,5
|
|
Котлеты, тыс. шт.
|
8
|
2,1
|
8,3
|
|
|
3,5
|
|
Натуральные полуфабрикаты,
тыс, порции
|
16
|
3,6
|
502
|
15
|
|
47
|
|
Копчености
|
16
|
4,6
|
436
|
17
|
65
|
47
|
Приложение
16. Расход энергоресурсов мясожировых производств
|
Вид мяса
|
Удельная норма
энергетических расходов для мясожировых производств мясокомбинатов различной
мощности
|
|
30 т в смену ;
|
50 т в смену
|
100 т в смену
|
|
вода, м3
|
|
Говядина
|
14
|
12
|
10
|
|
Свинина
|
13
|
11
|
9
|
|
Баранина
|
19
|
17
|
15
|
|
Пар, т/ч
|
|
Говядина
|
0,7
|
0,6
|
0,5
|
|
Свинина
|
0,55
|
0,45
|
0,4
|
|
Баранина
|
0,9
|
0,8
|
0,7
|
|
Мощность электродвигателей,
КВт
|
|
Говядина
|
22
|
18
|
15
|
|
Свинина
|
16
|
13
|
10
|
|
Баранина
|
26
|
23
|
20
|
Приложение
17. Теплофизические свойства мяса и мясных продуктов. Плотность мясных
продуктов
|
Продукт
|
ρ,
кг/м3
|
Продукт
|
ρ,
кг/м3
|
|
Кости
|
1140
|
Свинина и баранина
|
1020-1070
|
|
Говядина обезжиренная
|
1020-1070
|
Жир свиной*
|
850
|
*Сырец
Приложение
18. Параметры фарша докторской колбасы
|
Параметр
|
температура t, ºС
|
|
30
|
40
|
50
|
60
|
70
|
80
|
|
теплопроводность λ,Вт/(м∙К)
|
0,437
|
0,429
|
0,450
|
0,428
|
0,442
|
0,453
|
|
Теплоемкость с, Дж/(кг∙К)
|
3353
|
3116
|
2981
|
2884
|
2976
|
3082
|
|
а∙106, м2/с
|
0,1217
|
0,1292
|
0,1417
|
0,1375
|
0,1392
|
0,1378
|
Приложение
19. Вязкость мясного фарша в зависимости от количества добавляемой воды
|
Вид фарша
|
вязкость μ·10 - 5 при добавлении воды
|
|
0
|
10%
|
20%
|
30%
|
|
пз
|
Па∙с
|
пз
|
Па∙с
|
пз
|
Па∙с
|
пз
|
Па∙с
|
|
Говяжий
|
58
|
5,8
|
12
|
1,2
|
9
|
0,9
|
-
|
-
|
|
Из полужирной свинины
|
46
|
4,6
|
34
|
3,4
|
8
|
0,8
|
4
|
0,4
|
|
Из говядины (60 %) и
полужирной свинины(40%)
|
44
|
4,4
|
16
|
1,6
|
5,3
|
0,53
|
2
|
0,2
|
|
Из говядины (20 %) и
полужирной свинины (80%)
|
56
|
5,6
|
20
|
2,0
|
0,52
|
3,8
|
0,38
|
|
Из полужирной свинины
|
43
|
4,3
|
31
|
3,1
|
-
|
-
|
-
|
-
|
|
Ив говядины (80 %) и
полужирной свинины (20 %)
|
42
|
4,2
|
40
|
4,0
|
-
|
-
|
-
|
-
|
|
Из говядины (20%) и полужирной
свинины (80 %)
|
56
|
5,6
|
55
|
5,5
|
2,3
|
0,23
|
|
|
Приложение
20. Ориентировочные значения коэффициента теплопередачи к, Вт/(м2·К)
|
Вид теплообмена
|
Для движения
|
|
вынужденного
|
свободного
|
|
От газа к газа
|
10-40
|
4-12
|
|
От газа к жидкости
|
10-60
|
6-12
|
|
От конденсирующего пара:
|
|
|
|
к воде
|
800-3500
|
300-1200
|
|
к органическим жидкостям
|
120-340
|
60-170
|
|
к кипящей жидкости
|
-
|
300-2500
|
|
От жидкости к жидкости
|
|
|
|
для воды
|
800-1700
|
140-340
|
|
для органических жидкостей
|
120-270
|
30-60
|
Приложение
21. Теплофизические свойства воды на линии насыщения
|
t,°с
|
ρ·105,
Па
|
Плотность ρ, кг/м3
|
h, Дж/кг
|
С кДж/(кг·К)
|
Теплопроводность λ·102, Вт/(м·К)
|
а·103, м2/с
|
η·106, Па·с
|
ν·106, м2/с
|
β·104, 1/K
|
δ·104, Н/м
|
Рr
|
|
0
|
1,013
|
999,9
|
0
|
4,212
|
55,1
|
13,1
|
1788
|
1.789
|
-0,63
|
756,4
|
13,67
|
|
10
|
1,013
|
999,7
|
42,04
|
4,191
|
57,4
|
13,7
|
1306
|
1,306
|
+0,70
|
741,5
|
9,52
|
|
20
|
1,013
|
998,2
|
83,91
|
4,183
|
59,9
|
14,3
|
1004
|
1,006
|
1,82
|
726,9
|
7,02
|
|
30
|
1,013
|
995,7
|
125,7
|
4,174
|
61,8
|
14,9
|
801,5
|
0,805
|
3,21
|
712,2
|
5,42
|
|
40
|
1,013
|
992,2
|
167,5
|
4,174
|
63,5
|
15,3
|
653,3
|
0,659
|
3,87
|
696,5
|
4,31
|
|
50
|
1,013
|
988,1
|
209,3
|
4,174
|
64,8
|
15,7
|
549,4
|
0,556
|
4,49
|
676,9
|
3,54
|
|
60
|
1,013
|
883,1
|
251,1
|
4,179
|
65,9
|
16,0
|
469,0
|
0,478
|
5,11
|
662,2
|
2,98
|
|
70
|
1,013
|
977,8
|
293,0
|
4,187
|
66,8
|
16,3
|
406,1
|
0,415
|
5,70
|
643,5
|
2,55
|
|
80
|
1,013
|
971,8
|
355,0'
|
4,195
|
67,4
|
16,6
|
355,1
|
0,365
|
6,32
|
625,9
|
2,21
|
|
90
|
1,013
|
965,3
|
377,0
|
4,208
|
68,0
|
16,8
|
314,9
|
0,326
|
6,95
|
607,2
|
1,95
|
|
100
|
1,013
|
958,4
|
419,1
|
4,220
|
68,3
|
16,9
|
232,5
|
0,235
|
7,52
|
588,6
|
1,75
|
Приложение
22. Основные характеристики металлов и сплавов
|
Металл, сплав
|
Плотность ρ, кг/м3
|
Коэффициент линейного
расширения βЛ·105, 1/K при температуре 0-100°С
|
Теплопроводность λ, Вт/(м·К)
|
Модуль упругости Е∙10
- 11Па Е∙10 -5МПа
|
Модуль сдвига G∙10
-10 Па G∙10-4МПа
|
Коэффициент Пуассона μ
|
|
Сталь
|
|
|
|
|
|
|
|
углеродистая
|
7,85
|
1,25
|
52,3
|
2,0-2,2
|
8,0-8,5
|
0,3
|
|
никелевая
|
7,85
|
1,2
|
17,5-25,6
|
2,09
|
8,1-8,4
|
0,3
|
|
Чугун
|
7,04-7,4
|
1,1
|
63
|
1,0-1,2
|
2,9-5,5
|
0,27-0,15
|
|
Медь
|
8,9
|
1,73
|
373-390
|
1,1-1,3
|
4,1-4,9
|
0,32-0,35
|
|
Латунь
|
8,6
|
1,9
|
86-105
|
0,66-1,0
|
3,1-4,1
|
0,33
|
|
Бронза
|
8,8
|
1,8
|
59,4
|
0,9-1,2
|
3,8
|
0,34
|
|
Никель
|
8,9
|
1,3
|
58,2
|
2,05
|
-
|
0,33
|
|
Алюминий
|
2,7
|
2,4
|
210
|
0,68-0,72
|
2,5-3,5
|
0,363
|
|
Цинк
|
7,15
|
1,65
|
110,5
|
0,9-1,2
|
3,7-4,1
|
0,205
|
|
Олово
|
7,3
|
2,2
|
112
|
0,4
|
2,6
|
-
|
|
Мельхиор
|
8,9
|
1,6
|
29
|
0,85
|
-
|
-
|
|
ВТ
|
4,4
|
0,83
|
7,96
|
I.I5
|
4,3
|
-
|
Приложение
23. Параметра насыщенного водяного пара
|
Давление, МПа
|
Температура насыщения, ºС
|
Удельный объем насыщенного
пара, м3/кг
|
Удельная энтальпия, кДж/к
|
|
|
|
жидкости
|
пара
|
|
0,001
|
6,92
|
129,9
|
29,32
|
2513
|
|
0,002
|
17,514
|
66,97
|
73,52
|
2533
|
|
0,003
|
24,097
|
45,66
|
101,04
|
2545
|
|
0,004
|
28,979
|
34,81
|
121,42
|
2554
|
|
0,005
|
32,88
|
28,19
|
137,83
|
2561
|
|
0,006
|
35,18
|
23,74
|
151,50
|
2567
|
|
0,007
|
39,03
|
20,53
|
163,43
|
2572
|
|
0,008
|
41,54
|
18,10
|
173,9
|
2575
|
|
0,009
|
43,79
|
16,20
|
183,3
|
2580
|
|
0,010
|
45,84
|
14,68
|
191,9
|
2584
|
|
0,015
|
54,00
|
10,02
|
2599
|
|
0,020
|
60,08
|
7,647
|
251,4
|
2609
|
|
0,025
|
64,99
|
6,202
|
272,0
|
2618
|
|
0,030
|
69,12
|
5,225
|
289,3
|
2625
|
|
0,034
|
72,02
|
4,650
|
301,5
|
2630
|
|
0,040
|
75
|
1,994
|
317,7
|
2636
|
|
0,045
|
78,75
|
3,574
|
329,6
|
2641
|
|
0,050
|
81,35
|
3,239
|
340,6
|
2645
|
|
0,060
|
85,95
|
2,732
|
360,0
|
2653
|
|
0,070
|
89,97
|
2,364
|
376,8
|
2660
|
|
0,080
|
93,52
|
2,087
|
391,8
|
2665
|
|
0,090
|
95,72
|
1,869
|
405,3
|
2670
|
|
0,1
|
99,64
|
1,694
|
417,4
|
2675
|
|
0,2
|
120,23
|
0,8854
|
504,8
|
2707
|
|
0,3
|
133,54
|
0,6057
|
561,4
|
2725
|
|
0,4
|
143,62
|
0,4624
|
604,7
|
2738
|
|
0,5
|
151,84
|
0,3747
|
640,1
|
2749
|
|
0,6
|
158,84
|
0,3156
|
670,5
|
2757
|
|
0,7
|
164,96
|
0,2728
|
697,2
|
2764
|
|
0,8
|
170,42
|
0,2403
|
720,9
|
2769
|
|
0,9
|
175,35
|
0,2149
|
742,8
|
2774
|
|
1
|
179,88
|
0,1946
|
762,7
|
2778
|
|
1,1
|
184,05
|
0,1775
|
781,1
|
2781
|
|
1,2
|
187,95
|
0,1633
|
798,3
|
2785
|
|
1,3
|
191,60
|
0,1512
|
814,5
|
2787
|
|
1,4
|
195,04
|
0,1408
|
830,0
|
2790
|
|
1,5
|
198,28
|
0,1317
|
844,6
|
2792
|
|
1,6
|
201,36
|
0,1238
|
859,3
|
2793
|
|
1,7
|
204,30
|
0,1167
|
871,6
|
2795
|
|
1,8
|
207,10
|
0,1104
|
884,4
|
2796
|
|
1,9
|
209,78
|
0,1047
|
896,6
|
2798
|
|
2,0
|
212,37
|
0,09958
|
908,5
|
2799
|
Приложение
24. Технические характеристики центробежных насосов
|
Марка
|
Подача (Расход), м3/с
|
Давление (для воды), МПа
|
КПД
|
Потребная мощность, кВт
|
Частота вращения, с -1
|
|
Х2/25
|
4,2-10 - 4
|
0,26
|
0,4
|
1,1
|
50
|
|
Х8/18
|
2,4∙10-3
|
0,11
|
0,4
|
3
|
48,3
|
|
|
0,15
|
|
|
|
|
|
0,18
|
|
|
|
|
Х8/30
|
2,4∙10-3
|
0,18
|
0,5
|
4
|
48,3
|
|
|
0,24
|
|
|
|
|
|
0,30
|
|
|
|
|
Х20/18
|
5,5∙10-3
|
0,10
|
0,6
|
3
|
48,3
|
|
|
0,14
|
|
|
|
|
|
0,18
|
|
|
|
|
Х20/31
|
5,5∙10-3
|
0,18
|
0,55
|
5,5
|
48,3
|
|
|
0,25
|
|
|
|
|
|
0,31
|
|
|
|
|
Х20/53
|
5,5∙10-3
|
0,34
|
0,5
|
13
|
48,3
|
|
|
0,44
|
|
|
|
|
|
0,53
|
|
|
|
|
Х45/11
|
1,25∙10-2
|
0,13
|
0,6
|
1C
|
48,3
|
|
|
0,16
|
|
|
|
|
|
0,21
|
|
|
|
|
Х45/31
|
1,25∙10-2
|
0,19
|
0,6
|
13
|
48,3
|
|
|
0,25
|
|
|
|
|
|
0,31
|
|
|
|
|
Х45/54
|
1,25∙10-2
|
0,33
|
0,6
|
17
|
48,3
|
|
|
0.42
|
|
22
|
|
|
|
0,54
|
|
30
|
|
|
Х90/19
|
2,5∙10-2
|
0,13
|
0,7
|
10
|
48,3
|
|
|
0,16
|
|
13
|
|
|
|
0,19
|
|
17
|
|
|
X90/33
|
2,5∙10-2
|
0,25
|
0.7
|
17
|
48,3
|
|
|
0,29
|
|
22
|
|
|
|
0,33
|
|
30
|
|
|
Х90/49
|
2,5∙10-2
|
0,31
|
0.7
|
22
|
48,3
|
|
|
0,40
|
|
30
|
|
|
|
0,49
|
|
40
|
|
|
190/85
|
2,5∙10-2
|
0,56
|
0,65
|
40
|
48,3
|
|
|
0,7
|
|
55
|
|
|
|
0,85
|
|
75
|
|
Примечание: 1. Насосы предназначены для жидкостей, имеющих рН 7-9,2,
температуру не долее 165°С и не имеющих включений или с твердыми включениями,
составляющими до 0,2% при размере частиц до 0,2 мм.
2. Каждый насос имеет три типоразмера (1, 2, 3) с различными диаметрами
рабочего колеса, что соответствует трем значениям давления в области
оптимального КПД.
3. Указаны давления РВ, создаваемые насосом при перекачивании воды (ρВ=103 кг/м3). При
перекачивании жидкости плотностью ρЖ (кг/м3) давление,
создаваемое насосом, будет иное ρЖ= ρВ∙10-3, МПа.
Приложение
25. Выход готовой продукции, % к массе несоленого сырья
|
Изделия
|
Сорт
|
Выход, % к массе несоленого
сырья
|
Изделия
|
Сорт
|
Выход, % к массе несоленого
сырья
|
|
Фаршированные колбасы:
|
|
|
Ливерные колбасы:
|
|
|
|
Языковая
|
высш.
|
101
|
Яичная
|
высш.
|
100
|
|
Слоеная
|
высш.
|
97
|
Вареная
|
1
|
101
|
|
глазированная
|
высш.
|
98
|
Обыкновенная
|
1
|
102
|
|
Вареные колбасы:
|
|
|
Зельцы:
|
|
|
|
любительская
|
высш.
|
107
|
Русский
|
высш.
|
96
|
|
любител. свиная
|
высш.
|
107
|
Красный
|
высш.
|
96
|
|
телячья
|
высш.
|
106
|
Белый
|
I
|
102
|
|
столичная
|
высш.
|
96
|
Красный головной
|
2
|
102
|
|
эстонская
|
высш.
|
110
|
Полукопченые колбасы:
|
|
|
|
русская
|
высш.
|
108
|
полтавская
|
высш.
|
82
|
|
молочная
|
высш.
|
108
|
краковская
|
высш.
|
82
|
|
докторская
|
высш.
|
108
|
таллинская
|
высш.
|
|
диабетическая
|
высш.
|
108
|
охотничья
|
высш.
|
67
|
|
ищикачки
|
высш.
|
111
|
армавирская
|
высш.
|
82
|
|
диетическая
|
1
|
115
|
украинская
|
1
|
79
|
|
отдельная
|
1
|
117
|
одесская
|
1
|
77
|
|
ветчинно-рубленная
|
1
|
107
|
говяжья
|
1
|
70
|
|
московская
|
1
|
118
|
баранья
|
1
|
75
|
|
столовая
|
1
|
114
|
свиная
|
1
|
78
|
|
свиная
|
1
|
107
|
минская
|
1
|
79
|
|
чайная
|
2
|
120
|
польская
|
2
|
79
|
|
свиная
|
2
|
108
|
баранья
|
2
|
77
|
|
говяжья
|
2
|
121
|
семипалатинская
|
2
|
72
|
|
баранья
|
2
|
115
|
особая субпрод.
|
3
|
70
|
|
закусочная
|
2
|
116
|
Варено - копченые:
|
|
|
|
чесноковая
|
2
|
118
|
деликатесные
|
высш.
|
66
|
|
Сосиски:
|
|
|
сервелат
|
высш.
|
67
|
|
сливочные
|
высш.
|
105
|
московская
|
высш.
|
67
|
|
любительские
|
высш.
|
114
|
ростовская
|
1
|
66
|
|
диабетические
|
высш.
|
ИЗ
|
любительская
|
1
|
67
|
|
молочные
|
высш.
|
109
|
украинская
|
1
|
65
|
|
свиные
|
высш.
|
105
|
баранья
|
1
|
65
|
|
русские
|
1
|
113
|
заказная
|
1
|
65
|
|
говяжьи
|
2
|
113
|
Сырокопченые:
|
|
|
|
Сардельки:
|
|
|
особенная
|
высш.
|
65
|
|
свиные
|
высш.
|
114
|
свиная
|
высш.
|
70
|
|
говяжьи
|
1
|
121
|
невская
|
высш.
|
61
|
|
сардельки
|
1
|
123
|
советская
|
высш.
|
58
|
|
Мясные хлеба:
|
|
|
суджук
|
высш.
|
55
|
|
заказной
|
высш.
|
100
|
польская
|
высш.
|
57
|
|
ветчинный
|
1
|
100
|
брауншвейгская
|
высш.
|
60
|
|
отдельный
|
1
|
109
|
тамбовская
|
высш.
|
60
|
|
чайный
|
2
|
114
|
туристические колб.
|
высш.
|
61
|
|
московская
|
высш.
|
57
|
корейка и грудинка
|
высш.
|
90
|
|
любительская
|
1
|
56
|
копченые
|
|
|
|
Свинокопчености:
|
|
|
грудинка бескостная
|
высш.
|
90
|
|
окорока советский и
сибирский копченые
|
высш.
|
70
|
(бекон)
|
|
|
|
|
|
корейка и грудинка
|
высш.
|
81
|
|
окорока тамбовский и
воронежский копченые
|
высш.
|
91
|
копчено-вареные пастрома
свиная
|
высш.
|
68
|
|
|
|
буженина запеченная
|
высш.
|
65
|
|
окорока тамбовский,
московский и воронежский копчено- вареные
|
высш.
|
70
|
карбонад запеченный
|
высш.
|
68
|
|
|
|
Шпик:
|
|
|
|
|
|
соленый торговый
|
высш.
|
98
|
|
окорока тамбовский,
московский и воронежский вареные
|
высш.
|
79
|
колбасный мороженый
|
высш.
|
99
|
|
|
|
копченый (венгерское сало)
|
высш.
|
95
|
|
балыковая колбаса
|
высш
|
79
|
Копчено - запеченные
изделия:
|
|
|
|
ветчинная шейка копченая
|
высш.
|
70
|
окорока
|
высш.
|
90
|
|
|
|
ветчина
|
высш.
|
85
|
|
лопаточная (шейная) вырезка
копченая
|
высш.
|
80
|
бекон столичный
|
высш.
|
85
|
|
|
|
корейка
|
высш.
|
90
|
|
|
|
рулет
|
высш.
|
85
|
|
|
|
грудинка
|
высш.
|
85
|
|
|
|
бекон любительский
|
высш.
|
85
|
Приложение
26. Нормы выхода при комбинированной разделке и обвалке говяжьих туш, % от
массы мяса на костях
|
Полуфабрикат
|
1 категория
|
2 категория
|
Тощая
|
|
без вырезки
|
с вырезкой
|
без вырезки
|
с вырезкой
|
|
|
Вырезка зачищенная
|
-
|
0,8
|
-
|
0,8
|
-
|
|
Говядина жилованная
|
63,0
|
62,5
|
61,5
|
61,1
|
65,1
|
|
Жир - сырец
|
4,0
|
4,0
|
1,5
|
1,5
|
-
|
|
Сырье для супового набора
|
17,0
|
17,0
|
17,0
|
17,0
|
-
|
|
Кости:
|
|
|
|
|
|
|
трубчатка
|
7,3
|
7,2
|
9,8
|
9,7
|
11,8
|
|
паспортная
|
5,4
|
5,2
|
5,9
|
5,6
|
7,0
|
|
прочая техническая
|
-
|
-
|
-
|
-
|
10,3
|
|
Сухожилия, хрящи
|
3,0
|
3,0
|
4,0
|
4,0
|
5,0
|
|
Технические зачистки и
потери
|
0,3
|
0,3
|
0,3
|
0,3
|
0,7
|
|
Итого
|
100,0
|
100,0
|
100,0
|
100,0
|
100,0
|
Приложение
27. Нормы выхода при обвалке и жиловке мяса, % от массы мяса па костях, без
вырезки
|
Вид мяса и категория
упитанности туш
|
Мясо жилованное и жир
(шпик)
|
Сухожилия, хрящи, обрезь
|
Кости
|
Технические зачистки и
потери
|
|
Говядина:
|
|
|
|
|
|
1 категория
|
75,5
|
3,0
|
21,2
|
0,3
|
|
2 категория
|
71,5
|
4,0
|
24,2
|
0,3
|
|
тощая
|
65,1
|
5,0
|
29,2
|
0,7
|
|
Свинина без шкуры, вырезки
и баков:
|
|
|
|
|
|
3 категория (жирная)
|
88,2
|
1,3
|
0,2
|
|
2 категория
|
84,7
|
2,1
|
13,0
|
0,2
|
|
1 категория (мясная)
|
84,7
|
2,1
|
13,0
|
0,2
|
|
обрезная
|
83,6
|
2,1
|
14,1
|
0,2
|
|
Баранина:
|
|
|
|
|
|
1 категория
|
74,0
|
1,5
|
24,3
|
0,2
|
|
2 категория
|
66,0
|
2,0
|
31,8
|
0,2
|
|
тощая
|
56,5
|
2,5
|
40,5
|
0,5
|
|
Конина:
|
|
|
|
|
|
1 категория
|
76,7
|
3,7
|
19,1
|
0,5
|
|
2 категория
|
74,4
|
3,8
|
21,1
|
0,7
|
|
тощая
|
66,5
|
5,5
|
27,3
|
0,7
|
|
мясо жеребят
|
62,5
|
6,5
|
30,3
|
0,4
|
|
Буйволятина:
|
|
|
|
|
|
1 категория
|
73,9
|
3,5
|
22,3
|
0,3
|
|
2 категория
|
70,2
|
4,2
|
25,3
|
0,3
|
|
тощая
|
61,5
|
5,3
|
32,3
|
0,7
|
|
Верблюжатина:
|
|
|
|
|
|
1 категория
|
70,4
|
3,5
|
25,6
|
0,5
|
|
2 категория
|
67,4
|
4,7
|
27,1
|
0,6
|
|
тощая
|
60,8
|
5,9
|
32,6
|
0,7
|
Приложение
28. Нормы выходов при разделке свиных туш в шкуре, % к массе сырья
|
Продукция
|
Нормы выходов при разделке
свиных туш в шкуре, % к массе сырья
|
Продукция
|
Нормы выходов при разделке
свиных туш в шкуре, % к массе сырья
|
|
окорока задние
|
24,5
|
рагу
|
8,0
|
|
окорока передние
|
22,5
|
ножки
|
1,3
|
|
корейка
|
13,5
|
обрезь
|
0,5
|
|
грудинка
|
14,5
|
шкурка
|
2,0
|
|
Итого:
|
75,0
|
технические зачистки и
потери
|
0,2
|
|
свинина жилованная шпик
хребтовый и боковой
|
1,5 1,5
|
Всего:
|
100,0
|
Приложение
29. Нормы выхода жилованного мяса по сортам
|
Вид и сорт жилованного мяса
|
Выход, % от массы
жилованного мяса
|
Вид и сорт жилованного мяса
|
Выход, % от массы
жилованного мяса
|
|
Говядина:
|
|
Конина:
|
|
|
высший
|
20
|
Высший
|
20
|
|
1
|
45
|
1
|
25
|
|
2
|
35
|
2
|
55
|
|
Свинина:
|
|
Верблюжатина :
|
|
|
нежирная
|
40
|
Высший
|
15
|
|
полужирная
|
40
|
1
|
35
|
|
жирная
|
20
|
2
|
50
|
|
Буйволятина:
|
|
Оленина:
|
|
|
Высший
|
20
|
1
|
51
|
|
1
|
30
|
2
|
49
|
|
2
|
50
|
|
|
Приложение
30. Нормы выхода при комбинированной разделке и обвалке свиных туш, % от массы
мяса на костях
|
Полуфабрикат
|
3 категория
|
2 и 4 категории
|
|
Вырезка зачищенная
|
0,5
|
0,5
|
|
Щековина (баки)
|
2,8
|
2,7
|
|
Пашина
|
2,0
|
2,0
|
|
Корейка без шпика
|
9,1
|
6,8
|
|
Рагу
|
9,0
|
13,2
|
|
Свинина жилованная
|
43,5
|
50,1
|
|
Шпик хребтовый
|
9,0
|
4,0
|
|
Шпик боковой и грудинка
|
17,0
|
12,0
|
|
Рулмса и подбедерок
|
4,4
|
4,4
|
|
Пищевая кость
|
1,3
|
2,2
|
|
Сухожилия, хрящи и обрезь
|
1,2
|
1,9
|
|
Технические зачистки и
потери
|
0,2
|
0,2
|
|
Итого:
|
100,0
|
100,0
|
Приложение
31. Нормы выхода сырья при разделке окороков и корейки, % от массы мяса на
костях
|
Задний окорок
|
Передний окорок
|
Корейка
|
|
Сырье
|
в шкуре
|
Без шкуры
|
с част. Снятой шкурой
|
В шкуре
|
Без шкуры
|
с част. снятой шкурой
|
в шкуре
|
Без шкуры
|
с част снято" шкура
|
|
Свинина жилованная
|
71,5
|
79,7
|
76,5
|
66,0
|
76,9
|
73,3
|
49,4
|
54,9
|
54,9
|
|
в том числе:
|
|
|
|
|
|
|
|
|
|
|
жирная
|
-
|
-
|
-
|
2,1
|
4,1
|
3,2
|
-
|
-
|
-
|
|
полужирная
|
46,0
|
50,5
|
48,8
|
45,3
|
52,7
|
50,7
|
8,9
|
9,9
|
9,9
|
|
нежирная
|
25,5
|
29,2
|
27,7
|
18,6
|
20,1
|
19,4
|
40,5
|
45,0
|
45,0
|
|
Шпик
|
6,3
|
5,5
|
5,9
|
11,3
|
8,2
|
9,2
|
32,3
|
35,0
|
35,0
|
|
Шкурка
|
8,4
|
-
|
3,0
|
9,0
|
-
|
2,8
|
8,9
|
-
|
-
|
|
Кость
|
11,1
|
11.8
|
11,7
|
11,3
|
12,3
|
12,1
|
9,2
|
9,9
|
9,9
|
|
Хрящи и обрезь
|
2,5
|
2,8
|
2,7
|
2,2
|
2,4
|
2,4
|
-
|
-
|
-
|
|
Технические зачистки и
потери
|
0,2
|
0,2
|
0,2
|
0,2
|
0,2
|
0,2
|
0,2
|
0,2
|
0,2
|
|
Итого:
|
100,0
|
100,0
|
100,0
|
100,0
|
100,0
|
100,0
|
100,0
|
100,0
|
100,0
|
Приложение
32. Нормы выхода сырья при разделке грудинки, рульки и голяшки, % от массы мяса
на костях
|
Сырье
|
Грудинка
|
Рулька
|
Голяшка
|
|
в шкуре
|
без шкуры
|
с част. снятой шкурой
|
в шкуре
|
Без шкуры
|
с част. снятой шкурой
|
в шкуре
|
без шкуры
|
с част. снятой шкурой
|
|
Свинина жилованная
|
-
|
-
|
-
|
32,6
|
40,3
|
32,6
|
33,0
|
40,2
|
33,0
|
|
в том числе:
|
|
|
|
|
|
|
|
|
|
|
жирная
|
-
|
-
|
-
|
-
|
-
|
-
|
-
|
-
|
-
|
|
полужирная
|
-
|
-
|
32,6
|
40,3
|
32,6
|
33,0
|
40,2
|
33,0
|
|
нежирная
|
-
|
-
|
-
|
-
|
-
|
-
|
-
|
-
|
-
|
|
Шпик
|
69,8
|
78,2
|
69,8
|
-
|
-
|
-
|
-
|
-
|
-
|
|
Шкурка
|
10,6
|
-
|
10,6
|
19,1
|
-
|
19,1
|
17,8
|
-
|
17,8
|
|
Кость
|
17,5
|
19,5
|
17,5
|
47,0
|
57,9
|
47,0
|
47,6
|
57,8
|
47,6
|
|
Хрящи и обрезь
|
1,9
|
2,1
|
1,9
|
1,1
|
1,6
|
1,1
|
1,4
|
1,8
|
1,4
|
|
Технические зачистки и
потери
|
0,2
|
0,2
|
0,2
|
0,2
|
0,2
|
0,2
|
0,2
|
0,2
|
0,2
|
|
Итого:
|
100,0
|
100,0
|
100,0
|
100,0
|
100,0
|
100,0
|
100,0
|
100,0
|
100,0
|
Приложение
33. Нормы выхода сырья при разделке передних окороков на рулеты, % от массы на
костях
|
Сырье
|
В шкуре
|
Без шкуры
|
С частично снятой шкурой
|
|
с рулькой
|
без рульки
|
с рулькой
|
без рульки
|
с рулькой
|
без рульки
|
|
Полуфабрикат для рулета
|
81,1
|
86,7
|
87,4
|
86,1
|
86,8
|
85,3
|
|
Свинина полужирная
|
0,9
|
1,0
|
1,0
|
1,0
|
1,0
|
1,0
|
|
Шпик
|
2,1
|
2,3
|
2,3
|
2,5
|
2,2
|
2,5
|
|
Шкурка
|
0,2
|
0,2
|
-
|
-
|
0,3
|
0,3
|
|
Кости
|
6,4
|
7,2
|
6,8
|
7,5
|
7,2
|
8,0
|
|
Хрящи
|
2,1
|
2,4
|
2,3
|
2,6
|
2,3
|
2,6
|
|
Технические зачистки и
потери
|
0,2
|
0,2
|
0,2
|
0,2
|
0,2
|
0,2
|
|
Итого
|
100,0
|
100,0
|
100,0
|
100,0
|
100,0
|
100,0
|
Приложение
34. Нормы добавления воды и пищевого льда при производстве колбасных изделий
|
Колбасы
|
Количество льда и воды, % к
массе куттерируемого сырья
|
Колбасы
|
Количество льда и воды, % к
массе куттерируемого сырья
|
|
Фаршированные
|
10-15
|
Чайная
|
25-30
|
|
Диабетические
|
10-15
|
Говяжья
|
25-30
|
|
Любительская
|
15-20
|
Баранья
|
25-30
|
|
Столичная
|
10-15
|
Закусочная
|
20-25
|
|
Белорусская
|
10-15
|
Чесноковая
|
20-25
|
|
Докторская
|
15-20
|
Сосиски
|
|
|
Краснодарская
|
15-20
|
молочные
|
25-30
|
|
Шликачки
|
18-20
|
любительские
|
30-35
|
|
Отдельная
|
25-30
|
говяжьи
|
30-35
|
|
Столовая
|
20-25
|
русские
|
30-35
|
|
Московская
|
25-30
|
Сардельки
|
|
|
Диетическая
|
30-35
|
свиные
|
20-25
|
|
Ветчинно-рубленная
|
25-30
|
говяжьи
|
35-40
|
|
Свиная
|
|
1 сорта
|
35-40
|
|
1 сорта
|
20-25
|
|
|
|
2 сорта
|
20-25
|
|
|
Приложение
35. Нормы расхода шпагата при производстве колбасных и штучных изделий
|
Изделия
|
Расход шпагата на 1 т, кг
|
Изделия
|
Расход шпагата на 1 т, кг
|
|
Фаршированные колбасы
|
3,5
|
Вареные колбасы
|
2,0
|
|
Полукопченые колбасы
|
2,5
|
Грудинка
|
2,4
|
|
Сосиски
|
0,7
|
Корейка
|
2,4
|
|
Сардельки
|
2,0
|
Копчено - запеченые
|
|
|
Копченые колбасы
|
3,0
|
изделия:
|
|
|
Ливерные, кровяные колбасы:
|
|
окорок
|
2,4
|
|
фондовые
|
2,0
|
ветчина
|
2,3
|
|
нефондовые
|
1,7
|
рулет
|
2,5
|
|
Русские зельцы
|
1,5
|
бекон
|
|
|
Свинокопчености
|
|
столичный
|
2,4
|
|
окорока
|
1,0
|
любительский
|
5,5
|
|
рулеты всех сортов
|
5,0
|
корейка
|
2,5
|
|
шейка
|
4,0
|
грудинка
|
4,0
|
|
балык
|
4,0
|
Сосиски и сардельки
|
0,5
|
Приложение
36. Нормы расхода натуральных оболочек при производстве колбас
|
Оболочки
|
Нормы расхода на 1 т колбас
|
|
вареных и ливерных
|
полукопченых
|
копченых
|
|
Круга говяжья, пучки
|
|
|
|
|
№1
|
135
|
170
|
185
|
|
№2
|
100
|
125
|
133
|
|
№3
|
71
|
90
|
105
|
|
№4
|
64
|
80
|
92
|
|
№5
|
52
|
65
|
75
|
|
Черевы говяжьи, пучки
|
|
|
|
|
экстра
|
46
|
57
|
65
|
|
широкие
|
62
|
78
|
90
|
|
средние
|
82
|
105
|
122
|
|
узкие
|
120
|
150
|
-
|
|
Синюги говяжьи, шт.
|
-
|
|
|
|
широкие
|
96
|
-
|
-
|
|
средние
|
120
|
-
|
-
|
|
узкие
|
200
|
-
|
-
|
|
Пузыри говяжьи, шт.
|
800
|
-
|
-
|
|
Черевы бараньи, пучки
|
|
|
|
|
1-4 калибра
|
200
|
250
|
-
|
|
5-7 калибра
|
300
|
375
|
-
|
|
Черевы свиные, пучки
|
120
|
150
|
-
|
|
Синюги бараньи, шт.
|
700
|
1000
|
-
|
Приложение
37. Нормы расхода искусственных оболочек при производстве колбас
|
Диаметр, мм
|
Норма расхода искусственных
оболочек на 1 т колбас, м
|
|
вареных
|
ливерных и кровяных
|
зельцев и студней
|
полукопченых
|
варено-копченых
|
сырокопченых
|
|
45
|
-
|
775
|
-
|
870
|
1031
|
|
50
|
-
|
621
|
-
|
704
|
826
|
952
|
|
55
|
-
|
505
|
-
|
565
|
671
|
768
|
|
60
|
481
|
-
|
-
|
556
|
641
|
676
|
|
65
|
383
|
-
|
-
|
-
|
-
|
-
|
|
70
|
346
|
-
|
-
|
-
|
-
|
-
|
|
75
|
317
|
-
|
-
|
-
|
-
|
-
|
|
80
|
298
|
-
|
-
|
-
|
-
|
-
|
|
85
|
276
|
-
|
-
|
-
|
_
|
|
|
95
|
217
|
-
|
-
|
-
|
-
|
-
|
|
100
|
174
|
-
|
174
|
-
|
-
|
-
|
|
110
|
139
|
-
|
139
|
-
|
-
|
-
|
|
120
|
111
|
-
|
111
|
-
|
-
|
-
|
Приложение
38. Нормы расхода целлофановых оболочек при производстве колбас
|
Норма расхода целлофановой
оболочки на 1 т изделий, шт.
|
|
Диаметр, мм
|
вареные колбасы
|
зельцы и студни
|
|
длина оболочки, м
|
длина оболочки, м
|
|
0,55
|
0,55
|
0,6
|
|
60
|
962
|
-
|
-
|
|
65
|
767
|
_
|
-
|
|
70
|
692
|
-
|
-
|
|
75
|
633
|
-
|
-
|
|
80
|
596
|
-
|
-
|
|
85
|
553
|
-
|
-
|
|
90
|
495
|
-
|
-
|
|
95
|
435
|
-
|
-
|
|
100
|
348
|
348
|
318
|
|
110
|
279
|
278
|
-
|
|
120
|
222
|
222
|
203
|
Приложение
39. Рецептура колбасных изделий
|
Сырье несоленое
|
кг на 100кг
|
Пряности и материалы
|
г на 100 кг несол. сырья
|
|
Колбаса вареная говяжья
высшего сорта (ГОСТ 23670)
|
|
Говядина жилованная
|
|
Соль поваренная пищевая
|
2375
|
|
высшего сорта
|
40
|
Натрия нитрит
|
5,6
|
|
1 сорта
|
35
|
Сахар-песок или глюкоза
|
100
|
|
Мозги говяжьи или
|
|
Перец черный
|
|
|
Свиные сырые
|
20
|
или белый молотый
|
100
|
|
Яйца куриные или меланж
|
5
|
Орех мускатный или
|
|
|
Итого
|
100
|
Кардамон молотые
|
50
|
|
Колбаса вареная докторская
высшего сорта (ГОСТ 23670)
|
|
Говядина жилованная
|
|
Соль поваренная пищевая
|
2090 .
|
|
высшего сорта.
|
25
|
Натрия нитрит
|
7,1
|
|
Свинина жилованная
|
|
Сахар-песок или глюкоза
|
200'
|
|
Полужирная
|
70
|
Орех мускатный или
|
|
|
Яйца куриные или меланж
|
3
|
кардамон молотые
|
50
|
|
Молоко коровье, сухое
цельное
|
|
|
|
|
или обезжиренное
|
2
|
|
|
|
Итого
|
100
|
|
|
|
Колбаса вареная для
завтрака \ сорта (ТУ 49 839)
|
|
Говядина жилованная
|
|
Соль поваренная пищевая
|
2500
|
|
I сорта
|
52
|
Фосфаты пищевые
|
300
|
|
Свинина жилованная
|
|
Натрия нитрит
|
5,4
|
|
Жирная
|
20
|
Сахар-песок или глюкоза
|
250
|
|
Мука пшеничная или
|
|
Перец черный или
|
|
|
крахмал картофельный
|
3
|
белый молотый
|
200
|
|
Натрия казеинат или
изолирован-
|
|
Перец красный молотый.
|
50
|
|
ный соевый белок
|
5
|
Орех мускатный молотый
|
100
|
|
Вода
|
20
|
Чеснок свежий очищенный
|
250
|
|
Итого
|
100
|
|
|
|
Колбаса вареная куриная
пятигорская высшего сорта (ТУ 49906)
|
|
Мясо кур, цыплят, цыплят-
|
|
Соль поваренная пищевая
|
2000
|
|
бройлеров механической
обвалки
|
30
|
Сахар-песок или глюкоза
|
100
|
|
Говядина жилованная
|
|
Натрия нитрит
|
6,7
|
|
высшего сорта
|
40
|
Перец черный или
|
|
|
Свинина жилованная
|
|
белый молотый
|
60
|
|
Полужирная
|
15
|
|
|
|
Шпик хребтовый
|
15
|
|
|
|
Итого
|
100
|
|
|
|
Колбаса вареная южнаи 1
сорта (ТУ 49 864)
|
|
Говядина жилованная
|
|
Соль поваренная пищевая
|
2500
|
|
1 сорта
|
35
|
Натрия нитрит
|
5
|
|
Свинина жилованая
|
|
Сахар-песок или глюкоза
|
300
|
|
жирная
|
32
|
Перец черный или
|
|
|
Мука пшеничная или
|
|
белый молотый
|
100
|
|
крахмал картофельный
|
3
|
Перец красный молотый
|
50 .
|
|
Белок соевый
|
|
Кориандр
|
50
|
|
изолированный
|
6
|
Чеснок свежий очищенный
|
|
|
Вода для растворения
|
|
измельченный
|
200
|
|
соевого белка
|
24
|
Натрия аскорбинат или
|
|
|
Итого
|
100
|
аскорбиновая кислота
|
50
|
|
|
Фосфаты пищевые
|
300
|
|
Сосиски любительские
высшего сорта (ГОСТ 23670)
|
|
Говядина жилованная
|
|
Соль поваренная пищевая
|
2200
|
|
1 сорта
|
33
|
Натрия нитрит
|
7,5
|
|
Свинина жилованая
|
|
Сахар-песок или глюкоза
|
160
|
|
полужирная
|
33
|
Перец черный или
|
|
|
Свинина жилованая
|
|
белый молотый
|
160
|
|
жирная, щековина,
|
|
Перец душистый молотый
|
100
|
|
обрезки шпика
|
34
|
Орех мускатный или
|
|
|
Итого
|
100
|
кардамон молотые
|
50
|
|
|
Смесь пряностей № 4 вместо
|
|
|
|
сахара и отдельных
пряностей
|
470
|
|
Сосиски говяжьи 1 сорта
(ГОСТ 23670)
|
|
Говядина жилованная
|
|
Соль поваренная пищевая
|
2500
|
|
1 сорта
|
80
|
Натрия нитрит
|
6,0
|
|
Жир-сырец свиной или
говяжий
|
20
|
Сахар-песок или глюкоза
|
200
|
|
Итого
|
100
|
Перец черный или
|
|
|
|
Белый молотый
|
130
|
|
|
Перец красный
|
100
|
|
|
Чеснок свежий или
консервир.
|
50
|
|
Сардельки свиные высшего
сорта (ГОСТ 23670)
|
|
Свинина жилованная
полужирная
|
93
|
Соль поваренная пищевая
|
2500
|
|
Свинина жилованная жирная,
|
|
Натрия нитрит
|
7,5
|
|
щековина или обрезки шпика
|
7
|
Сахар-песок или глюкоза
|
200
|
|
Итого
|
100
|
Перец черный или
|
130
|
|
|
Кориандр молотый
|
130
|
|
|
Смесь пряностей № 4 вместо
|
|
|
|
сахара и отдельных
пряностей
|
460
|
|
|
Чеснок свежий или
консервир.
|
60
|
|
Колбаса сыровяленая
московская высшего сорта (ТУ 10 РСФСР 861)
|
|
Говядина'жилованная
|
|
Соль поваренная пищевая
|
3500
|
|
высшего сорта
|
30
|
Натрия нитрит
|
10
|
|
Свинина жилованная
|
|
Сахар-песок
|
300.
|
|
полужирная
|
70
|
Перец красный молотый
|
150
|
|
Итого
|
100
|
Перец душистый молотый
|
50
|
|
|
Кардамон или мускатный
|
|
|
|
орех молотые
|
50
|
|
|
Коньяк
|
250
|
Приложение
40. Нормы выработки при переработке мяса
|
Операция
|
Нормы выработки на 1
рабочего за смену
|
|
Зачистка туш на подвесных
путях, т мяса на костях: говяжьих * свиных
|
42,9 29,5
|
|
Ручная съемка шпика со
свиных туш, т: мясных жирных
|
45 4,9
|
|
Разделка туш для обвалки на
подвесных путях, т мяса на костях: говяжьих свиных
|
20,0 16,3
|
|
Разделка свиных туш на
копчености, т мяса на костях
|
12,6
|
|
Дифференцированная обвалка
свинины, т мяса на костях: с зачисткой ребер и позвонков без зачистки
|
2,50 3,60
|
|
Дифференцированная обвалка
говядины, т мяса на костях: с полной зачисткой с неполной зачисткой
|
1,81 2,62
|
|
Разделка и обвалка бараньих
туш, т мяса на костях
|
0,74
|
|
Жиловка с разборкой мяса на
3 сорта, т жалованного мяса: говядины свинины без шкуры в шкуре
|
1,43 2,14 1,47
|
|
Жиловка баранины с разборкой
на 1 сорт, т жилованного мяса:
|
1,53
|
Приложение
41. Нормы выработки (в центнерах) свинокопченостей без разделки полутуш на
части, которыми предусмотрены все операции процесса изготовления
свинокопченостей, кроме варки, копчения и транспортных работ
Окорок: Филей копченый - 6,1
тамбовский вареный -28,4Шейка копченая - 5,3
московский копченый -59,4 Рулет ленинградский -8,8 воронежский -46,0Балык
свиной -6,2
Корейка - 33,5Ветчина в форме -6,2
Буженина - 11,7Грудинка - 26,6
Приложение
42. Расходы на текущий ремонт и содержание оборудования и зданий, % от их
стоимости
|
Годовые расходы
|
|
Профиль производства и
предприятий
|
на оборудование
|
на здания
|
|
Мясо-жировое производство
|
5,9
|
4,9
|
|
В том числе цех убоя окота
и разделка туш
|
6,4
|
5,7
|
|
Мясоперерабатывающего
производства
|
5,5
|
4,4
|
|
Птицекомбинаты
|
6,0
|
4,9
|
|
Холодильники
|
8,0
|
3,0
|
Приложение
43. Планы расположения помещений и технологического оборудования
План расположения помещений и основного технологического оборудования
мясоперерабатывающего предприятия мощностью 2 т мяса и колбасных изделий и
свинокопченостей 1 т в смену.
Помещения (цифры в кружочках): 1 - загон для скота; 2 - отделение
первичной обработки скота; 3 - отделение переработки технического сырья; 4 -
отделение посола шкур; 5 - отделение обработки кишок; 6 - отделение обработки
шерстных субпродуктов; 7 - камера охлаждения и хранения условно-годового мяса (-1°С);
8, 9 - камеры охлаздения и хранения мяса и субпродуктов (-1°С); 10 - экспедиция
(-12°С); 11 - камера хранения отходов (0°С); 12 - камера охлаждения и хранения
полуфабрикатов (+4°С); 17 - моечная внутрицеховой тары; 18 - камера охлаждения
и хранения колбас (+ 4°С); 19 - камера сушки колбас (+ 12°С); 20 - экспедиция;
21 - моечная оборотной тары; 22 - дымогенераторная; 23 - термическое отделение;
24 - сырьевое и машинно-шприцовочное отделения; 25 - водомерный узел; 26 -
лаборатория; 27 - комната мастepa; 28 - заточная; 29 -мужской гардероб уличной
одежды (на 6 человек); 30 - мужской гардероб рабочей одедды (на 6 человек)-; 31
и 33 - душевые; 32 - женский гардероб рабочей одежды (на 16 человек);. 34 -
женский гардероб уличной одежды (на 16 человек); 35, 42 - умывальные; 36, 43 -
санузлы; 37, 41 - тамбуры; 38 - коридор; 39 - вентиляционные камеры; 40
-насосная.
Технологическое оборудование: 1 - бокс для оглушения КРС; 2 - вешалка для
голов; 3 -шпарильный аппарат; 4 - центрифуга для шерстных субпродуктов; 5 -
центрифуга для слизистых субпродуктов; 6 - стол нутровки; 7 - стол для
обработки ливера; 8 - стол для опорожнения желудков; 9 - чан для шпарки
желудков; 10 - чан для приемки кишок; 11 - обвалочный стол; 12 - тележки (15
шт.) для накопления и посола мяса; 13 - подъемник; 14 - волчок; 15 - машина для
тонкого измельчения мяса; 16 - фаршемешалка; 17 - формовочный стол; 18 -
тележки (27 шт.) для посола свинокопченостей, 19 - термодымовые камеры (3 шт.);
20 - вакуумный шприц
План расположения основного технологического оборудования в
производственном корпусе мясоперерабатывающего комплекса мощностью 2 т мяса в
смену: 1- бокс для оглушення скота; 2 - шпарилъный чан; 3 - установка для
снятия шкур; 4 - подъемная площадка для перевозки туш; 5 - подъемно-опускные
площадки (4 шт.) для обработки туш; 6 - умывальник (3 шт.) со стерилизатором
инструмента; 7 - технологические тележки; 8 - подвесной путь; 9 - стол для
разделки туш; 10 - котел (2 шт.) для варки кормов; 11-котел для пищеварочной
вместимостью 250 л; 12 .- .центрифуга для обработки шерстных субпродуктов; 13 -
центреруга для обработка слизистых субпродуктов; 14 - машина для обработки
кишок; 15 - вальцы для отжима кишок; 16 - стол для обвалки и жиловки мяса; 20 -
шпигорезка; 21 - фаршемешалка; 22 - шприц; 23 - куттер; 24 - подъемник; 26 -
стол для вязки колбас; 27 - термодымовая камера (2 шт.).
План расположения технологического оборудования цеха производства
сырокопченостей: 1 - аппарат электрооглушения; 2 - моечнкй шланг с распылителем
(2 шт.); 3 - электрическая таль; 4 - путь для тали; 5 - стол обработки ливера;
6 - стол для опалки и разделки голов; 7* - шкаф для инвентаря; 8 - вешалка для
голов; 9 - дщит (от разбрызгивания воды при мойке туш); 10 - разделочный
переносной стеллаж; 11 - чан для мойки внутрицеховой тары; 12 - колода для
разрубки голов скота; 13 - шпарильный аппарат; 14 - комбинированный умывальник
со стерилизатором инструмента; 15 - технологический стол (для опорожнения кишок);
16 - стол нутровки; 17 - стол для промывки кишок 18 - стол для опорожнения
желудков; 19 - чан для шпарки желудков; 20 - стол для обработки желудков; 21 -
чан для промывки желудков; 22 - стол для посола шкур; 23 - колода для мездрения
шкур; 24 - нержавеющая тележка для сбора крови; 25- чан для шпарки шерстных
продуктов; 26 - стол для опалки и очистки шерстных продуктов; 27 - чан для
промывки шерстных продуктов; 28 - пищеварочныи электрический котел для варки
крови и технического сырья; 29* - платформенные циферблатные весы (2 шт.); 30
-тележки (10 шт.) для перевозки в хранения полутуш; 31 - тележка для накопления
жилованного мяса; 32 - тележка для накопления кости и полуфабрикатов; 33 -
обвалочный стол; 34 - волчок; 35 - стол для вязки колбас; 36 - шприц; 37 - ларь
для соли (2 шт.); 38 - котел для варки окороков; 39 - пищеварочный
электрический котел (для вытопки жиров); 40 - жарочный шкаф; 41 - термодымовая
камера (2 шт.); 42 -дымогенератор (2 шт.); 43 - металлическая подставка; 44 -
ларь для опилок (2 шт.); 45 - устройство душирущее на одну раму; 46 - стол для
упаковки; 47 - тележка для посола копченостей (22 шт.); 48 - рамы (10 шт.) для
колбас и свинокопченостей; 49 - каныгосборник
* Позиции на рисунке не указаны
Приложение
44. Технологическая карта
|
№п/п
|
наименование
производственных процессов
|
число дней работы в году
|
объем работы в сутки/год
|
наименование машин и
оборудования тип, марка
|
привод и его мощность, кВт
|
производительность машин
т/ч м3/ч
|
производительность работ
машин в сутки/ год
|
число персонала на
операцию, чел
|
затраты труда чел.-ч.,
сутки/год
|
кап. вложения
|
Эксплуатационные расходы
ЭГ=ЦМ+ЕЭ+ЕТ+ЗР+Пр
|
|
|
|
|
|
|
|
|
|
|
потребное число машин
|
прейскурантная цена машины,
руб
|
балансовая стоимость
машины, руб
|
отчисления на амортизацию,
ТО и Р
|
расход
|
стоимость
|
зарплата персонала
|
прочие прямые затраты
|
годовые эксплуатационные
расходы
|
|
|
|
|
|
|
|
|
|
|
|
|
|
% от балансной стоимости
|
затраты, руб
|
электроэнергии, кВт
|
ТСМ, кг
|
электроэнергии, кВт
|
ТСМ, кг
|
разряд рабочих
|
тарифная ставка, руб
|
зарплата за весь объем
работы, руб
|
|
|
|
|
|
|
|
|
|
|
|
|
|
|
|
норма ежегодных
амортизационных отчислений
|
норма ежегодных затрат на
ТО и ТР
|
|
|
|
|
|
|
|
|
|
|
|
|
Д
|
|
-
|
N
|
QЧ
|
|
Л
|
|
nM
|
П
|
Б
|
а
|
р
|
ЦМ
|
WЭ
|
WТ
|
ЕЭ
|
ЕТ
|
-
|
ЗЧ
|
ЗР
|
Пр
|
ЭГ
|
|
1
|
2
|
3
|
4
|
5
|
6
|
7
|
8
|
9
|
10
|
11
|
12
|
13
|
14
|
15
|
16
|
17
|
18
|
19
|
20
|
21
|
22
|
23
|
24
|
25
|
|
|
|
|
|
|
|
|
|
|
|
|
|
|
|
|
|
|
|
|
|
|
|
|
|