Технологическая карта на монтаж ферм и плит покрытия

  • Вид работы:
    Курсовая работа (т)
  • Предмет:
    Строительство
  • Язык:
    Русский
    ,
    Формат файла:
    MS Word
    622,4 Кб
  • Опубликовано:
    2015-05-03
Вы можете узнать стоимость помощи в написании студенческой работы.
Помощь в написании работы, которую точно примут!

Технологическая карта на монтаж ферм и плит покрытия

Введение

В данной курсовой работе ведётся проектирование технологической карты процесса возведения надземной части здания, а именно - стропильной системы и плит покрытия. Проектирование ведётся с использованием нормативной и справочной литературы.

Технологические карты разрабатываются с целью обеспечения наиболее рациональных технологии и организации строительных процессов, способствующих повышению производительности труда, улучшения качества и снижения стоимости строительно-монтажных работ. Они служат основанием для выписки нарядов-заданий рабочим.

Технологическими картами регламентируются сроки выполнения и технологическая последовательность отдельных строительных процессов (при выполнении заданного объема работ с помощью определенного комплекта машин и инструментов). При разработке технологических карт и выборе методов производства работ определяющую роль играют назначение здания или сооружения, его объемно-планировочные и конструктивные характеристики.

Технологические карты могут быть разработаны на возведение конструктивных элементов здания или сооружения (монтаж колонн, устройство кровли и т.п.), выполнение отдельных видов работ (каменные, малярные и т.п.) или комплекса работ, результатом которых являются законченные конструктивные элементы и части зданий или сооружений (монтаж каркаса здания и т.п.).

1. Исходные данные к курсовому проекту

Длина - 90 м.

Ширина - 48 м.

Пролет - 24 м.

Шаг колонн (крайних, средних) - 6 м.

Отметка верха колонны - 18 м.

Стропильная конструкция - ферма.

Тип кровли - скатная по наклонным стропилам с покрытием из железобетонных плит. На рисунке 1.1 приведена схема расположения колонн. Как видно, имеем двухпролетную конструкцию, с шагом колонн 6м и шириной пролета 24м.

Рисунок 1.1

Для производства работ необходимы стропильные фермы пролетом 24 метра, а так же плиты покрытия, размером 3х6 метра.

2. Подсчет объемов работ

Таблица 2.1 Ведомость объемов работ

 Наименование работ

Единица измерения

     Эскиз

Объем работ

1

2

3

4

Монтажные работы Стропильные фермы

шт

90/6+1)*2=32 шт

32

Монтажные работы Плиты покрытия

шт

(24/3)*2*15=240 шт

240 (4269,6 м2)

Сварочные работы

м.п.

32*1+240*0,5=152 м.п.

152

Бетонные работы

м3

2022*0,01=20,22 м3

20,22


2.1 Подбор крана для возведения здания

Рисунок 3.1

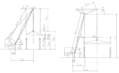
На рисунке 4 приведена схема монтажа стропильных ферм краном. Кран находится вне пролета. Как видно из схемы такой способ подходит для невысоких конструкций, т.к. увеличение высоты монтажного горизонта приводит к многократному увеличению длины стрелы. Для расчетов примем вариант движения крана внутри пролета. Таким образом увеличится угол α и уменьшится длина стрелы, поскольку ось фермы будет располагаться перпендикулярно направлению стрелы крана.

к=Qэ+Qпр+Qгр;

Где Qк - требуемая грузоподъемность крана;э - масса монтируемого элемента;пр - масса монтажных приспособлений;гр - масса грузозахватного устройства.

э=18200+513=18713 кг;

Высота подъема крюка над уровнем стоянки крана Hк равна:

к=hо+hэ+hз+hстр;

Где hо - превышение монтажного горизонта над уровнем стоянки крана;э - высота или толщина элемента;з - запас по высоте для обеспечения безопасности монтажа;стр - высота строповки.

к=18+3,3+0,7+3=25 м;

Оптимальный угол наклона стрелы к горизонту:

tgα=(2(hстр+ hп))/(b1+2S);

где hп - длина грузового полиспаста;- длина сборного элемента;- расстояние от края элемента до оси стрелы (принимают приближенно 0,75 м).

α=(2*(3+5))/(0,28+2*1)=7,0175;

α=81,8899°;

Для расчетов принимаем α=82°.

Длина стрелы без гуська:

=(Hк+hп+hc)/sinα=(25+5-1,5)/sin82°=28,5/0,99=28,8 м;

Вылет крюка:

к= Lccosα+d=28,8*0,14+1,5=5,532 м;

Расстояние от оси вращения гуська до уровня стоянки крана:

=Lc*sinα+ hc =28,8*0,99+1,5=30 м;

Для кранов оборудованных гуськом, длина стрелы равна:

=(H- hc)/sinα=(30-1,5)/0,99=28,5 м;

Учитывая тот факт, что грузоподъемность крана не постоянна во всех возможных положениях стрелы, выбирам кран, который в состоянии доставить груз на необходимую высоту. Назначаем автокран КС-6476. На рисунке 5 представлены его грузо-высотные характеристики, а далее общие характеристики крана.

Рисунок 3.2

Шасси

Базовое шасси

МЗКТ-69234

Колесная формула

6 x 4

Двигатель

 

ЯМЗ-238ДЕ2

Мощность двигателя, кВт (л.с.)

243 (330)

Подъемные характеристики

Грузоподъемность, т

50,5

Грузовой момент, тм

151,5

Вылет стрелы, м

3,0 - 26,0

Высота подъема (с гуськом), м

34,4 (48,6)

Длина стрелы, м

11,4 - 34,0

Длина гуська, м

9,0 - 14,5

Скорость подъема (опускания) груза, м/мин

3,0 - 9,5

Скорость посадки, м/мин

0,1

Скорость передвижения, км/ч

50

Габаритные размеры в транспортном положении

Длина, мм

14 160

Ширина, мм

2 500

Высота, мм

3 837

Парамаетры масс

Полная масса с основной стрелой, кг

39 700


2.2 Выбор грузозахватных устройств, средств подмащивания, их характеристики

В данном разделе представлены приспособления, для производства работ. В качестве грузозахватного приспособления для разгрузки ферм и их монтажа принимаем траверсу ТР20-5. Схема монтажа, при помощи данной траверсы, а также место расположения лестницы свободностоящей приставной с площадкой для организации рабочего места монтажников, приведены на рисунке 3.3:

Рисунок 3.3

Данная траверса предназначена для установки ферм пролетами 18 и 24 метра, грузоподъемность до 20 тонн. Масса самой траверсы 513 кг, высота - 3 метра.

Для монтажа плит покрытий принимаем строп четырехветвенный 4СК-10-4 с подстропниками ПК-4-5. Схема строповки приведена на рисунке 3.4:

Рисунок 3.4

Далее на рисунке 3.5 представлены типовая схема монтажа стропильных ферм и плит покрытия:

Рисунок 3.5

3. Область применения

Технологическая карта разработана на монтаж стропильных ферм и плит покрытия надземной части одноэтажного производственного здания, размерами в плане 9048 м с сеткой колонн 246 м. Верхняя отметка колонн 18м.

В состав работ, предусмотренных данной технологической картой входят следующие виды работ:

Устройство постели из раствора (при необходимости).

Установка элементов.

Выверка и временное закрепление.

Снятие временного крепления.

Приготовление постели из раствора.

Подъем и укладка плит.

Замазка швов между плитами песчано-цементной смесью.

Работы производятся в климатических условиях могилевской области: средняя температура летом - 25°С, средняя расчетная влажность - 73 %.

.1 Нормативные ссылки

СНиП III -18-75 «Металлические конструкции».

СНиП 3-4-80*. "Техника безопасности в строительстве ".

СНиП 3.01.01 - 85 "Организация строительного производства" - М.: Стройиздат, 1985.

ЕНиР.Сборник Е4 Монтаж сборных и устройство монолитных железобетонных конструкций.

.2 Характеристики применяемых материалов и изделий.

Необходимое количество ферм для производства работ:

*(90/6+1)=32 шт.

Согласно методическим указаниям к выполнению курсовой работы, выбираем из приложения к ним ферму. Из представленных ферм назначаем представленную на рисунке 4.1 безраскосную ферму ФБ 241У-10Ашв производства минского завода ЖБИ:

высота Н=3300мм;

ширина b=240мм;

масса m=18200кг.

Рисунок 4.1

Таким же образом выбираем плиту покрытия. Из представленных плит конструктивным требованиям отвечает плита 3ПВ 6, производства того же минского завода ЖБИ, представленная на рисунке 4.2 и имеющая следующие характеристики:

длина L=5970мм;

высота H=370мм;

ширина b=2980мм;

масса m=3300кг.

Рисунок 4.2

Необходимое количество плит:

(24/3)*2*15=240 шт.

.3 Организация и технология производства работ

технологическая карта плита здание

4.3.1 Контроль качества. Общие положения

Требования к качеству монтажа бетонных и железобетонных конструкций устанавливаются ТКП 45-5.03-130.

Каждое измеренное значение контролируемого показателя должно быть в пределах допустимых отклонений.

Номенклатура контролируемых показателей качества должна приниматься в соответствии с требованиями ТНПА.

Контроль качества сварочных работ должен осуществляться по действующим ТНПА, устройства антикоррозионных покрытий - по СТБ 1684.

Входной контроль качества бетонных и железобетонных изделий и деталей, поступающих на объекты строительства, должен осуществляться в соответствии с требованиями СТБ 1306.

Операционный контроль качества работ осуществляет ежедневно исполнитель работ. Ответственным за проведение операционного контроля качества является инженерно-технический работник, осуществляющий производство работ на объектах строительства, уполномоченный руковод­ством организации.

Для проведения операционного контроля качества работ выборочно привлекают испытательные подразделения, аккредитованные в Системе аккредитации Республики Беларусь на соответствие требованиям СТБ ИСО/МЭК 17025 или аттестованные в соответствии с требованиями ТКП 45-1.01-47.

Результаты операционного контроля качества работ регистрируются в общем журнале работ.

При приемочном контроле в составе исполнительной документации предъявляются следующие документы:

общий журнал работ;

исполнительные чертежи;

геодезические исполнительные схемы положения конструкций;

журнал авторского надзора;

протоколы испытаний материалов и изделий;

документы о качестве (сертификаты соответствия, технические свидетельства на материалы и изделия, при необходимости);

акты освидетельствования скрытых работ;

акты промежуточной приемки ответственных конструкций и выполненных работ;

документы о контроле качества сварных соединений;

другие документы, указанные в проектной документации.

Акт освидетельствования скрытых работ оформляется по форме, приведенной в СНиП 3.01.01 (приложение 6), с участием представителей заказчика, генерального подрядчика или подрядчика.

Акт промежуточной приемки ответственных конструкций оформляется по форме, приведенной в СНиП 3.01.01 (приложение 7).

Акт приемки выполненных работ оформляется по форме, приведенной в приложении А.

Протокол испытаний оформляется в соответствии с СТБ ИСО/МЭК 17025.

Испытания при приемочном контроле по показателям сопротивления водо-, воздухопроницанию, теплопередаче стыков проводятся в аккредитованной испытательной лаборатории по требованию заказчика или органов Государственного надзора.

Выбор методов и средств контроля, выполнение измерений и обработка их результатов - в соответствии с требованиями ГОСТ 26433.0.

Средства контроля должны быть из числа допущенных к применению на территории Республики Беларусь, поверены в соответствии с СТБ 8003 или откалиброваны в соответствии с СТБ 8014.

Допускается применение средств контроля, не указанных в настоящем стандарте, обеспечивающих контроль показателей качества с требуемой точностью, поверенных и откалиброванных
в установленном порядке.

Допускается, при соответствующем обосновании, назначать в проектной документации номенклатуру контролируемых показателей качества работ, объемы и методы контроля, отличающиеся от предусмотренных настоящим стандартом.

.3.2 Контроль качества. Монтаж ригелей, балок, ферм, плит

Очистка опорных поверхностей элементов конструкции

При операционном контроле очистки опорных поверхностей элементов конструкции (отсутствие мусора, грязи, снега и наледи) проверяют каждый элемент конструкции.

Очистку опорных поверхностей элементов конструкции контролируют визуально.

Соответствие нанесения разметки осей на опорах проектной документации.

При операционном контроле соответствия нанесения разметки осей на опорах проектной документации проверяют каждую опору.

Средство контроля - рулетка измерительная металлическая по ГОСТ 7502 с ценой деления 1 мм и диапазоном измерения (0-10 000) мм.

Соответствие нанесения разметки осей на опорах проектной документации контролируют при помощи рулетки.

Отклонение от совмещения рисок геометрических осей, граней в нижнем сечении установленных элементов конструкции с установочными рисками

При операционном контроле отклонения от совмещения рисок геометрических осей, граней в нижнем сечении установленных элементов конструкции с установочными рисками проверяют каждый элемент конструкции.

Средства контроля:

линейка измерительная металлическая по ГОСТ 427 с ценой деления 1 мм и диапазоном измерения (0-300) мм;

рулетка измерительная металлическая по ГОСТ 7502 с ценой деления 1 мм и диапазоном измерения (0-2000) мм;

теодолит по ГОСТ 10529.

Отклонение от совмещения рисок геометрических осей, граней в нижнем сечении установленных элементов конструкции с установочными рисками контролируют по ГОСТ 26433.2 при помощи линейки, рулетки или теодолита.

Отклонение от совмещения рисок геометрических осей, граней в верхнем сечении установленных ригелей, прогонов, балок, ферм с установочными рисками на опорах

При операционном контроле отклонения от совмещения рисок геометрических осей, граней в верхнем сечении установленных ригелей, прогонов, балок, ферм с установочными рисками на опорах проверяют каждый элемент конструкции.

Средства контроля:

линейка измерительная металлическая по ГОСТ 427 с ценой деления 1 мм и диапазоном измерения (0-300) мм;

рулетка измерительная металлическая по ГОСТ 7502 с ценой деления 1 мм и диапазоном измерения (0-10 000) мм.

Отклонение от совмещения рисок геометрических осей, граней в верхнем сечении установленных ригелей, прогонов, балок, ферм с установочными рисками на опорах контролируют по ГОСТ 26433.2 при помощи линейки или рулетки.

Отклонение от симметричности при установке элементов конструкции в направлении перекрываемого пролета

При операционном контроле отклонения от симметричности при установке элементов конструкции в направлении перекрываемого пролета (половина разности глубины опирания концов элемента конструкции) проверяют каждый элемент конструкции.

Средства контроля:

линейка измерительная металлическая по ГОСТ 427 с ценой деления 1 мм и диапазоном измерения (0-300) мм;

Отклонение от симметричности при установке элементов конструкции в направлении перекрываемого пролета контролируют по ГОСТ 26433.2 при помощи линейки или рулетки.

Отклонение от расстояния между осями верхних поясов ферм и балок в середине пролета.

При операционном контроле отклонения от расстояния между осями верхних поясов ферм и балок в середине пролета проверяют каждую конструкцию.

Средство контроля - рулетка измерительная металлическая по ГОСТ 7502 с ценой деления 1 мм и диапазоном измерения (0-10 000) мм.

Отклонение от расстояния между осями верхних поясов ферм и балок в середине пролета контролируют при помощи рулетки.

Перепад лицевых поверхностей двух смежных плит перекрытий в шве.

При операционном контроле перепада лицевых поверхностей двух смежных плит перекрытий в шве выполняют измерения не менее чем в пяти точках на каждые 150 м2 площади здания (этажа) или на участке меньшей площади.

Средства контроля:

линейка измерительная металлическая по ГОСТ 427 с ценой деления 1 мм и диапазоном измерения (0-300) мм;

рейка контрольная прямоугольная длиной от 1000 до 3000 мм по действующим ТНПА с отклонением от прямолинейности не более 0,5 мм.

клин для контроля зазоров с диапазоном измерения 0,5-16 мм, ценой деления 0,5 мм.

Перепад лицевых поверхностей двух смежных плит перекрытий в шве контролируют при помощи контрольной рейки и линейки (клина). Горизонтально устанавливают рейку на поверхность
в месте расположения шва и измеряют зазор между поверхностью рейки и контролируемой поверхностью при помощи линейки (клина).

Толщина постели из раствора под плитами

При операционном контроле толщины постели из раствора под плитами проверяют опорные поверхности по всей длине.

Средство контроля - линейка измерительная металлическая по ГОСТ 427 с ценой деления 1 мм и диапазоном измерения (0-300) мм.

Толщину постели из раствора контролируют при помощи линейки перед укладкой и после укладки плиты.

Отклонение от горизонтали потолочных поверхностей плит балконов, лоджий и козырьков в продольном и поперечном направлениях.

При операционном контроле отклонения от горизонтали потолочных поверхностей плит балконов, лоджий и козырьков в продольном и поперечном направлениях проверяют каждый элемент конструкции.

5. Общие требования безопасности

К работам допускаются лица не моложе 18 лет, прошедшие вводный инструктаж, инструктаж на рабочем месте, обучение безопасным методам и приемам выполнения работ, и не имеющие ограничений по состоянию здоровья.

Работники, выполняющие работы, обязаны соблюдать требования безопасности труда для обеспечения защиты от воздействия опасных и вредных производственных факторов, связанных с характером этой работы:

Для защиты от производственных загрязнений и механических воздействий работники обязаны использовать спецодежду, спецобувь и средства защиты.

Работники обязаны немедленно извещать своего непосредственного начальника или вышестоящего руководителя работ о любой ситуации, угрожающей жизни и здоровью людей, о каждом несчастном случае, произошедшем на производстве, или об ухудшении состояния своего здоровья.

За невыполнение данной инструкции виновные привлекаются к ответственности согласно правилам внутреннего трудового распорядка или взысканиям, определенным Трудовым Кодексом РБ.

.1 Требования безопасности перед началом работы

Перед началом работы работники обязаны:

получить инструктаж о мерах безопасности при работах на опасных участках у производителя работ, уяснить полученное задание;

надеть спецодежду, спецобувь, средства защиты;

подобрать необходимый для выполнения данной работы инструмент, приспособления, технологическую оснастку, убедиться в их исправности;

проверить отсутствие помех и посторонних людей в зоне производства работ;

Работники не должны приступать к выполнению работ при следующих нарушениях требований безопасности:

отсутствие необходимых средств индивидуальной защиты;

загроможденность зоны работ;

присутствие посторонних людей;

недостаточной освещенности места работ.

6. Схема организации рабочих мест при монтаже

Рисунок 6.1

7. Описание технологической последовательности работ

разгрузка стропильных ферм и плит покрытия;

установка лестниц с площадками к месту монтажа;

подъем ферм к месту монтажа;

установка ферм в проектное положение с помощью расчалок для крайних ферм и распорки для остальных;

прихватка ферм сваркой;

перемещение лестниц для организации рабочего места последующего монтажа;

подъем плит покрытия к месту монтажа;

установка плит покрытия в проектное положение;

прихватка плит покрытия сваркой;

установка одноярусных ограждающих конструкций для безопасности работ на плитах;

обмазка швов между плитами покрытия песчано-цементным раствором;

снятие ограждающих конструкций с плит покрытия.

8. Определение трудоемкости и машиноемкости частных и специализированных потоков

Таблица 3- Калькуляция затрат труда

Обоснование (ЕНиР)

   Наименование работ

Единица измерения

Объем работ

Норма времени на единицу, Чел-час Маш-ч

Затраты труда на весь объем, Чел-час М-час

Состав звена

1

2

3

4

5

6

9

Монтаж ферм

Е25-14

Погрузка, выгрузка грузов самоходными стреловыми кранами

32

 3,3 1,1

105,6 35,2

Такелажник 4р-1 Такелажник 3р-1 Такелажник 2р-1 Машинист 6р-1

Е5-1-2

Установка средств подмащивания и защитных ограждений (лестница приставная)

шт

64

 0,34 0,17

21,76 10,88

Машинист крана 6р-1 Монтажник кон-ций 4р-1 Монтажник кон-ций 3р-1

Е4-1-6 В т.4, п.4

Установка ригелей, прогонов, балок и ферм

 шт

 32

  9,5  1,9

 304  60,8

Машинист крана 6р-1 Монтажник кон-ций 6р-1 Монтажник кон-ций 5р-1 Монтажник кон-ций 4р-1 Монтажник кон-ций 3р-1 Монтажник кон-ций 2р-1

Е22-1-1

Одностороняя сварка стыковых соединений без скоса кромок

 10 п.м.

 3,2

 5 0

 16 0

Электросварщик ручной сварки 3р-1

 

 

 


Итого:    На ед.:

447,36 106,88   13,98 3,34

Машинист крана 6р-1 Монтажник кон-ций 6р-1 Монтажник кон-ций 5р-1 Монтажник кон-ций 4р-1 Монтажник кон-ций 3р-1 Монтажник кон-ций 2р-1 Такелажник 4р-1 Такелажник 3р-1 Такелажник 2р-1 Электросварщик ручной сварки 3р-1

Монтаж плит покрытия

Е25-14

Погрузка, выгрузка грузов самоходными стреловыми кранами

 шт

 240

 0,84 0,42

 201,6 100,8

Такелажник 3р-1 Такелажник 2р-1 Машинист 6р-1

Е5-1-2

Установка средств подмащивания и защитных ограждений (ограждения одноярусные)

 шт

 138

  0,51 0,25

 70,38 34,5

Машинист крана 6р-1 Монтажник кон-ций 4р-1 Монтажник кон-ций 3р-1

Е4-1-7, п.11

Укладка плит перекрытий и покрытий

 шт

 240

 1,2 0,3

288 72

Машинист крана 6р-1 Монтажник кон-ций 4р-1 Монтажник кон-ций 3р-2 Монтажник кон-ций 2р-1

Е22-1-1

Одностороняя сварка стыковых соединений без скоса кромок

 10 п.м.

 12

 5 0

 60 0

Электросварщик ручной сварки 3р-1

Е4-1-26

Заливка швов панелей стен и плит перекрытий и покрытий

 100 п.м.

 20,22

 6,4 0

 129,408 0





 

Итого:    На ед.:

749,388 207,3   3,12245 0,86375

Машинист крана 6р-1 Монтажник кон-ций 4р-1 Монтажник кон-ций 3р-2 Монтажник кон-ций 2р-1 Такелажник 3р-1 Такелажник 2р-1 Электросварщик ручной сварки 3р-1

1196,748 314,18   4,4__ 1,1551

Принятый  состав звена:

Машинист крана 6р-1 Монтажник кон-ций 6р-1 Монтажник кон-ций 5р-1 Монтажник кон-ций 4р-1 Монтажник кон-ций 3р-1  Монтажник кон-ций 2р-1 Такелажник 4р-1 Такелажник 3р-1 Такелажник 2р-1 Электросварщик р/с 3р-1


Принимаем двухсменный режим работы, для окупаемости крана, и составляем календарный график производства работ, который представлен в приложении А, вместе с графиком изменения численности рабочих.

9. Технико-экономические показатели календарных графиков производства работ

Коэффициент неравномерности движения рабочих:

Кн=Аmax/Aср=5/(121/(15*2))=5/4=1,25;

,1<1,25<1,5;

Где Аmax - максимальное число рабочих в день, принятое по графику движения рабочих;- среднее число рабочих в день, равное общей трудоемкости, деленной на число дней строительства.

Выработка на 1 чел.-день определяется по формуле:

=S/N=544/121=4,5 чел.-день.

Где S - объем работ (т, м3, м2);- общая трудоемкость производства работ, чел.-дн.

Календарный график производства работ, а также график изменения численности рабочих, представлены в приложении А.

Заключение

Предпосылкой совершенствования технологии монтажа является улучшение проектных решений в области сборного ж/б, сокращение типоразмеров сборных конструкций; совершенствование конструкции соединений и стыков с целью упрощения их выверки; в области совершенствования монтажной техники - отказ от гибкой подвески монтируемых элементов и создание монтажных машин, снабженных жесткими манипуляторами, с целью повышения точности монтажа, ликвидации скрытых простоев бригад и непроизводительной работы машин; разработка и внедрение автоматов и роботов для обслуживания складов сборных конструкций и выполнения укрупнительной сборки, а также роботов - приспособлений для автоматической выверки монтируемых конструкций; создание компактных высокомобильных установок.

Совершенствование технологии монтажа должно также способствовать максимальному сокращению ручных операций, непроизводительных затрат труда, скрытых простоев машин; сокращению объемов верхолазных работ и оборудование удобных рабочих мест монтажников и сварщиков, это не только обеспечивает производительный комфорт, но и уменьшает непроизводительные затраты сил, времени и труда.

Список литературы

ЕниР. Сборник 1. Внутристроечные транспортные работы/Госстрой СССР. - М.: Прейскурантиздат, 1987-40 с.

ЕниР. Сборник 4. Монтаж сборных и устройство монолитных ж/б и бетонных конструкций. Вып.1-М.: Стройиздат, 1987.-64 с.

ЕниР. Сборник 22. Сварочные работы. Вып.1- М.:Прейскурантиздат, 1987.-56с.

Технология строительного производства./Под ред. Г.Н. Бадвина. Киев: 1984.-479 с.

Мелихов С.Н. Контроль качества строительных работ. Справочное пособие.-М.: Стройиздат, 1981-512 с.

Малый И.Н. Изготовление и монтаж ж/б конструкций. Саратов: СГТУ, 1990.-308 с.

Шерешевский И.А. Конструирование промышленных зданий и сооружений. Ленинграл: Стройиздат, 1979.-152 с.

Выбор монтажных кранов. Методические указания для студентов спец. ПГС /Штейн И. А

Похожие работы на - Технологическая карта на монтаж ферм и плит покрытия

 

Не нашли материал для своей работы?
Поможем написать уникальную работу
Без плагиата!
Без нейросетей!