Технологическая карта на монтаж сборного смешанного каркаса одноэтажного промышленного здания
Федеральное государственное
автономное образовательное учреждение
Высшего профессионального образования
"СИБИРСКИЙ ФЕДЕРАЛЬНЫЙ
УНИВЕРСИТЕТ"
Инженерно-строительный институт
Кафедра "Строительные материалы
и технология строительства"
Курсовой проект
Тема: "Технологическая карта на
монтаж сборного смешанного каркаса одноэтажного промышленного здания"
Красноярск 2014
Содержание
1. Область применения
2. Общие положения
3. Организация и технология выполнения работ
4. Требования к качеству работ
5. Потребность в материально-технических ресурсах
5.1 Спецификация монтажных элементов
5.2 Схемы строповки монтируемых конструкций
5.3 Выбор кранов по техническим параметрам
5.3.1 Подбор крана для монтажа колонн
5.3.2 Подбор крана для монтажа подкрановых балок
5.3.3 Подбор крана для монтажа стропильных конструкций
5.3.4 Подбор крана для монтажа плит покрытия и стеновых панелей
5.3.5 Выбор оптимального варианта монтажного крана по
технико-экономическим показателям
5.4 Определение объемов работ
5.5 Выбор способов временного крепления
6. Техника безопасности и охрана труда
7. Технико-экономические показатели
Библиографический список
1.
Область применения
Данная технологическая карта составлена на монтаж сборного
железобетонного каркаса одноэтажного промышленного здания. Предназначена для
нового строительства.
Марки элементов каркаса:
колонны: 4К108-7; 10К96-1; 4К96-5;
подкрановые балки: БК12-ЗА1У-К;
стропильные фермы: ЗБДР18-4А1УТ; ФС30-5,0;
плиты покрытия: 2ПГ12-5Ат1УСТ;
панели стеновые: ПС120.18.30-1П1;
Данной технологической картой предусмотрены следующие объемы
работ:
выгрузка колонн с общей массой 569,8 т;
выгрузка подкрановых балок с общей массой 803,4 т;
выгрузка стропильных ферм с общей массой 201,6 т;
выгрузка плит покрытия с общей массой 2309 т;
установка колонн - 70 шт;
установка подкрановых балок - 78 шт;
установка стропильных ферм - 39 шт;
укладка плит покрытия - 312 шт;
замоноличивание колонн в стакан фундамента - 4,86 м3;
сварочные работы подкрановой балки с колонной - 110,4 м;
сварочные работы стропильной фермы с колонной - 48 м;
сварочные работы плит покрытия со стропильной конструкцией -
124,8 м;
замоноличивание швов плит покрытия - 26,64 м3;
сварочные работы связей к колоннам - 19,44 м;
Антикоррозийное покрытие - 432 стыка;
2. Общие
положения
Технологическая карта разработана согласно: МДС 12-29.2006
"Методические рекомендации по разработке и оформлению технологической
карты"; СП 48.13330.2011 "Организация строительства"; СП
70.13330.2012"Несущие и ограждающие конструкции"; СП 12-135-2003"Безопасность
труда в строительстве".
монтаж промышленное здание строительный
3.
Организация и технология выполнения работ
Предполагаем, что при возведении данного
одноэтажного промышленного здания применяется комбинированный метод монтажа.
Объект делим на захватки. За захватку принимаем пролет
здания, то есть первая захватка будет находиться в осях с А-Б и 1-11, вторая с
В-Г и 1-11, третья с Г-Д и 1-11. Строительные процессы на захватках
осуществляем поточным методом. Все работы по монтажу ведутся в 2 смены,
разгрузка элементов и установка связей в 1 смену.
До начала монтажа каркаса должны быть выполнены все
подготовительные работы:
разбиты и приняты оси здания;
возведены все необходимые временные сооружения;
закончено устройство временных дорог, подъездных путей;
проложены подземные коммуникации;
возведены стаканы фундамента под колонны;
осмотрены, налажены и приняты монтажные механизмы,
приспособления и оборудование;
Завезены и уложены в соответствии с технологическими схемами
сборные железобетонные конструкции. Все конструкции разгружаются и
раскладываются непосредственно у мест монтажа. На разгрузке конструкций
работает звено, состоящее из машиниста крана 6р-один человек, такелажники 2р -
два человека.
Все поступающие на строительную площадку сборные элементы
подлежат тщательной проверке:
все детали должны быть маркированы на заводах-изготовителях.
Необходимо проверять геометрические формы, прямолинейность ребер и граней,
правильность расположения закладных деталей, монтажных петель, выпусков
арматуры;
детали с трещинами, деформациями и др. дефектами подлежат
возвращению на завод.
Перед подъемом и перемещением сборных элементов в зону
монтажа необходимо:
очистить элемент, от грязи;
нанести основные риски и проверить, наличие меток мест
опирания элементов;
проверить правильность и надежность строповки.
Монтаж железобетонных колонн
Подготовительные работы. До установки колонн в
стаканы фундаментов должны быть выполнены следующие подготовительные работы:
возведены стаканы фундаменты под колонны и проверено соответствие
их проектному положению с помощью геодезических инструментов;
устроить дороги для проезда крана и автомобилей;
разложены колонны в радиусе действия монтажного крана.
Колонны располагают опорной частью ближе к фундаменту, оголовок направляют в пролет
по ходу монтажа;
нанесены риски установочных осей на верхних гранях стаканов
фундаментов и на колоннах.
доставить в зону монтажа необходимые монтажные средства,
приспособления и инструменты.
Железобетонные колонны на объекте раскладывают на деревянных
подкладках в зоне действия монтажного крана. Толщина подкладок должна быть не
менее 250 мм.
Каждую колонну необходимо осмотреть с тем, чтобы она не имела
деформаций, повреждений, трещин, раковин, сколов, обнаженной арматуры, наплывов
бетона; проверить геометрические размеры колонны, наличие монтажного отверстия,
правильность установки стальных закладных деталей.
Основные работы. Монтаж колонн
осуществляем дифференцированным методом. Устанавливаем колонны краном СКГ-40/63
в составе звена: машинист крана 6р - 1 человек, монтажники 5р, 4р, 2р - 1
человек, 3р - 2 человека. Одновременно с установкой ведут работы по заделке
стыков колонн. Выполняют монтажники 4р, 3р. Это монтажники из того же звена
рабочих. После чего кран переезжает во второй пролет и ведет монтаж колонн в
следующем пролете, а в первом пролете начинается монтаж подкрановых балок.
Работы по установке колонн ведутся в 2 смены.
Колонны при помощи монтажного крана устанавливают в стаканы
фундамента на армобетонные подкладки.
Поднятые краном колонны опускают в стакан фундамента,
совмещая осевые риски в нижней части колонн с осевыми рисками на фундаменте.
Затем проверяют вертикальность колонн с помощью двух теодолитов. Теодолиты
располагают под прямым углом к цифровой и буквенной осям зданий.
Средства временного крепления демонтируют после
окончательного закрепления и достижения бетоном стыка 70% проектной прочности.
Монтаж подкрановых балок
Подготовительные работы. Подкрановые балки
монтируются после того, как будут установлены все колонны в пределах первой
захватки и когда бетон в стыке между колонной и стенками стакана фундамента
наберет не менее 70% проектной прочности.
До начала монтажа подкрановых балок должны быть выполнены
работы по:
подготовке и планировке площадки,
монтажу, выверке и закреплению по проекту колонн и
вертикальных связей по ним;
доставке к месту работ необходимого оборудования,
инструмента, вспомогательных материалов и грузозахватных приспособлений.
Перед установкой железобетонных подкрановых балок необходимо
произвести геодезическую проверку отметок опорных площадок подкрановых консолей
колонн.
Перед подъемом балки необходимо установить на колонны
монтажные приставные лестницы, очистить монтажные узлы от грязи и мусора,
закрепить на балке оттяжки из пенькового каната и застропить ее.
Основные работы. Монтаж подкрановых балок
ведут дифференцированным методом. На монтаже работает комплексная бригада,
состоящая из: машиниста крана 6р - 1 человек, монтажники конструкций 5р, 4р, 2р
- 1 человек, 3р - 2 человека, электросварщики 6р - 2 человека. Установку
подкрановых балок ведем краном МКГ-25. Работы по установке подкрановых балок,
сварочные и антикоррозионные процессы ведутся в 2 смены.
После подготовительных осуществляют строповку подкрановой
балки и подъем ее к месту установки.
Балку поднимают выше проектной отметки на 50 см, а затем с
помощью оттяжек приводят ее в положение, близкое к проектному. При установке
подкрановых балок риски на нижних торцевых гранях балок должны совпадать с
рисками на консолях колонн. Временное крепление балки осуществляется с помощью
струбцины и винтовой стяжки для регулирования балок.
После укладки балок на консоли колонн и временного крепления
струбцинами выверяют по высотным отметкам. Оси подкрановых балок выверяют
теодолитом, установленным по оси первой подкрановой балки на специальном
кронштейне.
После выверки правильности укладки балок производится
приварка закладных деталей колонн к верхним полкам балок, а также сварка по
нижнему поясу подкрановой балки. Высота катета шва сварки 10 мм. Затем
покрывают сварной шов антикоррозионным составом.
Монтаж стропильных ферм и плит покрытия
Монтаж ферм и плит покрытия выполняет комплексная бригада. В
состав бригады входят: 5 монтажников конструкций 6р, 5р, 4р, 3р, 2р; машинист
крана 6р - 1 человек, электросварщики 6р - 2 человека.
К монтажу ферм и плит покрытия приступаем после установки
всех подкрановых балок на первой захватке. Работы по установке ферм и плит
покрытия выполняем комплексным методом, который предусматривает установку и
окончательное закрепление всех конструктивных элементов одной ячейки здания.
На монтаже работает гусеничный кран СКГ 63/100, оборудованный
гуськом. Монтаж ферм выполняем основным подъемом, а монтаж плит покрытия -
вспомогательным, с помощью гуська. Вместе с этим ведутся сопутствующие работы
по сварке, антикоррозионные работы и заливка швов между плитами покрытия.
Фермы и плиты покрытия монтируют с предварительной раскладкой
их в зоне действия монтажного крана. Фермы следует устанавливать в проектное
положение, совмещая осевые риски на их торцах с рисками на опорных поверхностях
колонн. Затем закладные детали элементов соединяют сваркой. Устойчивость ферм в
процессе монтажа обеспечивается с помощью крышевого кондуктора-распорки.
Временное крепление можно снять только после установки и окончательной приварки
закладных деталей одной плиты. Первые две с торца здания фермы крепят
расчалками. Расчалки закрепляют за приставные якоря. Одновременно с фермами
следует постоянные связи.
4. Требования
к качеству работ
Данный раздел разрабатываем на основании [1 разд.3; 4 разд.6]
Производственный контроль качества строительства выполняется
исполнителем работ и включает в себя:
входной контроль проектной документации;
приемку вынесенной в натуру геодезической разбивочной основы;
входной контроль применяемых материалов, изделий;
операционный контроль в процессе выполнения и по завершении
операций;
оценку соответствия выполненных работ, результаты которых
становятся недоступными для контроля после начала выполнения последующих работ.
При входном контроле проектной документации следует
проанализировать всю представленную документацию.
При обнаружении недостатков соответствующая документация
возвращается на доработку.
Входным контролем в соответствии с действующим
законодательством проверяют соответствие показателей качества покупаемых
(получаемых) материалов, изделий и оборудования требованиям стандартов,
технических условий или технических свидетельств на них, указанных в проектной
документации.
При необходимости могут выполняться контрольные измерения и
испытания этих показателей. Методы и средства этих измерений и испытаний должны
соответствовать требованиям стандартов, технических условий и (или) технических
свидетельств на материалы, изделия и оборудование.
Результаты входного контроля должны быть документированы.
Материалы, изделия, оборудование, несоответствие которых
установленным требованиям выявлено входным контролем, следует отделитьот
пригодных и промаркировать. Работы с применением этих материалов, изделий и
оборудования следует приостановить. В соответствии с законодательством может
быть принято одно из трех решений:
поставщик выполняет замену несоответствующих материалов,
изделий, оборудования соответствующими;
несоответствующие изделия дорабатываются;
несоответствующие материалы, изделия могут быть применены
после обязательного согласования с застройщиком (заказчиком), проектировщиком и
органом государственного контроля (надзора) по его компетенции.
Операционным контролем исполнитель работ проверяет:
соответствие последовательности и состава выполняемых
технологических операций технологической и нормативной документации,
распространяющейся на данные технологические операции;
соблюдение технологических режимов, установленных
технологическими картами и регламентами;
соответствие показателей качества выполнения операций и их
результатов требованиям проектной и технологической документации, а также
распространяющейся на данные технологические операции нормативной документации.
Результаты операционного контроля должны быть
документированы.
Результаты приемки работ, скрываемых последующими работами, в
соответствии с требованиями проектной и нормативной документации оформляются
актами освидетельствования скрытых работ.
Технический надзор застройщика (заказчика) за строительством
выполняет:
проверку наличия у исполнителя работ документов о качестве
(сертификатов в установленных случаях) на применяемые им материалы, изделия и
оборудование, документированных результатов входного контроля и лабораторных
испытаний;
контроль соблюдения исполнителем работ правил складирования и
хранения применяемых материалов, изделий и оборудования; при выявлении
нарушений этих правил представитель технадзора может запретить применение
неправильно складированных и хранящихся материалов;
контроль соответствия выполняемого исполнителем работ
операционного контроля.
контроль за устранением дефектов в проектной документации,
выявленных в процессе строительства, документированный возврат дефектной
документации проектировщику, контроль и документированная приемка исправленной
документации, передача ее исполнителю работ;
контроль исполнения исполнителем работ предписаний органов
государственного надзора и местного самоуправления;
извещение органов государственного надзора обо всех случаях
аварийного состояния на объекте строительства;
контроль соответствия объемов и сроков выполнения работ условиям
договора;
заключительную оценку (совместно с исполнителем работ)
соответствия законченного строительством объекта требованиям законодательства,
проектной и нормативной документации.
В случаях, предусмотренных законодательством, разработчик
проектной документации осуществляет авторский надзор за строительством. Порядок
осуществления и функции авторского надзора устанавливаются соответствующими
нормативными документами.
Замечания представителей технического надзора застройщика
(заказчика) и авторского надзора документируются. Факты устранения дефектов по
замечаниям этих представителей документируются с их участием.
Органы государственного контроля (надзора) выполняют оценку
соответствия процесса строительства и возводимого объекта требованиям
законодательства, технических регламентов, проектной и нормативной
документации, назначенным из условия обеспечения безопасности объекта в
процессе строительства и после ввода его в эксплуатацию в соответствии с действующим
законодательством.
Органы государственного контроля (надзора) выполняют оценку
соответствия процесса строительства конкретного объекта по получении от
застройщика (заказчика) извещения о начале строительных работ.
Оценка соответствия зданий и сооружений обязательным требованиям
безопасности как продукции, представляющей опасность для жизни, здоровья и
имущества пользователей, окружающего населения, а также окружающей природной
среды.
Представители органов государственного контроля (надзора) по извещению
исполнителя работ могут участвовать в соответствии со своими полномочиями в
процедурах оценки соответствия результатов работ, скрываемых последующими
работами, и отдельных конструкций.
Административный контроль за строительством в целях ограничения неблагоприятного
воздействия строительно-монтажных работ на население и территорию в зоне
влияния ведущегося строительства ведется органами местного самоуправления или
уполномоченными ими организациями (административными инспекциями и т.п.) в
порядке, установленном действующим законодательством.
Предельные отклонения положений элементов и конструкций в
соответствии со СНиП 3.03.01-87 не должны превышать следующих величин,
приведенных в таблице 1.
Таблица 1 - Операционный контроль качества
|
Параметр
|
Предельные
отклонения, мм
|
Контроль
(метод, объем, вид регистрации)
|
|
Отклонение осей
колонн одноэтажных зданий в верхнем сечении от вертикали при длине колонн, м:
св.8 до 16
|
30
|
Измерительный;
каждый элемент; геодезическая исполнительная схема
|
|
Разность
отметок верха колонн или их опорных площадок (кронштейнов, консолей)
одноэтажных зданий и сооружений при длине колонн, м: св.8 до 16
|
20
|
То же
|
|
Отклонение от
совмещения ориентиров (рисок геометрических осей, граней) в верхнем сечении
установленных элементов (стропильных ферм и балок) на опоре с установочными
ориентирами (рисками геометрических осей или граней нижестоящих элементов,
рисками разбивочных осей) при высоте элемента на опоре, м: до 1 св. 1,6 до 2,5
св. 2,5 до 4
|
6 8 10
12
|
Измерительный,
каждый элемент, журнал работ
|
|
Отклонение от
совмещения ориентиров (рисок геометрических осей, граней) в нижнем сечении
установленных элементов с установочными ориентирами (рисками геометрических
осей или гранями нижележащих элементов, рисками разбивочных осей): колонн;
подкрановых балок, стропильных балок и ферм
|
8 8
|
То же
|
|
Расстояние
между осями верхних поясов ферм и балок в середине пролета
|
60
|
То же
|
|
Разность
отметок верхних полок подкрановых балок и рельсов: на двух соседних колоннах
вдоль ряда при расстоянии между колоннами l, м: l£ 10 . в одном поперечном разрезе пролета: на
колоннах
|
10 15 20
|
Измерительный,
на каждой опоре, геодезическая исполнительная схема
|
При окончательной приемке смонтированных элементов должны
быть предъявлены документы:
исполнительные чертежи;
заводские технические паспорта на конструкции материалов,
примененных при производстве СМР;
акты промежуточной приемки ответственных конструкций;
исполнительные геодезические схемы положения конструкций;
журналы работ;
документы о контроле качества сварочных соединений.
5.
Потребность в материально-технических ресурсах
5.1
Спецификация монтажных элементов
По каталогу сборных железобетонных конструкций [8, 9] и на
основании данных своего варианта подбираем сборные железобетонные элементы
каркаса. Спецификацию монтажных элементов с геометрическими размерами, массой и
количеством элементов приводим в виде таблицы.
Таблица 2 - Спецификация сборных элементов
|
№ п/п
|
Наименование
элемента
|
Марка по
каталогу
|
Эскиз
|
Расход бетона,
м3
|
Масса элемента,
т
|
|
|
|
|
на 1 эл.
|
всего
|
одного
|
всего
|
|
|
|
|
|
|
|
|
1 Колонная крановая крайняя 4К108-7
Н=11850=4100=7750
А=600
|
В=7003,495.28,4235.2
|
|
|
|
|
|
|
2
|
Колонна
крановая средняя
|
10К96-1
|
Н=10650 h1=3300 h2=7350 А=400 В=700
|
3,4
|
47.6
|
8,5
|
119
|
3 Колонна крановая крайняя 4К96-5
Н=10650=3300=7350
А=380
4 Балка подкрановая БК12-3АIУ-К
=11950=650
5 Балка стропильная 3БДР18-4А1УТ
=17960=1640
|
B=2003,4644.988,4109.2
|
|
|
|
|
|
|
6
|
Ферма стальная
|
ФС30-5,0
|
L=30000,
H=3150
|
-
|
-
|
3,9
|
101.4
|
7 Плита покрытия 2ПГ12-5Ат1УСТ
L=11960=2980
|
B=4552,96923.527,42309
|
|
|
|
|
|
|
8
|
Стеновая панель
|
ПС120.18.30-1П1
|
L=11970, Н=1180, В=300
|
2,75
|
33
|
5,4
|
64.8
|
5.2 Схемы
строповки монтируемых конструкций
Для подбора грузозахватных приспособлений пользуемся
каталогом средств монтажа [10]. Для каждого монтируемого элемента выбираем
комплект однотипной монтажной оснастки, принимая его большей грузоподъемности.
Таблица 3 - Подбор грузозахватных устройств и схем строповок
|
Наименование
конструкции
|
Наименование
технических средств монтажа
|
Эскиз
|
Характеристики
|
|
|
|
Грузоподъемность,
т
|
масса, т
|
Колонна до 12,5т 1. Строп 2СТ-16-5 2. Траверса ТР
12,5 - 0,5 3. Подстропок УСК 2-6,3-8 4. Подкладка высотой 250 мм 
16
,5
,30,1666
,146
Колонна до 8т 1. Строп 2СТ10-4 2. Траверса ТР8-0,4 3.
Подстропок ВК-4-6,3 4. Подкладка толщиной 250мм 
10
,09
,076
Подкра-новая балка 1. Строп 2СТ16-5 2. Пружинный замок
ПР8 3. Канат для расстраповки 4. Подстропок ВК-4-5 5. Подкладка под канат
,1666
,0067
,129
Сталь-ная ферма 1. Пружинный замок ПР-8 2. Подкладка под канат 3.
Подстропок ВК-4-1,5 4. Строп 2СТ10-4
8
,0067
,0015
,0072
Стропильная балка 1. Канат для расстроповки 2. Пружинный
замок ПР8 3. Строп 2СТ10-4 4. Подстропок ВК4-3,2 5. Подкладка под канат
,0067
,0948
,0099
|
0,0015
|
|
|
|
|
Плита покры-тия
|
1. Строп
4СК-10-4 2. Подстропок ПК-4-3,4
|
|
10
|
0,513 0,0134
|
Стено-вая панель 1. Строп 2СТ 10-4 2. Канат для
расстроповки
3. Строп 4СК16-5
10
5.3 Выбор
кранов по техническим параметрам
5.3.1 Подбор
крана для монтажа колонн
Подбираем кран по наиболее тяжелому элементу. Этим элементом
является колонна 10К96-1, массой m=8,5 т, высотой
10,650 м.
а) Монтажная масса монтируемого элемента:
М=Мэ+Мг=8,5+0,1666+0,146+0,025=8,837 (т),
где Мэ - масса элемента, т;
Мг - масса грузозахватных и вспомогательных устройств,
т.
б) Монтажная высота подъема крюка:
Нк=hо+hз+hэ+hг=0+0,5+10,65+1,68=12,83 (м),
где hо - превышение отметки опор монтируемого элемента над уровнем
стоянки крана, м;
hз - запас
по высоте, необходимый для перемещения монтируемого элемента над ранее
смонтированными элементами и установки его в проектное положение, принимается
по технике безопасности равным, 0,3…0,5 м.;
hэ - высота
монтажного элемента, м;
hг - высота
строповочного приспособления, находящаяся над монтируемой конструкцией, м
(расчётная высота стропов):
hг=0,74+0.44+0,5=1,68
(м).
в) Минимальное требуемое расстояние от уровня стоянки крана до
верха стрелы:
Нс= Нк+hn=12,83+2=14,83 (м),
где hn - высота полиспаста в стянутом состоянии,
hn=2м.
г) Требуемый монтажный вылет крюка:
к =
+ 
= 
+ 2 = 6,7 м,
где b - минимальный зазор между стрелой и
монтируемым элементом: b=0,5м,
b1 -
расстояние от центра тяжести элемента до края элемента приближенного к стреле,
м,
b2 - половина
толщины стрелы на уровне верха монтируемого элемента, м,
b3 -
расстояние от оси вращения крана до оси поворота стрелы, м,
hш -
расстояние от уровня стоянки крана до оси поворота стрелы, м.
д) Требуемая длина стрелы:
Lc= 
= 13,66м.
По каталогу монтажных кранов выбираем для монтажа колонн кран
гусеничный СКГ 40/63 с рабочими органами Lс=20 м, lк=10 м, Мм=11,7 т, Нк=17,4 м.
5.3.2 Подбор
крана для монтажа подкрановых балок
Подбираем кран для балки БКI12-3АIУ-К, массойm=10,3 т.
а) Монтажная масса монтируемого элемента:
М=Мэ+Мг=10,3+0,188=10,49
(т)
б) Монтажная высота подъема крюка:
Нк=hо+hз+hэ+hг=7,75+0,5+1,2+4,3=13,75
(м)
в) Минимальное требуемое расстояние от уровня стоянки крана
до верха стрелы:
Нс= Нк+hn=13,75+2=15,75 (м)
г) Требуемый монтажный вылет крюка:
lк = + 
= 
+ 2 = 4,89 м
д) Требуемая длина стрелы:
Lc= 
= 14,05м
По каталогу монтажных кранов выбираем для монтажа подкрановых
балок кран гусеничный МКГ-25 с рабочими органами Lс=17,5 м, lк=6 м, Мм=13,5 т, Нк=16,6 м.
5.3.3 Подбор
крана для монтажа стропильных конструкций
Наиболее тяжелым элементом является стропильная
железобетонная ферма длиной 18 м и массой 8,4 т.
а) Монтажная масса монтируемого элемента:
М=Мэ+Мг=8,4+0,513=8,913 (т)
б) Монтажная высота подъема крюка:
Нк=hо+hз+hэ+hг=9,6+0,5+3,3+1,2=14.6 (м)
в) Минимальное требуемое расстояние от уровня стоянки крана
до верха стрелы:
Нс= Нк+hn=14.6+2=16,6 (м)
г) Требуемый монтажный вылет крюка:
lк = + 
= 
+ 2 = 7,2 м
д) Требуемая длина стрелы:
Lc= 
= 15,79м
По каталогу монтажных кранов выбираем для монтажа стропильных ферм
кран гусеничный СКГ-63/100 с рабочими органами Lс=20,8 м, lк=10 м, Мм=29 т, Нк=18,5 м.
5.3.4 Подбор
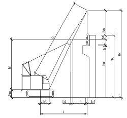
крана для монтажа плит покрытия и стеновых панелей
Для монтажа плит покрытий и стеновых панелей целесообразно
применять кран с гуськом.
Монтажная масса монтируемого элемента:
М=Мэ+Мг=7,4+0,5264=7,92 (т)
Монтажная высота подъема крюка:
Нк=hо+hз+hэ+hг= (10,8+3,3)
+0,5+0,455+5,25 =20,3 (м)
Определяем необходимые монтажные характеристики
крайней плиты покрытия:
h1= hо+hз+hэ-hш=14,1+0,5+0,455-2=13,055м
В = b+b1+b2-LrCosφ=0,5+6+0,5-7,6*0,707=1,7м
=
=> α = 63,2°
Необходимая длина стрелы при монтаже крайней плиты покрытия.
м
Минимальный вылет крана основного и
вспомогательного подъема для монтажа средней плиты:
= Lc·Cosα+ b3=18,41·0,45+0,5=8,78м.
Минимальный вылет крюка вспомогательного подъема при монтаже
средней плиты:
lвспк= lк+Lг·Cosφ=8,78+7,6·0,707=14,15м.
Вылет крюка вспомогательного подъема при монтаже крайней
плиты:

где С = 24/2-1,5=10,5 м
Чтобы определить минимальную длину стрелы для монтажа крайней
плиты выполняем следующие расчеты:
определяем угол поворота основной стрелы крана в горизонтальной
плоскости:
находим ее проекцию на горизонтальную плоскость при монтаже
крайней плиты:
находим проекцию основной стрелы на вертикальную плоскость при
монтаже крайней плиты:
Нсβ=hоβ+hз+hэ+hг+hг+hn-Lг·Sinφ-Нш=14,1+0,5+0,455+5,25+2-7,6·0,707-2=14,93
определяем угол наклона стрелы к горизонту при монтаже крайней
плиты
через найденный угол находим длину основной стрелы крана,
оборудованного гуськом для монтажа крайних плит
При этом требуется высота крюка вспомогательного подъема
определится из выражения:
Hвспкβ= Lcβ. sinα+Lг·sinφ+hш-hn =21,79.0,892+7,6.0,707+2-2=22,39м
Найденные монтажные характеристики:
вылет крюка вспомогательного подъёма - 17,86м.
высота вспомогательного подъёма крюка - 22,39м.
монтажная масса - 7,92т.
длина стрелы - 21,79 м.
По каталогу монтажных кранов выбираем для монтажа плит
покрытия кран гусеничный СКГ-63/100 с рабочими параметрами: Lс = 20,8 м, lк = 10 м, Мм = 29
т, Нк = 18,5 м, lк (всп) = 18м, Мм (всп) = 10,8т, Нк (всп)
= 22,6 м.
5.3.5 Выбор
оптимального варианта монтажного крана по технико-экономическим показателям
Основные критерии при выборе варианта крана:
. Продолжительность монтажных работ;
. Трудоемкость монтажа;
. Себестоимость монтажных работ;
. Приведенные затраты;
Для монтажа колонн выбрали два наиболее пригодных в
техническом отношении крана: СКГ 40/63 - кран гусеничный, и МКП-25А - кран
пневмоколесный. Сравним их:
Таблица 5 - Характеристики кранов
|
Кран
|
Скорость
подъема и опускания основного крюкаV1,м/мин
|
Рабочая
скорость передвижения крана V3, м/мин
|
Частота
вращения стрелы мин-1, nОБ
|
|
СКГ 40/63
|
7,5
|
16,68
|
0,42
|
|
МКП - 25А
|
8,4
|
33,3
|
1,02
|
Расчёт ТЭП для крана СКГ 40/63
Расчёт продолжительности монтажных работ.
Продолжительность пребывания крана на объекте:
ТК = ТО + ТТР + ТМ
+ ТОП + ТД=7,59+4,8=12,39 смен
где То - время работы крана непосредственно на
монтаже, смен.;
Ттр, Тм, Топи Тд
- время на транспортирования крана на объект, его монтаж, опробование, пуск и
демонтаж, смен.
Продолжительность монтажа То может быть определена
по ЕНиР [4,5] как затраты машинного времени или вычислена по формуле:
где V - объём работ, выполняемой данной
машиной, в шт;
Пэ - эксплуатационная сменная производительность крана
при монтаже сборных элементов, в шт.
Кв1 - коэффициент, учитывающий неизбежные внутрисменные
перерывы в работе крана (по метеоусловиям), принимается равным 0,86;
Кв2 - коэффициент, учитывающий неизбежные внутрисменные
перерывы по техническим и технологическим причинам. Для стреловых кранов
принимаем 0,8 - 0,85.
- продолжительность одной смены в минутах;
Тц - продолжительность одного цикла работы крана при
монтаже элемента в минутах.
где Труч - время ручных операций, мин;
Тмаш - время машинных операций, мин.
Время ручных операций
tстр, tуст, tрасст - ручное время строповки, установки и
расстроповки элемента, мин
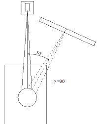
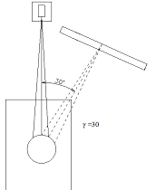
Машинное время цикла
мин
где Нк - средняя высота подъёма крюка, м;
V1 -
средняя скорость подъёма и опускания крюка, м/мин;
γ - средний угол поворота стрелы между
положением стрелы при строповке элемента и его установки в проектное положение,
30 градусов;
S1 -
среднее расстояние перемещения груза за счёт изменения вылета стрелы или
перемещения грузовой каретки, м;
S2 -
расстояние перемещения крана, приходящейся на один элемент;
V2 -
скорость перемещения груза при изменении вылета стрелы или скорость перемещения
каретки, м/мин;
nоб - число
оборотов стрелы в минуту;
V3 -
рабочая скорость передвижения крана, м/мин;
К1 - коэффициент, учитывающий совмещение операций
поворота стрелы с перемещением груза по вертикали, при изменении вылета стрелы,
принимается равным 0,75.
Определение трудоёмкости монтажных работ
Q=Qед+Qмаш+Qрем+Qмонт=28,6+9,9+0,58*12,39+49,5=95,18 чел-смен
где Qед - единовременные затраты;
Qмаш -
затраты труда машинистов;
Qрем -
затраты труда ремонтного и обслуживающего персонала;
Qмонт -
затраты труда монтажников
Определение себестоимости монтажных работ.
где 1,08 и 1,5 - коэффициенты, учитывающие накладные расходы
строительно-монтажных организаций на эксплуатацию машин и заработную плату
соответственно;
Смаш-см - стоимость машино-смены работы крана
(принимается по таблицы 1-4 приложения), руб;
Сед - стоимость единовременных затрат, связанных с
организацией монтажных работ (принимаются по табл. 1-4, 6, 7 приложения), руб;
Зп - сумма заработной платы монтажников, руб;
Тк - продолжительность работы крана на объекте, смен;
V - объём работ, шт.
Расчет приведённых затрат
где Ен - нормативный коэффициент экономической
эффективности капитальных вложений принимаем равным 0,15; Куд -
удельные капитальные вложения, руб;
Синв - инвентарная стоимость крана (табл.1-4
приложения), складывается из оптовой цены и стоимости доставки с завода
изготовителя до базы покупателя;
Тгод - нормативное число часов работы крана в году
(табл.1-4 приложения);
Тсм - число часов работы крана в смену (принимаем
8,0ч).
Расчёт ТЭП для крана МКП - 25А.
Расчёт продолжительности монтажных работ.
Продолжительность пребывания крана на объекте:
где То - время работы крана непосредственно на монтаже,
смен.;
Ттр, Тм, Топи Тд -
время на транспортирования крана на объект, его монтаж, опробование, пуск и
демонтаж (принимается по табл.1-4 приложения), смен.
Продолжительность монтажа То может быть определена по
ЕНиР [4,5] как затраты машинного времени или вычислена по формуле:
где V - объём работ, выполняемой данной
машиной, в шт.;
Пэ - эксплуатационная сменная производительность крана
при монтаже сборных элементов, в шт.
Кв1 - коэффициент, учитывающий неизбежные внутрисменные
перерывы в работе крана (по метеоусловиям), принимается равным 0,86;
Кв2 - коэффициент, учитывающий неизбежные внутрисменные
перерывы по техническим и технологическим причинам. Для стреловых кранов
принимаем 0,8 - 0,85.
- продолжительность одной смены в минутах;
Тц - продолжительность одного цикла работы крана при
монтаже элемента в минутах.
где Труч - время ручных операций, мин;
Тмаш - время машинных операций, мин.
Время ручных операций
tстр, tуст, tрасст - ручное время строповки, установки и
расстроповки элемента, мин. Машинное время цикла
где Нк - средняя высота подъёма крюка, м;
V1 -
средняя скорость подъёма и опускания крюка, м/мин;
γ - средний угол поворота стрелы между
положением стрелы при строповке элемента и его установки в проектное положение,
30 град;
S1 -
среднее расстояние перемещения груза за счёт изменения вылета стрелы или
перемещения грузовой каретки, м;
S2 -
расстояние перемещения крана, приходящейся на один элемент;
V2 -
скорость перемещения груза при изменении вылета стрелы или скорость перемещения
каретки, м/мин;
nоб - число
оборотов стрелы в минуту;
V3 - рабочая
скорость передвижения крана, м/мин;
К1 - коэффициент, учитывающий совмещение операций
поворота стрелы с перемещением груза по вертикали, при изменении вылета стрелы,
принимается равным 0,75.
Определение трудоёмкости монтажных работ
Q=Qед+Qмаш+Qрем+Qмонт=4,2+9,9+0,48
7,52+49,5=67,2 чел-смен
где Qед - единовременные затраты;
Qмаш -
затраты труда машинистов;
Qрем -
затраты труда ремонтного и обслуживающего персонала;
Qмонт -
затраты труда монтажников.
Определение себестоимости монтажных работ.
где 1,08 и 1,5 - коэффициенты, учитывающие накладные расходы
строительно-монтажных организаций на эксплуатацию машин и заработную плату
соответственно;
Смаш-см - стоимость машино-смены работы крана
(принимается по таблицы 1-4 приложения), руб;
Сед - стоимость единовременных затрат, связанных с
организацией монтажных работ (принимаются по табл.1-4, 6, 7 приложения), руб;
Зп - сумма заработной платы монтажников, руб;
Тк - продолжительность работы крана на объекте, смен;
V - объём работ, шт.
Расчет приведённых затрат
где Ен - нормативный коэффициент экономической
эффективности капитальных вложений принимаем равным 0,15;
Куд - удельные капитальные вложения, руб;
Синв - инвентарная стоимость крана (табл. 1-4
приложения), складывается из оптовой цены и стоимости доставки с завода
изготовителя до базы покупателя;
Тгод - нормативное число часов работы крана в году
(табл. 1-4 приложения);
Тсм - число часов работы крана в смену (принимаем 8,0
ч).
Полученные параметры занесём в таблицу для сравнения
вариантов
Таблица 6 - Сравнение кранов
|
Кран
|
Продолжительность
пребывания на объекте, см.
|
Производи-тельность,
шт/смену
|
Трудоемкость, чел.
- смен.
|
Приведенные
затраты, руб/шт.
|
|
СКГ 40/63
|
12,39
|
16,86
|
95,18
|
24,26
|
|
МКП - 25А
|
7,52
|
17,57
|
67,2
|
20,67
|
В результате полученных данных, принимаем кран марки МКП-25А,
потому что он наиболее выгодный. Но так как в наличие имеется только кран СКГ
40/63, то работы будут проводиться этим краном.
5.4
Определение объемов работ
Пользуясь схемами типовых узлов из методических указаний,
стоит определить объемы сварочных работ, работ по замоноличиванию стыков.
Таблица 4 - Ведомость объемов работ по замоноличиванию стыков
|
№ п/п
|
Наименование
процесса, формула подсчета, эскиз
|
Ед. изм. по
ЕНиРу
|
Кол-во
|
Объем работ на
|
|
|
|
|
ед. изм.
|
здание
|
|
1
|
Замоноличивание
колонны в стакан фундамента Vбетонир. =Vстак. фунд. - Vпогруж. части колонны Vстак. фунд == 1/3·0,92·1,087 = 0,333 м3 Vпогруж. части колонны=0,7·0,4·0,9 = 0,252 м3 Vбетонир. = 0,333-0,252 = 0,081 м3
|
стык
|
70
|
0,081
|
4,86
|
|
2
|
Замоноличивание
швов плит покрытия по коньку V =
(0,11+0,09) /2·0,15·100
|
100 м
|
3,6
|
1,5
|
5,4
|
|
3
|
Замоноличивание
рядовых швов плит покрытия V = 0,06·0,15·100
|
100 м
|
21,6
|
0,9
|
19,44
|
|
4
|
Замоноличивание
швов плит покрытия в ендовах V =
(0,08+0,12) /2·0,15·100
|
100 м
|
1,2
|
1,5
|
1,8
|
Таблица 5 - Ведомость объема сварочных работ
|
№ п/п
|
Наименование
процесса, формула подсчета, эскиз
|
Ед. изм. по
ЕНиРу
|
Кол-во
|
Объем работ на
|
|
|
|
|
ед. изм.
|
здание
|
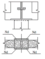
1 Крепление подкрановых балок к колонне
Сварные швы:
№1דּН1 - ⌳10 - 200
№2 דּТ3 - ⌳10 - 100
№3דּН1 - ⌳10 - 160
|
L1=4·0,2+4·0,1+4·0,16=1,84 музел701,84110,4
|
|
|
|
|
2 Крепление стропильных железобетонных ферм к
колонне
Сварные швы:
№1דּН1 - ⌳10 - 200
|
L1=0,2·4=0,8 музел700,848
|
|
|
|
|
|
|
3
|
Крепление плит
покрытия к стропильной конструкции №1-דּН1-∆6-50 №2-דּТ1-∆6-80 Длина
сварки на один стык: L =  музел3120,52124,8
|
|
|
|
|
|
4
|
Электросварка
крайних плит покрытия с фермами L =2·0,05+2·0,08
|
узел
|
70
|
0,26
|
15,6
|
|
5
|
Электросварка
связей по колоннам  узел121,6219,44
|
|
|
|
|
|
Антикоррозионные
работы. Объем антикоррозионных работ измеряется числом стыков:
60+60+240+60+12 = 432
|
5.5 Выбор
способов временного крепления
Пользуясь [10,11] выбираем способы временного закрепления
конструкций в процессе монтажа
Колонны. Для временного крепления колонн используем следующие
монтажные приспособления:
Армобетонные подкладки используют при выверке
колонн, установленных в стаканы фундаментов. Применение таких подкладок
исключает необходимость устройства выравнивающего слоя из бетонной или
растворной смеси, упрощает выведение опорных площадок (верха колонны, консолей,
подкрановых балок) на проектную отметку, облегчает выверку колонны по
вертикали.
Инвентарный фиксатор. Инвентарный фиксатор
предназначен для обеспечения проектного положения низа колонны в плане и
фиксации ее при дальнейшей выверке по вертикали. При установке колонны в стакан
ее торец скользит по упору. После закрепления колонны вкладышами,
ручку-фиксатор ослабляют, тягу опускают, ослабляют винт струбцины и фиксатор
извлекают из стакана.
Клиновые вкладыши и расчалки. Для колонн высотой до 12
м для временного крепления достаточно клиновых вкладышей. При высоте колонны
более 12 м их недостаточно, поэтому прибегают к дополнительному использованию
расчалок, которыми временно крепим колонну в плоскости наименьшей жесткости за
переносной железобетонный якорь. Верхние концы расчалок крепим за хомут,
установленный выше центра тяжести колонны.
Прежде чем заделать стык бетонной смесью на клиновый вкладыш
устанавливают ограждения, которые извлекают из стакана сразу же после
уплотнения после начала схватывания. После набора бетоном 70% проектной
прочности клиновый вкладыш вынимают за ручку, предварительно сняв распор
вращением винта.
Подкрановые балки. Временное крепление подкрановых балок
производится с помощью струбцины. После временного закрепления балок в пределах
одного пролета или температурного блока осуществляют геодезическую проверку в
плане и по высоте.
Стропильные фермы. Первые две фермы крепим расчалками.
Расчалки закрепляем за переставные инвентарные якоря. Одновременно с фермами
следует устанавливать все предусмотренные проектом постоянные связи.
Для закрепления следующих ферм используем крышевой
кондуктор-распорку. На покрытие первой смонтированной ячейки здания
кондуктор-распорку поднимают краном и устанавливают так, чтобы реборды колес
входили в зазоры между плитами. Закрепляют кондуктор в рабочее положение при
помощи фиксирующих упоров и натяжного устройства
После установки стропильной фермы на колонны стрелу
кондуктора опускают и она захватывает верхний пояс фермы.
Применения для временного крепления крышевого
кондуктора-распорки оправдывает себя, так как с помощью него монтаж ферм
происходит значительно быстрее. Соответственно снижаются время работы крана и
затраты труда монтажников. Повышается точность установки фермы и безопасность
ее расстроповки.
6. Техника
безопасности и охрана труда
При производстве работ по монтажу сборных железобетонных
конструкций одноэтажных промышленных зданий должны соблюдаться требования [2
разд.5; 3 разд.8].
Согласно СНиП 12-04-2002 "Безопасность труда в
строительстве" часть 2. Строительное производство, раздел 8
"Монтажные работы":
При монтаже железобетонных (далее - выполнении монтажных
работ) необходимо предусматривать мероприятия по предупреждению воздействия на
работников следующих опасных и вредных производственных факторов, связанных с
характером работы:
передвигающиеся конструкции, грузы;
обрушение незакрепленных элементов конструкций зданий и
сооружений;
падение вышерасположенных материалов, инструмента;
опрокидывание машин, падение их частей;
повышенное напряжение в электрической цепи, замыкание которой
может произойти через тело человека.
При наличии опасных и вредных производственных факторов,
указанных выше, безопасность монтажных работ должна быть обеспечена на основе
выполнения содержащихся в организационно-технологической документации следующих
решений по охране труда:
определение марки крана, места установки и опасных зон при
его работе;
обеспечение безопасности рабочих мест на высоте;
определение последовательности установки конструкций;
обеспечение устойчивости конструкций и частей здания в
процессе сборки;
На участке (захватке), где ведутся монтажные работы, не
допускается выполнение других работ и нахождение посторонних лиц.
Антикоррозионную защиту конструкций и оборудования в случаях,
когда они выполняются на строительной площадке, следует производить, как
правило, до их подъема на проектную отметку. После подъема производить
антикоррозионную защиту следует только в местах стыков и соединений
конструкций.
Запрещается пребывание людей на элементах конструкций и
оборудования во время их подъема и перемещения.
Навесные монтажные площадки, лестницы и другие
приспособления, необходимые для работы монтажников на высоте, следует
устанавливать на монтируемых конструкциях до их подъема.
Для перехода монтажников с одной конструкции на другую
следует применять лестницы, переходные мостики и трапы, имеющие ограждения.
Запрещается переход монтажников по установленным конструкциям
и их элементам, на которых невозможно обеспечить требуемую ширину прохода при
установленных ограждениях, без применения специальных предохранительных
приспособлений (натянутого вдоль фермы или ригеля каната для закрепления
карабина предохранительного пояса).
Не допускается нахождение людей под монтируемыми элементами
конструкций и оборудования до установки их в проектное положение.
безопасность работающих.
Элементы монтируемых конструкций или оборудования во время
перемещения должны удерживаться от раскачивания и вращения гибкими оттяжками.
До начала выполнения монтажных работ необходимо установить
порядок обмена сигналами между лицом, руководящим монтажом и машинистом.
Все сигналы подаются только одним лицом (бригадиром,
звеньевым, такелажником-стропальщиком), кроме сигнала "Стоп", который
может быть подан любым работником, заметившим явную опасность.
Строповку монтируемых элементов следует производить в местах,
указанных в рабочих чертежах, и обеспечить их подъем и подачу к месту установки
в положении, близком к проектному.
Запрещается подъем элементов строительных конструкций, не
имеющих монтажных петель, отверстий или маркировки и меток, обеспечивающих их
правильную строповку и монтаж.
Очистку подлежащих монтажу элементов конструкций от грязи и
наледи необходимо производить до их подъема.
Монтируемые элементы следует поднимать плавно, без рывков,
раскачивания и вращения.
Поднимать конструкции следует в два приема: сначала на высоту
20-30 см, затем после проверки надежности строповки производить дальнейший
подъем.
При перемещении конструкций или оборудования расстояние между
ними и выступающими частями смонтированного оборудования или других конструкций
должно быть по горизонтали не менее 1 м, по вертикали - не менее 0,5 м.
Во время перерывов в работе не допускается оставлять поднятые
элементы конструкций и оборудования на весу.
Установленные в проектное положение элементы конструкций или
оборудования должны быть закреплены так, чтобы обеспечивалась их устойчивость и
геометрическая неизменяемость.
Расстроповку элементов конструкций и оборудования,
установленных в проектное положение, следует производить после постоянного или
временного их закрепления согласно проекту
До окончания выверки и надежного закрепления установленных
элементов не допускается опирание на них вышерасположенных конструкций.
Запрещается выполнять монтажные работы на высоте в открытых
местах при скорости ветра 15 м/с и более, грозе или тумане, исключающих
видимость в пределах фронта работ.
Организация работы по обеспечению охраны труда
В соответствии с действующим законодательством обязанности по
обеспечению безопасных условий охраны труда в организации возлагаются на
работодателя.
Работники организаций выполняют обязанности по охране труда,
определяемые с учетом специальности, квалификации и (или) занимаемой должности
в объеме должностных инструкций, разработанных с учетом рекомендаций Минтруда
России или инструкций по охране труда.
В организации должно быть организовано проведение проверок,
контроля и оценки состояния охраны и условий безопасности труда, включающих
следующие уровни и формы проведения контроля:
постоянный контроль работниками исправности оборудования,
приспособлений, инструмента, проверка наличия и целостности ограждений,
защитного заземления и других средств защиты до начала работ и в процессе
работы на рабочих местах согласно инструкциям по охране труда;
периодический оперативный контроль, проводимый руководителями
работ и подразделений предприятия согласно их должностным обязанностям;
выборочный контроль состояния условий и охраны труда в
подразделениях предприятия, проводимый службой охраны труда согласно
утвержденным планам.
При обнаружении нарушений норм и правил охраны труда
работники должны принять меры к их устранению собственными силами, а в случае
невозможности этого прекратить работы и информировать должностное лицо.
В случае возникновения угрозы безопасности и здоровью
работников ответственные лица обязаны прекратить работы и принять меры по устранению
опасности, а при необходимости обеспечить эвакуацию людей в безопасное место.
Работодатели обязаны перед допуском работников к работе, а в
дальнейшем периодически в установленные сроки и в установленном порядке
проводить обучение и проверку знаний правил охраны и безопасности труда с
учетом их должностных инструкций или инструкций по охране труда.
Работодатель должен обеспечить работников, занятых в
строительстве санитарно-бытовыми помещениями (гардеробными, сушилками для
одежды и обуви, душевыми, помещениями для приема пищи, отдыха и обогрева и
проч.).
Подготовка к эксплуатации санитарно-бытовых помещений и
устройств должна быть закончена до начала производства работ. В
санитарно-бытовых помещениях должна быть аптечка с медикаментами, носилки, фиксирующие
шины и другие средства оказания пострадавшим первой медицинской помощи.
(Согласно СНиП "Безопасность труда в строительстве" часть 1. Общие
требования).
7.
Технико-экономические показатели
Критериями технологической карты являются технико-экономические
показатели. Они приведены в графической части работы.
Все данные определяются по калькуляции и графику производства
работ [графическая часть].
Объем работ в данной технологической карте составляет 1330,86
м3.
Нормативные затраты труда определяем как:
Qчел. - см=Qчел-час/Тсм = 2798,31/8 =349,7 чел. - см
Выработка одного рабочего в смену составляет:
Продолжительность работ по монтажу - 22 дня. Максимальное число
работающих в смену - 32 человека.
Заработная плата рабочих составляет 2360-69 руб. в базовых ценах
1984 г.
Все работы, кроме разгрузки всех элементов и установки связей,
ведутся в две смены.
Библиографический
список
1.
СП 48.13330.2011. Организация строительства. - М.: ЦПП, 2011. - 21с.
.
СП 70.13330.2012. Несущие и ограждающие конструкции. - М.: ЦПП, 2012. - 280с.
.
СП 12-135-2003. "Безопасность труда в строительстве. - М.: ЦПП, 2003. -
127с.
.
МДС 12-29.2006. Методические рекомендации по разработке и оформлению
технологической карты. - 10с.
.
Монтаж надземной части одноэтажного промышленного здания: методические указания
к курсовому проекту для студентов спец.270102 "Промышленное и гражданское
строительство" / сост.В.К. Кузьмин, О.В. Слакова. - Красноярск: СФУ ИГУРЭ,
2008. - 14 с.
.
Узлы и детали одноэтажных и многоэтажных производственных зданий: метод.
указания, варианты заданий и исходные данные к курсовому проекту для студентов
спец.270102 - "Промышленное и гражданское строительство" / сост.В.К.
Кузьмин, Л.Н. Панасенко. Красноярск: КрасГАСА, 2002. - 66с.
.
Выбор монтажных кранов при возведении промышленных и гражданских зданий:
методические указания к самостоятельной работе студентов специальности 270102 -
"Промышленное и гражданское строительство" / сост.В.К. Кузьмин, О.В.
Слакова. Красноярск: СФУ, 2008. - 34 с.
.
Территориальный каталог типовых сборных железобетонных конструкций зданий и
сооружений для промышленного строительства в Красноярском крае и Тувинской
АССР: сб. Т.1/Минуралсибстрой. - М., 1990. - 142с.
.
Оборудование и приспособления для монтажа строительных конструкций: отраслевой
кат.: в 2 ч. Ч.1. Краны. - М.: ЦБНТИ Минмонтажспецстроя, 1985. - 68с.
.
Каталог средств монтажа сборных конструкций зданий и сооружений. М.: ЦНИИОМТП
Госстроя СССР, 1985. - 178с.
.
Технологические схемы возведения одноэтажных промышленных зданий. - Вып.2:
Монтаж надземной части. - М.: ЦНИИОМПТ Госстроя СССР, 1987. - 264с.
.
ЕНиР. Сб. Е1. Внутрипостроечные транспортные работы. - М.: Прейскурантиздат,
1987. - 40с.
.
ЕНиР. Сб. Е4. Монтаж сборных и устройство монолитных железобетонных
конструкций. - Вып.1: Здания и промышленные сооружения. - М.: Прейскурантиздат,
1987. - 64с.
.
ЕНиР. Сб. Е5. Монтаж металлических конструкций. - Вып.1: Здания и промышленные
сооружения. - М.: Прейскурантиздат, 1987. - 32 с.
.
ЕНиР. Сб. Е22. Сварочные работы. - Вып.1: Конструкции зданий и промышленных
сооружений. - М.: Прейскурантиздат, 1987. - 132с.