В качестве балок настила и вспомогательных балок балочной клетки
применяют прокатные стальные горячекатаные двутавры по ГОСТ 8239 - 72*,
двутавры с параллельными гранями полок по ГОСТ 26020-83 и швеллеры по ГОСТ
8240-93.
Расчетный
пролет балок настила для нормального варианта равен шагу главных балок
, а расчетный пролет балок настила для усложненного
варианта - шагу вспомогательных балок.
Нагрузка на вспомогательные балки передается через балки настила в виде
сосредоточенных сил (рис. 1,в). В целях упрощения расчетов допускают замену
системы сосредоточенных сил эквивалентной по действию равномерно распределенной
нагрузкой. Ширина грузовой площади сбора нагрузки на вспомогательные балки
соответствует их шагу.
Нормативные и расчетные значения интенсивности равномерно распределенной
нагрузки на балки настила соответственно составляют
Подбор
сечения балок настила и вспомогательных балок следует вести как из условия
прочности, так и из условия жесткости. При этом подбор сечения из условия
прочности следует выполнять с учетом использования упругопластической работы
материала (п.5.18 [3]).
Выбор основной схемы компоновки балочной клетки производится на основе
сравнения ряда технико-экономических показателей рассматриваемых вариантов.
Важнейшим показателем при этом является расход металла. Поэтому при выборе
варианта балочной площадки предпочтение следует отдать варианту, с меньшим
расходом стали, а при одинаковом расходе стали - варианту с меньшим числом
типоразмеров элементов и числом монтажных единиц.
Погонная
равномерно распределенная нагрузка на балку настила для I
варианта соответственно составляет:
Расчетные
усилия M и Q в балках настила определяем известными методами
строительной механики как для разрезных однопролетных балок.
расчетный
пролет b = 3 м (рис. 1,в):
В
соответствии с п. 5.18* вычисляем требуемый момент сопротивления
сечения балок из условия прочности по формуле:
|
Расход стали, кг
|
Число балок на ячейку 15 х 6
|
|
Вариант
|
на 1 м2, m
|
на ячейку 15 х 6
|
Типоразмеров
|
Монтажных единиц
|
|
I
|
129,17
|
18600
|
1
|
16
|
|
II
|
138,53
|
19948,8
|
1
|
14
|
|
III
|
128,4
|
18491,4
|
2
|
48
|
В соответствие с таблицей 2 принимаем для дальнейшего
проектирования вариант I
балочной площадки.
2. Расчет и конструирование главной балки
Главные балки балочной площадки запроектирована сварной в виде составных
двутавров. Их сечение состоит из трех прокатных листов - вертикального (стенки)
и двух горизонтальных (полок) с соединением элементов на сварке поясными швами.
Для экономии стали в главной балке составного сечения Нормы
допускают использовать упругопластическую работу материала (п.5.18*),
если эти балки выполнены из стали с пределом текучести до 530 МПа, несущих
статическую нагрузку при касательных напряжениях t £ 0,9Rs (кроме опорных сечений). Однако в составных балках из-за большой
гибкости стенки (lw
=hw/ tw - значительно больше, чем в
прокатных), эффективность увеличения несущей способности балки от использования
упругопластической работы материала стенки балки получается незначительной. В
составных балках ухудшается местная устойчивость стенки при увеличении ее
гибкости, что требует дополнительных конструктивных мероприятий по обеспечению
устойчивости стенки. Это также снижает экономический эффект от использования
упругопластической работы материала балки.
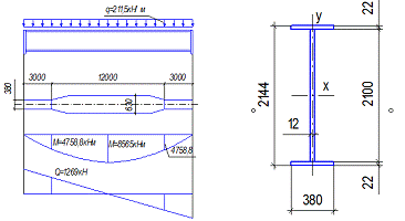
1
Расчетная схема.
Расчетные нагрузки и усилия
Нагрузка на главную балку передается через балки настила или
вспомогательные балки в виде сосредоточенных сил. При передаче нагрузки на
главную балку через 5 и более балок настила или вспомогательных балок можно
считать нагрузку равномерно распределенной.
Нормативные и расчетные значения сосредоточенных нагрузок на главную
среднюю балку следует определять по формулам:
для нормального варианта балочной клетки
Pn = (m×g + v)×a×B, кН;
P = (m×g×gf + v×gf)×a×B, кН;
для усложненного варианта балочной клетки
Pn = (m×g + v)×b×B, кН;
P = (m×g×gf + v×gf)×b×B, кН.
Нормативные и расчетные значения интенсивности равномерно распределенной
нагрузки на главную среднюю балку
qn = (m×g + un)×B, кН;
q = (m×g×gf + un×gf)×B, кН.
Здесь m - расход стали на 1 м3
площади балочного перекрытия.
Рис.
3. К определению нагрузки на главную балку
Погонная
нагрузка с учетом собственного веса главной балки - 2 %:
нормативная
qn =
(m×g + un)×B =
1,02×(128,4×9,81 +20,5∙103)×8 =177060,04 Н/м =177,6 кН/м = 1,77 Н/см;
расчетная
q = 1,02×(m×g×gf + un×gf)×B =
1,02×(128,4×9,81×1,05 +20,5∙103×1,2)×8 =
=210965,14
Н/м =210,965 кН/м.
Максимальные
значения расчетных усилий:
изгибающий
момент в середине пролета
поперечная
сила на опоре
Рис.3.
Усилия в главной балке
2
Определение
высоты главной балки
Подбор сечения начинают с назначения высоты балки. Высоту балки назначают
близкой к hопт, определенной из экономических
соображений, и не меньшей hmin, установленной из условия допустимого прогиба. Принятая
высота балки не должна превышать максимальную (hг.б.max), определенную из заданной
строительной высоты перекрытия (hстр). Если hопт значительно превышает hmax то следует принимать сопряжение балок
в одном уровне.
Для балок, у которых оптимальная высота (hопт) получается меньше, чем требуется по условиям допустимого
прогиба (жесткости) - hmin наивыгоднейшую высоту сечения балки следует определять по
формуле
hопт=
,
где
Ifтр-
требуемый момент инерции, который определяет сечение, необходимое для
удовлетворения заданного относительного прогиба
=1/400.
Ifтр=
При
определении hопт
требуется знать толщину или гибкость стенки
, поэтому
для первого этапа расчета толщину или гибкость стенки можно принимать по табл.3
[6].
Рис.
5. Схема сопряжения балок.
Вычисляем
требуемый момент сопротивления поперечного сечения в предположении работы
материала в упруго стадии. Расчетное сопротивление стали С245 Ry =24кН/см2 для проката толщиной более 20 мм (см. Табл.
51[6]), коэффициент условия работы конструкции gс = 1 (см. таблицу 6[6]);
Минимальная
высота (по жесткости) балки
Задаемся
гибкостью стенки lw
= 155 (табл.3). Тогда оптимальная высота балки без учета развития пластических
деформаций:
При пониженном сопряжении балок настила
h.max = hстр - tн - f = 260 - 1 - 4,5=254,5 см,
где f = L/400 = 1800/400 = 4,5 см - прогиб балки.
Принимаем h = 212 см, что
больше hmin =147 см, меньше hmax =254,5см и близко к hопт=206,6см.
2.3 Определение толщины стенки
Толщина стенки также является основным параметром сечения балки. От
принятой толщины стенки зависит экономичность сечения составной балки.
Минимальную толщину стенки устанавливают, исходя из условий прочности на
срез, предельной гибкости стенки и стандартной толщины листового проката.
Толщину стенки следует принимать минимально необходимой исходя из
заданной гибкости lw,при
определении hопт и фактически принятой высоты стенки hw:
tw = hw / lw .
Наименьшую толщину стенки определяют из условия ее работы на касательные
напряжения
Чтобы
обеспечить устойчивость стенки без дополнительного укрепления ее продольными
ребрами, необходимо принимать толщину стенки не менее
В
балках высотой более 2 м толщина стенки из условия
получается чрезмерно толстой, поэтому ее
рекомендуется принимать в пределах tw = (1/200…1/250)×hw и укреплять одним продольным ребром.
Определяем толщину стенки tw из условий:
а) прочности на срез от Qmax = 1903,5 кН при hw = h - 2×tf = 212 - 2×2,0 = 210 см; Rs = 0.58×Ry = 0,58×240 = 139 МПа; Ry = 240 МПа при толщине проката 10…20
мм (табл.18)
б)
местной устойчивости стенки без укрепления продольными ребрами жесткости
;
Принимаем
tw = 12 мм, что соответствует гибкости стенки lw = 170 (hw / tw=203 /1,2 = 170). Так как гибкость больше допустимой
(155), то балку придется укреплять одним продольным ребром.
2.4 Подбор сечения поясов
Требуемую
площадь сечения одного поясного листа балки определяют из условия прочности (по
- требуемый момент инерции балки из условия прочности)
или из условия жесткости (по
-
требуемый момент инерции сечения балки из условия жесткости), если
. Поэтому в формуле по определению требуемого момента
инерции, приходящегося на поясные листы (If,тр = Iтр - Iw), принимают большее из двух значений
или
.
Вычисляем требуемый момент инерции сечения балки из условия прочности
где
h = hw + 2×tf = 210 + 2×2,0 =
214см, и требуемый момент инерции сечения балки из условия жесткости
Так
как
подбор сечения поясов ведем по моменту инерции
Момент
инерции стенки балки
Требуемый
момент инерции, приходящийся на поясные листы
Расстояние
между центрами тяжестей поясных листов
h0 = h - tf = 214 - 2,0 = 212 см.
Требуемая площадь сечения одного пояса балки
Принимаем
поясные листы балки из листа универсальной широкополосной стали по ГОСТ 82-70*
(табл.3 прилож.[6]) 630 ´ 22мм, площадь сечения пояса Af =
63
2,2 =138,6см2.
Проверяем
принятые размеры поясных листов:
tf =
22 мм < 3×tw = 3×12 = 36 мм.
=
,
местная устойчивость сжатого пояса обеспечена.
. Высота сечения балки
h = hw + 2×tw = 210 + 2×2,2 = 214,4 см.
. Площадь сечения
A = hw×tw + 2×bf×tf = 210×1,2 + 2×63×2,2 =520,8см2.
. Момент инерции сечения
4.
Момент сопротивления сечения
.
Статический момент полусечения относительно нейтральной оси
.
Отношение площади сечения поясного листа к площади сечения стенки
Проверяем
прочность принятого сечения на действие максимального изгибающего момента:
Недонапряжение
в сечении
Проверяем
прогиб балки:
.5
Изменение сечения балки по длине
Поскольку
составное сечение главной разрезной балки подбирают по максимальному
изгибающему моменту Мmax (в середине пролета), то его можно уменьшить у опор.
Изменение сечения производят за счет уменьшения ширины поясных листов, при этом
их толщина остается неизменной.
Сопряжение
поясных листов осуществляют посредством прямого стыкового шва и уменьшенное
сечение поясов принимают из условия прочности этого шва на растяжение, Rwy=0,85×Ry. Место изменения сечения следует делать на расстоянии
x = (L/6…L/7) от опоры.
Ширина
измененного сечения пояса должна отвечать условиям:
Изменение сечения в соответствии с п. 5.19*
выполняем без учета пластических деформаций за счет уменьшения ширины поясных
листов на расстоянии около 1/6 пролета от опоры.
х = L/6 = 18/6 =3м.
Определяем усилия в балке на расстоянии 3 м от опоры (рис. 7):
Рис 7 . Изменение сечения по длине
Подбираем
уменьшенное сечение балки, исходя из прочности стыкового шва нижнего пояса.
Расчетное сопротивление сварного соединения встык на растяжение (ручная сварка)
Rwy = 0,85Ry. = 0,85×230 = 195,5 Мпа=19,55 кН/см2.
Требуемый
момент сопротивления:
Для
определения требуемой площади поперечного сечения поясов вычисляем:
If1.тр. = Ix1
- Iw =2518239 -836542,7=1681696,43 см4.
Требуемая
площадь поперечного сечения поясов в измененном сечении
Ширина
поясного листа:
Принимаем
поясной лист 380 ´ 22 мм из широкополосной универсальной стали по ГОСТ
82-70*. bf1 =380 мм
> bf / 2 =315 мм; bf1 = 380 мм > h / 10 = 2074/
10 =207,4 мм.
Геометрические
характеристики измененного сечения балки:
Статический
момент пояса относительно нейтральной оси:
Проверяем
прочность измененного сечения балки по касательным напряжениям на опоре:
,
где
Ry = 24 кН/см2 - расчетное сопротивление
стали С245 для проката толщиной от 10 до 20мм (tw =
12мм).
Проверяем
прочность измененного сечения балки по приведенным напряжениям на грани стенки
(точка А, рис. 8) по п. 5.14*. При этом:
нормальные
напряжения в точке А
касательные
напряжения в точке А
Так
как одна из балок настила попадает на место измененного сечения, то определяем
местные напряжения под балкой настила:
где
F = Qmax1 = 111,8
кН - расчетное значение силы (см. п. 1.2.);
ll.f = bf + 2×tf = 14,5 + 2×2,2 = 18,9 см - условная
длина распределения нагрузки, п.5.13 [3];
bf =
145 см - ширина пояса T 36.
Приведенные
напряжения
Таким
образом, прочность принятого уменьшенного сечения главной балки обеспечена.
.6
Расчет поясных швов
В
данной балке соединение поясов со стенкой осуществляют поясными швами. Поясные
швы исключают при изгибе балки сдвиг поясов относительно стенки и превращают
все сечение в едино работающее. Это соединение передает на стенку балки местную
нагрузку, приложенную к поясам между поперечными ребрами жесткости. Поясные швы
принимают двусторонними. Поясные швы выполнены автоматической сваркой,
сплошными, наименьшей допускаемой толщины.
Расчет
поясных швов ведется на сдвигающее усилие, возникающее между поясами стенкой, и
местное давление от внешней нагрузки, приложенной к поясу балки.
Поясные
швы выполняем автоматической сваркой в положении "в лодочку"
сварочной проволокой Св-08ГА под слоем флюса АН-60. Катет шва kf = 7 мм - минимально допустимая толщина сварного шва по табл. 38*[6].
Для этих условий и стали С245 по табл. 56 [6]: Rwf =
200 МПа; Rwz =0,45×Run = =0,45×370 =166,5МПа;
bf = 1,1; bz = 1,15 (Run = 370 МПа, табл.51* - для наиболее
толстого из свариваемых листов).
Расчетные
усилия на единицу длины шва:
Проверяем
прочность шва:
по
металлу шва:
по
металлу границы сплавления:
Таким
образом, минимально допустимая толщина шва достаточна по прочности.
.7
Проверка обеспеченности общей устойчивости балки
Нагрузка
на главную балку передается через балки настила, закрепляющие главную балку в
горизонтальном направлении и установленные с шагом а = 1,125м.
Определяем
предельное отношение расчетной длины участка балки между точками закрепления lef к ширине сжатого пояса bf при
котором не требуется расчет на устойчивость балки по таблице 8* [6]:
Предельное отношение lef / bef =15,02 < a / bf =1,79 следовательно, устойчивости
балки проверять не требуется.
.8 Проверка местной устойчивости элементов балки
Элементы балки составного сечения (сжатые пояса и стенка) могут потерять
устойчивость. Сжатые пояса теряют устойчивость под действием сжимающих
нормальных напряжений, а стенка - под действием сжимающих нормальных и (или)
касательных напряжений. Такую потерю устойчивости называют местной.
Потеря устойчивости одним из элементов балки приводит к потери несущей
способности всей конструкции. Поэтому при проектировании балки составного
сечения необходимо стремится к тому, чтобы несущая способность из условия
обеспечения местной устойчивости ее элементов была не ниже несущей способности
конструкции из условия прочности.
В соответствии с требованиями Норм (табл.30) проверка устойчивости
сжатого пояса производится в месте нормальных максимальных напряжений по
формуле
где
bef =( bf - tf)/ 2 - свес полки;
bf,, tw - ширина и толщина поясного листа;
tw -
толщина стенки.
Стенка
составной балки имеет, как правило, очень большую гибкость (lw
>100), поэтому устойчивость стенки обеспечивают укреплением ее специальными
ребрами жесткости, которые делят стенку на отсеки. Эти отсеки могут потерять
устойчивость независимо один от другого.
Стенки
балок укрепляют поперечными ребрами жесткости, если значение условной гибкости
стенки
превышает 3,2 при отсутствии подвижной нагрузки.
Расстояние
между основными поперечными ребрами не должно превышать 2hef , если
и
2,5hef , если
(где hef = hw - высота стенки). В стенке, укрепленной только
поперечными ребрами, ширина их выступающей части bh
должна быть для симметричного парного ребра не менее hef/30+40
мм, для одностороннего ребра - не менее hef/24+50мм;
толщина ребра ts должна быть не менее
.
Суть
расчета на устойчивость стенок балок состоит в том, что действительные
напряжения s, t, sloc у расчетной границы стенки в целях обеспечения
необходимой безопасности не должны превышать критических scr, tcr, sloc,cr,
а также должны выполняться условия:
а)
- при отсутствии местного сжимающего напряжения (sloc = 0);
б)
- при наличии местного напряжений (sloc¹0).
Действующие
напряжения s, t у расчетной границы стенки
следует вычислять в предположении упругой работы материала на действие средних
значений соответственно момента (М) и поперечной силы (Q) в пределах
отсека; если длина отсека (а) больше его расчетной высоты (hw), то M и Q следует вычислять для более напряженного участка с
длиной, равной высоте отсека. При наличии сосредоточенной сжимающей силы,
приложенной непосредственной к верхнему поясу балки, M и Q
следует определять под этой сосредоточенной силой. Если в пределах отсека
находится место измененного сечения балки, то значения M , Q , W ,
берут по уменьшенному сечению.
Стенка балки укреплена поперечными и одним продольным ребром, т. к.
толщина стенки не обеспечивает нужную гибкость ( п. 2.3.)
Проверка устойчивости сжатого пояса
Проверку устойчивости сжатого пояса производим в месте
нормальных максимальных напряжений, т.е. в середине пролета.
Устойчивость сжатого пояса при работе в пределах упругих
деформаций. обеспечивается выполнением условий (п. 7.24 [3])
где
b.f = (bf - tw)/2 =(63-1,2)/2 = 30,9 см - ширина свеса сжатого
пояса.
Проверка
устойчивости стенки.
Стенку
балки в соответствии с п. 7.10[3]. необходимо укреплять поперечными ребрами
жесткости, так как условная гибкость стенки
Ставим
ребра жесткости как показано на рис. 8. Максимальное расстояние между ребрами в
отсеке №1 а = 3,375 м, что меньше 2×hw = 2×2,03=4,06 м. В
остальных отсеках - а =2,25 м. Для укрепления стенки балки принимаем парные
ребра жесткости с шириной bh = 110мм и толщиной ts =
8 мм:
Определяем
усилия M и Q в расчетных сечениях (рис.8):
отсек
№1(2):
отсек №4(3):
отсек №5 (6):
отсек №7 (8):
рис.8.
Схема расположения поперечных ребер жесткости
Проверка
устойчивости отсеков стенки балки ведем по п. 7.7. [3]
Отсеке
№ 1 Исходные данные для проверки
устойчивости:
·
высота отсека h1=60 см и толщина стенки tw = 1,2 см;
·
ширина и толщина
поясного листа - bf =
630 мм, tf = 22 мм;
·
расчетные
сопротивления материала стенки - Ry = 240 МПа; Rs =
139 МПа;
·
усилия в
расчетном сечении (рис. 8) - M1 = 8512 кН×м, Q1 = 119 кН;
·
момент
сопротивления в расчетном сечении - Wx = 36206 см3;
·
местная
сосредоточенная сила, приложенная к верхнему поясу, равная опорной реакции
балки настила - F = Q = 111,8 кН и условная длина
распределения этой силы lef = 18,9 см.
Условная
гибкость стенки
Так
как a = 3,375 м > h1 = 60 см обозначим меньшую сторону отсека через d (d = hw = 60 см).
Отношение
большей стороны отсека к меньшей
m = a / h1= 337,5/ 60 = 5,625>2, следовательно, м=2.
Отсек
рассчитывают по формуле:
s/scr1 + sloc/sloc,cr1 + (t/tcr1)2 £ gc,
где
gс
следует принимать по табл. 6* [3], а s, sloc и t – определять согласно требованиям п. 7.2*[3].
Местные напряжения в стенке под балкой настила
sloc = F / (tw×lef) = 111,8 /
[1,2×18,9] = 4,93 кН/смІ.
Сжимающие нормальные и касательные напряжения у расчетной грани стенки:
Значения
scr1 и sloc,cr1 следует
определять по формулам:
при
sloc ¹ 0
;
sloc,cr1 = (1,24 + 0,476m1)
,
Где
.
Так
как a/h1 > 2, то при
вычислении scr1 и sloc,cr1 следует
принимать a = 2h1=675 см;
sloc,cr1 = (1,24 + 0,476m1)
=(1,24+0,476∙2)∙6,25(24/3,4І)=28,44 кН/смІ
Касательные
критические напряжения
,
где
d – меньшая из сторон пластинки d=h1=60 см(hef
или a);
m – отношение
большей стороны пластинки к меньшей.
Проверяем
условие:
<гс=1
В
отсеке № 2 Исходные данные для
проверки устойчивости:
·
высота отсека h2=143 см и толщина стенки tw = 1,2 см;
·
ширина и толщина
поясного листа - bf =
630 мм, tf = 22 мм;
·
расчетные
сопротивления материала стенки - Ry = 240 МПа; Rs =
139 МПа;
·
усилия в
расчетном сечении (рис. 8) - M1 = 8512 кН×м, Q1 = 119 кН;
·
момент
сопротивления в расчетном сечении - Wx = 36206 см3;
·
местная
сосредоточенная сила, приложенная к верхнему поясу, равная опорной реакции
балки настила - F = Q = 111,8 кН и условная длина
распределения этой силы lef = 18,9 см.
Отсек рассчитывается по формуле:
где
;
sloc,cr2 –
следует определять по формуле (80)[3] и табл. 23 [3] при d = 0,8, заменяя значение отношения a/hef
значением а/(hef – h1);
tcr2 –
следует определять по формуле (76)[3] с подстановкой в нее размеров проверяемой
пластинки;
sloc2 = 0,4sloc – при приложении
нагрузки к сжатому поясу ;
Коэффициент
tc
следует определять по табл. 6*[3].
Местные напряжения в стенке под балкой настила
sloc = F / (tw×lef) = 111,8 /
[1,2×18,9] = 4,93 кН/смІ.
Сжимающие нормальные и касательные напряжения у расчетной грани стенки:
sloc2 = 0,4sloc=0,4∙4,93=1,972 кН/смІ
м=a/h2=2,36
; a/(hw-h1)=337,5/(203-60)=2,36 с1=45,6
а=0,5∙а=0,5∙337,5=168,75
см
Проверяем
условие:
Отсеке
№ 3: Исходные данные для проверки
устойчивости:
·
высота отсека h1=60 см и толщина стенки tw = 1,2 см;
·
ширина и толщина
поясного листа - bf =
630 мм, tf = 22 мм;
·
расчетные
сопротивления материала стенки - Ry = 240 МПа; Rs =
139 МПа;
·
усилия в
расчетном сечении (рис. 8) - M1 = 7711 кН×м=771100 кН∙см, Q1 =593,3кН;
·
момент
сопротивления в расчетном сечении - Wx = 36206 см3;
·
местная
сосредоточенная сила, приложенная к верхнему поясу, равная опорной реакции балки
настила - F = Q = 111,8 кН и условная длина распределения этой силы lef = 18,9 см.
Условная
гибкость стенки
Так
как a = 2,25 м > h1 = 60 см обозначим меньшую сторону отсека через d (d = hw = 60 см).
Отношение
большей стороны отсека к меньшей
m = a / h1= 225/ 60 = 3,75>2, следовательно, м=2.
Отсек
рассчитывают по формуле:
s/scr1
+ sloc/sloc,cr1 + (t/tcr1)2 £ gc, (82)
где
gс
следует принимать по табл. 6* [3], а s, sloc и t – определять согласно требованиям п. 7.2*[3].
Местные напряжения в стенке под балкой настила
sloc = F / (tw×lef) = 111,8 /
[1,2×18,9] = 4,93 кН/смІ.
Сжимающие нормальные и касательные напряжения у расчетной грани стенки:
Значения
scr1 и sloc,cr1 следует
определять по формулам:
при
sloc ¹ 0
;
sloc,cr1 = (1,24 + 0,476m1)
,
где
.
Так
как a/h1 > 2, то при
вычислении scr1 и sloc,cr1 следует
принимать a = 2h1=675 см;
sloc,cr1 = (1,24 + 0,476m1)
=(1,24+0,476∙2)∙6,25(24/3,4І)=28,44 кН/смІ
Касательные
критические напряжения
,
где
d – меньшая из сторон пластинки d=h1=60 см(hef
или a);
m – отношение
большей стороны пластинки к меньшей.
Проверяем
условие:
<гс=1
Условие
удовлетворяется !
Отсеке
№ 4 Исходные данные для проверки
устойчивости:
·
высота отсека h2=143 см и толщина стенки tw = 1,2 см;
·
ширина и толщина
поясного листа - bf =
630 мм, tf = 22 мм;
·
расчетные
сопротивления материала стенки - Ry = 240 МПа; Rs =
139 МПа;
·
усилия в
расчетном сечении (рис. 8) - M2 = 7711 кН×м, Q1 =593,3кН;
·
момент
сопротивления в расчетном сечении - Wx = 36206 см3;
·
местная
сосредоточенная сила, приложенная к верхнему поясу, равная опорной реакции
балки настила - F = Q = 111,8 кН и условная длина
распределения этой силы lef = 18,9 см.
Отсек рассчитывается по формуле:
где
;
sloc,cr2 –
следует определять по формуле (80)[3] и табл. 23 [3] при d = 0,8, заменяя значение отношения a/hef
значением а/(hef – h1);
tcr2 –
следует определять по формуле (76)[3] с подстановкой в нее размеров проверяемой
пластинки;
sloc2 = 0,4sloc – при приложении
нагрузки к сжатому поясу ;
Коэффициент
tc
следует определять по табл. 6*[3].
Местные напряжения в стенке под балкой настила
sloc = F / (tw×lef) = 111,8 /
[1,2×18,9] = 4,93 кН/смІ.
Сжимающие нормальные и касательные напряжения у расчетной грани стенки:
sloc2 = 0,4sloc=0,4∙4,93=1,972 кН/смІ
м=a/(hw-h1)=1,57
; a/(hw-h1)=225/(203-60)=1,57 с1=31,78;
Проверяем
условие:
Отсеке
№ 5: Исходные данные для проверки
устойчивости:
·
высота отсека h1=60 см и толщина стенки tw = 1,2 см;
·
ширина и толщина
поясного листа - bf =
630 мм, tf = 22 мм;
·
расчетные
сопротивления материала стенки - Ry = 240 МПа; Rs =
139 МПа;
·
усилия в
расчетном сечении (рис. 8) - M3 =5842 кН×м=584200 кН∙см, Q1 =1068кН;
·
момент
сопротивления в расчетном сечении - Wx = 36206 см3;
·
местная
сосредоточенная сила, приложенная к верхнему поясу, равная опорной реакции
балки настила - F = Q = 111,8 кН и условная длина
распределения этой силы lef = 18,9 см.
Условная
гибкость стенки
Так
как a = 2,25 м > h1 = 60 см обозначим меньшую сторону отсека через d (d = hw = 60 см).
Отношение
большей стороны отсека к меньшей
m = a / h1= 225/ 60 = 3,75>2, следовательно, м=2.
Отсек
рассчитывают по формуле:
s/scr1 + sloc/sloc,cr1 + (t/tcr1)2 £ gc,
где
gс
следует принимать по табл. 6* [3], а s, sloc и t – определять согласно требованиям п. 7.2*[3].
Местные напряжения в стенке под балкой настила
sloc = F / (tw×lef) = 111,8 /
[1,2×18,9] = 4,93 кН/смІ.
Сжимающие нормальные и касательные напряжения у расчетной грани стенки:
Значения
scr1 и sloc,cr1 следует
определять по формулам:
при
sloc ¹ 0
;
sloc,cr1 = (1,24 + 0,476m1)
,
где
.
Так
как a/h1 > 2, то при
вычислении scr1 и sloc,cr1 следует
принимать a = 2h1=675 см;
sloc,cr1 = (1,24 + 0,476m1)
=(1,24+0,476∙2)∙6,25(24/3,4І)=28,44 кН/смІ
Касательные
критические напряжения
,
где
d – меньшая из сторон пластинки d=h1=60 см(hef
или a);
m – отношение
большей стороны пластинки к меньшей.
Проверяем
условие:
<гс=1
Условие
удовлетворяется !
Проверяем
устойчивость отсека №5 на действие напряжений в месте изменения сечения балки.
Отсеке
№ 5: Исходные данные для проверки
устойчивости:
·
высота отсека h1=60 см и толщина стенки tw = 1,2 см;
·
ширина и толщина
поясного листа - bf =
380 мм, tf = 22 мм;
·
расчетные
сопротивления материала стенки - Ry = 240 МПа; Rs =
139 МПа;
·
усилия в
расчетном сечении (рис. 8) - M3 =5842 кН×м=584200 кН∙см, Q1 =1068кН;
·
момент
сопротивления в расчетном сечении - Wx = 25039,7 см3;
Условная
гибкость стенки
Так
как a = 2,25 м > h1 = 60 см обозначим меньшую сторону отсека через d (d = hw = 60 см).
Отношение
большей стороны отсека к меньшей
m = a / h1= 225/ 60 = 3,75>2, следовательно, м=2.
Отсек
рассчитывают по формуле:
s/scr1 + sloc/sloc,cr1 + (t/tcr1)2 £ gc,
где
gс
следует принимать по табл. 6* [3], а s, sloc и t – определять согласно требованиям п. 7.2*[3].
Местные напряжения в стенке под балкой настила
sloc = F / (tw×lef) = 111,8 /
[1,2×18,9] = 4,93 кН/смІ.
Сжимающие нормальные и касательные напряжения у расчетной грани стенки:
Значения
scr1 и sloc,cr1 следует
определять по формулам:
при
sloc =
0
,
где
;
Так
как a/h1 > 2, то при
вычислении scr1 следует принимать a = 2h1=120
см;
Касательные
критические напряжения
,
где
d – меньшая из сторон пластинки d=h1=60 см(hef
или a);
m – отношение
большей стороны пластинки к меньшей.
Проверяем
условие:
<гс=1
Условие
удовлетворяется !
Отсеке
№ 6: Исходные данные для проверки
устойчивости:
·
высота отсека h2=143 см и толщина стенки tw = 1,2 см;
·
ширина и толщина
поясного листа - bf =
630 мм, tf = 22 мм;
·
расчетные
сопротивления материала стенки - Ry = 240 МПа; Rs =
139 МПа;
·
усилия в
расчетном сечении (рис. 8) - M3= 5842 кН×м, Q1 =1068 кН;
·
момент
сопротивления в расчетном сечении - Wx = 36206 см3;
·
местная
сосредоточенная сила, приложенная к верхнему поясу, равная опорной реакции
балки настила - F = Q = 111,8 кН и условная длина
распределения этой силы lef = 18,9 см.
Отсек рассчитывается по формуле:
где
;
sloc,cr2 –
следует определять по формуле (80)[3] и табл. 23 [3] при d = 0,8, заменяя значение отношения a/hef
значением а/(hef – h1);
tcr2 –
следует определять по формуле (76)[3] с подстановкой в нее размеров проверяемой
пластинки;
sloc2 = 0,4sloc – при приложении
нагрузки к сжатому поясу ;
Коэффициент
tc
следует определять по табл. 6*[3].
Местные напряжения в стенке под балкой настила
sloc = F / (tw×lef) = 111,8 /
[1,2×18,9] = 4,93 кН/смІ.
Сжимающие нормальные и касательные напряжения у расчетной грани стенки:
sloc2 = 0,4sloc=0,4∙4,93=1,972 кН/смІ
м=a/h2=1,57
;
a/(hw-h1)=225/(203-60)=1,57 с1=31,78;
Проверяем
условие:
Проверяем
устойчивость отсека №6 на действие напряжений в месте изменения сечения балки.
Отсеке
№ 6: Исходные данные для проверки
устойчивости:
·
высота отсека h2=143 см и толщина стенки tw = 1,2 см;
·
ширина и толщина
поясного листа - bf =
380 мм, tf = 22 мм;
·
расчетные
сопротивления материала стенки - Ry = 240 МПа; Rs =
139 МПа;
·
усилия в
расчетном сечении (рис. 8) - M3= 5842 кН×м, Q1 =1068 кН;
·
момент сопротивления
в расчетном сечении - Wx = 36206 см3;
·
F=Q=0
Отсек рассчитывается по формуле:
где
;
tcr2 – следует определять по формуле (76)[3] с
подстановкой в нее размеров проверяемой пластинки; Коэффициент tc следует определять по табл. 6*[3]. Сжимающие нормальные и касательные
напряжения у расчетной грани стенки:
м=a/h2=1,57
Проверяем условие:
Отсеке
№ 7: Исходные данные для проверки устойчивости:
·
высота отсека h1=60 см и толщина стенки tw = 1,2 см;
·
ширина и толщина
поясного листа - bf =
380 мм, tf = 22 мм;
·
расчетные
сопротивления материала стенки - Ry = 240 МПа; Rs =
139 МПа;
·
усилия в
расчетном сечении (рис. 8) - M4=2905кН×м, Q1 =1543кН;
·
момент
сопротивления в расчетном сечении - Wx =25039,7см3;
·
местная
сосредоточенная сила, приложенная к верхнему поясу, равная опорной реакции
балки настила - F = Q = 111,8 кН и условная длина
распределения этой силы lef = 18,9 см.
Условная
гибкость стенки
Так
как a = 2,25 м > h1 = 60 см обозначим меньшую сторону отсека через d (d = hw = 60 см).
Отношение
большей стороны отсека к меньшей
m = a / h1= 225/ 60 = 3,75>2, следовательно, м=2.
Отсек
рассчитывают по формуле:
s/scr1 + sloc/sloc,cr1 + (t/tcr1)2 £ gc,
где
gс
следует принимать по табл. 6* [3], а s, sloc и t – определять согласно требованиям п. 7.2*[3].
Местные напряжения в стенке под балкой настила
sloc = F / (tw×lef) = 111,8 /
[1,2×18,9] = 4,93 кН/смІ.
Сжимающие нормальные и касательные напряжения у расчетной грани стенки:
Значения
scr1 и sloc,cr1 следует
определять по формулам:
при
sloc ¹ 0
;
sloc,cr1 = (1,24 + 0,476m1)
,
где
.
sloc,cr1 = (1,24 + 0,476m1)
=(1,24+0,476∙2)∙6,25(24/3,4І)=28,44 кН/смІ
Касательные
критические напряжения
,
где
d – меньшая из сторон пластинки d=h1=60 см(hef
или a);
m – отношение
большей стороны пластинки к меньшей.
Проверяем
условие:
<гс=1
Условие
удовлетворяется !
Отсеке
№ 8 Исходные данные для проверки
устойчивости:
·
высота отсека h2=143 см и толщина стенки tw = 1,2 см;
·
ширина и толщина
поясного листа - bf =
380 мм, tf = 22 мм;
·
расчетные
сопротивления материала стенки - Ry = 240 МПа; Rs =
139 МПа;
·
усилия в
расчетном сечении (рис. 8) - M4= 2905 кН×м, Q4 =1543 кН;
·
момент
сопротивления в расчетном сечении - Wx =25039,7см3;
·
местная
сосредоточенная сила, приложенная к верхнему поясу, равная опорной реакции
балки настила - F = Q = 111,8 кН и условная длина
распределения этой силы lef = 18,9 см.
Отсек рассчитывается по формуле:
где
;
sloc,cr2 –
следует определять по формуле (80)[3] и табл. 23 [3] при d = 0,8, заменяя значение отношения a/hef
значением а/(hef – h1);
tcr2 –
следует определять по формуле (76)[3] с подстановкой в нее размеров проверяемой
пластинки;
sloc2 = 0,4sloc – при приложении
нагрузки к сжатому поясу ;
Коэффициент
tc
следует определять по табл. 6*[3].
Местные напряжения в стенке под балкой настила
sloc = F / (tw×lef) = 111,8 /
[1,2×18,9] = 4,93 кН/смІ.
Сжимающие нормальные и касательные напряжения у расчетной грани стенки:
sloc2 = 0,4sloc=0,4∙4,93=1,972 кН/смІ
м=a/h2=1,57
;
a/(hw-h1)=225/(203-60)=1,57 с1=31,78;
Проверяем
условие:
Условие
выполняется !
2.9 Конструирование и расчет опорной части балки
Сопряжение балки со стальной колонной, примыкающей сверху, считается
шарнирным, т.е. передающим только опорную реакцию. Передача опорной реакции V=Qmax происходит через опорное ребро,
которое приваривают к торцу балки по всему контуру их примыкания угловыми швами
(рис.9).
Нижний торец ребра выступает за грань нижнего пояса на 20мм (не более 1,5ts) и его поверхность фрезеруется с
целью плотного опирания на опорную плиту оголовка колонны
Главная балка опирается на колонну сверху и через опорное
ребро, приваренное к торцу балки, передает на нее опорную реакцию V = Qmax = 1899 кН.
Принимаем конструкцию опорной части по варианту (рис. 9).
Рис.9.
К расчету опорной части балки
Ширину
опорного ребра принимаем
= 400 мм.
Определяем толщину ребра из условия прочности на смятие торцевой
поверхности
где
Rp- расчетное сопротивление смятию торцевой поверхности,
Rp = Ru = 360 МПа (табл. 51*.)
Принимаем
ребро из листа 400х16 и проверяем устойчивость опорной части:
площадь
сечения условной стойки (рис.9, сечение а-а)
где
Вычисляем
момент инерции сечения относительно оси х1 (рис. 9) без учета
момента инерции участка стенки (ввиду малости), радиус инерции сечения и
гибкость стойки с расчетной длиной равной высоте стенки.
По
табл.72 в зависимости от значений lx1 = 21,4 и
Ry = 240МПа определяем значение коэффициента продольного
изгиба j = 0,95.
Проверяем
устойчивость опорного ребра:
Проверяем
местную устойчивость опорного ребра (табл. 29*):
местная устойчивость ребра обеспечена.
Выполняем расчет угловых швов сварного соединения опорного ребра со
стенкой (сварка полуавтоматическая сварочной проволокой Св-08Г2С, d = 1,4…2мм):
по металлу шва
по
металлу границы сплавления
Минимальный
катет шва по табл.38* [3] kf min = 7мм.
Минимальный
катет флангового шва из условия w £ 85×bf×kf:
Окончательно
принимаем катет шва kf = 9 мм.
.10
Расчет и конструирование монтажного стыка балки на высокопрочных болтах
Монтажный
стык запроектирован фланцевым соединением на высокопрочных болтах. Фланец взят
конструктивно толщиной 1,4 см. Фланец скреплен с балкой ручной сваркой.
Высокопрочные
болты изготавливают в различном климатическом исполнении из сталей 40Х
«селект», 38ХС, 30Х3МФ, 30х2НМФА, диаметром от 16 до 48 мм. Наиболее
распространенными являются высокопрочные болты из стали марки 40Х «селект» по
ТУ 14-1-1237-75.
Болты
следует размещать в соответствии с табл. 39 п.12.19*[3], а именно
шаг между центрами болтов в соединении устанавливать: минимальный - 2,5d,
максимальный - 8d и 12t; расстояния от центра болта до края накладки:
минимальное вдоль усилия - 2d, поперек усилия - 1,5d, максимальное
4d и 8t, где d - диаметр отверстия для болта; t -
толщина наиболее тонкого наружного элемента.
Укрупнительный
стык размещаем в середине пролета балки (х = 9 м). Усилия M и Q в расчетном
сечении: Мmax = 854550 кН×см; Qmax = 0 (см. п. 2.8). Конструкция стыка представлена на
рис.10.
Рис.
10. Монтажный стык на высокопрочных болтах.
Стык
осуществляем высокопрочными болтами диаметром 20мм из стали 40Х
"селект", с временным сопротивлением материала болта разрыву Rbun = 1100МПа (табл.61); обработка поверхности
газопламенная. Расчетное усилие Nb, которое может быть
воспринято одним болтом, следует определять по формуле (129)[3]:
на
растяжение
b = Rbt Abn
где
Rbt=0,7×Rbun= 0,7×1100 = 770МПа - расчетное
сопротивление растяжению высокопрочных болтов;
Abh =
2,45 см2 - площадь сечения болта нетто, определяемая по таблице 62*.
b = Rbt Abn=77∙2,45=188,65
кН.
Усилие на один болт от действия поперечной силы V = 0, так как Q = 0.
Для фланцевых соединений с весьма жесткими на изгиб фланцами можно
допустить, что усилия в болтах распределяются пропорционально расстоянию от
точки приложения равнодействующей силы в сжатой зоне, например от серединной
плоскости сжатого пояса до болта. Тогда усилие в наиболее напряженном крайнем
болте будет:
где
ni - количество болтов в i-ом ряду; m -
число рядов;
xi -
расстояние от центра тяжести верхнего пояса до середины i-го
болта;
Xmax
- расстояние от центра тяжести верхнего пояса до нижнего болта;
=4∙((6,1)І+(6,1+20)І+(6,1+20+19І+(6,1+20+19+18)І+(63,1+17)І+(80,1+16)І+(96,1+15)І+(111,1+15)І+(125,1+13)І+(138,1+12)І+(150,1+11)І+(161,1+10)І+(171,1+9)І+(180,1+8)І+(188,1+7)І+(195.1+6)І+(201.1+3+2.2+3)І)=1349351,4
смІ.
Равнодействующее
усилие от момента и поперечной силы в наиболее напряженных крайних болтах
стенки
прочность
стенки обеспечена.
3.
Расчет и конструирование колонны
Колонны
предназначены для передачи нагрузки от главных балок на фундаменты и состоят из
трех частей: верхней - оголовок, воспринимающей нагрузку от балок; средней -
стержень, передающей нагрузку от оголовка на базу и нижней - базы, передающей
нагрузку от стержня на фундамент.
По
типу сечения колонны бывают сплошные или сквозные. Стержень колонны сплошного
сечения проектируют в виде широкополочного двутавра типа К (колонный) или
сварного (составного) двутавра. Стержень сквозной центрально сжатой колонны
обычно состоит из двух ветвей (швеллеров или двутавров), связанных между собой
решетками.
Расчет
колонны включает в себя: выбор типа сечения стержня, установление расчетной
схемы, подбор сечения и проверку устойчивости стержня, расчет и конструирование
оголовка и базы колонны. При выборе типа сечения стержня колонны необходимо
учитывать величину нагрузки, действующей на колонну.
.1
Стержень колонны
Расчетная
схема колонны должна соответствовать принятому конструктивному решению узла
сопряжения главной балки с оголовком, базы колонны с фундаментом. Поэтому в
зависимости от конструктивных решений узлов колонны ее следует рассматривать
как защемленную или шарнирно опертую. Верхняя часть стержня колонны большей
частью принимается шарнирной.
Нижний
конец колонны рассматривается шарнирно закрепленным, если опорная плита базы
непосредственно закреплена в фундаменте двумя фиксирующими анкерными болтами d =
20…30 мм, а жестко закрепленным, если база колонны закреплена в фундаменте не
менее чем четырьмя анкерными болтами d = 24…36мм посредством
специальных столиков.
В
соответствии с принятым характером закрепления концов колонны расчетная
(приведенная) длина стержня колонны lef определяется по
формуле
lef =
m×lк,
где m - коэффициент приведения длины.
Расчетное значение продольного усилия сжатия, возникающего в
поперечном сечении стержня колонны среднего ряда, может быть вычислено по
формуле:
N = 2×Qmax,
где Qmax - поперечная сила в опорной части
главной балки.
Конструктивная длина колонны определяется на основании заданной
отметки верха перекрытия H по
формуле
lк = H + hз - (h + hб.н. + tн + 2,0), см,
если принят поэтажный вариант сопряжения балок, и по формуле
lk = H + h3 - (h + tн + 2,0), см,
если вариант сопряжения балок в одном уровне.
Здесь h3- заглубление колонн ниже нулевой отметки;
h -
высота сечения главной балки;
hб.н. - высота сечения балки настила;
tн - толщина металлического настила.
3.1.1 Подбор сечения стержня сплошной сварной колонны
Материал конструкции - сталь С245 с расчетным сопротивлением Ry = 240Мпа (табл.51*[3]),
коэффициент условий работы gс = 1.
Расчетное значение продольного усилия сжатия в колонне
N = 2×Qmax×1,01 = 2×1899×1,01 = 3836 кН.
Конструктивная длина стержня колонны на основе заданной отметки верха
перекрытия Н=13,6м
Lk=H+hз-(h+hб.н.+tн+2,0)=1360+70-(207,4+36+1,0+2,0)=1183,6 см
где h3 = 70 см - заглубление колонн ниже нулевой отметки;
h =
207,4 см - высота сечения главной балки;
hб.н. = 36 см - высота сечения балки
настила;
tн = 1 см - толщина металлического
настила.
Принимаем двутавровое сечение стержня колонны сварное из трех
листов. Для двутаврового сечения ix = 0,43×h, а iy = 0,24×b (h - высота сечения, b - ширина сечения). Поэтому для обеспечения равноустойчивости стержня
колонны, относительно главных осей симметрии (х - х и y - y),
уменьшаем расчетную длину колонны относительно оси y - y,
путем постановки вертикальных связей между колоннами по схеме, приведенной на
рис.11. Расчетные длины стержня колонн:
относительно оси x -x
llf ,x= m×lk = 1×1183,6 =1183,6 см,
относительно оси y - y
llf ,y= m×lk/2 = 1×1183,6/2 =591,8 см.
Задаемся гибкостью колонны l =70. Условная гибкость стержня колонны
По
табл.72 находим соответствующее значение коэффициента продольного изгиба j = 0,754.
Находим
требуемые геометрические характеристики поперечного сечения стержня колонны:
Площадь
сечения
радиусы
инерции сечения
iтр,х = lef,x/l =1183,6/70 = 17см;
iтр,y = lef,y / l = 591,8/70 = 8,5 см;
высота
сечения (см.табл.8.1. [ 3])
hтр = iтр,х/a1 =
17/0,43 = 39,5 см;
ширина
сечения
bтр = iтр,y/0,24 =
8,5/0,24=35,4см.
Рис.11
К определению расчетной длины колонны
Компонуем
сечение:
Принимаем
высоту стенки hw = 400 мм, равной ширине листа широкополосной
универсальной стали (по ГОСТ 82-70*). Из условия местной
устойчивости при
(п.7.14*[3])
и
tw=hw/59,8 = 6,7≈7 мм.
Требуемая
площадь полки
Aтр,п = (Aтр - tw)/2 = (212 - 0,7∙40)/2 = 92 см2.
Тогда толщина
полки
tf = Aтр,п/bf = 92/36 = 2,6 см.
Из условия
местной устойчивости свесов полок ( п.7.23*)[3]
Толщина
поясного листа из условия устойчивости
Принимаем
поясные листы из широкополосной универсальной стали (по ГОСТ 82-70*)
сечением 360´25мм.
Рис.12.
Сечение сплошной колоны
Геометрические
характеристики сечения:
Площадь
сечения
A = 2×bf×tf + hw×tw = 40×0,7 + 2∙2,5∙36 = 208 см2;
Момент
инерции сечения относительно оси x - x
то же, относительно оси y - y
радиусы
инерции
гибкости
lх = lef,x/ix =
1183,6/20,2 = 58,6;
ly = lef,y/iy =
591,8/9,7 = 61 .
Так
как
ly > lx, то
проверяем устойчивость стержня колонны по подобранному сечению относительно оси
y - y. Для ly = 61коэффициент продольного изгиба j = 0,8.
Недонапряжение
в сечении
.1.2
Подбор сечения сквозной колонны балочной площадки
Материал
конструкции - сталь С245 с расчетным сопротивлением Ry=240МПа
(табл.51*)[3].
Расчетное
значение продольного усилия сжатия в колонне
N = 2×Qmax×1,01 = 2×1899×1,01 = 3836 кН.
Принимаем
шарнирное закрепление концов колонны, тогда в соответствии с принятым
характером закрепления коэффициент приведения длины m = 1. Конструктивная длина стержня колонны lк = 860 см (см.п.3.1).
Расчетные
длины стержня колонны
lx = m× l к = 1×1183,6 =1183,6 см.
lk=ly/2=1183,6/2=591,8 см
Расчет относительно материальной оси
Задаемся гибкостью относительно материальной оси lx = 70.
По табл.72[3] для гибкости lх
= 70 jх = 0,754.
Вычисляем требуемую площадь поперечного сечения стержня колонны
По
сортаменту двутавров (ГОСТ 8239-728) подбираем два двутавра T50:
A = 2×100 = 200 см2; ix =
19,9 см; iy = 3,23 см; Iy =1043 см4.
Проверяем устойчивость стержня колонны относительно материальной оси:
Таким
образом, устойчивость стержня колонны относительно материальной оси обеспечена.
Рис.13.
К расчету ветвей сквозной колонны
Расчет относительно свободной оси
Из условия равно устойчивости находим требуемую гибкость стержня колонны
относительно свободной оси, задаваясь гибкостью ветви l1y = 30:
Требуемый
радиус инерции сечения относительно свободной оси
Требуемый
момент инерции сечения
Требуемую
ширину сечения b находим из формулы:
Проверяем наличие зазора 100…150мм между полками двутавров,
необходимого окраски конструкций:
Принимаем
b=32 см, тогда:
;
Длина
ветви
lв = l1×i1y = 30×3,23 = 96,9 см.
Принимаем
расстояние между планками (в свету) 970 см и сечение планок 10х220мм (ширина
планки bp = (0,5…0,7)×b = 0,7×b = 0,7×320 » 220), тогда Iпл = 1,0×223/12 =
887,3см4. Расстояние между центрами планок
l = lв + bp = 970 + 220 = 1190мм.
Геометрические
характеристики сечения:
Момент
инерции сечения
Радиус
инерции сечения
Гибкость
Отношение
погонных жесткостей
,
поэтому
приведенную гибкость находим по формуле
(см.
табл.7[3]);
-
следовательно,
нужно делать проверку относительно свободной оси.
Раздельная
проверка местной устойчивости отдельных ветвей выполняется по формуле
(6.52[2]):
где
N - расчетное усилие в стержне; А - площадь поперечного
сечения стержня; цb - коэффициент устойчивости ветви, определяемый в
зависимости от ее гибкости лb=lb/ib, lb - расчетная длина ветви, равная расстоянию между
узлами соединительной решетки, i - радиус инерции ветви относительно собственной оси
стержня; ц - коэффициент устойчивости сквозного стержня, определяемый в
зависимости от условной приведенной гибкости стержня:
отсюда
цb=0,931
По
формуле (6.51[2]) определяем приведенную гибкость
Вычисляем
ц по формуле (6.32[2]):
Проверяем
условие:
Расчет
планок. Расчет соединительных планок
выполняем на условную поперечную силу Qfic.
где
j=0,916 - коэффициент продольного изгиба, принимаемый
для стержня в плоскости соединяемых элементов.
Условная
поперечная сила Qfic распределяется поровну между планками, лежащими в
плоскостях, перпендикулярно оси у - у.
Поперечная
сила, приходящаяся на планку одной грани:
Qs =
0,5×Qfic = 0,5×36,6 = 18,3
кН.
Изгибающий
момент и поперечная сила в месте примыкания планки (рис.16):
Рис.14.
К расчету планки
Соединительные
планки привариваем к полкам двутавра угловым швом с катетом шва k = 7
мм.
Сварка
полуавтоматическая в углекислом газе сварочной проволокой Св-10Г2 d
=1,4 - 2 мм.
По
табл.56 (по ГОСТ 2246-70*):
Rwf =
24015 МПа, Rwz = 0,45×370 = 166,5
МПа; по табл.34* [3] bf = 0,9; bz = 1,05; тогда bf×Rwf =
0,9×240 = 216 МПа > bz×Rwz =
1,05×166,5 = 175МПа.
Необходима
проверка по металлу границы сплавления.
Расчетная
площадь шва:
Aw = kf×lw
= 0,8×(22 - 2×0,8) = 16,32
см.
Момент сопротивления шва:
Напряжения
в шве от момента:
Напряжения
в шве от поперечной силы:
Проверяем
прочность шва по равнодействующему напряжению:
.2
Конструирование и расчет оголовка колонны
Принимаем
плиту оголовка толщиной tпл = 25мм
и размером 700 х 540мм. Давление главных балок передается через ребро,
приваренное к стенке колонны четырьмя угловыми швами (шов А, рис.15) Сварка
полуавтоматическая в среде углекислого газа проволокой Св-08Г2С, d =
1,4…2мм. Rwf = 215 МПа, Rwz = 0,45×Run =
0,45×370 = 166,5Мпа.
Рис.15.
К расчету оголовка колонны
Определяем
необходимую длину участка смятия ребра:
bсм = bp + 2×tпл = 40 +
2×2,5 = 45см.
Толщину
опорного ребер находим из условия смятия:
см.
Принимаем
tp = 25 мм.
Длину
опорного ребра lp (высоту оголовка) находим из условия размещения
сварных швов, обеспечивающих передачу усилия N = 3836 кН с
ребра на стенки ветвей колонны. Примем катет шва kf
=10 мм < 1,2×tmin = 1,2×10 = 12 мм.
По
табл.34* bf
= 0,8, bz
= 1,05. Так как bf×Rwf =0,8×215 = 172 МПа > bz×Rwz = 1,05×166,5 = 174,8
МПа.
Принимаем
lp
= 54 см.
Проверяем
стенку двутавра на срез вдоль ребра:
Необходимо
местное усиление стенки оголовка путем замены участка стенки двутавра в
пределах высоты оголовка более толстой вставкой. Принимаем ее толщину 14мм, а
длину
lвст = lp +140 мм=540 + 140=680мм.
Торец
колонны фрезеруются после ее сварки, поверхности плиты строгается, поэтому швы
крепления ребра и плиты можно не рассчитывать. По табл.38* принимаем
конструктивно минимально допустимый катет шва kf =
8мм. Конец ребра укрепляем поперечным ребром, сечения которого принимаем 120 х
10 мм.
3.3
Конструирование и расчет базы колонны
База колонны является опорной частью колонны и служит для передачи усилий
с колонны на фундамент. Конструкция базы должна соответствовать принятому в
расчетной схеме колонны (рис.11) способу сопряжения ее с фундаментом. При
расчетном усилии в колонне до 6000кН принимают базу с траверсами. При шарнирном
сопряжении колонны с фундаментом ставят два или четыре анкерных болта d=24 мм для фиксации проектного
положения колонны. Анкеры в этом случае прикрепляются непосредственно к опорной
плите базы. Диаметр отверстий в плите базы принимают в 1,5…2 раза больше
диаметра анкерных болтов. На анкерные болты надевают шайбы с отверстием,
которое на 3 мм больше диаметра болта, и после натяжения болта гайкой шайбу
приваривают к базе.
Размер плиты базы B и L определяются по требуемой площади
плиты, при этом из конструктивных соображений длина плиты
Lpl > b×(100…120) мм,
а ширина плиты
Bpl = h + 2×(ttr +40…50) мм.
Здесь b и h - соответственно ширина и высота сечения стержня колонны;
ttr - толщина листа траверсы;
мм - минимальный габарит, равный расстоянию от грани колонны до края
плиты, необходимый по конструктивным соображениям для размещения анкерных болтов
d = 24…30 мм.
В соответствии с конструкцией базы плита может иметь участки,
опертые по четырем сторонам, трем сторонам и консольный участок (рис.). Толщина
плиты определена по наибольшему из найденных для различных участков плиты
изгибающему моменту. Обычно толщину плиты принимают в пределах 20…40 мм. Если
толщина плиты по 1 и 2 участкам сильно отличается друг от друга (более 40%),
наиболее напряженный участок плиты следует перекрывать с помощью диафрагм и
(или) ребер.
Рис.16.
К расчету базы колонны
Определение
размеров опорной плиты
Размер
опорной плиты в плане определяем исходя из условия прочности бетона фундамента
смятию под плитой
где
-
коэффициент, зависит от отношения площадей фундамента и плиты
= 1,2;
Rb -
прочность бетона осевому сжатию. Для бетона класса В12,5 Rb =7,5 МПа.
Назначаем
минимально возможную длину плиты базы колонны
Lpl =
b + 240мм = 490 + 240 =730 мм.
по
сортаменту 750 мм
Тогда ширина
плиты
Bpl = h + 2×(ttr +40…50)=610 мм.
Принимаем плиту с размерами в плане 750х610 мм.
Уточняем
значения
коэффициента
перерасчет
плиты не требуется
Здесь
= (
+
+ b)=(61+20)∙(75+20)=7695 см2
= 
=61∙75=
4575 см2,
мм -
расстояние от края опорной плиты базы колонны до наружной грани подколонника.
Вычисляем значение равномерно распределенной нагрузки на плиту снизу,
равной реактивному давлению фундамента:
Из
условия работы опорной плиты базы колонны на изгиб, которую рассматриваем как
пластину, опертую на торец стержня колонны и траверсы, устанавливаем значения
максимальных изгибающих моментов на отдельных расчетных участках:
участок
1 (плита, опертая по четырем
сторонам):
Устанавливаем
траверс ttr=12 мм по середине участка тем самым получим
совершенно два одинаковых участка:
Отношение
большей стороны участка (b = 48см) к меньшей (а =24,4 см):
По
табл. 5 (прилож.[6]) определяем коэффициент a = 0,0947.
Максимальный
момент в плите участка 1 в направлении короткой стороны а, будет равен
Требуемая
толщина плиты
-
максимальной толщины стали С245, табл.51*, поэтому принимаем для
плиты сталь С345, при толщине проката 20…40мм Ry =
300 МПа.
Уточняем
толщину плиты на участке №1
участок
2 (плита, опертая по трем сторонам):
В
пластинке, опертой по трем сторонам, изгибающий момент в середине свободного
края определяют по формуле
,
где
а - закрепленная сторона отсека;
-
коэффициент по табл.6 (прилож [6])
Однако
участок 2 рассматриваем как консольный, так как отношение закрепленной стороны
участка к свободной
Требуемая
толщина плиты

Назначаем
толщину листа траверсы ttr = 12 мм и определяем вылет консольной части плиты с,
Требуемая толщина плиты
Принимаем
толщину плиты 40 м (2 мм принимаем на фрезеровку).
Расчет
траверсы.
Прикрепление
траверсы к колонне выполняем полуавтоматической сваркой в среде углекислого
газа сварочной проволокой Св-08Г2С, d = 1,4…2мм. Максимальный катет
углового шва вдоль кромок двутавра №50 kf
=12 мм. Соответствующие характеристики: Rwf =
215МПа, Rwz =166,5МПа; bf = 0,8; bz = 1,05. Расчет выполняем по металлу шва, так как bf×∙Rwf =0,8×215=172 МПа < bz×Rwz=1,05×166,5 = 175 МПа.
Необходимая длина сварного шва крепления траверсы к ветвям
колонны
Принимаем
высоту траверсы htr = lw = 450 мм. Крепления траверсы к плите принимаем
конструктивно kf =12 мм по табл.38*[3] так как принят
фрезерованный торец колонны.
Проверяем траверсу на изгиб и срез.
Нагрузка на 1см длины одного листа траверсы
qtr = 0,5×q×B = 0,5×0,84×61 = 25,62кН/см.
Изгибающий момент в месте приварки траверсы к ветви колонны
Поперечная сила
Qtr = qtr × a = 25,6 × 13 = 333,1 кН.
Момент сопротивления листа траверсы
.
Проверяем
прочность траверсы по нормальным напряжениям
по
касательным напряжениям
Литература
1. Металлические конструкции. Общий курс: Учебник для вузов /
Под ред. Е.И. Беленя. - 6-е изд. - М.: Стройиздат, 1985. - 560 с.
. Металлические конструкции. Элементы стальных конструкций.
Том 1. / Под ред. В.В. Горева. - М.: "Высшая школа", 1997. - 520 с.
3. СНиП II-23-81*.
Стальные конструкции // Госстрой СССР. - М.: ЦИТП Госстроя СССР, 1990. - 96 с.
4. Стальные конструкции перекрытия технологической
площадки.
Методические указания к курсовой работе под редакцией
Н.Б.Козьмина - Челябинск,1983.
5. Дедух А.Д. Альбом чертежей металлических конструкций.
Часть 1 и 2. - Челябинск, 1995.
6. Стальные конструкции балочной площадки. Учебное пособие
для дневного и вечернего образования. Златоуст: ЗФЮУрГУ, 1998г. - 48с.