|
Показатель
|
Род груза
|
|
|
Тарно-штучные
|
Контейнеры
|
Навалочные
|
|
1. Годовой грузопоток, , тыс. т: прибытие отправление
|
195 185
|
225 205
|
310 -
|
|
2. Суточный грузопоток, прибытие отправление
|
588 557
|
678 618
|
1019 -
|
|
3. Тип вагона, грузоподъемность, , т, техническая норма загрузки , т, длина вагона, , м
|
64 35,8 15
|
33 20.95 15
|
75 67,5 15
|
|
4. Суточный вагонопоток, , ваг/сут. прибытие отправление
|
16 15
|
27 25
|
17 -
|
|
5. Число вагонов в подаче, прибытие отправление
|
8 8
|
9 8
|
6 -
|
|
6. Тип грузового фронта, его длина , м
|
Линейный 150
|
Линейный 165
|
Линейный 120
|
|
7. Длина подачи, , м
|
120
|
135
|
90
|
|
8. Длина ж.-д. пути, , м
|
150
|
165
|
120
|
3. Составление
вариантов ТСК и разработка технологии переработки заданных грузов. Анализ
грузопотоков
3.1 Технологические схемы переработки
тарно-штучных грузов
А)
Б)
Рис. 2. Крытый ангарный склад тарно-штучных грузов;
А) штабельное хранение с использованием вилочных погрузчиков;
Б) технологическая схема переработки груза.
Осуществим анализ грузопотоков по технологическим этапам:
доля суточного вагонопотока по прибытию, перегружаемого по прямому
варианту,
;
где
- доля суточного вагонопотока по
отправлению,
;
=
=588*0.2=117,6 т./сут.
)=588*(1-0.2)=470,4 т.
)=588*(1-0.2)=470,4 т.
=
=557*0,2=111,4 т.
=557 - 111,4=445,6 т.
=
)=557*(1-0,2)=445,6 т.
Объемы механизированной переработки:
=
2061 т./сут.
Второй возможный вариант организации переработки
тарно-штучных грузов:
А)
Б)
Рис. 3.А) Ангарный склад, оборудованный мостовым краном
штабеллером;
Б) технологическая схема переработки груза.
Осуществим анализ грузопотоков по технологическим этапам:
По прибытии:
1.
=
=588*0.2=117,6 т.;
2.
=
)=588*(1-0.2)=470,4 т.;
.
=
)=588*(1-0.2)=470,4 т.;
.
=
)=588*(1-0.2)=470,4 т.;
По отправлении:
1.
=
=557*0,2=111,4 т.;
2.
) = 557*(1-0,2) = 445,6
т.
3.
=
)=445,6 т.
=
=2061т.
=
=1832т.
=
+
=2061+1832=3893 т.
3.2 Технологическая схема переработки контейнеров
на контейнерных площадках
Для складирования среднетоннажных контейнеров будем
использовать контейнерную площадку среднетоннажных контейнеров, при тяжелом
режиме работы. Погрузочно-разгрузочные работы будут осуществляться с помощью
козловых кранов.
А)
Б)
Рис. 4.А) - схема переработки контейнеров козловым краном на
контейнерной площадке; Б) - технологическая схема.
Анализируем контейнеропотоки:
=70*0,2=14 к.;
=63*0,2=13 к.;
70*(1-0,2)=56 к.;
=56 к.;
=63*(1-0,2)=50 к.;
=50 к.
Мпор=
=7
=14+56+56+13+50+50=239 кон./сут.
3.3 Технологическая схема переработки навалочных
грузов
Заданный груз (песчано-гравийная смесь) будем разгружать
самотёком, на возвышенных путях. Складировать - на навалочной площадке.
Погрузка осуществляется одноковшовым погрузчиком.
Рис. 5. Схема комплексной механизации с использованием
одноковшовых погрузчиков
Рассчитаем параметры технологической схемы грузопереработки
включающей четыре этапа:
=0,15
1.
=
=1019 т.;
2.
=
=1019*0,15=152,85 т.;
3.
)=1019*(1-0,15)=866,15
т.;
4.
=
)=866,15 т.;
=
=152,85+866,15+866,15=1885,15т.
4.
Определение основных параметров ТСК
.1 Расчет вместимости
Определение вместимости склада тарно-штучных
грузов (для 1-го и 2-го вариантов КМАПРР).
=588*2*(1-0,2)+557*1,5*(1-0,2)=1475,52 т.
где
,
-срок хранения груза на складе по прибытии и
отправлении, сут;
,
-коэффициент перегрузки по прямому варианту по
прибытии и отправлении.
- вместимость склада тарно-штучных грузов при
штабельном хранении.
Определим вместимость склада по количеству грузовых мест:
R=
/
=1475, 52/0, 43=3431 грузовое место.
Определение вместимости контейнерной площадки.
Vкп=70*2*(1-0, 2) +63*1*(1-0,2)+7*1 (1-0,2)+0,03*(70+63+7)*0,5=172
контейнера.
где
,
- суточный контейнеропоток;
-количество порожних контейнеров;
,
- коэффициент перегрузки по прямому
варианту, (0,2);
-срок хранения порожних контейнеров, (1 сут.);
,03-коэффициент учитывающий дополнительную вместимость для ремонта
неисправных контейнеров;
-срок нахождения неисправных контейнеров в ремонте (0,5 сут.);
Определение вместимости навалочных площадок.
=1019*3*(1-0,15)=2445,6 т.
где
- коэффициент перегрузки по прямому варианту,
(0,15);
- срок хранения груза на складе (3 сут.).
4.2 Расчет ширины склада
Определение ширины крытого склада для
тарно-штучных грузов
(1-й вариант КМАПРР)
z=
=
4.
где
- вместимость склада;
- коэффициент, учитывающий влияние объема
комплектовочных работ на длину и площадь склада, принимаем 1,5;
- коэффициент, представляющий собой отношение
длины склада к ширине, принимаем равным 4;
- средняя нагрузка поддона;
- удельное число поддонов, которое приходится на
1 м2 площади зоны хранения (с учетом проходов) при складировании в
один ярус по высоте, принимаем равным 0,54, тип механизма ЭП-103;
- число ярусов складирования поддонов по высоте;
-максимальная высота подъёма груза для ЭП-103
(4,5 м.);
-высота грузового места.
Округляем до ближайшей нормативной величины стандартного
ряда, имеем:
=30 м.
Определение ширины крытого склада для
тарно-штучных грузов (2-й вариант КМАПРР).
29,3=30 м.
z=
=
=5.
где
-максимальная высота подъёма груза мостовым
краном штабеллером КШОК-1 (6,8 м.);для МКШ примем равным 0,3.
Округляем до ближайшей нормативной величины стандартного
ряда, имеем:
=30 м.
Расчет ширины контейнерной площадки.
Рассчитаем полезную ширину контейнерной площадки в случае
схемы переработки контейнеров с помощью козлового крана типа КК-5, когда ж.-д.
путь находится внутри пролета:
=16-2*1,4-5=8,2 м.
где
- пролет козлового крана (16 м.);
- зазор безопасности между наиболее выступающей
частью ходовой тележки крана и крайним контейнером (1,4 м.);
(5 м.)
Расчет ширины навалочной площадки.
Исходя из того, что при переработке навалочных грузов мы
будем использовать одноковшовые погрузчики ТО-1, рассчитаем ширину навалочной
площадки в случае формирования обелискового штабеля:
=
/
=2445,6 /2=1222,8
.
где
-длина штабеля,
=91 м.;
-высота штабеля равна 2,06 м.;
-угол естественного откоса сыпучего груза в покое
равен 45 град.;
-объемная масса груза 2 т/
;
4.3 Методы расчета площади склада
Расчет площади склада методом элементарных
площадок.
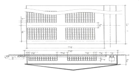
Расчет площади ангарного склада со штабельным
хранением (1-й вариант КМАПРР).
Рис. 6. Ангарный склад для хранения тарно-штучных грузов в
штабелях
Одноэтажный ангарный склад оборудован для производства
погрузо-разгрузочных работ электропогрузчиками. За элементарную площадку
выбирается группа - два штабеля, расположенная между осями смежных дверей.
где
- расстояние между осями смежных дверей со
стороны подъезда автотранспорта, принимаем 12 м.
.
Ширина элементарной площадки:
=30-4,725=25,275 м.
где
- габаритное расстояние от стенки склада до
грузовой платформы со стороны железнодорожного подвижного состава, принимаем
4,725 м.
Вместимость элементарной площадки:
=(6*19*4)*0,43= 196,08 т.
где
- количество рядов пакетов по длине элементарной
площадки;
- количество рядов пакетов по ширине;
- количество рядов пакетов по высоте (4 ряда).
=(12-4)/(1,24+0,04)=6 рядов.
где
- длина пакета, принимаем 1,24 м.;
- ширина проезда погрузчика, принимаем 4 м.;
- зазор между смежными пакетами, принимаем 0,04
м.;
19 рядов.
где
-ширина грузовой рампы со стороны
железнодорожного пути, принимаем 4 м.;
- расстояние от стены до штабеля, принимаем 0,5
м.;
- ширина пакета, принимаем 0,84 м.;
=z=4.
Определим количество элементарных площадок:
Определим длину склада занятую грузами:
=8*12=96 м.
Длина склада с учетом противоположных проездов шириной 5 м,
которые устраиваются через каждые 100 м:
=8*12+1*5=101 м.
где
- число противопожарных проездов.
.
- ширина противопожарных проездов (5 м.).
Общая длина крытого склада
96+2*3+1*4+19,2+12=137,2 м.
где
» - ширина поперечных проездов в торцах склада (3
м.);
- длина участков временного хранения и
комплектации грузов;
=(0,1÷0,2)
=0,2*96=19,2 м.
- длина служебно-технических и бытовых помещений
(12 м.);
Округляя в большую сторону до числа кратного 12 имеем:
=144 м. Определяем площадь склада:
=144*30=4320
.
Расчет площади ангарного склада, оборудованного
мостовым краном штабелером (2-й вариант КМАПРР).
Рис. 7. Ангарный склад для хранения ТШГ в штабелях.
Одноэтажный ангарный склад оборудован для производства
погрузо-разгрузочных работ электропогрузчиками и мостовым краном штабеллером
(МКШ) КШОК-1. За элементарную площадку выбирается группа - два штабеля,
расположенная между осями смежных дверей.
где
- расстояние между осями смежных дверей со
стороны подъезда автотранспорта, принимаем 12 м.
.
Ширина элементарной площадки:
=16,5-1=15,5 м.
где
- пролёт МКШ (16,5 м.);
-ширина подкрановой опоры (1 м.);
=(7*15*5)*0,43=225,75т.
=(12-2,05)/(1,24+0,04)=7 рядов.
- ширина прохода
для КШОК-1 принимаем 2,05 м.;
15 ряда.
=z=5.
Определим количество элементарных площадок:
Определим длину склада, занятую грузами:
=6*12=72 м.
Длина склада с учетом противоположных проездов шириной 5 м,
которые устраиваются через каждые 100 м:
=6*12+1*5=77 м.
где
- число противопожарных проездов
.
- ширина противопожарных проездов (5 м.).
Общая длина крытого склада
72+2*3+1*2,05+14,4+12=106 м.
- длина участков временного хранения и
комплектации грузов;
=(0,1÷0,2)
=0,2*72=14,4 м.
- длина служебно-технических и бытовых помещений
(12 м.);
Округляя в большую сторону до числа кратного 12 имеем:
=108 м.
Определяем площадь склада:
=108*36=3888
.
Определение площади контейнерной площадки.
Для расстановки контейнеров на контейнерной площадке будем
использовать схему расстановки.

Рис. 8. Схема установки контейнеров на площадке.
Ширина сектора:
=8,2 м.;
=16-2*1,4-5=8,2 м.
Первая схема:
=2*2,1+0,1+0,6=4,9 м.
Вторая схема:
=2*2,650+0,1+0,6=6 м.
где lк,
- длина и ширина контейнера;
,1 - зазор между контейнерами в секторе, м;
,6-проход между секторами, м;
Число контейнеров по ширине
Первая схема
=8,2/(2,65+0,1)=3.
Вторая схема
=8,2/(2,1+0,1)=4
где
- количество контейнеров по ширине
элементарной площадки (
=3; 4);
- количество контейнеров по длине элементарной площадки(
= 2);
- количество контейнеров по высоте (
=2);
где bк-ширина контейнера, (2,65 м.);
=3*2*2=12 контейнеров.
=4*2*2=16 контейнеров.
Определим количество секторов по всей длине контейнерной площадки:
=
=14.
=
=11
Определим длину контейнерной площадки:
=14*4,9+1*5=74 м.
=11*4,9+1*5=74 м.

.

Вычислим площадь контейнерной площадки:
=74*8,2=607
.
=74*8,2=607
.
Расчет площади склада навалочных грузов.
Определим параметры склад, оборудованного повышенным путем в
сочетании с погрузчиком ТО-1.
Высоту повышенного пути примем равную
=2,4 м.;
Длина выезда на повышенный путь:
м.;
Вместимость повышенного пути:
Площадь отвала
0,5*2,8*2,8=3,92 м2
где Нот - высота отвала, м.;
м;
В1 - ширина отвала, м;
м.
Длина штабеля:
м.
м.
Высота штабеля:
,06 м.
Ширина штабеля понизу:
=8,6 м.
Ширина штабеля поверху:
м.
Площадь штабеля:
1032 м2.
Объем штабеля:
Число штабелей по длине склада:
Принимаем
=1.
Длина склада:
м.;
Площадь склада:
м2.
5.
Определение продолжительности рабочего цикла механизмов
5.1 Определение рабочего цикла вилочного
погрузчика ЭП-103
ЭП без крана
=10+5+0,85*
ЭП с краном
=10+5+0,85*
где tз - время на захват груза (10 с.);о -
время на освобождение от груза (5 с.).;- коэффициент, учитывающий совмещение
операций в течение цикла (0,85);п - скорость подъёма вил (0,15 м/с);пер
-скорость перемещения погрузчика (2,5 м/с);
Нп - высота подъёма груза (4,5 м.);пер = lваг
- расстояние перемещения погрузчика (15 м.);н - время наклона рамы в
транспортное положение (3 с.).
5.2 Определение продолжительности рабочего цикла
крана КШОК-1
=12+6+0,85*
=170 с.;
где tз - время на захват груза, которое принимается в
зависимости от рода груза; для тарно-штучных грузов примем tз = 12
с;о - время на освобождение от груза (6 с.);
Lкр = lваг - среднее расстояние перемещения
крана (15 м.);т - среднее расстояние перемещения тележки крана
=16,5/2=8,25 м.
где lпр - пролет моста крана (16,5 м.);п -
скорость подъема и опускания груза или крюка (0,27 м/с);кр -
скорость передвижения крана (1,05 м/с.);т - скорость передвижения тележки крана (0,33
м/с.);
ц - коэффициент совмещения операций (0,85);
Н - средняя высота подъема (опускания) груза, примем:
=6,8 м.
5.3 Определение продолжительности рабочего цикла крана КК-5
=10+5+0,85*
=146 с.;
где tз =10 с.;о=5 с.;кр = lваг
=15 м.;
= 16/2+4,5=12,5 м.;
lпр =16 м.;конс - рабочий вылет консоли (4,5
м.);п =0,33 м/с.;кр=1,67 м/с.;т =0,82 м/с.;
=3*2,591+1=8,77 м.;
где
- количество контейнеров установленных по
высоте(3);
- высота контейнера УУК-5 (2,591 м.).
5.4 Определение продолжительности рабочего цикла одноковшового
погрузчика ТО-1
=8+7+0,85*
=86 с.;
где tз - время заполнения ковша (8 с);о -
время освобождения ковша от груза (7 с);
Н - высота подъема ковша с грузом и опускания без груза (2,56 м.);пер
- расстояние перемещения погрузчика (16 м.);пер - скорость
перемещения погрузчика (2,6 м/с.);п - скорость подъема, опускания
ковша (0,145 м/с.).
.
Определение производительности механизмов периодического действия
Определим техническую и эксплуатационную производительность
механизмов.
6.1 Определение производительности ЭП-103
Техническая производительность:
3600*0,45/97,6=16,6 т/ч.
=3600*0,45/84=19,3 т/ч.
где Qн - масса груза, перемещаемая машиной за один
цикл, для электро погрузчика равна массе грузового места (0,45 т.);
Эксплуатационная производительность:
=16,6*10,8*0,8=143,4 т/смену,
=19,3*10,8*0,8=166,7 т/смену,
где квр - коэффициент использования машины во времени
(0,8);
Тсм - число рабочих часов в смене.
=12-1,2=10,8 ч.;
где tсм - полная продолжительность смены (12 ч.);
,2 ч. - время на перерывы на обед и пересменки.
6.2 Определение производительности КШОК-1
=3600*0,45/170=9,5 т/ч.;
Qн =0,45 т.;
=9,5*10,8*0,8=82 т/смену.
6.3 Определение производительности КК-5
=3600*3,23/146=79 т/ч.;
=3,23 т. (масса одного контейнера);
=79*10,8*0,8=683 т/смену.
=3600/146=24 конт./ч.;
6.4 Определение производительности ТО-1
=3600*5,04/86=211 т/ч.;
=2,8*2*0,9=5,04 т.
где Ек - вместимость захватного рабочего органа
(2,8 м3);
kз - коэффициент заполнения захватного рабочего
органа (0,9 для щебня);
=211*10,8*0,8=1823 т/смену.
7.
Определение количества ПРМ
7.1 Определение потребного количества
электропогрузчиков для переработки ТШГ (1-й вариант КМАПРР)
=
=6,7=7.
где
- суточный объем механизированной
переработки грузов погрузчиками, т/сут;рем - время ремонта
погрузо-разгрузочных механизмов в течение года, tрем = 12 дней;см
- число смен в сутки, для круглосуточного режима работы (2);
Псм - эксплуатационная производительность механизмов,
т/сут.
7.2 Опредление количества погрузчиков и кранов для переработки ТШГ
(2-й вариант КМАПРР)
=
=6.
где
- суточный объем механизированной
переработки грузов погрузчиками (2085,8 т/сут.);
=
=11.
где
- суточный объем механизированной
переработки грузов МКШ (1832т/сут.);
7.3 Определение количества кранов для переработки контейнеров
=
=1.
где
- механизированный суточный
контейнеропоток (239 к/сут.);
Псм - эксплуатационная (сменная) производительность
одного
крана (207 к/смену);см - число смен работы крана(2).
7.4 Определение количества одноковшовых погрузчиков для
переработки навалочных грузов
=
=1.
где
-суточный объем механизированной
переработки грузов одноковшовым погрузчиком (1885,15 т.).
Анализ проведенных расчетов
|
Показатель
|
Род груза
|
|
Тарно-упаковочные
|
Контейнеры
|
Навалочные
грузы
|
|
Объемы
грузопереработки
|
|
Суточный
грузопоток. т:
|
|
|
|
|
по прибытии
|
588
|
678
|
1019
|
|
по отправлению
|
557
|
618
|
-
|
|
Тип вагона
|
4-осный с
Деревянной Обшивкой
|
Полувагон
|
Полувагон-хоппер
|
|
Pгп, т
|
64
|
33
|
75
|
|
Pтех, т
|
44,6
|
20,95
|
67,5
|
|
Суточный
вагонопоток, Nc:
|
|
|
|
|
по прибытии
|
16
|
27
|
17
|
|
по отправлению
|
15
|
25
|
-
|
|
Число подач в
сутки
|
2
|
3
|
3
|
|
Число вагонов в
подаче в сутки nподмах
|
8
|
9
|
6
|
|
Тип грузового
фронта
|
Линейный
|
Линейный
|
Линейный
|
|
Длина ГФ
|
150
|
165
|
120
|
|
Длина подачи,
м.
|
120
|
135
|
90
|
|
Длина ж.-д.
пути, м.
|
150
|
165
|
120
|
|
Характеристики
и параметры ТСК
|
|
Тип ТСК
|
Крытый ангарный
склад
|
Контейнерная
площадка
|
Склад
навалочных грузов
|
|
Объем
механизированной переработки, т., Qмех Способ выгрузки
|
1) 2061 тонн;
2) 3917,8 тонн. 1.ЭП-103.; 2.ЭП-103.
|
246 контейнера
КК-5
|
1885,15 тонн.
Повышенный путь
|
|
Вместимость
|
1475,52 тонн.
|
172 контейнера.
|
2445,6 тонн.
|
|
Ширина
|
30 м. (оба
варианта КМАПРР)
|
8,6 м.
|
21 м.
|
|
Длина
|
1) 144 м.; 2)
108 м.
|
72 м.
|
120 м.
|
|
Высота
|
1) 6 метров. 2)
6 метров.
|
|
2,06
|
|
Площадь
|
1) 4320 м2;
2) 3888 м2.
|
607 м2.
|
1044,9 м2.
|
|
Характеристики
ПРМ
|
|
Тип ПРМ
|
1) Погрузчик
ЭП-103; 2) ЭП-103 и КШОК-1;
|
КК-5
|
Одноковшовый
погрузчик ТО-1.
|
|
Производительность
техническая
|
1) 16,6т/ч. 2) 19,3 т/ч.;
|
79 т/ч.;
|
211 т/ч.;
|
|
Производительность
сменная
|
1) 160 т/смену
2) 166,7т/смену;
|
683т/смену;
|
1823 т/смену.
|
|
Количество
механизмов
|
1) 7; 2) 17;
|
1
|
1
|
|
|
|
|
|
|
8.
Технико-экономические расчеты по выбору оптимального варианта механизации
Сводная таблица технико-экономических показателей
|
Показатель
|
Вариант-1
|
Вариант-2
|
|
Единовременное
капиталовложение К, млн. руб.
|
46,7
|
35,18
|
|
Годовые
эксплуатационные расходы Э, млн. руб./год
|
8,733696
|
34,375400
|
|
Срок
окупаемости Т, лет
|
3
|
3
|
Вариант-1
Расчет единовременных капиталовложений
капиталовложение на строительство склада,
34000000 руб.;
капиталовложение на машины и механизмы,
2500000 руб.;
прочие капиталовложения,
руб.
34000000+2500000+10200000=46700000 руб.
Расчет годовых эксплуатационных расходов

-эксплуатационные расходы погрузочно-разгрузочных механизмов;
=
-эксплуатационные расходы на энергию и топливо,
=25000 руб.;
-эксплуатационные расходы на техническое обслуживание,
=200000 руб.;
-эксплуатационные расходы на амортизацию,
=120000 руб.;
=25000+200000+120000=345000 руб.
-отчисления на заработную плату,
=1,3ФОТ, где
ФОТ=4,2z12ЗП, где
z - количество механизмов, z=6;
ЗП - заработная плата, ЗП=20000 руб.
ФОТ=
=6048000 руб.
=
7862400 руб.


руб.
Э=345000+7862400+526296=8733696 руб./год
Расчет срока окупаемости
,
где
срок службы,
=6 лет;
6/2=3 года
Приведенные расходы
=1/3=0,2
18073696 руб./год
Вариант-2
Расчет единовременных капиталовложений
капиталовложение на строительство склада,
30160000 руб.;
капиталовложение на машины и механизмы,
3000000 руб.;
прочие капиталовложения,
руб.
30160000+3000000+2024000=35184000 руб.
Расчет годовых эксплуатационных расходов

, где
-эксплуатационные расходы погрузочно-разгрузочных механизмов;
=
-эксплуатационные расходы на энергию и топливо,
=25000 руб.;
-эксплуатационные расходы на техническое обслуживание,
=250000 руб.;
-эксплуатационные расходы на амортизацию,
=30000 руб.;
=25000+250000+30000=305000 руб.
-отчисления на заработную плату,
=1,3ФОТ, где
ФОТ=4,2z12ЗП, где
z - количество механизмов, z=20;
ЗП - заработная плата, ЗП=20000 руб.
ФОТ=
= 20160000 руб.
=
26208000 руб.


руб.
Э=305000+26208000+7862400=34375400 руб./год
Расчет срока окупаемости
,
6/2=3 лет
Приведенные расходы
41387225 руб./год
Список
литературы
1. Мысник Е.В. Транспортно-грузовые системы:
Учеб. пособие. /Е.В. Мысник, Т.В. Сатурченко, С.И. Дарманский. - Иркутск:
ИрГУПС, 2008.-103 с.
. Бойко Н.И. Транспортно-грузовые системы и
склады: Учеб. пособие. /Н.И. Бойко, С.П. Чередниченко. - Ростов на Д.: Феникс,
2007.
. Гриневич Г.П. Комплексная механизация и
автоматизация погру-зочно-разгрузочных работ на ж.-д. транспорте / Г.П.
Гриневич - М.: Транспорт, 1981.
4. Журавлев Н.П., Транспортно-грузовые
системы: Учеб. для вузов ж.-д. транспорта. /Н.П. Журавлев, О.Б. Маликов. - М.:
Маршрут, 2006. - 368 с.