Выбор и расчет посадок типовых соединений

  • Вид работы:
    Контрольная работа
  • Предмет:
    Другое
  • Язык:
    Русский
    ,
    Формат файла:
    MS Word
    709,29 Кб
  • Опубликовано:
    2015-05-21
Вы можете узнать стоимость помощи в написании студенческой работы.
Помощь в написании работы, которую точно примут!

Выбор и расчет посадок типовых соединений

Министерство образования и науки Российской Федерации

Федеральное государственное бюджетное образовательное учреждение

высшего профессионального образования

«Комсомольский-на-Амуре государственный технический университет»

Кафедра «Технология машиностроения»








Контрольная работа

Выбор и расчет посадок типовых соединений

Содержание

1. Назначение торцовых крышек

. Определение предельных размеров деталей соединения, допусков размеров отверстия вала, предельной натяги, допуска посадки

3. Построение схемы расположения полей допусков подшипникового соединения, указывая зазоры и натяги

4. Построение схемы расположения допусков деталей шпоночного соединения

5. Сборочный чертеж соединения и отдельно деталей соединения

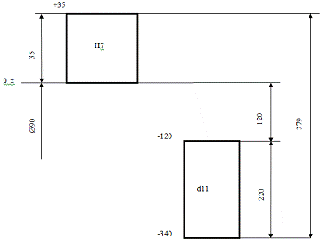
1. Назначение торцовых крышек

Торцовые поверхности крышек свободны и не используются в качестве базовых для установки подшипников качения. Единственное назначение таких крышек - закрыть отверстие корпусной детали. Точное центрирование таких крышек по отверстию корпуса не требуется. Поэтому поле допуска центрирующей поверхности накладной крышки принимаю по d11.

Так как крышка устанавливается в отверстие корпуса, которое обрабатывается под подшипник, то поле допуска отверстия принимаю Н7.

Посадка будет иметь вид:


. Определение предельных размеров деталей соединения, допусков размеров отверстия вала, предельной натяги, допуска посадки

Минимальный и максимальный размер отверстия, мм:

 = D + ES,

 = D + EI,

 = 90+0,035= 90,035

 = 90+ 0= 90.

Минимальный и максимальный размер вала, мм:

 = d + es,

 = 90 + (-0,120) = 89,880,

 = d + ei ,

 = 90 + (-0,340) = 89,660.

Допуски на размер соответственно для отверстия Н8 и вала 85d11, мм:

TD = Dmax - Dmin

Тd =  - ,

= 90,035 - 90 = 0,035

Тd = 89,880 - 89,660 = 0,220.

Рассчитываем максимальный и минимальный зазоры, мм:

 =  - ,

 =  - ,

 = 90,035 - 89,660 = 0,375,

 = 90 - 89,880 = 0,120.

Допуск посадки, мм:

ТS =  - ,

TS = TD + Td,

TS = 0,375 - 0,120 = 0,255,

TS = 0,035 + 0,220 = 0,255.

Для нормальной работы соединения требуется соблюдения формы сопрягаемых деталей. Т.к. поверхности цилиндрические, то находим величину отклонения от цилиндричности.

Рассчитываем отклонение формы отверстия 90H7  от цилиндричности.

,

,

 = 10,00 мкм.

Шероховатость:

 = 0,05  0,035 = 0,00175,

 = 10,00 мкм.

Рассчитываем отклонение формы вала 90d11  от цилиндричности:

,

 = 60 мкм.

Шероховатость:

  0,05  Тd,

 = 0,05  0,220 = 0,011,

 = 10,00 мкм.

Схема расположения полей допусков деталей гладкого цилиндрического соединения (рис. 1).

Рисунок 1 - Схема расположения полей допусков

Рисунок 2 - Чертежи деталей и сборочный чертеж

Размеры подшипника 2218: d = 90 мм, D = 160 мм, В = 30 мм.

Исходя из условий работы узла, можно сделать вывод о том, что характер наружного кольца местный, а внутреннего - циркуляционный. В общем машиностроении используются подшипники 0 и 6 классов точности.

Выберем подшипник нулевого класса точности. Выбираем предельные отклонения внешнего кольца Ø160l0 и внутреннего кольца Ø90L0

При местном характере нагружения посадка внешнего кольца подшипника с корпусом должна быть с зазором, выбираем поле допуска корпуса H8, а при циркуляционном характере нагружения соединение внутреннего кольца подшипника с валом должно быть с натягом, поэтому выбираем поле допуска вала k6.

Определяем предельные размеры колец подшипника и предельные размеры и допуски посадочных поверхностей вала и корпуса:


 =  + es,

 = + ei,

 = 90+0 = 90,

 = 90+ (-0,020) = 89,98,

 = 0,020;

внутреннее кольцо подшипника Ø160l0

=  +ES,

=  + ЕI,

 = 160 + 0 = 160,

 = 160+(-0,025) = 159,975,

Т = 0,025;

- отверстие H8:

 = D + ЕS,

 = D + ЕI,

 = 160 + 0,063 = 160,063,

 = 160 + 0 = 160,

ТD = ЕS - ЕI,

ТD = 0,063- 0 = 0,063;

- вал k6:

= d + es,

 = d + ei,

 = 90 + 0,025 = 90,025

 = 90 + 0,003 = 90,003

Тd = es - ei,

Тd = 0,025 - 0,003 = 0,022.

Определяем предельные зазоры и натяги соединений:

- внутреннее кольцо подшипника - вал (L0/k6) - посадка в системе отверстия с натягом:

 =  - ,

 =  - ,

 = 90,025 - 89,988 = 0,045,

 = 90,003 - 90 = 0,003,

,

ТN = 0,042 ,

наружное кольцо подшипника - (H8/l0) - посадка в системе вала с зазором:

 =  - ,

 =  - ,

 = 160,063 -159,975 = 0,088,

 = 160 - 160 = 0,


ТS = 0,088.

Шероховатость посадочных поверхностей:

вала - Ra 2,5 мкм;

отверстия - Ra 2,5 мкм;

Отклонение от цилиндричности деталей под подшипники качения при повышенной относительной геометрической точности равно 0,2 от допуска на размер:

допуск цилиндричности вала: = 0,2  Тd,

= 0,2  0,022 = 0,0044,

= 4 мкм

допуск цилиндричности отверстия: = 0,2  ТD

 = 0,2  0,063 = 0,0126

= 0,012 мкм

. Построение схемы расположения полей допусков подшипникового соединения, указывая зазоры и натяги

Рисунок 3 - Детали и сборка подшипникового соединения

1. По диаметру вала определяем размеры шпонки при d = 65 мм:

b = 18 мм - ширина шпонки, h = 11 мм - высота шпонки,

 = 7,0 мм,  =4,4 мм.

2. Для призматических шпонок при свободном соединении поля допусков по размеру b принимаются следующие:

для шпонки - 18h9, для паза вала - 18Н9 для паза втулки - 18Js9.

Размеры вала (d - ) и втулки (D + ), будут иметь отклонения:

(d - ) = 58- 0,.2 мм, (D + )= 69,4 + 0,2 мм.

Высота шпонки h имеет поле допуска h11. Сопрягаемые с ней глубины канавок (пазов) имеют поле допуска H11.

. Определяем предельные размеры и допуск размера ширины шпонки

h9:

= 18 + 0 = 18,

= 18 + (-0,043) = 17,957,

Тb = 18 - 17,957 = 0,043.

Определяем предельные размеры и допуск размера ширины паза втулки 18Js9:

= 18 + 0,0215 = 18,0215,

 = 18 - 0,0215 = 17,9785,

 = 18,0215 - 17,9785 = 0,043.

 = 18 + 0,043 = 18,043,

 = 18 + 0 = 18,

 = 18,043 - 18 = 0,043.

Определяем зазоры между пазом втулки и шпонкой: 18

 = ES - ei,

 = EI - es,

 = 0,0215 - (-0,043) = 0,0645

 = -0,0215 - 0 = -0,0215,= 0,043.

Определяем натяги и зазоры между пазом вала и шпонкой: 18

 = ES - ei,

 = EI - es,

 = 0,043 - (-0,043) = 0, 086,

 = 0 - 0 = 0,= 0,086.

4. Построение схемы расположения допусков деталей шпоночного соединения

Рисунок 4 - Схема полей допусков шпоночного соединения

Для сборки важно правильное расположение канавок (пазов) на валу и во втулке. Поэтому назначаются такие нормы как допуски симметричности оси канавок (пазов) относительно оси вала и относительно оси отверстия втулки и допуск параллельности плоскости оси канавки к оси вала или отверстия.

Для паза вала:

- допуск параллельности равен:  = 0,5 0,043 = 0,0215

 = 25 мкм

допуск симметричности равен: = 2 0,043 = 0,086

 = 100 мкм.

Для паза втулки:

допуск параллельности равен: = 0,51,1 = 0,55

 = 60 мкм

допуск симметричности равен: = 21,1 = 2,2

 = 250 мкм

Назначаем шероховатости для неподвижного соединения:

рабочая поверхность шпонки - Ra 2,5;

рабочая поверхность паз вала - Ra 5;

рабочая поверхность паза втулки - Ra 5;

нерабочая поверхность шпонки - Ra 10;

нерабочая поверхность паза вала - Ra 10;

нерабочая поверхность паза втулки -Ra 20;

5. Сборочный чертеж соединения и отдельно деталей соединения

Рисунок 5 - Шкив - шпонка - вал

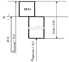
1. Определяем размер ширины зуба b соединения: b= 12 мм. Выбираем способ центрирования по D.

. Так как размер d не является центрирующим, то для диаметра вала d допуск не назначаем: при не центрирующем d - для вала меньший диаметр d не менее диаметра  (в данном случае  не менее 79,3 мм), для втулки- H11.

Обозначение выбранного соединения:

D - 1082H7/js6 12F8/f7.

. Исходя из назначенных посадок определяем значения предельных отклонений, допуски размеров, предельные значения и допуски зазоров или натягов:

Для меньшего диаметра втулки Ø82H11:

 = 82+ 0,22 = 82,22

 = 82+ 0 = 82

 = 82,22 - 82 = 0,22

Для меньшего диаметра вала Ø82:

 = d = 82

 = =79,3

 = 82 - 79,3 = 2,7

Для соединения вала и втулки по меньшему диаметру Ø79,3:

TS = 2,92 - 0 = 2,92

Строим схему расположения полей допусков для соединения вала и втулки по меньшему диаметру (рис. 6).

Рисунок 6 - Схема полей допусков

Для большего диаметра втулки Ø88H7:

 = 88 + 0,035 = 88,035

 = 88 + 0 = 88

 = 88,035 - 88 = 0,035

Для большего диаметра вала Ø88js6:

 = 88 + 0,011 = 88,011

 = 88 +(-0,011) = 87,989

 = 88,011 - 87,989 = 0,022

Для соединения вала и втулки по большему диаметру Ø88H7/ js6:

 = 88,035 - 87,989 = 0,046

 = 88 - 87,989 = 0,011

TS = 0,046 - 0,011 = 0,035

Строим схему расположения полей допусков для соединения вала и втулки по большему диаметру (рис. 7).

Рисунок 7 - Схема полей допусков

 = 12 + 0,043 = 12,043

 = 12 + 0,016 = 12,016

 = 12,043 - 12,016 = 0,027

Для боковой поверхности зубьев вала 12f7:

 = 12 + (-0,016) = 11,984

 = 12 + (-0,034) = 11,966

 = 11,984 - 11,966 = 0,018

Для соединения вала и втулки по боковой поверхности зубьев 12F8/ f7:

 = 12,043 - 11,966 = 0,077

 = 12,016 - 11,984 = 0,032

TS = 0,077 - 0,032 = 0,045

Строим схемы расположения допусков для соединения вала и втулки по боковой поверхности зубьев (рис. 8).

Рисунок 8 - Схема полей допусков

деталь подшипниковый шпоточный

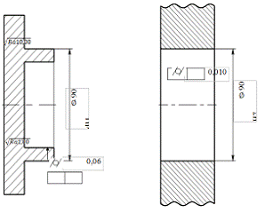
При ширине шлица b= 12 мм допуск симметричности равен 0,018 мм.

Шероховатости поверхностей соединения выберем следующие:

впадина отверстия - Ra 2,5;

зуб вала - Ra 2,5;

центрирующая поверхность втулки - Ra 1,25;

центрирующая поверхность вала - Ra 1,25;

не центрирующая поверхность втулки - Ra 5,0;

не центрирующая поверхность вала - Ra 5,0.

. Сборочный чертеж соединения и отдельно деталей (рис. 10).

Рисунок 9 - Шестерня - шлицевой вал

Список использованных источников

1. Анурьев В.И. Справочник конструктора-машиностроителя /В.И. Анурьев. - М.: Машиностроение, 1981. Т.2.

. Выбор и расчет посадок типового соединений: варианты заданий и чертежи для выполнения курсовой работы по дисциплине «Метрология, стандартизация и сертификация». Часть 2 / Сост.: О.И. Медведьева, Е.Г. Кравченко, А.С. Осипкина, В.В. Хруль. - Комсомольск-на-Амуре: ГОУВПО «КнАГТУ», 2006. - 32с.

Похожие работы на - Выбор и расчет посадок типовых соединений

 

Не нашли материал для своей работы?
Поможем написать уникальную работу
Без плагиата!
Без нейросетей!