|
Наименование
раздела курсовой работы
|
% к объёму
|
Срок выполнения
|
Отметка о
выполнении
|
|
Выбор посадок
подшипников качения
|
10
|
|
|
|
Выбор посадок
гладких сопряжений
|
10
|
|
|
|
Расчет
исполнительных размеров калибров
|
|
|
|
|
Выбор посадок
резьбового соединения
|
10
|
|
|
|
Выбор посадок
шлицевого соединения
|
10
|
|
|
|
Расчет
размерных цепей: При полной взаимозаменяемости При теоретико-вероятностном
методе
|
20 20
|
|
|
|
Оформление
работы
|
20
|
|
|
Срок сдачи студентом законченной работы
"_____"________________2014 г.
1. Выбор
посадок гладких сопряжений
1.1 Выбор
посадок подшипников качения
Условия работы подшипникового узла:
Вал сплошной.
Внутреннее кольцо и вал вращаются.
Наружное кольцо и корпус неподвижны.
Нагрузка постоянная R=10000 Н.
Перегрузка до 150%.
Осевые нагрузки отсутствуют.
По ГОСТ 8336-75 выбран однорядный подшипник качения 213,
легкой серии с размерами:
Внутренний диаметр внутреннего кольца d=65 мм;
Диаметр наружного кольца D=120 мм;
Ширина колец B=23 мм;
Для обеспечения повышенной точности центрирования зубчатых
колес и снижения колебаний межосевого расстояния назначен подшипник 6 класса
(6-207). Интенсивность радиальной нагрузки PRна посадочной поверхности
кольца:
PR=
∙K1∙K2∙K3=
∙1∙1∙1≈434,78
где PR - интенсивность нагружения, Н/мм;
R - постоянная нагрузка на подшипник, R=10 кН;
B - ширина кольца подшипника, B=23 мм;
K1 -
динамический коэффициент, K1=1;
K2 -
коэффициент, учитывающий степень ослабления натяга при полом вале или
тонкостенном корпусе, при сплошном вале K2=1;
K3 -
коэффициент, неравномерности распределения радиальной нагрузки между рядами
роликов в двухрядных роликоподшипниках или в сдвоенном шарикоподшипнике при
наличии осевой нагрузки на опору (однорядный подшипник при отсутствии
динамической нагрузки) перегрузка до 150% - K3=1,
перегрузка от 150% до 300 % - K3=1,8
1.2
Предельные размеры соединяемых деталей подшипникового узла
Предельные размеры колец подшипника, мм.
Наружное кольцо Ø120l6
Верхнее отклонение esdn=0
Нижнее отклонение eidn=-13 мкм
Допуск:
Tdn=esdn-eidn=0- (-13) =13 мкм
Предельные размеры:
dnmax=dn+esdn=120+0=120 мм
dnmin=dn+eidn=120+ (-0,013) =119,987 мм
Внутреннее кольцо Ø65L6
Верхнее отклонение ESDn=0
Нижнее отклонение EIDn=-12 мкм
Допуск TDn=ESDn-EIDn=0- (-12) =12 мкм
Предельные размеры:
Dnmax=Dn+ESDn=65+0=65 мм
Dnmin=Dn+EIDn=65+ (-0,012) =64,988 мм
Ширина кольца подшипника B=23 мм
Верхнее отклонение esB=0
Нижнее отклонение eiB=-120 мкм
Допуск TB=esB-eiB=0- (-120) =120 мкм
Предельные размеры:
Bmax=B+esB=23+0=23 мм
Bmin=B+eiB=23+ (-0,12) =22,88 мм
Предельные размеры отверстия в корпусе Ø120G7, мм по ГОСТ 25346-89:
Допуск TD=35 мкм
Нижнее отклонение EI=12 мкм
Верхнее отклонение ES=EI+TD=12+35=+47 мкм
Предельные размеры:
Dmax=D+ES=120+0,047=120,047 мм
Dmin=D+EI=120+0,012=120,012 мм
Предельные размеры вала Ø65k6
Допуск Td=19 мкм
Нижнее отклонение ei=+2 мкм
Верхнее отклонение es=ei+Td=+2+19=21 мкм
Предельные размеры:
dmax=d+es=65+0,021=65,021
ммmin=d+ei=65+0,002=65,002 мм
1.3
Характеристики посадок подшипников качения
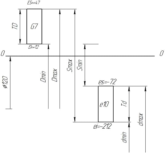
Посадка наружного кольца в корпус Ø120G7/l6 (рисунок 1)
Smax=Dmax-dnmin=120,047-119,987=0,06ммmin=Dmin-dnmax=120,012-120=0,012
ммm= (Smax+Smin) /2= (0,06+0,012)
/2=0,036 мм
Допуск посадки:
TS=Smax-Smin=0,06-0,012=0,048 мм
Проверка:
TS=TD+Tdn=0,035+0,013=48 мкм
Посадка внутреннего кольца на вал Ø65L6/k6 (рисунок 2)
Nmax=dmax-Dnmin=65,021-64,988=0,033 мм
Nmin=dmin-Dnmax=65,002-65=0,002 мм
Nm= (Nmax+Nmin) /2= (0,033+0,002)
/2=0,0265 мм
TN=Nmax-Nmin=0,033-0,002=0,031 мм
Проверка:
TN=Tdn+Td=0,019+0,012=31 мкм
Рисунок 1 - Посадка наружного кольца в корпус Ø120G7/l6
Рисунок 2 - Посадка внутреннего кольца на вал Ø65L6/k6
Рисунок 3 - Сопряжение подшипника качения с валом и корпусом
1.4 Выбор
посадки втулки на вал (рисунок 5)
Условия сборки и эксплуатации:
для обеспечения нормальной работы и сборки между втулкой и
валом должен быть минимальный зазор (Smin=10…25 мкм).
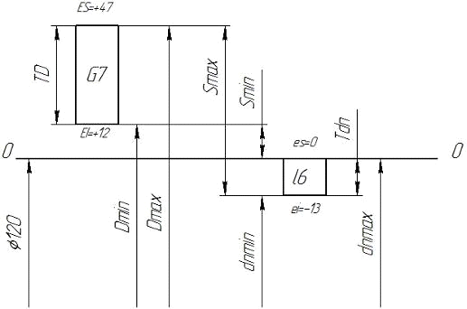
Выбор поля допуска втулки для посадки на вал Ø65F10/k6
Предельные размеры втулки Ø65F10, мм по ГОСТ 25346-89
Допуск TD=120 мкм
Нижнее отклонение EI=+30 мкм
Верхнее отклонение ES=EI+TD=120+30=+150 мкм
Предельные размеры:
Dmax=D+ES=65+0,150=65,150 мм
Dmin=D+EI=65+0,03=65,03 мм
Характеристики посадки Ø65F10/k6, мм
Smax=Dmax-dmin=65,150-65,002=0,148
ммmin=Dmin-dmax=65,03-65,021=0,009
ммm= (Smax+Smin)
/2= (0,148+0,009) /2=0,0785 мм=Smax-Smin=0,148-0,009=0,139 мм
Проверка:
TS=TD+Td=0,12+0,019=0,139 мм
Рисунок 4 - Посадка втулки на вал Ø65F10/k6
1.5 Выбор
посадки крышки в корпус
Условия сборки и эксплуатации: для обеспечения нормальной
работы и сборки минимальный зазор между корпусом и втулкой должен быть в
пределах Smin=80…100 мкм.
Выбор поля допуска крышки для посадки в корпус: учитывая
размеры отверстия корпуса Ø120G7, выбирается поле
допуска крышки по ГОСТ 25346-89.
EI=+12 мкм
es=-72 мкмmin=EI-es=12- (-72) =84 мкм
Посадка крышки в корпус Ø120G7/e10
Предельные отклонения крышки Ø120e10, по ГОСТ 25346-89:
Допуск Td=140 мкм
Верхнее отклонение es=-72 мкм
Нижнее отклонение ei=es-Td=-72- (+140) =-212 мкм
Предельные размеры, мм:
dmax=d+es=120+ (-0,072) =119,928 мм
dmin=d+ei=120+ (-0,212) =119,788
Характеристики посадки Ø120G7/e10, мм (рисунок 5):
Smax=Dmax-dmin=120,047-119,788=0,259ммmin=Dmin-dmax=120,012-119,928=0,084ммm= (Smax+Smin)
/2= (0,259+0,084) /2=0,1715мм=Smax-Smin=0,259-0,084=0,175
Проверка:
TS=TD+Td=0,035+0,140=0,175 мм
Рисунок 5 - Посадка крышки в корпус Ø120G7/e10
1.6 Расчет
исполнительных размеров калибров
1.5.1 Ø120G7 (калибр-пробка)
По ГОСТ 24853 - 81 для отверстия Ø120 мм, квалитет допуска которого 7, определим допуски и отклонения
рабочих калибров:
Z=0,005 мм
Y=0,004 мм
H=0,006 мм
Размеры проходной части калибра:
ПРmax=Dmin+Z+H/2=120,012+0,005+0,003=120,02 мм
ПРmin=Dmin+Z-H/2=120,012+0,005-0,003=120,014 мм
ПРизн=Dmin-Y=120,012-0,004=120,008 мм
Размеры непроходной части калибра:
НЕmax=Dmax+H/2=120,047+0,003=120,05 мм
НЕmin=Dmax-H/2=120,047-0,003=120,044 мм
Исполнительные размеры калибра:
ПРисп=ПРmax-H=120,02-0,006
мм, НЕисп=НЕmax-H=120,05-0,006
мм
.5.2 Ø65k6 (калибр-скоба)
По ГОСТ 24853-81 для вала Ø65 мм, квалитет допуска которого
6, определим допуски и отклонения рабочих калибров:
Z1=0,004 мм
Y1=0,003 мм
H1=0,005 мм
Размеры проходной части калибра:
ПРmax=dmax-Z+H1/2=65,021-0,004+0,0025=65,0195 мм
ПРmin=dmax-Z-H1/2=65,021-0,004-0,0025=65,0145 мм
ПРизн=dmax-Y1=65,021-0,003=65,018 мм
Размеры непроходной части калибра:
НЕmax=dmin+H1/2=65,002+0,0025=65,0045
НЕmin=dmin-H1/2=65,002-0,0025=64,9995
Исполнительные размеры калибра:
ПРисп=ПРmin+H=65,0145+0,005
мм
НЕисп=НЕmin+H=64,995+0,005
мм
Рисунок 6 - Схема расположения полей допуска калибра-пробки Ø120G7
Рисунок 7 - Схема расположения полей допуска калибра-скобы Ø65k6
2. Выбор
посадок резьбового соединения
По ГОСТ 24705-81 резьба M12 имеет размеры (таблица
1):
Таблица 1 - Параметры резьбы
|
Параметр
|
Гайка
|
Болт
|
|
Обознач-е
|
Величина
|
Обознач-е
|
Величина
|
|
Шаг мелкий
|
P
|
1,5
|
P
|
1,5
|
|
Наружный
диаметр
|
D
|
12,000
|
d
|
12,000
|
|
Средний диаметр
|
D2
|
11,026
|
d2
|
11,026
|
|
Внутренний
диаметр
|
D1
|
10,376
|
d1
|
10,376
|
|
Угол профиля
|
α
|
60°
|
α
|
60°
|
2.1 Выбор
длины свинчивания
Учитывая размер длины ввинчивания резьбы в корпусе, выбираем
длину свинчивания 10 мм по ГОСТ 16093-81.
2.2 Выбор
класса точности
Назначение резьбы - крепежная. Гнездо - глухое. Нагрузка -
статическая.
Выбираем крепежную резьбу среднего класса точности.
2.3 По ГОСТ
16093-81 для резьбы среднего класса точности с длиной свинчивания 10, назначаем
следующие поля допусков (таблица 2)
Таблица 2 - Поля допусков резьбовых деталей
|
Диаметр резьбы
|
Величина
диаметра
|
Поле допуска
гайки
|
Поле допуска
болта
|
|
Средний
|
D2
(d2) =11,026
|
6H
|
6g
|
|
Наружный
|
D
(d) =12,000
|
не нормируется
|
6g
|
|
Внутренний
|
D1
(d1) =10,376
|
6H
|
не нормируется
|
2.4
Обозначение резьбовых соединений
На рабочих чертежах:
Гайка M12x1,5-6H
Болт M12x1,5-6g
На сборочном чертеже:
М12x1,5-6H/6g
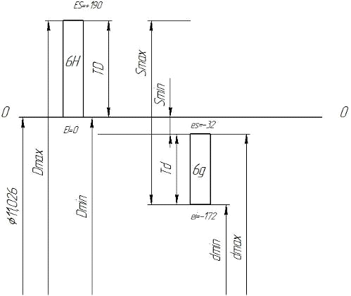
2.5
Предельные размеры и отклонения среднего диаметра резьбовых деталей
Предельные отклонения по ГОСТ 16093-81.
Таблица 3 - Предельные отклонения среднего диаметра резьбы
|
Наименование
отклонения
|
Отклонения
|
|
Гайка Ø11,026 6H
|
Болт Ø11,026 6g
|
|
Нижнее
|
EID2=0
|
eid2=-172
|
|
Верхнее
|
ESD2=+190
|
esd2=-32
|
|
Допуск
|
TD2=+190
|
Td2=140
|
Предельные размеры, мм
Для гайки:
D2max=D2+ESD2=11,026+0,
19=11,216 мм
D2min=D2+EID2=11,026+0=11,026
мм
Для болта:
d2max=d2+esd2=11,026+
(0,032) =10,994 мм2min=d2+eid2=11,026+
(-0,172) =10,854 мм
Характеристики
посадки по среднему диаметру Ø11,026 мм
Smax=D2max-d2min=11,216-10,854=0,362
ммmin=D2min-d2max=11,026-10,994=0,032
ммm= (Smax+Smin) /2=
(0,362+0,032) /2=0, 197 мм=Smax-Smin=0,362-0,032=0,33мм
Проверка:
TS=TD2+Td2=0,
190+0,140=0,33мм
Рисунок 5 -
Посадка резьбового соединения по среднему диаметру Ø11,026 6H/6g
3. Выбор
посадок шлицевого соединения
Определение размеров деталей шлицевого соединения
Наружный диаметр D=72 мм;
Внутренний диаметр d=62 мм;
Ширина боковых сторон шлица b=12 мм;
Число зубьев z=8.
Условия работы шлицевого соединения
Соединение - неподвижное.
Нагружение - умеренное.
Выбор вида центрирования
Учитывая условия работы и конструкцию узла выбираем способ
центрирования по наружному диаметру D.
Выбор посадок
Таблица 4 - Посадки шлицевого соединения
|
Вид соединения
|
Посадки
|
|
по
центрирующему диаметру (D)
|
по боковым
сторонам зубьев (b)
|
|
Неподвижное
|
Ø72H7/Js6
|
12H8/Js7
|
Обозначение шлицевых соединений
D-8x62x72
x12
На рабочем чертеже:
шлицевая втулка: D-8x62x72H7x12H8;
шлицевой вал: D-8x62x72Js6x12Js7.
Допуски, предельные отклонения и размеры шлицевых деталей
D-8x62x72
x12
Таблица 5 - Допуски и предельные отклонения
|
Наименование
параметра
|
Наименование
детали
|
|
Шлицевая втулка
|
Шлицевой вал
|
|
Центрирующий
диаметр D
|
|
Обозначение
|
Ø72H7
|
Ø72Js6
|
|
Допуск, мкм
|
TD’=30
|
Td=19
|
|
Нижнее
отклонение, мкм
|
EID’=0
|
ei=-9,5
|
|
Верхнее
отклонение, мкм
|
ESD’=+30
|
es=+9,5
|
|
По боковым
сторонам зубьев b
|
|
Обозначение
|
12H8
|
12Js7
|
|
Допуск, мкм
|
TB=27
|
Tb=18
|
|
Нижнее
отклонение, мкм
|
EIB=0
|
ei=-9
|
|
Верхнее
отклонение, мкм
|
ESB=+27
|
es=+9
|
Предельные размеры параметров шлицевых деталей, мм
По центрующему диаметру D
Шлицевая втулка Ø72H7
D’max=D’+ESD’=72+ (+0,030) =72,030 мм
D’min=D’+EID’=72+0=72 мм
Шлицевой вал Ø72Js6
dmax=d+es=72+ (+0,0095) =72,0095 мм
dmin=d+ei=72+ (-0,0095) =71,9905 мм
По боковым сторонам зубьев. Шлицевая втулка 12H8
Bmax=B+ESB=12+ (0,027) =12,027 мм
Bmin=B+EIB=12+0=12 мм
Шлицевой вал 12Js7
bmax=b+esb=12+ (0,009) =12,009 мм
bmin=b+eib=12+ (-0,009) =11,991 мм
Характеристики посадок шлицевого соединения
Для заданного шлицевого соединения по центрирующему диаметру Dназначена переходная
посадка
Ø72
, Smax=D’max-dmin=72,030-71,9905=0,0395
ммmax=dmax-D’min=72,0095-72=0,0095
ммm= (Smax+Nmax) /2=
(0,0395+0,0095) /2=0,0245 мм(N) =Smax+Nmax=0,0395+0,0095=0,049
мм
Проверка:
TS=TD’+Td=0,030+0,019=0,049 мм
По боковым сторонам зубьев bназначена переходная посадка 12
Smax=Bmax-bmin=12,027-11,991=0,036 мм
Nmax=bmax-Bmin=12,009-12=0,009 мм
Sm= (Smax+Nmax) /2=
(0,036+0,009) /2=0,0225 мм(N) =Smax+Nmax=0,036+0,009=0,045
мм
Проверка:
TS=TB+Tb=0,027+0,018=0,045 мм
Схемы полей допусков посадок шлицевого соединения
Рисунок 6 - Посадка по центрирующему диаметру D Ø72H7/Js6
Рисунок 7 - Посадка по боковым сторонам зубьев b 12H8/Js7
4. Расчет
размерных цепей
|
Размерная цепь
|
|
P, %
|
λ
|
A1
|
A2
|
A3
|
A4
|
A5
|
A∆
|
|
0,27
|
1/6
|
160
|
13
|
23
|
32
|
36
|
1-0,45
|
4.1 Расчет
размерной цепи по методу максимума-минимума (полная взаимозаменяемость)
Определение параметров исходного звена
Исходным звеном размерной цепи служит осевой зазор A∆имеющий параметры A∆=1-0,45
Верхнее отклонение ES (A∆) =0
Нижнее отклонение EI (A∆) =-450 мкм
Допуск звена - TA∆:
TA∆=ESA∆-EIA∆=0- (-0,45) =0,45 мм
Допуск T (A∆) =450 мкм
Координаты середины поля допуска
Ec (A∆) = (ESA∆+EIA∆) /2= (0+ (-450)) /2=-225
Определение параметров исходного звена
посадка размерная цепь соединение
Рисунок 8 - Схема размерной цепи
Передаточные отклонения:
ξ=+1 - имеют увеличивающие Aув звенья
ξ=-1 - имеют уменьшающие Aум звеья размерной цепи
Таблица 6 - Анализ звеньев размерной цепи
|
Звено
|
Наименование
звена размерной цепи
|
Перед. откл. ξ
|
Размеры
звеньев, ммAj
|
|
|
|
по варианту
|
по ГОСТ 6636-69*
|
|
|
Ширина кольца
подшипника
|
-1
|
23
|
23
|
|
|
Длина вала
|
-1
|
32
|
32
|
|
|
Длина вала
|
-1
|
36
|
36
|
|
|
Длина вала
|
-1
|
32
|
32
|
|
|
Ширина кольца
подшипника
|
-1
|
23
|
23
|
|
|
Длина корпуса
|
+1
|
160
|
160
|
|
|
Выступ крышки
|
-1
|
13
|
13
|
Уравнение размерной цепи (рисунок 8):
A∆=
- 
- 
- 
- 
+ 
- 
Правильность назначенных размеров проверим по уравнению
номинальных размеров
A∆=
∙Aj=-23-32-36-32-23+160-13=1
Определение квалитета составляющих звеньев размерной цепи
Таблица 7 - Определение параметров составляющих звеньев
размерной цепи
|
Составляющие
звенья. Величина размеров, мм
|
Интервал
размеров, мм
|
Единица
допуска, ij, мкм
|
Допуски
расчетные по T8, мкм (TA) j
|
Допуски
назначенные, TA’j,
мм
|
Характер
размера по ходу обработки
|
Координата
середины поля допуска Ec
(A), мкм
|
Размеры с
отклонениями, Aj, мм
|
|
1
|
2
|
3
|
4
|
5
|
6
|
7
|
8
|
|
 =23--120120вал-6023-0,120
|
|
|
|
|
|
|
|
|
 =3230-501,563939вал-19,532-0,039
|
|
|
|
|
|
|
|
|
 =3630-501,563939вал-19,536-0,039
|
|
|
|
|
|
|
|
|
 =3230-501,563939вал-19,532-0,039
|
|
|
|
|
|
|
|
|
 =23--120120вал-6023-0,120
|
|
|
|
|
|
|
|
|
 =160120-1802,526363отв. -417
|
|
|
|
|
|
|
|
|
 =1310-181,082727вал-13,513-0,027
|
|
|
|
|
|
|
|
A∆=1-0,45;

=8,28; 
=447;
A’∆=
T (A∆) ’=447
Расчет коэффициента "a" числа единиц допуска в допусках составляющих размерах:
a=
=
=
=25,36
где TA∆ - заданный допуск исходного звена;
TAпод -
стандартный допуск ширины подшипника;
k - количество подшипников (k=2)
Ближайший квалитет по результатам расчетов для коэффициента a=25,36 будет - IT8.
Для IT8 коэффициент a=25.
Проверка на удовлетворение условия:

∙100%≤ (3…5) %;

∙100%=-0,67%≤ (3…5) %
Характеристика размеров
Определение координат середин полей допусков составляющих звеньев
Для деталей "основные отверстия" координата середины
поля допуска будет равна:
Ec (Aj) =
=+
Для деталей "основные валы" координата середины поля
допуска будет равна:
Ec (Aj) =
=-
|
Aj
|
Taj
|
Ec
(Aj) =-
|
|
A3=23
|
TA3=120
|
Ec
(A3) =-60
|
|
A4=32
|
TA4=39
|
Ec
(A4) =-19,5
|
|
A5=36
|
TA5=39
|
Ec
(A5) =-19,5
|
|
A4=32
|
TA4=39
|
Ec
(A4) =-19,5
|
|
A3=23
|
TA3=120
|
Ec
(A3) =-60
|
|
A2=13
|
TA2=27
|
Ec
(A2) =-13,5
|
Координата середины поля допуска наибольшего размера или
специального компенсирующего звена определяется из уравнения координат
Ec (A∆) =
∙ξ+
∙ξ
=x+ (-60-19,5-19,5-19,5-60-13,5) ∙
(-1);
=x+192; x=-417
Данные расчетов заносим в графу 7 таблицы 7
Определение предельных отклонений составляющих звеньев
ES (A5) =EcA5+
=-417+
=-417+31,5=-385,5;(A5) =EcA5-
=-417-31,5=-448,5
Данные расчетов вносятся в графу 8 таблицы 7
Составление уравнения размерной цепи
A∆=-23-0,120-32-0,039-36-0,039-32-0,039-23-0,120+
-13-0,027
Проверка уравнения номинальных размеров:
A∆=-23-32-36-32-23+160-13=-159+160=1
Проверка уравнения точности:
T (A’∆)
=120+39+39+39+120+63+27=447
Проверка уравнения координат середины полей:
Ec (A∆) =-417+ (-60-19,5-19,5-19,5-60-13,5) ∙
(-1) =-225
Проверка предельных отклонений:
ES (A’∆) =-0,3855-
(-0,120-0,039-0,039-0,039-0,120-0,027) =-0,3855+0,384=-0,0015≤ES (A∆)
EI (A’∆) =-0,4485≥EI (A∆)
=-0,450
Расчетное исходное звено A’∆=
Вывод: Метод полной взаимозаменяемости (Min-Max) дает возможность максимального
приближения к заданной величине допуска исходного звена.
4.2 Расчет
размерной цепи по вероятностному методу (неполная взаимозаменяемость)
Используя данные предыдущего расчета, определяем квалитет
составляющих звеньев размерной цепи с учетом рассеивания размеров "λ" процентом риска "P”
Исходное звено A∆=1-0,45
По заданию: коэффициент относительного рассеяния λ’=1/6
допустимый процент риска P=0,27 %
Для данного процента риска коэффициент t=3
Таблица 8 - Определение параметров составляющих звеньев
размерной цепи
|
Состав звеньев.
Величина размеров Aj, мм
|
Интервал
размеров, мм
|
Квадрат
еденицы допуска i2, мкм2
|
Допуски
рассчитанные по T11 (TAj), мкм2
|
Квадрат
допусков по T11 (TAj2), мкм2
|
Допуски,
назначенные по T11 (TAj’), мкм
|
Квадрат назн.
допусков по T11 (TAj’2), мкм2
|
Характер
размера (отв-вал)
|
Координата
середины поля допуска EcAj,
мкм
|
Размеры с
отклонениями, мм
|
|
 =23--1201440012014400вал-6023-0,120
|
|
|
|
|
|
|
|
|
|
|
 =3230-502,43361602560016025600вал-8032-0,160
|
|
|
|
|
|
|
|
|
|
|
 =3630-502,43361602560016025600вал-8036-0,160
|
|
|
|
|
|
|
|
|
|
|
 =3230-502,43361602560016025600вал-8032-0,160
|
|
|
|
|
|
|
|
|
|
|
 =23--1201440012014400вал-6023-0,120
|
|
|
|
|
|
|
|
|
|
|
 =160120-1806,35042506250016025600--640
|
|
|
|
|
|
|
|
|
|
|
 =1310-181,6641101210011012100вал-5513-110
|
|
|
|
|
|
|
|
|
|
A∆=1-0,45; 
=15,3152; 
=180200; 
=143300; A’∆=
Определение квалитета составляющих звеньев
Расчет коэффициента "aср"
числа единиц допуска:
a=
=
=86,95
Для коэффициента a=86,95
ближайший квалитет IT11.
Проверка правильности рассчитанных допусков по уравнению точности:
T (A∆’) =t∙
=3∙
=520>TA∆
Штрихом отмечаются рассчитанные допуски.
Проверка выполнения условия взаимозаменяемости стандартными допусками:

; 
=15,6%>6%
Условие не выполняется.
Проводим выбор допуска для специального компенсирующего звена размерной
цепи.
При проверке выявлено, что условие взаимозаменяемости не выполнено
(15,6%>6%). Поэтому, для обеспечения взаимозаменяемости, назначаем
компенсирующим спецзвеном размер 
.
Для выполнения условия взаимозаменяемости находим и выбираем
другой допуск для звена 
размерной цепи по квалитету T10 T (A1) =160
Проверка правильности выбранных допусков:
T (A∆’) =t∙
=3∙
=464>TA∆
Проверка условия взаимозаменяемости стандартными допусками:

; 
=3,1%<6%
Условие взаимозаменяемости стандартными допусками выполняется.
Определение координат середины полей допусков составляющих
звеньев.
|
Aj
|
Taj
|
Ec
(Aj) =-
|
|
A3=23
|
TA3=120
|
Ec
(A3) =-60
|
|
A4=32
|
TA4=160
|
Ec
(A4) =-80
|
|
A5=36
|
TA5=160
|
Ec
(A5) =-80
|
|
A4=32
|
TA4=160
|
Ec
(A4) =-80
|
|
A3=23
|
TA3=120
|
Ec
(A3) =-60
|
|
A2=13
|
TA2=110
|
Ec
(A2) =-55
|
Координата середины поля допуска компенсирующего звена
определяется из выражения:
Ec (A∆) =
∙ξ+
∙ξ
=x+ (-60-80-80-80-60-55) ∙ (-1);
=x+415
x=-640
Определение предельных отклонений составляющих звеньев.
Для размеров - валов принимаем:
es=0;
ei=-Taj
Отклонения компенсирующего звена:
ES (A1) =EcA1+
=-640+
=-640+
=-560;(A1) =EcA1-
=-640-80=-720
Составление уравнения размерной цепи.
A∆=-23-0,120-32-0,160-36-0,160-32-0,160-23-0,120+
-13-0,110
Проверка правильности установленных допусков и отклонений.
Проверка уравнения координат:
Ec (A∆) =-640+ (-60-80-80-80-60-55) ∙ (-1)
=-640+415=-225
Проверка предельных отклонений исходного звена:
ES (A∆’) =Ec (A∆) +t∙
=-225+3∙
=+6,81
EI (A∆’) =Ec (A∆) - t∙
=-225-3∙
=-457
Исходное звено A’∆=
Вывод: Вероятностный метод расчета экономически более выгоден,
т.к. при менее точном квалитете составляющих звеньев (11 квалитет по сравнению
с 8-м по методу полной взаимозаменяемости) достигнута требуемая точность
исходного (замыкающего) звена.
Список
использованной литературы
1. Якушев
А.Н., Воронцов Л.И., Федотов И.М. Взаимозаменяемость, стандартизация и
технические измерения. - М.: Машиностроение, 1987, 352с. Серый И.С. Взаимозаменяемость,
стандартизация и технические измерения - М.: Колос, 1981, 351с, ил.
2. Дунаев
П.Ф., Лепиков О.П., Варламов Л.П. Допуски и посадки. Обоснование выбора. - М.:
Высшая школа, 1984, 112с.
. Ганевский
Г.М., Гольдин И.И. Допуски, посадки и технические измерения в машиностроении:
учеб. для ПТУ. - М.: Высшая школа, 1987, 270с, ил.
. Радкевич
Я.М., Лактионов Б.И. Метрология, стандартизация и взаимозаменяемость: Учебник
(в 4-х книгах) для ВУЗов. - М.: Издательство Московского горного университета,
2000.
. Тартаковский
Д.Ф., Ястребов А.С. Метрология, стандартизация и технические средства
измерений. - М.: Высшая школа, 2001, 297с.
. Козловский
Н.С., Виноградов А.Н. Основы стандартизации, допуски, посадки и технические
измереныя: Учебник для техникумов. - 2-е изд., перераб. и доп. - М.:
Машиностроение, 1982, 284с, ил.
Издания
ГОСстандарта:
7. ГОСТ
2.104-68 ЕСКД. Основные надписи.
8. ГОСТ
2.105-95 ЕСКД. Общие требования к текстовым документам.
. ГОСТ
25346-89 Основные нормы взаимозаменяемости. ЕСДП. Общие положения, ряды
допусков и основных отклонений.
. ГОСТ
25347-82. Основные нормы взаимозаменяемости. ЕСДП. Поля допусков и
рекомендуемые посадки.
. ГОСТ
8338-75 Подшипники шариковые, радиальные однорядные. Основные размеры.
. ГОСТ
520-89 Подшипники качения. Общие технические условия.
. ГОСТ
3325-85 Подшипники качения. Поля допусков и технические требования к посадочным
поверхностям валов и корпусов. Посадки.
. ГОСТ
24853-81 Калибры гладкие для размеров до 500 мм. Допуски.
. ГОСТ
11708-82 Основные нормы взаимозаменяемости. Резьба. Термины и определения.
. ГОСТ
8724-81 Основные нормы взаимозаменяемости. Резьба метрическая. Диаметры и шаги.
. ГОСТ
24705-81 Основные нормы взаимозаменяемости. Резьба метрическая. Основные
размеры.
. ГОСТ
24706-81 Основные нормы взаимозаменяемости. Резьба метрическая для
приборостроения. Основные размеры.
. ГОСТ
9150-81 Основные нормы взаимозаменяемости. Резьба метрическая. Профиль.
. ГОСТ
16093-81 Основные нормы взаимозаменяемости. Резьба метрическая. Допуски.
Посадки с зазором.
. ГОСТ
4608-81 Основные нормы взаимозаменяемости. Резьба метрическая. Посадки с
натягом.
. ГОСТ
24834-81 Основные нормы взаимозаменяемости. Резьба метрическая. Переходные
посадки
. ГОСТ
1139-80 Основные нормы взаимозаменяемости. Соединения шлицевые прямобочные. Размеры
и допуски.
. РД
50-635-87; 8-86 Цепи размерные. Основные положения. Термины, обозначения и
определения. Расчет плоских цепей. Г 02, 01.07.86
. ГОСТ
2.308-79 ЕСКД. Указание на чертежах допусков формы и расположения поверхностей.
. ГОСТ
25142-82 Шероховатость поверхности. Термины и определения.
. ГОСТ
2789-73 Шероховатость поверхности. Параметры и характеристики.
. ГОСТ
2309-73 ЕСКД. Обозначения шероховатости поверхностей.
. ГОСТ
6636-69 Основные нормы взаимозаменяемости. Нормальные линейные размеры.
. ГОСТ
24642-81 Основные нормы взаимозаменяемости. Допуски формы и расположения
поверхностей. Основные термины и определения.
. Смирнова
Т.М. Общие требования к содержанию и оформлению учебно-методической литературы
и других текстовых документов. Методические указания/ВКГТУ, Усть-Каменогорск,
2002, 26с.
. Дудкин
М.В. Выбор посадок и расчет размерных цепей. Учебное пособие по выполнению
курсовой работы по специальности 2803. - ВКГТУ. - Усть-Каменогорск, 2005, 115с.