Балочная клетка
МИНИСТЕРСТВО ОБРАЗОВАНИЯ И НАУКИ РФ
ФЕДЕРАЛЬНОЕ ГОСУДАРТСВЕННОЕ БЮДЖЕТНОЕ
ОБРАЗОВАТЕЛЬНОЕ УЧРЕЖДЕНИЕ
ВЫСШЕГО ПРОФЕССИОНАЛЬНОГО ОБРАЗОВАНИЯ
МАГНИТОГОРСКИЙ ГОСУДАРСТВЕННЫЙ
ТЕХНИЧЕСКИЙ УНИВЕРСИТЕТ им. Г.И. НОСОВА
Кафедра строительных конструкций
Курсовая работа
Расчетно-пояснительная записка
По дисциплине «Металлические
конструкции»
На тему: «Балочная клетка»
Исполнитель:
Юхлова О.С., студент 5 курса, гр. 2903-1
Руководитель:
Емельянов О.В. профессор
Магнитогорск
Содержание
.
Исходные данные
.
Расчет прокатной балки настила
.
Расчет главной балки
.
Расчет центрально-сжатой колонны
.1
Расчет оголовка
.2
Расчет планок
.3
Расчет базы колонны
Литература
1. Исходные
данные
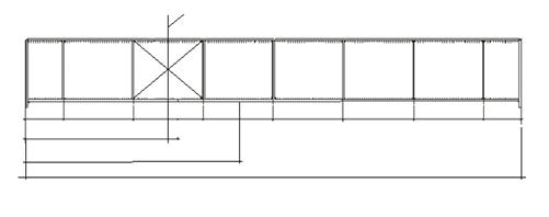
При выполнении курсовой работы выполняется расчет и проектирование балочной
клетки нормального типа (рисунок 1)
Рисунок
1. Схема балочной клетки нормального типа
А
- монтажная схема; Б - поперечный разрез
Пролет
главной балки L = 15 м = 1500 см;
Пролет
балки настила l = 6 м = 600 см;
Шаг
балок настила a = 2,5 м = 250 см;
Отметка
верха настила h = 9 м = 900 см;
Постоянная
нормативная поверхностная равномерно распределенная нагрузка на перекрытие gн =
220 кг/м2 = 0,022 кг/см2;
Временная
нормативная поверхностная равномерно распределенная нагрузка на перекрытие pн =
2300 кг/м2 = 0,23 кг/см2;
Тип
сопряжения балок настила с главной балкой - этажное
Тип
сопряжения главной балки с колонной - опирание сверху
Тип
сечения колонны - сквозное
. Расчет
прокатной балки настила
Рисунок
2. Расчетная схема балки настила
1. Нормативная погонная равномерно-распределенная нагрузка на балку
(рис.2).
кг/см;
2. Расчетная погонная равномерно-распределенная нагрузка на балку
(рис.2)
3. Расчетный максимальный изгибающий момент в середине пролета
кг см;
4. Расчетная поперечная сила на опоре
кг;
5. Определяем
по таблице 50* СНиП II-23-81* [1] к какой группе относится рассчитываемая
конструкция и выбираем класс стали. По таблице 51*[1] определяем расчетное
сопротивление
, соответствующее выбранному классу стали.
кг/см2
(Выбрали
С285 I группы ГОСТ 27772-88 толщина фасона 10-20 мм);
6. Из условия равенства в крайних волокнах балки нормальных
напряжений расчетному сопротивлению стали определяем минимальное значение
требуемого момента сопротивления балки.
,
где
коэффициент условий работы (табл 6*[1]) (пункт 8)
см3;
см3;
. По
сортаменту подбираем номер прокатного двутавра из условия
(I предельное состояние);
Выбираем номер прокатного двутавра № 45:
h=450 мм
A=84,7 см2 Wx=
1231 см3=160 мм
Масса 1 м = 66,5 кг ix=
18,1 см
d=9 мм
Sx=708 см3
t=14,2
мм Ix=27696
см4 Iy=808
см4
Wy=101 см3
iy=3,09 см It=75,4
см4
8. Проверяем прочность сечения балки по касательным напряжениям (I предельное состояние).
где
-
расчетное сопротивление стали срезу (табл. 1[1])
кг/см2;
кг/см2;
кг/см2;
Проверяем:
условие
выполняется.
9. Проверка жесткости балки (II предельное состояние):
,
где
модуль упругости стали;
предельно
допустимый прогиб балки (СниП 2.01.07 - 85 [2]).
см;
Проверка:
6м
1/200
. Расчет
главной балки
Рисунок
3. Расчетная схема главной балки
При определении нагрузки на главную балку в курсовой работе принимаются
следующие допущения: действие сосредоточенных сил (опорных реакций прокатных
балок настила) заменяется эквивалентной погонной нагрузкой, приложенной вдоль
верхнего пояса главной балки.
. Нормативная погонная равномерно-распределенная нагрузка на балку
(рис.3).
кг/см;
2. Расчетная погонная равномерно-распределенная нагрузка на балку
(рис. 3).
кг/см;
Расчетный максимальный изгибающий момент в середине пролета
Расчетная
максимальная поперечная сила на опоре
кг;
. Определяем
по таблице 50* [1], к какой группе относится рассчитываемая конструкция и
выбираем класс стали. По таблице 51* [1] определяем расчетное сопротивление
, соответствующее выбранному классу стали.
С285
ГОСТ 27772-88
кг/см2;
4. Определяем высоту главной балки, и выполняем компоновку сечения.
Рисунок
4. Поперечное сечение главной балки
а) Из условия равенства в крайних волокнах балки нормальных напряжений
расчетному сопротивлению стали определяем минимальное значение требуемого
момента сопротивления балки.
,
где
коэффициент условий работы (табл. 6* [1]);
коэффициент,
учитывающий собственную массу главной балки
Таблица 1
|
Пролет главной балки, м
|
9 101214151618
|
|
|
|
|
|
|
Коэффициент 1,021,031,041,0451,051,06
|
|
|
|
|
|
|
кг/см2;
см3;
см3;
№
600×230 60Б
b = 229,4 мм
б) Определяем толщину стенки, предварительно задав ее высоту
Принимаем
толщину стенки в соответствии с величинами, приведенными в сокращенном
сортаменте.
в) Определяем высоту главной балки из условий прочности
см;
г)
Определяем высоту главной балки из условия жесткости (для малоуглеродистой
стали):
д)
Назначаем высоту главной балки по наибольшему значению.
е)
Назначаем толщину пояса
. При этом должны выполняться следующие условия:
и
мм
мм 
мм
Условие выполняется.
Принимаем
толщину пояса
ж)
Вычисляем требуемую высоту стенки главной балки.
см.
з)
Принимаем высоту стенки главной балки кратно 50 мм с округлением в большую
сторону.
Принимаем
см - высота стенки главной балки.
При
этом
см.
и)
Определяем ширину пояса главной балки из условий:
обеспечения
нормальных условий монтажа
мм;
обеспечения
местной устойчивости сжатого пояса балки
,
где
см;
;
обеспечения
прочности главной балки
Назначаем ширину пояса кратно 10 мм с округлением в большую сторону. При
этом должно соблюдаться следующее условие:
и
;
Принимаем
см. (приложение 2 -методичка)
5. Определяем фактические геометрические характеристики сечения
главной балки:
- момент инерции:
момент
сопротивления
;
см3;
;
Условие выполняется.
6. Проверяем прочность и общую устойчивость главной балки:
- по нормальным напряжениям
;
кг/см2;
кг/см2;
Проверяем:
Условие выполняется.
по
касательным напряжениям
,
кг/см2;
кг/см2;
где
- расчетное сопротивление стали срезу (таблица 1*
[1]).
кг/см2;
Проверяем:
Условие выполняется.
проверка
общей устойчивости главной балки выполняется в соответствии с требованиями п.
2.16: [1]. В случаях, не оговоренных в п 5.16*, проверка общей устойчивости
выполняется по формуле (34*) [1].
;
см;
Проверяем:
Условие выполняется, проверку на общую устойчивость
делать не нужно.
7. Проверка жесткости ( II предельное состояние)(табл. 19 СНиП Нагрузки и воздействие)
где
кг/см2 - модуль упругости стали;
-
предельно допустимый прогиб балки [2].
см;
;
балка настил пролет прогиб
Проверяем:
Условие выполняется.
8. Расчет прочности швов соединения пояса со стенкой.
- вычисляем статический момент пояса
см3;
определяем
погонное сдвигающее усилие
кг/см;
проверяем
прочность сварных швов
Вид
соединения: тавровое с двусторонними угловыми швами; нахлестное и угловое;
Вид
сварки: автоматическая
по
металлу шва:
Материалы
для сварки по ГОСТ 9467-75*: Э42
Марка
проволоки: Св-08
;
;
Условие выполняется.
по
металлу границы сплавления:
;
;
Условие выполняется.
где
- коэффициенты, учитывающие технологию сварки
(таблица 34 [1]);

-
коэффициенты, учитывающие технологию сварки (таблица 34);
см -
минимальный расчетный катет шва (таблица 38 [1]);
кг/см2 -
расчетное сопротивление сварных соединений по металлу шва (таблица 3,56*
совместно с таблицей 55*[1]);
кг/см2;
- расчетное сопротивление сварных соединений по металлу границы сплавления
(таблица 3. совместно с таблицей 55* [1]);
-
коэффициент условий работы шва (п. 11.2*[1]);
-
коэффициент условий работы (таблица 6 [1]);
При недостаточной прочности сварных швов необходимо увеличить расчетный
катет или принять сварочные материалы, имеющие более высокие прочностные
характеристики. Предельно допустимые значения расчетных катетов сварных швов
указаны в п. 12.8 [1].
9. Расчет опорного ребра жесткости главной балки (рис. 4).
-
назначаем ширину опорного ребра жесткости
мм (из
конструктивных соображений);
- вычисляем толщину опорного ребра жесткости из расчета на смятие торца
ребра
,
где
кг/см2; - расчетное сопротивление
смятию
торцевой поверхности (таблица 1* [1]);
Назначаем
толщину опорного ребра жесткости в соответствии с сортаментом с округлением в
большую сторону. 
;
;
Условие выполняется.
Опорная часть балки составного сечения
Рисунок
5. Конструкция опорного ребра жесткости главной балки
проверяем
опорный участок балки на устойчивость из плоскости балки как условный опорный
стержень, в расчетное сечение которого помимо опорного ребра включена часть
стенки шириной
:
площадь
опорного ребра
момент инерции
радиус
инерции
см;
гибкость
стержня
устойчивость
опорного участка главной балки
где
- коэффициент продольного изгиба (таблица 72 [1]).
кг/см2;
кг/см2;
Проверяем:
;
Условие выполняется.
10. Проверка местной устойчивости стенки главной балки.
- определяем условную гибкость стенки балки
;
Расстояние
между основными поперечными ребрами не должно превышать
при
Размеры
поперечного ребра жесткости.
,
назначаем
см;
Назначаем
Стенку
главной балки следует укреплять поперечными ребрами жесткости в соответствии с
требованиями п. 7.10 [1] следует проверить местную устойчивость стенки главной
балки согласно п. 7.4*
7.9 [1].
П.7.4
расчет на устойчивость стенок балок симметричного сечения, укрепленных только
поперечными основными ребрами жесткости, при отсутствии местных напряжений (
) и условной гибкости стенки.
, то
следует выполнять по формуле:
;
;
;
;
;
-
отношение большей стороны пластинки к меньшей
;
см;
см;
;
и
-ширина и толщина сжатого пояса балки;
- коэф.,
принимаемый по табл. 22
;
;
d - меньшая из
сторон пластинки (
или
)
кг/см2;
-
условие выполняется
вычисляем
расчетный изгибающий момент в «опасном» сечении (рис 4)
вычисляем
расчетную поперечную силу в отсеке (рис 4)
кг;
Рисунок
6. Схема для определения расстояний до наиболее напряженного сечения стенки
главной балки
вычисляем
нормальное напряжение и среднее касательное напряжения в «опасном» сечении по
формуле (72) и (73) [1].
, где
см;
кг/см2;
кг/см2;
Расчет
укрупнительного стыка главной балки на высокопрочных болтах
Рисунок 7. Деление балки на отправочные элементы
11. Расчет укрупнительного стыка главной балки на высокопрочных
болтах.
Пояса и стенки балки перекрываются накладками (рис 5). При этом площадь
поперечного сечения накладок должна быть не меньше площади поперечного сечения
соединяемых элементов.
изгибающий момент:
,
где
z - расстояние до стыка, в нашем случае:
кг/см;
поперечная
сила:
кг;
Расчет
накладок по поясам.
Определяем
момент инерции поясов относительно нейтральной оси.
Вычисляем
момент, воспринимаемый поясами.
кг/см;
Определяем
усилие, приходящееся на накладку пояса.
кг;
По
таблице 61 [1] назначаем диаметр и марку стали высокопрочного болта.
мм, 40Х
«селект»
;
Определяем
расчетное сопротивление растяжению высокопрочного болта по п. 3.7 [1].
кг/см2;
-
наименьшее временное сопротивление болта разрыву, принимаемое по табл.6е*
По
СНиП вычисляем расчетное усилие, воспринимаемое каждой поверхностью трения
соединяемых элементов, стянутых одним высокопрочным болтом по формуле (131*)
[1].
, где
-
коэффициент трения принимаемый по табл . 36*;
-
коэффициент надежности;
см2 -
площадь сечения болта нетто, определяем по табл. 62*;
-
коэффициент условий работы соединения, зависящий от кол-ва n
болтов, необходимых для восприятия расчетного усилия, и принимаемы равный
кг;
Назначили,
что количество болтов
Определяем
количество высокопрочных болтов, необходимых для установки на половине накладки
пояса.
назначаем
= 1
Расчет
накладок по стенке(рис. 28)
Накладки
устанавливаются по обе стороны стенки (рис 6), поэтому в расчете необходимо
учесть две плоскости трения.
При
расчете накладок по стенке необходимо предварительно задаться количеством
болтов и разместить их на накладке, согласно таблице 39 [1].
Назначаем
n=14
Вычисляем
момент инерции стенки.
см4;
Определяем
момент, приходящийся на стенку.
кг/см;
Расстояние
между краем накладки и серединой болта
,
. Принимаем расстояние равное 75 мм = 7,5 см.
Расстояние
между центрами болтов в любом направлении 
. Принимаем расстояние равное 850 мм = 85 см.
Число
болтов
штук.
Рисунок 8. Укрупнительный стык балки составного сечения на высокопрочных
болтах
см2;
Вычисляем
усилие, приходящееся на наиболее нагруженные крайние болты.
, где
-
расстояние между крайними болтами;
n - кол-во
болтов, на половине накладки по стенке;
m - кол-во
вертикальных рядов высокопрочных болтов, на половине накладки по стенке;
-
расстояние между горизонтальными рядами болтов, равноудаленных от середины
балки;
кг;
Условие выполняется.
. Расчет
центрально-сжатой колонны
. Определяем геометрическую длину колонны.
см;
Где
- отметка верха настила;
- высота
балки настила (по сортаменту);
- высота
главной балки;
-
толщина настила;
-
заглубление базы колонны (0,6
0,8 м)
2. Определяем расчетные длины колонны
см;
см;
Где
- коэффициенты приведения геометрической длины к
расчетной, зависящие от условий закрепления оголовка и базы колоны (тадлица 71,
а [1]).
.
Продольная сила, действующая в колонне (без учета собственного веса), равна для
колонны среднего ряда сумме опорных реакций главных балок, опирающихся на нее.
кг.
.
Определяем по таблице 50* [1], к какой группе относится рассчитываемая
конструкция и выбираем класс стали. По таблице 51 [1] определяем расчетное
сопротивление
, соответствующие выбранному классу стали.
Сталь:
С285
Фасон:
прокат
кг/см2;
.
Определяем требуемую площадь сечения стержня колонны:
.1.
Задаем гибкость стержня колонны
, по
таблице 72 [1] определяем
.
5.2. Вычисляем требуемую площадь поперечного сечения.
см2;
.3. Проектируем поперечное сечение стержня колонны:
5.3.1. Стержень сквозной колонны обычно состоит из двух ветвей (швеллеров
и двутавров), связанных между собой решетками. Ось пересекающая ветви,
называется материальной. Ось параллельная ветвям, называется свободной.
По
сортаменту подбираем номер профиля ветви
;
см2;
Назначаем:
двутавр
Номинальный
размер профиля: 350Х155мм, № профиля: 35Б3
h=352,4 мм b=155,5
мм d=6,5 мм t=11,5мм
A=59,5 см2
Ix=12930 см4 Wx=734
см3 ix=14,7 см Sx=411 см3
Iy=735 см4 Wy=94,5
см3 iy=3,52 см.
5.3.2. Определяем гибкость стержня колонны относительно материальной оси.
;
где
- радиус инерции подобранного профиля;
по
таблице 72 [1] определяем коэффициенты продольного изгиба
;
5.3.3. Проверяем устойчивость стержня колонны относительно материальной
оси.
;
кг/см2;
;
кг/см2;
Условие выполняется.
.3.4.
Для сквозной колонны определяем расстояние между ветвями из условия обеспечения
равноустойчивости стержня колонны.
Где
принимаем сами
- момент
инерции ветви относительно оси У(по сортаменту);
-
площадь сечения ветви.
.3.5.
Назначаем ширину сечения колонны b кратно 10 мм с округлением в большую сторону:
для
сечения из двутавров наибольшее из двух значений.
(по
сортаменту)
Принимаем
см.
6. Определяем геометрические характеристики колонны.
момент инерции сечения сквозной колонны относительно свободной оси.
см4;
Где
- расстояние между ветвями колонны (для сечения из
швеллеров
из двутавров
).
.1.
Радиус инерции
см.
для
колонн сквозного сечения
.
Определяем по таблице 72 [1] коэффициент продольного изгиба
.
;
.
Проверяем устойчивость стержня колонны относительно свободной оси.
;
кг/см2;
Условие выполняется.
.1 Расчет
оголовка
Рисунок
9. Конструкция оголовка центрально-сжатой колонны сквозного сечения
8.1. Определяем размеры опорного ребра:
- задаемся высотой опорного ребра;
см;
назначаем
высоту опорного ребра кратно 10 мм с округлением в большую сторону.
см;
определяем
толщину опорного ребра из условия сопротивления на смятие под полным опорным
давлением;
;
;
см;
Где
- расчетное сопротивление смятию (таблица 1 [1]);
назначаем
толщину опорного ребра согласно сокращенного сортамента.
Принимаем
Э42
С285
Вид
соед.: тавровое
Вид
сварки: ручная
Марка
проволки: Св-08-9 ГОСТ 2246-70
8.2. Определяем высоту оголовка из условия работы
- угловых швов на срез:
по металлу шва;
по
металлу границы сплавления;
где
- коэффициенты, учитывающие технологию сварки
(таблица 34 [1]);
см -
минимальный расчетный катет шва (таблица 38 [1]);
кг/см2 -
расчетное сопротивление сварных соединений по металлу шва (таблица 3,56*
совместно с таблицей 55*[1]);
кг/см2;
- расчетное сопротивление сварных соединений по металлу границы сплавления
(таблица 3. совместно с таблицей 55* [1]);
-
коэффициент условий работы шва (п. 11.2*[1]);
-
коэффициент условий работы (таблица 6 [1]);
среза
стенки ветви;
;
кг/см2;
см;
Где
d - толщина стенки проката ветви(с сортамента);
-
расчетное сопротивление стали срезу (таблица 1* [1]).
Из
трех значений высоты оголовка
принимаем
наибольшее
см.
.2 Расчет
планок
Планки обеспечивают совместную работу стержня колонны. Планки создают в
плоскости грани колонны безраскосную систему с жесткими узлами и элементами,
работающими на изгиб. Сжатые колонны с безраскосной решеткой представляют собой
рамную систему.
При одинаковых расстояниях между планками и одинаковой их мощности
приближения можно принимать, что нулевые точки моментов расположены в середине
планок по их длине и посередине расстояние между планками в ветвях колонны. В
нулевых точках действуют поперечные силы, возникающие от изгиба стержня.
Рисунок
10. Схема размещения планок
.1
Определяем ширину и толщину планки:
см;
см;
Принимаем
см
см;