Метрология, стандартизация и сертификация
Министерство сельского хозяйства
Российской Федерации
Дальневосточный государственный
аграрный университет
Биробиджанский филиал
КОНТРОЛЬНАЯ РАБОТА
по дисциплине: «Метрология,
стандартизация и сертификация»
Выполнил:
Степанок Юлия Сергеевна
Специальность: Электрофикация и автоматизация сельского хозяйства
Курс: 2
Группа: ЭЛс-121
Зачетная книжка №: 004150
Биробиджан 2013 г.
Задание 1
Дано: Номинальный размер - 130
Отверстие - Н7
Вал - js6
Требуется:
Определить величину допусков, величину и знаки основных и предельных
отклонений размеров вала и отверстия.
Определить предельные размеры вала и отверстия.
Определить систему допусков, в которой задана посадка.
Определить величины предельных зазоров или натягов, допуск посадки.
Вычертить в произвольном масштабе схему полей допусков деталей заданного
соединения.
6. Вычертить эскиз соединения в сборе и его деталей с обозначением полей
допусков и отклонений.
. Выбрать измерительные средства для измерения деталей заданного
соединения с требуемой точностью.
Решение
зазор посадка подшипник
Числовые значения предельных отклонений, заданных полей допусков
определяем из таблиц ГОСТ 25347-82.
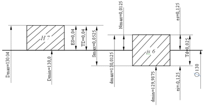
Отверстие:
130 Н7 
Вал: 130 js6 (±0,0125)
Отверстие: Dmax=130,04 мм
Dmin=130,00
мм
Вал: dmax=130,0125 мм
dmin=129,9875
мм
Система допусков - СА (система отверстия)
Соединение с переходной насадкой
Smax=ES∙ei=0,040-(-0,0125)=0,0525 мм
Nmax=es∙EI=0,0125-0=0.0125 мм
Допуск посадки
Tn=Ts=(ES-EI)+(es-ei)=(0,04-0)+(0,0125-(-0,0125))=0,065мм
Схема полей допусков соединения
Эскизы деталей соединения
Результаты расчетов заносим в таблицу
|
Обозначение заданного
соединения
|
130 Н7/ js6
|
|
Значения элементов
соединения
|
Номинальный размер, мм
|
130
|
|
Зазор (натяг),
мм
|
Smax, мм
|
0,0525
|
|
|
Nmax, мм
|
0,0125
|
|
Допуск посадки, TS=TN
|
0,065
|
|
Группа посадки
|
переходная
|
|
Система допусков
|
СА
|
|
Значение элементов питания
|
отверстие
|
Условное обозначение
|
130 Н7
|
|
|
Значение основного
отклонения, мкм
|
0
|
|
|
Допуск, мм TD
|
0,040
|
|
|
Предельные отклонения, мкм
|
Верхнее ES
|
40
|
|
|
|
Нижнее EI
|
0
|
|
|
Предельные размеры, мм
|
Dmax, мм
|
130,04
|
|
|
|
Dmin, мм
|
130,00
|
|
вал
|
Условное обозначение
|
130 js6
|
|
|
Значение основного
отклонения, мкм
|
-12.5
|
|
|
Допуск, мм Td
|
0.25
|
|
|
Предельные отклонения, мкм
|
Верхнее es
|
12,5
|
|
|
|
Нижнее ei
|
-12,5
|
|
|
Предельные размеры, мм
|
dmax, мм
|
130,0125
|
|
|
|
dmin, мм
|
129,9875
|
Для выбора измерительного средства по СТСЭВ 303-75 определяем допустимые
погрешности измерений для заданного размера и квалитетов, затем по таблице 1
РДМУ-98-77 подбираем измерительное средство из условия: ± lim ≤ ±
δ.
Результаты сводим в таблицу:
|
Наименов. детали, ее номинал. размер, поле допуска
|
Величина допуска изделия
IT, мм
|
Допуст. погрешн. измерен.
±
δ, мкм
|
Предельн. погреши. измерит,
средства
± ∆ lim, мкм
|
Наименование измерит.
средства
|
Концевые меры для настройки
|
|
|
|
|
|
разряд
|
класс
|
|
130 Н7
|
0.40
|
12
|
5
|
Оптиметр горизонтальный с
отсчетом 0,001мм при на-стройке по концевым мерам
|
-
|
1
|
|
130 js6
|
0.25
|
7
|
5
|
Скоба рычажная с отсчетом
0,002-0,005 мм при наст-ройке по концевым мерам
|
-
|
2
|
Задание 2
Дано: Номинальный размер - 85
Поле допуска: отверстие - D8
вал - h8
Количество групп - 3
Требуется:
Определить значения допусков, предельных отклонений и предельных размеров
вала и отверстия.
Определить величины предельных зазоров или натягов в заданном соединении.
Определить групповые допуски вала и отверстия.
Вычертить схему полей допусков заданного соединения, разделив поля
допусков отверстия и вал а на заданное число групп. Пронумеровать групповые
допуски.
Составить карту сортировщика, указав в ней предельные размеры валов и
отверстий в каждой размерной группе.
Определить групповые зазоры или натяги.
Решение
Предельные отклонения вала и отверстия для заданных размера и полей
допусков определяем из таблиц ГОСТ 25347-82:
Вал:
85 h8 (0/-0,054)
Отверстия:
85 D8 (+0,174/+0,120)
Допуск вала: Td=es-ei=(0-(-0,054))=0.054 мм
Допуск отверстия: TD=ES-EI=(0,174-0,120)=0,054 мм
Вал: dmax=85,0 мм
dmin=84.946
мм
Отверстие: Dmax=85,174 мм
Dmin=85.120
мм
Соединение с зазором
Smax =
Dmax - dmin=85,174-84,946 = 0,228 мм
Smin =
Dmin - dmax=85,12-85,0 = 0,120 мм
Групповой допуск отверстия

мм, т.о. 
мм
Групповой
допуск вала

мм
Карта сортировщика для сортировки на 3 размерных группы деталей
соединения : 85 D8 - h8
|
Номер размерной группы
|
Размеры деталей, мм
|
|
отверстие
|
вал
|
|
1
|
свыше
|
85,120
|
84,946
|
|
до
|
85,138
|
84,946
|
|
2
|
свыше
|
85,138
|
84,946
|
|
до
|
85,156
|
84,982
|
|
3
|
свыше
|
85,156
|
84,982
|
|
до
|
85,174
|
85,0
|
Smax1= Smax2= Smax3=0,192
Smin1= Smin2= Smin3=0,156
Задание 3
Дано: Номер подшипника - 214
номер чертежа - 1
радиальная нагрузка, Н Р=9800 Н
Требуется:
Определить конструктивные размеры заданного подшипника качения.
Установить характер нагрузки подшипника.
Определить вид нагружения каждого кольца подшипника.
Рассчитать и выбрать посадки подшипника на вал и в корпус.
Для сопряжений «подшипник-корпус» и «подшипник-вал» построить схемы полей
допусков, с указанием номинальных размеров, предельных отклонений, зазоров или
натягов.
Вычертить эскизы подшипникового узла и деталей, сопрягаемых с
подшипником, указав на них посадки соединений и размеры деталей.
Решение
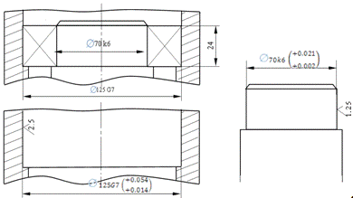
По ГОСТ 8538-75 определяем размеры D=125 мм; d=70
мм; В=24 мм; r=2,5 мм.
Характер нагрузки подшипника: выбираем статическую с умеренными толчками
и вибрацией, перегрузкой до 150%.
Согласно заданного чертежа узла, у подшипника вращается внутреннее
кольцо, а наружное - неподвижно. Следовательно нагрузка на внутреннее кольцо -
циркуляционная, наружное - местная.
Для внутреннего кольца определяем интенсивность
PR = (P/b) ∙ k1 ∙
k2 ∙ k3, н/мм,
где: Р - радиальная реакция опоры, н,
b -
действительная ширина опорной поверхности кольца, мм,
k1=1 -
коэффициент, учитывающий характер нагрузки,
k2=1 -
коэфф-т, учитывающий степень ослабления
посадочного натяга,
k3=1 -
коэфф-т, учитывающий неравномерность
распределения радиальной нагрузки.
Р=9800 н, b = В - 2r = 24∙(2∙2,5) = 19 мм
PR
=9800/19 ∙ 1∙ 1∙ 1 = 516 н/мм
По
таблице для кольца 70 мм, PR =516 н/мм (до 1400 н/мм) и при циркулярной нагрузке
выбираем поле допуска 
Для
кольца 125 мм при местном нагружении и спокойном характере нагрузки выбираем
(по таблице) поле допуска 
Схема полей допусков соединения
Эскизы подшипникового узла
Задание 4
Дано: диаметр вала - d=45;
шпонка - призматическая;
соединение - нормальное
Требуется:
Определить основные размеры шпоночного соединения.
Выбрать поля допусков деталей шпоночного соединения по ширине шпонки.
Назначить поля допусков и определить предельные отклонения остальных
размеров шпоночного соединения.
Подсчитать все размерные характеристики деталей шпоночного соединения и
для сокращения отчета записать их в форму 4.
Определить предельные зазоры и натяги в соединении «шпонка-паз вала» и
«шпонка-паз втулки.»
Вычертить схему расположения полей допусков по ширине шпонки.
Вычертить эскизы шпоночного соединения и его деталей с указанием всех
основных размеров и полей допусков в буквенном и числовом обозначении.
Решение:
По таблице (СТ СЭВ 189-75) определяем размеры шпоночного соединения:
b*h = 14*9; l=100 (условно); t1=5,5 мм; t2=3,8 мм.
Предельные шпонки и паза вала по ширине шпонки:
Шпонка: 14 h9 (0-0,043);
Паз втулки: 14 Is9
(±0,0215);
Паз вала: 14 N9 (0-0,043).
Предельные отклонения остальных размеров шпоночного соединения:
Шпонка: высота 9 h11
(0-0,090); длина 100 h14
(0-0,87)
Вал: длина 100 Н15 (+1,40); t1=5,5 H12(+0.120);
Втулка: глубина паза t2=3,8
H12(+0.120);
Размерные характеристики шпоночного соединения
|
Наименование размера
|
Номинал. размер, мм
|
Поле допуска
|
Предельные отклонения, мм
|
Предельные размеры, мм
|
Допуск размера Т, мм
|
|
|
|
Верхнее
|
Нижнее
|
mах
|
min
|
|
|
Ширина шпонки «b»
|
14
|
h9
|
0
|
-0.043
|
14.0
|
13.957
|
0.043
|
|
Высота шпонки «h»
|
9
|
h11
|
0
|
-0.09
|
9.0
|
8.91
|
0.09
|
|
Длина шпонки «l»
|
100
|
h14
|
0
|
-0.87
|
100.0
|
99.13
|
0.87
|
|
Глубина паза вала «t1»
|
5.5
|
H12
|
0.12
|
0
|
5.62
|
5.5
|
0.12
|
|
Длина паза вала «L»
|
100
|
H15
|
+1.4
|
0
|
101.4
|
100.0
|
1.4
|
|
Ширина паза вала «В1»
|
14
|
N9
|
0
|
-0.043
|
14.0
|
13.957
|
0.043
|
|
Ширина паза втулки «В2»
|
14
|
Is9
|
0.0215
|
-0.0215
|
14.0215
|
13.9785
|
0.043
|
|
Глубина паза втулки «t2»
|
3.8
|
H12
|
0.12
|
0
|
3.92
|
3.8
|
0.12
|
Шпонка паза вала 14 N9/h9
S1max = B1max - bmin = 14.0 - 13.957 = 0.043 мм
N1max = bmax - B1min = 14.0 - 13.957 = 0.043 мм
Шпонка - паз втулки 14 Js9/h9
S2max = B2max - bmin = 14.0215 - 13.957 = 0.0645 мм
N2max = bmax - B2min = 14.0 - 13.9785 = 0.0215 мм
Схема полей допусков деталей шпоночного соединения
Задание 5
Дано: шлицевое соединение

Требуется:
Установить способ центрирования заданного шлицевого соединения.
Определить предельные отклонения и предельные размеры всех элементов
деталей шлицевого соединения.
Вычертить схемы полей допусков центрирующих элементов шлицевого
соединения.
Вычертить эскизы соединения и его деталей, указав их условные
обозначения.
Решение
В обозначении шлицевого соединения на первом месте стоит «d», что указывает на «центрирование по
наружному диаметру».
Поля допусков элементов соединения в обозначении. Числовые значения
предельных отклонения определяем по ГОСТ 25347-82 и сводим в таблицу
Размерные характеристики деталей шлицевого соединения
|
Наименование элементов
шлицевого соединения
|
Номин. размеры, мм
|
Поле допуска
|
Предельные отклонения, мм
|
Предельные размеры, мм
|
Допуск размер Т, мм
|
|
|
|
ES (es)
|
EI(ei)
|
max
|
min
|
|
|
центрирую- щие элементы
|
Отверстие
|
108
|
H12
|
0,35
|
0
|
108,35
|
108,0
|
0,35
|
|
Вал
|
108
|
a11
|
-0,41
|
-0,63
|
107,59
|
107,37
|
0,22
|
|
Ширина впадины
|
16
|
F10
|
+0,016
|
16,086
|
16,016
|
0,07
|
|
Толщина шлицев
|
16
|
h8
|
0
|
-0,027
|
16,0
|
15,937
|
0,027
|
|
нецентрирую- щие элементы
|
Отверстие
|
102
|
h7
|
+0,035
|
0
|
102,035
|
102,0
|
0,035
|
|
Вал
|
102
|
e8
|
+0,032
|
-0,053
|
101,968
|
101,941
|
0,027
|
Схемы полей допусков центрирующих элементов шлицевого соединения.
Эскизы деталей шлицевого соединения.
Задание 6
Дано: Чертеж №1 методических указаний.
Размеры по чертежу:
Б∆=20±0,4, К1=30, К2=3±0,25мм, К3=15-0,1, К4=29мм, К5=3мм.
Требуется:
Установить звенья, входящие в размерную цепь с заданным замыкающим
звеном, указав, какие из них увеличивающие, а какие уменьшающие, и изобразить
ее геометрическую схему.
Проверить правильность составления заданной размерной цепи.
Установить единицы допуска составляющих звеньев, допуски которых требуется
определить.
Определить допуск замыкающего звена.
Определить средний коэффициент точности заданной размерной цепи.
Установить квалитет, по которому следует назначать допуски на
составляющие звенья.
Выбрать корректирующее звено размерной цепи.
По установленному квалитету назначить отклонения на составляющие размеры.
Рассчитать отклонения корректирующего звена.
Проверить правильность назначения допусков на составляющие звенья
размерной цепи.
Результаты расчетов занести в форму 6.
Решение
В заданной размерной цепи звенья К2, К3, К4 и К5 - увеличивающие, а звено
К1 - уменьшающее. Изобразим геометрическую схему размерной цепи.
Проверяем правильность составления размерной цепи:
Номинальный размер замыкающего звена:
Б∆= К2 + К3 + К4 + К5 - К1 = 3 + 15 + 29 + 3 - 30
=20
Схема размерной цепи составлена верно.
Единицы допуска определяем по таблице для размеров К1; К4 и К5 (для
размеров К2 и К3 допуски заданы)
ik1 =
1,44; ik4 = 1,44; ik5 = 0,63
Допуск замыкающего звена
T∆=ES - EI = 0,4 - (-0,4) = 0,8 мм
Средний коэффициент точности заданной размерной цепи определяем по
формуле:
т.к. допуск двух звеньев размерной цепи известен (К2 и К3), дальнейший
расчет ведем без учета этих звеньев. А поскольку нижнее предельное отклонение
звеньев К2 и К3 влияет на нижнее предельное отклонение звена Б∆, а верхнее
предельное отклонение звена К2 влияет на верхнее предельное отклонение звена Б∆,
уменьшаем нижнее и увеличиваем верхнее предельное отклонение звена Б∆
EI Б/∆=EI Б∆ - E K2 - EI K3 = -0,4 - (-0,25) - (-0,1) = -0,05
ES Б/∆=ES Б∆ + ES K2 = 0,4 + 0,25 = 0,65, тогда:
T =
0,65 - (-0,05) = 0,7 мм
Коэффициент
точности «
» для 3-х
звеньев размерной цепи (без учета К2 и К3)

Найденному
числу 
≈200
близко число единиц допуска 12 квалитета (
≈160),
который и принимаем для определения допусков.
В
качестве корректирующего звена принимаем размер «К5», т.к. он принадлежит
детали, наиболее простой по всем признакам.
По
таблице определяем допуски размеров звеньев К1 и К4 в соответствии с IT 12
TK1 = 0,21; TK4 =
0,21, т.к. размер К4 - охватывающий, то предельные отклонения назначаем как для
основного вала К4 = 29-0,21.
Для
размера К1 предельные отклонения назначаем как для основного отверстия: К1 =
30+0,21
Предельные
отклонения корректирующего звена К5 определяем по формулам, как для звена
увеличивающего верхнее предельное отклонение
ES K5=ES K1 + EI Б∆ - (EI K2 + EI K3 + EI K4)=
= 0,21 - 0,4 - (-0,25 - 0,1 - 0,21) = +0,37 мм
Нижнее предельное отклонение:
EI K5=EI K1 + ES Б∆
- (ES K2 + ES K3 + ES K4)=
= 0 + 0,4 - (-0,25 + 0 + 0) = +0,15 мм
Проверим правильность расчетов
ES Б∆=
EI K5 + ES K2 + ES K3 + ES K4 - EI K1 =
= 0,15 + 0,25 + 0 + 0 - 0 =+0,4Б∆= ES K5 + EI K2 + EI K3 + EI K4 - ES K1 =
= 0,37 - 0,25 - 0,1 - 0,21 - 0,21 = -0,4
Таким
образом Б∆=20±0,4 соответствует заданию корректирующего звена К5=3
отклонений 
Результаты расчетов допусков в размерной цепи
|
наименование размеров
|
номинальный размер, мм
|
обозначение размера
|
квалитет
|
допуск размера
|
поле допуска
|
предельные отклонения, мм
|
предельные размеры, мм
|
|
|
|
|
|
|
ES
|
EI
|
max
|
min
|
|
замыкающий
|
20
|
Б∆
|
-
|
0,8
|
-
|
+0,4
|
-0,4
|
20,4
|
19,6
|
|
Составляющие
|
увеличивающие
|
3
|
К5
|
-
|
-
|
-
|
+0,37
|
+0,15
|
3,37
|
3,15
|
|
|
29
|
К4
|
12
|
12
|
h12
|
0
|
-0,21
|
29,0
|
28,79
|
|
|
15
|
К3
|
-
|
-
|
-
|
0
|
-0,1
|
15,0
|
14,9
|
|
|
3
|
К2
|
-
|
-
|
-
|
+0,25
|
-0,25
|
3,25
|
2,75
|
|
уменьшающий
|
30
|
К1
|
12
|
12
|
H12
|
+0,21
|
0
|
30,21
|
30,0
|