|
Нагрузки
|
Нормативная нагрузка
|
Коэфф. надежности по нагрузке
|
Расчетная нагрузка, кН
|
|
на единицу площади, кН/м2
|
от грузовой площади, кН
|
|
|
|
Постоянные нагрузки
|
|
От защитного слоя гравия втопленного в битумную мастику
|
0,3
|
3,03
|
1,3
|
3,94
|
|
От 3-слойного гидроизоляционного ковра
|
0,15
|
1,52
|
1,3
|
1,98
|
|
От утеплителя (керамзита)
|
2,0
|
20,22
|
1,3
|
26,29
|
|
От пароизоляции
|
0,06
|
0,61
|
1,3
|
0,79
|
|
От плит междуэтажных перекрытий на 9 этажах + плиты покрытия
|
2
|
202,2
|
1,1
|
222,42
|
|
От кирпичных перегородок на 9 этажах
|
0,7
|
63,69
|
1,1
|
70,06
|
|
От дощатого пола на 9 этажах
|
0,2
|
2,02
|
1,3
|
2,63
|
|
От несущих стен за вычетом дверных проемов: 0,25*3,0*2,7*18*9
|
-
|
328,05
|
1,1
|
360,86
|
|
ИТОГО
|
-
|
621,34
|
-
|
688,97
|
|
Временные нагрузки
|
|
От снега длительно действующая
|
1,8
|
18,2*0,7= 12,74
|
-
|
1,8*10,11= 18,2
|
|
От девяти междуэтажных перекрытий с учетом понижающего
коэффициента: кратковременная длительная
|
1,5 0,3
|
1,5*10,11* 0,6*9= 81,89 16,38
|
1,4
|
114,65 22,93
|
|
ИТОГО
|
-
|
110,99
|
-
|
155,78
|
Нормативные
нагрузки на 1 м стены (с учетом коэффициента надежности по назначению сооружения
γn=0.95 (II класс ответственности
здания) и коэффициентов сочетаний для длительно действующих нагрузок φ1=0,95 и кратковременных φ2=0,9):
постоянная: 
временная:
- кратковременная:

длительно
действующая:
суммарная: 
Расчетные нагрузки на 1
м стены:
постоянная: 
временная:
- кратковременная:

длительно
действующая:
суммарная: 
Максимальная
нагрузка по обрезу фундамента при расчете по деформациям Nn=350 кН/м (по
исходным данным).
Пол подвала на 1,1
м ниже планировочной отметки. Основанием служат пески средней крупности
плотные.
Принимаем
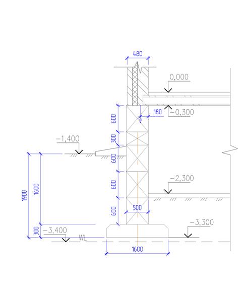
непрерывный ленточный фундамент из железобетонных блоков (рис. 2).
Рис. 2. Схема
ленточного фундамента
Выбор глубины
заложения
Принимаем
непрерывный (ленточный) фундамент из железобетонных подушек и бетонных блоков.
Расчетная глубина
сезонного промерзания определяется по формуле:
df=kn*dfn [3]
где dfn - нормативная
глубина сезонного промерзания в м., определяемая по формуле:
dfn=d0√Mt, dfn [4]
где d0=
0,3 м (для песков гравелистых, крупных и средней крупности)
Mt - сумма абсолютных
значений среднемесячных отрицательных температур в зимний период строительства
для данного района по {4}.
Для Екатеренбурга: Mt= 55,9 ˚С
Таким образом dfn=0,3 * √55,9=
2,24 м
kn - коэффициент, учитывающий влияние теплового режима здания на
глубину промерзания грунта у наружных стен, определяется по [2 табл. 5.2].
Считая, что здание проектируется с подвалом с температурой воздуха в помещении
подвала равной 20˚С, получаем: kn = 0,4.
Таким образом,
расчетная глубина сезонного промерзания:
df=0,4*2,24 = 0,896 ~0,9 м.
Учитывая
конструктивные особенности здания, высоту подвала Н = 2,0 м, назначаем отметку
подошвы фундамента - 3,300 м.
Определение
ширины опорной плиты
Фундаменты мелкого
заложения проектируются расчетом основания по деформациям. При расчете
деформаций основания среднее давление под подошвой фундамента Р не должно
превышать расчетного сопротивления грунта основания R.
Назначаем в первом
приближении ширину подошвы фундамента b = 1 м. Определяем расчетное сопротивление грунта основания по
формуле:
где γс1 и γс2 - коэффициенты, условий
работы, принимаемые по [2 табл. 5,4];
γс1 =1,4 (пески, кроме
мелких и пылеватых);
γс2 =1,36 (при отношении
длины сооружения к высоте L/H, равном 51,8/25,8 м = 2).
k - коэффициент, принимаемый равным k=1,1, если прочностные
характеристики грунта (φ и с) определены при помощи таблиц;
Mγ, Mq, Мс - коэффициенты, принимаемые по [2 табл. 5,5];
Mγ =1,15; Mq=5,59;, Мс=7,95,
при φ=30 °
kz - коэффициент, принимаемый равным: при b < 10 м. kz =1,
b - ширина подошвы фундамента, м;
γII = γsb - осредненное расчетное
значение удельного веса грунтов, залегающих ниже подошвы фундамента (при
наличии подземных вод определяется с учетом взвешивающего действия воды), кН/м3
(тс/м3);
γ’II - то же, залегающих выше подошвы;

сП -
расчетное значение удельного сцепления грунта, залегающего непосредственно под
подошвой фундамента (при е = 0,5 с=2,5 кПа);
d1
- глубина заложения фундаментов бесподвальных сооружений от уровня планировки
или приведенная глубина заложения наружных и внутренних фундаментов от пола
подвала, определяемая по формуле:
hs
- толщина слоя грунта выше подошвы фундамента со стороны подвала, м;
hcf
- толщина конструкции пола подвала, м;
γcf = 22, кН/м3 -
расчетное значение удельного веса конструкции пола подвала;
Таким образом, d1= 0,9+0,1*22/17,8=1,02 м.
db - глубина подвала; расстояние от уровня планировки до пола
подвала, м.
db = 1,9 - 1,02 = 0,88 м.
Подставляем
значения в формулу 5, получаем:

Определяем примерную
площадь подошвы на 1 м фундамента, принимая среднее расчетное значение
удельного веса фундамента и грунта при наличии подвала γcр = 20 кН/м3:
b1=А
/ l = 1.05/1=1.05 м
Принимается
ближайший больший из ряда по ГОСТ 13579-78* b1=1,2 м.
При ширине
фундамента b1 = 1,2 м расчетное
сопротивление:
При этом значении R2 находим b2:
Ширина подушки
принимаем b=1.2 м.
При ширине подушки b=1,2 м фактическое расчетное сопротивление под подошвой фундамента
нашли выше: 
Принимаем фундаментные
подушки ФЛ 12.12-3 (весом 0,78 т) и стеновые блоки ФБС 24.5-6т (4 штуки в
разрезе; весом 1,63т) и ФБС 12.5.3т (1 штука в разрезе; весом 0,38т).
На основании полученных
значений R и b конструируем фундамент.
Среднее давление под
подошвой фундамента

где, 
- нагрузка по обрезу
фундамента: 

- нагрузка от веса
фундамента. Зная вес фундаментных элементов (из взятых каталогов
стройиндустрии), найдем нагрузку от веса всего фундамента на 1 погонный метр
фундамента, разделив вес каждого элемента на его длину:
Получаем: 

- нагрузка от веса
грунта на обрезе фундамента:
где 
- объем грунта над
уступом фундамента (см. рис 2)

- удельный вес грунта
обратной засыпки, кН/м3
Таким образом, 
Недогруз фундамента
составляет 
. Условие прочности
выполняется. Следовательно, производим расчет деформаций основания по принятым
фундаментным элементам.
Расчет
деформаций оснований
Расчет оснований по
деформациям производят, исходя из условия:
S<SU
где S - осадка основания фундамента
(величина совместной деформации основания и сооружения);
Su - предельное значение совместной деформации основания и
сооружения, устанавливаемое в соответствии с указаниями [2 п.п. 5.6.46…5.6.50].
Осадку определяем
методом послойного суммирования осадок отдельных слоев в пределах сжимаемой
толщи основания.
Вертикальное
эффективное напряжение от собственного веса грунта σzg, кПа, на границе
слоя, расположенного на глубине z от подошвы фундамента, определяется по
формуле:
где 
- средний удельный вес
грунта, расположенного выше подошвы фундамента, кН/м3; dn - м, см. рисунок
5.2;

и hi - соответственно
удельный вес, кН/м3, и толщина i-го слоя грунта, залегающего выше
границы слоя на глубине z от подошвы фундамента, м;
Подставляем значения в
формулу 9, находим ординаты эпюры вертикальных напряжений от действия
собственного веса грунта:
на уровне
подошвы фундамента: 
- на уровне
грунтовых вод: 
Дополнительные
вертикальные напряжения на глубине Z от подошвы фундамента определяем по [2
формуле 5.17]:
где α - коэффициент,
принимаемый по [2 табл. 5,8];
P0 - дополнительное
вертикальное давление на основание:
P0
= P - 
= 342,05 - 33,75 = 308,3
кПа
здесь Р - среднее
давление под подошвой фундамента;
Сжимаемую толщину грунта
ниже подошвы фундамента разбиваем на элементарные слои мощностью hi:
hi
= 0,4b=0,4*1,2 = 0,48 м.
Находим дополнительные
напряжения.
Для остальных точек
значения 
и 
приведены в таблице 3.
Построим эпюру дополнительных напряжений от внешней нагрузки в толще основания
рассчитываемого фундамента. По полученным величинам 
и 
строим эпюры
напряжений.
Таблица 3. Вертикальные
напряжения в основании рассчитываемого фундамента. Расчет осадок фундамента
методом послойного суммирования
|
№
|
γ, кН/м3
|
Е0, МПа
|
hi,
м
|
Z,
м
|
 , кПаζ=2z/b
|
α
|
кПа
|
кПа
|
кПа
|
|
|
0
|
|
|
|
0
|
33,75
|
0
|
1
|
308,3
|
|
6,75
|
|
18,5
|
45
|
0,1
|
|
|
|
|
|
307,07
|
|
|
1
|
|
|
|
0,1
|
34,86
|
0,14
|
0,992
|
305,83
|
|
6,97
|
|
11,07
|
45
|
0,38
|
|
|
|
|
|
288,72
|
|
|
2
|
|
|
|
0,48
|
39,06
|
0,8
|
0,881
|
271,61
|
|
7,81
|
|
11,07
|
45
|
0,48
|
|
|
|
|
|
234,77
|
|
|
3
|
|
|
|
0,96
|
44,38
|
1,6
|
0,642
|
197,93
|
|
8,88
|
45
|
0,48
|
|
|
|
|
|
172,49
|
|
|
4
|
|
|
|
1,44
|
49,69
|
2,4
|
0,477
|
147,06
|
|
9,94
|
|
11,07
|
45
|
0,48
|
|
|
|
|
|
131,18
|
|
|
5
|
|
|
|
1,92
|
55,00
|
3,2
|
0,374
|
115,30
|
|
11,00
|
|
11,07
|
45
|
0,48
|
|
|
|
|
|
104,82
|
|
|
6
|
|
|
|
2,4
|
60,32
|
4
|
0,306
|
94,34
|
|
12,06
|
|
11,07
|
45
|
0,48
|
|
|
|
|
|
86,94
|
|
|
7
|
|
|
|
2,88
|
65,63
|
4,8
|
0,258
|
79,54
|
|
13,13
|
|
11,07
|
45
|
0,48
|
|
|
|
|
|
74,15
|
|
|
8
|
|
|
|
3,36
|
70,95
|
5,6
|
0,223
|
68,75
|
|
14,19
|
|
11,07
|
45
|
0,48
|
|
|
|
|
|
64,59
|
|
|
9
|
|
|
|
3,84
|
76,26
|
6,4
|
0,196
|
60,43
|
|
15,25
|
|
11,07
|
45
|
0,48
|
|
|
|
|
|
57,19
|
|
|
10
|
|
|
|
4,32
|
81,57
|
7,2
|
0,175
|
53,95
|
|
16,31
|
|
11,07
|
45
|
0,48
|
|
|
|
|
|
51,33
|
|
|
11
|
|
|
|
4,8
|
86,89
|
8
|
0,158
|
48,71
|
|
17,38
|
|
11,07
|
45
|
0,48
|
|
|
|
|
|
46,40
|
|
|
12
|
|
|
|
5,28
|
92,20
|
8,8
|
0,143
|
44,09
|
|
18,44
|
|
11,07
|
45
|
0,48
|
|
|
|
|
|
42,39
|
|
|
13
|
|
|
|
5,76
|
97,51
|
9,6
|
0,132
|
40,70
|
|
19,50
|
|
11,07
|
45
|
0,48
|
|
|
|
|
|
39,15
|
|
|
14
|
|
|
|
6,24
|
102,83
|
10,4
|
0,122
|
37,61
|
|
20,57
|
|
11,07
|
45
|
0,48
|
|
|
|
|
|
36,23
|
|
|
15
|
|
|
|
6,72
|
108,14
|
11,2
|
0,113
|
34,84
|
|
21,63
|
|
11,07
|
45
|
0,48
|
|
|
|
|
|
33,76
|
|
|
16
|
|
|
|
7,2
|
113,45
|
12
|
0,106
|
32,68
|
|
22,69
|
|
ΣSi=
|
Вычислим осадку
фундамента:
, [11]
где b
- безразмерный коэффициент, равный 0,8;

-
среднее значение дополнительного вертикального нормального напряжения в i-м слое грунта, равное полусумме указанных напряжений на верхней zi-1 и
нижней zi границах
слоя по вертикали, проходящей через центр подошвы фундамента;
hi и Еi - соответственно толщина и модуль деформации i-го слоя грунта;
n
- число слоев, на которые разбита сжимаемая толща основания.
Предельно допустимая
осадка 10 см. В нашем случае S=1,253
см. < 10 см. Следовательно, расчет осадки фундамента удовлетворяет расчету.
Рис. 3. Схема
распределения вертикальных напряжений
Расчет внецентренно-нагруженного
фундамента при наличии подвала
Ранее определили
размеры центрально-сжатого фундамента под наружными стенами. Увеличим
полученные размеры на 20%: b= 1,2*1,2 = 1,44 м. Принимаем фундаментные подушки ближайшей
шириной b = 1,6 м ФЛ 16-12-2 (высота 0,3 м, весом 1,03 т).
При нагрузке на
обрезе фундамента N = 331,75 кН (из сбора нагрузок на наружную стену) вычислим
момент от внецентренного действия нагрузки от веса перекрытий, имея в виду, что
плиты перекрытий заделываются в стены на глубину 12 см, а давление от них
распределено по закону треугольника. Эксцентриситет приложения внешней нагрузки
(по заданию): е = 18 см.
Приведенная глубина
заложения фундамента от пола подвала определяем по формуле 6:
Глубина подвала -
расстояние от уровня планировки до пола подвала:
db = 1,9 - 1,02 = 0,88 м.
Расчетное
сопротивление грунта основания определяем по формуле 5:
Равнодействующая
активного давления грунта на 1 м стены фундамента:

Т.к. перекрытия
располагаются выше поверхности земли, то q
= 10 кН/м2. Приведенная высота слоя грунта:
hпр
=q/γII
=10/17,8 = 0,561 м.
Расстояние от подошвы
фундамента до точки приложения равнодействующей активного давления грунта (d = 1,9 м):
Момент от нагрузки на
обрезе фундамента:
Момент относительно
центра тяжести подошвы фундамента от равнодействующей активного давления грунта
(момент от горизонтального давления грунта):
Нагрузка от веса
фундамента:
Нагрузка от веса грунта
на обрезе фундамента (см. рис 4):
Момент относительно
центра подошвы фундамента от веса обратной засыпки:
Определим давление под
подошвой внецентренно нагруженного фундамента (краевые напряжения):
=N'+NГ+NФ,
- вертикальная сила;Г и NФ - вес соответственно грунта и
фундамента на его обрезах;
M=M' - MG
+ Mt -
момент на уровне подошвы фундамента;
Аф - площадь
подошвы фундамента;
W
- момент сопротивления подошвы фундамента.
Проверяем выполнение
условий:




Условия выполняются,
поэтому принимаем в качестве подушки фундамента сборную плиту шириной b= 1,6 м.
Рис. 4. Схема
ленточного фундамента для внецентренно-приложенной нагрузки
Расчет
внецентренно-нагруженного фундамента без подвала
В целях вариантного
проектирования, рассмотрим внецентренно нагруженный фундамент бесподвального
здания при остальных аналогичных условиях. Ранее определили размеры центрально-сжатого
фундамента под наружными стенами. Увеличим полученные размеры на 20%: b = 1,2*1,2 = 1,44 м Принимаем
фундаментные подушки ближайшей шириной b = 1,6 м ФЛ 16-12-2 (высота 0,3 м,
весом 1,03 т).
При нагрузке на
обрезе фундамента N = 331,75 кН (из сбора нагрузок на наружную стену) вычислим
момент от внецентренного действия нагрузки от веса перекрытий, имея в виду, что
давление от плит перекрытия распределено по закону треугольника. Эксцентриситет
приложения внешней нагрузки (по заданию): е = 18 см.
Глубина заложения
фундамента бесподвальных сооружений от уровня планировки: 
1,9 м.
Глубина подвала -
расстояние от уровня планировки до пола подвала: db
=0 м.
Расчетное сопротивление грунта
основания определяем по формуле 5:
Момент от нагрузки
на обрезе фундамента:
Нагрузка от веса
фундамента:
Нагрузка от веса
грунта на обрезе фундамента:
Определяем давление
под подошвой внецентренно нагруженного фундамента (краевые напряжения) по
формулам 14, 15:
где M=M' - момент на уровне подошвы
фундамента;
Проверим выполнение
условий:




фундамент нагрузка
основание плита
По формуле 16 находим:
Условия выполняются,
поэтому принимаем в качестве подушки фундамента сборную плиту шириной b=1,6 м.
Список
литературы
1. СП 20.13330.2011 «Нагрузки
и воздействия» (Актуализированная редакция СНиП 2.01.07-85);
. СП22.13330.2011 «Основания
зданий и сооружений» (Актуализированная редакция СНиП 2.02.01-83);
. СП24.13330.2011 «Свайные
фундаменты» (Актуализированная редакция СНиП 2.02.03-85)
. СНиП 23-01-99 «Строительная
климатология».
. Справочник «Основания и
фундаменты». / Под ред. Г.И. Швецова. - М.: Высшая школа, 1991 г.
. Берлинов М.В. «Расчет
оснований и фундаментов». / Учеб. для ср. спец. учеб. заведений. - 2-е изд.
перераб. и доп. - М.: Стройиздат, 2000 г. - 272 с.
. Берлинов М.В., Ягупов Б.А.
«Примеры расчета оснований и фундаментов». - М.: Стройиздат, 1986 г.
. Кузнецов А.Н. Муратова Н.В.
«Примеры расчета и проектирования фундаментов». / Учебное пособие. Пенза ПГАСА.
1999 г. - 40 с.