Погрузо-разгрузочные работы и складские комплексы

  • Вид работы:
    Курсовая работа (т)
  • Предмет:
    Транспорт, грузоперевозки
  • Язык:
    Русский
    ,
    Формат файла:
    MS Word
    65,54 Кб
  • Опубликовано:
    2014-01-22
Вы можете узнать стоимость помощи в написании студенческой работы.
Помощь в написании работы, которую точно примут!

Погрузо-разгрузочные работы и складские комплексы

Введение


Погрузо-разгрузочные работы на автомобильном транспорте являются наиболее трудоемкой составной частью транспортного процесса. В связи с этим простой автомобилей под погрузо-разгрузочными операциями и в ожидании их остаются довольно значительными. Это связано с недостаточно высоким уровнем механизации погрузки-разгрузки грузов на транспорте, с нечеткой координацией действий различных организаций при перегрузке грузов в транспортных узлах и по некоторым другим причинам.

Механизация погрузочно-разгрузочных работ - проблема комплексная, которая включает в себя не только необходимость оборудования складских помещений соответствующей техникой, но и создание специальных поддонов и контейнеров для каждого вида грузов.

Специалисты отмечают необходимость массового изготовления всевозможного сменного оборудования, как, например, грузозахватывающие приспособления кранов и погрузчиков, грейферы, клещевые захваты, поворотные захваты-манипуляторы и прочее. С помощью подобного дополнительного оборудования можно существенно повысить производительность машин и расширить сферы их использования.

Механизированная погрузка и разгрузка осуществляется при помощи таких устройств, как электропогрузчики, краны-штабелеры, кран-балки, мостовые краны и всевозможные электрокары. При комплексной механизации не обойтись без быстродействующих автоматических захватов и стропов. В последние несколько лет достаточно широкое распространение получили полностью автоматизированные склады тарно-штучных грузов, в распоряжении которых имеются целые системы машин, способные обеспечить не только транспортировку, но и установку, а также поиск специальных материалов в автоматическом режиме с помощью робототехники.

Основным направлением развития транспортного хозяйства является автоматизация и механизация процесса, внедрение новых методов работы и современной техники. Благодаря этому всему можно будет уменьшить расходы на оплату труда рабочих и повысить производительность, что положительным образом сказывается на прибыли предприятия в целом.

1.      
Разработка теоретического вопроса

 

Складское хозяйство является одним из важнейших элементов логистической системы, который имеет место на любом этапе движения материального потока от первичного источника сырья до конечного потребителя. Перемещение потоков в логистической цепи невозможно без концентрации в определенных местах необходимых запасов, для хранения которых и предназначены склады. К основным причинам использования складов в логистической системе можно отнести следующие:

Обеспечение бесперебойного процесса производства за счет создания запасов материально-технических ресурсов;

§   Координация и выравнивание спроса и предложения в снабжении и распределении за счет создания страховых и сезонных запасов;

§   Обеспечение максимального удовлетворения потребительского спроса за счет формирования ассортимента продукции;

§   Уменьшение логистических издержек при транспортировке за счет организации перевозок экономичными партиями;

§   Создание условий для поддержания активной стратегии сбыта;

§   Увеличение географического охвата рынков сбыта;

§   Обеспечение гибкой политики обслуживания.

Такие термины, как «склад», «распределительный центр», «логистический центр», «терминал», почти взаимозаменяемы. Наиболее общим термином является понятие «склад», под которым понимают сложное техническое сооружение, предназначенное для управления запасами на различных участках логистической цепи и выполнения конкретных функций по хранению и преобразованию материального потока в целом.

Склад - это составная часть интегрированной логистической системы. В логистической системе склад, играя роль элемента материального потока, обеспечивает осуществление логистических операций и не подлежит дальнейшей декомпозиции в рамках поставленных задач логистической системы. Склад можно рассматривать в качестве основного преобразователя материального потока логистической системы от поставщиков сырья и материалов до поставки готовой продукции конечному потребителю.

Современный крупный склад (например, склад товарных и штучных грузов) представляет собой комплекс производственных, а так же инженерно-технических сооружений, подъемно-транспортных машин и оборудования, средств вычислительной техники, предназначенных для приемки, размещения, накопления, хранения, переработки и отпуска продукции потребителям

Склады в рамках логистической системы выполняют следующие основные функции:

§  Выравнивают интенсивность материальных потоков в соответствии со спросом потребителя. Выравнивание интенсивности материальных потоков предполагает, что склад должен играть не просто роль буфера между поставщиком и потребителем, но и гибко реагировать на изменения спроса путем маневрирования размерами соответствующей партии поставки. Интенсивность материального потока устанавливается потребителем, то есть каждым последующим звеном логистической системы. Поэтому если рассматривать логистическую систему в целом, то основным диктующим звеном становится конечный потребитель.

§  Формируют ассортимент внутрискладского потока в соответствии с заказом клиента. Преобразование складом ассортимента материального потока в соответствии со спросом означает создание необходимого ассортимента для выполнения заказов клиентов. Особое значение данная функция приобретает в распределительной логистике, где товарный ассортимент включает огромный перечень товаров различных производителей, отличающихся по функциям, размеру, форме, цвету и т.д. Создание нужного ассортимента на складе позволяет эффективно выполнять заказы потребителей и осуществлять более частные поставки в объеме, необходимом клиенту.

§  Обеспечивают концентрацию и хранение запасов. В распределительной системе хранение товаров необходимо для выравнивания сезонных колебаний в потреблении и гибкого реагирования на любые изменения потребительского спроса. Стремление к максимальному повышению уровня обслуживания клиентов требует значительного увеличения запасов на складе поставщика.

§  Сглаживают асинхронности производственного процесса. Сглаживание асинхронности производственного процесса - функция производственных складов, а именно складов незавершенного производства (промежуточной продукции). Речь идет о выравнивании асинхронных моментов между технологическими и организационными процессами, а также между отдельными рабочими операциями производственного процесса.

§  Утилизируют партии отгрузки. Утилизация партии отгрузки связана с тем, что многие потребители заказывают со складов партии «меньше, чем вагон» или «меньше, чем трейлер», что значительно увеличивает издержки, связанные с доставкой таких грузов, так как тариф перевозчика на такую отправку обычно существенно выше, чем на отправку транзитной нормы, то есть при полном использовании грузоподъемности (грузовместимости) транспортного средства. Для сокращения транспортных расходов склад может осуществлять функцию консолидации(утилизацию) небольших грузов для нескольких клиентов до полной загрузки транспортного средства.

§  Предоставляют услуги. Склад активно участвует в осуществлении политики логистического обслуживания предприятий, предоставляя разнообразные услуги. Благодаря услугам склада обеспечивается предпродажный и послепродажный логистический сервис. Эта функция имеет особое значение в распределительной логистике, где высокий уровень конкуренции. Сервис является неотъемлемой частью деловой активности предприятия, повышая его конкурентоспособность.

§  Среди основных услуг склада можно выделить четыре группы:

§  материальные - связаны с выполнением операций по повышению технологической готовности продукции к потреблению согласно заказам потребителей. Например, нарезка, раскрой, расфасовка в мелкую тару, подбор комплектов, составление колеров красок и другие услуги. В системе распределения эта группа услуг связана с подставкой товара к продаже и приданием ему товарного вида;

§  организационно-коммерческие - направлены на повышение эффективности процессов товарно-денежного обмена. Включают реализацию излишних материальных ценностей путем перераспределения, в том числе на комиссионных началах, реализацию промышленных отходов предприятий, сдачу на прокат (в аренду) оборудования, техники, аппаратуры и т.д.;

§  складские - связаны с выполнением операций собственно складирования за плату, материальных ценностей на временное хранение, сдачей в аренду складских площадей;

§  транспортно-экспедиторские - связаны с доставкой грузов клиентам своим или арендованным транспортом.

В рамках логистической функции складом решаются следующие задачи:

·        своевременное предоставление товаров и услуг потребителям;

·        концентрация и пополнение запасов, оптимизация затрат;

·        учет запасов в натуральном и стоимостном выражениях;

·        зашита производства и потребителей от непредвиденных обстоятельств (отсутствие товаров у поставщика, забастовка, катастрофы и т.п.);

·        балансирование темпов производства и объемов производимой продукции при росте спроса и многие другие.

Склад решает и традиционные задачи, связанные со складской переработкой грузов:

·        максимальное использование складских мощностей;

·        рациональное ведение погрузочно -разгрузочных и складских работ;

·        эффективное использование складского оборудования;

·        устранение потерь товаров при их складской обработке, хранении и т,д.

К задачам склада, традиционно решаемым нами с использованием информационных технологий, относятся:

·        Базовый складской учет (приход, расход, остатки и обороты)

·        Настройка специфических разрезов складского учета (по партиям, срокам годности, разбиваемые упаковки, учет в разных единицах, сложные артикулы и т.п.)

·        Учет мест хранения (стеллажи, ячейки и т.п.), элементы складской логистики

·        Обеспечение материальной ответственности на складе (разграничение доступа, персонализация ответственности и т.п.)

·        Использование штрихкодов - от считывания чужих до маркировки своими

·        Поддержка инвентаризаций, восстановления учета, регистрации начальных остатков, выявление отклонений и т.п.

·        Построение складских и торговых отчетов, их анализ для оптимизации торговли или логистик

·        Обеспечение взаимодействия склада с партнерами по принципу B2B

·        Учет результатов работы менеджеров по продажам или продавцов на основе складских данных

 Задачи складского учета различаются для компаний оптовой и розничной торговли или предприятий производственного типа. Универсальные программы (такие, как 1С:Управление Торговлей, Торговля и Склад, Логистика: Управление складом и аналоги) обычно требуют настройки под специфику организации.

Существует большое количество различных складов. Они классифицируются по отношению к базисным функциональным областям логистики и участникам логистической системы, виду продукции, форме собственности, функциональному назначению, уровню специализации, степени механизации складских операций, виду складских зданий и сооружений, возможности доставки и вывоза груза, местоположению и т.п.

Склады делятся:

)         По отношению к базисным функциональным областям логистики

Склад логистики снабжения

Склад логистики производства

Склад логистик распределения

)         По виду продукции:

Склад материальных ресурсов

Склад незавершенного производства

Склад готовой продукции

Склад тары

Склад возвратных отходов

Склад инструментов

)         По зоне обслуживания

Общезаводской склад(центральный)

Участковый склад(для снабжения группы цеход однородными материалами и изделиями

Прицеховой склад(обслуживает один цех)

)         По форме собственности

Арендуемый склад

Коммерческий склад

Склады государственных и муниципальных предприятия

Склады общественных и некоммерческих организаций, ассоциации и т.п.

)         По функциональному назначению

Склад буферных запасов (для снабжения производственных процессов)

Транзитно-перевалочный склад (грузовые терминалы)

Склад комиссионирования(формирование ассортимента и комплектация партий груза в соответствии с заказами клиентов)

Склад сохранения(прием товаров на временное хранение)

Специальный склад(таможенные склады, склады остатков и отходов и т.п.)

)         По отношению к участникам логистической системы

Слад производителя

Склад торговых компаний

Склад торгово-посреднической компании

Склад транспортной компании

Склад экспедиторской компании

Склад предприятия по грузопереработке

Склады прочих логистических посредников

)         Уровню специализации

-Узкоспециализированный склад

Склад ограниченного ассортимента

Склад широкого ассортимента

8)       По степени механизации складских операций

Немеханизированный склад

- Механизированный склад

Автоматизированный склад

9)       По виду конструкции складских зданий (сооружений)

Закрытый склад (отдельное сооружение)

Полузакрытые площади (имеют только навес или крышу и одну, две или три стены)

Открытые(специально оборудованные) площади

10)     По этажности здания

-Многоэтажный склад

-Одноэтажный склад высотой до 6 м.

Высотный склад

Высотно-стеллажный склад высотой более 10 м

)         По возможности доставки и вывоза груза

Пристанционный или портовый склад (расположен на территории железнодорожный станции или порта)

Прирельсовый склад (имеет подведенную железнодорожную ветку)

Глубинный склад

Склады логистики снабжения специализируются на хранении МР (сырья, материалов, комплектующих и другой продукции производстве ч но го назначения) и снабжают прежде всего производственных потребителе и.

По особенностям переработки грузопотоков, можно выделить:

·        склады сырья и материалов (например, груз в жидком или сыпучем состоянии). Перерабатывают однородные грузы, поступающие большими партиями, интенсивными грузопотоками, в ритмичном графике поставки потребителю, с относительно постоянной оборачиваемостью, что позволяет вести автоматизированную складскую переработку груза там, где производственный процесс автоматизирован или имеет высокий уровень механизации;

·        склады продукции производственного назначения работают, как правило с тарными и штучными грузами большой массы, относительно однородной номенклатуры, большими объемами переработки, поэтому здесь необходим высокий уровень механизации и автоматизации складских работ.

Склады производственной логистики входят в состав организационной системы производства и предназначены для обеспечения производственного процесса. На этих складах хранятся запасы НП, приборы и инструменты, запчасти и т.д. Эти склады перерабатывают относительно постоянную номенклатуру грузов, поступающую со склада с определенной периодичностью и малым сроком хранения, что позволяет добиваться автоматизированной обработки груза или высокого уровня механизации. Основным фактором, влияющим на уровень технической оснащенности склада, выступает характер производственного процесса.

Склады логистики распределения служат для подержания непрерывности движения товаров из сферы производства в сферу потребления. Их основное назначение - преобразовывать производственный ассортимент в торговый и бесперебойно обеспечивать различных потребителей, включая розничную сеть. Они могут принадлежать производителям (склады ГП, распределительные склады производителя) и предприятиям торговли;

·        склады готовой продукции и распределительные склады производителей. В различных регионах продаж (центральные и филиальные склады) занимаются складированием тарных и штучных грузов относительно однородной продукции (в пределах ассортиментного перечня одного изготовителя) с быстрой оборачиваемостью; реализуют крупные партии. Это позволяет осуществлять автоматизированную и высокомеханизированную переработку груза;

·        склады оптовой торговли товарами широкого потребления. В основном снабжают мелких потребителей и розничную сеть. Такие склады концентрируют запасы с широкой номенклатурой и неравномерной оборачиваемостью товаров (иногда сезонного спроса). Такой товар реализуется различными партиями (начиная от группы товаров). На таких складах нецелесообразно внедрять автоматизированную обработку грузов, здесь предпочтительнее высокомеханизированная и механизированная обработка (возможно, с ручной комплектацией заказа);

·        розничной торговли снабжают розничную торговую сеть, объединенную со складом в единую организационно-хозяйственную единицу. Здесь хранится товар с большим ассортиментом партий, чтобы поддерживать в магазинах постоянно широкий ассортимент товара. Реализации со склада осуществляется мелкими партиями частыми поставками, к тому же такие склады, как правило, не бывают крупными, поэтому на них рациональнее всего вводить механизированную обработку груза с ручной комплектацией заказа, поскольку практически всегда сначала происходит расформирование поступающей на склад грузовой единицы (поддон, контейнер).

Можно выделить склады транспортных и экспедиторских предприятий, предназначенные для временного складирования, связанного с экспедицией материальных ценностей. Сюда же относятся склады железнодорожных станций, грузовые терминалы автотранспорта, морских и речных портов, терминалы воздушного транспорта. По характеру выполняемых операций грузопереработки они относятся к транзитно-перевалочным. Срок хранения грузов сведен к минимуму, так как целью такого склада является эффективное и своевременное снабжение клиентов путем перевалки груза с одного вида транспорта (или транспортного средства) на другой. Грузы поступают и отправляются крупными партиями, при этом поступающая грузовая единица (пакет на стандартном поддоне или контейнер) на складе не расформировывается. На таких складах необходим высокий уровень, механизации.

Склады различаются по виду складских зданий (по конструкции): открытые площадки, полузакрытые (навес) и закрытые и специальные.

К полузакрытым складским устройствам относят навесы. По конструкции навесы могут быть без стен или иметь от одной до трех стен.

Открытые площадки являются простейшим видом складских сооружений и представляют собой бетонированные, асфальтированные площадки, имеющие уклон и водостоки для отвода поверхностных вод.

К специальным складским устройствам относят бункерные и элеваторные сооружения для хранения сыпучих грузов и сооружения резервуарного типа для хранения жидких грузов.

Закрытые являются основным типом складских сооружений, представляя собой обособленное здание со складскими помещениями.

В дистрибьюции, помимо закрытых складов, используются полузакрытые и открытые. Однако их число ограничено, и они служат преимущественно для хранения тары или кратковременного хранении товаров в крупной внешней таре (контейнерах, бочках) и стройматериалов (пиломатериалов, сетки и т.д.).

При проектировании ЛС оптового предприятия используются все виды складских сооружений, но наибольшее применение находят закрытые склады в различного вида зданиях. При выборе вида складского здания и расчетов его площади следует иметь в виду, что приоритетным направлением в развитии складского хозяйства является строительство одноэтажных складов. Эксплуатация многоэтажных складов доказала, что они неэффективны. В многоэтажных складах около 20% объема здания отводится под лифты и лестничные клетки, что значительно сокращает полезные объемы. Традиционная частота сетки колонн в многоэтажны складах -6x6 метров и невысокая допустимая нагрузка на междуэтажные перекрытия не позволяет применять современные технологические решения для организации складской переработки груза. К тому же стоимость многоэтажного склада в 1,5-2 раза больше по сравнению с одноэтажным складом тою же объема.

Среди одноэтажных складов, особенно с учетом удорожания стоимости земельных участков и достижений к области складской техники, предпочтение отдается складам с высотной зоной хранения. Общие затраты на высотных складах в несколько раз меньше, чем затраты на складах того же объема, но меньшей высоты, что видно из сравнения капитальных и эксплуатационных затрат складов различной высотности хранения

Строительство и эксплуатация различных типов закрытых складских зданий значительно выше открытых и полузакрытых. Поэтому резко возросли требования к определению необходимой складской мощности. Точность расчетов во многом зависит от правильною прогноза спроса на продукцию данного склада и определения необходимых товарных запасов в натуральных единица. Эта задача достаточно просто решается с помощью су шествующих компьютерных программ, которые позволяют анализировать множество вариантов хранения товаров в крупной внешней таре (контейнерах, бочках) и стройматериалов (пиломатериалов, сетки и т.д.)

На практике различают следующие основные «типы-размеры» складов: 600; 800; 1000; 1250; 2500; 5000; 7500; 10000; 25000 м2. При этом, чем больше площадь складского помещения, тем легче и рациональнее может быть размещено технологическое оборудование под хранение груза и использованы технические средства, а значит, имеются возможности для повышения уровня механизации. Для улучшения условий эксплуатации современных высокопроизводительных подъемно-транспортных машин и механизмов необходимо стремиться к единому пространству склада без перегородок и с максимально возможной сеткой колонн (или пролетов склада). Наилучшим вариантом, с этой точки зрения, является однопролетный склад (например, с шириной 24 м). Стандартные размеры сетки колонн: 6х6; 6х12; 12х12; 12х18; 18х18; 18х24.

Более 80% грузов на складах этих типов приходится на тарно-штучную продукцию.

В этом случае потребность в обшей складской площади можно определить по формуле:

 (1)

где: E - вместимость (емкость) склада;s - коэффициент использования площади;- средняя нагрузка на 1 кв. м. площади складирования при высоте укладки 1м;- высота складирования.

 (2)

где: Q - заданный грузооборот склада в год (т); x - средний срок хранения груза в днях; - число дней поступлении груза в год.

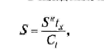
Для складов торговли приемлема и другая формула расчета потребности в складской площади

 (3)

где: SH - норматив складской площади на 1 условный поддон товарного запаса (м2);x - товарные запасы, подлежащие хранению на складе (руб.); t - стоимость 1 условного поддона товарных запасов (руб.).

В качестве условного поддона принимается грузовая единица, сформированная на стандартном плоском поддоне размером 800x1200 мм (высота поддона 150 мм) при высоте укладки товара 1050. Объем условного поддона равен 1 куб, м. Последнюю формулу целесообразно применять при расчете потребности в складской плошали на перспективу. Норматив складской плошали зависит от особенностей типа здания и хранимого товара.

2. Определение производительности погрузочно-разгрузочных машин

№ Вар

Показатель


Тип и марка ПРМ

Модель автомобиля

Вид груза

Время раб. цикла, с

Коэф. исп. раб. врем. ПРМ

Вид операции

9

Автопогрузчик 4045

КамАЗ-43106

Поддоны плоские, масса брутто 3,3т

89

0,81

Разгрузка контейнеров с автомобиля на склад


Таблица 2: Краткая техническая характеристика

Показатель

Автопогрузчик 4045

Грузоподъемность, т При максимальном вылете крюка На вилах

 1,5 5


Расчет технической и эксплуатационной производительности ПРМ:

Производительность ПРМ - это общая масса грузов, погружаемых/разгружаемых погрузочно-разгрузочной машиной за единицу времени.

Различают техническую и эксплуатационную производительность.

Расчет технической производительности ПРМ

Под технической производительностью машины понимают то количество груза, которое может погрузить /выгрузить данная машина за 1 ч непрерывной работы при оптимальных условиях работы (т.е. при максимальном использовании грузоподъемности, быстром заполнении всего объема ковша и т.д.). Техническая производительность указывается в паспорте машины. Техническая производительность погрузочно-разгрузочных машин и устройств с рабочим органом циклического действия определяется по формуле

т = (3600·q м) / Тц, (3)

где q м - масса единицы погружаемого груза, т;

Тц - продолжительность одного рабочего цикла машины (от начала подъема груза до начала следующего подъема), с;

/ Тц - число рабочих циклов за 1 ч работы.т = (3600·3,3) / 89 = 133,2 (т/ч)

Расчет эксплуатационной производительности ПРМ

Эксплуатационная производительность машин устанавливается в конкретных условиях эксплуатации. При ее определении учитывают использование машины по времени и использование грузоподъемности в зависимости от вида груза и его объемной массы. Эксплуатационная производительность необходима для составления проектов механизации погрузочно-разгрузочных работ, расчета производственной программы, определения потребного количества машин, установления норм времени простоев подвижного состава под погрузкой-разгрузкой.

Эксплуатационная производительность определяется по формуле

э = Wт ·зu·гг, (4)

где Wт - техническая производительность машины;

гг - коэффициент использования ПРМ по грузоподъемности;

зu - коэффициент использования ПРМ по времени в течение смены.

гг = qф / qн, (5)

где qф - фактическая грузоподъемность, т;н - грузоподъемность автокрана, т.

гг = 3,3/ 5= 0,7э = 133,2 ·0,81·0,7 = 75,5 (т/ч)

. Определение нормативного времени простоя автомобиля под погрузкой-разгрузкой

Таблица 3: Исходные данные

№вар.

Модель подв. Состава

Масса поддона брутто,т

Погрузка

Разгрузка

9

Урал-43202-01

0,7

Автокранами

Автопогрузчиками


Таблица 4: Параметры грузового бортового автомобиля Урал-43202-01

Грузоподъёмность, т

Внутренние размеры кузова, м

Погрузочная высота, м


 Длина

 Ширина


7

4,50

2,32

 1,53


Таблица 5: Параметры поддона номинальной грузоподъемностью 0,7 т

Тип поддона

Габаритные размеры, м


Ширина

Длина

Плоские

0,8

1,2


Нормы времени простоя под погрузкой и разгрузкой на 1 т груза определяются по «Единым нормам времени на перевозку грузов автомобильным транспортом».

Необходимо учитывать, что единые нормы времени установлены при простое автомобилей под разгрузкой и загрузкой грузов первого класса (кроме контейнеров) на одну тонну. Для грузов 2, 3 и 4 классов нормы времени применяются с поправочными коэффициентами, которые определяют исходя из среднего фактического коэффициента использования грузоподъемности автомобиля при условии полной загрузки его кузова по допускаемому габариту (объему).

для грузов 1-го класса 1,0; для  2-го класса   1,25 (1/0,8); для 3-го класса 1,66 (1/0,6);   для 4-го класса   2,0 (1/0,5).

Рис.1.Схема размещения поддонов в кузове автомобиля Урал-43202-01

Так как нормы времени простоя бортовых автомобилей, перевозящих грузы в пакетах механизированным способом, учитывают время и на погрузку, и на разгрузку, то норма времени на погрузку определяется по формуле:

tнорма погр1 = tнорма1 / 2, (6)

где tнорма1 - норма времени простоя бортовых автомобилей, перевозящих грузы в пакетах механизированным способом, мин/т груза.

tнорма погр1 = 5,10 / 2= 2,55 мин

Норма времени на разгрузку бортовых автомобилей, перевозящих грузы в пакетах механизированным способом, определяется по формуле:

tнорма погр2 = tнорма2 / 2, (7)

где tнорма2 - норма времени простоя бортовых автомобилей, перевозящих грузы в пакетах механизированным способом, мин/т груза, при осуществлении разгрузки другим погрузочно-разгрузочным средством.

tнорма погр2 = 6,80 / 2=3,4 мин

Время на полную погрузку/разгрузку автомобиля определяется по формулам:

tпогр = tнорма погр1·qа; (8)

tразгр = tнорма погр2·qа, (9)

где qа - грузоподъемность автомобиля, т;

Для автомобиля Урал-43202-1 = 7 т. Рассчитываем по формулам (8,9)

tнорма погр1 - норма времени на погрузку, установленная на 1 т, мин/т.

tнорма погр2 - норма времени на разгрузку, установленная на 1 т, мин/т.

tпогр =2,55 ·7 =17,85мин=0,30 часа

tразгр = 3,4 ·7 =23,8 мин=0,40 часа

Время простоя автомобиля определяется по формуле:

tпр = tпогр + tразгр, (10)

tпр = 0,30+0,40=0,70 часа

Таблица 6: Исходные данные

Номер варианта

Модель автомобиля

Масса контейнера брутто, т

9

КрАЗ-260

1,25


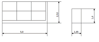
Таблица 7: Параметры грузового бортового автомобиля КрАЗ-260

Грузоподъемность, т

Внутренние размеры кузова,м

Погрузочная высота, м


 Длина

Ширина


9,5

 5,00

 2,52

 1,56


Таблица 8: Параметры контейнера

Номинальная масса брутто, т

Габаритные размеры, м

Собственная масса, кг


Ширина

Длина

Высота


1,25

1,05

 1,6

2,0

280


:

Рис. 2. Схема размещения контейнеров в кузове автомобиля КрАЗ-260

Нормы времени простоя под погрузкой и (или) разгрузкой на 1 контейнер определяется по «Единым нормам времени на перевозку грузов автомобильным транспортом».

Норма времени простоя бортового автомобиля при погрузке контейнеров определяется по формуле:

tнорма погр1 = tнорма1 / 2, (11)

где tнорма1 - норма времени простоя бортовых автомобилей, приведенных на погрузку и разгрузку одного контейнера.

При массе контейнера 1,25 т время простоя определяем по нормам простоя бортовых автомобиле под погрузкой/разгрузкой контейнеров механизированным способомнорма1 = 4 мин

tнорма погр1 = 4 / 2 = 2 (мин)

Время простоя на полную грузоподъемность автомобиля при погрузке определяется по формуле:

tпогр. = tнорма погр1*N, (12)

где tнорма погр1 - норма времени на погрузку, установленную на 1 контейнер, мин;- количество контейнеров, шт.

Количество контейнеров определяется исходя из размеров кузова автомобиля и габаритов контейнера.

Исходя из размеров кузова автомобиля и габаритов контейнера в кузов может поместиться 6 контейнеров. Рассчет по формуле (12)

tпогр. = 2*6 = 12мин

При определении времени простоя бортового автомобиля под разгрузкой контейнеров вручную без снятия их с автомобиля необходимо учитывать, что в «Единых нормах времени на перевозку грузов автомобильным транспортом» нормы времени простоя приведены на выгрузку, следовательно, норма времени на выгрузку определяется по формуле

tнорм разг = (нормз +норм доп (N - 1)), (13)

где нормз - норма времени простоя автомобиля при выгрузке грузов на первый контейнер, мин;


Таблица 9: Норма времени простоя автомобилей при разгрузке вручную грузов в контейнер без снятия его с автомобиля

Масса контейнера, т

Норма времени простоя автомобиля при погрузке или выгрузке грузов, мин


на первый контейнер

На 2 и каждый последующий

Свыше 0,5 до 1,25

15,0

10,0


tнорм(разг) = (15 +10 (6 - 1)) = 65мин = 1,08ч.

Время простоя под погрузкой-разгрузкой определяется по формуле:

tпр = tнорм(разг)+tпогр, (14)

tпр = 65 + 12= 77мин = 1,28 часа

. Решение задачи выбора универсального или специализированного автомобиля

Таблица 10: Исходные данные

№вар.

Модель автомобиля

Значение показателя



VТ, км/ч

в

г

 9

КамАЗ-53212

32

0,59

0,91


КамАЗ-55111

32

0,59

0,91


Расчет часовой производительности бортового автомобиля в функции расстояния перемещения груза Lег

Часовая производительность бортового автомобиля в функции расстояния перемещения груза Lег рассчитывается по формуле:

бч= (qб· г · в ·VТ) / (Lег + в· VТ · tбпр), (15)

где qб - грузоподъемность грузового автомобиля, т;

г - коэффициент использования грузоподъемности;

в - коэффициент использования пробега;Т - техническая скорость, км/ч;ег - длина ездки с грузом, км;бпр - время простоя бортового автомобиля под погрузкой-разгрузкой, ч.

Для КамАЗ-53212 qб = 10 т

бпр = tнорма * qб, (16)

бпр = 1,85*10=18,5мин=0,31 часаег - возьмем 10,20,30,40,50 кмбч= (10*0,91*0,59*32) / (Lег +32*0,59*0,31) = 171,81/(Lег +5,85)т

Подставим Lег = 10,20,30,40,50 км в полученную формулу и получим:

Таблица 11.Часовая производительности в зависимости от длины ездки с грузом

Длина ездки с грузом

10

20

30

40

50

Часовая производительность

10,83

6,65

4,79

3,75

3,07

Расчет часовой производительности автомобиля-самосвала в функции расстояния перемещения груза Lег

Часовая производительность автомобиля-самосвала в функции расстояния перемещения груза Lег рассчитывается по формуле

сч= (qс· г · в ·VТ) / (Lег + в· VТ · tспр), (17)

где qс - грузоподъемность грузового автомобиля, т;

г - коэффициент использования грузоподъемности;

в - коэффициент использования пробега;Т - техническая скорость, км/ч;ег - длина ездки с грузом, км;спр - время простоя автомобиля-самосвала под погрузкой-разгрузкой, ч.

Для КамАЗ-55111 qб = 13 т.

tспр = tнорма · qс, (18)

спр = 0,83*13 = 10,79мин=0,18 часаег - возьмем 10,20,30,40,50 км

сч= (13*0,91*0,59*32) / (Lег+ 32*0,59*0,18) = 223,35/(Lег+3,40) т

Подставим Lег =10,20,30,40,50 в полученную формулу:

Таблица 12. Часовая производительность в зависимости от длины ездки с грузом

Длина ездки с грузом

10

20

30

40

50

16,6

9,5

6,69

5,15

4,18


Графическая зависимость часовой производительности бортового автомобиля и автомобиля-самосвала от расстояния перевозки груза

Совместим:

Таблица 13. Совместная зависимость часовой производительности в зависимости о длины ездки с грузом

Длина ездки с грузом

10

20

30

40

50

Часовая производительность (бортовой)

10,83

6,65

4,79

3,75

3,07

Часовая производительность (самосвал)

16,6

9,5

6,69

5,15

4,18

 

Рис. 3. График зависимости производительностей от длины ездки

Расчет величины равноценного расстояния теоретически по формуле

р = Vт·в·((qб·∆t) / ∆q - tбпр) (19)

где ∆q - разница грузоподъемностей автомобилей бортового и самосвала, т;

∆t - время, на которое сокращается простой под погрузкой-разгрузкой специализированного автомобиля, ч.

∆t = 0,31-0,18= 0,13 часа

∆q =10-13 = -3 тр = 32*0,59*((10*0,13) / (-3)- 0,31) =-13,97км.

По графику видно, что у этих транспортных средств нет равноценного расстояния, при котором их производительность была бы одинакова, поэтому для перевозки навалочных грузов выбираем в данном случае автомобиль-самосвал КамАЗ-55111, т. к. его производительность гораздо выше, чем у бортового автомобиля.

Самосвал чаще всего используется для перевозки так называемых навалочных или сыпучих грузов. Так же существуют самосвалы, для разгрузки которых используют наклон всего автомобиля. Основное преимущество самосвала перед бортовым грузовиком на одном и том же шасси состоит в том, что не надо тратить время на разгрузку.

. Определение потребного количества автотранспортных и погрузочно-разгрузочных средств для освоения заданного грузооборота пункта

Таблица 14. Исходные данные

№вар.

 Показатель


Объем перевозок, т/ч

Длина ездки с грузом, км

Коэф. неравном. зн

Погрузка

Разгрузка

9

55

13

1,15

Козловыми кранами

Автопогрузчиками


Модель подвижного состава - Урал-43202-01

Масса поддона брутто - 0,7 т

Грузоподъемность автомобиля - 7,0 т

По формуле (5):

г = (0,7*6)/7=0,6

К=1/0,6=1,67

Время простоя автомобиля под погрузкой определяется по формуле:

tнорма погр1 = (tнорма1 / 2)·К, (20)

норма1 =4,40 мин

tнорма погр1 = (4,40/ 2)·1,67 =3,67мин=0,06ч,

Время простоя автомобиля под разгрузкой определяется по формуле:

tнорма погр2 = (tнорма2 / 2)·К, (21)

tнорма погр2 = (6,80 / 2)·1,67=5,68мин=0,09ч

Время простоя автомобиля под погрузкой-разгрузкой определяется по формуле:

пр = (tнорма погр1+ tнорма погр2)*q, (22)

пр = (3,67+5,68)·7 = 65,45 =1,09 ч

Рассчитаем часовую производительность бортового автомобиля по формуле:

бч= (qб· г · в ·VТ) / (Lег + в· VТ · tбпр), (23)

Определим необходимое количество автомобилей по формуле:

А = Qч/ Pбч, (24)

где Qч - исходный объем перевозимого груза, т/ч;бч - часовая производительность бортового автомобиля, т/ч.

А = 55 / 2,18=25,23

Определим время оборота автомобиля на маршруте по формуле:

об = Lег/(Vт·в) +tпр, (25)

где Lег - длина ездки с грузом, км;т - техническая скорость, Vт = 24 км/ч;

в - коэффициент использования пробега (в=0,5);пр - время простоя под погрузкой-разгрузкой.об = 10/(24·0,5) +1,09= 1,92 ч

Рассчитаем интервал движения автомобилей по формуле:

= tоб / А, (26)

= 1,92 / 25,23= 0,08

Определим количество постов на погрузочном и разгрузочном пунктах по формуле:

п(р) = (tп(р)·зн) / I, (27)

где зн - коэффициент неравномерности прибытия автомобилей в пункт погрузки(разгрузки)п = (0,06*7·1,2) / 0,08 = 6,3р = (0,09*7·1,2) / 0,08 = 9,45

Заключение

Поставленная цель была достигнута.

В ходе проделанной курсовой, было доказано, что введение механизации погрузочно-разгрузочных работ в транспортный процесс способствует улучшению технико-экономических показателей работы автотранспортного предприятия.

Техническая производительность погрузочно-разгрузочной машины зависит от грузоподъемности и числа рабочих циклов. А эксплуатационная производительность зависит от используемой машины по времени и грузоподъемности, а также от вида груза.

Определяя время простоя под погрузкой-разгрузкой автомобиля, перевозящего поддоны и контейнеры, учитывали, что погрузка и разгрузка осуществлялись механизированным способом различными видами ПРМ. А при нахождении времени простоя под погрузкой-разгрузкой автомобиля, перевозящего контейнеры, норма времени на погрузку рассчитывалась исходя из того, что она осуществлялась вручную без снятия контейнеров с автомобиля.

Приняли решение в выборе универсального или специализированного автомобиля, исходя из наибольшей производительности, используя графическую зависимость часовой производительности бортового автомобиля и автомобиля-самосвала от расстояния перевозки грузов.

Определили необходимое количество постов на погрузочно-разгрузочных пунктах и количество бортовых автомобилей общего назначения для освоения заданного объема перевозок.

Таким образом, были выбраны рациональные методы организации погрузочно-разгрузочных работ на автомобильном транспорте, а также приобретены навыки умения работать с нормативной литературой.

Список используемой литературы

1. Батищев И.И. Организация и механизация погрузочно-разгрузочных работ на автомобильном транспорте / И.И. Батищев. - М.: Транспорт, 1988. - 367 с.

2.       Единые нормы времени на перевозку грузов автомобильным транспортом и сдельные расценки для оплаты труда водителей. - М.: Экономика, 1990. - 48 с.

.         Нормативы времени на погрузочно-разгрузочные работы, выполняемые на железнодорожном, водном и автомобильном транспорте: в 2 ч. - М.: Экономика, 1987. - Ч.I. - 240 с.

.         Нормативы времени на погрузочно-разгрузочные работы, выполняемые на железнодорожном, водном и автомобильном транспорте: в 2 ч. - М.: Экономика, 1987. - Ч.II. - 250 с.

.         Погрузочно-разгрузочные работы: справочник строителя / М.П. Ряузов [и др.]. - М.: Стройиздат, 1976. - 412 с.

.         Тростянецкий Б.Л. Автомобильные перевозки: задачник / Б.Л. Тростянецкий. - М.: Транспорт, 1988. - 238 с.

.         Афанасьев Л.Л. Единая транспортная система и автомобильные перевозки. - М.: Транспорт, 1984. - 333 с.

.ВельможинА.В., Гудков В.А., Миротин Л.Б. Грузовые автомобильные перевозки, 2006.

Похожие работы на - Погрузо-разгрузочные работы и складские комплексы

 

Не нашли материал для своей работы?
Поможем написать уникальную работу
Без плагиата!
Без нейросетей!