Структура, организация работы и технологии перегрузочно-складских и транспортных комплексов при мультимодальной перевозке канцелярской продукции в ящиках

  • Вид работы:
    Курсовая работа (т)
  • Предмет:
    Транспорт, грузоперевозки
  • Язык:
    Русский
    ,
    Формат файла:
    MS Word
    276,21 Кб
  • Опубликовано:
    2016-03-23
Вы можете узнать стоимость помощи в написании студенческой работы.
Помощь в написании работы, которую точно примут!

Структура, организация работы и технологии перегрузочно-складских и транспортных комплексов при мультимодальной перевозке канцелярской продукции в ящиках

МИНИСТЕРСТВО ОБРАЗОВАНИЯ И НАУКИ РОССИЙСКОЙ ФЕДЕРАЦИИ

ГОСУДАРСТВЕННОЕ ОБРАЗОВАТЕЛЬНОЕ УЧРЕЖДЕНИЕ ВЫСШЕГО ПРОФЕССИОНАЛЬНОГО ОБРАЗОВАНИЯ

"ЮЖНО-РОССИЙСКИЙ ГОСУДАРСТВЕННЫЙ ПОЛИТЕХНИЧЕСКИЙ УНИВЕРСИТЕТ имени М.И. Платова (НОВОЧЕРКАССКИЙ ПОЛИТЕХНИЧЕСКИЙ ИНСТИТУТ)"




КУРСОВОЙ ПРОЕКТ

НА ТЕМУ: Структура, организация работы и технологии перегрузочно-складских и транспортных комплексов при мультимодальной перевозке канцелярской продукции в ящиках

Новочеркасск, 2015 г.

СОДЕРЖАНИЕ

Введение

. Анализ исходных данных и характеристика условий перегрузки заданного груза

1.1 Анализ транспортных условий и описание технологии доставки груза

.2 Краткая характеристика деятельности и технической оснащенности железнодорожной станции Брест-Северный

.3 Транспортная характеристика груза и средств укрупнения груза

.4 Анализ технологии перегрузочного процесса и выбор схемы механизации ПРР

. Расчет основных параметров схемы механизации ПРР

.1 Определение расчетного грузооборота станции

2.2 Определение вместимости и площади склада путем метода элементарных площадок

2.3 Пропускная способность фронта обработки ж/д платформ

2.4 Пропускная способность склада

.5 Выбор погрузочно-разгрузочного оборудования и определение их количества

2.6 Выбор технологической схемы перегрузочного оборудования

.7 Расчет состава комплексной бригады

.8 Выработка комплексной бригады за смену

. Разработка технологической карты на погрузочно-разгрузочные работы с применением грузоподъемных кранов

Заключение

Список использованных источников

пропускной способность погрузочный грузоподъемный

ВВЕДЕНИЕ

В настоящее время большое число операций производят машины. Невозможно себе представить погрузо-разгрузочные работы без машин, способных погрузить большую массу груза, что особенно важно сегодня, когда объемы перевозок постоянно растут.

Оптимизация погрузо-разгрузочных работ является важнейшей частью в производственной сфере.

Правильный выбор погрузо-разгрузочных средств способен не только ускорить процесс погрузки-разгрузки, но и позволяет сэкономить значительные средства, вследствие чего уменьшается стоимость погрузо-разгрузочных операций.

Погрузо-разгрузочные работы - одна из самых востребованных услуг при любых грузовых перевозках.

Смешанные и интермодальные перевозки - это перевозки с использованием нескольких видов транспорта, которые предусматривают перегрузку, перевалку груза с одного вида транспорта на другой, сортировку и складирование. Перегрузка, перевалка груза сама по себе - сложный технологический процесс: сухопутные перевозчики передают груз морским или авиа перевозчикам или наоборот.

Железнодорожный транспорт наряду с другими видами транспорта обеспечивает нормальное производство и обращение продукции промышленности и сельского хозяйства.

При перевозке грузов выполняется множество грузовых операций, которые выполняются механизированными дистанциями погрузочно - разгрузочных работ (МЧ), имеющие все необходимые средства механизации и автоматизации для выполнения грузовых операций.

Целью данного курсового проекта является разработка технологии работы грузовой станции, рассмотрение таких вопросов как выбор и обоснование схем комплексной механизации и автоматизации переработки грузов, рациональный выбор типа подвижного состава для перевозки грузов, выбор и определение параметров складов, а также организации централизованного завоза и вывоза груза и другие.


1. Анализ исходных данных и характеристика условий перегрузки заданного груза

1.1 Анализ транспортных условий и описание технологии доставки груза

 

Исходные данные:

Базисное условие поставки - DAF

Склад грузоотправителя - Россия

Склад грузополучателя - Польша

Система организации перевозок - трейлерная

Таблица 1.1

Характеристика заданного груза

Вид груза

Масса единицы груза, т

Габаритные размеры, м

Объем всей партии по договору, ед.

Канцелярская продукция в ящиках

0,1

1,6*0,8*0,9

150·104


По условию необходимо доставить партию груза в ящиках (канцелярская продукция) из России в Польшу. Заданное базисное условие поставки DAF (Delivered At Frontier - поставка до границы) предполагает, что продавец выполнил поставку, когда он предоставил неразгруженный товар, прошедший таможенную очистку для экспорта, но еще не для импорта на прибывшем транспортном средстве в распоряжение покупателя в названном пункте или месте на границе до поступления товара на таможенную границу сопредельной страны. Под термином "граница" понимается любая граница, включая границу страны экспорта (рис.1.1). Поэтому, весьма важно точное определение границы путем указания на конкретный пункт или место.

Данный термин может применяться при перевозке товара любым видом транспорта, когда товар поставляется до сухопутной границы.

В данном курсовом проекте рассматривается трейлерная перевозка с использованием автомобильного и железнодорожного транспорта.

Трейлерная система перевозки - система доставки товаров укрупненными грузовыми местами - трейлерами, т.е. автомобильными прицепами или полуприцепами, которые выступают в качестве укрупненного грузового места.

Рис.1.1 Базисное условие поставки DAF

При этом трейлеры (полуприцепы или даже тягачи с прицепами) перевозятся на других видах транспорта - железнодорожном (па платформах) и морском (суда - паромы и суда типа "Ро-Ро" (Ro-Ro), т.е. суда с горизонтальным способом погрузки-разгрузки).

Главное при этом способе - отсутствие перегрузки груза с одного вида транспорта на другой, так как перегружается сам трейлер - грузовое место. Кроме этого ускоряется процесс отправки товара - при перегрузочных и складских операциях применяются как вертикальные крановые схемы погрузки-выгрузки, так и горизонтальные - с использованием различных тягачей.

Недостатками трейлерной системы перевозок являются низкий уровень использования грузоподъемности подвижного состава - железнодорожных платформ, морских и речных судов. Это обусловлено конструктивными особенностями транспортных средств, предназначенных для перевозки трейлеров; высока стоимость трейлеров, тягачей, различного рода приспособлений, а также судов типа "ро-ро", которая в 2-3 выше стоимости ячеистых контейнеровозов такой же вместимости.

Основные достоинства трейлерной системы перевозок таковы: в целом меньшая капиталоемкость по сравнению с системой контейнерных перевозок; возможность перевозки широкой номенклатуры грузов; обеспечение свободы грузоотправителей и перевозчиков в выборе способов перевозки грузов и вариантов укрупнения в зависимости от их вида, возможностей использования смежных видов транспорта, имеющихся в данном регионе, оговаривание сроков доставки грузов.

Рис.1.2 Транспортно-технологическая схема доставки груза

Продавец после таможенной очистки груза по экспорту в пункте отправления (Москва) оформляет документы и грузит товар на автомобильный полуприцеп - трейлер, в котором груз доставляется до железнодорожной станции Москва - Товарная и перегружается на платформу вместе с трейлером. Далее груз следует до станции Брест-Северный (Беларусь), где он должен перегружаться с одной колеи на другую. В нашем случае, груз доставляется в Польшу, расстояние от Беларуси примерно 700 км, целесообразно перегрузить груз на автомобильный тягач. Грузополучатель принимает перегрузку груза на себя и доставляет на свой склад в Польше. Он обязан уплатить предусмотренную договором купли-продажи цену товара и нести все расходы, связанные с товаром, с момента его доставки, включая расходы по выгрузке товара, необходимые для принятия поставки товара с транспортного средства в названном месте на границе.

1.2 Краткая характеристика деятельности и технической оснащенности железнодорожной станции Брест-Северный

Станция Брест-Северный является пограничной внеклассной грузовой перегрузочной станцией, которая расположена в Брестском железнодорожном узле Белорусской железной дороги на магистрали "Западная Европа-Россия" [5]. Именно на станции Брест-Северный осуществляется перегрузка грузов, следующих по территории Республики Беларусь и проходящих транзитом, с колеи 1435мм на колею 1520мм. Через Брест проходит транзитный коридор №2 Берлин-Варшава-Брест-Минск-Москва, который соединяет Германию, Польшу, Беларусь и Россию. Европейский союз определил его как высший приоритет среди Критских коридоров в связи с важным значением проходящих по нему торговых потоков между Востоком и Западом. Протяженность транспортного коридора №2 по территории Беларуси составляет 606 километров (рис.1.3).

Рис.1.3 Транспортный коридор №2 (Берлин-Варшава-Минск-Москва-Нижний Новгород

. Терминал по переработке грузов, перевозимых на открытом подвижном составе состоит из:

·              открытой выгрузочной площадки, площадью - 9600,0м2, для переработки с/х машин, колесной техники, труб металлических, металлоконструкций, грузов в ящичной упаковке, оборудования, металла, рельсов, крупнотоннажных контейнеров. Техническое оснащение - 2 козловых крана грузоподъемностью - 32 тонны, козловой кран грузоподъемностью 50 тонн, кран козловой грузоподъемностью - 30 тонн и кран козловой грузоподъемностью - 12,5 тонн.

·              открытой, совмещённой перегрузочной площадки для перегрузки среднетоннажных, крупнотоннажных контейнеров, площадью - 8250,0м2, оборудованной тремя козловыми кранами грузоподъёмностью от 5 до 20 тонн, вместимостью до 32-х вагонов.

·              открытой площадки для тяжеловесных и негабаритных грузов весом одного места до 160 тонн, оборудованной тяжеловесным козловым краном грузоподъёмностью 160 тонн.

·              открытой площадки, повышенный путь, для переработки насыпных и навалочных грузов, площадью 12291,6м2, оборудованной козловым краном грузоподъемностью 12,5 тонн с наличием навесного оборудования: электрогидравлического грейфера, виброразгрузчика, гидравлического люкозакрывателя и др.

·              открытой площадки для выгрузки тарно-штучных грузов (цемент, кирпич на поддонах, тротуарная плитка, минеральная вата, гипсокартон,ж/б изделия, лес, металл, сталь, швеллеры, трубы), площадью 3619,0м2, для хранения грузов имеется бетонная площадка площадью 6031,25м2. Техническое оснащение - 3 козловых крана грузоподъемностью от 10 до 32 тонн.

·              крытой перегрузочной рампы, площадью 4800,0м2, для переработки грузов требующих защиты от атмосферных осадков. Техническое оснащение - 2 мостовых крана грузоподъемностью до 30 тонн.

 

Рис.1.4 Открытая выгрузочная площадка 44 - 45 пути

2. Терминал по переработке грузов, перевозимых в крытом подвижном составе, который состоит из:

·              склада ангарного типа с рампой, площадью 5100,0м2, для переработки скоропортящихся грузов, тарно-штучных грузов на поддонах, легковесных грузов, грузов в пакетах и мешках.

·              склада ангарного типа с рампой, площадью 6150,0м2, для переработки тарно-штучных грузов на поддонах, легковесных грузов, грузов в пакетах и мешках.

·              склада ангарного типа с рампой, площадью 2800,0м2, для переработки тарно-штучных грузов на поддонах, легковесных грузов, грузов в пакетах и мешках.

·              открытой перегрузочной рампы для переработки крытых вагонов со взрывоопасными и химическими грузами, площадью 4800м2.

Переработка грузов из крытых вагонов производится малогабаритными погрузчиками "Linda", "Nissan", "Toyota", "Pimespo" грузоподъёмностью 1,5 - 3 т.

. Терминал по переработке крупнотоннажных и рефрижераторных контейнеров, который состоит из:

·              открытой выгрузочной площадки СВХ открытого типа, площадью 11252,0м2, для перегрузки среднетоннажных и крупнотоннажных контейнеров, с/х техники и различного оборудования, оборудованной четырьмя козловыми кранами грузоподъёмностью от 32 до 50 тонн.

·              комплекса по переработке рефконтейнеров открытого типа, площадью 5563,0м2, оборудованного системой подключения рефконтейнеров для поддержания температурного режим. Комплекс оборудован козловым краном грузоподъемностью 40 тонн [5].

Для перегрузки нашего груза воспользуемся терминалом по переработке грузов, перевозимых на открытом подвижном составе.

1.3 Транспортная характеристика груза и средств укрупнения груза

Канцелярская продукция относится к тарно-штучным грузам.

Тарно-штучные грузы отличаются значительным разнообразием видов тары, упаковки, формы и объемно-массовых характеристик отдельных грузовых мест. В зависимости от объемно-массовых характеристик тарно-штучные грузы подразделяются на четыре группы. Первую группу составляют грузы, имеющие массу отдельных мест менее 500 кг. Их, как правило, перевозят в крытых вагонах и универсальных контейнерах. Тарно-штучные грузы второй группы (тяжеловесные с массой одного места более 500 кг), третьей группы (длинномерные и громоздкие длиной 3 м, шириной 2,6 м, высотой 2,1 м) и четвертой группы (негабаритные) перевозят в открытом подвижном составе.

Погрузку в трейлер будем производить в ящиках, так как из-за их большого размера использовать поддон нецелесообразно.

По заданию объем всей партии груза составляет 1500000 единиц массой по 0,1 т каждая. Для перевозки груза возьмем полуприцеп МАЗ-93802-012, представленный на рис.1.5.

Рис.1.5 Полуприцеп МАЗ-93802-012

Внутренние размеры: Длина - 9,84 м Ширина - 2,42 м Высота - 2,32 м Объем - 55 куб.м. Грузоподъёмность - 14 тонн [6].

Основной тягач, используемый для данного полуприцепа - МАЗ-54329.

Для перевозки трейлеров по ж/д используется платформа модели 13-9009 [7].

Рис.1.6 Платформа модели 13-9009 (для седельных автопоездов)

1.4 Анализ технологии перегрузочного процесса и выбор схемы механизации ПРР

Под вариантами работы понимают перегрузку с одного вида транспорта на другой, с транспорта на склад или обратно, а также внутристанционное перемещение (из одного склада в другой). Вариант работы характеризуется начальным и конечным местоположением груза.

Например, вариант вагон - склад означает перегрузку груза из вагона на склад станции, вариант автотранспорт - вагон - выгрузку груза из автотранспорта и погрузку в вагон, минуя склад.

Варианты работы, при которых груз перемещают с одного вида транспорта на другой, называют прямыми, варианты работы, связанные с прохождением груза через склад - складскими. Технологические процессы перегрузочных работ по всем вариантам состоят из технологических операций. Автотранспортную операцию выполняют в кузовах и на прицепах магистральных автотранспортных средств, осуществляющих завоз грузов на станцию и вывоз их со станции.

Принимаем следующие варианты: автотранспорт - ж/д транспорт; ж/д транспорт - автотранспорт; ж/д транспорт - склад; склад - автотранспорт. Здесь под термином склад понимается открытая площадка для отстоя трейлеров или хранения съемных кузовов.

Строповка/ расстроповка полуприцепов осуществляется с помощью козлового крана, оснащенного грузозахватным устройством - траверсой (рис.1.7).

Рис.1.7 Схема строповки полуприцепа

Полная схема строповки представлена на листе 2 (190700.62.К15.141.ЭПО 02 00).

2. Расчет основных параметров схемы механизации ПРР

2.1 Определение расчетного грузооборота станции

Суточный грузопоток - это движение грузов по путям сообщения в сутки.

Грузооборот - объем транспортной работы железнодорожного транспорта, основной показатель его работы по грузовым перевозкам -суточный грузопоток с которым выполняется погрузочно-разгрузочные работы и складские операции на рассматриваемой станции, рассчитывается на основании заданного годового грузооборота.

Расчет выполняется по формуле:

 

где Qгод - годовой грузооборот, т;

kн = 1,05- коэффициент неравномерности прибытия и отправления грузов [2];

- число суток работы склада в году.

Количество платформ под погрузку в сутки:

Nсут = == 25 ед.

где 17,2 т - норма загрузки железнодорожной платформы.

 

где mтр = 5 т - масса снаряженного полуприцепа;

mгр = 3,6 т - масса груза, помещенного в полуприцеп.

Количество платформ в 1 подаче:

Nпод = =  = 8 ед,

где z=3- среднесуточное количество подач (уборок) [2].  Грузоподъемность 1 подачи:

Qпод = = т/под

Длина фронта погрузки:

Lф=  lb = 8 25,5 = 204 м.

где lb = 25,5 м - длина платформы по осям автосцепки.

Длина фронта погрузочно-разгрузочных работ со стороны автотранспорта рассчитывается по формуле:

Lф.а. =  =  26,9 м

где Qг - годовой грузооборот, m;

aa = 1,35 - коэффициент суточной неравномерности подвоза или вывоза груза автотранспортом [8];

la - фронт, потребный для одной машины, м.

При установке машины вдоль склада это расстояние равно:

lа = lм + C1 = 10,1 + 4,2 = 14,3 м

где  = 10,1 м - длина автомашины;

tа = 0,7 ч - средняя продолжительность погрузки - выгрузки автомобиля с учётом его маневрирования при въезде на грузовой двор и отправлении с грузового двора [8];

qн = 8,6 т - средняя нагрузка одного автомобиля;

Т = 24 ч - продолжительность работы автотранспорта в течении суток [8].

2.2 Определение вместимости и площади склада путем метода элементарных площадок

Линейные размеры площадки зависят от схемы размещения полуприцепов. При выборе схемы размещения полуприцепов на площадке необходимо предусмотреть проходы шириной 1м для свободного доступа к каждому полуприцепу, хотя бы к одной его стороне. Ширина площадки ограничивается параметрами средств механизации, а длина зависит от прямой схемы размещения полуприцепов.

Емкость склада определяется по формуле:

Ек = (zкпр · tхрпр + zкот · tхрот) · (1-kп ) = (25·1 + 24·1,5)  (1- 0,2) = 49 мест

где tхрпр = 1 сут.- нормативное время прибытия [2];

tхрот = 1 сут. - нормативное время отправления [2];

kп = 0,2 -коэффициент, учитывающий долю груза прямой отправки [2].

zкпр = Qсутпр / qк = 432/17,2 = 25 шт.

zкот = Qсутот / qк = 423/17,2 = 24 шт.

Размеры элементарной площадки для хранения полуприцепа определяются по формуле:

х = 2,5 + 0,1 = 2,6 м

у = 213,6 + 0,1 + 0,6 + 5,98 = 33,88 м

Ширина площадки равна:

Bф = Lпр - 21,5 = 16 - 21,5 = 13 м

где Lпр = 16 м - величина пролета крана.

Число прицепов, располагающихся по ширине склада:

nп = Bф/х = 13/2,6 = 5 шт

Длина склада:

Lк = Eк/ n = 49/5 = 9,8 м

Lскл = Lку / 2 = 9,833,88 / 2 = 167 м

Площадь площадки для полуприцепов:

F = Lскл Bф = 167 13 = 2171 м2

2.3 Пропускная способность железнодорожного перегрузочного фронта

Пропускная способность железнодорожного фронта определяется по формуле:

Пв = 24 nв Сфв / [τв] = 24  25 17,2 / 12 = 860 т/ч

где τв = 12ч - норма выработки [ 3]

Интенсивность:

Jв = Пв / kв tэ = 860 / 1 ∙ 21,4 = 40,2 т/ч

где kв = 1 - коэффициент использования оборудования;

tэ - оперативное время работы оборудования в течение суток:

tэ = kтп  nсм  tсм = 0,85  3  8 = 21,4 ч.

где kтп = 0,85 - технологические перерывы [3]; nсм = 3 - количество смен; tсм = 8 ч - продолжительность смены.

2.4 Пропускная способность склада

Пропускная способность склада определяется его вместимостью и сроком хранения груза:

Пск = Еск/tхр = 49/3 = 16,

где Еск = 49 мест - емкость склада; tхр = 3 суток - время хранения груза на складе [2].

Число подач, обрабатываемых на фронте за сутки:

mпод = nв/ nвп = 25/8 = 3,

где nв = 25 шт [раздел 2.1.] - количество платформ под погрузку в сутки; nвп = 8 шт [раздел 2.1.] - количество платформ в 1 подаче.

Схема склада представлена на листе 1 (190700.62.К15.141.ЭПО 01 00).

2.5 Выбор погрузочно-разгрузочного оборудования и определение их количества

В соответствии с Транспортным уставом железных дорог Российской Федерации в местах общего пользования грузовых районов на ж.-д. станциях выполняются операции погрузки в вагоны и на автомобили, а также выгрузки из них грузов и контейнеров, сортировки грузов и контейнеров. Для выполнения операций, связанных с погрузкой в вагоны и выгрузкой из них грузов и контейнеров, места общего пользования должны иметь надлежащим образом оборудованные сооружения и устройства для бесперебойной, сохранной обработки вагонов, контейнеров, обеспечения сохранности грузов, а также отвечать природоохранным требованиям. Осуществление этих операций производится погрузочно-разгрузочными машинами и оборудованием. Для грузовых работ используют подъемно-транспортные машины, в т. ч. грузоподъемные машины циклического действия, машины непрерывного действия, различные устройства наземного и подземного транспорта и т. д.

Для погрузки-разгрузки железнодорожной платформы воспользуемся козловым краном КДКК-10 [9].

Необходимое количество определяется по формуле:

Мmin = ∑Qсут  kн / nсм Псм (365 - Tр) = 432 1,05 / 3 60 (365 - 60) = 0,01, где Псм = Нвыр;

Нвыр = 60 т/см - норма выработки для данного оборудования;

Tр = 60 сут - количество дней в ремонте.

Принимаем 1 козловой кран грузоподъемностью 10т.

2.6 Выбор технологической схемы перегрузки трейлеров

Для осуществления технологии перегрузки груза в трейлерах, приняты следующие варианты:

1. Автотранспорт-вагон: козловой кран;

. Автотранспорт-склад: козловой кран;

. Автотранспорт-вагон: тягач;

. Автотранспорт-склад: тягач.

Описание вариантов 1,2:

Обменные кузова, контейнеры или седельные полуприцепы перегружают с автомобильного на железнодорожный транспорт и обратно с помощью имеющихся на терминалах козловых кранов, а также с помощью тягачей. Скорость перегрузки зависит от типа и числа перегрузочных устройств.

На железнодорожном транспорте козловые краны получили широкое распространение на перегрузке контейнеров, тяжеловесов и других грузов. В козловых кранах реализуется три самостоятельные операции: подъем -опускание груза на требуемую высоту, перемещение груза по мосту крана поперек обслуживаемой площадки.

Недостатки козловых кранов:

·              Наличие в местах передвижения грузоподъёмного механизма мёртвых зон между ног крана.

·              Ограничение высоты подъема высотой ног крана (чем больше высота подъёма, тем выше стоимость крана).

·              Чувствительность крана к погодным условиям (ветровые нагрузки).

·              Более высокая стоимость токоподвода к козловому крану в отличие от мостового крана.

·              Более сложная эксплуатация металлоконструкции и механизмов козлового крана в отличие от мостового крана так как козловые краны преимущественно используется на открытом воздухе (клим. исполнение У1)

·              Более дорогая стоимость перевозки козлового крана до места сборки в отличие от мостового крана.

·              Более сложный монтаж козлового крана в отличие от мостового крана (более высокая стоимость монтажа).

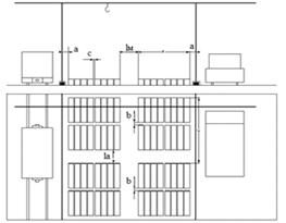
Рис.2.1 Схема размещения груза на элементарной площадке для козлового крана

Технологическая схема перегрузки полуприцепов с помощью тягача состоит из перегрузочного терминала, на котором осуществляется снятие полуприцепа с фуры, установка его на вагонную раму, которая путём поперечного сдвига перемещает груз на специализированную жд платформу.  Такая технология значительно сокращает время погрузки по сравнению с крановым оборудованием. Последовательная перегрузка полуприцепов или контейнеров краном с автотранспорта на железнодорожную платформу занимает несколько часов, в то время как перегрузка с помощью тягача позволяет сократить этот процесс до 15 минут. Кроме того, большим преимуществом такой системы является возможность переноса грузов с европейской колеи на колею 1520 и обратно, в том числе на электрифицированных участках.

Рис.2.2 Передача съемных кузовов с автомобильного на железнодорожный транспорт

Производительность по каждому варианту:

Р = 3600  q / t ,

где q = 8,6 т - масса груза в одном "подъеме";

t - продолжительность цикла, сек [3]

t1 =  +  +  +  +  +  +  = 68 + 28 + 29 + 28 + 28 + 28 + 8 = 217 с

где  = 68 с - время застропки;

 = 28 с - время расстропки;

= 29 с - время перемещения груза;

= 28 с - время перемещения в порожнем состоянии;

 = 28 с - время подъема;

 = 28 с - время опускания груза;

 = 8 с - поворот крана.

Аналогично: t2 = 108,5 c; t3 = 150 c; t4 = 75 c.

1. Р = 3600 8,6 / 217 = 142,7 т/ч

2. Р = 3600  8,6 / 108,5 = 285,3 т/ч

. Р = 3600  8,6 / 150 = 206,4 т/ч

4. Р = 3600  8,6 / 75 = 412,8 т/ч

2.7 Расчет состава комплексной бригады

Процесс по перегрузке груза складывается из совокупности операций, совершаемых с ними в технологических линиях. При этом ряд операций по перемещению груза выполняется кранами, управляемыми машинистами-операторами, а ряд операций - рабочими на станции, например, строповка и расстроповка груза, крепление груза. Численность бригады в технологической линии складывается из количества рабочих, занятых на выполнении операций по соответствующему варианту перегрузки.

По схеме с применением козлового крана: 1 машинист крана, 2 стропальщика, 4 человека для крепления и раскрепления груза на платформе.

По схеме с применением тягача: 1 водитель тягача, 4 человека для крепления и раскрепления груза на платформе.

Итак, при работе по схеме с применением козлового крана работают 1+2+4 = 7 чел.; по схеме с применением тягача - 1+4 =5 чел.

2.8 Выработка комплексной бригады за смену

Определим производительность технологической линии по формуле:

Н = Pтех  Tоп ,

где Pтех - техническая производительность линии;

Tоп = 6,13 ч/см - оперативное время за смену [3].

. Н = 142,7 6,13 = 874,8 т/см

. Н = 285,3 6,13 = 1748,9 т/см

. Н = 206,46,13 = 1265,2 т/см

. Н = 412,8 6,13 = 2530,5 т/см

Определим выработку комплексной бригады за смену по каждому варианту:

Вр = Н/n,

где n - количество людей в бригаде по каждому варианту.

. Вр = 874,8 /7 = 124,9 т/см

. Вр = 1748,9 /7 = 249,8 т/см

. Вр = 1265,2 /5 = 253,1 т/см

. Вр = 2530,5 /5 = 506,1 т/см

По результатам произведенных расчетов видно, что применение тягача обеспечивает максимальную производительность перегрузки полуприцепов.

. РАЗРАБОТКА ТЕХНОЛОГИЧЕСКОЙ КАРТЫ НА ПОГРУЗОЧНО-РАЗГРУЗОЧНЫЕ РАБОТЫ С ПРИМЕНЕНИЕМ ГРУЗОПОДЪЕМНЫХ КРАНОВ

Технологическая карта (ТК) является основным документом, характеризующим процесс перегрузки грузов (табл.3.1).

Табл.3.1

Технологическая карта перегрузки трейлеров на железнодорожной станции

N схемы

Технологические схемы

Область эффективного применения схемы

Расстановка

Выработка рабочего, т/см

Производительность технологической линии, т/см

Назначение схемы




в том числе по операциям







Автотранспортная

Складская

Вагонная

всего




1

Автотранспорт (козловой кран)-вагон

любой

1/0

2/1

4/0

7/1

124,9

874,8

Схема применяется для перегрузки полуприцепа с автомобильного транспорта на жд платформу с помощью козлового крана

2

Автотранспорт (козловой кран)- склад

1/0

2/1

-

3/1

249,8

1748,9

Схема применяется для перегрузки полуприцепа с автомобильного транспорта на склад с помощью козлового крана

3

Автотранспорт (тягач)-вагон

любой

1/0

-

4/0

5/0

253,1

1265,2

Схема применяется для перегрузки полуприцепа с автомобильного транспорта на жд платформу с помощью тягача

4

Автотранспорт (тягач)-склад

любой

1/0

1/0

-

2/0

506,1

2530,5

Схема применяется для перегрузки полуприцепа с автомобильного с помощью тягача транспорта на склад


Описание технологического процесса по схемам (1-4)

Автотранспортная операция

Производится разгрузка ТС ( отсоединение полуприцепа от тягача). По схемам 2 и 4 грузы помещаются на склад при помощи козлового крана, оснащенным захватным устройством, и тягача соответственно.

Складская операция

Грузы хранятся на открытой площадке. По схемам 1 и 2 производится застропка груза с помощью козлового крана (застропное устройство - траверса). Складирование полуприцепов должно осуществляться в соответствие с утвержденной схемой и разметкой складской площади, регламентирующей величину расстояний между ними и отдельно стоящими полуприцепами. Запрещается складирование полуприцепов в 2 яруса.

Вагонная операция

Производится погрузка груза на платформу и крепление груза на платформе. По схемам 1 и 2 погрузка осуществляется с помощью козлового крана, оснащенным захватным устройством; по схемам 3 и 4 - с помощью тягача.


Заключение

В ходе выполнения курсового проекта мною были усвоены основные правила и принципы организации погрузочно-разгрузочных работ трейлерной перевозки.

В курсовом проекте были представлены технологии работ с трейлером в соответствии с исходными данными. Технологии работ представлены с учетом требований Правил перевозок грузов железнодорожным транспортом, Технических условий погрузки и крепления грузов, Правил технической эксплуатации железных дорог Российской Федерации. При определении типа платформы для наиболее рациональной перевозки, мною получены навыки по правильному выбору подвижного состава, что играет немаловажную роль для обеспечения безопасности процесса перевозок, уменьшения эксплуатационных расходов а, следовательно, снижении себестоимости перевозок и провозной платы, взимаемой с перевозчиков.

При определении суточного грузо- и вагонопотоков по предложенной методике в методических указаниях к выполнению курсового проекта, изучила правила расчета данных величин для данного типа груза.

Определение технико-эксплуатационных расчетов по исходным данным позволило мне обосновать правильность выбора наиболее рациональной технологии работ с заданным грузом. Были произведены расчеты по двум вариантам комплексной механизации погрузочно-разгрузочных работ с грузом. Применяемые в вариантах средства механизации были выбраны на основе анализа всех применяемых для данного типа груза способов механизации. По результатам произведенных расчетов была определена наиболее целесообразная технология работы с полуприцепами (применение тягача для перегрузки на платформу).

Список использованнох источников

1. Яркин Е.К. Эксплуатация перегрузочного оборудования: учебно- методическое пособие к выполнению курсового проекта / Яркин Е.К., Романенко В.Е. Юж.-Рос. гос. политехн. ун-т (НПИ) им. М.И. Платова. Новочеркасск: Лик, 2015.

2. Бойко Н.И., Чередниченко С.П. Транспортно-грузовые системы и склады: Учеб. пособие, - Ростов н/Д.: Феникс, 2007.

3. Единые нормы выработки и времени на вагонные автотранспортные и складские погрузочно-разгрузочные работы, - М.: транспорт, 1977.

. РД 31.41.01.01-79 Карты типовых и опытных технологических процессов перегрузочных работ в морских портах, Москва 1980.

5.[Электронный ресурс]//. - Режим доступа: http://brestlogistic.by/ index.php?catid=260:2013-03-14-06-53-37&id=153:-6&Itemid=258&option= com_content&view=article.

6.[Электронный ресурс]//. - Режим доступа: http://www.rosavto-spb.ru/pages/service/polupricep/maz/005.html.

.[Электронный ресурс]//. - Режим доступа: http://foto-transporta.ru/main.php?g2_itemId=125960.

8. [Электронный ресурс]//. - Режим доступа: http://www.transportgood.ru/tgos-1110-3.html.

. [Электронный ресурс]//. - Режим доступа: http://scbist.com/zh-d-stati/2936-statya-kozlovye-krany.html.

Похожие работы на - Структура, организация работы и технологии перегрузочно-складских и транспортных комплексов при мультимодальной перевозке канцелярской продукции в ящиках

 

Не нашли материал для своей работы?
Поможем написать уникальную работу
Без плагиата!
Без нейросетей!