Особенности разработки и расчета параметров привода
Контрольная
работа
по
дисциплине
«Детали
машин»
На тему
Энергосиловой
и кинематический расчёты параметров привода
Выполнил
О.
Гарбуз
1. Исходные данные для задания
Вращающий момент
Тт, Нм - 740;
Частота вращения
пт, мин-1 - 170;
Типовый режим
нагружения - средний нормальный Л;
Срок службы L, год - 7;
Коэффициент
перегрузки Ш - 1,4;
Коэффициент
суточного использования Кс - 0,45;
Коэффициент годового использования
Кг - 0,5.
Рисунок 1.1 -
Кинематическая схема привода
Рисунок 1.2 - График
типовых режимов нагружения
2.Энергосиловой и кинематический
расчёты параметров привода
Определение необходимой мощности
привода и выбор электродвигателя
При долговременном
постоянном или незначительном переменном нагружении, которое свойственно
компрессорам, конвейерам, транспортё-рам и другим механизмам, расчётная
мощность электродвигателя Рд' привода определяется через мощность на выходном
валу привода Рт, которая может быть задана или определена по тяговому усилию F, окружной скорости V, или вращательному моменту Тт,
угловой скорости вала щ т, частоте вращения nт

(1.1)
где Рт = Тт x щт x 10 -3 = 1,047 x 10-4
x Тт x nт
Рт = 1,047 x 10-4 x 740
x 170 = 13.17кВт;
з
- общий КПД привода;
з
= зр x ззк x з
(1.2)
зр
,ззк , зпк-КПД соответственно ременной и зубчатой конической передач и
подшипников качения одной передачи [1], с.11, табл.2.1;
к = 2 - число валов или
пар подшипников;
з = 0,95 x 0,94 x 0,992
= 0,87;
Рд'=
=15.13кВт
Из [1], с. 12, табл.2.2 выбираем
электродвигатель ближайшей меньшей по ряду мощности Рд в сравнении с расчётной
Рд', если перегрузка
не превышает 8% -
при постоянном нагружении;
12% - при
переменном нагружении привода.
П=
Так как перегрузка
не превышает допустимую, то выбираем электродвигатель ближайшей по ряду меньшей
мощности.
По [1], с. 12, табл.2.2
выбираем электродвигатель 4А160М6/975/1.2 мощностью
Рдв = 15кВт с частотой вращения
об/мин-1.
Где коэффициент пусковой
перегрузки:
Коэффициент максимальной
перегрузки:
Общее передаточное
число привода и его разделение по ступеням
Расчётное общее
передаточное число привода U' определяем из соотношения частот вращения вала двигателя nд и выходного вала nт:
(1.3)
Для двухступенчатого
привода, который имеет в составе ременную передачу и одноступенчатый редуктор,
исходя из расчётного значения общего передаточного числа
U´=Up´Uт´
определяем
предварительно расчётное передаточное число редуктора;
где UT - соотношение
передаточных чисел тихоходной ступени.
Передаточные числа UT' определяем с расчётом рекомендаций [1], табл.2.6, 2.7, а потом - окончательно
согласовываем с нормальным рядом передаточных
чисел согласно ГОСТ 2144-76:
UT'=3.15
Передаточное число
редуктора окончательно:
Uред=Uт=3.15.
Определяем
расчётное передаточное число Up' ременной передачи:

Значение Up' округляем до ближайшего стандартного значения ряда чисел.
Принимаем Up=1.8
Основное условие
правильного выполнения разбивки U'
не должно превышать:
Определение частоты
вращения валов привода, мощностей и вращающих моментов, передаваемых валами
Вал
электродвигателя - вал ведущего шкива
ременной передачи:
- мощность Рд' = 15.13
кВт;
- частота вращения
об/мин-1.
Вращающий момент:
Т
;
(1.4)
Т
Нм;
Входной вал редуктора -
вал ведомого шкива ременной передачи -вал шестерни тихоходной ступени
редуктора:
Рб
= Рд´x зр x зпк
= 15.13 x 0,95 x 0,99 = 14.22кВт;
Тб = Тд x Uр
x зр x зпк = 148 x 1.8 x 0,95 x 0,99 = 250.5Нм.
Тихоходный вал редуктора
- вал зубчатого колеса тихоходной ступени Рт
= Рб x зпк x ззк = 14.22
x 0,94 x 0,99 =13.23кВт;
;
Тт = Тб
x Uт x зпк x ззк = 250.5 x 3.15 x 0,94 x 0,99 = 734.4Нм.
3. Итоговые данные
расчёта
Параметры
выбранного для привода электродвигателя:
тип-4А160М6/975/1.2;
мощность - Рд = 15
кВт;
частота вращения -
мин-1
.
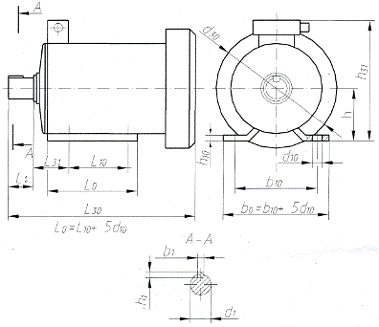
Эскиз электродвигателя с
габаритами и присоединительными размерами выбираем
по [1], табл.2.4, рис.2.2. Смотри рисунок 1.1.
Рисунок 1.1-Эскиз
электродвигателя 4А160М6/975/1,2
d30 = 358 мм; l10 = 210 мм;
l1 = 110 мм;l31 = 108 мм;
l30 = 667 мм;d10 = 15 мм;
d1 = 48 мм;b10 = 254 мм;
b1 = 14 мм;h = 160 мм;
h1 = 9 мм;h10 = 18 мм;
h31 =430 мм
Энергосиловые и
кинематические характеристики привода приведены в таблице 1.1.
Таблица 1.1 -
Расчётные данные параметров привода
|
Номер
вала
|
Частота
вращения, мин-1
|
Мощность,
кВт
|
Вращающий
момент, Нм
|
Передаточное
число
|
|
Д
|
n=975
|
Р´д=15
|
Тд=148
|
Up=1,8 Uт=3,15
|
|
Б
|
nб=541,6
|
Рб=14,22
|
Тб=250,5
|
|
|
Т
|
nт=172
|
Рт=13,23
|
Тт=734,4
|
|
Передаточное число
привода:
U = Up х UT = 3,15 x 1,8 = 5,67.
КПД привода: з =
0,87.
Ресурс работы
привода:
tУ =L x 365 x Kr x 24 x kc
где L - срок службы;
Кг - коэффициент
годового использования;
Кс - коэффициент
суточного использования;
tУ = 7 x 365 x 0,5 x 24 x 0,45 = 13797час.
Перечень ссылок
привод
кинематический энергосиловой
1.
Методичні вказівки до виконання курсового проекту
з дисципліни "Деталі машин" для студентів заочноі, дистанційноі та денноі форм навчання /Укл.: Е.Т. Білий, О.П. Ляшенко. - Запоріжжя: ЗДТУ, 2000.-85с.