Расчёт балки сводится к подбору двутавра, обеспечивающего
необходимую прочность.
Рис. 2. Расчётная схема второстепенной балки
|
Наименование
нагрузки
|
Нормативная
|
Коэффициент
надёжности
|
Расчётная
|
|
кг/м2
|
гН/м2
|
|
гН/м2
|
|
Постоянная t=1см
|
78,5
|
7,85
|
1,05
|
8,24
|
|
Вт. балки 0,02
от вр.
|
44
|
4
|
1,05
|
4,2
|
|
Гл. балка 0,02
от вр.
|
60
|
6
|
1,05
|
6,3
|
|
Временная
|
2000
|
200
|
1,2
|
240
|
|
2178,5 217,85258,74
|
|
|
|
|
Расчёт главной балки сводится к определению размеров
поперечного сечения, а так же к проверке прочности и устойчивости стенки.
Рис. 3. Расчётная схема главной балки
q=258,74×7=1811,18 гН/м,
qн=217,857=1524,95 гН/м,
.
. Q=RA=Rв.
Сталь марки Ст3сп5 (ГОСТ 27772-88) (Rу=230
МПа).
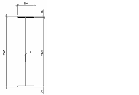
Поперечное сечение главной балки состоит из трех составных частей
(стенки и 2х поясов). Требуемый момент сопротивления
.
[RуY.
Определяю толщину стенки tст. из условия прочности на изгиб:
Aст. min=
.
Высоту стенки принимаем из условия h=L/7 =1,71 м. Толщина стенки из условия
среза равна
.
Находим толщину стенки при заданной гибкости её по формуле:
.
Принимаем кратно 0,1 см t =1,1
см. Требуемая площадь сечения балки не менее
.
Площадь сечения стенки - 50% от
, тогда оптимальная высота
h опт
=
.
Назначаю hст hст=140см. Площадь пояса равна
.
Принимаем tп=2см, тогда
bп=
.
Принимаем bп=40 см
,
,
.
Рис. 4 Сечение балки.
Для проверки сечения на прочность необходимо рассчитать момент
инерции и момент сопротивления.
.
Фактический момент сопротивления
.
Корректировать геометрические характеристики сечения не надо.
Рис. 5 Сечение балки.
Проверка прочности балки на изгиб:
,
<230МПа.
Вывод: прочность сечения балки при действии максимального
изгибающего момента обеспечена. Проверка прочности стенки балки на срез:
.
Статический момент половины сечения равен:
S1/2сеч=Ап·а+
.
.
Вывод: Прочность сечения на срез обеспечена.
Поверка прочности шва на срез.
Статический момент полки:
Sn=a·
cм3.
Величина касательных напряжений t в сварном шве.
<Rwf=185МПа.
Принимаю соединение пояса прямым швом.
.1 Изменение
сечения
В целях экономии материала в местах, где изгибающий момент
имеет малое значение, уменьшаю габариты сечения.
Рис. 6. Расчётная схема изменения сечения главной балки
.
Вычислим необходимый момент сопротивления.
см3.
Минимальная площадь сечения находится по формуле:
=
=227,97см2,тогда
см2.
Ширина полки в изменённом сечении будет равна:
см.
Принимаю bп=20см
Рис. 7. Сечение балки.
Проверка изменённого сечения на прочность при изгибе:
Для проверки прочности на изгиб требуется определить следующие
геометрические характеристики:
,
Wx=
см3,
,
< 230 МПа.
Принимаю прямой шов.
Вывод: Прочность шва на растяжение обеспечена
см2
Вывод: Жёсткость обеспечена.
3.2 Расчёт
фрикционного стыка главной балки
Необходимо рассчитать равнопрочный стык сварного двутавра с
соединениями на фрикционных шпильках. Шпильки выполнены по ГОСТ 22356-77* [4].
Сталь 40Х или 30Х3МФ "Селект” ГОСТ 4543-71* с наименьшим временным
сопротивлением Rbun = 1350 МПа [2, с.72, табл.61].
Расчётное сопротивление растяжению шпилек определяется по [2,
с.6]
Rbh = 0,7·Rbun = 0,7·1350 = 945 МПа.
Примем болты или шпильки М20 Аш = 2,45 см
[2, с.72, табл.62].
Расчётное усилие Qbh, которое воспринимается
одной поверхностью трения, равно
Qbh =
;
Где
- коэффициент трения при зачистке
поверхностей газопламенным способом [2, с.41, табл.36*];
- К коэффициент условий работы при зазоре
между болтом и стенкой от отверстия 1 мм;
Характеристики сварой двутавровой главной балки следующие:
площадь сечения А = 305,861 см2,главный
момент инерции Jx = 1058146,667 см4; момент
сопротивления Wx = 14174,45 см3.
Сталь спокойной плавки С255 (ВСт3сп5) ГОСТ 27772-88 с
расчётным сопротивлением Ry = 230 МПа [2, с.64, табл.51*], толщина t = 20-40 мм.
Фактический изгибающий момент, который способен передать
двутавр
Мф = Ry·Wx = 230·14174,45 =
3260123,5 гН·см.
Площадь полки двутавра Ап = 40·2 = 80 см2,стенки
Аст = 140·1,1 = 154 см2. Момент инерции стенки двутавра
Jст
=
= 251533,333 см4.
Часть изгибающего момента, передаваемая стенкой:
Мст = М
= 3260123,5
= 774967,92 гН·см.
Несущая способность одного болта (2 поверхности трения)
Fб =
.
Требуемый момент сопротивления одного ряда болтов при числе рядов m = 2
Стык стенки перекрываем двумя симметричными накладками толщиной
tн. ст
= 0,9 см, 2tн. ст = 2·0,9 = 1,8 > tст
= 1,1 см.
Зададим габарит болтового поля
С =
,
где
= 2 см, d = 2 см.
Определяем необходимое число болтов n в ряду из квадратного уравнения
где
n2 -
10,64n+11,64=0
n = 9,4 шт.
Примем 10 болтов.
Определяем шаг S болтов
S =
=
= 14,2 см.
Назначим шаг S = 14,5 см.
Равнопрочный фрикционный стык сварного двутавра на шпильках М20 ГОСТ 22356-77*
из стали 40Х "Селект” ГОСТ 4543-71*, Rbun = 1100 МПа. Размеры в см. Число болтов в
ряду n = 10. Число рядов m = 2. Уточняем габарит болтового поля
С = S (n - 1)
= 14,5 ·9 = 130,5 см.
Определяем плечо внутренней пары сил одного ряда болтов
Фактическая несущая способность стыка стенки
Мфст = 1562,8·265,83·2 = 830878,248 > Мст
= 774967,92 гНсм.
Прочность стыка стенки достаточна.
Расчет равнополочного стыка пояса.
Площадь поперечного сечения пояса
Площадь поперечного сечения накладок
должна быть на 9….10
больше чем площадь пояса. Для стыка пояса
примем три накладки с габаритом по ширине равным ширине верхнего пояса.
Для стыка пояса примем три накладки толщиной по tнп = 1,1см.
Пояс двутавра выдерживает силу Fпф
= 230·80 = 18400 гН.
Для стыка пояса необходимо число болтов
Примем 12 болтов М20 из стали 40Х "Селект” (болты с одной
стороны от стыка).
Минимальный шаг болтов
Фактическая несущая способность стыка пояса:
Вывод: прочность стыка пояса достаточна.
4. Расчёт
центрально сжатой колонны
Определяем размеры поперечного сечения трубчатой колонны,
обеспечивающие устойчивость её. Суммарная опорная реакция двух главных балок:
N = 2RA = 2·10867,08 = 21734,16 гH
Сталь BC 3 сп 5 (Rу=230МПа)
Задаём коэффициент продольного изгиба j = 0,8
см2.
Высоту колонны определяем с учётом:
отметки настила по заданию - 8,5 м,
высоты второстепенной балки hвт.
б=0,45м
и глубины заделки плиты колонны ниже
нулевой отметки 8,5-1,44-0,45 = 6,61м
Примем толщину стенки трубы to = 0,8 см.
Площадь сечения трубы тонкостенной
, 
Принимаем трубу Ø 500·8 мм (50·0,8 см)
Фактическая площадь сечения трубы
,
.
ix=iу=
=
,
по [3, с.9].
.
Проверка устойчивости.
1·0,905·230 =208,15 МПа
Вывод: устойчивость колонны обеспечена с запасом.
4.1 Расчёт
базы колонны
Расчёт плиты базы колонны
Диаметр плиты
= 50 + 18 = 68 см,
.
Условие прочности бетона на сжатие
;
.
По напряжению сжатия назначаем бетон соответствующей марки.
Сталь плиты B Ст 3 Кп2 ГОСТ
380-71. Rу=195 МПа
Определяем толщину плиты из условия прочности её на изгиб
Рис. 8

Кt=0,0377.
Находим изгибающие моменты в радиальном и тангенциальном
направлении
Мr=Кr·N=0,02·21734,16=434,6 гНсм,
Мt=Кt·N=0,0377·21734,16=819,37 гНсм,
W=
4,2 см3,
,
.
Проверяем условие прочности:
,
.
Прочность достаточна.
Nсв=Nср=
·Асв,
Асв=Аnл-Акол=
,
=
50·5,1=800,7 см2,Nср=5,98·1667,34=9970,69 гН,
,
,
=165,3<195 МПа.
Вывод: прочность плиты при изгибе достаточна. Прочность бетона под
плитой при сжатии обеспечена.
5. Снижение
материалоёмкости главной балки
Введём шарниры в первом и третьем пролётах так, чтобы момент
во втором пролёте и опорные моменты над двумя центральными колоннами стали
равны друг другу
,
.
Рис. 9.
q=3066,4 гН/м, qн=2578,4 гН/м.
,
,
,
.
Находим толщину стенки при заданной гибкости
по формуле:
Принимаем кратно 0,1 см t =1,8
см.
Требуемая площадь сечения балки не менее
Было
Вывод: Экономия стали 29,3%.
Площадь сечения стенки - 50% от
, тогда оптимальная высота
h опт=
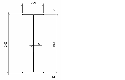
Назначаю hст hст=180см
Площадь пояса равна
Принимаем tп=2см, тогда
bп=
Принимаем bп=91 см

.
Рис. 10 Сечение балки.
Для проверки сечения на прочность необходимо рассчитать момент
инерции и момент сопротивления.
.
Фактический момент сопротивления
.
прочность обеспечена.
Проверяем жёсткость балки при нормативной нагрузке
,
жёсткость достаточна.
Проверка прочности стенки балки на срез:
.
Статический момент половины сечения равен:
S1/2сеч=Ап·а+
,
.
Вывод: Прочность сечения на срез обеспечена.
Принимаю соединение пояса прямым швом.
Список
используемых источников
1.
Металлические конструкции под общей редакцией Е.И. Беленя, Москва, Стройиздат
1986 г.
.
СНиП II-23-81* "Стальные конструкции”. Нормы
проектирования Москва, Стройиздат 1990 г.
.
СНиП 2-01-85 "Нагрузки и воздействия”, Москва Стройиздат 1986 г.