Расчет и проектирование привода ленточного конвейера
Федеральное агентство образования РФ
Московский Государственный
Технический Университет
«МАМИ»
Кафедра «Деталей машин и ПТУ»
Дисциплина: “Детали машин и основы
конструирования”
ДМ 1 вариант
Курсовой проект
На тему: Расчет и проектирование
привода ленточного конвейера
Расчетно-пояснительная записка
г. Нижневартовск
Содержание
Введение
1.
Техническое
задание
2.
Силовой и
кинематический расчет привода
3.
Расчет зацеплений
3.1 Выбор материала зубчатых колес и вида термической
обработки
.2.1 Определение допускаемых контактных напряжений для
шестерни и колеса
.2.2 Определение допускаемых напряжений при расчете зубьев на
изгиб
.2.3 Определение предельно допускаемых контактных напряжений
.2.4 Определение предельно допускаемых напряжений изгиба
.3 Определение межосевого расстояния
.4 Выбор модуля зацепления
.5 Определение основных геометрических параметров зубчатых
колес
.6 Проверка межосевого расстояния
.7 Определение окружной скорости в зацеплении
.8 Проверка значения коэффициента ширины зубчатого венца
.9 Уточнение коэффициента нагрузки
.10 Проверка величины расчетного контактного напряжения
.11 Проверка контактной прочности при кратковременных
перегрузках
.12 Проверка зубьев на выносливость при изгибе
.13 Проверка зубьев на изгиб при кратковременных перегрузках
4.
Расчет ременной
или цепной передачи
5. Расчет валов
.1 Расчет диаметров выходных концов валов
.2 Расчет диаметров валов под подшипники и под зубчатые
колеса
.3 Определение диаметра буртика под подшипник ведущего и
ведомого валов
.4 Выбор схемы установки подшипников качения
.5 Выбор смазки подшипников и зацепления
.6 Конструирование зубчатого колеса
.7 Первая компоновка зубчатого цилиндрического редуктора
.8 Проверка долговечности подшипников
.8.1 Проверка долговечности подшипников качения на ведомом
валу
.9 Второй этап компоновки редуктора
.10 Уточненный расчет валов редуктора
. Подбор подшипников качения
.1 Выбор типа и размеров подшипников качения
. Подбор шпоночных соединений
.1 Выбор шпонок
.2 Проверка шпоночных соединений
. Выбор зубчатой муфты
Список использованной литературы
Введение
Курсовой проект выполняется по дисциплине “Детали машин и основы
конструирования” и включает кинематический расчет, проектирование и выбор
основных узлов привода ленточного конвейера.
В пояснительной записке приводится последовательность кинематического
расчета привода с выбором типоразмеров стандартных узлов: электродвигателя,
редуктора, а также расчет дополнительной клиноременной передачи с клиновым
ремнем нормального сечения.
Выходной вал редуктора соединяется с валом приводного барабана при помощи
компенсирующей зубчатой муфты. Выбор зубчатой муфты осуществляется по каталогу.
Регулирование скорости конвейера в процессе работы не предусмотрено.
Курсовой проект состоит:
1. пояснительная записка
2. чертеж привода конвейера в двух проекциях.
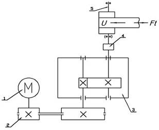
1. Техническое задание
привод кинематический редуктор клиноременный
Схема привода ленточного конвейера представлена на рисунке 1.
Рисунок 1 - Схема привода ленточного конвейера
1. Асинхронный электродвигатель серии АИР 132 М4
2. Клиноременная передача
. Одноступенчатый редуктор с цилиндрическими зубчатыми колесами
типа ЦУ
. Зубчатая муфта типа МЗ
. Вал приводного барабанного конвейера
Данные по заданию на курсовой проект:
|
Вариант
|
1
|
|
Натяжение ветвей ленты конвейера
|
F1
|
кН
|
5,8
|
|
F2
|
kH
|
2,3
|
|
Скорость ленты
|
U
|
м/с
|
2,15
|
|
Диаметр барабана
|
D
|
m
|
0,4
|
|
Ширина ленты
|
b
|
m
|
0,8
|
|
Высота центра приводной станции
|
h
|
m
|
0,75
|
|
|
|
|
|
Ресурс работы привода
|
Lh
|
тыс. час
|
18
|
Блок нагружения
Т
Т
0,4 0,3 0,3 ti/t∑
F1
F2
h
2. Силовой и кинематический расчет
.Определение Ft
=F1-F2=5,8-2,3=3,5 кН
1. Определение требуемой мощности электродвигателя приводной станции
конвейера
Выбор электродвигателя.
Мощность на валу приводного барабана определяется по формуле (1).
РБ = Ft ∙ V/Ƞn (1)
где:=3,5 кН тяговое усилие на барабане=2,15 м/с скорость ленты конвейера
Ƞn=0,99 Коэффициент полезного действия опор (на
подшипниках качения) приводного вала конвейера
Подставляя значения в формулу (1) имеем:
РБ = 3,5 ∙ 2,15/0.99 = 7,4 кВт
Значение общего КПД приводной станции конвейера определяется по формуле
(2).
hобщ = hкл.рем. ∙
hред. ∙ hмуф. ∙ hБ (2)
где:
hкл.рем. = 0,95 КПД клиноременной передачи
hред. = 0,98 КПД редуктора
hмуфт. = 0,99 КПД муфты
hБ = 0,98 КПД барабана
Подставляя значения в формулу (2) имеем:
hобщ = 0,95 ∙ 0,98 ∙ 0,99 ∙ 0,98 = 0,90
Требуемая мощность электродвигателя (кВт) определяется по формуле (3).
Ртреб.эл. = РБ / hобщ
(3)
Подставляя значения в формулу (3) имеем:
Ртреб.эл. = 7,4 / 0,90 = 8,25 кВт
Синхронная частота вращения вала электродвигателя (мин -1) определяется
по формуле (4).
nc = (60 ∙ f) / р (4)
где:=50Гц частота промышленного тока
р =2 число пар полюсов электродвигателя
Подставляя значения в формулу (2) имеем:= (60 ∙ 50) / 2 = 1500
мин -1
Исходя из вышеприведенных расчетов принимаем типоразмер двигателя - АИР
132 М4 (n = 1500 мин -1 ; Рдв = 11 кВт). При выборе электродвигателя
учитывалось, что асинхронные двигатели самые распространенные в промышленности
и могут допускать длительную перегрузку не более 5 -10 %. А также номинальная
мощность электродвигателя должна быть - Рдв ³ Ртреб.эл.
С учетом коэффициента скольжения двигателя S (%), определяем частоту
вращения вала электродвигателя по формуле (5).
nэл = nc - (nc ∙ S) / 100 (5)
Подставляя значения в формулу (5) имеем:эл = 1500 - (1500 ∙ 3,5) /
100 = 1447,5 мин -1
2. Определение кинематических, силовых и энергетических параметров
механизмов привода
Частота вращения вала приводного барабана (мин -1) определяется по
формуле (6).
nБ = (60 ∙ V) / (p ∙ ДБ) (6)
где:= 2,51 м/с Скорость ленты конвейера
ДБ = 0,4 м Диаметр приводного барабана
Подставляя значения в формулу (6) имеем:Б = (60 ∙ 2,1) / (3,14 ∙
0,5) = 80,25 мин -1
Общее передаточное отношение привода определяется по формуле (7).
Uпр = nэл / nБ (7)
Подставляя значения в формулу (7) имеем:пр = 1447,5 / 80,25 = 18
Предварительно примирим передаточное отношение клиноременной передачи
равным 3,3 ; тогда используя формулу (8) найдем передаточное отношение
редуктора.
Uпр = Uкл.рем. ∙ Uред. (8)
Имеем:ред. = Uпр / Uкл.рем. = 18 / 3,3 = 5,4
Стандартное значение передаточного отношения зубчатого редуктора Uред.ст
= 5,6. Уточним полученное значение передаточного отношения клиноременной
передачи:кл.рем.ст. = Uпр / Uред.ст. = 18 / 5,6 = 3,2
Определим значения мощности на каждом из валов привода конвейера.
Мощность на выходном валу электродвигателя (кВт) определяется по формуле
(9).
Ртреб.эл. = Ррем1 = 8,25 кВт (9)
Мощность на входном валу редуктора (кВт) определяется по формуле (10).
Р1ред. = Р2рем. = Ртреб. ∙ hкл.рем. (10)
Подставляя значения в формулу (10) имеем:
Р1ред. = Р2рем. = 8,25 ∙ 0,95 = 7,8 кВт
Мощность на выходном валу редуктора (кВт) определяется по формуле (11).
Р2ред. = Р1ред. ∙ hред. (11)
Подставляя значения в формулу (11) имеем:
Р2ред. = 7,8 ∙ 0,98 = 7,7 кВт
Мощность на валу барабана определена ранее по формуле (1) и равна:
РБ = 8,25 кВт
Определяем частоту вращения на каждом из валов редуктора.
nэл = n1рем. = 1447,5 мин -1
Частота вращения на входном валу редуктора (мин -1) определяется по
формуле (12).
n1ред = n2рем. = nэл. / Uкл.рем.ст. (12)
Подставляя значения в формулу (12) имеем:ред = 1447,5 / 3,2 = 452 мин
-1
Частота вращения на выходном валу редуктора (мин -1) определяется по
формуле (13).
n2ред. = n1ред. / Uред.ст. (13)
Подставляя значения в формулу (13) имеем:
n2ред. = 452 / 5,6 = 81мин -1
Частота вращения вала барабана равна:Б = n2рем. = 81мин -1
Определяем крутящие моменты на каждом из валов редуктора.
Крутящий момент (Нм) электродвигателя находится по формуле (13).
Тэл. = Т1рем = 9550 ∙ (Ртреб.эл / nэл.) (13)
Подставляя значения в формулу (13) имеем:
Тэл. = Т1рем. = 9550 ∙ (8,25 / 1447,5) = 54,4 Нм
Крутящий момент (Нм) на входном валу редуктора определяется по формуле
(14).
Т1ред. = Т2рем. = Тэл. ∙ Uкл.рем.ст. ∙ hкл.рем. (14)
Подставляя значения в формулу (14) имеем:
Т1ред. = 54,4∙ 3,2 ∙ 0,95 = 165 Нм
Крутящий момент (Нм) на входном валу редуктора определяется по формуле
(15).
Т2ред. = Т1ред. ∙ Uред.ст. ∙ hред (15)
Подставляя значения в формулу (15) имеем:
Т2ред. = 165∙ 5,6 ∙ 0,98 = 905,5Нм
Крутящий момент (Нм) на приводном барабане определяется по формуле (16).
ТБ. = Т2ред. ∙ hмуф. ∙ hБ (16)
Подставляя значения в формулу (16) имеем:
ТБ. = 905,5 ∙ 0,99 ∙ 0,98 = 878,5 Нм
3. Расчет зацеплений
.1 Выбор материала зубчатых колес и вида термической
обработки
При выборе материала для шестерни и колеса следует ориентироваться на
определение одной и той же марки стали, но с различной термической обработкой.
Необходимо чтобы твердость шестерни была более 40 единиц НВ, чем твердость
колеса при косых зубьях
Примем следующие механические характеристики сталей для колеса и
шестерни. [3]
Таблица №1
|
Тип зубчатого колеса
|
Марка стали
|
Вид термической обработки
|
Предельный диаметр заготовки шестерни, мм
|
Предельная толщина или ширина обода колеса, мм
|
σВ, МПа
|
σТ, МПа
|
σ-1, МПа
|
Твердость поверхности, НВ
|
|
Колесо
|
30 ХГТ
|
Цементация и закалка
|
120
|
60
|
1100
|
800
|
490
|
600
|
|
Шестерня
|
30 ХГТ
|
Цементация и закалка
|
120
|
60
|
1100
|
800
|
490
|
600
|
3.2.1 Определение допускаемых контактных напряжений для
шестерни и колеса
Примем в дальнейшем, что величины, имеющие индекс «1», относятся к
шестерни, а с индексом «2» - к колесу.
Определение
допускаемых контактных напряжений
регламентируется
ГОСТ 21354-75:
, [3]
где:
- предел контактной выносливости при базовом числе
циклов нагружения;
-
коэффициент безопасности; [3]
-
коэффициент долговечности.
Вычислим
для шестерни и колеса:
,
Вычислим
для шестерни и колеса по формуле:
, [3]
где
- значение базового числа циклов нагружения;
-
эквивалентное число циклов нагружения за весь срок службы передачи.
Вычислим
для шестерни и колеса:
;
Вычислим
для шестерни и колеса по формуле:
, [3]
где:
-
частота вращения шестерни (колеса), мин-1;
- срок
службы передачи под нагрузкой, ч;
- число
зацеплений;
-
показатель степени;
[3]
-
наиболее длительный действующий момент;
- заданы
циклограммой нагружения

Вычислим
для шестерни и колеса:
принимаем
[3]
Определим
допускаемые контактные напряжения
для
шестерни и колеса:
3.2.2
Определение допускаемых напряжений при расчете зубьев на изгиб
Допускаемые
напряжения изгиба
определяются по формуле:
[3]
где
- предел выносливости на изгиб при базовом числе
циклов нагружения;
=1,7 -
коэффициент безопасности; [3]
-
коэффициент долговечности.
Вычислим
при нормализации и улучшении:
[3]
Вычислим
по формуле:
[3]
где
- показатель степени, зависящий от твердости;
-
эквивалентное число циклов нагружения зубьев за весь срок службы передачи.
Т.к.
зависит от твердости, то
, то
. [3]
Вычислим
по той же формуле, по которой вычисляли эквивалентное
число циклов за весь срок службы передачи
при
переменной нагрузке, только при показателе степени
. [3]
Подставим
полученные значения в формулу нахождения
:
Значения
, принимаемые к расчету, могут быть в пределах
. Примем
[3]
Подставим
найденные значения
,
и
[3] в
формулу нахождения
:
3.2.3 Определение предельно допускаемых контактных напряжений
При кратковременных нагрузках (расчет на пиковые нагрузки) предельно
допускаемые напряжения определяются по эмпирическим зависимостям:
,[3]
;
.
3.2.4 Определение предельно допускаемых напряжений изгиба
При кратковременных нагрузках (расчет на пиковые нагрузки) предельно
допускаемые напряжения определяются по эмпирическим зависимостям.
, [3]
;
.
.3 Определение межосевого расстояния
Определение межосевого расстояния определяется по формуле:
,
[3]
где
i-передаточное отношение ступени редуктора
;
-
численный коэффициент; для косозубых редукторов
-
вращающий момент на валу колеса,
;
-
коэффициент ширины зубчатого венца
[3]
-
коэффициент нагрузки:
-
коэффициент, учитывающий неравномерность распределения нагрузки между зубьями,
примем
[3]
-
коэффициент, учитывающий неравномерность распределения нагрузки по ширине
зубчатого венца,
;
[3]
-
коэффициент динамической нагрузки,
[3]
Тогда

Вычисляем межосевое расстояние:
По
полученному значению
принимаем ближайшее стандартное значение по ГОСТ
2185-66;
3.4 Выбор модуля зацепления
При
твердости зубьев шестерни и колеса
:
;
По
ГОСТ 9563-80 (мм) принимаем ближайшее стандартное значение модуля:
[3]. Для косозубых колёс стандартным считают
нормальный модуль
.
3.5 Определение основных геометрических параметров зубчатых
колес
Определение суммарного числа зубьев.
Для
косозубых редукторов
. Принимаем
.
[3]
Принимаем
Тогда число зубьев шестерни:
Число
зубьев колеса:
[3]
Уточним
передаточное число:
Расхождение
с принятым ранее номинальным передаточным отношением не превышает 2,5%.
3.6 Проверка межосевого расстояния
Для
косозубых передач межосевое расстояние
определяется
по формуле:
[3]
Проверим
принятое значение 
угол
наклона
:
Определение конструктивных размеров шестерни и колеса
При
разработке конструкций зубчатых колес учитывают их геометрические размеры
, используемые для изготовления материала, способы
получения заготовок и объем выпуска изделий.
Вычислим
делительные диаметры
и
по
формулам:
.
Диаметры
вершин зубьев находим по формулам:
[3]
Диаметры
впадин
проверяем
межосевое расстояние:
.7
Определение окружной скорости в зацеплении
Окружная
скорость в зацеплении
определяется по формуле:
при
степени точности 9 равна 4м/с [3]
.8
Проверка значения коэффициента ширины зубчатого венца
Ширина
зубчатого венца колеса:
3.9
Уточнение коэффициента нагрузки
Коэффициент
нагрузки равен:
Уточненные
значения:
Уточненный
коэффициент
3.10
Проверка величины расчетного контактного напряжения
,[3]
3.11
Проверка контактной прочности при кратковременных перегрузках
где
- расчетное контактное напряжение, МПа;
.
.12
Проверка зубьев на выносливость при изгибе
, [3]
где Т2 - вращающий момент на
валу колеса,
;- коэффициент нагрузки;- делительный диаметр колеса,
мм;- ширина зубчатого венца колеса;- модуль;
Yβ - коэффициент, учитывающий наклон зубьев;-
коэффициент формы зуба, зависящий от числа зубьев
Значения [σ]F = 470,59 Мпа,
Определим отношения:
[σ]F1/YF1 = 470,59/4,07=115,62;
[σ]F2/YF2 =470,59/0,87 = 540,91.
Отношение [σ]F1/YF1> [σ]F2/YF2. Расчет выполняется для колеса
- менее прочного из пары зубчатых колес, т.е. для того, у которого отношение [σ]F/YF имеет меньшее значение.
Коэффициент
нагрузки определяется по формуле:
КFL= КFα КFβ КFV [3]
где КFα - коэффициент, учитывающий неравномерность распределения
нагрузки между зубьями; КFα =1
КFβ
- коэффициент,
учитывающий неравномерность распределения нагрузки по ширине зубчатого венца,
КFβ=1,2
[3];
КFV - коэффициент динамичности нагрузки, КFV=1,1 [3]
КFL=1,32
.
Проверка
зубьев на выносливость при изгибе:
σF2=
.13 Проверка зубьев на изгиб при кратковременных перегрузках
где
- расчетное напряжение при изгибе.
Определяем силы в зацеплении:
Определение и сведение в таблицу основных параметров зубчатой передачи
|
Основные параметры зубчатой передачи
|
Обозначение и численное значение
|
|
1
|
Вращающий момент на ведомом валу, T2=905,5
|
|
|
2
|
Угловые скорости валов, рад/с
|
=47,3
|
|
|
=8,5
|
|
3
|
Межосевое расстояние, мм
|
aw=112
|
|
4
|
Модуль, мм: нормальный
|
|
|
5
|
Угол наклона зубьев, град
|
|
|
6
|
Направление наклона зубьев шестерни
|
правое
|
|
7
|
Число зубьев: шестерни
|
=17
|
|
колеса
|
=68
|
|
8
|
Диаметр делительный, мм шестерни
|
d1=45
|
|
|
колеса
|
d2=180
|
|
9
|
Диаметр вершин, мм: шестерни
|
da1=50
|
|
|
колеса
|
da2=184
|
|
10
|
Диаметр впадин, мм: шестерни
|
df1=39
|
|
|
колеса
|
df2=173
|
|
11
|
Ширина зубчатого венца, мм: шестерни
|
b1=51
|
|
|
колеса
|
b2=45
|
|
12
|
Силы в зацеплении, Н: окружная
|
Ft=8888,89
|
|
|
радиальная
|
Fr=3410,38
|
|
|
осевая
|
Fa=2963,7
|
4. Расчет клиноременной передачи
Расчетная схема клиноременной передачи представлена на рис. 2.
Рисунок 2 - Расчетная схема клиноременной передачи
Исходные данные для расчета:
Т1рем. = Тэл.= 54,4 Нмкл.рем.= 3,2эл = n1рем. = 1447,5 мин -1
hБ = 0,98КПД барабана
Расчет проводим для клиноременной передачи нормального сечения.
Осуществим выбор сечения ремня по величине крутящего момента. Так как (50
<Трем.1 = 54,4 <150) Нм, то выбираем тип сечения ремня “В”.
Диаметр d1 (мм) меньшего (ведущего) шкива определяем по формуле (17).
d1 = kd3√ Трем.1 = (30…40) 3√ Трем.1 (17)
Подставляя значения в формулу
(17) имеем:= 40 ∙ 3,89 = 155,6 мм
Принимаем стандартный диаметр
шкива по ГОСТ 17383-73ст. = 160 мм.
Скорость ремня (м/с)
определяется по формуле (18).= p ∙ d1ст. ∙ (n1рем. /
60) (18)
Подставляя значения в формулу
(18) имеем:= 3,14 ∙ 0,16 ∙ (1447,5 / 60) = 12,12 м/с
Диаметр d2 (мм) большего
(ведомого) шкива ременной передачи определяется по формуле (19).
= d1 ∙ Uкл.рем ∙
(1 - ε) (19)
где:
ε - коэффициент упругого проскальзывания, ε = 0,01…0,02. Для расчетов принимаем значение ε равное 0,015
Подставляя значения в формулу
(19) имеем:= 160 ∙ 3,2 ∙ (1 - 0,015) = 556,3 мм.
Принимаем стандартный диаметр
шкива по ГОСТ 17383-73 d2ст. = 315 мм.
Уточенное значение
передаточного отношения клиноременной передачи определяется по формуле (20).
Uкл.рем.ут. = d2ст. / [d1ст. х (1 - ε)] (20)
Подставляя значения в формулу (20) имеем:кл.рем.ут. = 556,3 / [160 х (1 -
0.015)] = 3,5
Уточненное значение частоты вращения (мин -1) на входном валу редуктора
рассчитываем по формуле (21).
n2рем.ут. = n1рем. / Uкл.рем.ут. (21)
Подставляя значения в формулу (21) имеем:рем.ут. = 1447,5 / 3,2 = 413,5
(мин -1)
Рекомендации по выбору межосевого расстояния ременной передачи имеют вид
отображенный в формуле (22).
0,6 х (d1ст. + d2ст.) £ а¢рем. £ 1.5 х
(d1ст. + d2ст.) (22)
Предварительно принимаем а¢рем. = 0,8 х (d1ст. + d2ст.).
а¢рем. = 0,8 х (160 + 556,3) = 573 мм.
Длина клинового ремня (мм) определяется по формуле (23).
¢рем. = 2а¢рем + [p(d1ст. +
d2ст.)]/ 2 + [(d2ст. - d1ст.) 2] / 4а¢рем (23)
Подставляя значения в формулу (23) имеем:¢рем. = 2 х 573 + 1117,6+ 236,40 =
2500 мм
Полученное значение согласовываем со стандартным.рем.ст. = 2500 мм
Находим уточненное значение межосевого расстояния по формуле (24).
арем. =0,25 ∙ [(Lрем.ст. - w) + √( Lрем.ст. - w)2 -8 y] (24)
Где:
w,y - вспомогательные параметры и находятся по формулам (25) и (26)
соответственно.
w = 0,5p ∙ (d1ст.
+ d2ст.) (25)= 0,25 ∙ ((d2ст. - d1ст.) 2) (26)
Подставляя соответствующие значения в формулы (25) и (26) имеем:
w = 0,5 ∙ 3,14 ∙ (160 + 556,3) = 745,75= 0,25 ∙ ((556,3
- 160)2) = 6006,25
Сводим получившиеся значения в формулу (24).
а рем. = 0,25∙(854,25 + 825,65) = 573 мм
Число пробегов ремня в секунду определяется по формуле (27).
n = U1 / Lр.ст. (27)
Подставляя значения в формулу (27) имеем:
n = 12,12/ 1,60 = 7,58
Угол охвата ремнем меньшего шкива (град) определяется по формуле (28).
a1 = 180° - 57° ∙ [(d2ст. - d1ст.) / арем] (28)
Подставляя значения в формулу (28) имеем:
a1 = 180° - 57° ∙ [(553,5 - 160) / 510] = 159°
Значение расчетной мощности, передаваемой одним ремнем сечением “В” с
учетом действительных условий эксплуатации передачи (кВт) определяется по
формуле (29).
Ррасч. = Р0 ∙ Ca ∙ CL ∙ Cp (29)
где:
Р0 - номинальная мощность (кВт) передаваемая одним ремнем. Находится по
таблице П19 приложения и равна 2,89 кВт.- коэффициент учитывающий режим работы
ременной передачи в приводе конвейера. В соответствии с условием задания режим
работы легкий, число смен принимаем равной двум, тогда Cp = 1,1.a - коэффициент, учитывающий
действительный угол охвата ремнем меньшего шкива. Ca = 0,95.- коэффициент длины ремня.
Зависит от отношения Lрем.ст. / L0. Где L0 - базовая длина ремня в зависимости
от типа ремня. Для типа ремня “В” L0 = 2,24. Lрем.ст. / L0 = 1,60 / 2,24 = 0,71
Тогда CL = 0,84
Подставляя значения в формулу (29) имеем:
Ррасч. = 2,89 ∙ 1,1 ∙ 0,95 ∙ 0,84 = 2,54 кВт
Предварительное количество ремней в комплекте определяется по формуле
(30).
Z¢рем. = Р1рем. / Ррасч. (30)
Подставляя значения в формулу (29) имеем:
¢рем. = 7,46 / 2,54 = 2,93
В зависимости от полученного значения Z¢рем. принимаем значение коэффициента
Cz, учитывающего неравномерность распределения нагрузки по ремням. Cz = 0,90.
Расчетное число ремней с учетом неравномерности распределения нагрузки
между ремнями определяется по формуле (31).
Zрем. = Р1рем. / (Ррасч. ∙ Cz) (31)
Подставляя значения в формулу (31) имеем:рем. = 7,46 / (2,54 ∙
0,95) = 3,88
Принимаем число ремней равной 4.
Сила предварительного натяжения одного ремня (Н) сечением “В”
определяется по формуле (32).
F01 = [(850 ∙ Р1рем.∙ CL) / (U1 ∙ Ca ∙ Cp ∙ Zрем.)] + q ∙
U12 (32)
где:- масса одного метра длины клинового ремня, q = 0,3 кг / м
Подставляя значения в формулу (32) имеем:= [(850 ∙ 7,46 ∙
0,86) / (12,12 ∙ 0,95 ∙ 1,1 ∙ 4)] + 0,3 ∙ 12,12 2=
(6333,18 / 50,66) + 44,07 = 169,0 Н
Сила, действующая на валы со стороны ременной передачи (Н) определяется
по формуле (33).
в = 2 F01 ∙ Zрем. ∙ sin (a1 / 2) (33)
Подставляя значения в формулу (32) имеем:в = 2 х 169 ∙ 4 ∙
sin 79,5° = 1326,96 Н
Ширина шкива (мм) определяется по формуле (34).
М = (Zрем. - 1)∙e + 2f (34)
где:и f - параметры ремня по справочным таблицам e = 19, f = 12,5
Подставляя значения в формулу (34) имеем:
М = (4 - 1) ∙ 19 + 2 ∙ 12,5 = 82 мм.
Так как М=82 мм >l1 = 80 мм, то выбираем для шкивов тип 2.
Осевая фиксация шкивов осуществляется:
· малого шкива с помощью концевой гайки;
· большого шкива с помощью гайки и стопорной шайбы с лапкой и
носиком
Выбор редуктора
Выбор стандартного редуктора с цилиндрическими зубчатыми колесами
осуществляется на основании передаточного отношения Uред. и при выполнении
условия:
Т2ред. £
Тред.ном.
где Тред.ном. =1000Н∙м - значение номинального вращающего момента
на выходном валу для редукторов ЦУ-160.
Т2ред.= 905,5 Н∙м < Тред.ном.= 1000Н∙м
Вращающий фактический момент на выходном валу редуктора не превышает
значение номинального (допустимого) вращающего момента на выходном валу для
редуктора, следовательно, возможен выбор одноступенчатого редуктора ЦУ-160-5.6.
5. Расчет валов
На первом этапе расчета известен лишь крутящий момент, численно равный
передаваемому на вал вращающему моменту, определенному при кинематическом
расчете привода. Величину изгибающего момента определяют после разработки
конструкции вала по результатам компоновки редуктора. Поэтому проектный расчет
вала выполняют для определения диаметров его выходного конца, посадочных
поверхностей под ступицу колеса и подшипники.
.1 Расчет диаметров выходных концов валов
Находим
из условия прочности на кручение:
,
[4]
где
- крутящий момент,
;
-
допускаемое напряжение при кручении,
. Для
валов из стали 45 принимают
.
Принимаем
Рассчитаем
диаметр выходного конца ведущего вала
:
Принимаем
dв1 =38мм из стандартного ряда.
Т.к.
плоскоремённая передача, исполнение длинное
[4]
Рассчитаем
диаметр выходного конца второго (ведомого) вала
:


.
Примем
из стандартного ряда. [4]
Длина
выходного конца ведомого вала
.
.2 Расчет диаметров валов под подшипники и под зубчатые
колеса
Диаметр
вала
под подшипники определяется по следующему
соотношению:
, [4]
Выберем
диаметр
из стандартного ряда внутренних диаметров подшипников
качения:
Диаметр
под зубчатое колесо определяют по следующему
соотношению:
[4]
.
Выберем
диаметр
из стандартного ряда посадочных размеров
[1]
5.3
Определение диаметра буртика под подшипник ведущего и ведомого валов
Диаметр
определяют после выбора подшипников:
, [4]
где
- координата фаски колец подшипника качения.
где
- диаметр буртика под подшипник ведущего вала.
где
- диаметр буртика под подшипник ведомого вала.
5.4
Выбор схемы установки подшипников качения
Для обеспечения нормальной работы подшипников необходимо правильное
закрепление их на валах и в корпусе. В связи с этим валы в редукторах могут
иметь плавающие (с возможностью осевого смещения) и фиксированные (без
возможности осевого смещения) опоры.
Схема враспор используется в одноступенчатых редукторах для валов с
радиальными и радиально-упорными шариковыми и роликовыми подшипниками.
Рисунок . Схема установки подшипников
5.5 Выбор смазки подшипников и зацепления
Для смазывания подшипников качения применяют жидкие и пластичные
смазочные материалы. Назначение жидкой смазки приемлемо при окружной скорости
колёс V > 1 м/с.
Выбор сорта масла для зубчатых передач начинаем с определения необходимой
кинематической вязкости масла в зависимости от окружной скорости.
Так
как контактное напряжение
, то кинематическая вязкость при окружной скорости
будет равна
.[4]
Исходя
из этого, выбираем индустриальное масло, применяемое для смазывания зубчатых
передач, имеющее марку: И-Г-А-68. [4]
.6
Конструирование зубчатого колеса
Зубчатые колёса при соотношении da/dk <2 выполняют вместе с валом,
получая конструкцию в виде вала-шестерни. Определим размеры конструктивных
элементов цилиндрических зубчатых колёс.
Толщина
обода
;
Толщина
диска
;
Диаметр
ступицы
;
Длина
ступицы
[4]
Угол
штамповочного уклона
Радиус
закругления R=5мм;
Диаметр
отверстия d0 15…25мм
Диаметр
окружности D0 0,5(Dв + dст )
Принимаем:
=7мм;
=10мм;
=140мм;
=100мм;
.7 Первая компоновка зубчатого цилиндрического редуктора
Первый этап компоновки редуктора проводится для приближенного определения
положения зубчатых колес относительно опор для последующего расчета реакций и
проверки долговечности подшипников.[4]
Последовательность выполнения компоновки зубчатого цилиндрического
редуктора сводится к следующему:
1.
Примерно посередине листа миллиметровки, параллельно его длинной стороне
проводим горизонтальную осевую линию, затем две вертикальные линии - оси валов
на расстоянии 
.
.
Вычерчиваем упрощенно шестерню и колесо в виде прямоугольников со сторонами
и 
соответственно.
.
Очерчиваем внутреннюю стенку корпуса:
а)
принимаем зазор между торцом шестерни и внутренней стенки корпуса
, где
(не
менее 8 мм) - толщина стенки корпуса редуктора:
[4]
Так
как полученное значение
меньше
то за
расчетное значение толщины стенки корпуса редуктора будем принимать
.
[4]
б)
принимаем зазор от окружности вершин зубьев колеса до внутренней стенки корпуса
.
,[4]
в)
принимаем расстояние между наружным кольцом подшипника ведущего вала и
внутренней стенкой корпуса
[4]
.
Схематично изображаем подшипники ведущего и ведомого валов. Если подшипники
смазываются тем же маслом, что и зацепление, то предусматриваем размер
- расстояние между внутренней стенкой корпуса
редуктора и торцовой плоскостью подшипника. [4]
5.8
Проверка долговечности подшипников
.8.1 Проверка долговечности подшипников качения на ведомом
валу
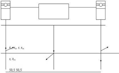
Рисунок . Расчетная схема ведущего вала
Расчетная долговечность определяется по формуле:
[4]
где
m - показатель степени;
Сr
- динамическая грузоподъемность
подшипника, Сr =42,7 кН;
n - частота вращения, n1=410мин-1;
Рэґ - эквивалентная нагрузка, Н.
Эквивалентная нагрузка определяется по формуле:
Рэ=(V·X·RR +Y·Ra)·Kт·Кб [4]
где V - коэффициент, учитывающий какое кольцо вращается, V=1;
Х
- коэффициент, учитывающий величину радиальной силы, Х=0,45;
Y
- коэффициент, учитывающий величину осевой силы;- суммарная радиальная
реакция опор, Н;
RА
- осевая сила, действующая на подшипники, ;
Кб
- коэффициент безопасности, Кб =1,5 [4];
Кт -
температурный коэффициент, Кт =1[4].
Из
предыдущих расчетов имеем:
,
Найдем
реакции опор
,
,
,
:
Рассмотрим
силы, действующие в вертикальной плоскости:
1)
)
)
Рассмотрим силы, действующие в горизонтальной плоскости:
1)
)
)
Строим
эпюры изгибающих моментов Мх и Му.
Вычислим
суммарные реакции:
[1]
[1]
Вычислим
эквивалентную нагрузку
:
где
- из циклограммы (см. рис)
считаем
для более нагруженной части:
Вычислим
номинальную долговечность в часах:
Для
зубчатых редукторов ресурс работы подшипников не должен быть менее 10000 часов
(минимально допустимая долговечность подшипника).
5.9 Второй этап компоновки редуктора
Вычерчиваем шестерню и колесо по конструктивным размерам, найденным
ранее. Шестерню выполняем за одно целое с валом.
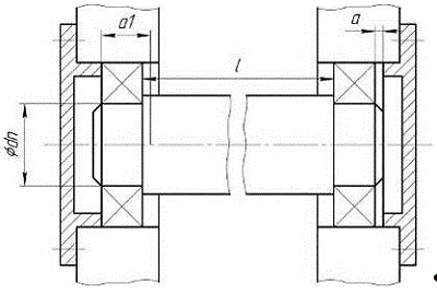
Конструируем узел ведущего вала:
а) наносим осевые линии. Используя эти осевые линии, вычерчиваем в
разрезе подшипники качения;
б) вычерчиваем крышки подшипников с уплотнительными прокладками и
болтами. Уплотнение используем манжетного типа;
Аналогично конструируем узел ведомого вала. Обратим внимание на следующие
особенности:
а) для фиксации зубчатого колеса в осевом направление предусматриваем
утолщение вала с одной стороны и установку распорной втулки - с другой;
б) отложив от середины редуктора расстояние, проводим осевые линии и
вычерчиваем подшипники;
в) вычерчиваем крышки подшипников с прокладками и болтами.
На ведущем и ведомом валах применяем шпонки призматические со
скруглёнными торцами по ГОСТ 23360-78. Вычерчиваем шпонки, принимая их длины на
5-10 мм меньше длин ступиц.
Условие выполняется, следовательно, шпонки выбраны правильно.
.10 Уточненный расчет валов редуктора
Уточненный
расчет состоит в определении коэффициента запаса прочности
для опасного сечения и сравнении их с требуемыми
(допускаемыми) значениями
. Прочность соблюдена при
.
Рисунок
. Ведущий вал с сечением 
Материал
вала тот же, что и шестерни (шестерня выполнена заодно с валом), т. е. сталь 30
ХГТ, цементация и закалка.
[1].
Предел
выносливости при симметричном цикле изгиба:
Предел выносливости при симметричном цикле касательных напряжений:
[1].
.11.1 Сечение
А- А:
1. Диаметр
вала в этом сечении 38 мм. Концентрация напряжений обусловлена наличием шпоночной
канавки.
1) Коэффициенты
концентрации напряжений:
, [1]
. где
эффективный коэффициент концентрации нормальных
напряжений;
эффективный
коэффициент концентрации касательных напряжений
)
Масштабные факторы:
[1]
где
масштабный фактор для нормальных напряжений;
масштабный
фактор для касательных напряжений;
)
Коэффициенты:
[1].
) Крутящий
момент:
) Изгибающий
момент
[1]
, т.к. Т2
>250 Нм
6) Момент сопротивления кручению :
[1]
7) Амплитуда и среднее напряжение цикла касательных напряжений:

[1]
) Коэффициент запаса прочности по нормальным напряжениям:
[1]
) Коэффициент запаса прочности по касательным напряжениям:
[1]
10). Результирующий коэффициент запаса прочности:
[1]
6. Подбор подшипников качения
6.1 Выбор типа и размеров подшипников качения
При проектировании машин подшипники качения не конструируют, а подбирают
из числа стандартных. Прежде, чем приступить к подбору подшипника, необходимо
определить его тип в зависимости от вида передачи.
Для косозубой зубчатой передачи и числа оборотов 1500 минˉ№
подбираем роликоподшипники конические однорядные. Выбор подшипников начинаем с
лёгкой серии.
7. Подбор шпоночных соединений
.1 Выбор шпонок
Для соединения вала с деталями, передающими вращение, применяем
призматические шпонки (ГОСТ 23360-78):
Таблица 3
|
Диаметр вала, d
|
Сечение шпонки, b x h
|
|
|
|
35
|
10 x 8
|
5,0
|
3,3
|
70
|
|
53
|
18 x 11
|
7,0
|
4,4
|
70
|
7.2 Проверка шпоночных соединений
Напряжение смятия и условие прочности:
Допускаемое
напряжение сжатия при стальной ступице [
]=100…120
МПа.
Проверка
шпонки на выходном конце ведущего вала:
Проверка
шпонки на выходном конце ведомого вала:
Условие
выполняется, следовательно, шпонки выбраны правильно.
8. Выбор зубчатой муфты
Жесткая компенсирующая муфта (зубчатая муфта типа М3) позволяет
компенсировать несоостность и угловые перемещения вала барабана по отношению к
валу редуктора.
Диаметр расточки втулки муфты предварительно примем равным диаметру
выходного вала редуктора dвых. = 55 мм.
Из справочной таблицы по выбору зубчатой муфты выпишем значение
вращающего момента передаваемого этой муфтой:
Мк = 1,6 кНм
Расчетный момент на выходном валу редуктора (Нм) определяется по формуле
(36):
Трасч. = Т2ред. ∙ Кр (36)
Где Кр - коэффициент, учитывающий режим работы привода конвейера Кр =
1,1.
Подставляя значения в формулу (36) имеем:
Трасч. = 588,86 ∙ 1.1 = 647,75 Нм
Условие Мк ³ Трасч. выполняется.
Справочное значение, передаваемое муфтой МЗ55Ц-1600 момента значительно
больше расчетного момента, следовательно, данная муфта может быть принята к
установке в приводе.
Число зубьев зубчатой муфты Z =40
Модуль зацепления m=3
Диаметр делительной окружности зубчатой муфты (мм) определяется по
формуле (37):
dw = m ∙ z (37)
Подставляя значения в формулу (37) имеем:= 3 ∙ 40 = 120 мм
Окружное усилие на делительной окружности муфты (Н) определяется по
формуле (38):
Ft = 2 ∙ Т2ред. / dw (38)
Подставляя значения в формулу (38) имеем:= 2 ∙ 905,5/ 0,12 = 9814,3
Н
Список используемой литературы
1. В.Е. Воскресенский. “Расчет приводов конвейеров.
Детали машин и основы конструирования.”
2. П.Г. Гузенков “Курсовое проектирование по деталям
машин и подъемно - транспортным машинам”. Москва Высшая Школа 1990
3. Н.А. Грубе, Г.И. Яковлев, Т.Г. Бочарова.
“Проектирование и расчет приводов технологического и транспортного
оборудования. Методические указания по курсовому и дипломному проектированию.”