Технология режущего инструмента
Технологический раздел
. Краткие сведения об инструменте
токарный резание обработка инструмент
Резец для обработки внутренних пазов нужен для обработки пазов детали
«Уплотнение» (черт. 214.072) на токарном станке. Резец состоит из державки,
режущей пластины, прихвата, винта, регулировочного винта, двух проставок и
винта М4×8g.
Производим технический анализ чертежа инструмента. Чертеж содержит все
необходимые виды, разрезы, сечения, дающие полное представление об
изготавливаемом инструменте.
Технические требования по изготовлению инструмента включают в себя:
твердость державки 37…43HRC.
шероховатость обрабатываемых поверхностей соответствует
Ra =
1,25…20 мкм;
точность обрабатываемых поверхностей соответствует 8 - 14 квалитету
размерной точности по ГОСТ 25346-82;
Технические требования на изготовление инструмента назначены обосновано,
исходя из условий его эксплуатации. Заданные требования по точности и
шероховатости обрабатываемых поверхностей обеспечиваются механической
обработкой поверхностей, как на автоматизированном оборудовании, так и на
универсальных станках. В соответствии с требованиями ЕСКД, допуски на
расположение поверхностей на чертежах нужно наносить условными обозначениями в
целях упрощения чтения чертежа.
2. Материал инструмента
Державка резца для обработки внутренних канавок изготавливается из Стали
40Х.
Химический состав в % материала 40Х (таблица 1):
|
С
|
Si
|
Mn
|
Ni
|
S
|
P
|
Cr
|
Cu
|
|
0,36-0,44
|
0,17-0,37
|
0,5-0,8
|
до 0,3
|
до 0,035
|
до 0,035
|
0,8-1,1
|
до 0,3
|
Технологические свойства материала 40Х (таблица 2):
|
Свариваемость:
|
трудносвариваемая.
|
|
Флокеночувствительность:
|
чувствительна.
|
|
Склонность к отпускной
хрупкости:
|
склонна.
|
Механические свойства материала 40Х (таблица 3):
|
Предел текучести σТ,Н/мм2
(кгс/мм2)
|
Временное сопротивление
разрыву σВ, Н/мм2
(кгс/мм2)
|
Относительное удлинение δ, %
|
Относительное сужение ψ, %
|
|
355(36)
|
650(66)
|
16
|
40
|
3. Определение типа производства
Для определения
типа производства рассчитаем нормирование расхода данного инструмента.
Норма расхода инструмента HP на 1000ч [1, стр 305];:
(1,1)
где:
RY - коэффициент случайной убыли, R=1,25
Σt0 - основное время по всем переходам;
ΣT = T·R
(1,2)
где:
R -число периодов стойкости, R=1,25 [1, стр
304];
Т
- нормальный период стойкости, Т = 90мин;
ΣT = 90·1,9=171
мин;
Σt0=l/Vs; (1,3)
где:
l - длина обработки с учетом длины перебега и недобега
инструмента , мм
VS - скорость подачи, мм/мин
VS = s · n; (1,4)
Где: s- подача, s=0,08 мм/мин;
n -
частота вращения, n = 250мин-1;
Σt0=(6,3+4) / 0,08·250 = 0,52 мин;
Тогда:
Годовой
расход инструмента [1,стр 304]:
; (1,5)
Где:
П - годовая программа выпуска, П = 1240шт;
Данный
инструмент, также будет использоваться для обработки других деталей то
принимаем количество инструментов n = 10шт.
Принимаем
мелкосерийное производство.
4.
Выбор заготовки
Рассмотрим
два способа получения заготовки инструмента.
Вариант
I. Заготовка из круглого проката.
Вариант
II. Штамповка, получаемая ковкой на горячештамповочном
прессе в открытом штампе.
Вариант
I:
Наружный
диаметр заготовки-проката выбираем в зависимости от максимального наружного
диаметра инструмента и от отношения длины детали к наибольшему наружному диаметру
. Таким образом, наружный диаметр проката принимаем
равным 35 мм, длина проката - 256 мм [2, с.584].
Рассчитываем
массу заготовки - проката по формуле
, (1,6)
Где:
r - плотность материала заготовки, 7.82 г/см3;
V - объем
заготовки, см3
Объем
заготовки-проката составляет
Масса
проката
Вариант
II. Припуски и допуски на поверхности детали назначаем в
соответствии с ГОСТ 7505-89.
.
класс точности - Т4;
.
группа стали - М3;
.
степень сложности - С3;
Определяем
расчетную ориентировочную массу штамповки по формуле:
,
где:
- масса детали по чертежу;
-
расчетный коэффициент для определения ориентировочной расчетной массы
штамповки,
принимаем
=1.4
(1,7)
где:
: r - плотность материала инструмента, 7.82 г/см3;
V - объем
детали, см3
тогда:
Таким
образом,
Расчетный
индекс штамповки по ГОСТ 7505-89 - 6.
В
соответствии с определенным индексом штамповки, а также в зависимости от
номинальных размеров и требуемого качества поверхности после механической
обработки назначаем основные припуски на обрабатываемые поверхности детали
(таблица 4).
Таблица 4. Определение размеров заготовки-штамповки.
|
Поверхности детали, мм
|
Основной припуск, мм
|
Допуск, мм
|
Предельные отклонения, мм
|
Расчетные размеры
штамповки, мм
|
|
Наружные поверхности
|
|
¿Æ33
|
1,0
|
0,8
|
Æ33
|
|
|
¿Æ25
|
1,0
|
0,8
|
Æ25
|
|
|
Торцовые поверхности
|
|
175,5
|
1,4
|
1,2
|
175,5
|
|
|
4,5
|
1,0
|
0,8
|
4,5
|
|
Рассчитываем массу заготовки - штамповки по формуле:
Коэффициент
использования материалов определяется по формуле
(1,8)
где:
- масса заготовки.
Таким
образом, для заготовки - проката
для
заготовки - штамповки
Себестоимость
получения заготовки определяется по формуле [3, с.66]
(1,9)
где:
С - базовая стоимость получения 1 т заготовок, руб./т.;
Сштамп
=60000руб/т
Спрок=
26600руб/т
-
коэффициент доплаты за термическую обработку и очистку заготовок, руб./т.;
т.к. термическая обработка включена в стоимость.
- масса
заготовки, кг;
-
коэффициент, учитывающий точностные характеристики заготовок;
=1 неучитывается
-
коэффициент, учитывающий серийность выпуска заготовок;
=1,15 для
штамповки [3, с.69]
- масса
детали, кг;
-
стоимость одной тонны отходов (стружки), руб.;
=2700руб/т
[3, с.70]
-
коэффициент, учитывающий инфляцию по отношению к ценам 1991 года, принимаем
=1, так как стоимость проката и штамповок принята по
производственным данным текущего года.
Таким
образом, стоимость проката составит
Стоимость
штамповки составит
Результаты
расчетов представлены в таблице 5:
Таблица
5. Технико-экономическое сравнение заготовок
|
прокат
|
штамповка
|
|
Коэффициент использования
материала
|
0.26
|
0.75
|
|
Стоимость получения, руб.
|
62.71
|
54,66
|
По расчетам видно, что штамповка больше подходит для заготовки, но партия
деталей невелика и большая стоимость оборудования для штамповки вынуждает
принять решение в пользу проката.
5. Разработка технологического процесса механической
обработки «Корпуса резца»
5.1 Базовый технологический процесс
|
№ п/п
|
Наименование операции
|
Оборудование
|
Содержание операции
|
|
1
|
2
|
3
|
4
|
|
005
|
Пилоотрезная
|
8Г662САУ
|
Отрезать заготовку от
прутка.
|
|
010
|
Термическая
|
Печь
|
Произвести термоулучшение
до 37 - 43HRC
|
|
015
|
Токарно-винторезная
|
1К62
|
Установить заготовку в
трехкулачковом патроне Точить торцы, центровать торцы. Точить Æ33, точить Æ25 Обработка
производится с переустановкой детали.
|
|
020
|
Вертикально-фрезерная
|
6Р12
|
Фрезеровать пов1, и пов.2.
Обработка производится с переустановкой детали.
|
|
025
|
Шлифовальная
|
3Б70В
|
Шлифовать пов1, и пов.2.
Обработка производится с переустановкой детали
|
|
030
|
Вертикально-фрезерная
|
6Р12
|
Фрезеровать торец,
фрезеровать гнездо под прихват, сверлить отв. Æ6,
зенковать фаску, нарезать резьбу М6-Н7, сверлить отв. Æ4, фрезеровать отв. Æ9,5,
зенковать фаску, нарезать резьбу М4-Н7, сверлить отв. Æ4, зенковать фаску, нарезать резьбу М4-Н7,
Обработка производится с переустановкой детали
|
|
035
|
Горизонтально-фрезерная
|
6М82
|
Фрезеровать паз под
пластину, фрезеровать паз t=1мм, скруглить пов. 5 r=22мм
Обработка производится с переустановкой детали
|
|
040
|
Шлифовальная
|
3Г71
|
Шлифовать паз под пластину
Обработка производится с переустановкой детали
|
|
045
|
Термическая
|
|
Поверхность крепежных
элементов и державок покрыть Хим. Окс. по ГОСТ 9.306-85
|
|
050
|
Слесарная
|
Верстак
|
Маркировать корпус
|
|
055
|
Контрольная
|
Плита
|
Произвести контроль детали
согласно чертежу
|
5.2 Критический анализ базового технологического процесса
Усовершенствовать существующую технологию с целью уменьшения трудоемкости
изготовления детали можно решить за счет более широкого применения станков с
ЧПУ, а так же специализированных станков, позволяющих увеличить количество
технологических переходов, выполняемых на одном рабочем месте и уменьшить
количество переустановов и уменьшить количество операции.
5.3 Предлагаемый технологический процесс
|
№ п/п
|
Наименование операции
|
Оборудование
|
Содержание операции
|
|
1
|
2
|
3
|
4
|
|
005
|
Ленточнопильная
|
HVBS-56M
|
Отрезать заготовку от прутка.
|
|
010
|
Термическая
|
Печь
|
Произвести термоулучшение
до 37 - 43HRC
|
|
015
|
Токарная с ЧПУ
|
16К20Ф3
|
Точить торцы, центровать
торцы. Точить Æ33, точить Æ25, сточить
фаску Обработка производится с переустановкой детали.
|
|
020
|
Фрезерно-сверлильно-
расточная
|
500VB
|
Фрезеровать пов1, и пов.2.
Фрезеровать торец, фрезеровать гнездо под прихват, сверлить отв. Æ6, зенковать фаску, нарезать резьбу М6-Н7, сверлить
отв. Æ4, фрезеровать отв. Æ9,5,
зенковать фаску, нарезать резьбу М4-Н7, сверлить отв. Æ4, зенковать фаску, нарезать резьбу М4-Н7, Обработка
производится с переустановкой детали.
|
|
030
|
Фрезерно-сверлильно-
расточная
|
500V5
|
Фрезеровать паз под
пластину, фрезеровать паз t=1мм, скруглить пов. 5 r=22мм
|
|
035
|
Плоскошлифовальная
|
3Г71
|
Шлифовать паз под пластину
|
|
040
|
Термическая
|
|
Поверхность крепежных
элементов и державок покрыть Хим. Окс. по ГОСТ 9.306-85
|
|
045
|
Слесарная
|
Верстак
|
Маркировать корпус
|
|
050
|
Контрольная
|
Плита
|
Произвести контроль детали
согласно чертежу
|
5.4 Применяемое оборудование
Ленточнопильный станок HVBS-56M предназначен для непрерывной резки
проката круглого сечения, труб, швеллеров, уголков, из всех основных
материалов.
Таблица 6:Технические характеристики:
|
Зона обработки при 90°:
|
d 125 мм, квадрат 125 мм,
прямоугольник 150×125
мм
|
|
Зона обработки при 45°:
|
Ø
95 мм, квадрат 75 мм
|
|
Размеры ленточнопильного
полотна:
|
13×0,6×1640
мм
|
|
Диапазон поворота тисков:
|
0°- 45°
|
|
Диаметр шкивов:
|
187мм
|
|
Скорости движения ленты: 3
|
20, 30, 50 м/мин
|
|
Выходная мощность:
|
0,37 кВт / S1 100 %
|
|
Входная мощность:
|
0,67 кВт / S6 40 %
|
|
Масса:
|
50 кг
|
Станок 16К20Ф3 патронно-центровой предназначен для токарной обработки
наружных и внутренних поверхностей деталей типа тел вращения со ступенчатым и
криволинейным профилями в один или несколько проходов в замкнутом
полуавтоматическом цикле, а также для нарезания крепежных резьб (в зависимости
от возможностей системы ЧПУ). Станок используют в единичном, мелко- и
среднесерийном производстве.
Таблица 7: Технические характеристики:
|
Наибольший диаметр
обрабатываемой заготовки, мм.:
|
|
над станиной
|
400
|
|
над суппортом
|
200
|
|
Наибольшая длина
обрабатываемой заготовки, мм
|
1000
|
|
Частота вращения шпинделя,
мин-1
|
35-1600
|
|
Число автоматически
переключаемых скоростей
|
9
|
|
над станиной
|
400
|
|
Скорость быстрых
перемещений суппорта, мм/мин.:
|
|
продольного
|
4800
|
|
поперечного
|
2400
|
|
Скорость подачи, мм/мин.:
|
|
|
продольного хода
|
3-1200
|
|
|
поперечного хода
|
3-500
|
|
|
Перемещение суппорта на
один импульс, мм.:
|
|
|
продольного
|
0,01
|
|
|
поперечного
|
0,005
|
|
500VB предназначен для комплексной обработки деталей из различных
конструкционных материалов в условиях единичного и мелкосерийного производства.
Станок сверлильно-фрезерно-расточный с ЧПУ 500VB имеет поворотный стол с
горизонтальной осью вращения и поворот шпиндельной бабки. Выполняет операции
сверления, зенкерования, развертывания, получистового и чистового растачивания
отверстий, нарезания резьбы метчиками и фрезами, фрезерования.
Область применения станка сверлильно-фрезерно-расточного с ЧПУ 500VB:
обработка газотурбинных лопаток, пресс-форм, штампов, турбин, моноколес, шнеков
и других деталей сложной формы на предприятиях различных отраслей
промышленности.
Наибольший диаметр сверления, мм
при двигателе мощностью 7 кВт 25, 30
при двигателе мощностью 11 кВт 28, 35
Наибольший диаметр растачивания, мм 80
Пределы диаметров нарезаемой резьбы, мм М3-М24
Наибольший диаметр торцевой фрезы, мм 80, 90
Объем снимаемой стружки при фрезеровании торцевой фрезой диаметром 80 мм
по стали 45, см3/мин
при двигателе мощностью 7 кВт 120
при двигателе мощностью 11 кВт 180
Наибольшая длина инструмента, устанавливаемого на станке, мм 250
Наибольшая масса оправки, устанавливаемой в магазине, кг 10
Наибольший диаметр инструмента, устанавливаемого в магазине, мм (без
пропуска гнезд) 80
Емкость инструментального магазина, шт. 20
Конус конца шпинделя ISO 40
Степень точности конуса конца шпинделя AT4
Таблица 8: Технические характеристики cтанка с ЧПУ 500VB:
|
Класс точности станка по
ГОСТ 8-82, (Н,П,В,А,С)
|
П
|
|
Длина рабочей поверхности
стола, мм
|
1000
|
|
Ширина стола, мм
|
630
|
|
Перемещение стола X,Y,Z, мм
|
1000_500_450
|
|
Габариты станка Длинна
Ширина Высота (мм)
|
2600_3140_3030
|
|
Масса
|
6500
|
|
Мощность двигателя кВт
|
11
|
|
Пределы частоты вращения
шпинделя Min/Max об/мин
|
0/8000
|
|
Число инструментов в
магазине
|
8
|
Станок модели 500V5
предназначен для комплексной обработки деталей из различных конструкционных
материалов
Наибольший диаметр сверления в стали 45 по ГОСТ 1050-88, мм 25
Наибольший диаметр растачивания, мм 80
Пределы диаметров нарезаемой резьбы, мм М3-М24
Наибольший диаметр торцевой фрезы, мм 80
Наибольшая длина инструмента, устанавливаемого на станке, мм 250
Наибольшая масса оправки, устанавливаемой в магазине, кг 10
Наибольший диаметр инструмента, устанавливаемого в магазине, мм (без
пропуска гнезд) 80
Таблица 9: Технические характеристики cтанка с ЧПУ 500V5
|
Класс точности станка по
ГОСТ 8-82, (Н,П,В,А,С)
|
П
|
|
Длина рабочей поверхности
стола, мм
|
320
|
|
Ширина стола, мм
|
320
|
|
Перемещение стола X,Y,Z, мм
|
1000_500_460
|
|
Габариты станка Длинна
Ширина Высота (мм)
|
2600_3140_3030
|
|
Масса
|
6500
|
|
Мощность двигателя кВт
|
11
|
|
Пределы частоты вращения
шпинделя Min/Max об/мин
|
0/8000
|
|
Число инструментов в
магазине
|
20
|
Плоскошлифовальный станок модели 3Г71 высокой точности с прямоугольным
столом, горизонтальным шпинделем и крестовым столом предназначен для шлифования
периферией круга поверхностей деталей массой до 100кг с учетом крепящего
приспособления и магнитной плиты. В определенных границах возможна обработка
поверхностей, расположенных под углом 90° к зеркалу стола.
Таблица 10: Технические характеристики cтанка 3Г71
|
Наибольшие размеры
обрабатываемых изделий(длина х ширина х высота), мм:
|
630х200х320
|
|
Наибольшее расстояние от
оси шпинделя до зеркала стола, мм:
|
80…45
|
|
Наибольшая допустимая масса
обрабатываемого изделия с учетом магнитной плиты и крепящего приспособления,
кг:
|
100
|
|
Размеры рабочей поверхности
стола (длина х ширина), мм:
|
630х200
|
|
Шлифовальная головка
|
|
|
Скорость ускоренного
перемещения, м/мин:
|
0,27
|
|
Размеры шлифовального
круга, мм:
|
250х25х75
|
|
Частота вращения
шлифовального круга, об/мин
|
2740
|
6. Расчет режимов резания
Операция 015, переход 1-3, установ В.
Глубина резания:
Черновая обработка: t = 3
мм
Получистовая обработка: t =
1,5 мм
Чистовая обработка: t =
0,5 мм
Черновая обработка
Назначаем подачу:
S=0,4мм/мин
[4,стр 266]
Скорость резания[4,стр 265]:
(1,10)
где: СV, x, y,m -коэффициент и
показатели степеней приведены в табл 17 [4, стр 269] ; СV=350; x=0,15; y=0,35;
m=0,2
- общий
поправочный коэффициент на скорость
(1,11)
где:
- поправочный коэффициент в зависимости от
механических свойств обрабатываемого материала, [4, стр 261]
(1,12)
где:
σВ = 650МПа
из данных материала
KR=1;
nV = 1 [4, стр 262]
-поправочный
коэффициент учитывающие влияние состояния поверхности;
[4,стр 263]
поправочный
коэффициент учитывающие влияние инструментального материала (Т15К6)
[4,стр 263]
Тогда:
Т-
период стойкости инструмента, 30 - 60 мин; T = 45мин
Т.к.
мы ведем обработку с СОТС то период стойкости увеличивается, для обработки
конструкционных сталей рекомендуют Укринол- 1 с коэффициентом влияющим на
период стойкости 2, тогда Т = 90мин[6,стр 180]
м/мин
Сила
резания [4, стр .271]:
(1,13)
где:
СP и показатели степени х,у,n для конкретных
условий обработки для каждой из составляющей силы приведены в табл. 22 [4, стр
.274]
СP=
300; x = 1; y = 0,75; n = -0,15
- поправочный
коэффициент, [4, стр .271]
(1,14)
Где:
- поправочный коэффициент учитывающий влияние
качества,
[4, стр
.264] (1,15)
-
поправочные коэффициенты учитывающие геометрические параметры режущей части
инструмента,
[3, стр
.275]
тогда:
Н
Частота
вращения шпинделя:
(1,16)
Из
ряда ЧВШ станка 16К20Ф3 принимаем:
тогда
фактическая скорость:
м/мин
(1,17)
Pдв - мощность электродвигателя станка, Pдв = 10кВт
η - КПД, η
= 0,85
Время
обработки:
(1,18)
Скорость
подачи:
мм/мин
Получистовая
обработка:
Назначаем
подачу:
S=0,3мм/мин
[4,стр 266]
Скорость резания:
[4,стр
265]
где: СV, x, y,m -коэффициент и
показатели степеней приведены в табл 17 [4, стр 269] ; СV=350; x=0,15; y=0,35;
m=0,2
- общий
поправочный коэффициент на скорость
где:
- поправочный коэффициент в зависимости от
механических свойств обрабатываемого материала,
[4, стр
261]
где:
σВ = 650МПа
из данных материала
KR=1;
nV = 1 [4, стр 262]
-поправочный
коэффициент учитывающие влияние состояния поверхности;
[4,стр 263]
поправочный
коэффициент учитывающие влияние инструментального материала (Т15К6)
[4,стр 263]
Тогда:
Т-
период стойкости инструмента, 30 - 60 мин; T = 45мин
Т.к.
мы ведем обработку с СОТС то период стойкости увеличивается, для обработки
конструкционных сталей рекомендуют Укринол- 1 с коэффициентом влияющим на
период стойкости 2, тогда Т = 90мин[6,стр 180]
м/мин
Сила
резания:
[4, стр
.271]
где:
СP и показатели степени х,у,n для конкретных
условий обработки для каждой из составляющей силы приведены в табл. 22 [4, стр
.274]
СP=
300; x = 1; y = 0,75; n = -0,15
-
поправочный коэффициент, [4, стр .271]
Где:
- поправочный коэффициент учитывающий влияние
качества,
[4, стр .264]
-
поправочные коэффициенты, учитывающие геометрические параметры режущей части
инструмента,
[3, стр
.275]
тогда:
Н
Частота
вращения шпинделя:
Из
ряда ЧВШ станка 16К20Ф3 принимаем:
тогда
фактическая скорость:
м/мин
Мощность
резания:
PЭ Рдв·η
где:
PЭ -
эффективная мощность при обработки,
Pдв - мощность электродвигателя станка, Pдв = 10кВт
η - КПД, η
= 0,85
тогда:
2,2 10·0,85
Время
обработки:
Скорость
подачи:
мм/мин
Чистовая
обработка
Назначаем
подачу:
S=0,13мм/мин
[4,стр 268]
Скорость резания:
[4,стр
265]
где: СV, x, y,m -коэффициент и
показатели степеней приведены в табл 17 [4, стр 269] ; СV=420; x=0,15; y=0,20;
m=0,2
- общий
поправочный коэффициент на скорость
где:
- поправочный коэффициент в зависимости от
механических свойств обрабатываемого материала,
[4, стр
261]
где:
σВ = 650МПа
из данных материала
KR=1;
nV = 1 [4, стр 262]
-поправочный
коэффициент учитывающие влияние состояния поверхности;
[4,стр 263]
поправочный
коэффициент учитывающие влияние инструментального материала (Т15К6)
[4,стр 263]
Тогда:
Т-
период стойкости инструмента, 30 - 60 мин; T = 45мин
Т.к.
мы ведем обработку с СОТС то период стойкости увеличивается, для обработки
конструкционных сталей рекомендуют Укринол- 1 с коэффициентом влияющим на
период стойкости 2, тогда Т = 90мин[6,стр 180]
м/мин
Сила
резания:
[4, стр
.271]
где:
СP и показатели степени х,у,n для конкретных
условий обработки для каждой из составляющей силы приведены в табл. 22 [4, стр
.273
СP=
300; x = 1; y = 0,75; n = -0,15
-
поправочный коэффициент, [4, стр .271]
Где:
- поправочный коэффициент учитывающий влияние
качества,
[4, стр .264]
-
поправочные коэффициенты, учитывающие геометрические параметры режущей части
инструмента,
[3, стр
.275]
тогда:
Н
Частота
вращения шпинделя:
Из
ряда ЧВШ станка 16К20Ф3 принимаем:
тогда
фактическая скорость:
м/мин
Мощность
резания:
PЭ Рдв·η
где:
PЭ -
эффективная мощность при обработки,
Pдв - мощность электродвигателя станка, Pдв = 10кВт
η - КПД, η
= 0,85
тогда:
0,34 10·0,85
,34кВт
8,5кВт
Время
обработки:
Скорость
подачи:
мм/мин
Операция
020, переход 1, установ А (переход 2)
Инструмент:
Фреза
торцовая ГОСТ 22088-76 D=66мм; z = 5; B=10мм
Глубина
резания:
t = 1мм
Назначаем
подачу:
S0=0,3мм/об [4,стр 285]
Подача
на зуб:
мм/зуб
Скорость резания:
[4,стр
282]
где: СV, q, x, y, u, p,m -коэффициент и
показатели степеней приведены в табл 17 [4, стр 285] ; СV=332; q=0,2; x=0,1;
y=0,4; р=0; m=0,2 u=0,2
- общий
поправочный коэффициент на скорость
где:
- поправочный коэффициент в зависимости от
механических свойств обрабатываемого материала,
[4, стр
261]
где:
σВ = 650МПа
из данных материала
KR=1;
nV = 1 [4, стр 262]
-поправочный
коэффициент учитывающие влияние состояния поверхности;
[4,стр 263]
поправочный
коэффициент учитывающие влияние инструментального материала (Т15К6)
[4,стр 263]
Тогда:
Т-
период стойкости инструмента; T = 180мин [4,стр 290]
z - число зубьев
м/мин
Сила
резания:
[4, стр
.282]
где:
СP и показатели степени х,у,n,q,w для
конкретных условий обработки для каждой из составляющей силы [4, стр .291]
СP=
825; x = 1; y = 0,75; n = 1,1; q = 1,3; w =
0,2
n -частота
вращения шпинделя:
Из
ряда ЧВШ станка 500VB принимаем:
тогда
фактическая скорость:
м/мин
Крутящий
момент, Н·м;
Н·м
Мощность
резания:
Pдв - мощность электродвигателя станка, Pдв = 11кВт
η - КПД, η
= 0,85
Время
обработки:
для
перехода 1:
для
перехода 2:
Скорость
подачи:
мм/мин
Режимы резания для всех операций приведены в таблице 11.
Таблица 11
|
п/п
|
Наименование операции,
переходы
|
t, мм
|
i
|
So, мм/об
|
VS, мм/мин
|
V, м/мин
|
n, мин-1
|
To, мин
|
|
015
|
Токарная с ЧПУ Установ А
Подрезать торец
|
2,5
|
1
|
0,4
|
640
|
176
|
1600
|
0,03
|
|
Центрование
|
2
|
1
|
0,1
|
31,5
|
34,6
|
315
|
0,28
|
|
Установ Б Подрезать торец
|
2,5
|
1
|
0,4
|
640
|
176
|
1600
|
0,03
|
|
Центрование
|
2
|
1
|
0,1
|
31,5
|
34,6
|
315
|
0,28
|
|
Установ В Точить Æ 25 - черновая обр. -получистовая обр. - чистовая
обр.
|
3 1,5 0,5
|
1 1 1
|
0,4 0,3 0,13
|
300 600 260
|
137 182 163
|
1250 2000 2000
|
0,34 0,28 0,65
|
|
Точить Æ 33
|
1
|
1
|
0,4
|
640
|
176
|
1600
|
0,03
|
|
Точить фаску
|
1,5
|
2
|
0,3
|
600
|
182
|
2000
|
0,1
|
|
S
|
2,02
|
|
020
|
Сверлильно-фрезерно-расточная
Установ А Фрезеровать пов. державки
|
1
|
1
|
0,06 мм/зуб
|
640
|
414
|
2000
|
0,28
|
|
Фрезеровать пов. державки
|
1
|
1
|
0,06 мм/зуб
|
640
|
414
|
2000
|
0,25
|
|
Установ Б Подрезать торец
(переход 1-3)
|
3,5
|
1
|
0,15 мм/зуб
|
72
|
10
|
60
|
0,45
|
|
Фрезеровать пов. 1
|
3
|
1
|
0,15 мм/зуб
|
102
|
17
|
85
|
0,24
|
|
Фрезеровать пов.2
|
5
|
1
|
0,08 мм/зуб
|
288
|
28
|
900
|
0,24
|
|
Фрезеровать паз под прихват
|
6
|
1
|
0,05 мм/зуб
|
280
|
26
|
1400
|
0,1
|
|
Фрезеровать неровности паза
|
3
|
1
|
400
|
19
|
2000
|
0,04
|
|
Сверлить отв. Æ 6
|
3
|
1
|
0,1
|
180
|
34
|
1800
|
0,11
|
|
020
|
Зенковать фаску 1×45º
|
1
|
1
|
0,06
|
27
|
14
|
450
|
0,04
|
|
Нарезание резьбы М6-Н7
|
1,2
|
1
|
1
|
475
|
8,9
|
475
|
0,05
|
|
Сверлить отв. Æ 4
|
2
|
1
|
0,08
|
160
|
25
|
2000
|
0,15
|
|
Фрезеровать Æ 9,5
|
9,5
|
1
|
0,05 мм/зуб
|
240
|
36
|
1120
|
0,1
|
|
Зенковать фаску 1×45º
|
1
|
1
|
0,06
|
33,6
|
14
|
560
|
0,04
|
|
Нарезание резьбы М4-Н7
|
0,86
|
1
|
0,7
|
469
|
12,6
|
670
|
0,05
|
|
Сверлить отв. Æ 4
|
2
|
1
|
0,08
|
160
|
25
|
2000
|
0,15
|
|
Нарезание резьбы М4-Н7
|
0,86
|
1
|
0,7
|
469
|
12,6
|
670
|
0,03
|
|
S
|
3,08
|
|
025
|
Сверлильно-фрезерно-расточная
Фрезеровать паз под пластину
|
4,4
|
1
|
0,1 мм/зуб
|
252
|
28
|
180
|
0,14
|
|
Фрезеровать паз t=1мм
|
1
|
1
|
0,12 мм/зуб
|
2040
|
68
|
425
|
0,02
|
|
Фрезеровать по r=22мм
|
4
|
2
|
0,08 мм/зуб
|
448
|
35
|
1120
|
0,12
|
|
S
|
0,28
|
|
030
|
Шлифовальная Шлифовать паз
под пластину
|
0,02
|
5
|
6
|
30
|
40
|
2740
|
0,2
|
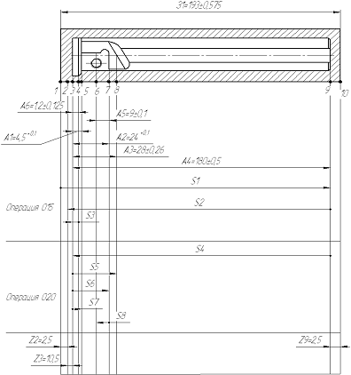
7. Расчет размерных технологических цепей
Целью размерного анализа технологического процесса является определение
операционных размеров детали (S), а
так же размера заготовки (В), с учетом величины снимаемого припуска (Z).
Исходными данными для проведения размерного анализа является
разработанный технологический процесс механической обработки детали (порядок
выполнения операционных размеров), величины размеров детали (А), а также
величина минимального технологического припуска (Z min) на обработку элементарной
поверхности на каждом переходе.

Рис. 1 Размеры на резце операционные, детали , и минимального припуска
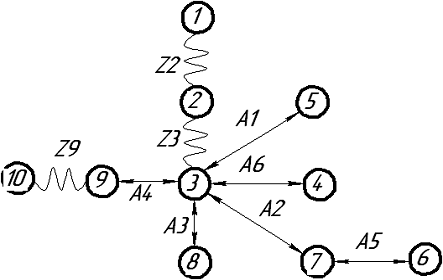
Построение исходного дерева (рис. 2):
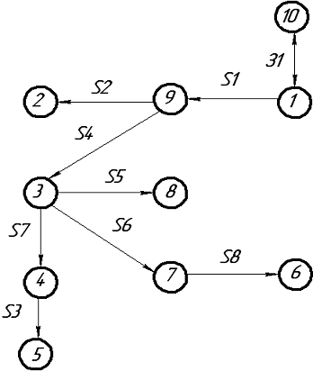
Построение производного дерева (рис. 3):
Построение совмещенного графа (рис. 4):
Производим расчет составленных технологических цепей методом полной
взаимозаменяемости.
. Размерная цепь имеет вид
А7=1,2±0,125
S3
В данной размерной цепи S3
= A7 = 1,2±0,125
. Размерная цепь имеет вид
А2=24+0,1
S6
В данной размерной цепи S6
= A2 = 24+0,1
. Размерная цепь имеет вид
А5=9±0,1
S8
В данной размерной цепи S8
= A5 = 9±0,1
. Размерная цепь имеет вид
А3=28±0,26
S5
В данной размерной цепи S5
= A3 = 28±0,26
. Размерная цепь имеет вид
А4=180±0,5
S4
В данной размерной цепи S4
= A4 = 180±0,5
. Размерная цепь имеет вид
А1=4,5+0,1
S7
В данной размерной цепи S7
= A1 = 4,5+0,1
. Размерная цепь имеет вид
¯S4 =
[Z3min] = 10.5
S2
Замыкающим звеном в данной цепи является размер [Z3min].
Размер S2 - увеличивающий - он увеличивается с увеличением
замыкающего звена.
Размер S4 - уменьшающий - он уменьшается с увеличением
замыкающего звена.
S2 = S4+ Z3min 2min
= S4min+ Z3min = 180,5 + 10,5 = 191 мм2max = S4max+ Z3min = 179,5 + 10,5 = 190 мм
Назначаем технически обоснованный допуск на выполнение операционного
размера S1.
Т S1 = 1 мм
Таким
образом,
мм.
Определяем
величину операционного припуска Z4.
Z2max = S2max - S4min =
191 - 179,5 = 11,5 мм4min = S2min - S4max = 190 - 180,5 =
9,5 мм
Таким
образом,
мм.
Выполняем
проверку по условию
=
1 + 1 = 2, следовательно, расчет выполнен верно.
.
Размерная цепь имеет вид
¯S2 =
[Z2min] = 2,5
S1
Замыкающим звеном в данной цепи является размер [Z4min].
Размер S1 - увеличивающий - он увеличивается с увеличением
замыкающего звена.
Размер S2 - уменьшающий - он уменьшается с увеличением
замыкающего звена.
S1 = S2+ Z3min 1min
= S2min+ Z3min = 189,5 + 2,5 = 192 мм1max = S2max+ Z3min = 190,5 + 2,5 = 193 мм
Назначаем технически обоснованный допуск на выполнение операционного
размера S1.
Т S1 = 1 мм
Таким
образом,
мм.
Определяем
величину операционного припуска Z4.
Z2max = S1max - S2min =
193 - 189,5 = 3,5 мм2min = S1min - S2max = 192 - 190,5 =
1,5 мм
Таким
образом,
мм.
Выполняем
проверку по условию
=
1 + 1 = 2, следовательно, расчет выполнен верно.
.
Размерная цепь имеет вид
¯S1 =
[Z1min] = 2,5
З1 =195,5±0,575
Замыкающим звеном в данной цепи является размер [Z1min].
Размер З1 - увеличивающий - он увеличивается с увеличением
замыкающего звена.
Размер S1 - уменьшающий - он уменьшается с увеличением
замыкающего звена.
Определяем величину операционного припуска Z4.
Z1max = З1max - S1min = 196,075 - 192 = 4,075 мм1min = З1min - S1max = 194,925 - 193 = 1,925 мм
Таким
образом,
мм.
Выполняем
проверку по условию
,15
= 1,15 + 1 = 3,15, следовательно, расчет выполнен верно.
8.
Расчет и назначение нормы времени
Рассчитаем
норму времени на операцию 015 Токарную с ЧПУ технологического процесса
механической обработки.
Основное
технологическое время на операцию
Тм
= 2.02 мин (см. таблицу 11)
Время
цикла автоматической работы станка по программе рассчитывается по формуле
, [8,
с.5]
где:
Тмв
- машинно-вспомогательное время работы станка по программе
(включает
в себя время на ускоренное перемещение инструмента в зону резания, на
установочные движения инструмента в зоне резания, на автоматическую смену
инструмента и т.д.), мин
[7,
с.605]
Таким
образом,
Вспомогательное
время на операцию, не перекрываемое временем автоматической работы станка по
программе, рассчитывается по формуле
, [8,
с.5]
Где:
Тв
уст - время на установку и снятие детали, мин,
Тв
оп - время, связанное с операцией, не вошедшее в управляющую программу (время
на проверку прихода инструмента в заданную точку после обработки, на установку
и снятие щитка от разбрызгивания эмульсией), мин
Тв
изм - время на технические измерения, мин
Принимаем
[8,
с.57]
[8,
с.79]
Принимаем
время на измерение поверхностей: [8, c.80-89]
Штучное
время на операцию определяется по формуле
, [8,
с.5]
где:
Кtb
- поправочный коэффициент на вспомогательное время,
а
- время на техническое и организационное обслуживание рабочего места, отдых и
личные потребности, в % от оперативного
Принимаем
Кtb = 1.32 [8, с.50]
а
= 6% [8, с.90]
Тогда,
Штучно-калькуляционное
время на операцию рассчитывается по формуле
, [8,
с.5]
где:
Тпз
- подготовительно-заключительное время на операцию
, [8,
с.8]
где:
Тпз1
- время на организационную подготовку;
Тпз2
- время на наладку станка, приспособления, инструментов;
Тпз3
- время на пробную обработку детали.
Принимаем
Тпз1
= 9 + 2+ 2 = 13 мин [8, с.96] (время на получение наряда, чертежа, комплекта технологической
документации, инструмента и оснастки (в инструментально-раздаточной кладовой),
на ознакомление с документами на инструктаж мастера).
Тпз2
= 2.5·3+0,8·3+0,3·3= 10,8 мин [8, с.96] (время на наладку станка,
приспособлений, инструмента, программных устройств).
Тпз3
= 0 мин (пробную обработку производить не будем).
Таким
образом,
Нормы
времени на операции проектного технологического процесса изготовления
представлены в таблице 12:
Таблица
12. Нормы времени на операции проектного технологического процесса
|
Операция
|
Т о., мин
|
Т в., мин
|
Кtb
|
а, %
|
Тшт., мин
|
Т п.з., мин
|
Тшт.к, мин
|
|
005 Ленточнопильная
|
0.18
|
0.4
|
1.4
|
8
|
0.80
|
12
|
3.2
|
|
015 Токарная с ЧПУ
|
2,02
|
2,74
|
1.32
|
6
|
7,18
|
23,8
|
11,94
|
|
020 Сверлильно - фрезерно
-- расточная
|
3.08
|
2,92
|
1,32
|
14
|
7,43
|
7,5
|
8,93
|
|
025 Сверлильно - фрезерно -
- расточная
|
0.28
|
2,02
|
1,32
|
14
|
3
|
3,75
|
6,75
|
|
030 Шлифовальная
|
0,2
|
1,05
|
1,32
|
8
|
1,6
|
8,5
|
10,1
|
|
|
|
|
|
|
|
|
|
|
Таблица 13 Нормы времени на операции базового технологического процесса
|
Операция
|
Т о., мин
|
Т в., мин
|
Кtb
|
а, %
|
Тшт., мин
|
Т п.з., мин
|
Тшт.к, мин
|
|
Пилоотрезная
|
0.18
|
0.4
|
1.4
|
8
|
0.80
|
12
|
3.2
|
|
Токарно-винторезная
|
2,02
|
2,74
|
1.32
|
6
|
7,18
|
23,8
|
11,94
|
|
Вертикально-фрезерная
|
0,53
|
2,92
|
1,32
|
14
|
2
|
4,6
|
2,6
|
|
Шлифовальная
|
0,4
|
1,05
|
1,32
|
8
|
1,6
|
8,5
|
10,1
|
|
Вертикально-фрезерная
|
2,55
|
2,92
|
1,32
|
14
|
5,5
|
7,5
|
6,5
|
|
Горизонтально - фрезерная
|
0.28
|
2,02
|
14
|
3
|
3,75
|
6,75
|
|
Шлифовальная
|
0,2
|
1,05
|
1,32
|
8
|
1,6
|
8,5
|
10,1
|
|
|
|
|
|
|
|
|
|
|
9. Расчет погрешности обработки
Проведем расчет погрешности для чистового точения ¿Æ25g7 токарной операции 015.
Суммарную погрешность обработки деталей определяем по зависимости [3,
стр.188]:
где:
Δи -
погрешность вызванная размерным износом, которая определяется по следующей
зависимости [3, стр.192]:
L - длина пути
резания при обработки партии N=10шт;
L0 = 1000м начальный износ вершины резца;
u0 - относительный износ для материала Т30К4 [3,
стр.276] u0=3мкм;
ΔУ -
погрешность вызванная упругими деформациями технологической системы под
влиянием силы резания [3, стр.192]:
;
Wmax;
Wmin; - наибольшая и наименьшая податливость системы;
PYmax;
PYmin - наибольшее и наименьшее значение составляющей силы
резания совпадающей с направлением выдерживаемого размера;
Наибольшее
и наименьшее перемещение продольного суппорта под нагрузкой 686 Н составляет
40мкм и 50 мкм [7, стр.29];
Тогда
наименьшая податливость:
где:
Wст max -
наибольшая податливость станка;
загmax - наибольшая податливость заготовки [3, стр.193];
где:
dпр -
приведенный диаметр, dпр =25мм
lд - длина детали lд = 175,5мм
Силы
резания определяем по формуле [3, стр.193];
где:
Cp , x, y, n - коэффициент и показатели степеней для составляющих
сил резания [3, стр.276];
CP =
243; x = 0,9; y = 0,6; u = -0,3
При
обработки допуск IT7 Td = 0,021 колебание глубины резания будет: tmin =
0,5мм; tmax = 0521мм;
Δст - погрешность
связанная с неточностью станка[3, стр.193];
C - Допустимое
отклонение от параллельности оси шпинделя относительно направляющих станка в
плоскости выдерживаемого размера на длине L = 300мм C=7
ΔН - погрешность наладки станка;
где:
ΔР -
погрешность регулирования положения резца;
ΔР = 2мкм
[7, стр 71]
Δиз -
погрешность измерения размера детали;
Δиз = 6мкм
[7, стр 71]
КР
= 1,73 и КИ =1 -коэффициенты учитывающие отклонения величин ΔР и Δиз от нормального
закона распределения.
ΔТ -
температурная погрешность, зависящая от температурных деформаций
технологических систем приняв их равными 15% от суммы остальных погрешностей.
мкм
Конструкторский раздел
1. Анализ детали «Уплотнение»
1.1 Назначение детали
Данное уплотнение служит для предотвращения утечки масла. Уплотнение
состоит из двух полуколец соединенных вместе с помощью четырех пластин и 4
штифтов.
1.2 Материал детали
Деталь уплотнение изготавливается из алюминиевого сплава АК8 ГОСТ 4784-74
(также допускается изготовление из сплава АМг3 ГОСТ 4784-74).
Химический состав АК8
|
Химический элемент
|
%
|
|
Кремний (Si)
|
0,5 - 1,2
|
|
Железо (Fe),
не более
|
0,8
|
|
Медь (Cu)
|
3,9 - 5,0
|
|
Марганец (Mn)
|
0,4 - 1,0
|
|
Магний (Mg)
|
0,2 - 0,8
|
|
Цинк (Zn),
не более
|
0,25
|
|
Титан (Ti),
не более
|
0,15
|
|
Никель (Ni)
|
-
|
|
Титан + Цирконий, не более
|
0,2
|
|
Алюминий (Al)
|
Остальное
|

Сплав АК8 отличается большей прочностью, но хуже обрабатывается давлением
в горячем состоянии и поэтому может применяться для штамповки высоконагруженных
самолетных деталей менее сложной формы (рамы, фитинги и т. п.).
Недостатком этого сплава, ограничивающим его применение для тонкостенных
деталей, является склонность в искусственно состаренном состоянии к
межкристаллитной коррозии.
Химический состав АМг3
|
Химический элемент
|
%
|
|
Кремний (Si)
|
0,5 - 0,8
|
|
Железо (Fe),
не более
|
0,5
|
|
Медь (Cu),
не более
|
0,1
|
|
Марганец (Mn)
|
0,3 - 0,6
|
|
Магний (Mg)
|
3,2 - 3,8
|
|
Хром (Сr),
не более
|
0,05
|
|
Цинк (Zn),
не более
|
0,2
|
|
Титан (Ti),
не более
|
0,1
|
|
Алюминий (Al)
|
Остальное
|
Механические свойства при Т=20ºС материала АМг3
|
Сортамент
|
Размер
|
Напр.
|
sв
|
sT
|
d5
|
y
|
KCU
|
Термообр.
|
|
-
|
мм
|
-
|
МПа
|
МПа
|
%
|
%
|
кДж / м2
|
-
|
|
Лист отожжен.
|
|
|
230
|
120
|
25
|
|
400
|
|
|
Профили, ГОСТ 8617-81
|
|
|
176
|
78
|
12
|
|
|
|
|
Плита, ГОСТ 17232-99
|
|
|
165-185
|
59-69
|
11-12
|
|
|
|
Физические свойства материала АМг3
|
T
|
E 10- 5
|
a 10 6
|
l
|
r
|
C
|
R 10 9
|
|
Град
|
МПа
|
1/Град
|
Вт/(м·град)
|
кг/м3
|
Дж/(кг·град)
|
Ом·м
|
|
20
|
0.71
|
|
|
2660
|
|
49.6
|
|
100
|
|
23.5
|
151
|
|
880
|
|
Технологические свойства материала АМг3 .
|
Свариваемость:
|
без ограничений.
|
.3 Анализ поверхностей деталей
Высокая точность наблюдается на наружной поверхности детали длиной 11,6 ±
0,2 на диаметре детали 368,25-0,05 мм, квалитет точности IT7 и шероховатостью Ra 0,8. Также на наружной поверхности
есть кольцевая канавка которая имеет шероховатость Ra 0,8.
Во внутренней поверхности колец наблюдается большое количество канавок,
по 3 канавки с каждой стороны детали с шагом 3×6,3 и в центре имеется более глубокая и
широкая канавка. Внутренняя поверхность d = 311,81+0,05 мм обладает высокой точностью IT7 и шероховатостью Ra 1,6. Кромки внутренних канавок
делают острыми шириной 1,5мм.
Данная деталь обладает большим количеством различных пазов и отверстий.
Шероховатость остальных поверхностей Ra 3,2.
2. Режимы резания для обработки внутренних канавок.
Канавка h = 4,8мм; l = 6,3мм; количество канавок 6
Глубина резания:
t=
4,8мм
Подача
;
где:
- табличное значение подачи,
[5, стр 89.]
[5,стр.89]
[5, стр
89.]
[5, стр
.91]
[5, стр
.92]
=0,4[5,
стр .92]
=1[5, стр
.92]
=0,85[5,
стр .92]
мм/об
Скорость
резания:
где: VT - скорость резания табличная,
VT = 135м/мин [2, стр .94]
- общий
поправочный коэффициент на скорость
[5, стр
.94]
[5, стр
.94]
[5, стр
.95]
=0,8 [5,
стр 96]
=1 [5,
стр .96]
[ 5, стр
.97]
[5, стр
.97]
Тогда:
м/мин
Сила
резания:
[4, стр
.271]
где:
СP и показатели степени х,у,m для конкретных
условий обработки для каждой из составляющей силы приведены в табл. 22 [ 4,стр
.274]
СP=
50; x = 1; y = 1; n =0
- поправочный
коэффициент,
.
Частота вращения шпинделя:
Из
ряда ЧВШ станка принимаем:
тогда
фактическая скорость:
м/мин
Мощность
резания:
PЭ Рдв·η
где:
PЭ -
эффективная мощность при обработки,
Pдв - мощность электродвигателя станка, Pдв = 22кВт
η - КПД, η
= 0,85
тогда:
0,8 22·0,85
,8кВт
18,7кВт
Время
обработки для 6 проходов:
Обработка
происходит на токарно-винторезном станке 16К30Ф305 который предназначен для
выполнения разнообразных токарных работ в один или несколько проходов по
замкнутому автоматическому циклу. На станке можно производить наружное точение,
растачивание, сверление, а также нарезание резьбы. Форма образующих
обрабатываемого изделия цилиндрическая, коническая и фасонная. Диапазон
регулирования частоты вращения шпинделя и подач позволяет производить обработку
изделий как из обычных черных и цветных металлов, так и жаропрочных сталей.
Основные
данные
|
Пределы чисел оборотов
шпинделя в мин
|
6,3-1250
|
|
Наибольший диаметр
обрабатываемого изделия, мм
|
|
Над станиной
|
630
|
|
Над суппортом
|
320
|
|
Наибольшая длина
обрабатываемого изделия, мм
|
1400
|
|
Габариты станка, мм
|
5500×2560×1990
|
Данный станок подходит для обработки данной детали, т.к. он может
обеспечить требуемую частоту вращения и эффективную мощность.
3. Конструкция инструмента
Резец для проточки внутренних канавок
Сечение державки принимаем круглым т.к. в случае сечения квадратного или
прямоугольного сечения краями могут касаться детали. Рассчитываем размеры
сечения державки по формуле:
[1,стр
69]
Где:
lР - вылет
резца, принимаем lР=90 т.к.
длина обрабатываемой детали 72мм
Принимаем
d =25мм
Изгибающий
момент определяем по формуле:
Определяем
длину резца:
Где
lУ - длина
установки резца в резцедержатель, для базирующих призм, установленных на станке
16К30Ф305 принимаем lУ = 110мм
Выбираем
резец конструкции (рис. 5):
Заготовку
из пластины выбираем из ГОСТ 25416 - 90, в связи с тем что для обработки данной
детали нет стандартизованных пластин. Материал пластины ВК6. Пластина
изображена на рис. 6
Рис.
6 Режущая пластина
По
справочным материалам находим предпочтительные углы
γ=15-20º [9,стр 304]
Угол
γ обеспечиваем подточкой на пластине.
4. Проверочный расчет инструмента
Проверочный расчет корпуса на жесткость. Стрела прогиба не должна
превышать при чистовой обработки 0,02.
Где:
E = 220 - 250ГПа модуль упругости материала корпуса,
I - момент
инерции державки, равный 0,05d4 для
круглого сечения,
I=0,05·254=19531
Получаем:
Условие
выполняется т.к. стрела прогиба не превышает 0,02мм
Проверка
на прочность пластины:
значение
изгибающих моментов в пластине [10,стр. 518]
Сечение
державки 5мм, Условие выполняется
Проверка
на жесткость пластины:
I - момент
инерции пластины, равный b4/12 для
квадратного сечения,
I=54/12=52
lП - длина вылета пластины, lП = 7мм
Е
=633гПа, модуль упругости пластины ,
Условие
выполняется т.к. стрела прогиба не превышает 0,02мм
Рис
7. Внутреннее растачивание пазов. Эскиз обработки 1
5. Конструкция инструмента второго порядка
Для чистовой обработки лысок на корпусе резца, применяем торцевую фрезу
2214-0321 ГОСТ 22088-76. (рис.7)
Рис. 7 Фреза в сборе 2214-0321 ГОСТ 22088-76
Торцовая фреза состоит из:
1. Корпус 2214 - 0321/001 ГОСТ 22088 - 76 (рис. 8)
2.
Рис. 8 Корпус 2214 - 0321/001 ГОСТ 22088 - 76
3. Кольцо 2214 - 0321/002 ГОСТ 22088 - 76
4. Державка, количество зубьев Z=5;
. Режущая пластина, количество Z=5, 12133-150040 ГОСТ 19070 - 80, материал режущей пластины
Т15К6.;
. Пружина №281 по ГОСТ 13771- 68, количество Z=5;
. Шайба 2.6.02.05 ГОСТ 11371-78, количество Z=5;
. Болт М6×30 · 5,8 ГОСТ 7805-80, количество Z=5;
. Штифт 6m6×12 ГОСТ 3128-70, количество Z=5;
При обработке на станке 500VB
максимальный диаметр, торцевой фрезы который может находиться на станке Æ80, Æ90, поэтому диаметр торцовой фрезы
выбираем Æ66.
Диаметр между пластинами Æ55.
Станок 500VB может
обеспечивать максимальный допустимый опрокидывающий момент,12000 Н·м, из
расчетов режимов резания (технологическая часть пункт 6) видим, что условие
обеспечивается.
Корпус сделан из стали 45.
Задний и передний угол α = γ = 8º для чистовой операции.
При известных условиях обработки число зубьев сборных фрез может быть
определенно по мощности станка и режимам резания [9,стр. 342]:
Принимаем
Z=5
Экономический раздел
1. Определение технологической
себестоимости инструмента
Определим технологическую себестоимость токарной операции 015 по
зависимости [3, стр 172]:
Где:
H0 -
средние затраты на содержание и эксплуатацию оборудования,имеющий коэффициент
машино-часа КМ.Ч.=1.
Н0
= 0,312 т.к. мелкосерийное производство [3, стр. 172];
Кц8
=10 масштабно-ценовой коэффициент [3,стр. 169];
З0
- заработная плата станочника, которая находится по зависимости [3,стр. 169];
;
НОЧ
- норматив часовой заработной платы станочника соответствующего разряда,
руб./час. Токарную операцию выполняет станочник 4 разряда, тогда НОЧ
= 17,8 руб. [3,стр. 267];
км
- коэффициент учитывающий оплату труда основанного рабочего при многостаночном
обслуживании, т.к. обслуживается один станок, то км=1 [3,стр. 170];
КЦ1=8
[3,стр. 169];
тогда:
ЗВ.Р
- заработная плата наладчика, определяется по зависимости [3,стр. 170];
НН.Г. - нормативная годовая заработная плата наладчика
соответствующего разряда, разряд наладчика для токарной операции 4, тогда НН.Г.=
29390руб. . [3,стр. 266];
m -
число рабочих смен, m = 2;
кон - количество станков, кон = 1;
FД - действительный фонд времени, FД 4015 ч.;
тогда:
;
Тогда
себестоимость токарной операции:
По
тем же зависимостям определяем себестоимость других операций входящий в
проектный технологический процесс, результаты представлены в таблице 13:
Таблица
15. технологическая себестоимость операций
|
Операция
|
Разряд станочника
|
Разряд наладчика
|
tшт.к. ,
ч
|
Соп , руб.
|
|
Ленточнопильная
|
4
|
4
|
3,2
|
14
|
|
Токарная
|
4
|
4
|
11,94
|
52
|
|
Сверлильно-фрезерно-расточная
|
4
|
4
|
8,93
|
39
|
|
Сверлильно-фрезерно-расточная
|
4
|
4
|
6,75
|
29
|
|
Шлифовальная
|
5
|
4
|
10,1
|
50
|
184
|
Таблица 16, технологическая себестоимость операций базового
технологического процесса
|
Операция
|
Разряд станочника
|
Разряд наладчика
|
Тшт.к, мин
|
Соп , руб.
|
|
Пилоотрезная
|
4
|
4
|
3.2
|
14
|
|
Токарно-винторезная
|
5
|
4
|
11,94
|
59
|
|
Вертикально-фрезерная
|
5
|
4
|
2,6
|
12
|
|
Шлифовальная
|
5
|
4
|
10,1
|
50
|
|
Вертикально-фрезерная
|
5
|
4
|
6,5
|
30,4
|
|
Горизонтально - фрезерная
|
5
|
4
|
6,75
|
31,5
|
|
Шлифовальная
|
5
|
4
|
10,1
|
50
|
|
Σ
|
246,9
|
. Определение минимума приведенных затрат
Минимум приведенных затрат для токарной операции можно определить по
зависимости [3,стр. 168]:
где:
Ci - технологическая себестоимость выполняемой операции,
Сток =52руб (из табл. 13);
ЕН
- нормативный коэффициент эффективности капитальных вложений ЕН =
0,12 [3,стр. 169];
Кi
- удельные капитальные вложения, отнесенные к единице продукции, можно
рассчитать по зависимости [3,стр. 173]:
Где:
КЦ2=8 масштабно-ценновой коэффициент[3,стр. 169];
Ф
- стоимость оборудования, рассчитывается по зависимости [3,стр. 173];
Ц
- оптовая цена оборудования, Ц=24400 руб [3,стр. 268];
Тогда:
;
Тогда:
На
другие операции затраты представлены в таблице 14 для проектного
технологического процесса:
Таблица
17. Затраты для проектного технологического процесса
|
Операция
|
Соп , руб.
|
W
|
|
Ленточнопильная
|
14
|
14,8
|
|
Токарная
|
52
|
53,2
|
|
Сверлильно-фрезерно-расточная
|
39
|
45,2
|
|
Сверлильно-фрезерно-расточная
|
29
|
33,7
|
|
Шлифовальная
|
50
|
50,5
|
|
Σ
|
197,4
|
Таблица 18. Затраты для базового технологического процесса
|
Операция
|
Соп , руб.
|
W
|
|
Пилоотрезная
|
14
|
14,8
|
|
Токарно-винторезная
|
59
|
59,2
|
|
Вертикально-фрезерная
|
12
|
12,1
|
|
Шлифовальная
|
50
|
50,5
|
|
Вертикально-фрезерная
|
30,4
|
30,5
|
|
Горизонтально - фрезерная
|
31,5
|
31,6
|
|
Шлифовальная
|
50
|
50,5
|
|
Σ
|
249,2
|
. Определение экономического эффекта
Для определения экономического эффекта воспользуемся зависимостью:
где:
Bбаз - приведенные затраты базового технологического
процесса;
Bпр - приведенные затраты проектного технологического
процесса;
N - количество
деталей в партии;
Список литературы
1. Режущий
инструмент. Курсовое и дипломное проектирование. : под ред. Е. Э. Фельдштейн;
Минск 2002г
. Обработка
металлов резанием; справочник под ред. А.А.Панова - М: Машиностроение, 2004-
784с.
. Технология машиностроения:
Сборник задач и упражнений. /Под общ. ред. В.И. Аверченкова и Е.А. Польского.-
М.: ИНФРА-М, 2005.
. Справочник
технолога-машиностроителя. В 2-х т. Т2 / Под ред. А.Г. Косиловой и Р.К.
Мещерякова. - М.: Машиностроение, 1986.
.
Общемашиностроительные нормативы времени и режимов резания для нормирования
работ, выполняемых на универсальных и многоцелевых станках с ЧПУ. Ч2 - М.:
Экономика, 1990.
.
Смазочно-охлаждающие технологические средства для обработки металла резания:
Справочник, под ред. С.Т. Энтелиса ; Москва. Машиностроение 1986г
. Справочник
технолога-машиностроителя. В 2-х т. Т1 / Под ред. А.Г. Косиловой и Р.К.
Мещерякова. - М.: Машиностроение, 1986.
.
Общемашиностроительные нормативы времени и режимов резания для нормирования
работ, выполняемых на универсальных и многоцелевых станках с ЧПУ. Ч1 - М.:
Экономика, 1990.
. Справочник
инструментальщика : под ред. И.А. Одинарцев, Г.В. Филиппов и др.; Москва
Машиностроение 1987г.
. Режущий
инструмент: учебник для вузов/ под ред. С.В. Кирсанова; Москва, Машиностроение
2005г.