Разработка управляющих программ для фрезерного и токарного станков с ЧПУ
Курсовая работа
Разработка управляющих
программ для фрезерного и токарного станков с ЧПУ
Введение
Основным направлением курсовой работы является изучение и
применение методов разработки управляющей программы для фрезерного и токарного
станков.
Курсовая работа состоит из двух частей.
Первая часть: фрезеровать контур детали на фрезерном станке
мод. 6520Ф3-36 с устройством ЧПУ Н33-1М. Вариант задания №36.
Вторая часть: обработать резьбовой участок детали на токарном
станке мод. АТПУ-125 с устройством ЧПУ 2Р22. Вариант задания №15.
1.
Разработка управляющей программы для фрезерного станка мод. 6520ф3-36 с
устройством чпу Н33-1М
.1
Задание
Вариант задания №36.
Разработать управляющую программу для фрезерования контура
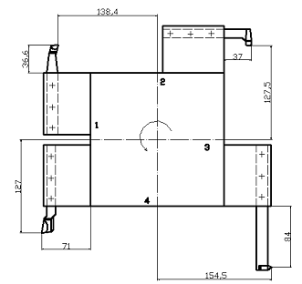
детали представленной на рис 1.1.
Рис. 1.1. Эскиз детали
Материал детали - БрАЖ9 σв=520 МПа Припуск 1 мм
.2
Основные характеристики станка и устройства ЧПУ
программа
фрезерный станок управляющий
Станок предназначен для фрезерования контуров и сложных
пространственных поверхностей деталей.
Станок вертикально-фрезерный с крестовым столом.
Размер рабочей поверхности стола 630´250 мм.
Наибольшее перемещение:
· стола
по оси X продольное - 500 мм
по оси Y поперечное - 250 мм
· шпиндельной бабки - 350 мм
Расстояние от торца шпинделя до поверхности стола - 100-450
мм
Число скоростей шпинделя - 18.
Частота вращения шпинделя: 31,5; 40; 50; 63; 80; 100; 125;
160; 200; 250; 315; 400; 500; 630; 800; 1000; 1250; 1600 об/мин.
Подача (бесступенчатое регулирование) 5 - 1500 мм/мин
Скорость быстрого перемещения 2400 мм/мин.
Мощность электродвигателя главного движения 4 кВт.
Габаритные размеры
· длина 3050 мм
· ширина 2150 мм
· высота 2185 мм
Масса 3700 кг.
На станке возможна отработка прямолинейных участков траектории
фрезы при управлении по программе одновременно по трем осям координат, а также
отработка дуг окружности при управлении одновременно по двум осям.
Перемещения задаются в относительной системе отсчета с
дискретностью 0,01 мм. Точность обработки контура детали на станке ±0,1 мм. Точность
позиционирования 0,05 мм.
Наименьшая шероховатость обработанной на станке поверхности
.
Для ввода с пульта величин коррекции предусмотрено 18 корректоров.
Управляющая программа записывается в коде ISO - 7 бит на
восьмидорожечной перфоленте.
Программа записывается в виде последовательности отдельных блоков
информации - кадров. Каждый кадр состоит из команд постоянной длины,
расположенных в определенной последовательности. Команды не обязательные в
кадре могут быть пропущены.
1.3
Технологические данные
Схема
базирования и закрепления заготовки
Деталь базируется по основанию и двум отверстиям. Закрепление
происходит при помощи болтов и разрезных шайб (рис 1.2.).
Расположение
приспособления с установленной в нем заготовкой на столе станка

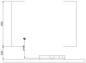
Рис. 1.2. Положение исходной точки траектории фрезы
Положение
исходной точки
Исходная точка задается таким образом, чтобы фреза при этом
располагалась слева, за и над базовой плоскостью приспособления. Это облегчает
установку детали на рабочий стол станка. Положение исходной точки показано на
рис. 1.2.
Расчет
режимов резания
Выбор инструмента:
Выбираем фрезу концевую по ГОСТ 17026-71*. Диаметр фрезы
выбирается таким образом, чтобы была возможна обработка минимального
внутреннего скругления на детали (R=10 мм). Выбираем D=20 мм, длина фрезы L=145 мм; длина режущей
части lр=44 мм.
Материал режущей части - быстрорежущая сталь Р9К5, число зубьев
.
Хвостовик конус Морзе №3, вращение по часовой стрелке.
Вылет фрезы относительно переходной втулки l1=64 мм [ГОСТ 17026-71*].
Для крепления используем втулку переходную с конусом Морзе №3.
Стойкость фрезы
.
1. Глубина
резания. Глубина резания равна припуску
.
Ширина фрезерования. Ширина фрезерования равна высоте
обрабатываемой детали
.
2. Для детали БрАЖ9 группа обрабатываемости III и коэффициент
обрабатываемости материала KVM=0,9.
Отношение вылета фрезы (от переходной втулки до торца) к её
диаметру l1/D=64/20=3,2.
Выбираем шифр схемы V.
3. Подача. Подача на зуб SZ рассчитывается по
формуле:
SZ = SZT × KSZС × KSZИ × KSZR × KSZФ,
SZT - табличное значение величины подачи для III группы обрабатываемости
материала детали; SZT =0,15 мм/зуб.
Поправочные коэффициенты в формуле учитывают:
KSZС - жёсткость технологической системы; KSZС=0,6;
KSZИ - материал фрезы; KSZИ=1;
KSZR - шероховатость обработанной поверхности;
KSZR=0,5;
KSZФ - форму обработанной поверхности; KSZФ=0,57.
SZ = 0,15 × 0,6 × 1,0 × 0,5 × 0,57= 0,026 мм/зуб
4. Скорость резания. Скорость резания V рассчитывается по
формуле:
V = VT × KVM × KVИ × KVП × KVC × KVФ × KVO × KVB,
VT - табличное значение скорости резания для V группы обрабатываемости
материала детали; VT=174 м/мин.
Поправочные коэффициенты в формуле учитывают:
KVM - обрабатываемый материал; KVM=0,9;
KVИ - материал фрезы; KVИ=1,0;
KVC - жёсткость технологической системы; KVC=0,5;
KVФ - форму обработанной поверхности; KVФ=1,0;
KVO - применение СОЖ. Обработку стали фрезами из
твердого сплава рекомендуется проводить с охлаждения [1], принимаем KVO=1,2;
KVB - отношение фактической ширины фрезерования к
нормативной; KVB=1,12.
V = 174 × 0,9 × 1,0 ×1,0 × 0,5 × 1 × 1,2 × 1,12=105,24 м/мин.
5. Частота вращения шпинделя.
.
Выбор частоты вращения по станку.
.
6. Действительная скорость резания.
.
7. Минутная подача.
.
.4
Основные этапы применения системы ADEM для подготовки
управляющей программы
Построение
геометрической модели (модуль CAD)
1. Построение контура детали.
. В основном слое с помощью функции «замкнутый контур»
обтягивается внешний контур детали. Производится скругление. Удаляются все
элементы кроме полученного замкнутого контура.
. С помощью команды «разделение» произвожу разделение
контура в левой крайней точке окружности с R=100 мм для создания
начальной точки контура.
. Перенос начала осей координат в место положения
начала отсчета (пересечение оси гладкого базового пальца и базовой плоскости
приспособления).
. Смещение контура на высоту 20 мм, для получения 3D модели.
Основные этапы применения системы ADEM для подготовки
управляющей программы
. Назначаем постпроцессор. Выбираю постпроцессор
фрезерного станка 6520Ф3 Н33-1М v. 1.
. Задаем исходную точку. Положение исходной точки
показано на рис. 2.
. Выбираю команду «стенка», плоскость привязки
устанавливается по основанию детали. Выбираю обрабатываемый контур, назначаю в
качестве начальной точки контура левую крайнюю точку окружности с R=100 мм.
. Выбираю команду «фрезеровать 2,5Х». Так как мы
производим чистовую обработку, используется попутная схема фрезерования. Исходя
из рассчитанных режимов резания устанавливаем подачу 166,4 мм/мин. Назначаем
перебег в 1 мм. Фрезу выбираем концевую D=20 мм. Устанавливаем Радиальный
подход: радиус 40 мм и угол 15°. Радиальный отход: радиус 40 мм и угол 15°. В результате
автоматического расчета управляющей программы в среде ADEM CAM, получаем
следующие данные.
Управляющая
программа
FANK0137.ANK
N000%*
N001G17*G01X+011695Y-008754F4712*F0450*Z-007400F4724*F0450*M03*Z-005000F4724M08*F0450*Z-000200F4713*G03X+001028Y+000181I+000173J+003996*G01X+006789Y+002139*G02X+000375Y+000058I+000375J+001192*G01X+001713*G02X+001250Y-001250J+001250*G01Y-000750*X+003504*Y+000750*G02X+001250Y+001250I+001250*G01X+000525*G02X+000376Y-000058J+001250*G01X+006774Y-002139*G02X+002970Y-004053I+001280J+004053*X-002959Y-004049I+004250*G01X-006718Y-002142*G02X-000380Y-000059I+000380J+001191*X-000872Y+000354J+001250*G03X-003313Y+001346I+003313J+003404*X-003313Y-001346J+004750*G02X-000872Y-000354I+000872J+000896*X-000377Y+000058J+001250*G01X-006734Y+002141*G02X-002962Y+004050I+001288J+004050*X+002973Y+004054I+004250*G03X+000947Y+000440I+001202J+003815*G01Z+012600F4724M09*F0450*X-013670Y+008133F4712M05*
N047F0450*M02*
Проверка
правильности программы
Для проверки правильности программы необходимо просуммировать
ряд приращений по каждой из осей. Если суммы равны нулю, то программа
составлена верно.
ΣΔz=-50,00-50,00-2,00+102,00=0
мм.
Рис.
1.3. Контрольная отрисовка траектории фрезы
На контрольной отрисовке (рис. 1.3.) видно, что контур
обработан полностью.
На обработанной поверхности отсутствуют зарезы.
2.
Разработка управляющей программы для станка мод. АТПУ-125 с устройством ЧПУ
2Р22.
Исходные
данные:
Вариант задания соответствует эскизу №3.
Дополнительные заданные по варианту параметры, приведены в
таблице 1.
Таблица 1
|
а, мм
|
b, мм
|
с, мм
|
f, мм
|
g, мм
|
l1, мм
|
l2, мм
|
r1, мм
|
d, мм
|
p, мм
|
Материал
|
σB, МПа
|
|
82
|
55
|
60,4
|
1,5
|
5
|
70
|
22
|
1,5
|
60
|
2,0
|
38ХС
|
932
|
Точность размеров «а» и «l1 + K» по h12, с шероховатостью
поверхности Rz = 80 мкм, и К = 1 мм. Резьба метрическая, точность 6Н, и
шероховатостью поверхности Ra = 2,5 мкм. Точность остальных поверхностей по h8 и Н7, и шероховатость
поверхности Ra = 1,25 мкм.
В данном задании требуется обработать торец и резьбовой
участок. Сложным участком является поверхность резьбы, требования по точности и
шероховатости среднего уровня.
В соответствии с номером эскиза и заданными размерами
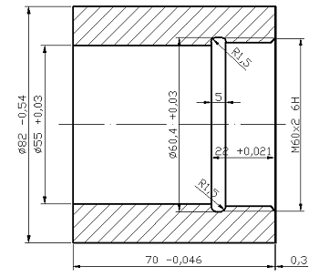
начертим эскиз детали и заготовки (рис. 2.1 и 2.2).
Рис. 2.1. Эскиз заготовки
Рис. 2.2. Эскиз детали
2.2 Основные характеристики станка и устройства ЧПУ
В состав гибкого производственного модуля АТПУ-125 входят:
токарный патронный станок высокой точности модели ТПУ-125 с четырехпозиционной
револьверной головкой на 8 инструментов;
устройство автоматической смены заготовок (АСЗ), состоящее из
магазина - накопителя на 30 заготовок и изделий и автоматического манипулятора
с двумя схватами;
автоматическое устройство для отвода стружки и устройство ЧПУ
модели 2Р22, выполненное на базе микро-ЭВМ «Электроника 60М»
Модуль предназначен для высокопроизводительной автоматической
токарной обработки небольших сложных деталей, установленных в патроне.
Технические характеристики:
наибольший диаметр заготовки над поперечном суппортом 125 мм, над
продольными составляющими 160 мм;
наибольшая длина обрабатываемой детали 100 мм;
диапазон шагов резьбы, нарезаемой резцом 0,3…3 мм, дискретность
0,001 мм;
наибольший диаметр сверления по стали с
- 12 мм; по цветным сплавам - 15 мм;
наибольший вес заготовки 100 Н;
диапазон частоты вращения шпинделя, с перебором - 50…693 об/мин;
без перебора - 224…3000 об/мин, дискретность 1 об/мин;
наибольшее перемещение суппорта по оси Z 300 мм, по оси Х 280 мм, дискретность 0,001 мм;
диапазон подач суппорта 5…2500 мм/мин;
скорость быстрого перемещения суппорта 5000 мм/мин, дискретность
задания подачи 1 мм/мин;
класс точности станка В;
точность обработки при наружном точении участка диаметром свыше 30
до 50 мм составляет 14 мкм;
класс точности резьбы, нарезанной резцом - средний, 6g, 6H;
наименьшая шероховатость обработанной поверхности по стали
, резьбы, нарезаемой резцом
;
масса модуля 3,126 т.
Программное управление осуществляется контурным устройством
2Р22. Устройство обеспечивает отработку прямых линий и дуг окружности при
одновременном движении инструмента по двум осям координат, обеспечивает связь
движения резца с вращением шпинделя, необходимую для нарезания конической и
цилиндрической резьб, обеспечивает также возможность задания траектории
обработки типовых, часто встречающихся участков деталей при помощи постоянных
циклов и подпрограмм. Управляющая программа вводится в коде ИСО-7 бит в память
устройства с клавиатуры пульта или с перфоленты.
Кроме обычных режимов автоматической и полуавтоматической
работы, ввода и ручного управления в устройстве ЧПУ реализованы режимы
редактирования и тестового контроля.
2.3
Технологический анализ чертежа детали
- Деталь имеет небольшие габаритные размеры.
- Обработке подлежат торец и резьбовой участок детали.
Наиболее сложными в обработке являются поверхности резьбы. Требования к
точности поверхностей резьбы среднего уровня. Для остальных обрабатываемых
поверхностей эти требования несколько выше.
Материал заготовки не относится к
труднообрабатываемым. Поверхности заготовки предварительно обработаны.
Деталь может быть установлена в штатный
трехкулачковый патрон.
Заготовку целесообразно обработать на станке АТПУ -
125.
2.4
Способ базирования заготовки по торцу
Заготовку целесообразно обработать на станке АТПУ-125. Деталь
может быть установлена и закреплена в штатный трехкулочковый патрон.
Для базирования и закрепления будем применять закаленные
расточенные кулачки. Базирование будем осуществлять с упором в торец пальца,
устанавливаемого в резьбовое отверстие патрона.
2.5
Выбор последовательности обработки заданного участка
Выбираем последовательность переходов:
§ подрезка торца (1);
§ черновая и чистовая обработка цилиндрической
поверхности под резьбу (2) и точение фаски (3);
§ прорезка канавки (4);
§ нарезание резьбы (5).
Распределение припуска по переходам и проходам представлена
на рис. 2.3.
Рис. 2.3. Схема распределения припусков
2.6
Разработка переходов технологического процесса
Переход №1 - подрезка торца
1. Выбор режущего инструмента.
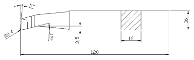
Инструмент: левый подрезной отогнутый резец с пластиной из
твердого сплава (Т15К6), со следующими параметрами:
|
Н, мм
|
B, мм
|
L, мм
|
m, мм
|
r, мм
|
|
20
|
12
|
120
|
7
|
0.2
|
Рис. 2.4. Подрезной отогнутый резец
|
Обрабатываемый
материал
|
Угол, градусы
|
|
gf
|
g
|
α
|
|
сталь с sв=932МПа
|
-4
|
15
|
10
|
Закрепление: будем применять закаленные расточенные кулачки.
Базирование: будем осуществлять с упором в торец пальца,
устанавливаемого в резьбовое отверстие патрона.
Инструмент: подрезной отогнутый резец с пластиной из твердого
сплава (Т15К6).
Расположение резца в инструментальном блоке и на револьверной
головке показано в графической части.
2. Выбор расчетной точки инструмента и размеров для его
настройки:
В качестве расчетной точки выберем точку пересечения
касательных к контуру режущих кромок резца.
Размеры для настройки:
Wx=127;
Wz=71.
. Измерительный инструмент: микрометрический глубиномер.
. Для обеспечения заданной точности и шероховатости
обработанной поверхности обработку будем осуществлять в два прохода. Черновой с
t=0.3 мм и чистовой с t=0,7 мм.
точка 8: Х = 42, Z = 0 - исходная точка чистового постоянного
цикла;
точка 9: Х = 26,5, Z = 0 - конечная точка чистового цикла;
точка 3: Х = 42, Z = 0,3 - исходная точка чернового цикла;
точка 4: Х = 26,5, Z = 0,3 - конечная точка чернового цикла;
точка 2: Х = 42, Z = 1,3 - точка ввода коррекции.
Эскиз обработки представлен на рис. 2.5.
. Расчет режима резания.
Исходные данные:
станок токарный, модели АТПУ - 125
Обработка в патроне.
Инструмент: правый подрезной отогнутый резец.
По таблицам с учетом свойств обрабатываемого материала и
характера обработки выбираем для режущей части резца пластинку из Т15К6. По
таблице выбираем геометрические параметры резца.
|
Обрабатываемый
материал
|
Угол, градусы
|
|
gf
|
g
|
α
|
|
сталь с sв=932 МПа
|
-4
|
15
|
10
|
Для охлаждения выбираем СОЖ ОСМ - 3.
Для чернового прохода выбираем:
глубина резания t1= 0,7 мм;
подача S1=0.3 мм/об
для условий чернового прохода V = 198 м/мин, при
стойкости Т=60 минут. Учитывая поправочные коэффициенты получим:
Определим частоту вращения шпинделя, обеспечивающую эту скорость
резания:
, принимаем n1=467 об/мин, вращение левое
Для чистового прохода принимаем: t2=0.3 мм и
S2=0.2 мм/об
Для чистового прохода V = 290
м/мин. Учитывая поправочные коэффициенты получим:
Определим частоту вращения шпинделя, обеспечивающую эту скорость
резания:
, принимаем n2=684 об/мин, вращение левое.
Пересчитываем подачу для постоянного цикла:
принимаем SМ1=140 мм/мин, а SМ2=136
мм/мин
Рис. 2.5. Эскиз перехода подрезки торца
Переход №2 - растачивание отверстия
Черновая и чистовая обработка цилиндрической поверхности под
резьбу и точение фаски.
. Инструмент: правый расточной резец для глухих отверстий с
параметрами:
|
H, мм
|
B, мм
|
m, мм
|
L, мм
|
r, мм
|
|
16
|
16
|
3,5
|
25/120
|
0,4
|
Рис. 2.6. Расточной резец для глухих отверстий
|
Обрабатываемый
материал
|
Угол, градусы
|
|
gf
|
g
|
α
|
|
сталь с sв=932 МПа
|
-5
|
15
|
10
|
Расположение резца в инструментальном блоке и на револьверной
головке показано в графической части.
. В качестве расчетной точки выбираем центр скругления кромок
резца. Это обеспечивает более простой расчет координат опорных точек начала и
конца обработки фаски.
Размеры для настройки:
Wx=138.4;
Wz=36.6;
. Выбираем микрометр гладкий с пределами измерений 75…100 мм
. Для обработки внутренней цилиндрической поверхности выберем
многопроходный постоянный цикл по таблицам [4], для точения фаски строим
рабочий участок траектории.
Для задания и построения постоянного цикла назначим координаты
задаваемых точек:
точка 9: - конечная точка цикла.
Для определения координаты Х этой точки по справочнику[6] находим
для D=60 диаметр D1 резьбы:
. Найдем величины допуска и отклонения D1 и определим настроечный размер.
es=+375 мкм; ei=0 и
рассчитаем настроечный размер:
С учетом радиуса при вершине резца: Х=29,011-0,4=28,611, принимаем
Х=28,611.
Настроечный размер по оси Z:
Принимаем Zвн=22,011; С учетом радиуса при вершине
резца Z=-21.611
точка 2: Х = 25; Z = 1 - точка
ввода коррекции;
точка 13: Z = 1.4 - задаем
для обеспечения расстояния а = 1 мм. от режущей кромки резца до торца детали.
Координату Х находим после решения геометрической задачи
определения положения расчетной точки резца относительно точки начала фаски,
если она под углом 45о:
Принимаем 0,834:
Х = 29,011+1,5+0,83431=31,345
точка 14: Х = 29,011-0,4=28,611, а Z c учетом Δz=Δх:
Эскиз обработки представлен на рис. 2.7.
. Расчет режимов резания.
Инструмент: правый расточной для глухих отверстий со следующими
параметрами:
|
Н, мм
|
В, мм
|
L, мм
|
m, мм
|
r, мм
|
φ
|
φ1
|
|
16
|
16
|
25/120
|
5
|
0,4
|
5
|
15
|
Геометрические параметры резца
|
Обрабатываемый
материал
|
Угол, градусы
|
|
gf
|
g
|
α
|
|
сталь с sв=932
|
-5
|
15
|
10
|
Работа с охлаждением. Для черновых проходов
Для чернового прохода t=1.22 мм
радиус при вершине r=0.4 мм
По таблицам выбираем величины подачи для чернового и
чистового проходов:
S=0.4 мм/об (для чернового прохода)
S=0,16 мм/об (для чистового прохода, t=0.2 мм)
Для выбранной подачи (0,4 мм/об) V=198 м/мин, при Т = 60
мин.
С учетом поправочных коэффициентов:
, принимаем n1=652 об/мин, вращение левое. Точение фаски
выполняем без изменения режима.
Подача для постоянного цикла:
Принимаем SM=104
мм/мин
Рис. 2.7. Эскиз перехода расточки и снятия фаски
Переход №3 - прорезка канавки
1. Выбираем правый прорезной специальный резец с параметрами:
|
Н, мм
|
В, мм
|
l/L, мм
|
g, мм
|
r, мм
|
|
20
|
12
|
10/120
|
5
|
1,5
|
Рис. 2.8. Прорезной специальный резец
. В качестве расчетной точки выбираем точку пересечения касательных
к контуру режущих кромок у левой вершины резца.
Размеры для настройки:
Wx=132 мм;
Wz=37 мм.
. Выбираем микрометрический глубиномер.
. Применяем постоянный цикл прорезки канавки.
Назначаем координаты задаваемых точек:
точка 3: Х=26,5; Z=Zвн=22,011 - исходная точка цикла;
точка 4: Z = 22,011
Определим настроечный размер по оси Х:
Х = rн=30,2075; принимаем Х = 30,208
точка 2: Х = 25; Z = 22.011 -
точка ввода коррекции.
Эскиз обработки представлен на рис. 2.9.
. Инструмент: правый прорезной специальный резец с материалом
режущей части - пластинка из Т15К6.
По таблице [4] выбираем геометрические параметры резца
|
Обрабатываемый
материал
|
Угол, градусы
|
|
gf
|
g
|
α
|
|
сталь с sв=932
|
5
|
10
|
10
|
Работа с охлаждением. Рабочая ширина резца В = 5 мм
По таблице [4] выберем значение подачи S=0.15 мм/об и V=75 м/мин.
С учетом поправочных коэффициентов:
, принимаем n=703 об/мин,
вращение левое.
Подача для постоянного цикла
, принимаем SM=105
мм/мин
Рис. 2.9. Эскиз перехода проточки канавки
Переход №4 - нарезание резьбы
1. Выбираем правый резец для правой внутренней резьбы по таблице
со следующими параметрами:
|
Н, ммВ, ммm, ммL, мм
|
|
|
|
|
16
|
16
|
5
|
170
|
Рис. 2.10. Резец для нарезания внутренней резьбы
Выбранное положение инструмента и инструментального блока показано
в графической части.
. В качестве расчетной точки выбираем точку пересечения режущих
кромок.
Размеры для настройки:
Wx=159 мм;
Wz=84 мм.
. Для контроля получаемой резьбы будем использовать резьбовой
микрометр с пределами измерений на диаметрах 50…100 мм.
. Будем применять многопроходный постоянный цикл нарезания резьбы
без сбега. Для построения постоянного цикла назначаем координаты задаваемых
точек:
точка 3: Х = 29,011, Z = 1,5 -
начальная точка цикла;
точка 9: - конечная точка цикла.
Для определения координаты Х этой точки по справочнику [6] находим
предельные отклонения для наружного диаметра внутренней резьбы: es = +180; ei = 0.
Находим настроечный размер:
, rн=30,045, тогда:
Х = 30,045;
Z = -18 - назначаем.
точка 2: Х=28,011, Z = 1.5 - точка
ввода коррекции.
Эскиз обработки представлен на рис. 2.11.
. Инструмент: правый резьбовой резец с углом при вершине 60о.
По таблицам [4] выбираем материал режущей части резца - пластину
из Т15К6. Выбираем задний угол α = 10о. Выбираем обычную для чистовых резьбовых
резцов величину γ = 0о. Работа с охлаждением.
Из таблиц определяем число проходов: 6 черновых и 3 чистовых.
Также определим скорость резания: V=70 м/мин
, примем n=371 об/мин,
вращение правое
Необходимую по постоянному циклу подачу при перемещении резца на
глубину резания выбираем: SМ = 110 мм/мин
|
№ прохода
|
Глубина
резания, мм
|
Выполнения
условия tрасч. ≤ 0,05, мм
|
Осталось
припуска, мм
|
|
1
|
0,3
|
1,034-0,3=0,734
|
|
2
|
-0,734-0,210=0,524
|
|
|
|
3
|
-0,524-0,147=0,377
|
|
|
|
4
|
-0,377-0,103=0,274
|
|
|
|
5
|
-0,274-0,072=0,202
|
|
|
|
6
|
-0,202-0,051=0,151
|
|
|
|
7
|
0,151-0,051=0,1
|
|
|
|
8
|
0,035≤0,050,1-0,05=0,05
|
|
|
|
9
|
0,05 - до
достижения координаты Х=30,045
|
-
|
0,05-0,05=0
|
Рис. 2.11. Эскиз перехода точения резьбы
2.7 Управляющая программа
%ПС
N1 T11 ПС
N2 S467 M4 M38 ПСG0 X42000 Z1300 ПСТ21 ПСG1 Z300 F500
M8 ПСL16 X26500
F140 ПСM9 M5 ПСG1 Z F500 ПСS684 M4 M8 ПСL16 X26500
F136 ПСM9 M5 ПСT12 ПСS652 M4 ПСG0 X25000
Z1000 ПСT22 ПСG1 X26500
Z1000 F500 M8 ПСL22 X28611
Z-21611 P1220 R1+15 R2+200 F104 ПСX31345 Z1400 F500 ПСX28611 Z-2334 F104 ПСM9 M5 ПСT13 ПСS703 M4 M38 ПСG0 X25000
Z22011 ПСT23 ПСG1 X26500
Z22011 F500 M8 ПСL17 X30208 F105 ПСM5 M9 ПСT14 ПСS371 M3 M38 ПСG0 X28011 Z1500 ПСT24 ПСG1 X29011
Z1500 F500 M8 ПСL10 X30045
Z-18000 K2000 P300 R1+300 R2+50 R3+1 F110 ПС34 M9 M5 ПС
N35 M2 ПС
Литература
программа
фрезерный станок управляющий
1.
Солдатов В.А. Разработка управляющих программ для фрезерного и токарного
станков с ЧПУ: Метод. указ. М.:МАТИ, 2007 г. - 7с
.
Солдатов В.А., под редакцией проф., д.т.н. Л.А. Хворостухина. Разработка
управляющей программы для гибкого производственного модуля АТПУ-125: Метод.
указ. М.:МАТИ, 1994 г. - 17с
.
Солдатов В.А. Обработка резьбового участка детали на токарном станке с ЧПУ:
Метод. указ. М.: МАТИ - 53 с
.
Прогрессивные режущие инструменты и режимы резания металлов: Справочник /В.И.
Баранчиков, А.В. Жаринов, Н.Д. Юдина и др. - М.: Машиностроение, 1990. - 400 с
.
Кузнецов Ю.И., Маслов А.Р., Байков А.Н. Оснастка для станков с ЧПУ: Справочник.
- 2-е изд., - М.: Машиностроение, 1990. - 512