Кран мостовой

  • Вид работы:
    Курсовая работа (т)
  • Предмет:
    Транспорт, грузоперевозки
  • Язык:
    Русский
    ,
    Формат файла:
    MS Word
    871,3 Кб
  • Опубликовано:
    2013-01-27
Вы можете узнать стоимость помощи в написании студенческой работы.
Помощь в написании работы, которую точно примут!

Кран мостовой

Сибирский государственный университет путей сообщения

Кафедра « Механизация путевых, погрузочно-разгрузочных и строительных работ »

КУРСОВОЙ ПРОЕКТ

по дисциплине «Грузоподъемные машины»

Кран мостовой





Руководитель: доцент Ткачук А.П

Разработал: студент

гр. 07-М-38 Войкин С.В.






СОДЕРЖАНИЕ

1 Назначение машины, краткое описание ее устройства и работы. Описание управления машиной и устройств безопасности

2 Определение основных параметров машины и рабочего оборудования. Обоснование выбора прототипа

Расчет механизма подъема груза

.1 Выбор типа крюковой подвески

.2 Расчет и выбор каната

.3 Определение размеров барабана

.4 Определение потребной мощности. Выбор двигателя

.5 Кинематический расчет механизма

.6 Выбор соединительных муфт

.7 Проверка двигателя на надежность пуска

.8 Определение тормозного момента. Выбор тормоза

.9 Прочностные расчеты узла барабана

.10 Расчет крюковой подвески

Расчет механизма передвижения грузовой тележки

.1 Выбор ходовых колес

.2 Определение внешних сопротивлений

.3 Определение потребной мощности. Выбор двигателя

.4 Кинематический расчет механизма

.5 Подбор редуктора, муфт и тормозов

.6 Проверка двигателя на надежность пуска

.7 Проверка запаса сцепления

.8 Прочностные расчеты элементов

Организация надзора за безопасной эксплуатацией кранов

Список использованных источников

1 НАЗНАЧЕНИЕ МАШИНЫ, КРАТКОЕ ОПИСАНИЕ ЕЕ УСТРОЙСТВА И РАБОТЫ. ОПИСАНИЕ УПРАВЛЕНИЯ МАШИНОЙ И УСТРОЙСТВ БЕЗОПАСНОСТИ

Мостовые краны типовым оборудованием производственных цехов, закрытых и открытых складов. Они могут иметь крюк или снабжаться грейферами, грузовыми электромагнитами, клещами, лапами и другими специальными грузозахватными устройствами. Особую группу представляют металлургические мостовые краны (в том числе ковочные и закалочные).

Грузоподъемность мостовых кранов достигает 500 m, пролеты доходят до 50-60 м, высота подъема до 40-50 м и в специальных исполнениях до 500 м. Скорости движения составляют: передвижение моста (рабочее движение) 32-160 м/мин, передвижение тележки 10-63 м/мин, подъем груза до 63 м/мин.

Кабина крановщика располагается у края моста, реже - посередине, а при необходимости точной работы - на грузовой тележке. Тихоходные краны со скоростью передвижения до 50 м/мин могут управляться с пола. В особых случаях применяют дистанционное управление. Грузовые тележки, а иногда и мосты (взрывоопасная среда) могут иметь токопровод в виде гибкого подвесного кабеля на катучих поддержках.

Существуют отдельные экземпляры кранов с гидроприводом. При редком использовании применяют краны с ручным приводом.

На мосту крана могут располагаться две грузовые тележки на одном или двух (смежных или двухрядных по высоте) путях.

В случае ограничения габарита крана по высоте от головки подкранового рельса до верхней его точки грузовая тележка перемещается внутри моста (нижнее катание). Для подачи груза за пределы пролета крана применяют тележки с поворотной стрелой или с консольной фермой, внутри которой перемещается несущая груз тележка.

Мосты кранов обычно двухбалочные с грузовой тележкой, а в кранах легкого типа - исключительно однобалочные с ручной катучей или электрической талью. Однобалочные краны могут быть подвесными - с перемещением по подвесному двутавровому или тавровому пути.

Механизмы передвижения мостов выполняются с центральным и раздельным приводом. Некоторые краны имеют пневматические ходовые колеса. При больших мощностях привода встречаются два механизма передвижения, расположенные на обеих половинах моста.

Грузовые тележки при работе с крюком имеют однобарабанную лебедку со сдвоенным полиспастом и расположением барабана обычно поперек моста. Для устранения качания груза применяется жесткий подвес груза на подъемной колонне с направляющими. Для вспомогательных операций ставится второй механизм подъема. При креплении крюка на специальном траверсе можно установить на ней механизм вращения крюка. Подъемные лебедки могут быть установлены на поворотной раме с приводными колесами. При гибком подвесе для сопротивления закручиванию применяется пирамидальная схема подвеса груза с четырьмя барабанами.

кран мостовой машина груз

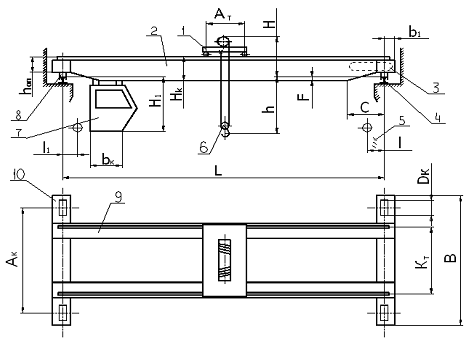
Рисунок 1- Основные параметры мостового крана

Мостовой кран (рисунок 1) состоит из двух основных частей: моста 2 и крановой тележки 1. Мост включает в себя две главные балки 9 и две концевые балки 10 и перекрывает рабочий пролет производственного помещения или склада. Мост опирается на ходовые колеса 8, половина из которых являются приводными. С помощью механизма передвижения 3 кран перемещается вдоль подкранового пути 4, уложенного на подкрановых балках здания или на специальных эстакадах. Вдоль моста по рельсам перемещается крановая тележка 1, снабженная механизмом подъема с грузозахватным элементом 6. Механизм передвижения тележки установлен непосредственно на тележке. Управление всеми механизмами производится из кабины 7, прикрепленной к мосту крана. Питание электродвигателей осуществляется из троллеев 5, проложенных вдоль стен здания или вдоль эстакад.

2 ОПРЕДЕЛЕНИЕ ОСНОВНЫХ ПАРАМЕТРОВ МАШИНЫ И РАБОЧЕГО ОБОРУДОВАНИЯ. ОБОСНОВАНИЕ ВЫБОРА ПРОТОТИПА

Основные размеры крана приведены в таблице 1.

Таблица 1 - Основные размеры мостового крана

Параметр

Обозначение

Формула

Величина

Габаритная ширина крана

А

4,7…6,8

6,8

База крана

В

3,7…5,6

5,6

База тележки

Ат

0,9; 1,0; 1,2; 2,9; 3,3

2,9

Колея тележки

Кт

2; 2,5; 3,15; 3,8

3,15

Высота главной балки

Нк

(1/14…1/16)L

1,8

Высота главной балки у опоры

hоп

(0,6…0,7)Нк

1,4

Высота грузовой тележки

Н2

0,7; 1,5

1,5

Расстояние от головки рельса до нижнего пояса главной балки

F

F= Нк - hоп

0,4

Длина скоса на главной балке

С

(0,1…0,2)L

6,9

Высота кабины

Н1

2,0…2,5

2

Ширина кабины

2,0…2,5

2

Наружный габарит от оси рельсов

b1

0,23…0,33

0,25

Габарит приближения

l l1

0,8…1,9 1,0…2,0

1,4 1,5

Масса крана, т

mкр

-

30

Масса тележки, т

-

4,3


По исходным данным и полученным размерам по ГОСТ 25711 - 83 выбран прототип. Характеристики прототипа приведены в таблице 2.

 

Таблица 2-Характеристика прототипа

грузо- подъём- ность, т

про- лёт,м

База крана, м

скорость, м/c

Тип подкранового пути

нагрузка на колесо, не более

масса




подъёма крюка

передвижения








тележки

крана




25

22,5

5

0,125

0,63

1,25

Р50,Р65 Гост 8161-75

  170

 28,5 (3,7)

3 РАСЧЕТ МЕХАНИЗМА ПОДЪЕМА ГРУЗА

.1 Выбор типа крюковой подвески

Грузовые крюки являются универсальными грузозахватными устройствами и предназначены для зацепки груза непосредственно или при помощи съемных грузозахватных приспособлений. По форме крюки бывают однорогие и двурогие.

Двурогие крюки применяются при выполнении погрузочно - разгрузочных работ с длинномерными грузами.

По заданным особым условиям, группе режима работы 4М и грузоподъемности Q = 25 т. принимается двурогий, кованый крюк № 7 [1]. Основные размеры крюка представлены в таблице 2, размеры хвостовика крюка приведены на рисунке 2.

Рисунок 2 - Эскиз хвостовика крюка

Таблица 3 - Основные размеры и наибольшая грузоподъемность крюка

Номер крюка

Наибольшая грузоподъемность крюка для группы режима работы 4М, т

Тип

Наружный диаметр резьбы хвостовика d1, мм

Диаметр заготовки d, мм

Длина ненарезанной части хвостовика l, мм

7

25

А

Tr 90x12

110

115


Крюковые подвески предназначены для соединения грузозахватного органа (в частности крюка) с канатом механизма подъёма. Основные типы крюковых подвесок: нормальные, укороченные и с разнесёнными блоками. Укороченные подвески имеют меньший размер по высоте по сравнению с нормальными, и применять их рекомендуется на кранах с малой высотой подъёма при четной кратности полиспаста. Подвески с разнесёнными блоками применяются на кранах с большой высотой подъёма (преимущественно башенных) с целью исключения скручивания канатов подвески.

По рекомендациям [1] выбираем нормальную крюковую подвеску.

Выбор кратности полиспаста.

Кратность полиспаста зависит от грузоподъемности, типа полиспаста и направления навивки каната на барабан. С увеличением кратности полиспаста снижается нагрузка на канат. Это приводит к снижению нагрузки на барабан и его опоры, диаметров каната, блоков, барабана, передаточного числа редуктора и массы всего механизма. Однако повышение кратности полиспаста приводит к увеличению потерь энергии на преодоление трения в дополнительных блоках, т.е. к снижению КПД.

При грузоподъемности 25 т. выбрана кратность полиспаста uп = 3. Схема запасовки приведена на рисунке 3.

Рисунок 3 - Схема запасовки

КПД полиспаста :

 (1)

где  - КПД блока на подшипниках качения, =0,98 [1].

.2 Расчет и выбор каната

Цель расчета - выбор необходимого диаметра и типа каната по разрывному усилию.

Исходные данные: группа режима работы 4М; грузоподъемность Q=25т; кратность полиспаста u=3 (рисунок 3).

В ГПМ стальные канаты выполняют различные функции, в соответствии с которыми они выбираются по своим отличительным признакам. Канаты различают по конструкции, по структуре, по типу сердечника, по направлению свивки элементов каната, по типу свивки, по маркировочной группе проволоки и т.д. Канат выбирают по разрывному усилию.

Разрывное усилие каната в целом , кН [1]:

, (2)

где  - минимальный коэффициент использования каната, = 5,6 [1].

Рабочее усилие в канате Fk, Н [1]:

 (3)

где Q - промежуточная грузоподъемность крана:

 (4)

где Qнетто - грузоподъемность на крюке, Qнетто = 25000 кг; mпод - масса крюковой подвески, mпод = 500 кг, т.к. mпод составляет 2% от Qнетто; mтр -масса траверсы, mтр =1500 кг.

=25000 + 500+1500 = 27000 кг.

- ускорение свободного падения, = 9,81 м/с2; N - число ветвей каната, навиваемых на барабан, = 2; uп - кратность полиспаста, uп = 5; hп - КПД полиспаста, hп = 0,96; hбл - КПД направляющего блока, hбл = 0,98; n - число направляющих блоков, n =2.

.

Разрывное усилие:

.

Выбран канат двойной свивки типа ЛК-О конструкции 6x19(1+9+9) + 1 о.c. диаметром 20,5 мм.

Обозначение каната: Канат-20,5-Г-I-Н-1670-ГОСТ 3077-80.

.3 Определение размеров барабана

Цель расчета - определение основных геометрических параметров барабана.

Исходные данные: группа режима работы 4М; диаметр каната dк =20,5 мм; высота подъема груза Н=10 м; кратность полиспаста u=3.

Барабан предназначен для преобразования угловых перемещений вала двигателя в линейное перемещение гибкого элемента посредством навивки его на цилиндрическую поверхность барабана. Принят нарезной двухканатный барабан с однослойной навивкой, приведенный на рисунке 4.

Диаметр барабана по наружной поверхности, мм [1]:

 

Dб = dk×( h1 - 1 ), (5)

где h1 - коэффициент выбора минимального диаметра барабана, h1 = 20 [1].

Dб = 20,5×(20 - 1)=389,5 мм.

Принят диаметр Dб =390 мм.

Минимальный диаметр барабана по средней линии навиваемого каната D,мм: D=Dб+dk (6)

 

D=390+20,5=410,5 мм.

Рисунок 4 - Нарезной барабан

Полная длина одноканатного барабана, мм:

б = 2·(Lр + Lк)+ Lн , (7)

где Lр - длина рабочей части барабана, мм:

, (8)

где zр -число рабочих витков каната на барабане:

, (9)

где Н - высота подъема груза, Н=10 м.


 - количество запасных витков (Принято:  = 2);

 - шаг навивки каната для желобчатого барабана, t=24,19 мм[1].

к- длина участка, необходимая для закрепления каната на барабане, м:


Lн - ненарезанной части барабана, Lн = 150 мм [1].

б =2·(500+75)+150=1300 мм.

Принятый барабан проверяется на соотношение длины Lб и диаметра Dб барабана. Рассчитанные параметры барабана принимаются окончательно, если выполняется условие:

 (10)

.

Условие не нарушено. Рассчитанные параметры барабана принимаем окончательно.

Толщина стенки стального барабана δ, мм:

 (11)


Принята толщина стенки барабана δ = 7мм.

.4 Определение потребной мощности. Выбор двигателя

Статическая мощность двигателя Pст, кВт:

 (12)

где u - скорость подъема груза, = 0,1 м/с; h - к.п.д. механизма подъема, h = 0,9 [1]; hп - к.п.д. полиспаста, hп=0,98.

.

Потребная мощность двигателя Pдв, кВт:

дв=(0,7…0,8) Pст , (13) Pдв=0,8×30,1≈24 кВт.

По потребной мощности Рдв с учетом режима работы 4М (ПВ=25%) принимается крановый электродвигатель с фазным ротором MTF 411-6, имеющем при ПВ = 25% номинальную мощность Pном = 27 кВт и частоту вращения n=955 мин-1, момент инерции ротора Ip = 0,5 кг×м2, максимальный пусковой момент двигателя Тmax = 650 Н×м, диаметр выходного вала d=65 мм, диаметр корпуса двигателя D=396 мм. Номинальный момент двигателя Тн , Н×м:

 , (14)

 270 Н×м.

.5 Кинематический расчет механизма

Кинематическая схема лебедки должна быть компактна, удобна для монтажа и обслуживания при эксплуатации, надежна и экономична.

Принятая кинематическая схема приведена на рисунке 5. Достоинством данной схемы является возможность компоновки из серийно выпускаемых узлов, компактность. Недостатком является трудность монтажа, сложная и дорогая зубчатая муфта.

1 - гидромотор; 2 - муфта с тормозным шкивом; 3 - тормоз; 4 - редуктор; 5 - барабан

Рисунок 5 - Кинематическая схема лебедки

Частота вращения барабана nб, мин-1:

 ; (15)

с-1.

Общее передаточное отношение u:

u = nдв /nб , (16)= 15,91/0,232 = 52

Принимается редуктор цилиндрический, горизонтальный, двухступенчатый, крановый типоразмера Ц2-500 с передаточным числом up = 50 и вращающим моментом на тихоходном валу Т=21,2 кН×м [1].

.6 Выбор соединительных муфт

С помощью муфты соединяется вал двигателя с входным валом редуктора. Муфта на приводном валу должна иметь тормозной шкив. На ведущий вал для смягчения ударных нагрузок рекомендуется устанавливать упругие муфты.

Расчетный момент Тр, Н×м:

Тр = k1×k2×Tc, (17)

где k1 - коэффициент, учитывающий степень ответственности механизма, 1 = 1,2 [1]; k2 - коэффициент, учитывающий режим работы механизма (для 4М ) k2 = 1,3 [1];

Tc - наибольший статический момент на валу муфты, Н×м:

 , (18)

 Н×м;

Тр = 1,2×1,3×381 = 594,36 Н×м.

Необходимые при выборе муфты геометрические параметры представлены в таблице 4.

Таблица 4 - Геометрические параметры электродвигателя и редуктора [1]

 Электродвигатель

 Редуктор

 Длина  хвостовика L1, мм

 Диаметр вала d, мм

 Быстроходный вал



Диаметр вала d1, мм

Длина посадочной  части l1, мм

 140

 65

 60

 108


Принимается муфта упругая втулочно-пальцевая с тормозным шкивом. Основные характеристики выбранной муфты представлены в таблице 5.

 

Таблица 5 - Основные характеристики выбранной втулочно-пальцевой муфты [1]

Диаметр тормозного шкива Dт, мм

d, мм

Ширина тормозного шкива Вт, мм

Длина муфты L, мм

Допустимая частота вращения n, мин-1

Наибольший Передаваемый крутящий момент Мкр, Н×м

Масса, кг

Расчетный мо- мент инерции муфты, кг×м2


тормозного шкива

полумуфты







300

60

65

145

286

2650

800

60

0,6


Кроме этого тихоходный вал редуктора, выполненный в виде зубчатой полумуфты, соединяется со второй половиной полумуфты, являющейся отъемным фланцем барабана и крепящегося к нему при помощи болтов.

Основные размеры тихоходного вала редуктора, выполненного в виде зубчатой полумуфты, представлены в таблице 6.

Таблица 6 - Основные размеры тихоходного конца вала редуктора, выполненного в виде зубчатой полумуфты [1].

Модуль зацепления m

Количество зубьев z

Делительный диаметр D1, мм

Толщина зуба b, мм

Внутренний диаметр dвн, мм

6

48

288

40

140

.7 Проверка двигателя на надежность пуска

Выбранный двигатель проверяется на надежность пуска по ускорению подъема груза.

Фактическое ускорение при пуске aср, м/с2:

 (19)

где tп - время пуска, с:

 (20)

где Iр - момент инерции ротора двигателя, кг×м2 (Iр = 0,5 кг×м2);м - момент инерции муфты с тормозным шкивом, кг×м2 (Iр = 0,6 кг×м2);гр - момент инерции груза, приведенный к валу двигателя, кг×м2:

 , (21)

 кг×м2;

d - коэффициент, учитывающий неучтенные вращающиеся и поступательно

движущиеся массы механизма подъема груза (d = 1,1 [1]);

Тср. п - средне пусковой момент двигателя, Н×м:

Тср. п = (1,5…1,6)Тн (22)

Тср. п = 1,6×270 = 432 Н×м.

с;

м/с2.

Должно соблюдаться условие:

 

аср £ а, (23)

где а - наибольшее рекомендуемое допустимое ускорение механизма подъема

груза, м/с2 (а = 0,7 м/с2 для кранов, работающих при массовых перегрузочных работах [1]).

,066 м/с2 £ 0,7 м/с2.

Условие (23) выполняется, следовательно, двигатель выбран правильно.

3.8 Определение тормозного момента. Выбор тормоза

Механизмы грузоподъемных машин должны иметь надежные тормозные устройства, обеспечивающие в механизмах подъема остановку груза и удерживание его в подвешенном состоянии с заданным запасом торможения.

Тормоз выбирается по диаметру тормозного шкива выбранной втулочно-пальцевой муфты.

Принимается тормоз колодочный с электрогидротолкателем ТКГ-300,

имеющий наибольший тормозной момент Тнт = 800 Н×м, массу с приводом m = 100 кг [1]. Выбранный тормоз прижимает колодками тормозной шкив диаметром Dт = 300 мм, что соответствует выбранной ранее втулочно-пальцевой муфте с тормозным шкивом.

Тормозной момент Тт, Н×м:

Тт = k×Tc, (24)

где k - коэффициент запаса торможения (для режима работы 4М k = 1,75 [1]);

Тт = 1,75×381 = 667 Н×м.

Тормоз развивает момент больше требуемого.

.9 Прочностные расчеты узла барабана

Так как Lб /Dб > 2,5, то барабан проверяется на прочность по приведенным напряжениям с учетом деформации сжатия, изгиба и кручения.

Напряжения сжатия при однослойной навивке sсж, МПа:

 , (25)

где  - допускаемые напряжения (для стали 09Г2С =195 МПа).

МПа.

При определении напряжений от изгиба барабан принимается как балка на двух опорах с пролетом, равным длине барабана, нагруженная двумя силами Fk, приложенными в средней части барабана на расстоянии Lн друг от друга.

Максимальный изгибающий момент Мmax, Н×м:

 , (26)

.

Напряжения от изгиба sи, МПа:

 (27)

где W - момент сопротивления поперечного сечения барабана, м3:

 , (28)

;

.


 (29)

где Т - крутящий момент на барабане, Н×м:

 , (30)

 Н×м;

p - полярный момент сопротивления барабана, м3:

 , (31)

 м3.

 МПа.

Приведенные напряжения sпр, МПа:

 (32)

где sнорм - нормальные напряжения, МПа:

sнорм = sи + sсж (33)

sнорм = 32,2 + 193,7 » 226 МПа;

МПа.

Прочность барабана достаточна, если выполняется условие:

sпр £ [s], (34)

где [s] - допускаемые напряжения, МПа (для материала барабана 09Г2С и режиме работы 4М [s] = 195 МПа [2]).

МПа > 195 МПа.

Условие (34) не выполняется, следовательно, необходимо увеличить толщину стенки барабана.

Нагрузки на ось:

,, (35)

Н; Н.

Эпюра изгибающих моментов для определения наибольшего изгибающего момента Ми, Н·м приведена на рисунке 5.

Определим реакции в опорах А и В:

М(·)В=0 -RA·1,35+F1·1,23+F2·0,08=0.

Н.

Н.

По эпюре определяем опасное сечение и проверяем ось барабана на прочность.




                                                  


Рисунок 6-Расчетная схема оси барабана

, (36)

где Ми - максимальный изгибающий момент, Н×м (Ми=5600 Н·м);

d - диаметр оси, мм

- допускаемые напряжения.

; (37)

где  - предел выносливости материала оси (для стали 45 =470 МПа); Ко - коэффициент, учитывающий конструкцию детали (для оси Ко=2,0 [1]);

[n] - допускаемый коэффициент запаса прочности (для группы режима работы 4М [n] =1,6 [1])

Па.

м=72мм.

Принят диаметр оси d=75 мм.

Параметры сферических шариковых подшипников приведены в таблице 7.

Таблица 7 - Основные параметры шариковых радиальных однорядных подшипников

Обозначение подшипника

Внутренний диаметр d, мм

Наружный диаметр D, мм

Ширина В, мм

Радиус скругления r, мм

Динамическая грузоподъемность С, кН

Статическая грузоподъемность Со, кН

1215

75

130

25

3

39

21,5


Определение болтов крепящих канат на барабане.

, (38)

где  - коэффициент запаса надежности крепления каната к барабану;

d0 - внутренний диаметр резьбы болтов (d0=26,2 мм)

l - расстояние от гайки до барабана;

l=1,3…1,5dк=1,4·20,5=28,7 мм.

f1 - приведенный коэффициент трения между канатом и прижимной планкой с трапециидальным сечением канавки;

, (39)

где - угол наклона боковой грани канавки ([2]);

f - коэффициент трения между канатом и барабаном (f=0,15 [2])

, (40)

МПа.

Fp - суммарное усилие растяжения болтов

, (41)

где - угол обхвата запасными витками ().

Н.


Принято Zб=2.

.9 Расчет крюковой подвески

Диаметр по дну желоба направляющего блока:

, (42)

где dk - диаметр каната; h2 - коэффициент выбора минимального диаметра направляющего блока, h2=22,4 [1].

мм.

Принят Dбл2= 440 мм [1].

Основные параметры направляющего блока приведены в таблице 8.

Таблица 8 - Основные параметры направляющего блока

Наибольший диаметр Dр, мм

Ширина ручья H, мм

Длина ступицы lст ,мм

Диаметр ступицы d2, мм

Диаметр отверстия под подшипник d, мм

530

45

70

230

160

Рисунок 7 - Размеры блока для стальных канатов

Диаметр по дну желоба уравнительного блока:

, (43)

где dk - диаметр каната; h3 - коэффициент выбора минимального диаметра уравнительного блока, h3=16 [1].

 мм.

Принято Dбл3=310 мм [1].

Основные параметры уравнительного блока приведены в таблице 9.

Таблица 9 - Основные параметры уравнительного блока

Наибольший диаметр Dр, мм

Ширина ручья H, мм

Длина ступицы lст ,мм

Диаметр ступицы d2, мм

Диаметр отверстия под подшипник d, мм

450

45

60

180

160


По диаметру отверстия под подшипник выбираются шариковые радиальные однорядные подшипники шириной:

, (44)

где δ - толщина стопорного кольца, δ = 5 мм.

Ширина подшипника направляющего блока:

.

Параметры выбранных шариковых радиальных однорядных подшипников приведены в таблице 10.

Таблица 10 - Основные параметры шариковых радиальных однорядных подшипников

Блок

Обозначение подшипника

Внутренний диаметр d, мм

Наружный диаметр D, мм

Ширина В, мм

Радиус скругления r, мм

Динамическая грузоподъемность С, кН

Статическая грузоподъемность Со, кН

Направляю-щий

218

90

160

30

3

95,6

62


Подшипник для направляющего блока: №218 90х160х30.

Упорный подшипник крюка выбран по диаметру ненарезанной части крюка. Параметры упорного подшипника для крюка приведены в таблице 9.

Таблица 11 - Основные параметры упорного подшипника

Условное обозначение подшипника

Наружный диаметр D, мм

Внутренний диаметр d, мм

Высота H, мм

Статическая грузоподъемность Со, кН

8320Н

150

100

55

475


Проверка по статической нагрузке:

, (45)

где Gст - статическая нагрузка на подшипник от веса, поднимаемого груза; Со - статическая грузоподъемность подшипника.

Н.

317844<475000. 

Условие (45) выполняется.

Эскизная компоновка выполняется с целью предварительного определения размеров, необходимых для проведения прочностных расчетов элементов подвески.

Высота гайки крюка:

Н=l1 - (5…8) мм, (46)

где l1 - длина нарезанной части хвостовика, мм; (5…8) мм - выступающая часть хвостовика.

Н = 100 - 5= 95 мм.

Должно соблюдаться условие:

ННрасч, (47)

где Нрасч - минимальная высота гайки в мм, определяемая из условия ограничения удельного давления в резьбе:

, (48)

где Qнетто - грузоподъемность на крюке, Q=25000 кг; t - шаг резьбы, t= 12 мм; d1,d0 - наружный и внутренний диаметр резьбы, d1=90 мм, d0=78 мм; [p] - удельное давление в резьбе, [p]=20 МПа.

 м.

>93 мм.

Условие (47) выполняется.

Ширина траверсы В определяют в зависимости от наружного диаметра D упорного подшипника крюка, мм:

В = Dп + (10…30) мм. (49)

В = 150 + 20 = 170 мм.

Высота траверсы h, мм:

h = l1 + l2 - (H1 + H) - (5…8) мм, (50)

где l1 - длина нарезанной части хвостовика крюка, l1 = 100 мм; l2 - длина ненарезанной части хвостовика крюка, l2 = 165 мм; Н1 - высота упорного подшипника, Н1 = 44 мм; H - высота гайки крюка, Н = 90 мм.

= 100 + 240 - (55 + 95) - 5 = 185 мм.

Диаметр отверстия в траверсе под хвостовиком крюка d3, мм:

d3 = d2 + (2…3) мм, (51)

где d2 - диаметр ненарезанной части хвостовика, d2 = 95 мм.

d3 = 95 + 3 = 98 мм.

Диаметр цапфы dц, мм:

ц = (0,7…1,0)·h, (52)ц = 0,7 × 185 = 130 мм.

Так как диаметр цапфы не должен быть больше диаметра оси блоков, то принято dц = 90 мм.

Толщина серьги определяется из условия допустимого давления между серьгой и цапфой траверсы:

, (53)

где dц - диаметр цапфы, dц = 90 мм; - допустимое давление на смятие в МПа, = 60 МПа.

м.

Принято мм.

Ширина серьги из условия прочности на растяжение:

, (54)

где  - допускаемое напряжение:

, (55)

где  - предел текучести материала, МПа; n - коэффициент запаса прочности, n=1,6 [1].

Принят материал Сталь 20, σт = 250 МПа.

МПа.

Из формулы (54) ширина серьги bc:

. (56)


Принято

Длина траверсы lт принимается равной длине оси блоков:

lт = 3·lст +2·+2· (57)

Часть элементов принимается конструктивно в зависимости от грузоподъемности:

Толщина щеки =5 мм; расстояние между блоками  принимается равным 10 мм [1]; расстояние между блоками и внутренней поверхностью щеки  принимается равным 10 мм [1]; расстояние между блоками и хвостовиком крюка  принимается равным 50 мм [1].

т = 3×70+2×10 +2×10 = 250 мм.

Эскизная компоновка приведена на рисунке 8.

Рисунок 8 - Эскизная компоновка крюковой подвески

Диаметр оси блоков проверяется на прочность по условию:

, (58)

где  - напряжения изгиба; М - максимальный изгибающий момент в опасном сечении, М = 12500 Н·м; d - диаметр оси, d = 90 мм;  - допускаемые напряжения изгиба, для стали 45


Рисунок 9 - Эпюра изгибающих моментов

 

< 253 МПа.

Условие (58) выполняется, прочность оси блоков достаточна.

Траверса проверяется на напряжения изгиба от момента в среднем сечении, ослабленном отверстием для крюка:

, (59)

где М - момент в опасном сечении траверсы, М = 18200 Н·м; W - момент сопротивления сечения траверсы относительно горизонтальной оси.

Рисунок 10 - Эпюра изгибающих моментов

 .

 МПа.

,3 < 253 МПа.

Условие (53) выполняется, прочность траверсы достаточна.

Цапфа траверсы также проверяется на напряжение изгиба:

, (60)

где М - изгибающий момент у основания цапфы.

. (61)

Н·м.

МПа.

,4 < 253 МПа.

Условие (60) выполняется, прочность цапфы достаточна.

4 РАСЧЕТ МЕХАНИЗМА ПЕРЕДВИЖЕНИЯ ГРУЗОВОЙ ТЕЛЕЖКИ

.1 Выбор ходовых колес

Ходовое колесо подбирается по максимальной статической нагрузке на колесо, которую вычисляют при номинальной массе груза.

, (62)

где mT - масса тележки, mT=7000 кг[1].

 кН.

По полученной нагрузке подбираем диаметр колеса Dк=320 мм и тип рельса Р43 [1].

4.2 Определение внешних сопротивлений

Общее сопротивление передвижению крана от статических нагрузок:

, (63)

где Fтр - сопротивление трения ходовой части; Fук - сопротивление от уклона кранового пути; Fв - сопротивление от ветровой нагрузки.

Сопротивление трения ходовой части:

, (64)

где  - коэффициент трения качения колеса по рельсу (=0,0004 [1]);  f - коэффициент трения в подшипниках колес (для подшипников качения f=0,015);

D - диаметр ходового колеса, D=320 мм; kр - коэффициент, учитывающий трение реборд колеса о головку рельса (для центрального привода kр=1,5);

d - диаметр цапфы колеса.

d=(0,2…0,3)D, (65)

d=0,25·320=80 мм.

Н.

Сопротивление от уклона пути:

, (66)

где  - уклон пути в тысячных долях (=0,003).

Н.

Сопротивление от ветровой нагрузки Fв =0 (не задано).

Fпер =3126+1000=4126 Н.

4.3 Определение потребной мощности. Выбор двигателя

Статическая мощность, необходимая для привода механизма передвижения крана:

, (67)

где  - к.п.д. механизма передвижения (=0,8 [7]).

кВт.

По потребной мощности Рдв с учетом режима работы 4М (ПВ=40%) принимается крановый электродвигатель фазным ротором MTF 111-6, имеющий

при ПВ = 40% номинальную мощность Pном = 3,5 кВт и частоту вращения n=895 мин-1, момент инерции ротора Ip = 0,048 кг×м2, максимальный пусковой момент двигателя Тmax = 87 Н×м, диаметр выходного вала d=35 мм, диаметр корпуса двигателя D=274 мм.

4.4 Кинематический расчет механизма

Кинематический расчет сводится к определению общего передаточного числа трансмиссии и разбивке его по ступеням.

Частота вращения ходового колеса:

, (68)

об/с.

Требуемое передаточное число:

, (69)

.

4.5 Подбор редуктора, муфт и тормозов

Требуемый         момент на валу редуктора:

, (70)

Н·м.

По требуемому передаточному числу и моменту подобран редуктор цилиндрический, вертикальный, крановый типоразмера 2Ц3ВК-160 с передаточным числом up = 31,5.

Муфта выбирается по максимальным диаметрам соединяемых валов и расчетному моменту:

, (71)

где k1 - коэффициент, учитывающий степень ответственности механизма (k1=1,2);

k2 - коэффициент, учитывающий режим работы механизма (k2=1,2);

Тс - момент статических сопротивлений, приведенный к валу двигателя.

, (72)

 Н·м.

 Н·м.

Принимается муфта упругая втулочно-пальцевая с тормозным шкивом. Основные характеристики выбранной муфты представлены в таблице 11.

 

Таблица 12 - Основные характеристики выбранной втулочно-пальцевой муфты [10]

Диаметр тормозного шкива Dт, мм

d, мм

Ширина тормозного шкива Вт, мм

Наибольший передаваемый крутящий момент Мкр, Н×м

Масса, кг

Расчетный момент инерции муфты, кг×м2


тормозного шкива

полумуфты





200

35

40

100

250

13,5

0,24


Тормоз выбирается по диаметру тормозного шкива полумуфты. И проводится проверочный расчет.

Принят тормоз колодочный ТКГ-200 с электрогидравлическом толкателем, имеющий наибольший тормозной момент Тнт = 300 Н×м, вес 38 Н [6].

Проверяем тормоз по тормозному моменту:

, (73)

где Тнт - тормозной момент, развиваемый тормозом, Н×м (Тнт=300);

, (74)

где  - коэффициент, учитывающий неучтенные вращающиеся массы (=1,1 [7]);

Ip, IM - момент инерции ротора двигателя и муфты соответственно, кг×м2

(Ip=0,048, IM=0,24); m - масса тележки, m=7000 кг; а - максимальное замедление крана;

 

 Н×м.

Определяем тормозной момент, приходящийся на один тормоз:

Т=Тт/2, (75)

Т=45/2=22,5 Н×м.

Условие (73) выполняется, тормоз подобран верно.

.6 Проверка двигателя на надежность пуска

Выбранный двигатель проверяют на время разгона до номинальной скорости при движении крана вверх по уклону против ветра:

, (76)

где  - коэффициент, учитывающий неучтенные вращающиеся массы (=1,1 [7]);

Ip, IM - момент инерции ротора двигателя и муфты соответственно, кг×м2 (Ip=0,048, IM=0,24); Zп - число приводных двигателей (Zп=1); Тср.п - средний пусковой момент двигателя;

Тср.п=(1,5…1,6)Тн, (77)

где Тн - номинальный момент двигателя;

, (78)

где nн - номинальная частота вращения выходного вала двигателя, nн=15 об/с;

Рн - номинальная мощность двигателя, Рн=3,5 кВт.

 Н×м.

Тср.п=1,6×51,4=82,2 Н×м.

Тс - момент статических сопротивлений, приведенный к валу двигателя, Н×м.

, (79)

 Н×м.

с.

Время разгона не превышает 5…6с, что допустимо.

4.7 Проверка запаса сцепления

Запас сцепления ходовых колес с рельсом проверяется при разгоне тележки без груза на подъем против ветра:

, (80)

. (81)

где Gсц - вес тележки, приходящийся на приводные колеса;

- коэффициент сцепления колеса с рельсом (для кранов, работающих в помещении =0,2 [7]);

Fин - сопротивление от сил инерции массы крана;

- сопротивление сил трения при движении крана без груза;

Fт - сопротивление ветровой нагрузки, действующей на металлоконструкции тележки;

- сопротивление от уклона подкрановых путей при движении тележки на подъем без груза.

, (82)

Н.

, (83)

Н.

, (84)

Н.

, (85)


, (86)

где  - момент статических сопротивлений, приведенный к валу двигателя, при движении крана без груза на подъем против ветра.

, (87)

. (88)

 Н.

 Н×м.

С целью получения требуемого коэффициент сцепления необходимо

уменьшить силу инерции. Это достигается путем увеличения времени разгона, а следовательно, уменьшением среднего пускового момента.

Принято Тср.п=33 Н×м.

 с.

 Н.

.

Условие (81) выполняется, коэффициент сцепления колес с рельсом достаточен.

4.8 Прочностные расчеты элементов

Напряжение смятия при точечном контакте, МПа:

, (89)

где k - коэффициент, зависящий от радиуса контактирующих элементов (k=0,127 [7]);

      - коэффициент, учитывающий касательную нагрузку в месте контакта (=1,05[7]);

      - коэффициент динамичности.

, (90)

а - коэффициент, зависящий от жесткости кранового пути, с/м (а=0,15 [7]);

.

 МПа.

Для материала колес Сталь 75 и режима работы 4М =750 МПа, следовательно, условие (89) выполняется, прочность на смятие достаточна.

5 ОРГАНИЗАЦИЯ НАДЗОРА ЗА БЕЗОПАСНОЙ ЭКСПЛУАТАЦИЕЙ КРАНОВ

Производственный контроль за безопасной эксплуатацией кранов должен осуществляться в соответствии с Правилами организации и осуществления производственного контроля за соблюдением требований промышленной безопасности на опасном производственном объекте. Руководители организаций и индивидуальные предприниматели - владельцы кранов, а также руководители организаций и индивидуальные предприниматели, эксплуатирующие краны, обязаны обеспечить содержание их в исправном состоянии и безопасные условия работы путем организации надлежащего освидетельствования, осмотра, ремонта, надзора и обслуживания.

В этих целях должны быть назначены инженерно-технический работник по надзору за безопасной эксплуатацией грузоподъемных кранов, грузозахватных приспособлений и тары, инженерно-технический работник, ответственный за содержание грузоподъемных кранов в исправном состоянии, и лицо, ответственное за безопасное производство работ кранами.

Для осуществления надзора за безопасной эксплуатацией кранов владелец должен назначить инженерно-технических работников после обучения и проверки знания ими настоящих Правил, должностных инструкций для ответственных специалистов и производственных инструкций для обслуживающего персонала экзаменационной комиссией с участием инспектора Госгортехнадзора и выдачи им соответствующего удостоверения.

Численность службы надзора и ее структура должны определяться владельцем кранов с учетом их количества, условий эксплуатации и письменно согласовываться с органами Госгортехнадзора.

Для обеспечения содержания кранов в исправном состоянии владелец должен назначить инженерно-технического работника соответствующей квалификации после обучения и проверки знания им настоящих Правил экзаменационной комиссией с участием инспектора Госгортехнадзора и выдачи ему соответствующего удостоверения и должностной инструкции.

Номер и дата приказа о назначении инженерно-технического работника, ответственного за содержание грузоподъемных кранов в исправном состоянии, а также его должность, фамилия, имя. отчество, номер удостоверения и подпись должны содержаться в паспорте крана. Эти сведения должны заноситься в паспорт до регистрации крана в органах Госгортехнадзора, а также каждый раз после назначения нового ответственного специалиста.

На время отпуска, командировки, болезни или в других случаях отсутствия инженерно-технического работника, ответственного за содержание грузоподъемных кранов в исправном состоянии, выполнение его обязанностей возлагается приказом на работника, заменившего его по должности, имеющего соответствующую квалификацию, прошедшего обучение и проверку знаний настоящих Правил (без занесения его фамилии в паспорт крана). Владелец крана должен создать условия для выполнения ответственным специалистом возложенных на него обязанностей.

Периодическая проверка знаний инженерно-технических работников по надзору за безопасной эксплуатацией грузоподъемных кранов, инженерно-технических работников, ответственных за содержание грузоподъемных кранов в исправном состоянии, и лиц, ответственных за безопасное производство работ кранами, должна проводиться не реже одного раза в 3 года комиссией предприятия или учебной организацией с участием инспектора Госгортехнадзора после обучения их по соответствующим программам.

Для управления кранами и их обслуживания владелец обязан назначить крановщиков, их помощников, слесарей и наладчиков приборов безопасности, для обслуживания кранов с электрическим приводом, кроме того, и электромонтеров.

Крановщики, их помощники, другой обслуживающий и ремонтный персонала перед назначением на работу должны пройти медицинское освидетельствование для определения соответствия их физического состояния требованиям, предъявляемым к работникам этих профессий.

Подготовка и аттестация крановщиков и их помощников, стропальщиков, слесарей, электромонтеров и наладчиков приборов безопасности должна проводиться в профессионально-технических учебных заведениях, а также на курсах и в технических школах обучения рабочих указанным специальностям, создаваемых в организациях, располагающих базой для теоретического и производственного обучения и имеющих разрешение (лицензию) органов Госгортехнадзора. Подготовка рабочих указанных специальностей должна осуществляться по программам, разработанным учебными центрами и согласованным с Госгортехнадзором России.

Повторная проверка знаний обслуживающего персонала (крановщиков, их

помощников, слесарей, электромонтеров, наладчиков приборов безопасности и стропальщиков) квалификационной комиссией должна проводиться:

а)   периодически, не реже одного раза в 12 мес;

б)   при переходе работника на другое место работы;

в)   по требованию инженерно-технического работника по надзору за безопасной эксплуатацией грузоподъемных кранов или инспектора Госгортехнадзора.

Повторная проверка знаний должна проводиться в объеме производственной инструкции. Участие инспектора Госгортехнадзора в повторной проверке знаний обслуживающего персонала не обязательно. Результаты аттестации и периодической проверки знаний обслуживающего персонала должны оформляться протоколом с отметкой в удостоверении.

СПИСОК ИСПОЛЬЗОВАННЫХ ИСТОЧНИКОВ

1. Филатов А.П., Анферов В.Н., Игнатюгин В.Ю. Грузоподъемные машины: Учебное пособие по курсовому проектированию.- Новосибирск: Изд-во СГУПСа, 2005. - 191с.

. СТО СГУПС 01.01-2007. Курсовой и дипломный проекты. Требования к оформлению. Новосибирск, 2007. 41 с.

. Н.В. Мокин. Гидравлические и пневматические приводы. Новосибирск, СГУПС, 2004. 354 с.

. Филатов А.П., Тимофеев Г.Ф., Анферов В.Н. Грузоподъемные машины: Методические указания к практическим занятиям. Новосибирск, 2000. 46 с.


Не нашли материал для своей работы?
Поможем написать уникальную работу
Без плагиата!
Без нейросетей!