Организация и тактика тушения пожаров на объектах

  • Вид работы:
    Курсовая работа (т)
  • Предмет:
    Безопасность жизнедеятельности
  • Язык:
    Русский
    ,
    Формат файла:
    MS Word
    628,48 Кб
  • Опубликовано:
    2012-10-21
Вы можете узнать стоимость помощи в написании студенческой работы.
Помощь в написании работы, которую точно примут!

Организация и тактика тушения пожаров на объектах

МИНИСТЕРСТВО ПО ЧРЕЗВЫЧАЙНЫМ СИТУАЦИЯМ РЕСПУБЛИКИ БЕЛАРУСЬ

КОМАНДНО-ИНЖЕНЕРНЫЙ ИНСТИТУТ

КАФЕДРА ЛИКВИДАЦИИ ЧРЕЗВЫЧАЙНЫХ СИТУАЦИЙ







Курсовой проект

"Тактика тушения пожаров и проведения аварийно-спасательных работ"

Тема проекта: "Организация и тактика тушения пожаров на объектах"











Минск 2012

Содержание

Введение

. Характеристика территории и особенности планировки объекта

. Оперативно-тактическая характеристика зданий и сооружений

. Выписка из расписания выезда пожарных аварийно-спасательных подразделений на пожары

. Выбор и обоснование места возникновения возможного пожара

. Выбор и обоснование огнетушащего вещества

. Расчет динамики развития пожара и расчет сил и средств для его тушения

. Схема расстановки сил и средств для тушения пожара

. Совмещенный график изменения площади пожара, требуемого и фактического расходов огнетушащего вещества

. Организация тушения пожара

. Рекомендации руководителю тушения пожара, начальнику штаба, НТ и т. д.

Список используемой литературы

Приложение

Введение

Пожары в складах промышленных и производственных товаров ежегодно приносят ощутимый ущерб государству. В складах на сравнительно небольшой площади сосредоточены большие материальные ценности, в момент пожара в них находятся самые различные товары и вещества, в том числе синтетические материалы, горение и термическое разложение которых в большинстве случаев сопровождается повышенным дымообразованием и выделением токсичных веществ. Распространение пламени и нарастание температуры происходит очень быстро.

Примеров пожаров на торговых базах множество. Одним из которых является пожар на Дёмской оптовой базе г. Уфа. Информация о возгорании и сильном задымлении на цокольном этаже трехэтажного торгового комплекса поступила на пульт дежурного около 10 часов утра. По данным пресс-службы МЧС России, из здания были эвакуированы более 200 человек, на месте работали 56 сотрудников МЧС и 22 единицы техники. Один из павильонов рынка почти полностью выгорел изнутри. Огонь вспыхнул в подвале трехэтажного здания - загорелся склад с одеждой и другими промышленными товарами. Общая площадь возгорания составила 350 квадратных метров, пожару был присвоен третий уровень сложности. Тушение осложнял густой едкий дым, который образовался в результате горения синтетики и пластмассы. Предприниматели, работающие на рынке, понесли многомиллионные убытки, поскольку не успели вынести товар.

Одним из способов совершенствования тактического мастерства работников органов и подразделений по чрезвычайным ситуациям Республики Беларусь, предварительного планирования боевых действий по тушению пожаров и спасанию людей на объектах с проработкой возможных вариантов развития и тушения пожаров; изучения особенностей объектов, зданий, сооружений и населенных пунктов; создания базы данных об объектах, зданиях, сооружениях и населенных пунктах для использования работниками подразделений при оперативно-тактическом изучении района выезда, оценке обстановки и принятии решений в процессе тушения пожаров и проведения других аварийно-спасательных работ является создание оперативных планов.

Данный курсовой проект необходим для практического изучения, подготовки специалистов по ликвидации пожаров на объектах подобного типа.

1. Характеристика территории и особенности планировки объекта

На территории межрайонной торговой базы ОПС расположены складские и производственные корпуса: складские помещения (секция А); складские помещения (секция Б); склад-ангар (Югославского производства); трансформаторная подстанция (ТП-81); котельная, гараж; проходная; склад растительного масла; склад тары; склад-ангар холодильных установок; склад лаков и красок; мастерские; котельная; мусоросборник; градирня.

Территория ограждена металлическим забором высотой 2 метра с колючей проволокой. Въезд осуществляется с двух ворот. Ко всем зданиям имеются подъездные дороги с твердым покрытием.

Наружное противопожарное водоснабжение обеспечивается от 6 пожарных гидрантов, установленных на объектовой водопроводной сети, 2-х пожарных водоемов объемом 200 и 300 м³, градирня объемом 7 м³ с координатами:

ПГ-1 складские помещения "А" (0-6-0 )

ПГ-2 складские помещения "А" (0-6-8 )

ПГ-3 склад тары (8-2-0)

ПГ-4 склад тары (0-9-0)

ПГ-5 склад лаков и красок (9-0-0)

ПВ-1 мастерские (0-5-0)

ПВ-2 складские помещения "А" (0-30-8)

Градирня- проходная (2-4-0)

Расход воды (л/сек) из водопроводной сети К-150 составляет:

Вид и диаметр водосети

Расход воды из сети в зависимости от давления в ней


10м

20м

30м

40м

50м

60м

70м

К-150

55

70

80

95

105

110

130



2. Оперативно-тактическая характеристика зданий и сооружений

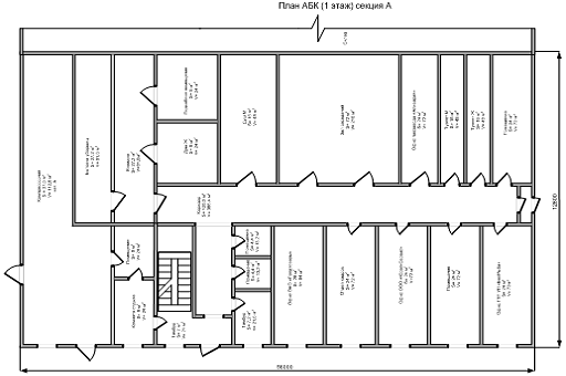
Складские помещения (секция А):

I. Архитектурно-строительная часть: двухэтажное здание без чердака и подвала IV CO, размерами в плане 56 х 88 м, площадью 4928 м², высотой 8 м, планировка коридорного типа. Стены кирпичные, толщина 120 мм (RE120); перекрытия железобетонные, толщина 150 мм (REI60), перегородки кирпичные, толщиной 120 мм (REI120). Кровля рубероидная на битумной мастике. Административные корпуса секции А и Б сообщены коридором размерами 4 х 6 м, площадью 24 м², железобетонный толщиной 150 мм.

II. Технологическая часть: складские помещения имеют холодильный отсек объемом 1850 м³. Холодильный агрегат работает следующим образом: мотор-компрессор откачивает пары холодильного агента из испарителя и нагнетает их в конденсатор. Здесь пары охлаждаются, конденсируются и переходят в жидкую фазу. Далее жидкий холодильный агент через фильтр-осушитель и капиллярную трубку направляется в испаритель. Выплёскиваясь в каналы испарителя, жидкий холодильный агент вскипает и начинает отбирать тепло от поверхности испарителя, тем самым охлаждая внутренний объём холодильника. Пройдя через испаритель, холодильный агент выкипает и превращается в пар, который опять откачивается мотор-компрессором. Система заполнена аммиаком в количестве 2,5 т в качестве холодильного агента.

III. Внутреннее водоснабжение: обеспечивается от 36 пожарных кранов (полугайки типа " Богданова ", диаметром 66 мм, длина рукова 20 метров, ствол "А")(см. схему). Водоотдача 14 л/сек, что обеспечивает одновременную работу 2 стволов "А". Насосы повысители предусмотрены (расположены в компрессорной), сухотрубы отсутствуют.

IV. Установки пожаротушения: отсутствуют.

V. Коммуникации:

Электроснабжение: напряжение 220 В. Обесточивается в электрощитовой путем отключения. Ключ от электрощитовой находится у сменного мастера или на проходной;

Вентиляция: вытяжная. Задвижки закрываются вручную и расположены непосредственно у циклонов;

Отопление: местное водяное от котельной;

Газоснабжение: отсутствует.

VI. Спасание людей и эвакуация материальных ценностей: производится звеньями ГДЗС с одновременной подачей стволов на тушение.

VII. Особые данные: складские помещения оборудованы автоматической пожарной сигнализацией. Пульт приемной станций установлен на проходной.

Помещение склада в секций А и холодильник №4 сдается в аренду ГТП УП "БелРыба".

Руководитель: Дубина А.А.

Телефон: раб.44-11-47; дом.45-68-52 ;

Время работы: 8.30-17.00

Количество работников: 5.

Помещение склада в секций А сдается в аренду пивзаводу "Аливария"

Руководитель: Борисов А.Е.

Телефон: раб. 41-97-62; сот.138-90-99;

Время работы: 8.30-17.30

Количество работников: 8.

Помещение склада в секций А сдается в аренду ООО "Юрал сервис"

Руководитель: Субцельная Л.Н.

Телефон: раб. 44-11-49; дом.45-18-57;

Время работы: 8.30-17.15

Количество работников: 2.

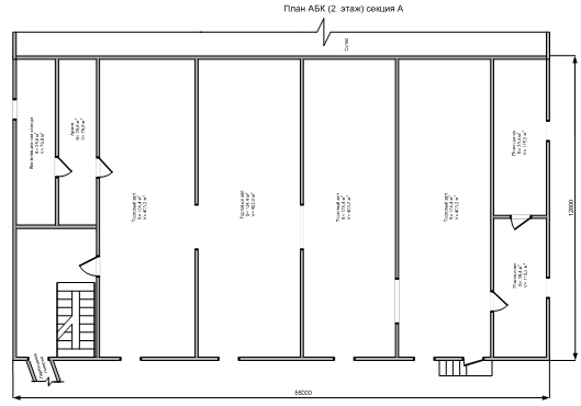
Складские помещения (секция Б):

I. Архитектурно-строительная часть: двухэтажное здание без чердака и подвала IV CO, размерами в плане 60 х 120 м, площадью 7200 м², высотой 8 м, планировка коридорного типа. Стены ж/б, толщина 300 мм (RE60); перекрытия ж/б, толщина 150 мм (REI45); перегородки кирпичные, толщиной 120 мм (REI120). Кровля рубероидная на битумной мастике. Административные корпуса секции А и Б сообщены коридором размерами 4 х 6 м, площадью 24 м², железобетонный толщиной 150 мм.

II. Технологическая часть: в складских помещениях происходит хранение родовольственных и хозяйственных товаров на металлических стеллажах и деревянных поддонах с учетом однородности средств тушения. Погрузка осуществляется автопогрузчиками.

III. Внутреннее водоснабжение: обеспечивается от 22 пожарных кранов (полугайки типа " Богданова ", диаметром 66 мм, длина рукава 20 метров, ствол "А") (см. схему). Водоотдача 14 л/сек, что обеспечивает одновременную работу 2 стволов "А". Насосы повысители предусмотрены (расположены в компрессорной), сухотрубы отсутствуют.

IV. Установки пожаротушения: отсутствуют.

V. Коммуникации:

Электроснабжение: напряжение 220 В. Обесточивается в электрощитовой путем отключения . Ключ от электрощитовой находится у сменного мастера или на проходной;

Вентиляция: вытяжная. Задвижки закрываются вручную и расположены непосредственно у циклонов;

Отопление: местное водяное от котельной;

Газоснабжение: отсутствует.

VI. Спасание людей и эвакуация материальных ценностей: производится звеньями ГДЗС с одновременной подачей стволов на тушение.

VII. Особые данные: складские помещения оборудованы автоматической пожарной сигнализацией. Пульт приемной станций установлен на проходной.

Помещение склада в секций Б сдается в аренду филиалу №1 ОАО "Продтовары"

Руководитель: Лобойко В.С.

Телефон: раб. 44-11-49; дом.45-18-57;

Время работы: 8.30-17.15

Количество работников: 13.

Склад-ангар (Югославского производства):

I. Архитектурно-строительная часть: одноэтажное здание без чердака и подвала IV CO, размерами в плане 29 х 72 м, площадью 2058 м², высотой 6 м. Стены - панельного ограждения, толщиной 150 мм (RE45); колонны металлические (R45); покрытие металлическое, толщиной 5 мм.

II. Технологическая часть: в складских помещениях происходит хранение продовольственных и хозяйственных товаров на металлических стеллажах и деревянных поддонах с учетом однородности средств тушения. Погрузка осуществляется автопогрузчиками.

III. Внутреннее водоснабжение: отсутствует

IV. Установки пожаротушения: отсутствуют.

V. Коммуникации:

Электроснабжение: напряжение 220 В. Обесточивается от наружного электрического щита;

Вентиляция: вытяжная;

Отопление: отсутствует;

Газоснабжение: отсутствует.

VI. Спасание людей и эвакуация материальных ценностей: производится звеньями ГДЗС с одновременной подачей стволов на тушение.

VII. Особые данные: склад сдается в аренду ОДО "Арлон"

Руководитель: Мохович И.В.

Телефон: раб. 44-20-44; сот. 640-85-27;

Время работы: 1-я смена 0.00- 7.00

-я смена 7.00- 16.00

руководство: 10.00- 19.00

Количество работников: 12.

Котельная, гараж:

I. Архитектурно-строительная часть: (совмещено противопожарной стеной), одноэтажное здание без чердака и подвала IV CO, размерами в плане 11,7 х 54,35 м, площадью 636,25 м², высотой 4,1 м. Стены кирпичные, толщиной 510 мм (RE240); перегородки кирпичные, толщина 120 мм (REI120), перекрытия ж/б толщиной 150 мм (REI45); кровля рубероидная по битумной мастике. Наружных пожарных лестниц нет.

II. Технологическая часть: помещение гаража рассчитано на стоянку 3 автомобилей. В котельной расположены котлы работающие на твердом топливе.

III. Внутреннее водоснабжение: отсутствует.

VI. Установки пожаротушения: отсутствуют.

V. Коммуникации:

Электроснабжение: напряжение 380 - 220 В, отключается в наружном электрорубильнике.

Вентиляция: вытяжная;

Отопление: местное водяное от котельной;

Газоснабжение: отсутствует.

VI. Особые данные: во время отопительного сезона в котельной дежурит 2 работника.

Трансформаторная подстанция:

I. Архитектурно-строительная часть: одноэтажное здание без чердака и подвала IV CO, размерами в плане 6 х 6 м, площадью 36 м², высотой 4 м. Стены кирпичные, толщиной 120 мм (REI120); перекрытия ж/б толщиной 150 мм (REI45); кровля рубероидная по битумной мастике. Наружных пожарных лестниц нет.

II. Технологическая часть: В трансформаторной подстанции осуществляется понижение напряжения с 1000 В до 380 В и 220 В.

III. Внутреннее водоснабжение: отсутствует.

IV. Установки пожаротушения: отсутствуют.

V. Коммуникации:

Электроснабжение: напряжение 380, отключается в электрощите установленном в подстанций;

Вентиляция: естественная;

Отопление: отсутствует;

Газоснабжение: отсутствует.

VI. Особые данные: ключи от ТП находятся у аварийной службы.

Проходная:

I. Архитектурно-строительная часть: одноэтажное здание без чердака и подвала IV CO, размерами в плане 5 х 4 м, площадью 20 м², высотой 3 м. Стены кирпичные, толщиной 120 мм (REI120); перекрытия ж/б толщиной 150 мм (REI45); кровля рубероидная по битумной мастике. Наружных пожарных лестниц нет.

III. Внутреннее водоснабжение: отсутствует.

IV. Установки пожаротушения: отсутствуют.

V.Коммуникации:

Электроснабжение: напряжение 220 В, отключается в электрощите установленном в подстанций или в электрощитовой на 1-ом этаже основного здания;

Вентиляция: естественная;

Отопление: отсутствует;

Газоснабжение: отсутствует.

VI. Особые данные: на проходной круглосуточно дежурит охрана.

Склад растительного масла:

. Архитектурно-строительная часть: одноэтажное здание без чердака и подвала IV CO, размерами в плане 11,2 х 29 м, площадью 294,77 м², высотой 5,9 м. Стены кирпичные, толщиной 250 мм (RE240); перекрытия ж/б, толщиной 150 мм (REI45); перегородки кирпичные, толщиной 120 мм (REI120); кровля рубероидная по битумной мастике. Наружных пожарных лестниц нет.

II. Технологическая часть: не эксплуатируется.

III. Внутреннее водоснабжение: отсутствует.

IV. Установки пожаротушения: отсутствуют.

V. Коммуникации:

Электроснабжение: отсутствует;

Вентиляция: естественная;

Отопление: отсутствует;

Газоснабжение: отсутствует.

Склад тары:

I. Архитектурно-строительная часть: одноэтажное здание без чердака и подвала IV CO, размерами в плане 11,58 х 47,53 м, площадью 547,14 м², высотой 5,15 м. Стены кирпичные, толщиной 250 мм (RE240); перекрытия ж/б, толщиной 150 мм (REI45); перегородки кирпичные, толщиной 120 мм (REI120); кровля рубероидная по битумной мастике. Наружных пожарных лестниц нет.

II. Технологическая часть: не эксплуатируется.

III. Внутреннее водоснабжение: отсутствует.

IV. Установки пожаротушения: отсутствуют.

V. Коммуникации:

Электроснабжение: отсутствует;

Вентиляция: естественная;

Отопление: отсутствует;

Газоснабжение: отсутствует.

Склад-ангар холодильных установок:

I. Архитектурно-строительная часть: одноэтажное здание без чердака и подвала IV CO, размерами в плане 24,5 х 52 м, площадью 1274 м², высотой 6 м. Стены панельного ограждения, толщиной 150 мм (RE30); колонны металлические (R45); покрытие металлическое, толщиной 5 мм.

II. Технологическая часть: не эксплуатируется.

III. Внутреннее водоснабжение: отсутствует.

IV. Установки пожаротушения: отсутствуют.

V. Коммуникации:

Электроснабжение: отсутствует;

Вентиляция: естественная;

Отопление: отсутствует;

Газоснабжение: отсутствует.

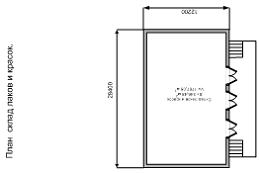
Склад лаков и красок:

I. Архитектурно-строительная часть: одноэтажное здание без чердака и подвала IV CO, размерами в плане 12,2 х 28,4 м, площадью 346,48 м², высотой 5,1 м. Стены кирпичные, толщиной 250 мм (RE240); перекрытия ж/б, толщиной 150 мм (REI45); перегородки кирпичные, толщиной 120 мм (REI120); кровля рубероидная по битумной мастике. Наружных пожарных лестниц нет.

II. Технологическая часть: не эксплуатируется.

III. Внутреннее водоснабжение: отсутствует.

IV. Установки пожаротушения: отсутствуют.

V. Коммуникации:

Электроснабжение: отсутствует;

Вентиляция: естественная;

Отопление: отсутствует;

Газоснабжение: отсутствует.

Мастерские:

I. Архитектурно-строительная часть: двухэтажное здание без чердака и подвала IV CO, размерами в плане 30 х 40 м, площадью 1200 м², высотой 6,2 м. Планировка коридорного типа. Стены кирпичные, толщиной 250 мм (RE240); перекрытия ж/б, толщиной 150 мм (REI45); перегородки кирпичные, толщиной 120 мм (REI120); кровля рубероидная по битумной мастике. Наружных пожарных лестниц нет.

II. Технологическая часть: производится ремонт напольного погрузочного транспорта и зарядка аккумуляторных.

III. Внутреннее водоснабжение: обеспечивается от 3 пожарных кранов (полугайки типа " Богданова ", диаметром 66 мм, длина рукава 20 метров, ствол "А")(см. схему). Водоотдача 14 л/сек, что обеспечивает одновременную работу 2 стволов "А". Насосы повысители предусмотрены (расположены в компрессорной ), сухотрубы отсутствуют.

IV. Установки пожаротушения: отсутствуют.

V. Коммуникации:

Электроснабжение: напряжение 380 - 220 В. Обесточивается в электрощитовой;

Вентиляция: вытяжная;

Отопление: местное водяное от котельной;

Газоснабжение: отсутствует.

VI. Спасание людей и эвакуация материальных ценностей: производится звеньями ГДЗС с одновременной подачей стволов на тушение.

Котельная:

I. Архитектурно-строительная часть: одноэтажное здание без чердака и подвала IV CO, размерами в плане 5,7 х 39,75 м, площадью 226,6 м², высотой 4,5 м. Планировка коридорного типа. Стены кирпичные, толщиной 250 мм (RE240); перекрытия ж/б, толщиной 150 мм (REI45); перегородки кирпичные, толщиной 120 мм (REI120); кровля рубероидная по битумной мастике. Наружных пожарных лестниц нет.

II. Технологическая часть: не эксплуатируется .

III. Внутреннее водоснабжение: отсутствует.

IV. Установки пожаротушения: отсутствуют.

V. Коммуникации:

Электроснабжение: отсутствует;

Вентиляция: вытяжная;

Отопление: местное водяное от котельной;

Газоснабжение: отсутствует.

Мусоросборник:

I. Архитектурно-строительная часть: одноэтажное здание без чердака и подвала VII CO, размерами в плане 3 х 5 м, площадью 15 м², высотой 2,3 м. Стены кирпичные, толщиной 120 мм (REI120); перекрытия деревянные (REI15); кровля шиферная по деревянной обрешетке. Наружных пожарных лестниц нет.

III. Внутреннее водоснабжение: отсутствует.

IV. Установки пожаротушения: отсутствуют.

V. Коммуникации:

Электроснабжение: отсутствует;

Вентиляция: вытяжная;

Отопление: отсутствует;

Газоснабжение: отсутствует.

. Выписка из расписания выезда пожарных аварийно-спасательных подразделений на пожары

На пожар привлекаются силы и средства по вызову № 3

Наименования подразделения

Привлекаемые силы и средства

Расстояние до объекта

Ориентировочное время прибытия

ПАСЧ №1

1 отд. - АЦ

11,7 км

11 мин.

ПАСЧ №2

2 отд. - АЦ

15,2 км

14 мин.

ПАСЧ №3

2 отд. - АЦ

15,2 км

14 мин.

ПАСЧ №4

1 отд. - АЦ

17,5 км

16 мин.

СПК бел. Ж/Д

1 отд. - АЦ

8,2 км

8 мин.

В/ч 54804

1 отд. - АЦ

21 км

19 мин.



4. Выбор и обоснование места возникновения возможного пожара

Местом возникновения возможного пожара на территории торговой базы выбираем склад растительного масла.

В складах на сравнительно небольшой площади сосредоточены большие материальные ценности, в момент пожара в них находятся самые различные товары и вещества, в том числе синтетические материалы, горение и термическое разложение которых в большинстве случаев сопровождается повышенным дымообразованием и выделением токсичных веществ. Распространение пламени и нарастание температуры происходит очень быстро.

В тактическом отношении помещение склада выбрано исходя из принципа позднего обнаружения пожара и его продолжительного свободного развития вследствие отсутствия постоянно пребывающего персонала, а также значительной пожарной нагрузки, высокого значения линейной скорости распространения пламени.

Линейные скорости распространения огня равны 0,4 м/с. Интенсивность подачи воздушномеханической пены на тушение составляет 0,05 л/с·м2. Пожар в данных зданиях может привести к большому материальному ущербу и человеческим жертвам.

Для тушения пожаров в складах стволы вводят через двери, ворота, окна. Решетки на окнах перерезают специальными ножницами или вырывают, используя тяговые усилия тяговые усилия пожарных автомобилей. Поскольку площадь складов обычно максимально загружена товарами, РТП и начальники боевых участков должны обеспечивать продвижение со стволами внутрь склада, к очагам наиболее сильного горения. Для этого используют изолирующие противогазы, оставляют резерв сил, часто меняют работающих на боевых позициях внутри помещения. Водяные и пенные струи направляют вдоль проходов между стеллажами и штабелями. Для снижения концентрации дыма в зданиях с бесчердачным покрытием вскрывают крышу.

Исходя из данных выводов видно, что возникновение пожаров в данных помещениях потребует значительного расхода огнетушащих средств на тушение, привлечения сил и средств по повышенному номеру вызова, использования большого количества личного состава при тушении, защите смежных помещений и эвакуации людей.

. Выбор и обоснование огнетушащего вещества

В качестве основного средства тушения растительного масла принимается воздушно-механическая пена средней кратности, подаваемая на поверхность горящей жидкости. Проводится работа по замене биологически жестких пенообразователей на биологически мягкие по условиям требований экологии.

Огнетушащее действие воздушно-механической пены заключается в изоляции поверхности горючего от факела пламени, снижении вследствие этого скорости испарения жидкости и сокращении количества горючих паров, поступающих в зону горения, а также в охлаждении горящей жидкости. Роль каждого из этих факторов в процессе тушения изменяется в зависимости от свойств горящей жидкости, качества пены и способа ее подачи.

При подаче пены одновременно происходит разрушение пены от факела пламени и нагретой поверхности горючего. Накапливающийся слой пены экранирует часть поверхности горючего от лучистого теплового потока пламени, уменьшает количество паров, поступающих в зону горения, снижает интенсивность горения. Одновременно выделяющийся из пены раствор пенообразователя охлаждает горючее. Кроме того, в процессе тушения в объеме горючего происходит конвективный тепломассообмен, в результате которого температура жидкости выравнивается по всему объему, за исключением ‘‘карманов’’, в которых тепломассообмен происходит независимо от основной массы жидкости. Расчетное время тушения для воздушно-механической пены средней кратности и низкой кратности - 10 минут при 3-х кратном запасе пенообразователя. Требуемая интенсивность подачи воздушно-механической пены при тушении пожара в складе растительного масла составляет 0,05 л/с*м 2.

. Расчет динамики развития пожара и расчет сил и средств для его тушения

Расчёт сил и средств произведён по 1-му варианту: тушение пожара в складе растительного масла.

Наименование показателей и их размерность

Результаты расчётов

1.

Место пожара

склад растительного масла

2.

Сгораемые вещества и материалы

растительное масло

3.

Линейная скорость распространения горения (м/с)

0,4

4.

Площадь пожара к моменту прибытия первого пожарного подразделения (м2)

200

5.

Огнетушащее вещество и требуемая интенсивность его подачи (л/с∙м2)

ВМП 0,05

6.

Требуемая интенсивность подачи огнетушащего вещества на защиту

Вода 1,0

7.

Количество стволов на тушение: Лафетных………………………. "А"……………………………... "Б"……………………………… "ГПС-600"

    2

8.

Количество стволов на защиту: Лафетных………………………. "А"……………………………… "Б"……………………………….

   3

9.

Количество личного состава (чел.)

20

10.

Количество звеньев ГДЗС / ГДЗС резерв

2/1

11.

Количество отделений на основных и специальных пожарных автомобилях

4


Основные формулы и справочные данные для расчета сил и средств

Определяем необходимое количество стволов ГПС-600 на тушение склада с растительным маслом по следующей формуле:


где Iр-ртр - требуемая интенсивность подачи 6%-го раствора пенообразователя на тушение, л/ (с× м2);

Sп - площадь пожара, м2;

qр-рГПС - расход раствора пенообразователя ствола ГПС-600, л/ с.

Определяем требуемое количество пенообразователя для проведения пенной атаки:


где qПО - расход пенообразователя из ГПС-600 при 6%-ой концентрации, л/с;

tp - время тушения, с;

Кз - коэффициент запаса пенообразователя.

На охлаждение и защиту соседних резервуаров с маслом подаю по 1 стволу РС-70, на охлаждение горящего резервуара - 2 ствола РС-70. На защиту личного состава от теплового излучения подаю 1 ствол РСК-50.

Вывод:

Для тушения возможного пожара необходимо привлекать 4 отделения на основной пожарной аварийно-спасательной технике.

7. Схема расстановки сил и средств для тушения пожара



8. Совмещенный график изменения площади пожара, требуемого и фактического расходов огнетушащего вещества

Определяем время свободного развития пожара (от момента его возникновения до введения первых сил и средств на его тушение):

τсв.р. = τд.с. + τсб. + τсл. + τб.р.= 10 + 1 + 4 + 2 =17 мин,

где τд.с − время от возникновения пожара до сообщения о нём на ЦОУ;

τсб. − время сбора и выезда пожарного подразделения из депо;

τсл. − время следования подразделения от места дислокации до объекта;

τб.р − время боевого развёртывания подразделения МЧС.

На момент прибытия подразделений МЧС площадь пожара составляет SП = 200 м2.

Рассчитаем площадь пожара по времени для графика:


Рассчитаем требуемый расход воды по времени для графика:


Рассчитаем расход воды фактический по времени для графика:


Для удобства построения графика данные расчетов вносим в таблицу:

Время с момента возникновения пожара, мин

Площадь пожара, м2

Площадь тушения, м2

Требуемый расход воды на тушение, л/с

Фактический расход воды на тушение, л/с

17

200

56

5,6

3,5

20

216,2

56

5,6

7

25

244,2

56

5,6


Рисунок 1 − Совмещенный график изменения площади пожара, требуемого и фактического расходов огнетушащего вещества

. Организация тушения пожара

На пожаре создается два боевых участка.

БУ - 1: Тушение пожара

НБУ - 1 - начальник смены ПАСЧ №1 г. Барановичи.

ЗАДАЧА: АЦ ПАСЧ-1 на пожарный водоем, проложить магистральную линию ко входу, подать два ствола "ГПС-600" звеньями ГДЗС на тушение склада. Выставить пост безопасности. Принять меры по поднятию уровня нейтральной зоны.

СИЛЫ: отделение ПАСЧ №1 г. Барановичи, первое отделение ПАСЧ №2 г. Барановичи.

БУ - 2: Охлаждение строительных конструкций и склада лаков и красок

НБУ - 2 - командир второго отделения ПАСЧ №2 г. Барановичи.

ЗАДАЧА: проложить магистральную линию к складу лаков и красок от АЦ ПАСЧ № 1, подать ствол "Б" на защиту данного склада. От установленного разветвления ПАСЧ 1 подать маневренный ствол "Б" звеном ГДЗС на защиту и охлаждение строительных конструкций склада растительных масел. Выставить пост безопасности. Второе отделение ПАСЧ-3 в резерв

СИЛЫ: второе отделение ПАСЧ №2, первое и второе отделение ПАСЧ-3 г. Барановичи.

. Рекомендации руководителю тушения пожара, начальнику штаба, НТ и т. д.

РЕКОМЕНДАЦИИ НАЧАЛЬНИКУ ШТАБА

Обязан:

·   произвести расстановку сил и средств согласно решению принятому РТП;

·   изучить обстановку на пожаре путем непрерывной разведки;

·   организовать связь на пожаре;

·   докладывать РТП результаты разведки и сообщать об обстановке;

·   обеспечить контроль за выполнением приказаний РТП и штаба;

·   создать резерв из прибывших подразделений;

·   передавать на ОДЧ сведения о пожаре;

·   организовать взаимодействие со службами;

·   вести документы оперативного штаба.

РЕКОМЕНДАЦИИ РУКОВОДИТЕЛЮ ТУШЕНИЯ ПОЖАРА

При пожаре возможны: сильное задымление, высокая температура; быстрое распространение горения; возникновение паники.

РТП обязан:

·   по прибытии на объект уточнить у обслуживающего персонала количество и места нахождении людей, пути и места эвакуации материальных ценностей.

·   обесточивать здание с помощью рубильников расположенных снаружи здания в электрощитовой.

·   использовать пожарные гидранты и пожарный водоем, расположенные на территории объекта, в случае необходимости использовать гидранты расположенные за территорией объекта.

·   произвести разведку и оценить обстановку на пожаре,

·   установить: какие меры приняты по эвакуации людей, количество людей подлежащих эвакуации,

·   оценить данные разведки и сложившуюся обстановку на пожаре;

·   определить решающее направление, необходимое количество сил и средств, способы и приемы боевых действий;

·   поставить задачи подразделениям, организовать их взаимодействие и обеспечить выполнение поставленных задач;

·   организовать эвакуацию;

·   принять меры к предупреждению паники;

·   обеспечить защиту от пролитой воды;

·   непрерывно следить за изменениями обстановки и принимать решения,

·   поддерживать постоянную связь с ЦОУ и периодически сообщать о принятых решениях и об обстановке на пожаре;

·   в зависимости от обстановки организовать оперативный штаб и определить место его расположение;

·   создать резерв сил и средств;

·   назначить ответственного за соблюдение мер ТБ;

·   организовать взаимодействие со службами привлекаемыми к тушению пожара;

·   принять меры по эвакуации, защите от проливаемой воды и охране эвакуированных материальных ценностей до прибытия работников милиции;

·   лично убедиться в ликвидации горения;

·   определить порядок убытия с места пожара подразделений.

РЕКОМЕНДАЦИИ НАЧАЛЬНИКУ ТЫЛА

НТ назначается из числа начальствующего состава и подчиняется РТП, начальнику штаба и отвечает за работу тыла на пожаре.

Основной задачей тыла на пожаре является обеспечение подачи требуемого количества огнетушащих средств.

Обязан:

·   произвести разведку водоисточников;

·   организовать встречу и расстановку на водоисточники прибывших АЦ, обеспечить подачу воды;

·   организовать своевременное снабжение техники ГСМ, а также при необходимости его доставку;

·   обеспечить охрану рукавных линий, а также взаимодействие с работниками милиции по регулированию движения автотранспорта;

·   вести учет работы пожарной техники, расхода огнетушащих средств, составить схему расстановки АЦ на водоисточники;

·   организовать взаимодействие со службами водоснабжения.

·   для обеспечения работы звеньев ГДЗС сосредоточить у места пожарар резерв аппаратов защиты органов дыхания и баллонов со сжатым воздухом, при необходимости вызвать мобильный воздухозаправщик.

Наружное противопожарное водоснабжение обеспечивается от 6 пожарных гидрантов, установленных на объектовой водопроводной сети, 2-х пожарных водоемов объемом 200 и 300 м³, градирня объемом 7 м³ с координатами:

ПГ-1 складские помещения "А" (0-6-0 )

ПГ-2 складские помещения "А" (0-6-8 )

ПГ-3 склад тары (8-2-0)

ПГ-4 склад тары (0-9-0)

ПГ-5 склад лаков и красок (9-0-0)

ПВ-1 мастерские (0-5-0)

ПВ-2 складские помещения "А" (0-30-8)

Градирня- проходная (2-4-0)

Расход воды (л/сек) из водопроводной сети К-150 составляет:

Вид и диаметр водосети

Расход воды из сети в зависимости от давления в ней


10м

20м

30м

40м

50м

60м

70м

К-150

55

70

80

95

105

110

130


РЕКОМЕНДАЦИИ НАЧАЛЬНИКАМ БОЕВЫХ УЧАСТКОВ

НБУ обязан:

-производить непрерывную разведку и докладывать РТП об обстановке на боевом участке;

-руководить работой подчиненных ему подразделений, обеспечить взаимодействие с соседним БУ;

-обеспечить маневрирование и быструю перегруппировку сил и средств при изменении обстановки на БУ;

-принимать самостоятельные решения по перестановке сил и средств обеспечивающие быстрейшую ликвидацию пожара на БУ;

-докладывать РТП о выполнении поставленной задачи.

-следить и постоянно докладывать РТП о поведении конструкции, наличии угрозы обрушения;

РЕКОМЕНДАЦИИ ОТВЕТСТВЕННОМУ ЗА ТБ НА ПОЖАРЕ

·   при работе в непригодной для дыхания среде использовать аппараты защиты органов дыхания;

·   не допускать личный состав МЧС прибывших к месту пожара без боевой одежды и снаряжения, работать непосредственно у зоны пожара до ликвидации горения;

·   следить за изменениями обстановки, поведением строительных конструкций и в случае возникновения опасности предупредить РТП и выводить л/с в безопасное место;

·   при работе на высотах применять страхующие приспособления, исключающие падение;

·   при работе в чердачных помещениях передвигаться с предосторожностью, не ходить по обвисшей кровле и на участках перекрытия с признаками горения;

·   для работы со стволами на высотах выделять не менее 2-х человек, не допускать оставления ствола без присмотра;

·   предупреждать работающих у здания о сбрасывании с чердака и крыши конструкций;

·   отключения электропроводов путем их резки производить при фазном напряжении в сети не выше 220 В и только тогда, когда иными способами обесточить нельзя;

·   не допускать обрезать многожильные провода и кабеля, а также одножильные провода и кабеля, проложенные группами в изоляционных трубах;

·   обесточивать здание с помощью рубильников расположенных снаружи здания и в не горящих помещениях

Взаимодействие со специальными службами

Порядок взаимодействия со службами при тушении пожаров регламентировано специальными инструкциями, подписанными начальником гарнизона РОЧС и руководителем соответствующей службы. Инструкции как руководящие документы находятся у дежурного персонала служб. В них устанавливается порядок извещения и выезда работников МЧС на пожары, характер и порядок работ, осуществляемых службой во время пожара, подчинённость представителей службы руководителю тушения пожара, а также порядок взаимодействия и информирования.

Коммунальная служба:

Согласование вопросов о временном перекрытии улиц и проездов, уточнение названий улиц и проездов, правильной нумерации домов, уточнения названия улиц и переулков, об устройстве подъездных тоннелей через железнодорожные пути.

Энергослужба:

Согласуют порядок выезда на пожары аварийных бригад, отключения наружных и внутренних электросетей, установок высокого напряжения, особенно при пожарах на трансформаторных подстанциях и подобных объектах. В небольших городах и некоторых объектах отключение отдельных электросетей производится на центральном электрощите; следует особенно тщательно следить, чтобы при этом не были отключены водо-насосные станции, обеспечивающие подачу воды на тушение пожара.

Служба милиции:

Прибывают на пожары для поддержания порядка, освобождают район пожара от посторонних лиц, охраняют эвакуированные материальные ценности, при необходимости оказывают помощь в спасательных работах и эвакуации имущества. Обеспечивают беспрепятственное следование пожарных машин через перекрёстки, защиту рукавных линий от наездов техники.

Служба водоканала:

При участии работников водоканала водопровод на максимальную водоотдачу и повышения давления на отдельных участках водопровода за счёт пуска на насосных станциях дополнительных насосов-повысителей.

Список используемой литературы

1. Повзик Я.С., Клюс П.П., Матвейкин А.М. Пожарная тактика. - М.: Стройиздат, 1990.

2. Кимстач И.Ф. Пожарная тактика. - М.: Стройиздат, 1984.

3. Иванников В.П., Клюс П.П. Справочник руководителя тушения пожаров. - М.: Стройиздат, 1987.

4. Постановление МЧС РБ №30 от 17.03.2005 "Об утверждении Боевого устава органов и подразделений по ЧС".

5. Постановление МЧС РБ №34 от 23.10.2003 "Об утверждении Правил по охране труда в органах и подразделениях по чрезвычайным ситуациям Республики Беларусь".

6. М.Л.Григорович, В.К.Воробьёв, Ю.Г.Тумарович "Практикум по решению пожарно - тактических задач. Учебное пособие." - Мн.; Дизайн ПРО, 1997, - 176с.: ил.

7. М.А.Шишканов, В.К.Воробьёв, Ю.Г.Тумарович "Основы пожарно - тактической подготовки. Учебное издание." - Мн.; "Житейская газета", 1996, - 244с.: ил.

8. Приказ МЧС от 31 марта 2008г. Об утверждении Методических указаний по разработке оперативных планов и карточек тушения пожаров.

Приложение

Оперативный план тушения пожара

на межрайонную торговую базу ОПС

г. Барановичи потребительской коопераций

"Белкоопсоюз"

Ведомственная принадлежность: Министерство промышленности Республики Беларусь

Адрес: г. Барановичи, ул. Слонимское шоссе , 8

Номера телефонов:

- директор (_______________) р.44-10-82, д. (___________).

- ведущий инженер (_______) р. 44-11-46, д. (_______).

- проходная 44-11-50.

Режим работы: односменный с 8 до 17 часов.

График работы транспортных проходных: круглосуточно.

Количество:

- работников объекта: 133;

- наибольшей работающей смены : 115;

- людей в ночное время: 9.

Кратчайший маршрут следования на объект: ул. Брестская- ул. Слонимское шоссе.

На пожар привлекаются силы и средства по вызову №3

Наименования подразделения

Привлекаемые силы и средства

Ориентировочное время прибытия

ПАСЧ №1

1 отд. - АЦ

11 мин.

ПАСЧ №2

2 отд. - АЦ

14 мин.

ПАСЧ №3

2 отд. - АЦ

14 мин.

ПАСЧ №4

1 отд. - АЦ

16 мин.

СПК бел. Ж/Д

1 отд. - АЦ

8 мин.

В/ч 54804

1 отд. - АЦ

19 мин.



ОПЕРАТИВНО-ТАКТИЧЕСКАЯ ХАРАКТЕРИСТИКА ОБЪЕКТА

На территории межрайонной торговой базы ОПС расположены складские и производственные корпуса: складские помещения (секция А); складские помещения (секция Б); склад-ангар (Югославского производства); трансформаторная подстанция (ТП-81); котельная, гараж; проходная; склад растительного масла; склад тары; склад-ангар холодильных установок; склад лаков и красок; мастерские; котельная; мусоросборник; градирня.

Территория ограждена металлическим забором высотой 2 метра с колючей проволокой. Въезд осуществляется с двух ворот. Ко всем зданиям имеются подъездные дороги с твердым покрытием.

Наружное противопожарное водоснабжение обеспечивается от 6 пожарных гидрантов, установленных на объектовой водопроводной сети, 2-х пожарных водоемов объемом 200 и 300 м³, градирня объемом 7 м³ с координатами:

ПГ-1 складские помещения "А" (0-6-0 )

ПГ-2 складские помещения "А" (0-6-8 )

ПГ-3 склад тары (8-2-0)

ПГ-4 склад тары (0-9-0)

ПГ-5 склад лаков и красок (9-0-0)

ПВ-1 мастерские (0-5-0)

ПВ-2 складские помещения "А" (0-30-8)

Градирня- проходная (2-4-0)

Расход воды (л/сек) из водопроводной сети К-150 составляет:

пожарный спасательный огнетушащий тушение

Вид и диаметр водосети

Расход воды из сети в зависимости от давления в ней


10м

20м

30м

40м

50м

60м

70м

К-150

55

70

80

95

105

110

130


Складские помещения (секция А):

I. Архитектурно-строительная часть: двухэтажное здание без чердака и подвала, размерами в плане 56 х 88 м, площадью 4928 м², высотой 8 м, планировка коридорного типа. Стены кирпичные, толщина 120 мм; перекрытия железобетонные, толщина 150 мм, перегородки кирпичные, толщиной 120 мм. Кровля рубероидная на битумной мастике. Административные корпуса секции А и Б сообщены коридором размерами 4 х 6 м, площадью 24 м², железобетонный толщиной 150 мм.

II. Технологическая часть: складские помещения имеют холодильный отсек объемом 1850 м³. Система заполнена аммиаком в количестве 2,5 т.

III. Внутреннее водоснабжение: обеспечивается от 36 пожарных кранов (полугайки типа " Богданова ", диаметром 66 мм, длина рукова 20 метров, ствол "А")(см. схему). Водоотдача 14 л/сек, что обеспечивает одновременную работу 2 стволов "А". Насосы повысители предусмотрены (расположены в компрессорной), сухотрубы отсутствуют.

IV. Установки пожаротушения: отсутствуют.

V. Коммуникации:

Электроснабжение: напряжение 220 В. Обесточивается в электрощитовой путем отключения. Ключ от электрощитовой находится у сменного мастера или на проходной;

Вентиляция: вытяжная. Задвижки закрываются вручную и расположены непосредственно у циклонов;

Отопление: местное водяное от котельной;

Газоснабжение: отсутствует.

VI. Спасание людей и эвакуация материальных ценностей: производится звеньями ГДЗС с одновременной подачей стволов на тушение.

VII. Особые данные: складские помещения оборудованы автоматической пожарной сигнализацией. Пульт приемной станций установлен на проходной.

Помещение склада в секций А и холодильник №4 сдается в аренду ГТП УП "БелРыба".

Руководитель: Дубина А.А.

Телефон: раб.44-11-47; дом.45-68-52 ;

Время работы: 8.30-17.00

Количество работников: 5.

Помещение склада в секций А сдается в аренду пивзаводу "Аливария"

Руководитель: Борисов А.Е.

Телефон: раб. 41-97-62; сот.138-90-99;

Время работы: 8.30-17.30

Количество работников: 8.

Помещение склада в секций А сдается в аренду ООО "Юрал сервис"

Руководитель: Субцельная Л.Н.

Телефон: раб. 44-11-49; дом.45-18-57;

Время работы: 8.30-17.15

Количество работников: 2.

Складские помещения (секция Б):

I. Архитектурно-строительная часть: двухэтажное здание без чердака и подвала, размерами в плане 60 х 120 м, площадью 7200 м², высотой 8 м, планировка коридорного типа. Стены ж/б, толщина 300 мм; перекрытия ж/б, толщина 150 мм; перегородки кирпичные, толщиной 120 мм. Кровля рубероидная на битумной мастике. Административные корпуса секции А и Б сообщены коридором размерами 4 х 6 м, площадью 24 м², железобетонный толщиной 150 мм.

II. Технологическая часть: в складских помещениях происходит хранение родовольственных и хозяйственных товаров.

III. Внутреннее водоснабжение: обеспечивается от 22 пожарных кранов (полугайки типа " Богданова ", диаметром 66 мм, длина рукава 20 метров, ствол "А") (см. схему). Водоотдача 14 л/сек, что обеспечивает одновременную работу 2 стволов "А". Насосы повысители предусмотрены (расположены в компрессорной), сухотрубы отсутствуют.

IV. Установки пожаротушения: отсутствуют.

V. Коммуникации:

Электроснабжение: напряжение 220 В. Обесточивается в электрощитовой путем отключения . Ключ от электрощитовой находится у сменного мастера или на проходной;

Вентиляция: вытяжная. Задвижки закрываются вручную и расположены непосредственно у циклонов;

Отопление: местное водяное от котельной;

Газоснабжение: отсутствует.

VI. Спасание людей и эвакуация материальных ценностей: производится звеньями ГДЗС с одновременной подачей стволов на тушение.

VII. Особые данные: складские помещения оборудованы автоматической пожарной сигнализацией. Пульт приемной станций установлен на проходной.

Помещение склада в секций Б сдается в аренду филиалу №1 ОАО "Продтовары"

Руководитель: Лобойко В.С.

Телефон: раб. 44-11-49; дом.45-18-57;

Время работы: 8.30-17.15

Количество работников: 13.

Склад-ангар (Югославского производства):

I. Архитектурно-строительная часть: одноэтажное здание без чердака и подвала, размерами в плане 29 х 72 м, площадью 2058 м², высотой 6 м. Стены - панельного ограждения, толщиной 150 мм; колонны металлические; покрытие металлическое, толщиной 5 мм.

II. Технологическая часть: в складских помещениях происходит хранение продовольственных и хозяйственных товаров.

III. Внутреннее водоснабжение: отсутствует

IV. Установки пожаротушения: отсутствуют.

V. Коммуникации:

Электроснабжение: напряжение 220 В. Обесточивается от наружного электрического щита;

Вентиляция: вытяжная;

Отопление: отсутствует;

Газоснабжение: отсутствует.

VI. Спасание людей и эвакуация материальных ценностей: производится звеньями ГДЗС с одновременной подачей стволов на тушение.

VII. Особые данные: склад сдается в аренду ОДО "Арлон"

Руководитель: Мохович И.В.

Телефон: раб. 44-20-44; сот. 640-85-27;

Время работы: 1-я смена 0.00- 7.00

2-я смена 7.00- 16.00

руководство: 10.00- 19.00

Количество работников: 12.

Котельная, гараж:

I. Архитектурно-строительная часть: (совмещено противопожарной стеной), одноэтажное здание без чердака и подвала, размерами в плане 11,7 х 54,35 м, площадью 636,25 м², высотой 4,1 м. Стены кирпичные, толщиной 510 мм; перегородки кирпичные, толщина 120 мм, перекрытия ж/б толщиной 150 мм; кровля рубероидная по битумной мастике. Наружных пожарных лестниц нет.

II. Технологическая часть: помещение гаража рассчитано на стоянку 3 автомобилей. В котельной расположены котлы работающие на твердом топливе.

III. Внутреннее водоснабжение: отсутствует.

VI. Установки пожаротушения: отсутствуют.

V. Коммуникации:

Электроснабжение: напряжение 380 - 220 В, отключается в наружном электрорубильнике.

Вентиляция: вытяжная;

Отопление: местное водяное от котельной;

Газоснабжение: отсутствует.

VI. Особые данные: во время отопительного сезона в котельной дежурит 2 работника.

Трансформаторная подстанция:

I. Архитектурно-строительная часть: одноэтажное здание без чердака и подвала, размерами в плане 6 х 6 м, площадью 36 м², высотой 4 м. Стены кирпичные, толщиной 120 мм; перекрытия ж/б толщиной 10 мм; кровля рубероидная по битумной мастике. Наружных пожарных лестниц нет.

II. Технологическая часть: В трансформаторной подстанции осуществляется понижение напряжения с 1000 В до 380 В и 220 В.

III. Внутреннее водоснабжение: отсутствует.

IV. Установки пожаротушения: отсутствуют.

V. Коммуникации:

Электроснабжение: напряжение 380, отключается в электрощите установленном в подстанций;

Вентиляция: естественная;

Отопление: отсутствует;

Газоснабжение: отсутствует.

VI. Особые данные: ключи от ТП находятся у аварийной службы.

Проходная:

I. Архитектурно-строительная часть: одноэтажное здание без чердака и подвала, размерами в плане 5 х 4 м, площадью 20 м², высотой 3 м. Стены кирпичные, толщиной 120 мм; перекрытия ж/б толщиной 10 мм; кровля рубероидная по битумной мастике. Наружных пожарных лестниц нет.

III. Внутреннее водоснабжение: отсутствует.

IV. Установки пожаротушения: отсутствуют.

V.Коммуникации:

Электроснабжение: напряжение 220 В, отключается в электрощите установленном в подстанций или в электрощитовой на 1-ом этаже основного здания;

Вентиляция: естественная;

Отопление: отсутствует;

Газоснабжение: отсутствует.

VI. Особые данные: на проходной круглосуточно дежурит охрана.

Склад растительного масла:

1. Архитектурно-строительная часть: одноэтажное здание без чердака и подвала, размерами в плане 11,2 х 29 м, площадью 294,77 м², высотой 5,9 м. Стены кирпичные, толщиной 250 мм; перекрытия ж/б, толщиной 150 мм; перегородки кирпичные, толщиной 120 мм; кровля рубероидная по битумной мастике. Наружных пожарных лестниц нет.

II. Технологическая часть: не эксплуатируется.

III. Внутреннее водоснабжение: отсутствует.

IV. Установки пожаротушения: отсутствуют.

V. Коммуникации:

Электроснабжение: отсутствует;

Вентиляция: естественная;

Отопление: отсутствует;

Газоснабжение: отсутствует.

Склад тары:

I. Архитектурно-строительная часть: одноэтажное здание без чердака и подвала, размерами в плане 11,58 х 47,53 м, площадью 547,14 м², высотой 5,15 м. Стены кирпичные, толщиной 250 мм; перекрытия ж/б, толщиной 150 мм; перегородки кирпичные, толщиной 120 мм; кровля рубероидная по битумной мастике. Наружных пожарных лестниц нет.

II. Технологическая часть: не эксплуатируется.

III. Внутреннее водоснабжение: отсутствует.

IV. Установки пожаротушения: отсутствуют.

V. Коммуникации:

Электроснабжение: отсутствует;

Вентиляция: естественная;

Отопление: отсутствует;

Газоснабжение: отсутствует.

Склад-ангар холодильных установок:

I. Архитектурно-строительная часть: одноэтажное здание без чердака и подвала, размерами в плане 24,5 х 52 м, площадью 1274 м², высотой 6 м. Стены панельного ограждения, толщиной 150 мм; колонны металлические; покрытие металлическое, толщиной 5 мм.

II. Технологическая часть: не эксплуатируется.

III. Внутреннее водоснабжение: отсутствует.

IV. Установки пожаротушения: отсутствуют.

V. Коммуникации:

Электроснабжение: отсутствует;

Вентиляция: естественная;

Отопление: отсутствует;

Газоснабжение: отсутствует.

Склад лаков и красок:

I. Архитектурно-строительная часть: одноэтажное здание без чердака и подвала, размерами в плане 12,2 х 28,4 м, площадью 346,48 м², высотой 5,1 м. Стены кирпичные, толщиной 250 мм; перекрытия ж/б, толщиной 150 мм; перегородки кирпичные, толщиной 120 мм; кровля рубероидная по битумной мастике. Наружных пожарных лестниц нет.

II. Технологическая часть: не эксплуатируется.

III. Внутреннее водоснабжение: отсутствует.

IV. Установки пожаротушения: отсутствуют.

V. Коммуникации:

Электроснабжение: отсутствует;

Вентиляция: естественная;

Отопление: отсутствует;

Газоснабжение: отсутствует.

Мастерские:

I. Архитектурно-строительная часть: двухэтажное здание без чердака и подвала, размерами в плане 30 х 40 м, площадью 1200 м², высотой 6,2 м. Планировка коридорного типа. Стены кирпичные, толщиной 250 мм; перекрытия ж/б, толщиной 150 мм; перегородки кирпичные, толщиной 120 мм; кровля рубероидная по битумной мастике. Наружных пожарных лестниц нет.

II. Технологическая часть: производится ремонт напольного погрузочного транспорта и зарядка аккумуляторных .

III. Внутреннее водоснабжение: обеспечивается от 3 пожарных кранов (полугайки типа " Богданова ", диаметром 66 мм, длина рукава 20 метров, ствол "А")(см. схему). Водоотдача 14 л/сек, что обеспечивает одновременную работу 2 стволов "А". Насосы повысители предусмотрены (расположены в компрессорной ), сухотрубы отсутствуют.

IV. Установки пожаротушения: отсутствуют.

V. Коммуникации:

Электроснабжение: напряжение 380 - 220 В. Обесточивается в электрощитовой;

Вентиляция: вытяжная;

Отопление: местное водяное от котельной;

Газоснабжение: отсутствует.

VI. Спасание людей и эвакуация материальных ценностей: производится звеньями ГДЗС с одновременной подачей стволов на тушение.

Котельная:

I. Архитектурно-строительная часть: одноэтажное здание без чердака и подвала, размерами в плане 5,7 х 39,75 м, площадью 226,6 м², высотой 4,5 м. Планировка коридорного типа. Стены кирпичные, толщиной 250 мм; перекрытия ж/б, толщиной 150 мм; перегородки кирпичные, толщиной 120 мм; кровля рубероидная по битумной мастике. Наружных пожарных лестниц нет.

II. Технологическая часть: не эксплуатируется .

III. Внутреннее водоснабжение: отсутствует.

IV. Установки пожаротушения: отсутствуют.

V. Коммуникации:

Электроснабжение: отсутствует;

Вентиляция: вытяжная;

Отопление: местное водяное от котельной;

Газоснабжение: отсутствует.

Мусоросборник:

III. Внутреннее водоснабжение: отсутствует.

IV. Установки пожаротушения: отсутствуют.

V. Коммуникации:

Электроснабжение: отсутствует;

Вентиляция: вытяжная;

Отопление: отсутствует;

Газоснабжение: отсутствует.

РАСЧЕТ СИЛ И СРЕДСТВ ДЛЯ ТУШЕНИЯ ПОЖАРА

Расчёт сил и средств произведён по 1-му варианту: тушение пожара в складе растительного масла.

Наименование показателей и их размерность

Результаты расчётов

1.

Место пожара

склад растительного масла (не эксплуатируется)

2.

Сгораемые вещества и материалы

деревянные стеллажи и поддоны

3.

Линейная скорость распространения горения (м/мин.)

1

4.

Площадь пожара к моменту прибытия первого пожарного подразделения (м2)

200

5.

Огнетушащее вещество и требуемая интенсивность его подачи (л/с∙м2)

Вода 0,1

6.

Требуемая интенсивность подачи огнетушащего вещества на защиту (л/с∙м2)

0,025

7.

Требуемый расход воды на тушение/на защиту (л/с)

5,6/1,4

8.

Количество стволов на тушение: Лафетных………………………. "А"……………………………... "Б"………………………………

   2

9.

Количество стволов на защиту: Лафетных………………………. "А"……………………………… "Б"……………………………….

   2

10.

Количество личного состава (чел.)

14

11.

Количество звеньев ГДЗС / ГДЗС резерв

3/1

12.

Количество отделений на основных и специальных пожарных автомобилях

4


Основные формулы и справочные данные для расчета сил и средств, необходимых для тушения пожара

1. На момент прибытия подразделений МЧС площадь пожара составляет Sп = 200 м2. Пожар охватил большую часть площади здания, принял прямоугольную форму развития. Тушение возможно только с фронта пожара, следовательно площадь тушения, с учетом глубины тушения стволом РСК-50 составит:

S Т = hст ∙∙ а = 5∙11,2=56 м2

2. Определяем требуемый расход воды на тушение пожара:

Q ТТР = SТ ∙ I ТТР = 56∙0,1=5,6 л/с

3. Определяем количество стволов на тушение пожара:

NТСТВ =QТТР / qСТВ = 5,6/3,5 = 2 ств "Б"

4. Определяем требуемый расход воды на защиту:

Q ЗТР = SТ ∙ I ЗТР = 56∙0,025=1,4 л/с

5. Определяем количество стволов на защиту:

NЗСТВ =QЗТР / qСТВ = 1,4/3,5 = 1 ств "Б"

На защиту соседнего здания склада лаков и красок подадим 1 ствол РСК-50.

6. Определяем численность личного состава:

NЛ.С = NЛ.СГДЗС + NЛ.СЗАЩ +NЛ.ССВЯЗ + NЛ.СРАЗВ + NЛ.СПБ = 3∙3 +1+ 1 + 1∙1 + 2∙1 = 14 человек

7. Определяем количество звеньев ГДЗС:

NГДЗС= Nл/с/6 = 14/6 = 3 отделения

Вывод:

Для тушения возможного пожара необходимо привлекать 3 отделения на основной пожарной аварийно-спасательной технике.

ПРИМЕРНЫЕ БОЕВЫЕ ДЕЙСТВИЯ

На пожаре создается два боевых участка.

БУ - 1: Тушение пожара

НБУ - 1 - начальник смены ПАСЧ №1 г. Барановичи.

ЗАДАЧА: АЦ ПАСЧ-1 на пожарный водоем, проложить магистральную линию ко входу, подать два ствола "Б" звеньями ГДЗС на тушение склада. Выставить пост безопасности. Принять меры по поднятию уровня нейтральной зоны.

СИЛЫ: отделение ПАСЧ №1 г. Барановичи, первое отделение ПАСЧ №2 г. Барановичи.

БУ - 2: Охлаждение строительных конструкций и склада лаков и красок

НБУ - 2 - командир второго отделения ПАСЧ №2 г. Барановичи.

ЗАДАЧА: проложить магистральную линию к складу лаков и красок от АЦ ПАСЧ № 1, подать ствол "Б" на защиту данного склада. От установленного разветвления ПАСЧ 1 подать маневренный ствол "Б" звеном ГДЗС на защиту и охлаждение строительных конструкций склада растительных масел. Выставить пост безопасности. Второе отделение ПАСЧ-3 в резерв

СИЛЫ: второе отделение ПАСЧ №2, первое и второе отделение ПАСЧ-3 г. Барановичи.

РЕКОМЕНДАЦИИ НАЧАЛЬНИКУ ШТАБА

Обязан:

·   произвести расстановку сил и средств согласно решению принятому РТП;

·   изучить обстановку на пожаре путем непрерывной разведки;

·   организовать связь на пожаре;

·   докладывать РТП результаты разведки и сообщать об обстановке;

·   обеспечить контроль за выполнением приказаний РТП и штаба;

·   создать резерв из прибывших подразделений;

·   передавать на ОДЧ сведения о пожаре;

·   организовать взаимодействие со службами;

·   вести документы оперативного штаба.

РЕКОМЕНДАЦИИ РУКОВОДИТЕЛЮ ТУШЕНИЯ ПОЖАРА

При пожаре возможны: сильное задымление, высокая температура; быстрое распространение горения; возникновение паники.

РТП обязан:

·   по прибытии на объект уточнить у обслуживающего персонала количество и места нахождении людей, пути и места эвакуации материальных ценностей.

·   обесточивать здание с помощью рубильников расположенных снаружи здания в электрощитовой.

·   использовать пожарные гидранты и пожарный водоем, расположенные на территории объекта, в случае необходимости использовать гидранты расположенные за территорией объекта.

·   произвести разведку и оценить обстановку на пожаре,

·   установить: какие меры приняты по эвакуации людей, количество людей подлежащих эвакуации,

·   оценить данные разведки и сложившуюся обстановку на пожаре;

·   определить решающее направление, необходимое количество сил и средств, способы и приемы боевых действий;

·   поставить задачи подразделениям, организовать их взаимодействие и обеспечить выполнение поставленных задач;

·   организовать эвакуацию;

·   принять меры к предупреждению паники;

·   обеспечить защиту от пролитой воды;

·   непрерывно следить за изменениями обстановки и принимать решения,

·   поддерживать постоянную связь с ЦОУ и периодически сообщать о принятых решениях и об обстановке на пожаре;

·   в зависимости от обстановки организовать оперативный штаб и определить место его расположение;

·   создать резерв сил и средств;

·   назначить ответственного за соблюдение мер ТБ;

·   организовать взаимодействие со службами привлекаемыми к тушению пожара;

·   принять меры по эвакуации, защите от проливаемой воды и охране эвакуированных материальных ценностей до прибытия работников милиции;

·   лично убедиться в ликвидации горения;

·   определить порядок убытия с места пожара подразделений.

РЕКОМЕНДАЦИИ НАЧАЛЬНИКУ ТЫЛА

НТ назначается из числа начальствующего состава и подчиняется РТП, начальнику штаба и отвечает за работу тыла на пожаре.

Основной задачей тыла на пожаре является обеспечение подачи требуемого количества огнетушащих средств.

Обязан:

·   произвести разведку водоисточников;

·   организовать встречу и расстановку на водоисточники прибывших АЦ, обеспечить подачу воды;

·   организовать своевременное снабжение техники ГСМ, а также при необходимости его доставку;

·   обеспечить охрану рукавных линий, а также взаимодействие с работниками милиции по регулированию движения автотранспорта;

·   вести учет работы пожарной техники, расхода огнетушащих средств, составить схему расстановки АЦ на водоисточники;

·   организовать взаимодействие со службами водоснабжения.

·   для обеспечения работы звеньев ГДЗС сосредоточить у места пожарар резерв аппаратов защиты органов дыхания и баллонов со сжатым воздухом, при необходимости вызвать мобильный воздухозаправщик.

Наружное противопожарное водоснабжение обеспечивается от 6 пожарных гидрантов, установленных на объектовой водопроводной сети, 2-х пожарных водоемов объемом 200 и 300 м³, градирня объемом 7 м³ с координатами:

ПГ-1 складские помещения "А" (0-6-0 )

ПГ-2 складские помещения "А" (0-6-8 )

ПГ-3 склад тары (8-2-0)

ПГ-4 склад тары (0-9-0)

ПГ-5 склад лаков и красок (9-0-0)

ПВ-1 мастерские (0-5-0)

ПВ-2 складские помещения "А" (0-30-8)

Градирня- проходная (2-4-0)

Расход воды (л/сек) из водопроводной сети К-150 составляет:

Вид и диаметр водосети

Расход воды из сети в зависимости от давления в ней


10м

20м

30м

40м

50м

60м

70м

К-150

55

70

80

95

105

110

130


РЕКОМЕНДАЦИИ НАЧАЛЬНИКАМ БОЕВЫХ УЧАСТКОВ

НБУ обязан:

-производить непрерывную разведку и докладывать РТП об обстановке на боевом участке;

-руководить работой подчиненных ему подразделений, обеспечить взаимодействие с соседним БУ;

-обеспечить маневрирование и быструю перегруппировку сил и средств при изменении обстановки на БУ;

-принимать самостоятельные решения по перестановке сил и средств обеспечивающие быстрейшую ликвидацию пожара на БУ;

-докладывать РТП о выполнении поставленной задачи.

-следить и постоянно докладывать РТП о поведении конструкции, наличии угрозы обрушения;

РЕКОМЕНДАЦИИ ОТВЕТСТВЕННОМУ ЗА ТБ НА ПОЖАРЕ

·   при работе в непригодной для дыхания среде использовать аппараты защиты органов дыхания;

·   не допускать личный состав МЧС прибывших к месту пожара без боевой одежды и снаряжения, работать непосредственно у зоны пожара до ликвидации горения;

·   следить за изменениями обстановки, поведением строительных конструкций и в случае возникновения опасности предупредить РТП и выводить л/с в безопасное место;

·   при работе на высотах применять страхующие приспособления, исключающие падение;

·   при работе в чердачных помещениях передвигаться с предосторожностью, не ходить по обвисшей кровле и на участках перекрытия с признаками горения;

·   для работы со стволами на высотах выделять не менее 2-х человек, не допускать оставления ствола без присмотра;

·   предупреждать работающих у здания о сбрасывании с чердака и крыши конструкций;

·   отключения электропроводов путем их резки производить при фазном напряжении в сети не выше 220 В и только тогда, когда иными способами обесточить нельзя;

·   не допускать обрезать многожильные провода и кабеля, а также одножильные провода и кабеля, проложенные группами в изоляционных трубах;

·   обесточивать здание с помощью рубильников расположенных снаружи здания и в не горящих помещениях

РЕКОМЕНДАЦИИ РУКОВОДИТЕЛЮ ТУШЕНИЯ ПОЖАРА. ВЗАИМОДЕЙСТВИЕ СО СПЕЦИАЛЬНЫМИ СЛУЖБАМИ

Порядок взаимодействия со службами при тушении пожаров регламентировано специальными инструкциями, подписанными начальником гарнизона РОЧС и руководителем соответствующей службы. Инструкции как руководящие документы находятся у дежурного персонала служб. В них устанавливается порядок извещения и выезда работников МЧС на пожары, характер и порядок работ, осуществляемых службой во время пожара, подчинённость представителей службы руководителю тушения пожара, а также порядок взаимодействия и информирования.

Коммунальная служба:

Согласование вопросов о временном перекрытии улиц и проездов, уточнение названий улиц и проездов, правильной нумерации домов, уточнения названия улиц и переулков, об устройстве подъездных тоннелей через железнодорожные пути.

Энергослужба:

Согласуют порядок выезда на пожары аварийных бригад, отключения наружных и внутренних электросетей, установок высокого напряжения, особенно при пожарах на трансформаторных подстанциях и подобных объектах. В небольших городах и некоторых объектах отключение отдельных электросетей производится на центральном электрощите; следует особенно тщательно следить, чтобы при этом не были отключены водо-насосные станции, обеспечивающие подачу воды на тушение пожара.

Служба милиции:

Прибывают на пожары для поддержания порядка, освобождают район пожара от посторонних лиц, охраняют эвакуированные материальные ценности, при необходимости оказывают помощь в спасательных работах и эвакуации имущества. Обеспечивают беспрепятственное следование пожарных машин через перекрёстки, защиту рукавных линий от наездов техники.

Служба водоканала:

При участии работников водоканала водопровод на максимальную водоотдачу и повышения давления на отдельных участках водопровода за счёт пуска на насосных станциях дополнительных насосов-повысителей.















Отметка об отработке

Дата

Кто проводил

Дата

Кто проводил

Дата

Кто проводил








Проверка сети на водоотдачу

Дата

Диаметр сети

Давление

Расход

Роспись

Дата

Диаметр сети

Давление

Расход

Роспись












Отметки о корректировке

Дата

Результаты корректировки

Роспись руководителя

Дата

Результаты корректировки

Роспись руководителя








Похожие работы на - Организация и тактика тушения пожаров на объектах

 

Не нашли материал для своей работы?
Поможем написать уникальную работу
Без плагиата!
Без нейросетей!