Организация и тактика тушения пожаров на объектах
МИНИСТЕРСТВО
ПО ЧРЕЗВЫЧАЙНЫМ СИТУАЦИЯМ РЕСПУБЛИКИ БЕЛАРУСЬ
КОМАНДНО-ИНЖЕНЕРНЫЙ
ИНСТИТУТ
КАФЕДРА
ЛИКВИДАЦИИ ЧРЕЗВЫЧАЙНЫХ СИТУАЦИЙ
КУРСОВОЙ
ПРОЕКТ
Тактика
тушения пожаров и проведения аварийно-спасательных работ
Тема
проекта
Организация
и тактика тушения пожаров на объектах
Минск
2012г.
Введение
Пожары в пансионатах, как правило, создают
опасность людям и угрозу быстрого распространения огня, как в вертикальном, так
и в горизонтальном направлениях. В настоящее время в зданиях пансионатов широко
применяют воздушное отопление, централизованные системы пылеудаления,
мусоропроводы, различные системы электро - и радиоустройств, телевидения и т.д.
При пожаре будут возможны: наличие большого количества людей, нуждающихся в
спасении и эвакуации; задымление как горящего, так ниже- и вышележащих этажей;
быстрое распространение огня и дыма по пустотам и коммуникационным каналам;
потеря прочности строительных конструкций и, как следствие, их обрушение.
Примеров пожаров в санаториях и пансионатах множество.
Одним из которых является пожар в Республиканский санаторий «Березина». Ночью 6
декабря 2010 года в центр оперативного управления Борисовского ГРОЧС поступило
сообщение о задымлении на девятом этаже главного девятиэтажного корпуса
государственного учреждения Республиканский санаторий «Березина». Пожар был
оперативно потушен. В результате пожара повреждены постельные принадлежности в
одной из комнат для обслуживающего персонала. С диагнозом отравление угарным
газом в УЗ «Борисовская ЦРБ» госпитализирован 28-летний мужчина. Причиной
пожара стала неосторожность при курении, которую проявил, судя по сообщению
пресс-службы, работник санатория.
февраля 2010 года в Хмельнике УР произошел пожар
в ООО Санаторий Подолья. По данным МЧС, пожар возник в 23:15 в двухэтажном
здании клуба, после чего огонь распространился на административно-спальный
корпус восьмиэтажного здания санатория, где находилось свыше 150 человек
отдыхающих и персонала.
Огнем было повреждено помещение клуба на площади
300 кв. м и помещение административно-спального корпуса. В 2:30 пожар был
ликвидирован. На месте происшествия работали 15 отделений
оперативно-спасательной службы МЧС. Причиной пожара стала неправильная
эксплуатация нагревательных приборов. Погиб 1 человек, 2 человека госпитализировано.
Поэтому необходимо постоянно совершенствовать
свои навыки в практической и теоретической сфере по тушению пожаров в
санаториях и пансионатах.
Одним из способов совершенствования тактического
мастерства работников органов и подразделений по чрезвычайным ситуациям
Республики Беларусь, предварительного планирования боевых действий по тушению
пожаров и спасанию людей на объектах с проработкой возможных вариантов развития
и тушения пожаров; изучения особенностей объектов, зданий, сооружений и
населенных пунктов; создания базы данных об объектах, зданиях, сооружениях и
населенных пунктах для использования работниками подразделений при
оперативно-тактическом изучении района выезда, оценке обстановки и принятии
решений в процессе тушения пожаров и проведения других аварийно-спасательных
работ является создание оперативных планов.
Данный курсовой проект необходим для
практического изучения, подготовки специалистов по ликвидации пожаров на
объектах подобного типа.
пожар тушение здание
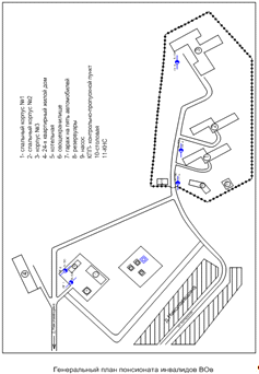
1. Характеристика
территории и особенности планировки объекта
Пансионат для ветеранов Великой Отечественной
войны и труда располагается на окраине д.Николаевщины на территории 5 га,
обнесен железобетонным забором. Въезд осуществляется с одних ворот,
расположенных по улице Белорусская. Ко всем зданиям имеются подъездные дороги с
твердым покрытием. Покрытия проездов и тротуаров выполнены из двухслойного
асфальтобетона с асфальтовой отмосткой. На территории имеются незначительные
посадки деревьев и кустарников.
На территории пансионата для ветеранов Великой
Отечественной войны и труда расположены: спальный корпус №1, спальный корпус
№2, спальный корпус №3, столовая, КНС, КПП. К пансионату также относятся, но не
расположены на его территории: 24-х квартирный жилой дом, гараж, котельная,
одноквартирный жилой дом.
Наружное противопожарное водоснабжение
обеспечивается от трех пожарных гидрантов, которые установлены на объектовой
сети с координатами:
ПГ-3 Контрольно-пропускной пункт (0-4,5-0)
К-150. Р-5,0 атм.
ПГ-4 На углу второго поворота к зданию второго
спального корпуса (0-4,5-1) Т-100. Р-5,0 атм.
ПГ-5 Угол спального корпуса №3 (0-4,5-2,5)
Т-100. Р-5,0 атм.
На расстоянии 500-800метров имеются: один
пожарный резервуар емкостью 150 м3 с приемным колодцем и два пожарных гидранта
установленных на объектовой сети с координатами:
ПГ-1 Угол котельной (3,5-2-0)К-150. Р-5,0 атм.
ПГ-2 Угол котельной (0-2-2,5)К-150. Р-5,0 атм.
Повышение давления на отдельных участках
водопровода осуществляется работниками водоканала за счет пуска на насосных
станциях дополнительных насосов-повысителей. Пополнение пожарных резервуаров
осуществляется немедленно.
Расход воды (л/сек.) из водопроводной сети Т-100
и К-150 составляет:
|
Вид
и диаметр сети
|
Расход
воды из сети в зависимости от напора в ней
|
|
10м
|
20м
|
30м
|
40м
|
50м
|
60м
|
70м
|
80м
|
90м
|
|
Т-100
мм
|
10
|
14
|
17
|
21
|
24
|
26
|
29
|
32
|
35
|
|
К-150
мм
|
55
|
70
|
80
|
95
|
105
|
110
|
130
|
140
|
155
|
1.1
Оперативно-тактическая характеристика зданий и сооружений
Спальный корпус №1
I.
Архитектурно-строительная часть: здание IV
СО, трехэтажное площадью 523 м2 с подвалом и чердаком, расположенными по всей
площади здания. Планировка коридорного типа. Стены кирпичные R
90. Перегородки кирпичные EI
60. Перекрытия железобетонные плиты REI
45. Кровля жестяная (металочерепица) по деревянной обрешетке REI
30. Подвал площадью 523 м2, высота подвала 2,5 метра. Входов в здание - 4, вход
на чердак с каждой лестничной клетки, в подвал с лестничной клетки с торца
здания.
II.
Технологическая часть: в здании расположены жилые помещения, кухни и бытовые
помещения.
III. Внутреннее
противопожарное водоснабжение: обеспечивается от 12 пожарных кранов с
полугайками типа «Богданова», диаметром 51 мм. Рукава диаметром 51 мм, длиной
20 м, стволы «Б». Предусмотрены насосы повысители которые включаются в ручную
(имеются в каждом ПК магнитные пускатели). Водоотдача при включении насосов
повысителей равна 14 л/с.
IV. Установки
пожаротушения: отсутствуют.
V. Коммуникации:
- Электроснабжение освещения 220В
обесточивается путем отключения в электрощитах, электроснабжение силовое
обесточивается путем отключения в электрощитовой на каждом этаже (см. план
здания);
- вентиляция - естественная;
отопление - центральное водяное,
котельная расположена в отдельном здании.
VI. Спасание и
эвакуация: корпус не заселен.
Спальный корпус №2
I. Архитектурно-строительная
часть: здание IV СО,
трехэтажное площадью 523 м2 с подвалом и чердаком, расположенными по всей
площади здания. Планировка коридорного типа. Стены кирпичные R
90. Перегородки кирпичные EI
60. Перекрытия железобетонные плиты REI
45. Кровля жестяная (металочерепица) по деревянной обрешетке REI
30 Подвал площадью 523 м2, высота подвала 2,5 метра. Входов в здание - 4, вход
на чердак с каждой лестничной клетки, в подвал с лестничной клетки с торца
здания.
II.
Технологическая часть: в здании расположены жилые помещения, кухни и бытовые
помещения.
III. Внутреннее
противопожарное водоснабжение: обеспечивается от 12 пожарных кранов с
полугайками типа «Богданова», диаметром 51 мм. Рукава диаметром 51 мм, длиной
20 м, стволы «Б». Предусмотрены насосы повысители которые включаются в ручную
(имеются в каждом ПК магнитные пускатели). Водоотдача при включении насосов
повысителей равна 14 л/с.
IV. Установки
пожаротушения: отсутствуют.
V. Коммуникации:
- Электроснабжение освещения 220В
обесточивается путем отключения в электрощитах, электроснабжение силовое
обесточивается путем отключения в электрощитовой на каждом этаже (см. план
здания);
- вентиляция - естественная;
отопление - центральное водяное,
котельная расположена в отдельном здании.
VI. Спасание и
эвакуация: корпус рассчитан на 45 человек, из них 4 - персонал пансионата. В
первую очередь проводится спасание лежачих больных и передвигающихся на
колясках. Согласно правил пожарной безопасности вышеперечисленные больные
распологаються на первом и втором этажах. На первом этаже установлено
громкоговорящее устройство. В ночное время на первом этаже дежурит санитарный
работник, в кабинете у него находятся 7 носилок, на втором этаже дежурит
медсестра у нее в кабинете 4 носилок. При необходимости спасание и эвакуацию
производить звеньями ГДЗС с одновременной подачей стволов на тушение пожара.
Спальный корпус №3
I.
Архитектурно-строительная часть: здание IV
СО, двухэтажное площадью 956 м2 с цокольным этажом и чердаком. Планировка
коридорного типа. Стены кирпичные R
90. Перегородки кирпичные EI
60. Перекрытия железобетонные плиты REI
45. Кровля жестяная (металочерепица) по деревянной обрешетке REI
30. Цокольный этаж и чердак площадью 956 м2, высота цокольного этажа 2,5 метра.
Входов в здание - 7, вход на чердак и цокольный этаж с каждой лестничной
клетки.
II.
Технологическая часть: в здании расположены жилые помещения, кухни и бытовые
помещения.
III. Внутреннее
противопожарное водоснабжение: обеспечивается от 16 пожарных кранов с
полугайками типа «Богданова», диаметром 51 мм. Рукава диаметром 51 мм, длиной
20 м, стволы «Б». Предусмотрены насосы повысители, которые включаются в ручную
(имеются в каждом ПК магнитные пускатели). Водоотдача при включении насосов
повысителей равна 14 л/с.
IV. Установки
пожаротушения: отсутствуют.
V. Коммуникации:
- электроснабжение освещения 220В
обесточивается путем отключения в электрощитах, электроснабжение силовое
обесточивается путем отключения в электрощитовой на каждом этаже (см. план
здания);
- вентиляция - естественная;
отопление - центральное водяное,
котельная расположена в отдельном здании.
VI. Спасание и
эвакуация: корпус рассчитан на 53 человек, из них 8 - персонал пансионата. В
первую очередь проводится спасание лежачих больных и передвигающихся на
колясках. Согласно правил пожарной безопасности вышеперечисленные больные
находятся на первом и втором этажах. На первом этаже установлено
громкоговорящее устройство. В ночное время на первом этаже дежурит санитарный
работник, в кабинете у него находятся 9 носилок, на втором этаже дежурит
медсестра у нее в кабинете 6 носилок. При необходимости спасание и эвакуацию
производить звеньями ГДЗС с начало со второго этажа, затем с первого с
одновременной подачей стволов на тушение пожара.
Канализационная насосная станция
I.
Архитектурно-строительная часть: здание IV
СО, двухэтажное площадью 91,3 м2 с подвалом, высота этажа - 3 м. Стены
кирпичные R 90. Перегородки
кирпичные EI 60.
Перекрытия железобетонные плиты REI
45. Кровля жестяная (металочерепица) по деревянной обрешетке REI
30. Подвал площадью 91,3 м2, с каждой высота подвала 12,3 метра. Входов в
здание - 2, вход в подвал по металической лестнице из помещения первого этажа.
II.
Технологическая часть: производится перекачка хозяйственно-бытовых сточных вод,
ливневых стоков. В корпус КНС (канализационной насосной станции) жидкость
попадает самотеком, из корпуса она удаляется насосами. Внутри корпуса
монтируются трубы из нержавеющей стали, вентили, обратные клапана и насосное
оборудование.
III. Внутреннее
противопожарное водоснабжение: обеспечивается от 2 пожарных кранов с
полугайками типа «Богданова», диаметром 51 мм. Рукава диаметром 51 мм, длиной
20 м, стволы «Б». Предусмотрены насосы повысители, которые включаются в ручную
(имеются в каждом ПК магнитные пускатели). Водоотдача при включении насосов
повысителей равна 14 л/с.
IV. Установки
пожаротушения: отсутствуют.
V. Коммуникации:
- электроснабжение освещения 220В
обесточивается путем отключения в электрощитах, электроснабжение силовое
обесточивается путем отключения в электрощитовой на каждом этаже (см. план
здания);
- вентиляция - естественная;
отопление - центральное водяное,
котельная расположена в отдельном здании.
VI. Спасание и
эвакуация: количество работающих в дневное
время − 2 человека. При необходимости спасение и эвакуация производятся
звеньями ГЗДС, одновременно с подачей стволов на тушение.
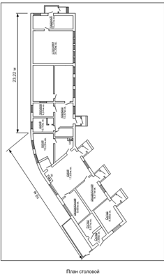
Столовая
I.
Архитектурно-строительная часть: здание IV
СО, одноэтажное площадью 186 м2, высота этажа - 3,3 м. Стены кирпичные R
90. Перегородки кирпичные EI
60. Перекрытия железобетонные плиты REI
45. Кровля жестяная (металочерепица) по деревянной обрешетке REI
30. Предусмотрено 5 входов в здание.
II.
Технологическая часть: осуществляется прием и приготовление пищи на
электрических плитах. В здании находятся склады продуктов, разделочные, кухни.
III. Внутреннее
противопожарное водоснабжение: обеспечивается от 4 пожарных кранов с
полугайками типа «Богданова», диаметром 51 мм.
Рукава диаметром 51 мм, длиной 20 м, стволы «Б».
Насосы повысители отсутствуют.
IV. Установки
пожаротушения: отсутствуют.
V. Коммуникации:
- электроснабжение освещения 220В
обесточивается путем отключения в электрощитах, электроснабжение силовое
обесточивается путем отключения в электрощитовой (см. план здания);
- вентиляция - естественная;
отопление - центральное водяное, котельная
расположена в отдельном здании.
VI. Спасание и
эвакуация: расчитана на 100 человек, количество
работающих в дневное время − 10 человек. При необходимости спасение и
эвакуация производятся звеньями ГЗДС, одновременно с подачей стволов на
тушение.
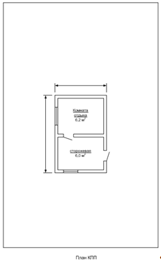
Контрольно-пропускной пункт
I.
Архитектурно-строительная часть: здание IV
СО, одноэтажное площадью 12,2 м2, высота этажа - 3 м. Стены кирпичные R
90. Перегородки кирпичные EI
60. Перекрытия железобетонные плиты REI
45.
Кровля жестяная (металочерепица) по деревянной
обрешетке REI 30. В
здание - 1 вход.
II.
Технологическая часть: горючая загрузка - 2 кг/м2.
III. Внутреннее
противопожарное водоснабжение: отсутствует.
IV. Установки
пожаротушения: отсутствуют.
V. Коммуникации:
- электроснабжение освещения 220В обесточивается
путем отключения в электрощитах;
- вентиляция - естественная;
отопление - центральное водяное,
котельная расположена в отдельном здании.
VI. Спасание и
эвакуация: количество работающих в дневное
время − 2 человека. При необходимости спасение и эвакуация производятся
звеньями ГЗДС, одновременно с подачей стволов на тушение.
1.2 Выписка из
расписания выезда пожарных аварийно-спасательных подразделений на пожары
На пожар привлекаются силы и средства по вызову
№ 3
|
Наименование
подразделений
|
Привлекаемые
силы и средства
|
Расстояние
до объекта
|
Ориентировочное
время прибытия
|
|
ПАСЧ-1
г.Столбцы
|
АЦ-40(130)63Б
|
9,1
км
|
10
мин.
|
|
АЦ-40(130)63Б
|
9,1
км
|
10
мин.
|
|
ПАСП-15
д. Любковщина
|
АЦ-40(130)63Б
|
3,6
км
|
4
мин.
|
|
ПАСП-14
д. Скоморошки
|
АЦ-30(53)106А
|
15,5
|
17
мин.
|
|
ПАСП-11
г. Несвиж
|
АЦ-40(130)63Б
|
32
км
|
35
мин.
|
|
ПАСП-12
д.Старина
|
АЦ-40(130)63Б
|
32
км
|
35
мин.
|
|
ПАСЧ-2
г.п. Мир
|
АЦ-40(130)63Б
|
32
км
|
35
мин.
|
|
ПАСЧ-1
г. Несвиж
|
АЦ-40(130)63Б
|
32
км
|
35
мин.
|
|
ПАСЧ-2
г. п. Городея
|
АЦ-40(130)63Б
|
36,4
км
|
40
мин.
|
|
ПАСП-13
д. Деревное
|
АЦ-40(375)Ц1
|
41
км
|
45
мин.
|
1.3 Выбор и обоснование
места возникновения возможного пожара
Местом возникновения возможного пожара на
территории санатория выбираем второй этаж второго корпуса и склад корпуса №3.
Помещения санатория характеризуются сложностью
планировки, большим количеством одновременно пребывающих людей, сложностью
эвакуации из данных помещений, наличием материалов, имеющих различные
физико-химические свойства, горение и термическое разложение которых может
сопровождаться интенсивным дымообразованием, выделением токсичных веществ.
В тактическом отношении наиболее вероятным
местом возникновения пожара является мебель помещений. Данное помещение выбрано
исходя из принципа наибольшей пожарной загрузки, линейной скорости
распространения горения, интенсивности подачи огнетушащих средств и возможного
материального ущерба в случае пожара. Помещение склада выбрано исходя из
принципа позднего обнаружения пожара и его продолжительного свободного развития
вследствие отсутствия постоянно пребывающего персонала. В помещении склада
хранится мебель и постельные принадлежности, горючая загрузка склада составляет
20 кг∕м2 и является максимальной для спального корпуса.
Линейная скорость распространения огня в
спальном помещении и складе соответственно равны 0,8 м/с и 0,4 м/с (Приложение
3 [9]). Интенсивность подачи огнетушащего вещества на тушение в спальном
помещении составляет 0,1 л/с·м2, в складе − 0,15 л/с·м2 (Приложение 5
[9]).Пожар в данных зданиях может привести к большому материальному ущербу и человеческим
жертвам. При тушении пожара будем использовать перекрывные стволы РСК-50,
подавать будем преимущественно распыленные струи воды.
Исходя из данных выводов видно, что
возникновение пожаров в данных помещениях потребует привлечения сил и средств
по повышенному номеру вызова, использования большого количества личного состава
при эвакуации людей, тушении, защите смежных помещений.
1.4 Выбор и обоснование
огнетушащего вещества
В качестве огнетушащего вещества, применяемого
для тушения данных пожаров, выбираем воду [10]. Удельная теплоемкость воды
равна 4,19 Дж/(кг град), что характеризует её хорошие охлаждающие свойства, в
условиях тушения пожара из 1 литра воды образуется 1700 литров пара, вода
разбавляет реагирующие вещества. Высокая теплота парообразования воды (2236
кДж/кг) позволяет отнимать большое количество тепла в процессе тушения пожара.
Низкая теплопроводность способствует созданию на поверхности горящего материала
надежной тепловой изоляции. Значительная термическая стойкость воды (вода разлагается
на кислород и водород при температуре 1700°С) способствует тушению большинства
твердых материалов. Она доступна для целей пожаротушения, экономически
целесообразна, инертна к большинству веществ и материалов, имеет незначительную
вязкость и несжимаема. При тушении пожаров воду используют в виде компактных,
распыленных и тонкораспыленных струй. Однако вода характеризуется и
отрицательными свойствами. Вода электропроводна, имеет низкий коэффициент
использования в виде компактных струй, сравнительно высокую температуру
замерзания (затрудняется тушение в зимнее время) и высокое поверхностное
натяжение 72800Дж/м2 (является показателем низкой смачивающей способности
воды).
1.5 Расчет динамики
развития пожара и расчет сил и средств для его тушения
Расчет сил и средств произведен по 2 вариантам:
1-й − тушение пожара в помещении второго этажа корпуса №2, 2-й - тушение
пожара в помещении первого этажа корпуса №3:
|
№
п/п
|
Наименование
показателей и их размерность
|
Результаты
расчета
|
|
|
I вариант
|
II вариант
|
|
1
|
Место
пожара
|
Помещение
второго этажа корпуса №2
|
Помещение
склада первого этажа корпуса №3
|
|
2
|
Сгораемые
вещества и материалы
|
Мебель
|
Мебель,
постельные принадлежности
|
|
3
|
Линейная
скорость распространения горения (м/мин)
|
1
|
1
|
|
4
|
Границы
пожара(объем) к моменту прибытия первого подразделения , м2
|
25,0
|
32
|
|
5
|
Огнетушащее
вещество и требуемая интенсивность его подачи (л/с*м 2)
|
Вода
0,1
|
Вода
0,15
|
|
6
|
Требуемая
интенсивность подачи огнетушащего вещества на защиту (л/с*м 2)
|
0,025
|
0,0375
|
|
7
|
Требуемый
расход воды на тушение и защиту (л/с)
|
3,1
|
6
|
|
8
|
Фактический
расход воды на тушение и защиту (л/с)
|
21
|
21
|
|
9
|
Количество
стволов на тушение: «А».....................................
«Б».....................................
лафетных...........................
«СВП»............................... «ГПС-600»........................
|
-
1 - - -
|
-
2 - - -
|
|
10
|
Количество
стволов на защиту: «А»......................................
«Б»......................................
лафетных............................
«СВП»................................ «ГПС-600»..........................
|
-
5 - - -
|
-
4 - - -
|
|
11
|
Количество
личного состава (чел.)
|
26
|
25
|
|
12
|
Количество
звеньев ГДЗС (ГДЗС резерв)
|
5(1)
|
5(1)
|
|
13
|
Количество
отделений на основных и специальных пожарных автомобилях.
|
10
|
10
|
Основные формулы и справочные данные для расчета
сил и средств, необходимых для тушения пожара
Вариант №1
. Определяем время свободного развития пожара
(от момента его возникновения до введения первых сил и средств на его тушение):

где
- время от возникновения пожара до
сообщения о нем на ЦОУ (учитывая, что пожар может возникнуть в ночное время, то
есть горение достаточно долгое время не будет обнаружено, принимаем время
сообщения равным 10 минут);
- время сбора и выезда пожарного
подразделения из депо (принимается 1 мин);
- время следования подразделения от
места дислокации до объекта (принимаем равным 4 мин по выписке из расписания
выезда подразделений на пожары);
- время боевого развертывания
пожарного подразделения (учитывая подготовку звена ГДЗС и прокладку рукавной
линии ствола первой помощи, принимаем 4 мин,).
За первые 10 минут пожар достигнет стен
помещения и примет прямоугольную форму развития. Выходу пожара за пределы
спальной ячейки, которая состоит из жилой комнаты, кухни и санузла, будут
препятствовать ограждающие строительные конструкции и дверь имеющая предел
огнестойкости 10 минут. Следовательно к моменту прибытия подразделений пожар
займет площадь всей спальной ячейки, а именно 25 м2.
3. Определяем требуемый расход воды на тушение
пожара:
Q ТТР = SТ
∙ I ТТР = 25∙0,1=2,5
л/с
. Определяем количество стволов на тушение
пожара:
NТСТВ =QТТР
/ qСТВ = 2,5/3,5 = 1
ств «Б»
. Определяем требуемый расход воды на защиту:
Q ЗТР = SТ
∙ I ЗТР = 25∙0,025=0,6
л/с
. Определяем количество стволов на защиту:
NЗСТВ =QЗТР
/ qСТВ = 0,6/3,5 = 1
ств «Б»
На защиту соседних помещений и проведение
эвакуации подаем два маневренных ствола РСК-50.
. На защиту 1 и 3 этажа, чердака подаём звеньями
ГДЗС по одному маневренному стволу РСК-50.
. Определяем численность личного состава:
NЛ.С = NЛ.СГДЗС
+ NЛ.ССВЯЗ + NЛ.СРАЗВ
+ NЛ.СПБ = 6∙3 +
1 + 4∙1 + 3∙1 = 26 человек
. Определяем количество звеньев ГДЗС:
NГДЗС= Nл/с/6
= 26/6 = 5 отделений
Вывод:
Для тушения возможного пожара необходимо
привлекать 6 отделений на основной пожарной аварийно-спасательной технике.
Вариант №2
. Определяем время свободного развития пожара
(от момента его возникновения до введения первых сил и средств на его тушение):

. Находим путь, пройденный огнем:
3. Вычисляем площадь пожара на 19 минуте.
За это время огонь охватит весь склад размером 4×8
м.
. Определяем требуемый расход воды на тушение
пожара:
Q ТТР = SТ
∙ I ТТР = 32∙0,15=4,8
л/с
. Определяем количество стволов на тушение
пожара:
NТСТВ =QТТР
/ qСТВ = 4,8/3,5 = 2
ств «Б»
. Определяем требуемый расход воды на защиту:
Q ЗТР = SТ
∙ I ЗТР = 32∙0,0375=1,2
л/с
. Определяем количество стволов на защиту:
NЗСТВ =QЗТР
/ qСТВ = 1,2/3,5 = 1
ств «Б»
. На защиту 1 этажа, чердака и цокольного этажа
подаём звеньями ГДЗС по одному маневренному стволу РСК-50.
. Определяем численность личного состава:
NЛ.С = NЛ.СГДЗС
+ NЛ.ССВЯЗ + NЛ.СРАЗВ
+ NЛ.СПБ = 6∙3 +
1 + 3∙1 + 3∙1 = 25 человека
. Определяем количество звеньев ГДЗС:
NГДЗС= Nл/с/6
= 25/6 = 5 отделений
Вывод:
Для тушения возможного пожара необходимо
привлекать 5 отделений на основной пожарной аварийно-спасательной технике.
1.6 Схема расстановки
сил и средств для тушения пожара
Вариант №1
Вариант №2
1.98 Совмещенный график изменения площади
пожара, требуемого и фактического расходов огнетушащего вещества
Определяем время свободного развития пожара (от
момента его возникновения до введения первых сил и средств на его тушение):
τсв.р. = τд.с.
+ τсб.
+ τсл.
+ τб.р.=
10 + 1 + 4 + 4 =19 мин,
где τд.с
− время от возникновения пожара до сообщения о нём на ЦОУ;
τсб. − время
сбора и выезда пожарного подразделения из части;
τсл. − время
следования подразделения от места дислокации до объекта;
τб.р − время
боевого развёртывания подразделения МЧС.
Вариант №1
На момент прибытия подразделений МЧС площадь
пожара составляет SТ = 25 м2.
Рассчитаем площадь пожара по времени для
графика:
Рассчитаем требуемый расход воды по
времени для графика:
Рассчитаем расход воды фактический
по времени для графика:
Вариант №2
На момент прибытия подразделений МЧС
площадь пожара составляет SТ = 35 м2.
Рассчитаем площадь пожара по времени
для графика:
Рассчитаем требуемый расход воды по
времени для графика:
Рассчитаем расход воды фактический
по времени для графика:
Для удобства построения графика данные расчетов
вносим в таблицу:
|
Время
с момента возникновения пожара, мин
|
Площадь
пожара, м2
|
Площадь
тушения, м2
|
Требуемый
расход воды на тушение, л/с
|
Фактический
расход воды на тушение, л/с
|
|
вариант
№1
|
|
17
|
25
|
24,3
|
3,46
|
3,5
|
|
20
|
39,6
|
24,3
|
3,46
|
3,5
|
|
25
|
72,3
|
24,3
|
3,46
|
3,5
|
|
вариант
№2
|
|
17
|
35
|
42,6
|
6,4
|
3,5
|
|
20
|
52,8
|
42,6
|
6,4
|
7
|
|
25
|
89,9
|
42,6
|
6,4
|
7
|
Вариант №1

Рисунок 1 − Совмещенный график изменения
площади пожара, требуемого и фактического расходов огнетушащего вещества
1.8 Организация тушения
пожара
Вариант №1 Пожар в помещении второго этажа
корпуса №2.
На пожаре создается три боевых участка.
БУ - 1: Эвакуация людей из здания. Обеспечение
путей эвакуации.
НБУ - 1 - командир первого отделения ПАСЧ №1 г.
Столбцы.
ЗАДАЧА: Предотвратить панику. Обесточить здание.
Задействовать обслуживающий персонал для эвакуации людей. АЦ на ПГ-4, проложить
магистральные линии к центральному входу, подать два ствола «Б» звеньями ГДЗС
на защиту эвакуационного пути со второго и третьего этажа по центральной
лестничной клетке. Эвакуацию людей со второго этажа осуществлять по лестничной
клетке в торце здания. Выставить пост безопасности. Принять меры по поднятию
уровня нейтральной зоны.
СИЛЫ: отделение ПАСП №15 д. Любковщина, первое и
второе отделения ПАСЧ №1 г. Столбцы.
БУ - 2: Тушение пожара.
НБУ - 2 - командир второго отделения ПАСЧ №1 г.
Столбцы.
ЗАДАЧА: АЦ ПАСП № 14 на ПГ-3, от установленных
разветвлений ПАСЧ 1-2 г. Столбцы подать маневренный ствол «Б» звеном ГДЗС на
тушение пожара в помещении второго этажа по центральной лестничной клетке.
Эвакуацию людей со второго этажа осуществлять по лестничной клетке в торце
здания.
СИЛЫ: отделение ПАСП №14 д. Скоморошки
БУ - 3: Защита смежных помещений первого,
второго и чердачного этажа.
НБУ - 3 - командир отделения ПАСП №12 д.
Старина.
ЗАДАЧА: Проложить резервные магистральные линии
от АЦ ПАСП №14 установленной на ПГ №3; от разветвлений установленных ПАСЧ №1-2
подать: маневренный ствол «Б» на защиту смежных помещений первого этажа через
центральный вход; подать маневренный ствол «Б» звеном ГДЗС на защиту смежных
помещений второго этажа по центральной лестничной клетке справой стороны от
горящего; подать маневренный ствол «Б» звеном ГДЗС на защиту чердачного
помещения. Организовать КПП. Создать резервное звено ГДЗС. От разветвлений
установленных ПАСП №14 подать маневренный ствол «Б» звенои ГДЗС на защиту
подвала.
СИЛЫ: отделения ПАСП №12 д. Старина (АЦ в
резерв), отделения ПАСЧ №1 г. Несвиж(АЦ в резерв), отделения ПАСЧ №2 г.п.
Мир(АЦ в резерв), отделения ПАСЧ №2 г.п. Городея(АЦ в резерв), отделения ПАСП
№13 д. Деревное(АЦ в резерв), ПАСП №11 г. Несвиж.
Примечание: согласно статьи 101 БУ (ТП)-2003, в
отдельных случаях (при проведении первоочередных аварийно-спасательных работ)
по решению РТП состав звеньев может быть уменьшен до двух человек, что и было
заложено в данном варианте.
Вариант №2 Пожар в помещении склада первого
этажа корпуса №3.
На пожаре создается три боевых участка.
БУ - 1: Эвакуация людей из здания. Обеспечение
путей эвакуации.
НБУ - 1 - командир первого отделения ПАСЧ №1 г.
Столбцы.
ЗАДАЧА: Предотвратить панику. Обесточить здание.
Задействовать обслуживающий персонал для эвакуации людей. АЦ на ПГ-5, проложить
магистральные линии к центральному входу, подать один ствол «Б» звеном ГДЗС по
центральной лестничной клетке на защиту эвакуационного пути со второго этажа.
Эвакуацию людей со второго этажа осуществлять по лестничным клеткам в торцах
здания. Выставить пост безопасности. Обеспечить поднятие уровня нейтральной
зоны.
СИЛЫ: отделение ПАСП №15 д. Любковщина, 2
отделения ПАСЧ №1 г. Столбцы.
БУ - 2: Тушение пожара.
НБУ - 2- командир второго отделения ПАСЧ №1 г.
Столбцы.
АЦ ПАСП №14 д. Скоморошки на ПГ-4 и от
разветвлений установленных ПАСЧ №1-2 подать два ствола «Б» звеньями ГДЗС на
тушение пожара в помещении склада первого этажа с центрального входа.
СИЛЫ : второе отделение ПАСЧ №1 г. Несвиж (АЦ в
резерв), отделение ПАСП №14 д. Скоморошки(АЦ в резерв), отделение ПАСП №12
д.Старина(АЦ в резерв).
БУ - 3: Защита смежных помещений второго,
чердачного этажа и подвала.
НБУ - 3 - Начальник караула ПАСЧ №2 г. Мир.
ЗАДАЧА: От разветвлений установленных ПАСП №14
подать: подать маневренный ствол «Б» звеном ГДЗС на защиту чердачного
помещения; от АЦ ПАСП №13 д. Деревное подать маневренный ствол «Б» звеном ГДЗС
на защиту смежных помещений подвала. Вход в подвал с противоположной стороны
здания. Организовать КПП. Создать резервное звено ГДЗС.
СИЛЫ: отделения ПАСЧ №2 г.п. Мир, отделения ПАСП
№11 г. Несвиж, отделения ПАСЧ №2 г.п. Мир, отделения ПАСЧ №2 г.п. Городея(АЦ в
резерв), отделения ПАСП №13 д.Деревное(АЦ в резерв).
Примечание: согласно статьи 101 БУ (ТП)-2003, в
отдельных случаях (при проведении первоочередных аварийно-спасательных работ)
по решению РТП состав звеньев может быть уменьшен до двух человек, что и было
заложено в данном варианте.
1.9 Рекомендации
руководителю тушения пожара, начальнику штаба, НТ и т. д.
РЕКОМЕНДАЦИИ НАЧАЛЬНИКУ ШТАБА
НШ подчиняется РТП, является его заместителем,
обеспечивает выполнение решений РТП, возглавляет штаб и несет ответственность
за выполнение штабом задач по организации тушения пожара.
НШ обязан:
Ø изучить обстановку на пожаре путем
организации непрерывной разведки и получения данных от начальников БУ;
Ø доложить РТП результаты разведки и
сообщения об обстановке в ходе тушения пожара;
Ø самостоятельно принять решения в
случаях, не терпящих отлагательства, и осуществлять их с последующим докладом
РТП;
Ø произвести расстановку сил и средств
согласно решению, принятому РТП;
Ø вызвать при необходимости
дополнительные силы и средства;
Ø передать приказания РТП
руководителями подразделений;
Ø организовать связь на пожаре;
Ø обеспечить контроль за исполнением
приказаний РТП и штаба;
Ø создать резерв из прибывающих
подразделений;
Ø вызвать при необходимости
специальные службы города и организовать взаимодействие с ними;
Ø передать сведения на ЦОУ о пожаре;
Ø собирать сведения о причине
возникновения пожара и о боевых действиях подразделений;
Ø вести документы штаба;
Ø организовать питание и подмену
личного состава при длительной работе на пожаре;
Ø назначить при необходимости
заместителя начальника штаба.
Ø включить в состав штаба ЛЧС
представителя объекта.
РЕКОМЕНДАЦИИ РУКОВОДИТЕЛЮ ТУШЕНИЯ ПОЖАРА
РТП обязан:
Ø Произвести разведку и оценить
обстановку на пожаре по внешним признакам, обеспечить расстановку сил и
средств, предотвратить панику, немедленно организовать и лично возглавить
спасание людей, используя для этого имеющиеся силы и средства; уточнить у
представителей предприятия количество, находящихся в данное время на рабочих
местах;
Ø Определить решающее направление,
необходимое количество сил и средств, способы и приемы боевых действий;
Ø Создать на пожаре 3 боевых участка;
Ø Поставить задачи подразделениям,
организовать их взаимодействие и обеспечить выполнение поставленных задач;
Ø Непрерывно следить за изменениями
обстановки на пожаре и принимать соответствующие решения;
Ø В зависимости от обстановки
организовать штаб и определить место его расположения; информировать штаб о
месте своего нахождения и сообщать ему о всех принимаемых решениях; создать
резерв сил и средств, периодически подменять работающих, давая им возможность
отдохнуть, обогреться и переодеться в сухую одежду (при необходимости);
Ø Назначить из числа лиц
начальствующего состава ответственного за соблюдение мер безопасности; при
необходимости организовать пункт медицинской помощи;
Ø Организовать взаимодействие со
службами, привлекаемыми к тушению пожара, поддерживать постоянную связь с
администрацией и инженерно-техническими работниками объекта и принимать решения
о приемах и средствах тушения с учетом рекомендаций и инструкций объекта;
Ø При внесении изменений в расстановку
сил и средств на пожаре РТП должен принять решение о перегруппировке и довести
его до руководителей подразделений, указав, кому и каким образом производить
перегруппировку.
Ø РТП должен установить правильность
исполнения принятых мер по тушению пожара и определить, достаточно ли сил и
средств для его ликвидации на каждом участке.
РЕКОМЕНДАЦИИ ОТВЕТСТВЕННОМУ ЗА ЭВАКУАЦИЮ НА
ПОЖАРЕ
Выясняет:
Ø имеется ли угроза людям от огня и
дыма, в какой мере обстановка на пожаре может повлиять на успешную эвакуацию
людей;
Ø местонахождение людей, их
способность к самостоятельному выходу из помещений;
Ø пути и последовательность эвакуации;
Ø места, куда эвакуировать людей;
Ø размеры зоны пожара, степень
воздействия огня и дыма на пути эвакуации;
Ø какие имеются силы и средства и как
они могут быть использованы для эвакуации людей;
Ø необходимость защиты путей эвакуации
и возможность дымоудаления.
Обязан:
Ø всесторонне изучить данные разведки
и рекомендации персонала, сложившуюся обстановку, в какой мере она может
повлиять на успешную эвакуацию людей;
Ø принять меры к предупреждению
паники;
Ø следить за тем, чтобы пути эвакуации
не загромождались.
Основные способы спасания и эвакуации:
Ø самостоятельный выход людей в
безопасном направлении;
Ø вывод эвакуируемых в сопровождении
пожарных, если пути эвакуации задымлены;
Ø вынос людей, не имеющих возможностей
самостоятельно передвигаться;
Ø спуск спасаемых по автолестнице или
ручным пожарным лестницам.
Для спасания и эвакуации используются кратчайшие
и безопасные пути:
Ø основные входы и выходы;
Ø запасные выходы;
Ø оконные проемы, балконы, лоджии с
применением автолестницы или ручных пожарных лестниц.
РЕКОМЕНДАЦИИ ОТВЕТСТВЕННОМУ ЗА ТБ НА ПОЖАРЕ
Ø Проследить за проведением
обесточивания зданий и помещений. Обесточивание сети разрезанием проводов
специальным инструментом допускать только после того, как другими приемами
(выключателем, рубильником) этого сделать нельзя и если напряжение в сети не
превышает 220 В.
Ø На период ведения разведки создать
резерв из л/с с АСВ для оказания помощи разведывательной группе. Контролировать
поддержание связи с разведчиками и время их пребывания в непригодной для
дыхания среде.
Ø При тушении следить за состоянием
несущих конструкций и перекрытий. Принимать меры, предупреждающие их обрушение:
· охлаждать непосредственно;
· экранировать водяной завесой;
· своевременно снимать нагрузку с
перекрытия;
Ø Установить единый сигнал тревоги для
отхода л/с при нарушениях геометрических размеров (появление заметных прогибов,
раскрытие трещин, оголение арматуры в железобетонных конструкциях, образование
трещин в каменных конструкциях.
Ø Обратить внимание на безопасность
л/с при работе на высоте (особенно в темное время и зимой). Во время работы на
покрытии следить за состоянием несущих конструкций.
Ø Обеспечить охрану мест сбрасывания
конструкций с высоты при их вскрытии и разборке.
РЕКОМЕНДАЦИИ НАЧАЛЬНИКАМ БОЕВЫХ УЧАСТКОВ
НБУ обязан:
Ø -производить непрерывную разведку и
докладывать РТП об обстановке на боевом участке;
Ø -руководить работой подчиненных ему
подразделений, обеспечить взаимодействие с соседним БУ;
Ø -обеспечить маневрирование и быструю
перегруппировку сил и средств при изменении обстановки на БУ;
Ø -принимать самостоятельные решения
по перестановке сил и средств обеспечивающие быстрейшую ликвидацию пожара на
БУ;
Ø -докладывать РТП о выполнении
поставленной задачи.
РЕКОМЕНДАЦИИ НАЧАЛЬНИКУ ТЫЛА
НТ назначается из числа начальствующего состава
и подчиняется РТП, начальнику штаба и отвечает за работу тыла на пожаре.
Основной задачей тыла на пожаре является
обеспечение подачи требуемого количества огнетушащих средств.
НТ обязан:
Ø произвести разведку водоисточников;
Ø организовать встречу и расстановку
на водоисточники прибывших АЦ, обеспечить подачу воды;
Ø организовать своевременное снабжение
техники ГСМ, а также при необходимости его доставку;
Ø обеспечить охрану рукавных линий, а
также взаимодействие с работниками милиции по регулированию движения
автотранспорта;
Ø вести учет работы пожарной техники,
расхода огнетушащих средств, составить схему расстановки ПА на водоисточники;
Ø организовать взаимодействие со
службами водоснабжения.
Наружное противопожарное водоснабжение
обеспечивается от трех пожарных гидрантов, которые установлены на объектовой
сети с координатами:
ПГ-3 Контрольно-пропускной пункт (0-4,5-0)К-150.
Р-5,0 атм.
ПГ-4 На углу второго поворота к зданию второго
спального корпуса Т-100. Р-5,0 атм.
ПГ-5 Угол спального корпуса №3 (0-4,5-2,5)Т-100.
Р-5,0 атм.
На расстоянии 500-800метров имеются: один
пожарный резервуар емкостью 150 м3 с приемным колодцем и два пожарных гидранта
установленных на объектовой сети с координатами:
ПГ-1 Угол котельной (3,5-2-0)К-150. Р-5,0 атм.
ПГ-2 Угол котельной (0-2-2,5)К-150. Р-5,0 атм.
Расход воды (л/сек.) из водопроводной сети Т-100
и К-150 составляет:
|
Вид
и диаметр сети
|
Расход
воды из сети в зависимости от напора в ней
|
|
10м
|
20м
|
30м
|
40м
|
50м
|
60м
|
70м
|
80м
|
90м
|
|
Т-100
мм
|
10
|
14
|
17
|
21
|
24
|
26
|
29
|
32
|
35
|
|
К-150
мм
|
55
|
70
|
80
|
95
|
105
|
110
|
130
|
140
|
155
|
РЕКОМЕНДАЦИИ РУКОВОДИТЕЛЮ ТУШЕНИЯ ПОЖАРА.
ВЗАИМОДЕЙСТВИЕ СО СПЕЦИАЛЬНЫМИ СЛУЖБАМИ
Порядок взаимодействия со службами при тушении
пожаров регламентировано специальными инструкциями, подписанными начальником
гарнизона РОЧС и руководителем соответствующей службы. Инструкции как
руководящие документы находятся у дежурного персонала служб. В них
устанавливается порядок извещения и выезда работников МЧС на пожары, характер и
порядок работ, осуществляемых службой во время пожара, подчинённость
представителей службы руководителю тушения пожара, а также порядок взаимодействия
и информирования.
Коммунальная служба:
Согласование вопросов о временном перекрытии
улиц и проездов, уточнение названий улиц и проездов, правильной нумерации
домов, уточнения названия улиц и переулков, об устройстве подъездных тоннелей
через железнодорожные пути.
Энергослужба:
Согласуют порядок выезда на пожары аварийных
бригад, отключения наружных и внутренних электросетей, установок высокого
напряжения, особенно при пожарах на трансформаторных подстанциях и подобных
объектах. В небольших городах и некоторых объектах отключение отдельных
электросетей производится на центральном электрощите; следует особенно
тщательно следить, чтобы при этом не были отключены водо-насосные станции,
обеспечивающие подачу воды на тушение пожара.
Служба милиции:
Прибывают на пожары для поддержания порядка,
освобождают район пожара от посторонних лиц, охраняют эвакуированные
материальные ценности, при необходимости оказывают помощь в спасательных
работах и эвакуации имущества. Обеспечивают беспрепятственное следование пожарных
машин через перекрёстки, защиту рукавных линий от наездов техники.
Служба водоканала:
Прибывают на развившийся пожар и информируют
работников МЧС о количестве пожарных гидрантов, диаметре водопровода, а также
тип и вид водопровода. При участии работников водоканала водопровод на
максимальную водоотдачу и повышения давления на отдельных участках водопровода
за счёт пуска на насосных станциях дополнительных насосов-повысителей.
ОПЕРАТИВНО-ТАКТИЧЕСКАЯ ХАРАКТЕРИСТИКА ОБЪЕКТА
Пансионат для ветеранов Великой Отечественной
войны и труда располагается на территории 5 га, обнесен железобетонным забором.
На территории пансионата для ветеранов Великой Отечественной войны и труда
расположены: спальный корпус №1, спальный корпус №2, спальный корпус №3,
столовая, КНС, КПП. К пансионату также относятся, но не расположены на его
территории: 24-х квартирный жилой дом, гараж, котельная, одноквартирный жилой
дом.
Наружное противопожарное водоснабжение
обеспечивается от трех пожарных гидрантов, которые установлены на объектовой
сети с координатами:
ПГ-3 Контрольно-пропускной пункт (0-4,5-0)К-150.
Р-5,0 атм.
ПГ-4 На углу второго поворота к зданию второго
спального корпуса Т-100. Р-5,0 атм.
ПГ-5 Угол спального корпуса №3 (0-4,5-2,5)Т-100.
Р-5,0 атм.
На расстоянии 500-800метров имеются: один
пожарный резервуар емкостью 150 м3 с приемным колодцем и два пожарных гидранта
установленных на объектовой сети с координатами:
ПГ-1 Угол котельной (3,5-2-0)К-150. Р-5,0 атм.
ПГ-2 Угол котельной (0-2-2,5)К-150. Р-5,0 атм.
Расход воды (л/сек.) из водопроводной сети Т-100
и К-150 составляет:
|
Вид
и диаметр сети
|
Расход
воды из сети в зависимости от напора в ней
|
|
10м
|
20м
|
30м
|
40м
|
50м
|
60м
|
70м
|
80м
|
90м
|
|
Т-100
мм
|
10
|
14
|
17
|
21
|
24
|
26
|
29
|
32
|
35
|
|
К-150
мм
|
55
|
70
|
80
|
95
|
105
|
110
|
130
|
140
|
155
|
Спальный корпус №1
I.
Архитектурно-строительная часть: здание IV
СО, трехэтажное площадью 523 м2 с подвалом и чердаком. Планировка коридорного
типа. Стены кирпичные. Перегородки кирпичные. Перекрытия железобетонные плиты.
Кровля жестяная (металочерепица) по деревянной обрешетке. Подвал площадью 523
м2, высота подвала 2,5 метра. Входов в здание - 4, вход на чердак с каждой
лестничной клетки, в подвал с лестничной клетки с торца здания.
II.
Технологическая часть: в здании расположены жилые помещения, кухни и бытовые
помещения.
III. Внутреннее
противопожарное водоснабжение: обеспечивается от 12 пожарных кранов с
полугайками типа «Богданова», диаметром 51 мм. Рукава диаметром 51 мм, длиной
20 м, стволы «Б». Предусмотрены насосы повысители которые включаются в ручную
(имеются в каждом ПК магнитные пускатели). Водоотдача при включении насосов
повысителей равна 14 л/с.
IV. Установки
пожаротушения: отсутствуют.
V. Коммуникации:
- Электроснабжение освещения 220В
обесточивается путем отключения в электрощитах, электроснабжение силовое обесточивается
путем отключения в электрощитовой на каждом этаже (см. план здания);
- вентиляция - естественная;
отопление - центральное водяное,
котельная расположена в отдельном здании.
VI. Спасание и
эвакуация: корпус не заселен.
Спальный корпус №2
I. Архитектурно-строительная
часть: здание IV СО,
трехэтажное площадью 523 м2 с подвалом и чердаком. Планировка коридорного типа.
Стены кирпичные. Перегородки кирпичные. Перекрытия железобетонные плиты. Кровля
жестяная (металочерепица) по деревянной обрешетке. Подвал площадью 523 м2,
высота подвала 2,5 метра. Входов в здание - 4, вход на чердак с каждой
лестничной клетки, в подвал с лестничной клетки с торца здания.
II.
Технологическая часть: в здании расположены жилые помещения, кухни и бытовые
помещения.
III. Внутреннее
противопожарное водоснабжение: обеспечивается от 12 пожарных кранов с
полугайками типа «Богданова», диаметром 51 мм. Рукава диаметром 51 мм, длиной
20 м, стволы «Б». Предусмотрены насосы повысители которые включаются в ручную
(имеются в каждом ПК магнитные пускатели). Водоотдача при включении насосов
повысителей равна 14 л/с.
IV. Установки
пожаротушения: отсутствуют.
V. Коммуникации:
- Электроснабжение освещения 220В
обесточивается путем отключения в электрощитах, электроснабжение силовое
обесточивается путем отключения в электрощитовой на каждом этаже (см. план
здания);
- вентиляция - естественная;
отопление - центральное водяное,
котельная расположена в отдельном здании.
VI. Спасание и
эвакуация: корпус рассчитан на 45 человек, из них 4 - персонал пансионата. В
первую очередь проводится спасание лежачих больных и передвигающихся на
колясках. Согласно правил пожарной безопасности вышеперечисленные больные
распологаються на первом и втором этажах. На первом этаже установлен ревун. В
ночное время на первом этаже дежурит санитарный работник, в кабинете у него
находятся 7 носилок, на втором этаже дежурит медсестра у нее в кабинете 4
носилок. При необходимости спасание и эвакуацию производить звеньями ГДЗС с
начало со второго этажа, затем с первого с одновременной подачей стволов на
тушение пожара. Личный состав Столбцовского РОЧС собрать по сигналу «СБОР ПО
ТРЕВОГЕ».
Спальный корпус №3
I.
Архитектурно-строительная часть: здание IV
СО, двухэтажное площадью 956 м2 с цокольным этажом и чердаком. Планировка
коридорного типа. Стены кирпичные. Перегородки кирпичные. Перекрытия
железобетонные плиты. Кровля жестяная (металочерепица) по деревянной обрешетке.
Подвал площадью 956 м2, высота подвала 2,5 метра. Входов в здание - 7, вход на
чердак и цокольный этаж с каждой лестничной клетки.
II.
Технологическая часть: в здании расположены жилые помещения, кухни и бытовые
помещения.
III. Внутреннее
противопожарное водоснабжение: обеспечивается от 16 пожарных кранов с
полугайками типа «Богданова», диаметром 51 мм. Рукава диаметром 51 мм, длиной
20 м, стволы «Б». Предусмотрены насосы повысители, которые включаются в ручную
(имеются в каждом ПК магнитные пускатели). Водоотдача при включении насосов
повысителей равна 14 л/с.
IV. Установки
пожаротушения: отсутствуют.
V. Коммуникации:
- электроснабжение освещения 220В
обесточивается путем отключения в электрощитах, электроснабжение силовое
обесточивается путем отключения в электрощитовой на каждом этаже (см. план
здания);
- вентиляция - естественная;
отопление - центральное водяное,
котельная расположена в отдельном здании.
VI. Спасание и
эвакуация: корпус рассчитан на 53 человек, из них 8 - персонал пансионата. В
первую очередь проводится спасание лежачих больных и передвигающихся на
колясках. Согласно правил пожарной безопасности вышеперечисленные больные
распологаються на первом и втором этажах. На первом этаже установлен ревун. В
ночное время на первом этаже дежурит санитарный работник, в кабинете у него
находятся 9 носилок, на втором этаже дежурит медсестра у нее в кабинете 6
носилок. При необходимости спасание и эвакуацию производить звеньями ГДЗС с
начало со второго этажа, затем с первого с одновременной подачей стволов на
тушение пожара. Личный состав Столбцовского РОЧС собрать по сигналу «СБОР ПО
ТРЕВОГЕ».
КНС
I. Архитектурно-строительная
часть: здание IV СО,
двухэтажное площадью 91,3 м2 с подвалом, высота этажа - 3 м. Стены кирпичные.
Перегородки кирпичные. Перекрытия железобетонные плиты. Кровля жестяная
(металочерепица) по деревянной обрешетке. Подвал площадью 91,3 м2, с каждой
высота подвала 12,3 метра. Входов в здание - 2, вход в подвал по металической
лестнице из помещения первого этажа.
II.
Технологическая часть: производится перекачка хозяйственно-бытовых сточных вод,
ливневых стоков. В корпус КНС (канализационной насосной станции) жидкость
попадает самотеком, из корпуса она удаляется насосами. Внутри корпуса
монтируются трубы из нержавеющей стали, вентили, обратные клапана и насосное
оборудование.
III. Внутреннее
противопожарное водоснабжение: обеспечивается от 2 пожарных кранов с
полугайками типа «Богданова», диаметром 51 мм. Рукава диаметром 51 мм, длиной
20 м, стволы «Б». Предусмотрены насосы повысители, которые включаются в ручную
(имеются в каждом ПК магнитные пускатели). Водоотдача при включении насосов повысителей
равна 14 л/с.
IV. Установки
пожаротушения: отсутствуют.
V. Коммуникации:
- электроснабжение освещения 220В
обесточивается путем отключения в электрощитах, электроснабжение силовое
обесточивается путем отключения в электрощитовой на каждом этаже (см. план
здания);
- вентиляция - естественная;
отопление - центральное водяное,
котельная расположена в отдельном здании.
VI. Спасание и
эвакуация: количество работающих в дневное
время − 2 человека. При необходимости спасение и эвакуация производятся
звеньями ГЗДС, одновременно с подачей стволов на тушение.
Столовая
I.
Архитектурно-строительная часть: здание IV
СО, одноэтажное площадью 186 м2, высота этажа - 3,3 м. Стены кирпичные.
Перегородки кирпичные. Перекрытия железобетонные плиты. Кровля жестяная (металочерепица)
по деревянной обрешетке. Предусмотрено 5 входов в здание.
II.
Технологическая часть: осуществляется прием и приготовление пищи. В здании
находятся склады продуктов, разделочные, кухни.
III. Внутреннее
противопожарное водоснабжение: обеспечивается от 4 пожарных кранов с
полугайками типа «Богданова», диаметром 51 мм. Рукава диаметром 51 мм, длиной
20 м, стволы «Б». Насосы повысители отсутствуют.
IV. Установки
пожаротушения: отсутствуют.
V. Коммуникации:
- электроснабжение освещения 220В обесточивается
путем отключения в электрощитах, электроснабжение силовое обесточивается путем
отключения в электрощитовой (см. план здания);
- вентиляция - естественная;
отопление - центральное водяное,
котельная расположена в отдельном здании.
VI. Спасание и
эвакуация: расчитана на 100 человек, количество
работающих в дневное время − 10 человек. При необходимости спасение и
эвакуация производятся звеньями ГЗДС, одновременно с подачей стволов на
тушение.
КПП
I.
Архитектурно-строительная часть: здание IV
СО, одноэтажное площадью 12,2 м2, высота этажа - 3 м. Стены кирпичные.
Перегородки кирпичные. Перекрытия железобетонные плиты. Кровля жестяная
(металочерепица) по деревянной обрешетке. В здание - 1 вход.
II.
Технологическая часть: горючая загрузка - 2 кг/м2.
III. Внутреннее
противопожарное водоснабжение: отсутствует.
IV. Установки
пожаротушения: отсутствуют.
V. Коммуникации:
- электроснабжение освещения 220В
обесточивается путем отключения в электрощитах;
- вентиляция - естественная;
отопление - центральное водяное, котельная
расположена в отдельном здании.
VI. Спасание и
эвакуация: количество работающих в дневное
время − 2 человека. При необходимости спасение и эвакуация производятся
звеньями ГЗДС, одновременно с подачей стволов на тушение.
РАСЧЕТ СИЛ И СРЕДСТВ ДЛЯ ТУШЕНИЯ ПОЖАРА
Расчет сил и средств произведен по 2 вариантам:
1-й − тушение пожара в помещении второго этажа корпуса №2, 2-й - тушение
пожара в помещении первого этажа корпуса №3:
|
№
п/п
|
Наименование
показателей и их размерность
|
Результаты
расчета
|
|
|
I вариант
|
II вариант
|
|
1
|
Место
пожара
|
Помещение
второго этажа корпуса №2
|
Помещение
склада первого этажа корпуса №3
|
|
2
|
Сгораемые
вещества и материалы
|
Мебель
|
Мебель,
постельные принадлежности
|
|
3
|
Линейная
скорость распространения горения (м/мин)
|
1
|
1
|
|
4
|
Границы
пожара(объем) к моменту прибытия первого подразделения , м2
|
25,0
|
35
|
|
5
|
Огнетушащее
вещество и требуемая интенсивность его подачи (л/с*м 2)
|
Вода
0,15
|
вода0,15
|
|
6
|
Требуемая
интенсивность подачи огнетушащего вещества на защиту (л/с*м 2)
|
0,0375
|
0,0375
|
|
7
|
Требуемый
расход воды на тушение и защиту (л/с)
|
4,4
|
6,55
|
|
8
|
Фактический
расход воды на тушение и защиту (л/с)
|
21
|
21
|
|
9
|
Количество
стволов на тушение: «А».....................................
«Б».....................................
лафетных...........................
«СВП»............................... «ГПС-600»........................
|
-
1 - - -
|
-
2 - - -
|
|
10
|
Количество
стволов на защиту: «А»......................................
«Б»......................................
лафетных............................
«СВП»................................ «ГПС-600»..........................
|
-
5 - - -
|
-
4 - - -
|
|
11
|
Количество
личного состава (чел.)
|
25
|
23
|
|
12
|
Количество
звеньев ГДЗС (ГДЗС резерв)
|
6(1)
|
5(1)
|
|
13
|
Количество
отделений на основных и специальных пожарных автомобилях.
|
10
|
10
|
Основные формулы и справочные данные для расчета
сил и средств, необходимых для тушения пожара
Вариант №1
. На момент прибытия подразделений МЧС площадь
пожара составляет SТ = 25 м2.
. Определяем требуемый расход воды на тушение
пожара:
Q ТТР = SТ
∙ I ТТР = 25∙0,15=3,5
л/с
. Определяем количество стволов на тушение
пожара:
NТСТВ =QТТР
/ qСТВ = 3,5/3,5 = 1
ств «Б»
. Определяем требуемый расход воды на защиту:
Q ЗТР = SТ
∙ I ЗТР = 25∙0,0375=0,9
л/с
. Определяем количество стволов на защиту:
NЗСТВ =QЗТР
/ qСТВ = 0,9/3,5 = 1
ств «Б»
На защиту соседних помещений и проведение
эвакуации подаем два маневренных ствола РСК-50.
. На защиту 1 и 3 этажа, чердака подаём звеньями
ГДЗС по одному маневренному стволу РСК-50.
. Определяем численность личного состава:
NЛ.С = NЛ.СГДЗС
+ NЛ.ССВЯЗ + NЛ.СРАЗВ
+ NЛ.СПБ = 6∙3 +
1 + 4∙1 + 2∙1 = 25 человек
. Определяем количество звеньев ГДЗС:
NГДЗС= Nл/с/6
= 25/6 = 5 отделений
Вывод:
Для тушения возможного пожара необходимо привлекать
6 отделений на основной пожарной аварийно-спасательной технике.
Вариант №2
. На момент прибытия подразделений МЧС площадь
пожара составляет SТ = 35 м2.
. Определяем требуемый расход воды на тушение
пожара:
Q ТТР = SТ
∙ I ТТР = 35∙0,15=5,25
л/с
. Определяем количество стволов на тушение
пожара:
NТСТВ =QТТР
/ qСТВ = 5,25/3,5 = 2
ств «Б»
. Определяем требуемый расход воды на защиту:
Q ЗТР = SТ
∙ I ЗТР = 35∙0,0375=1,3
л/с
. Определяем количество стволов на защиту:
. На защиту 1 этажа, чердака и цокольного этажа
подаём звеньями ГДЗС по одному маневренному стволу РСК-50.
. Определяем численность личного состава:
NЛ.С = NЛ.СГДЗС
+ NЛ.ССВЯЗ + NЛ.СРАЗВ
+ NЛ.СПБ = 6∙3 +
1 + 2∙1 + 2∙1 = 23 человека
8. Определяем количество звеньев ГДЗС:
NГДЗС= Nл/с/6
= 23/6 = 4 отделений
Вывод:
Для тушения возможного пожара необходимо
привлекать 5 отделений на основной пожарной аварийно-спасательной технике.
ПРИМЕРНЫЕ БОЕВЫЕ ДЕЙСТВИЯ
Вариант №1 Пожар в помещении второго этажа
корпуса №2.
На пожаре создается три боевых участка.
БУ - 1: Эвакуация людей из здания. Обеспечение
путей эвакуации.
НБУ - 1 - командир первого отделения ПАСЧ №1 г.
Столбцы.
ЗАДАЧА: Предотвратить панику. Обесточить здание.
Задействовать обслуживающий персонал для эвакуации людей. АЦ на ПГ-4, проложить
магистральные линии к центральному входу, подать два ствола «Б» звеньями ГДЗС
на защиту эвакуационного пути со второго и третьего этажа по центральной
лестничной клетке. Эвакуацию людей со второго этажа осуществлять по лестничной
клетке в торце здания. Выставить пост безопасности. Принять меры по поднятию
уровня нейтральной зоны.
СИЛЫ: отделение ПАСП №15 д. Любковщина, первое и
второе отделения ПАСЧ №1 г. Столбцы.
БУ - 2: Тушение пожара.
НБУ - 2 - командир второго отделения ПАСЧ №1 г.
Столбцы.
ЗАДАЧА: АЦ ПАСП № 14 на ПГ-3, от установленных
разветвлений ПАСЧ 1-2 г. Столбцы подать маневренный ствол «Б» звеном ГДЗС на
тушение пожара в помещении второго этажа по центральной лестничной клетке.
Эвакуацию людей со второго этажа осуществлять по лестничной клетке в торце
здания.
СИЛЫ: отделение ПАСП №14 д. Скоморошки
БУ - 3: Защита смежных помещений первого,
второго и чердачного этажа.
НБУ - 3 - командир отделения ПАСП №12 д.
Старина.
ЗАДАЧА: Проложить резервные магистральные линии
от АЦ ПАСП №14 установленной на ПГ №3; от разветвлений установленных ПАСЧ №1-2
подать: маневренный ствол «Б» на защиту смежных помещений первого этажа через
центральный вход; подать маневренный ствол «Б» звеном ГДЗС на защиту смежных
помещений второго этажа по центральной лестничной клетке справой стороны от
горящего; подать маневренный ствол «Б» звеном ГДЗС на защиту чердачного
помещения. Организовать КПП. Создать резервное звено ГДЗС. От разветвлений
установленных ПАСП №14 подать маневренный ствол «Б» звенои ГДЗС на защиту
подвала.
СИЛЫ: отделения ПАСП №12 д. Старина (АЦ в
резерв), отделения ПАСЧ №1 г. Несвиж(АЦ в резерв), отделения ПАСЧ №2 г.п.
Мир(АЦ в резерв), отделения ПАСЧ №2 г.п. Городея(АЦ в резерв), отделения ПАСП
№13 д. Деревное(АЦ в резерв), ПАСП №11 г. Несвиж.
Примечание: согласно статьи 101 БУ (ТП)-2003, в
отдельных случаях (при проведении первоочередных аварийно-спасательных работ)
по решению РТП состав звеньев может быть уменьшен до двух человек, что и было
заложено в данном варианте.
Вариант №2 Пожар в помещении склада первого
этажа корпуса №3.
На пожаре создается три боевых участка.
БУ - 1: Эвакуация людей из здания. Обеспечение
путей эвакуации.
НБУ - 1 - командир первого отделения ПАСЧ №1 г.
Столбцы.
ЗАДАЧА: Предотвратить панику. Обесточить здание.
Задействовать обслуживающий персонал для эвакуации людей. АЦ на ПГ-5, проложить
магистральные линии к центральному входу, подать один ствол «Б» звеном ГДЗС по
центральной лестничной клетке на защиту эвакуационного пути со второго этажа.
Эвакуацию людей со второго этажа осуществлять по лестничным клеткам в торцах
здания. Выставить пост безопасности. Обеспечить поднятие уровня нейтральной
зоны.
СИЛЫ: отделение ПАСП №15 д. Любковщина, 2
отделения ПАСЧ №1 г. Столбцы.
БУ - 2: Тушение пожара.
НБУ - 2- командир второго отделения ПАСЧ №1 г.
Столбцы.
АЦ ПАСП №14 д. Скоморошки на ПГ-4 и от
разветвлений установленных ПАСЧ №1-2 подать два ствола «Б» звеньями ГДЗС на
тушение пожара в помещении склада первого этажа с центрального входа.
СИЛЫ : второе отделение ПАСЧ №1 г. Несвиж (АЦ в
резерв), отделение ПАСП №14 д. Скоморошки(АЦ в резерв), отделение ПАСП №12
д.Старина(АЦ в резерв).
БУ - 3: Защита смежных помещений второго,
чердачного этажа и подвала.
НБУ - 3 - Начальник караула ПАСЧ №2 г. Мир.
ЗАДАЧА: От разветвлений установленных ПАСП №14
подать: подать маневренный ствол «Б» звеном ГДЗС на защиту чердачного
помещения; от АЦ ПАСП №13 д. Деревное подать маневренный ствол «Б» звеном ГДЗС
на защиту смежных помещений подвала. Вход в подвал с противоположной стороны
здания. Организовать КПП. Создать резервное звено ГДЗС.
СИЛЫ: отделения ПАСЧ №2 г.п. Мир, отделения ПАСП
№11 г. Несвиж, отделения ПАСЧ №2 г.п. Мир, отделения ПАСЧ №2 г.п. Городея(АЦ в
резерв), отделения ПАСП №13 д.Деревное(АЦ в резерв).
Примечание: согласно статьи 101 БУ (ТП)-2003, в
отдельных случаях (при проведении первоочередных аварийно-спасательных работ)
по решению РТП состав звеньев может быть уменьшен до двух человек, что и было
заложено в данном варианте.
РЕКОМЕНДАЦИИ НАЧАЛЬНИКУ ШТАБА
НШ подчиняется РТП, является его заместителем,
обеспечивает выполнение решений РТП, возглавляет штаб и несет ответственность
за выполнение штабом задач по организации тушения пожара.
НШ обязан:
Ø изучить обстановку на пожаре путем
организации непрерывной разведки и получения данных от начальников БУ;
Ø доложить РТП результаты разведки и
сообщения об обстановке в ходе тушения пожара;
Ø самостоятельно принять решения в
случаях, не терпящих отлагательства, и осуществлять их с последующим докладом
РТП;
Ø произвести расстановку сил и средств
согласно решению, принятому РТП;
Ø вызвать при необходимости
дополнительные силы и средства;
Ø передать приказания РТП
руководителями подразделений;
Ø организовать связь на пожаре;
Ø обеспечить контроль за исполнением
приказаний РТП и штаба;
Ø создать резерв из прибывающих
подразделений;
Ø вызвать при необходимости
специальные службы города и организовать взаимодействие с ними;
Ø передать сведения на ЦОУ о пожаре;
Ø собирать сведения о причине
возникновения пожара и о боевых действиях подразделений;
Ø вести документы штаба;
Ø организовать питание и подмену
личного состава при длительной работе на пожаре;
Ø назначить при необходимости
заместителя начальника штаба.
Ø включить в состав штаба ЛЧС
представителя объекта.
РЕКОМЕНДАЦИИ РУКОВОДИТЕЛЮ ТУШЕНИЯ ПОЖАРА
РТП обязан:
Ø Произвести разведку и оценить
обстановку на пожаре по внешним признакам, обеспечить расстановку сил и
средств, предотвратить панику, немедленно организовать и лично возглавить
спасание людей, используя для этого имеющиеся силы и средства; уточнить у
представителей предприятия количество, находящихся в данное время на рабочих
местах;
Ø Определить решающее направление,
необходимое количество сил и средств, способы и приемы боевых действий;
Ø Создать на пожаре 3 боевых участка;
Ø Поставить задачи подразделениям,
организовать их взаимодействие и обеспечить выполнение поставленных задач;
Ø Непрерывно следить за изменениями
обстановки на пожаре и принимать соответствующие решения;
Ø В зависимости от обстановки
организовать штаб и определить место его расположения; информировать штаб о
месте своего нахождения и сообщать ему о всех принимаемых решениях; создать
резерв сил и средств, периодически подменять работающих, давая им возможность
отдохнуть, обогреться и переодеться в сухую одежду (при необходимости);
Ø Назначить из числа лиц
начальствующего состава ответственного за соблюдение мер безопасности; при
необходимости организовать пункт медицинской помощи;
Ø Организовать взаимодействие со
службами, привлекаемыми к тушению пожара, поддерживать постоянную связь с
администрацией и инженерно-техническими работниками объекта и принимать решения
о приемах и средствах тушения с учетом рекомендаций и инструкций объекта;
Ø При внесении изменений в расстановку
сил и средств на пожаре РТП должен принять решение о перегруппировке и довести
его до руководителей подразделений, указав, кому и каким образом производить
перегруппировку.
Ø РТП должен установить правильность
исполнения принятых мер по тушению пожара и определить, достаточно ли сил и
средств для его ликвидации на каждом участке.
РЕКОМЕНДАЦИИ ОТВЕТСТВЕННОМУ ЗА ЭВАКУАЦИЮ НА
ПОЖАРЕ
Выясняет:
Ø имеется ли угроза людям от огня и
дыма, в какой мере обстановка на пожаре может повлиять на успешную эвакуацию
людей;
Ø местонахождение людей, их
способность к самостоятельному выходу из помещений;
Ø пути и последовательность эвакуации;
Ø места, куда эвакуировать людей;
Ø размеры зоны пожара, степень
воздействия огня и дыма на пути эвакуации;
Ø какие имеются силы и средства и как
они могут быть использованы для эвакуации людей;
Ø необходимость защиты путей эвакуации
и возможность дымоудаления.
Обязан:
Ø всесторонне изучить данные разведки
и рекомендации персонала, сложившуюся обстановку, в какой мере она может
повлиять на успешную эвакуацию людей;
Ø принять меры к предупреждению
паники;
Ø следить за тем, чтобы пути эвакуации
не загромождались.
Основные способы спасания и эвакуации:
Ø самостоятельный выход людей в
безопасном направлении;
Ø вывод эвакуируемых в сопровождении
пожарных, если пути эвакуации
задымлены;
Ø вынос людей, не имеющих возможностей
самостоятельно передвигаться;
Ø спуск спасаемых по автолестнице или
ручным пожарным лестницам.
Для спасания и эвакуации используются кратчайшие
и безопасные пути:
Ø основные входы и выходы;
Ø запасные выходы;
Ø оконные проемы, балконы, лоджии с
применением автолестницы или ручных пожарных лестниц.
РЕКОМЕНДАЦИИ ОТВЕТСТВЕННОМУ ЗА ТБ НА ПОЖАРЕ
Ø Проследить за проведением
обесточивания зданий и помещений. Обесточивание сети разрезанием проводов
специальным инструментом допускать только после того, как другими приемами
(выключателем, рубильником) этого сделать нельзя и если напряжение в сети не
превышает 220 В.
Ø На период ведения разведки создать
резерв из л/с с АСВ для оказания помощи разведывательной группе. Контролировать
поддержание связи с разведчиками и время их пребывания в непригодной для
дыхания среде.
Ø При тушении следить за состоянием
несущих конструкций и перекрытий. Принимать меры, предупреждающие их обрушение:
· охлаждать непосредственно;
· экранировать водяной завесой;
· своевременно снимать нагрузку с
перекрытия;
Ø Установить единый сигнал тревоги для
отхода л/с при нарушениях геометрических размеров (появление заметных прогибов,
раскрытие трещин, оголение арматуры в железобетонных конструкциях, образование
трещин в каменных конструкциях.
Ø Обратить внимание на безопасность
л/с при работе на высоте (особенно в темное время и зимой). Во время работы на
покрытии следить за состоянием несущих конструкций.
Ø Обеспечить охрану мест сбрасывания
конструкций с высоты при их вскрытии и разборке.
РЕКОМЕНДАЦИИ НАЧАЛЬНИКАМ БОЕВЫХ УЧАСТКОВ
НБУ обязан:
Ø -производить непрерывную разведку и
докладывать РТП об обстановке на боевом участке;
Ø -руководить работой подчиненных ему
подразделений, обеспечить взаимодействие с соседним БУ;
Ø -обеспечить маневрирование и быструю
перегруппировку сил и средств при изменении обстановки на БУ;
Ø -принимать самостоятельные решения
по перестановке сил и средств обеспечивающие быстрейшую ликвидацию пожара на
БУ;
Ø -докладывать РТП о выполнении
поставленной задачи.
РЕКОМЕНДАЦИИ НАЧАЛЬНИКУ ТЫЛА
НТ назначается из числа начальствующего состава
и подчиняется РТП, начальнику штаба и отвечает за работу тыла на пожаре.
Основной задачей тыла на пожаре является
обеспечение подачи требуемого количества огнетушащих средств.
НТ обязан:
Ø произвести разведку водоисточников;
Ø организовать встречу и расстановку
на водоисточники прибывших АЦ, обеспечить подачу воды;
Ø организовать своевременное снабжение
техники ГСМ, а также при необходимости его доставку;
Ø обеспечить охрану рукавных линий, а
также взаимодействие с работниками милиции по регулированию движения
автотранспорта;
Ø вести учет работы пожарной техники,
расхода огнетушащих средств, составить схему расстановки ПА на водоисточники;
Ø организовать взаимодействие со
службами водоснабжения.
Наружное противопожарное водоснабжение
обеспечивается от трех пожарных гидрантов, которые установлены на объектовой
сети с координатами:
ПГ-3 Контрольно-пропускной пункт (0-4,5-0)К-150.
Р-5,0 атм.
ПГ-4 На углу второго поворота к зданию второго
спального корпуса Т-100. Р-5,0 атм.
ПГ-5 Угол спального корпуса №3 (0-4,5-2,5)Т-100.
Р-5,0 атм.
На расстоянии 500-800метров имеются: один
пожарный резервуар емкостью 150 м3 с приемным колодцем и два пожарных гидранта установленных
на объектовой сети с координатами:
ПГ-1 Угол котельной (3,5-2-0)К-150. Р-5,0 атм.
ПГ-2 Угол котельной (0-2-2,5)К-150. Р-5,0 атм.
Расход воды (л/сек.) из водопроводной сети Т-100
и К-150 составляет:
|
Вид
и диаметр сети
|
Расход
воды из сети в зависимости от напора в ней
|
|
10м
|
20м
|
30м
|
40м
|
50м
|
60м
|
70м
|
80м
|
90м
|
|
Т-100
мм
|
10
|
14
|
17
|
21
|
24
|
26
|
29
|
32
|
35
|
|
К-150
мм
|
55
|
70
|
80
|
95
|
105
|
110
|
130
|
140
|
155
|
РЕКОМЕНДАЦИИ РУКОВОДИТЕЛЮ ТУШЕНИЯ ПОЖАРА.
ВЗАИМОДЕЙСТВИЕ СО СПЕЦИАЛЬНЫМИ СЛУЖБАМИ
Порядок взаимодействия со службами при тушении
пожаров регламентировано специальными инструкциями, подписанными начальником
гарнизона РОЧС и руководителем соответствующей службы. Инструкции как
руководящие документы находятся у дежурного персонала служб. В них
устанавливается порядок извещения и выезда работников МЧС на пожары, характер и
порядок работ, осуществляемых службой во время пожара, подчинённость
представителей службы руководителю тушения пожара, а также порядок
взаимодействия и информирования.
Коммунальная служба:
Согласование вопросов о временном перекрытии
улиц и проездов, уточнение названий улиц и проездов, правильной нумерации
домов, уточнения названия улиц и переулков, об устройстве подъездных тоннелей
через железнодорожные пути.
Энергослужба:
Согласуют порядок выезда на пожары аварийных
бригад, отключения наружных и внутренних электросетей, установок высокого
напряжения, особенно при пожарах на трансформаторных подстанциях и подобных
объектах. В небольших городах и некоторых объектах отключение отдельных
электросетей производится на центральном электрощите; следует особенно
тщательно следить, чтобы при этом не были отключены водо-насосные станции,
обеспечивающие подачу воды на тушение пожара.
Служба милиции:
Прибывают на пожары для поддержания порядка,
освобождают район пожара от посторонних лиц, охраняют эвакуированные
материальные ценности, при необходимости оказывают помощь в спасательных
работах и эвакуации имущества. Обеспечивают беспрепятственное следование
пожарных машин через перекрёстки, защиту рукавных линий от наездов техники.
Служба водоканала:
Прибывают на развившийся пожар и информируют
работников МЧС о количестве пожарных гидрантов, диаметре водопровода, а также
тип и вид водопровода. При участии работников водоканала водопровод на
максимальную водоотдачу и повышения давления на отдельных участках водопровода
за счёт пуска на насосных станциях дополнительных насосов-повысителей.
Графическая часть