Реконструкция сервисного центра ООО 'Давпон' Форд Центр Коми по обслуживанию автовладельцев г. Сыктывкара
Оглавление
Введение
. Аналитическая часть
.1 Анализ рынка автосервисных услуг
.2 Факторы, влияющие на спрос
.3 Изучение структуры парка автомобилей
.4 Изучение конкурентов по основным
конкурентообразующим характеристикам
.5 Выбор предоставляемой услуги и целевого
сегмента на основе изучения рынка
.6 Описание основных отличительных особенностей и
конкурентных преимуществ своего предприятия
.7 Цели и задачи ДП
. Технологическая часть
.1 Расчет годового объема предоставляемых услуг в
выбранном сегменте рынка
.1.1 Расчет годового объема работ
.1.2 Расчет числа рабочих постов
.1.3 Расчет количества рабочих и служащих
.1.4 Расчет площадей зон ТО и ТР
.2 Описание характеристики процесса
предоставления услуги
.3 Определение потребности в оборудовании и
различного рода ресурсах
.3.1 Расчет потребности основных видов ресурсов
для технологических нужд
.4 Описание технологического процесса
предоставления услуги с учетом требуемого качества и индивидуальных запросов
клиентов
. Коммуникативная часть
.1 Суть кадровой политики
.2 Организация работы персонала занятого
реализацией услуги
.3 Организация работы с клиентом предложения по
привлечению клиентов
.3.1 Организация работы с клиентом
.3.2 Работа по привлечению клиентов
.4 Разработка медиа - плана
. Безопасность процессов оказания услуг
.1 Анализ опасных и вредных производственных
факторов, влияющих на качество предоставляемых услуг
.1.1 Пожаробезопасность
.1.2 Обеспечение санитарных норм в рабочей зоне
.2 Техническая безопасность услуги для клиента
.3 Экологическая безопасность проекта
.3.1 Загрязнение почвы образование отходов
.3.2 Загрязнение воды (сброс сточных вод)
.3.3 Загрязнение атмосферы
. Экономическая часть
.1 Расчет стоимости основных производственных
фондов
Стоимость основных производственных фондов
реконструируемого сервисного центра определяется по формуле, (руб.)
.2 Расчет текущих производственных затрат
.2.1 Определение затрат на материалы
.2.2 Расходы на приобретение топлива, воды,
энергии всех видов
.2.3 Определение расходов на содержание и
эксплуатацию основных средств
.2.4 Определение расходов на оплату труда
.2.5 Расчет суммы начисленной амортизации
.2.6 Прочие расходы
.3 Расчет себестоимости, прибыли
.4 Расчет финансово - экономических показателей
Заключение
Библиографический список
Приложения
Введение
Сегодняшний рынок автосервиса ориентируется, прежде всего, на
потребителя - человека и развивается в направлениях создания центров сервисного
обслуживания официальных дилеров, индивидуальных сервисных центров и их
объединений. При этом основными видами работ центров являются: подбор и продажа
автомобилей и их запасных частей, регламентное, регулированное и
реабилитационное обслуживание, оказание технической помощи на дорогах и в
аварийных случаях, эвакуация автомобилей, тюнинг, уход за автомобилями (мойка,
полировка, чистка салона, хранение и др.), утилизация (включая разборку
иномарок на годные детали и узлы) и прокат автомобилей, обслуживание
автомобилей по абонементу и с предоставлением заказчику постов
самообслуживания, обслуживание специальных автомобилей (автотуризм, транспорт
для инвалидов и др.).
Позиционирование любого сервисного центра на рынке
определяется работой на современном оборудовании, устойчивой поставкой запасных
частей, современным компьютерным обеспечением. Тенденциями рынка являются:
повышение разнообразия услуг (торговля запасными частями, сопутствующими
товарами, тюнинг, дополнительные услуги), участие страховых компаний в создании
сервисных центров, сокращение объёма механических работ.
В существующей рыночной обстановке с постоянно растущей
конкуренцией, все труднее обеспечить желаемый уровень доходности.
Наиболее сложной, но при этом
высокоэффективной мерой повышения доходности является расширение спектра услуг.
Эта мера позволяет, увеличить объем производимых работ. За счёт привлечения
новых клиентов.
Целью данного дипломного проекта является
реконструкция сервисного центра ООО «Давпон» Форд Центр Коми.
Для реконструкции сервисного центра
обслуживания авто владельцев необходимо решить ряд организационных,
производственных и финансовых задач в сочетании с маркетинговыми требованиями.
1. Аналитическая часть
.1 Анализ рынка автосервисных услуг
В настоящее время сфера услуг играет определяющую роль в
экономике развитых стран. Реформы в России привели к значительным изменениям в
национальной экономике, среди которых в первую очередь следует выделить
формирование сферы услуг. Она объединяет самостоятельные рыночные структуры,
способные профессионально удовлетворять спрос населения на услуги. Российский
рынок легковых автомобилей - один из наиболее динамично развивающихся секторов
потребительского рынка, демонстрирующий устойчивый рост. Повышение доходов
населения обеспечивает увеличение спроса кик на импортные, так и на российские
автомобили.
В настоящее время покупатели имеют возможность, используя
систему кредитования, приобретать более дорогую импортную продукцию, игнорируя
отечественную, тем более что отпускные на отечественные легковые автомобили,
вероятно, скоро сравняются с ценами на импортные, а качество российских
автомобилей улучшается незначительно.
В городе Сыктывкаре рынок авто сервисных услуг начал
развиваться сравнительно недавно за последние три года пак автомобилей
увеличился примерно на 28%. К нынешнему времени рынок постепенно насыщается и
по сравнению с данными трех летней давности процент продаж снизился. Так же
свою роль внес кризис. Хотя запуск программы по утилизации автомобилей
простимулировал продажу автомобилей. В нашем регионе по данной программе
продаются только марки автомобилей: Лада, Газ, Уаз, Шевролет Нива, Рено и Форд.
На сегодняшний день рынок авто сервисных услуг в нашем
регионе продолжает развиваться начинают осваиваться такие виды услуг как
дооборудование и тюнинг автомобилей, прокат автомобилей, продажа подержанных
автомобилей и т.д.
.2 Факторы, влияющие на спрос
Факторами, влияющими на спрос населения, в услугах
автотехцентра, являются:
- парк автомобилей, находящихся в личном
пользовании граждан и в собственности организаций, его общая численность и
структурные характеристики (распределение по маркам и моделям, величина
годового и общего пробега с начала эксплуатации, срок службы, общее техническое
состояние);
- насыщенность населения легковыми
автомобилями на текущий момент и на перспективу (авт./1000 жителей);
- уровень организации автотехобслуживания;
- насыщенность рынка услугами;
- пропускная способность автотехцентров;
- удаленность от места проживания клиентов и
потенциальных клиентов;
- уровень качества работ и обслуживания
клиентов;
- стоимость услуг, оснащенность запасными
частями и материалами;
- показатель динамики изменения насыщенности
населения автомобилями на ретроспективном периоде, т.е. за ряд лет до
рассматриваемого текущего момента времени;
- состояние дорожной сети, протяженность и
плотность автомобильных дорог и их состояние, интенсивность дорожного движения;
- качество горюче-смазочных материалов и
запасных частей;
- условия эксплуатации и хранения
автомобиля, уровень квалификации водителей, интенсивность дорожного движения и
др.;
Учет данных факторов, дает возможность более точно определить
картину спроса населения на услуги автотехцентров.
1.3 Изучение структуры парка автомобилей
За последние три года парк легковых автомобилей увеличился на
28%, это подтверждают данные ГИБДД приведенные в таблице - 1.
Таблица - 1 Сводная ведомость за 2007 - 2010г.
|
Год
|
Количество
автомобилей (шт.)
|
|
На 31.12.2007
|
44354
|
|
На 31.12.2008
|
46489
|
|
На 31.12.2009
|
49970
|
|
На 31.12.2010
|
62796
|
Рисунок 1. Изменение парка автомобилей по количеству
На рисунке - 2 представлена структура легкового парка
автомобилей по данным ГИБДД на 1.11.2010 г. в процентном соотношение из них:
Российского производства - 35029; Иностранного производства -
27079; Автомобилей в возрасте от 2 до 6 лет - 15197.
Рисунок - А.2 парк автомобилей г. Сыктывкара
.4 Изучение конкурентов по основным
конкурентообразующим характеристикам
Авто сервисные предприятия, выполняющие продажу, техническое
обслуживание и ремонт подвижного состава, должны систематически изучать
конкурентов. Для оценки конкурентоспособности необходимо систематически
проводить сравнение показателей ее работы с показателями основных конкурентов,
осуществляемых свою деятельность в том же сегменте рынка.
Конкурентоспособность обуславливается финансовым положением
предприятия, уровнем организации производства, состоянием маркетинговой
деятельности, технологическим уровнем производства, расположением предприятия,
квалификацией и уровнем культуры персонала и т.д. Чтобы быть
конкурентоспособным, предприятие должно обладать конкурентными преимуществами
перед другими субъектами рынка. Под конкурентными преимуществами предприятия
следует понимать реальные или потенциальные возможности, характеристики его
производственной, финансовой, маркетинговой и иной деятельности, позволяющей
предприятию в условиях конкурентной борьбы реализовать свои экономические
интересы с большей эффективностью, чем его конкуренты. Уровень авто сервисного
обслуживания должен отражать объем и структуру услуг (количественные
показатели) и качества предоставления этих услуг населению (качественные
показатели). Уровень конкурентоспособности предприятия в основном определяется
уровнем конкурентоспособности выполняемых услуг, что в свою очередь
обеспечивается степенью привлекательности услуг для конкретного потребителя.
Кроме того конкурентоспособность предприятия зависит от изменений во внешней
среде, включая конкурентов, а также от изменений в самой фирме, способствующих
росту ее эффективности по сравнению с другими фирмами.
Основными представителями рынка авто сервисных услуг в городе
Сыктывкаре являются:
- ООО «Давпон» он является официальным
дилером: Ford, Hyundai, Mitsubishi, Nissan, Chevrolet Niva, Kia, Chans. И торговлей автомобилей марок: Chery, Volvo, Toyota. Реализация проводится
через сеть сервисных центров.
- ООО «Авторесурс» занимаются продажей и
обслуживанием автомобилей марок: Fiat, Nissan, Fiat, Toyota, Ssang Yong. На сегодняшней день данная компания находится
на грани банкротства.
- ООО «Автотрейд - Коми» является дилером
автомобилей марки ВАЗ. Предоставляют обслуживание продаваемых автомобилей.
- ООО «Сыктывкар - Лада» занимаются продажей
и бслуживанием автомобилей марки ВАЗ, Chevrolet Niva.
- ООО «Техноторг» является официальным
дилером маки Chans, помимо этого занимаются продажей автомобилей тех марок и моделей
на которые идет спрос.
- ООО «Овен - авто» является официальным
дилером автомобилей марки: Renault, ГАЗ, УАЗ. Продажа автомобилей осуществляется в
двух автосалонах.
- ООО «Алекс - Моторс» являются официальным
дилером автомобилей марки: Chevrolet, Opel.
Для оценки конкурентоспособности предприятия
необходимо систематически проводить сравнение показателей ее работы с
показателями основных конкурентов, осуществляемых свою деятельность в том же
сегменте рынка. Это даст возможность принимать и реализовывать своевременные
решения, направленные на поддержание или повышения уровня конкурентоспособности
предприятия, ниже приведен конкурентный лист по услугам и ценам.
Таблица - А.2 Конкурентный лист
|
Услуги
|
Цены (руб.)
|
|
Форд Центр Коми
|
Конкурирующие
фирмы
|
|
|
ООО «Овен-Авто»
|
ООО
«Авторесурс»
|
ООО «Алекс -
Моторс»
|
ООО «Автотрейд
- Коми»
|
ООО «Техноторг»
|
ООО «Сыктывкар
- Лада»
|
|
1
|
2
|
3
|
4
|
5
|
6
|
7
|
8
|
|
Расстояние от
центра, км
|
3,7
|
2,3
|
2,2
|
2,3
|
4,2
|
1 км
|
20,4
|
|
Трейд-ин
|
По договору
комиссии
|
V
|
По договору
комиссии
|
-
|
-
|
-
|
-
|
|
Торговые
площади
|
V
|
V
|
V
|
V
|
V
|
-
|
V
|
|
Уровень
квалификации персонала
|
средний
|
низкий
|
низкий
|
низкий
|
средний
|
низкий
|
низкий
|
|
Наличие вывесок
и указателей
|
V
|
V
|
V
|
V
|
V
|
V
|
V
|
|
Наличие
тест-драйва
|
V
|
V
|
V
|
V
|
-
|
-
|
V
|
|
Наличие
рекламных буклетов
|
V
|
V
|
V
|
V
|
V
|
-
|
V
|
|
Уровень
автоматизации
|
высокий
|
высокий
|
низкий
|
средний
|
низкий
|
низкий
|
низкий
|
|
Буксировка,
эвакуация
|
-
|
V
|
-
|
V
|
V
|
-
|
V
|
|
Круглосуточная
техпомощь
|
-
|
-
|
-
|
в дневное время
|
-
|
-
|
-
|
|
Работа в
вечернее время
|
V
|
V
|
V
|
V
|
V
|
V
|
V
|
|
Работа в воскресенье
|
V
|
V
|
V
|
V
|
V
|
V
|
V
|
|
Мойка
автомобиля (комплексная)
|
400
|
450-550
|
440
|
550-840
|
Наружняя
|
350-500
|
350-500
|
|
Мойка двигателя
|
300
|
250
|
300
|
200-400
|
200-350
|
200-350
|
200-350
|
|
Проверка
приборов освещения
|
100
|
140
|
150
|
130
|
150
|
-
|
130
|
|
Проверка
тормозной системы на стенде
|
560
|
250
|
250
|
-
|
-
|
-
|
-
|
|
Техническое
обслуживание аккумуляторов
|
150
|
150
|
100
|
-
|
-
|
-
|
150
|
|
Проверка
токсичности отработанных газов
|
420
|
250
|
-
|
250
|
200
|
-
|
200
|
|
Диагностика
двигателя
|
1500
|
1200
|
1200
|
1500
|
700
|
500
|
600
|
|
Проверка
установки колес
|
200
|
1200
|
200
|
200
|
150-200
|
150
|
150
|
|
Заправка
кондиционеров
|
1500
|
2000
|
1500
|
1500
|
-
|
-
|
1500
|
|
ТО по
регламенту
|
6500-7500
|
5500-10000
|
5000-8000
|
6500-8500
|
4500-7000
|
4500-6000
|
5500-7000
|
|
Предоставление
подменного автомобиля
|
-
|
V
|
-
|
-
|
-
|
-
|
-
|
|
Льготное
обслуживание владельцев старых автомобилей
|
V
|
V
|
V
|
V
|
-
|
-
|
-
|
|
Установка
сигнализации
|
5000
|
2500
|
4500
|
5000-8000
|
3500-8000
|
2000-5000
|
2500-7000
|
|
Установка
автомобильной радиоаппаратуры
|
600-5000
|
475
|
700-5000
|
1000-4000
|
700-5000
|
700-5000
|
700-5000
|
|
Малярные работы
|
-
|
V
|
V
|
V
|
-
|
-
|
-
|
|
Кузовной ремонт
|
-
|
V
|
V
|
V
|
-
|
-
|
-
|
|
Консервация
полостей кузова
|
V
|
V
|
-
|
V
|
-
|
V
|
|
Антикоррозионная
обработка днища кузова
|
-
|
V
|
V
|
-
|
V
|
-
|
V
|
|
Комплексы услуг
по фиксированным расценкам
|
V
|
V
|
V
|
V
|
V
|
V
|
V
|
|
Шиномонтажные
работы
|
V
|
V
|
V
|
V
|
-
|
-
|
V
|
|
Предсезонное
(летнее, зимнее) обслуживание
|
V
|
V
|
V
|
V
|
V
|
V
|
V
|
|
Обслуживание
клиентов VIP
|
-
|
V
|
V
|
-
|
V
|
V
|
V
|
|
Проверка
электрооборудования
|
V
|
V
|
V
|
V
|
V
|
V
|
V
|
|
Срочный сервис
|
-
|
V
|
-
|
-
|
-
|
V
|
-
|
|
Срочный
кузовной ремонт
|
-
|
-
|
-
|
-
|
-
|
-
|
-
|
|
Срочные
малярные работы
|
-
|
-
|
-
|
-
|
-
|
-
|
-
|
|
Продажа
сопутствующих товаров
|
V
|
V
|
V
|
V
|
V
|
V
|
V
|
После сравнения показателей работы авто сервисных предприятий
города Сыктывкара. Проводим анализ конкурентоспособности услуги трейд - ин, для
определения и уточнения положения предприятия в конкурентной борьбе по
привлекательности данной услуги. Оценка конкурентоспособности производится
производится с помощью таблицы - 3. Оценка производится в сравнении с двумя
предприятиями ООО «Овен - Авто» и ООО «Авто ресурс» поскольку из всех имеющихся
конкурентов только они предлагают услугу трейд - ин.
Таблица - 3 Оценка конкурентоспособности
|
Наименование
услуги
|
Трейд-ин
|
|
Конкуренты
|
ООО
«Овен-Авто»
|
ООО
«Авторесурс»
|
|
Преимущества
|
|
1
|
2
|
3
|
|
Цена
|
0
|
+1
|
|
Качество
|
+2
|
+3
|
|
Быстрота
|
0
|
+3
|
|
Гарантия
|
+2
|
+3
|
|
Широта
диапазона
|
0
|
-3
|
|
Потенциал
|
+1
|
+3
|
|
Реклама
|
0
|
-1
|
|
Доступность
|
0
|
0
|
|
Коммуникабельность
|
0
|
0
|
|
Обходительность
|
+1
|
+1
|
|
Доверительность
|
+2
|
+3
|
|
Безопасность
|
0
|
+3
|
Примечание. Очки: лучше, чем услуги конкурента: +3,
аналогично 0, хуже до - 3.
По данным таблицы - 3 строим диаграмму рейтинга предприятий
относительно нашего предприятия.
Рисунок - 3 Диаграмма рейтинга предприятий
Полученная информация тщательно изучается, выявляются слабые
и сильные стороны в работе конкурентов. Затем разрабатывается стратегия
собственной фирмы, реализация которой позволит ей успешно
функционировать и развиваться.
1.5 Выбор предоставляемой услуги и целевого
сегмента на основе изучения рынка
В результате изучения структуры парка автомобилей города
Сыктывкара и рынка авто сервисных услуг ближайших конкурентов можно сделать
вывод, что у в ООО «Давпон» Форд Центр Коми в сравнении с конкурентами,
отсутствуют такие услуги как: кузовной ремонт, малярные работы, «трейд - ин».
Поэтому предлагается реализовать на базе данного техцентра
услугу «трейд - ин». Поскольку она требует наименьших материальных вложений:
- не требует реконструкции здания и
помещений;
- нет необходимости в закупке дорогостоящего
оборудования;
- основной объем работ будет выполнятся уже
имеющимися специалистами;
- опыт в реализации и обслуживании
автомобилей марки «Ford».
На сегодняшний день общее количество автомобилей в городе
Сыктывкаре в возрасте от 2 до 6 лет 15197. По диаграмме представленной на
рисунке - 2 можно предположить, что автомобилей марки Форд на 2011 год в городе
Сыктывкаре 3167 единиц, из них в возрасте от 2 до 6 лет 1870 единиц.
Однако рынок трейд - ин слабо развит по данным только 17%
автолюбителей в России пользуются этой услугой, следовательно на сегодняшний
день в городе Сыктывкаре имеется 318 потенциальных клиентов. В Европе 80%
автолюбителей пользуются услугой «трейд - ин». Рынок «трейд - ин» в России
развиваться будет поскольку за последние 3 года парк автомобилей в Сыктывкаре
увеличился на увеличился на 28%. Можно ожидать, что услугой «трейд - ин» в 2011
году воспользуется 18%, а в 2012 году 20% потенциально возможных клиентов
автолюбителей.
Таблица - 4 Прогнозирование потенциальных клиентов
|
Год
|
Количество
автомобилей от 2 до 6 лет
|
Количество
потенциальных клиентов
|
|
2011
|
1870
|
318
|
|
2012
|
2050
|
369
|
|
2013
|
2180
|
436
|
По данным таблицы - 4 построим диаграмму прогноза реализации
услуги «трейд - ин».
Рисунок - 4 Диаграмма прогноза реализации услуги
При привлечении такого количества потенциальных клиентов
загрузка производства по предпродажной подготовке и реализации новых
автомобилей увеличится примерно в 2 раза, что позволит значительно увеличить
прибыль при минимальных материальных затратах.
.6 Описание основных отличительных особенностей и
конкурентных преимуществ своего предприятия
Сравнив показатели данной таблицы - 2 видно, что ценовая
политика ближайших конкурентов (ООО «Овен - Авто», ООО «Авторесурс», ООО «Алекс
- Моторс») практически не отличается от ООО «Давпон» Форд Центр Коми. Но они
имеют ряд конкурентных преимуществ поскольку на базе этих автотехцентров
предоставляются такие услуги как: малярные работы, кузовной ремонт. Что делает
их боле привлекательными для авто владельцев. И как следствие предприятие несет
убытки потому, что его клиенты вынуждены обращаться к его конкурентам. Так же
проанализировав конкурентный лист наблюдаем, что только ООО «Овен - Авто»
предлагает услугу трейд - ин. Наличие данной услуги позволяет увеличить объем
продаж новых автомобилей, увеличить загрузку зон технического обслуживания и
ремонта не только за счет новых автомобилей, но и за счет проданных б/у
автомобилей.
ООО «Давпон» Форд Центр Коми имеет самый высокий уровень
квалификации персонала. Все сотрудники центра имеют аттестацию, полное
информационное обеспечение по обслуживаемым автомобилям. Все работы выполняются
с учетом рекомендаций завода - изготовителя. Высокий уровень автоматизации
процессов позволяет быстро и качественно выполнять работы по техническому
обслуживание и ремонту.
Не маловажную роль играет место расположение ООО «Давпон»
Форд Центр Коми находится в очень выгодном месте, все автомобили Республики
Коми выезжающие за пределы, двигающиеся через Сыктывкар проезжают мимо него.
Это значительно облегчает поиск сервисного центра для автотуристов. К тому же
неподалеку располагаются: гостиницы, АЗС, стоянка, магазины автоаксесуаров.
Рисунок А.5 - Генеральный план здания
1.7 Цели и задачи ДП
Целью данного дипломного проекта является реконструкция
сервисного центра ООО «Давпон» Форд Центр Коми по обслуживанию автовладельцев
г. Сыктывкара. Разработка услуги по «трейд - ин».
Для реализации цели дипломного проекта необходимо решить
следующие задачи:
. Произвести анализ рынка авто сервисных услуг в
городе Сыктывкаре:
- факторы, влияющие на спрос; изучение
структуры парка автомобилей;
- изучение конкурентов по основным
конкурентообразующим характеристикам;
- Описание основных отличительных
особенностей и конкурентных преимуществ проектируемого автосервиса.
2. Произвести:
- расчет годового объема
предоставляемых услуг в выбранном сегменте рынка;
- расчет количества рабочих
и служащих;
- расчет площадей помещений
(производственных и административно-хозяйственных).
Описать характеристики процесса
предоставления услуг. Определить потребность в оборудовании и различного рода
ресурсах. Описать технологический процесса реализации услуги с учетом
требуемого качества и индивидуальных запросов клиентов.
3. Изучить суть кадровой политики,
организовать работу персонала. Составить структуру управления предприятием.
Организовать работу с клиентом, предложения по привлечению клиентов.
Разработать медиа - план.
. Произвести анализ вредных
производственных факторов, влияющих на качество предоставления услуги.
Определить техническую безопасность услуги для клиента и экологическую
безопасность проекта.
. Произвести расчет технико -
экономических показателей проекта, расчет сроков окупаемости и рентабельности
проекта.
. Сделать выводы о целесообразности
проекта.
2. Технологическая часть
2.1 Расчет годового объема
предоставляемых услуг в выбранном сегменте рынка
2.1.1 Расчет годового объема работ
Годовой объем работ включает ТО,ТР, уборочно-моечные работы,
оценка и предпродажную подготовку автомобилей (при продаже автомобилей на СТО).
Годовой объем работ по ТО и ТР при проектировании
специализированной станции по марке автомобиля определяется:

(1)
где Tг - годовой объем работ, (чел.-час);
N - планируемое число автомобилей, обслуживаемых по услуге «трейд -
ин» проектируемой СТО в год;
L - суммарный среднегодовой пробег автомобиля;
t - удельная трудоемкость работ по ТО и ТР (чел.-час /1000 км)
Удельная трудоемкость ТО и ТР автомобилей (без учета
уборочно-моечных работ ) в соответствии с ОНТП 01-91 принимается:
Городские СТО -
автомобили легковые - среднего класса ТО чел.-ч на 1000 км. пробега - 1,0.

Годовой объем уборочно-моечных работ Тг.у.м.
определяется исходя из числа заездов d на СТО автомобилей в год и средней трудоемкости
работ tу.м.:

(2)
Обычно на СТО уборочно-моечные работы выполняются не только перед
ТО и ТР, но и как самостоятельный вид услуг, то общее число заездов на уборочно
- моечные работы d принимается из расчета одного заезда на
800 - 1000 км примем d c условием что мойка автомобилей будет выполнятся при оценке
автомобиля, выдаче новому хозяину и ТО, d = 2
Средняя трудоемкость одного заезда tу.м равна
0,1 - 0,25 чел.-ч при механизированной мойке (в зависимости от оборудования).
Принимаем tу.м = 0,45.

Годовой объем работ при предпродажной подготовке Тпп
определяется числом продаваемых автомобилей в год Nп, и
трудоемкостью tпп их обслуживания (3,5 чел.-ч).

(3)

Годовой объем работ приемки выдачи автомобиля Тп.в.
определяется числом определяется числом продаваемых автомобилей в год Nп, и трудоемкостью на один заезд tп.в. их
обслуживания (0,25 чел.-ч).

(4)

Годовой объем по оценки автомобиля Тоц. определяется
количеством автовладельцев воспользующихся услугой Nп, и
трудоемкостью оценки автомобиля на один заезд tоц. их
обслуживания (3,2 чел.-час)

(5)

Общий годовой объем работ для реализации услуги определяется:

(6)


(7)

2.1.2 Расчет числа рабочих постов
Для данного вида работ ТО и ТР число рабочих постов
определяется:

(8)
где Tвесь ТОиТР - годовой объем работ, чел.-ч;
φ - коэффициент неравномерности загрузки
постов принимается (φ = 1,15);
кп - доля постовых работ в общем объеме (0,75…0,85);
Драб.г - число рабочих дней в году;
Тсм - продолжительность смены, ч;
С - число смен в сутки;
Рп - среднее число рабочих на посту (Рп=
0,9…1,1);
ηп - коэффициент использования рабочего времени поста (ηп = 0,9).
На данных постах будут выполняться не только работы по ТО, но и
работы по предпродажной подготовке и 50% контрольно диагностических работ при
оценки стоимости автомобиля.
Определение числа постов уборочно - моечных работ:

(9)
где Xмумр
- число рабочих постов для выполнения коммерческой мойки при наличии
механизированной установки, ед.;
Nс -
суточное число заездов на мойку;
φм - коэффициент неравномерности поступления автомобилей на посты
коммерческой мойки (для СЦ до 10 рабочих постов - 1,3…1,5; от 11 до 30 -
1,2…1,3);
Тоб - суточная продолжительность работы участка, ч.;
Nу-
производительность моечной установки, авт/ч;
ηп - коэффициент использования рабочего времени поста (0,85 - 0,95);

(10)
Делаем вывод, что нет необходимости дополнительно оборудовать пост
уборочно - моечных данные работы будут выполнятся на уже имеющемся посту.
Расчет числа вспомогательных постов. Число постов на участке
приемки Хпр определяется в зависимости от общего годового числа
заездов автомобилей на СЦ и времени приемки автомобилей:

(11)
где N - общее число автомобилей, обслуживаемых
воспользующихся услугой СЦ;
φ = 1,1 - 1,5 - коэффициент неравномерности
поступления автомобилей;
Тпр = 8 - суточная продолжительность работы участка
приемки, ч.;
Апр = 2 - 3 - пропускная способность поста приемки,
авт./ч;
Для расчета числа постов выдачи автомобилей условно можно принять,
что ежедневное число выдаваемых автомобилей равно числу заездов автомобилей на
СЦ.
Делаем вывод, что нет необходимости в дополнительных постах
приемки выдачи автомобилей данная работа будет выполнятся на уже имеющихся
постах.
2.1.3 Расчет количества рабочих и служащих
К производственным рабочим относятся рабочие зон и участков,
непосредственно выполняющие работы по ТО и ТР. Различают технологически
необходимое (явочное) и штатное (списочное) число рабочих. Технологически
необходимое число рабочих обеспечивает выполнение суточной, а штатное число
рабочих -годовой производственных программ по ТО и ТР. Технологически
необходимое число рабочих определяется по формуле:

(12)
где Рт - технологически необходимое число рабочих,
(чел);
Тг - годовой объем работ по постам или участкам,
чел.-час;
Фт - годовой фонд времени технологически необходимого
рабочего при односменной работе, определяется продолжительностью смены и числом
рабочих дней в году, (час):

(13)
где Дкг - количество дней в текущем календарном году
(365);
Дв - количество выходных дней в году (104);
Дп - количество праздничных дней в году(12).

Поскольку работники будут выполнять не только работы по ТО, но и
работы по предпродажной подготовке и 50% контрольно диогнастических работ при
оценки стоимости автомобиля то:

принимаем равным 4.
Количество технологически необходимых работников уборочно-моечных
работ

Отсюда следует, что для уборочно - моечных работ нет необходимости
нанимать дополнительного работника, эта работа будет выполняться уже имеющимся
мойщиком.
Количество технологически необходимых работников для приемки
выдачи автомобилей

Отсюда следует, что для приемки выдачи автомобилей нет
необходимости нанимать дополнительного работника, эта работа будет выполнятся
уже имеющимися сотрудниками.
Количество технологически необходимых работников для оценки
стоимости автомобилей

принимаем равным 1.
Штатное число рабочих
Штатное число рабочих определяется по формуле:

(14)
где Рш - штатное число рабочих, (чел.);
Фш - годовой фонд времени штатного рабочего при
односменной работе. Определяется аналогично годовому фонду времени
технологически необходимого рабочего с учетом отпуска и невыходов по
уважительной причине, (час):

(15)
где Дкг - количество дней в текущем календарном году
(365);
Дв - количество выходных дней в году (104);
Дп - количество праздничных дней в году(12).
Дот - продолжительность отпуска - 24 дня;
Дуп - количество невыходов по уважительной причине - 14
дней;
Ксм. - количество смен (1);
Дпп - количество предпраздничных дней в году (3).

Поскольку работники будут выполнять не только работы по ТО, но и
работы по предпродажной подготовке и 50% контрольно диогностических работ при
оценки стоимости автомобиля то:

принимаем равным 4.
Штатное число рабочих для оценки стоимости автомобилей

принимаем равным 1.
Расчет количества мест ожидания
Количество мест ожидания ТО и ТР следует принимать из расчета 0,5
автомобиле-места на один рабочий пост. Места ожидания рекомендуется размещать
непосредственно в помещениях постов ТО и ТР автомобилей.
Для реализации данной услуги необходимо 2 автомобиле - места.
3.2.5 Расчет площадей зон ТО и ТР
Площадь зон ТО и ТР определяется по формуле:

(16)
где F - площадь участка, (м2);
fа -
площадь, занимаемая автомобилем в плане (по габаритным размерам), м2
(7,5);
- число постов только в зоне ТО и ТР;
Кп - коэффициент плотности расстановки постов;
Коэффициент Кп представляет собой отношение площади,
занимаемой автомобилями, проездами, проходами, рабочими местами, к сумме
площадей проекции автомобилей в плане. Величина Кп зависит от
габаритов автомобиля и расположения постов. При одностороннем расположении
постов Кп = 6-7. При двухсторонней расстановке постов и поточном
методе обслуживания может быть принят равным 4 - 5.
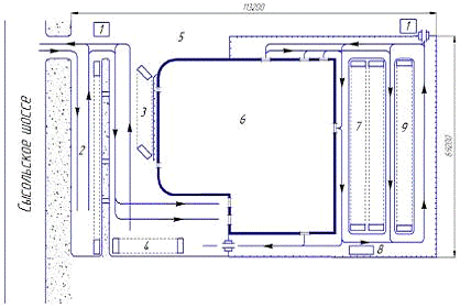
Рисунок А.6 - План размещения помещений
2.2 Описание характеристики процесса
предоставления услуги
Услуга «Trade-in» предусматривает возможность обмена подержанного
автомобиля на новый, либо другой подержанный с зачетом в его цене стоимости
подержанного автомобиля.
Для того чтобы автомобиль был принят по схеме «trade-in» необходимо чтобы он
соответствовал ряду требований:
- По услуге «trade-in» принимаются автомобили
марки Ford;
- Срок эксплуатации автомобиля, принимаемого
по услуге «Trade-in», не должен превышать 6 лет на дату выкупа автомобиля
автосалоном;
- Автомобиль должен быть в технически
исправном состоянии и иметь товарный вид.
Автомобили старше 6 лет, либо находящиеся в аварийном
состоянии, принимаются по усмотрению автосалона.
Если выше изложенные требования выполнены, то производится
оценка стоимости автомобиля. При этом выполняются следующие процедуры:
- внешний осмотр автомобиля;
- испытание автомобиля на ходу,
прослушивание;
- осмотр автомобиля с использованием средств
инструментального контроля;
- осмотр автомобиля на подъемнике.
В ходе выполнения данных процедур оценщик заполняет акт
технического состояния транспортного средства. По каждому повреждению в акте
оценщик указывает соответствующие виды ремонтных работ, объем которых
определяется экспертом по оценке при осмотре транспортного средства в
зависимости от характера и степени повреждения отдельных элементов с учетом
необходимости проведения сопутствующих работ.
После составления акта технического состояния транспортного
средства, он передается клиенту для ознакомления. При наличии замечаний акт по
согласию сторон корректируется и дополняется. После прочтения и учета замечаний
акт подписывается экспертом по оценке и заинтересованными лицами. После этого оценщик
заполняет оценочный лист.
Зачетная цена может быть скорректирована в случаях, если
Клиент самостоятельно устранит дефекты или снимет оборудование, дополнительно
установленное на автомобиль.
Окончательная Зачетная цена согласовывается с Клиентом и фиксируется
в Заявке на оказание услуги Trade-In;
Зачетная цена подержанного автомобиля может быть зачтена в
качестве:
− оплаты стоимости нового автомобиля;
− первоначального взноса в кредит при покупке
нового автомобиля;
− первоначального взноса в лизинг при
приобретении нового автомобиля;
− оплаты опционного оборудования к новому
автомобилю;
− оплаты услуг страхования нового автомобиля.
В случае отказа Клиента по любым основаниям от завершения
сделки по услуге «Trade-in» после проведения Детального технического осмотра подержанного
автомобиля Клиент оплачивает стоимость Детального технического осмотра
подержанного автомобиля и получает на руки Акт технического состояния
транспортного средства.
В случае согласия Клиента на завершение сделки по услуге Trade-In оплата стоимости
Детального технического осмотра подержанного автомобиля Клиента осуществляется
за счет средств автосалона.
Подержанный автомобиль, принимаемый по услуге «Trade-in», должен быть снят
Клиентом с регистрационного учета в органах ГИБДД.
Оплата Клиентом стоимости нового автомобиля производится в
соответствии с условиями Договора купли - продажи нового автомобиля. Оформление
договоров купли - продажи на сдаваемый и приобретаемый автомобиль производится
в течение одного рабочего дня.
После приобретения автомобиля автосалон производит его
предпродажную подготовку и доводит его до состояния когда автомобиль может
пройти ГТО, при этом обязательно меняются: масло, стеклоочистители, тормозные
колодки при необходимости, свечи зажигания, фильтра.
Автомобили, принятые автосалоном по услуге Trade-in, могут
быть:
- реализованы на вторичном рынке;
- предоставлены клиенту в качестве
«подменных» автомобилей на время ремонта основного автомобиля;
- использованы автосалоном в иных целях.
2.3 Определение потребности в оборудовании и
различного рода ресурсах
К технологическому оборудованию относятся стационарные и
переносные станки, стенды, приборы, приспособления и производственный инвентарь
(верстаки, стеллажи, столы, шкафы), необходимые для производственного процесса
сервисного центра. По производственному назначению технологическое оборудование
делится на: основное, комплектное, подъемно-осмотровое, подъемно-транспортное,
общего назначения и складское.
Для реализации услуги необходим минимальный набор оборудования
поскольку производится реконструкция функционирующего сервисного центра и все
контрольно диагностическое оборудование на нем уже присутствует. Необходимо
оборудовать универсальные посты на которых будет производиться осмотр
автомобилей при оценки стоимости их предпродажная подготовка и техническое
обслуживание.
Весь необходимое для этого оборудование и инструмент
представлены в таблице - 5:
Таблица - 5 Оборудование и инструмент
|
№ п.п.
|
Наименование
|
Модель
|
Производитель
|
Габаритные
размеры, мм
|
Кол., шт.
|
Цена, руб.
|
Стоимость, руб
|
|
1
|
2
|
3
|
4
|
5
|
6
|
7
|
|
1
|
Подъемник
ножничный
|
Е3500
|
SAFE Италия
|
1640х1950
|
1
|
107500
|
107500
|
|
2
|
Подъемник 2-х
стоечный электрогидравлический 4т.
|
209I/A
|
Werther - OMA Италия
|
3384х5000
|
2
|
132000
|
264000
|
|
3
|
Устройство для
вытяжки отработавших газов автомобиля
|
GEMINI2SVB0200
|
AERSERVICE
Италия
|
1650х570
|
1
|
45000
|
45000
|
|
4
|
Комбинированное
пневматическое устройство для сбора отработанного масла
|
839
|
ОМА Италия
|
ø 650
|
1
|
17000
|
17000
|
|
5
|
Трансмиссионная
стойка 500кг
|
T60101
|
AET Китай
|
Ø 700
|
1
|
5200
|
5200
|
|
6
|
Верстак
однотумбовый
|
01.100
|
Ferrum Россия
|
1390x686x845h
|
1
|
11623
|
11623
|
|
7
|
Верстак
двухтумбовый
|
01.202
|
Ferrum Россия
|
1900x686x845h
|
1
|
20532
|
20532
|
|
8
|
Стеллаж
|
-
|
Россия
|
2000х500х1700h
|
1
|
6300
|
6300
|
|
9
|
Тележка
инструментальная, 361 предмет
|
10217C361
|
Force Тайвынь
|
950х450х1100h
|
1
|
53800
|
53800
|
|
10
|
Набор
инструмента 128 предметов
|
S04H524128S
|
Jonnesway Тайвань
|
|
2
|
10300
|
20600
|
|
11
|
Набор
пневмоинструмента 66 предметов
|
PA-ATK-66
|
KT TOOLS Китай
|
|
3
|
6450
|
19350
|
|
12
|
Аккумуляторный
шуруповерт
|
DB3DL
|
HITACHI Япония
|
|
1
|
3460
|
3450
|
|
13
|
Пистолет для
накачки шин
|
PA-5515
|
KT TOOLS Китай
|
|
1
|
400
|
400
|
|
14
|
Продувочный
пистолет
|
PA-9662
|
KT TOOLS Китай
|
|
1
|
110
|
110
|
|
15
|
Съемник
реверсивный трехлапый масляного фильтра
|
KA-2003
|
KT TOOLS Китай
|
|
1
|
290
|
290
|
|
16
|
Съемник шаровых
опор
|
KA-3065
|
KT TOOLS Китай
|
|
1
|
490
|
490
|
|
17
|
Головка для
разбора стойки
|
KA-3076
|
KT TOOLS Китай
|
|
1
|
140
|
140
|
|
18
|
Съемник пружин
подвески Макферсона
|
KA-4001К
|
KT TOOLS Китай
|
|
1
|
540
|
540
|
|
19
|
Съемник шруса
|
KA-5005
|
KT TOOLS Китай
|
|
1
|
750
|
750
|
|
20
|
Съемник
подшипников ступицы
|
KA-5043
|
KT TOOLS Китай
|
|
1
|
3950
|
3950
|
|
21
|
Съемник хомутов
шрус
|
KA-6003
|
KT TOOLS Китай
|
|
|
230
|
230
|
|
22
|
Набор для смены
тормозной жидкости
|
KA-7194K
|
KT TOOLS Китай
|
|
1
|
3680
|
3680
|
|
23
|
Магнитная
накидка на крыло автомобиля
|
KA-6671
|
KT TOOLS Китай
|
|
3
|
550
|
1650
|
|
ИТОГО
|
586585
|
Рисунок А.7 - План размещения оборудования
2.3.1 Расчет потребности основных видов ресурсов
для технологических нужд
В данном разделе производится ориентировочный расчет расхода
воды, тепла, сжатого воздуха и электроэнергии для реализации услуги.
Расчет среднегодового расхода электроэнергии на работу
оборудования:

(17)
где Wг.с. - годовой расход электроэнергии на работу оборудования,
(кВТ);
Фд - действительный фонд рабочего времени оборудования
в часах = Фт;
Ра - мощность энергопотребителей, (кВт);
ήз - коэффициент загрузки оборудования (0,6 - 0,75).

(18)
где Руст. - мощность оборудования установленного на
участке, кВт;
ήс - коэффициент спроса учитывающий недозагрузку и не
одновременность работ электропотребителей, потери в сети и в электродвигателях.
Поскольку на участках где будет реализовываться услуга из
энергопотребителей только подъемники. Для подъемников ήс=0,1. Мощность оборудования принимаем из таблицы - 6.
Таблица 6 - Мощность оборудования
|
Наименование
оборудования
|
Количество
|
Мощность, кВт
|
|
Подъемник 2-х
стоечный электрогидравлический
|
2
|
1,8
|
|
Подъемник
ножничный
|
1
|
2,2
|


Определение годового расхода электроэнергии на освещение
Годовой расход электроэнергии на освещение рассчитывается
по формуле:

(19)
где Wосв - годовой расход электоэнергии на освещение, (Вт);
R - норма расхода электороэнергии, Вт/м2*ч;
Q - время работы освещения в течении года в районе г.Сыктывкара и
области = 2100 ч.;
Fуч -
площадь участка.
Для зоны ТО и ТР норма расхода элекроэнергии составляет 20 - 22
Вт/м2*ч, принимаем 21 Вт/м2*ч.

Что составляет 3969 кВТ
Определение годового расхода сжатого воздуха
Удельный расход сжатого воздуха принимаем из расчета на один
рабочий пост - 0,2 м3/ч

(20)
где Qв - удельный расход сжатого воздуха, (м3/ч);
Х - число постов.


(21)
где Qг - годовой расход сжатого воздуха, (м3);
Фп - фонд рабочего времени поста (1992 ч.).

Определение годового расхода воды
Вода потребляется на производственные и бытовые нужды. Вода, расходуемая на
производственные нужды, идет на
мойку автомобилей. Расход воды на бытовые нужды:
- для хозяйственно -
питьевых нужд в цехах со значительными тепловыделениями (более 80 кДж/м3)
- 35 л, в основных цехах - 25 л в смену на каждого работающего;
- для душевых 40 л в смену
на каждого работающего, продолжительность действия душа 45 мин. После каждой
смены;
- для групповых
умывальников: при загрязненных производствах 5 л,при чистых производствах 3 л
на процедуру.
Годовой расход воды на мойку автомобилей определяется по
формуле:

(22)
где Qп - годовой расход воды на мойку автомобилей, (л);
Тг.ум. - годовой объем уборочно моечных работ;
q - производительность оборудования, л/час;
ήз - коэффициент загрузки оборудования (0,2).
В ООО «Давпон» Форд Центр Коми применяют для мойки автомобилей
аппарат высокого давления без нагрева воды Karcher HD 13/18 S PL с максимальной
производительностью 1300 л/час.

Что составляет 74,4 м3.
Годовой расход воды на бытовые нужды определяем по формуле:

(23)
где Рт количество технологически необходимых работников
(4 - ТоиТР, 1- оценщик);
Драб.г - число рабочих дней в году (249);
qсут -
суточный расход воды на одного работника.
Расход воды для хозяйственно - питьевых нужд:

Что составляет 31,125 м3.
Расход воды для душевых:

Что составляет 39,84 м3.
Расход воды для групповых умывальников:

Что составляет 3,735 м3.
2.4 Описание технологического процесса
предоставления услуги с учетом требуемого качества и индивидуальных запросов
клиентов
Рисунок А.8 - Блок - схема производственного процесса
оказания услуги
Технологический процесс услуги начинается со встречи клиента,
клиент приходит либо самостоятельно, либо звонит. Продавец - консультант
автосалона: выясняет, какой автомобиль клиент планирует приобрести, какой сдать
в зачет. Разъясняет общие условия оказания услуги, убедившись, что клиент
серьезен в своих намерениях, записывает его на осмотр.
Оценщик оформляет заявку, знакомит Клиента с порядком
предоставления услуги «trade-in» в том числе сообщает Клиенту об условиях и
возникающих у Клиента затратах, сопутствующих проведению процедуры. Если
автомобиль в грязном виде он отправляется на мойку. Оценщик в это время
проводит проверку документов на автомобиль и права собственности лица в
отношении представленного автомобиля для чего проверяет свидетельство о
регистрации и паспорт транспортного средства на предмет соответствия номерных
агрегатов автомобиля с номерами указанными в соответствующих документах. Затем
проводит предварительный осмотр подержанного автомобиля:
- характеристики (тип кузова, возраст,
пробег, тип двигателя, мощность…);
- комплектация (защита, ГУР, подогрев
сидений, ABS, кондиционер…);
- визуальный внешний осмотр.
Все данные заносятся в заявку. После чего согласовывается с
клиентом предварительная зачетная цена подержанного автомобиля клиента. В
случае отказа клиента по любым основаниям от завершения сделки по услуге «trade - in» после проведения
предварительного осмотра подержанного автомобиля клиент оплачивает стоимость
мойки. Заносит данные Клиента и сдаваемого им автомобиля в базу «trade - in» с помощью программы
«Альфа - Форд».
Для определения окончательной зачетной цены подержанного
автомобиля оценщик согласовывает с клиентом и мастером - приемщиком время
проведения детального технического осмотра подержанного автомобиля клиента.
Оформляется наряд - заказ на проведение детального технического осмотра.
Оценщик самостоятельно и с помощью слесарей проводит детальный технический
осмотр транспортного средства. Все работы выполняются в соответствии с
регламентом работ, предусмотренным в акте технического состояния транспортного
средства.
По итогам проведения детального технического осмотра
подержанного автомобиля оформляет акт технического состояния транспортного
средства, заносит рекомендации о необходимости проведения и стоимости ремонтных
работ, стоимости запасных частей и расходных материалов.
На основании заявки на оказание услуги «trade - in» и акта технического
состояния транспортного средства оценщик оформляет оценочный лист.
Окончательная зачетная цена согласовывается с клиентом и фиксируется в заявке
на оказание услуги «trade - in».
В случае отказа клиента по любым основаниям от завершения
сделки по услуге «trade - in» после проведения детального технического осмотра подержанного
автомобиля клиент, оплачивает стоимость детального технического осмотра
подержанного автомобиля и мойки, получает на руки акт технического состояния
транспортного средства.
В случае согласия клиента на завершение сделки по услуге «trade - in» оплата стоимости
детального технического осмотра и мойки подержанного автомобиля клиента
осуществляется за счет средств автосалона. Подержанный автомобиль, принимаемый
по услуге «trade - in», должен быть снят клиентом с регистрационного учета в органах
ГИБДД. Оплата клиентом стоимости нового автомобиля производится в соответствии
с условиями договора купли - продажи нового автомобиля.
Оформление договоров купли - продажи на сдаваемый и
приобретаемый автомобиль должно производиться в течение одного рабочего дня.
Оценщик оформляет договор купли-продажи транспортного
средства на подержанный автомобиль клиента, принимает подержанный автомобиль
клиента по акту приема - передачи и направляет подержанный автомобиль на
предпродажную подготовку.
Сотрудник отдела продаж новых автомобилей оформляет договор
купли - продажи на новый автомобиль с учетом окончательной и зачетной цены принимаемого
по услуге «trade - in» автомобиля rлиента и следующих вариантов оплаты оставшейся части
стоимости нового автомобиля (на выбор Клиента):
- наличными в кассу автосалона или
безналичным перечисления на расчетный счет автосалона;
- с привлечением заемных средств за счет
банковского кредита;
- с привлечением заемных средств за счет
оформления договора лизинга.
Так же контролирует поступление денежных средств клиента за
новый автомобиль, организует процесс выдачи нового автомобиля клиенту.
автосервис рынок услуга клиент
Технологическая карта
|
Замена
тормозных колодок автомобиля Ford Focus II
|
Исполнитель -
слесарь 5-го разряда
|
|
№
|
Наименование
операции
|
Технические
требования и указания
|
Приборы,
инструмент, приспособления
|
Норма времени
чел*мин
|
|
1
|
2
|
3
|
4
|
|
1
|
Поднять
автомобиль, предварительно поставив на стояночный тормоз
|
На высоту 5 -
10 см от нижней точки колеса до пола, поставить на стопор
|
Подъемник 2х
стоечный грузоподъемностью не менее 2 т
|
1
|
|
2
|
Проверить
уровень тормозной жидкости
|
Если уровень
близок к max откачать часть жидкости
|
Шприц
медицинский или груша
|
2
|
|
3
|
Снять колеса
|
-
|
Гайковёрт
ручной пневматический ГОСТ 10210-83, головка торцовая 19 мм ГОСТ 29308-92
|
2
|
|
4
|
Поднять
автомобиль, предварительно снять со стояночного тормоза
|
-
|
Подъемник 2х
стоечный грузоподъемностью не менее 2 т
|
1
|
|
5
|
Снять зажим
правого тормозного суппорта. Вынуть тормозной шланг из кронштейна на стойке.
|
-
|
Плоскогубцы с
полукруглыми губками ГОСТ 17440-93
|
1
|
|
6
|
Вынуть защитные
колпачки направляющих осей суппорта
|
2 шт
|
Отвертка с
прямым шлицем, ГОСТ 24437-93
|
1
|
|
7
|
Вывернуть
направляющие оси суппорта
|
2 шт.
|
Гайковерт
угловой ручной пневматический ГОСТ 10210-83, вставка для винтов с
шестигранным углублением с наружным присоединительным шестигранником на 7мм.
|
2
|
|
8
|
Снять суппорт и
колодки
|
Подвесить суппорт
на проволоке к стойке чтобы не нагружать тормозной шланг
|
-
|
1
|
|
9
|
Произвести
чистку и осмотр деталей
|
Проверьте
тормозной диск на износ, наличие смазки, грязи и трещин. Допустимая толщина
18 мм.. Проверить состояние защитных пластмассовых втулок направляющих осей и
колпачков, при необходимости заменить.
|
Щетка,
штангельциркуль ГОСТ 166-89
|
3
|
|
10
|
Вдвинуть
поршень тормозного цилиндра
|
Тормозная
жидкость вытесняется из тормозного цилиндра в бачок. Не повредите защитное
уплотнительное кольцо поршня.
|
приспособление
Ford 206-005 (12-014)
|
3
|
|
11
|
Установить
колодки и суппорт
|
Внутренняя
тормозная колодка крепится к поршню суппорта пружинным зажимом. Очистите
контактные точки тормозных колодок.
|
-
|
2
|
|
12
|
Закрутить
направляющие оси суппорта
|
Усилие 28 Н*м,
смазать консистентной смазкой оси, смазать их резьбу анаэробным фиксатором
резьбы.
|
Гайковерт
угловой ручной пневматический ГОСТ 10210-83, вставка для винтов с
шестигранным углублением с наружным присоединительным шестигранником на 7мм.
Ключ динамометрический ГОСТ Р 51254-99, Смазка "ШРУС-4" ТУ
0254-001-05766706-98
|
2
|
|
13
|
Поставить
зажим, защитные колпачки осей суппорта, вставить тормозной шланг в кронштейн
|
-
|
-
|
2
|
|
14
|
Повторить
операции 5 - 13 для левой стороны
|
Аналогично, как
для операций 5 - 13
|
Аналогично, как
для операций 5 - 13
|
17
|
|
15
|
Снимите
крепежный зажим оболочки троса стояночного тормоза правого заднего колеса.
Отсоединить торос стояночного тормоза от рычага
|
Плоскогубцы ГОСТ
7236-93
|
2
|
|
16
|
Снять зажим
тормозного суппорта.
|
-
|
Плоскогубцы с
полукруглыми губками ГОСТ 17440-93
|
1
|
|
17
|
Вынуть защитные
колпачки направляющих осей суппорта
|
2 шт.
|
Отвертка с
прямым шлицем, ГОСТ 24437-93
|
1
|
|
18
|
Вывернуть
направляющие оси суппорта
|
2 шт.
|
Гайковерт
угловой ручной пневматический ГОСТ 10210-83, вставка для винтов с
шестигранным углублением с наружным присоединительным шестигранником на 7мм.
|
2
|
|
19
|
Снять суппорт и
колодки
|
Подвесить
суппорт на проволоке к стойке чтобы не нагружать тормозной шлан г
|
-
|
1
|
|
20
|
Произвести
чистку и осмотр деталей
|
Проверьте
тормозной диск на износ, наличие смазки, грязи и трещин. Допустимая толщина 8
мм.. Проверить состояние защитных пластмассовых втулок направляющих осей и
колпачков, при необходимости заменить. Осмотреть троса.
|
Щетка,
штангельциркуль ГОСТ 166-89
|
3
|
|
21
|
Вдвинуть
поршень тормозного цилиндра
|
Тормозная
жидкость вытесняется из тормозного цилиндра в бачок. Не повредите защитное
уплотнительное кольцо поршня. Для отвода назад поршня суппорта приложите к
нему давление одновременно с этим поворачивая поршень по часовой стрелке.
|
Приспособление
Ford 206-085 (12-006)
|
3
|
|
22
|
Установить
колодки и суппорт
|
Внутренняя
тормозная колодка оснащена шумоподавляющей пружиной начинайте установку с
нее. Очистите контактные точки тормозных колодок.
|
|
2
|
|
23
|
Закрутить
направляющие оси суппорта
|
Усилие 35 Н*м,
смазать консистентной смазкой оси, смазать их резьбу анаэробным фиксатором
резьбы.
|
|
2
|
|
24
|
Для сборки
оставшегося повторить операции разборки в обратной последовательности
|
-
|
-
|
4
|
|
25
|
Повторить
операции 15 - 24 для левой стороны
|
Аналогично, как
для операций 15 - 24
|
Аналогично, как
для операций 15 - 24
|
21
|
|
26
|
Опустите
автомобиль
|
Предварительно
снимите со стопора
|
Подъемник 2х
стоечный грузоподъемностью не менее 2 т
|
1
|
|
27
|
Произвести
контроль уровня тормозной жидкости
|
Несколько раз
сильно нажать на педаль тормоза при опущенном до упора вниз рычаге привода
стояночного тормоза. Долить жидкость до отметки max.
|
Жидкость тормозная
DOT4
|
1
|
|
28
|
Произвести
проверку правильности регулировки привода стояночного тормоза
|
до упора -
примерно 5 - 7 щелчков храпового устройства, если не соответствует
отрегулировать
|
-
|
1
|
|
29
|
Снять рамку
чехла рычага привода стояночного тормоза
|
Поддеть отверткой
|
Отвертка с
прямым шлицем, ГОСТ 24437-93
|
1
|
|
30
|
Открутить
контргайку и регулировочную гайку
|
Контргайку
снять, регулировочную до конца резьбы
|
Ключ
трещоточный для сменных головок с присоединительным квадратом ГОСТ 2242 - 92.
Удлинитель с присоединительным наружным и внутренним квадратом ГОСТ 25600 -
92. Головка торцовая 13 мм ГОСТ 29308 - 92.
|
1
|
|
31
|
Регулировка
стояночной тормозной системы
|
Рычаг опущен.
Вставьте щуп толщиной 0.7 мм между рычагом стояночного тормоза и опорой
тормозного суппорта с обеих сторон. Воспользовавшись помощью другого
механика, затянуть регулировочную гайку троса стояночного тормоза, пока не
будет наблюдаться перемещение одного из рычагов стояночного тормоза. По
вращать задние колеса и проверьте наличие прихватывания тормозов. Если прихватывание
тормозов ощущается проверить состояние тросов. Повторить регулировку.
|
Ключ
трещоточный для сменных головок с присоединительным квадратом ГОСТ 2242 - 92.
Удлинитель с присоединительным наружным и внутренним квадратом ГОСТ 25600 -
92. Головка торцовая 13 мм ГОСТ 29308 - 92. Щупы.
|
3
|
|
32
|
Произвести
сборку
|
Затянуть
контрагайку, поставить рамку чехла рычага привода стояночного тормоза. Момент
затяжки гайки не должен превышать 10 Нм.
|
Ключ
трещоточный для сменных головок с присоединительным квадратом ГОСТ 2242 - 92.
Удлинитель с присоединительным наружным и внутренним квадратом ГОСТ 25600 -
92. Головка торцовая 13 мм ГОСТ 29308 - 92
|
1
|
|
33
|
Поставьте
колеса
|
-
|
Гайковёрт
ручной пневматический ГОСТ 10210-83, головка торцовая 19 мм ГОСТ 29308-92
|
4
|
|
34
|
Проверить
эффективность работы тормозных механизмов на тормозном стенде
|
Разность усилий
не должна превышать 20 %
|
Стенд для
проверки эффективности тормозов СТЗ-3-СП-11
|
10
|
|
Общее время
|
105
|
3. Коммуникативная часть
.1 Суть кадровой политики
Успех фирмы зависит не от действий одного
человека, а складывается из взаимодействия между всеми сотрудниками. Если
клиенты вспоминают о предприятии, то вспоминают своих конкретных собеседников.
Кадры - основной капитал предприятия. Если оно располагает квалифицированными и
старательными исполнителями, то можно считать это большой удачей.
Для того чтобы выжить и процветать организации необходимо
иметь и регулярно получать соответствующее число работников с надлежащим
уровнем квалификации. Кадры являются душой организации. Именно люди создают или
разрушают организацию, люди, которые производят и поставляют изделия,
осуществляют техническое обслуживание. Игнорировать человеческие ресурсы не
может ни одна организация.
Надо заметить, что политика организации в области кадров
включает в себя не только набор кадров и их увольнение, но также и управление
людскими ресурсами. В организации управление людскими ресурсами включает в себя
следующие этапы:
- планирование;
- выбор персонала и кандидатов на рабочее
место;
- набор персонала;
- установление заработной платы и
стимулирования;
- профессиональная адаптация;
- обучение.
Планирование
Планирование потребности в кадрах является процессом поиска и
привлечения кадров, которые по своему мышлению и квалификации отвечают
современным требованиям. Поэтому руководитель, планируя потребность в кадрах,
должен прогнозировать ситуацию на рынке, определять, от каких специалистов
завтра будет зависеть успех, где их найти, как их подготовить и каким образом
поощрять. Он должен определить для себя уровень эффективности кадров: ведь
можно подобрать лучшие кадры и благодаря им добиться успеха, а можно не
заниматься всерьез кадрами и видеть в них причины неудач.
Естественный оборот персонала и планируемый рост активности фирмы
вынуждает обращаться к рынку рабочей силы несколько раз в год, несмотря на
стабильность фирмы. Главной задачей кадровой политики считается привлечение и
удержание широкой гаммы потенциальных служащих. Чем более кандидатов приходится
оценивать, тем больше шансов найти подходящего человека для конкретной работы.
Выбор персонала и кандидатов на рабочее место
Процесс подбора кадров - это их изучение с целью определения
пригодности выдвигаемых кандидатов для выполнения функциональных обязанностей
на определенной должности. Он включает в себя следующие основные виды работ:
- сбор информации о возможных кандидатах;
- оценку необходимых качеств кандидатов и
составление характеристики на каждого из них;
- сопоставление совокупности качеств
кандидатов и предъявляемых к ним требований;
- сравнение характеристик кандидатов на одну
должность и выбор более подходящего по качествам работника;
- назначение кандидата на должность;
- проверка в течение определенного времени
выполнения данным работником возложенных на него функций и принятие решения о
целесообразности его назначения на эту должность.
К сожалению, многие руководители
полагаются на интуицию и опыт. Но в этом случае везет не часто, а неудачный
выбор чреват осложнениями и напрасными затратами. Чтобы и руководитель, и
претендент при собеседовании конкретно представляли себе сферу деятельности и
задачи вакантной должности, следует руководствоваться заранее разработанными
квалификационными требованиями и описанием должностных обязанностей. Требования
к претенденту предполагают не только профессиональную подготовку, но и наличие
надлежащих личных качеств. Чем лучше продуманы и сформулированы все требования,
тем легче проверить, насколько претендент им соответствует.
Поиск кандидатов на замещение вакансий, особенно по ключевым
должностям, всегда должен начинаться с сотрудников собственного предприятия.
Этот путь связан с минимальными затратами времени и средств. Он же, как
правило, наименее рискован. Степень пригодности кандидата по профессиональным и
личным качествам в этом случае уже известна, как и его работоспособность,
сильные и слабые стороны. Еще одно преимущество - работник уже знает свою
фирму, своих коллег и фирменный стиль, а поэтому, как правило, может гораздо
быстрее полностью войти в курс дела. Выбор одного из членов коллектива всегда
стимулирует остальных, поскольку они убеждаются в возможности собственного
продвижения по службе.
Целесообразно попросить сотрудников о
содействии в поиске подходящих кандидатур среди знакомых - таким несложным
путем можно найти новых хороших работников.
При поиске вне предприятия используются
следующие средства:
- публикация объявлений, в
местных ежедневных газетах;
- публикация объявлений в
специализированных отраслевых периодических изданиях;
- просмотр объявлений о
поиске работы, публикуемых в ежедневных газетах и отраслевых периодических
изданиях;
- направление запросов
агентствам по трудоустройству и в службу занятости;
- поиск в кругу знакомых с
привлечением к такому поиску работников собственного предприятия.
Какой путь окажется наиболее
результативным, зависит от конъюнктуры рынка труда, от географического
положения предприятия и конечно же от уровня требуемой квалификации, от
репутации фирмы.
Однако при подборе кадров управления таким способом имеется
ряд существенных недостатков:
Во - первых, приглашение работника со стороны связано с
затратами, иногда большими, на повышение заработной платы приглашаемому
работнику, предоставление ему жилья, определенных льгот и т. п.;
Во - вторых, должно пройти определенное время, пока работник
адаптируется на новом месте: освоится с условиями производства, познакомится с
коллективом, его традициями, взаимоотношениями и прочее. В течение этого
периода трудно рассчитывать на эффективность работы этого руководителя;
В - третьих, приглашение руководителя со стороны, а не
выдвижение на вакантную должность работников данного предприятия, надеявшихся
на это, может отрицательно повлиять на их настроение, инициативу, погасить в
них стремление к приобретению навыков руководящей работы, повышению
квалификации и т. д.
Если существует возможность выбора между выдвижением
работника из резерва и приглашением его со стороны, то следует, при прочих
равных условиях отдавать предпочтение первому варианту. Работник из резерва в
большей степени, чем приглашенный знает организацию технику и технологию на
данном месте работы, сложившуюся структуру взаимоотношений в коллективе,
препятствия и “узкие места” в производстве.
Подбор руководителя со стороны может быть оправдан в том
случае, если на предприятии требуется совершенно иной подход к решению
управленческих задач, коренная перестройка организации производства, а иногда и
взаимоотношений в коллективе. Руководитель со стороны свободен от устоявшихся,
консервативных взглядов на традиционные на данном предприятии приемы и методы
решения управленческих задач и на него не будет оказывать давление характер
сложившихся в коллективе взаимоотношений.
Установление заработной платы и стимулирования
Основное в политике оплаты труда - держать
уровень платы труда ведущих специалистов, да и всего персонала несколько выше,
чем у конкурентов, чтобы не было текучести кадров.
Уходят не только люди, с ними уходит опыт,
который порой невозможно зафиксировать на бумаге и передать, уходят их личные
деловые связи, наконец - информация, которую нежелательно выпускать за пределы
фирмы.
Уйти специалисты могут только к
конкурентам, если не будут менять профессию, это значит, что конкуренты
усилятся и вам нужно будет предпринимать дополнительные меры по повышению
конкурентоспособности, а это - расходы.
Дешевле повысить зарплату нужному специалисту, не дожидаясь,
когда он сам будет на этом настаивать, ибо нередко люди остро поднимают вопрос
о повышении зарплаты либо морально готовые к тому, чтобы уйти, либо уже
нашедшие место и предпринимающие последнюю попытку, чтобы оправдать свое
решение в своих глазах и в глазах коллег. Систему оплаты труда в зарубежных
компаниях предпочитают делать такой, чтобы каждый сотрудник знал, что
заработная плата будет регулярно увеличиваться по мере повышения квалификации,
при добросовестной работе и т. п.
Система оплаты должна быть как можно проще и понятнее.
Система может усложниться, если она будет вознаграждать сотрудника в
зависимости от его достижений по нескольким направлениям. Полностью
фиксированная зарплата привлекательна для неуверенных в себе и ленивых
сотрудников, а для предприимчивых и способных такая зарплата нежелательна, так
как она устанавливает для них несправедливый потолок вознаграждения.
Фирма может менять систему оплаты при изменении условий рынка
или при внутренних реорганизациях, но частые изменения нежелательны - у опытных
работников могут возникнуть трудности адаптации к новой системе, а сам факт
изменения системы оплаты означает, что она может изменяться и в будущем, а это
снижает доверие персонала.
Методы оплаты труда всех сотрудников стараются разработать
так, чтобы задания были достижимы и предусматривали вознаграждения именно за
дополнительные усилия. Задания и метод оплаты должны обеспечивать
справедливость выплат как для сотрудников, так и для фирмы.
Система оплаты труда должна быть построена так, чтобы каждый
служащий благожелательно относился к каждому клиенту - если он будет понимать,
что его благополучие зависит от того, придут ли снова клиенты на сервис или
покупатели в магазин или пройдут мимо и знакомым отсоветуют приходить, он
поневоле научится по - другому относиться к посетителям.
Система поощрений строится так, чтобы
дополнительную оплату люди получали за дополнительные усилия. Премирование за
выполнение плана, т. е. за нормальную работу, развращает людей, завышает их
мнение о своей значимости для фирмы, приводит к падению производительности
труда. Вариантом премирования могут быть разовые подарки в виде денег, ценных
бумаг, путевок с проездными билетами в турпоездки, дома или базы отдыха или,
если известно, что это нужнее, на лечение и т. п.
Моральное поощрение применяется
обязательно - поздравления с днями рождений и другими значимыми датами. Юбилеи
могут отмечаться за счет фирмы.
Предприятие, поощряющее рационализацию,
имеет преимущества: положительное влияние на атмосферу внутри предприятия -
сотрудников радует, что востребуется их мнение, а не только их рабочая сила,
это усиливает желание работать и сознание ответственности. И помнить, что
каждое полезное предложение должно быть вознаграждено - хотя бы похвалой,
высказанной на совещании. Формирование у сотрудников чувства сопричастности
общему делу стимулирует возникновение у них на основе опыта и интуиции
предложений, позволяющих что - то улучшить или удешевить в работе предприятия.
Существуют три мотивационные составляющие
при стимулировании труда. Первая - вера подчиненных в то, что их усилия
повлияют на результат; вторая - уровень зарплат и комиссионных и третья -
нематериальные стимулы. Но при этом у каждого свои ожидания и надежды,
связанные с работой.
При недостаточном стимулировании
сотрудники не работают с должной отдачей, даже имея надлежащую профессиональную
подготовку и навыки.
Стимулирование может быть недостаточным по
разным причинам, не только из-за низкой оплаты труда. Более значимы
долговременные факторы:
- признание успехов и
ценности работника;
- раскрытие его личных
возможностей;
- социальная защищённость;
- возможность продвижения
по службе;
- нормальный микроклимат в
трудовом коллективе;
- правильный тон в
обращении руководителей с сотрудниками.
В этих факторах - большие резервы
стимулирования, которые на каждом предприятии реализуются по - своему.
Весьма полезно соблюдение руководителями
следующих требований:
- положительный настрой по
отношению к сотрудникам;
- проницательность,
позволяющая правильно оценивать
и учитывать чувства, пожелания и потребности конкретных работников;
- готовность к общению со
всеми сотрудниками, умение внимательно слушать и относиться к собеседнику с
пониманием.
Систему наказаний стараются сделать как
можно мягче, чтобы не нарываться на судебные дела, возбужденные сотрудниками
или профсоюзами. Обычно наказания укладываются в лишение премий или
дополнительных выплат, которые обычно трудовыми контрактами не оговариваются
как обязательные. Лишь при нанесении сотрудником ущерба фирме, который можно
будет доказать в суде, с него могут удерживать разумные суммы в возмещение
убытков с его согласия, иначе ему придется оплачивать еще и судебные издержки.
Если же ущерб так велик, что не может быть возмещен из зарплаты, фирма может
подать в суд для обращения взыскания на имущество виновного.
Профессиональная ориентация
Профессиональная ориентация является процессом, в результате
которого работник выполняет в организации ту работу, к которой он наиболее
пригоден.
При правильной профессиональной ориентации человек делает
свою работу более продуктивно по сравнению с другими работами. В этой работе
человек реализует себя и свои способности в большей степени, чем в другой. Он
чувствует себя наиболее естественно в том случае, если он естественно
воспринимает производственную среду.
Поэтому перед руководителем автосервиса стоят более сложные
задачи - он должен определить и развить в меньшей степени развитые и не ярко
выраженные способности. Для таких профессий, которые считаются простыми и к
которым способно большее количество людей, нет потребности разрабатывать
специальные тесты, а необходимо просто развивать навыки. Методами такого
развития могут быть теоретическое и практическое обучение, соревнования на
лучшего по профессии, наблюдение и сравнение результатов работы и т.д. Развитие
кадров должно быть постоянным потому, что постоянно изменяются условия труда,
его предметы и методы.
Не так просто адаптироваться такому человеку и к современному
оборудованию: оно очень хрупкое и сложное. Для того чтобы кадры, которые имеют
опыт, воспринимали новое без страха, они должны постоянно обучаться и должны
быть готовы к изменениям. Работа руководителя состоит в том, чтобы обеспечить
эту готовность. Не менее важна и социальная адаптация, которая определяется как
"процесс восприятия доктрины", осознания того, что является важным в
организации и ее подразделениях. Каждый монастырь имеет свой устав.
Начальный период взаимоотношений между организацией и
работником характеризуется тем, что каждый видит удовлетворение своих надежд:
работник видит в организации возможность удовлетворения своих потребностей и
ожиданий, а организация надеется на то, что она нашла как раз того работника,
который удовлетворяет ее потребности.
И только по истечении времени возникает ситуация,
показывающая, что ожидания не вполне оправданы. Это приводит к "выяснению
отношений", в процессе которых происходит (или не происходит)
"притирка" организации и работающего. Руководителю следует понимать,
что этот процесс неизбежен и что он должен обеспечить процесс адаптации.
Методом адаптации может быть и официальное знакомство с организацией, и
неформальные отношения. В этой ситуации хорошую роль может сыграть неформальный
лидер, через которого руководитель может добиться от работника желаемого
восприятия организации. Влияние на работника может быть доминирующим из того
источника, который сильнее. Например, если новый сотрудник по работе постоянно
общается с работником, отрицательно воспринимающим организацию, возможен
отрицательный результат его адаптации.
Обучение
Зарубежная практика работы с персоналом исходит из того, что
успех фирмы зависит от деловых качеств и способностей сотрудников. Обучить
служащих стать компетентными работниками - серьезная задача, не решаемая
быстро. Обучение и переподготовка персонала дилеров является не рекомендацией,
а требованием поставщиков. Считается аксиомой, что каждому сотруднику
товаропроводящей системы нужно учиться. Новичкам - знакомиться с системой и
порядками в фирме, уже работающим - периодически повышать квалификацию,
осваивать ремонт новых моделей машин, или новых агрегатов, или более сложной
работы, для ознакомления с изменениями в торговой политике фирмы, для
устранения причин жалоб клиентов.
Фирмы, стремящиеся удержаться на рынке, направляют
сотрудников на обучение. В достаточной степени в развитии заинтересован сам
персонал. Его заинтересованность не всегда означает возможность. Эту
возможность должна предоставить организация. К предоставлению и стимулированию
возможностей и сводится работа организации по развитию персонала.
Концепция подготовки кадров, реализуемая автокомпаниями,
поддерживает квалификацию персонала, занятого в автосервисе, на уровне
требований рынка и престижа машин. Объем и сложность учебной подготовки
определяются с ориентацией на обслуживание клиентов различных категорий.
Процесс реализуется по трем направлениям:
- курсы и семинары (организуемые вне
предприятия);
- обучение на предприятии;
- самостоятельное обучение.
Обучение новых рабочих зависит от
конкретных условий, но общий порядок таков: объяснить работу, показать, как ее
выполнять, объяснить, как и почему так делать, дать поработать под наблюдением,
часто наблюдать за его работой, пока не убеждены, что он все понимает, часто
беседовать с ним для передачи ему новой информации, используя руководство по
ремонту, техбюллетени и т.п.
Ответственность за обучение на каждом
этапе поручается конкретному компетентному сотруднику. Для обучения на работе
это бригадиры, старшие механики и механики. Обучение работе с новыми моделями
машин, новым оборудованием, новым методам проводят инструкторы в центрах
обучения заводов или дистрибьюторов. Контролируется применение знаний,
оценивается эффективность их применения. Оценивается и качество обучения, и преподавательские
способности инструктора.
3.2 Организация работы персонала занятого
реализацией услуги
Рисунок - А.9 Организационная структура ООО «Давпон» Форд
Центр Коми
Подразделение по торговле автомобилями выполняет следующие
функции.
Исчерпывающее освоение потенциала рынка по реализации новых и
подержанных автомобилей. Достижение показателей сбыта, согласованных с
руководством предприятия.
Организация торговли подержанными автомобилями, с эффективной
предпродажной подготовкой и минимальным временем простоя в ожидании покупателя.
Организация обслуживания в торговом зале на уровне,
оправдывающем ожидания всех покупателей новых и подержанных автомобилей.
Руководитель отдела продаж
Руководитель отдела по продажам автомобилей организует в
автотехцентре современную систему закупок и продаж автомобилей. Организует
участие сотрудников отдела в формировании маркетинговой системы в области
продаж автомобилей. Организует закупки и сбыт автомобилей, поставку
потребителям в сроки и объёмы в соответствии с заказами и заключёнными
договорами. Организует контроль за своевременным поступлением заказанных
автомобилей и своевременной предпродажной подготовкой автомобилей, на которые
поданы заявки.
Выполняет в процессе организации продаж все правила,
установленные «Положением о торговой политике». Контролирует также оформление
необходимых документов и передачу оплаченных автомобилей покупателям.
Обеспечивает своевременное поступление средств за реализованный товар и
предоставленные услуги. Участвует в рассмотрении поступающих претензий
покупателей и подготовке отчётов на предъявленные иски, а также претензий
потребителям при нарушении ими условий договора. Контролирует своевременное
устранение недостатков, указанных в поступающих от потребителей рекламациях и
претензиях. Устанавливает служебные обязанности для подчинённых, обеспечивает
их исполнение. Составляет должностные инструкции для своих подчиненных, по
необходимости вносит в них изменения, и утверждает эти изменения в соответствии
с установленной процедурой.
Участвует в организации, разработке и проведении рекламных
мероприятий в средствах массовой информации:
- контролирует своевременное предоставление
полной информации о рекламной политике автоцентра сотрудникам отдела;
- своевременное ознакомление их со всеми
новыми видами рекламной продукции, сроками выхода рекламы в СМИ;
- организует выполнение методических
рекомендаций отдела маркетинга по способам общения с потребителями в связи с
новыми рекламными предложениями, доводит эти рекомендации до персонала и
контролирует их выполнение.
Ведет работу с кадрами. Занимается настроем подчиненных на
достижение целей предприятия, касающихся обслуживания клиентов, освоения рынков
и рентабельности торговли. Формирование и стимулирование коллектива продавцов.
Создание и поддержание у подчиненных общего положительного настроя, с
нацеленностью на удовлетворение потребностей клиентов и на успех предприятия.
Менеджер по продажам автомобилей
Встречает покупателей в салоне продаж, помогает
сориентироваться в предлагаемом ассортименте автомобилей. Проводит для каждого
потенциального покупателя краткое рекламное представление предлагаемых
автомобилей, предоставляя информацию о технических характеристиках и их
потребительских свойствах. Провожает покупателей на стоянку автомобилей,
знакомит их с предлагаемыми к продаже автомобилями. Если на стоянке нет того
автомобиля, который желает приобрести покупатель, оформляет заявку на желаемый
автомобиль и сообщает о сроке и условиях выполнения заявки. Помогает покупателю
принять решение о покупке. Объясняет преимущества приобретения автомобиля в
авто центре, предоставляя покупателю информацию обо всех предлагаемых скидках,
условиях и возможностях гарантийного обслуживания. Сообщает каждому
потенциальному покупателю о возможностях комплекса авто услуг автоцентра и
приглашает воспользоваться услугами автосервиса. Сопровождает беседу с
покупателем демонстрацией каталогов, прайс-листов и всеми имеющимися в
распоряжении менеджера по продажам рекламными материалами. Во всех ситуациях
действует технологично, применяя современные техники продаж и привлечения
покупателей. Прощается с покупателем, оплатившим приобретенный автомобиль,
приглашает его воспользоваться услугами автосервиса во время гарантийного и
после гарантийного обслуживания. Знакомит с порядком работы автосервиса и с
условиями гарантийного обслуживания.
Участие в разработке и проведении рекламных мероприятий:
рассылает в адрес потенциальных клиентов каталоги и прайс-листы; организует
обзвоны потенциальных покупателей и личные встречи. Постоянно ведет поиск
потенциальных покупателей, работает с теми, кто обратился в автоцентр,
заключает с ними договора, и стремится приобрести в их лице постоянных
покупателей. Изучает предложения поставщиков, знакомится с условиями доставки и
отправки автомобилей. Поддерживает связи с поставщиками, отслеживает изменения
в поданных заявках. Контролирует сроки и условия выполнения поставок
автомобилей. Оформляет первичные документы на поступивший и проданный товар.
Участвует в подготовке планов на реализацию автомобилей и услуг,
предоставляемых автоцентром, проведении маркетинговых исследований по изучению
спроса на продаваемые автомобили, перспективы развития рынка сбыта. Отвечает на
телефонные звонки, даёт полную исчерпывающую информацию потребителям об уровне
цен, видах предлагаемых автомобилей и предоставляемых услугах. Участвует в рассмотрении
поступающих претензий покупателей и подготовке отчётов на предъявленные иски, а
также претензий потребителям при нарушении ими условий договора. Контролирует
своевременное устранение недостатков, указанных в поступающих от потребителей
рекламациях и претензиях. Составляет заявки на дополнительное оборудование:
брызговики, коврики, подкрылки и т.п., а также на всю продукцию концерна,
пользующуюся спросом.
Оценщик
Осуществлять на основании лицензии оценочную деятельность -
установление в отношении объектов оценки рыночной или иной стоимости.
Анализировать информацию об объекте оценки для проведения
правовой экспертизы, установления параметров его конкурентоспособности,
влияющих на его стоимость. Составлять точное описание объекта оценки,
определять методы проведения оценки в соответствии со стандартами оценки,
устанавливать основные ценообразующие факторы, изучать рынок аналогичных
объектов. Определять итоговую величину стоимости объекта оценки, а также
ограничения и пределы применения полученного результата. Консультировать
клиентов о действующем законодательстве, регулирующем оценочную деятельность, а
также нормативно-правовых требованиях, которыми необходимо руководствоваться
при определении стоимости объектов оценки.
Заполняет необходимую документацию по оценке автомобиля,
подготавливает первичную документацию на покупку автомобиля. Дает
рекомендательные советы по увеличению стоимости объекта оценки. Ведет
переговоры с клиентом до завершающей стадии.
3.3 Организация работы с клиентом предложения по
привлечению клиентов.
3.3.1 Организация работы с клиентом
Продажа заключительная часть процесса. Много усилий затрачено
для подведения клиента к этой стадии и должны быть использованы все возможности
для ее положительного завершения.
- Этапы процесса продаж:
- Встреча и приветствие;
- Определение потребностей;
- Презентация автомобиля;
- Тест - драйв - пробный пробег;
- Оценка автомобиля клиента в случае обмена;
- Рассеивание сомнений клиента;
- Совершение сделки;
- Выдача автомобиля;
- Последующие контакты.
Последовательность операций:
При общении с клиентом менеджер, проводит для каждого
потенциального покупателя краткое рекламное представление предлагаемых
автомобилей, предоставляя информацию о технических характеристиках и их
потребительских свойствах. Провожает покупателей на стоянку автомобилей,
знакомит их с предлагаемыми к продаже автомобилями. Помогает покупателю принять
решение о покупке. Объясняет преимущества приобретения автомобиля в авто
центре, предоставляя покупателю информацию обо всех предлагаемых скидках,
условиях и возможностях гарантийного обслуживания. Сопровождает беседу с
покупателем демонстрацией каталогов, прайс-листов и всеми имеющимися в
распоряжении менеджера по продажам рекламными материалами.
- При телефонных звонках, запросах рекламных
буклетов, заявках на покупку, визитах по возможности желательно заполнить форму
«Оценка потребностей клиента»;
- Желательно проводить контакт с клиентом в
течении 24 часов, но при этом чувствовать грань и не быть излишне навязчивым;
- Контактировать должен продавец, принявший
заявку;
- Обновить «Оценку потребностей клиента» при
необходимости;
- Необходимо договориться о дне и времени
следующего контакта;
- Зафиксируйте желание клиента, если он
намерен приобретать автомобиль в течение 3 - 6 месяцев;
- Узнайте, когда клиенту удобен следующий
контакт и придерживайтесь его желания;
- Продемонстрируйте интерес к желанию
клиента приобрести автомобиль;
- Исключите излишние и противоречивые
контакты с клиентом;
- Последующие контакты должны проводится после
оценки потребностей и готовности полного предложения перечня услуг которые
может предложить дилер.
Выдача приобретенного автомобиля очень важная процедура.
Клиент должен получить от нее удовольствие, чтобы у него появилось желание
вновь обратиться к этому же дилеру при возникновении вопросов, проблем или
покупки еще одного автомобиля. Выдача автомобиля оказывает решающее влияние на
последующее решение клиента использовать этого дилера для послепродажного
обслуживания. Это отличная возможность завязать долгие прочные взаимоотношения
с клиентом.
В то время, как выдача нового автомобиля - обычная процедура
для дилера, это редкая и значимая процедура для клиента. Очень важно, чтобы
качество обслуживания во время этой процедуры превзошло его ожидания и надолго
запомнилось. Помните, что клиент может нервничать и необходимо постараться
успокоить его и преодолеть остатки сомнения, если они есть.
Поприветствуйте клиента и больше ни на что не отвлекайтесь,
представьте сотрудников контактирующих с клиентом, ознакомьте с сервисом,
ценами графиком работы. Скажите что-нибудь хорошее о его старом автомобиле.
Убедитесь что клиент забрал из него свои вещи. Расскажите о его новой машине
продемонстрируйте опции, предложите ознакомительную поездку. Сделайте
уникальный жест или подарок клиенту, его жене или детям. Объясните условия
гарантии. Предайте документы на автомобиль, инструкцию по эксплуатации, ключи.
Ознакомьте с перечнем дилеров. Подпишите акт приема передачи и пожелайте
приятных поездок.
Оценка подержанного автомобиля
Продавец провожает клиента к посту прямой приемки, оценщик по
мере осмотра автомобиля производит расчет.
Продавец не должен присутствовать при расчете (предложите в
этот момент выпить кофе) и документ с информацией об автомобиле не должен
содержать замечаний продавца.
Здесь так же как при приеме в ремонт, важно позитивное начало
беседы. У клиента есть свое представление о цене своего автомобиля, может быть,
он уже даже оценил минимальную цену, по которой он собирается продать
автомобиль другу или знакомому и дешевле отдать свой автомобиль не готов.
Поэтому на данный момент важно установить с клиентом доверительные отношения и
добиться согласия. Необходимо сообщить клиенту что оценку его автомобиля будет
специалист имеющий лицензию. Клиент более доверяет технической компетентности.
В процессе оценки предприятие должно показать клиенту, что при устранении
дефектов его автомобиля для повышения стоимости вы делается все чтобы
максимально с экономить средства клиента, например, предложить скидки на
ремонт. Чем больше помогут сэкономить клиенту, тем больше будет его доверие:
- Предложить максимальное решение;
- Предложить наиболее дешевое решение;
- Объявить сэкономленную сумму.
Вместе с клиентом делают пробный выезд и во время него общее
состояние автомобиля. После поездки оценщик провожает клиента к продавцу.
Втроем обсуждают прохождение теста и объявляют сэкономленную сумму. Это база
для ведения переговоров. После объявления оценочной стоимости автомобиля.
Необходимо дать понять клиенту, что это реальная стоимость автомобиля и
предприятие не стремится получить прибыль с продажи его автомобиля, оно
заинтересовано в том чтобы, помочь избежать клиенту трату времени на продажу
автомобиля, и ускорить процесс покупки нового.
3.3.2 Работа по привлечению клиентов
Одним из важнейших условий высокой эффективности
функционирования производственных предприятий при рыночных отношениях является
применение маркетинга, представляющего собой систему мер, направленных на
успешный сбыт и реализацию товаров и услуг.
ООО «Давпон Форд Центр Коми» работает по основным двум
направлениям:
- изучение конъюнктуры рынка (клиентов,
конкурентов, соотношения спроса и предложения, цен и др.);
- разработка способов воздействия на рынок с
целью привлечения клиентов и продвижения услуг.
Отдел маркетинга занимается сбором информации, формирующейся
на самом предприятии и содержащейся во внутренних источниках. К внутренним
источникам информации относятся: отчеты предоставленные программой «1С Альфа -
Форд» (количество проданных машин с разбивкой по моделям, информация о
клиентах, информация по загрузке постов и отдельных сотрудников, информация о
состоянии запасных частей и спросе на них), данные бухгалтерского учета и
отчетности, данные налогового учета, данные управленческого учета, деловая
переписка, поступившие претензии и жалобы клиентов, информация о тех же моделях
машин поступивших на рынок от других дилеров и др.
Также занимаются сбором текущей информации о маркетинговой
среде с помощью сотрудников, каждый из которых формально или неформально общается
с различными субъектами рынка - клиентами, поставщиками, конкурентами,
агентами, экспедиторами, консультантами, организаторами и посетителями
выставок.
Как и в каждом автосервисом предприятии ООО «Давпон Форд
Центр Коми» занимается сбором, накоплением информации и последующим ее
анализом.
Для успешной работы отдел маркетинга оснащен компьютерной
техникой имеющей выход в сеть интернет и подсоединенной к внутренней сети
предприятия и установленным программным обеспечением «1С Альфа - Форд», что
дает возможность быстро получать необходимую информацию.
Одной из важнейших задач в маркетинге ООО «Давпон Форд Центр
Коми», является изучение спроса на авто сервисные услуги. На практике
ориентируются главным образом на численность автопарка, качество услуг, цены на
услуги, доходы населения.
Для оценки текущего состояния используются следующие
показатели:
- Стоимость услуг у конкурентов;
- оснащенность конкурентов;
- изучение структуры парка автомобилей;
- фактическое годовое количество обращений
на предприятие автосервиса;
- количество повторных обращений;
- количество жалоб и претензий;
- процентное распределение заездов
автомобилей по моделям на предприятия автосервиса.
Результаты, полученные при изучении спроса на услуги,
используют для составления либо корректировки производственной программы
предприятия.
Мероприятия, способствующие продвижению услуг:
- Информационное обеспечение товаров и
услуг;
- реклама в средствах массовой информации
новой техники и услуг;
- стимулирование сбыта товаров и услуг путем
применения прогрессивных скидок;
- обучение и повышение квалификации
сотрудников;
- применение передовых методов организации
работы и оснащенности сотрудников;
- создание "корпоративного дух"
путем морального стимулирования хорошей работы, обеспечивающей качество
обслуживания клиентов, совместных праздничных мероприятий, внутрифирменных
конкурсов, разработки фирменного гимна.
3.4 Разработка медиа - плана
Процесс медиа - планирования начинают с изучения исходных
данных - описания товара или услуг, аудитории, целей и т.д.
Таблица - 7 Исходные данные
|
Услуга - «Трейд
- ин»
|
Направлена на
увеличение продаж новых автомобилей, в зачет старого.
|
|
Целевая
аудитория
|
Жители
г.Сыктывкара владельцы автомобилей марки Ford в возрасте от 2 до 6 лет, общая численность целевой аудитории
1870 человек.
|
|
Цель
|
Стимулирование
продаж автомобилей.
|
|
Задача
|
Реклама новой
услуги, привлечение новых клиентов.
|
В процессе медиа - планирования к характеристикам
потенциального покупателя товара или услуги следует подобрать рекламоноситель.
В процессе выбора лучшего носителя средства распространения рекламы ранжируют
по численности целевой аудитории и по стоимости рекламы в них. На сегодняшний
день в качестве рекламоносителя можно использовать:
- Радио, телевидение;
- Печатные издания;
- Интернет;
- Наружная реклама (баннеры, плакаты,
вывески, мультимедиа);
- Буклеты, листовки, карточки;
- Прямая рассылка посредством почты;
- Акции (концерты, праздники, пресс -
конференции).
Для выполнения поставленных задач и целей будут
использоваться следующие реклама носители:
- Реклама на местной радиостанции;
- Печатные издания;
- Наружная реклама (баннер);
- Интернет сайты;
- Буклеты.
Таблица - 8 Мелиа - план
|
Медия
|
Носитель
|
Характеристика
|
Формат
|
Колич. месяцев
|
Стоимость, руб.
|
|
Радио
|
«Европа+» коми
|
Города вещания
- Сыктывкар, Усинск, Печора, Инта, Воркута. С 9.00 до 21.00, размещение на 20
и 35 минуте часа.
|
30сек.
|
1
|
22000
|
|
Газета
|
«ПроГород»
|
Еженедельник,
тираж 80 тысяч, 2 статьи
|
А3 (1/4) полосы
|
1
|
30 000
|
|
Газета
|
«ВДВ Авторынок»
|
Тираж 8 тысяч,
еженедельник
|
Рекламный
баннер А4 (1/8)
|
12
|
96000
|
|
Наружная
реклама
|
Лента над
дорогой
|
Двухсторонняя,
изготовление монтаж.
|
18х2 м.
|
12
|
15 000
|
|
интернет
|
www.vdvkomi.ru/auto/
|
Вверху страниц
с частными объявлениями либо статьями
|
250*100
|
12
|
1500
|
|
интернет
|
www.syktyvkar.ru
|
Левый боковой
банер
|
250*100
|
1
|
18000
|
|
Евробуклет
|
|
Цветность
двусторонняя 4+4, 1000 шт.
|
А4 + 2 фальца
|
1
|
9000
|
|
ИТОГО:
|
191500
|
Данную рекламную компанию необходимо проводить планомерно в
течение 2 - 3 месяцев, при этом реклама в газете «ВДВ Авторынок» и на их сайте
должна носить стабильную информативность на протяжении длительного времени,
поскольку это самый популярный источник по размещению и чтению частных
объявлений купли - продажи автомобилей. Усиливать pr - компанию будет
информация на сайте фирмы, раздача буклетов клиентам фирмы, возраст автомобилей
которых либо приближается, либо подходит под данную услугу. Так же будет
производиться обзвон клиентов из базы данных автосалона.(инф из нета).
4. Безопасность процессов оказания услуг
4.1 Анализ опасных и вредных производственных
факторов, влияющих на качество предоставляемых услуг
В процессе оказания услуги «трейд - ин» присутствуют
технологические процессы технического обслуживания, диагностики и предпродажной
подготовки транспортного средства. Которые могут сопутствоваться следующими
опасными и вредными производственными факторами:
- движущиеся автомобили и механизмы;
- подвижные части производственного
оборудования;
- повышенная запыленность и загазованность
воздуха рабочей зоны;
- повышенная или пониженная температура
поверхностей оборудования, материалов;
- повышенная или пониженная температура
воздуха рабочей зоны;
- повышенный уровень шума на рабочем месте;
- повышенный уровень вибрации;
- повышенная или пониженная влажность
воздуха;
- повышенная или пониженная подвижность
воздуха;
- повышенное значение напряжения в
электрической цепи, замыкание которой может произойти через тело человека;
- отсутствие или недостаток естественного
света;
- недостаточная освещенность рабочей зоны;
- прямая и отраженная блесткость;
- острые кромки, заусенцы и шероховатость на
поверхностях инструментов и оборудования;
- токсические воздействия этилированного
бензина, паров электролита;
В связи с вышеизложенным технологические процессы связанные с
техническим обслуживанием, предпродажной подготовкой и диагностикой автомобилей
должны соответствовать общим требованиям безопасности труда, согласно ГОСТ
12.3.002-75 «Процессы производственные. Общие требования безопасности» и ГОСТ
12.3.017-79 «Ремонт и техническое обслуживание автомобилей. Общие требования
безопасности» и обеспечивать полную безопасность выполнения всех
производственных процессов.
4.1.1 Пожаробезопасность
Все помещения автотранспортных предприятий классифицируются
по взрывной и пожарной опасности в соответствии со СНиП 2.09.02-85 и перечнем
категорий производств по взрывной, взрывопожарной и пожарной опасности, классов
взрывоопасных и пожароопасных зон по правилам устройства электроустановок,
категорий и групп взрывоопасных смесей для предприятий автотранспорта. По
взрывной, взрывопожарной и пожарной опасности все производства подразделяют на
шесть категорий: А, Б, В, Г, Д, (степень огнестойкости III ) Е. Данная услуга
относится к производству категории Д, по условиям технологические процессы
связаны с негорючими веществами и материалами в холодном состоянии.
Согласно строительным нормам и правилам СНиП 31-03-2001
"Производственные здания" здание относится к IV степени огнестойкости.
Для повышения противопожарной устойчивости и предупреждения распространения
огня по здание оборудовано установкой автоматического пожаротушения. Складские
помещения для хранения химикатов и сгораемых материалов, а также агрегатов и
деталей в сгораемой таре (упаковке) оборудованы автоматической пожарной
сигнализацией в соответствии с СНиП 2.11.01-85.
Во всех производственных помещениях
имеются инструкции о мерах пожарной безопасности, в которых указываются:
- порядок содержания
территории, зданий и помещений, в том числе эвакуационных путей;
- мероприятия по
обеспечению пожарной безопасности при проведении технологических процессов,
эксплуатации оборудования, производстве пожароопасных работ;
- порядок, нормы хранения и
транспортирования взрывопожароопасных веществ и пожароопасных веществ и
материалов;
- места курения, применения
открытого огня и проведения огневых работ;
- порядок сбора, хранения и
удаления горючих веществ и материалов, содержания и хранения спецодежды;
- предельные показания
контрольно - измерительных приборов (манометры, термометры и др.), отклонения
от которых могут вызвать пожар или взрыв;
- обязанности и действия
работников при пожаре;
- порядок аварийной
остановки технологического оборудования;
- порядок отключения
вентиляции и электрооборудования;
- правила применения
средств пожаротушения и установок пожарной автоматики;
- порядок эвакуации горючих
веществ и материальных ценностей;
- планы эвакуации
работающих и материальных ценностей.
Все производственные, административные,
вспомогательные и складские помещения, а также стоянки автомобилей необходимо
обеспечены знаками пожарной безопасности и первичными средствами пожаротушения
(огнетушители, пожарные щиты, установки пожаротушения и т.п.).
Знаки пожарной безопасности выполнены и размещены в
соответствии с требованиями НПБ 160-97 «Нормы пожарной безопасности. Цвета
сигнальные. Знаки пожарной безопасности: виды, размеры, общие технические
требования», которые устанавливают разновидности знаков, форму, параметрические
ряды типоразмеров, требования к фотометрическим и колориметрическим
характеристикам, устойчивости к воздействию факторов внешней среды. Нормы в
части номенклатуры знаков, их цвета и графики полностью соответствуют
международному стандарту ИСО 6309. Знаки пожарной безопасности размещены на
всей территории предприятия. При выборе места установки знака соблюдены
следующие требования:
- знак должен быть хорошо виден, его
восприятию не должны мешать цвет фона, посторонние предметы или яркий контраст
при искусственном или естественном освещении;
- знак должен находиться в пределах поля
зрения при условии естественного (привычного) зрительного восприятия окружающей
среды;
- расстояние между одноименными знаками,
указывающими местонахождение эвакуационного выхода или пожарно - технической
продукции, не должно превышать 60 м;
- знак должен располагаться в
непосредственной близости от объекта, к которому он относится.
Первичные средства пожаротушения, немеханизированный
инструмент и пожарный инвентарь в производственных и складских помещениях, необходимое число
пожарных щитов и их тип определены в зависимости от категории помещений, зданий
(сооружений) и наружных технологических установок по взрывопожарной и пожарной
опасности, предельной площади, защищаемой одним пожарным шитом, и класса пожара
принимаем в соответствии с таблицей - 9.
Таблица - 9 Нормы оснащения зданий
(сооружений) и территорий пожарными щитами
|
Функциональное
назначение и категория помещений или наружных технологических установок по
взрывопожарной и пожарной опасности
|
Предельная
защищаемая площадь одним пожарным щитом, м2
|
Класс пожара
|
Тип шита
|
|
А, Б и В
(горючие газы и жидкости)
|
200
|
А В Е
|
ЩП-А, ЩП-В,
ЩП-Е
|
|
В (твердые
горючие вещества и материалы)
|
400
|
А Е
|
ЩП-А, ЩП-Е
|
|
Г и Д
|
1800
|
А В Е
|
ЩП-А, ЩП-В,
ЩП-Е
|
|
Помещения
различного назначения при проведении сварочных или других огнеопасных работ
|
-
|
А
|
ЩПП
|
|
Примечание.
ЩП-А - пожарный шит для очагов пожара класса А; ЩП-В -пожарный щит для очагов
пожара класса В; ЩП-Е - пожарный щит для очагов пожара класса Е; ЩПП - щит
пожарный передвижной.
|
Пожарные щиты комплектуются первичными средствами
пожаротушения, немеханизированным пожарным инструмент том и инвентарем в
соответствии с таблицы - 10.
Таблица - 10 Нормы комплектации пожарных
щитов немеханизированным инструментом и инвентарем
|
Первичные
средства пожаротушения
|
Норма
комплектации в зависимости от типа пожарного щита и класса пожара
|
|
Инструмент и
инвентарь
|
ЩП - А
|
ЩП - В
|
ЩП - Е
|
ЩП - СХ
|
ЩПП
|
|
1
|
2
|
3
|
4
|
5
|
6
|
|
Огнетушители:
воздушно-пенные (ОВП) вместимостью Юл
|
2
|
2
|
|
2
|
2
|
|
Огнетушители
порошковые (ОП) вместимостью, л/ массой огнетушащего состава, кг 10/9 5/4
|
1 2
|
1 2
|
1 2
|
1 2
|
1 2
|
|
Углекислота ые
(ОУ) вместимостью, л/массой огнету-шашего состава, кг 5/3
|
|
|
2
|
|
|
|
Лом
|
1
|
I
|
|
1
|
1
|
|
Багор
|
1
|
|
|
1
|
|
|
Крюк с
деревянной рукояткой
|
|
|
1
|
|
1
|
|
Ведро
|
2
|
1
|
|
2
|
1
|
|
Комплект для
резки электропроводов: ножницы, диэлектрические боты и коврик
|
|
|
1
|
|
|
|
Асбестовое
полотно, грубошерстная ткань или войлок (кошма, покрывало из негорючего
материала)
|
|
1
|
1
|
1
|
1
|
|
Лопата штыковая
|
1
|
1
|
|
1
|
1
|
|
Лопата совковая
|
1
|
I
|
1
|
1
|
|
|
Вилы
|
|
|
|
1
|
|
|
Тележка для
перевозки оборудования
|
|
|
|
|
1
|
|
Емкость для
хранения воды вместимостью: 0,2 м3 0,02 м3
|
1
|
|
|
1
|
1
|
|
Ящике песком
|
|
1
|
1
|
|
|
|
Насос ручной
|
|
|
|
|
1
|
|
Рукав ДУ 18-20
длиной 5 м
|
|
|
|
|
1
|
|
Защитный экран
1,4x2 м
|
|
|
|
|
6
|
|
Стойки для
подвески экранов
|
|
|
|
|
6
|
|
Примечание. ЩП
- СХ - пожарный щит для сельскохозяйственных предприятий.
|
Ящики с песком установлены со щитами в помещениях или на
открытых площадках, где возможен розлив легковоспламеняющихся или горючих
жидкостей. Для помещений категории Д на каждые 1000 м2 защищаемой
площади, запас песка в ящиках не менее 0,5 м3.
Для обеспечения пожаровзрывобезопасности необходимо строго
соблюдать технологический процесс, своевременно убирать горючие отходы, хранить
легковоспламеняющиеся и горючие материалы в специально отведенных местах.
4.1.2 Обеспечение санитарных норм в рабочей зоне
Для сохранения здоровья персонала работающего в
производственных помещениях, осуществляющего ремонт и техническое обслуживание
транспортных средств необходимо соблюдение санитарных норм:
- требуемый температурный режим;
- оптимальная влажность и скорость движения
воздуха;
- содержание вредных веществ;
- необходимая освещенность.
Температура в теплый период года не должна превышать: при
легких работах - 22-25°С, работах средней тяжести - 20-23°С, тяжелых - 18-21°С;
в холодный и переходный периоды года: при легких работах - 20-23°С, работах
средней тяжести - 17-20°С, тяжелых - 16-18°С. Относительная влажность воздуха в
рабочей зоне - 60-40%.
Скорость движения воздуха в теплый период года: при легких
работах - не более 0,2 м/с, работах средней тяжести - 0,3-0,4 м/с, тяжелых -
0,5 м/с; в холодный и переходный периоды года: при легких работах - не более
0,2 м/с, работах средней тяжести - 0,2-0,3 м/с, тяжелых - 0,3 м/с.
В помещениях для технического обслуживания транспортных
средств показатели микроклимата и допустимое содержание вредных веществ в
воздухе рабочей зоны должны соответствовать требованиям ГОСТ 12.1.005-88
"ССБТ. Общие санитарно - гигиенические требования к воздуху рабочей
зоны".
Для поддержания оптимальных параметров воздушной среды
производства вспомогательные и административно - бытовые помещения СТО
оборудуются системами центрального отопления и приточно - вытяжной вентиляции.
Для обеспечения требуемых условий воздушной среды в помещении
постов ТО и ТР транспортных средств предусмотрена общеобменная
приточно-вытяжная вентиляция. Температура приточного воздуха в помещение в
холодный период года не ниже +16°С и не выше +25°С. Так же присутствуют
местные отсосы с естественным удалением. Наружные ворота помещений хранения,
постов ТО и ТР подвижного состава оборудованы воздушно - тепловыми завесами.
Помещения для технического обслуживания и ремонта
транспортных средств должны быть оснащены общим, местным, комбинированным и
аварийным освещением с уровнями освещенности каждой системы освещения в
соответствии с требованиями СНиП 23-05-95 "Естественное и искусственное
освещение".
Светильники общего освещения устанавливаются на высоте не
менее 2,5 м от пола и должны иметь отражатели, защищающие от ослепления.
Применение открытых ламп не допускается.
При необходимости для осмотра транспортного средства могут
использоваться переносные электрические светильники с напряжением не выше 42 В
с предохранительной сеткой или электрические фонари с автономным питанием.
Норма освещенности рабочего места должна соответствовать СНиП
23-05-95 "Естественное и искусственное освещение".
Таблица - 11 Нормы освещенности
|
№ п.п.
|
Помещения,
посты, участки, виды работ
|
Плоскость
|
Разряд
зрительн. работы
|
Освещенность
при комб. освещен., лк
|
Освещенность
при общем освещен., лк
|
|
1
|
Мойка и уборка
|
Пол
|
VI
|
|
150
|
|
2
|
Техническое
обслуживание
|
Пол
|
Va
|
300
|
200
|
|
3
|
Хранение
автомобилей на открытых площадках
|
Пол
|
XII
|
|
5
|
4.2 Техническая безопасность услуги для клиента
Предоставляемая услуга должна быть безопасна для потребителя
услуги, для специалиста, оказывающего услугу и для окружающей среды.
К основным факторам безопасности услуги для потребителя
относятся:
- наличие у автосервиса сертифицированного и
поверенного оборудования;
- использование на автосервисе
сертифицированных запасных частей;
- наличие высококвалифицированного рабочего
персонала способного оказать услугу в соответствии с технологическим
регламентом.
Перечень запасных частей подлежащих обязательной сертификации
утвержден постановлением правительства Российской Федерации от 1 декабря 2009
г. N 982 «ОБ УТВЕРЖДЕНИИ ЕДИНОГО ПЕРЕЧНЯ ПРОДУКЦИИ, ПОДЛЕЖАЩЕЙ ОБЯЗАТЕЛЬНОЙ
СЕРТИФИКАЦИИ, И ЕДИНОГО ПЕРЕЧНЯ ПРОДУКЦИИ, ПОДТВЕРЖДЕНИЕ СООТВЕТСТВИЯ КОТОРОЙ
ОСУЩЕСТВЛЯЕТСЯ В ФОРМЕ ПРИНЯТИЯ ДЕКЛАРАЦИИ О СООТВЕТСТВИИ» (в ред.
Постановлений Правительства РФ от 17.03.2010 N 148).
После предпродажной подготовки автомобили приобретенные по
«трейд-ин» должны соответствовать ГОСТ Р 51709 - 2001 "Автотранспортные
средства. Требования безопасности к техническому состоянию и методы
проверки".
Обслуживание автотранспортных средств необходимо выполнять в
специально предназначенных для этой цели местах (постах) с применением
устройств, приспособлений, оборудования и слесарно - монтажного инструмента,
предусмотренных для конкретного вида работы.
Перед поверочно - диагностическими работами рычаг
переключения передач устанавливается в нейтральное положение, все
диагностические установки должны быть заземлены. При работе с электрическими и
электронными приборами и системами должна обеспечиваться необходимая защита от
поражения электрическим током.
При проверке тормозов на стенде необходимо принять меры по
исключению скатывания транспортного средства с валиков стенда.
Проверка автомобиля на ходу проводится на площадке,
достаточной по размерам и другим условиям для исключения возможного наезда на
что - либо в случае неисправных тормозов.
Диагностика систем на работающем двигателе внутреннего
сгорания может производится на посту диагностики только при включенной местной
вытяжной вентиляции.
На посту технического обслуживания и ремонта транспортное
средство должно быть заторможено стояночным тормозом, зажигание выключено
(подача топлива у дизельного двигателя перекрыта), рычаг переключения передач
(контроллер) поставлен в нейтральное положение, под колеса подложены (не менее
двух) упоры (башмаки), на рулевое колесо вывешена табличка "Двигатель не
пускать - работают люди!".
При обслуживании транспортного средства на подъемнике
подъемник должен быть надежно зафиксирован упором, исключающим возможность
самопроизвольного опускания подъемника, и на пульте управления подъемника
вывешивается табличка "Не включать - работают люди!".
Перед снятием узлов и агрегатов систем питания, смазки,
охлаждения из них сливается топливо, масло, охлаждающая жидкость.
Снятие с транспортного средства и установка на транспортное
средство деталей, агрегатов и узлов массой 15 кг и более (для женщин - 7 кг и
более) должно производиться с использованием грузоподъемных механизмов.
При работе гаечным ключом не допускается: наращивать ключ
рычагом, устанавливать прокладку в зев ключа между гранью гайки или головки
болта; поджимать гайку (болт) рывком. При работе зубилом необходимо
пользоваться защитными очками. При работе с пневмоинструментом подача воздуха
должна производиться только после установки инструмента в рабочее положение, а
разъединение шлангов - после отключения подачи воздуха.
ТО и ТР автомобиля следует осуществлять при неработающем
двигателе, за исключением случаев, когда работа двигателя необходима по
технологическому процессу данной операции.
Пуск двигателя и трогание автомобиля с места следует
производить с учетом обеспечения безопасности работающих с данным автомобилем и
находящихся вблизи людей.
Выпрессовывание втулок, подшипников и снятие других деталей,
требующих приложения значительных усилий, следует производить при помощи
прессов или специальных съемников. Съемники должны надежно захватывать детали в
месте приложения усилия.
Аккумуляторные батареи следует демонтировать и устанавливать
с помощью специальных устройств, исключающих падение аккумуляторных батарей.
Вождение автомобиля на территории автотранспортного
предприятия, в том числе и опробование автомобилей после регулировки и ремонта,
разрешается только лицам, имеющим удостоверение на право вождения автомобиля
данной категории. Движение на территории и в производственных помещениях
регулируется установленными дорожными знаками. Скорость движения не должна
превышать 10 км/ч на подъездных путях территории и 5 км/ч в производственных
помещениях.
4.3 Экологическая безопасность проекта
4.3.1 Загрязнение почвы образование отходов
В ходе оказания услуги «трейд - ин» образуются отходы
производства и потребления. Основными отходами являются:
- лом черных металлов не сортированный;
- масла моторные отработанные;
- масла гидравлические отработанные, не
содержащие галогены;
- фильтры, загрязненные нефтепродуктами;
- тормозные колодки отработанные;
- обтирочный материал, загрязненный маслами
(содержание масел менее - 15%);
Отработанные нефтепродукты являются опасными загрязнителями
практически всех компонентов природной среды - поверхностных и подземных вод,
почвенно-растительного покрова, атмосферного воздуха. Значительный ущерб окружающей
среде наносится во время неправильного сбора и хранения отработанного масла и
маслосодержащих отходов.
Отработанное масло и маслосодержащие отходы являются пожаро -
и взрывоопасными, а также относятся к категории легко воспламеняющихся отходов.
К маслосодержащим отходам относятся:
- ветошь промасленная;
- опилки промасленные;
- фильтры отработанные промасленные.
Первичный сбор маслосодержащих отходов должен осуществляться
раздельно от других отходов в специально предназначенные металлические ёмкости.
Ёмкости для сбора и временного хранения ветоши промасленной, опилок
промасленных, а так же отработанных промасленных фильтров, могут находиться как
в производственной зоне, так и за её пределами. Ёмкости обязательно должны
иметь маркировку и крышку. Запрещается ставить емкости хранения маслосодержащих
отходов вблизи нагретых поверхностей и мест возможного возгорания.
Не допускается хранение маслосодержащих отходов в открытых
контейнерах, под открытым небом и под прямыми лучами солнца; совместное
хранение с ТБО.
Сбор и хранение отработанных масел (отработанных
нефтепродуктов) осуществляется в соответствии с Приказом Минтопэнерго РФ от 25
сентября 1998 г. №311.
Сбор отработанных масел должен осуществляться раздельно от
других отходов в специально предназначенные герметически закрываемые емкости.
Емкости для сбора и временного хранения отработанных масел могут находиться как
в производственной зоне, так и вне ее. В случае если емкости устанавливаются на
прилегающей территории, площадка для первичного накопления отработанных масел
должна иметь твердое покрытие и навес, исключающий попадание воды и посторонних
предметов.
Емкости с отработанными маслами должны быть оборудованы
металлическими поддонами. Полы в помещениях и под навесами должны быть покрыты
влагонепроницаемыми и маслонепроницаемыми материалами. Помещение для хранения
отработанных масел должно быть оборудовано вытяжной вентиляцией. Площадки и
навесы, где хранятся емкости с отработанными маслами, должны быть ограждены.
При хранении емкостей с отработанными маслами необходимо следить за их
герметичностью, не допускать случаев загрязнения отработанными маслами
компонентов окружающей среды.
Расчет массы образования отходов и платы за размещение
отходов
Расчет количества отработанного масла через объём систем
смазки производится отдельно по виду масла по формуле, (т):

(24)
где N - количество автомашин, шт.;
V - объём масла, заливаемого в автомашину при ТО, л;
L - средний годовой пробег автомобиля, тыс. км/год;
Lн - норма
пробега автомобиля до замены масла, тыс.км, берется в соответствии с
инструкцией по эксплуатации автомобиля или по данным предприятия;
k - коэффициент полноты слива масла, к = 0.9
r - плотность отработанного масла, кг/л, р
= 0.9 кг/л
Расчет количества моторного масла:

Поскольку масло будет заменяться не только при ТО но и на
предпродажной подготовке то:

Расчет количества гидравлического масла:

Фильтры, загрязненные нефтепродуктами
Расчёт количества отработанных фильтров от автотранспорта
производится по формуле, (т):

(25)
где N - количество автомашин, (шт.);
n - общий вес фильтров, установленных на автомашине, кг.
L - средний годовой пробег автомобиля, тыс. км/год,
Lн - норма
пробега подвижного состава каждой марки до замены фильтров, тыс. км.
Расчет количества фильтров масляных:

Поскольку масло будет заменяться не только при ТО но и на
предпродажной подготовке то:

Расчет количества фильтров топливных:

Поскольку топливные фильтра будут заменяться не только при ТО но и
на предпродажной подготовке то:

Отработанные накладки тормозных колодок
Расчёт количества отработанных накладок тормозных колодок от
автотранспорта производится по формуле, (т):

(26)
где N - количество автомашин, шт. n - количество накладок, установленных на автомашине, шт.; m - вес одной отработанной накладки, кг; L - средний годовой пробег автомобиля, тыс. км/год, Lн - норма пробега подвижного состава каждой марки до замены
накладок, тыс. км.

Поскольку колодки будет заменяться не только при ТО но и на
предпродажной подготовке то:

Обтирочный материал, загрязнённый маслами (содержание масел
менее 15 %).
Количество обтирочных материалов, загрязненных маслами
определяется по формуле, (т/год):

(27)
где Q - расход сухой ветоши за год, т/год, (0,0159)-
содержание масел в ветоши, %,
Содержание масел - 10%. , к = 0,1

Расчет платы за образование отходов
Расчёт платы за размещение отходов в пределах установленных
природопользователю лимитов производится по формуле, (руб.):

(28)
где Пл - размер платы за размещение i-го отхода в
пределах установленных лимитов (руб.);
Слi - ставка платы за размещение 1 тонны i-го отхода в
пределах установленных лимитов (руб.);
Мi - фактическое размещение i-го отхода (т, куб.м.);

(29)
где Нблi - базовый норматив платы за 1 тонну
размещаемых отходов в пределах установленных лимитов (руб.);
Кэ.поч. - коэффициент экологической ситуации и
экологической значимости почв в данном регионе;
Ки - коэффициент инфляции.
Таблица - 12 Данные для расчета ставки платы размещения отходов
|
№п/п
|
Наименование
отхода
|
Класс
опасности.
|
Ставка платы в
пределах лимита, руб.
|
Кэ.поч.
|
Ки
|
|
1
|
Фильтровочные и
поглотительные отработанные массы, загрязненные опасными веществами
|
IV
|
248,4
|
1,3
|
1,79
|
|
2
|
Тормозные
колодки отработанные
|
V
|
248,4
|
1,3
|
1,79
|
|
3
|
Масла моторные
отработанные
|
III
|
497
|
1,3
|
1,79
|
|
4
|
Масла
гидравлические отработанные, не содержащие галогены
|
III
|
497
|
1,3
|
1,79
|
|
5
|
Обтирочный
материал, загрязненный маслами (содержание масел менее 15%)
|
IV
|
248,4
|
1,3
|
1,79
|
Расчёт платы за размещение отходов масла:

Масло моторное:

Масло гидравлическое:

Расчет платы за размещение отходов тормозных колодок:


Расчет платы за размещение отходов фильтров загрязненных нефтепродуктами:


Расчет платы за размещение обтирочного материала загрязненного
маслами:


4.3.2 Загрязнение воды (сброс сточных вод)
Реализация услуги «трейд - ин» невозможна без мойки
автомобиля, которая приводит к загрязнению чистой водопроводной воды
взвешенными веществами и нефтепродуктами с поверхности автомобиля, а так же
пенными реагентами.
В ООО «Давпон» Форд Центр Коми применяется локальная очистка
сточных вод, которая предполагает однократное использование воды и очистку
перед сбросом в городскую канализацию.
При сбросе сточных вод в городскую канализацию в них должно
быть не более 0,25-0,75 мг/л взвешенных веществ, и 0,05-0,3 мг/л
нефтепродуктов, а наличие тетраэтилсвинца не допускается.
Расчет платы за сброс загрязняющих веществ и платы за
потребление чистой воды.
Расчет массы сброса загрязняющих веществ от мойки
автотранспорта
Годовой расчет сброса загрязняющих веществ при мойке
автотранспорта М (т/год) рассчитывается по формуле:

(30)
где V - объем сточных вод от мойки автотранспорта, м3/год;
С - концентрации загрязняющих веществ в сбросах при шланговой
мойке, мг/л. (для легковых автомобилей содержание взвешенных веществ принимаем
- 700 мг/л, содержание нефтепродуктов - 7,5 мг/л).- коэффициент потерь воды (в
соответствии с ВСН 01-89 потери воды при мойке автотранспорта составляют
0,1-0,15) ;
Расчет количества взвешенных веществ:

Расчет количества нефтепродуктов:

Расчет платы за сброс загрязняющих веществ
Плата за сброс загрязняющих веществ в пределах нормативов
допустимого сброса определяется по формуле:

(31)
где СHi -
ставка платы за сброс 1 тонны iго загрязняющего вещества, руб.;
Мi - фактический сброс iго загрязняющего вещества;

(32)
где Нбi - базовый
норматив платы за сброс 1 тонны iго загрязняющего вещества, руб.;
Кэ.вод. - коэффициент экологической ситуации и
экологической значимости вод в рассматриваемом регионе (Кэ.вод. =
1,51);
Ки - коэффициент индексации (Ки = 1,79);
Таблица - 13 Нормативы платы за сброс 1 тонны загрязняющих веществ
|
№ п/п
|
Вещество
|
Норматив платы
за тонну, руб.
|
|
1
|
Взвешенные
вещества
|
366
|
|
2
|
Нефтепродукты
|
5510
|
Расчет платы за сброс взвешенных веществ:


Расчет платы за сброс нефтепродуктов:


Плата за потребление свежей воды

(33)
Св - стоимость 1 м3 чистой воды, (30,45
руб.).
Плата за потребление свежей воды на мойку автомобилей:

Плата за потребление воды на хозяйственно - бытовые нужды:

4.3.3 Загрязнение атмосферы
Сложность структуры предприятий автосервиса, выполняемых
работ, используемого технологического оборудования предопределяют многообразие
видов и направлений загрязнения окружающей среды. При этом выделяют следующие
основные виды загрязнений окружающей среды, обусловленные деятельностью
предприятий автосервиса:
- химическое - выброс химических соединений,
приводящих к изменению химических свойств окружающей среды, оказывающих
отрицательное воздействие на экосистемы и технологические устройства;
- механическое - засорение окружающей среды
агентами, оказывающими механическое воздействие без химико-физических
последствий;
- физическое - тепловое, световое, шумовое и
электромагнитное загрязнения, приводящие к изменению физических параметров.
Выбросы вредных веществ от предприятий автосервиса оказывают
воздействие на все подсистемы окружающей среды - атмосферу, гидросферу, почву,
литосферу, флору и фауну.
Рассмотрим основные требования, предъявляемые к организации
автосервиса в плане соблюдения экологической безопасности.
Так, при эксплуатации предприятий автосервиса необходимо
соблюдать стандарты, нормативы, правила и иные требования охраны атмосферного
воздуха, в частности, Закон РФ «Об охране атмосферного воздуха», ГОСТ
17.2.3.02-86 «Охрана природы. Атмосфера. Правила установления допустимых
выбросов вредных веществ промышленными предприятиями» и т.д.
Предприятие автосервиса должны получить разрешение на
предельно допустимые выбросы загрязняющих веществ в атмосферу.
Существующая система нормирования загрязняющих выбросов в
атмосферу предполагает последовательное проведение двух этапов работ:
инвентаризация выбросов загрязняющих веществ в атмосферу; нормирование выбросов
на основании расчетов рассеивания и учета фоновых концентраций.
Инвентаризация выбросов имеет своей целью получение полных и
достоверных данных об источниках выделения (технологическом оборудовании),
источниках загрязнения атмосферы (дымовых труб, вентиляционных установок) и
распределении их по территории автосервиса.
На основании согласованных данных
инвентаризации выбросов разрабатывается проект нормативов выбросов. Если данный
проект выполнен в соответствии с требованиями действующей
нормативно-методической документации, то отделом нормирования и разрешений
выдается разрешение на предельно допустимые выбросы загрязняющих веществ в
атмосферу, оформленное соответствующими документами.
Основными направлениями повышения
экологической, санитарной безопасности на проектируемом предприятии автосервиса
являются:
- разработка и внедрение экологически
безопасных, безотходных и ресурсосберегающих технологий технического
обслуживания и ремонта автомобилей;
- введение управления охраной окружающей
среды;
- разработка мероприятий по сокращению
производственных выбросов, сбросов и отходов;
- использование экологически чистых
материалов и технологий;
- сбор и утилизация собственных
производственных отходов и оказание аналогичных услуг эксплутационными
предприятиями и т.д.
5. Экономическая часть
.1 Расчет стоимости основных производственных
фондов
Основные производственные фонды - это те средства труда,
которые участвуя в процессе производства на протяжении многих производственных
циклов, сохраняют в течение длительного периода свои свойства и натуральную
форму. По мере износа их стоимость постепенно переносится на стоимость готовой
продукции.
Оборотные фонды - это предметы труда, которые принимают
участие только в одном производственном цикле, в течение которого полностью
переносят свою стоимость на стоимость готовой продукции.
Примерное соотношение основных и оборотных фондов для
автосервисов составляет 76% к 24%.
В основных производственных фондах АТП наибольший удельный
вес составляет подвижной состав, в промышленных предприятиях - здания,
сооружения и оборудование, а в автосервисах - здания и сооружения.
Стоимость основных производственных фондов
реконструируемого сервисного центра определяется по формуле, (руб.):

(34)
где Суч.бал. - балансовая стоимость участка без затрат
на реконструкцию, (руб.);
Соб. - стоимость нового (закупаемого) оборудования,
(руб.);
Стр.-м. - стоимость работ по транспортировке и монтажу
нового оборудования, (руб.);
Синв. - стоимость инвентаря, (руб.);
Син.тр.-м - стоимость работ по транспортировке
инвентаря, (руб.).
Балансовая стоимость реконструируемого здания без затрат на
реконструкцию определяется с учетом возраста здания:

(35)
где Сзд.нач. - начальная стоимость здания, (руб.);
T - количество лет;
Na - норма амортизации.

(36)

Таблица - 14 Норма амортизации
|
Вид имущества
|
Норма
амортизации, %
|
|
МБП (малоценные
быстро изнашиваемые предметы)
|
100
|
|
Оборудование
|
12 - 20
|
|
Инвентарь, (мебель)
|
15 - 18
|
|
Оргтехника
|
15 - 25
|
|
Здания
|
3 - 5
|

Таблица - 15 Определение стоимости оборудования
|
№ п.п.
|
Наименование
|
Кол., шт.
|
Цена, руб.
|
Стоимость, руб
|
|
1
|
2
|
3
|
4
|
5
|
|
1
|
Подъемник
ножничный
|
1
|
107500
|
107500
|
|
2
|
Подъемник 2-х
стоечный электрогидравлический 4т.
|
2
|
132000
|
264000
|
|
3
|
Устройство для
вытяжки отработавших газов автомобиля
|
1
|
45000
|
45000
|
|
4
|
Комбинированное
пневматическое устройство для сбора отработанного масла
|
1
|
17000
|
17000
|
|
ИТОГО Соб
|
433500
|
Определяем затраты связанные с транспортировкой и монтажом
нового оборудования которые составляют 10% от стоимости нового оборудования:

(37)

Таблица - 16 Определение стоимости инвентаря
|
№ п.п.
|
Наименование
|
Кол., шт.
|
Цена, руб.
|
Стоимость, руб
|
|
1
|
2
|
3
|
4
|
5
|
|
1
|
Тележка
инструментальная, 361 предмет
|
1
|
53800
|
53800
|
|
2
|
Трансмиссионная
стойка 500кг
|
1
|
5200
|
5200
|
|
3
|
Верстак
однотумбовый
|
1
|
11623
|
11623
|
|
4
|
Верстак
двухтумбовый
|
1
|
20532
|
20532
|
|
5
|
Стеллаж
|
1
|
6300
|
6300
|
|
6
|
Набор
инструмента 128 предметов
|
2
|
10300
|
20600
|
|
7
|
Набор
пневмоинструмента 66 предметов
|
3
|
6450
|
19350
|
|
8
|
Аккумуляторный
шуруповерт
|
1
|
3460
|
3450
|
|
9
|
Пистолет для
накачки шин
|
1
|
400
|
400
|
|
10
|
Продувочный
пистолет
|
1
|
110
|
110
|
|
11
|
Съемник
реверсивный трехлапый масляного фильтра
|
1
|
290
|
290
|
|
12
|
Съемник шаровых
опор
|
1
|
490
|
490
|
|
13
|
Головка для
разбора стойки
|
1
|
140
|
140
|
|
14
|
Съемник пружин
подвески Макферсона
|
1
|
540
|
540
|
|
15
|
Съемник шруса
|
1
|
750
|
750
|
|
16
|
Съемник
подшипников ступицы
|
1
|
3950
|
3950
|
|
17
|
Съемник хомутов
шрус
|
|
230
|
230
|
|
18
|
Набор для смены
тормозной жидкости
|
1
|
3680..
|
3680
|
|
19
|
Магнитная
накидка на крыло автомобиля
|
3
|
550
|
1650
|
|
ИТОГО Синв.
|
153085
|
Определяем затраты связанные с транспортировкой инвентаря
которые составляют 10% от стоимости инвентаря:

(38)


руб.
.2 Расчет текущих производственных затрат
5.2.1 Определение затрат на материалы
В составе затрат на материалы отражается стоимость всех
расходуемых при предпродажной подготовке автомобилей, необходимых для
выполнения покупных материалов (обтирочных, смазочных, лакокрасочных,
изоляционных, электротехнических, крепежных материалов, различных минеральных и
органических масел), запасных частей для ремонта подвижного состава и других технических
средств, автомобильных шин. Необходимые материалы для одного автомобиля
представлены в таблице - 17.
Таблица - 17 Расходуемые материалы
|
№ п.п.
|
Наименование
|
Стоимость, руб.
|
|
1
|
Масло моторное
|
1200
|
|
2
|
Масло ГУР
|
220
|
|
3
|
Фильтр масляный
|
280
|
|
4
|
Фильтр топливный
|
400
|
|
5
|
Фильтр
воздушный
|
500
|
|
6
|
Фильтр салонный
|
500
|
|
7
|
Колодки
тормозные (компект)
|
4300
|
|
8
|
Щетки
стеклоочистителя
|
1100
|
|
9
|
Жидкость
тормозная
|
200
|
|
10
|
Ремень ГРМ
|
1800
|
|
11
|
Ремни навесного
оборудования (комплект)
|
1500
|
|
12
|
Дополнительные
материалы
|
4000
|
|
ИТОГО
|
16000
|
Определение стоимости расходных материалов на планируемое
количество автомобилей «трейд-ин», (руб.):

; (39)
где N - количество автомобилей «трейд-ин»,
(318);
Ср.м. - стоимость расходуемых материалов на 1н
автомобиль, (руб.).

Основных и вспомогательных материалов представлены в таблице - 18.
Таблица - 18 Основные и вспомогательные материалы
|
№ п.п.
|
Наименование
|
Кол-во
|
Ед. измер.
|
Стоимость, руб.
|
Цена, руб.
|
|
1
|
Спецодежда
|
5
|
Компл.
|
2000
|
10000
|
|
2
|
Обувь
|
5
|
пара
|
800
|
4000
|
|
3
|
Ветошь
|
50
|
кг
|
30
|
1500
|
|
4
|
Щетка сметка
|
2
|
шт.
|
50
|
100
|
|
5
|
Щетка по
металлу
|
3
|
шт.
|
100
|
300
|
|
ИТОГО
|
15900
|
5.2.2 Расходы на приобретение топлива, воды,
энергии всех видов
Определение годового расхода на силовую электроэнергию,
(руб.):

(40)
где Wосв. - годовой расход электроэнергии на освещение, кВТ;
Wоб. -
годовой расход электроэнергии на работу оборудования, кВТ;
Sк -
стоимость одного кВт*ч силовой электроэнергии, (2,74 руб.).

Определение годового расхода на водоснабжение:

(41)
где Рв. - стоимость воды, расходуемой за год, (руб.);в.
- годовой расход воды, м3;м. - стоимость 1 м3
воды, (30,45 руб).

Итого расходы на все топливо и энергию:

(42)

5.2.3 Определение расходов на содержание и
эксплуатацию основных средств
- Расходы на ремонт оборудования принимается
примерно 5% от его стоимости, (руб.):

(43)

- Расходы на содержание участка принимают
равными 3% от стоимости участка, (руб.):

(44)

- Расходы на ремонт участка принимают
равными 2% от его стоимости, (руб.):

(45)

- Расходы на содержание, ремонт и
возобновление инвентаря составляют 7% от его стоимости, (руб.):

(46)

- Расходы на охрану труда можно принимать
равными 700 рублей на одного работающего, (руб.):

(47)

- Расходы связанные с экологической
безопасностью услуги, (руб.):

(48)
Сюда входят следующие виды плат:
- плата за размещение отходов (колодки
тормозные, масла…);
- плата за сброс загрязняющих веществ от
мойки автомобилей (взвешенные частицы, нефтепродукты).


(49)
5.2.4 Определение расходов на оплату труда
Фонд заработной платы по тарифу, (руб.):
.
(50)
где Сч. - часовая тарифная ставка, (руб.);
Тг - годовой объем работ.
Таблица - 19 Часовые тарифные ставки
|
№ п.п.
|
Должность
|
Часовая
тарифная стака, руб.
|
Годовой объем
работ, чел.-час
|
|
1
|
Слесарь по
ремонту автомобилей 5 разряда
|
131
|
6439,5
|
|
2
|
Оценщик
|
148
|
1113
|
Фонд заработной платы по тарифу слесаря по ремонту
автомобилей:

Фонд заработной платы по тарифу оценщика:

Премии за производственные показатели составляют, (руб.):

(51)
Премии за производственные показатели слесаря по ремонту
автомобилей составляют:



.
Основной фонд заработной платы определяется:

(52)

Фонд дополнительной заработной платы составляет 10-40%, например,
(руб.):

(53)

Общий фонд заработной платы складывается из основного и
дополнительного фонда заработной платы:

(54)

Средняя заработная плата производственного рабочего за год,
(руб.):

(55)
где Рш - число производственных рабочих, 5.

Зарплата в месяц одного рабочего, (руб.):

(56)

Начисления на заработную плату 34 %, (руб.):

(57)

Общий фонд заработной платы с учетом начислений:

(58)

.2.5 Расчет суммы начисленной амортизации
Амортизационные отчисления на полное восстановление
оборудования, (руб.):

(59)

Амортизационные отчисления на полное восстановление инвентаря,
(руб):

(60)

Отчисления на восстановление зданий, (руб.):

(61)


руб. (62)

5.2.6 Прочие расходы
В соответствии со статьей 264 НК к прочим расходам, связанным
с производством и реализацией, относятся следующие расходы налогоплательщика
представленные в таблице - 20:
Таблица - 20 Прочие расходы
|
№ п.п.
|
Статья расходов
|
Сумма, руб.
|
|
1
|
Расходы на
услуги по охране имущества, обслуживанию охранно-пожарной сигнализации,
расходы на приобретение услуг пожарной охраны и иных услуг охранной
деятельности, в том числе услуг, оказываемых вневедомственной охраной при
органах внутренних дел Российской Федерации в соответствии с
законодательством Российской Федерации, а также расходы на содержание
собственной службы безопасности.
|
300000
|
|
3
|
Расходы на
канцелярские товары, услуги связи и пр.
|
9000
|
|
4
|
Расходы,
связанные с приобретением права на использование программ для ЭВМ и баз
данных по договорам с правообладателем
|
10000
|
|
5
|
Расходы на
текущее изучение (исследование) конъюнктуры рынка, сбор информации,
непосредственно связанной с производством и реализацией товаров (работ,
услуг).
|
15000
|
|
6
|
Расходы на
рекламу.
|
191500
|
|
ИТОГО
|
525500
|
Калькуляция себестоимости услуги представлена в таблице - 21.
Таблица - 21 Калькуляция себестоимости
|
№ п/п
|
Статьи расходов
|
Сумма расходов,
руб.
|
|
1
|
|
Материальные
расходы
|
|
|
1.1
|
Основные и
вспомогательные материалы
|
15900
|
|
1.2
|
Запасные части
для ремонта технологического оборудования и транспортных средств
|
5088000
|
|
1.3
|
Топливо, вода и
энергия всех видов
|
17313,98
|
|
1.5
|
Расходы,
связанные с содержанием и эксплуатацией основных средств
|
129788,88
|
|
2
|
|
Расходы на
оплату труда
|
|
|
2.1
|
Заработная
плата производственных рабочих
|
1497323,24
|
|
2.2
|
Начисления на
заработную плату
|
509089,9
|
|
3
|
|
Итоговая сумма
начисленной амортизации
|
148501,6
|
|
4
|
|
Прочие расходы
|
525500
|
|
ИТОГО (Робщ.)
|
7931417,6
|
.3 Расчет себестоимости, прибыли
Себестоимость человека - часа определяется по формуле,
(руб.):

(63)
где Робщ. - общие расходы за год, руб.;
Т.усл. - годовой объем работ по предоставляемой услуге.

Принимая рентабельность R равной 15-35% определяем цену
трудозатрат (одного человека - часа) - Ц, (руб.):

(64)
Выручку рассчитываем следующим образом:

(65)

Прибыль от реализации:

(66)

5.4 Расчет финансово - экономических показателей
Рентабельность затрат по балансовой прибыли:

(67)
Прибыль, которая учитывает все результаты
производственно-хозяйственной деятельности предприятия, называется балансовая
прибыль. Она включает, - прибыль от реализации продукции (работ, услуг),
прибыль от прочей реализации, доходов по внереализационным операциям,
уменьшенным на сумму расходов по этим операциям.
Срок окупаемости проекта, (лет):

(68)

Технико - экономические и финансовые показатели представляются в
виде таблицы.
Таблица А.22 - Сводная таблица технико-экономические и финансовых
показателей
|
№ п.п.
|
Показатели
|
Ед-цы
|
Значения в
проекте
|
|
1
|
Годовой объем
работ по предоставляемой услуге
|
чел. - ч.
|
6996
|
|
2
|
Площадь участка
|
м2
|
90
|
|
3
|
Стоимость
участка
|
руб.
|
1821600
|
|
4
|
Стоимость
оборудования на участке
|
руб.
|
433500
|
|
5
|
Количество
производственных рабочих на участке
|
чел.
|
5
|
|
6
|
Средняя
заработная плата за месяц
|
руб.
|
24955
|
|
7
|
Себестоимость
чел. - ч.
|
руб.
|
1134
|
|
8
|
Цена нормо -
часа для клиента
|
руб.
|
1304
|
|
9
|
Рентабельность
затрат по балансовой прибыли
|
%
|
13
|
|
10
|
Срок
окупаемости капитальных вложений
|
лет
|
2,07
|
Заключение
Система trade-in в дилерских центрах пока организована плохо
- у многих нет возможностей для организации этого бизнеса на должном уровне.
Это связано с дефицитом времени, кадров, помещений. Для официальных дилеров
развитие торговли подержанными автомобилями жизненно необходимо по причинам:
- после насыщения рынка и спада продаж новых
автомобилей дилеры смогут существовать только за счёт торговли подержанными
автомобилями, сервиса и продажи запчастей, как и в других странах;
- имидж современного дилера требует наличия
системы замены старого автомобиля новым (trade-in);
- обменивая автомобили, дилеры удерживают
своих клиентов на многие годы.
Предоставление гарантии на подержанные автомобили - это не
столько льгота клиенту, сколько обеспечение “портфеля заказов” на сервис.
Предоставляя гарантию, автодилерская фирма обусловливает её исполнение
обязательным платным регламентным обслуживанием на её сервисной станции. Тем
самым обеспечивается: поступление заказов на регламентное обслуживание и
контроль состояния автомобиля. Принуждая клиента к обязательному обслуживанию в
течение гарантийного периода, приучают его пользоваться услугами данной СТО, и,
если эти услуги оказываются быстро, точно, вежливо и недорого, клиент
привыкает. Психология клиента - это основная цель воздействия мероприятий
маркетинга. Разумеется, клиентам предлагаются также дооборудование и тюнинг,
они приносят хороший доход.
Несмотря на существующие преграды трейд - ин все же
завоевывает популярность. Прежде всего, система удобна для тех, кто готов
потерять определенную сумму комиссии, но взамен избавиться от поисков
покупателя, осмотра, оценки, торга с потенциальным покупателем. Кроме того,
сведен к минимуму риск «нарваться» на недобросовестных покупателей, так как
гарантом чистоты сделки купли-продажи автомобиля выступает автосалон. Поэтому
можно сделать вывод, что за системой трейд-ин в России большое будущее.
В рамках данной работы был разработан проект реконструкции
сервисного центра с разработкой услуги по «трейд-ин».
В аналитической части проведен анализ
конкурентов. Определен сегмент рынка и спрогнозировано количество потенциальных
клиентов.
В технологической части произведены
расчеты годового объема услуги, разработана технология процесса оказания
услуги. Определено требуемое оборудование.
В коммуникативной части определена
кадровая политика, внесены изменения в структуру управления предприятием
управления сервисным центром, определены методы работы с коллективом и
клиентами.
В разделе «Безопасность процессов оказания
услуг» проведен анализ вредных производственных факторов и разработаны
мероприятия по обеспечению безопасности проекта.
В экономической части произведен расчет
технико-экономических и финансово-экономических показателей проекта, которые
показывают его целесообразность.
В результате разработки проекта достигнуты
следующие технико-экономические и финансовые показатели работы сервисного
центра:
рентабельность затрат 13%;
заработная плата ремонтных
рабочих составит 24955 рублей;
окупаемость проектируемого
сервисного центра составляет 2,07 года.
Подводя итоги, можно сделать вывод: цель
проекта достигнута, поставленные задачи решены.
Внедрение данного проекта позволит
рационально использовать неиспользуемые площади, увеличить загрузку
предприятия, повысить его конкурентоспособность, привлечь новых клиентов.
Библиографический список
1. Боровиков А.В. Автосервис. Методические указания по
выполнению выпускной квалификационной работы по специальности 100101.65
«Сервис» специализации «Автосервис» / А.В. Боровиков А.В., Пирозерская О.Л.,
Доронин С.В. и др. - СПб.: Изд-во СПбГУСЭ, 2011. - 95 с..
2. Бычков, В.П. Эффективность производства и
предпринимательство в автосервисе : Тамб. гос. техн. ун-та, 2007. - 304 с..
3. Вахламов
В.К. Автомобили: основы конструкции. - М, «Академия», 2008, 528 с..
4. Волгин В.В. Автосервис: структура и персонал. - М,
«Дашков и К», 2006, 712 с..
5. Волгин В.В. Автосервис. Техника, сервис, запчасти. -
М, «Маркетинг», 2003, 848 с..
. Грибут И.Э., Артюшенко В.М. Автосервис: станции
технического обслуживания автомобилей - М, «Альфа-М», 2008, 480 с..
7. Епифанов
А.В., Пирозерская О.Л., Эмиров И.Х. Безопасность жизнедеятельности.
Методические указания по выполнению раздела «Безопасность процессов оказания
услуг» дипломных проектов студентов специальности 100101.65 «Сервис» по
специализации «Автосервис» - СПб.: Изд-во СПбГУСЭ, 2010. - 27 с..
8. Марков О.Д. Автосервис: Рынок, автомобиль, клиент. -
М: Транспорт, 1999, 270 с.
9. Миротин Л.Б. и др. Управление автосервисом: учебное
пособие для вузов. - М: Экзамен, 2004, 320 с..
10. Напольский
Т.М. Технологическое проектирование автотранспортных предприятий и систем
технического обслуживания. Учебник для вузов. - М.: МАДИ, 1990. - 182 с.
11. Пирозерская
О.Л. Автосервис. Расчет технико-экономических показателей автосервиса. Методические
указания по выполнению экономической части дипломных проектов студентов
специальности 100101.65 «Сервис» по специализации «Автосервис» / Пирозерская
О.Л., Варганова С.Ю. - СПб.: Изд-во СПбГУСЭ, 2011. - 27 с..
. Положение
о техническом обслуживании и ремонте автотранспортных средств, принадлежащих
гражданам. РД 37.009.026-92.
. Управление
автосервисом: Учебное пособие для ВУЗов/ Под_общей ред. Л.Б. Миротина. - М.:
Издательство «Экзамен», 2004. 320с..
14. Шпак Ф.П. Проектирование процесса оказания услуг.
Учебное пособие для студентов специальности 230700 «Сервис» специализации
230712 «Автосервис». СПб. - СПбГУСЭ. 2005, 143 с..
15. ГОСТ 12.3.002-75 «Процессы производственные. Общие
требования безопасности»
. ГОСТ 12.3.017-79 «Ремонт и техническое обслуживание
автомобилей. Общие требования безопасности»
. ГОСТ 12.1.005-88 «ССБТ. Общие санитарно -
гигиенические требования к воздуху рабочей зоны»
. ГОСТ Р 51709 - 2001 "Автотранспортные средства.
Требования безопасности к техническому состоянию и методы проверки".
. ГОСТ 17.2.3.02-86 «Охрана природы. Атмосфера.
Правила установления допустимых выбросов вредных веществ промышленными
предприятиями»
20. НПБ 160-97 «Нормы пожарной безопасности. Цвета
сигнальные. Знаки пожарной безопасности: виды, размеры, общие технические
требования»
21. СНиП 2.09.02-85* «Производственные здания»
. СНиП 2.11.01-85 «Складские здания»
. СНиП 23-05-95 «Естественное и искусственное
освещение»
Приложение 1
Карточка оценки потребностей клиента
|
ФИО________________
Профессия___________ Интересы и хобби клиента___ Телефоны:
Домашний________________ Рабочий__________________ Факс_____________________ E - mail___________________
|
|
Сколько будет
эксплуатироваться машина до 3 3 - 6 более 6 Интересующая модель_______
Служебная Личная Предпочитаемые цвета_______ Среднегодовой пробег_______
Бизнес Личные цели Комплектация_______________ Сколько лет нынешнему
автомобилю____ Что нравится / не нравится в нынешнем
автомобиле____________________ _________________________ Желательные ежемесячные
выплаты:_____
|
|
Текущая
марка____ Модель ___ Год___ Цвет__ Пробег __ Кол - во владельцев __
Техосмотры до __ Комплектация Ожидаемая цена ___ Оценка стоимости ___
|
|
Источник:
Реклама, Акции, Пресса, Случайно зашли, Рекомендации. Действия: Снабдили
информацией, посещение салона, тест драйв, назвали цену. Результат: продажа,
нет продажи, купил машину другой марки, неизвестно. Последующие контакты:
отсрочены. Дата для следующего контакта:_____
|
Приложение 2