Оборудование и принципы работы электрической подстанции

  • Вид работы:
    Отчет по практике
  • Предмет:
    Физика
  • Язык:
    Русский
    ,
    Формат файла:
    MS Word
    254,48 Кб
  • Опубликовано:
    2012-09-18
Вы можете узнать стоимость помощи в написании студенческой работы.
Помощь в написании работы, которую точно примут!

Оборудование и принципы работы электрической подстанции














Оборудование и принципы работы электрической подстанции

Содержание

1.       Введение

2.       Основная часть

2.1     Ознакомление с принципом работы подстанций

2.2     Текущий ремонт отделителя

.3       Текущий ремонт разъединителя

.4       Монтаж светильников и ламп освещения в гаражном комплексе

.5       Монтаж электродвигателя вентилятора охлаждения трансформатора

.6       Монтаж электромагнитных реле РП-21

.7       Монтаж щитов управления

Заключение

Список литературы

Введение

Открытое акционерное общество «Межрегиональная распределительная сетевая компания Центра и Приволжья» является основным поставщиком услуг по передаче электроэнергии и технологическому присоединению к электросетям во Владимирской, Ивановской, Калужской, Кировской, Нижегородской, Рязанской, Тульской областях, а также в Республике Марий Эл и Удмуртской Республике.

ОАО «МРСК Центра и Приволжья» зарегистрировано в Нижнем Новгороде 28 июня 2007 года.

С 29 февраля 2008 года ОАО «МРСК Центра и Приволжья» представляет собой единую операционную компанию с центром ответственности в г. Нижний Новгород, управляющую девятью региональными филиалами: «Владимирэнерго», «Ивэнерго», «Калугаэнерго», «Кировэнерго», «Мариэнерго», «Нижновэнерго», «Рязаньэнерго», «Тулэнерго», «Удмуртэнерго». Формирование компании в данной конфигурации осуществлено в соответствие с распоряжением Правительства РФ от 19 декабря 2007 года № 1857-р. По состоянию на 29 февраля 2008 года была осуществлена конвертация акций присоединяемых обществ в дополнительные обыкновенные акции ОАО «МРСК Центра и Приволжья», благодаря чему все акционеры РСК стали акционерами единой операционной компании.

Создание ОАО «МРСК Центра и Приволжья» является неотъемлемой частью плана реформирования российской электроэнергетики. 26 октября 2007 года в рамках мероприятий по реформированию распределительного сетевого комплекса Совет директоров РАО «ЕЭС России» одобрил основные параметры формирования ОАО «МРСК Центра и Приволжья», в том числе дополнительную эмиссию в размере 112 600 000 000 обыкновенных акций ОАО «МРСК Центра и Приволжья», а также коэффициенты конвертации акций РСК в дополнительные обыкновенные акции ОАО «МРСК Центра и Приволжья». Решение о реорганизации РСК в форме присоединения к ОАО «МРСК Центра и Приволжья», а также утверждение Договора о присоединении и передаточных актов было принято акционерами РСК на внеочередных Общих собраниях акционеров, которые состоялись 11 и 14 декабря 2007 года.

ОАО «МРСК Центра и Приволжья» первой из всех МРСК завершила процесс реорганизации путем присоединения РСК в рамках реформы распределительного электросетевого комплекса РФ.

Таким образом, ОАО «МРСК Центра и Приволжья» консолидировало активы, создав крупную по мировым меркам энергетическую компанию, которая будет осуществлять масштабную инвестиционную программу и целенаправленную корпоративную политику в соответствие с долгосрочной стратегией развития. Создание крупной операционной компании ОАО «МРСК Центра и Приволжья» приведет к ликвидности акций, увеличению кредитного рейтинга, повышению инвестиционной привлекательности и уровня ответственности менеджеров перед акционерами и клиентами за финансовые результаты, качество услуг и надежное электроснабжение регионов присутствия.

Осенью 2007 года в ходе рабочей встречи генерального директора ОАО "МРСК Центра и Приволжья" Евгения Ушакова с губернатором Нижегородской области Валерием Шанцевым было принято решение о постановке на баланс энергокомпании уникального памятника архитектуры - Шуховской башни, созданной известным архитектором и конструктором Владимиром Шуховым в конце 20-х годов прошлого столетия. С момента принятия решения компанией была проделана большая работа по реконструкции башни, которая продолжается и в настоящее время.

В ноябре 2008 года ОАО «МРСК Центра и Приволжья» присвоен рейтинг корпоративного управления 6+ «Развитая практика корпоративного управления».

В декабре 2008 года система управления ОАО «МРСК Центра и Приволжья» прошла сертификацию на соответствие требованиям международных стандартов ISO 9001, ISO 14001, OHSAS 18001, что свидетельствует об эффективности управленческой политики компании в области качества, профессионального здоровья, безопасности труда и охраны окружающей среды. В декабре 2009 года в ОАО "МРСК Центра и Приволжья" завершился надзорный аудит интегрированной системы менеджмента, по результатам которого Общество подтвердило свое право использования ранее выданных сертификатов.

«Удмуртэнерго» является филиалом открытого акционерного общества «Межрегиональная распределительная сетевая компания Центра и Приволжья» - единой операционной компании с центром ответственности в г. Нижний Новгород, являющейся основным поставщиком услуг по передаче электроэнергии и технологическому присоединению к электросетям во Владимирской, Ивановской, Калужской, Кировской, Нижегородской, Рязанской, Тульской областях, а также в Республике Марий Эл и Удмуртской Республике.

В состав ОАО «МРСК Центра и Приволжья» входят девять филиалов: «Владимирэнерго», «Ивэнерго», «Калугаэнерго», «Кировэнерго», «Мариэнерго», «Нижновэнерго», «Рязаньэнерго», «Тулэнерго», «Удмуртэнерго».

Формирование компании в данной конфигурации завершено 29 февраля 2008 года и осуществлено в соответствие с распоряжением Правительства РФ от 19 декабря 2007 года № 1857-р. По состоянию на 29 февраля 2008 года осуществляется конвертация акций присоединяемых обществ в дополнительные обыкновенные акции ОАО «МРСК Центра и Приволжья», благодаря чему все акционеры РСК становятся акционерами единой операционной компании.

В настоящее время филиал «Удмуртэнерго» отвечает за перераспределение и транспорт электрической энергии в Удмуртской Республике, надежное функционирование и развитие электросетевого хозяйства республики.

«Удмуртэнерго» обеспечивает энергоснабжение 25 районов Удмуртской Республики. В структуре полезного отпуска электроэнергии филиала предприятия нефтедобычи, машиностроения, металлургии, деревообрабатывающей и химической промышленности, железнодорожный транспорт, сельское хозяйство, строительные компании и предприятия ЖКХ, население и объекты социальной сферы.

Общая протяженность ЛЭП составляет 24142,12 км.

Количество ТП 6-10 кВ - 5511 шт.

Количество ПС 35 кВ и выше - 218 шт.

Установленная мощность ПС и ТП - 4617,42 МВА

Ознакомление с принципом работы подстанций

Электрическая подстанция - электроустановка, предназначенная для приема, преобразования и распределения электрической энергии, состоящая из трансформаторов или других преобразователей электрической энергии, устройств управления, распределительных и вспомогательных устройств.

Основные элементы подстанций:

·        Силовые трансформаторы, автотрансформаторы.

·        Вводные конструкции для воздушных и кабельных линий электропередачи.

·        Открытые (ОРУ) и закрытые (ЗРУ) распределительные устройства, включая:

·        Системы и секции шин;

·        Силовые выключатели;

·        Разъединители;

·        Измерительное оборудование (измерительные трансформаторы тока и напряжения, измерительные приборы);

·        Оборудование ВЧ-связи между подстанциями (конденсаторы связи, фильтры присоединения);

·        Токоограничивающие, регулирующие устройства (конденсаторные батареи, реакторы, фазовращатели и пр.).

·        Преобразователи частоты, рода тока (выпрямители).

·        Система питания собственных нужд подстанции:

·        Трансформаторы собственных нужд;

·        Щит переменного тока;

·        Аккумуляторные батареи;

·        Щит постоянного (оперативного) тока;

·        Дизельные генераторы и другие аварийные источники энергии (на крупных и особо важных подстанциях).

·        Системы защиты и автоматики:

·        Устройства релейной защиты и противоаварийной автоматики для силовых линий, трансформаторов, шин.

·        Автоматическая система управления.

·        Система телемеханического управления.

·        Система технического и коммерческого учёта электроэнергии.

·        Система технологической связи энергосистемы и внутренней связи подстанции.

·        Система заземления, включая заземлители и контур заземления.

·        Молниезащитные сооружения.

·        Вспомогательные системы:

·        Система вентиляции, кондиционирования, обогрева.

·        Система автоматического пожаротушения.

·        Система освещения территории.

·        Система охранно-пожарной сигнализации, управления доступом.

·        Система технологического и охранного видеонаблюдения.

·        Устройства плавки гололёда на воздушных линиях.

·        Системы аварийного сбора масла.

·        Системы питания маслонаполненных кабелей.

·        Бытовые помещения, склады, мастерские и пр.


Отделитель - коммутационный аппарат, предназначенный для быстрого отсоединения поврежденного участка электрической сети в бестоковую паузу (реже для операций включения). По конструкции токоведущих частей отделители не отличаются от разъединителей. Их контактная система не приспособлена для коммутаций под рабочим током нагрузки. Для быстрого отключения (не более 0,5с) в отделителях используется энергия взведенной пружины привода.

Технические характеристики ОД-110:

·        Ном. ток - 800А

·        Полное время отключения - 0,32с.

·        Допустимое тяжение провода - 490Н

·        Длина пути утечки - 280см

·        Сопротивление цепи - 150мкОм.

В основном, в целях экономии, отделители применяются на подстанциях 35, 110 кВ вместо выключателей по стороне высшего напряжения. Отделители работают в связке с короткозамыкателями.

Отделителями допускаются операции отключения и включения:

·        трансформаторов напряжения, зарядного тока шин и подстанционного оборудования всех напряжений (кроме конденсаторных батарей);

·        параллельных ветвей, находящихся под током нагрузки, если разъединители этих ветвей шунтированы другими включенными разъединителями или выключателями;

·        намагничивающих токов силовых трансформаторов и зарядных токов воздушных и кабельных линий;

§  нейтралей трансформаторов и дугогасящих катушек при отсутствии в сети замыкания фазы на землю.

Короткозамыкатель - электрический аппарат, предназначенный для создания искусственного короткого замыкания на землю в сетях электроснабжения

Технические характеристики КЗ-110:

·        Амплитуда предельного сквозного тока 51 кА

·        Ток термической стойкости 20 кА

·        Время включения (до касания контакта):

·        - без гололеда 0,14 с;

·        - с гололедом (до 20 мм) 0,20 с.

·        - Угол отклонения ножа 73 град

·        - Допустимое тяжение провода 784 Н

·        - Длина пути утечки 190 см

Схема совместного действия отделителя и короткозамыкателя:

- выключатель;- отделитель;- короткозамыкатель;

Т1 и Т2 - силовые трансформаторы;

ТА1, ТА2 и ТАЗ - трансформаторы тока;- катушка электромагнита отключения отделителя; - катушка электромагнита включения короткозамыкателя.

Для проведения текущего ремонта отделителя необходимо выводить из работы. Текущий ремонт отделителей производится 2 раза в год весной и осенью).

При текущем ремонте выполняется следующий основной объем работ:

·        Руководителю ремонта произвести внешний осмотр отделителя и составить акт дефектации. Данный акт дефектации хранить в папке ремонтной документации присоединения

·        Произвести внешний осмотр отделителя, выявление дефектов, определение объема работ.

·        Проверка состояния ножей и губок (осмотр, очистка контактов, деталей головок, ножа, смазка).

·        Проверка состояния колонок изоляторов (осмотр, очистка изоляторов, армировочных швов, смазка подшипников).

·        Проверка состояния привода, блокировки (подтяжка болтовых соединений, смазка, регулировка). Проверка работы привода.

·        Проверка состояния приводного механизма (осмотр, очистка тяг, рычагов, смазка, регулировка).

·        Контрольная обтяжка болтовых соединений отделителя, привода, проверка заземления).

·        Восстановление антикоррозийного покрытия - удаление ржавчины, покраска, восстановление расцветки фаз.

·        Регулировка отделителя (фиксация положения подвижного контакта в отключенном и включенном состоянии).

·        Опробование работы отделителя.

·        Измеряется сопротивление изоляции первичной и вторичных цепей.

Текущий ремонт разъединителя

Разъединитель - контактный коммутационный аппарат, который обеспечивает в отключенном положении изоляционный промежуток, удовлетворяющий нормированным требованиям.

РНДЗ-1-110

Р - разъединитель; Н - наружной установки; Д - двухколонковый или вертикально-поворотный; З - с заземляющими ножами; 1 - размещение на открытом воздухе; ном. напряжение - 110кВ

Примечания:

·        Разъединитель способен размыкать и замыкать цепь при малом токе или малом изменении напряжения на выводах каждого из его полюсов. Он также способен проводить токи при нормальных условиях в цепи и проводить в течение нормированного времени токи при ненормальных условиях, таких как короткое замыкание.

·        Малые токи - это такие токи, как емкостные токи вводов, шин, соединений, очень коротких кабелей, токи постоянно соединенных ступенчатых сопротивлений выключателей и токи трансформаторов напряжения и делителей. Для номинальных напряжений до 330 кВ включительно ток, не превышающий 0,5 А, считается малым током по этому определению; для номинального напряжения от 500 кВ и выше и токов, превышающих 0,5 А, необходимо проконсультироваться с изготовителем, если нет особых указаний в руководствах по эксплуатации разъединителей.

·        К малым изменениям напряжения относятся изменения напряжения, возникающие при шунтировании регуляторов индуктивного напряжения или выключателей.

·        Для разъединителей номинальным напряжением от 110 кВ и выше может быть установлена коммутация уравнительных токов.

Текущий ремонт производят, чтобы устранить дефекты, выявленные во время осмотров, и, кроме того, уточнить и ликвидировать причины обнаруженных в процессе эксплуатации отдельных ненормальностей в работе аппаратов. Текущий ремонт оборудования выполняется по мере необходимости в сроки, установленные главным инженером предприятия.

Чтобы быстро найти причину неисправности, необходимо знать принцип работы аппарата. Все неисправности, которые возникли в процессе эксплуатации, приводят к нарушению его нормальной работы и ухудшению его свойств.

Ремонт разъединителей включает ремонт изоляторов, токоведущих частей, приводного механизма и каркаса. Сначала изоляторы очищают от пыли и грязи (слегка смоченной в бензине тряпкой) и внимательно осматривают с целью выявления дефектов.

Далее проверяют:

·        крепление подвижных и неподвижных контактов на изоляторах, а также токоведущих шин и проходных изоляторов;

·        отсутствие при включении смещения подвижного контакта относительно оси неподвижного. Если смещение вызывает удар подвижного контакта о неподвижный, изменяют положение неподвижного контакта;

·        надежность контакта в месте соединения шин с неподвижными контактами (на стягивающих болтах должны быть контргайки);

·        степень касания подвижного и неподвижного контактов с помощью щупа толщиной 0,05мм, который должен проходить на глубину не более 5-6 мм. Изменение плотности достигаеться затяжкой спиральных пружин на неподвижных контактах. Однако плотность контактов должна быть такой, чтобы вытягивающее усилие не превышало 100-200 Н для разъединителей РВО и РВ на ток до 600 А;

·        одновременность касания ножей с губками трехфазового разъединителя. Регулировка достигаеться изменением длины поводков или тяг отдельных фаз;

·        момент замыкания и размыкания блок-контактов. В случае включения цепь блок-контактов должна замыкаться при приближении ножей к губкам, а при выключении - после прохождения ножом 75% его полного хода. Регулировка производиться изменением длины тяги блок-контактов и поворотом контактных шайб на шестигранном валу;

·        целость пластин гибкость связи вала заземляющих ножей с каркасом разъединителя. Для надежности соединения поверхности заземляющей шины и рамы разъединителя плоскость вокруг отверстия для болта зачищают до блеска, смазывают тонким слоем вазелина и соединяют заземляющую шину с рамой болтом; чтобы избежать каррозии вокруг места соединения, болт окрашивают;

·        точность работы механической блокировки вала разъединительных и заземляющих ножей. Трущиеся части разъединителей и привода покрывают незамерзающей смазкой, а при необходимости предварительно протирают смоченной в бензине тряпкой и зачищают шкуркой.

·        Место контакта ножа и губки смазывают тонким слоем незамерзающей смазки или вазелина. Предварительно контактные поверхности зачищают мягкой стальной щеткой.

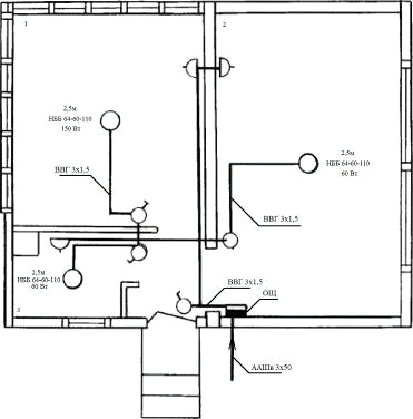
Монтаж светильников и ламп освещения в гаражном комплексе


Была произведена замена старых светильников на новые.

Светильник НББ 64-60-110 комплектуется рассеивателем сферической формы, и снабжен керамическим патроном Е27.

Может использоваться со всеми видами ламп: накаливания, светодиодными, энергосберегающими.

Монтаж электродвигателя вентилятора охлаждения трансформатора

Для дутьевых вентиляторов применяют асинхронные трехфазные электродвигатели типа 4АА63А4ТР (4 - порядковый номер серии; А - асинхронный; А - станина из алюминиевого сплава; 63 - высота оси вращения в мм; А - длина сердечника; 4 - число полюсов; TP - трансформаторный). Мощность двигателя 0,25 кВт, напряжение 127/220 и 380 В.

Двигатель устанавливают на кронштейне вертикально, его фланец со стороны конца вала крепят болтами М10 с применением пружинных шайб. На верхний конец вала 1 (на его шпоночную часть) надевают четырехлопастную крыльчатку 3 серии МЦ-4 ступицей 4. Предварительно под диск 6 крыльчатки на вал надевают водоотражающий колпак 2. Чтобы крыльчатка не сорвалась с вала от воздействия осевых усилий при вращении, ее крепят глухой гайкой 5. Перед установкой двигателя со свободного конца вала удаляют антикоррозионную смазку, производят статическую балансировку крыльчаток, мегаомметром на 500 В измеряют сопротивление изоляции обмотки, оно должно быть не менее 1 МОм, при меньшем сопротивлении двигатель сушат.

Похожие работы на - Оборудование и принципы работы электрической подстанции

 

Не нашли материал для своей работы?
Поможем написать уникальную работу
Без плагиата!
Без нейросетей!